You are currently viewing a new version of our website. To view the old version click .
Energies
  • Article
  • Open Access

8 March 2023

Energy Self-Sufficiency of a Salmonids Breeding Facility in the Recirculating Aquaculture System

,
,
,
and
1
Faculty of Electrical Engineering, West Pomeranian University of Technology, Sikorskiego 37, 70-313 Szczecin, Poland
2
Faculty of Food Science and Fisheries, West Pomeranian University of Technology, Kazimierza Królewicza 4, 71-552 Szczecin, Poland
*
Author to whom correspondence should be addressed.

Abstract

This study presents the results of research on energy self-sufficiency, safety and production reliability in a salmonids fish farm. For the needs of the breeding facility under construction in the Recirculating Aquaculture System, energy requirement analyses were carried out and guidelines collected for the implementation of innovative solutions, which ensure the security and continuity of energy supplies and the plant’s energy self-sufficiency. This research included the development of solutions for the reliability of power supply and ensuring the continuity of operation of devices that are key to the fish farming process, i.e., lighting and pumps. In terms of ensuring the necessary amounts of energy, the possibility to diversify electricity sources was analysed, taking into account the possibility of self-production, including primarily from a photovoltaic power plant and from average power wind farms. The profitability of using energy storage was also examined. Recommendations and a list of energy balances for selected cases of potential power sources are presented.

1. Introduction

Power security and continuity, as well as energy self-sufficiency, are and will be one of the key problems faced by entrepreneurs. The success of investments and companies’ profits often depend on the reliability of energy supply. The latter can potentially be increased by providing a company with energy self-sufficiency, becoming independent from external energy suppliers. This is a global tendency not only for companies, but also for single houses, entire villages, cities and regions [1,2,3,4,5,6,7,8].
For example, in [3], elements of a technical and economic feasibility study for the electrification of rural areas in Africa were analysed. The authors investigated the possibility of powering residential and irrigation systems by hybrid off-grid microgrids using renewable energy.
Similarly, in [4], they focused on the electrification of a typical village in southern Nigeria. The subject of the analysis was to study the technical and economic feasibility of a hybrid micro-hydro-photovoltaic-diesel-battery-wind system. Optimization of the project was aimed at achieving the results at the lowest possible cost, taking into account the reduction of pollutant emissions to the environment.
A feasibility and sensitivity analysis of off-grid and grid-connected renewable energy microgrids is presented in [6]. Researchers examined the potential of wind and solar power in selected regions of Bangladesh, a country with a tropical climate.
An interesting observation is the obvious fact that the network management methods developed in these studies provide different results due to the usually completely different energy demand characteristics (load curves), as well as the sometimes radically different environmental conditions influenced by the location of the installation. Various levels of irradiation, wind conditions, the need for island operation and many other detailed factors affect the final configuration, operation and efficiency of the installation.
Articles on the construction of photovoltaic (PV) + wind systems also consider many technical problems that must be solved, including the effective connection of individual elements controlled and operated by the system [9,10,11,12], and/or the selection and management of energy storage [13,14,15,16]. Surprisingly, there are many problems, but also interesting solutions proposed by the authors. The study [9] proposes power electronic solutions for regulators ensuring automatic synchronization of PV panel modules with the energy supplied by the windmill generator, in off-grid networks without a battery being an energy storage. The article [17] is devoted to the analysis of the possibility of shaping the load characteristics with the use of flexible loads, such as residential air conditioners (ACs), to provide demand-side regulation and balance services in electricity grids. Similarly, the regulation of load curves is a problem considered in [14], and for the case of a single household [18].
Some papers are devoted to analysing how the emergence of prosumers and prosumagers in the energy community can impact the organization and operation of power grids. In [19], it was shown that the appropriate construction and configuration of the system can ensure self-sufficiency and economic benefits for all members of the community, even when their individual goals may differ or be contradictory to some extent.
Much work has also been devoted to the problem of the accuracy of weather forecasts for predicting solar radiation and wind strength, which have a huge impact on the control strategy of a power system using PV + wind. Their effectiveness has been verified and summarized in [20].
A separate problem is ensuring the continuity of power supply and energy self-sufficiency of companies or specific processes. There are definitely fewer examples of implementations here [21,22,23]. Ref. [22] present a hybrid wind/PV/small-hydropower/facility-agricultural system where operation is optimized to obtain the best supply-to-load curves for a given wind and PV power outputs and load curves. The operational strategy proposed in this study is aimed at maximizing the use of wind and solar resources with rational allocation of hydropower resources in order to ensure an energy-efficient system. In [23], the authors analyse an energy management system that ensures both island operation and smooth energy exchange between the existing rural power system and the factory microgrid attached to it.
In this paper, we undertake the measures to understand the problem of ensuring the security of power supply and energy self-sufficiency for a salmonid fish farming plant in the Recirculating Aquaculture System (RAS). In the plant under construction, breeding fish in artificial reservoirs, pools with forced water flow, is planned. The animals are placed in an artificial living environment by providing fresh water, oxygenating it and forcing its circulation, and providing all the nutrients necessary for the life and development of fish. Such farms have a number of advantages because they are independent of external conditions (e.g., minimizing the risk of fish diseases; requiring less water compared to traditional breeding systems), and at the same time it is possible to control all parameters of the process and its optimization. This is why many works are devoted to the problem of control and supervision systems over the process being conducted [24,25,26,27]. Optimization can concern both the process of fish growth, but also the energy consumption necessary for its conduct [28,29]. As can be found in [30], the range of energy costs in RAS farms per kilogram of fish produced is generally very large, ranging from 2.9 kWh/kg of fish to 81.48 kWh/kg. In the case of salmonid fish popular on the market, however, only those farms that guarantee results from the lower range, single kWh, seem to be economically viable. It is planned to grow approx. 500–600 tons of fish per year in the analysed plant, which with the assumed energy consumption (power 180 kW) provides a very good result of approx. 2.6–3.1 kWh per kilogram of fish.
The latter problem is mainly influenced by technological requirements and limitations. They impose optimal breeding conditions, including parameters such as temperature and oxygenation of the water or lighting. These are important constraints with RAS, due to the constant (24/7) necessity for electricity and oxygen supply. This results in high operating costs, but also high expenditure on equipment ensuring the continuity and reliability of the process, directly determining the type and power of the devices used. However, on the other hand, the constancy of energy consumption significantly facilitates the analysis of the energy efficiency of the process and the use of energy from renewable sources. In normal operation mode, all devices work with constant efficiency 24 h a day, and the fundamental changes in energy consumption primarily result from possible failures of individual devices.
In the following sections of this paper, we present the results of methodical analysis and guidelines for the selection of elements of the supply system for a fish farming factory in the RAS system, implemented in Żeleźno, in the north-western part of Poland. We analyse the requirements for the safety and continuity of plant operation, related to recommendations for the design of individual installations. In Section 2, we present the plant and describe the basics of the breeding process. Next, in Section 3, requirements for the safety and continuity of the installation operation are discussed. Section 4 presents the potential for solar and wind energy resources available at the installation site. Section 5 is devoted to analysis of PV use, and systems with and without battery storage; the application of wind turbines is then analysed in Section 6. A brief analysis of the validity of using hydrogen energy storage is presented in Section 7. The article ends with a short summary of the results.

2. Assumptions for Fish Farming and the Plant’s Power Balance

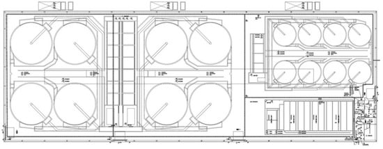
The subject of study is the fish farming process carried out in a technological hall ( 100   m × 30   m ); a diagram is shown in Figure 1. The fish are bred in tanks with a round base; here, eight tanks with a diameter of 6   m and a depth of 3   m for small size fish and eight large fattening tanks for the final product with a diameter of 11   m and height of 8   m .
Figure 1. Schematic diagram of the production hall.
The water in the tanks is constantly aerated and at the same time, forced to circulate in the tank. The fish then naturally swim upstream. Possible breaks in aeration and forcing the water circulation are possible, but should not exceed a few minutes. This requirement is a restriction for the pump and aeration system supply devices. The critical process, however, is the hall lighting. Any lighting interruption may cause the fish to scare and accumulate at the bottom of the tank. This railroad can lead to fish being sucked in by the gravity tank cleaning system, clogging the runoff and ultimately causing serious losses to the livestock. Hence the need to ensure continuous lighting of the tanks 24/7.
An analysis of assumptions and requirements for the process allows to estimate the amount of energy that will be used in the plant. The planned power of all devices is approx. 180   kW . This is due to, inter alia, power of oxygenation pumps, heat recuperators, lighting of the hall and outdoor facility, social rooms, automation and work supervision system.
The exact value of energy consumption cannot be determined at this stage of plant construction; however, the assumed 180   kW seems to be a value close to the maximum value for the current production plans, i.e., for one breeding hall plus a fry hatchery.
In accordance with the expected energy consumption (power demand), the investor decided to connect to the power grid and use a 400   kVA pole transformer. This allows for the plant’s energy needs to be met with an excess. A possible change in the ordered power and transformer capacity (its replacement) will be required with a large expansion of the plant, with further fattening halls and the lack of use of any additional power sources, such as energy from renewable sources (solar and wind).
The investor’s building permit allows the construction of a photovoltaic farm next to the plant; however, it foresees too little power—as shown later in the study—to supply the farm equipment in a continuous mode. It would require retrofitting the installation, for example, with a battery of accumulators charged during the day with the surplus of energy produced by photovoltaic panels. The effectiveness of using these sources is the subject of further analysis in this study.

3. Requirements for the Safety and Continuity of the Installation Operation

This chapter presents the assumptions and recommendations for the electrical design regarding the continuity of installation operation and power supply reliability. The guidelines presented below were used to prepare the final design of the electrical installation, security system and production supervision.
The subject of the analysis and findings of the design assumptions were primarily the following:
  • Need for two aggregates in cold reserve.
Due to the reliability of power supply to the installation, a backup power source should be provided. Therefore, it is planned to secure the continuity of energy supply through the use of two power generators. Combustion generators used as an emergency power source will allow for island operation in the event of a power outage in the plant. Each of the aggregates should have the power necessary to supply all devices of the technological hall. The units are designed to operate in cold reserve, i.e., they will be started within a few minutes after a power failure. They will be activated by the system of automatic switching on the reserve. This system should be verified periodically to keep the equipment in working order.
  • LED lighting in the hall operating in continuous mode, with two UPS for lighting power supply.
The use of LED light sources is expected to be more effective and cheaper to operate. These will be sources operating in a continuous mode, which is required by the conducted process. Due to the intended operation of the power generators in cold reserve, thus the possibility of several-minute breaks in power supply to the hall, the use of a UPS to maintain the lighting is a necessary requirement. It is also proposed to use two such devices, the first working in hot redundancy mode, and the second as a backup. The expected UPS operation time should depend on the maximum time required for the power generators to be switched on by the automatic backup switching system.
  • Oxygenation and forcing water circulation, redundancy of blower motors.
In order to avoid the consequences of a possible failure of the pumps (their engines), their redundancy is assumed, quantitative and efficient. In accordance with the original assumptions of the investor, it is planned that one pump in normal operation will serve two tanks, and in the event of a failure, it will be able to service four tanks. However, this solution may not be energy efficient, as it involves constant operation of the pumps away from the nominal operating point (at reduced revolutions) and their nominal load only during a failure. Regarding the energy point of view, it seems reasonable to change the strategy to continuous operation of one pump, which would then work in the nominal conditions for which it is energy optimized. In the case of failure, the backup pump would then be turned on, which would run at the same “optimized energy expenditure”. The final choice of strategy, however, depends on the characteristics of the selected blowers.
  • Power cable redundancy.
The requirement for redundancy of power cables applies to both lighting and the method of supplying air pumps. It is recommended to drive it along two different, distant paths. Potential damage to the cables may be mechanical, caused by humans or animals (e.g., rats). Man-made mechanical damage must not cause failure of both power lines simultaneously. Suspending the cables from the hall ceiling will facilitate the installation and operation of the facility. Any cable failures will be easy to repair with this solution. An alternative would be to run the cables in concrete grooves along communication routes, and in some cases perhaps even under the tanks, which would in principle exclude any maintenance and repair work.
  • Thermal energy in the process.
The water drawn from the deep well has the temperature appropriate for fish farming, therefore it does not need to be heated or cooled. Fish as cold-blooded animals do not heat up the water in which they live; its slightly higher temperature at the outlet of the process is still too low for efficient heat recovery through the exchanger. It is also not necessary from a breeding point of view. The main source of heat in the hall of the enterprise will be the heating of the building and heat energy emitted by the pump motors (located inside the building). This energy is enough to ensure thermal comfort of the company’s employees. The use of recuperators will allow to reduce the costs of heating the breeding hall and social rooms.
Detailed procedures for verifying the operational reliability of systems securing the continuity of energy supplies and servicing the technological process can be developed after the investor has finally selected the equipment used in the plant and the final version of the electrical design of the installation has been prepared. However, the recommendations presented here allow one to protect most of the key elements of the installation and process.

4. Estimation of Energy Conditions in the Place of Installation

The discussed installation is located in Żeleźno in the north-western part of Poland, 54.051 N, 16.064 E. Data on the amount of solar and wind energy available at the installation site was obtained from commonly used, verified sources, i.e., the Global Atlas for Renewable Energy (GAfRE) run by the International Renewable Energy Agency [31] and from the official website of the European Union, the European Union Photovoltaic Geographical Information System (PVGIS) [32].
GAfRE is a network platform that allows users to analyse maps of renewable energy sources (wind and sun) around the world. The EU portal data allows verification of the amount of solar energy, and even calculation of the best parameters, efficiency and estimate of the amount of electricity that can be obtained.
Based on data obtained from GAfRE, Figure 2a shows the average monthly amounts of solar energy per square meter, where GHI stands for Global Horizontal Irradiance, DNI Direct Normal Irradiance, and DHI Diffuse Horizontal Irradiance. As seen, the GHI varies from approx. 11 to 169   kWh / m 2 in individual months, providing a total of approx. 1014   kWh / m 2 per year. These data correspond with the data obtained from the PVGIS database presented in Figure 2b, with an optimal constant panel orientation of 39° and 1 ° of slope and azimuth angles, respectively.
Figure 2. Average monthly amount of solar energy per square meter at the installation site: (a) GAfRE; (b) PVGIS.
The GAfRE database also provides data and estimates of the monthly average wind speed and power in the area where the installation is located. These data are presented in Figure 3.
Figure 3. Average monthly: (a) wind speeds; (b) power density at the installation site.
Based on the above data, the amount of electricity that can be obtained with the use of photovoltaic panels and wind energy was further analysed.

5. Analysis of the Use of Photovoltaic Panels

The effectiveness of the use of photovoltaic panels depends on many factors, ranging from the type of panels, through the way they are installed, to the type and construction of additional components of the installation.
One of the key elements of the installation of photovoltaic panels is the rack on which the individual modules are mounted. Its construction should allow for the placement of as many modules as possible on a specific ground surface; on the other hand, it must avoid shading of the panels and ensure free air movement and cooling. This reduces the temperature rise of the modules and limits a potential drop in its performance.
The calculations assume that due to energy losses in the cables and the inverter, caused by the increase in temperature of the panels, their soiling and other typical solar installation factors, the installation efficiency coefficient will amount to 82%. This is a typical value when using good installation components.
The calculations were carried out for two situations: (1) with a constant inclination and orientation of modules, and (2) for a system with follow-up control, which allows for estimating the differences in performance of such two installations, leading to a decision on the profitability of using panel positioning systems.
Since it is assumed that even in a stationary case, the panels will be mounted on racks, the location of which (slope and azimuth) is possible to determine, the presented data refer to the optimal values, i.e., the maximum energy values that can be obtained for various values of the orientation—assuming fixed angles all year round.
The data used in the calculations presented below were obtained from databases provided by PVGIS.

5.1. Case 1—Installation of PV Panels with 200 kWp

The analysis of the amount of electricity possible to obtain begins with the case where the total power of the panels used is 200   kWp . The value of 200 kW was chosen for two reasons: because it slightly exceeds the assumed demand for the power of the installation, and because it corresponds to the first administrative permit for the investor to build a PV farm, both administrative conditions for connecting a renewable energy source to the grid. Such conditions are defined by the power grid operator and are required, at least by the regulations in force in Poland.
Figure 4a shows the expected monthly average amounts of energy that can be generated using monocrystalline silicon panels at constant slope and azimuth angles of 39° and 1 ° , respectively. The orientation is in degrees relative to the south, and negative values indicate the east. These angles result from the analysis of the installation workplace; for these values it has the highest efficiency. Figure 4b shows, on the other hand, the expected average amount of energy from solar panels at the installation location with two axis panel orientation tracking. A direct comparison of the data from both Figure 4a,b is shown in Table 1. As can be noticed, the installation that allows changing of the panel positions (tracking the movement of the sun) allows more energy to be obtained than the fix-angle ones, from 1043   kWh in December to 11 , 151   kWh in June, a total of 65 , 959   kWh . Comparison of the results shows that tracking installation allows one to achieve from 20% to even 40% more energy.
Figure 4. Expected average amount of energy from solar panels at the installation location: (a) an optimal constant panel orientation; (b) two-axis tracking.
Table 1. Expected average amount of energy from solar panels at the installation location [kWh].
The total amount of electricity that can be generated is 196 , 367   kWh for fixed racks or 262 , 326   kWh for tracking installations. These are the first data, crucial for analysis from the point of view of investment profitability. Only data for fixed rack installations are used in further analysis.

5.2. Case 2—Installation of PV Panels with 200 kWp and Batteries

The energy generated by the photovoltaic panels with a power of 200   kWp is almost entirely consumed for the current needs of the plant. Its surpluses can be stored and used at a later date. However, an energy storage is necessary for this. Here, it was assumed that a set of batteries would be charged when the PV delivered more energy than the current consumption needs and discharged in the reverse situation.
The results of calculating the efficiency of the photovoltaic system in the off-grid operation mode with an energy accumulator included:
  • monthly and yearly averages of daily energy production and monthly average of energy not collected due to charged battery (both given in [Wh]);
  • monthly and yearly average number of days when the battery is full or discharged.
The analysis begins when there is no energy storage. As shown in Table 2, the average annual amount of unused energy is 44   kWh , which is a very small, practically negligible value. Even small-sized batteries can be fully charged only for a dozen or so days a year (e.g., a 20   kWh battery will be fully charged only on 28.84% of days of the year, approximately 100 days), and their energy capacity would allow the installation to be kept in operation for only a few, up to more or less a dozen, minutes. All of them would be discharged to their minimal level every day per year—100% of days with empty battery. It should be noted that the batteries cannot be fully discharged and a typical minimum charge level is 40%. Thus, a fully charged warehouse with an energy capacity of 180   kWh is enough for just over half an hour of installation operation. Furthermore, this situation (full or almost full charging of the battery to the level of 160 180   kWh ) occurs only for a few days a year. The unused energy appears in negligible amounts only in the spring and summer months.
Table 2. The level of use of the energy storage for a 200 kWp photovoltaic installation at the installation location.

5.3. Case 3—Installation of PV Panels with More Than 200 kWp and Batteries

As seen, the potential for expanding the photovoltaic installation is very large. Daily energy consumption amounts to approx. 4.32   MWh . However, increasing the power of a photovoltaic installation is associated with the production of surplus energy on sunny days. These surpluses can be discharged by the producer to the network and sold or stored for their own needs. Here, the open question is always the power of the installation and the size of the energy storage. Both depend mainly on economic factors. The investment in a solar panel farm and energy storage pays off by reducing current consumption bills and revenues from the sale of surplus energy. The surplus energy sold to the grid will be smaller with the use of energy storage. The profit also results from the difference in the price of energy sold and purchased. Unfortunately, for several reasons, these calculations are not easy. Firstly, the payback period of such investments is usually several years. In this perspective, it is difficult to predict the scale of the increase in energy prices. In the current energy model, it can only be assumed that the price of kWh will increase. It should be noted that wholesale kWh prices, with a fixed and long-term contract, can be significantly lower compared to average tariffs, which reduce the profit margin. Additionally, energy prices fluctuate (sometimes very much) throughout the day. The highest prices are achieved during periods of peak demand, i.e., mainly during the day. The price of kWh usually drops significantly at night. Thus, energy sold during the day may turn out to be cheaper at night, which—with such contracts and the business model—makes local energy storage less competitive. In such a situation, the energy storage itself would be a tool in energy trading, but this goes beyond the technical framework of this study.
The second factor, prosaic, but extremely important for the construction of a photovoltaic installation, is the amount of space needed to locate it. The most important parameters are the size of the panels themselves and the distance between their successive rows. The distance between the rows is of great importance from the point of view of the shading zones, especially in the winter season, when the sun towers low over the horizon, because it is then that the modules may be shaded by one another. For this reason, the calculations are made for December 22nd.
For the purposes of this study, monocrystal photovoltaic panels were adopted for analysis (Longi Solar LR4-60HPH-365M). The dimensions of a single module are 1755   mm × 1038   mm × 35   mm . Their nominal power—the power of one module—is 365   Wp . The assumed power of a single module requires the installation of 548 such modules to achieve the assumed power of the installation, 200   kWp . With an area 1.82   m 2 of a single module, the area of all modules is 998   m 2 . However, this is not the area that the entire installation will take. The need to cool the panels, and above all to ensure the absence of shading, requires installation in rows spaced at a strictly defined distance. Calculating the minimum distances that should be kept when laying successive rows of panels requires knowledge of: the size of the solar panel module (here, 1755   mm × 1038   mm × 35   mm ), latitude of the installation location (54 N for Żeleźno), and angle of the optimal inclination of the panel (here, 39°).
Therefore, the actual area that the installation will take depends on the dimensions and shape of the plot on which the panels will be installed. Assuming that the plot is 100 m wide, 95 modules will fit in one row—taking into account the minimum expansion distances between the panels. Therefore, the panels will have to be placed in six rows, which will result in an area of 100   m   ×   33   m .
Taking the above into account, panels with a total power of 600   kWp can be installed on a 1 h plot of 100   m × 100   m . The calculations presented below take into account installations with a power of 1000   kWp , which would require a plot of approx. 1.5 h.

5.3.1. Remark on the Panel Models

In the following study, a specific panel model was adopted: the LR4-60HPH-365M model from Longi Solar. The obtained calculation results should therefore be treated as an estimate; they may change with the model and manufacturer of these devices. Nevertheless, these changes will not be large, hence the presented estimates, both in terms of dimensions and efficiency, can be treated as reliable and not deviating from standard solutions.

5.3.2. Panel Performance Note

The calculations use the nominal power of one module amounting to 365   Wp . It should be noted that this power is the upper value, the maximum that can be obtained in specific solar and temperature conditions, i.e., for solar radiation power of 1000   W / m 2 , at a temperature of 25   ° C (STC panel test procedure, Standard Test Conditions). According to the catalogue card, the same panel for irradiation of 800   W / m 2 and ambient temperature of 20   ° C (NOCT panel test procedure, Nominal Module Operating Temperature) will have a power of 272.6   Wp , which is approx. 25 % lower. The panel power change rate for STC tests is 0.350 % / ° C .
The above-mentioned was taken into account in the calculations by adopting the installation efficiency coefficient at the level of 82 % . Nevertheless, this coefficient does not take into account the general degradation of panels, which should be taken as 0.8 ÷ 1 % per year. Taking the above into account, the actual production of electricity after several years of operation will be lower.

5.3.3. The Amount of Energy Generated by Installations with a Power of 200 to 1000   kWp

Unfortunately, increasing the power of the installation from 200   kWp to a certain multiple of it does not automatically increase the profits (energetic and/or financial) at the same proportion. If the energy from PV + wind can only be used for internal use (i.e., cannot be sold), then in the absence of an energy buffer, all energy produced above the current load will be lost. Such a restriction (applicable at the factory) has very serious consequences for the operation of the installation. Then it works as a semi-island with energy transmission only from the outside.
The amount of energy produced and potentially available for use for installations with higher powers (from 400 to 1000   kWp ) is unfortunately not a simple multiplier of the amount of energy obtained by a 20 0   kWp installation. Unfortunately, as mentioned above, the possibilities of using this energy are much smaller, as presented in Table 3 and Figure 5. Table 3 shows the average daily amounts of energy produced not used by the factory and the amount of energy missing in the system. The calculations were made using a weather database of over 5000 days. The same data, however, captured as increases in the amount of unused and missing energy in the system, show that with the increase in the power of the installation, the increases in the amount of unused energy are much greater than the decreases in the amount of missing energy. Moreover, these declines are additionally smaller and smaller.
Table 3. Unused and missing energy for PV installations from 200 to 1000 kWp.
Figure 5. Increases in unused and missing energy for PV installations from 200 to 1000 kWp (daily average).

5.3.4. The Amount of Energy Generated by Installations with a Power of 200 to 1000   kWp Using Accumulator Batteries

The above analysis clearly shows that the possible increase in the power of the photovoltaic installation should be related to the use of energy storage. Accumulator batteries are currently typical energy stores. The results of the analysis, presented below, were carried out with one simple assumption: that the batteries cannot be fully discharged and that the typical minimum charge level is 40 % . The specificity (efficiency) of operation of various types of batteries was not analyzed, leaving it as a subject for separate studies.
This research analysed data on energy production for the power of photovoltaic installations of 200 , 400 , 600 , 800 and 1000   kWp , respectively. For each of these cases, several different energy storage capacities were assumed. This allows for tracking of the average daily values of the amount of energy produced, not stored (lost) and the average amounts of energy missing. The research was carried out with the use of the PVGIS-SARAH solar radiation database for Żeleźno (54.051 N, 16.064 E), with constant slope and azimuth angles of the panels, 39° and 1   ° C , respectively. Selected results are presented below to provide an overview of the impact of different sizes of energy storage on the use of energy produced by the installation.
Table 4 presents a summary of the average amounts of unused energy depending on the battery capacity. These data, in graphical form, are also presented in Figure 6. Some gaps in Table 4 and others are due to lack of need for dense verification. Since data for different system sizes are compared, not all are needed and/or compared with each other.
Table 4. Average daily amounts of not captured energy for PV installations from 400 to 1000 kWp for different battery energies from 100 to 1000 kW.
Figure 6. Average daily amounts of not captured energy for PV installations from 400 to 1000 kWp for different battery energies from 100 to 1000 kWh.
The above data show the estimated amounts of energy generated and lost due to insufficient battery capacity. It is clear, however, that there is no financial or technical justification for increasing the battery capacity. Financial analysis is not the subject of this study, nor is it possible without assuming the installation costs on the one hand and energy prices on the other. As indicated below, there is also no technical justification for increasing the battery capacity. For this purpose, the average amounts of energy obtained in PV installations from 400 to 1000   kWp for various battery capacities were analyzed. In addition, to measure the use of the battery, a new factor was defined as the square of the amount of energy used per unit of battery energy:
k = E w 2 E b
where E w is the amount of energy produced and used in the enterprise, and E b is the battery energy capacity in the energy storage.
The values of this coefficient are presented graphically in Figure 7. It can be noticed that its value decreases exponentially with increasing battery capacity. This means that while increasing the capacity of the battery allows for storing and using more energy, it becomes less and less effective. This graph (and data) can be directly used to decide the final capacity of the battery used.
Figure 7. Energy use k coefficient values (see Equation (1)) for various FV installation powers and energy storage battery energy capacity from 100 to 4500 kWh.
The last issue, perhaps one of the most important in the financial analysis of investment profitability, is the amount of energy stored and used in the plant thanks to the use of batteries. The summary (Table 5) shows the differences between the energy used in the plant from PV installations with and without batteries.
Table 5. Estimated annual amounts of energy in kWh possibly stored by the batteries.

5.4. An Alternative Storage of Surplus Energy Using Hydrogen

The cases of installation of photovoltaic panels and windmills analysed above indicated the need or, in the case of installations with higher powers, the requirement to use energy storage. The calculations assumed the use of electric batteries. An alternative solution is the currently rapidly developing industry of storing energy in the form of hydrogen. The surplus energy is used to power the water electrolysis process, which results in hydrogen and oxygen. In the case of the analysed fish farming process, both components can be used. Hydrogen, in which form energy is stored, can be converted back into electricity or sold upon demand. Oxygen is used directly in the breeding process.
The currently used electrolysers produce hydrogen consuming approx. 50   kWh / kg . In turn, the production of electricity from hydrogen takes place with the use of fuel cells. Their estimated capacity is approx. 17   kWh / kg . The electrical efficiency of the entire process is, unfortunately, approx. 34 % . Such an installation allows for longer storage of hydrogen, the amount of which depends on the size of the store (cylinder). It should also be remembered that a large part of the energy generated by the cell is in the form of heat, which can be used to heat buildings. In the case of fish farming, this heat would most likely be excessive, or even unnecessary; however, it is one of the key elements of the energy balance and may determine the profitability of the installation [33,34].
The weight ratio of hydrogen to oxygen in a water molecule is 1 : 8 , which means that for every 50   kWh used to produce 1   kg of hydrogen, 8   kg of oxygen are also produced. A review of electrolyser manufacturers’ offers indicates that oxygen is usually a by-product that is released into the atmosphere. Undoubtedly, retrofitting the installation with oxygen capture and storage devices would increase its efficiency.
Taking into account the above and the fact that this installation would only process unused surplus energy stored in batteries, based on the data in Table 5, estimated amounts [kg] of hydrogen and oxygen that can be generated are presented (Table 6 and Table 7). The battery capacities in Table 6 and Table 7 are for informational purposes, therefore that data can be easily compared, and the amounts of hydrogen and oxygen produced should be treated as an equivalent of electricity that can be used at a later date.
Table 6. Estimated annual amount of hydrogen production in k g produced from surplus energy generated by the PV installation.
Table 7. Estimated annual oxygen production in kg produced from surplus energy generated by the PV installation.
The data presented in Table 5, Table 6 and Table 7 refer to the estimated annual amounts of electricity. When selecting the power of the electrolyser, however, one should be guided by the power levels of several dozen kW. According to analysis, the highest average daily amounts of produced surplus energy may be approx. 1900   kWh (PV farm 1000   kWp in July), which would require an electrolyser power of approx. 80   kW . In the case of lower PV farm powers, the necessary electrolyser powers would be correspondingly lower.

6. Analysis of the Application of Wind Turbines

Literature data indicate that average annual wind speeds higher than 4   m / s are the profitability threshold for small wind turbines. As the average annual speed for a given location is 5.6   m / s , the studied location is extremely favourable for wind energy [35]. On the basis of wind data at various heights above the ground, already presented in Figure 3 [31], it can be observed that in the autumn and winter months, the wind in the place of installation is much higher than in the summer months, which is the opposite of photovoltaics and may allow for a partial equalization of the generated power profile. The wind analysis presented below was carried out on the basis of: the IRENA wind atlas [31], measurement data available in the literature for a given area, and an approximation based on the determination of the terrain roughness class. Knowing the wind details together with wind turbine power curves, i.e., the dependence of power on wind speed, it is possible to estimate the average amounts of generated energy.
The law in force in Poland requires that windmills be installed at a distance of no less than 10 times the height of these installations from houses. For this reason, it is possible to install a turbine with a maximum height of approx. 36   m in the considered location. Therefore, as part of the study, turbines situated at a height of 30   m were analyzed.
Given that the available wind measurements are determined at a height of 60   m , it is necessary to convert the wind speed to a height of 30   m ; the formula used in wind energy was used for this purpose [36]:
V 2 = V 1 (   h 2 h 1   ) α
where V 1 and V 2 are wind speeds at height h 1 and h 2 , respectively, and α, the coefficient depending on the roughness of the terrain.
The α coefficient in the exponent is determined empirically and can be selected on the basis of field data, i.e., the number and size of obstacles in the studied area. In the work [37], the values of this coefficient were determined depending on the class of terrain roughness, the type of terrain on which the installation is located, starting from class 0 ( α = 0.15 ) for water surface up to class 4 ( α = 0.35 ) for very large cities with tall buildings and skyscrapers. In our case, based on the site inspection it was determined that the roughness class of the terrain was 2, i.e., arable lands with buildings separated from each other by approx. 500 m, thus the corresponding value of α was 0.19. The diagram converting the average monthly wind from a height of 60   m to 30   m is shown in Figure 8.
Figure 8. Distribution of average monthly wind in the area of the fish production plant at the height of 60 and 30 m.
Low power wind turbines up to 100 kW are manufactured in two versions with a rotor with a horizontal axis of rotation (HAWT, Horizontal Axis Wind Turbine) and a vertical axis of rotation (VAWT, Vertical Axis Wind Turbine). A comparison of the power achieved for typical turbine designs is shown below in Figure 9. A significant advantage can be seen in the vertical axis design, which achieves the nominal power much faster than the horizontal axis of rotation and has a much lower start-up speed. The starting speed for turbines with a vertical axis of rotation is between 1.8 and 2   m / s , while for structures with a horizontal axis of rotation, it is between 2.8 and 4   m / s . Based on these data, turbines with a vertical axis of rotation were analyzed.
Figure 9. Distribution of the achieved power of HAWT and VAWT turbines depending on the wind speed.
Based on the demand for power and legal regulations in Poland, a turbine with a nominal power of 30   kW with the characteristics of the generated power presented in Table 8 was selected for the analysis. The VT-30 turbine was selected because it had the same start-up parameters as for a turbine with lower power, but at the peak of generation it allows 16.6% coverage demand for power, whereas the smallest units with a power of 10   kW provide only 5.5.
Table 8. Characteristics of the generated power depending on the wind speed [38].
Wind is characterized by high variability over time; therefore, the Weibull distribution in wind energy was used to describe the probability of a given speed and its share in the studied period.
f ( V ) = α λ ( V λ ) α 1 e ( V λ ) α
where:
  • α—parameter dependent on the topography;
  • λ—the scale parameter depends on the average wind speed, which for Poland is between 1.2 and 2.1 (assumed 2);
  • V—wind speed.
An example of the Weibull distribution for the month of January is shown in Figure 10, which contains the percentage of time for a given wind speed. Such distributions were made for each of the months of the year and on their basis, the forecast energy production for the selected turbine was calculated, as shown in Figure 11. Figure 12 shows the percentage coverage of the plant’s demand for electricity. In the most windy month, i.e., in December, the 30   kW turbine would be able to cover 8.7 % of the energy demand; including the rated power, it would work for approx. 22.8 % of the time. In the case of the least windy month, the coverage of the energy demand would be half as much and amount to 4.3 % , and the turbine would only run at full power for 1.8 % of the time. These data are summarized in Table 9.
Figure 10. Weibull probability distribution of wind speed for the month of January.
Figure 11. Energy generation forecasts broken down into individual months for the WT-30 turbine.
Figure 12. Average monthly coverage of electricity demand from the WT-30 turbine.
Table 9. Energy generation and average monthly coverage of electricity demand from the WT-30 turbine.
As can be seen from the above data, the use of only windmills would not allow, in principle, the energy self-sufficiency of the plant. However, the energy balance of wind energy and photovoltaic panels seems to be much more favourable.

7. Hybrid Installation: Photovoltaic Panels + Wind Turbines

Comparing the forecasts of the amount of energy generated from the photovoltaic farm and windmills, the complementarity of these sources is noticeable. Each of them separately does not provide the required amounts of energy in a constant and even manner. First of all, there are large fluctuations in energy production throughout the year. The maximum efficiency of the PV farm is recorded in the months of April to September, with much lower efficiency in the fall and winter months. In the case of wind, in turn, significantly greater energy production takes place in autumn and winter. This provides the opportunity to use both sources at the same time, which would help even out the annual energy generation profile, and at the same time more effectively manage, for example, the use of energy buffers in the form of a battery or an electrolyser and a hydrogen storage. Table 10, Table 11 and Table 12 below present a list of average amounts of energy generated by selected PV installations and wind turbines. They clearly show that the full energy self-sufficiency of the factory will be difficult to achieve, as it would require large investment outlays, i.e., the use of photovoltaic farms with a power of at least 400 to 600   kWp and approx. 10 windmills with a power of 30   kW each. The installation would have to be additionally equipped with batteries or a hydrogen storage in order to use the temporary surplus energy from the installation. Estimating the proper battery capacity (hydrogen storage) requires calculations, but these would be larger each time than those indicated in the analysis of the selection of batteries for cooperation with photovoltaic panels. The use of windmills reduces the instantaneous levels of energy use produced by the panels.
Table 10. Average amounts of energy generated by PV installations and windmill systems with 1 × PV 200 kWp + 1 × HTV 30 kW.
Table 11. Average amounts of energy generated by PV installations and windmill systems with 1 × PV 400 kWp + 10 × HTV 30 kW.
Table 12. Average amounts of energy generated by PV installations and windmill systems with 1 × PV 600 kWp + 10 × HTV 30 kW.

8. Conclusions

This article presents the results of analysis and guidelines for the selection of elements of the supply system for a fish farming factory in the Recirculating Aquaculture System, implemented in Żeleźno, in the north-western part of Poland. It presents a methodical, technical analysis of the problem of power supply reliability with particular emphasis on the need for the plant’s energy self-sufficiency. The factors influencing the construction of the installation and its power sources are presented. The possibility of achieving energy self-sufficiency was verified, showing how the location affects the minimum requirements of the installation. In order to select the optimal size of the energy storage, the energy storage efficiency coefficient was introduced, thanks to which it is possible to select the capacity of the energy storage technically and economically profitable. In the last part of the work, the power of PV installations and the type and number of windmills, complementary energy sources, were indicated in order to reach the energy self-sufficiency of the installation. We see that solutions presented in Table 11 and Table 12 are very close to optimal, allowing the installation to be energy self-sufficient, or at least, a very good approximation of technical needs, constituting an argument when making business decisions.
The difference between the total energy demand and that generated by renewable energy sources (RES) must be compensated by the power grid. The automatic reserve switching system switches on the bus connecting the system with the power grid, thus supplementing the energy deficit. With this configuration, the potential deficit of electricity will depend on the prevailing weather conditions. The higher the energy yield from RES, the longer the batteries (hydrogen buffer) will be able to maintain the appropriate level of power during continuous generator operation.
As a consequence, the factory will be powered by only three energy sources, the total power of which will depend on the prevailing weather and the maximum power of the generator. In an emergency, first, the least important groups of electrical devices will be disconnected, with full support of the most important ones, such as: pumps, lighting, fire protection system, computer equipment, etc. When the voltage in the power line is restored, the system will return to its original state. Such a constructed power supply system will allow for stable and safe operation of the enterprise.

Author Contributions

Conceptualization, A.M., P.D., K.F., A.K.-O. and A.T.; methodology A.M. and P.D.; resources, A.M. and P.D.; investigation, A.M., P.D., A.K.-O. and A.T.; supervision, K.F. and A.K.-O.; visualization, A.M., P.D. and A.T.; writing—original draft preparation, A.M., P.D., K.F., A.K.-O. and A.T.; writing—review and editing, A.M. and P.D. All authors have read and agreed to the published version of the manuscript.

Funding

The research was conducted within the project No. 00002-6521.1-OR1600001/17/20 financed 297 by the “Fisheries and the Sea” Program.

Data Availability Statement

Not applicable.

Conflicts of Interest

The authors declare no conflict of interest.

References

  1. Oota, M.; Iwafune, Y.; Ooka, R. Estimation of Self-Sufficiency Rate in Detached Houses Using Home Energy Management System Data. Energies 2021, 14, 975. [Google Scholar] [CrossRef]
  2. Amato, A.; Bilardo, M.; Fabrizio, E.; Serra, V.; Spertino, F. Energy Evaluation of a PV-Based Test Facility for Assessing Future Self-Sufficient Buildings. Energies 2021, 14, 329. [Google Scholar] [CrossRef]
  3. Mthethwa, F.; Gomes, C.; Dorrell, D. Optimization of a Micro-grid with Solar PV, Wind Energy and Battery Storage Hybrid System for an agro-based off-grid rural landscape. In Proceedings of the 2021 IEEE PES/IAS PowerAfrica, Nairobi, Kenya, 23–27 August 2021; pp. 1–5. [Google Scholar] [CrossRef]
  4. Oladigbolu, J.O.; Ramli, M.A.M.; Al-Turki, Y.A. Feasibility Study and Comparative Analysis of Hybrid Renewable Power System for off-Grid Rural Electrification in a Typical Remote Village Located in Nigeria. IEEE Access 2020, 8, 171643–171663. [Google Scholar] [CrossRef]
  5. Wu, Q.; Larsen, E.; Heussen, K.; Binder, H.; Douglass, P. Remote Off-Grid Solutions for Greenland and Denmark: Using smart-grid technologies to ensure secure, reliable energy for island power systems. IEEE Electrif. Mag. 2017, 5, 64–73. [Google Scholar] [CrossRef]
  6. Nurunnabi, M.; Roy, N.K.; Hossain, E.; Pota, H.R. Size Optimization and Sensitivity Analysis of Hybrid Wind/PV Micro-Grids—A Case Study for Bangladesh. IEEE Access 2019, 7, 150120–150140. [Google Scholar] [CrossRef]
  7. Hidalgo-Leon, R.; Amoroso, F.; Urquizo, J.; Villavicencio, V.; Torres, M.; Singh, P.; Soriano, G. Feasibility Study for Off-Grid Hybrid Power Systems Considering an Energy Efficiency Initiative for an Island in Ecuador. Energies 2022, 15, 1776. [Google Scholar] [CrossRef]
  8. Tarife, R.; Nakanishi, Y.; Chen, Y.; Zhou, Y.; Estoperez, N.; Tahud, A. Optimization of Hybrid Renewable Energy Microgrid for Rural Agricultural Area in Southern Philippines. Energies 2022, 15, 2251. [Google Scholar] [CrossRef]
  9. Prakash, S.L.; Arutchelvi, M.; Jesudaiyan, A.S. Autonomous PV-Array Excited Wind-Driven Induction Generator for Off-Grid Application in India. IEEE J. Emerg. Sel. Top. Power Electron. 2016, 4, 1259–1269. [Google Scholar] [CrossRef]
  10. Sarita, K.; Kumar, S.; Vardhan, A.S.S.; Elavarasan, R.M.; Saket, R.K.; Shafiullah, G.M.; Hossain, E. Power Enhancement With Grid Stabilization of Renewable Energy-Based Generation System Using UPQC-FLC-EVA Technique. IEEE Access 2020, 8, 207443–207464. [Google Scholar] [CrossRef]
  11. Chi, S.; Lv, Z.; Liu, L.; Shan, Y. Free Switching Control Strategy for Multi-Operation Modes of Multi-Port Energy Router in Distribution Area. Energies 2021, 14, 7860. [Google Scholar] [CrossRef]
  12. Jing, Y.; Wang, H.; Hu, Y.; Li, C. A Grid-Connected Microgrid Model and Optimal Scheduling Strategy Based on Hybrid Energy Storage System and Demand-Side Response. Energies 2022, 15, 1060. [Google Scholar] [CrossRef]
  13. Kaur, R.; Krishnasamy, V.; Kandasamy, N.K.; Kumar, S. Discrete Multiobjective Grey Wolf Algorithm Based Optimal Sizing and Sensitivity Analysis of PV-Wind-Battery System for Rural Telecom Towers. IEEE Syst. J. 2020, 14, 729–737. [Google Scholar] [CrossRef]
  14. Imran, A.; Hafeez, G.; Khan, I.; Usman, M.; Shafiq, Z.; Qazi, A.B.; Khalid, A.; Thoben, K.-D. Heuristic-Based Programable Controller for Efficient Energy Management Under Renewable Energy Sources and Energy Storage System in Smart Grid. IEEE Access 2020, 8, 139587–139608. [Google Scholar] [CrossRef]
  15. Abualigah, L.; Zitar, R.A.; Almotairi, K.H.; Hussein, A.M.; Abd Elaziz, M.; Nikoo, M.R.; Gandomi, A.H. Wind, Solar, and Photovoltaic Renewable Energy Systems with and without Energy Storage Optimization: A Survey of Advanced Machine Learning and Deep Learning Techniques. Energies 2022, 15, 578. [Google Scholar] [CrossRef]
  16. Hernandez-Alvidrez, J.; Darbali-Zamora, R.; Flicker, J.D.; Shirazi, M.; VanderMeer, J.; Thomson, W. Using Energy Storage-Based Grid Forming Inverters for Operational Reserve in Hybrid Diesel Microgrids. Energies 2022, 15, 2456. [Google Scholar] [CrossRef]
  17. Mahdavi, N.; Braslavsky, J.H.; Seron, M.M.; West, S.R. Model Predictive Control of Distributed Air-Conditioning Loads to Compensate Fluctuations in Solar Power. IEEE Trans. Smart Grid 2017, 8, 3055–3065. [Google Scholar] [CrossRef]
  18. Adika, C.O.; Wang, L. Autonomous Appliance Scheduling for Household Energy Management. IEEE Trans. Smart Grid 2014, 5, 673–682. [Google Scholar] [CrossRef]
  19. Reis, I.F.G.; Gonçalves, I.; Lopes, M.A.R.; Antunes, C.H. Assessing the Influence of Different Goals in Energy Communities’ Self-Sufficiency—An Optimized Multiagent Approach. Energies 2021, 14, 989. [Google Scholar] [CrossRef]
  20. Prema, V.; Bhaskar, M.S.; Almakhles, D.; Gowtham, N.; Rao, K.U. Critical Review of Data, Models and Performance Metrics for Wind and Solar Power Forecast. IEEE Access 2022, 10, 667–688. [Google Scholar] [CrossRef]
  21. Vick, B.D.; Neal, B.A. Analysis of off-grid hybrid wind turbine/solar PV water pumping systems. Sol. Energy 2012, 86, 1197–1207. [Google Scholar] [CrossRef]
  22. Ren, Y.; Ren, L.; Zhang, K.; Liu, D.; Yao, X.; Li, H. Research on the Operational Strategy of the Hybrid Wind/PV/Small-Hydropower/Facility-Agriculture System Based on a Microgrid. Energies 2022, 15, 2466. [Google Scholar] [CrossRef]
  23. Wlas, M.; Galla, S.; Kouzou, A.; Kolodziejek, P. Analysis of an Energy Management System of a Small Plant Connected to the Rural Power System. Energies 2022, 15, 719. [Google Scholar] [CrossRef]
  24. Lee, J.; Angani, A.; Thalluri, T.; Shin, K.J. Realization of Water Process Control for Smart Fish Farm. In Proceedings of the 2020 International Conference on Electronics, Information, and Communication (ICEIC), Barcelona, Spain, 19–22 January 2020; pp. 1–5. [Google Scholar] [CrossRef]
  25. Romli, M.A.; Daud, S.; Zainol, S.M.; Kan, P.L.E.; Ahmad, Z.A. Automatic RAS data acquisition and processing system using fog computing. In Proceedings of the 2017 IEEE 13th Malaysia International Conference on Communications (MICC), Johor Bahru, Malaysia, 28–30 November 2017; pp. 229–234. [Google Scholar] [CrossRef]
  26. Gong, S.; Angani, A.; Shin, K.J. Realization of Fluid Flow Control System for Vertical Recycling Aquatic System (VRAS). In Proceedings of the 2018 International Symposium on Computer, Consumer and Control (IS3C), Taichung, Taiwan, 6–8 December 2018; pp. 185–188. [Google Scholar] [CrossRef]
  27. Angani, A.; Lee, C.; Lee, S.; Shin, K.J. Realization of Eel Fish Farm with Artificial Intelligence Part 3: 5G based Mobile Remote Control. In Proceedings of the 2019 IEEE International Conference on Architecture, Construction, Environment and Hydraulics (ICACEH), Xiamen, China,, 20–22 December 2019; pp. 101–104. [Google Scholar] [CrossRef]
  28. Arifa; Begum, M.K.; Lalon, R.M.; Alam, A.S.; Rahman, M.S. Economic feasibility of Pabda and stinging catfish culture in recirculating aquaculture systems (RAS) in Bangladesh. Aquacult. Int. 2022, 30, 445–465. [Google Scholar] [CrossRef]
  29. Palm, H.W.; Knaus, U.; Appelbaum, S.; Goddek, S.; Strauch, S.M.; Vermeulen, T.; Ha, M.; Kotzen, B. Towards commercial aquaponics: A review of systems, designs, scales and nomenclature. Aquacult. Int. 2018, 26, 813–842. [Google Scholar] [CrossRef]
  30. Badiola, M.; Basurko, O.C.; Piedrahita, R.; Hundley, P.; Mendiola, D. Energy use in Recirculating Aquaculture Systems (RAS): A review. Aquac. Eng. 2018, 81, 57–70. [Google Scholar] [CrossRef]
  31. Global Atlas for Renewable Energy, International; Renewable Energy Agency: Tokyo, Japan. Available online: https://globalatlas.irena.org/workspace (accessed on 23 June 2021).
  32. Photovoltaic Geographical Information System. Europan Union Portal. Available online: https://re.jrc.ec.europa.eu/pvg_tools/en/#PVP (accessed on 23 June 2021).
  33. Duan, Z.; Zhang, L.; Feng, L.; Yu, S.; Jiang, Z.; Xu, X.; Hong, J. Research on Economic and Operating Characteristics of Hydrogen Fuel Cell Cars Based on Real Vehicle Tests. Energies 2021, 14, 7856. [Google Scholar] [CrossRef]
  34. Tang, O.; Rehme, J.; Cerin, P. Levelized cost of hydrogen for refueling stations with solar PV and wind in Sweden: On-grid or off-grid? Energy 2022, 241, 122906. [Google Scholar] [CrossRef]
  35. Ostrowska-Boćko, A. Zagospodarowanie Energii Wiatru Przy Użyciu Małych Turbin Wiatrowych o Pionowej Osi Obrotu. Bud. i Inżynieria Sr. 2014, 5, 65–72. (In Polish) [Google Scholar]
  36. Donnou, H.E.V.; Akpo, A.B.; Kouchadé, C.A.; Kounouhewa, B.B.; Hounguè, G.H.; Nonfodji, G.F.; Djossou, J. Vertical Profile of Wind Diurnal Cycle in the Surface Boundary Layer over the Coast of Cotonou, Benin, under a Convective Atmosphere. Adv. Meteorol. 2019, 2019, 7530828. [Google Scholar] [CrossRef]
  37. Gumuła, S.; Knap, T.; Strzelczyk, P.; Szczerba, Z. Energetyka Wiatrowa; Uczelniane Wydawnictwa Naukowo–Dydaktyczne, AGH: Kraków, Poland, 2006. (In Polish) [Google Scholar]
  38. SunSurfs WT3 Vertical Axis Wind Turbines. Available online: https://www.solarstore.co/SunSurfs-WT3-Vertical-Axis-Wind-Turbine-30000W-30KW_p_67.html (accessed on 23 June 2021).
Disclaimer/Publisher’s Note: The statements, opinions and data contained in all publications are solely those of the individual author(s) and contributor(s) and not of MDPI and/or the editor(s). MDPI and/or the editor(s) disclaim responsibility for any injury to people or property resulting from any ideas, methods, instructions or products referred to in the content.

Article Metrics

Citations

Article Access Statistics

Multiple requests from the same IP address are counted as one view.