Abstract
In building structure design, refinements during construction for practical use or space conflicts induce construction delays and budget increases. Building information modeling (BIM) provides a 3D building model which includes the structure’s size, material, and construction information so designers clearly understand the whole construction process. For an irregular shaped building or elements such as a ramp or a curved roof, space conflict problems occur. The Autodesk’s Navisworks program provides a visual analysis tool for users to roam in a 3D model to simulate possible space conflicts and avoid them before the final design. In this study, we used the AutoDesk Revit program to set up a building system with a Navisworks space distance measurement tool to confirm the design’s rationality. An optimal structure system design process is proposed for practical applications to reduce the possibility of design changes.
1. Introduction
For building systems, the establishment of a spatial structure system needs to consider the user’s requirements so that a discontinuous design structure system or insufficient space and height can be avoided. Changes in design will delay construction time and impact the budget. Scholars have discussed the issue. Fazil et al. [1] used BIM combined with Navisworks to set up a construction management (CM) system. Latiffi et al. [2] discussed the application of BIM in the Malaysian industry system and its benefit. Xu et al. [3] integrated Revit and Tekla into Navisworks to set up a steel structure building system and compared the difference. In real building structure design, engineers define the element sizes to confirm the building’s safety and ensure its use function fits the space need. Thus, we combine BIM and Navisworks programs to develop a useful design process for structural designers to reduce design change problems.
2. BIM for Irregular Structure System Design and Spatial Impact Analysis
2.1. Irregular Structure System Design via BIM (Revit)
For an irregular structure system such as a ramp or a non-rectangular building, the designer uses a 2D concept layout structure system. When an irregular 3D shape causes a space to be blocked by beams and columns, the Revit BIM 2021 program is used to set up building models. Its most important function is its ramp making tool, as shown in Figure 1. Users can use the function to model a building-floor-height ramp system. Using this function, the ramp floor support beam system locations are defined.
Figure 1.
Revit’s ramp-making function.
2.2. Code for Car Parking Lot Structures
The building code of Taiwan includes the following regulations.
2.2.1. Car Height Limit
The height of small cars shall not exceed 1.5 times their full width, and their maximum height shall not exceed 2.85 m.
2.2.2. Lane Slope Limit
The slope of the lane shall not exceed one to six, and the surface shall be made of a rough surface or other non-slippery materials. The radius of the inner curve of the lane shall be more than five meters.
2.2.3. Clear Height Restrictions for Fire Pipeline Facilities Limit
When an airtight sprinkler head is installed under a beam, the distance between the return plate and the bottom of the beam shall be less than 10 centimeters, and the distance from the floor or ceiling shall be less than 50 cm.
Thus, we simulated a ramp slope space from bottom to top, as shown in Figure 2.
Figure 2.
Net height for parking lot ramp.
- θ: the slope angle;
- : the unit’s height increase in the horizontal dimension;
- h: the net height from the car top.
By using Equation (2), we simulated the space from a car top of h = 0.15 m, h = 0.5 m, and h = 1 m to obtain the min. space to avoid impact, as shown in Table 1 and Table 2. The different colors mean the clear height fit the design required.
Table 1.
Straight ramp slope: net height calculation.
Table 2.
Circular ramp slope: net height calculation.
2.2.4. For a Circular Ramp
- : the circumference of a circle with a radius ;
- : the building’s height.
2.3. Navisworks Spatial Conflict Analysis
In AutoDesk Navisworks 2021 software, the model created by the Revit program is exported in an “nwc” format file and then imported into Navisworks to create a spatial model. Navisworks space distance measurement tool is used to measure the x-, y-, and z-axis distances of two spatial points in the design model to obtain the real space distance. Then, users can confirm the design results using codes. In addition, Navisworks also provides a space cruise function. Users can understand the feasibility of the design results through animation and find problems before real construction process.
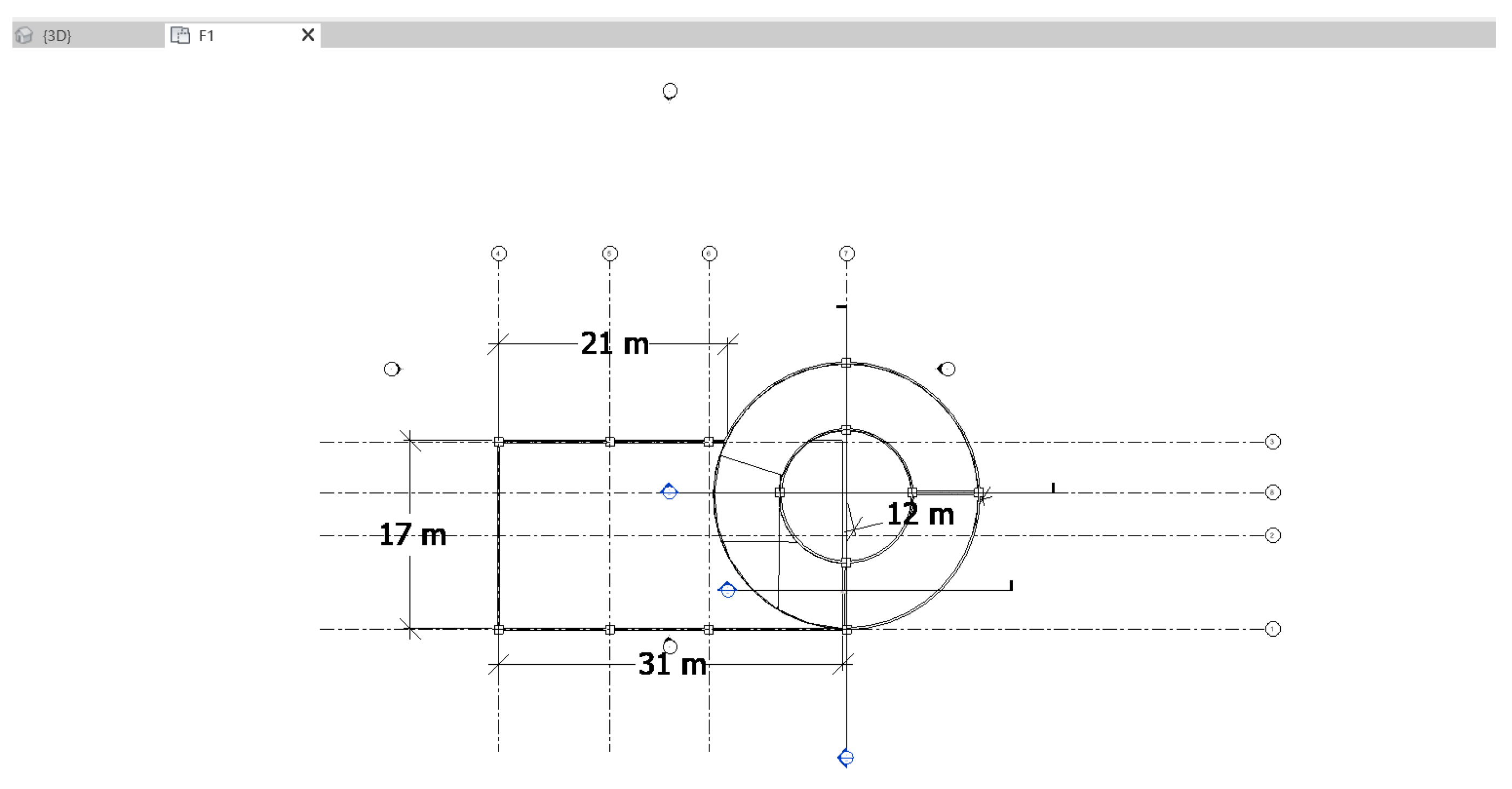
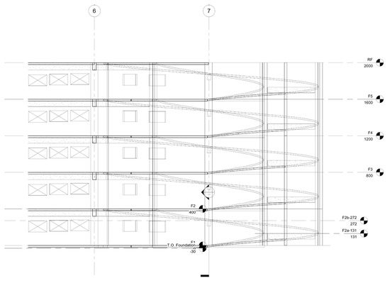
3. Case Application
The above method was used to analyze a five floor parking lot space as an example. Its plan view is shown in Figure 3. The ramp design coefficients are shown in Figure 4. The building’s north elevation is shown in Figure 5. The N-S and E-W section profiles are shown in Figure 6 and Figure 7. From the profile map, we define the support beam’s real location and set up the support frame system as shown in Figure 8.
Figure 3.
Revit’s structure system.
Figure 4.
Parking lot ramp design coefficient.
Figure 5.
North vertical section map.
Figure 6.
Profile for N-S section.
Figure 7.
Profile for E-W section.
Figure 8.
3D Structure system render effect for parking lot in Revit.
In order to define the ramp and plane floor connection and improve the car passing joint comfortableness, we set up a profile map (Figure 9) to discuss the joint function detail sections. To understand the effect of sunlight, we used Revit to simulate the effect to discuss an energy-reducing design (Figure 10).
Figure 9.
Details of the ramp section interaction of the building floor.
Figure 10.
Map for sunlight rendering effect in building.
Then, we transferred the model to AutoDesk Navisworks 2021 software, and the whole building model is shown in Figure 11. We simulated the structure system design as shown in Figure 12.
Figure 11.
Navisworks 3D building view.
Figure 12.
Internal space view result in Navisworks.
Then, we used a roaming function to traverse the building model and measured the spatial two point distance to obtain the net height space in the structure system (Figure 13). The ramp width was also obtained, as shown in Figure 14. In Figure 13 and Figure 14 red green and blue box mean the measure results for x, y, z axis distance.
Figure 13.
Space net height measurement in Navisworks.
Figure 14.
Ramp width measurement in Navisworks.
4. Conclusions
From the above analysis, the following conclusions were made from a real-case application.
The combination of the Autodesk Revit and Autodesk Navisworks programs provides a real simulation for the actual structure system’s spatial relationships. Through a spatial analysis of the structural system, it can avoid unreasonable design results. A design combined with BIM and a Navisworks simulation provides the a reasonable structure system and improves architectural lighting and the building’s energy savings.
Funding
This research received no external funding.
Institutional Review Board Statement
Not applicable.
Informed Consent Statement
Informed consent was obtained from all subjects involved in the study.
Data Availability Statement
The data that support the findings of this study are available on request from the corresponding author, upon reasonable request.
Conflicts of Interest
The author declares no conflict of interest.
References
- Fazil, S.M.; Sultan, C.R.; Kumar, P.N. Planning and scheduling of residential building using MS project and BIM. Int. Res. J. Eng. Technol. 2021, 8, 1473–1479. [Google Scholar]
- Latiffi, A.A.; Mohd, S.; Kasim, N.; Fathi, M.S. Building Information Modeling (BIM) Application in Malaysian Construction Industry. Int. J. Constr. Eng. Manag. 2013, 2, 1–6. [Google Scholar]
- Xu, Y.; Zhang, J.; Li, D.; Ao, C. BIM Model Integration of Concrete and Steel Structures in Assembled Substations. Adv. Comput. Sci. Res. 2019, 91, 65–70. [Google Scholar]
Disclaimer/Publisher’s Note: The statements, opinions and data contained in all publications are solely those of the individual author(s) and contributor(s) and not of MDPI and/or the editor(s). MDPI and/or the editor(s) disclaim responsibility for any injury to people or property resulting from any ideas, methods, instructions or products referred to in the content. |
© 2024 by the author. Licensee MDPI, Basel, Switzerland. This article is an open access article distributed under the terms and conditions of the Creative Commons Attribution (CC BY) license (https://creativecommons.org/licenses/by/4.0/).













