Abstract
The architecture in the rural environment leaves a trail of forgotten pre-existence during depopulation processes. The anonymous practice of continuous updating that these constructions have undergone involves their enlargement and adaptation to new requirements in the sense of primary functionality, but also in the evolving ways of inhabiting. It shows an ability to update the heritage without rhetoric, presenting economic, social, and environmental sustainability. These considerations point towards an investigation of the upgrading of architecture in the rural environment as a source of action strategies in an adaptive reuse context. The methodological approach is based on a case study analysis of two intervention projects from the early 1990s in Grisons, namely the pioneering projects of Peter Märkli in Walenstadtberg in 1992/99 and Peter Zumthor in Versam in 1994. The analysis of both cases demonstrates a tectonic correlation between the spatial form development and the potential of traditional building systems. Furthermore, both cases prove the possibility of typological shifts when it comes to updating the built heritage for preservation. Finally, this study elucidates the exemplary role of both cases with respect to the renewed approaches to old and new in the context of the rural environment.
1. Introduction
The dynamics between old and new has been a central topic in past centuries, not only referring to architecture, but also regarding the social bonds between past and present issues. Architecture represents a kind of reflection of this timeless controversy, which was always a little behind in reference to social events. The cultural and political polemic between the old and the new is even more relevant today1.
The 19th century was a very frenetic, controversial period when it came to defining the term heritage. The intervention in the pre-existing, whether physical or based on memory, involves a discussion about the forms of interpretation, preservation, and renewal of our anthropological environment, which is rooted more deeply in the built fact. This condition has given architecture a prominent role in this discussion for generations.
Adaptive reuse trends from the 1970s focused on nonorthodox heritage, such as rural outbuildings and farms, which were difficult to update and for years were left out of the theoretical discourses. This paper attempts to study the progressive involvement of intellectual architecture in this updating process from the 1990s in alpine rural environments, namely, in Graubünden, Switzerland. It was then that the case studies herein emerged as a silent manifest, initiating a growing trend. This phenomenon places intervention projects in rural environments at the forefront of the architectural outlook for the first time.
1.1. Approaches to Heritage Reuse
The relation between old and new has been a discussion topic since the nineteenth century. The first intellectual approaches gave priority to authenticity with the past, which resulted in two opposing positions—the cleansing of the pre-existing, and the non-intervention principle—according to a sometimes uncertain original piece. This approach does not take into account the fact that the pre-existing accumulates a wide range of layers over time, which constitute a testimony of the social evolution. As a consequence, additions from outside of the original style become sincere with their corresponding setting time, which gives them an important role as a testimony for collective memory. This value has been given special consideration over the last few decades by reconsidering the meaning of heritage.
Therefore, when intervening in the pre-existing, heritage was slowly being understood as an ongoing project of architecture, beyond the object to be protected and documented. This approach presented a drastic change in perspective, from the static to the dynamic point of view, from the two last centuries to the current ideas, according to the remarks on the history of things of George Kubler2.
The early approach to a dialogue between old and new—or, in other words, the intervention project as a commitment between history and architecture [1]—states that the addition consistent with its time justifies the coexistence of styles in the intervention project. However, it was not until the creative intervention dimension was introduced that the very documental value of the pre-existing was overcome. As a result, the heritage shows not only a historical value but also an aesthetic one [2], which paved the way for the updating of heritage through intervention projects.
The transition to what we now call adaptive reuse began due to this reconsideration. The reuse of the pre-existing arises from the resourcefulness derived from material scarcity throughout the history of mankind. In the second decade of the 21st century, this came to the forefront as a late consequence of many social changes from the 1960s, when a long counterculture period was initiated, which was reflected in the built environment; agricultural practices and related architecture also went through a period of transformation. It was in 1973 that the term adaptive reuse first appeared in the North American environment3, giving the process of reuse a theoretical framework until today. This includes conventional heritage as well as overall obsolete architecture. More recently, the sustainability requirements have been crystallised in a sort of theory of the handling of pre-existing layers due to place and budget issues, definitively shifting the paradigm from demolition to recycling.
The ongoing spectrum of the adaptive reuse of works of architecture covers a wide range of aims and historical periods according to the list created by Liliane Wong [3]:
- Spolia: From the Romans, compounding a new work from materials, parts, or the entire piece.
- Iconoclasm: An intentional change in use when spatial correspondence takes place (referred to as a transformation in this paper).
- Heritage: After the big contemporary armed conflicts in Europe4, for the first time, it was stated that reusing heritage to make it habitable with a socially useful purpose was a key factor for ensuring its prevalence, referring not only to the great works of architecture but also to those that acquired cultural significance through time, both material and immaterial (including anonymous architecture and traditional building systems such as the timber frame and log-construction in Swiss alpine areas).
- Obsolescence: Referring to the works of the past that are no longer useful, due to either a lack of maintenance or simply being outdated, as is often the case for architecture in a rural environment. When the work should be only updated, it comes to refurbishment; when it should embrace a new meaningful purpose, as it is in the case studies presented in this paper, it comes to transformation, as an intervention in a built heritage which presents a typological shift, which is the essence of the term adaptative reuse.
1.2. Categories of the Intervention Project
The different approaches to the pre-existing typify the different categories of the intervention5. These could respond to different degrees of similarity or contrast with the existing or to a renewed meaning when the new and the old interact in a certain way, creating different stages of communicative hybridisation. The approach of this paper is that of Alexandra Georgescu, which points to the intervention on pre-existence as a communication phenomenon of the present visual culture [4]. This perspective defines the intervention project most usually as a transformation, which links the theory of patrimonial updating with the practice of adaptive reuse. Georgescu Paquin strategised the relation between old and new as a renewed interpretation of the architectural fact through the intervention project, and typified it as follows:
- Revelation: The new takes a step back to recover the old, which is presented from a contemporary perspective, which represents a traditional strategy to approach, for example, the ruins, exemplified in the Kolumba Museum of Peter Zumthor.
- Continuation: The new acquires a communicative value equivalent to the old in a functional or symbolic sense, resulting in a kind of well-defined enlargement, yet subordinated to the old, exemplified in the Hotel Zürichberg of Burkhalter Sumi.
- Accentuation: The new obliges to an updated reading of the old through a meaningful addition, which highlights but bounds up inextricably with the old, exemplified in the intervention in the Museum of Natural History in Berlin of Diener&Diener.
These categories merge in the updating process over the pre-existing, as mediation tools, revealing our relationship with the past, to better understand our present, and ensuring the permanence of heritage. This approach depends on the transformation that allows the building to be inhabited in a contemporary way, and results in its maintenance, because it is explicitly useful to society on an instrumental level. All in all, this point defines heritage as a dynamic concept.
1.3. Rediscovering Architecture in the Rural Environment
The latest definition of heritage brings together every layer, both material and immaterial, valued by a community of human beings. This makes it possible to extend the theories of intervention projects to areas that have never before participated in scientific discourse, such as the anonymous layer that underpins social relations in rural environments, constituting the structural features that consolidate a community. This is all the more important today, when the processes of depopulation in rural areas are leading to an unprecedented population imbalance (Figure 1).
Figure 1.
Gugalun House west view. Studio Adam Caruso, ETH Zurich (Simon Burri, Grégoire Farquet, Michael Fehlmann, Lea Hottiger).
A wide range of past insights become applicable to this current definition of heritage, such as the dynamic configuration of architectural layering, where the addition is considered as a valid updating factor, the erasure of the difference, as well as the explicit contrast. What maybe best fits with rural intervention fact is the organic growth or transformation in response to needs or consolidation [5]. The everyday reality of the rural world did not participate in political, artistic or media discourses, which allows us to approach the spatial transformation from a fully architectural point of view.
The decrease in rural population worldwide between 1971 (63.4%) and 2020 (43.8%) is a well-known fact since the industrial revolution [3] (p. 80). The reduction in small family farms taken over by large industrial ones left a growing constellation of outbuildings related to agricultural production that eventually fell out of use and/or abandoned. These buildings were small humble structures surrounded by farmland, therefore limiting their potential reuse. Their value was more testimonial than scenic.
This text will focus on two proposals of the same period and geographical environment. The first, a 1928 summer rest house and productive facility, which while it maintained its residential character, it was converted into private housing in Walenstadtberg 1991–1992/99. The second, a 1709 agricultural family house, became a second holiday residence in Versam 1990–1994. The deep social changes in such typologies are revealed in the reuse of these case studies, which reflect this kind of structural transformation in the Swiss Alps. This practice spread across the entire country from this moment, changing anonymous interventions into intellectual proposals, which we call the intervention project, driven by the most recognised architects, such as Peter Märkli and Peter Zumthor, among other younger generations (Figure 2).
Figure 2.
Walenstadtberg Housing southeast view. ©Peter Märkli.
The case studies in this paper are selected firstly as pioneering examples of the process of change in the rural alpine environment, from what had always been strictly functional consolidation or adaptation tasks, to what we have previously called the creative dimension of the intervention, which represents the intervention project.
Secondly, the cases were chosen based on the fact that they were exemplary of the two main building systems in the Swiss alpine environment of Grisons, where the tectonic system determines certain forms of spatial growth6, which I will later relate to the theoretical reflection on spatial form developed during the 20th century and not yet applied to the project of intervention in the rural environment.
The cases fit well into Georgescu Paquin’s typification because their communicative function corresponds to what we have called the present visual culture. The Walenstadtberg project depicts the category of revelation because the new gives the old the upper hand, while the Versam one represents the category of continuation, presenting the new as a distinctive but subordinated extension of the old. Moreover, both of them participate in the category of accentuation, highlighting the semantic corpus of the pre-existence from a contemporary historic interpretation, the first functional (loggia), and the latter aesthetic (log-construction). About the stages of communicative hybridisation, Märkli’s proposal will be named as a Spatial Hybridisation, while Zumthor’s response will refer to a Plastic Symbiosis, which are two new categories I stated arising from the application of Georgescu Paquin’s typification to the specific case of the Swiss alpine rural environment.
2. Materials and Methods
The case study, defined following Robert K. Yin’s argument, is an empirical inquiry that investigates a contemporary phenomenon within its real-life context, especially when the boundaries between phenomenon and context are not clearly evident and relies on multiple sources of evidence [6]. This methodology, often understood as a strategy, focuses on the contextual conditions of a few cases, which are studied in depth. The case study method is not a mere social qualitative research but applies the best of both qualitative and quantitative studies, even when formless data are analysed.
Architectural case study deals with facts in which interest variables exceed possible quantitative data and therefore are used as a research tool in critical architectural studies. The theoretical corpus regarding the interest variables guides the data selection and analysis process. The recent theories of adaptative reuse and those of heritage updating in the rural alpine context, together with the attempts to establish a systematic approach to spatial development, influence the selection of cases and the subsequent analysis.
The types of case studies following Stake’s proposal are intrinsic, instrumental, and collective [7]. Since we want to extend an instrumental study to a range of cases, to gain a deeper understanding of how the architecture in a rural environment became updated from the 1990s, this paper will focus on a collective study. Yin suggests alternative categories, such as exploratory, descriptive, and explanatory case studies. This study seeks to explore how the theory trends were implemented in real life, in particular, how it works in a forgotten context by modern architecture and conservation theories, which today is essential for the sustainable distribution of the population in the territory and a goal for architecture reuse. All of the above identifies this study as an explanatory case.
Generalisability in case studies was regarded by Yin to theoretical statements to expand theory, more than the generalisation to a community, and very unlike statistical generalisation. It is a kind of naturalistic generalisation following Yin’s thought, far from deductive ones grounded on statistical analysis. The case study in this paper is used as a method to understand the mechanisms of the updating process in rural alpine areas, from their spatial growth model and its relation to popular typologies.
The selected cases play a key role in creating a model that allows a better understanding of the phenomenon. They have been chosen according to the nature of the renovation, the international recognition of the architect, the period of conception–realisation and the cultural–geographical context (Switzerland, Graubünden, rural alpine environment). As a result, a comparison is possible in which the quantitative variables are reduced, allowing the most significant characteristics of the spatial update to be isolated.
3. The Spatial Form Approach
The theoretical frame from which the case studies are focused on relates to the formalist architectural approach at the beginning of the 20th century. It was initiated by Swiss Heinrich Wölfflin and ramified or polarised by intellectual figures like Paul Frankl, Rudolf Wittkower, and Colin Rowe [8]. This approach went beyond mere visual perception to a critical view of the work of art based on the well-known five categories of opposing terms: linear vs. painterly, plane vs. recession, closed form vs. open form, multiplicity vs. unity, and clearness vs. unclearness. Wölfflin faced a scientific approach to the history of art in search of the general principles of its transformation through history, thus initiating a constellation of researchers on this topic as Paul Frankl, who developed an evolution model of architecture from the Renaissance to the XIX century [9].
Frankl stated the Renaissance and the Baroque as opposite poles, analysing case studies from the four basic categories: spatial form, corporeal form, visible form, and purposive intention; however, the spatial form was essential for Frankl, taking precedence over the other forms. Frankl’s critical–formal and historical analysis identified a set of differences and continuities between the historical phases. Following his reasoning, Renaissance architecture consisted of the spatial addition, the force centre, one image, and the character freedom, while for Baroque architecture, it was the spatial division, the force channel, various images, and the character constraint. The tectonic synthesis of the historical analysis from these categories were two easy statements: Renaissance architecture was generated by addition, and Baroque architecture by division, which is not as clear-cut a division as it may seem. In any case, this polarity summed up as the opposition between the whole and the part, or what was also called the complete and the fragmentary, represents a timeless categorisation whose significance was fundamental for the development of architecture in the 20th century and, specifically related to this paper, with the conception of pre-existing as a spatial matter to work with.
An attempt to classify horizontal and vertical space development, written by Andrea Deplazes and Christoph Wieser [10], goes far beyond these two basic growth statements as the search for a more in-depth insight into the controversy of intermediate categories. The possibility of a cover limits the maximal span of the unit, which can multiply as a conglomerate or be divided, splitting internally. The so-called spatial cells keep their structural autonomy (if multiplied) or subordinate to the unit (if split). The resulting constellation maintains coherence with the corresponding spatial development, the two poles perhaps being the grid structure independent of the space enclosure, on the one hand, and the merging of structure and space, on the other hand.
The basics of horizontal addition and vertical piling acquire complexity through the variable regularity of the cell association, taking into account a strategy for perforating the walls, or the concept of load-bearing structure with an active form7. Tectonics as the specific relation between the conceptual development and the built spatial form, as well as between the shell and the core, will be the main subject of analysis of the case studies. This decision takes the structural systems of the case studies as a starting point, rooted in the tradition of solid timber construction on the one hand (Gugalun House), and timber framing on the other (Walenstadtberg Housing). The possibilities of internal spatial unfolding for its typological actualisation stem from the tectonic relationship between the whole and the parts, respectively.
The history of both structural systems in the rural context of the case studies shed light on the spatial development procedures for adaptive reuse, which are very similar to contemporary domestic habitation schemes and therefore seem to confirm the relationship discussed above. The Walenstadtberg Housing results paradigmatic of the interior division of an only cell, while the Gugalun House brings to light an example of a conglomerate made up of addition, updating the social validity of those old buildings and reintroducing them into the continuity of the building fabric over time. The humble nature of many buildings in the rural environment and their material damage make it difficult to modernise if abandoned for too long. The aim is to appraise the update in such cases, creating a valuable alternative to the demolition and loss of immaterial heritage.
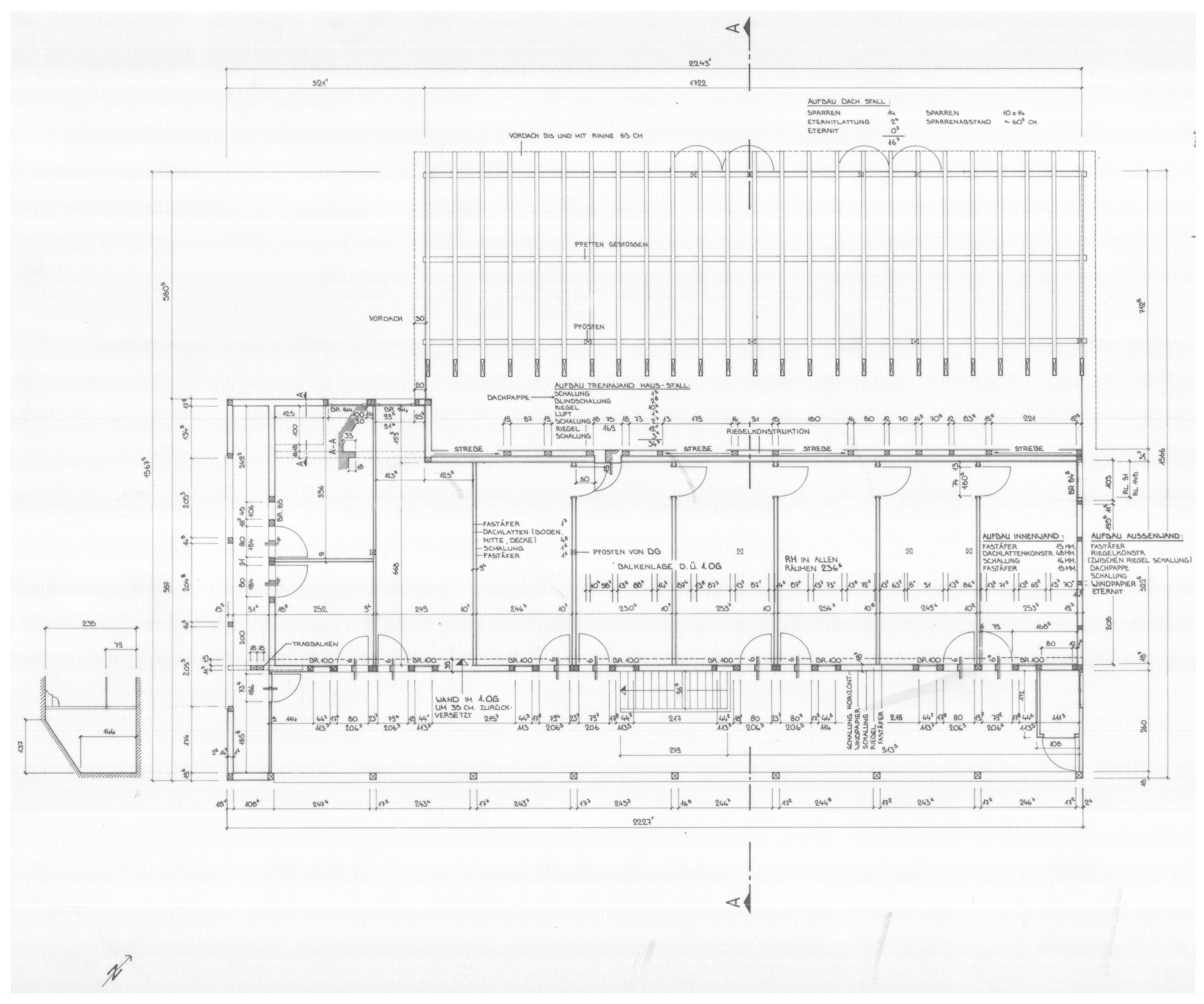
3.1. Spatial Hybridisation: Walenstadtberg Housing
Peter Märkli and Gody Kühnis met with Othmar Humm who owned an obsolete and damaged summer rest house with a stable and a barn, (1928) and proposed a complete refurbishment along with a never realised semi-detached housing project on the same plot (Figure 3 and Figure 4)8. The main feature of the pre-existing structure was the veranda, which runs along the valley façade on the two upper floors of the building (Figure 5 and Figure 6). This element was added in the 17th century as an essential representative of the farm façade, known as Laube in Swiss German [11]. It was functionally understood as an intermediate space, an extension of the interior that served for accessing, drying goods, and laundry. Normally located on the gable façade, often forming part of the main building structure and volume, and often integrating an open staircase for the upper floor, the veranda was normally supported by columns, covering an entrance area on the ground floor.
Figure 3.
Walenstadtberg Housing. Sketch Peter Märkli. The original proposal for the transformation of the old house and addition of a semi-detached housing block. ©Peter Märkli.
Figure 4.
Walenstadtberg semi-detached housing model. Note the main façade treatment in relation to the one designed for the old building. ©Peter Märkli.
Figure 5.
Walenstadtberg Housing southwest view. Churfirsten mountains in the background. Silvia Alonso.
Figure 6.
Walenstadtberg Housing. Veranda on the first floor. ©Peter Märkli.
It was at the end of the 19th century when the so-called Laubsägelistil came to semi-public buildings such as restaurants or tiny hotels, showing the entire facade as a veranda. This element acquired then its final representative value, composing a kind of finely ornamented peristyle. In addition, these typologies were characterised by a cross double gable roof too, which changed the side façade into a main one, and opened through the veranda to the panoramic views at full height.
The turn of the 20th-century style in Switzerland, the so-called Heimatstil, was an inspiration for small-scale tourism programmes in alpine areas. The pragmatic principles of rural architecture and its timeless iconography were highly appreciated in these interventions as part of an imaginary exported beyond Switzerland’s borders. The rest house in Walenstadtberg is representative of this typology of buildings, often used as a health resort in summer.
The load-bearing structure was a timber frame construction, the traditional method based on a relatively small module with diagonal braces in the same plane (Figure 7). The traces of the first wood prefabrication could be identified on this system, even if individual pieces were carried out on site. This solution creates a whole shell (Figure 8 and Figure 9), mainly susceptible to growing vertically storey by storey or horizontally by adding new spatial units.
Figure 7.
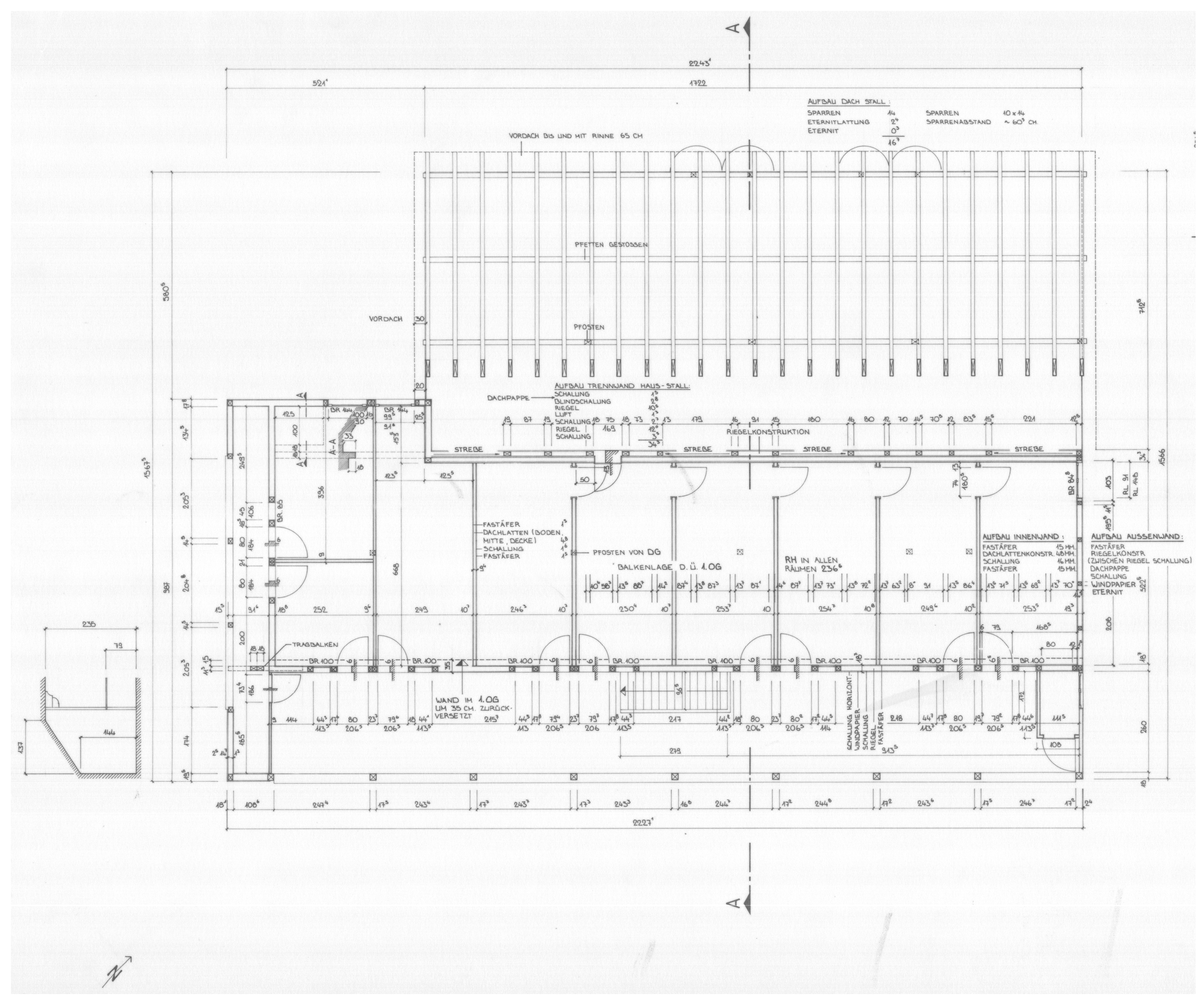
Walenstadtberg old state. Plan of the second floor. Note the timber frame structure throughout the building (even on the southwest façade), the staircase on the veranda, and the series of connected rooms forming a single bay. Material provided by Gody Kühnis.
Figure 8.
Walenstadtberg Housing. Timber frame construction on the second floor. Note the southwest façade featuring a glazed loggia and the entasis of the three pillars to the right. Material provided by Gody Kühnis.
Figure 9.
Walenstadtberg Housing under construction. Note the brick shell on the southwest and northwest façades of the ground and first floors. The new timber frame construction will be housed inside. Material provided by Gody Kühnis.
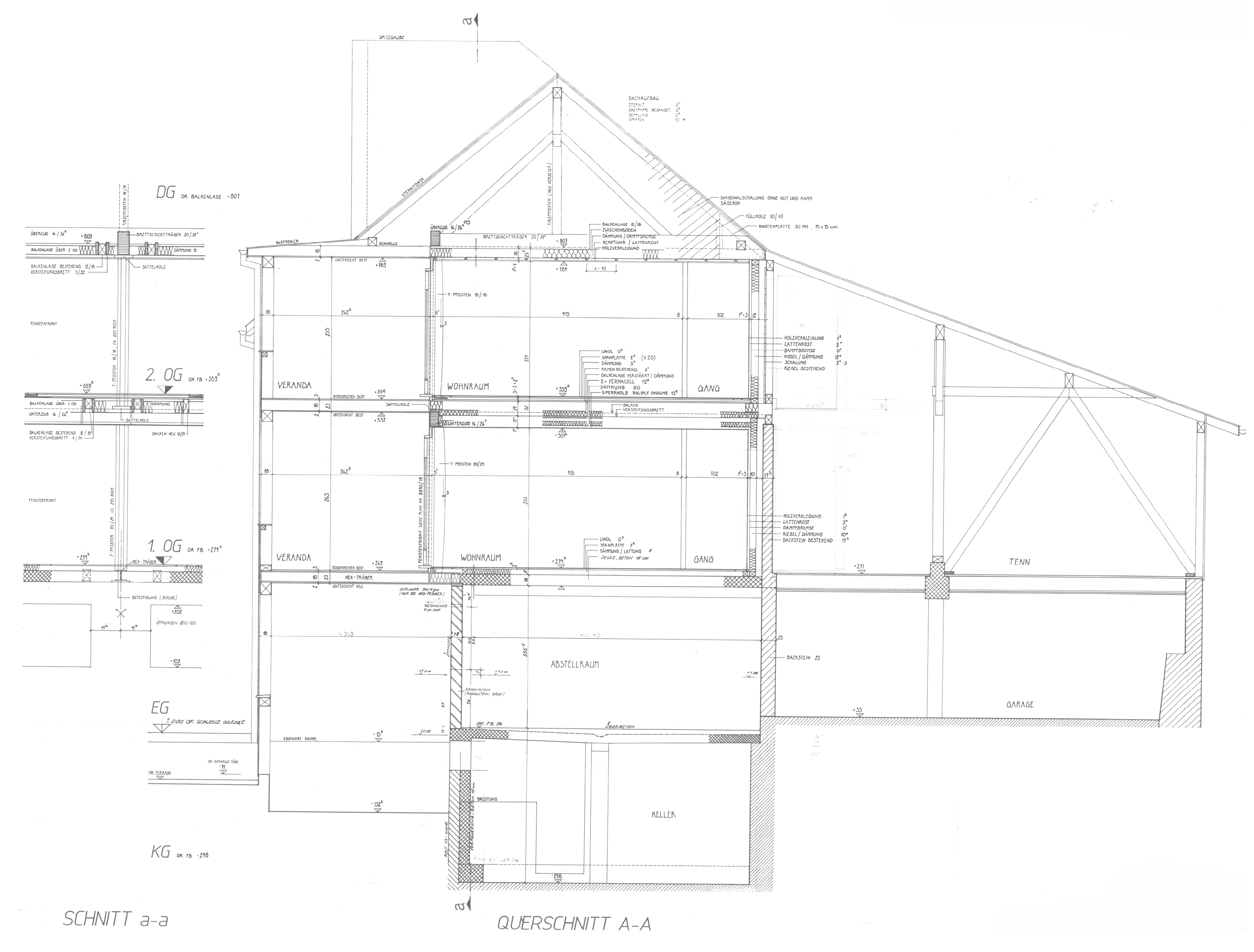
The three essential decisions on the intervention were radical and consistent to the very end. The first was to replace the timber frame of the façade that faced the valley with a glazed colonnade, composed of T-shaped wooden columns and sliding windows occupying the entire span, whose 265 mm frames are clearly wider than necessary (Figure 10 and Figure 11). This action generates a spatial effective lateral enlargement to the living cells, giving the veranda the quality of an outdoor extension (Figure 12). The new columns acquire a fundamental presence, especially when they are free-standing between windows, allowing them to exhibit a subtle entasis, which forms part of the architect’s personal exploration of the column. The decision of completely removing the circulation function of the veranda appears to be really controversial, as the outdoor staircase moves progressively throughout the successive versions to the back until it disappears, giving the veranda an absolute outdoor living condition.
Figure 10.
Walenstadtberg Housing under construction. The placing of the wooden windows between columns of what we have called the glazed loggia. Material provided by Gody Kühnis.
Figure 11.
Walenstadtberg Housing. The plan of the southwest façade in their original state (large-dashed line) and their projected state (solid line). Material provided by Gody Kühnis.
Figure 12.
Walenstadtberg Housing under construction. Transverse continuity between the interior space and the veranda space. Note the Seeztal view from the veranda. Material provided by Gody Kühnis.
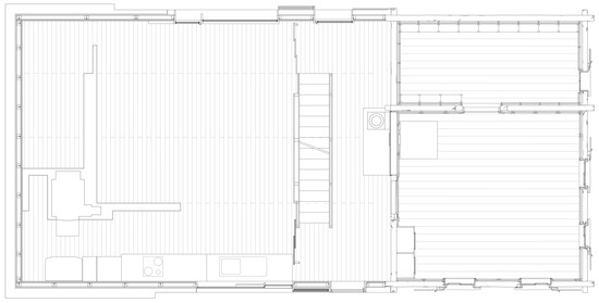
The second insight was about the drastic change in habitational organisation, transforming the original network of interconnected rooms, which conformed to a schema of only one bay (Figure 13, Figure 14 and Figure 15). The new proposed corridor system, together with the veranda, forms a three-bay plan allowing for perimeter and cross circulation. The interior division strategy was the inclusion of space cells built by means of new timber frame enclosures, which was compatible with the given load-bearing system and its growth possibilities (Figure 16).
Figure 13.
Walenstadtberg Housing. The plan of the first floor (as of 1999). Note the new division into three bays (corridor, room, and veranda) and the elimination of the staircase on the veranda. ©Peter Märkli.
Figure 14.
Walenstadtberg Housing. The plan of the second floor (as of 1999). Note the continuity between the first three rooms on the left and the three free-standing pillars in the façade between these rooms, which have the mentioned entasis. ©Peter Märkli.
Figure 15.
Walenstadtberg Housing. The plan of the cross section (as of 1999). Note the brick shell on the northwest façade up to the first floor. ©Peter Märkli.
Figure 16.
Walenstadtberg Housing under construction. Timber frame construction on the first floor. Material provided by Gody Kühnis.
The third decision was simply removing, replacing, and adding to damaged or undersized wooden parts (Figure 17 and Figure 18). A kind of mending approach is as follows: We deliberately left the tried-and-tested material. The history and influences on the building should remain recognisable9. The floors were covered with dark linoleum and the walls and ceiling cladded with oiled pine panels (Figure 19). The veranda floor and railings were also left in their original condition, with only the weathered or damaged boards being replaced individually by the craftsmen (Figure 20). The original timber frame load-bearing structure was just infilled with insulating materials and protected with weatherproof cladding (Figure 21).
Figure 17.
Walenstadtberg Housing. The repair of the pillars of the veranda by replacing the damaged parts. Material provided by Gody Kühnis.
Figure 18.
Walenstadtberg Housing. The reinforcement of the upper timber floor slab and fixing of the new pillars on the southwest façade. Material provided by Gody Kühnis.
Figure 19.
Walenstadtberg Housing. The first floor finished with wooden cladding and linoleum floor. Note the entasis of the free-standing pillars of the façade [12].
Figure 20.
Walenstadtberg Housing. The restoration of the balustrade on the first floor by only replacing the damaged parts. Silvia Alonso.
Figure 21.
Walenstadtberg Housing. The construction cross section of the project (1992). Note the entasis of the pillars, the reduction in their section between the first and second floors, and the detail of the reinforcement of the wooden slabs on the left. The southwest façade of the first floor is aligned with that of the second floor (originally it was aligned with the ground floor). Material provided by Gody Kühnis.
3.2. Plastic Symbiosis: Gugalun House
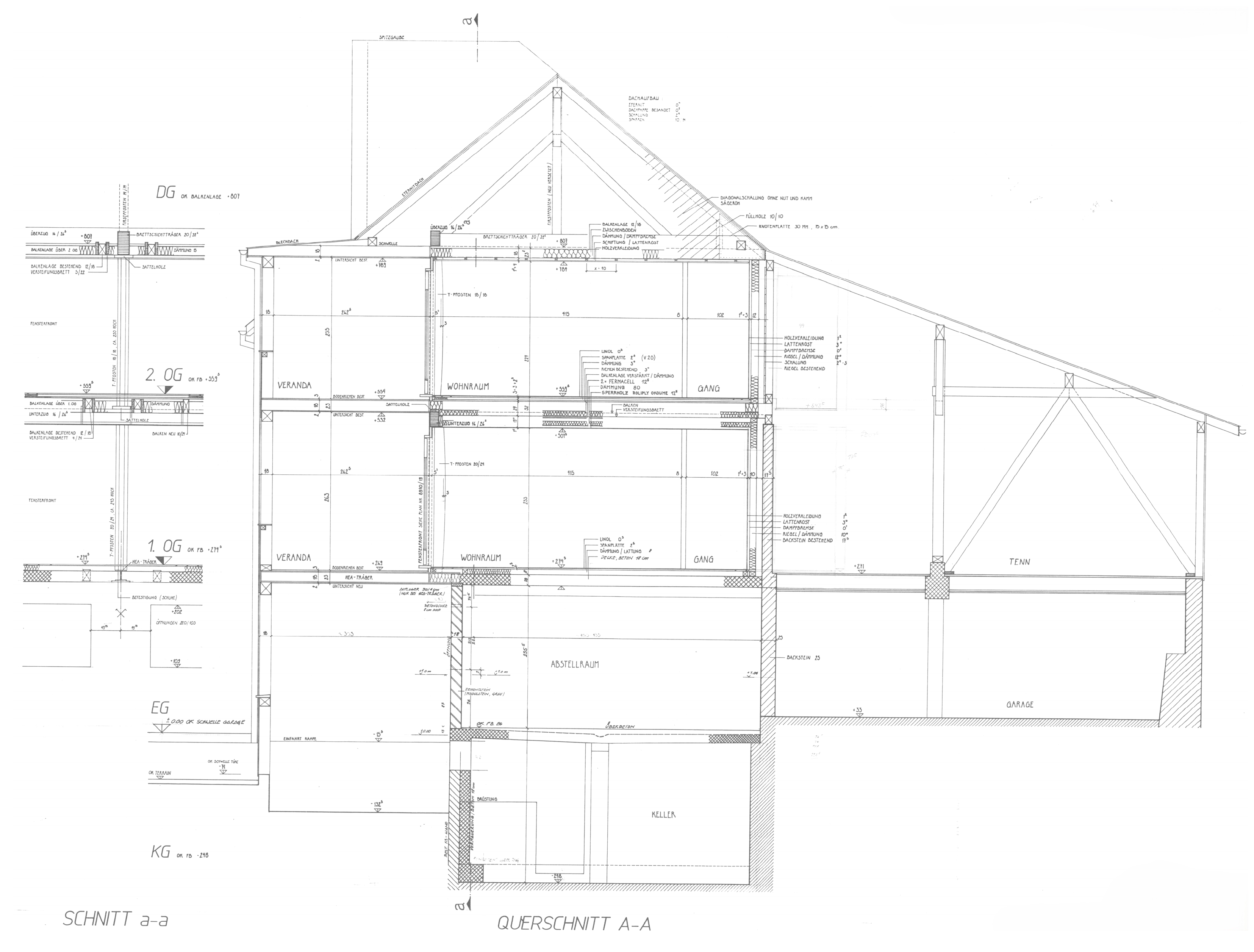
The original house in Versam (1709) was erected as a three-bay typology, which ran east to west parallel to the contour lines, where the middle one was a linking space. On the gabled zinc roof, the ridge runs following the slope to the north, where the main façade opens its tiny windows to the valley (Figure 22 and Figure 23). The original log-construction, the so-called Strickbau in Swiss German, consists of a massive wood load-bearing wall, which rises from the piling of horizontal beams. It acquires the structural consistency of a shell through the sewing of the beam-heads when they meet at corners (Figure 24). The log-construction is the local ancient construction system where the mass becomes the protagonist quality, as opposed to the line or the surface. Moreover, the differential movement of this material is both a constraint and a potential: it causes the building to shrink periodically due to natural wetting and drying-out cycles. As a result, it increases in volume in winter, preventing the entry of moisture, but compresses non-deformable elements such as windows or wet cores; in summer it reduces in volume, allowing ventilation between the beams, but decompressing the walls. In addition, it has almost no thermal inertia, a positive condition in a house that is used intermittently.
Figure 22.
Gugalun House south view. Note the ridge running in the direction of the slope. Silvia Alonso.
Figure 23.
Gugalun House north façade. Note the added side terrace. Studio Adam Caruso, ETH Zurich (Simon Burri, Grégoire Farquet, Michael Fehlmann, and Lea Hottiger).
Figure 24.
Gugalun House. Encounter between the old log-construction and the new envelope. Note that the original beams reaching the old corner in perpendicular directions protrude. Studio Adam Caruso, ETH Zurich (Simon Burri, Grégoire Farquet, Michael Fehlmann, and Lea Hottiger).
The general deterioration of the whole, which tended to fall progressively to the valley, led the owner Gody Truog to ask first Rudolf Olgiati and later Peter Zumthor to repair and refurbish the old family house, taking care not to lose the main character of the building or its relationship with the context: Our theme was Old and New. A simple, seventeenth-century farmhouse that faces north and looks at the moon (…). A new roof would shelter and connect the old and the new [13] (p. 9) (Figure 25). The preservation of the original roof level was one of the three fundamental decisions in this case, as modifying it in any way would have radically changed the relationship between the house and its context, for example, by opening it to the south, which seemed a viable option at a first glance10 (Figure 26).
Figure 25.
Gugalun House. Peter Zumthor sketch about old and new under the same roof [13].
Figure 26.
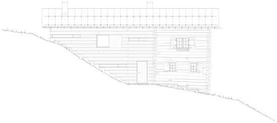
Gugalun House southwest view. Note how the house remains hidden from the south. Silvia Alonso.
The engineer Jürg Conzett, as a young collaborator of Peter Zumthor at that time, worked from local building precedents, but introduced the methods of graphic analysis based on sketches and diagrams, acquired during his studies at the ETHZ, which presented a spatial sense as opposed to the strictly mathematical model. The structural proposal consisted of demolishing the damaged south bays and stabilising the original stone foundations by means of a stepped concrete slab, which would definitively anchor the whole to the hillside (Figure 27 and Figure 28). The longitudinal arrangement of the roof beams also stabilised the old bay, pulling it to the hillside11 (Figure 29). As the northern bay gave the house its real identity, since it contained the typical living space known as the Stube, both its interior and exterior remained intact. This decision, together with maintaining the roof level, allowed the old to be kept in its original state at a material and conceptual level (Figure 30, Figure 31 and Figure 32).
Figure 27.
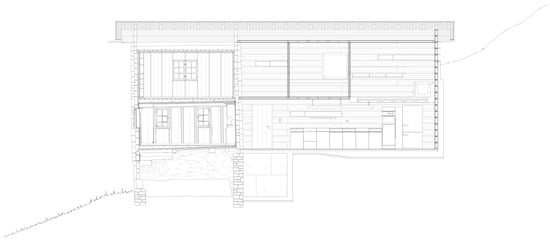
Gugalun House. The plan of the west façade. Note the encounter between old and new. Studio Adam Caruso, ETH Zurich (Simon Burri, Grégoire Farquet, Michael Fehlmann, and Lea Hottiger).
Figure 28.
Gugalun House. The plan of the longitudinal section. Note the decline of the old part. Studio Adam Caruso, ETH Zurich (Simon Burri, Grégoire Farquet, Michael Fehlmann, and Lea Hottiger).
Figure 29.
Gugalun House ridge from south to north. Note the original chimney in the background heating the old part and the new chimney in the foreground heating the hypocaust. Studio Adam Caruso, ETH Zurich (Simon Burri, Grégoire Farquet, Michael Fehlmann, and Lea Hottiger).
Figure 30.
Gugalun House. The plan of the ground floor. Studio Adam Caruso, ETH Zurich (Simon Burri, Grégoire Farquet, Michael Fehlmann, and Lea Hottiger).
Figure 31.
Gugalun House. The plan of the first floor. Note the arrangement of the floor planking that solves the timber framing of the floor slabs. Studio Adam Caruso, ETH Zurich (Simon Burri, Grégoire Farquet, Michael Fehlmann, and Lea Hottiger).
Figure 32.
Gugalun House. The plan of the cross sections. The old part (left). The new one (right). Note the direction of the roof rafters parallel to the ridge. Studio Adam Caruso, ETH Zurich (Simon Burri, Grégoire Farquet, Michael Fehlmann, and Lea Hottiger).
The new bay introduced a symbolic but functional element, called the black beast by the architect, as a kind of growing black concrete organism, which grew from the new foundations. It was quite a coup for the proposal, as it consolidated the overall structure from the heart of the new, pulling the old into itself and rooting it to the ground. This sculptural element situated towards the hillside formed an arboreal structure that supported and organised the servant spaces, which were articulated on its ramifications (Figure 33). What occurred was an inversion of the original load-bearing mass, which partially moved from the outside to the new inner core. The concrete core introduced a central heating system based on the old Roman hypocaust, as the new chimney on the ground floor expels burning air to an interior cavity network running inside the concrete elements. The void inside the concrete mass was achieved using the lost wax casting technique12 (Figure 34). The result was an extensive shape which enabled to heat the southern part of the house, especially the bathroom, the master bedroom, and the kitchen/dining room, keeping it warm for a long time after combustion has ended thanks to the high thermal inertia of the concrete.
Figure 33.
Gugalun House black beast (orange by Silvia Alonso). Note the interior casting of the concrete wall [13].
Figure 34.
Gugalun House black beast upper corner of the black concrete slab-wall between the kitchen (left) and the dining room (right). Orthos Logos.
The final and critical decision was about the continuity of the vertical rhythm of the original log-construction envelope of 29 cm (Figure 35). The new hollow larch components allow one to introduce insulation, joined with double tongue-and-groove joints and pre-assembled in situ to form larger elements, compounded to finally comprise a compact facade structure. The lower flange of each box juts out 12 cm to expel rainwater (exactly the same as the original knot in the corner), but it creates a shadow that gives depth and lightness to the new envelope. The modulation of the entire volume from the original log-construction introduces a systematic proportionality into the design, which is reproduced in the alder interior cladding as a gesture to the original log-construction inside aspect. The floors rest between the concrete core and the timber envelope, reducing their spans as much as possible so that they can be as thin as 5 cm, while on each side of the staircase, the timber frame walls run transversally, bracing the east and west facades13.
Figure 35.
Gugalun House. Juts in the southwest corner that overlap the same as the old building beams. Flickr.
4. Discussion
Both cases being a part of the so-called adaptive reuse in the Swiss alpine rural environment, they represent two main types of coherent relationships between communicative hybridisation, the development of spatial form, and the local building system.
The new spatial development in Walenstadtberg arises as a concentric subordination to the original spatial structure. The division takes place from the outside to the inside, resulting in a centripetal growth by internal division. This process produces a Russian doll game of cells of different hierarchies, which gives rise to a new organism after the hybridisation. This form of spatial differentiation was typical of the rural constructions of the area [14] where the Stube or other dwelling cells were embedded in a massive stone or wooden shell of a productive building (Figure 36). This is an association of interior cells with a kind of formal complementarity, together with the transversal enlargement by means of the addition of an exterior cell, which is the veranda.
Figure 36.
Chastè sur En in Zuoz. The subdivision of the old stone house with the introduction of a wooden cell called Stube in the 16th century [15].
The association in Versam consists by contrast in a juxtaposition of two cells, where old and new are side by side, which is also a typical form of spatial growth in this rural environment [14] (Figure 37). The new cell, however, divides internally from the core. Thanks to the great stability of the system, it allows the discontinuity of the walls between floors, giving greater flexibility to the use of the interior space. This kind of inner division generates a centrifugal dynamic, from a massive core towards the shell. The new ensemble grows as a symbiosis of different kinds of construction—old and new—as the symbionts live together in harmony, yet keep their own character. The interior space expands laterally outwards parallel to the edge of the valley, while the frontal relationship remains unchanged and the house stays hidden from the access road as it always was.
Figure 37.
Savognin tower house (left) and hall house (right), 16th Century. The growth of the original constructions occured by successive additions until the 17th century [14].
The analysis of both case studies allows us to state that intervention in pre-existing architecture in the Swiss alpine environment, in the sense of typological transformation or adaptive reuse, can be approached from the theory of spatial form developed by Frankl and implicit in the typological studies in the Swiss alpine rural environment developed by Simonett. Although in Walenstadtberg it seems that a simple intervention of the consolidation of the old has been chosen, the spatial transformation elevates the intervention to a fundamental typological change, which updates elements such as the loggia or the veranda: the loggia which opens to a veranda and the veranda which constitutes a third bay, both enabling a deep transversality. Albeit in Versam the explicit addition seems to be the main feature, it hides a complex inner spatial division which reconsiders the potential of the traditional building system and subordinates aesthetically to the old, actualising its meaning through concepts such as lightness or openness.
These projects do not fold to the previous typology in order to remain unaltered but reconsider the typology as an evolving organism: Gugalun looks like a simple addition but hides the interior division of the new from a central core, and Walenstadtberg looks like an interior division but presents the lateral addition of the loggia by dematerialising the envelope on its side. The handling of the local building typology leads to an understanding of the spatial form that enables it to be altered, keeping it in a line of continuity with its past and opening it up to new interventions in the future.
The case studies illustrate different approaches to the actualisation of obsolete architecture in a rural environment, both of them from the local typology of timber construction: through the strict repair of the timber frame envelope in Walenstadtberg or through the addition of a new log-construction shell in Versam, which reinterprets its predecessor. Each traditional building system hides a specific spatial development potential, as can also be explored in the work of Gion A. Caminada14. This article demonstrates this possibility for the concrete cases of adaptative reuse under study but paves the way for extending the research to the later generations of architects and different rural contexts around the world, where the traditional building system is still very present. The result would be a range of tools with which to update the pre-existence in any rural environment to give it, as it was said, a socially useful purpose, crucial for its preservation.
The anonymous update of architecture in rural environments underwent a natural process of adapting to change, which undoubtedly kept it in force and made it possible to include it in the current updating process. In fact, rural typologies in Switzerland presented a high degree of abstraction, derived from the economy of means that resulted in the modulation and the addition of cells as a system of spatial growth, which has been an influence on contemporary architecture (Figure 38). Both cases under study show a different strategy of interior division too, inwards in Walenstadtberg and outwards in Versam, which generates a space of contemporary character in the sense of ambiguity and transience of space, which points to an upgrade of pre-existence.
Figure 38.
Calanca-Monti guesthouse, 16th Century (left) [14]. Tavole House, Herzog&De Meuron, 1982–1988 (right) www.herzogdemeuron.com.
5. Conclusions
The findings of the case study let us establish several relations between spatial form and tectonics. Firstly, as we identified in Versam, the log-construction admits the interior division from a core (the concrete wall), which reduces the thickness of the floor slabs or allows one to increase the width of the shell. This kind of division can be vertically irregular (section takes the lead), in the sense of the Raumplan of Loos15 [10] (p. 250). The resulting spatial cells are structurally active and therefore, dependent on the log-construction shell.
The spatial dynamics of an interior division from a core create a centrifugal relation from inside to outside, yet the openings are limited because of the log-construction system16. This brings the inner spatial experience up to date with our current sensitivity to outer space: the expansion.
The traditional log-construction system, based on the piling of beams, evolves by adding isolation and tightness to cover the current requirements, but presents a kind of skeuomorphism, as, for example, in the weaving of the corners to make it resemble the original system so it is more familiar17.
As for the other case, the timber frame construction in Walenstadtberg, we are witnessing mostly the opposite conditions in these issues. The system admits only regular addition, vertically or horizontally, since we always refer to the addition of structurally active cells18. When it comes to division, only concentric division based on cells within cells without structural function is allowed. The result is the correlation of spaces on the ground plan, where transversality plays an important role. The added structurally active spatial cells are, therefore, independent of the original timber frame.
The inner division of the original timber frame through the insertion of non-structural cells into other cells leads to a centripetal relation from outside to inside. This brings the inner spatial experience back to an archaic background: the internalisation, which can only be compensated to be upgraded, with the controlled transversal opening as in the case of the glazed loggia opened to the veranda in Walenstadtberg.
The traditional timber frame evolved in the sense of increasing standardisation and prefabrication to the platform frame construction, reaching its structurally most efficient form in the panel construction, keeping anyway the requirement of horizontal and vertical regularity. Only in its drift towards the ballon frame or timber stud construction, the inner irregular division as in the log-construction system with a central core is possible19.
The theoretical discussion between the old and the new rarely arises from a tectonics point of view as a relationship between conceptual (spatial form) and construction (materiality). However, terms such as continuity or fragmentation, common to both issues, are key in discussing the relation between the old and the new. The anonymous architecture in the rural environment which is relegated to a secondary place during the development of both formal and heritage theories now represents an invaluable opportunity for research in the field of critical intervention about adaptative reuse and sustainability issues in terms of human relations and resource streamlining (Figure 39).
Figure 39.
Gugalun House. The interior cladding of one bedroom in the old part as seen from the hallway. Studio Adam Caruso, ETH Zurich (Simon Burri, Grégoire Farquet, Michael Fehlmann, and Lea Hottiger).
Every new work of architecture intervenes in a specific historical situation. It is essential to the quality of the intervention that the new building should embrace qualities which can enter into a meaningful dialogue with the existing situation. For if the intervention is to find its place, it must make us see what already exists in a new light. We throw a stone into the water. Sand swirls up and settles again. The stir was necessary. The stone has found its place. But the pond is no longer the same[15] (p. 18).
Funding
This research received no external funding.
Data Availability Statement
No new data were created or analysed in this study. Data sharing is not applicable to this article.
Acknowledgments
Acknowledgements to Peter Märkli, Gody Kühnis, Adam Caruso, Simon Burri, Grégoire Farquet, Michael Fehlmann, Lea Hottiger, Peter Truog and Othmar Humm for their collaboration, the provision of documents and their willingness to converse.
Conflicts of Interest
The author declares no conflicts of interest.
Notes
| 1 | As detailed by Miroslav Šik in Analogue Oldnew Architecture, 2019, or in Old-New, 2014, both published by Quart Verlag. |
| 2 | Kubler, G. (1962). The Shape of Time: Remarks on the History of things. Yale University Press. |
| 3 | Adaptative Reuse term on the Merriam-Webster Dictionary as the renovation and reuse of pre-existing structures (such as warehouses) for new purposes. https://www.merriam-webster.com/dictionary/adaptive%20reuse, accessed on 26 May 2024. |
| 4 | The fundamental agreements to this respect were the Athens Charter in 1931 (The Athens Charter for the Restoration of Historic Monuments) and the Venice Charter in 1964 (The International Charter for the Conservation and Restoration of Monuments and Sites). |
| 5 | Some examples of typification about intervention on pre-existence, from different approaches, include that of Steven W. Semes: the intervention as the literal replica, the same vine, the abstract reference or the drastic opposite [16]; or that of Muñoz Viñas: the intervention as the symbolism, the cultural connotation or the metaphor [17]. |
| 6 | The previous research carried out by the author in her doctoral thesis on recent Swiss architecture in the Graubünden area of Switzerland, published by Diseño with the support of Pro-Helvetia [18], underpins the previous fieldwork for the selection of the case studies. |
| 7 | The Great Mosque in Cordoba for the first, or the Pantheon in Rome for the latter, illustrate both strategies. |
| 8 | The refurbischment project was published briefly in the Lignum Bulletin [19] and Peter Märkli’s first monograph [20], while the unbuilt project was not published. |
| 9 | Wir haben bewusst bewährtes Material bleiben lassen. Der Werdegang und die Einflüsse auf das Gebäude sollten ablesbar bleiben. Benno John [12]. |
| 10 | As initially proposed by Rudolf Olgiati. |
| 11 | An interview with Jürg Conzett conducted by Carlos Graña Ramos on 14th August of 2023, Chur. |
| 12 | This consists of making wax pieces in the shape of the voids to be created. After forming the required volume and placing the wax pieces as if they were formwork, the concrete is poured. When the concrete has set, the wax must be removed by heating. This technique, inherited from sculpture, generally consists of removing the wax in an oven and then filling the hollow with molten metal to achieve the desired shape. The aim in this case was the void and it was not possible to place the piece in an oven. However, the combustion in the chimney itself generates the necessary heat to melt the wax, which is evacuated through a series of holes that must be closed after the process to prevent the escape of the hot air. |
| 13 | The work developed by Mario Artieda Pérez (2016) presents a detailed constructive description of the building [21]. |
| 14 | Represented by the Schmid House in Vals (2000), the Beckel-Kübler House in Fürstenaubruck (2006) or the Girsberger House in Münster-Geschinen (2009) in Caminada, G. A. (2021). Gion A. Caminada, 1995–2021: identidad, autonomía y resonancia = identity, autonomy and resonance. El Escorial (Madrid): Croquis. |
| 15 | A paradigmatic example of this spatial growth yet being a new building but following the old tower typology of the site, and a concrete shell instead of a log construction one, is the Roccolo Tower of Miller&Maranta. |
| 16 | Peter Zumthor explores the limits of the log-construction system through a towers composition which improve the opening possibility of the traditional system in his timber houses Luzi in Jenaz 2002 and Annalisa in Leis 2009. |
| 17 | An example of the Skeuomorphism in log-construction though the weaving of the corners is the Stiva da Morts of Gion A. Caminada in Vrin 1996 yet it is a new building. |
| 18 | The first houses of Gion A. Caminada develop in this way. For example the Caviezel House in Vrin 1995 or the Schmid House in Vals 2000. |
| 19 | The Beckel-Kübler House in Fürstenaubruck 2006 of Gion A. Caminada, although a new building, explores the possibility of an inner division from a core of a timber stud envelope. |
References
- Rivera Blanco, J. Tres restauradores de la arquitectura, Boito, Giovannoni y Torres Balbás: Interrelaciones en la Europa de la primera mitad del siglo XX. Conversaciones Con. 2018, 4, 155–175. Available online: https://revistas.inah.gob.mx/index.php/conversaciones/article/view/11897 (accessed on 25 September 2024).
- Capitel, A. Metamorfosis de Monumentos Y Teorías de la Restauración; Alianza: Madrid, Spain, 2009. [Google Scholar]
- Wong, L. Adaptative Reuse in Architecture. A Typological Index; Birkhäuser: Berlin, Germany, 2023. [Google Scholar]
- Georgescu, A. La Actualización Patrimonial a Través de la Arquitectura Contemporánea; Trea: Gijón, Spain, 2015. [Google Scholar]
- Lüder, I. Widerständige Ressource. Typologie und Gebrauch Historischer Bauernhäuser; Rurale Topografien, Band 17; Transcript Verlag: Bielefeld, Germany, 2022. [Google Scholar] [CrossRef]
- Yin, R.K. Case Study Research. Design and Methods; Sage: London, UK, 1994. [Google Scholar]
- Stake, R.E. The Art of Case Study Research; Sage Publications: Thousand Oaks, CA, USA, 1995. [Google Scholar]
- Cortés, J.A. Paul Frankl, Rudol Wittkower, Colin Rowe. Tres enfoques histórico-formales para el estudio de la arquitectura. Cuad. Proy. Arquit. 2015, 5, 74–83. [Google Scholar]
- Frankl, P. Die Entwicklungsphasen der neueren Baukunst; Teubner: Berlin, Germany, 1914. [Google Scholar]
- Deplazes, A.; Wieser, C. An attempt to classify horizontal and vertical space development. In Constructing Architecture. Materials Processes Structures. A Handbook; Birkhäuser: Basel, Switzerland, 2005; pp. 243–250. [Google Scholar]
- Walker, R. Balkone und Loggien = Balcons et loggias = Balconies and Loggias. Werk Bau. Wohn. 2012, 5, 30–35. [Google Scholar] [CrossRef]
- Das kleinste Detail geflickt. Schrein. Ztg. 2019, 43. Available online: https://www.schreinerzeitung.ch/de/node/60168 (accessed on 25 September 2024).
- Zumthor, P. Peter Zumthor. Buildings and Projects. Zur. Scheidegger Spiess. 2014, II, 1985–2013. [Google Scholar]
- Simonett, C. Die Bauernhäuser des Kantons Graubünden: Die Wohnnauten; Verlag Schweizerische Gesellschaft für Volkskunde: Basel, Switzerland, 1965; Volume 1. [Google Scholar]
- Zumthor, P. Thinking Architecture; Birkhäuser: Basel, Switzerland; Boston, MA, USA; Berlin, Germany, 1999. [Google Scholar]
- Semes, S.W. The Future of the Past: A Conservation Ethic for Architecture, Urbanism, and Historic Preservation; W.W. Norton&Co: New York, NY, USA, 2009. [Google Scholar]
- Muñoz, S. Contemporary Theory of Conservation; Elsevier Butterworth-Heinemann: Amsterdam, The Netherlands, 2005. [Google Scholar]
- Alonso, S. Materialidad poética. Arquitectura Suiza Contemporánea; Diseño: Madrid, Spain, 2021. [Google Scholar]
- Ehemalige Hoteldependance. Walenstadtberg. Holz Bull. Lignum. Umbauen/Verdichten 1992, 31, 434–435.
- Märkli, P.; Mostafavi, M. Approximations the Architecture of Peter Märkli; AA Publications: London, UK, 2002. [Google Scholar]
- Artieda, M. El detalle como Intensificación de la Forma. La Construcción en Madera en la Arquitectura Residencial de Peter Zumthor. Bachelor’s Thesis, University of Zaragoza, Zaragoza, Spain, 2016. [Google Scholar]
Disclaimer/Publisher’s Note: The statements, opinions and data contained in all publications are solely those of the individual author(s) and contributor(s) and not of MDPI and/or the editor(s). MDPI and/or the editor(s) disclaim responsibility for any injury to people or property resulting from any ideas, methods, instructions or products referred to in the content. |
© 2024 by the author. Licensee MDPI, Basel, Switzerland. This article is an open access article distributed under the terms and conditions of the Creative Commons Attribution (CC BY) license (https://creativecommons.org/licenses/by/4.0/).






































