Abstract
In order to assess the impact of the Sanitation by Communities (SANIMAS) program for community-led sanitation in Indonesia (established in 2002), this research work was conducted with the aim of characterizing the current performance of anaerobic baffled reactors (ABRs), which were deployed in high numbers for the provision of domestic wastewater treatment in densely populated urban areas in Malang (Indonesia). Small and decentralized sewage treatment facilities serve ≈3% of the total population in Malang, including 89 ABR treatment plants. Our findings reveal that only 14% of the 89 ABRs in Malang have an acceptable performance with regard to pollutant removal and integrity of their building structure, but the majority of them produce a treated effluent of poor quality, according to discharge consents set by the Ministry of Environment and Forestry of the Republic of Indonesia (Regulation No. P.68/2016). Clearly the lack of consistent operation and maintenance practices have had a detrimental effect on these decentralized sewage treatment systems, despite their robustness and buffer capacity to cope with changes in organic and hydraulic loading rates. Urbanization will continue to exert pressure on the provision of sanitation services in lower and middle economies, and the role of decentralized sewage management systems is expected to be prominent in the UN’s Sustainable Development Goals era (2015–2030); however, sustainable service delivery must be conceived beyond the provision of sanitation infrastructure.
1. Introduction
Indonesia is the fourth most populous country in the world with a population of approximately 263 million people in 2017 and a population density of 146 habitants/km2. Over 50% of the total Indonesian population lives on Java Island, which is the most populated island in Indonesia with 940 habitants/km2 [1]. The majority of the population in Java Island live in cities, which has a detrimental impact on public health and environmental quality due to the limited capacity to provide water and sanitation services at a pace to match urban population growth. A growing population will demand services like water supply, which in return contributes to increasing wastewater discharges into an already under developed sanitation infrastructure. In addition, untreated wastewater discharges add pressure to environmental ecosystems, particularly surface water and groundwater resources [2].
In Indonesia, 95% of on-site and decentralized sanitation infrastructure does not properly confine fecal material and hence, sewage and fecal sludge leakages into the ground or to surface water bodies are very common, with almost inevitable effects of widespread environmental contamination, prevalence of waterborne diseases and other public health risks [3]. Additionally, an estimated 40–60% of urban areas in Indonesia’s cities are unplanned or informal settlements that incrementally developed without proper urban infrastructure standards [4].
The Indonesian government has implemented decentralised wastewater treatment systems to improve public health and environmental quality in urban areas under the national programme for community-led sanitation, Sanitation by Communities (SANIMAS). This program started in 2002 and by 2010 it had already reached over 100 cities across 22 provinces [5]. The SANIMAS program provided several public health engineering interventions including communal septic tanks; communal bathing, washing and toilet facilities; and decentralized sewer networks coupled with small wastewater treatment plants in urban areas. This approach is attracting growing attention in Indonesia, particularly when considering not only the direct participation of local communities but also its flexibility regarding management requirements and low-cost technology [6,7].
As part of the SANIMAS program in Indonesia, the provision of improved sanitation is mainly based on the use of flushing toilets connected to anaerobic baffled reactor (ABR) units, working as upgraded septic tanks for on-site sewage treatment in densely populated urban areas (i.e., one tank per 100–500 households) [8]. Despite their low operating and maintenance costs, high removals of organic matter and solids are expected as well as a reliable buffer capacity to absorb organic and hydraulic shock loadings [8,9,10,11]. However, current ABR units in operation have reported low performance for nutrient (N and P) and pathogen control [12,13]. Water bodies receiving effluents from ABR units are likely to suffer from poor water quality triggered by the presence of nutrients (i.e., eutrophication), that may limit potential economic opportunities (e.g., fluvial transport and fishing) for downstream riverine communities, and pathogens posing public health risks due to the potential transmission of waterborne diseases. Therefore, the long-term sustainability of the SANIMAS program is uncertain.
This research work aims to explore the current coverage and performance of on-site sanitation facilities based on the use of ABR units in urban Malang and to identify current hurdles affecting the long-term sustainability and impact of decentralized sanitation services.
2. Materials and Methods
2.1. Sanitation Facilities Survey
A complementary study on the actual condition and management of decentralized wastewater treatment systems was conducted to investigate the current condition of sanitation facilities in Malang through the availability of secondary data. Secondary data related to the performance of ABR and type of sanitation facilities were provided by the Office of Public Works and Spatial Planning and the Office of Public Health of Malang.
2.2. Wastewater Sampling and Analytical Methods
Grab samples were taken from the influent and effluent of 23 decentralized wastewater treatment systems using ABR units, which were spread over five districts in Malang City. Selected ABRs were chosen based on their structure performance. These samples were taken during the day between March and April 2018. Biological and physicochemical parameters like temperature, pH, dissolved oxygen (DO), biological oxygen demand (BOD), total suspended solids (TSS), ammonium (NH4+), total Kjeldahl nitrogen (TKN), total phosphorus (TP), and total coliforms (TC) were analyzed after sample collection at the Jasa Tirta Laboratory (Malang, Indonesia). Laboratory analyses were performed following standard methods for the examination of wastewater samples [14].
3. Results and Discussion
3.1. Sanitation Facilities in Malang
The SANIMAS program provided several types of sanitation infrastructure in Malang, including communal septic tanks; communal bathing, washing and toilet facilities; and decentralized sewer networks coupled with small wastewater treatment plants in urban areas. However, collected data show that communities in Malang city use the following typologies of sanitation facilities: (a) water-sealed toilet connected to sewer network, but no treatment for all (72%); (b) pit latrine with no proper fecal sludge management (8%); and flushing toilets connected to decentralised wastewater treatment using ABRs (3%). Approximately 17% of the population in Malang still practice open defecation (ODF) (see Figure 1) [15,16].
Figure 1.
Distribution of existing sanitation facilities in Malang city.
Currently, there are 89 ABR sites in Malang city (Figure 2). Those ABRs are distributed in five districts: Blimbing (18), Kedungkandang (19), Klojen (11), Lowokwaru (14) and Sukun (27). ABR units in Malang have been built since 2007, and new units are still to be built. They have been constructed using different funding sources including local community resources, central government funds (e.g., the Special Allocation Fund (DAK)), and foreign donor programs (e.g., the Asian Development Bank (ASD) through the Urban Sanitation and Rural Infrastructure (USRI) project, and the World Bank).
Figure 2.
Location of decentralized sewage treatment systems based on anaerobic baffled reactors (ABR) units in Malang city.
Most of the existing ABRs in Malang were built in slum areas with poor sanitation infrastructure, high population density (150–500 people/ha), low-income communities, illegal settlements, and unplanned residential areas with very narrow streets [17].
However, the implementation of the decentralised wastewater treatment system in Malang has not covered all the intended population yet. The service provided by the decentralized system covers less than 5% of the total population in Malang city with a distribution of coverage per district as follows: Blimbing, 1.78%; Kedungkandan, 2.7%; Klojen, 1.5%; Lowokwaru, 1.89%; and Sukun, 1.89% (see Figure 3). As a consequence, large volumes of untreated or inadequately treated wastewater are discharged into the environment, particularly surrounding surface water bodies, and lead to a detrimental decline in river water quality [18,19].
Figure 3.
Number of ABR users and total population per district in Malang city.
In many urban areas discharging untreated wastewater into rivers still occurs, which causes significant problems related to sediment transport and deposition, and river water quality [20]. The discharge of untreated wastewater not only increases the concentration of nutrients and organic compounds in the aquatic ecosystem but also changes the structure of river communities. Moreover, pathogenic bacteria, viruses and parasitic protozoa from human excreta found in the discharge of septic tanks and untreated sewage also contributes to increased transmission of waterborne diseases, mainly in developing countries [20,21].
3.2. Design Criteria for ABR Units in Indonesia
Design criteria for dimensioning ABR units in Indonesia are reported in national technical standards (i.e., PERMEN PUPR No. 04/2017, Republic of Indonesia) and presented in Table 1.
Table 1.
General design criteria and current condition of ABRs.
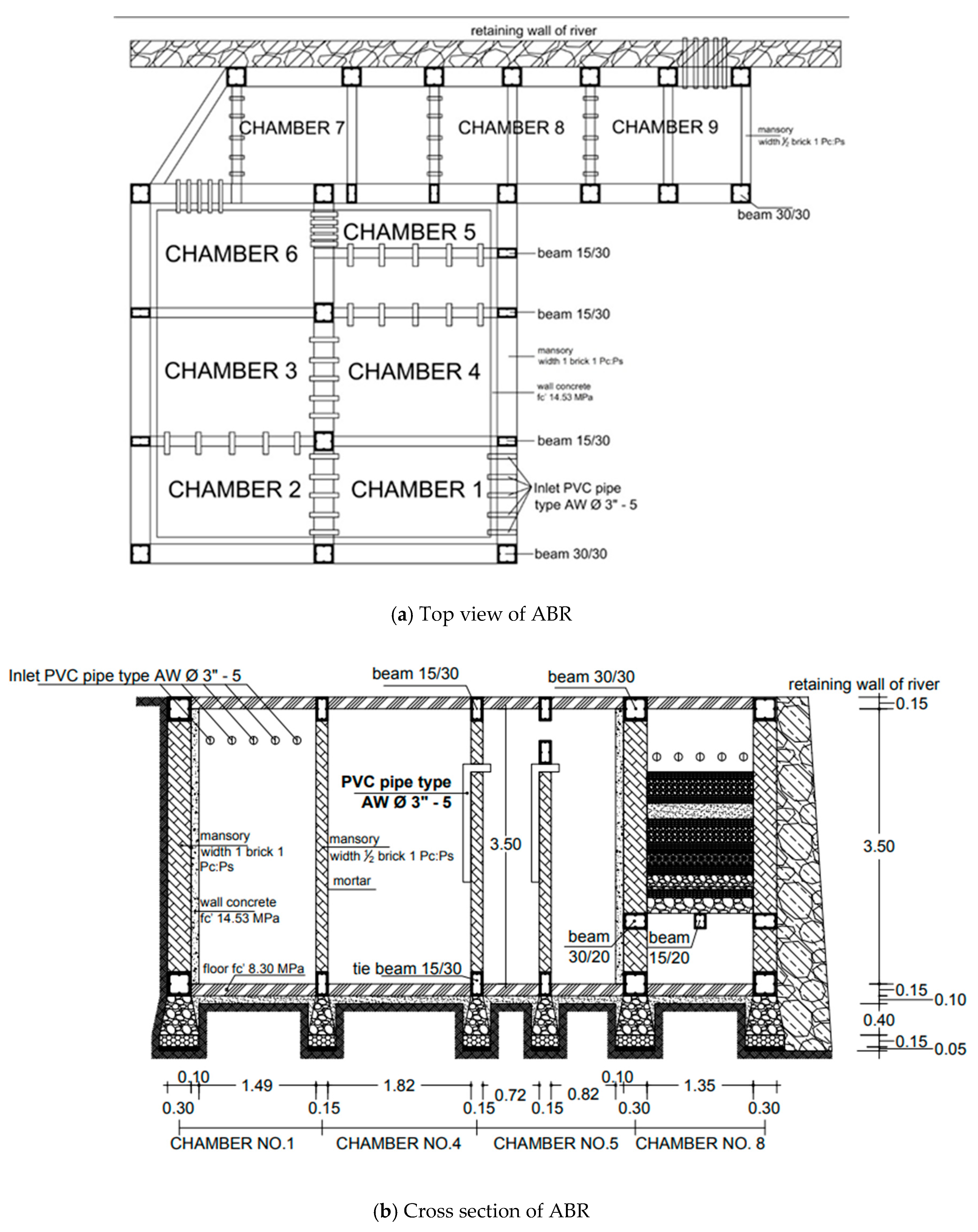
An ABR unit is an improved version of a septic tank with a series of baffles, which force the wastewater to flow along the reactor to reduce short-circuiting and to enhance solids removal; ABRs typically consist of three to six chambers [22,23,24,25]. Figure 4 shows an example of the typical configuration of implemented ABRs located in Bareng, Malang.
Figure 4.
An example of ABR in Malang (scale 1:50). The dimension of the main and support beam are 30 cm of width and 30 cm of height, and 15 cm of width and 30 cm of height respectively. It is supported by the concrete strength of 14.53 MPa. The structure of the wall using 1 brick thickness with mortar ratio between cement and sand is 1:1.
Basic design parameters required to calculate the dimensions of ABR units are presented as follows:
Average daily wastewater flow: The volumetric flow rate of wastewater is the most crucial design criteria for a decentralised wastewater treatment system [24]. In this study, wastewater flow from each monitored ABR unit was estimated from drinking water consumption at household level by assuming that typically 60–80% of water consumed is converted into wastewater flow [24,25]. Figure 5 presents the average daily flow rate of domestic wastewater that flows through ABR units at different locations in Malang city (see Figure 2). Calculations were made considering the number of users connected to ABR units, the average daily water consumption per capita (150 L/p/d) and a return factor of 0.8 [26].
Figure 5.
Wastewater flow design criteria and estimation of current flow rates.
Figure 5 reveals that the actual daily flow rate of wastewater treated in 98% of the ABR units monitored was still lower than the average design flow rate, which was mainly due to the lower number of users connected. This situation was prevalent due to the discrepancy between the infrastructure provided by the local government (i.e., decentralized sewerage and wastewater treatment facilities) and expectations from the community (i.e., it was expected that the community undertake the work required to connect households to the sewer network). However, financial issues were often the most critical factor preventing local communities from undertaking the work needed to properly dispose of their wastewater into the sanitation infrastructure provided. From the data collected in this study, only two ABRs out of 89 were overloaded with a number of users served higher than their design capacity.
Up-flow velocity: The maximum up-flow velocity recommended in ABR units is 2 m/h [23]. This study accessed about 17 ABRs to measure the actual dimensions of the structure and to calculate up-flow velocities. The average up-flow velocity was 0.23 m/h from an interval ranging from 0.10 to 0.42 m/h. These up-flow velocities, calculated based on estimated flow rate, are present in Figure 5. Those results were lower than figures reported for up-flow velocities in ABR units in other regions in Indonesia, which varied from 0.60 to 1.30 m/h [27,28].
Organic loading rate: The average organic loading rate in the ABR units monitored in this study was 0.4 g COD/L/d, which is far below the recommended values (design criterion: 1.2–1.5 g COD/L). As a consequence, ABR units are often underloaded, which promotes higher accumulation of sludge (i.e., septage) in the first chamber but reduces, even more, the amount of nutrients available in the following compartments. That condition inevitably hinders the overall process efficiency as the growth of bacterial biomass will be affected due to the lack of nutrients and long residence times [23].
3.3. Structure Performance of Current ABRs
ABRs in Malang city have been built with funds from different sources since 2007 (see supplementary data), with five new units currently under construction in 2018, three of them were funded by local government budgets (APBD) and the two ABRs were financed by the DAK. Among the total number of current ABR sites in Malang (89 in total), only 14% reported good structural performance while 41% of those have shown acceptable performance and the capacity to remove pollutants from wastewater. On the other hand, the remaining ABR reactors had low performance, and the wastewater effluent did not meet the effluent standards (Figure 6). This performance was evaluated from the construction of ABR itself and whether there was damage in the structure of the plant or the small sewerage system (e.g., cracks). The Office of Public Works and Spatial Planning has categorized the structural performance of ABRs into four types: Good, adequate, bad and very bad (Figure 6).
Figure 6.
Structural performance of ABRs in urban Malang.
Site inspections reported that low maintenance and less community involvement in the operation of the system have a crucial impact on the long-term sustainability and performance of ABRs. With regard to the cost-benefit of ABRs, it was reported that one ABR (serving 320 people) built in Bareng Sub-district of urban Malang cost approximately US$23,440 in 2012, including a US$379 contribution collected from the local community (see detailed design in Figure 4). The total investment was used to cover labor and construction materials for delivery of a decentralized sewer network and a small wastewater treatment plant based on ABRs. The tangible benefits to the community will ultimately depend on the implementation of proper operation and maintenance practices.
3.4. Current Performance of ABR Units
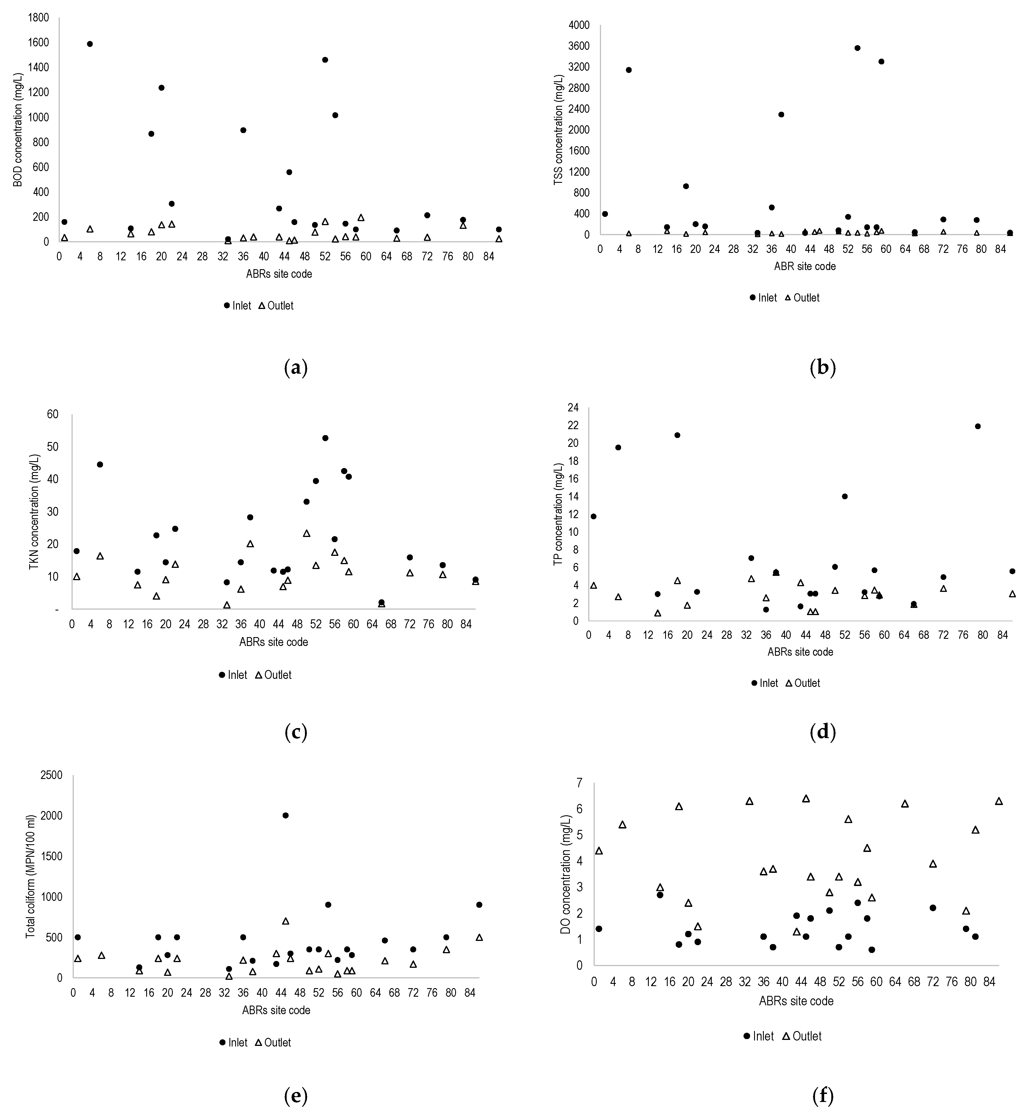
A total of 23 out of 89 wastewater treatment plants in Malang city were visited to collect samples from the influent and effluent of ABR units to assess their performance for further analysis. Figure 7 summarizes the performance of 23 ABR units monitored. The wastewater could be categorized as low to high strength wastewater [29]. BOD concentration in the inlet varied from 21 to 1588 mg/L and fluctuated among the different ABR sites across the city (average BOD = 480 mg/L). On average, BOD removal efficiency was 74%, and BOD effluent concentration was 67 mg/L. The concentration of BOD in the effluent of ABR units monitored was higher than the figure set by Indonesian standards for the discharge of domestic wastewater (BOD < 30 mg/L) [30]. The average removal efficiency of these ABRs was higher than that of the ABR used to treat high strength domestic wastewater in Nepal which was 68% with BOD concentration of raw wastewater of 1594 mg/L [31]. In 2012, Kerstens and his co-worker observed the decentralized wastewater treatment systems (DEWATS) using ABR of nine cities in Indonesia, and those ABR produced BOD effluent concentrations of 50 mg/L [32]. This reveals that majority of BOD concentrations in treated wastewater through ABR systems are still higher than the consent limit.
Figure 7.
Performance of ABR units treating domestic wastewater in Malang. (a) biological oxygen demand (BOD) (discharge consent < 30 mg/L); (b) total suspended solids (TSS) (<30 mg/L); (c) total Kjeldahl nitrogen (TKN); (d) total phosphorus (TP) (<1 mg/L); (e) total coliforms (TC) (<3000 MPN/100 mL); (f) dissolved oxygen (DO) concentration.
The higher effluent concentration found in ABR units might be a result of poor operation and maintenance activities, but also due to design criteria implemented according to previous quality standards that allowed a maximum BOD concentration of 100 mg/L in the effluent of wastewater treatment systems [33].
Similarly, the concentration of TSS in the final effluent was higher than the current discharge consent (TSS < 30 mg/L; [30]. TSS content in raw urban domestic wastewater ranged from 30 mg/L to 3559 mg/L with an average value of 799 mg/L. The average TSS removal efficiency was 66%, as a result, 64% of 23 ABR units monitored did not produce an effluent that met the TSS discharge consent. This, quite low, performance might have been influenced by stormwater since water samples were collected during the rainy season. TSS removal efficiencies in this work were very similar to the results reported by Singh and his co worker, who reported average TSS removal efficiencies in ABRs of 68%, with mean TSS concentrations in raw domestic wastewater of 1506 mg/L [31].
Despite the advantages of ABR units such as low operation and maintenance costs, high removals of organic matter and solids, and resilience to organic and hydraulic shock loading [8,9,10,11], current operating units have reported low performance for nutrient (N and P) and pathogen control [12,13]. The average efficiency for TKN removal found in this research was 43%, and the maximum was 84%. Surprisingly, ammonium removal was also 43%, and most of the visited ABRs produced effluent with ammonium concentrations higher than the desired discharge effluent standard of 10 mg/L. Reynaud and his co-worker observed the performance of ABR in India, Indonesia, and South Africa and reported that nutrient of the effluent of all investigated ABRs systems were comparably high [28]. The highest ammonium removal efficiency found in the study was 84% but the ammonium level in the inlet was 5.78 mg/L, which is lower than the intended target, and came from an ABR unit with good structural performance. In general, the decrease of ammonium level in effluent is due to nitrification processes in ABRs. The average removal of TP was 21%, with more than 90% of the ABR units unable to produce an effluent that met the standard for eutrophication control in fresh water (TP < 1 mg P/L). Our results revealed that average TP in ABRs’ effluents was 3 mg/L with a maximum concentration of 5.5 mg/L. Low TP removal efficiencies were probably caused by systems working underloaded (N/P < 5); under such conditions, nutrient deficiency may have led to less bacterial activity and therefore, less biological nutrient uptake [23]. It was expected that phosphorus removal in anaerobic conditions would be lower than under aerobic conditions [34]. Water bodies receiving effluents from ABR units are likely to suffer from poor water quality triggered by the presence of nutrients (e.g., eutrophication), which may limit potential economic opportunities (e.g., fluvial transport and fishing) for riverine communities located downstream, and pathogens pose public health risks due to the possible transmission of waterborne diseases.
TC concentrations in the final effluent were lower than the discharge consent (3000 MPN/100 mL), but it is worth mentioning that the concentration in the inlet was below the intended target. It is assumed that most of the TC were accumulated in the sludge that settles in the first chamber of ABRs. Surprisingly, the average oxygen content increased from an average of 2 mg/L to 4 mg/L in inlet and outlet respectively. Khalekuzzaman and his co-worker also reported that dissolved oxygen was higher in the effluent [35]. This indicates oxic/anoxic conditions occur in ABR for organic biodegradation and nitrification/denitrification processes [29]. The oxygen concentration is safe for aquatic life to sustain fish breeding [23].
In general, the quality of the effluent from ABR units in Malang does not meet the quality standards set in the regulations issued by the Ministry of Environment and Forestry of the Republic of Indonesia (Regulation No. P.68/2016). Therefore, the emphasis on community empowerment to involve them more in the actual planning, operation and maintenance are crucial to achieve sustainable sanitation service delivery in existing and future facilities.
4. Conclusions
In this study, 14% of the 89 ABR units assessed had an excellent structural performance with 61% showing medium to low performance. ABR units tested contributed to domestic wastewater treatment, but their final effluent did not meet the Indonesian criteria for the discharge of treated domestic wastewater into surface water bodies. Several parameters were analyzed to investigate the performance of ABR units in Malang city. On average, the removal efficiency for BOD, TSS, NH4+, and TP were 74%, 66%, 43% and 21%, respectively. DO concentration in the effluent was higher than 3 mg/L, which is suitable for aquatic life and especially for fish breeding. TC concentration in the raw wastewater was lower than the set standard, and this may be due to dilution with rainwater as the sampling survey took place during the rainy season. It was assumed that most of the faecal bacteria were accumulated in the sludge inside ABRs. Therefore, further investigation is still needed to improve urban planning and current ABR design criteria, operation and maintenance to achieve sustainability in the delivery of sanitation services in Malang.
Supplementary Materials
The following are available online at https://www.mdpi.com/2227-9717/7/4/184/s1.
Author Contributions
Conceptualization, A.Y. and M.A.C.-V.; methodology, S.S.; validation, M.A.C.-V.; formal analysis, A.Y.; investigation, N.S.; resources, M.M.; data curation, N.S.; writing—original draft preparation, A.Y.; writing—review and editing, M.A.C.-V.; visualization, E.T.R.; supervision, A.Y.; project administration, H.S.; funding acquisition, A.Y. and M.A.C.-V.
Funding
This research was funded by the Ministry of Research Technology and Higher Education of the Republic of Indonesia, grant number no. 1.3.55/UN 32.14/LT/2018.
Acknowledgments
The authors are very grateful to the Ministry of Research Technology and Higher Education of the Republic of Indonesia through International Research Collaboration and Publication for the financial support given to this study.
Conflicts of Interest
The authors declare no conflict of interest. All authors have participated in (a) conception and design, or analysis and interpretation of the data; (b) drafting the article or revising it critically for important intellectual content; and (c) approval of the final version. This manuscript has not been submitted to, nor is under review at, another journal or other publishing venues.
References
- WSP. Lessons in Urban Sanitation Development Indonesia Sanitation Sector Development Program 2006–2010. In Water and Sanitation Program; Joseph, R., Raman, V., Galing, E., Eds.; WSP: Washington, DC, USA, 2011. [Google Scholar]
- Edokpayi, J.N.; Odiyo, J.O.; Durowoju, O.S. Impact of Wastewater on Surface Water Quality in Developing Countries: A Case Study of South Africa. In Water Quality; Tutu, H., Ed.; INTECH: London, UK, 2017. [Google Scholar]
- WSP. Assessment of Sludge Accumulation and Pit Filling Rates in Indonesia; WSP: Jakarta, Indonesia, 2013. [Google Scholar]
- Juliman, D. Water and Sanitation Issues in Indonesia; UN Habitat: Jakarta, Indonesia, 2009; Available online: www.fukuoka.unhabitat.org/kcap/activities/egm/2009/pdf/juliman_water_en.pdf (accessed on 30 April 2017).
- ADB. Indonesia: Water Supply and Sanitation Sector Assessment, Strategy, and Road Map. In Water Supply and Sanitation; Asian Development Bank: Mandaluyong, Philipines, 2012. [Google Scholar]
- Massoud, M.A.; Tarhini, A.; Nasr, J.A. Decentralized approaches to wastewater treatment andment: Applicability in developing countries. J. Environ. Manag. 2009, 90, 652–659. [Google Scholar] [CrossRef] [PubMed]
- Chirisa, I.; Bandauko, E.; Matamanda, A.; Mandisvika, G. Decentralized domestic wastewater systems in developing countries: The case study of Harare (Zimbabwe). Appl. Water Sci. 2017, 7, 1069–1078. [Google Scholar] [CrossRef]
- WSP. Review of Community-Managed Decentralized Wastewater Treatment Systems in Indonesia. In Water and Sanitation Program; Drees-Gross, F., Ghosh, S.M., Iyer, P., Sarkar, S., Eds.; The World Bank: Washington, DC, USA, 2013. [Google Scholar]
- Barber, W.P.; Stuckey, D.C. The Use of The Anaerobic Baffled Reactor (ABR) for Wastewater Treatment: A Review. Water Res. 1999, 33, 1559–1578. [Google Scholar] [CrossRef]
- Razif, M.; Hamid, A. Performance comparison of Anaerobic Filter and Anaerobic Baffled Reactor for wastewater treatment of shopping centre in Surabaya (Perbandingan kinerja IPAL Anaerobic Filter dengan Anaerobic Baffled Reactor untuk implementasi di Pusat Perbelanjaan Kota Surabaya). In Seminar Nasional Pascasarjana XIV–ITS; Program Pascasarjana ITS: Surabaya, Indonesia, 2016. [Google Scholar]
- Reynaud, N.S. Operation of Decentralised Wastewater Treatment Systems (DEWATS) under tropical field conditions. In Faculty of Environmental Sciences; Technical University: Dresden, Germany, 2014. [Google Scholar]
- Aqaneghad, M.; Moussavi, G. Electrochemically enhancement of the anaerobic baffled reactor performance as an appropriate technology for treatment of municipal wastewater in developing countries. Sustain. Environ. Res. 2016, 26, 203–208. [Google Scholar] [CrossRef]
- Pillay, S.; Foxon, K.M.; Buckley, C.A. An anaerobic baffled reactor/membrane bioreactor (ABR/MBR) for on-site sanitation in low income areas. Desalination 2008, 231, 91–98. [Google Scholar] [CrossRef]
- APHA. Standard Methods for the Examination of Water and Wastewater, 22th ed.; American Public Health Association: Washington, DC, USA, 2012. [Google Scholar]
- DPUPR. Recapitulation of the Monitoring and Evaluation Results of the Decentralised Wastewater Treatment Plant—Malang City in 2017 (Rekapitulasi Hasil Monitoring dan Evaluasi IPAL Komunal-Kota Malang Tahun 2017); Endang, T.R., Ed.; Office of Public Works and Spatial Planning of Malang: Malang, Indonesia, 2017. [Google Scholar]
- DINKES-MALANG. Residents with Access to Proper Sanitation Facilities According to Toilet Types, District, and Health Centre of Malang City in 2017 (Penduduk dengan Akses Terhadap Fasilitas Sanitasi yang Layak (Jamban Sehat) Menurut Jenis Jamban, Kecamatan, dan Puskesmas Kota Malang Tahun 2017); Malang City Health Department: Malang, Indonesia, 2017.
- Djonoputro, E.R.; Isabel, B.; Almud, W.; Alfred, L.; Reini, S.; Ikabul, A.; Job, S. Affordable Sanitation Option for the Specific Area (Opsi Sanitasi Yang Terjangkau Untuk Daerah Spesifik); Yuliarsa, Y., Ed.; Water and Sanitation Prgram, East Asia and the Pacific: Jakarta, Indonesia, 2011. [Google Scholar]
- Syaiful, A. The Pollution in Brantas River is Getting Worse. In Radar Malang; Jawa Pos: Malang, Indonesia, 2018. [Google Scholar]
- Riyadi, A.; Rachmansyah, A.; Yanuwiadi, B. Water Pollution Index Approaches in Spatial Planning in City Tourism Area (Case Study: Malang Area). J. Indones. Tour. Dev. Stud. 2018, 6, 136–142. [Google Scholar] [CrossRef]
- Martínez-Santos, M.; Lanzén, A.; Unda-Calvo, J.; Martín, L.; Garbisu, C.; Ruiz-Romera, E. Links between data on chemical and biological quality parameters in wastewater-impacted river sediment and water samples. Data Br. 2018, 19, 616–622. [Google Scholar] [CrossRef] [PubMed]
- Islam, M.M.M.; Sokolova, E.; Hofstra, N. Modelling of river faecal indicator bacteria dynamics as a basis for faecal contamination reduction. J. Hydrol. 2018, 563, 1000–1008. [Google Scholar] [CrossRef]
- Elizabeth, T.; Lukas, U.; Christoph, L.; Philippe, R.; Christian, Z. Compendium of Sanitation Systems and Technologies; Zurbrügg, C., Williams, C., Parkinson, J., Eds.; Volume 2nd revised version; Eawag: Swiss Federal Institute of Aquatic Science and Technology, Department Water and Sanitation in Developing Countries (Sandec.): Dubendorf, Switzerland, 2014. [Google Scholar]
- Sasse, L. DEWATS Decentralised Wastewater Treatment in Developing Countries; BORDA: Bremen, Germany, 1998. [Google Scholar]
- Götzenberger, J. Praxis-oriented Training Manual DEWATS; Barathsibi, R.P., Rani, V.U., Devika, R., Eds.; Centre for Urban Water Resources, DHAN Foundation: Madurai, India, 2009. [Google Scholar]
- Hadimuljono, M.B. Regulation of the Public Works and Human Settlement of Republic of Indonesia No. 4/2017 for Domestic Wastewater Treatment System (Peraturan Menteri Pekerjaan Umum dan Perumahan Rakyat Republik Indonesia No. 04/PRT/M/2017 tentang Penyelenggaraan Sistem Pengolahan Air Limbah Domestik); Rakyat, P.U.d.P., Ed.; Dirjen Peraturan Perundang-Undangan Kementrian Hukum dan Hak Asasi Manusia, Republik Indonesia: Jakarta, Indonesia, 2017.
- Rahayu, E.T. Water consumption in Malang. In Penelitian Kerjasama Luar Negeri; Yulistyorini, A., Ed.; Public Works and Spatial Planning Office of Malang: Malang, Indonesia, 2018. [Google Scholar]
- Reynaud, N.; Buckley, A.C. The anaerobic baffled reactor (ABR) treating communal wastewater under mesophilic conditions: A review. Water Sci. Technol. 2016, 73, 463–478. [Google Scholar] [CrossRef] [PubMed]
- Reynaud, N.; Buckley, C. Field-data on parameters relevant for design, operation and monitoring of communal decentralized wastewater treatment systems (DEWATS). Water Pract. Technol. 2015, 10, 787–798. [Google Scholar] [CrossRef]
- Metcalf and Eddy. Wastewater Engineering: Treatment and Reuse; Tchobanoglous, G., Burton, F.L., Stensel, H.D., Eds.; McGraw Hill: New York, NY, USA, 2004. [Google Scholar]
- PERMENLHK. Regulation of Ministry of Environment and Forestry of the Republic of Indonesia No. P.68/2016 for Discharge Standard of Wastewater Effluent(Peraturan Menteri Negara Lingkungan Hidup dan Kehutanan Nomor: P.68/MENLHK/Setjen/Kum.1/8/2016 Tentang Baku Mutu Air Limbah Domestik). In Nomor: P.68/MENLHK/Setjen/Kum.1/8/2016; Krisna, R., Ed.; Menteri Lingkungan Hidup dan Kehutanan Republik Indonesia: Jakarta, Indonesia, 2016. [Google Scholar]
- Singh, S.; Haberl, R.; Moog, O.; Shrestha, R.R.; Shrestha, P.; Shrestha, R. Performance of an anaerobic baffled reactor and hybrid constructed wetland treating high-strength wastewater in Nepal—A model for DEWATS. Ecol. Eng. 2009, 35, 654–660. [Google Scholar] [CrossRef]
- Kerstens, S.M.; Legowo, H.B.; Gupta, H.I.B. Evaluation of DEWATS in Java, Indonesia. J. Water Sanit. Hyg. Dev. 2012, 2, 254–265. [Google Scholar] [CrossRef]
- PERMENLH. Regulation of the Ministry of Environment No. 5/2014 for Discharge Standard of Wastewater Effluent (Peraturan Menteri Lingkungan Hidup Republik Indonesia Nomor 5 Tahun 2014 Tentang Baku Mutu Air Limbah). In Nomor 5 Tahun 2014; Rosa, V.R., Ed.; Kementrian Negara Lingkungan Hidup Republik Indonesia: Jakarta, Indonesia, 2014. [Google Scholar]
- De-Bashan, L.E.; Bashan, Y. Recent advances in removing phosphorus from wastewater and its future use as fertilizer (1997–2003). Water Res. 2004, 38, 4222–4246. [Google Scholar] [CrossRef] [PubMed]
- Khalekuzzaman, M.; Alamgir, M.; Hasan, M.; Hasan, M.N. Performance comparison of uninsulated and insulated hybrid anaerobic baffled reactor (HABR) operating at warm temperature. Water Sci. Technol. 2018, 78, 1879–1892. [Google Scholar] [CrossRef] [PubMed]
© 2019 by the authors. Licensee MDPI, Basel, Switzerland. This article is an open access article distributed under the terms and conditions of the Creative Commons Attribution (CC BY) license (http://creativecommons.org/licenses/by/4.0/).






