Development of a CFD Model to Study the Fundamental Phenomena Associated with Biomass Combustion in a Grate-Fired Boiler
Abstract
1. Introduction
2. The Grate-Fired Boiler: Case Study
3. CFD Simulation Methodology
3.1. Fuel Bed Conversion Model
3.2. Gas-Phase Combustion Model
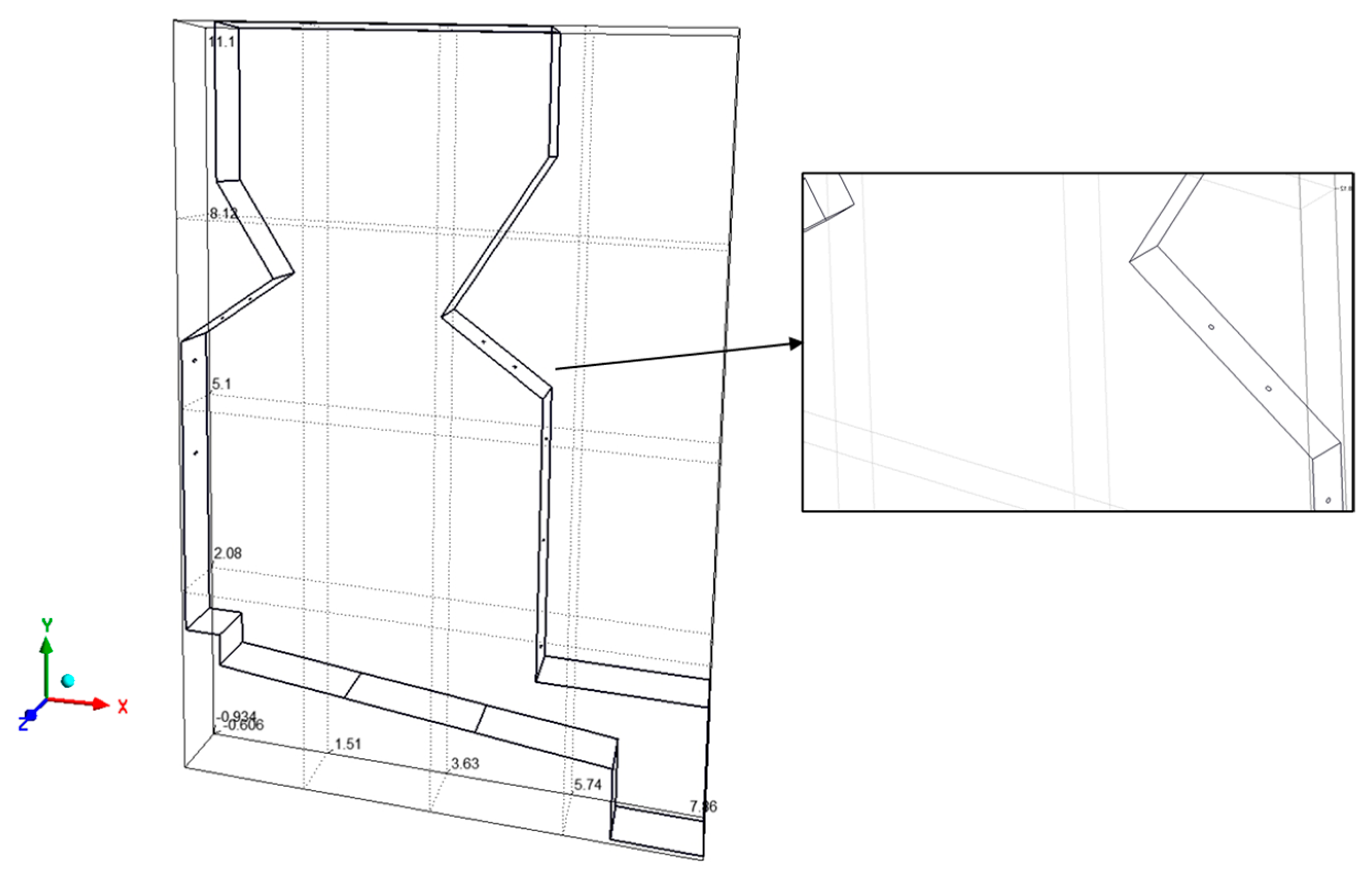
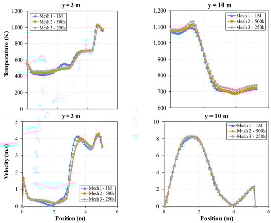
3.3. Geometrical Model and Mesh
4. Results and Discussion
4.1. Nominal Conditions
4.2. Influence of the Biomass Conversion on the Grate
4.3. Sensitivity Analysis of the Air Supply Conditions
5. Conclusions
- The proposed CFD approach, coupled with a simplified bed model based on an experimentally derived volatile composition, proved effective in capturing the spatial evolution of combustion within the furnace. It serves as a practical engineering tool for analyzing design and nominal operating conditions.
- The simulations revealed the central role of the furnace’s contraction zone in shaping flow and combustion behavior. The flue gas tended to concentrate, driven by geometry, leading to temperature and velocity gradients downstream. CO emissions from the rear grate sections were found to be less completely oxidized under this configuration.
- Scenarios in which char combustion was shifted toward the rear of the grate resulted in temperature imbalances near boiler walls and increased reliance on secondary air jet penetration. Maintaining combustion toward the front sections improved CO oxidation and overall temperature uniformity.
- Adjusting the primary-to-secondary-air split ratio to 40/60 significantly enhanced secondary air jet penetration, improving mixing and reducing CO emissions by over 50% compared to the base case. This underscores the importance of secondary air injection design for effective pollutant control and thermal performance.
- Increasing the primary air temperature led to localized temperature gains and reduced CO emissions, particularly near the right boiler wall. However, this also introduced potential risks, such as increased thermal NOx formation and material degradation, suggesting the need for further evaluation before implementation.
Author Contributions
Funding
Data Availability Statement
Acknowledgments
Conflicts of Interest
Abbreviations
| Pre-exponential factor (s−1) or empirical constant (-) | |
| Specific heat (J/kg.K) | |
| Activation energy (J/mol) | |
| Mass flow rate (kg/s) | |
| Heat flux (W) | |
| Energy (J) | |
| Temperature (K) | |
| Temperature exponent (-) | |
| Mass fraction (-) | |
| Initial | |
| Instantaneous | |
| Radiation | |
| Volatiles |
References
- da Costa, T.P.; Quinteiro, P.; Tarelho, L.A.d.C.; Arroja, L.; Dias, A.C. Environmental impacts of forest biomass-to-energy conversion technologies: Grate furnace vs. fluidised bed furnace. J. Clean. Prod. 2018, 171, 153–162. [Google Scholar] [CrossRef]
- Chaney, J.; Liu, H.; Li, J. An overview of CFD modelling of small-scale fixed-bed biomass pellet boilers with preliminary results from a simplified approach. Energy Convers. Manag. 2012, 63, 149–156. [Google Scholar] [CrossRef]
- Khodaei, H.; Al-Abdeli, Y.M.; Guzzomi, F.; Yeoh, G.H. An overview of processes and considerations in the modelling of fixed-bed biomass combustion. Energy 2015, 88, 946–972. [Google Scholar] [CrossRef]
- Silva, J.P.; Teixeira, S.; Peters, B.; Teixeira, J.C. Survey of Existing Literature Data on the Biomass Combustion Behavior in Industrial Grate-Fired Boilers. In Proceedings of the ASME 2021 International Mechanical Engineering Congress and Exposition, Virtual, 1–5 November 2021; American Society of Mechanical Engineers: New York, NY, USA, 2021; Volume 8A: Energy. [Google Scholar] [CrossRef]
- Kim, S.; Shin, D.; Choi, S. Comparative evaluation of municipal solid waste incinerator designs by flow simulation. Combust. Flame 1996, 106, 241–251. [Google Scholar] [CrossRef]
- Griselin, N.; Bai, X.S. Particle Dynamics in a Biomass-Fired Furnace—Predictions of Solid Residence Changes with Operation. IFRF Combust. J. 2000, 30, 3290616. [Google Scholar]
- Frey, H.-H.; Peters, B.; Hunsinger, H.; Vehlow, J. Characterization of municipal solid waste combustion in a grate furnace. Waste Manag. 2003, 23, 689–701. [Google Scholar] [CrossRef] [PubMed]
- Scharler, R.; Obernberger, I. Numerical Modelling of Biomass Grate Furnaces. In Proceedings of the 5th Conference on Industrial Furnaces and Boilers, Porto, Portugal, 11–14 April 2000; Volume 17. [Google Scholar]
- Scharler, R.; Fleckl, T.; Obernberge, I. Modification of a Magnussen Constant of the Eddy Dissipation Model for biomass grate furnaces by means of hot gas in-situ FT-IR absorption spectroscopy, Progress in Computational Fluid Dynamics. Int. J. 2003, 3, 102. [Google Scholar] [CrossRef]
- Klason, T.; Bai, X.S. Combustion process in a biomass grate fired industry furnace: A CFD study. Prog. Comput. Fluid Dyn. Int. J. 2006, 6, 278. [Google Scholar] [CrossRef]
- Klason, T.; Bai, X.S.; Bahador, M.; Nilsson, T.K.; Sundén, B. Investigation of radiative heat transfer in fixed bed biomass furnaces. Fuel 2008, 87, 2141–2153. [Google Scholar] [CrossRef]
- Yin, C.; Rosendahl, L.A.; Kær, S.K.; Clausen, S.; Hvid, S.L.; Hille, T. Mathematical modeling and experimental study of biomass combustion in a thermal 108 MW grate-fired boiler. Energy Fuels 2008, 22, 1380–1390. [Google Scholar] [CrossRef]
- Yin, C.; Rosendahl, L.; Clausen, S.; Hvid, S.L. Characterizing and modeling of an 88 MW grate-fired boiler burning wheat straw: Experience and lessons. Energy 2012, 41, 473–482. [Google Scholar] [CrossRef]
- Paper, C.; Universit, F.A.; Costa, M.; National, I.; Universit, A.M.; Pegaso, T. Experimental and numerical analysis of a waste-to-energy plant operation. In Proceedings of the ASME-ATI-UIT 2015 Conference on Thermal Energy Systems: Production, Storage, Utilization and the Environment, Napoli, Italy, 17–20 May 2015. [Google Scholar]
- Costa, M.; Curcio, C.; Piazzullo, D.; Rocco, V.; Tuccillo, R. RDF incineration modelling trough thermo-chemical conversion and gaseous combustion coupling. Energy 2018, 161, 974–987. [Google Scholar] [CrossRef]
- Tu, Y.; Zhou, A.; Xu, M.; Yang, W.; Siah, K.B.; Prabakaran, S. Experimental and numerical study on the combustion of a 32 MW wood-chip grate boiler with internal flue gas recirculation technology. Energy Procedia 2017, 143, 591–598. [Google Scholar] [CrossRef]
- Tu, Y.; Zhou, A.; Xu, M.; Yang, W.; Siah, K.B.; Subbaiah, P. NOX reduction in a 40 t/h biomass fired grate boiler using internal flue gas recirculation technology. Appl. Energy 2018, 220, 962–973. [Google Scholar] [CrossRef]
- Kær, S.K. Numerical modelling of a straw-fired grate boiler. Fuel 2004, 83, 1183–1190. [Google Scholar] [CrossRef]
- Huttunen, M.; Kjäldman, L.; Saastamoinen, J. Analysis of grate firing of wood with numerical flow simulation. IFRF Combust. J. 2004, 18, 200401. [Google Scholar]
- Goddard, C.D.; Yang, Y.B.; Goodfellow, J.; Sharifi, V.N.; Swithenbank, J.; Chartier, J.; Mouquet, D.; Kirkman, R.; Barlow, D.; Moseley, S. Optimisation study of a large waste-to-energy plant using computational modelling and experimental measurements. J. Energy Inst. 2005, 78, 106–116. [Google Scholar] [CrossRef]
- Kær, S.K. Straw combustion on slow-moving grates—A comparison of model predictions with experimental data. Biomass Bioenergy 2005, 28, 307–320. [Google Scholar] [CrossRef]
- Yang, Y.B.; Newman, R.; Sharifi, V.; Swithenbank, J.; Ariss, J. Mathematical modelling of straw combustion in a 38 MWe power plant furnace and effect of operating conditions. Fuel 2007, 86, 129–142. [Google Scholar] [CrossRef]
- Venturini, P.; Borello, D.; Iossa, C.; Lentini, D.; Rispoli, F. Modeling of multiphase combustion and deposit formation in a biomass-fed furnace. Energy 2010, 35, 3008–3021. [Google Scholar] [CrossRef]
- Yu, Z.; Ma, X.; Liao, Y. Mathematical modeling of combustion in a grate-fired boiler burning straw and effect of operating conditions under air- and oxygen-enriched atmospheres. Renew. Energy 2010, 35, 895–903. [Google Scholar] [CrossRef]
- Zhang, X.; Chen, Q.; Bradford, R.; Sharifi, V.; Swithenbank, J. Experimental investigation and mathematical modelling of wood combustion in a moving grate boiler. Fuel Process. Technol. 2010, 91, 1491–1499. [Google Scholar] [CrossRef]
- Cordiner, S.; Manni, A.; Mulone, V.; Rocco, V. A Detailed Study of a Multi-MW Biomass Combustor by Numerical Analysis: Evaluation of Fuel Characteristics Impact. Energy Procedia 2014, 61, 751–755. [Google Scholar] [CrossRef]
- Chen, Q.; Zhang, X.; Zhou, J.; Sharifi, V.N.; Swithenbank, J. Effects of Flue Gas Recirculation on Emissions from a Small Scale Wood Chip Fired Boiler. Energy Procedia 2015, 66, 65–68. [Google Scholar] [CrossRef]
- Costa, M.; Dell’Isola, M.; Massarotti, N. Numerical analysis of the thermo-fluid-dynamic field in the combustion chamber of an incinerator plant. Energy 2009, 34, 2075–2086. [Google Scholar] [CrossRef]
- Costa, M.; Dell’Isola, M.; Massarotti, N. Temperature and residence time of the combustion products in a waste-to-energy plant. Fuel 2012, 102, 92–105. [Google Scholar] [CrossRef]
- Costa, M.; Indrizzi, V.; Massarotti, N.; Mauro, A. Modeling and optimization of an incinerator plant for the reduction of the environmental impact. Int. J. Numer. Methods Heat Fluid Flow 2015, 25, 1463–1487. [Google Scholar] [CrossRef]
- Rajh, B.; Yin, C.; Samec, N.; Hriberšek, M.; Zadravec, M. Advanced modelling and testing of a 13 MWth waste wood-fired grate boiler with recycled flue gas. Energy Convers. Manag. 2016, 125, 230–241. [Google Scholar] [CrossRef]
- Rajh, B.; Yin, C.; Samec, N.; Hriberšek, M.; Kokalj, F.; Zadravec, M. Advanced CFD modelling of air and recycled flue gas staging in a waste wood-fired grate boiler for higher combustion efficiency and greater environmental benefits. J. Environ. Manag. 2018, 218, 200–208. [Google Scholar] [CrossRef]
- Yang, Y.B.; Goh, Y.R.; Zakaria, R.; Nasserzadeh, V.; Swithenbank, J. Mathematical modelling of MSW incineration on a travelling bed. Waste Manag. 2002, 22, 369–380. [Google Scholar] [CrossRef]
- Duffy, N.T.M.; Eaton, J.A. Investigation of factors affecting channelling in fixed-bed solid fuel combustion using CFD. Combust. Flame 2013, 160, 2204–2220. [Google Scholar] [CrossRef]
- Duffy, N.T.M.; Eaton, J.A. Investigation of 3D flow and heat transfer in solid-fuel grate combustion: Measures to reduce high-temperature degradation. Combust. Flame 2016, 167, 422–443. [Google Scholar] [CrossRef]
- Galletti, C.; Giomo, V.; Giorgetti, S.; Leoni, P.; Tognotti, L. Biomass furnace for externally fired gas turbine: Development and validation of the numerical model. Appl. Therm. Eng. 2016, 96, 372–384. [Google Scholar] [CrossRef]
- Patronelli, S.; Antonelli, M.; Tognotti, L.; Galletti, C. Combustion of wood-chips in a small-scale fixed-bed boiler: Validation of the numerical model through in-flame measurements. Fuel 2018, 221, 128–137. [Google Scholar] [CrossRef]
- Mätzing, H.; Gehrmann, H.-J.; Seifert, H.; Stapf, D. Modelling grate combustion of biomass and low rank fuels with CFD application. Waste Manag. 2018, 78, 686–697. [Google Scholar] [CrossRef]
- Netzer, C.; Li, T.; Seidel, L.; Mauß, F.; Løvås, T. Stochastic Reactor-Based Fuel Bed Model for Grate Furnaces. Energy Fuels 2020, 34, 16599–16612. [Google Scholar] [CrossRef]
- Simsek, E.; Brosch, B.; Wirtz, S.; Scherer, V.; Krüll, F. Numerical simulation of grate firing systems using a coupled CFD/discrete element method (DEM). Powder Technol. 2009, 193, 266–273. [Google Scholar] [CrossRef]
- Mahmoudi, A.H.; Besseron, X.; Hoffmann, F.; Markovic, M.; Peters, B. Modeling of the biomass combustion on a forward acting grate using XDEM. Chem. Eng. Sci. 2016, 142, 32–41. [Google Scholar] [CrossRef]
- Wissing, F.; Wirtz, S.; Scherer, V. Simulating municipal solid waste incineration with a DEM/CFD method—Influences of waste properties, grate and furnace design. Fuel 2017, 206, 638–656. [Google Scholar] [CrossRef]
- Somwangthanaroj, S.; Fukuda, S. CFD modeling of biomass grate combustion using a steady-state discrete particle model (DPM) approach. Renew. Energy 2019, 148, 363–373. [Google Scholar] [CrossRef]
- Jordan, C.; Harasek, M. Improvement of a combustion unit based on a grate furnace for granular dry solid biofuels using CFD methods. Heat Transf. Eng. 2010, 31, 774–781. [Google Scholar] [CrossRef]
- Kurz, D.; Schnell, U.; Scheffknecht, G. CFD simulation of wood chip combustion on a grate using an Euler–Euler approach. Combust. Theory Model. 2012, 16, 251–273. [Google Scholar] [CrossRef]
- Kurz, D.; Schnell, U.; Scheffknecht, G. Euler-Euler simulation of wood chip combustion on a grate—Effect of fuel moisture content and full scale application. Prog. Comput. Fluid Dyn. Int. J. 2013, 13, 322. [Google Scholar] [CrossRef]
- Karim, M.R.; Naser, J. CFD modelling of combustion and associated emission of wet woody biomass in a 4 MW moving grate boiler. Fuel 2018, 222, 656–674. [Google Scholar] [CrossRef]
- Rezeau, A.; Díez, L.I.; Royo, J.; Díaz-Ramírez, M. Efficient diagnosis of grate-fired biomass boilers by a simplified CFD-based approach. Fuel Process. Technol. 2018, 171, 318–329. [Google Scholar] [CrossRef]
- Bermúdez, C.A.; Porteiro, J.; Varela, L.G.; Chapela, S.; Patiño, D. Three-dimensional CFD simulation of a large-scale grate-fired biomass furnace. Fuel Process. Technol. 2020, 198, 106219. [Google Scholar] [CrossRef]
- Zadravec, T.; Yin, C.; Kokalj, F.; Samec, N.; Rajh, B. The impacts of different profiles of the grate inlet conditions on freeboard CFD in a waste wood-fired grate boiler. Appl. Energy 2020, 268, 115055. [Google Scholar] [CrossRef]
- Costa, M.; Massarotti, N.; Indrizzi, V.; Rajh, B.; Yin, C.; Samec, N. Engineering bed models for solid fuel conversion process in grate-fired boilers. Energy 2014, 77, 244–253. [Google Scholar] [CrossRef]
- Thunman, H.; Niklasson, F.; Johnsson, F.; Leckner, B. Composition of volatile gases and thermochemical properties of wood for modeling of fixed or fluidized beds. Energy Fuels 2001, 15, 1488–1497. [Google Scholar] [CrossRef]
- Neves, D.; Thunman, H.; Matos, A.; Tarelho, L.; Gómez-Barea, A. Characterization and prediction of biomass pyrolysis products. Prog. Energy Combust. Sci. 2011, 37, 611–630. [Google Scholar] [CrossRef]
- Mehrabian, R.; Shiehnejadhesar, A.; Scharler, R.; Obernberger, I. Multi-physics modelling of packed bed biomass combustion. Fuel 2014, 122, 164–178. [Google Scholar] [CrossRef]
- Wilcox, B. Steam: Its Generation and Use, 40th ed.; Babcock & Wilcox Enterprises, Inc.: Barberton, South Africa, 1992. [Google Scholar]
- Silva, J.P.; Teixeira, S.; Grilo, É.; Peters, B.; Teixeira, J.C. Analysis and monitoring of the combustion performance in a biomass power plant. Clean. Eng. Technol. 2021, 5, 100334. [Google Scholar] [CrossRef]
- Silva, J.P.; Teixeira, S.; Teixeira, J.C. Characterization of the physicochemical and thermal properties of different forest residues. Biomass Bioenergy 2023, 175, 106870. [Google Scholar] [CrossRef]
- Silva, J.; Castro, C.; Teixeira, S.; Teixeira, J. Evaluation of the Gas Emissions during the Thermochemical Conversion of Eucalyptus Woodchips. Processes 2022, 10, 2413. [Google Scholar] [CrossRef]
- Fraga, L.G.; Silva, J.; Teixeira, J.C.; Ferreira, M.E.C.; Teixeira, S.F.; Vilarinho, C.; Gonçalves, M.M. Study of Mass Loss and Elemental Analysis of Pine Wood Pellets in a Small-Scale Reactor. Energies 2022, 15, 5253. [Google Scholar] [CrossRef]
- Silva, J.P.; Teixeira, S.; Teixeira, J.C. Thermogravimetric Assessment and Kinetic Analysis of Forestry Residues Combustion. Energies 2025, 18, 3299. [Google Scholar] [CrossRef]
- Yang, Y.B.; Yamauchi, H.; Nasserzadeh, V.; Swithenbank, J. Effects of fuel devolatilisation on the combustion of wood chips and incineration of simulated municipal solid wastes in a packed bed. Fuel 2003, 82, 2205–2221. [Google Scholar] [CrossRef]
- Magnussen, B.F.; Hjertager, B.H. On mathematical modeling of turbulent combustion with special emphasis on soot formation and combustion. Symp. Int. Combust. 1977, 16, 719–729. [Google Scholar] [CrossRef]
- Magnussen, B. On the structure of turbulence and a generalized eddy dissipation concept for chemical reaction in turbulent flow. In Proceedings of the 19th Aerospace Sciences Meeting, St. Louis, MO, USA, 12–15 January 1981; American Institute of Aeronautics and Astronautics: Reston, VA, USA, 1981. [Google Scholar] [CrossRef]
- Chapela, S.; Porteiro, J.; Costa, M. Effect of the Turbulence–Chemistry Interaction in Packed-Bed Biomass Combustion. Energy Fuels 2017, 31, 9967–9982. [Google Scholar] [CrossRef]
- Shiehnejadhesar, A.; Mehrabian, R.; Scharler, R.; Goldin, G.M.; Obernberger, I. Development of a gas phase combustion model suitable for low and high turbulence conditions. Fuel 2014, 126, 177–187. [Google Scholar] [CrossRef]
- Shiehnejadhesar, A.; Scharler, R.; Mehrabian, R.; Obernberger, I. Development and validation of CFD models for gas phase reactions in biomass grate furnaces considering gas streak formation above the packed bed. Fuel Process. Technol. 2015, 139, 142–158. [Google Scholar] [CrossRef]
- Rajh, B.; Yin, C.; Samec, N. CFD modeling and experience of waste-to-energy plant burning waste wood. In Proceedings of the 14th International Waste Management and Landfill Symposium, Cagliari, Italy, 30 September–4 October 2013; Volume 13. [Google Scholar]
- Strempek, J.R.; Jorgensen, K.L. Use of Numerical Modeling to Compare Overfire Air Systems on Stoker-Fired Furnaces. In Proceedings of the ASME 2008 International Mechanical Engineering Congress and Exposition, Boston, MA, USA, 31 October–6 November 2008; Volume 9. [Google Scholar] [CrossRef]
- Su, X.; Ma, L.; Fang, Q.; Yin, C.; Zhuang, H.; Qiao, Y.; Zhang, C.; Chen, G. Optimizing biomass combustion in a 130 t/h grate boiler: Assessing gas-phase reaction models and primary air distribution strategies. Appl. Therm. Eng. 2024, 238, 122043. [Google Scholar] [CrossRef]
- Su, X.; Fang, Q.; Ma, L.; Zhang, C.; Chen, G.; Yin, C.; Yang, W. Efficient and low-NO combustion in a grate-fired boiler by feeding biomass non-uniformly along grate width: An integrated modeling study with experimental validation. Energy 2024, 312, 133583. [Google Scholar] [CrossRef]
- Choi, C.; Choi, W.S.; Choi, J.H.; Kim, W.J.; Shin, D. Reducing CO emissions through a secondary air nozzle retrofit based on the jet penetration factor and the momentum flux ratio of a commercial wood waste incinerator. Appl. Therm. Eng. 2017, 118, 101–112. [Google Scholar] [CrossRef]
- Jorgensen, K.L.; Wessel, R.; Strempek, J. Numerical Simulation of Combustion Air Systems for Large Industrial Boilers. In Proceedings of the ASME 2002 International Mechanical Engineering Congress and Exposition, New Orleans, LA, USA, 17–22 November 2002; p. 8. [Google Scholar]
- Yin, C.; Rosendahl, L.A.; Søren, K. Grate-firing of biomass for heat and power production. Prog. Energy Combust. Sci. 2008, 34, 725–754. [Google Scholar] [CrossRef]
- Yan, M.; Antoni; Wang, J.; Hantoko, D.; Kanchanatip, E. Numerical investigation of MSW combustion influenced by air preheating in a full-scale moving grate incinerator. Fuel 2021, 285, 119193. [Google Scholar] [CrossRef]













| Parameter | Value |
|---|---|
| Fuel flow rate (kg/s) | 12,200 |
| Fuel temperature (K) | 293.15 |
| Air temperature (K) | 293.15 |
| Primary air flow rate (m3/h) | 33,150 |
| Secondary air flow rate (m3/h) | 13,250 |
| Chemical Reaction | Reaction Order | |||
|---|---|---|---|---|
| Equation (7) | 5.012 × 1011 | 0 | 2 × 108 | |
| Equation (8) | 9.87 × 108 | 0 | 3.1 × 107 | |
| Equation (9) | 2.239 × 1012 | 0 | 1.702 × 108 |
| Biomass Conversion (%) | Case 2 | Case 3 | Case 4 | Baseline | |
|---|---|---|---|---|---|
| Drying | Section 1 | 50 | 40 | 80 | 70 |
| Section 2 | 0 | 0 | 0 | 0 | |
| Section 3 | 0 | 0 | 0 | 0 | |
| Devolatilization | Section 1 | 60 | 80 | 50 | 60 |
| Section 2 | 40 | 20 | 50 | 40 | |
| Section 3 | 0 | 0 | 0 | 0 | |
| Char Oxidation | Section 1 | 0 | 5 | 0 | 0 |
| Section 2 | 70 | 75 | 50 | 60 | |
| Section 3 | 10 | 5 | 30 | 20 | |
Disclaimer/Publisher’s Note: The statements, opinions and data contained in all publications are solely those of the individual author(s) and contributor(s) and not of MDPI and/or the editor(s). MDPI and/or the editor(s) disclaim responsibility for any injury to people or property resulting from any ideas, methods, instructions or products referred to in the content. |
© 2025 by the authors. Licensee MDPI, Basel, Switzerland. This article is an open access article distributed under the terms and conditions of the Creative Commons Attribution (CC BY) license (https://creativecommons.org/licenses/by/4.0/).
Share and Cite
Silva, J.P.; Teixeira, S.; Teixeira, J.C. Development of a CFD Model to Study the Fundamental Phenomena Associated with Biomass Combustion in a Grate-Fired Boiler. Processes 2025, 13, 2617. https://doi.org/10.3390/pr13082617
Silva JP, Teixeira S, Teixeira JC. Development of a CFD Model to Study the Fundamental Phenomena Associated with Biomass Combustion in a Grate-Fired Boiler. Processes. 2025; 13(8):2617. https://doi.org/10.3390/pr13082617
Chicago/Turabian StyleSilva, João Pedro, Senhorinha Teixeira, and José Carlos Teixeira. 2025. "Development of a CFD Model to Study the Fundamental Phenomena Associated with Biomass Combustion in a Grate-Fired Boiler" Processes 13, no. 8: 2617. https://doi.org/10.3390/pr13082617
APA StyleSilva, J. P., Teixeira, S., & Teixeira, J. C. (2025). Development of a CFD Model to Study the Fundamental Phenomena Associated with Biomass Combustion in a Grate-Fired Boiler. Processes, 13(8), 2617. https://doi.org/10.3390/pr13082617

