Design and Development of a 3D Digital Cadastre Visualization Prototype
Abstract
1. Introduction
2. An Overview of Previous Relevant Studies
3. Design and Development of the 3D Digital Cadastre Prototype
3.1. Data
3.2. Users and Requirements
3.3. Implementation
- It meets some of the key requirements in Table 1 such as open-source, web-based, mobile friendly, and platform independence.
- WebGL is a popular 3D visualization engine and it grows quickly with the support of many involved users.
- WebGL technology has already been evaluated by Shojaei et al. [27] and it satisfies many 3D cadastral visualization requirements.
- Authors have extensive experience with developing this technology.
3.3.1. Features
3.3.2. Technical Development Considerations
4. Usability Evaluation
4.1. Choosing the Prototype Testers
4.2. Usability Evaluation of the Prototype
- The questions are technology agnostic, which make the method flexible enough to evaluate a wide range of applications.
- The method is simple and fast for participants and administrators.
- The method provides a score which is simple to understand to assess usability.
- The survey is non-proprietary, making it a cost-effective tool as well.
5. Discussion and Conclusions
Author Contributions
Funding
Acknowledgments
Conflicts of Interest
References
- Aien, A.; Kalantari, M.; Rajabifard, A.; Williamson, I.; Shojaei, D. Developing and Testing a 3D Cadastral Data Model: A Case Study in Australia. XXII ISPRS Congress; ISPRS Annals of the Photogrammetry: Melbourne, Australia, 2012. [Google Scholar]
- Soon, K.H. A Conceptual Framework of Representing Semantics for 3D Cadastre in Singapore. In Proceedings of the 3rd International Workshop on 3D Cadastres: Developments and Practices, Shenzhen, China, 25–26 October 2012. [Google Scholar]
- LINZ Cadastral Survey (Compulsory Lodgment of Digital Cadastral Survey Datasets) Order 2007. Available online: http://www.legislation.govt.nz/regulation/public/2007/0215/latest/DLM444505.html?search=ts_regulation%40deemedreg_cadastral_resel_25_a&p=1 (accessed on 16 January 2018).
- ICSM. Cadastre 2034 Strategy Powering Land and Real Property. March 2015. Available online: https://www.icsm.gov.au/sites/default/files/Cadastre2034.pdf (accessed on 23 August 2018).
- Aien, A.; Rajabifard, A.; Kalantari, M.; Shojaei, D. Integrating Legal and Physical Dimensions of Urban Environments. Int. J. Geo-Inf. 2015, 4, 1442–1479. [Google Scholar] [CrossRef]
- Shojaei, D. 3D Cadastral Visualisation: Understanding Users’ Requirements. Ph.D. Thesis, The University of Melbourne, Melbourne, Australia, 2014. [Google Scholar]
- Shojaei, D.; Olfat, H.; Quinones Faundez, S.; Kalantari, M.; Rajabifard, A.; Briffa, M. Geometrical data validation in 3D digital cadaster—A case study for Victoria, Australia. Land Use Policy J. 2017, 68, 638–648. [Google Scholar] [CrossRef]
- Coors, V. 3D-GIS in Networking Environments. Comput. Environ. Urban Syst. 2003, 27, 345–357. [Google Scholar] [CrossRef]
- Stoter, J.; Salzmann, M. Towards a 3D Cadastre: Where Do Cadastral Needs and Technical Possibilities Meet? Comput. Environ. Urban Syst. 2003, 27, 395–410. [Google Scholar] [CrossRef]
- Stoter, J.E. 3D Cadastre. Ph.D. Thesis, TU Delft, Delft, The Netherlands, 2004. [Google Scholar]
- Lemmen, C.; Van Oosterom, P.; Thompson, R.; Hespanha, J.; Uitermark, H. The Modelling of Spatial Units (Parcels) in the Land Administration Domain Model (LADM). In Proceedings of the FIG Congress 2010, Sydney, Australia, 11–16 April 2010. [Google Scholar]
- Dimovski, V.; Bundaleska-Pecalevska, M.; Cubrinoski, A.; Lazoroska, T. WEB Portal for Dissemination of Spatial Data and Services for the Needs of the Agency for Real Estate Cadastre of the Republic of Macedonia (AREC). In Proceedings of the 2nd International Workshop on 3D Cadastres, Delft, The Netherlands, 16–18 November 2011. [Google Scholar]
- Aditya, T.; Iswanto, F.; Wirawan, A.; Laksono, D.P. 3D Cadastre Web Map: Prospects and Developments. In Proceedings of the 2nd International Workshop on 3D Cadastres, Delft, The Netherlands, 16–18 November 2011; Fendel, E., van Oosterom, P., Ploeger, H., Stoter, J., Streilein, A., Tijssen, T., Eds.; [Google Scholar]
- Guo, R.; Li, L.; He, B.; Luo, P.; Ying, S.; Zhao, Z.; Jiang, R. 3D Cadastre in China—A Case Study in Shenzhen City. In Proceedings of the 2nd International Workshop on 3D Cadastres, Delft, The Netherlands, 16–18 November 2011. [Google Scholar]
- Chiang, H.-C. Data Modelling and Application of 3D Cadastral in Taiwan. In Proceedings of the 3rd International Workshop on 3D Cadastres: Developments and Practices, Shenzhen, China, 25–26 October 2012. [Google Scholar]
- Vandysheva, N.; Sapelnikov, S.; Van Oosterom, P.; De Vries, M.; Spiering, B.; Wouters, R.; Hogeveen, A.; Penkov, V. The 3D Cadastre Prototype and Pilot in the Russian Federation. In Proceedings of the FIG Working Week, Rome, Italy, 6–10 May 2012. [Google Scholar]
- Elizarova, G.; Sapelnikov, S.; Vandysheva, N.; Pakhomov, S. Russian Federation. In Russian-Dutch Project “3D Cadastre Modelling in Russia”. In Proceedings of the 3rd International Workshop on 3D Cadastres: Developments and Practices, Shenzhen, China, 25–26 October 2012. [Google Scholar]
- Shojaei, D.; Rajabifard, A.; Kalantari, M.; Bishop, I.D.; Aien, A. Development of a 3D ePlan/LandXML Visualisation System in Australia. In Proceedings of the 3rd International Workshop on 3D Cadastres: Developments and Practices, Shenzhen, China, 25–26 October 2012. [Google Scholar]
- Ying, S.; Guo, R.; Li, L.; He, B. Application of 3D GIS to 3D Cadastre in Urban Environment. In Proceedings of the 3rd International Workshop on 3D Cadastres: Developments and Practices, Shenzhen, China, 25–26 October 2012. [Google Scholar]
- Jamil, H.; Mohd Yusoff, M.Y.; Abdul Halim, N.Z. Discovering Possibilities of Implementing Multipurpose Cadastre in Malaysia. In Proceedings of the FIG Working Week 2013, Abuja, Nigeria, 6–10 May 2013. [Google Scholar]
- Ammar, R.K.; Neeraj, D. SLRB Bahrain—3D Property Registration System. In Proceedings of the 5th Land Administration Domain Model Workshop, Kuala Lumpur, Malaysia, 24–25 September 2013. [Google Scholar]
- Zulkifli, N.A.; Abdul Rahman, A.; Van Oosterom, P. Developing 2D and 3D Cadastral Registration System based on LADM: Illustrated with Malaysian Cases. In Proceedings of the 5th Land Administration Domain Model Workshop, Kuala Lumpur, Malaysia, 24–25 September 2013. [Google Scholar]
- Budisusanto, Y.; Aditya, T.; Muryamto, R. LADM Implementation Prototype for 3D Cadastre Information System of Multi-Level Apartment in Indonesia. In Proceedings of the 5th Land Administration Domain Model Workshop, Kuala Lumpur, Malaysia, 24–25 September 2013. [Google Scholar]
- Guo, R.; Li, L.; Ying, S.; Luo, P.; He, B.; Jiang, R. Developing a 3D cadastre for the administration of urban land use: A case study of Shenzhen, China. Comput. Environ. Urban Syst. 2013, 40, 46–55. [Google Scholar] [CrossRef]
- Shojaei, D.; Kalantari, M.; Bishop, I.D.; Rajabifard, A.; Aien, A. Visualization requirements for 3D cadastral systems. Comput. Environ. Urban Syst. 2013, 41, 39–54. [Google Scholar] [CrossRef]
- Guo, R.; Luo, F.; Zhao, Z.; He, B.; Li, L.; Luo, P.; Ying, S. The Applications and Practices of 3D Cadastre in Shenzhen. In Proceedings of the 4th International Workshop on 3D Cadastres, Dubai, United Arab Emirates, 9–11 November 2014. [Google Scholar]
- Shojaei, D.; Rajabifard, A.; Kalantari, M.; Bishop, I.D.; Aien, A. Design and Development of a Web-based 3D Cadastral Visualisation Prototype. Int. J. Digit. Earth 2014, 8, 538–557. [Google Scholar] [CrossRef]
- Ribeiro, A.; Duarte de Almeida, J.-P.; Ellul, C. Exploring CityEngine as a Visualization Tool for 3D Cadastre. In Proceedings of the 4th International Workshop on 3D Cadastres, Dubai, United Arab Emirates, 9–11 November 2014. [Google Scholar]
- Pouliot, J. Visualization, Distribution and Delivery of 3D Parcels. In Proceedings of the 2nd International Workshop on 3D Cadastres, Delft, The Netherlands, 16–18 November 2011. [Google Scholar]
- Van Oosterom, P. Summary of the Third International FIG Workshop on 3D Cadastres–Developments and Practices. In Proceedings of the Third International FIG Workshop on 3D Cadastres—Developments and Practices, Shenzhen, China, 25–26 October 2012. [Google Scholar]
- Pouliot, J.; Ellul, C.; Hubert, F.; Wang, C.; Rajabifard, A.; Kalantari, M.; Shojaei, D.; Atazadeh, B.; Van Oosterom, P.; De Vries, M.; et al. Visualization and New Opportunities. In Best Practices 3D Cadastres: Extended Version; FIG Publication: Copenhagen, Denmark, 2018; Chapter 5; pp. 183–230. [Google Scholar]
- Atazadeh, B.; Kalantari, M.; Rajabifard, A.; Ho, S.; Ngo, T. Building information modelling for high-rise land administration. J. Trans. GIS 2016, 21, 91–113. [Google Scholar] [CrossRef]
- Aien, A.; Rajabifard, A.; Kalantari, M.; Williamson, I.P.; Shojaei, D. 3D Cadastre in Victoria, Converting Building plans of Subdivision to LandXML. GIM Int. 2011, 25, 16–21. [Google Scholar]
- Stoter, J.; Ploeger, H.; Roes, R.; van der Riet, E.; Biljecki, F.; Ledoux, H.; Kok, D.; Kim, S. Registration of Multi-Level Property Rights in 3D in The Netherlands: Two Cases and Next Steps in Further Implementation. Int. J. Geo-Inf. 2017, 6, 158. [Google Scholar] [CrossRef]
- Gulliver, T.; Haanen, A.; Goodin, M. A 3D Digital Cadastre for New Zealand and the International Opportunity. Int. J. Geo-Inf. 2017, 6, 375. [Google Scholar] [CrossRef]
- Yin, R.K. Case Study Research: Design and Methods; SAGE Publications: Thousand Oaks, CA, USA, 1994. [Google Scholar]
- Aien, A.; Kalantari, M.; Rajabifard, A.; Williamson, I.; Wallace, J. Towards Integration of 3D Legal and Physical Objects in Cadastral Data Models. Land Use Policy 2013, 35, 140–154. [Google Scholar] [CrossRef]
- Aien, A.; Rajabifard, A.; Kalantari, M.; Williamson, I.; Shojaei, M. Development of XML Schemas for Implementation of a 3D Cadastral Data Model. In Proceedings of the 4th International Workshop on 3D Cadastres, Dubai, UAE, 9–11 November 2014. [Google Scholar]
- Victorian Consolidated Regulations (2011). Subdivision (Registrar’s Requirements) Regulations 2011. Retrieved 24 September 2015. Available online: http://www5.austlii.edu.au/au/legis/vic/consol_reg/srr2011538/ (accessed on 24 September 2018).
- Kotonya, G.; Sommerville, I. Requirements Engineering: Processes and Techniques; John Wiley & Sons Ltd.: New York, NY, USA, 1998. [Google Scholar]
- Bangor, A.; Kortum, P.T.; Miller, J.T. An Empirical Evaluation of the System Usability Scale. International. J. Hum.-Comput. Interact. 2008, 24, 574–594. [Google Scholar] [CrossRef]






| Requirements | |||
|---|---|---|---|
| Navigation Tools | PDF Visualization | Indoor View | Identify Tool |
| Select Objects | Plan View | Model View | Underground View |
| Platform Independence | Layer and Object Control | Visualization of Results of Functions & Queries | Color and Style |
| Transparency | Search | Measurement Tools | Labels |
| Shadow | Web-based | Open-Source | Mobile Friendly |
| Cross-section View | User Friendly | Physical Model Visualization | Legal Model Visualization |
| SUS Statements | 0 Strongly Disagree | 1 Disagree | 2 Neither | 3 Agree | 4 Strongly Agree |
|---|---|---|---|---|---|
| 1. I think that I would like to use this system frequently | 0% | 11% | 32% | 32% | 25% |
| 2. I found the system unnecessarily complex | 39% | 43% | 11% | 7% | 0% |
| 3. I thought the system was easy to use | 0% | 7% | 29% | 39% | 25% |
| 4. I think that I would need the support of a technical person to be able to use this system | 32% | 32% | 14% | 18% | 4% |
| 5. I found the various functions in this system were well integrated | 0% | 7% | 29% | 50% | 14% |
| 6. I thought there was too much inconsistency in this system | 36% | 43% | 14% | 4% | 3% |
| 7. I would imagine that most people would learn to use this system very quickly | 10% | 4% | 18% | 43% | 25% |
| 8. I found the system very cumbersome to use | 32% | 50% | 11% | 7% | 0% |
| 9. I felt very confident using the system | 3% | 7% | 36% | 36% | 18% |
| 10. I needed to learn a lot of things before I could get going with this system | 36% | 29% | 11% | 21% | 3% |
| Category | Participants’ Feedback | The Team’s Responses/Actions |
|---|---|---|
| Data | “The prototype should be able to show boundary information as the primary function. All building features are secondary to title boundary”. “Better way of showing the location of building boundaries in the prototype can facilitate interpreting the boundary locations (e.g., interior face)”. | This shows the significance of boundary delimitation in the prototype which can be improved. For example, the identify tool can be customized in a way to show the type of boundary as there are four types (Median, Exterior, Interior, Other) in Victoria. |
| “Architectural design might not be compatible with the survey plan (as-built)”. | A new measurement may be required at the time of defining legal objects to assure there is no discrepancy between the model and as-built. | |
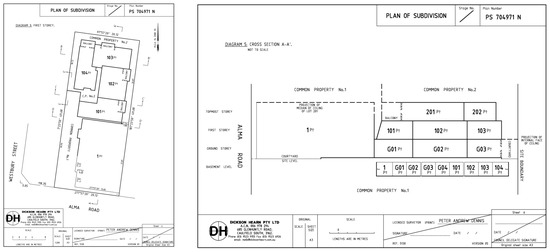
| “Common property needs to be shown between the lots (wall, ceiling, floors) if applicable”. | One of the current challenges in the prototype is visualizing the common property spaces which reside in the walls, ceiling and floors between legal objects. These may contain infrastructure of buildings such as pipes, cables, ducts, etc. As Figure 6 shows, the highlighted wall belongs to common property number one and is not shown in the prototype as a common property space. Visualizing such objects in the 3D model will result in a complex visualization. That is why they are not visualized in the prototype and similar to the subdivision plan, they are defined as the below notation in the prototype: | |
| “Common property must be linked to lots to show the connections”. | This will be considered as a future enhancement. | |
| “The prototype must be able to show everything on the plan diagram, or it cannot replace the plan as title diagram”. | The prototype will be compared with the plan to include all the details. | |
| “Remove walls that not showing building boundaries (internal walls)”. | This needs to be investigated further. | |
| “Add all physical components (e.g., pipes, and cables) to help with Owners Corporation disputes resolution process”. | Adding them to the 3D model can help in a case of dispute. However, in this model, there was no access to the utility network objects. | |
| System | “Parcel areas, Owners Corporation membership, street address, and title information (Volume/Folio) should be shown when selecting lots” | This is considered as a future enhancement. |
| “Snap is required in measurement tool. Also, user should be able to move the end points after placing them in the prototype for measurements”. | This is considered as a future enhancement. | |
| “Need to show bearings and distances to fully define parcels”. | The model needs to be updated to show the boundary location by bearing and distance. | |
| “When the camera goes underground, the base map should be shown as a transparent layer”. | This is considered as a future enhancement. | |
| “Showing height and depth limitations”. | This needs further investigation as it is difficult to show unlimited ownership rights. |
© 2018 by the authors. Licensee MDPI, Basel, Switzerland. This article is an open access article distributed under the terms and conditions of the Creative Commons Attribution (CC BY) license (http://creativecommons.org/licenses/by/4.0/).
Share and Cite
Shojaei, D.; Olfat, H.; Rajabifard, A.; Briffa, M. Design and Development of a 3D Digital Cadastre Visualization Prototype. ISPRS Int. J. Geo-Inf. 2018, 7, 384. https://doi.org/10.3390/ijgi7100384
Shojaei D, Olfat H, Rajabifard A, Briffa M. Design and Development of a 3D Digital Cadastre Visualization Prototype. ISPRS International Journal of Geo-Information. 2018; 7(10):384. https://doi.org/10.3390/ijgi7100384
Chicago/Turabian StyleShojaei, Davood, Hamed Olfat, Abbas Rajabifard, and Mark Briffa. 2018. "Design and Development of a 3D Digital Cadastre Visualization Prototype" ISPRS International Journal of Geo-Information 7, no. 10: 384. https://doi.org/10.3390/ijgi7100384
APA StyleShojaei, D., Olfat, H., Rajabifard, A., & Briffa, M. (2018). Design and Development of a 3D Digital Cadastre Visualization Prototype. ISPRS International Journal of Geo-Information, 7(10), 384. https://doi.org/10.3390/ijgi7100384

