The Spread of Tibetan Buddhism in Mongolia from the 16th to the 17th Century: The Spatial Formation of the World Heritage Site Erdene Zuu Monastery
Abstract
1. Introduction
2. The Ground Plan of Erdene Zuu and the “Black-Ink Inscription”
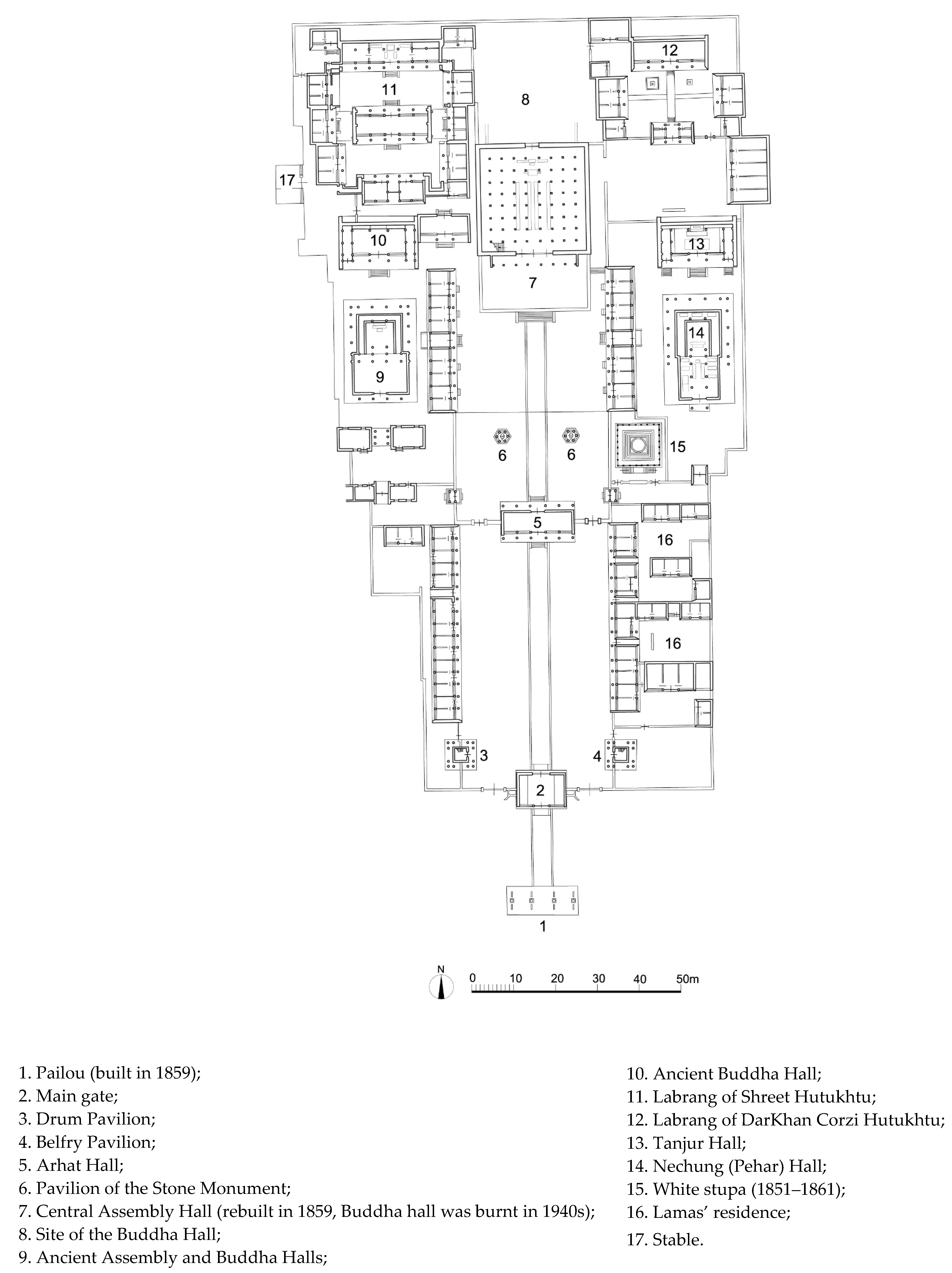
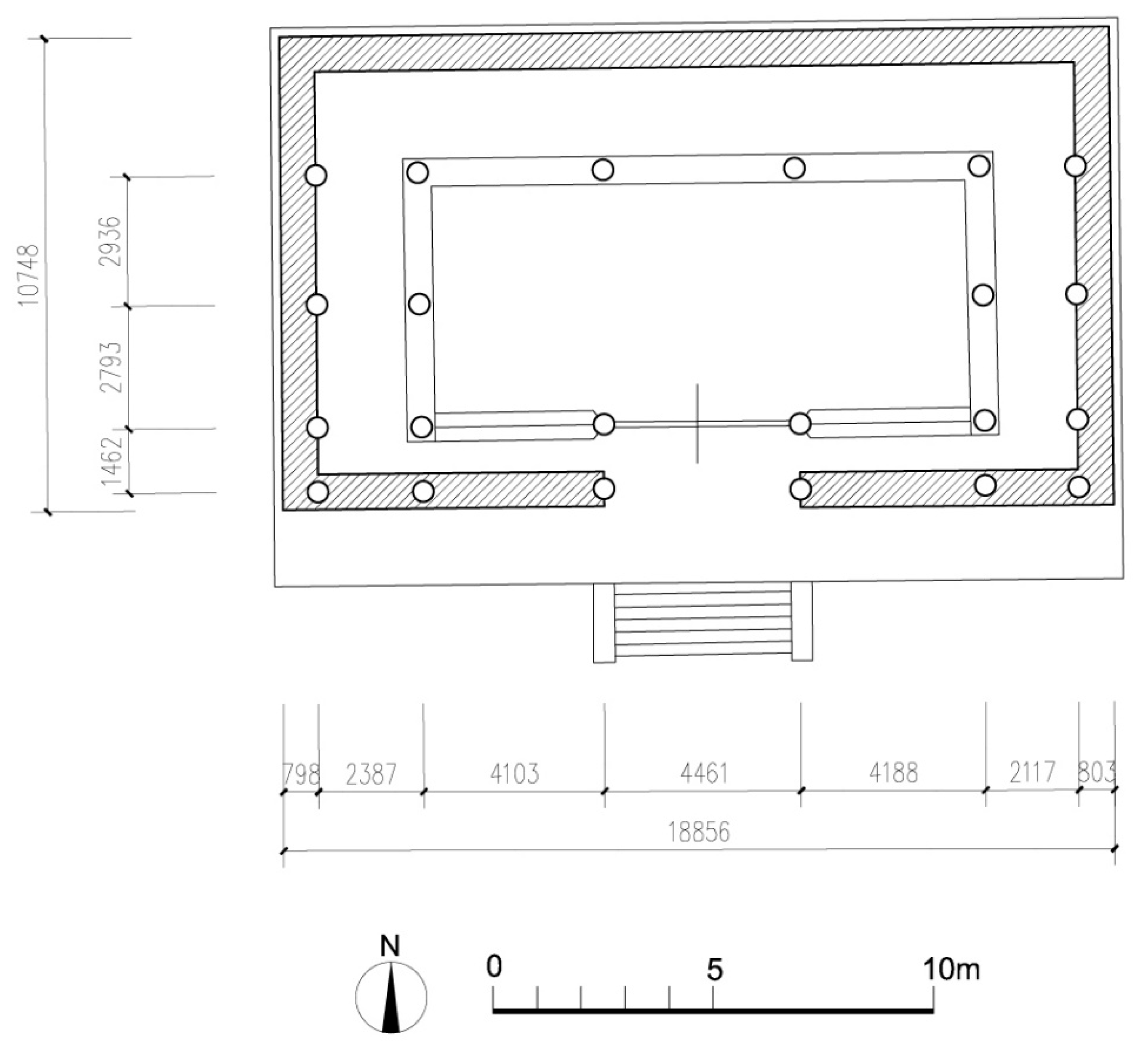
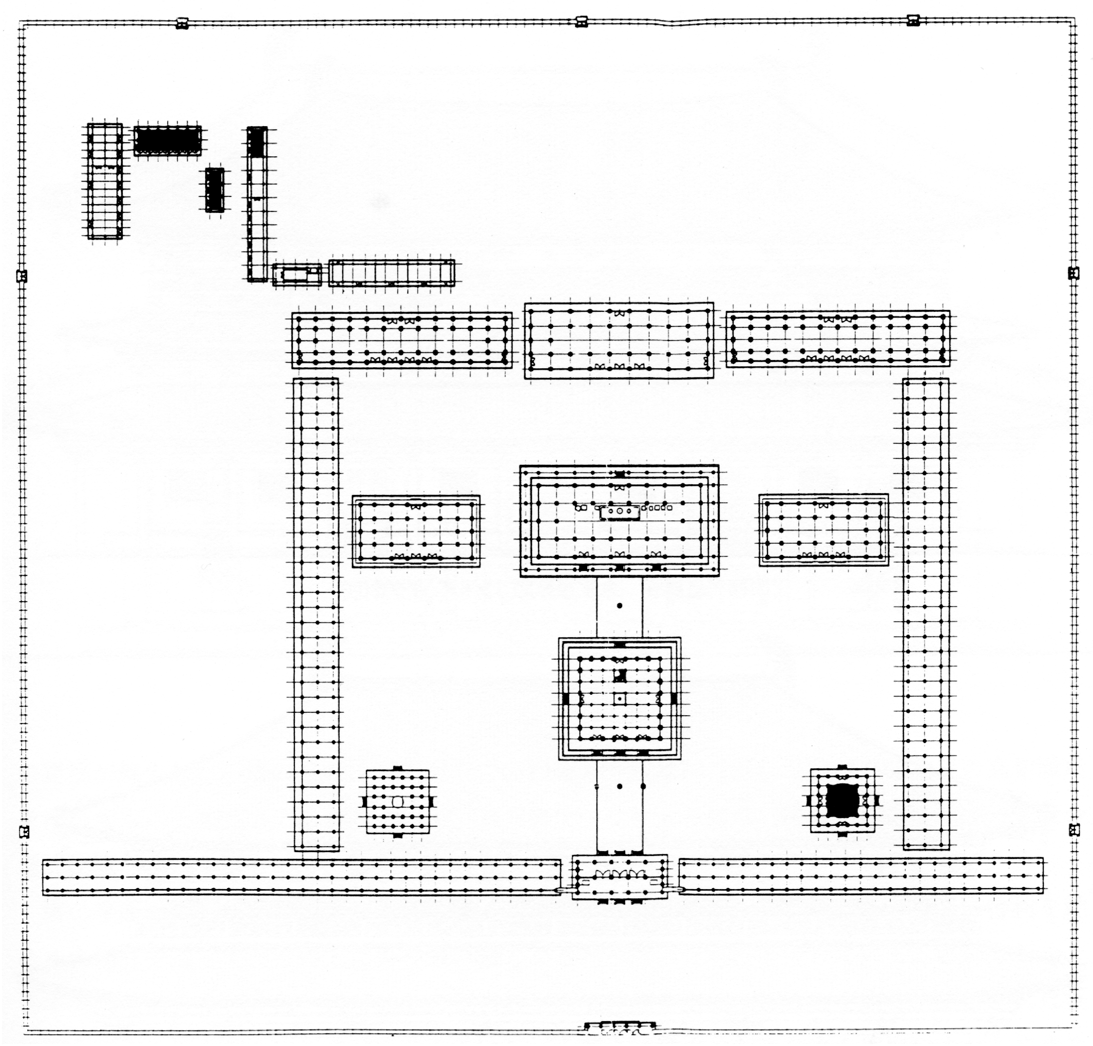
2.1. The Layout of the Gurban Zuu Complex
2.2. Interpretation of the Black-Ink Inscription
- (a)
- “Shun Yi Wang” (順義王)
- (b)
- “Laba tidiao” (喇叭提吊)
- (c)
- “Mu jiang zuo tou” (木匠作頭)
3. Connections with the Temples of Inner Mongolia
3.1. A Comparison with Yekhe Zuu 大召 at Hohhot
3.2. A Comparison with Shireetu Zuu and Maidari Zuu
4. The Perspective of Buddhist Temple Architecture in East Asia
4.1. Connections with Temples in the Period of the Mongolian Empire
4.2. The Circumambulation Path of Buddha Halls
5. Conclusions
Funding
Acknowledgments
Conflicts of Interest
| 1 | The Chinese names “Nei Menggu” 内蒙古 (Inner Mongolia, Mon. Öbür Moŋɣol) and “Wai Menggu” 外蒙古 (Outer Mongolia, Mon. Khalkha Mongolia) were applied in 1691 by the Qing court. For convenience, “Mongolia” is used here to refer to both the historical Khalka Mongolia and Inner Mongolia regions, even though this paper also discusses the pre-1691 situation. I use “country of Mongolia” when referring to the modern state. |
| 2 | Biography of Altan Khan, manuscript held by the Inner Mongolia Academy of Social Sciences Library, Section 337; (Yoshida, Jun ichi et al. 1998, p. 94). |
| 3 | Principal investigator: Takashi Matsukawa 松川節 2009–2011. The Comprehensive Research on the Monastery Erdene Zuu, UNESCO’s World Cultural Heritage Site: From the Restoration of the Past to the Preservation for the Future, JSPS KAKENHI Grant Number JP21242022. |
| 4 | Unfortunately, the illustrations, which were elaborately created by the author and constituted the core content of the paper, were rendered almost impossible to understand due to poor printing. |
| 5 | According to A・Ma・Bozudenieyefu (1989) (Volume 1, pp. 471–72), this gate (Ch. Pailou 牌楼) was built in 1796 with donations from craftsmen who came from Hohhot and undertook the restoration work in Erdene Zuu. |
| 6 | Directly translated, “Zuun zuu” means “left-hand temple”, but since this designation customarily refers to the east, this hall is usually called the “east temple”. However, since Gurban zuu faces southeast (the line of axis of the temple leans 112° to the east from the true north), this is not its actual direction. It is therefore more accurate to describe the “left-hand temple” as being southwest of the central temple. The “right-hand temple”, that is the “west temple”, lies to the northeast. |
| 7 | Gutschow and Brandt (2006): “Die Baugeschichte der Klosteranlage von Erdeni Joo (Erdene zuu)”, in Claudius Müller, ed. Dschingis Khan und seine Erben, Bonn: 2005; (Turkish translation) “Erdene zuu (Erdeni Joo) Manastiri Kompleksinin inşa öyküsü”, Cengiz Han ve Mirasçıları—Büyük Moğol İmparatorluğu, Istanbul: Sakıp Sabancı Müzesi, pp. 537–42. |
| 8 | For details see Matsukawa Takashi, “Mongoru bukkyōshi ni okeru Erudeni zū jiin” (Erdene zuu in Mongolian Buddhist history), research report, Spring 2010. Conference of the Japan Association for Mongolian Studies, Oberlin University, Japan, Tokyo, pp. 1–4. |
| 9 | According to the biography of Altan Khan, he died on the 19th day of the twelfth month of Xin si according to the lunar calendar (辛巳十二月十九日). This correcponds to February 1582 in the Gregorian calendar. |
| 10 | Wan li wu gong lu 萬暦武功録, juan 8 卷八. Chelike lie zhuan 扯力克列传. Mingdai menggu hanji shiliao huibian 明代蒙古汉籍史料汇编. di 4 ji 第4辑. p. 125. |
| 11 | Asaraʏči neretü teüke, Chinese trans. p. 133. Also Tetsuo Morikawa (2007, p. 282). |
| 12 | Altan Khan is a grandson of Dayan Khan (1474–1517), the son of Dayan Khan’s third son. Abatai Khan is a great-grandson of Dayan Khan, a grandson of Dayan Khan’s eleventh son. Altan Khan and Abatai Khan are thus in an uncle-nephew relationship. |
| 13 | Wuyunbilige (2016) presents the view that the word Matsukawa transcribed as “Tendün Lama” should rather be transcribed as “qatun-i lama”, which means “(ǰönggen qatun, the third wife of Altan Khan) queen’s lama”. The author believes that the Chinese 喇叭提吊 corresponds with the Mongolian “Tendün Lama”. It will be necessary in the future to study the Mongolian rendering of 提調官(提调官) in Yuan period historical documents. |
| 14 | Yuan dai hua su ji 元代画塑記: p. 9. 仁宗皇帝皇慶二年八月十六日、勅院史也訥、大聖寿萬安寺内五間殿、八角楼四座、令阿僧哥提調其佛像 [ren zong huang di huang qing 2 nian 8 yue 16 ri, chi yuan shi ye na, das heng shou wan an si nei 5 jian dian 8 jiao lou 4 zuo, ling Asengge ti diao qi fo xiang]. |
| 15 | According to the History of Yuan 元史 (zhi志 no. 37, bai guan 百官 3), the Jiang zuo yuan was the bureau that supervised the production of arts and crafts using metal, precious stones, weaving, etc. The rank of its head was regular second grade (zheng 2 pin 正二品) according to the Nine Rank System. |
| 16 | The official ranking system used by the Yuan court was expressed as grades (pin 品). There were nine grades, the highest being the first and the lowest the ninth. Each grade had further subdivisions (for example, zheng yi pin 正一品, “regular first grade”, cong yi pin 从一品, “deputy first grade”, zheng 2 pin, cong 2 pin, and so on). Da si tu 大司徒 was the title of one ranked “regular first grade”. |
| 17 | Yuandai huasuji 元代畫塑記: p. 2. 英宗皇帝至治三年十二月十一日……合用物及提調監造工匠飲食移文省部應付 [ying zong huang di zhi zhi 3 nian 12 yue 11ri……he yong wu ji ti diao jian zao gong jiang yin shi yi wen sheng bu ying fu]. |
| 18 | (Yuan) Da yuan sheng zheng guo chao dian zhang 60 juan mulu 1 juan fu xin ji 大元聖政國朝典章60巻目録1巻附新集. Xin ji新集. Zhao ling詔令. jin shang huang di deng bao wei zhao今上皇帝登宝位詔: 仰各処提調官,常切加意 [yang ge chu ti diao guan, chang qie jia yi]. |
| 19 | According to the History of Yuan 元史, vol. 85, zhi 志 35, baiguan 百官 1. |
| 20 | Ming, Wan li wu gong lu 萬暦武功録, Vols 7–14. Hagiwara, Junpei 萩原淳平 1980. Mindai Mōkoshi kenkyū (A Study of the History of the Mongols during the Ming). Oriental Research Series No. 32, Kyoto: Dōhōsha, etc. |
| 21 | (Ming) Zheng, Luo 鄭洛. Fu yi ji lüe 撫夷紀略. Mingdai Menggu Hanji shiliao huibian 明代蒙古汉籍史料汇编, Vol. 2. Hohhot: Neimenggu daxue chubanshe, 2006. |
| 22 | Matsukawa transcribed the Mongolian inscription to Roman character phonetic writing and the author translated it into English. |
| 23 | This is recorded in various places, such as the Altan Qaγan u Tuγuǰi (Biography of Altan Khan), the biography of the third Dalai Lama, the Erdeni-yin tobči (Ch. 蒙古源流), “A History Called Maitreya”, etc. but there are inconsistencies among them in the dating. |
| 24 | Ming, Wan li wu gong lu 萬暦武功録, juan 8. Anda lie zhuan 俺答列傳. Ming Dai Meng Gu Han Ji Shi Liao Hui Bian. Di 4 Ji, p. 97. |
| 25 | Yoshida, Jun’ichi et al. trans with notes 1998. Altan Haan-den yakuchū (Annotated translation of the Erdeni Tunumal Sudur orusiba), p. 191. |
| 26 | Called yingtang 影堂, these halls memorialized the deceased Mongol Khans. Woven silk portraits were hung in the center of the hall. |
| 27 | Yuzong was the “temple name” of Činkim (1243–1286), Kublai Khan’s chosen heir. |
| 28 | The stone plaque (shibian 石匾) is now in the collection of the Baotou City Museum. The one on the walled-city gate is a replica. 上款: 元後勅封順義王俺搭呵嫡孫欽陞龍虎将軍天成台吉妻七慶大義好五蘭妣吉誓願虔誠敬頼三宝選擇吉地宝豊山起盖霊覚寺泰和門不満一月工城圓備神力助祐非人所為也。中央:皇圖鞏固、帝道咸寧、萬民楽業、四海澄清。下款:大明金国丙午年戊戍月己巳日庚午時建木作温伸石匠郭江. |
| 29 |
References
Primary Sources
Chen gaohua, Zhang fan, Liu xiao, Dang baohai proofread and with added punctuation marks, 2011. Yuan dian zhang: Da yuan sheng zheng guo chao dian zhang元典章: 大元聖政國朝典章. Zhonghua shuju, Tianjin Guji Chubanshe.Da yuan sheng zheng guo chao dian zhang 60 juan mu 1 juan fu xin ji bu fu juan 大元聖政國朝典章 60巻目1卷附新集不分卷, xiu ding fa lu guan修訂法律館, guan xu 34 (1908), Kyoto University Library Collection.Wan li wu gong lu萬暦武功録.Yoshida, Jun ichi et al. 1998. Facsimile text and annotated Japanese translation. Altan Qaγan u Tuγuǰi: A biography of a Mongolian King of the 16th century (other titles: Erdeni tunumal neretü sudur orusiba and Čakravarti altan qaγan u tuγyǰi). Tokyo: Kazama shobō.Yan shi ben ji元史本紀.Yan, yiping ed. Yuan dai hua su ji元代畫塑記, Shang hai cang seng ming zhi da xue pai yin ben倉聖明智大学排印本, Shanghai: Yi wen yin shu guan藝文印書館 [Yee Wen Publishing Company], 1916. Reprint 1971, Taibei.Zheng, Luo 鄭洛. Fu yi ji lüe 撫夷紀略. Mingdai Menggu Hanji shiliao huibian 明代蒙古汉籍史料汇编, Vol. 2. Hohhot: Neimenggu daxue chubanshe, 2006.Secondary Sources
- A・Ma・Bozudenieyefu. 1989. Menggu ji Menggu ren 蒙古及蒙古人 (The Chinese translation of Aleksei M. Pozdneyev, Mongolia and the Mongols, Saint-Petersburg, 1896) Volume 1, Neimenggu renmin chubanshe, pp. 471–72. The English translation of the first Volume of Aleksei M. Pozdneyev, 1971. Mongolia and the Mongols. Edited by John R. Kruger. Translated from Russian by John Roger Shaw and Dale Plank. The Ulraic and Altaic Series. Bloomington: Indiana University, vol. 61. [Google Scholar]
- Asuka Shiryōkan (Asuka Historical Museum). 2013. Asukadera 2013 (Asukadera in 2013). Osaka: Okamura Insatsu, pp. 73–82. [Google Scholar]
- Bao, Muping 包慕萍. 2003. Mongoru chiiki Hohhot ni okeru toshi to kenchiku ni kansuru rekishiteki kenkyu 1723–1959 モンゴル地域フフホトにおける都市と建築に関する歴史的研究 (1723年–1959年). Ph.D. dissertation, The University of Tokyo, Tokyo, Japan. [Google Scholar]
- Bao, Muping 包慕萍. 2005. Mongoru ni okeru toshi kenchikushi kenkyu: Yuboku to teiju no juso toshi Hohhot モンゴルにおける都市建築史研究: 遊牧と定住の重層都市フフホト. Tokyo: Toho shoten. [Google Scholar]
- Bao, Muping 包慕萍. 2011. The Architectural Origins of Erdene Zuu within East Asian History. In The International Conference on “Erdene Zuu: Past, Present and Future”. Edited by Matsukawa and Ochir. Ulaanbaatar: IISNC, pp. 128–45. [Google Scholar]
- Bao, Muping 包慕萍. 2013. Menggu Diguo Zhi Hou De Halahelin Mugou Fosi Jianzhu 蒙古帝国之后的哈剌和林木构佛寺建筑. In Zhongguo Jianzhu Shilun Huikan 中国建筑史论汇刊 2013 [Journal of Chinese Architecture History 2013]. Beijing: Qinghua Daxue Chubanshe, pp. 172–98. [Google Scholar]
- Bao, Muping 包慕萍. 2014. Dongya shijiaoxia de Zhongguo jianzhushi yanjiu zhanwang东亚视角下的中国建筑史研究展望. In Zhongguo Jianzhu Shilun Huikan 中国建筑史论汇刊 2014 [Journal of Chinese Architecture History 2014]. Beijing: Qinghua Daxue Chubanshe, pp. 42–58. [Google Scholar]
- Bao, Muping 包慕萍. 2018. Multi-story Timber Buildings in Thirteenth-Century Karakorum: A Study of the 300-chi Tall Xingyuan Pavilion. In 中国建筑史论汇刊 2018 [Journal of Chinese Architecture History 2013]. Beijing: Qinghua Daxue Chubanshe, pp. 343–56. [Google Scholar]
- Chang-sŏp, Yun, trans. 2003. Nishigaki, Yasuhiko. Kankoku no kenchiku [Korean Architecture]. Tokyo: Chūō kōron bijutsu shuppansha. [Google Scholar]
- Charleux, Isabelle. 2017. Circumambulating the Jowo in Mongolia: Why Erdeni Juu Must Be Understood as “Jowo Rinpoche”. In Interaction in the Himalaya and Central Asia: Processes of Transfer, Translation and Transformation in Art, Archaeology, Religion and Polity. Proceedings of the Third International SEECHAC Colloquium, 25–27 November 2013. Vienna: Austrian Academy of Sciences, pp. 357–74. [Google Scholar]
- Chen, Yaodong. 2007. Zhongguo Zangzu Jianzhu 中国藏族建筑 [Tibetan Architecture in China]. Beijing: Zhongguo Jianzhu Gongye Chubanshe. [Google Scholar]
- Čoyiji (Ch. 乔吉). 1985. Siregetü güüsi čorji yin tuqai nökübürilen ügülekü kedün jüil. Mongolian History Research Vol. 1. Huhehaote: Neimenggu Renmin Chubanshe, pp. 153–64. [Google Scholar]
- Čoyiji 乔吉 (Mon. Čoyiji). 2007. Menggu Fojiao Shi: Beiyuan Shiqi (1369–1634) 蒙古佛教史: 北元时期 1368–1634. Huhehaote: Neimenggu Renmin Chubanshe. [Google Scholar]
- Erdencang. 1991. Neimenggu Lama Jiao 内蒙古喇嘛教. Hohhot: Neimenggu Daxue Chubanshe. [Google Scholar]
- Gutschow, Niels, and Andreas Brandt. 2005 [2006]. Die Baugeschichte der Klosteranlage von Erdeni Joo (Erdene zuu). In Dschingis Khan und seine Erben. Edited by Claudius Müller. München: Hirmer, 1st edition 2005. (Turkish translation) 2006. “Erdene zuu (Erdeni Joo) Manastiri Kompleksinin inşa öyküsü”, Cengiz Han ve Mirasçıları—Büyük Moğol İmparatorluğu. Istanbul: Sakıp Sabancı Müzesi, pp. 537–42. [Google Scholar]
- Gutschow, Niels, and Andreas Brandt. 2006. Erdene zuu(Erdeni Joo) Manastiri kompleksinin inşa öyküsü. Cengiz Han ve mirasçıları: Büyük Moğol İmparatorluğu. Istanbul: Selmin Kangal, Samih Rifat, Sabancı Üniversitesi, Sakıp Sabancı Müzesi. [Google Scholar]
- Jiang, Huaiying 姜怀英, and Zhanjun Liu 刘占俊, eds. 1996. Qinghai Taersi Xiushan Gongcheng Baogao 青海塔尔寺修缮工程报告 [Report on the Repairs to the Taer Temple]. Beijing: Wenwu Chubanshe. [Google Scholar]
- Jin, Feng. 1982. Hohhot 15 Dasiyuan Kao [A Consideration of the 15 Larger Monasteries in Hohhot]. Tümet shiliao [Tümet historical documents] No. 6. Hohhot: Tümet-zhi Bianzhuan Weiyuanhui, pp. 110–25. [Google Scholar]
- Jin Shen 金申. 1984. Meidaizhao ji qibihua 美岱召及其壁画. Baotou: Baotou Wenwu Ziliao Di 1 Ji. [Google Scholar]
- Li, Yiyun 李漪云. 1983. Da Ban Sheng Cheng Kao 大板升城考. Neimenggu Daxue Xuebao (Renwen Shehui Kexue Ban) 3: 215–19. [Google Scholar]
- Liang, Ssu-ch’eng (Liang si cheng) 梁思成. 2005. A Pictorial History of Chinese Architecture 图像中国建筑史. Reprint. Chinese edition published by Zhongguo jianzhu gongye chubanshe. Beijing: Dover Publications. [Google Scholar]
- Matsukawa, Takashi. 2010a. “Mongoru bukkyōshi ni okeru Erudeni zū jiin” (Erdene zuu in Mongolian Buddhist history), research report, Spring 2010. Conference of the Japan Association for Mongolian Studies. Tokyo, Japan: Oberlin University, pp. 1–4. [Google Scholar]
- Matsukawa, Takashi 松川節. 2010b. Seikaiisan erudenizō jiin (Mongoru koku) de arata ni kakunin sareta 2 tsu no moji shiryō [Two newly identified written materials at the World Heritage Site Erdene Zuu Temple (Mongolia)]. Bulletin of the Japan Mongolian Society 40: 79–80. [Google Scholar]
- Morikawa, Tetsuo. 2007. Mongoru nendai ki モンゴル年代記. Tokyo: Hakuteisha. [Google Scholar]
- Nagao, Gajin 長尾雅人. 1947. Mōko Gakumon Ji 蒙古学問寺. Kyoto: Zenkoku shobō. [Google Scholar]
- Okada, Hidehiro 岡田英弘, trans. and annotated. 2004, Mōko gen ryū 蒙古源流 (Saγang Secen, Erdeni-yin Tobci “Precious summary”). A Mongolian chronicle of 1662. Tokyo: Tōsui shobō.
- Ochir, Ayudai (ОЧИР, Aюудай). 2005. Эрдэнэ зуугийи түүх, Улаанваатар [The History of Erdene Zuu]. Ulaanbaatar: Мoнгoлын Үндэсний Түүхийн Музей [The National History Museum of Mongolia], Эрднэ Зуу Музей [Erdne Zuu Museum]. [Google Scholar]
- Su, Bai 宿白. 1994. Huhehaote ji qi fujin ji zuo zhaomiao diantang buju de chubu tantao 呼和浩特及其附近几座召廟殿堂布局的初步探討 [Study of the layout of the halls of the monasteries of Hohhot and its surroundings]. Wenwu 文物 4: 53–61. [Google Scholar]
- Su, Bai 宿白. 1996. Zangchuan Fojiao Siyuan Kaogu 藏传佛教寺院考古 [Archaeological Studies on the Monasteries of Tibetan Buddhism]. Beijing: Wenwu Chubanshe. [Google Scholar]
- Wang, Leiyi 王磊义, and Guixuan Yao 姚桂轩. 2003. Mei dai zhao yi cun zhi wo jian 美岱召遗存之我见. Yin Shan Xue Kan 6: 75–79. [Google Scholar]
- Wang, Leiyi, Guixuan Yao, and Jianzhong Guo. 2009. Zangchuan fojiao siyuan meidaizhao wudangzhao diaocha yu yanjiu 藏传佛教寺院美岱召五当召调查与研究. Beijing: Zhongguo zangxue chubanshe. [Google Scholar]
- Wuyunbilige (Mon. Oyunbilig) 乌云毕力格. 2009. A Sa La Ke Qi Shi Yan Jiu 阿萨喇克其史研究. Beijing: Zhongyang Minzu Daxue Chubanshe. [Google Scholar]
- Wuyunbilige (Mon. Oyunbilig) 乌云毕力格. 2016. Eerdenizhao jianao de niandai jiqi lishi beijing: Weirao Eerdenizhao Zhusi Xinfaxian de Moji 额尔德尼召建造的年代及其历史背景: 围绕额尔德尼召主寺新发现的墨迹. Wenshi 文史 117: 107–16. [Google Scholar]
- Yun, Chang-sŏp 尹張燮. 2003. Nishigaki Yasuhiko trans. Kankoku no Kentiku 韓国の建築 [Korean Architecture]. Tokyo: Chuo Koron Bijutsu Syupansha. [Google Scholar]
- Zhang, Haibin 张海斌. 2010. Mei Dai Zhao Bi Hua Yu Cai Hui 美岱召壁画与彩绘. Beijing: Wenwu Chubanshe. [Google Scholar]
- Zhao, Pengzhu 赵鹏翥. 1994. Lian Cheng Lu Tu Si 连城鲁土司. Lanzhou: Gausu Renmin Chubanshe. [Google Scholar]













Disclaimer/Publisher’s Note: The statements, opinions and data contained in all publications are solely those of the individual author(s) and contributor(s) and not of MDPI and/or the editor(s). MDPI and/or the editor(s) disclaim responsibility for any injury to people or property resulting from any ideas, methods, instructions or products referred to in the content. |
© 2024 by the author. Licensee MDPI, Basel, Switzerland. This article is an open access article distributed under the terms and conditions of the Creative Commons Attribution (CC BY) license (https://creativecommons.org/licenses/by/4.0/).
Share and Cite
Bao, M. The Spread of Tibetan Buddhism in Mongolia from the 16th to the 17th Century: The Spatial Formation of the World Heritage Site Erdene Zuu Monastery. Religions 2024, 15, 843. https://doi.org/10.3390/rel15070843
Bao M. The Spread of Tibetan Buddhism in Mongolia from the 16th to the 17th Century: The Spatial Formation of the World Heritage Site Erdene Zuu Monastery. Religions. 2024; 15(7):843. https://doi.org/10.3390/rel15070843
Chicago/Turabian StyleBao, Muping. 2024. "The Spread of Tibetan Buddhism in Mongolia from the 16th to the 17th Century: The Spatial Formation of the World Heritage Site Erdene Zuu Monastery" Religions 15, no. 7: 843. https://doi.org/10.3390/rel15070843
APA StyleBao, M. (2024). The Spread of Tibetan Buddhism in Mongolia from the 16th to the 17th Century: The Spatial Formation of the World Heritage Site Erdene Zuu Monastery. Religions, 15(7), 843. https://doi.org/10.3390/rel15070843
