Abstract
In this paper, we show that it is possible to obtain an optimal configuration variant of Modular Strongrooms (MSR) that satisfies the individual requirements of customers and is most economically advantageous for manufacturers. A model of the automatic configuration system for configuring MSR type MODULPRIM was developed, integrating the procedures for generating product variants, choosing the optimal configuration, and designing detailed products and technological processes. The developed model’s importance lies in its ability to automatically select the optimal configuration from a set of possible configurations on a multidisciplinary basis. The problem of choosing was solved by integrating the Analytic Hierarchy Process (AHP) and Simple Additive Weighting (SAW) methods from the group of Multi-Attribute Decision Making (MADM). Validation of the proposed model was performed on eight examples of Modular Strongrooms type MODULPRIM 5 and showed great opportunities to improve efficiency and effectiveness in the process of innovative product development, as well as to obtain a product configuration with significantly improved quality. The proposed model has a high degree of flexibility and universality; thus, it can be further upgraded and integrated into a company’s business system.
1. Introduction
Optimization is a key stage in the configuration of complex products. Complex products usually have a modular architecture and are formed by combining standard modules. The modular product system also includes the production of parts and modules in sufficiently large series, an acceptable number of technologies, tools, and accessories, and reduced amounts of information. Also, the construction of available modules and their components has already been optimized, and the technological processes of production and assembly have been standardized and optimized from the aspect of processing modes, costs, processing time, etc. Therefore, that part of the optimization process was not considered in this paper. Configuration optimization has the task of performing multi-criteria evaluation of products at the macro level in terms of cost, quality, and production time and is solved by multi-criteria decision-making methods [1].
Strongrooms are intended for storing money, valuables, securities, and confidential documents. The basic function they must satisfy is resistance to attacks using burglary tools (burglary resistance) [1,2,3].
Instead of the massive construction of strongrooms, Modular Strongrooms (MSR) are increasingly used today because they have several advantages [1,2,3]:
- They have thinner walls, higher usable volume, and lower weight;
- The possibility of remodeling already existing rooms into a strongroom;
- Abbreviated time to build a strongroom.
The Modular Strongroom (MSR) is a complex and demanding product from a technical and technological viewpoint. It is designed according to the individual request of the customer who chooses the Resistance Grade according to the standard [4] and defines the available dimensions of the space in which it is necessary to place such a product. The configuration is achieved by a combination of standard modules whose number and dimensions must be adjusted in each new project.
Knowledge-Based Engineering (KBE) is a set of methods and algorithms that incorporate design knowledge into CAD models by considering dimensioning formulas, design rules, and manufacturing restrictions, thereby transforming design problems into configuration problems [5]. Automatic configuration of products in CAD systems is enabled by the integration of KBE and CAD. There are different ways of integrating, embedding, and coupling KBEs to CAD systems [6].
Various case studies on design automation through KBE-CAD integration can be found in the literature. Gembarski [6] presented a case study of a locating jig that demonstrated the basic availability of integrating KBE with Autodesk Inventor. Reddy and Rangadu [7] developed a knowledge-based parametric CAD modeling system for spur gear design that incorporates AGMA standards and parametric modeling in CAD. Gembarski [8] implemented a constraint-based configuration system with a CAD system using the example of a locating fixture. Gembarski et al. [9] developed a design automation system that automatically generates a motor hoisting crane design based on user requirements. Gembarski [10] bridged the gap between constraint satisfaction problems (CSP) and CAD systems, providing practical guidance and examples for implementing configuration design tasks using Autodesk Inventor. Geren et al. [11] focused on the automated sizing of automotive steering ball joints and incorporated expert knowledge and feature-based 3D CAD modeling to streamline the sizing process.
Grković et al. [2] developed a platform for the automatic configuration of MSR, through the integration of an MS Excel spreadsheet and a CAD system (Autodesk Inventor 2021®). The disadvantage of this approach is that it generates only one MSR variant. Since an MSR is a complex product, and multiple configurations can be generated to satisfy customer requirements (CRs), it was necessary to develop software that will generate all feasible configurations and choose the optimal configuration with the aim of better utilization of resources. This study presents an extension of KBE-CAD integration by introducing Multi-Attribute Decision Making (MADM) in the process of choosing the optimal configuration.
In the past decade, a model of the IAKS MODULPRIM automatic configuration system for configuring MSR-type MODULPRIM has been developed. The system integrates the procedures for generating feasible product variants (configurations), selecting the optimal configuration, and performing detailed CAD design of products. The end user, in a graphical user interface (GUI), enters the dimensions and Resistance Grade of the required MSR and IAKS automatically:
- Generates all feasible configurations;
- Selects the optimal configuration based on the cost, quality, and production time of MSR; and
- Provides a CAD assembly of the MSR.
2. Model for Optimizing Configuration System
Basic characteristics of the developed model IAKS MODULPRIM are as follows:
- Based on the CRs and the developed product platform, a set of feasible product configurations is generated;
- Selection criteria are defined in accordance with the CRs (quality and cheap product made in the shortest possible time) and the requirements of the manufacturer (cheap and fast production with as few defects as possible);
- Criterion functions are defined in advance and set in a parametric form, i.e., depending on the set of parameters defined by the product platform;
- The selection of the optimal product configuration is performed using multi-attribute decision making (MADM) methods;
- The selected alternative is further used for detailed CAD design of products and technological procedures, development of an operational plan for product realization, and defining the offer that is delivered to the customer through the sales configurator and user interface;
- These procedures are mutually integrated and automated.
The structure of the IAKS MODULPRIM is shown in Figure 1. The model consists of nine modules, which are logically and functionally connected into one whole as follows:
Figure 1.
General structure of the IAKS MODULPRIM.
- GUI (Graphical User Interface);
- Product Conceptual Configurator;
- Optimization Module;
- CAPP (Computer Aided Process Planning) configurator;
- APS (Advanced Planning and Scheduling) configurator;
- CAD product configurator;
- Sales configurator;
- External interface;
- Product platform.
The GUI for data entry is shown in Figure 2. The scheme consists of two drop-down lists (resistance grade selection and door opening direction), six fields for entering the basic dimensions of the MSR and strongroom door position, and a sketch that facilitates understanding of the basic dimensions. Next to them, there is the “Configuration” button, which starts the automatic configuration, and the “Offer” button, which creates a customer offer.
Figure 2.
GUI Appearance.
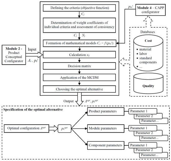
The structure of the optimization module is shown in Figure 3.
Figure 3.
Optimization module structure.
The input data for this module are obtained from modules 2 and 4. In the Conceptual Configurator (module 2), feasible configurations for MSR are generated, i.e., alternatives Ai with specifications for module parameters, components, finished components, materials, etc. A detailed description and the structure of the proposed MSR conceptual configurator are provided in [1].
The data necessary for the formation of the criterion functions for the total time and the total cost of production and assembly are generated in module 4 (CAPP configurator) based on:
- Product parameters (dimensions of modules and components, volume, and area) and material specifications from module 2;
- Standard technological processing procedures, time, and labor standards;
- Calculation of the required number of sheet metal panels for creating all module positions based on a special algorithm and program developed in the MATLAB 2019® software package;
- Database which contains the price of materials and finished components, labor cost, etc.
All elements of the objective functions are calculated parametrically depending on the dimensions of the module, dimensions of the components, and number of modules.
For MSR-type MODULPRIM, the following criteria were adopted based on which optimal product configuration should be chosen:
- Total production and assembly time of MSR;
- Total production costs;
- MSR quality parameters:
- -
- total number of defects in all modules;
- -
- total sum of maximum deviations from the flatness of the surfaces of all modules.
The total production and assembly time of the MSR (Ttot) was determined as the sum of the total time of individual operations:
where:
- Tcut—total cutting time;
- Tben—total bending time;
- Tma—total module assembly time;
- Tcc—total concreting and cleaning time;
- Tdp—total degreasing and painting time;
- Tpal—total pallet making time;
- Tpac—total packaging time;
- Tass—total final assembly time.
Total manufacturing costs (Ctot) are obtained by summing the total cost of materials (Cmat) and labor (Cwork):
Only the costs of direct materials are included in the price of the material. The price of auxiliary (indirect) materials such as paint, wire, and CO2 welding gas, pallet board, electricity, compressed air, and other consumables is not specifically considered because these costs are included in the hourly rates for certain processing types. Total materials and labor prices are obtained from the unit prices in the database, the quantities of materials in module 2, and the quantities of labor in module 4. Detailed calculations of the total production, assembly time, and total production costs are given in reference [1].
In accordance with the Quality Management System (QMS), the number of defects in the production is constantly monitored using attributive and numerical quality control charts to improve the quality of the products. The analytical dependence of the total number of defects on the module’s dimensional parameters was established by the Response Surface Methodology (RSM). For this analysis, the modules were separated into two groups. Group 1 includes wall modules and group 2 includes floor and ceiling modules. The groups are defined based on the module design and technological similarity of the modules [1].
The total number of defects is obtained (Gtot) [1]:
where:
- Gi—theoretical sum of all defects of the i-th type of module based on previously obtained empirical models;
- Ni—number of pieces of the i-th type of module.
The critical quality parameter for the MSR final assembly was the maximum deviation of the flatness of the module surface Rmax. The control plan controls the flatness along the length, width, and diagonal of the module. Based on the available data and by using Response Surface Methodology (RSM), empirical models depicting the dependence of Rmax of each module as a function of the module length and width were established. Due to the similarity of shape and production technology, the modules are, as in the previous case, separated into two groups [1].
The final function (Rtot) is defined as the total sum of the maximum deviations from the flatness of each module type multiplied by the total number of pieces of that module required to configure the MSR [1]:
where Rmaxi—theoretically, the maximum error in flatness of the i-th type of module measured in three directions depending on the module length and width, obtained on the basis of previously developed empirical models.
Criteria created for MSR based on the developed model and platform can be displayed using the following functions:
The values of the criterion functions xij (values of the i-th alternative for the j-th criterion) in the decision matrix are calculated on the basis of these models for each alternative, i.e., feasible product configuration. After normalizing the data, a cumulative score for alternatives in the priority matrix is calculated, and the optimal alternative is selected, i.e., the optimal product configuration.
It should be noted that the optimization module is a key link in the developed IAKS MODULPRIM because complex mathematical models of objective functions are obtained; thus, it is not possible to select the optimal configuration using classical optimization methods.
The design and implementation of the GUI algorithm, Conceptual Configurator, and optimal configuration were done in MATLAB 2019®.
After selecting the optimal product configuration, the output specifications from the optimization module are forwarded to module 6 (CAD product configurator) for detailed product design. A CAD configurator for automatic MSR configuration was developed and made in Autodesk Inventor 2021® [12]. Linking the CAD configurator to the optimization module in IAKS MODULPRIM enables the automatic import of parameters into Autodesk Inventor, where further automatic CAD design can be carried out according to the description in [12].
The monitoring and updating of the IAKS MODULPRIM is carried out by the configuration engineer. Their task is to periodically check the model and implement corrections in case of operational delays. Additionally, they can make changes in any IAKS MODULPRIM module, such as: updating the 3D model in the CAD configurator, modifications to the equations in the objective functions, changing the decision support method in the Optimization module, updating data to the customer in the GUI, adding new features, etc.
3. Method to Support Decision-Making
Given the nature of the problem, a solution was found by integrating the Analytical Hierarchy Process (AHP) methods and Simple Additive Weighting (SAW) methods from the MADM group. To avoid the subjective assignment of weighting factors by the decision-makers, the AHP method was used. On the other hand, the problem often contains many alternatives whose performance can be quantified (numerically); thus, it was expedient to choose the SAW method to select the optimal alternative.
The algorithm for applying the integration of these two methods (Figure 4) consists of 10 steps which will be explained below. Due to the specifics of the MSR, the proposed selection procedure using the SAW method (steps 7 to 10) was carried out twice, i.e., for walls and separately for floor and ceiling MSR.
Figure 4.
Integration of the AHP and SAW methods in a flow graph.
Step 1: Defining the problem and objective of decision-making.
The first step is to clearly define the problem to be solved and the corresponding objective to be achieved.
Step 2: Structuring decision-making and graphical representation.
Structuring the decision-making problem involves decomposing the problem according to a hierarchy of at least three levels [13,14,15].
Step 3: Construct a comparison matrix.
To determine the priorities of the criteria, i.e., importance of each criterion relative to the main objective, the AHP method uses pairwise comparison [14,15,16]. For this purpose, a comparison matrix is formed (square matrix n × n) in which each criterion in a row is compared with each criterion in the column at each level of the hierarchical structure. The Saaty scale for the importance of value was used for comparison [16,17].
Step 4: Normalizing the compared matrix data.
Normalization of the comparison matrix data is performed by dividing each entry in the column by the sum of the corresponding column to obtain the following normalized result [14,15,18]:
Step 5: Consistency analysis.
In order to notice possible contradictions between the compared pairs, it is necessary to check the consistency. The Consistency Ratio (CR) is calculated as the quotient of the Consistency Index (CI) and the Random Index (RI):
The AHP method allows an inconsistency of 10% (CR ≤ 0.10) in relation to 500 randomly filled matrices [14,16].
Step 6: Adopting the Criteria Significance Level.
If the inconsistency is less than 10%, the assessment of the relative importance of the criteria is considered acceptable; otherwise, it is necessary to revise the comparison of the pairs of criteria.
The SAW Method was chosen to select the optimal alternative. The SAW method is the best known, most popular, and most frequently used method of multi-attribute decision making [19,20,21].
Step 7: Construct decision matrix.
The problem of multi-attributive decision-making can be expressed concisely in matrix form [21] as follows:
where:
- A1, A2, …, Am—feasible alternatives;
- C1, C2, …, Cn—criteria;
- xij—value of the i-th alternative relative to the j-th criterion;
- Wj—weighting coefficient (significance) of the j-th criterion.
The matrix X is a (m × n) matrix and is called a Decision matrix. Criteria (Cj) can be of maximization (max) or minimization (min) types.
Step 8: Normalize decision matrix.
To rank alternatives, the proposed SAW method requires data normalization in the decision matrix. A linear transformation scale is used for normalization [20,21].
In the case of the criteria of type max, the element of the linearized matrix is obtained by dividing the current value of the i-th alternative in relation to the j-th criterion (xij) by the maximum value of all alternatives in relation to the criterion Cj:
For the criterion of type min, the element of the linearized matrix is obtained by dividing the minimum value of all alternatives in relation to the criterion Cj by the current value xij:
The resulting values of rij range between 0 and 1, and the result is more favorable if the value of rij is closer to 1. The Normalized decision matrix is denoted by X*.
Step 9: Calculate the score of each alternative.
The score for each alternative is calculated as the sum of the multiplication of the element of the row of the normalized matrix with the relative weight of the corresponding element of the column of the matrix, based on the following expression:
Step 10: Select the best alternative.
The best alternative is selected as the best alternative [19,21]:
or:
where BASAW gives the best alternative according to the SAW method.
4. Model Verification
Modular Strongrooms MODULPRIM 5 from the production program of the company “Primat” D.D., Maribor, Slovenia, which is produced in the “Primat equipment” Ltd., Baljevac, Serbia, was selected for practical IAKS MODULPRIM verification.
4.1. Defining the Objective and Problems of Decision-Making
The main objective of optimization is to choose the optimal configuration of the MSR that meets the CR while being rational regarding production. The basic CRs in this case relate to the dimensions in which it is necessary to fit this product (Table 1) and the resistance degree of the MSR, which in this case is defined by the choice of MODULPRIM 5 (Resistance Grade 5).
Table 1.
Basic dimensions of MSR MODULPRIM 5 in the selected example.
The problem comes down to choosing the most favorable (optimal) alternative from the final set of alternatives, which are generated based on the algorithms for configuring MSRs (Modular Strongrooms) in module 2, the criteria defined in module 3, and the proposed optimization model.
4.2. Structuring the Problem
The problem was decomposed on three hierarchical levels (Figure 5). At the highest level is the objective of the previously defined decision. The middle level of the hierarchy is represented by the criteria on which alternatives are ranked, which are defined in detail in the form of parametric functions in Section 2. It should be noted that the product quality function consisting of two criterion functions is not further broken down into lower hierarchical levels, but both functions (f3: minimization of the total number of defects on all modules and f4: minimization of the sum of maximum deviations from the flatness of all modules) are kept at the middle level of the hierarchy, and their importance is taken into account through the weights defined below this procedure.
Figure 5.
Hierarchical structure of decision problems.
The lowest hierarchical level represents alternatives, i.e., technically feasible product configurations. Alternatives in this case are feasible combinations of modules and their widths, which are generated separately for the MSR walls, floors, and ceilings.
4.3. Relative Weights of Criterion Functions
Since the Faculty of Mechanical and Civil Engineering in Kraljevo already has an Excel application for implementing the AHP method, it was used to calculate the relative weights of the criterion functions and assess the consistency of the obtained solutions.
For this purpose, a comparison matrix (square matrix 4 × 4) is formed, in which each criterion in a row is compared with each criterion in the column at each level of the hierarchical structure. The numerical values of the comparison of criterion pairs are shown in the criterion comparison matrix generated in MS Excel 2019 (Figure 6).
Figure 6.
Comparison matrix in Microsoft Excel.
After normalizing the comparison matrix data, consistency analysis was performed to identify any contradictions between the compared pairs. The results of the analysis are presented in Table 2.
Table 2.
Consistency check.
The maximum eigenvalue is λmax = 4.061. The consistency index was CI = 0.020, and the random consistency index was RI = 0.892. The value of the consistency coefficient is CR = 0.023. This means that the inconsistency of the estimate is 0.023, i.e., 2.3% and meets the condition that CR ≤ 0.10 and the estimated relative importance of the criteria can be considered acceptable. Since the consistency of the assessment has been confirmed, the estimated relative importance of the criteria presented in Table 3 can be adopted.
Table 3.
Estimated relative weights of criteria.
4.4. Choosing an Optimal Alternative
As mentioned above, the selection of the optimal alternative based on the SAW method is carried out twice. By applying the proposed algorithms to generate alternatives, 164 technically feasible alternatives for walls and 347 alternatives for floors and ceilings were obtained.
4.4.1. Choosing an Optimal Alternative for Walls
The values of the individual and cumulative objective functions for each wall module alternative are listed in Table 4. The selected optimal solution for the wall modules was alternative A2, and its parameters and module distribution are presented in Table 5.
Table 4.
Values of individual and cumulative objective functions for MSR walls.
Table 5.
Parameters of optimal MSR wall alternatives.
The results of selecting the optimal configuration for the selected example are presented below in the form of graphs of individual and cumulative objective functions obtained by the generated alternatives. The graphs of the obtained criterion functions for the walls are shown in Figure 7, Figure 8, Figure 9 and Figure 10.
Figure 7.
Total time for all wall modules by alternatives.
Figure 8.
Costs for all wall modules by alternatives.
Figure 9.
Total number of defects on all wall modules by alternatives.
Figure 10.
Total sum of the Rmax values of the wall modules by alternatives.
A graph of the cumulative objective function with the position of the optimal alternative in relation to the derived solution is shown in Figure 11.
Figure 11.
Total function of wall modules by alternatives with positions of derived and optimal alternative.
4.4.2. Choosing an Optimal Alternative for Floor and Ceiling
The values of the individual and cumulative objective functions for the floor and ceiling modules are given in Table 6. The best alternative to MSR floors and ceilings was A59, and its parameters and module distribution are listed in Table 7.
Table 6.
Values of individual and cumulative objective functions for MSR floor/ceiling.
Table 7.
Parameters for the optimal MSR floor/ceiling alternatives.
The graphs criterion functions for the floor and ceiling are shown in Figure 12, Figure 13, Figure 14 and Figure 15. Figure 16 shows a graph of the cumulative objective function with the optimal alternative’s position in relation to the derived solution.
Figure 12.
Total time for all floor/ceiling modules by alternatives.
Figure 13.
Costs for all floor/ceiling modules by alternatives.
Figure 14.
Total number of defects on all floor/ceiling modules by alternatives.
Figure 15.
Total sum of the Rmax values of the floor/ceiling modules by alternatives.
Figure 16.
Total function of floor/ceiling modules by alternatives with positions of derived and optimal alternative.
4.5. Automatic 3D CAD Model Generation
After selecting the optimal MSR configuration, the specification of the optimal configuration is automatically imported into Autodesk Inventor®.
The Inventor also automatically adjusts all 3D models (parts and assemblies), generates 2D technical drawings, and creates a BOM (Bill of Materials).
An example of a 3D model of the MSR assembly and an example of a technical drawing of a part are shown in Figure 17 and Figure 18.
Figure 17.
MSR assembly 3D model.
Figure 18.
Technical drawing of one part.
5. Model Validation
After the verifying IAKS MODULPRIM, it was necessary to check and prove whether the proposed software tool is more effective under real conditions than the existing procedure of configuring MSR MODULPRIM.
Validation of the IAKS MODULPRIM was done on eight examples of MSR MODULPRIM samples with resistance grade 5. The examples were selected to represent the most commonly implemented MSRs. The basic dimensions of the MSR from the examples are in the ranges: A = 2050 ÷ 9500 mm, B = 2150 ÷ 8640 mm, and C = 2500 ÷ 2910 mm. Most of the aforementioned examples have been implemented practically in the past decade.
The MSR dimensions for all eight examples are given in Table 8.
Table 8.
MSR dimensions of selected examples.
The effects of the optimization module built into IAKS MODULPRIM are best seen in Table 9, which compares the values of criterion functions for the derived solutions and optimal solutions, selected based on the developed software tool for all eight tested examples.
Table 9.
Comparative presentation of the obtained results and improvements in each example.
From the last row of Table 9, the following can be stated:
- The average total time to produce and assemble MSR was decreased by 3.3%;
- Total production costs were reduced by an average of 7%;
- The total number of defects in all MSR modules was reduced by 28.7%;
- The total sum of the maximum deviations from the flatness of the surfaces of all modules was reduced by an average of 12.5%.
If we look at the cumulative objective function in which the individual criteria are taken from the previously adopted weighting coefficients, it can be concluded that the total effect of applying IAKS MODULPRIM is 10.3%.
6. Conclusions and Remarks
The basic significance of the developed software tool is that it automatically selects the optimal configuration, on a multidisciplinary basis from a set of feasible configurations. The main results of this research are as follows:
- Practical application of the proposed tool and testing of the developed software tool IAKS MODULPRIM under real conditions showed, that the cumulative effect of the application of IAKS MODULPRIM was 10.3%;
- By applying IAKS MODULPRIM, it is possible to offer the customer the desired configuration of products of exceptional quality at the lowest possible price and in the shortest possible time;
- By automating parts of the sales cycle, sellers and distributors obtain a powerful tool to create quality offers and quickly respond to CRs;
- Reduce operating costs during the contracting process;
- Automation of the product configuration process;
- Increase work efficiency by reducing or eliminating repetitive tasks and shortening design time;
- Ensuring the competitive advantage in the market.
This paper provides an overview of the results obtained in the field of MSR configuration. Further work on the improvement of IAKS MODULPRIM is planned:
- Improvement and advancement of algorithmic structures;
- Inclusion of new criteria functions in the decision-making module;
- Implementation of artificial intelligence methods;
- Development of a collaborative work environment;
- Integration of the software tool into the company’s business system, and recognition of real practical problems in implementation and training;
- Continuous verification and validation of the models.
Author Contributions
Conceptualization, M.K., V.Đ. and V.G.; Methodology, M.K., B.R. and V.Đ.; Application software, M.B. and V.G.; Formal analysis, M.B. and V.G.; Verification, B.R. and V.G.; Validation, V.Đ. and V.G.; Data curation, B.R. and M.B.; Investigation, M.K., V.G. and B.R.; Writing—original draft preparation, V.Đ., V.G. and M.K.; Writing—review and editing, V.Đ. and M.B. All authors have read and agreed to the published version of the manuscript.
Funding
This research received no external funding.
Institutional Review Board Statement
Not applicable.
Informed Consent Statement
Not applicable.
Data Availability Statement
The original contributions presented in the study are included in the article, further inquiries can be directed to the corresponding author.
Acknowledgments
The authors express their gratitude to the Ministry of Education, Science, and Technological Development of the Republic of Serbia for supporting this research (contract no. 451-03-65/2024-03/200108).
Conflicts of Interest
The authors declare no conflict of interest.
References
- Grković, V. Model Development for Decision System Integration in The Complex Product Configuration Process. Ph.D. Thesis, University of Kragujevac, Kraljevo, Serbia, 2020. [Google Scholar]
- Grković, V.; Kolarević, M.; Petrović, A.; Bjelić, M. Product platform for automatic configuration of modular strongrooms. Teh. Vjesn. Tech. Gaz. 2020, 27, 333–340. [Google Scholar] [CrossRef]
- Štefanec, E. Trezorski Prostori; Tisk Četisk Celje: Maribor, Slovenia, 2003; ISBN 961-236-566-0. [Google Scholar]
- German version EN 1143-1; Secure Storage Units—Requirements, Classification and Methods of Test for Resistance to Burglary—Part 1: Safes, ATM Safes, Strongroom Doors and Strongrooms. European Committee for Standardization: Brussels, Belgium, 2012.
- Gembarski, P.C.; Li, H.; Lachmayer, R. KBE-modeling techniques in standard CAD-systems: Case study—Autodesk inventor professional. In Managing Complexity; Bellemare, J., Carrier, S., Nielsen, K., Piller, F.T., Eds.; Springer Proceedings in Business and Economics; Springer International Publishing: Cham, Switzerland, 2017; pp. 215–233. ISBN 978-3-319-29056-0. [Google Scholar]
- Gembarski, P.C. Three ways of integrating computer-aided design and knowledge-based engineering. In Proceedings of the Design Society: DESIGN Conference, Cacvat, Croatia, 26–29 October 2020; The Design Society: Cacvat, Croatia; Volume 1, pp. 1255–1264. [Google Scholar]
- Reddy, E.J.; Rangadu, V.P. Development of knowledge based parametric CAD modeling system for spur gear: An approach. Alex. Eng. J. 2018, 57, 3139–3149. [Google Scholar] [CrossRef]
- Gembarski, P.C. Design automation case study: Modular locating fixture. In Proceedings of the 10th International Conference on Mass Customization and Personalization—Community of Europe (MCP—CE 2022), Novi Sad, Serbia, 21–23 September 2022; pp. 39–44. [Google Scholar]
- Gembarski, P.C.; Behrens, D.; Feldkamp, J.; Kies, L.; Hoppe, L. Design automation of a motor hoisting crane—Results of student project on knowledge-based CAD. In Proceedings of the towards Sustainable Customization: Bridging Smart Products and Manufacturing Systems, CARV MCPC 2021, Aalborg, Denmark, 1–2 November 2021; pp. 927–934. [Google Scholar]
- Gembarski, P.C. Joining constraint satisfaction problems and configurable CAD product models: A step-by-step implementation guide. Algorithms 2022, 15, 318. [Google Scholar] [CrossRef]
- Geren, N.; Akçalı, O.O.; Unver, E.; Allport, J. Automated sizing of automotive steering ball joints in parametric CAD environment using expert knowledge and feature-based computer-assisted 3D modelling. Adv. Eng. Inform. 2022, 52, 101630. [Google Scholar] [CrossRef]
- Grković, V.; Kolarević, M.; Petrović, A.; Bjelić, M. CAD configurator for automatic configuration of modular strongrooms. In Proceedings of the 9th International Conference on Mass Customizaton and Personalizaton—Community of Europe (MCP—CE 2020), Novi Sad, Serbia, 23–25 September 2020; pp. 85–92. [Google Scholar]
- Vargas, R.V. Using the analytic hierarchy process (AHP) to select and prioritize projects in a portfolio. In Proceedings of the PMI Global Congress, Washington, DC, USA, 10–12 October 2010; pp. 1–22. [Google Scholar]
- Saaty, T.L.; Vargas, L.G. Models, Methods, Concepts & Applications of the Analytic Hierarchy Process; International Series in Operations Research & Management Science; Springer: Boston, MA, USA, 2012; Volume 175, ISBN 978-1-4614-3596-9. [Google Scholar]
- Brunelli, M. Introduction to the Analytic Hierarchy Process; SpringerBriefs in Operations Research; Springer International Publishing: Cham, Switzerland, 2015; ISBN 978-3-319-12501-5. [Google Scholar]
- Ishizaka, A.; Nemery, P. Multi-Criteria Decision Analysis: Methods and Software; John Wiley & Sons, Ltd.: Chichester, UK, 2013; ISBN 978-1-119-97407-9. [Google Scholar]
- Saaty, T.L.; Vargas, L.G. Decision Making with the Analytic Network Process: Economic, Political, Social and Technological Applications with Benefits, Opportunities, Costs and Risks; International Series in Operations Research & Management Science; Springer: Boston, MA, USA, 2013; ISBN 978-1-4614-7278-0. [Google Scholar]
- Felix, P.G.; Rajagopal, V.; Kumaresan, K. Applicability of MCDM algorithms for the selection of phase change materials for thermal energy storage heat exchangers. Stroj. Vestn. J. Mech. Eng. 2021, 67, 611–622. [Google Scholar] [CrossRef]
- Afshari, A.; Mojahed, M.; Yusuff, R.M. Simple additive weighting approach to personnel selection problem. Int. J. Innov. Manag. Technol. 2010, 1, 511–515. [Google Scholar] [CrossRef]
- Pratiwi, D.; Lestari, J.P.; Agushita, D. Decision support system to majoring high school student using simple additive weighting method. Int. J. Comput. Trends Technol. 2014, 10, 153–159. [Google Scholar] [CrossRef]
- Adriyendi, M. Multi-attribute decision making using simple additive weighting and weighted product in food choice. Int. J. Inf. Eng. Electron. Bus. 2015, 7, 8–14. [Google Scholar] [CrossRef]
Disclaimer/Publisher’s Note: The statements, opinions and data contained in all publications are solely those of the individual author(s) and contributor(s) and not of MDPI and/or the editor(s). MDPI and/or the editor(s) disclaim responsibility for any injury to people or property resulting from any ideas, methods, instructions or products referred to in the content. |
© 2024 by the authors. Licensee MDPI, Basel, Switzerland. This article is an open access article distributed under the terms and conditions of the Creative Commons Attribution (CC BY) license (https://creativecommons.org/licenses/by/4.0/).

















