A New Stainless-Steel Tube-in-Tube Damper for Seismic Protection of Structures
Abstract
Featured Application
Abstract
1. Introduction
2. Proposed Seismic Damper
3. Experimental Investigation
3.1. Material Testing
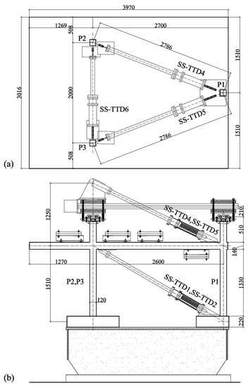
3.2. Shaking Table Dynamic Tests
3.3. Quasi-Static Cyclic Tests
4. Results and Discussion
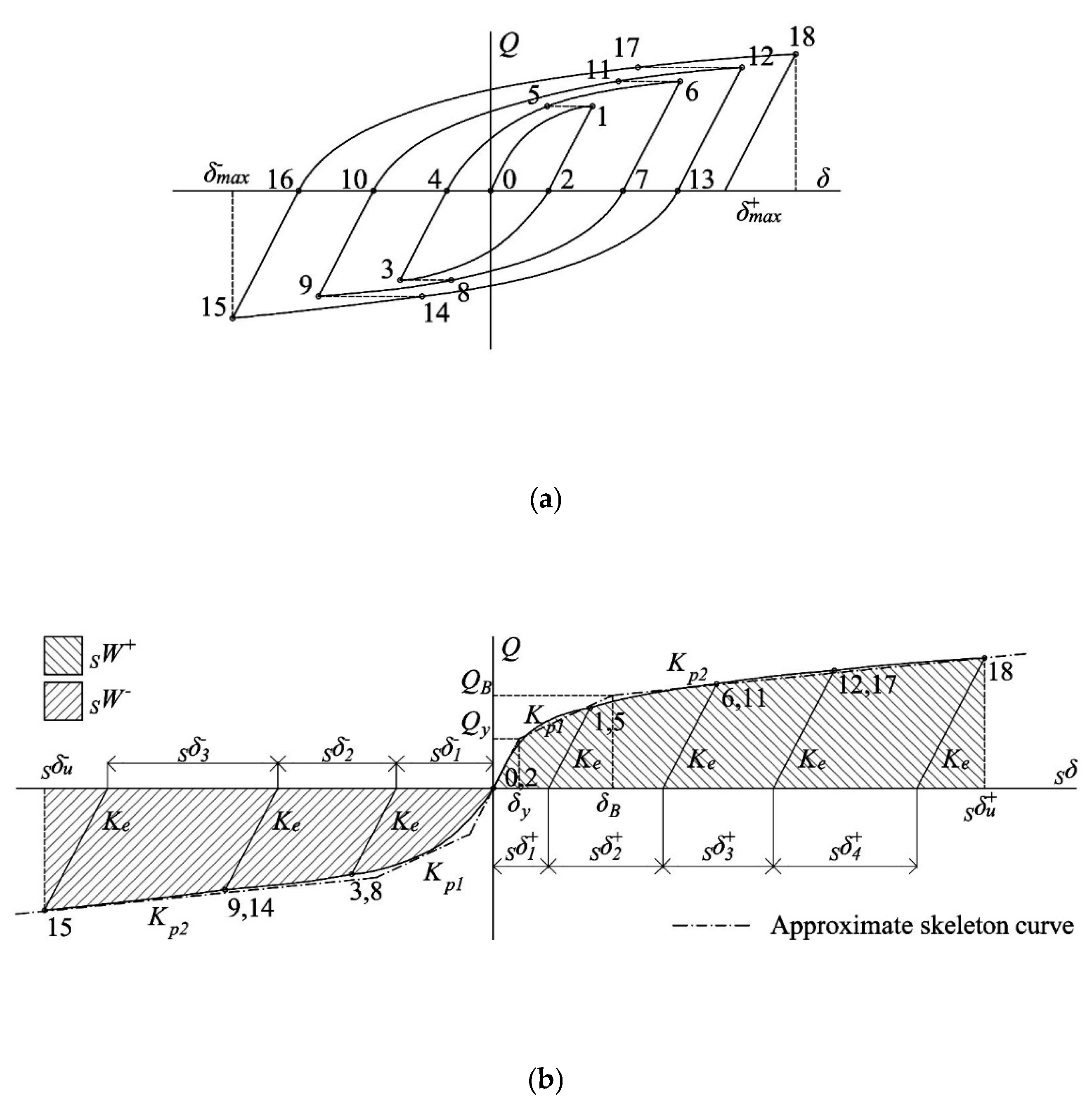
4.1. Hysteretic Behaviour
4.2. Ultimate Energy Dissipation Capacity and Prediction of Failure
5. Numerical Characterization
5.1. Polygonal Model
5.2. Bouc‒Wen Model
5.3. Comparison and Validation
6. Conclusions
- The new damper exhibits a stable hysteretic behaviour until failure, with minor reduction of the peak strength under repeated cycles of constant amplitude.
- For realistic values of the maximum ductility demand (3‒9), the force‒displacement curves are exempt from geometric nonlinearity effects that cause spurious increases of the restoring force; such geometric nonlinearities start at a displacement ductility larger than about 12.
- The force‒displacement curve of the SS-TTD was split into the so-called skeleton part and the Bauschinger part, and the ultimate energy dissipation capacity of SS-TTD in each part was quantitatively evaluated; furthermore, a procedure to predict the failure of the damper based on this decomposition is proposed.
- The ultimate energy dissipation capacity of the SS-TTD, expressed in terms of the amount of energy that can be dissipated consuming only the Bauschinger part, is 3- and 16-fold higher than that of slit-type plates made of mild steel and high-strength steel, respectively. Further, the cumulative ductility of the SS-TTD exceeds by more than four times the values reported in the literature for similar slit-type steel plate dampers.
- Two numerical models are proposed to characterise the hysteretic behaviour of the SS-TTD: a polygonal model based on the decomposition into the skeleton and Bauschinger parts of the force‒displacement curves, and a smooth model that uses the Bouc‒Wen formulation. Although both models adequately reproduce the response obtained experimentally, the former predicts the energy dissipation path and failure of the damper better, while the latter reproduces the shape of the hysteretic loops more accurately.
Author Contributions
Funding
Conflicts of Interest
References
- Soong, T.T.; Spencer, B.F. Supplemental energy dissipation: State-of-the-art and state-of-the-practice. Eng. Struct. 2002, 24, 243–259. [Google Scholar] [CrossRef]
- Spencer, B.F.; Nagarajaiah, S. State of the art of structural control. J. Struct. Eng. 2003, 129, 845–856. [Google Scholar] [CrossRef]
- Saaed, T.E.; Nikolakopoulos, G.; Jonasson, J.; Hedlund, H. A state-of-the-art review of structural control systems. J. Vibrat. Control. 2015, 21, 919–937. [Google Scholar] [CrossRef]
- Housner, G.W.; Bergman, L.A.; Caughey, T.K.; Chassiakos, A.G.; Claus, R.O.; Masri, S.F.; Skelton, R.E.; Soong, T.T.; Spencer, B.F.; Yao, J.T.P. Structural control: Past, present, and future. J. Eng. Mech. 1997, 123, 897–971. [Google Scholar] [CrossRef]
- Javanmardi, A.; Ibrahim, Z.; Ghaedi, K.; Benisi Ghadim, H.; Hanif, M.U. State-of-the-art review of metallic dampers: Testing, development and implementation. Arch. Comput. Meth. Eng. 2019, 26, 1–24. [Google Scholar] [CrossRef]
- Chan, R.W.K.; Albermani, F. Experimental study of steel slit damper for passive energy dissipation. Eng. Struct. 2008, 30, 1058–1066. [Google Scholar] [CrossRef]
- Teruna, D.R.; Majid, T.A.; Budiono, B. Experimental study of hysteretic steel damper for energy dissipation capacity. Adv. Civ. Eng 2015, 631726. [Google Scholar] [CrossRef]
- Lee, C.; Ju, Y.K.; Min, J.; Lho, S.; Kim, S. Non-uniform steel strip dampers subjected to cyclic loadings. Eng. Struct. 2015, 99, 192–204. [Google Scholar] [CrossRef]
- Lee, C.; Lho, S.; Kim, D.; Oh, J.; Ju, Y.K. Hourglass-shaped strip damper subjected to monotonic and cyclic loadings. Eng. Struct. 2016, 119, 122–134. [Google Scholar] [CrossRef]
- Amiri, H.A.; Najafabadi, E.P.; Estekanchi, H.E. Experimental and analytical study of block slit damper. J. Constr. Steel Res. 2018, 141, 167–178. [Google Scholar] [CrossRef]
- Benavent-Climent, A. A brace-type seismic damper based on yielding the walls of hollow structural sections. Eng. Struct. 2010, 32, 1113–1122. [Google Scholar] [CrossRef]
- Benavent-Climent, A.; Oh, S.; Akiyama, H. Ultimate energy absorption capacity of slit-type steel plates subjected to shear deformations. J. Struct. Constr. Eng. 1998, 503, 139–147. [Google Scholar] [CrossRef]
- Nip, K.H.; Gardner, L.; Elghazouli, A.Y. Cyclic testing and numerical modelling of carbon steel and stainless steel tubular bracing members. Eng. Struct. 2010, 32, 424–441. [Google Scholar] [CrossRef]
- The International Organization for Standardization (ISO). Metallic Materials. Tensile Testing. Part 1: Method of Test at Room Temperature; UNE-EN ISO 6892-1:2016; The International Organization for Standardization (ISO): Madrid, Spain, 2017. [Google Scholar]
- Ministerio de Fomento. Instrucción de Hormigón Estructural. In Estructuras de Hormigón estructural (EHE-08); Centro Publicaciones: Madrid, Spain, 2008. [Google Scholar]
- Ministerio de Fomento. Norma de Construcción Sismorresistente. In Parte General y Edificación (NSCE-02); Centro Publicaciones: Madrid, Spain, 2003. [Google Scholar]
- Benavent-Climent, A.; Gale-Lamuela, D.; Donaire-Avila, J. Energy capacity and seismic performance of RC waffle-flat plate structures under two components of far-field ground motions: Shake table tests. Earthq. Eng. Struct. Dyn. 2019, 48, 949–969. [Google Scholar] [CrossRef]
- ATC. Guidelines for Cyclic Seismic Testing of Components of Steel Structures; Applied Technology Council: Redwood City, CA, USA, 1992. [Google Scholar]
- Cadoni, E.; Fenu, L.; Forni, D. Strain rate behaviour in tension of austenitic stainless steel used for reinforcing bars. Constr. Build. Mater. 2012, 35, 399–407. [Google Scholar] [CrossRef]
- Lichtenfeld, J.A.; Mataya, M.C.; Van Tyne, C.J. Effect of strain rate on stress-strain behavior of alloy 309 and 304L austenitic stainless steel. Metall. Mater. Trans. 2006, 37, 147–161. [Google Scholar] [CrossRef]
- Lee, W.S.; Lin, C.F.; Chen, B.T. Tensile properties and microstructural aspects of 304L stainless steel weldments as a function of strain rate and temperature. Proc. Inst. Mech. Eng. Part C-J. Eng. Mech. Eng. Sci. 2005, 219, 439–451. [Google Scholar] [CrossRef]
- Benavent-Climent, A.; Donaire-Avila, J.; Oliver-Saiz, E. Shaking table tests of a reinforced concrete waffle–flat plate structure designed following modern codes: Seismic performance and damage evaluation. Earthq. Eng. Struct. Dyn. 2016, 45, 315–336. [Google Scholar] [CrossRef]
- Chopra, A.K. Dynamics of Structures; Prentice Hall: Englewood Cliffs, NJ, USA, 1995; Volume 3. [Google Scholar]
- Benavent-Climent, A. An energy-based damage model for seismic response of steel structures. Earthq. Eng. Struct. Dyn. 2007, 36, 1049–1064. [Google Scholar] [CrossRef]
- Kato, B.; Akiyama, H.; Yamanouchi, H. Predictable Properties of Structural Steels Subjected to Incremental Cyclic Loading. In IABSE Symposium on Resistance and Ultimate Deformability of Structures Acted on by Well-Defined Loads; IABSE-AIPC-IVBH Publications: Lisbon, Portugal, 1973; pp. 119–124. [Google Scholar]
- Jiao, Y.; Shimada, Y.; Kishiki, S.; Yamada, S. Study of Energy Dissipation Capacity of Steel Beams Under Cyclic Loading. In Behaviour of Steel Structures in Seismic Areas STESSA; CRC Press: Boca Raton, FL, USA, 2009. [Google Scholar]
- Baber, T.T.; Noori, M.N. Random vibration of degrading, pinching systems. J. Eng. Mech. 1985, 111, 1010–1026. [Google Scholar] [CrossRef]
- SAP2000. CSI Analysis Reference Manual; Computers and Structures Inc.: Berkeley, CA, USA, 2017. [Google Scholar]
- OpenSees. Open System for Earthquake Engineering Simulation; Pacific Earthquake Engineering Research Center: Berkeley, CA, USA, 2010. [Google Scholar]
- Wen, Y.K. Method for Random Vibration of Hysteretic Systems. J. Eng. Mech. Div. ASCE 1976, 102, 249–263. [Google Scholar]
- Haukaas, T.; Der Kiureghian, A. Finite Element Reliability and Sensitivity Methods for Performance-Based Earthquake Engineering. In Proceedings of the Pacific Earthquake Engineering Research Center College of Engineering; University of California: Berkeley, CA, USA, 1 April 2004. [Google Scholar]
- Noori, M.N.; Padula, M.D.; Davoodi, H. Application of an Itô-based approximation method to random vibration of a pinching hysteretic system. Nonlinear. Dyn. 1992, 3, 305–327. [Google Scholar] [CrossRef]
- Sivaselvan, M.V.; Reinhorn, A.M. Hysteretic models for deteriorating inelastic structures. J. Eng. Mech. 2000, 126, 633–640. [Google Scholar] [CrossRef]
- Wu, M.; Smyth, A. Real-time parameter estimation for degrading and pinching hysteretic models. Int. J. Non-Linear Mech. 2008, 43, 822–833. [Google Scholar] [CrossRef]
- Bursi, O.S.; Ceravolo, R.; Erlicher, S.; Zanotti Fragonara, L. Identification of the hysteretic behaviour of a partial-strength steel-concrete moment-resisting frame structure subject to pseudodynamic tests. Earthq. Eng. Struct. Dyn. 2012, 41, 1883–1903. [Google Scholar] [CrossRef]




























| Strain Rate mm/mm/s | σ0.2% MPa | σu MPa | σy MPa | Qy kN | σb MPa | Qb kN | εy % | δymm | εb % | εu % |
|---|---|---|---|---|---|---|---|---|---|---|
| 0.003 | 377 ± 15 | 604 ± 30 | 250 ± 5 | 15.50 | 405 ± 15 | 25.14 | 0.12 ± 0.05 | 1.08 | 0.40 ± 0.01 | 46 ± 1 |
| 0.115 | 529 ± 6 | 709 ± 16 | 400 ± 10 | 24.83 | 560 ± 15 | 34.76 | 0.20 ± 0.01 | 1.73 | 0.57 ± 0.02 | 44 ± 2 |
| h | b | t | σy | δy | Qy | μ | μCUM | η | ξ | |
|---|---|---|---|---|---|---|---|---|---|---|
| Reference | (mm) | (mm) | (mm) | (MPa) | (mm) | (kN) | (%) | |||
| Chan [6] | 77–99 | 15–17 | 8 | 316 | 1.2–1.7 | 11.5–17.5 | 8–11 | 380–490 | 370–460 | 30–50 |
| Teruna [7] | 240 | 70–90 * | 20 | 292 | 2.5–3.4 | 114–176 | 10–20 | 80–125 | 325–700 | 40–50 |
| Lee [8] | 180 | 30–36 * | 10 | 300 | 0.8–1.2 | 73–83 | 30–38 | 380–660 | 1200–2200 | 44–51 |
| Lee [9] | 180 | 36 * | 10 | 308 | 1.0–1.5 | 78–89 | 20–35 | 370–480 | 1000–1400 | - |
| Amiri [10] | 80 | 14–28 * | 20 | 241 | 1.1–1.5 | 30–71 | 20–28 | 390–480 | 558–642 | 36–43 |
| Benavent [11] | 20–80 | 15–20 | 8–12 | 449 | 0.2–0.5 | 51–332 | 30–60 | 480–720 | 407–774 | - |
| This study | 80 | 5 | 4 | 250–400 | 1.1–1.7 | 15.5–24.8 | 12–17 | 1728–2707 | 3332–3766 | 30 |
| Specimen | η | μCUM | Bη/Sη | ||||
|---|---|---|---|---|---|---|---|
| SS-TTD5 | 17.6 9.3 | 37 41 | 1643 1611 | 1680 1652 | 3332 | 1912 | 41.7 |
| SS-TTD6 | 22.5 28.4 | 54 66 | 1700 1633 | 1754 1699 | 3453 | 1728 | 27.8 |
| SS-TTD4 | 9.3 6.5 | 16 10 | 1884 1856 | 1900 1866 | 3766 | 2707 | 143.8 |
© 2020 by the authors. Licensee MDPI, Basel, Switzerland. This article is an open access article distributed under the terms and conditions of the Creative Commons Attribution (CC BY) license (http://creativecommons.org/licenses/by/4.0/).
Share and Cite
González-Sanz, G.; Escolano-Margarit, D.; Benavent-Climent, A. A New Stainless-Steel Tube-in-Tube Damper for Seismic Protection of Structures. Appl. Sci. 2020, 10, 1410. https://doi.org/10.3390/app10041410
González-Sanz G, Escolano-Margarit D, Benavent-Climent A. A New Stainless-Steel Tube-in-Tube Damper for Seismic Protection of Structures. Applied Sciences. 2020; 10(4):1410. https://doi.org/10.3390/app10041410
Chicago/Turabian StyleGonzález-Sanz, Guillermo, David Escolano-Margarit, and Amadeo Benavent-Climent. 2020. "A New Stainless-Steel Tube-in-Tube Damper for Seismic Protection of Structures" Applied Sciences 10, no. 4: 1410. https://doi.org/10.3390/app10041410
APA StyleGonzález-Sanz, G., Escolano-Margarit, D., & Benavent-Climent, A. (2020). A New Stainless-Steel Tube-in-Tube Damper for Seismic Protection of Structures. Applied Sciences, 10(4), 1410. https://doi.org/10.3390/app10041410

