Abstract
The benefits of choosing refurbishment over new build have recently been brought into focus for reducing environmental impacts of buildings. This is due to the fact that the existing buildings will comprise the majority of the total building stocks for years to come and hence will remain responsible for the majority of greenhouse gas emissions from the sector. This paper investigates the total potentials of sustainable refurbishment and conversion of the existing buildings by adopting a holistic approach to sustainability. Life Cycle Assessment (LCA) and questionnaires have been used to analyse the environmental impact savings (Co2e), improved health and well-being, and satisfaction of people living in refurbished homes. The results reported in the paper are based on a two year externally funded research project completed in January 2013.
1. Introduction
The construction industry globally consumes around 40% of global raw stone, gravel, and sand; 20% of virgin wood; and consumes about 40% of total energy [1]. The national share of energy consumption of the buildings varies in different countries varying between 25–50% [2]. In the European Union it is about 50% [3]. In the UK, emissions from the domestic building stock accounts for approximately 30% of total energy demand producing 41.7 million tonnes of carbon in 2004 representing 27% of total UK carbon emissions [4].
There is an increasing interest in reusing the existing buildings through refurbishment and conversion where possible compared with developing new ones as building reuse should offer environmental savings over demolition and new construction [5]. This is due to the fact that sustainability cannot be achieved without addressing the existing buildings as the impact of new buildings, even if all are sustainable, will be minimal for years to come due to composition of old and new stock [6]. Bell [7] reiterates this by stating that in the UK and Europe the building stock has a long life and replacement rates are very low. Bell argues that with replacement rates of less than 0.1% and new building rates of over 1% construction activity results in stock growth rather than replacement [7]. Bell concludes that although improving the energy performance standards of new buildings is important, it would require a dramatic change in replacement rates for this to make a significant contribution to CO2 reductions in the next 50 to 100 years.
The potential for refurbishment in the UK is significant due to the current composition of the building stock and the preferred public attitude towards the older stock. The Empty Homes Agency [8] indicates that there are 288,763 long-term empty homes in England and, that there may be potential for over 400,000 residential units in unused commercial and industrial buildings. The benefits of choosing refurbishment over new build have also been brought into focus as the existing buildings will comprise the majority of the total building stocks for years to come and hence will remain responsible for the majority of greenhouse gas emissions from the sector [9]. This is due to the fact that for example homes existing in 2006 could make up 70% of the total housing stock in the UK in 2050 [10].
2. Aims and Objectives
This research has three basic aims:
- (1)
- to analyse the environmental impacts of different stages of building refurbishment through whole life cycle analysis;
- (2)
- to compare the energy performance of refurbished dwellings with new built;
- (3)
- to analyse users’ satisfaction and well being in refurbished homes.
The discussion and conclusions will draw on actual experience of refurbishing an existing building to provide social housing for the housing association tenants.
3. Methodology
The research has adopted a triangulated methodological approach consisting of desk study and questionnaires. The research has used a case study focusing on refurbishing of an existing building by a housing association to provide social housing in the UK. The case study enabled a detailed analysis of the sustainability potential of building refurbishment through quantifying carbon emissions of different stages of whole life building emissions. The method used for calculating carbon emissions include the methodology used by Bath University’s ICE model [11] for estimating the CO2e emitted during extraction, manufacture and transport of building materials. The operational energy demands of the refurbished building were calculated using Standard Assessment Procedure (SAP) [12] adopted by the UK government as part of the national methodology for demonstrating compliance with building regulations and for providing energy ratings for dwellings. Defra’s conversion factors [13] were used for converting energy use (kWh) to carbon emissions (CO2e). For other stages of whole life impacts, carbon emissions were derived from the literature.
A building user satisfaction survey was conducted using Building Use Studies (BUS) [14] questionnaire to analyse satisfaction and well being of tenants living in their refurbished homes. The qualitative data was extracted from the questionnaire comprising three sections with a total number of 20 questions to investigate occupants’ satisfactions with different aspects of their homes including comfort, personal control, as well as spatial and characteristic qualities of their homes.
4. Refurbishment
Refurbishment is a building operation that occurs when a range of building activities need to be undertaken together, often due to a combination of obsolescence and deterioration [15]. It may also be considered as reuse of a whole building following a process of modifications and alternations. Refurbished buildings present an opportunity to add value and reduce the carbon cost of buildings through improved energy efficient design. In general, refurbishment provides excellent opportunities for improving energy efficiency, although it can sometimes increase energy consumption where services are enhanced, e.g., by the introduction of air conditioning [16].
To achieve a sustainable refurbishment all principles of sustainable energy efficient building design should be exhausted where appropriate. Apart from building orientation and form that usually stay the same, all other main design parameters including internal layout alterations, fenestration alterations, upgrading insulation, enhancing ventilation, improving air tightness, adjusting thermal mass and landscaping to improve microclimate should be considered. Refurbishment of the old buildings should also result in building’s ability to promote the health and well-being of its occupants. Porteous [17] identifies this as one of the main aspects of the notion of the eco-footprint. Refurbishment of the existing buildings offers opportunities to revitalize communities through social and economic enhancement. It may also contribute to safeguarding community heritage and preserving the sense of the attachment to place. These though may be difficult to quantify, will enhance quality of life and well being of the community. This is due to the fact that buildings have strong social and cultural roots which relate them tightly into the physical and social character of their locations. In addition to cultural and economic values, environmental factors also justify building conservation in the form of refurbishment over new build when possible. Power [18] lists major social, economic and environmental benefits of refurbishment as; reductions in the transport costs, reduced landfill disposal, greater reuse of materials, reuse of infill sites and existing infrastructure, reduced new building on flood plains, local economic development, retention of community infrastructure, neighbourhood renewal and management. On the social issues of housing need and fuel poverty, Power also argues that refurbishment and infill building are socially more acceptable, cheaper and create far lower environmental impact, while reducing fuel poverty [18].
5. Barriers to Refurbishment
The prevailing refurbishment practice may represent some obstacles for the implementation of technologies that are innovative, ecological and capable of reducing operating costs [19]. The barriers may fall into different categories such as financial, legislative, and uncertainties, which could potentially be associated with refurbishment. In urban areas for example, due to financial incentives associated with higher densities and maximizing the potential of land, developers may look for vacant land or for sites the buildings on which could be easily demolished to increase the potential of land. In some cases the buildings may prematurely demolish where the price of land is soaring and there is potential for building higher.
Regulations, building codes and standards are usually biased towards new build and do not always encourage refurbishment of existing buildings. For example, in response to the challenge of climate change, the UK has introduced some ambitious codes and standards in order to reduce the energy requirement of buildings resulting in reduced CO2 emissions with a view to make them completely carbon neutral in the future. Although this is a right move, the codes, e.g., Codes for Sustainable Homes (CSH) [20] do not address the existing buildings making it more difficult for the profession to deal with the regulatory requirement when it comes to reuse.
To overcome these barriers there is a need for financial and technical resources to facilitate the uptake of reuse of buildings. Highfield [21] for example, argues that in the UK the Government should play a major role in encouraging refurbishment as alternatives to new build where appropriate by offering more incentives beyond Value Added Tax (VAT) exemption on conversion from commercial properties to domestic dwellings. The Commission for Architecture and the Built Environment (CABE) also raises concerns about complications in the VAT regime whereby VAT is applicable to refurbishment but not new build [22].
Planning may also provide a barrier to refurbishment adopting energy efficiency improvements particularly in conservation areas where the exercise may be involved in altering the external appearance of buildings for example through the application of external insulation of solid wall or the installation of micro renewable energy systems [23].
6. Results and Discussion
6.1. Housing Case Study Refurbishment
The existing housing stock in the UK currently consists of approximately 22.2 million dwellings of which 18.3 million are owned privately with the remaining in the public sector ownership [24]. The UK has the oldest housing stock in the developed world with 8.5 million properties over 60 years old [25]. Around two-thirds of the existing housing stock within the UK pre-dates the introduction of any mandatory energy conservation requirements [26]. The Sustainable Development Commission suggests that 70% of the UK’s 2050 housing stock has already been built [10]. The special nature of the housing stock in the UK therefore makes it crucial to adapt existing homes to reduce the environmental impacts of domestic buildings.
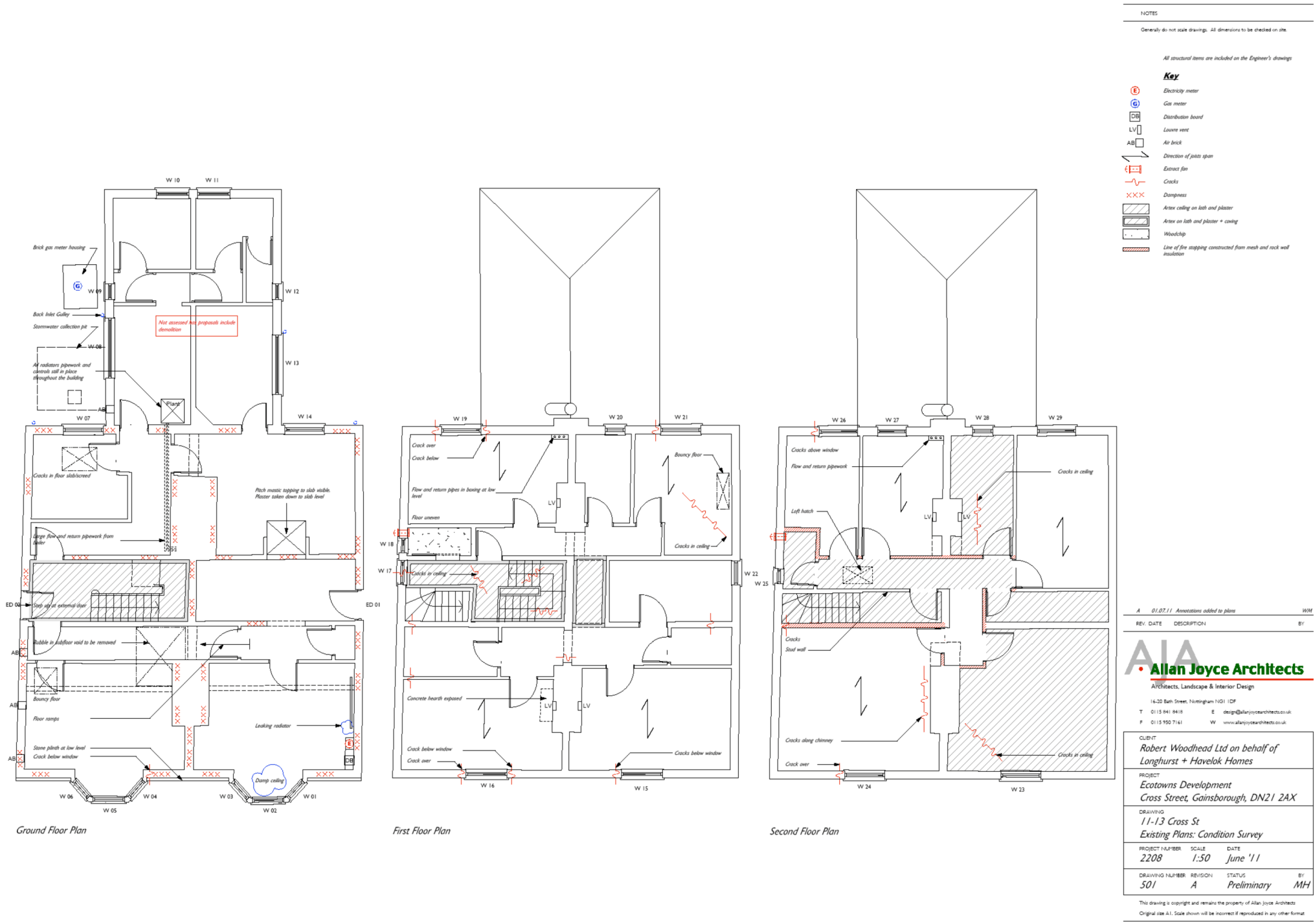
Registered Social Landlords (RSL), comprising housing associations and owner occupiers together own around 7% of the housing stock in the UK [27]. This research investigates the sustainability potential of a recently completed (June 2012) housing refurbishment project by a Registered Social Landlord, Longhurst Housing Association, as parts of a two year (2011–2013) research project evaluating means of providing sustainable homes. The building is situated at Cross Street in Gainsborough, UK, a narrow Street a short walk from the city centre. The building, which was originally constructed in the mid 19th Century as a house, was converted to offices through internal alterations and was occupied by West Lindsey District Council (WLDC) for many Years. The building was vacated when the Council moved to its nearby new offices. As parts of a social housing development project, the building has been refurbished and converted back to housing forming three residential units. Figure 1 shows the building before and after refurbishment. Figure 2 shows floor plan arrangements of the building before refurbishment. Figure 3 shows new floor arrangements after refurbishment.
Figure 1.
Cross Street Building (a) before; and (b) after refurbishment.
Figure 1.
Cross Street Building (a) before; and (b) after refurbishment.

Figure 2.
Floor plans before refurbishment (Drawings: Allan Joyce Architects [28]).
Figure 2.
Floor plans before refurbishment (Drawings: Allan Joyce Architects [28]).

Figure 3.
New floor plans after refurbishment (Reproduced based on the drawings by Allan Joyce Architects [28]).
Figure 3.
New floor plans after refurbishment (Reproduced based on the drawings by Allan Joyce Architects [28]).

The environmental philosophy behind the refurbishment of the Cross Street Building is to use the potential of upgrading the building envelop to reduce energy use and enhance occupants’ comfort. The project also aims at demonstrating how similar historic properties may be refurbished while retaining their historic characters. The existing features of the building are retained and the missing or damaged original features are replicated where appropriate to resurrect the original characters of the building. New double glazed windows are constructed from timber to match the detail of the originals as far as possible. Table 1 lists the specifications of the main refurbishment measures and new construction elements.
In order to improve the thermal performance of the building envelope, an independent light weight insulated wall was added internally to the existing external walls. Vapour check membrane fixed to studs with all joints sealed at laps, perimeter, junctions and penetrations for air tightness. Existing party wall lined to upgrade sound and fire insulation. Three layers of insulation were laid between the existing ceiling joists in the loft space to form a total thickness of 400 mm. As the existing ground floor was not sound it was removed and replaced with a new concrete floor.
6.2. Building Users’ Satisfaction
Post occupancy users’ satisfaction evaluations were carried out to measure in use building performance of the refurbished homes. The surveys of occupants are based on the questionnaire used by Building Use Studies (BUS) as parts of the Probe Process [14]. BUS methodology was originally developed in 1985 as parts of study of “sick buildings” has been developed over the last decades to evaluate different aspects of building user satisfaction. BUS is widely used in the UK as parts of the Technology Strategy Board’s (TSB) Domestic Building Evaluation Projects [29]. Areas analyzed include comfort (thermal, visual and aural), building characteristics, users’ interaction and control over environmental systems. In addition to the 20 questions, the questionnaire had additional spaces for respondents to elaborate on their responses.
Table 1.
Specifications of the main refurbishment measures and new construction elements.
| Elements | Specific Characteristics |
|---|---|
| New Ground Floor (U-Value 0.20W/m2K) | Existing floor was removed and replace by a new floor made of; |
| 150 mm in situ concrete slab, 1200 gauge separating membrane with min 150 mm taped lap joints, 100 mm Kingspan K3 floorboard with min 20 mm upstands to perimeter, 2000 gauge polythene DPM with min 150 mm taped lap joints, 50 mm sand blinding, and 300 mm compacted hardcore. | |
| Floors and ceilings | New independent ceiling erected for ground floor units comprising of 55 × 150 mm sw ceiling joists @ 400 c/cs, 2 no. layers of 12.5 mm Soundbloc with 100 mm mineral wool insulation above. |
| Intermediate floors were overlaid with 12 mm plywood to receive new floor finish. | |
| Loft insulation 100 mm Knauf Loft Roll 44 with 2 no. layers of 150 mm Knauf Loft Roll 44 laid over to achieve a total thickness of 400 mm. | |
| Roof (U-Value 0.16W/m2K) | Existing roof covering was removed and replaced with new natural slate roof. |
| External Walls (U-Value 0.29W/m2K) | Existing 225 mm solid brick walls were improved by a new independent wall lining formed with 70 mm metal studs set 55 mm from internal face of wall, 100 mm Dritherm Cavity Slab 37 between studs, vapour check membrane fixed to studs with all joints sealed at laps, perimeter, junctions and penetrations for air tightness, 12.5 mm Duplex Wallboard with skim finish fixed to studs. |
| Party walls | Existing brick party wall (nominal 225 mm thick) was upgraded with Gyproc wall lining system with 15 mm soundblock on plaster dobs and skim finish on both sides. |
| Openings in the party wall were filled with new 100 mm thick dense blockwork laid flat to create 215 mm thick wall, 13 mm plaster on both sides, Gyproc wall lining system with 15 mm soundblock on plaster dobs and skim finish on both sides. | |
| Existing brick party stair wall (nominal 110 mm thick) was upgraded with new wall lining to flat side only with 15 mm Phonewell fixed to resilient bars and 15 mm Gyproc Soundbloc with skim finish. | |
| Openings in the party stair wall were filled with new 100 mm thick dense brickwork with new wall lining to flat side only with 15 mm Phonewell fixed to resilient bars and 15 mm Gyproc Soundbloc with skim finish. | |
| Internal walls | New non load bearing walls formed with 70 mm metal stud 600 mm c/cs boarded both side with 12.5 mm soundbloc and skim, 25 mm mineral wool between studs. |
| Openings in the load bearing masonry walls were filled with new 100 mm medium density blockwork with 3 mm plaster finish to both sides. | |
| Windows and doors | Windows were replaced with new double glazed windows constructed from timber to match the detail of the originals as far as possible. |
| External doors: New timber door with double glazed fanlight over. | |
| Internal doors: New timber doors. | |
| Staircases | Existing staircases were removed and replaced with new timber private staircases with additional fire protection and sound insulation where required. |
Table 2 shows dwelling types, floor areas, and number of occupants for the three housing units created in the Cross Street development. Through the evaluation exercise the occupants provided responses to questions about their sensation and expectation of environmental, spatial and characteristics quality of their homes on a seven-point psycho-physical scale. Table 3 shows occupants’ votes on different aspects of comfort including air temperature, air quality, noise and lighting. Table 4 lists responses to the questions on how much control the building users have over environmental aspects of their dwellings. Table 5 outlines the users’ perceptions regarding spatial and characteristics qualities of their homes. Apart from some concerns about noise levels and its control, the shortage of storage in flats 9 and 11, the majority of responses recorded indicate a good level of satisfaction with different aspects of refurbished housing units. Figure 4 shows the cumulative votes cast by the tenants. As depicted in the figure, the majority of the votes refer to the optimum/neutral scale (rating 4) and satisfaction (rating 7).
Table 2.
Housing units’ characteristics and occupancy patterns in Cross Street Development.
| Address | Symbol | Dwelling Type | Total Floor Area (m2) | Occupancy | ||
|---|---|---|---|---|---|---|
| Adults | Teenagers | Children | ||||
| Flat 7 | B | Ground-floor flat | 37 | 1 | 0 | 0 |
| Flat 9 | C | Ground-floor flat | 94 | 2 | 0 | 2 |
| House 11 | D | Semi-detached house | 131 | 1 | 2 | 2 |
Table 3.
Building Use Studies (BUS) surveys: comfort analysis.
| Variables | Sensations | Ratings | Sensations | |||||||
|---|---|---|---|---|---|---|---|---|---|---|
| 1 | 2 | 3 | 4 | 5 | 6 | 7 | ||||
| Air Temperature | Uncomfortable | - | - | - | - | - | - | CD | Comfortable | |
| Too hot | - | - | - | CD | - | - | - | Too cold | ||
| Varies | - | - | C | D | - | - | - | Stable | ||
| Air Quality | Draughty | - | - | - | D | - | - | - | Still | |
| Stuffy | - | - | - | D | C | - | - | Fresh | ||
| Smelly | - | - | - | - | C | - | D | Odorless | ||
| Noise | From people between rooms | Too much | - | - | - | CD | - | - | - | Too Little |
| From neighbors | Too much | D | C | - | - | - | - | - | Too Little | |
| From outside | Too much | - | - | - | CD | - | - | - | Too Little | |
| Lighting | Natural | Too little | - | - | - | CD | - | - | - | Too much |
| Artificial | Too little | - | - | - | CD | - | - | - | Too much | |
Symbols: C; Flat 9, D; House 11.
Table 4.
Building Use Studies (BUS) surveys: Building user control on environmental aspects.
| Variables | Sensations | Ratings | Sensations | |||||||
|---|---|---|---|---|---|---|---|---|---|---|
| 1 | 2 | 3 | 4 | 5 | 6 | 7 | ||||
| Personal control | Heating | No control | - | - | - | D | - | - | BC | Full Control |
| Cooling | No control | - | - | - | D | - | - | C | Full Control | |
| Ventilation | No control | - | - | - | D | - | - | BC | Full Control | |
| Lighting | No control | - | - | - | D | - | - | BC | Full Control | |
| Noise | No control | BC | C | - | - | - | - | Full Control | ||
Symbols: B; Flat 7, C; Flat 9, D; House 11
Table 5.
Building Use Studies (BUS) surveys: User perceptions regarding spatial and characteristic qualities of housing units and the building.
| Variables | Sensations | Ratings | Sensations | |||||||
|---|---|---|---|---|---|---|---|---|---|---|
| 1 | 2 | 3 | 4 | 5 | 6 | 7 | ||||
| Building Characteristics | Space | Not enough | - | - | - | - | - | C | BD | Enough |
| Layout | Poor | - | - | - | CD | - | - | B | Good | |
| Storage | Not enough | CD | - | B | C | - | - | - | Enough | |
| Appearance | Poor | - | - | - | - | C | - | BD | Good | |
Symbols: B; Flat 7, C; Flat 9, D; House 11.
Figure 4.
Cumulative votes cast in response to different dimensions of the Building Use Studies (BUS) surveys.
Figure 4.
Cumulative votes cast in response to different dimensions of the Building Use Studies (BUS) surveys.

6.3. Life Cycle Assessment
The construction industry has become increasingly concerned about understanding the whole life impact of buildings as different stakeholders in the industry are shifting their focus towards declaration of the greenhouse gas (GHG) emissions and carbon footprints of buildings [30]. A widely used procedure for better understanding and reducing environmental impacts of buildings is life cycle assessment (LCA), a framework defined by the International Organization for Standardization (ISO) 14,040 [31] and 14,044 [32] standards. While Scheuer et al. [33] assert the importance of LCA of whole buildings to identify and evaluate how key design parameters will influence a building’s environmental performance, Li [34] states that LCA and carbon footprinting approaches can not only quantify the building environmental burden but can also show reduction measures.
The whole life of a building may be presented in three distinct stages namely the initial impact, the operational impact, and end of life impact for the purpose of carbon footprinting. The initial impact occurs prior to handover of the building to the occupier, operational impact occurs during the life of the building and finally end of life impact occurs when the building is deconstructed at its end of life [30]. The whole life building emissions are therefore the sum of the following emissions:
- Materials;
- Project management, construction process and waste generated;
- In use energy;
- Deconstruction.
All these stages involve a set of different calculations and modelling. The first two stages could be estimated at the outset of the project whilst the total emissions could be calculated as the project progresses. Stage 3 could be modelled with energy performance simulation tools however the actual measured data needs several years of monitored data recordings. Stage 4 is currently speculative and it is hoped that the future research in deconstruction would help in reducing uncertainties and improving accuracy at the end of life of buildings [35]. In the UK, the standard for life cycle carbon footprinting of products (with buildings seen as a particularly complicated type of product) is primarily based on ISO standards [31,32] and PAS 2050 [36].
6.3.1. Materials
Materials impact occurs because of up-front energy investment for extraction of natural resources, manufacturing, transportation, and installation of materials during the construction phase of the project. For this process to be effective, data used for converting quantities of materials to CO2 emissions must be appropriate to the specific products to be constructed in the building as they are identified from generic databases [30]. As there is an increase of imported materials in recent times to the UK’s construction market [37], it may prove difficult in some cases to accurately estimate the impacts of imported materials due to lack of credible data e.g., for transportation emissions and the impacts of up-front energy investment at the source.
Carbon footprinting of construction products in the UK can be drawn from two generic sources; Bath Inventory of Carbon and Energy (ICE) [11] and Ecoinvent [38] held within proprietary LCA software. Bath ICE [11] is one of the most useful and frequently quoted references providing data for a range of generic construction materials in the UK. For more specific products for which the data is not included in the Inventory, one may need to consult manufacturers and suppliers with limited levels of comparability in calculations.
The embodied energy of materials for the refurbished housing development at Cross Street is calculated based on mass of materials used in refurbishment of the building using Bath ICE [11]. Only the embodied emissions of the main materials used in the refurbishment of the Cross Street Building are considered. The effects of materials used for minor repairs, fixtures and fittings, sanitary services, electrical and mechanical services, sealants, and other minor elements are excluded. Table 6 lists the breakdown of CO2e emissions of building elements of the refurbished housing development at the Cross Street. The table shows the carbon cost of refurbishing the building. It does not include the embodied CO2e of the original materials and elements that were retained in the refurbished building. The total materials emissions is 29317 kgCO2e, resulting in a rate of 111.90 kgCO2e per square meter of gross internal floor area. This figure is slightly higher than the average figure of 104 CO2/m2 for the three refurbished houses in a study conducted by the Empty Homes Agency (EHA) [8]. The embodied energy figures are however much less than an average 475 kgCO2/m2 for conventionally constructed new build homes reported by the EHA [8]. EHA [8] and Yates [39] report that new homes may use four to eight times more resources than an equivalent refurbishment. This is because a considerable amount of existing structure and building elements may be saved depending on the nature of the building and the extent of the refurbishment. The Empty Homes Agency [8] finds that the potential saving in materials by reusing empty homes could result in an initial saving of 35 tonnes of carbon dioxide (CO2) per property by removing the need for the energy locked into new build materials and construction.
Table 6.
Breakdown of CO2e emissions of building elements of the refurbished housing development at Cross Street (all three new housing units).
| Building Elements | Initial kgCO2e | % of total initial impact | Replacement Cycle(year) | Whole life | % of total whole life impact |
|---|---|---|---|---|---|
| Ground Floor | 10,927.69 | 37.3 | Nil | 10,927.69 | 23.8 |
| Floors and ceilings | 7074.14 | 24.1 | Nil | 7074.14 | 15.4 |
| Roof slates | 177.78 | 0.6 | Nil | 177.78 | 0.4 |
| External walls | 4375.48 | 14.9 | Nil | 4375.48 | 9.5 |
| Party walls | 2094.08 | 7.1 | Nil | 2094.08 | 4.5 |
| Internal walls | 591.58 | 2 | Nil | 591.58 | 1.3 |
| Windows and External doors | 835.77 | 2.9 | 25 | 2507.31 | 5.4 |
| Internal doors | 72.73 | 0.3 | Nil | 72.73 | 0.2 |
| Internal finishes | 3000.02 | 10.2 | 10 | 18,000.12 | 39.1 |
| Staircases | 167.73 | 0.6 | Nil | 167.73 | 0.4 |
| Total material emissions | 29,317 | 100 | - | 45,988.64 | 100 |
| kgCO2e/m2 | 111.90 | - | - | 175.53 | - |
The life expectancy of the refurbished building at Cross Street is assumed to be of 60 years. This is a typical life expectancy used in LCA for domestic buildings. Replacement and decoration could considerably increase the materials burden of buildings during their useful life. As seen in Table 6, replacement of internal finishes, in this case mainly carpets and other floor finishes which assumed to take place every 10 years will considerably increase the whole life impact of the development. The replacement cycle of 10 year is based on assumptions made regarding the frequency of tenancy change in rented social housing and the fact that the housing provider or tenants may change the carpets at each handover stage. This necessitates careful consideration of interior design of buildings so that through robust design the need for frequent replacement of materials and components may be minimised.
6.3.2. Project Management and Construction Process
The project management impact includes design stage emissions as before a project reaches the site a considerable amount of time and money, depending on the size and complexity of the project, may be expended in the design and planning of the project. The impacts may also be because of stakeholders’ office utilities overheads, meetings organized in different places and transport to site, etc. The impact of construction process occurred on the site includes carbon emissions as a result of using fuels and utilities on site, transporting materials to site, removing waste from site, and emissions attributed to project management. In the UK, Building Research Establishment Environmental Assessment Method [40] best practice advocates documenting all fuel data and engine types for incoming/outgoing deliveries and water and mains supply. Emissions from removing waste from site may be calculated from the detailed breakdown of the type of waste produced and quantities sent for recycling or reuse recorded by waste-handling contractors.
In addition to savings made in material impacts, further savings are expected to be made in refurbishment and conversion compared with new build due to reduced construction time and waste. This is an important benefit of refurbishment as e.g., in the UK there is an increasing emphasis currently paid towards reducing construction waste as waste from construction and demolition accounts for around one quarter of all waste entering landfill with just 4% of the 70 million tones of building waste produced annually being recycled [41]. Due to the substantial impacts which may result from construction waste, the UK government in its Strategy for Sustainable Construction states that 25% of all materials used in construction need to be purchased through approved responsible sourcing schemes by 2012 [42].
The contractor of the Cross Street Building was not required to record emissions impact of the construction process. In absence of such data, it is assumed that the impact of the construction process and project management to be of the order of 5% of the embodied impact of materials used in the refurbishment of the building [43]. Similarly, a figure of 5% waste for the materials used is assumed for the Cross Street Building [43].
6.3.3. In-Use Energy
Operational energy of a building is the energy required to heat, cool, lit and to provide electrical services during its life span. Operational life of a building becomes an important factor considering the fact that a significant impact of building may occur during the useful life of the building. Operational energy of building varies considerably by the influence of parameters such as building envelope, building use patterns, building management and maintenance, climate and season, and the efficiency of the building and its systems [44]. Results reported in the literature indicate that the operational energy is still the largest component (approximately 85–95%) of the life-cycle energy consumption in the housing sector [45,46,47].
The operational energy demands of the three housing units after the refurbishment at Cross Street are calculated using Standard Assessment Procedure SAP [12]. Standard Assessment Procedure which utilises standardised regional climatic data is adopted by the UK government as part of the national methodology for demonstrating compliance with building regulations and for providing energy ratings for dwellings.
Table 7 shows the annual energy breakdown requirements and the associated CO2e emissions for the individual housing units together with those for the whole development. The space heating and hot water are provided by gas condensing boilers. Conversion factors for gas and electricity suggested by Defra [13] are used for converting energy use (kWh) to carbon emissions (CO2e).
Table 7.
Breakdown of annual in use energy and the associated CO2e emissions.
| Energy Requirements | Housing Units | kWh | kgCO2e /kWh | Kg CO2e | kWh/m2 | kgCO2e /m2 | Relative kWh % | Relative CO2e % |
|---|---|---|---|---|---|---|---|---|
| Space Heating | Flat 7 | 2834 | 0.18523 | 524.9 | 76.6 | 14.2 | 47.3 | 30.3 |
| Flat 9 | 4660 | 0.18523 | 863.2 | 49.6 | 9.2 | 48.6 | 31 | |
| House 11 | 7947 | 0.18523 | 1472 | 60.7 | 11.2 | 60.1 | 41.5 | |
| Hot water heating | Flat 7 | 1432 | 0.18523 | 265.3 | 38 | 7.2 | 23.9 | 15.3 |
| Flat 9 | 2115 | 0.18523 | 391.8 | 22.5 | 4.2 | 22.1 | 14.1 | |
| House 11 | 2252 | 0.18523 | 417.1 | 17.2 | 3.2 | 17 | 11.8 | |
| Electricity | Flat 7 | 1728 | 0.54522 | 942.1 | 46.7 | 25.5 | 28.8 | 54.4 |
| Flat 9 | 2813 | 0.54522 | 1533.7 | 29.9 | 16.3 | 29.3 | 54.9 | |
| House 11 | 3032 | 0.54522 | 1653.2 | 23.1 | 12.6 | 22.9 | 46.7 | |
| Total | Flat 7 | 5994 | - | 1732.3 | 162 | 46.8 | 100 | 100 |
| Flat 9 | 9588 | - | 2788.7 | 102 | 29.7 | 100 | 100 | |
| House 11 | 13231 | - | 3542.3 | 101 | 27 | 100 | 100 | |
| Whole Refurbished building (Flat 7+Flat 9+House 11) | Space heating | 15441 | 0.18523 | 2860.1 | 59 | 10.9 | 53.6 | 35.5 |
| Hot water Heating | 5799 | 0.18523 | 1074.2 | 22.1 | 4.1 | 20.1 | 13.3 | |
| Electricity | 7573 | 0.54522 | 4129 | 28.9 | 15.8 | 26.3 | 51.2 | |
| Total | 28813 | - | 8063.3 | 109.9 | 30.8 | 100 | 100 |
The annual space heating demands of housing units range from 49.6 to 76.6 kWh/m2. Annual hot water demands range from 17.2 to 38 kWh/m2. The total annual emissions of the housing units range from 1732.3 to 3542.3 kgCO2e. The estimated emissions are smaller than the average UK home which is responsible for between five and six tones of Co2 emissions every year [8]. The total annual operational emissions for all three units are of the order of 8063.3 kgCO2e.
Flat 7 with the smallest floor area has the highest hot water demand per square floor area. The energy use patterns, e.g., in terms of relative percentages, follow the trends reported in the literature. As buildings become more energy efficient in space heating with increased insulation levels and better air tightness, the relative contribution of hot water and household electricity to the total energy demand of the house will become more significant. This is especially the case for small dwellings, which usually have a greater energy use for water and electricity per unit of floor area [48].
The energy efficiency measures adopted are to bring the energy efficiency of the refurbished building to the level of typical new build developments currently built by the Housing Association. Table 8 compares the annual energy demands of the refurbished building with three other developments recently built by the Housing Association in the region. The operational energy demands of all developments are estimated using the Standard Assessment Procedure SAP [12]. The average annual energy demand per square metre of floor area for Jubilee Way development is 15% smaller than that of the Cross Street. The average annual energy demand per square metre of floor area for the Cross Street is however smaller than the corresponding values for Nettleham Mews and Cherry Blossom by 33% and 21% respectively.
Table 8.
Comparison of the annual energy demands of different developments.
| Developments | No of dwellings in the development | Floor area range m2 | 1Annual Energy use range kWh/m2 | 2Average energy use kWh/m2 | Average energy use difference compared with Cross Street % | |
|---|---|---|---|---|---|---|
| Cross Street | 3 | 37–131 | 101–162 | 109.97 | NA | |
| Jubilee Way | 24 | 61–83 | 89–103 | 93.68 | 85 | |
| Nettleham Mews | 19 | 59–92 | 129–165 | 146.14 | 133 | |
| Cherry Blossom | 18 | 62–69 | 129–144 | 133.01 | 121 | |
| Specifications | Cross Street Gainsborough DN21 2AX | 3Dwelling types: 2 GFF, 1 SDH | ||||
| Main heating: Gas Boiler and radiators | ||||||
| Main heating controls: time and temperature zone control | ||||||
| Secondary heating: none | ||||||
| Hot water: From main system | ||||||
| U-Values (W/m2K): Walls 0.29, Ground floor 0.20, Roof 0.16 | ||||||
| Windows: double glazing | ||||||
| Lighting: low energy lighting | ||||||
| Air tightness: not tested | ||||||
| Jubilee Way Navenby Lincoln LN5 0BF | 3Dwelling types: 3 GFF, 3 TFF, 10 SDH, 2 ETH, 2 MTH, 4 SDB | |||||
| Main heating: Gas Boiler and radiators | ||||||
| Main Heating controls: programmer, room thermostat and TRVs | ||||||
| Secondary heating: none | ||||||
| Hot water: From main system, plus solar | ||||||
| U-Values (W/m2K): Walls 0.24, Ground floor 0.24, Roof 0.15 | ||||||
| Windows: double glazing | ||||||
| Lighting: low energy lighting | ||||||
| Air tightness: air permeability 5.9 m3/h.m2 (as tested) | ||||||
| Nettleham Mews Lincoln LN2 4GU | 3Dwelling types: 4 GFF, 4 MFF, 3 TFF, 4 ETH, 4 MTH | |||||
| Main heating: Air source heat pump, radiators, electric | ||||||
| Main Heating controls: programmer, TRVs and bypass | ||||||
| Secondary heating: room heaters, electric | ||||||
| Hot water: From main system | ||||||
| U-Values (W/m2K): Walls 0.18, Ground floor 0.16, Roof 0.09 | ||||||
| Windows: double glazing | ||||||
| Lighting: low energy lighting | ||||||
| Air tightness: air permeability 3.9 m3/h.m2 (as tested) | ||||||
| Cherry Blossom, Cambridge Road, Grimsby DN34 5TR | 3Dwelling types: 6 GFF, 4 MFF, 8 TFF | |||||
| Main heating: Air source heat pump, radiators, electric | ||||||
| Main Heating controls: time and temperature zone control | ||||||
| Secondary heating: room heaters, electric | ||||||
| Hot water: From main system(compliant) | ||||||
| U-Values (W/m2K): Walls 0.25, Ground floor 0.20, Roof 0.11 | ||||||
| Windows: double glazing | ||||||
| Lighting: low energy lighting | ||||||
| Air tightness: air permeability 3.6 m3/h.m2 (as tested) | ||||||
1 The energy used for heating, lighting and hot water. This excludes energy use for running appliances like TVs, computers and cookers, and any electricity generated by micro generation; 2 Calculated as: Σ [floor area of dwelling (m2) × annual energy use of dwelling (kWh/m2 per year)]/total floor area of all dwellings in the development; 3 Dwelling types: GFF: Ground-Floor Flat, MFF: Mid-Floor Flat, TFF: Top-Floor Flat, SDH: Semi-Detached House, MTH: Mid-Terraced House, ETH: End-Terraced House, SDB: Semi-Detached Bungalow.
Similar conclusions regarding the potential of refurbishment in reducing the annual energy demands have been reported in the literature. For example, a study by the Empty Homes Agency [8] shows that refurbished houses can be as efficient as new homes. Power [18] discusses the environmental benefits of refurbishment arguing that existing homes can achieve as high environmental efficiency standards as current new build. Based on evidence reported by Sustainable Development Communities [49] bringing the energy efficiency of existing buildings to the level of current new build through refurbishment should reduce their energy in use by 60% or more. A sensitivity analysis carried out for Peabody housing stock to identify the potential of refurbishment also suggests that an average emission reduction of 60% could be achieved for a range of stock type [50]. The report suggests that the greatest percentage reduction up to 74% may be achieved for old buildings built before 1951 typically solid-walled bocks of flats [50]. The study also reports that in the old refurbished housing stock the rate of emissions per resident per annum is around 600 KgCo2. The estimated emission rates in the Cross Street refurbished units are 697 kgCO2e and 708 kgCO2e per resident per annum for Flat 9 and House 11 respectively. In Flat 7 in which there is only one resident the calculated emission rate is 1732 kgCO2e per annum. The higher rate emission in Flat 7 is partly due to the higher rate of floor area per resident if compared with Flat 9 and House 11.
The whole life environmental impacts of buildings should be evaluated by considering distribution of the life cycle burdens of its all stages of LCA. It may take up 35–50 years for the new built to compensate for the initial savings achieved in refurbishment [8]. In another study carried out in the United States it has been concluded that it may take 16 to 20 years for a new multifamily residential building that is 30 percent more efficient than an average-performing existing domestic building to overcome, through more efficient operations, the negative climate change impacts that were created during the construction process [4].
6.3.4. End of Life Impact
In LCA the uncertainties involved in estimating the environmental impacts of buildings is the highest for the end of life stage of a building as this involves making assumptions for the distant future and the fact that buildings may be dealt with in different ways when they come to their useful end of life. At the end of the life of the building a decision will be made to either demolish the building or refurbish perhaps also with an alternative use. Refurbishment should be preferred where possible with a view to make the demolition and disposal ideally the last stage of a product life cycle as incineration or land filling is an environmental concern [51]. In order to reduce the environmental burden of buildings at their end of service life, buildings must also be designed for disassembly to facilitate the reuse and recycling of materials and components.
The market conditions, which provide financial value to “scrap” materials and tax incentives, have also a significant role to play in the way in which materials are salvaged [30]. Landfill tax in the UK has helped to reduce construction waste in recent years and is anticipated to do this further due to increased landfill cost in future. It is however unlikely that in the near future tax will rise to a level that gives a true representation of the environmental impact of the release of CO2 and Methane.
Sodagar and Fieldson [52] have demonstrated benefits associated with sustainable deconstruction of buildings together with the issues associated with end of life impact. Jones [53] highlights the methodological challenge of recycling at the end of building lifetime and explains advantages and disadvantages of three different methods of the allocating for recycling namely the recycled content method, the substitution method and the 50:50 method. The method used in PAS 2050 [36] is the recycled content method in which credit is given to the use of recycled materials.
The energy used for demolition of buildings is typically small (1–3%) in relation to the energy used for material production and building assembly [43]. For the Cross Street building, it is assumed that the deconstruction impact of the building will equal to 1% of the combined impacts of materials used and construction process.
6.3.5. Whole Life Impact
Table 9 lists the emissions for the Cross Street refurbished building development over 60 years for different lifecycle stages. The whole life CO2e emissions of the building comprising three new dwelling units over 60 years new design life is 533,026.17 kgCO2e. The in-use emissions are 90.76% of the total lifetime CO2e emissions of the building. The relative contribution of in-use emissions in the LCA of the development at Cross Street is significant partly due to the savings made in materials, and other associated impacts inherent in refurbishment compared with new build scenarios.
Table 9.
Whole life emissions for the refurbished building (all three new housing units) at Cross Street over 60 years.
| Elements | kgCO2e | Relative CO2 (%) |
|---|---|---|
| Materials (with replacement) | 45,988.64 | 8.63 |
| Construction process1 | 1465.85 | 0.28 |
| Materials waste1 | 1465.85 | 0.28 |
| In-use | 483,798 | 90.76 |
| Deconstruction process2 | 307.83 | 0.06 |
| Total | 533,026.17 | 100 |
| Total kgCO2e/m2 | 2034.45 | |
| kgCO2e per year | 8883.77 | |
1 5% of the initial materials emissions; 2 1% of the combined impacts of initial materials emissions and construction process.
The whole life CO2e emissions of the building at Cross Street per square meter are 2034.45 kgCO2e. In a study carried out by the Empty Homes Agency (EHA) [8] the average life time CO2 emissions for the three refurbished houses over a 50-year period are of the order of 1.7 tonnes of CO2 per square metre of floor area. In their analyses, EHA did not consider the impacts of construction process, materials waste and end of life. For comparison reasons, if for the Gainsborough project we adjust our LCA assumptions and boundary conditions to mach them more closely with those assumed in EHA study by reducing the life expectancy from 60 to 50 years, ignoring the impacts from materials replacement, construction process, materials waste and end of life, the adjusted life time CO2e will be 1650.7 kgCO2e. Another methodological difference in the research reported in this paper and that of EHA’s is that Carbon Dioxide Equivalent (CO2e) is used as the unit of measurement in this study. This is due to the fact that CO2e better represents the collective environmental impacts of buildings. The latest version of Bath Carbon Inventory (Version 2.0) [11] which was used in this study to calculate the materials impact uses CO2e while in the previous version of the Inventory (Version 1.6a) [54] which has been used by EHA, CO2 was the unit of measurement. For the building analysed in this paper, instead of an initial impact of 111.90 kg CO2e, if ICE version 1.6a had been used the estimated initial impact would have been 101.45 kgCO2. This represents an underestimation of materials impact of the order of 10.3%.
In the analyses carried out for this paper, the storage carbon potential of renewable materials such as timber is excluded. Sodagar et al. [55] have demonstrated that by including the carbon sequestration potential of renewable materials in LCA, the distribution of life cycle burdens may significantly change.
7. Research Limitations and Strengths
The case study method adopted for the research provided rare and extensive access to a wide range of resources within Longhurst Housing Association throughout the 2 year research period. These include access to different levels of decision making and the internal processes within the organisation. The case study approach also made it possible to investigate planning and technical issues pertinent to refurbishment of old buildings as applied to the refurbishment of the Cross Street Building.
The case study adopted for this research which relies on one building refurbishment project for one Registered Social landlord may be seen potentially limiting the wider generalisation of research findings [56]. Yin [56] however argues that case study research can provide “generalisations to theory”, meaning theoretical explanations of the data observed be applicable in similar cases having similar conditions. It is therefore possible for the research findings derived from the case study to be safely generalised for the wider UK social housing sector due to the similar conditions under which Registered Social Landlords (RSL) operate and the broadly similar demographic profile of UK social housing tenants [57].
As is common in research studies, a number of research limitations may be noted for the research reported in this paper. It is almost impossible to accurately quantify the total carbon footprint of a building due to inherent complexities associated with different stages of life cycle assessment of building. This is particularly the case due to uncertainties involved in estimating the environmental impacts of buildings for the end of life stage as this involves making assumptions for the distant future and the fact that buildings may be dealt with in different ways when they come to their useful end of life. Although Bath ICE is one of the most extensive and widely used databases, it does not include all materials currently used in the construction industry. Therefore, for a few more specific materials it was necessary to consult other sources which may have limited levels of comparability and confidence. In addition, due to practicality reasons, the research reported in this paper excludes minor materials in the refurbishment of the building which deemed to have negligible impacts on the total carbon emissions of the case study building. This is however a normal practice in most LCA of buildings reported in the literature.
8. Conclusions
Whole life emissions reporting exercises were carried out to analyse the environmental saving potentials of refurbishment over new build. The carbon reductions demonstrated at Cross Street building highlighted the environmental benefits of refurbishing existing buildings.
The relative impact reductions of savings made by materials may seem small when considering the whole life impact of a building, e.g., in the case of the refurbished Cross Street building where over 90% of whole life emissions is due to in-use operation.
As buildings are becoming more energy efficient in operational energy with increased insulation levels, better air tightness, and the use of more energy efficient equipment and appliances, the relative importance of other impacts such as the initial and the end of life will become more significant in the whole life impact analysis. The potential saving in materials by retaining building elements in refurbishing existing buildings could result in significant initial savings by removing the need for the energy locked into new build materials and construction. The materials emissions for the refurbished building studied in this paper are less than a quarter of the conventionally constructed new build homes. The immediate carbon savings associated with refurbishment is of significant importance as any savings now is crucial to staving off the worst impacts of climate change in future.
Refurbishing buildings reduces initial impact considerably compared with new build and can still result in improved operational efficiency. Comparative analyses demonstrated that the energy efficiency of the refurbished homes may be easily upgraded to the level of new build resulting in similar annual energy demands.
The start and end of a buildings life can have significant contribution towards the total environmental impact of a building. The end of life of any building should be extended as far as possible to minimize its environmental impact. Refurbishment can offer such a possibility and it is hoped that such a practice will attract more attention in the mainstream of design and construction.
Post occupancy users’ satisfaction evaluation showed that the tenants in different refurbished housing units at Cross Street enjoy a good level of satisfaction with different aspects of their homes.
Acknowledgements
This research has been carried out through a 2 year Knowledge Transfer Partnership (KTP) research programme (2011–2013) the author conducted in association with Longhurst Housing Association. Knowledge Transfer Partnership progarmme is a UK-Government initiative to bring research institutions and the industry together to enhance innovation and efficiency of the industry. The research was delivered through funding from Technology Strategy Board (TSB) with support from Longhurst Housing Association. The author’s appreciation is extended to Andy Patchitt, Simon Dillon, Ian Jackson and Diane Starkey of Longhurst Housing Association who facilitated the research carried out for the refurbished case study for this paper. The author also wishes to thank Mike Harrison of Allan Joyce Architects who provided the drawings and technical information for the building. The author’s appreciation is also extended to Glenn Slater, Michael Broadhurst and Alistair Taylor of Robert Woodhead Ltd., the contractor for the project for their support.
References
- Dixit, M.K.; Fernández-Solís, J.L.; Lavy, S.; Culp, C.H. Identification of parameters for embodied energy measurement: A literature review. Energy Build. 2010, 42, 1238–1247. [Google Scholar] [CrossRef]
- Asif, M.; Muneer, T.; Kelley, R. Life cycle assessment: A case study of a dwelling home in Scotland. Build. Environ. 2007, 42, 1391–1394. [Google Scholar] [CrossRef]
- Rai, D.; Sodagar, B.; Fieldson, R.; Hu, X. Assessment of CO2 Emissions Reduction in a Distribution Warehouse. Int. J. Energy 2011, 36, 2271–2277. [Google Scholar]
- Department for Communities and Local Government (DCLG), Review of Sustainability of Existing Buildings, The Energy Efficiency of Dwellings-Initial Analysis; DCLG: London, UK, 2006.
- Preservation Green Lab (PGL). The Greenest Building: Quantifying the Environmental Value of Building Reuse, National Trust for Historic Preservation. Available online: http://www.preservationnation.org/information-center/sustainable-communities/sustainability/green-lab/lca/The_Greenest_Building_lowres.pdf (accessed on 16 October 2012).
- Wood, B. The role of existing buildings in the sustainability agenda. Facilities 2006, 24, 61–67. [Google Scholar] [CrossRef]
- Bell, M. Energy Efficiency in Existing Building: The Role of Building Regulations. In Proceedings of the COBRA 2004 Proc. of the RICS Foundation Construction and Building Research Conference, Leeds, UK, 7–8 September 2004; Ellis, R., Bell, M., Eds.;
- New Tricks with Old Bricks: How Reusing Old Building Can Cut Carbon Emissions. Available online: http://www.bshf.org/published-information/publication.cfm?thePubID=3DE7278E-15C5-F4C0-99E86A547EB36D44 (accessed on 8 October 2012).
- Smith, P. Eco-Refurbishment: A Guide to Saving and Producing Energy in the Home; Architectural Press: Oxford, UK, 2004. [Google Scholar]
- Sustainable Development Commission (SDC). Stock Take: Delivering Improvements in Existing Housing; SDC: London, UK, 2006. Available online: http://www.sd-commission.org.uk/publications.php?id=400 (accessed on 22 November 2012).
- Hammond, G.; Jones, C. Inventory of Carbon and Energy (ICE), Version 2.0; University of Bath: Bath, UK, 2011. [Google Scholar]
- BRE. The Government’s Standard Assessment Procedure (SAP) for Energy Rating of Dwellings; BRE: Watford, UK, 2005. Available online: http://www.bre.co.uk/sap2005 (accessed 15 September 2012).
- Department for Environment, Food and Rural Affairs (Defra). Guidelines to Defra/DECC’s GHG Conversion Factors for Company Reporting; Version 1.2.1, Final; 2010; Defra: London, UK. Available online: http://www.rensmart.com/Information/Library/101006-guidelines-ghg-conversion-factors.pdf (accessed 14 September 2012).
- Cohen, R.; Standeven, M.; Bordass, B.; Leaman, A. Assessing building performance in use 1: The probe process. Build. Res. Inf. 2001, 29, 85–102. [Google Scholar] [CrossRef]
- Ashworth, A. Estimating the life expectancies of building components in life cycle costing calculations. J. Struct. Surv. 1996, 14, 4–8. [Google Scholar] [CrossRef]
- CIBSE (Chartered Institution of Building Services Engineers), Guide F. Energy Efficiency in Buildings; CIBSE: London, UK, 2004.
- Porteous, C. The New Eco-Architecture; Spon Press: Oxford, UK, 2003. [Google Scholar]
- Power, A. Does demolition or refurbishment of old and inefficient homes help to increase our environmental, social and economic viability. Energy Policy 2008, 36, 4487–4501. [Google Scholar] [CrossRef]
- European Commission, Life Cycle Costing—Integrated Planning Guidebook (LCC-IP). In Integrated Planning for Building Refurbishment; European Commission: Brussels, Belgium, 2005.
- Department of Communities and Local Government (DCLG). The Codes for Sustainable Homes: Setting the Standard in Sustainability for New Homes, 2008. Available online: http://www.communities.gov.uk/planningandbuilding/buildingregulations/legislation/codesustainable/ (accessed on 3 October 2012).
- Highfied, D. Refurbishment and Upgrading of Buildings; E & FN Spon: London, UK, 2000. [Google Scholar]
- CABE HMR. Design Task Group Report Sustainable Refurbishment; CABE: Lancashire, UK, 2008. Available online: http:/www.cabe.org.uk/files/hmr15.pdf (accessed on 5 February 2013).
- Sustainable Development Commission. Sustainable Buildings—The Challenge of the Existing Stock; Sustainable Development Commission: London, UK. Available online: http://www.sd-commission.org.uk/publications.php?id=250 (accessed on 14 November 2012).
- Department for Communities and Local Government (DCLG), English Housing Survey Headline; Report 2008-09; DCLG: London, UK, 2010.
- Energy Saving Trust, Sustainable Refurbishment—Towards An 80% Reduction in Co2 Emissions, Water Efficiency, Waste Reduction, and Climate Change Adaptation; Energy Saving Trust: London, UK, 2010.
- Gaterell, M.; McEvoy, M. The impact of climate change uncertainties on the performance of energy efficiency measures applied to dwellings. Energy Build. 2005, 37, 982–995. [Google Scholar] [CrossRef]
- Utley, J.; Shorrock, L. Domestic Energy Fact File 2008; Building Research Establishment (BRE): Watford, UK, 2008. [Google Scholar]
- Allan Joyce Architects. Available online: http://www.allanjoycearchitects.co.uk/ (accessed on 7 March 2013).
- Technology Strategy Board (TSB). Available online: http://www.innovateuk.org/content/competition/building-performance-evaluation-.ashx (accessed on 14 September 2012).
- Fieldson, R.; Rai, D.; Sodagar, B. Towards a framework for early estimation of lifecycle carbon footprinting of buildings in the UK. Construct. Inform. Q. 2009, 11, 66–75. [Google Scholar]
- ISO (International Organization for Standardization). Environmental Management—Life Cycle Assessment—Principles And Framework; ISO 14040; ISO: Geneva Switzerland, 2006. Available online: http://www.iso.org/iso/catalogue_detail?csnumber=37456 (accessed on 14 December 2012).
- ISO (International Organization for Standardization). Environmental Management—Life Cycle Assessment—Requirements and Guidelines; ISO 14044; ISO: Geneva Switzerland, 2006. Available online: http://www.iso.org/iso/catalogue_detail?csnumber=38498 (accessed on 14 December 2012).
- Scheuer, C.; Keolian, G.A.; Reppe, P. Life cycle energy and environmental performance of a new university building: Modelling challenges and design implications. Energy Build. 2003, 35, 1049–1064. [Google Scholar] [CrossRef]
- Li, Z. A new life cycle impact assessment approach for buildings. Build. Environ. 2006, 41, 1414–1422. [Google Scholar] [CrossRef]
- Sodagar, B.; Rai, D.; Murphy, J.; Altan, H. The Role of Eco-Refurbishment in Sustainable Construction and Built Environment. In Proceedings of the 3rd CIB International Conference on Smart and Sustainable Built Environments (SASBE), Delft, The Netherlands, 15–19 June 2009.
- British Standards Institution (BSI), PAS 2050: Publicly Available Specification 2050. Specification for the Assessment of the Life Cycle Greenhouse Gas Emissions of Goods and Services; BSI: London, UK, 2008.
- Department for Environment, Food and Rural Affairs (Defra), Development of an Embedded Carbon Emissions Indicator; Defra: London, UK, 2008.
- Ecoinvent. LCA Database; Swiss Centre for Life Cycle Inventories: St. Gallen, Switzerland, 2009. Available online: http://www.ecoinvent.ch (accessed on 11 September 2012).
- Yates, T. Sustainable Refurbishment of Victorian Housing; BRE Press: Bracknell, UK, 2006. [Google Scholar]
- BREEAM. Building Research Establishment Environmental Assessment Method. Available online: http://www.breeam.org/ (accessed on 22 November 2012).
- Wilson, L. Lose or Reuse—Managing Heritage Sustainability; Ulster Architectural Heritage Society: Belfast, UK, 2007. Available online: http://www.uahs.org.uk/shop/index.php?book=48 (accessed on 21 November 2012).
- Glass, J. The Little Book of Responsible Sourcing—Sustainable Construction Products and Materials; Loughborough University: Loughborough, UK, 2011. Available online: http://apres.lboro.ac.uk/docs/Little_Book.pdf (accessed on 20 November 2012).
- Gustavsson, L.; Joelsson, A.; Sathre, R. Life cycle primary energy use and carbon emission of an eight-story wood-framed apartment building. Energy Build. 2010, 42, 230–242. [Google Scholar] [CrossRef]
- Cole, R.J.; Kernan, P.C. Life-cycle energy use in office buildings. Build. Environ. 1996, 31, 307–317. [Google Scholar] [CrossRef]
- Verbeeck, G.; Hens, H. Life cycle inventory of buildings: A contribution analysis. Build. Environ. 2010, 45, 964–967. [Google Scholar] [CrossRef]
- Thormark, C. The effect of material choice on the total energy need and recycling potential of a building. Build. Environ. 2006, 41, 1019–1026. [Google Scholar] [CrossRef]
- Adalberth, K. Energy use during the life-cycle of single-unit dwellings: Examples. Build. Environ. 1997, 32, 321–329. [Google Scholar] [CrossRef]
- Gustavsson, L.; Joelsson, A. Life cycle primary energy analysis of residential buildings. Energ. Buildings 2010, 42, 210–220. [Google Scholar] [CrossRef]
- Sustainable Development Communities (SDC). Building Houses or Creating Communities? A Review of Government Progress on Sustainable Communities; SDC: London, UK, 2007. Available online: http://www.sd-commission.org.uk/publications.php?id=558 (accessed on 4 February 2013).
- Reeves, A. Towards a Low-Carbon Peabody, Exploring the Viability of Achieving Deep Carbon Dioxide Emission Cuts from Existing Peabody Homes; A Report for Peabody’s 21st Century Communities Project; Institute of Energy and Sustainable Development, De Montford University: Leicester, UK, 2009. [Google Scholar]
- Llewellyn, J.W.; Edwards, S. Towards a Framework for Environmental Assessment of Building Materials and Components; BRE: Garston, UK, 1998. [Google Scholar]
- Eco Deconstruction, Chartered Institute of Building (CIOB) Special Issue; Sodagar, B.; Fieldson, R. (Eds.) Chartered Institute of Building: Berkshire, UK, 2009.
- Jones, C. Embodied impact assessment: The methodological challenge of recycling at the end of building lifetime. Construct. Inform. Q. 2009, 11, 140–146. [Google Scholar]
- Hammond, G.; Jones, C. Inventory of Carbon and Energy (ICE), Version 1.6a; University of Bath: Bath, UK, 2008. [Google Scholar]
- Sodagar, B.; Rai, D.; Jones, B.; Wihan, J.; Fieldson, R. The carbon reduction potential of strawbale housing. Build. Res. Inf. 2011, 39, 51–65. [Google Scholar]
- Yin, R.K. Case Study Research: Design and Methods; SAGE Publications: London, UK, 2003. [Google Scholar]
- Reeves, A. Making it viable: Exploring the influence of organisational context on efforts to achieve deep carbon emission cuts in existing UK social housing. Energy Effic. 2011, 4, 75–92. [Google Scholar] [CrossRef]
© 2013 by the authors; licensee MDPI, Basel, Switzerland. This article is an open access article distributed under the terms and conditions of the Creative Commons Attribution license (http://creativecommons.org/licenses/by/3.0/).