Next Article in Journal
Analysis of Cognitive Biases in Construction Health and Safety in New Zealand
Next Article in Special Issue
Dynamic Prediction Method for Ground Settlement of Reclaimed Airports Based on Grey System Theory
Previous Article in Journal
AI-Driven Digital Twins for Enhancing Indoor Environmental Quality and Energy Efficiency in Smart Building Systems
Previous Article in Special Issue
A Study on the Calculations of the Bottom Void Range of an Underground Pipe Gallery Structure Under the Action of Ground Fissure Dislocations
 
 
Font Type:
Arial Georgia Verdana
Font Size:
Aa Aa Aa
Line Spacing:
Column Width:
Background:
Article

Study on the Underpinning Technology for Fixed Piers of Concrete Box Girder Bridges on Mountainous Expressways

1
Chongqing Highway Maintenance Engineering (Group) Co., Ltd., Chongqing 404100, China
2
State Key Laboratory of Mountain Bridge and Tunnel Engineering, School of Civil Engineering, Chongqing Jiaotong University, Chongqing 400074, China
*
Author to whom correspondence should be addressed.
Buildings 2025, 15(7), 1031; https://doi.org/10.3390/buildings15071031
Submission received: 17 February 2025 / Revised: 14 March 2025 / Accepted: 18 March 2025 / Published: 24 March 2025

Abstract

To address the challenge of repairing the damage to concrete box girder bridge piers on mountainous highways caused by falling rocks, this paper proposes an active underpinning technique that integrates a “井”-shaped cap system, graded preloading of the foundation, and synchronized beam body correction. The technique utilizes lateral beam preloading (to eliminate the inelastic deformation of the new pile foundation) and longitudinal beam connections (to form overall stiffness). The method involves building temporary and permanent support systems in stages. Through the two-stage temporary support system transition, the removal and in situ reconstruction of the old piers, a smooth transition from the pier–beam consolidation system to the basin-type bearing system is achieved while simultaneously performing precise correction of beam torsion. The structural safety during the construction process was verified through finite element simulations and dynamic monitoring. Monitoring results show that the beam torsion recovery effect is significant (maximum lift of 5.2 mm/settlement of 7.9 mm), and the pier strain (−54.5~−51.3 με) remains within a controllable range. Before the bridge was opened to traffic, vehicle load and impact load tests were conducted. The actual measured strength and vertical stiffness of the main beam structure meet the design requirements, with relative residual deformation less than 20%, indicating that the structure is in good, elastic working condition. The vehicle running and braking dynamic coefficients (μ = 0.058~0.171 and 0.103~0.163) are both lower than the theoretical value of 0.305. The study shows that this technique enables the rapid and safe repair of bridge piers and provides important references for similar engineering projects.

1. Introduction

Girder bridges are widely used in highway networks due to their simple structure, low cost, and fast construction speed. In western China, the complex geological conditions, along with frequent natural disasters such as earthquakes, mudslides, and mountain floods, lead to significant damage to the bridge substructures under impact loads. Therefore, researching rapid repair techniques for bridge substructures has become a critical issue.
Underpinning technology, as a rapid repair technique that minimally affects the normal functioning of structures, is widely used in old bridge renovation [1], tunnel engineering [2,3] and building construction. To ensure the safety of the superstructure, pile foundation underpinning technology is often used to transfer the overlying load from existing pile foundations, enabling the smooth progress of new construction projects [4]. However, underpinning technology carries high risks during application, and comprehensive monitoring is required to ensure safe and reliable construction [5]. Numerous scholars have conducted studies on the construction techniques and monitoring of bridge underpinning processes. Peng [6] addressed the challenges of deformation control in deep foundation pit projects passing under elevated metro bridges. Based on existing projects, he used numerical simulations and on-site measurements to study the impact of pile foundation underpinning and deep foundation pit construction on elevated metro bridges and rail structures and designed the key parameters. Zhang [7] studied a typical case of metro shield tunnel construction passing through urban interchange bridge piers, using numerical simulations and on-site measurements to analyze the underpinning process. Li [8] conducted a case study on the pile foundation group of the Guangzhou–Shenzhen Expressway bridge crossed by Shenzhen Metro Line 10. He analyzed the stress transfer mechanisms of the pile foundation during the underpinning process and investigated the impact of the shield tunnel on the stability of the pile foundation. Yan [9] created three local node models of underpinning structures with a similarity ratio of 1/1 to study the theory and application of pile foundation underpinning technology, and conducted progressive repeated static loading tests. They studied the shear and antislip properties of the joints and proposed an improved formula for calculating shear capacity. Zheng [10] analyzed and studied the impact of the active underpinning process of shield tunnel pile foundations on the deformation of the lower bridge structure through numerical simulation and on-site monitoring. Qiao [11] employed an active underpinning technique using a spatially continuous lattice underpinning structure. By integrating the monitoring and measurement data, reasonable control indicators were developed to maintain operational safety, successfully addressing the underpinning of highway bridge piers under dynamic loading conditions. Liu et al. [12] studied the feasibility of pile foundation underpinning solutions in specific environments and the efficiency of underground space utilization, achieving effective control of engineering risks. Li [13] used software to perform finite element analysis on both the superstructure and substructure of a bridge to simulate and calculate stress conditions. Passive underpinning technology was employed for construction, with settlement deformation monitoring and comparison conducted throughout the process. Key technical control points for construction were proposed.
Kou [14] analyzed the application of active underpinning technology in subway shield tunnel construction in the Central Plains region, using the example of the Zhengzhou Metro Line 5 shield tunnel passing through bridge foundations. Zhou et al. [15] developed a 3D numerical model for the pile foundation underpinning and tunnel construction to ensure the viaduct’s structural safety. The model’s accuracy was verified by comparing settlement calculations with field monitoring data. Shan et al. [16] and Igba U.T. et al. [17] proposed an optimized pile foundation underpinning scheme based on practical engineering applications. Tian [18] employed a scaffold-free bridge underpinning technique combined with monitoring measures, successfully completing the underpinning of an operational bridge. Based on the research findings of the aforementioned scholars, a case study was conducted where the concrete box girder fixed pier system was rapidly replaced in situ with a pot-bearing support system. This study aims to validate the impact of the pile-pier support system conversion process on the entire bridge, with the goal of facilitating the adoption of this method in similar engineering projects. In light of this, this study investigates active underpinning technology for bridge piers based on the underpinning construction of a concrete box girder bridge on an operational expressway in western China.

2. Engineering Background

2.1. Project Introduction

The study focuses on a dual-column pier box girder bridge divided into left and right segments. The left segment’s superstructure consists of a single-span 6 × 20 m reinforced concrete box girder. GPZ(I)5.0DX bearings are installed at piers 1 and 5, while piers 2, 3, and 4 are rigidly connected to the box girder. The right segment consists of a single-span 5 × 20 m reinforced concrete box girder. GPZ(II)5.0DX bearings are installed at piers 1 and 4, piers 2 and 3 are rigidly connected, and GPZ(II)2.5DX bearings are placed at the abutments. The substructure consists of dual-column piers with pile foundations, and the abutments adopt gravity-type U-shaped abutments with expanded foundations. The bridge was completed and opened to traffic in 2010. The design load is classified as Highway-I level; the design speed is 80 km/h; the bridge maintenance and inspection level is II, with a load classification of a Highway-I level.

2.2. Description of Damage

On 21 May 2024, a rockfall from the hillside struck the second fixed pier (Piers 28 and 29) of the right segment, completely destroying Pier 29, exposing the reinforcement on the right side of Pier 28, causing cracks at the pier top, and binders to develop through cracks, with potential pile foundation damage predicted. It was deemed difficult to directly reinforce the original piers to restore their load-bearing capacity; although the main beams showed no significant damage, the pier column failure caused slight torsion in the main beam, as shown in Figure 1. In light of this, this study adopts an in situ active underpinning scheme to urgently repair the damaged piers.
The most recent regular inspection (2022) assessed the bridge’s technical condition as Category 2. After the damage to the piers, the bridge’s technical condition is now rated as Category 5, indicating a hazardous state. The piers are severely damaged, with main reinforcement yielding and bending, diagonal cracks on the piers, and cracks exceeding the allowable width, which compromises the bridge’s future safe operation. Concrete near the bottom of the main beam, close to the top of Pier 29 on the right side, has been torn and partially spalled. No significant cracks were found near the bottom of the main beam around Piers 28 and 29, and no noticeable displacement of the main beam was observed.

2.3. Post-Damage Load-Bearing Capacity Check

According to the design standards “General Specification for Highway Bridges and Culverts” (JTG D60-2004) and “Design Code for Highway Reinforced Concrete and Prestressed Concrete Bridges” (JTG D62-2004) [19,20], a finite element analysis was conducted on the bridge based on its reinforced concrete structure; the model consists of 210 beam elements and 193 nodes and the bridge calculation model is shown in Figure 2. The bridge’s load-bearing capacity, crack width, and deflection all meet the requirements of the specifications; however, the safety reserve factor for the load-bearing capacity of Pier 2-2 is relatively low.
As shown in Figure 3, in the ultimate limit state of load-bearing capacity, the minimum safety factor for bending capacity in the positive bending moment zone at the mid-span of the main beam is 1.11, while the minimum safety factor for bending capacity in the negative bending moment zone at the pier top is 1.45. The bending capacity meets the requirements of the specifications.
As shown in Figure 4, in the ultimate limit state of load-bearing capacity, the minimum safety factor for the shear capacity of the main beam is 1.20, and the shear capacity meets the requirements of the specifications.
As shown in Table 1, under the basic combination, except for Pier 29, which is completely damaged, the safety reserve factors for the control sections of the remaining piers range from 1.4 to 3.69. The load-bearing capacity of the bridge piers meets the specifications; however, the safety reserve factor for the load-bearing capacity of the damaged Pier 28 is relatively low.
As shown in Figure 5, the crack verification of the reinforced concrete components is carried out considering the short-term effect combination and the influence of long-term effects, and the crack resistance meets the requirements. The deflection value calculated based on the short-term effect combination stiffness is multiplied by the long-term growth factor of 1.45 for this bridge. The deflection of the main beam is 17.86 mm, which is less than the calculated span of L/600 (33.33 mm), and the deflection meets the specification requirements.

3. Pier Underpinning Plan

3.1. Design Principles of the Plan

First, emergency support is applied to the main beam to prevent secondary damage caused by changes in the structural stress state. Then, new pile foundations and caps are constructed. The newly designed underpinning structure requires strong anti-settlement capacity and excellent structural performance. The newly built piers align with the original piers to maintain the span arrangement of the original bridge. Considering that the reinforcement at the original pier–beam junction has yielded, the original connection system is modified to a GPZ (II)-5.0-GD bearing support system. During the underpinning process, temporary steel supports and jacks are used to correct the torsion of the beam, and the reaction force is transferred to the newly built pile foundations and caps. The preloading process can eliminate some of the deformations of the newly constructed piles and caps, with the deformation being compensated for by the elongation of the jacks.

3.2. Pier Underpinning Structure Design

3.2.1. Selection of the Underpinning Method

The method of load transfer for underpinning is divided into passive underpinning and active underpinning. The comparison of their characteristics is shown in Table 2.
(1)
Comparison of the applicability of active underpinning and passive underpinning
As shown in Table 2, active underpinning eliminates deformation through staged preloading, making it suitable for large tonnage and high-precision scenarios, while passive underpinning has weaker deformation control capability.
(2)
Potential risks and countermeasures
Differential settlement risk: The difference in stiffness between the new and old pile foundations may lead to long-term uneven settlement. To address this, the new foundation adopts a pile group design, and concrete beams are used to connect and form a ‘井’ (well) shaped cap to optimize the load distribution, thereby reducing the differential settlement between the new and old pile foundations.
Material degradation risk: Concrete creep and steel corrosion may reduce the durability of the underpinning structure. Countermeasures include upgrading the pile foundation concrete from C25 to C30, upgrading the cap and pier concrete from C35 to C40, and adding rust inhibitors.
Construction disturbance risk: The removal of temporary supports may induce secondary deformation. This risk is mitigated by dynamically adjusting the lifting force through real-time monitoring, ensuring that displacement fluctuations remain below the design value.

3.2.2. Emergency Temporary Support

After the grouting treatment of the concrete cracks in the binder of Pier 2, it was used as the emergency temporary support foundation. Steel pipe columns of 600 × 14 mm were used, with sway bracing and diagonal braces made of 28-channel steel. At the top of the steel pipe columns, I-beam 50 steel pad beams were arranged, and jacks were placed on the pad beams. The temporary support is shown in Figure 6. The lifting capacity of the jack at the top of the steel pipe column for the third temporary support is 20 tons, and the remaining jacks only need to be tightened.

3.2.3. Underpinning Support System

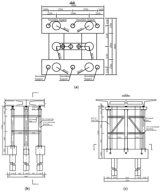
As shown in Figure 7, four new piles were added on both sides of the existing pile foundation in the longitudinal direction of the bridge, along with the installation of bearing platforms. The new piles have a diameter of 1.3 m, with a lateral center-to-center spacing of 5 m and a pile length of 12 m; consistent with the original design, the pile foundation concrete grade is upgraded from C25 to C30. The longitudinal spacing from the center of the new piles to the original piles is 3.15 m. The bearing platform is a frame structure with dimensions of 8.6 × 9.5 × 2 m. Steel pipe supports were installed on the newly constructed bearing platform, using 600 × 14 mm pipes, with three supports evenly distributed on each side. On top of the steel pipe supports, I-beam 50 steel distributive beams were arranged, with jacks positioned on the distributive beams for lifting purposes. Between the steel pipe supports, 351 × 16 mm steel pipes and 28-channel steel were used as horizontal and diagonal braces, ensuring the structural stability of the entire support system. The pier was damaged by external impact, leading to damage to the original transverse tie beams and in situ pile foundations. The extent of the pile foundation damage cannot be accurately assessed, so the bearing capacity of the original pile foundations is not considered in the new foundation system. New pile foundations of the same diameter are constructed in the longitudinal direction of the bridge, centered around the existing pile foundation. Initially, these new piles are connected with concrete tie beams in the transverse direction to form a temporary foundation for the active replacement system. After the beam is lifted, the damaged pier and tie beams are removed. The pile foundations are connected with concrete tie beams in the longitudinal direction, thus forming a footing in shape resembling the Chinese character “井”, which serves as the permanent foundation for the newly constructed piers, the newly built piers align with the original piers, and the concrete grade is upgraded from C35 to C40.

3.3. Construction Process Flow

The construction process flow is shown in Figure 8.

3.4. Pier Underpinning Structural Verification

The design does not consider the original bridge pile foundation’s load; all external forces are borne by the newly installed underpinning components. According to the ’Seismic Ground Motion Parameter Zoning Map of China’ (GB 18306-2015) and the ’Seismic Design Code for Highway Bridges’ (JTG/T 2231-01-2020) [21,22], the seismic fortification category of this bridge is Category B, with a seismic fortification intensity of VII, a peak ground acceleration of 0.10 g, and a seismic measure level of 3. The seismic importance factor for E1 seismic action is 0.5 with a recurrence period of 100 years, and for E2 seismic action, the seismic importance factor is 1.7 with a recurrence period of 2000 years. The seismic design method selected is Category 1.
The calculation model consists of 247 nodes and 229 elements. The major components of the bridge are modeled using beam elements. The finite element model of the bridge adopts common linear and isotropic assumptions. The model boundaries are defined by the types and directions of constraints, with elastic connections, while also considering the effects of local overall temperature and temperature gradients as specified in the standards. The primary materials used for the main beam, piers, and caps are C40 concrete, while the newly constructed Pile Foundation 2 uses C30 concrete. The load and load combination calculations are as follows:
(1)
Load calculations: Class I highway.
(2)
Temperature load: Overall temperature variation, ±20 °C.
(3)
Load combinations: The load combinations are based on the “General Specifications for Highway Bridge and Culvert Design” (JTG D60-2015) [23].
Based on the design calculation parameters, we used finite element software to analyze the load-bearing capacity of the bridge after underpinning. The simulation results serve as a reference for the design phase, and during the implementation process, real-time monitoring data is used to guide construction. The finite element calculation model is shown in Figure 9, and the calculation results are shown in Figure 10 and Figure 11.
According to the “Code for Design of Highway Reinforced Concrete and Prestressed Concrete Bridges and Culverts” (JTG 3362-2018) [24], the bearing capacity of the eccentrically compressed Pier 2 and the bearing capacity of the newly added bearing platform for Pier 2 are checked. The calculation results are shown in Table 3 and Table 4.
The verification results show that the bearing capacity of Pier 2 and the newly added pier cap after reinforcement meet the code requirements.

3.5. Jacking Force and Control Displacement Calculation

According to the calculation results, the total load on the supporting steel pipes under dead load is 510 tons, and the initial lifting force of the secondary support jacks is controlled at 50% of the dead load, which is 42 tons. After the original pier columns are dismantled, secondary lifting is performed to reach the design elevation. Based on the testing results, the original Pier 28 is used as the reference point, and the vertical displacement controls the lifting elevation of the Pier 29 beam. By comparing the design slope, girder bottom elevation, and bridge deck alignment across multiple survey lines, the degree of girder torsion and the adjusted elevation are calculated. The controlled displacement for lifting the beam is set to 13 mm (calculated based on the beam bottom elevation, where the beam experiences a twisting deflection of approximately −8 mm at the damaged pier, requiring an uplift of 8 mm for recovery; a reserved height of 5 mm is provided for the bearing installation space, which will decrease after the beam is installed). The jacking force is adjusted as per actual conditions but must not exceed 120 tons. If the force exceeds 120 tons, construction must be paused, and the causes analyzed and resolved before resuming.

4. On-Site Construction Monitoring

To monitor and study the structural conditions of damaged bridges throughout the construction process, ensuring construction safety and quality control, structural monitoring of the bridge is essential. This includes tracking changes in structural performance and working conditions under various incidental loads such as temperature fluctuations, wind, rain, and construction angles during the construction period. Through dynamic monitoring and research on bridge deck profile measurement, lateral displacement monitoring, beam deflection monitoring, settlement displacement observation, strain monitoring of the pier during beam installation, and verticality measurements, the safety and reliability of the bridge construction are ensured. This provides reliable data and a scientific basis for accurate analysis, evaluation, prediction, and management of the project.

4.1. Monitoring Categories and Frequency

The monitoring categories and frequencies are shown in Table 5.
(1)
Bridge Deck Profile
The bridge deck profile is measured using a DiNi03 precision-level instrument. A total of four measurement lines are set up, with 84 measurement points, as shown in Figure 12.
(2)
Planar Displacement
Planar displacement of the bridge is measured using a GM-101 total station. A total of five measurement points are set up, as shown in Figure 13.
(3)
Bridge Deflection
Bridge deflection is measured using a TS60I0.5″R1000 total station. A total of 11 measurement points are set up on the beam, as shown in Figure 14.
(4)
Settlement Displacement
Settlement displacement of the pier caps is measured using a TS60I0.5″R1000 total station. A total of five measurement points are set up on the piers and pier caps, as shown in Figure 15.
(5)
Pier Strain Monitoring
During beam placement, the stress (strain) of the piers is monitored using the ZiBee + DH3819 wireless static strain testing and analysis system. A total of eight measurement points are set up on the newly constructed piers, as shown in Figure 16.
(6)
Pier Verticality Measurement
The verticality of the newly constructed piers is measured using a TS60I0.5″R1000 total station. Verticality is measured in four directions for each of the two piers.

4.2. Analysis of Monitoring and Measurement Results

(1)
Bridge Deck Profile
As shown in Table 6 and Figure 17, the initial measurement data of the points between Piers 1 and 3 were compared with the data obtained after completion. At measurement point 9 on Pier 2 (the section at the damaged location), the bridge deck elevation at the right side of the guardrail edge increased by 5.2 mm; the right pier top increased by 3.3 mm, the left pier top decreased by 5.0 mm, and the left side of the guardrail edge decreased by 7.9 mm. The slight torsion of the beam supported by the steel pipe was largely restored after the beam was installed. After analysis, it was found that these changes are all less than the uplift control displacement of 8 mm.
(2)
Planar Displacement
The lateral displacement of the bridge deck ranged from −6.7 mm to 7.6 mm in the longitudinal direction from −7.4 mm to 4.6 mm in the transverse direction. During the monitoring period, no significant abnormal changes in lateral displacement were observed, which aligns with the theoretical research results.
(3)
Beam Deflection
As shown in Table 7 and Figure 18, the main measurement points deflection variation stage diagram, the deflection changes during the beam lifting, beam installation, and after the installation are normal, and the adjustment of the beam bottom elevation meets the design requirements with no significant abnormalities. The beam deflection underwent the following main changes: 1. At the damaged pier, the beam experienced downward deflection on the right side, with slight twisting; 2. After the temporary support, the beam was lifted, causing a slight upward curvature on the right side and slight twisting; 3. After the second support was completed at the pile foundation, the beam returned to a slight torsion state, and the beam at the tops of the left and right piers was adjusted to a final beam installation elevation of 4 mm to 5 mm higher; 4. After the beam was installed onto the new pier supports, the beam bottom elevation reached the design position. The entire process is consistent with the theoretical research results.
(4)
Pier and Pier Cap Settlement
The settlement changes at each measurement point on the piers and pier caps ranged from −0.9 mm to 0.9 mm. No significant settlement was observed during the monitoring period.
(5)
Pier Stress and Strain
As shown in Table 8 and Table 9, the strain values of the newly constructed piers during beam placement ranged from −54.5 με to −51.3 με, with calibration factors between 0.87 and 0.92. The stress and strain of the piers showed no significant abnormalities, and the piers performed normally under the dead load.
(6)
Pier Verticality
The newly constructed piers exhibited longitudinal inclination values of 1.0 mm to 8.0 mm and transverse inclination values of 2.0 mm to 5.0 mm. The verticality was within a range of 0.1‰ to 1.0‰, meeting the specified code requirements.
(7)
Measurement error correction
The measurement uncertainty mainly includes the accuracy of the strain testing system, the accuracy of displacement measurements at various points, and the influences of environmental wind speed and temperature. In this measurement, high-precision equipment was used, with a strain testing system accuracy of 1 με and displacement measurement equipment accuracy of 0.5” and 0.001 mm. The measurements were conducted in an environment with wind speeds of 1.5 m/s and wind force below level 1. The strain test is compensated for temperature effects using strain gauge temperature compensation sheets, and the displacement measurement results are corrected for temperature variations through finite element analysis. However, it should be noted that the surface temperature of the beam changes much faster than the temperature of the bridge concrete, so when performing correction analysis during periods of rapid temperature change, the range of change should be appropriately reduced.

5. Bridge Load Testing

To study and evaluate the safety and performance of the structure, a load test is conducted on the bridge before reopening to traffic. Factors such as impact load, construction disturbances, and changes in the original support system are considered. By measuring the deformation and internal forces of the bridge structure under static load test conditions, the actual performance of the reinforced bridge structure is verified. This allows for the evaluation and study of the actual working state of the bridge after reinforcement and its compliance with the design expectations. Additionally, dynamic load tests are conducted to understand the inherent dynamic characteristics of the bridge after reinforcement, clarifying its dynamic performance under operational loads. The load test is shown in Figure 19.

5.1. Vertical Static Load Test

5.1.1. Test Contents

The test content includes the following four aspects: stress testing of the test section, vertical deflection and stress testing of Pier 2, vertical deflection testing at the mid-span section of the test span, and crack testing of the beam body.

5.1.2. Theoretical Calculation

The bridge load test selected the following sections for evaluation: A-A: Maximum positive bending moment section at mid-span of the 1st span. B-B: Maximum negative bending moment section at the top of Pier 1. C-C: Maximum positive bending moment section at mid-span of the second span. D-D: Maximum negative bending moment section at the top of Pier 2. E-E: Maximum positive bending moment section at mid-span of the third span. The specific locations of the sections for the static load test are shown in Figure 20.
The test control load uses the standard value of vehicle load (considering the impact factor) and follows the highway class I load specified in the “General Specifications for Highway Bridge and Culvert Design” (JTG D60-2004) [19]. The vehicle load considers both central and eccentric loading as the most unfavorable conditions. The loading parameters are shown in Figure 21. Under the action of moving vehicle loads, the internal force diagrams and deformation envelope diagrams of the bridge structure are shown in Figure 22 and Figure 23. The calculated bending moment, test bending moment, and corresponding load efficiency coefficients for static loading conditions of the test span are shown in Table 10.
To obtain the continuous curve of the relationship between test load and displacement for the structure and to prevent unexpected structural damage, static test loads are applied in three loading levels and one unloading level for different test items. The loading method involves incrementally increasing the load to the maximum level in a single step-by-step process, followed by direct unloading to zero load.

5.1.3. Test Results

The load efficiency coefficient ranged from 0.95 to 0.99, meeting the basic load requirements specified in the “Specifications for Highway Bridge Load Test” (JTG/T J21-01-2015) [25].
(1)
Strain Test Results
The calibration coefficients for the measured strain in the control sections of the main beam during the static load test ranged from 0.70 to 0.83. The measured strain values were all smaller than the calculated strain values, indicating that the structural strength meets the design requirements. The measured relative residual strain ranged from 6.1% to 17.2%, all below 20%, which demonstrates that the structure is in good elastic working condition and complies with the relevant requirements of the “Specifications for Highway Bridge Load Test” (JTG/T J21-01-2015).
(2)
Deflection Test Results
The calibration coefficients for the measured deflection in the control sections of the main beam during the static load test ranged from 0.75 to 0.85. The measured deflection values were all smaller than the calculated deflection values, indicating that the vertical stiffness of the structure meets the design requirements. The relative residual displacement after unloading ranged from 0% to 16.1%, all below 20%, indicating that the structure is in good elastic working condition and satisfies the requirements of the “Specifications for Highway Bridge Load Test” (JTG/T J21-01-2015).
(3)
Crack Test Results
No significant cracks were observed in the test bridge segment during the loading process.

5.2. Dynamic Load Test

5.2.1. Test Contents

(1)
Pulsation Test
Under conditions with no traffic load on the bridge deck and no irregular vibration sources near the bridge, the pulsation test measures the slight vibration response of the bridge span structure caused by random loads such as wind loads and ground pulsations at the bridge site.
(2)
Driving Test
The driving test, conducted under unobstructed conditions, primarily measures the dynamic load response and impact factor at the midspan section (E-E) of the central span under driving speeds of 10, 20, 40, and 60 km/h on a bridge deck in good condition. The test focuses on measuring dynamic strain.
(3)
Braking Test
The braking test primarily measures the dynamic load response and impact factor at the midspan section (E-E) of the central span under emergency braking conditions at driving speeds of 10, 20, and 30 km/h. The test content for the corresponding operating conditions is shown in Table 11.

5.2.2. Test Results

(1)
Dynamic Characteristics Results
As is shown in Table 12, the overall stiffness of the inspected bridge span structure is normal.
(2)
Driving Test Results
As is shown in Table 13, the theoretical fundamental frequency is 6.136 Hz. According to the General Specifications for Highway Bridge and Culvert Design (JTG D60-2015) [23], the theoretical value of the impact factor is 0.305. The measured dynamic stress impact factor (μ) ranges from 0.058 to 0.171, which is lower than the theoretical value of 0.305.
(3)
Braking Test Results
As is shown in Table 14, the theoretical fundamental frequency is 6.136 Hz, and the theoretical impact coefficient value, calculated according to the “General Code for Design of Highway Bridges and Culverts” (JTG D60-2015), is 0.305. The measured dynamic stress impact coefficient (μ) ranges from 0.103 to 0.163, which is lower than the theoretical value of 0.305.

6. Conclusions

This study systematically investigates the in situ active underpinning technique for the repair of damaged concrete box girder bridge piers on a highway in the western region. The safety and effectiveness of the technique are validated through numerical simulations, dynamic monitoring, and load testing. The main conclusions are as follows:
(1)
Technological Innovation and Structural Performance Validation
This study introduces an innovative active underpinning technique that combines a “井”-shaped cap system, graded preloading of the foundation, and synchronized beam body correction. Through a two-stage temporary support system transition (Figure 7), a smooth transition from the pier–beam consolidation system to the basin-type bearing system is achieved, with precise control of beam torsion displacement (maximum uplift of 5.2 mm/settlement of 7.9 mm). Finite element simulations confirm that after underpinning, the safety factor at key cross-sections is significantly higher than the standard limit (e.g., the bending safety factor for Pier 2 is 1.99, and the safety factor for the newly added cap in the bridge direction is 1.92). The bearing performance meets the Class I highway load requirements. It is recommended that a long-term seismic monitoring system be installed for the bridge to accumulate seismic response data and provide a basis for seismic design and maintenance in similar engineering projects.
(2)
Construction Monitoring and Load Test Results
Dynamic monitoring throughout the construction process indicates that the strain values of the new piers (−54.5~−51.3 με) and calibration coefficients (0.87~0.92) are within reasonable ranges. The residual deflection deformation of the main beam is less than 16.1%, and the vertical displacement, lateral deviation, and pier verticality meet the regulatory requirements. Load testing conducted before the bridge is opened to traffic confirmed that the repaired bridge exhibits excellent static and dynamic performance: the static load efficiency coefficient ranges from 0.95 to 0.99, and the relative residual strain (6.1%~17.2%) and deflection (0%~16.1%) are both below 20%, indicating that the structure is in an elastic working state. The measured damping ratio is 1.450, and the ratio of the measured to theoretical fundamental frequency is 1.249, confirming that the overall stiffness of the bridge span structure is normal. The dynamic load impact coefficients (driving μ = 0.058~0.171, braking μ = 0.103~0.163) are significantly lower than the theoretical value of 0.305. It is recommended that overloaded vehicles be strictly controlled and that daily maintenance and inspection of the bridge be enhanced.
(3)
Long-Term Performance and Durability Study
After repair, the bridge’s technical condition grade is restored to Class 2, and regular monitoring shows that the structure remains stable. To address long-term risks, it is recommended to extend the monitoring period in stages (monitoring differential settlement and fatigue damage every 7 days/month/quarter within 3 years). Additionally, non-destructive durability assessments should be included in annual inspections (such as ultrasonic crack extension detection and electrochemical potential method to assess rebar corrosion rate) to control creep and material degradation. Referring to Ding et al. (2024) [3] on the long-term settlement of shield tunnel pile underpinning, future studies could integrate BIM models to predict the evolution of creep.
(4)
Future Research Directions and Engineering Applications
This technique provides an efficient and safe solution for the rapid repair of bridges in mountainous areas and has significant potential for wider application. Future work should focus on further optimizing the support system design, exploring concrete-filled steel tube composite structures, and incorporating smart monitoring technologies (such as 5G real-time transmission and AI-based deformation early warning) to enhance the level of construction automation in complex environments. Furthermore, it is recommended that validation be conducted under extreme conditions (such as simulating 1.3 times Class I highway heavy-load traffic and performing E2 earthquake time-history analysis) to improve the rigor of the technical system.

Author Contributions

Conceptualization, H.R. and H.Y.; methodology, H.R.; software, H.R.; validation, L.L. and P.X.; formal analysis, H.R.; investigation, L.L.; resources, P.X.; data curation, L.L.; writing—original draft preparation, H.R.; writing—review and editing, H.Y.; visualization, Y.W.; supervision, Y.W.; project administration, H.Y.; funding acquisition, H.Y. All authors have read and agreed to the published version of the manuscript.

Funding

The work described was supported by the National Natural Science Foundation of China (No.52078089, No.52274176, and No.52078090), the Guangdong Province Key Areas R & D Program (2022B0101070001), the Chongqing Elite Innovation and Entrepreneurship Leading Talent Project (CQYC20220302517), the Natural Science Foundation of Chongqing, China(cstc2021jcyj-msxmX1075), the Chongqing Natural Science Foundation Innovation and Development Joint Fund (CSTB2022NSCQ-LZX0079), and the Chongqing Municipal Education Commission “Shuangcheng Economic Circle Construction in Chengdu-Chongqing Area” Science and Technology Innovation Project (KJCX2020031).

Informed Consent Statement

Informed consent was obtained from all subjects involved in the study.

Data Availability Statement

All data, models, or codes that support the findings of this study are available from the corresponding author upon reasonable request.

Conflicts of Interest

Authors Honglin Ran, Lin Li, Yi Wei and Penglin Xiao were employed by the company Chongqing Highway Maintenance Engineering (Group) Co., Ltd. The remaining author declares that the research was conducted in the absence of any commercial or financial relationships that could be construed as a potential conflict of interest.

References

  1. Yan, L.; Gou, X.; Guo, Z.; Zhang, X.; Jiang, Y.; Ran, X.; Chen, G.; Yue, K. Experimental and numerical investigation on pile foundation underpinning structure system in urban overpass. Materials 2023, 16, 6576. [Google Scholar] [CrossRef] [PubMed]
  2. Wang, N.; Jiang, Y.; Geng, D.; Huang, Z.; Ding, H. Numerical investigation of the combined influence of shield tunneling and pile cutting on underpinning piles. Front. Earth Sci. 2022, 10, 896634. [Google Scholar]
  3. Ding, W.; Cao, K.; Wen, Y.; Du, Y.; Shang, C.; Li, Z.; Huang, X. Analysis of the Influence of Pile Underpinning of the Pile Group Under the Viaduct of the Overlapping Shield Tunnel on the Surrounding Environment. Int. J. Civ. Eng. 2024, 22, 1807–1833. [Google Scholar]
  4. Ma, W.J.; Wang, X.; Wang, B.L.; Wang, B.L.; Wang, X.L. Application of Passive Pile Foundation Underpinning Technology on Lanzhou Rail Transit Line 1. Urban Mass Transit. 2020, 23, 51–55. [Google Scholar]
  5. Park, Y.H.; Kim, J.P.; Cho, K.H. Stability analysis of subway box structure supported by modified underpinning method. Tunn. Undergr. Space Tech. 2015, 50, 199–208. [Google Scholar]
  6. Peng, H.; Meng, B.; Tan, S. Study on Deformation Control of Road-Deep Foundation Pit Passing under Elevated Subway Bridge. Appl. Sci. 2024, 14, 6357. [Google Scholar] [CrossRef]
  7. Zhang, C.; Zhao, Y.; Zhang, Z.; Zhu, B. Case study of underground shield tunnels in interchange piles foundation underpinning construction. Appl. Sci. 2021, 11, 1611. [Google Scholar] [CrossRef]
  8. Li, Z.; Chen, Z.Q.; Wang, L.; Zeng, Z.K.; Gu, D.M. Numerical simulation and analysis of the pile underpinning technology used in shield tunnel crossings on bridge pile foundations. Undergr. Space 2021, 6, 396–408. [Google Scholar]
  9. Yan, L.; Wang, G.; Chen, M.; Yue, K.; Li, Q. Experimental and application study on underpinning engineering of bridge pile foundation. Adv. Civ. Eng. 2018, 2018, 5758325. [Google Scholar]
  10. Zheng, F.; Jiang, Y.; Wang, N.; Geng, D.; Xu, C. Investigation on the influence of active underpinning process on bridge substructures during shield tunnelling: Numerical simulation and field monitoring. Buildings 2023, 13, 241. [Google Scholar] [CrossRef]
  11. Qiao, C.Q. Key Construction Technology of Continuous Beam Jacking-underpinning Pier Column Foundation. Build. Constr. 2020, 42, 1699–1701. [Google Scholar]
  12. Liu, C.J.; Liu, Y.X. Application of various pile foundation underpinning technologies in Shenzhen metro line 9. Mod. Urban Transit. 2020, 12, 79–83. [Google Scholar]
  13. Li, P.F. Analysis on Pile Foundation Passive Underpinning of Viaduct on Urban Expressway. Transp. Sci. Technol. 2022, 4, 56–61. [Google Scholar]
  14. Kou, W. Application of Active Underpinning Technique in Construction of Zhengzhou Metro Shield Tunnel Passing Under Bridge Pile Foundation. Rail. Eng. 2018, 058, 87–90. [Google Scholar]
  15. Zhou, Y.; Liu, Y.; Chen, Q.; Ou, X.; Li, Y. Case study of an underpinning pile foundation for an interval tunnel crossing an existing bridge. Appl. Sci. 2022, 12, 12566. [Google Scholar] [CrossRef]
  16. Shan, H.F.; Xia, T.D.; Yu, F.; Tao, H.B.; He, S.H. Influence of underpinning pile drilling construction on the bearing behavior of existing loaded foundation piles: Case study. Adv. Civ. Eng. 2020, 2020, 9568279. [Google Scholar] [CrossRef]
  17. Igba, U.T.; Igba, P.O.; Adekunle, A.A.; Labiran, J.O.; Oyebisi, S.O.; Cosmas, C.A. Strengthening and underpinning of a sinking two storey building in Lagos State Nigeria. Eng. Fail. Anal. 2023, 150, 107334. [Google Scholar] [CrossRef]
  18. Tian, W.W. Summary of key points of bridge underpinning construction process control in operation. Highway 2022, 67, 275–278. [Google Scholar]
  19. JTG D60-2004; General Code for Design Highway Bridges and Culverts. China Communication Press: Beijing, China, 2004.
  20. JTG D62-2004; Code for Design of Highway Reinforced Concrete and Prestressed Concrete Bridges and Culverts. China Communication Press: Beijing, China, 2004.
  21. GB 18306-2015; Seismic Ground Motion Parameter Zonation Map of China. China Standards Press: Beijing, China, 2016.
  22. JTG/T 2231-01-2020; Specifications for Seismic Design of Highway Bridges. China Communication Press: Beijing, China, 2020.
  23. JTG D60-2015; General Specifications for Design of Highway Bridges and Culverts. China Communication Press: Beijing, China, 2015.
  24. JTG 3362-2018; Specifications for Design of Highway Reinforced Concrete and Prestressed Concrete Bridges and Cul-verts. China Communication Press: Beijing, China, 2018.
  25. JTG/T J21-01-2015; Load Test Methods for Highway bridges. China Communication Press: Beijing, China, 2015.
Figure 1. Disease conditions of pier columns 28 and 29 of Pier 2.
Figure 1. Disease conditions of pier columns 28 and 29 of Pier 2.
Buildings 15 01031 g001
Figure 2. Post-damage bridge calculation model.
Figure 2. Post-damage bridge calculation model.
Buildings 15 01031 g002
Figure 3. Envelope diagram for positive section bending check of the main beam during normal service stage.
Figure 3. Envelope diagram for positive section bending check of the main beam during normal service stage.
Buildings 15 01031 g003
Figure 4. Envelope diagram for inclined section shear check of the main beam during normal service stage.
Figure 4. Envelope diagram for inclined section shear check of the main beam during normal service stage.
Buildings 15 01031 g004
Figure 5. Cloud diagram of the maximum vertical displacement of the main beam under the short-term effect combination (mm).
Figure 5. Cloud diagram of the maximum vertical displacement of the main beam under the short-term effect combination (mm).
Buildings 15 01031 g005
Figure 6. Emergency temporary support.
Figure 6. Emergency temporary support.
Buildings 15 01031 g006
Figure 7. Schematic diagram of the underpinning support system. (a) Layout plan of the new pile foundation and bearing platform. (b) Elevation view of the steel pipe support system. (c) Section view of the steel pipe support system.
Figure 7. Schematic diagram of the underpinning support system. (a) Layout plan of the new pile foundation and bearing platform. (b) Elevation view of the steel pipe support system. (c) Section view of the steel pipe support system.
Buildings 15 01031 g007
Figure 8. Construction process flow.
Figure 8. Construction process flow.
Buildings 15 01031 g008
Figure 9. The finite element calculation model.
Figure 9. The finite element calculation model.
Buildings 15 01031 g009
Figure 10. Stress diagram of the underpinning structure under basic load combination.
Figure 10. Stress diagram of the underpinning structure under basic load combination.
Buildings 15 01031 g010
Figure 11. Maximum displacement diagram of the underpinning structure under moving load.
Figure 11. Maximum displacement diagram of the underpinning structure under moving load.
Buildings 15 01031 g011
Figure 12. Schematic diagram of bridge deck profile measurement point layout.
Figure 12. Schematic diagram of bridge deck profile measurement point layout.
Buildings 15 01031 g012
Figure 13. Schematic diagram of planar displacement measurement point layout.
Figure 13. Schematic diagram of planar displacement measurement point layout.
Buildings 15 01031 g013
Figure 14. Schematic diagram of bridge beam deflection measurement points. (a) Elevation view and (b) cross-section diagram.
Figure 14. Schematic diagram of bridge beam deflection measurement points. (a) Elevation view and (b) cross-section diagram.
Buildings 15 01031 g014
Figure 15. Schematic diagram of pier and abutment settlement displacement monitoring points.
Figure 15. Schematic diagram of pier and abutment settlement displacement monitoring points.
Buildings 15 01031 g015
Figure 16. Schematic diagram of pier column strain monitoring points.
Figure 16. Schematic diagram of pier column strain monitoring points.
Buildings 15 01031 g016
Figure 17. Bridge deck profile variation.
Figure 17. Bridge deck profile variation.
Buildings 15 01031 g017
Figure 18. Main measurement points deflection variation stage diagram.
Figure 18. Main measurement points deflection variation stage diagram.
Buildings 15 01031 g018
Figure 19. Photograph of the load-testing vehicle during the loading process.
Figure 19. Photograph of the load-testing vehicle during the loading process.
Buildings 15 01031 g019
Figure 20. Schematic diagram of the static load test section location.
Figure 20. Schematic diagram of the static load test section location.
Buildings 15 01031 g020
Figure 21. Load vehicle parameter diagram (cm).
Figure 21. Load vehicle parameter diagram (cm).
Buildings 15 01031 g021
Figure 22. Moment envelope diagram under moving vehicle load (KN·m).
Figure 22. Moment envelope diagram under moving vehicle load (KN·m).
Buildings 15 01031 g022
Figure 23. Maximum vertical deformation diagram under moving vehicle load (mm).
Figure 23. Maximum vertical deformation diagram under moving vehicle load (mm).
Buildings 15 01031 g023
Table 1. Strength calculation results of the bridge piers under a basic combination of loads.
Table 1. Strength calculation results of the bridge piers under a basic combination of loads.
Verification PositionAxial Force (KN)Resistance (KN)Safety Factor
Pier 26 5553.313,393.92.41
Pier 27 3631.713,393.93.69
Pier 28 7631.410,715.11.40
Pier 30 6157.113,393.92.18
Pier 31 3964.913,393.93.38
Pier 32 4266.713,393.93.14
Pier 33 3990.913,393.93.36
Table 2. Comparison of the characteristics of different underpinning methods.
Table 2. Comparison of the characteristics of different underpinning methods.
Underpinning Structure NameLoad Transfer MethodDeformation ControlApplicable Scenarios
Passive underpinningDirect transferStructural deformation is difficult to control.Scenarios with small tonnage and structures that are not very strict about deformation.
Active underpinningStaged transferPartial deformation of the underpinning structure is eliminated through preloading, allowing for control of the settlement of the superstructure.Scenarios with large tonnage and structures that have strict requirements for deformation.
Table 3. Calculation table for the reinforced Pier 2.
Table 3. Calculation table for the reinforced Pier 2.
Verification LocationDesign LoadSafety Factor
Axial Force (KN)Bending Moment (KN·m)
Pier Base4069.641169.791.99
Table 4. Calculation table for the reinforced Pier 2 bearing platform.
Table 4. Calculation table for the reinforced Pier 2 bearing platform.
Verification LocationDesign Load (KN)Bearing Capacity (KN·m)Safety Factor
Transverse Bridge Direction (During Process)14865397.83.3
Longitudinal Bridge Direction (After Reinforcement)699614,8001.92
Table 5. Monitoring categories and frequencies.
Table 5. Monitoring categories and frequencies.
Monitoring CategoryMonitoring Frequency
Bridge deck profileOnce before steel pipe support installation and once after completion.
Planar displacementOnce daily before completion.
Beam deflectionOnce daily before completion, real-time monitoring during beam placement.
Settlement displacement observationOnce daily from pier cap pouring to completion.
Beam placement pier strain monitoringDuring beam placement, incremental loading strain gauges are arranged on two newly built piers.
Verticality measurementOnce after completion of the newly built piers.
Table 6. Elevation measurement changes.
Table 6. Elevation measurement changes.
Measurement PointMeasurement Line
Right EdgeRight Pier TopLeft EdgeLeft Pier Top
51.81.40.60.0Pier 1
61.22.4−1.5−2.4/
72.03.1−2.5−4.8/
84.31.8−4.2−8.1/
95.23.3−5.0−7.9Pier 2
104.53.4−4.3−6.8/
113.33.4−1.7−5.2/
122.53.1−0.3−1.2/
131.83.01.10.6Pier 3
Table 7. Beam deflection changes at key stages.
Table 7. Beam deflection changes at key stages.
StageStateLZ2LZ3LZ4LY2LY3LY4
After initial temporary supportSlight twisting000000
After secondary steel pipe supportSlight twisting2.12.62.914.914.915
Adjustment before beam placementRestored to a non-twisted state−3.7−3−2.39.3109.6
After beam placementRestored to a non-twisted state−6.4−4.7−4.255.15.2
Table 8. Pier column stress–strain calculation table for support reaction forces during beam placement.
Table 8. Pier column stress–strain calculation table for support reaction forces during beam placement.
Operating ConditionPier NumberSupport Reaction (KN)Pier Column Cross-Sectional Area (m2)Stress (MPa)Strain (με)
Dead Load (Beam Placement)Column 2-1
Column 2-2
2556.11.327−1.926−59.3
Table 9. Pier column stress–strain monitoring table for support reaction forces during beam placement.
Table 9. Pier column stress–strain monitoring table for support reaction forces during beam placement.
Operating ConditionsPier NumberMeasurement PointStrain (με)Calibration Factor
Level 1 (55%)Level 2 (80%)Level 3 (100%)Theoretical Value
Dead Load (Beam Placement)Pier 2-1YF1-1−20.3 −40.9−51.3 −59.30.87
YF1-2−22.4 −40.4−52.6−59.30.89
YF1-3−23.4−40.6−54.8−59.30.92
YF1-4−21.7 −40.3−51.8 −59.30.87
Pier 2-2YF2-1−25.4 −42.1−53.3−59.30.90
YF2-2−25.3 −39.7−52.6−59.30.89
YF2-3−24.2 −41.1−52.8−59.30.89
YF2-4−24.8 −40.9−54.5−59.30.92
Table 10. Calculated bending moment, experimental bending moment, and corresponding load efficiency coefficients for static loading conditions of the test span.
Table 10. Calculated bending moment, experimental bending moment, and corresponding load efficiency coefficients for static loading conditions of the test span.
Test SectionCalculated Value (KN·m)Test Value (KN·m)Efficiency CoefficientLoading Method (Transverse × Longitudinal)
Span 1 Midspan Maximum Positive Bending Moment (A-A), Central Load4936.94845.00.983 × 2 = 6 vehicles
Span 1 Midspan Maximum Positive Bending Moment (A-A), Eccentric Load4936.94845.00.983 × 2 = 6 vehicles
Pier 1 Top Maximum Negative Bending Moment (B-B), Central Load−3057.4−2906.60.953 × 2 = 6 vehicles
Pier 1 Top Maximum Negative Bending Moment (B-B),
Eccentric Load
−3057.4−2906.60.953 × 2 = 6 vehicles
Span 2 Midspan Maximum Positive Bending Moment (C-C), Central Load4220.44163.70.993 × 2 = 6 vehicles
Span 2 Midspan Maximum Positive Bending Moment (C-C), Eccentric Load4220.44163.70.993 × 2 = 6 vehicles
Pier 2 Top Maximum Negative Bending Moment (D-D),
Central Load
−2718.4−2615.80.963 × 2 = 6 vehicles
Pier 2 Top Maximum Negative Bending Moment (D-D),
Eccentric Load
−2718.4−2615.80.963 × 2 = 6 vehicles
Span 3 Midspan Maximum Positive Bending Moment (E-E), Central Load4234.04049.70.963 × 2 = 6 vehicles
Span 3 Midspan Maximum Positive Bending Moment (E-E), Eccentric Load4234.04049.70.963 × 2 = 6 vehicles
Table 11. Dynamic load test condition table.
Table 11. Dynamic load test condition table.
Operating ConditionsTest SectionOperating Conditions DescriptionTest Content
1Mid-span SectionPulsation TestFrequency
2Mid-span SectionDriving Test at 10 km/hFrequency, Dynamic Strain
3Mid-span SectionDriving Test at 20 km/hFrequency, Dynamic Strain
4Mid-span SectionDriving Test at 40 km/hFrequency, Dynamic Strain
5Mid-span SectionDriving Test at 60 km/hFrequency, Dynamic Strain
6Mid-span SectionBraking Test at 10 km/hFrequency, Dynamic Strain
7Mid-span SectionBraking Test at 20 km/hFrequency, Dynamic Strain
8Mid-span SectionBraking Test at 30 km/hFrequency, Dynamic Strain
Table 12. Dynamic characteristics results of Longdonggou Bridge.
Table 12. Dynamic characteristics results of Longdonggou Bridge.
Serial NumberMeasured Fundamental Frequency (Hz)Calculated Fundamental Frequency (Hz)Measured Damping Ratio (%)Measured/
Calculated Frequency Ratio
17.6666.1361.4501.249
Table 13. Driving test dynamic response results.
Table 13. Driving test dynamic response results.
Load Case10 km/h Driving20 km/h Driving40 km/h Driving60 km/h Driving
Midspan Section Dynamic Strain (με)10111111
Impact Factor (μ)0.0580.0720.1460.171
Table 14. Dynamic response detection results.
Table 14. Dynamic response detection results.
Condition10 km/h Braking20 km/h Braking30 km/h Braking
Dynamic Strain at Mid-span Section (με)71011
Impact Coefficient (μ)0.1030.1190.163
Disclaimer/Publisher’s Note: The statements, opinions and data contained in all publications are solely those of the individual author(s) and contributor(s) and not of MDPI and/or the editor(s). MDPI and/or the editor(s) disclaim responsibility for any injury to people or property resulting from any ideas, methods, instructions or products referred to in the content.

Share and Cite

MDPI and ACS Style

Ran, H.; Li, L.; Wei, Y.; Xiao, P.; Yang, H. Study on the Underpinning Technology for Fixed Piers of Concrete Box Girder Bridges on Mountainous Expressways. Buildings 2025, 15, 1031. https://doi.org/10.3390/buildings15071031

AMA Style

Ran H, Li L, Wei Y, Xiao P, Yang H. Study on the Underpinning Technology for Fixed Piers of Concrete Box Girder Bridges on Mountainous Expressways. Buildings. 2025; 15(7):1031. https://doi.org/10.3390/buildings15071031

Chicago/Turabian Style

Ran, Honglin, Lin Li, Yi Wei, Penglin Xiao, and Hongyun Yang. 2025. "Study on the Underpinning Technology for Fixed Piers of Concrete Box Girder Bridges on Mountainous Expressways" Buildings 15, no. 7: 1031. https://doi.org/10.3390/buildings15071031

APA Style

Ran, H., Li, L., Wei, Y., Xiao, P., & Yang, H. (2025). Study on the Underpinning Technology for Fixed Piers of Concrete Box Girder Bridges on Mountainous Expressways. Buildings, 15(7), 1031. https://doi.org/10.3390/buildings15071031

Note that from the first issue of 2016, this journal uses article numbers instead of page numbers. See further details here.

Article Metrics

Back to TopTop