Next Article in Journal
From Building Deliverables to Open Scene Description: A Pipeline for Lifecycle 3D Interoperability
Previous Article in Journal
Behavior of Nonconforming Flexure-Controlled RC Structural Walls Under Reversed Cyclic Lateral Loading
 
 
Font Type:
Arial Georgia Verdana
Font Size:
Aa Aa Aa
Line Spacing:
Column Width:
Background:
Article

Optimal Roof–Ground Bidirectional Evacuation Strategies for Three-Story Kindergartens: Experimental Measurement and Simulation-Based Analysis

1
School of Architecture, Inner Mongolia University of Technology, Hohhot 010051, China
2
Key Laboratory of Grassland Habitat System and Low-Carbon Construction Technology, Hohhot 010051, China
3
Key Laboratory of Green Building at Universities of Inner Mongolia Autonomous Region, Hohhot 010051, China
*
Author to whom correspondence should be addressed.
Buildings 2025, 15(24), 4502; https://doi.org/10.3390/buildings15244502
Submission received: 1 November 2025 / Revised: 4 December 2025 / Accepted: 10 December 2025 / Published: 12 December 2025
(This article belongs to the Section Architectural Design, Urban Science, and Real Estate)

Abstract

Under fire conditions, kindergartens typically adopt a fully descending evacuation strategy. However, this approach has certain limitations in roof–courtyard bidirectional evacuation scenarios. Therefore, this study conducted an efficiency analysis of bidirectional evacuation strategies for three-story kindergartens. First, the ascending evacuation velocities of children were collected and used as fundamental input parameters for the simulations. Subsequently, MassMotion software was used to model and compare multiple roof–courtyard bidirectional evacuation strategies. The results indicated that under localized fire scenarios occurring on each floor, the optimal strategies were 3G, 2B, and 1A, respectively. Under overall evacuation conditions, Strategy 3G also achieved the best performance, improving total evacuation efficiency by 8.25% compared with the fully downward strategy and demonstrating strong tail-end clearance capability. This study quantified children’s ascending evacuation velocities and proposed a new bidirectional evacuation strategy tailored for three-story kindergartens, providing methodological guidance and practical insights for safe evacuation design in kindergarten buildings.

1. Introduction

In fires and other emergency situations, kindergartens typically adopt an overall descending evacuation strategy to ensure the rapid and orderly movement of children. However, this approach often introduces several safety risks, including reduced evacuation efficiency, crowding, and route retracing [1]. Moreover, most existing studies treat ground-level courtyards as the sole evacuation destination, overlooking the potential of roof evacuation platforms as complementary refuge space. Given the unpredictability and urgency of emergencies [2], it is necessary to systematically examine the coordinated use of refuge areas and their corresponding evacuation strategies. Furthermore, children’s limited cognitive awareness and self-care abilities during emergencies, combined with their unfamiliarity with evacuation routes, often lead to disoriented or impulsive behavior, increasing the risk of accidents [3]. Therefore, studying roof–courtyard bidirectional evacuation can enable targeted responses to localized fires, improve overall evacuation efficiency, reduce detours and congestion, and enhance the overall safety performance of kindergartens in emergencies.
Existing research on evacuation strategies encompasses diverse aspects, including evacuation routes, guidance methods, and evacuation postures [4,5,6,7,8,9,10,11,12,13,14,15], and the scope of investigations is continuously expanding. Evacuation path configuration has been shown to significantly influence children’s evacuation time [4] and efficiency [8]. Under varying exit conditions, adopting a staged evacuation strategy has been shown to effectively mitigate crowding during large-scale evacuations by reducing the average chord length of pedestrian arch formations, thereby alleviating congestion at the exits [16]. Similarly, Huo et al. [10] conducted evacuation experiments involving 130–260 students and found that queued evacuations resulted in slower speeds and longer durations than those of free evacuations. Although layered evacuation increased the total evacuation time, it promoted a more balanced evacuation process, reduced congestion risk, and enhanced overall safety. Building on the concept of staged evacuation, subsequent studies have proposed diverted and layered evacuation approaches, which eventually led to the introduction of roof evacuation strategies. For instance, Jia et al. [11] employed MassMotion software to simulate evacuation scenarios for 12 kindergarten classes and, under fire emergency conditions, proposed a diverted evacuation strategy directing children from third-floor classrooms to the roof platform. However, the underlying mechanisms and practical feasibility of this approach remain unclear. Huo [12] further analyzed evacuation issues in seven non-independent children’s educational facilities in China and systematically examined horizontal and vertical evacuation strategies and factors such as functional zoning, doorway configuration, and guidance systems. Huo’s study established design principles for non-independent facilities and innovatively proposed the utilization of roof spaces as refuge areas, thereby providing systematic theoretical and practical guidance for evacuation strategy design in such building types.
Xie et al. [13] conducted an evacuation simulation using STEPS software for a commercial building accommodating 551 occupants, approximately 10% of whom were children. Their study introduced the concept of a roof evacuation platform and compared its performance with that of a traditional refuge floor. The simulation results examined the application conditions and facility requirements of the platform, demonstrating its feasibility as an effective evacuation destination and providing theoretical support for the design of related evacuation areas. Building on this concept, Zhang [14] systematically analyzed evacuation strategies for children ascending to roof platforms and proposed feasibility conditions and supporting measures, such as ensuring compliance with fire resistance standards, promoting sufficient smoke dilution, and installing additional firefighting facilities. Zhang’s research provided robust theoretical guidance for the spatial selection and functional optimization of roof evacuation platforms, establishing a solid foundation for subsequent investigations in this field. Rusinová and Šlanhof [17] proposed optimized evacuation strategies for a kindergarten converted from a two-story primary school through regulatory benchmarking and cost assessment. Their approach included establishing dual escape routes, connecting the second floor to the ground via reinforced concrete corridors, and dividing classrooms into independent fire compartments. Their work provides innovative design insights for the evacuation retrofitting of existing buildings. The role of evacuation guidance is equally critical to staged evacuation. Hamilton et al. [5,6] compared the influence of guides of different age groups on evacuation efficiency in four primary schools in Ireland. The results showed that children guided by student peers achieved a higher average walking speed (1.60 m/s) than those guided by adults (1.25 m/s). This indicates that the choice of guide substantially influences evacuation outcomes. Similarly, Zhao et al. [15] found that advance announcements of evacuation drills significantly improved the evacuation efficiency of children with intellectual disabilities. Their results highlight the effectiveness of pre-informed strategies and confirm the importance of careful planning. Regarding other fire evacuation strategies, Zhang et al. [9] examined the evacuation postures of 28 children aged 4–6 years. They found that bent-over walking was more advantageous than upright walking, emphasizing the importance of postural adaptation under low-visibility and high-smoke conditions. In summary, existing studies on evacuation strategies have primarily focused on optimizing horizontal and descending evacuation routes, layered organizational methods, evacuation posture adjustments, and variations in guide allocation and guidance approaches.
Studies on the evacuation behavior of children aged 3–6 years have identified differences in age structure and motor abilities as key factors influencing evacuation efficiency. Younger children move significantly slower than older children because of their greater numbers and slower mobility [18]. Moreover, during emergency evacuations, children often exhibit behavioral loss of control, blind following, and other irrational actions that further reduce evacuation efficiency, primarily because of their limited cognitive and adaptive capacities [19]. Zhang et al. [20] found that children’s familiarity with the evacuation environment and their compliance with evacuation strategies were closely related to evacuation performance. Their results highlight the importance of incorporating psychological factors into the design of evacuation procedures and drill mechanisms. Wen [21] similarly noted that primary school students and younger children displayed insufficient cognitive judgment during emergencies, which may lead to herd behavior. In such cases, strategic human guidance is pivotal for maintaining order and enhancing evacuation efficiency. Jia [11] observed that children may engage in route retracing, reckless movement, and overtaking during evacuation, underscoring the necessity of establishing effective strategy-guided mechanisms to ensure their safety. Similarly, Xue et al. [22] found that even in unidirectional corridors, children may still attempt overtaking or rushing due to low risk awareness and limited cognitive ability, further reinforcing the importance of guided interventions in evacuation strategies.
Regarding children’s evacuation speeds, researchers have conducted systematic field measurements and statistical analyses to characterize their movements under varying environmental conditions. Yao and Lu [23,24] reported an average stair evacuation speed of 0.55 ± 0.17 m/s, noting significant differences in stair movement patterns among age groups. Additionally, children’s average horizontal movement speed was 0.86 ± 0.20 m/s, whereas their average vertical speed on stairs was 0.53 m/s, indicating that the direction of movement substantially influences evacuation speed [25,26,27]. Similarly, Fang et al. [28] reported horizontal and stair speeds of 0.81 ± 0.40 m/s and 0.63 ± 0.20 m/s, respectively, confirming similar trends across movement directions. Najmanová and Ronchi [4] monitored the evacuation behavior of 188 children aged 3–6 years and reported horizontal corridor speeds of 0.69–1.33 m/s, indoor stair speeds of 0.57 m/s, and outdoor stair speeds of 0.34 m/s. Similarly, Hamilton et al. [5,6] measured average vertical and horizontal evacuation speeds of 0.92 m/s and 1.46 m/s, respectively, for children aged 4–12 years. In addition, Kholshchevnikov et al. [29] provided more detailed age-specific stair movement data: 0.66 m/s for 4–5-year-olds and 0.74 m/s for 5–7-year-olds, offering refined reference values for evacuation modeling among children in similar age groups.
In addition to the aforementioned studies on overall evacuation speeds, several researchers have specifically investigated ascending evacuation velocities. Lam et al. [30] conducted experiments measuring the upward movement speeds of children aged 5–9 years and reported an average of 0.484 m/s, demonstrating that both age and gender significantly affect vertical walking speed. Peng [31] further observed that young children’s upward movement speed averaged 0.4 m/s, whereas their downward movement speed reached 0.52 m/s. Similarly, Yeo and He [32] recorded and analyzed the walking speeds of 283 children in a passenger transport station, reporting ascending, descending, and horizontal speeds of 0.29 m/s, 0.31 m/s, and 1.08 m/s, respectively, thus providing a comparative reference for different movement directions. Li et al. [33] analyzed ascending evacuation speeds of participants aged 10–60 years in a ten-story office building through analog experiments and video analysis. The results showed that young males exhibited a higher average upward speed (0.97 m/s) than young females (0.78 m/s).
Existing studies indicate that children’s evacuation behavior is influenced by multiple factors, including age, cognitive ability, familiarity with the environment, and the presence of strategic guidance. These studies also reported the occurrence of irrational behaviors during emergency evacuations, such as freezing, wandering, and overtaking, highlighting the critical role of guidance strategies in maintaining an orderly evacuation. With respect to evacuation speed and strategy, most existing research has concentrated on horizontal or descending evacuations, whereas data and physiological parameters related to ascending evacuations are scarce. On the one hand, sample sizes for upward movement are generally small, and systematic age-stratified analyses are lacking. On the other hand, studies exploring roof–courtyard bidirectional evacuation are relatively limited, particularly those that investigate in detail the coordinated use of both ground and roof spaces as refuge areas. To address these gaps, this study first measured the ascending evacuation speeds of children and then examined the coordinated use of roof and courtyard refuge spaces during fire conditions. The efficiency of bidirectional evacuation strategies was subsequently evaluated, and optimal local and overall evacuation schemes were identified across different emergency scenarios, with the ultimate goal of optimizing refuge space utilization and enhancing the evacuation efficiency of kindergartens during emergencies.

2. Methods

This section is organized into six subsections. Section 2.1 describes the specific information of the experimental site and the detailed characteristics of the experimental equipment. Section 2.2 introduces the participant information, and Section 2.3 outlines the procedures for data investigation. Section 2.4 presents the simulation software and the construction of the simulation model. Section 2.5 explains the configuration of evacuation strategy protocols used in the simulation experiments, and Section 2.6 describes the data analysis methods.

2.1. Selection of Experimental Site and Equipment

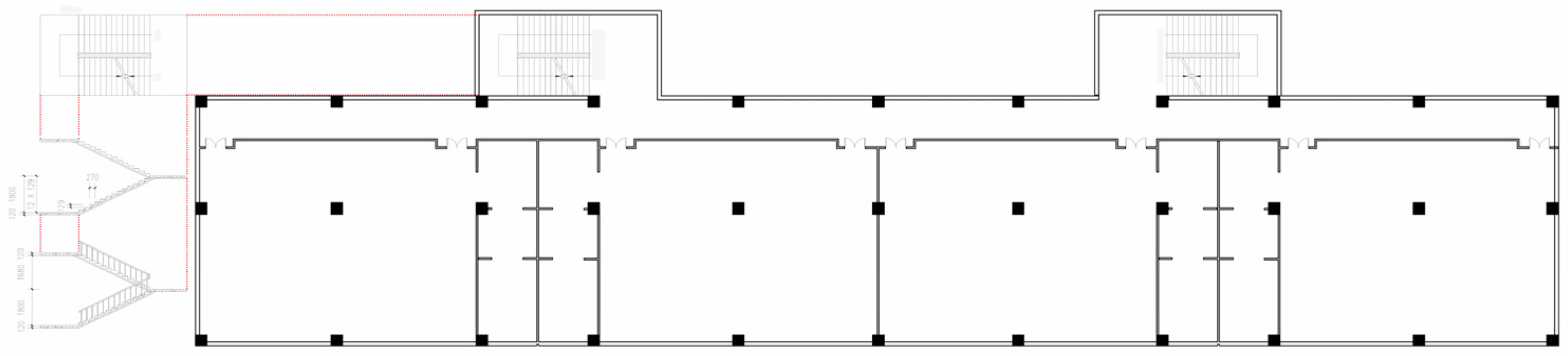
The experiments in this study were conducted in the fire-protected stairwell of a three-story building with a total height of 13.8 m. The ascending evacuation processes from all three floors were recorded to obtain data on evacuation performance when reaching the rooftop space. According to the Chinese Code for Fire Protection Design of Buildings (GB50016-2014) [34], staircases in kindergartens should be enclosed or smoke-proof to ensure independent and safe evacuation routes. In compliance with these requirements, the experimental stairwell was fully fire-protected and equipped with metal fire doors with specifications and dimensions that strictly adhered to the relevant design standards. Consequently, this stairway configuration is suitable for simulating kindergarten evacuation scenarios during fire emergencies [33]. The experimental environment was well-lit and evenly illuminated, thereby eliminating the potential influence of ambient lighting on the experimental process.
As shown in Figure 1, the stairwell features a two-flight configuration comprising 24 steps in total. Each flight has a width of 1.39 m, a tread depth of 0.28 m, and a riser height of 0.14 m, corresponding to a slope of 26.5°. The intermediate landing measures 2.8 m × 1.6 m. Detailed structural information is provided in Figure 1, which includes (a) a plan view, (b) a sectional view, and (c) a stair entrance view. During the experiments, surveillance cameras were used to continuously record participants’ entire upward movement. As shown in Figure 1, four fixed digital cameras were deployed, each with a resolution of 1920 × 1080 pixels and a frame rate of 30 fps. All cameras were connected to the same wireless network at the beginning of the experiment to ensure time synchronization and calibration accuracy.

2.2. Participant Information

A total of 60 children (30 boys and 30 girls) participated in the experiment. The age, sex, and height of each participant were recorded prior to the experiment. All children were in good physical health and exhibited no apparent motor impairments. Detailed demographic information is presented in Table 1. Informed consent was obtained from the guardians of all participants. The study was reviewed and approved by the ethics committee in compliance with institutional ethical standards.

2.3. Data Collection Procedure

To collect children’s ascending evacuation speeds, a total of 60 participants were recruited for the experiment. This number represents the maximum sample size achievable under the kindergarten’s safety requirements and the principle of voluntary participation by both guardians and children. Among them, 17 were from the lower kindergarten group, 20 were from the middle kindergarten group, and 23 were from the upper kindergarten group, forming a sample structure consistent with the actual distribution of students across age levels. The participants were grouped by grade, and each trial involved dispatching one child at a time to complete the evacuation task individually. All other experimental conditions were kept identical across trials to ensure consistency and repeatability.
Specifically, each participant first gathered in a designated waiting area and completed a brief resting phase before entering the evacuation route to initiate upward movement. The entire process was recorded continuously using fixed surveillance cameras. Notably, the participants were unfamiliar with the experimental environment, which helped more accurately emulate the uncertainty characteristics of real emergency evacuation scenarios. After each trial, all participants were required to rest for 10 min to mitigate fatigue effects. The overall experimental setup is shown in Figure 2.
In this study, the evacuation speed on the staircase was calculated following the methodology used in previous studies [4,15,35], that is, by dividing the total distance traveled along the evacuation route by the time taken to complete it, thereby determining each participant’s movement speed.
The specific calculation formulas are provided in Equations (1) and (2), respectively.
V e r t i c a l   t r a v e l   s p e e d   m / s = n s l i n c l i n a t i o n + l t u r n i n g ( F B i F A i ) 1 / F r
l t u r n i n g   ( m ) = Π 2 ( l l a n d i n g l s t e p )
where F A i represents the frame number at the start of the area; F B i denotes the frame number at the end of the area; F r represents the camera frame rate; n s denotes the number of steps; l i n c l i n a t i o n represents the hypotenuse length of each step; l t u r n i n g denotes the turning length at the stair landing, which corresponds to the arc length of a semicircle; l l a n d i n g denotes the length of the stair landing; and l s t e p represents the step length. The formulation is based on the circumference equation of a circular arc, as the turning section at the stair landing is treated as an equivalent semicircular path. The reference points used to calculate the ascending evacuation distance are shown in Figure 3. Specifically, A represents the starting point of the first half of the stair flight, B represents the end point of the first half, C represents the starting point of the second half of the stair flight, D represents the end point of the second half, and R denotes the turning radius.
In this experiment, particular emphasis was placed on ensuring accurate measurement of children’s vertical ascending evacuation data. The timing interval was defined to start at the moment a participant’s first foot stepped onto the initial stair tread and to end when the last foot completely left the final stair tread. This definition was intended to minimize potential data bias resulting from ambiguous starting or ending points. It is worth noting that, owing to individual differences in children’s step length and turning radius at the stair landing, the actual ascending distance may inevitably differ slightly from the calculated geometric distance.

2.4. Simulation Platform and Model Construction

2.4.1. Introduction to Simulation Software

In this study, MassMotion 11.0, developed by ARUP, was used as the simulation platform [36]. This software has been extensively validated in the field of large-scale crowd modeling [37]. MassMotion supports agent-based dynamic route selection, social force interactions, and responsiveness to environmental changes, enabling effective simulation of realistic behaviors during ascending evacuation [38]. In this study, only the core functionalities related to scene construction and agent movement were used.

2.4.2. Building Model Construction

The research model was based on a typical three-story “linear” kindergarten building [39], with four activity rooms on each floor. Each activity room was equipped with two evacuation exits, each 1.5 m wide. Two internal two-flight staircases served as the primary vertical circulation routes, with detailed specifications presented in Figure 4. Considering that the initial occupant distribution was freely assigned within the activity units, the three-dimensional (3D) simulation setup and detailed scenario elements of the base model are shown in Figure 5 and Table 2, respectively.

2.4.3. Agent Model

This study comprehensively referred to the China Anthropometric Data of Minors [40], and field survey data were collected, with the P95 percentile values selected as the primary reference standards. Detailed information is provided in Table 3 and Table 4.
Based on these data and the observed variation range, the children’s height was set to 1230 ± 100 mm, body width to 310 ± 50 mm, and body depth to 200 ± 50 mm in the simulation. To facilitate evacuation simulation in the software, the anthropometric structures of kindergarten children were simplified into corresponding geometric forms in the simulation model, as illustrated in Figure 6. Meanwhile, two key behavioral settings were incorporated into the model. First, the behavior of the agent group is influenced by social forces. Second, all agents are assumed to have received clear evacuation instructions from teachers and act strictly in accordance with the directions specified in these instructions.

2.5. Configuration of Evacuation Strategy Programs in the Simulation Experiment

2.5.1. Simulation Speed Settings for Bidirectional Evacuation of Children

This subsection summarizes and analyzes the ascending evacuation speeds of all participating children and, in combination with existing research data, establishes a bidirectional evacuation database to support the present simulation study. Based on the data collection methods described above, the experiment compiled the ascending evacuation times and corresponding speeds of all 60 participants. Statistical analysis revealed that children’s ascending evacuation times ranged from 28 to 72 s, with corresponding speeds between 0.49 and 1.20 m/s. Detailed statistics are provided in Table 5, and the distribution characteristics of the data are illustrated in Figure 7. Based on the experimental conditions, including stair geometry, building height, and safety environment, these speed results are applicable to staircases of similar dimensions in public buildings, as well as for one- to four-story ascending distances of approximately 13.8 m.
In constructing the simulation parameters for children’s evacuation, this study referenced both the research findings of the present team and relevant studies by other scholars [28,41], integrating these with the experimental data obtained in this study. The movement speed ranges for children of different age groups in the simulation model were determined as follows: (1) lower kindergarten class: horizontal and descending evacuation speeds of 0.41–0.85 m/s and ascending speeds of 0.59–0.83 m/s; (2) middle kindergarten class: horizontal and descending evacuation speeds of 0.54–1.19 m/s and ascending speeds of 0.69–0.90 m/s; and (3) upper kindergarten class: horizontal and descending evacuation speeds of 0.64–1.51 m/s and ascending speeds of 0.74–0.94 m/s. The overall speed settings were assumed to follow a normal distribution. To enhance data validity and reduce potential errors, the standard deviations of the speed data were also input into the simulation software, and the evacuation scenario was set to emergency mode. Detailed modeling speed parameters are presented in Table 6.
Moreover, this study conducted model validation. Each type of child agent was simulated individually following the same procedure as the physical experiment, and each simulation was repeated 30 times. The simulated evacuation time of each type of child agent was then compared with the experimentally measured time to calculate the deviation. All deviation values remained below 7%. In addition, the simulated speed values fell within the range reported by Fang et al. [28], further supporting the reliability of this agent-based model. Details are provided in Table 7.

2.5.2. Crowd Distribution Settings in the Simulation Experiments

According to the relevant provisions in the Code for the Design of Nurseries and Kindergartens (JGJ 39-2016) [42] regarding the number of children per class, this study set the simulated class sizes based on the prescribed upper limit. The specific number of modeled participants is presented in Table 8.

2.5.3. Establishment of Evacuation Strategies and Flow Lines in the Simulation Model

To simulate realistic evacuation scenarios, the evacuation units within the model were systematically organized into different flow line combinations based on the following principles. (1) For clarity, classes were designated as follows: lower kindergarten (Small A, Small B, Small C, and Small D); middle kindergarten (Medium A, Medium B, Medium C, and Medium D); and upper kindergarten (Large A, Large B, Large C, and Large D). (2) Evacuation destinations and route logic. The model defined two safe refuge areas: the ground-level outdoor space and the rooftop evacuation platform, thereby enabling bidirectional evacuation. This design accommodates practical fire scenarios, such as mandatory ascending evacuation when a fire occurs between the second and third floors or when a local classroom fire on the second floor spreads upward, forcing third-floor occupants to move to the roof. It also reflects situations in which a fire on the first floor may cause congestion at ground exits, making ascending evacuation a necessary alternative. Routes that violated fundamental evacuation logic were excluded, and no intersecting or obstructive movements between adjacent floors were permitted. (3) Single-floor combination. Each floor contained four classrooms, theoretically yielding 24 = 16 possible single-floor combinations. After removing redundant routes owing to symmetry, 10 distinct single-floor flow line organizations remained (Table 9).
(4) Three-floor combinations. Based on the 10 single-floor flow types, the theoretical number of three-floor combinations was 103 = 1000. However, according to the rational evacuation route principles described above, a total of 28 combinations remained (10 + (2 + 4 + 2) + 10). Because the simultaneous ascending evacuation of all third-floor occupants does not conform to the efficiency optimization concept, the final number of flow line combinations was reduced to 27. The combination logic is presented in Table 10.
(5) 3D modeling. A 3D model was developed for all 27 flow line combinations, with each assigned a unique identifier for subsequent simulations. Among them, Model 4A was designated as the control group, representing the conventional full descending evacuation strategy. Detailed model parameters are presented in Table 11.

2.6. Data Analysis Methods

To evaluate the evacuation efficiency and stability of different strategies, this study analyzed the total evacuation time, number of remaining occupants, and their interrelationships. To enhance the reliability of the results, each evacuation strategy was simulated 30 times, generating 30 sets of evacuation data. Statistical analyses of the evacuation time range, mean value, and standard deviation were conducted to quantify the fluctuation and stability of each strategy. Furthermore, Pearson correlation analysis was applied to examine the relationship between the remaining number of occupants and the evacuation time.
Trend curves were plotted based on the correlation results to visualize the evacuation characteristics at different time stages. By integrating these multi-dimensional analyses, this study systematically compared and verified the efficiency and applicability of each evacuation strategy, providing quantitative evidence for optimizing evacuation organization in kindergartens under fire emergency conditions.

3. Results

Regardless of the evacuation strategy adopted, evacuation time serves as the most direct and critical metric for assessing evacuation efficiency. To systematically compare differences among the various strategies and identify the underlying influencing factors, this study conducted a detailed statistical analysis of the mean values, standard deviations, and extreme ranges for each strategy.

3.1. Statistical Analysis of Overall Descending and Three-Floor Bidirectional Evacuation Times

To clarify the research framework, the evacuation strategies were grouped into three categories based on the number of floors involved, with an additional control group for comparison. The control group (4A) and three-floor bidirectional evacuation strategies were first analyzed statistically, as shown in Table 12. After 30 repeated simulations, the control group 4A recorded a mean evacuation time of 185.07 s. Compared with 4A, Strategies 3B, 3C, 3D, and 3G exhibited higher evacuation efficiencies.
Among these, Strategy 3G performed the best, with a mean evacuation time of 170.97 s. In contrast, Strategy 3A was the slowest, with a mean evacuation time of 216.07 s, which was 26.38% longer than that of 3G. The 95% CI of 3A (210.06–222.06 s) was consistently higher than that of 3G. Details are presented in Table 12.
Figure 8 visually reflects the differences in time, efficiency, and stability of the various evacuation strategies. Among them, Strategies 3A, 3F, and 3I exhibited substantial fluctuations in evacuation time, with elongated boxes and whiskers in their box plots, as well as widely dispersed scatter points. These features indicate that these strategies have poor temporal stability and a high probability of congestion or delay during evacuation.
In contrast, Strategy 3G displayed a more concentrated distribution of evacuation times, characterized by a lower position of the box plot, shorter boxes and whiskers, and tightly clustered scatter points. This suggests that under the scenario of three-floor class bidirectional evacuation, Strategy 3G achieves both higher temporal efficiency and better stability.
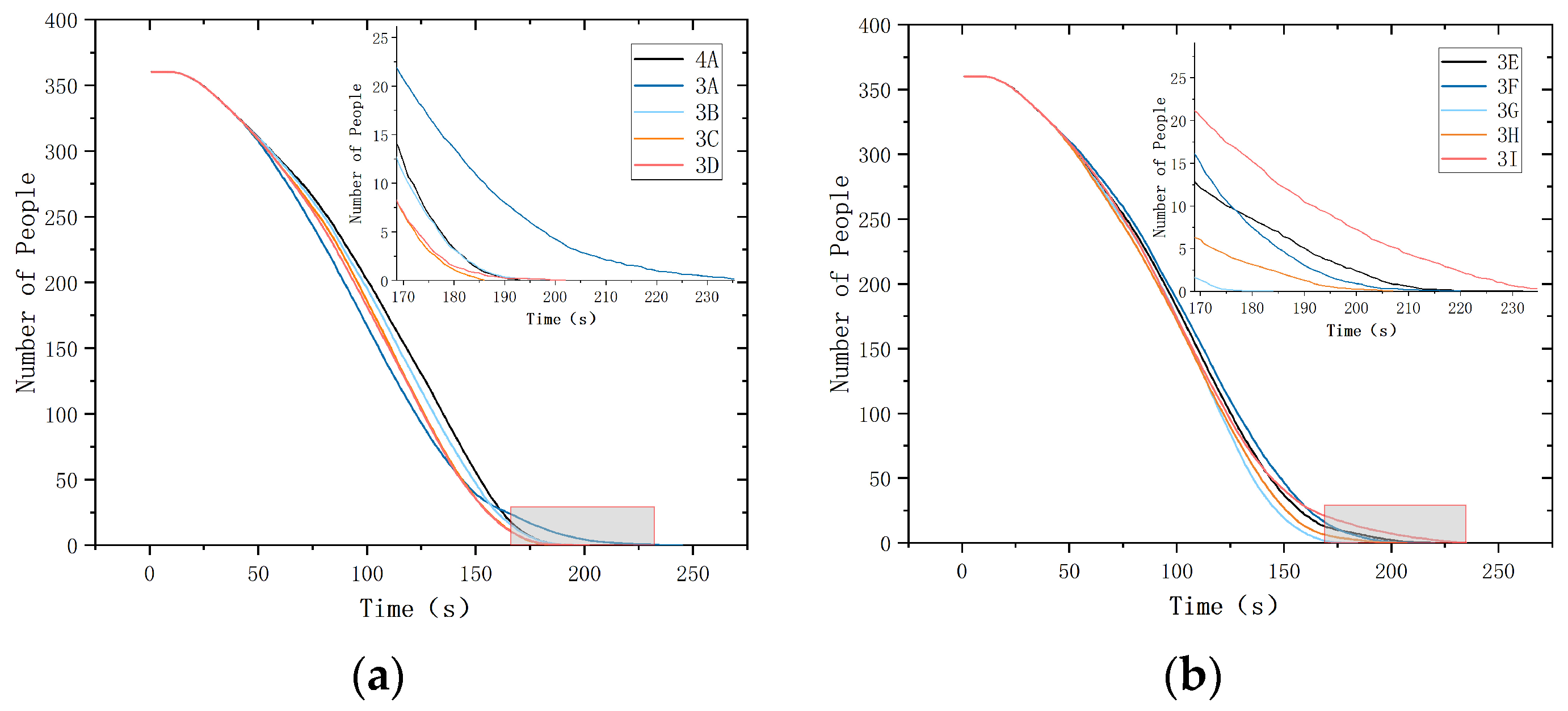
Figure 9a,b depict the temporal evolution of the evacuation time and average number of remaining evacuees for each strategy based on 30 simulation trials. Overall, the number of remaining evacuees decreased progressively over time, following an approximately linear trend with elapsed time. As confirmed by the Pearson correlation analysis in Table 13, evacuation time was significantly and negatively correlated with the number of remaining evacuees for all strategies (p < 0.01), indicating a strong and statistically significant relationship.
From a temporal perspective, the curves for all strategies closely overlapped during the initial stage (approximately the first 50 s), showing negligible differences. However, in the mid-stage, the rate of decline began to diverge. Strategy 4A exhibited a relatively slow decrease, whereas 3A exhibited a more rapid decrease. In the final stage, the 4A curve steepened and reached the X-axis earlier, indicating improved efficiency toward the end of the evacuation. Conversely, 3A slowed markedly in the later stages, leading to a substantially extended time for completion. Similarly, in Figure 9b, Strategies 3E and 3I displayed stable declines during the early and mid-phases but slowed significantly near the end, delaying the time at which their curves intersected the x-axis. These findings suggest that the initial evacuation route configuration and flow pattern strongly influence the overall evacuation rate during later stages, ultimately determining the total evacuation time.

3.2. Statistical Analysis of Bidirectional Evacuation Times for Second-Floor Classes

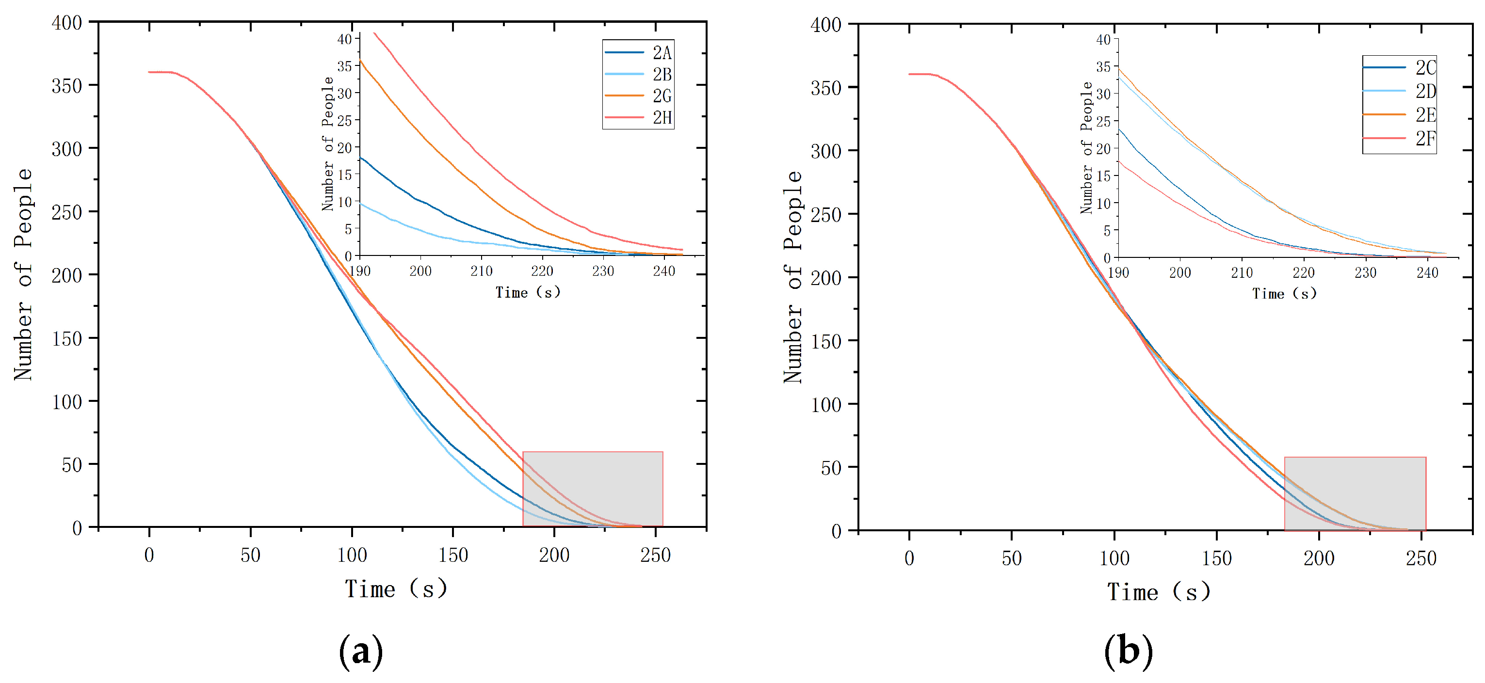
Table 14 summarizes the statistical results of the bidirectional evacuation simulations for the second-floor classes. Among all strategies, 2B achieved the highest efficiency, with a mean evacuation time of 218.06 s. In contrast, Strategy 2H recorded the slowest performance, with a mean evacuation time of 241.26 s, which was 5.79% longer than that of 2B. Its 95% CI ranged from 237.17 to 245.35 s, representing increases of 10.88% and 10.40% over the corresponding lower and upper bounds of 2B, respectively.
Figure 10 presents the boxplot statistics of the simulation times for the bidirectional evacuation strategies on the second floor. The figure intuitively reveals the differences in evacuation time, efficiency, and stability among the strategies. The simulation time points for all strategies exhibited pronounced dispersion with elongated box lengths and whiskers. This observation corresponds to the relatively large SD values listed in Table 14. These results indicate that the bidirectional evacuation strategies for the second-floor classes exhibit lower temporal stability, as the evacuation process is more susceptible to uncertainty factors, leading to widely dispersed evacuation time outcomes.
Figure 11a,b present the temporal evolution of the evacuation time and number of remaining evacuees for each strategy, based on the average of 30 simulation trials. Overall, the number of remaining evacuees decreased progressively over time, showing an approximately linear relationship with total evacuation duration. This trend was further confirmed by the Pearson correlation analysis, as shown in Table 15. The analysis demonstrated a significant negative correlation between evacuation time and the number of remaining evacuees for all strategies (p < 0.01), indicating a strong and statistically significant association. From a temporal perspective, during the early phase of evacuation (approximately the first 55 s), the curves for all strategies overlapped closely, showing minimal variation. In the mid-stage, the slopes began to diverge. As shown in Figure 11a, Strategies 2A and 2B exhibited noticeably steeper slopes during the mid-stage, followed by a flattening trend toward the end, intersecting the x-axis earlier than the other strategies. In Figure 11b, the curves for different strategies were initially close, at times even intersecting in the early mid-stage, but began to diverge in the latter half. Strategies 2D and 2E maintained similar linear decline patterns. In contrast, the slopes of 2C and 2F gradually decreased, with 2F exhibiting a more pronounced deceleration. Nonetheless, both 2C and 2F intersected the X-axis earlier than 2D and 2E. In summary, under bidirectional evacuation conditions for second-floor classes, different strategies exhibited distinct performance characteristics at various stages of evacuation. Some showed pronounced slope changes and curve intersections during the mid-to-late stages, whereas others maintained more uniform and linear trends. These findings suggest that evacuation efficiency is influenced not only by overall strategy design but also by flow dynamics across different phases of the evacuation process.

3.3. Statistical Analysis of Bidirectional Evacuation Times for First-Floor Classes

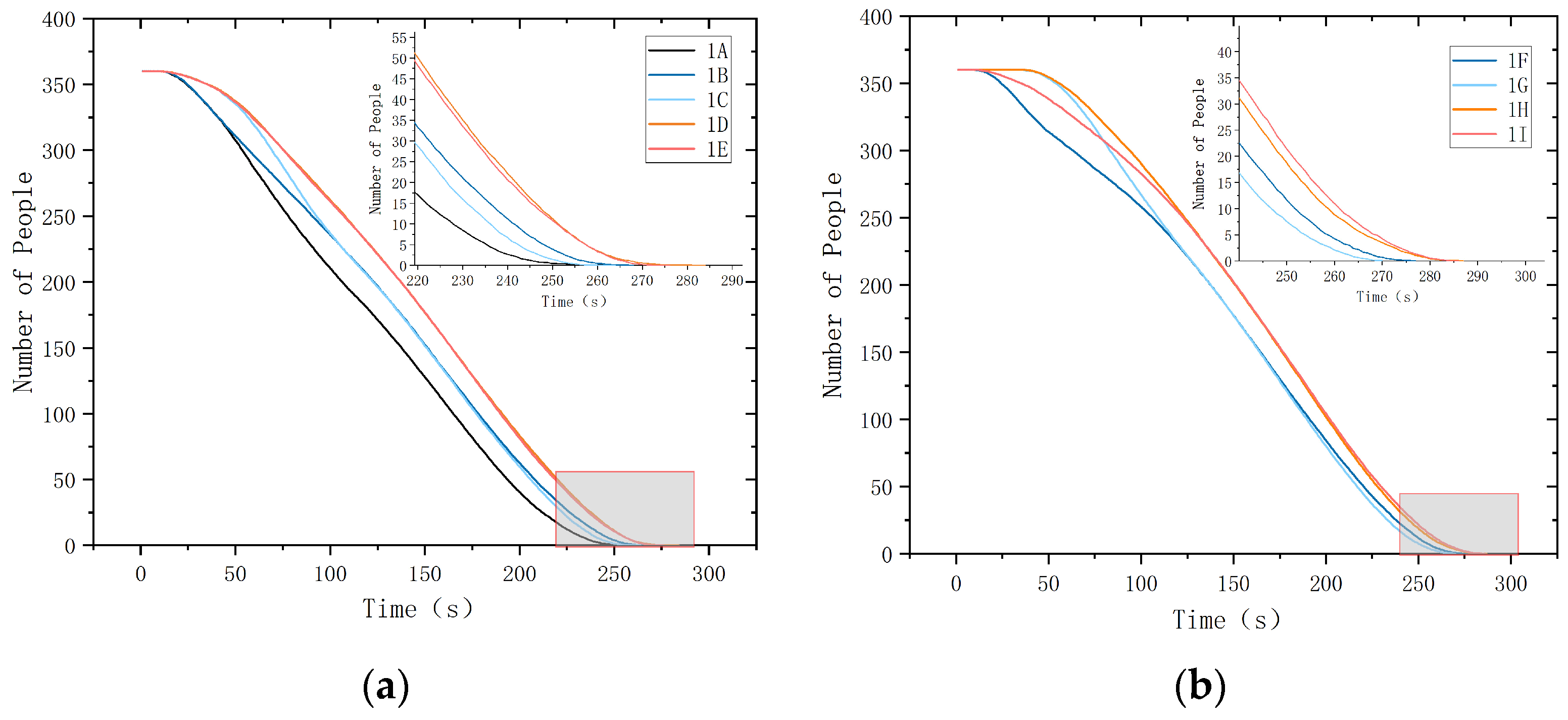
Table 16 summarizes the statistical results of the bidirectional evacuation simulations for the first-floor classes. Among all strategies, 1A achieved the highest efficiency, with a mean evacuation time of 243.47 s. In contrast, Strategy 1I exhibited the lowest efficiency, with a mean evacuation time of 277.23 s, which was 13.87% longer than that of 1A. Its 95% CI ranged from 275.57 to 278.90 s, representing increases of 14.90% and 12.87% over the corresponding lower and upper bounds of 1A.
The results in Table 16 show that Strategy 1A had the shortest mean evacuation time, whereas Strategy 1I had the longest. However, their variability exhibited an opposite trend (Figure 12). Observations indicate that although 1A had relatively lower peaks and troughs, its boxplot displayed the longest boxes and whiskers with widely dispersed scatter points, reflecting the highest degree of fluctuation and greater dispersion in the evacuation outcomes. In contrast, although 1I yielded generally higher evacuation times, its temporal pattern was more stable, as evidenced by shorter boxes and whiskers and more concentrated scatter points, indicating better consistency across simulations. These findings suggest that under bidirectional evacuation conditions for first-floor classes, a trade-off exists between average evacuation efficiency and temporal stability. Strategies that achieve higher mean efficiency tend to display greater variability, whereas those with lower mean efficiency exhibit improved stability.
Figure 13a,b illustrate the temporal evolution of the evacuation time and mean number of remaining occupants for each strategy based on the results of 30 simulation trials. Overall, the number of remaining evacuees decreased progressively over time, showing an approximately linear relationship with evacuation duration. As confirmed by the Pearson correlation analysis in Table 17a,b, evacuation time and remaining occupant number were significantly and negatively correlated for all strategies (p < 0.01). This indicates a strong and statistically significant relationship. From a temporal perspective, the curves for all strategies were closely aligned during the initial stage (approximately the first 25 s). Beyond this period, the slopes began to diverge noticeably. In Figure 13a, Strategies 1D and 1E remained nearly overlapped throughout the entire process, whereas 1B and 1C initially diverged but reconverged during the mid-stage, maintaining consistency thereafter. In contrast, 1A and 1B started off close together but gradually separated at approximately 50 s, with 1A exhibiting a steeper slope and reaching the X-axis earlier, thus completing the evacuation first. A similar “initial divergence followed by convergence” pattern was observed in Figure 13b. Strategies 1F and 1G were initially separated with steeper slopes but gradually converged during the mid-stage (approximately 100–125 s) and remained closely aligned until the end. Similarly, 1H and 1I diverged early but converged at approximately 125 s, continuing almost in parallel thereafter. Notably, both 1G and 1H showed relatively slow decline rates before they converged. However, in the final stage, they accelerated significantly and surpassed their counterparts. Both strategies reached the X-axis earlier, indicating a faster completion of evacuation.
These findings suggest that, under bidirectional evacuation conditions for first-floor classes, different strategies yield distinct evacuation dynamics. Although most strategies remain closely aligned during the initial stage, several exhibit a pattern of early divergence, followed by mid- to late-stage convergence.

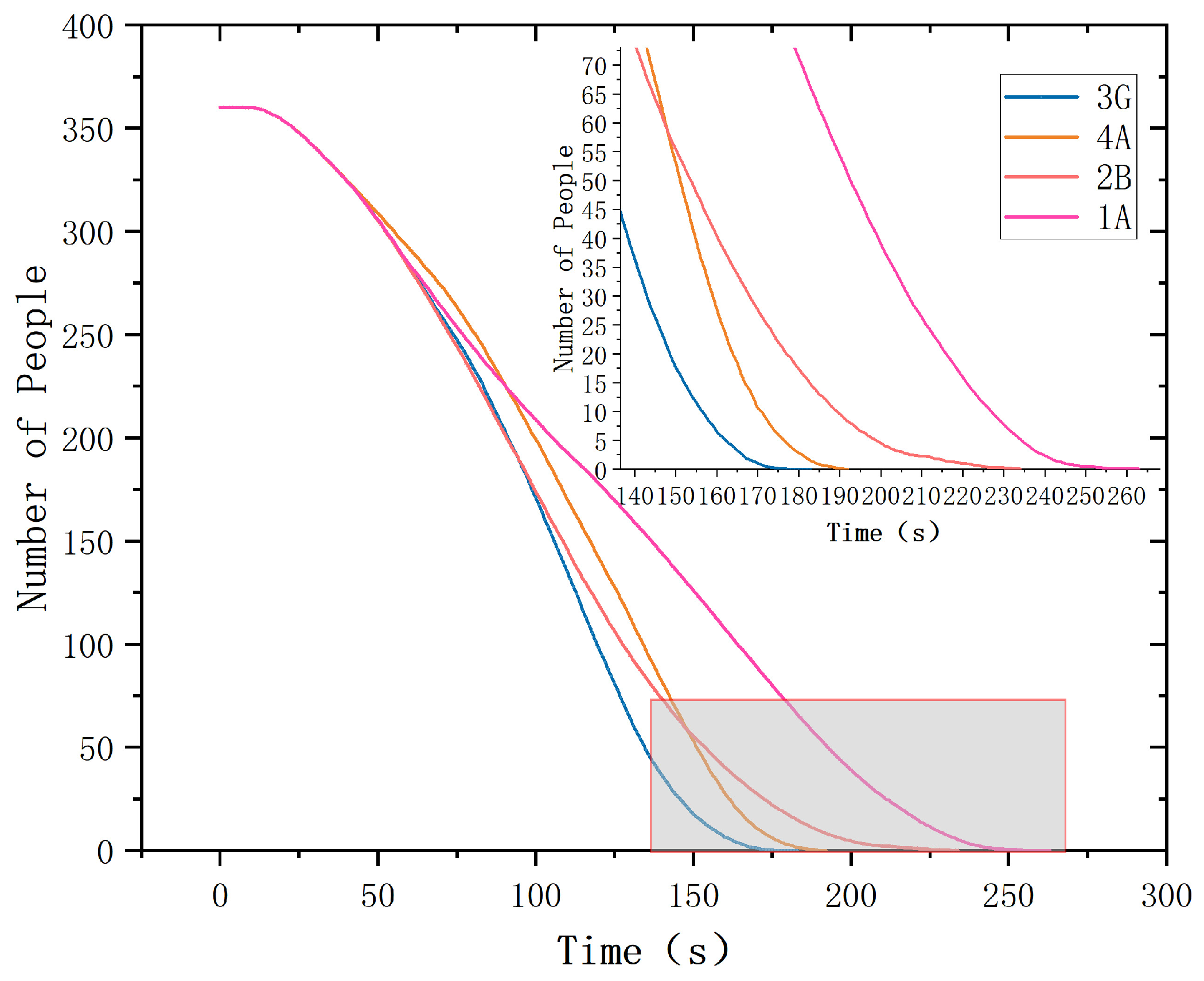
3.4. Comparative Analysis of Overall Descending and Optimal Layer-Specific Evacuation Times

Based on the layer-specific bidirectional simulation data obtained under localized emergency scenarios in the preceding sections, the optimal strategy from each floor was compared with the control group 4A to further evaluate differences in the overall evacuation efficiency. The results showed that the evacuation times of Strategies 1A and 2B were significantly longer than those of the control group, whereas only Strategy 3G exhibited markedly higher efficiency. This trend is clearly illustrated in the 3D diagram (Figure 14) and the boxplot (Figure 15). Specifically, the mean evacuation time for the control group (4A) was 185.07 s, whereas that for 3G was 170.97 s, representing an improvement of approximately 8.25%. The 95% CI for 4A ranged from 183.60 to 186.53 s, which were 8.31% and 8.19% higher, respectively, than the corresponding minimum and maximum values for 3G. Moreover, the range (178–193 s) and SD (3.92 s) of 4A were greater than those of 3G, further confirming the superior evacuation efficiency and stability of Strategy 3G.
As shown in Figure 14 and Figure 15, Strategy 3G exhibited smoother overall fluctuations and smaller amplitudes between peaks and troughs. In addition, its data points were more tightly clustered, consistent with its relatively low SD. These results indicate that compared with the overall descending strategy (4A) and the optimal strategies for each individual floor, Strategy 3G achieved the highest evacuation efficiency while maintaining superior data stability.
Figure 16 illustrates the average variation in the number of remaining evacuees over time for the four strategies based on 30 simulation trials. Consistent with earlier results, the evacuation time and number of remaining evacuees exhibited a strong linear negative correlation (p < 0.01), as detailed in Table 18. From a temporal perspective, the curves of all strategies largely overlapped during the initial phase (approximately the first 50 s), with minimal variation. However, during the mid-to-late stages, the curves diverged significantly.
Specifically, the curves for Strategies 3G and 2B remained closely aligned before 100 s, after which the slope of 3G increased markedly, reflecting a faster reduction in the number of evacuees and an earlier intersection with the X-axis. In contrast, the curve of the control strategy 4A transitioned from a gradual to a steep decline between 50 and 100 s, intersecting with the curve of 1A and subsequently descending at a noticeably faster rate. Between 150 and 175 s, the 4A curve surpassed 1A once again and ultimately reached zero earlier, intersecting the X-axis first. These findings suggest that the optimal strategies for each floor offer distinct phase-specific advantages relative to the control group. Their evacuation efficiencies vary across different stages, accelerating or decelerating depending on the strategic configuration employed.

4. Discussion

4.1. Results of Ascending Evacuation Speeds of Children

In this study, the measured ascending evacuation speeds of children aged 4–6 years were as follows: (1) 4-year-old group (mean = 0.71 m/s, 95% CI: 0.59–0.83 m/s); (2) 5-year-old group (mean = 0.80 m/s, 95% CI: 0.69–0.90 m/s); and (3) 6-year-old group (mean = 0.83 m/s, 95% CI: 0.74–0.94 m/s). The results clearly indicate that the ascending evacuation speed of children increased significantly with age. This finding aligns with the conclusions of Kholshchevnikov et al. [29], who also reported an age-dependent increase in evacuation speed, although their work primarily focused on descending evacuation. Notably, the results of the present study differ considerably from those reported by Peng [31]. Two main factors account for this discrepancy. First, Peng’s study did not classify participants by age group, resulting in more generalized data. Second, the datasets referenced in that study were derived from Yan [43], who investigated adult evacuation speeds and merged children and elderly individuals into a single category. In that framework, the evacuation speed of young and middle-aged men was halved to estimate values for other demographic groups. These data sources and processing approaches differ fundamentally from the field-based measurement methodology adopted in the present study, thereby explaining the observed variation in the results.
Similarly, the results of this study differed from those reported by Lam et al. [30], who recorded an ascending evacuation speed of 0.484 m/s. These discrepancies can be attributed to two primary factors. First, regarding age classification, Lam’s study examined children aged 5–9 years, and the reported value represented the overall average speed. In contrast, the present study focused specifically on younger children aged 4–6 years, with further subdivision into age subgroups to allow for more refined comparisons. This variation in participant age structure constitutes a major source of difference. Second, in terms of behavioral context, Lam’s experiment required participants to engage in one minute of horizontal walking before entering the stairway and maintain a normal walking pace while ascending. In contrast, the present study was designed to simulate real emergency evacuation conditions, with all participants instructed to ascend in an emergency. Consequently, the methodological and experimental differences between the two studies account for the generally higher evacuation speeds observed in the present study compared with those reported by Lam et al. [30].
Overall, the ascending evacuation speed data obtained in this study enrich the existing body of research by addressing the current knowledge gap regarding children’s emergency ascending evacuations. The results provide a quantitative characterization of the evacuation behavior of children aged 4–6 years and demonstrate a significant age-dependent increase in the evacuation speed. These findings not only offer empirical data to support the design and optimization of bidirectional evacuation strategies in kindergartens during emergencies such as fires but also establish a theoretical foundation for comparing and analyzing differences between children’s ascending and descending evacuation behaviors.

4.2. Results of Overall Descending and Three-Floor Bidirectional Evacuation Times

According to the simulation results, four evacuation strategies (3B, 3C, 3D, and 3G) exhibited higher evacuation efficiency when comparing overall descending evacuation with three-floor bidirectional evacuation. This finding indicates that, relative to the conventional single-direction descending evacuation approach, bidirectional evacuation strategies can effectively enhance overall evacuation efficiency. Among these, Strategy 3G was the most effective, achieving the highest evacuation efficiency. This result suggests that, for third-floor classrooms, a bidirectional evacuation pattern in which the central classrooms evacuate upward while the two side classrooms descend provides the optimal configuration for maximizing evacuation performance.
First, as shown in Figure 8, the overall evacuation process under Strategy 3G remained stable, a finding that was statistically supported by its standard deviation values. An analysis of the experienced density maps (Table 19) revealed that Strategy 3G maintained a relatively uniform density distribution during the evacuation process. Here, “experienced density” refers to the average occupant density at each location, calculated as a weighted mean across all agents. Areas of congestion (high-density red zones) were limited in spatial extent and dissipated rapidly. Notably, the rooftop-level experienced density maps indicate that Strategy 3G effectively distributed evacuation pressure across the two ascending stairways, allowing the middle and side classrooms to achieve a relative balance during evacuation. This diversion pattern prevents excessive concentration of occupants along any single evacuation route, ensuring a smoother overall flow from classrooms to ground-level and rooftop refuge areas. Consequently, Strategy 3G substantially enhances both the overall efficiency and stability of third-floor bidirectional evacuation by achieving effective vertical flow separation and balanced utilization of evacuation spaces.
Second, in addition to the previously discussed analysis of Strategy 3G’s experienced density distribution and overall evacuation efficiency, further examination of the relationship between evacuation time and the number of remaining occupants (Figure 9) revealed that the 3G curve was notably smoother, with balanced slope variations. This pattern indicates minimal congestion and relatively stable occupant flow throughout the evacuation process. More importantly, this analysis not only reinforces the superior overall efficiency of Strategy 3G but also highlights its distinct advantages during the later stages of evacuation. After approximately 125 s, the 3G curve exhibited the fastest and most consistent decline, demonstrating strong “tail-clearance” capability, the ability to rapidly reduce the number of remaining evacuees and effectively mitigate the “trailing effect” caused by a few delayed participants. This outcome is closely related to the spatial organization logic of the strategy. The two central classes, which were situated closer to the stairways, initiated ascending evacuation earlier, thereby alleviating initial congestion and facilitating a smoother distribution during subsequent large-scale descending evacuations. Moreover, during the synchronous ascending–descending phase, the ascending population remained moderate and well balanced with the descending flow, preventing excessive crowding or passage interference.
This subsection investigates localized emergency scenarios in three-story kindergarten buildings and proposes an innovative bidirectional evacuation approach. This study systematically evaluated multiple bidirectional evacuation strategies and conducted comparative analyses with conventional unidirectional evacuation methods. Assessments were performed across several key dimensions, including total evacuation time, extreme value distribution, process stability, and experienced density. The results demonstrated that certain bidirectional strategies substantially outperformed traditional approaches, ultimately identifying an optimal targeted evacuation scheme. The proposed methodology and its findings provide valuable guidance for both theoretical research and practical implementation of bidirectional evacuation strategies in three-story kindergartens during fire emergencies.

4.3. Statistical Results of Bidirectional Evacuation Times for Second-Floor Classes

According to the simulation results, among the bidirectional evacuation strategies for second-floor classes, Strategy 2B achieved the shortest average evacuation time. This finding suggests that adopting a split-flow evacuation pattern for second-floor classrooms can yield optimal overall efficiency. In this configuration, a single central class evacuated upward, whereas the remaining three classes descended.
However, considering the temporal fluctuations presented in Figure 10 and the experienced density maps shown in Table 20, the applicability of Strategy 2B should be interpreted with caution. Although 2B exhibited relatively low mean and minimum evacuation times, its time-series fluctuations were considerably large. The experienced density distribution revealed that the first-floor plan, the two right-side classes on the second floor, and the stair flights leading to the roof maintained relatively uniform density patterns. In these areas, the congestion dissipated rapidly. In contrast, high-density clusters appeared in the left-side corridor on the second floor and in the third-floor corridor, leading to the stairways. Furthermore, Strategy 2B exhibited a higher SD than six of the other seven strategies on the same floor, suggesting greater variability and result dispersion.
In summary, although Strategy 2B demonstrates a superior average evacuation time compared with the other strategies, it also presents significant congestion risks in several key passageways, which may reduce process stability.
Furthermore, beyond the analysis of Strategy 2B’s experienced density distribution and overall evacuation efficiency, examination of the relationship between evacuation time and the number of remaining occupants (Figure 11) provides additional insights. The time-series curve for Strategy 2B exhibited distinct phase-dependent slope variations, reflecting the dynamic process of congestion formation and subsequent dissipation during evacuation. Specifically, the most pronounced slope changes occurred during the 50–75 s interval and again after approximately 125 s. In the first phase, the curves of 2A and 2B steepened sharply, indicating a temporary acceleration in the evacuation rate during the mid-stage. At approximately 125 s, when the remaining evacuee count dropped to approximately 125 individuals, Strategy 2B accelerated further. Although both strategies employ a single-class ascending evacuation pattern with the remaining classes descending, suggesting theoretically similar overall pacing, the superior performance of Strategy 2B is likely due to the faster dissipation of localized congestion during the early stage. This early relief of congestion allows subsequent evacuation flows to remain smooth. Therefore, the advantage of Strategy 2B lies not only in its ability to reduce overall evacuation time but also in its enhanced efficiency in handling “tail-end occupants” during the final evacuation phase, effectively mitigating delays caused by residual evacuees and improving total clearance time.
This subsection focuses on localized emergency scenarios on the second floor of kindergartens and proposes and compares several roof–ground bidirectional evacuation strategies. The findings reveal that although some strategies achieve shorter average evacuation times, they often exhibit poorer process stability and reduced flow smoothness. These deficiencies make them more prone to localized congestion and substantial temporal fluctuations, thereby reducing their practical reliability. Based on multi-dimensional evaluation metrics, including average evacuation time, time-series variability, and experienced density distribution, this study underscores that “fastest” does not necessarily equate to “most suitable”. Under second-floor localized emergency conditions, an optimal evacuation approach should balance efficiency and stability, prioritizing strategies that demonstrate superior congestion control and “tail-clearance” capabilities throughout the evacuation process. The methods and findings presented in this study provide methodological and practical guidance for the selection and optimization of evacuation strategies in similar kindergarten settings.

4.4. Statistical Results of Bidirectional Evacuation Times for First-Floor Classes

Based on the simulation results, among the bidirectional evacuation strategies for first-floor classes, Strategy 1A achieved the shortest average evacuation time. This finding suggests that for first-floor evacuations, adopting a “full descending evacuation” approach yields the highest overall efficiency.
However, an analysis of the boxplots (Figure 12) and the experienced density maps (Table 21) indicates that the applicability of this strategy should be approached with caution. Although Strategy 1A performed better in terms of mean and minimum evacuation times, it exhibited the greatest dispersion in the simulation time points, reflecting limited stability. In contrast, despite having the longest evacuation time, Strategy 1I showed the smoothest and most stable temporal pattern. The experienced density distribution further revealed that under Strategy 1A, high-density congestion zones emerged on the second and third floors, particularly along corridors leading to stair flights. These congested zones often extended into adjacent classrooms, forming linear bottlenecks that impeded the flow. Additionally, large-scale congestion occurred along the stair flights that ascended to the rooftop. Moreover, Strategy 1A exhibited both a higher SD and longer boxplot ranges than all other strategies on the same floor, reflecting greater variability and uncertainty in the evacuation performance. In summary, although Strategy 1A achieves the shortest average completion time, the results emphasize that the “fastest” strategy often entails significant instability and potential risks.
Furthermore, analysis of the relationship between evacuation time and the number of remaining occupants (Figure 13) reveals that Strategy 1A exhibited distinct phase-dependent slope variations in its time series, reflecting the dynamic process of congestion formation and subsequent dissipation during evacuation. Specifically, significant slope changes occurred within the 25–75 s, 100–150 s, and 200–250 s intervals. During the initial stage, the evacuation curves of Strategies 1A and 1B overlapped closely, indicating comparable evacuation rates early in the process. However, when the curve for Strategy 1A increased sharply, it signified the relief of localized congestion, allowing subsequent evacuation flows to progress more smoothly. Further analysis indicates that during the 100–150 s and 200–250 s phases, the pronounced slope variations, supported by the experienced density maps, suggest that simultaneous ascending evacuation from all classrooms on the second and third floors imposes substantial evacuation pressure at stairway entry points during the mid-to-late stages. Therefore, although Strategy 1A successfully reduces overall evacuation time, it also introduces potential congestion risks during three critical phases, highlighting the need for cautious assessment in practical applications.
This subsection examines bidirectional evacuation scenarios for first-floor kindergarten classes and proposes and compares several strategic configurations. By integrating multidimensional assessment metrics, including average evacuation time, time-series fluctuations, experienced density distribution, and congestion–retention characteristics, this study demonstrates that the “fastest” route does not necessarily equate to the “most suitable”. Under Strategy 1A, pronounced strip-shaped occupant retention and widespread congestion occurred near stairway entrances and corridors, accompanied by sudden instabilities and elevated congestion risks during several critical time intervals. Therefore, in the practical implementation of first-floor bidirectional evacuation, balancing efficiency and stability to ensure safety and reliability is essential. The methods and findings presented in this subsection provide cautionary insights and methodological guidance for optimizing evacuation strategies in similar kindergarten scenarios.

4.5. Comparative Analysis of Overall Descending Evacuation and Floor-Specific Optimal Strategies

In the preceding sections, the optimal bidirectional evacuation strategies for each floor under localized emergency scenarios were identified and discussed. This section shifts the focus to overall evacuation performance, comparing the floor-specific optimal strategies to determine the globally optimal bidirectional evacuation configuration for multi-story kindergarten buildings under fire and similar emergency conditions. As shown in the time fluctuation chart (Figure 14) and the box plot (Figure 15), Strategy 3G achieved the shortest average evacuation time and exhibited smooth temporal fluctuations and tightly clustered data points.
The temporal characteristics shown in Figure 16 reveal clear time-dependent variations in the effectiveness of the four evacuation strategies. During the initial stage (0–50 s), all strategy curves closely overlapped. This result indicates that at the onset of evacuation, interactions among occupants and between occupants and the building environment yielded comparable evacuation rates. As the process advanced into the mid-phase, individual flow lines began to merge and diverge, intensifying interaction effects. This resulted in rapid differentiation in the curve slopes and occasional curve crossings, demonstrating that the relative performance of each strategy evolved dynamically over time. Specifically, Strategies 3G and 2B exhibited similar trends before approximately 100 s; however, in the subsequent phase, the slope of 3G steepened significantly, reaching zero residual occupants first. This reflects its capacity to maintain a lower occupant density during the mid-phase while efficiently clearing residual evacuees (“tail clearance”) in the final stage. In contrast, the control strategy 4A showed a phased performance advantage (initially slower, followed by acceleration) and surpassed the other strategies at certain time points. This pattern indicates that evacuation efficiency is dynamic rather than static and varies across different temporal stages. From a holistic evacuation perspective, evaluation should consider not only total completion time but also critical temporal metrics such as mid-phase slope behavior and tail-end clearance rate. Reliance solely on total evacuation time may obscure localized bottlenecks, whereas effective overall evacuation requires both stability and continuity of flow throughout the entire process.
A sensitivity analysis was further conducted to examine the robustness of the evacuation results. In the simulation model, the ascending evacuation speeds of children in each age group (including mean, maximum, and minimum values) were adjusted by ±20%, and the simulation procedure was repeated accordingly. The results indicate that Strategy 3G consistently remained the optimal evacuation strategy under all adjusted speed conditions. Therefore, the sensitivity analysis further verified the high efficiency and strong stability of Strategy 3G, and the relative ranking of evacuation strategies remained unchanged. Details are provided in Table 22.
Based on a comprehensive comparison of bidirectional evacuation strategies across all floors, Strategy 3G was identified as the globally optimal configuration. This conclusion provides a practical and innovative reference framework. Future designs can enhance the safety and reliability of roof refuge spaces and optimize the dimensions of roof exits and the stair turning points leading from third-floor classrooms to the roof to better support this ascending evacuation strategy. In terms of emergency management, the proposed strategy can guide the planning of evacuation drills, enabling occupants to become familiar with effective evacuation procedures in advance, thereby improving guidance efficiency and overall evacuation performance during actual emergencies.

4.6. Limitations of This Study

It should be noted that the experimental subjects in this study were limited to kindergarten-aged children, and the simulation models employed simplified representations of children’s behaviors. Moreover, this study primarily focused on the efficiency of evacuation strategies and did not incorporate fire simulation scenarios.

5. Conclusions

This study systematically compiled and analyzed bidirectional evacuation speed data for children. Based on these data, optimal roof–ground bidirectional evacuation strategies for a three-story kindergarten under localized fire scenarios were investigated. This study further compared multiple strategies to identify the globally optimal evacuation configuration and examined the influencing factors and potential risks affecting evacuation efficiency across multiple data dimensions. The main conclusions are as follows.
(1) Evacuation efficiency in kindergartens is strongly influenced by the adopted strategy. Under localized emergency conditions on each floor, the optimal strategies are as follows. (i) For third-floor bidirectional evacuation, the most effective and stable configuration involves the two central classes ascending, while the remaining classes descend. (ii) For second-floor bidirectional evacuation, the most efficient approach involves one central class ascending together with all third-floor classes, whereas the remaining classes descend. However, this strategy exhibits relatively low stability. (iii) For first-floor bidirectional evacuation, the most efficient method is for all first-floor classes to evacuate directly outward, whereas the upper floor classes ascend. This strategy also demonstrates low temporal stability.
(2) For the overall evacuation, a comparison of floor-specific optimal strategies with the control (fully downward) strategy identified Strategy 3G as the global optimum. In this configuration, the two centrally located third-floor classes ascend, whereas the remaining classes descend. This strategy achieved high evacuation efficiency and strong stability, reducing total evacuation time by 11.1 s compared with the control group, representing an 8.25% improvement in efficiency. Moreover, it demonstrates a pronounced “tail-end” clearance capability, effectively minimizing delays caused by the last remaining evacuees.
Future research directions may include the following. First, studies should encompass children across a wider age range and increase the sample size to enable more robust comparative analysis. This would broaden the experimental scope and allow for a more systematic examination of behavioral differences during ascending evacuation across age groups. Second, integrating behavioral data from children of various ages into simulation studies would further enhance the depth and applicability of roof–courtyard bidirectional evacuation models. Moreover, future studies should consider combining evacuation simulations with fire dynamics simulations to provide a more comprehensive assessment of evacuation performance under realistic fire conditions.

Author Contributions

Conceptualization, M.L. and X.J.; methodology, M.L., H.Z. and X.G.; software, M.L. and S.N.; validation, M.L., H.Z., X.G. and S.Y.; formal analysis, M.L. and Y.W.; investigation, M.L., X.G. and S.Y.; resources, X.J. and M.L.; data curation, M.L. and X.G.; writing—original draft preparation, M.L. and H.Z.; writing—review and editing, X.J., M.L. and X.G.; visualization, M.L. and X.G.; supervision, X.J. and M.L.; project administration, X.J. and M.L.; funding acquisition, X.J. and M.L. All authors have read and agreed to the published version of the manuscript.

Funding

This study was supported by the National Natural Science Foundation of China [Grant No. 52078255], the Basic Scientific Research Project of Inner Mongolia Autonomous Region Directly Affiliated Universities [Grant No. ZTY2025059], and the Project on Grassland Human Settlement Construction System and Key Technologies [Grant No. YLXKZX-NGD-004].

Institutional Review Board Statement

This study was approved by the Ethics Review Board of the Ethics Committee of the Architecture College at the Inner Mongolia University of Technology (No. 20250613-MS-E03, approved on 21 June 2025) in accordance with the Declaration of Helsinki.

Informed Consent Statement

Informed consent was obtained from all subjects involved in the study.

Data Availability Statement

The original contributions presented in the study are included in the article, further inquiries can be directed to the corresponding author.

Acknowledgments

The authors would like to express their sincere appreciation to Xiaochen Zhao and Changzheng Xuan for their valuable academic insights and technical assistance with software operations during the course of this research.

Conflicts of Interest

The authors declare that they have no known competing financial interests or personal relationships that could have appeared to influence the work reported in this paper.

Abbreviations

The following abbreviations are used in this manuscript.
SDStandard Deviation
MinMinimum
MaxMaximum
CIConfidence Interval

References

  1. Jang, S.H.; Hwang, H.; Chung, J.B. Effects of child pick-up behavior on emergency evacuations. Nucl. Eng. Technol. 2022, 54, 2519–2528. [Google Scholar] [CrossRef]
  2. Mirahadi, F.; McCabe, B. EvacuSafe: Building evacuation strategy selection using route risk index. J. Comput. Civil. Eng. 2020, 34, 04019051. [Google Scholar] [CrossRef]
  3. Najmanova, H.; Ronchi, E. Experimental data about the evacuation of preschool children from nursery schools, Part II: Movement characteristics and behaviour. Fire Saf. J. 2023, 139, 103797. [Google Scholar] [CrossRef]
  4. Najmanova, H.; Ronchi, E. An experimental data-set on pre-school children evacuation. Fire Technol. 2017, 53, 1509–1533. [Google Scholar] [CrossRef]
  5. Hamilton, G.N.; Lennon, P.F.; O’Raw, J. Human behaviour during evacuation of primary schools: Investigations on pre—Evacuation times, movement on stairways and movement on the horizontal plane. Fire Saf. J. 2017, 91, 937–946. [Google Scholar] [CrossRef]
  6. Hamilton, G.N.; Lennon, P.F.; O’Raw, J. Toward fire safe schools: Analysis of modelling speed and specific flow of children during evacuation drills. Fire Technol. 2020, 56, 605–638. [Google Scholar] [CrossRef]
  7. Zhao, X.C.; Li, G.; Tao, Z.Y.; Feng, Y.B.; Zhang, H.; Liu, M.; Jia, X.H.; Ma, Y.; Chang, L.P.; Mei, Y.F. The impact of dependent behavior on the design of classroom evacuation exits for intellectually disabled students. Buildings 2024, 14, 3737. [Google Scholar] [CrossRef]
  8. Yao, Y.S.; Lu, W. An experimental study on the influence of safety exit stair design on preschool children’s evacuation. China Saf. Sci. J. 2020, 30, 127–134. (In Chinese) [Google Scholar]
  9. Zhang, B.; Gao, X.Y.; Zhou, J.X.; Jia, X.H. The associations between evacuation movements and children’s physiological demands analyzed via wearable-based sensors. Sensors 2022, 22, 8094. [Google Scholar] [CrossRef] [PubMed]
  10. Huo, F.Z.; Liu, M.; Lv, W.; Du, Y. A study on stairwell evacuation in primary school buildings considering children’s movement characteristics. J. Saf. Sci. Technol. 2020, 16, 149–155. (In Chinese) [Google Scholar]
  11. Jia, D.Y. Study on Fire Safety Evacuation Strategies for Kindergartens Based on the Social Force Model. Master’s Thesis, Inner Mongolia University of Technology, Hohhot, China, 2023. (In Chinese). [Google Scholar]
  12. Huo, T. Research on Safety Evacuation Design Strategies for Non-Independent Children’s Training Schools. Master’s Thesis, Beijing University of Civil Engineering and Architecture, Beijing, China, 2012. (In Chinese). [Google Scholar]
  13. Xie, D.Y.; Wu, X.C.; Wang, H.L. New evacuation strategies for commercial roofs. Fire Sci. Technol. 2016, 35, 503–506. (In Chinese) [Google Scholar] [CrossRef]
  14. Zhang, T. Discussion on the establishment of fire safety evacuation routes on building roofs. Sci. Technol. Inf. 2011, 2011, 415. (In Chinese) [Google Scholar]
  15. Zhao, X.C.; Jia, X.H.; Xuan, C.Z.; Qin, J.H.; Zhang, B.; Chang, L.P.; Xu, Z. Factors affecting evacuation in intellectually disabled children: An experimental study. J. Build. Eng. 2024, 94, 109947. [Google Scholar] [CrossRef]
  16. Ye, R.; Li, J.C.; Lu, H.C.; Wang, J.H.; Pan, Y.; Wang, Y. A study on the arch mechanism of pedestrian evacuation and congestion alleviation strategies at building exits. J. Build. Eng. 2024, 88, 109159. [Google Scholar] [CrossRef]
  17. Rusinová, M.; Šlanhof, J. The issue of escape routes in the setting up additional kindergarten in the existing elementary school building. Appl. Mech. Mater. 2016, 824, 845–852. [Google Scholar] [CrossRef]
  18. Yao, Y.S. Research on Kindergarten Circulation Space Design Strategies Based on Children’s Evacuation Behavior Experiments. Ph.D. Thesis, Dalian University of Technology, Dalian, China, 2021. (In Chinese). [Google Scholar]
  19. Li, Z. Evaluation and Optimization of Pedestrian Emergency Evacuation Performance Under the Child-Friendly Concept. Master’s Thesis, Tianjin University, Tianjin, China, 2020. (In Chinese). [Google Scholar]
  20. Zhang, H.B.; Wang, Y.H.; Zhou, T.J. Study on pedestrian evacuation behavior characteristics in metro stations. World Archit. 2023, 7, 70–71. (In Chinese) [Google Scholar] [CrossRef]
  21. Wen, S. Simulation and Strategy Optimization of Emergency Evacuation in School Buildings Based on the Psychological and Behavioral Characteristics of Primary School Students. Master’ Thesis, Taiyuan University of Science and Technology, Taiyuan, China, 2022. (In Chinese). [Google Scholar]
  22. Xue, S.Q.; Liu, Y.H.; Chen, Q.H. Behavioral characteristics of preschool children in unidirectional flow evacuation. J. Trans. Syst. Eng. Inf. Technol. 2022, 22, 209–216. (In Chinese) [Google Scholar] [CrossRef]
  23. Yao, Y.S.; Lu, W. Study on evacuation behavior of children in a single-story kindergarten based on pathfinder. Archit. Cult. 2020, 2, 66–67. (In Chinese) [Google Scholar]
  24. Yao, Y.; Lu, W. Research on kindergarten evacuation safety performance based on behavioral characteristic. Resi. Ind. 2019, 12, 30–33. (In Chinese) [Google Scholar]
  25. Yao, Y.S.; Lu, W. Research on kindergarten children evacuation: Analysis of characteristics of the movement behaviours on stairway. Int. J. Disaster Risk Reduct. 2020, 50, 101718. [Google Scholar] [CrossRef]
  26. Yao, Y.S.; Lu, W.; Wang, L.C. Experimental study on evacuation behaviour of children in a three-storey kindergarten. Heliyon 2023, 9, e16533. [Google Scholar] [CrossRef]
  27. Yao, Y.S.; Lu, W. Children’ s evacuation behavioural data of drills and simulation of the horizontal plane in kindergarten. Saf. Sci. 2021, 133, 105037. [Google Scholar] [CrossRef]
  28. Fang, Z.M.; Jiang, L.X.; Li, X.L.; Qi, W.; Chen, L.Z. Experimental study on the movement characteristics of 5-6 years old Chinese children when egressing from a pre-school building. Saf. Sci. 2019, 113, 264–275. [Google Scholar] [CrossRef]
  29. Kholshchevnikov, V.V.; Samoshin, D.A.; Parfyonenko, A.P.; Belosokhov, I.P. Study of children evacuation from pre-school education institutions. Fire Mater. 2012, 36, 349–366. [Google Scholar] [CrossRef]
  30. Lam, J.H.T.; Yuen, J.K.K.; Lee, E.W.M.; Lee, R.Y.Y. Experimental study on upward movement in a high-rise building. Saf. Sci. 2014, 70, 397–405. [Google Scholar] [CrossRef]
  31. Peng, W. Study on Fire Risk Assessment in Kindergartens. Master’s Thesis, Hunan University of Science and Technology, Xiangtan, China, 2009. (In Chinese). [Google Scholar]
  32. Yeo, S.K.; He, Y.P. Commuter characteristics in mass rapid transit stations in Singapore. Fire Saf. J. 2009, 44, 183–191. [Google Scholar] [CrossRef]
  33. Li, J.; Qi, Z.; Li, Y.; Chow, W.K.; Xie, F.; Dong, Q. Field measurements of free ascending behavior of occupants along medium-long stairway. Appl. Sci. 2022, 12, 10038. [Google Scholar] [CrossRef]
  34. GB50016-2014; Code for Fire Protection Design of Buildings. Beijing China Planning Publishing House: Beijing, China, 2020. (In Chinese)
  35. Cuesta, A.; Gwynne, S.M.V. The collection and compilation of school evacuation data for model use. Saf. Sci. 2016, 84, 24–36. [Google Scholar] [CrossRef]
  36. International Maritime Organization. Guidelines for Evacuation Analysis for New and Existing Passenger Ships; International Maritime Organization: London, UK, 2016. [Google Scholar]
  37. Ronchi, E.; Kuligowski, E.D.; Reneke, P.A.; Peacock, R.D.; Nilsson, D. The Process of Verification and Validation of Building Fire Evacuation Models; National Institute of Standards and Technology: Gaithersburg, MD, USA, 2013. [Google Scholar]
  38. Wang, J.H.; Jin, B.W.; Li, J.; Chen, F.H.; Wang, Z.R.; Sun, J.H. Method for guiding crowd evacuation at exit: The buffer zone. Saf. Sci. 2019, 118, 88–95. [Google Scholar] [CrossRef]
  39. Zhou, J.X.; Jia, X.H.; Jia, J.H. Effects of different staircase design factors on evacuation of children from kindergarten buildings analyzed via agent-based simulation. Healthcare 2020, 8, 56. [Google Scholar] [CrossRef]
  40. National Technical Committee for Standardization of Ergonomics. Anthropometric Data of Chinese Minors; National Technical Committee for Standardization of Ergonomics: Beijing, China, 2011. (In Chinese) [Google Scholar]
  41. Zhang, S.J. Research on the Evacuation Design Strategy of Enclosed Kindergarten Traffic Space Based on Simulation. Master’s Thesis, Inner Mongolia University of Technology, Hohhot, China, 2023. (In Chinese). [Google Scholar]
  42. JGJ39–2016; Partial Revision Provisions and Commentary of the Industry Standard ‘Code for Design of Nurseries and Kindergartens’. China Architecture & Building Press: Beijing, China, 2019. (In Chinese)
  43. Yan, W.D. Study on Human Behavior Patterns and Evacuation Time in Building Fires. Ph.D. Thesis, Northeastern University, Shenyang, China, 2006. (In Chinese). [Google Scholar]
Figure 1. Experimental stairway details.
Figure 1. Experimental stairway details.
Buildings 15 04502 g001
Figure 2. Experimental process diagram.
Figure 2. Experimental process diagram.
Buildings 15 04502 g002
Figure 3. Schematic diagram of reference points for ascending evacuation distance at the experimental site.
Figure 3. Schematic diagram of reference points for ascending evacuation distance at the experimental site.
Buildings 15 04502 g003
Figure 4. Simplified basic unit plan and staircase details.
Figure 4. Simplified basic unit plan and staircase details.
Buildings 15 04502 g004
Figure 5. Schematic diagram of the simplified evacuation model.
Figure 5. Schematic diagram of the simplified evacuation model.
Buildings 15 04502 g005
Figure 6. Dimensions of agent models.
Figure 6. Dimensions of agent models.
Buildings 15 04502 g006
Figure 7. Box plot of ascending evacuation data for children in different age groups.
Figure 7. Box plot of ascending evacuation data for children in different age groups.
Buildings 15 04502 g007
Figure 8. Time aggregation chart of each strategy for overall downward movement and three-floor bidirectional evacuations.
Figure 8. Time aggregation chart of each strategy for overall downward movement and three-floor bidirectional evacuations.
Buildings 15 04502 g008
Figure 9. Relationship between remaining evacuee count and time in the overall downward and three-floor bidirectional evacuation simulations: (a) remaining evacuee count versus time for 4A–3D; (b) remaining evacuee count versus time for 3E–3I.
Figure 9. Relationship between remaining evacuee count and time in the overall downward and three-floor bidirectional evacuation simulations: (a) remaining evacuee count versus time for 4A–3D; (b) remaining evacuee count versus time for 3E–3I.
Buildings 15 04502 g009
Figure 10. Time aggregation chart of bidirectional evacuation strategies for second-floor classes.
Figure 10. Time aggregation chart of bidirectional evacuation strategies for second-floor classes.
Buildings 15 04502 g010
Figure 11. Relationship between remaining evacuee count and time during bidirectional evacuation simulations on the second floor: (a) remaining evacuee count versus time for 2A–2H; (b) remaining evacuee count versus time for 2C–2F.
Figure 11. Relationship between remaining evacuee count and time during bidirectional evacuation simulations on the second floor: (a) remaining evacuee count versus time for 2A–2H; (b) remaining evacuee count versus time for 2C–2F.
Buildings 15 04502 g011
Figure 12. Time aggregation chart of each strategy for bidirectional evacuation on the first floor.
Figure 12. Time aggregation chart of each strategy for bidirectional evacuation on the first floor.
Buildings 15 04502 g012
Figure 13. Relationship between remaining occupant number and time in the bidirectional evacuation simulation on the first floor: (a) remaining occupant number versus time for 1A–1E; (b) remaining occupant number versus time for 1F–1I.
Figure 13. Relationship between remaining occupant number and time in the bidirectional evacuation simulation on the first floor: (a) remaining occupant number versus time for 1A–1E; (b) remaining occupant number versus time for 1F–1I.
Buildings 15 04502 g013
Figure 14. Time fluctuation chart of the overall downward trend and optimal strategies at each level.
Figure 14. Time fluctuation chart of the overall downward trend and optimal strategies at each level.
Buildings 15 04502 g014
Figure 15. Time aggregation chart of the overall downward trend and optimal strategies at each level.
Figure 15. Time aggregation chart of the overall downward trend and optimal strategies at each level.
Buildings 15 04502 g015
Figure 16. Relationship between remaining evacuee count and time for the overall downward strategy and the optimal strategies at each level.
Figure 16. Relationship between remaining evacuee count and time for the overall downward strategy and the optimal strategies at each level.
Buildings 15 04502 g016
Table 1. Basic information on the child participants involved in the experiment.
Table 1. Basic information on the child participants involved in the experiment.
AgePersonnel QuantityMean
Body Weight (kg)
Average Height (m)Mean Shoulder Width (m)
4Male (8), Female (9)20.51111.760.25
5Male (11), Female (9)23.57117.420.27
6Male (11), Female (12)24.08119.650.30
Table 2. Summary of commonly used evacuation simulation software.
Table 2. Summary of commonly used evacuation simulation software.
NumberScene ElementQuantity
1Floor31
2Link33
3Stair12
4Portal12
5Barrier3
Table 3. Percentile body dimensions of male children aged 4–6 years.
Table 3. Percentile body dimensions of male children aged 4–6 years.
ProjectPercentile
P1P2.5P5P10P25P50P75P90P95P97.5P99
Weight (kg)13.514.415.015.717.118.921.323.925.929.032.1
Height (m)0.9710.9861.0001.0251.0661.1131.1701.2101.2371.2581.280
Body width (m)0.2650.2700.2740.2800.2910.3040.3180.3350.3490.3640.377
Body thickness (m)0.1490.1550.1590.1650.1730.1840.1950.2060.2130.2220.234
Table 4. Percentile body dimensions of female children aged 4–6 years.
Table 4. Percentile body dimensions of female children aged 4–6 years.
ProjectPercentile
P1P2.5P5P10P25P50P75P90P95P97.5P99
Weight (kg)13.013.614.214.916.218.120.222.524.425.828.9
Height (m)0.9570.9720.9941.0141.0661.0541.1091.2101.2371.2581.280
Body width (m)0.2650.2700.2740.2800.2910.3040.3180.3350.3490.3640.377
Body thickness (m)0.1490.1550.1590.1650.1730.1840.1950.2060.2130.2220.234
Table 5. Summary of ascending evacuation data for young children.
Table 5. Summary of ascending evacuation data for young children.
Number of Occupants (n)Mean ValueSD95% Confidence Interval (CI)MinMax
Lower LimitUpper Limit
Evacuation speed of 4-year-old children (m/s)170.710.160.590.830.520.91
Evacuation speed of 5-year-old children (m/s)200.800.180.690.900.491.12
Evacuation speed of 6-year-old children (m/s)230.830.160.740.940.621.20
Total evacuation time (s)6044.4010.3435.9244.982872
Overall evacuation speed (m/s)600.790.1760.730.850.491.20
Table 6. Modeling speeds of intelligent agents in different age groups.
Table 6. Modeling speeds of intelligent agents in different age groups.
ClassHorizontal and Downward Average Speed (m/s)Minimum Horizontal and Downward Speed (m/s)Horizontal and Downward Maximum Speed (m/s)SDUpward Average Speed (m/s)Minimum Upward Speed (m/s)Maximum Upward Speed (m/s)SD
Lower kindergarten class0.650.410.850.1500.710.590.830.16
Middle kindergarten class0.810.541.190.1540.800.690.900.18
Upper kindergarten class1.020.641.510.1490.830.740.940.16
Table 7. Comparison of deviations in model validation.
Table 7. Comparison of deviations in model validation.
ClassMeasured Mean Speed (m/s)SD (m/s)Measured Mean Evacuation Time (s)Simulated Mean Evacuation Time (s)Deviation (%)
Lower kindergarten class0.710.1649.4047.314.23
Middle kindergarten class0.800.1843.8541.684.95
Upper kindergarten class0.830.1642.2639.326.96
Table 8. Number of students modeled for each kindergarten class in the simulation.
Table 8. Number of students modeled for each kindergarten class in the simulation.
NameClassNumber Range (People)Name
KindergartenLower kindergarten class425
Middle kindergarten class430
Upper kindergarten class435
Table 9. Single-floor evacuation flow line combinations.
Table 9. Single-floor evacuation flow line combinations.
NumberClass AClass BClass CClass DSymmetrical StrategyWhether to Retain
——✅ Retain
↓ ↓ ↓ ↑ ⑤✅ Retain
↓ ↓ ↑ ↓ ④✅ Retain
↓ ↑ ↓ ↓ ③❌ Repeat
↑ ↓ ↓ ↓ ②❌ Repeat
↓ ↓ ↑ ↑ ⑪✅ Retain
↓ ↑ ↓ ↑ ⑩✅ Retain
——✅ Retain
——✅ Retain
↑ ↓ ↑ ↓ ⑦❌ Repeat
↑ ↑ ↓ ↓ ⑥❌ Repeat
↓ ↑ ↑ ↑ ⑮✅ Retain
↑ ↓ ↑ ↑ ⑭✅ Retain
↑ ↑ ↓ ↑ ⑬❌ Repeat
↑ ↑ ↑ ↓ ⑫❌ Repeat
——✅ Retain
Table 10. Three-floor evacuation flow line combinations.
Table 10. Three-floor evacuation flow line combinations.
2nd Floor1st Floor3rd Floor
The Number of Ascending ClassesThe Number of Descending ClassesNumber of Evacuation RoutesEvacuation DirectionNumber of Evacuation RoutesEvacuation DirectionNumber of Evacuation RoutesTotal Number of Types
0411↑↓N10
132112
224114
312112
401↓↑N − 1↑↓19
Note: N = number of single-floor evacuation route combinations (10).
Table 11. Twenty-seven combinations of evacuation routes for three-floor model.
Table 11. Twenty-seven combinations of evacuation routes for three-floor model.
NumberEvacuation StrategyArrow IndicationEvacuation Flow Line IllustrationStrategy Number
13rd (all downward)
2nd (all downward)
1st (all downward)
3rd ↓↓↓↓
2nd ↓↓↓↓
1st ↓↓↓↓
Buildings 15 04502 i0014A
23rd (all upward)
2nd (all downward)
1st (all downward)
3rd ↑↑↑↑
2nd ↓↓↓↓
1st ↓↓↓↓
Buildings 15 04502 i0023A
33rd (1 up, 3 down)
2nd (all downward)
1st (all downward)
3rd ↑↓↓↓
2nd ↓↓↓↓
1st ↓↓↓↓
Buildings 15 04502 i0033B
43rd (1 up, 3 down)
2nd (all downward)
1st (all downward)
3rd ↓↑↓↓
2nd ↓↓↓↓
1st ↓↓↓↓
Buildings 15 04502 i0043C
53rd (2 up, 2 down)
2nd (all downward)
1st (all downward)
3rd ↑↑↓↓
2nd ↓↓↓↓
1st ↓↓↓↓
Buildings 15 04502 i0053D
63rd (2 up, 2 down)
2nd (all downward)
1st (all downward)
3rd ↑↓↑↓
2nd ↓↓↓↓
1st ↓↓↓↓
Buildings 15 04502 i0063E
73rd (2 up, 2 down)
2nd (all downward)
1st (all downward)
3rd ↑↓↓↑
2nd ↓↓↓↓
1st ↓↓↓↓
Buildings 15 04502 i0073F
83rd (2 up, 2 down)
2nd (all downward)
1st (all downward)
3rd ↓↑↑↓
2nd ↓↓↓↓
1st ↓↓↓↓
Buildings 15 04502 i0083G
93rd (3 up, 1 down)
2nd (all downward)
1st (all downward)
3rd ↑↑↑↓
2nd ↓↓↓↓
1st ↓↓↓↓
Buildings 15 04502 i0093H
103rd (3 up, 1 down)
2nd (all downward)
1st (all downward)
3rd ↑↑↓↑
2nd ↓↓↓↓
1st ↓↓↓↓
Buildings 15 04502 i0103I
113rd (all upward)
2nd (1 up, 3 down)
1st (all downward)
3rd ↑↑↑↑
2nd ↑↓↓↓
1st ↓↓↓↓
Buildings 15 04502 i0112A
123rd (all upward)
2nd (1 up, 3 down)
1st (all downward)
3rd ↑↑↑↑
2nd ↓↑↓↓
1st ↓↓↓↓
Buildings 15 04502 i0122B
133rd (all upward)
2nd (2 up, 2 down)
1st (all downward)
3rd ↑↑↑↑
2nd ↑↑↓↓
1st ↓↓↓↓
Buildings 15 04502 i0132C
143rd (all upward)
2nd (2 up, 2 down)
1st (all downward)
3rd ↑↑↑↑
2nd ↑↓↑↓
1st ↓↓↓↓
Buildings 15 04502 i0142D
153rd (all upward)
2nd (2 up, 2 down)
1st (all downward)
3rd ↑↑↑↑
2nd ↑↓↓↑
1st ↓↓↓↓
Buildings 15 04502 i0152E
163rd (all upward)
2nd (2 up, 2 down)
1st (all downward)
3rd ↑↑↑↑
2nd ↓↑↑↓
1st ↓↓↓↓
Buildings 15 04502 i0162F
173rd (all upward)
2nd (3 up, 1 down)
1st (all downward)
3rd ↑↑↑↑
2nd ↑↑↑↓
1st ↓↓↓↓
Buildings 15 04502 i0172G
183rd (all upward)
2nd (3 up, 1 down)
1st (all downward)
3rd ↑↑↑↑
2nd ↑↑↓↑
1st ↓↓↓↓
Buildings 15 04502 i0182H
193rd (all upward)
2nd (all upward)
1st (all downward)
3rd ↑↑↑↑
2nd ↑↑↑↑
1st ↓↓↓↓
Buildings 15 04502 i0191A
203rd (all upward)
2nd (all upward)
1st (1 up, 3 down)
3rd ↑↑↑↑
2nd ↑↑↑↑
1st ↑↓↓↓
Buildings 15 04502 i0201B
213rd (all upward)
2nd (all upward)
1st (1 up, 3 down)
3rd ↑↑↑↑
2nd ↑↑↑↑
1st ↓↑↓↓
Buildings 15 04502 i0211C
223rd (all upward)
2nd (all upward)
1st (2 up, 2 down)
3rd ↑↑↑↑
2nd ↑↑↑↑
1st ↑↑↓↓
Buildings 15 04502 i0221D
233rd (all upward)
2nd (all upward)
1st (2 up, 2 down)
3rd ↑↑↑↑
2nd ↑↑↑↑
1st ↑↓↑↓
Buildings 15 04502 i0231E
243rd (all upward)
2nd (all upward)
1st (2 up, 2 down)
3rd ↑↑↑↑
2nd ↑↑↑↑
1st ↑↓↓↑
Buildings 15 04502 i0241F
253rd (all upward)
2nd (all upward)
1st (2 up, 2 down)
3rd ↑↑↑↑
2nd ↑↑↑↑
1st ↓↑↑↓
Buildings 15 04502 i0251G
263rd (all upward)
2nd (all upward)
1st (3 up, 1 down)
3rd ↑↑↑↑
2nd ↑↑↑↑
1st ↑↑↑↓
Buildings 15 04502 i0261H
273rd (all upward)
2nd (all upward)
1st (3 up, 1 down)
3rd ↑↑↑↑
2nd ↑↑↑↑
1st ↑↑↓↑
Buildings 15 04502 i0271I
Table 12. Statistical comparison of overall descending evacuation time and three-floor bidirectional evacuation times.
Table 12. Statistical comparison of overall descending evacuation time and three-floor bidirectional evacuation times.
Evacuation StrategyMean (s)Min (s)Max (s)SD95%CI
Lower LimitUpper Limit
4A185.071781933.92183.60186.53
3A216.0717624416.06210.06222.06
3B184.101751995.82181.27186.27
3C179.471711853.88178.02180.92
3D183.031732017.02180.41185.66
3E204.831822319.67201.22208.45
3F194.8717621910.41190.98198.75
3G170.971651833.85169.52172.41
3H190.631712069.59187.05190.87
3I212.9718324216.80206.69219.24
Table 13. Correlation analysis between overall descending evacuation time and three-floor bidirectional evacuation time and remaining evacuee count.
Table 13. Correlation analysis between overall descending evacuation time and three-floor bidirectional evacuation time and remaining evacuee count.
(a)
4A (n = 193)Correlation3A (n = 244)Correlation3B (n = 199)Correlation3C (n = 185)Correlation3D (n = 201)Correlation
Time (s)193−0.991 **244−0.966 **199−0.990 **185−0.990 **201−0.988 **
(b)
3E (n = 231)Correlation3F (n = 219)Correlation3G (n = 183)Correlation3H (n = 206)Correlation3I (n = 242)Correlation
Time (s)231−0.974 **219−0.984 **183−0.988 **206−0.984 **242−0.972 **
SD: standard deviation. Pearson correlation coefficients. ** p < 0.01.
Table 14. Statistical analysis of bidirectional evacuation time for second-floor classes.
Table 14. Statistical analysis of bidirectional evacuation time for second-floor classes.
Evacuation StrategyMean (s)Min (s)Max (s)SD95% CI
Lower LimitUpper Limit
2A222.220023810.18218.39226.00
2B218.0619323411.16213.89222.23
2C222.9320324410.75218.91226.95
2D238.821827010.50234.87242.72
2E236.8621826612.96232.02241.70
2F224.062062449.03220.69227.43
2G230.262172468.65227.03233.49
2H241.2622427010.94237.17245.35
Table 15. Correlation analysis between bidirectional evacuation time and remaining evacuee count for the second floor.
Table 15. Correlation analysis between bidirectional evacuation time and remaining evacuee count for the second floor.
(a)
2C (n = 244)Correlation2D (n = 270)Correlation2E (n = 266)Correlation2F (n = 244)Correlation
Time (s)244−0.984 **270−0.977 **266−0.980 **244−0.983 **
(b)
2A (n = 238)Correlation2B (n = 234)Correlation2G (n = 246)Correlation2H (n = 270)Correlation
Time (s)238−0.981 **234−0.980 **246−0.993 **270−0.987 **
SD: standard deviation. Pearson correlation coefficients. ** p < 0.01.
Table 16. Statistical analysis of bidirectional evacuation time for first-floor classes.
Table 16. Statistical analysis of bidirectional evacuation time for first-floor classes.
Evacuation StrategyMean (s)Min (s)Max (s)SD95% CI
Lower LimitUpper Limit
1A243.472302639.73239.83247.10
1B256.132472674.96254.28257.99
1C259.572382636.08247.29251.84
1D266.602582836.40264.21268.99
1E264.732552754.44263.08266.39
1F266.532542765.47264.49268.58
1G261.632482695.51259.58263.69
1H275.972622865.35273.97277.97
1I277.232642854.45275.57278.90
Table 17. Correlation analysis between bidirectional evacuation time and the remaining occupant number for the first floor.
Table 17. Correlation analysis between bidirectional evacuation time and the remaining occupant number for the first floor.
(a)
1A (n = 263)Correlation1B (n = 267)Correlation1C (n = 263)Correlation1D (n = 283)Correlation1E (n = 275)Correlation
Time (s)263−0.994 **267−0.997 **263−0.995 **283−0.994 **275−0.995 **
(b)
1F (n = 276)Correlation1G (n = 269)Correlation1H (n = 286)Correlation1I (n = 285)Correlation
Time (s)276−0.996 **269−0.992 **286−0.989 **285−0.991 **
SD: standard deviation. Pearson correlation coefficients. ** p < 0.01.
Table 18. Correlation analysis of overall descending evacuation time, optimal layer-specific strategies, and remaining evacuee count.
Table 18. Correlation analysis of overall descending evacuation time, optimal layer-specific strategies, and remaining evacuee count.
3G (n = 183)Correlation4A (n = 193)Correlation2B (n = 234)Correlation1A (n = 263)Correlation
Time (s)183−0.988 **193−0.991 **234−0.980 **263−0.994 **
SD: standard deviation. Pearson correlation coefficients. ** p < 0.01.
Table 19. Experienced density maps for strategies 4A, 3B, 3C, 3D, and 3G.
Table 19. Experienced density maps for strategies 4A, 3B, 3C, 3D, and 3G.
Evacuation Strategy1st Floor2nd Floor3rd FloorRoof
4ABuildings 15 04502 i028Buildings 15 04502 i029Buildings 15 04502 i030Buildings 15 04502 i031
3BBuildings 15 04502 i032Buildings 15 04502 i033Buildings 15 04502 i034Buildings 15 04502 i035
3CBuildings 15 04502 i036Buildings 15 04502 i037Buildings 15 04502 i038Buildings 15 04502 i039
3DBuildings 15 04502 i040Buildings 15 04502 i041Buildings 15 04502 i042Buildings 15 04502 i043
3GBuildings 15 04502 i044Buildings 15 04502 i045Buildings 15 04502 i046Buildings 15 04502 i047
Table 20. Experienced density map for Strategy 2B.
Table 20. Experienced density map for Strategy 2B.
Evacuation Strategy1st Floor2nd Floor3rd FloorRoof
2BBuildings 15 04502 i048Buildings 15 04502 i049Buildings 15 04502 i050Buildings 15 04502 i051
Table 21. Experienced density map for Strategy 1A.
Table 21. Experienced density map for Strategy 1A.
Evacuation Strategy1st Floor2nd Floor3rd FloorRoof
1ABuildings 15 04502 i052Buildings 15 04502 i053Buildings 15 04502 i054Buildings 15 04502 i055
Table 22. Results of sensitivity analysis: evacuation speed fluctuation.
Table 22. Results of sensitivity analysis: evacuation speed fluctuation.
Evacuation Speed GroupStrategy 3G (s)Strategy 4A (s)Strategy 2B (s)Strategy 1A (s)
Original speed group (measured mean)170.97185.07218.06243.47
Speed increased by 20% group166.02178.35209.22231.29
Speed decreased by 20% group179.65193.58227.50256.06
Maximum impact of speed fluctuation on time+5.1%/−3.2%+4.6%/−3.6%+4.3%/−4.0%+5.2%/−5.0%
Disclaimer/Publisher’s Note: The statements, opinions and data contained in all publications are solely those of the individual author(s) and contributor(s) and not of MDPI and/or the editor(s). MDPI and/or the editor(s) disclaim responsibility for any injury to people or property resulting from any ideas, methods, instructions or products referred to in the content.

Share and Cite

MDPI and ACS Style

Liu, M.; Zhang, H.; Guo, X.; Ni, S.; Wang, Y.; Yan, S.; Jia, X. Optimal Roof–Ground Bidirectional Evacuation Strategies for Three-Story Kindergartens: Experimental Measurement and Simulation-Based Analysis. Buildings 2025, 15, 4502. https://doi.org/10.3390/buildings15244502

AMA Style

Liu M, Zhang H, Guo X, Ni S, Wang Y, Yan S, Jia X. Optimal Roof–Ground Bidirectional Evacuation Strategies for Three-Story Kindergartens: Experimental Measurement and Simulation-Based Analysis. Buildings. 2025; 15(24):4502. https://doi.org/10.3390/buildings15244502

Chicago/Turabian Style

Liu, Ming, Hu Zhang, Xin Guo, Shuonan Ni, Yunxiao Wang, Shuyu Yan, and Xiaohu Jia. 2025. "Optimal Roof–Ground Bidirectional Evacuation Strategies for Three-Story Kindergartens: Experimental Measurement and Simulation-Based Analysis" Buildings 15, no. 24: 4502. https://doi.org/10.3390/buildings15244502

APA Style

Liu, M., Zhang, H., Guo, X., Ni, S., Wang, Y., Yan, S., & Jia, X. (2025). Optimal Roof–Ground Bidirectional Evacuation Strategies for Three-Story Kindergartens: Experimental Measurement and Simulation-Based Analysis. Buildings, 15(24), 4502. https://doi.org/10.3390/buildings15244502

Note that from the first issue of 2016, this journal uses article numbers instead of page numbers. See further details here.

Article Metrics

Back to TopTop