Abstract
In this study, the transformative effects of architectural typologies on the community’s sense of belonging and relationship with their environment are examined. Through a range of investigative methodologies, the research highlights the shift from traditional architectural forms to contemporary designs, focusing on the role of political decisions, and globalized construction materials. The research examines a notable conflict: the modern spaces built with little spatial knowledge and modern material do not resonate with the community’s historical experiences and customary living patterns. Furthermore, the rapid pace of these architectural shifts has led to a growing sense of disconnection among community members. The findings highlight a central aspect: the new architectural forms fail to reflect the historical sentiments embedded in the community’s fabric and its connection to the surrounding environment. Consequently, there emerges a subtle yet significant loss of the community’s identity and heritage. The study argues for the importance of making design decisions that are sustainable, utilizing local construction knowledge in a modern way, thereby preserving the intricate and enduring connections between architectural, historical, social, and environmental factors. By doing so, designers can create spaces that preserve socio-cultural dynamics, be environmentally sustainable, yet also progress with the contemporary construction demands.
1. Introduction
In this dynamic period of swift urban expansion and architectural innovation, the very nature of living spaces is in a state of flux. The ongoing transformation in architectural styles significantly shapes how individuals perceive and interact with their environment, deeply affecting their sense of belonging and connection to their surroundings. This is particularly critical in areas where contemporary styles and new materials are merging with traditional landscapes, impacting the collective memories and cultural identities of communities [1]. Communities that are often drenched in rich historical narratives and a diverse heritage are mostly affected by various changing factors [2]. This study seeks to shed light on the complex interaction between memory and place amidst the changing architectural backdrop in El Nabisheith in the Bekaa Valley, Lebanon.
The Eastern Bekaa Valley, renowned for its varied architectural heritage and distinct socio-cultural texture, provides a live perspective for examining how changes in architectural styles affect inhabitants’ sense of place. Specifically, over the past 70 years, there has been a major shift from traditional construction methods to the use of globalized materials. In essence, the core objective of this research is to interpret the ties between architectural features, cultural identity, and the creation of a sense of place observed during these four epochs of construction. The aim is also to understand how alterations in architectural typology impact residents, particularly in their perception of place, as they adapt to diverse architectural environments in a rapidly evolving region. The methodology employed mixes a variety of research techniques, including mixed methods and archival studies, to deeply understand the local community’s views and experiences in relation to the changes in their living spaces.
However, this paper will explore how the transition from traditional to contemporary architectural styles in the Bekaa Valley represents more than just an aesthetic or structural shift; it reflects a change in the cultural memory and lifestyle of its residents. The introduction of new materials and architectural designs has influenced how inhabitants feel connected to their surroundings, potentially diluting the sense of authenticity they once felt.
This architectural evolution unfolded over a period of 70 years, marking a stark shift across four distinct eras: traditional/pre-globalization, transitional, modernism, and post-modernism. The changes occurred in the region due to the introduction of new construction materials in the 1970s, which led dwellers at this point to merge traditional construction techniques with steel and concrete. Subsequently, dwellers completely abandoned the traditional way of construction, as local traditional builders shifted from stone masonry to concrete construction (as it became more accessible and faster to construct). The last shift took place after 2014, when the Minister of Interior approved a decree allowing the construction of up to 150 m2 without the need to consult the Ministry of Work and Transportation or the Order of Engineers and Architects. This paper will delve into the reasons behind these architectural transformations during each era and their impact on the socio-cultural fabric of the region.
The implications of this transformation and its impact on the sense of place extend far beyond the Bekaa Valley, raising critical questions about the relationship between architecture and cultural identity. This highlights the need for a comprehensive, culturally aware approach in architectural design, advocating for a balance between materiality and place. It underscores the importance of harmonizing the physical aspects of architecture with the cultural and historical context of the region. This approach necessitates an understanding that architectural developments should not only address functional requirements but also respect and reflect the cultural and historical narratives of the communities they serve. Such a perspective is essential for raising environments that maintain a strong sense of identity and place, ensuring that the evolution of architectural practices contributes positively to the cultural fabric of societies.
2. Methodology
In exploring the evolution of architectural typologies within El Nabisheith and its impact on the creation of authentic spaces, the research approach involved a fusion of phenomenological and operative methods. The phenomenological aspect, focusing on human experiences, perceptions, and interpretations, yielded deep insights into the dynamic interplay between the inhabitants, their spaces, and the broader environment of the Bekaa Valley. This approach allowed for a profound understanding of the varied interactions within the Valley’s diverse landscapes.
On the other hand, the operative approach, rooted in the principles established by the Versus Project initiated in 2009 [3], underscored the importance of local sense in achieving sustainable development. This project methodically unraveled the intricacies of vernacular heritage, distilling its core elements into essential guidelines for modern sustainable architectural practices. It also established operational frameworks that effectively integrate traditional vernacular practices with contemporary sustainability needs in architectural design.
The operative method offers a structured perspective, taking into account socio-cultural norms, economic factors, and environmental sustainability. In contrast, the phenomenological approach enhances our understanding of the personal and collective experiences of the residents. This integration of methodologies in architectural research aimed to provide a comprehensive understanding of the region’s architectural evolution (Figure 1).
Figure 1.
On the (left) is the VerSus assessment method [3]; on the (right) is its relation with the phenomenological aspect, made by the Author.
The study examined 12 dwellings in the El Nabisheith municipal region, and the families that live in them. The 12 dwellings—studied both empirically and phenomenologically—were distributed as 4 from each phase. The method was assembled on each of the dwellings. Moreover, an extensive qualitative survey was taken, reaching out to a cross-section of 112 inhabitants from El Nabisheith. This group comprised 27 homeowners, with the remainder drawn from a wider community demographic.
Selecting survey participants was planned to encompass all those who are still alive owning traditional dwellings. This included a range of socio-economic statuses, ages, and durations of residency. First, all living citizens who still had access and owned a traditional dwelling were chosen. Additionally, citizens who built houses during the “post-political” period and also had a house during the prior period, which they lived in for at least 10 years, were included.
The gathering of qualitative data was conducted through a combination of semi-structured interviews and direct engagement observations. The interviews were crafted to prompt detailed discussion about the subjects’ personal and communal interactions with their built environment and the encompassing natural landscape of the Bekaa Valley. The direct engagement observations offered a lens into the daily interactions between the community members and their built surroundings, enriching the narrative data from interviews. To visually document these interactions and the architectural features of interest, we also employed photography, on-site measurements, sketching, and going through the personal archives of the dwellers. Moreover, the surveys conducted were in two forms; the first was a checklist to see if the dwellers still comply with the phenomenological, socio-economic, socio-cultural, and environmental principles. The other survey was a questionnaire that captures the lived experience; moreover, it digs into linguistic models of interaction in the Arabic language, so that the phenomenon of dwelling to those residents in specific is captured. Additionally, it was important to go through official national newsletters, and municipal archives, to understand the political implications of a decree adopted in 2014 under Generalization No. 613.
3. The Phenomenological Approach
The phenomenological method employed in this study stems from a philosophical lineage established by Edmund Husserl, centered on the in-depth exploration of human experiences from the viewpoint of those living them [4]. Characterized by its emphasis on subjective experiences, the method examines the interpretations and meanings the subjects ascribe to their experiences. The essence of phenomenology lies in its aim to deeply understand human experiences, seeking to uncover the core of life phenomena as they manifest in human consciousness [5]. In applying this approach, the research engages in qualitative research, immersing in the region’s linguistic terms. This approach enabled the grasping of existential qualities that influence the architectural spaces and landscape of the region, thereby understanding how these elements are reflected in the built environment.
Building on the foundational principles of phenomenology, this study adopts a specific focus on hermeneutic phenomenology, a methodological approach that emphasizes the interpretative aspects of human experience. Hermeneutic phenomenology, as articulated by Heidegger and further developed by Gadamer, explores the interpretive process of understanding lived experiences, not merely describing them but also interpreting the meanings embedded within these experiences [6]. This approach is distinguished by its commitment to uncovering the deeper, often tacit dimensions of experience, acknowledging that understanding is inherently a subjective and contextual process. Through a hermeneutic phenomenological lens, this research seeks to navigate the relationship between human beings and their environments, exploring how individuals interpret and make sense of the architectural and landscape elements they encounter. By integrating these principles, the study aims to provide a richer understanding of the existential qualities shaping architectural spaces and landscapes, and how these spaces, in turn, reflect and influence human experiences [5].
4. The Operative Principles
The research also incorporates principles derived from the Versus Project approach, focusing on three key areas:
Environmental—this aspect looks at the human ability to alter the environment in ways that minimize or prevent negative impacts. It involves strategies to mitigate the effects of human activities and emphasizes the importance of promoting territorial regeneration. This perspective is necessary in understanding how architectural interventions can be environmentally responsible and sustainable [7].
Socio-cultural—here, the focus is on the dynamics of relationships, the sense of belonging, identity formation, and the development of individuals and communities. This principle examines the social and cultural advantages inherent in indigenous solutions. It is more about the processes involved in creating a physical space than the physical space itself, highlighting how architecture can influence and be influenced by socio-cultural factors [8].
Socio-economics—this dimension is the most quantifiable within the sustainable framework, often measured in financial and monetary terms. In the context of vernacular architecture, however, the concept of cost is intertwined with the notion of effort. This is especially relevant in settings where capital-intensive systems are not predominant, and the effort reflects more accurately the investment and value placed in architectural solutions [9].
By integrating these operative principles with the phenomenological approach, the study tries to offer a comprehensive view of how architectural changes in the Bekaa Valley impact and are influenced by environmental, socio-cultural, and socio-economic factors.
Environmental aspect
- Respecting nature.
- To be situated appropriately.
- Reducing pollution and waste materials.
- Contributing to health quality.
- Reducing natural hazards effects.
Socio-cultural aspect
- 6.
- Protecting cultural landscape.
- 7.
- Transferring cultural constructions.
- 8.
- Enhancing creativity.
- 9.
- Recognizing intangible values.
- 10.
- Encouraging social cohesion.
Socio-economic aspect
- 11.
- Supporting autonomy.
- 12.
- Promoting local activities.
- 13.
- Optimizing construction efforts.
- 14.
- Extending the building’s lifetime.
- 15.
- Saving resources.
5. Region, History, and Architecture Identity
The search for architectural identity has been of real concern in the Middle East, both practically and academically. In several parts around the region, academics and architects tried to research and connect a local traditional practice to identity, as identity is found in the deeper culture of people, and their architectural vocabulary [10]. However, in this identity, crisis is in a dichotomy; on one side, there are those who argue that regions can no longer produce original architectural work, relying instead on adopting ready-made solutions from more advanced nations, as identity should not hinder progress, while others resist the encroachment of globalization, viewing it as a threat to their cultural identity, and advocate for the preservation of tradition [11].
El Nabisheith has experienced significant architectural changes in a relatively short period, primarily due to the introduction of new building materials and a critical political decision, which could be taken as an example to exemplify such an identity crisis and its effect on existential well-being.
Until the late 1960s, the region predominantly saw the use of modern materials like concrete and steel, along with the introduction of basic electrical infrastructure. This period marked a departure from traditional architectural methods as residents began to adopt these new materials for construction.
In more recent times, the region has witnessed an influx of globally sourced materials in its architecture. Traditionally, the inhabitants, attuned to their environmental needs, relied on materials sourced locally. These materials were not only integral to their daily routines but also played a significant role in shaping the architectural landscape. Buildings served as shelters and repositories of these vital resources [12]. Historical records indicate that the original settlers in the East Bekaa Valley were refugees escaping oppression in Keserwan during the Ottoman rule. Their settlement in this region was influenced by its religious significance and natural geography, which provided a defense against the Ottomans [13].
The area’s challenging climate necessitated adaptive architectural strategies. The locals expertly modified their environment, creating tools essential for their survival. This deep environmental connection was evident in their architectural designs, influencing both exterior and interior spaces. Externally, buildings prominently featured locally sourced stones of varying shapes and sizes, forming their façades. These façades were often left unrendered, exposing the natural texture of the stones. A unique construction method was used to regulate thermal exchange between the building’s exterior and interior. This involved creating a gap between the outer and inner stone walls, filled with a mixture of mud, pebbles, and plant fibers. The internal walls were then coated with lime paint made from local limestone.
However, the latter half of the 20th century saw technological advancements in the region. Before this period, natural stone and timber were the primary construction materials, with homes designed based on family needs, available resources, environment, and financial means. These homes were built to endure extreme temperatures and served various purposes, including food storage, living areas, animal housing, and storage for agricultural tools.
Construction practices were informal, relying on indigenous knowledge passed down generations rather than formal engineering principles. Despite the establishment of the Order of Engineers and Architects (OEA) in Lebanon in 1951, many rural constructions continued without formal permissions. Factors contributing to this included Lebanon’s independence in 1947, a centralized government focused on major cities, and political instability, including wars, leading to widespread unauthorized construction. However, the architectural landscape remained relatively unchanged for some time, hindered by economic limitations and lack of investment. Post-2000, returning emigrants began building homes, adhering to OEA and municipal regulations.
In 2014, a significant policy change occurred under the ministerial leadership of Prime Minister Tamam Salam and Interior Minister Nohad El-Mashnook. A directive, Generalization No. 613, was issued on 5 May 2014, allowing rural landowners to build structures up to 150 m2 without formal approval from the OEA and the Ministry of Public Works and Transportation. This directive aimed to control erratic construction, slow urbanization, and assist citizens in areas without municipal oversight. It specified that buildings should not exceed a single story of three meters in height and must comply with existing building regulations, particularly regarding setbacks [14]. Under this directive, landowners in specific locations were permitted to construct two-story buildings with a basement if their property was below road level. Additionally, those who had benefited from a previous directive could add an extra story to their existing structures. The responsibility for monitoring compliance shifted to security agencies, with strict guidelines on building size and height.
6. Local Comprehension of Dwelling
To grasp the local conception of a dwelling through a phenomenological lens, the study draws on a method akin to Heidegger’s exploration of linguistic etymology among the residents of the studied dwellings. At the heart of this exploration is hermeneutic phenomenology, which, as articulated by Heidegger and later expanded by Gadamer, examines the interpretive process of understanding human experiences within their existential contexts. Heidegger, in Being and Time, introduces the concept of Dasein, underscoring language not just as a medium of communication but as the very dwelling of being, revealing the essence of our experiences [15]. This notion suggests that a profound understanding of a dwelling necessitates delving into the linguistic roots that encapsulate lived experiences.
Such a dynamic relation between interpretation and experience is also echoed in the phenomenological study of architecture and space, where scholars like Norberg-Schulz and Pallasmaa have shown how architectural elements and sensory experiences contribute to the essence of a place and dwelling [16,17].
The introduction of semiotics, particularly through the works of Saussure and Peirce, brings an additional layer of depth to this exploration. Saussure’s distinction between the signifier and the signified opens up avenues for understanding how terms like “Māskan” in Arabic carry connotations that transcend their architectural meanings, embedding cultural and existential dimensions [18]. Peirce’s categorization of signs enriches this analysis further, allowing for a nuanced interpretation of architectural and spatial elements as symbols, icons, and indexes that narrate the human experience of a dwelling [19]. Moreover, the examination of cultural codes as systems of signs serves to underscore the importance of cultural context in the semiotic study of a dwelling. This suggests that the meanings we associate with spaces and architecture are deeply interwoven with cultural narratives and practices [20].
Henceforth, Arabic linguistics in this specific context unveils that a “dwelling” is mostly related to the word “Māskan”. This term, deeply rooted in the Arabic language, offers an alternative way that extends beyond its literal architectural interpretation. Derived from “Skoon”, it embodies concepts of stillness, calmness, and relief from pain. Intriguingly, the Arabic word for pain-relieving drugs, “Musāken”, is a derivative of this, emphasizing the notion of relief or alleviation.
The linguistic significance of “Sokoon” in Arabic also includes its role as a phonetic modifier, representing silence or a pause in pronunciation, further reinforcing the idea of stillness or calmness. However, the Quranic use of “Maskan” in the context of companionship and emotional sanctuary offers an enriched understanding of a dwelling as more than just a physical space. It is portrayed as an emotional or mental state of being at ease, free from pain, and in a state of security and comfort with a partner [21].
Moreover, the Arabic term “Manzel”, another word for house, derived from “Nazal” and “nozol”, signifies settling or descending. Unlike “Maskan”, which implies a metaphysical aspect of inhabitation, “Manzel” represents the physical aspect of inhabiting a space. This distinction highlights the different layers of meaning attributed to spaces we inhabit—from the physical and tangible to the emotional and intangible.
To contextualize these linguistic insights in contemporary settings, a survey directly involving 112 participants from Eastern Bakaa Valley in general, and 27 dwelling owners, was conducted in our study. This survey, comprising 25 questions about “Maskan”, delved into various aspects of dwelling spaces, including their importance, meaning, essentials, location, and deficiencies. Notably, when asked about the meaning of “Maskan”, the predominant responses were security and comfort, followed by stability, warmth, family, reassurance, calm, house, and quietness (Figure 2).
Figure 2.
Answers from the survey question “What Does the Term ‘Dwelling’ Mean to You?” Source: Author (2018).
These linguistic and contemporary explorations of “Maskan” underscore the complex nature of dwelling spaces in the local culture. They highlight how dwellings are perceived not just as physical structures but as entities imbued with emotional depth, security, and a sense of belonging—aspects that are crucial in understanding the relationship between individuals and their living spaces.
7. Architectural Typologies
As mentioned earlier, the architectural landscape of the Eastern Bekaa Valley has undergone a significant transformation over the past fifty years, marked by distinct phases, each characterized by unique styles and construction methods. We categorized these periods into four key epochs, each representing a step in the evolutionary ladder of architectural design and practice in the region, as depicted in Table 1.
Table 1.
Different typologies that are built during different time frames.
8. Premodernism/Pre-Globalization
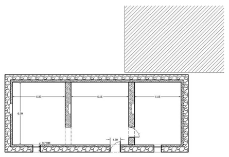
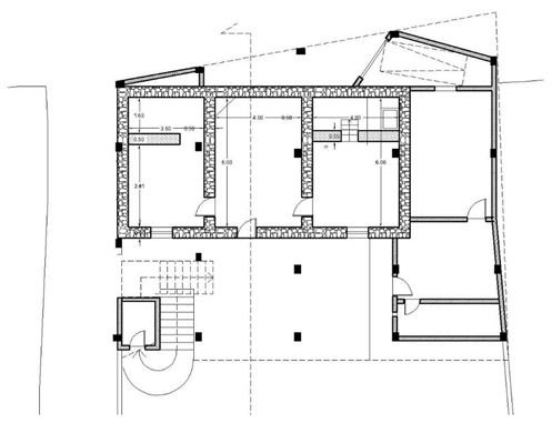
The earliest phase, spanning up to the mid-1960s, was defined by traditional construction techniques, a period we term ‘Premodernism’ or ‘pre-globalization’. During this era, construction relied heavily on locally available materials like stone and wood, with structures often featuring joists, beams, and earthen roofs [22]. Residential architecture typically manifested in two forms: single-unit houses prevalent in rural areas, and multi-unit dwellings found both in urban and rural settings. These buildings were characterized by their emphasis on privacy, often featuring limited external access points (Figure 1, Figure 2, Figure 3, Figure 4, Figure 5 and Figure 6) [12].
Figure 3.
Traditional vernacular architecture in El Nabisheith. Source: Author (2020).
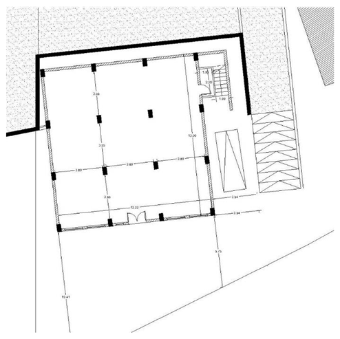
Figure 4.
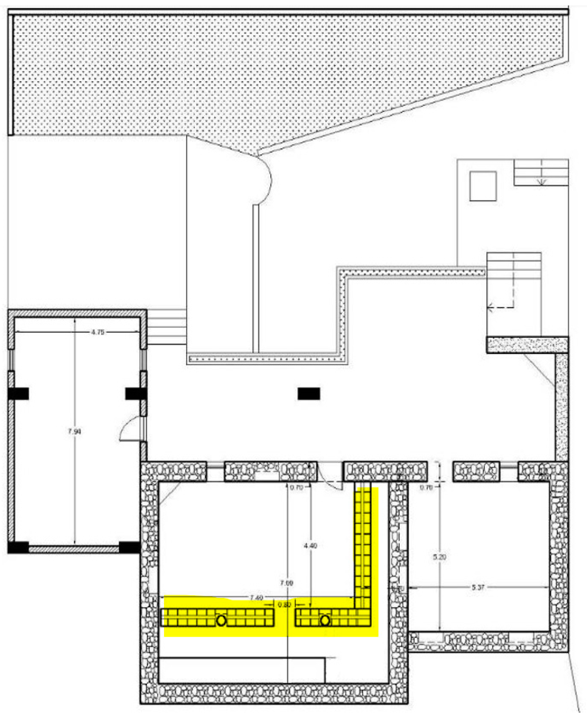
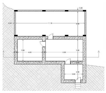
Typological transformation on the ground floor through the years. The structure that is detached from the building is the toilet. The building façade orients itself to the East, while the other façade looks onto the valley to the west. Source: Author (2019).
Figure 5.
On the top is an interior articulation of a traditional dwelling. On the bottom, these are the interior space articulations designed by locals to store food during dry hot summers, and cold winters. Source: Top by Ragette [12]; bottom by Author (2018).
Figure 6.
Wooden post holding primary and secondary wooden beams. Source: Author (2018).
Single-unit houses usually presented a parallelepiped shape, comprising a large rectangular space supported by load-bearing elements such as posts, pillars, and sometimes vaults. Over time, these structures evolved to include additional rooms alongside the main living space. The design was heavily influenced by the load-bearing nature of the construction, dictating the spatial arrangement and the allocation of different functional areas like sleeping quarters, food storage, and animal shelters. Interior design was thoughtfully crafted to preserve food under optimal conditions, a necessity given the region’s harsh climatic extremes (Figure 4).
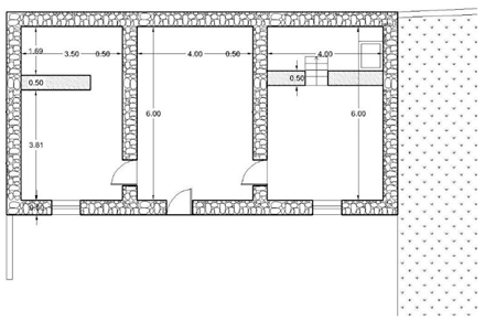
9. Transitional Phase
The late 1960s marked the beginning of a notable shift in architectural practices, characterized by the adoption of concrete as a primary building material. Prior to this, residential structures typically used a combination of earth and plant fibers for ceiling reinforcement, chosen for their accessibility and natural properties. However, the maintenance of these materials proved to be labor-intensive, prompting a shift toward more durable alternatives like concrete, which offered better structural stability and longevity.
In the initial stages of this transition, buildings not constructed with steel and concrete began to show signs of structural weakness, particularly in supporting ceiling loads. Ingenious solutions were devised, integrating steel reinforcements within the existing stone structures to enhance their durability without compromising the traditional aesthetic. As the advantages of concrete became more evident, there was a gradual shift toward using concrete columns for support instead of stone walls, marking a pivotal moment in the region’s architectural evolution. This period witnessed a comprehensive adoption of concrete, revolutionizing space design and paving the way for the modern construction techniques prevalent today (Figure 7).
Figure 7.
Entrance photo showing the concrete intervention over the wooden ceiling. Source: Author (2018).
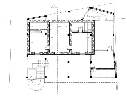
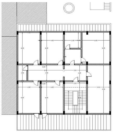
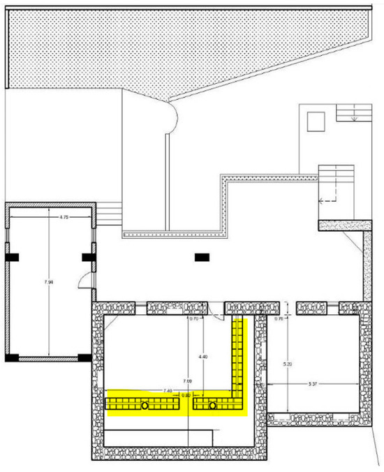
Most of the traditional dwellings that are still in use now are from this epoch, as dwellers now, with a minimized maintenance recurrency, are benefiting from the interior environmental advantage proceeding in such traditional dwellings. After the economic crisis in 2020, to minimize the energy demand, many dwellers resided in those dwellings, or used the interior articulations of the earth-molded separations to store their food (Figure 5 and Figure 8).
Figure 8.
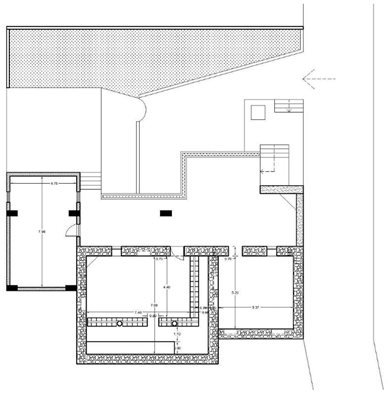
Plan of the studied T1 dwelling, numbered to show the chronological development of space construction. The house is constructed on a slope. The first part was built over the higher part. In this plan, the adjacent added concrete structure is clear. The highlighted yellow walls are those space articulations now being used by owners to store food. Source: Author (2019).
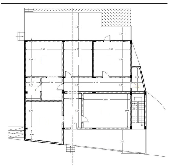
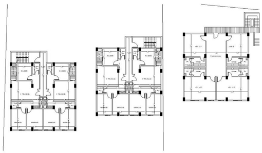
10. Modernism/Globalization
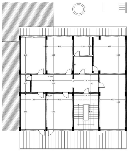
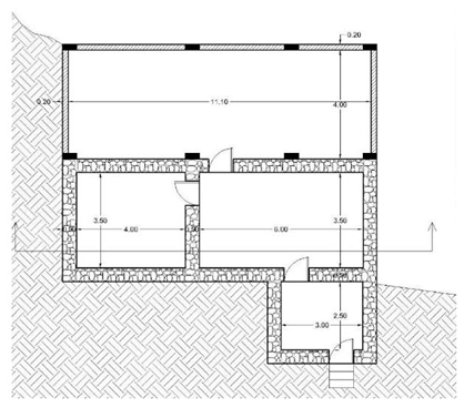
From the early 1970s onward, the architectural narrative of the region took a significant turn toward modernism or globalization. This period saw a complete reliance on steel and concrete for construction, a stark contrast to the traditional materials used previously. Local stonemasons and master builders adapted their skills to these new materials, signaling a profound shift in building practices. This era, continuing to the present day, represents a complete transformation in architectural typology, embracing the modern materials and techniques that define contemporary construction (Figure 9). Space formation and architecture typology during this phase of construction development looks completely different than the vernacular architectural typology that has been used in the past. However, from the exterior façade, dwellers who had the economic means covered their façade with stones—either imported from neighboring Aleppo, Syria, which have higher quality, but are more expensive, or bought from a local quarry that is 10 Kms South of El Nabisheith—for an aesthetic reason and to reminisce on the fact that it is a village house (Figure 9).
Figure 9.
Frontal facade of the dwelling (Right). A plan of how interior spaces are articulated during the modernist period (Left). Source: Reda Hashem (2019).
11. Post-Political
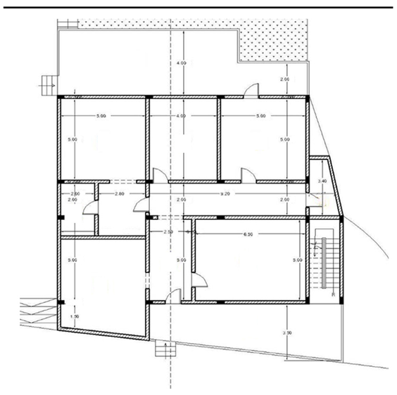
The term ‘post-political’ refers to a distinct construction phase in the Eastern Bekaa Valley, initiated following a significant political decision by the Lebanese government. In 2014, a notable development occurred when the then Minister of Interior, Mr. Nuhad Al Mashnook, introduced Generalization No. 613. This directive, issued on 5 May 2014, though not formalized as law, permitted rural municipalities to allow landowners to construct buildings up to 150 square meters without requiring official approvals from the Order of Engineers and Architects (OEA) and the Ministry of Public Works and Transportation.
The rationale behind this directive, as outlined by the minister, was multifaceted. It aimed to curb haphazard construction practices, mitigate rapid urbanization, and facilitate building processes for citizens in areas lacking municipal governance. This policy significantly altered the architectural landscape of the region, leading to a widespread construction of 150-square-meter modular structures throughout the Bekaa Valley. These constructions, as stipulated by the directive, were restricted to a single story, not exceeding 3 m in height, and covering an area of up to 150 square meters, inclusive of terraces and verandas [23].
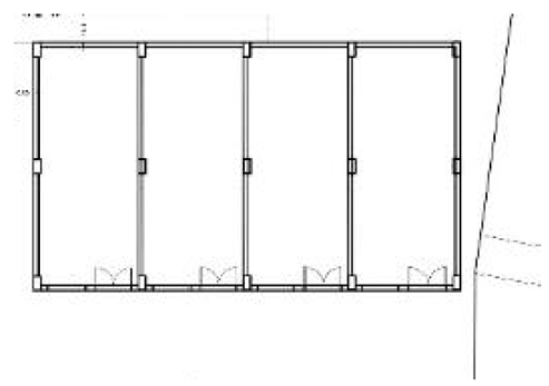
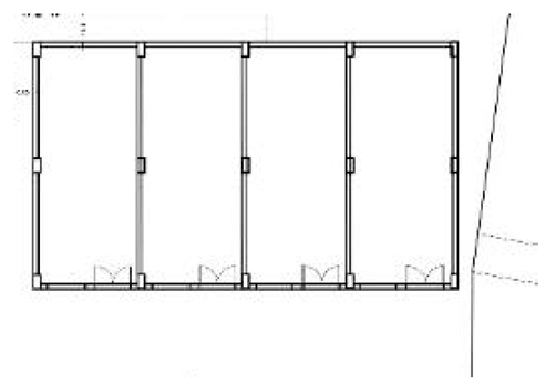
The implementation of this rule had profound implications on the region’s architectural typology. It enabled the rapid proliferation of a standardized modular structure, which diverged from traditional building norms and regulations. This modular standard was developed as residents employed local builders to construct 150 m2 dwellings. The absence of professional engineering input (architectural, civil, mechanical, etc.) meant that all structures were erected based on fundamental construction knowledge, with a uniform spacing of 4 m between columns. The specifications for these columns were as follows: each measuring 20 × 60 cm and reinforced with six 12 mm steel rods. The arrangement of a 4 × 4 × 4 m grid for both length and width resulted in an approximate total area of 150 m2 per structure. Although this new typology provided a practical approach, it lacked consideration for the sun’s orientation and the spatial qualities of the living environment. Therefore, from the completed survey, it was noticed that it had a notable impact on the cultural practices and lifestyle of the residents, as noted from the survey applied on the socio-cultural habits of the users. The introduction of these modular structures not only changed the physical landscape but also influenced the way residents interacted with their environment and with each other. The physical landscape changed due to the introduction of an immense number of concrete structures on arable lands, and the General Directorate of Civil Planning in Lebanon forbids any construction on such lands. However, with the decree from the Interior Minister, it allowed a chaotic spread of construction units, without the need for any engineers’ (architect, civil, electrical, mechanical) approval, nor the approval from the Order of Engineers and Architects, which only led to a spread of arbitrary structures (Figure 10). This event marked a shift in the traditional architectural narrative of the region, blending elements of modernity with the unique socio-cultural fabric of the Bekaa Valley. This transformation is vividly illustrated in Figure 11 showcasing the spread and influence of this new architectural trend in the region.
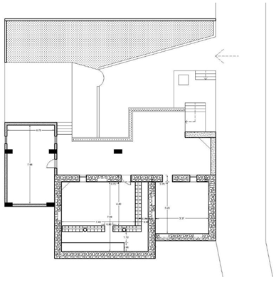
Figure 10.
Typical building constructed after Generalization Number 613. Source: Author (2018).
Figure 11.
In this image, we see the amount of structures built in an 8-year frame due to the decree from the Minister of Interior on agricultural land. Source: Author (2019).
The post-modern phase in the Eastern Bekaa Valley thus represents a significant departure from both traditional and modernist architectural practices. It reflects a unique response to the socio-political and economic realities of the region, highlighting the dynamic and evolving nature of architectural design and its impact on community and culture [21].
12. Analysis, Method, and Findings
In this study, the focus extended beyond just assessing the sustainable features of vernacular architecture or the application of environmental, socio-cultural, and socio-economic principles typical of the operative approach. It ventured deeper, connecting these aspects with insights gained from the phenomenological study of human experiences, perceptions, and interactions within this setting.
As mentioned, the research conducted merged the phenomenological and operative approaches to create a comprehensive analysis of the region’s architectural evolution. This study aimed to uncover the connections between vernacular heritage, sustainability, and human experience. The Bekaa Valley, with its rich history, cultural diversity, and architectural variety, provided an ideal setting for this investigation, as just recently it witnessed a huge shift in architectural typology, due to several factors. At first, dwellers were introduced to new construction materials, which they adapt to, while maintaining the spatial qualities that they had traditionally; however, after a political decision made in 2014, another architectural typology was introduced by local builders. This new typology was significantly different than what they have been dwelling in, and with it some socio-cultural changes took place.
A significant part of this analysis involved understanding how the region’s architectural development influenced and was influenced by aesthetic values and artistic sensibilities. This exploration was enriched by the phenomenological perspective, enabling a deeper understanding of how residents perceive, interpret, and embody aesthetic values within their unique cultural contexts, additionally digging into local linguistics to understand the meaning of a dwelling in this specific culture. This part was carried out through surveys of 112 residents, mostly being residents of at least two architectural typologies in the same area, through the four different phases mentioned in the study. Additionally, at least three representative dwellings from each architectural phase were meticulously examined, focusing not only on their architectural features but also on the socio-cultural dynamics of the families living in them.
Each selected dwelling was evaluated using a specific point system, informed by principles from both operative and phenomenological architectural theories. This structured approach aimed to identify tangible changes in dwelling authenticity over time. An example of this assessment, focusing on a dwelling from the pre-modernization phase, is illustrated in Figure 12.
Figure 12.
Evaluation report after applying the research method to one of the households, which was built during the pre-modernization phase. Source: Author (2018).
Furthermore, a temporal analysis was conducted within each dwelling, cataloging the duration inhabitants spent in different areas, from private spaces to semi-public zones. This aspect of the study was crucial in revealing social interactions resulting from the evolution in dwelling typologies, as shown in Figure 13.
Figure 13.
Space usage difference according to different typologies, filled in by each resident of the house, and then compiled as the median for each household. Source: Author (2018).
The findings highlighted notable differences in authenticity and well-being between residents from the pre-modernization era and those in the post-modern period, as depicted in Figure 14. Interestingly, a segment of the dwellers demonstrated a keen awareness of the socio-cultural changes brought about by new architectural styles. This awareness led some to transform post-political structures into commercial spaces, such as offices or retail outlets, rather than dwelling in them. Remarkably, there was a tendency among these residents to return to their traditional dwellings (or use them partially), highlighting the profound influence of architectural changes on community dynamics, personal choices, and of course the spatial qualities that those vernacular spaces provided through their quality in preserving food, and general interior climatic conditions in general. However, although these traditionally built spaces had specific qualities that are missing in the newly constructed structures, they still prefer to live in structures built during the “modernist” and “transitional” phase, while using some interior elements and compartments (if they still had a traditional house) to store food, socialize (family members meeting to reminisce on their childhood), and sleep in during hot summer days. This phenomenon was clear through the surveys made, while some residents clearly justified moving to old dwellings (if they had) due to their spatial qualities, and energy saving qualities; others psychologically preferred old dwelling spaces, as they preserved cultural qualities, and enhanced the “existential foothold” or “dwelling” experience (Figure 14).
Figure 14.
The general assessment of all the dwellings studied between those four epochs (Source: Author 2020).
13. Research Limitations and Significance
The research acknowledges a potential limitation in its lived experience approach, primarily focusing on the phenomenological aspects of a dwelling, which inherently varies from individual to individual. This emphasis on lived experiences might introduce biases, as interpretations of space and dwelling are deeply personal and can differ widely. However, despite this subjective lens, the study’s findings across all 12 surveyed typologies demonstrate a remarkable consistency in outcomes. This suggests that, while individual experiences of space may be diverse, there exists a commonality in how spaces are used and perceived that transcends personal differences. By highlighting this consistency, the research underscores the practical implications of its findings, suggesting that even within a phenomenological framework, there are observable patterns that can inform the importance of sustainable architectural practices and spatial management. Thus, the research offers insights into the significance of a dwelling and the potential on focusing on sustainable environments across different contexts, emphasizing the importance of considering both individual experiences and collective patterns in the design and use of spaces, rather than focusing on the economic/politic part to create spaces of residence. Moreover, this study has faced difficulties due to two main factors, the lack of any study on the area, and any archiving; therefore, I had to go through the personal archival images of each family, in order to have bases of what happened in the past. Moreover, to obtain proper information, I interviewed the last head of municipals that took charge since 1990.
14. Conclusions
In concluding the investigation of architectural typologies and their relation to authenticity, the employment of both operative and phenomenological research methods has been instrumental in clarifying the complex relationships among the architectural, social, environmental, and political frameworks. This approach has facilitated an in-depth analysis of the interactions between architectural innovations, environmental sustainability, economic factors, and social norms, providing a structured perspective through which the tangible impacts within the architectural–environmental–economic–social continuum were discerned.
Simultaneously, the phenomenological method has enabled an exploration into the more intangible, subjective dimensions of human experience and perception related to the built environment. It has offered insights into how dwellers interpret and engage with architecture, revealing the diverse ways in which architectural forms are perceived and imbued with significance. Specifically, by understanding the local conception of what is to “dwell” through their linguistics, it opened up the way to understand the qualities they look for in their dwelling spaces, which is related to family ties, social interactions, and all what brings relaxation or “skoon”. Therefore, through this lens, the study uncovered specific conditions under which architectural typologies directly influence user behavior within spaces. For instance, the shift towards post-political structures highlighted not only a loss of cultural space but also prompted changes in resident behaviors, such as a return to traditional dwellings for family gatherings, cultural practices, and preserving food (for the spatial qualities those vernacular structures had), thereby preserving energy-saving spatial qualities inherent to vernacular architecture. These behavioral adaptations underscore the profound connection between architectural form and the lived experience of space, demonstrating how typologies can shape daily life and community dynamics. The study further demonstrated how architectural transformations have significantly altered the socio-cultural fabric of El Nabisheith, impacting community dynamics. Moreover, the findings underscore the importance of integrating sustainable principles in dwelling construction, revealing that dwellings built on these principles facilitated a deeper connection with the “Maskan” qualities of stillness, calmness, and relief.
Addressing the limitations, the research acknowledges the potential biases introduced by focusing on lived experiences, which vary significantly among individuals. Despite these subjective elements, the study found a remarkable consistency in outcomes across surveyed typologies, suggesting commonalities in space usage and perception that transcend individual differences. This consistency highlights the practical implications of sustainable architectural practices and spatial management, emphasizing the need to consider both individual experiences and collective patterns in the design and use of spaces in phenomenological research.
This study sheds light on the architectural evolution in El Nabisheith, emphasizing the profound impact of architectural typologies. It calls for a balanced consideration of learning from the vernacular sustainable construction methods developed through centuries of experience and interactions with the environment, while also advocating for designs and construction materials that are modern, resonating with modern economic needs and facilitated construction methods.
Funding
This work was supported by the Open Access Publishing Fund of the Free University of Bozen-Bolzano.
Data Availability Statement
The data presented in this study are available on request from the corresponding author. Data available on request due to privacy.
Conflicts of Interest
The author declare no conflict of interest.
References
- Al-Naim, M.A. Identity in Transitional Context: Open-Ended Local Architecture in Saudi Arabia. Int. J. Archit. Res. Archnet. 2008, 2, 125–146. [Google Scholar]
- Sowińska-Heim, J. Conversions and Redefinitions—Architecture and Identity of a Place. Art Inq. 2013, 15, 191–204. [Google Scholar]
- Correia, M.; Dipasquale, L.; Mecca, S. VERSUS: Heritage for Tomorrow. Vernacular Knowledge for Sustainable Architecture; Firenze University Press: Florence, Italy, 2014; ISBN (online) 978-88-6655-742-5, ISBN (print) 978-88-6655-741-8. [Google Scholar]
- Badil; Muhammad, D.; Aslam, Z.; Khan, K.; Ashiq, A.; Bibi, U. The Phenomenology Qualitative Research Inquiry: A Review Paper: Phenomenology Qualitative Research Inquiry. Pak. J. Health Sci. 2023, 4, 626. [Google Scholar] [CrossRef]
- Van Manen, M. Phenomenology of Practice: Meaning-Giving Methods in Phenomenological Research and Writing; Routledge: Abingdon-on-Thames, UK, 2014. [Google Scholar]
- Smith, J.A.; Flowers, P.; Larkin, M. Interpretative Phenomenological Analysis: Theory, Method and Research; Sage: Newcastle upon Tyne, UK, 2009. [Google Scholar]
- Neila-González, F.J. Arquitectura Bioclimática en un Entorno Sostenible; Editorial Munilla-Lería: Madrid, Spain, 2004. [Google Scholar]
- Oliver, P. Built to Meet Needs: Cultural Issues in Vernacular Architecture; Architectural Press: New York, NY, USA; Elsevier: Oxford, UK, 2006. [Google Scholar]
- Zupancic, D. Economy and common sense simple solutions from past for today and beyond. In Mediterra 2009; Edicom Edizioni: Monfalcone, Italy, 2009; pp. 1–11. [Google Scholar]
- Shah, S.; Qureshi, R.; Akhtar, M. Quest for Architectural Identity of Pakistan: Ideological Shifts in the Works of Kamil Khan Mumtaz. Pak. J. Eng. Appl. Sci. 2021, 28, 1–15. [Google Scholar]
- Al-Sabouni, M. Architecture with Identity Crisis: The Lost Heritage of the Middle East. J. Biourbanism 2017, 5, 81–98. [Google Scholar]
- Ragette, F. Architecture in Lebanon: The Lebanese House during the 18th and 19th Centuries; Caravan Books: Delmar, NY, USA, 1980; pp. 7–28. [Google Scholar]
- Humada, S. Tareekh Al-Shiaa Fi Lobnan; Dar Al-Khayal lil Nashr wal Tibaa: Beirut, Lebanon, 2012; p. 183. [Google Scholar]
- El Moussaoui, M. Aesthetic Upheaval due a Political Decision. Libro De Actas. In Proceedings of the IV Congreso Internacional Estética y Política: Poéticas Del Desacuerdo Para Una Democracia Plural, Valencia, Spain, 16–17 October 2019. [Google Scholar] [CrossRef]
- Heidegger, M. Being and Time; Original Work Published 1927; Harper & Row: Manhattan, NY, USA, 1962. [Google Scholar]
- Norberg-Schulz, C. Genius Loci: Towards a Phenomenology of Architecture; Rizzoli: New York, NY, USA, 1980. [Google Scholar]
- Pallasmaa, J. The Eyes of the Skin: Architecture and the Senses; John Wiley & Sons: Hoboken, NJ, USA, 1996. [Google Scholar]
- De Saussure, F. Course in General Linguistics; Open Court: New York, NY, USA, 1983. [Google Scholar]
- Peirce, C.S. Collected Papers of Charles Sanders Peirce Volumes I and II: Principles of Philosophy and Elements of Logic; Harvard University Press: Cambridge, MA, USA, 1932; Volumes 1–2. [Google Scholar]
- Eco, U. A Theory of Semiotics; Indiana University Press: Bloomington, IN, USA, 1976. [Google Scholar]
- El Moussaoui, M. Rethinking Heidegger’s Dwelling Through Arabic Linguistics. J. Islam. Archit. 2020, 6, 127. [Google Scholar] [CrossRef]
- Kassatly, H. Terres De Bekaa: L‘Amenagement de L‘Habitat Rural sur la Haut Plateau Libanais; Geuthnew: Paris, France, 2000; pp. 31–60. [Google Scholar]
- El Moussaoui, M. The Phenomenological Significance of Dwelling in Architecture. The Case of Eastern Beka’a Valley-Lebanon. Ph.D. Thesis, Universitat Politècnica de València, Valencia, Spain, 2020. [Google Scholar] [CrossRef]
Disclaimer/Publisher’s Note: The statements, opinions and data contained in all publications are solely those of the individual author(s) and contributor(s) and not of MDPI and/or the editor(s). MDPI and/or the editor(s) disclaim responsibility for any injury to people or property resulting from any ideas, methods, instructions or products referred to in the content. |
© 2024 by the author. Licensee MDPI, Basel, Switzerland. This article is an open access article distributed under the terms and conditions of the Creative Commons Attribution (CC BY) license (https://creativecommons.org/licenses/by/4.0/).





































