Modifying the Sand Concrete with Recycled Tyre Polymer Fiber to Increase the Crack Resistance of Building Structures
Abstract
1. Introduction
2. Materials and Methods
Materials
- -
- an untreated recycled tyre polymer fiber, obtained by recycling automobile tyres;
- -
- a Portland cement CEM II/A-L 42.5N, in accordance with [32], with the following characteristics: specific surface area 377 m2/kg; true density 2.9 g/cm3; standard consistency 28.5%; setting time: initial setting time 172 min, end of setting time 234 min; compressive strength at the age of 2 days 20.0 MPa; and compressive strength at the age of 28 days 46.5 MPa. Table 1 and Table 2 show the chemical and mineralogical composition of the clinker;
- -
- a silica powder was used as a filler, with specific surface area of 288 m2/kg and with true density of 2.65 g/cm3;
- -
- a superplasticizer based on ethers of polycarboxylate was used as a plasticizing and water-reducing additive;
- -
3. Experimental Procedure
3.1. Mixture Proportioning
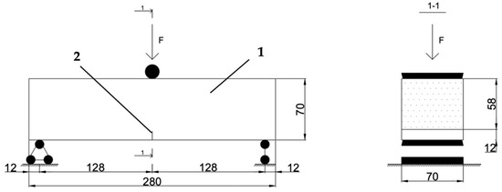
3.2. Test Procedure
4. Results and Discussion
5. Conclusions
- The characteristics of workability and strength properties of compositions with untreated fiber with contents of 11 and 19 kg/m3, corresponding to 1.2% and 2.1% Vf, and treated fiber with content of 5 and 10 kg/m3, corresponding to 0.54% and 1.1% Vf, respectively, were studied.
- The FTIR spectroscopy analysis showed that the recycled tyre fiber consisted of polyamide and polyester and had a density of 0.923 g/cm3, length (l) of 6.5 mm, diameter (d) of 0.05 mm; and l/d = 150.
- The effects of untreated tire fiber on density, workability, and strength properties of sand concrete were determined. It was found that the workability of concrete decreased by 3.6% for 1 kg/m3 of recycled tyre polymer fiber introduced into the concrete mixture. The density of the concrete mixture was reduced by 4% for every 10 kg/m3.
- It was found that the increase of untreated recycled tire fiber in the mixture led to a decrease in both flexural and compressive strengths.
- It was found that the treated fiber reduced the strength when it was added in an amount of 5 kg/m3; with an increase in the content up to 10 kg/m3, the strength exceeded the strength of plain concrete.
- The addition of fiber increased the crack resistance of concrete. It was determined that a low content of recycled fiber did not influence the strength characteristics of concrete, and it was characterized by the strength of the matrix. The increase of recycled fiber content decreased the strength slightly due to the fact that low-modulus fiber could not act as a reinforcement but occupied some part of cross-sectional area of the samples and weakened them. Then, the strength increased slightly due to the modification of the cement paste near the surface of the fibers and the creation of a connected network of interfacial transition zones with higher strength and hardness.
Author Contributions
Funding
Institutional Review Board Statement
Informed Consent Statement
Data Availability Statement
Conflicts of Interest
References
- Pukharenko, Y.V.; Panteleev, D.A.; Zhavoronkov, M.I. Influence of fiber type and matrix composition on their adhesion in fiber concrete. Bull. Sib. State Automob. Road Univ. 2022, 3, 436–445. [Google Scholar]
- Storm, J.A.; Kaliske, M.; Pise, M.; Brands, D.; Schröer, J. Comparative study of micro-mechanical models for fiber pullout behavior of reinforced high-performance concrete. Eng. Fract. Mech. 2021, 243, 107506. [Google Scholar] [CrossRef]
- Li, Q.; Huang, B.; Xu, S.; Zhou, B.; Yu, R.C. Compressive fatigue damage and failure mechanism of fiber reinforced cementitious material with high ductility. Cem. Concr. Res. 2016, 90, 174–183. [Google Scholar] [CrossRef]
- Poveda, E.; Ruiz, G.; Cifuentes, H.; Yu, R.C.; Zhang, X. Influence of the fiber content on the compressive low-cycle fatigue behavior of self-compacting SFRC. Int. J. Fatigue 2017, 101, 9–17. [Google Scholar] [CrossRef]
- Zhang, J.; Stang, H.; Li, V.C. Fatigue life prediction of fiber reinforced concrete under flexural load. Int. J. Fatigue 1999, 21, 1033–1049. [Google Scholar] [CrossRef]
- Hwan, O.B. Fatigue Analysis of Plain Concrete in Flexure. J. Struct. Eng.-ASCE 1986, 112, 273–288. [Google Scholar]
- Sparks, P.R.; Menzies, J.B. The effect of rate of loading upon the static and fatigue strengths of plain concrete in compression. Mag. Concr. Res. 1973, 25, 73–80. [Google Scholar] [CrossRef]
- Mohammadi, Y.; Kaushik, S.K. Flexural fatigue-life distributions of plain and fibrous concrete at various stress levels. J. Mater. Civ. Eng.-ASCE 2005, 17, 650–658. [Google Scholar] [CrossRef]
- Amin, A.; Foster, S.J.; Gilbert, R.I.; Kaufmann, W. Material characterisation of macro synthetic fibre reinforced concrete. Cem. Concr. Compos. 2017, 84, 124–133. [Google Scholar] [CrossRef]
- Buratti, N.; Mazzotti, C.; Savoia, M. Post-cracking behaviour of steel and macro-synthetic fibre-reinforced concretes. Constr. Build. Mater. 2011, 25, 2713–2722. [Google Scholar] [CrossRef]
- Lerch, J.O.; Bester, H.L.; Van Rooyen, A.S.; Combrinck, R.; de Villiers, W.I.; Boshoff, W.P. The effect of mixing on the performance of macro synthetic fibre reinforced concrete. Cem. Concr. Res. 2018, 103, 130–139. [Google Scholar] [CrossRef]
- Lee, M.K.; Barr, B.I.G. An overview of the fatigue behaviour of plain and fibre reinforced concrete. Cem. Concr. Compos. 2004, 26, 299–305. [Google Scholar] [CrossRef]
- Xu, M.; Song, S.; Feng, L.; Zhou, J.; Li, H.; Li, V.C. Development of basalt fiber engineered cementitious composites and its mechanical properties. Constr. Build. Mater. 2021, 266, 121173. [Google Scholar] [CrossRef]
- Chen, M.; Sun, Z.; Tub, W.; Yan, X.; Zhang, M. Behaviour of recycled tyre polymer fibre reinforced concrete at elevated temperatures. Cem. Concr. Compos. 2021, 124, 104257. [Google Scholar] [CrossRef]
- Rabinovich, F.N. Composites Based on Dispersed Reinforced Concrete, Questions of Theory and Design, Technology, Constructions; DIA: Moscow, Russia, 2004; p. 560. [Google Scholar]
- Baricevic, A. Influence of recycled tire polymer fibers on concrete properties. Cem. Concr. Compos. 2018, 91, 29–41. [Google Scholar] [CrossRef]
- Figueiredoa, F.P.; Shaha, A.H.; Huanga, S.-S.; Angelakopoulosb, H.; Pilakoutasa, K.; Burgess, I. Fire Protection of Concrete Tunnel Linings with Waste Tyre Fibres. Procedia Eng. 2017, 210, 472–478. [Google Scholar] [CrossRef]
- Pelle, A.; Briseghella, B.; Fiorentino, G.; Giaccu, G.F.; Lavorato, D.; Quaranta, G.; Rasulo, A.; Nuti, C. Repair of reinforced concrete bridge columns subjected to chloride-induced corrosion with ultra-high performance fiber reinforced concrete. Struct. Concr. 2022, 24, 332–344. [Google Scholar] [CrossRef]
- Farzad, M.; Shafieifar, M.; Azizinamini, A. Retrofitting of bridge columns using UHPC. J. Bridge Eng. 2019, 24, 04019121. [Google Scholar] [CrossRef]
- Meda, A.; Mostosi, S.; Rinaldi, Z.; Riva, P. Corroded RC columns repair and strengthening with high performance fiber reinforced concrete jacket. Mater. Struct. 2016, 49, 1967–1978. [Google Scholar] [CrossRef]
- Onuaguluchi, O.; Banthia, N. Value-added reuse of scrap tire polymeric fibers in cement-based structural applications. J. Clean. Prod. 2019, 231, 543–555. [Google Scholar] [CrossRef]
- Shourijeh, P.T.; Rad, A.M.; Bigloo, F.H.B.; Binesh, S.M. Application of recycled concrete aggregates for stabilization of clay reinforced with recycled tire polymer fibers and glass fibers. Constr. Build. Mater. 2022, 355, 129172. [Google Scholar] [CrossRef]
- Chen, M. Flexural fatigue behaviour of recycled tyre polymer fibre reinforced concrete. Cem. Concr. Compos. 2020, 105, 103441. [Google Scholar] [CrossRef]
- Chen, M. Experimental study on dynamic compressive behaviour of recycled tyre polymer fibre reinforced concrete. Cem. Concr. Compos. 2019, 98, 95–112. [Google Scholar] [CrossRef]
- Atahan, A.O.; Öner, Y.A. Crumb rubber in concrete: Static and dynamic evaluation. Constr. Build. Mater. 2012, 36, 617–622. [Google Scholar] [CrossRef]
- Larsen, O.; Shvetsova, V.; Patsenko, E.; Polozov, A. Properties of sand concrete with recycled tyre polymer fibers. E3S Web Conf. 2021, 263, 01015. [Google Scholar] [CrossRef]
- Yousefieh, N.; Joshaghani, A.; Hajibandeh, E.; Shekarchi, M. Influence of fibers on drying shrinkage in restrained concrete. Constr. Build. Mater. 2017, 148, 833–845. [Google Scholar] [CrossRef]
- Pelisser, F.; Zavarise, N.; Longo, T.A.; Bernardin, A.M. Concrete made with recycled tire rubber: Effect of alkaline activation and silica fume addition. J. Clean. Prod. 2011, 19, 757–763. [Google Scholar] [CrossRef]
- Rukavina, M.J.; Baricevic, A.; Serdar, M.; Grubor, M. Study on the post-fire properties of concrete with recycled tyre polymer fibres. Cem. Concr. Compos. 2021, 123, 10418. [Google Scholar] [CrossRef]
- Martinelli, E. Recent Advances on Green Concrete for Structural Purposes: The contribution of the EU-FP7 Project EnCoRe; Springer International Publishing: Cham, Switzerland, 2017; pp. 141–195. [Google Scholar]
- Baricevic, A.; Pezer, M.; Rukavina, M.J.; Serdar, M.; Stirmer, N. Effect of polymer fibers recycled from waste tires on properties of wet-sprayed concrete. Constr. Build. Mater. 2018, 176, 135–144. [Google Scholar] [CrossRef]
- Russian Standard GOST 31108-2020; Common Cements. Specifications. Standartinform: Russia, Moscow, 2021.
- Russian Standard GOST 8736-2014; Sand for Construction Works. Specifications. Standartinform: Russia, Moscow, 2015.
- Ma, Y.; Zhou, T.; Su, G.; Li, Y.; Zhang, A. Understanding the crystallization behavior of polyamide 6/polyamide 66 alloys from the perspective of hydrogen bonds: Projection movingwindow 2D correlation FTIR spectroscopy and the enthalpy. RSC Adv. 2016, 6, 87405–87415. [Google Scholar] [CrossRef]
- dos Santos Pereira, A.P.; da Silva, M.H.P.; Lima, É.P., Jr.; dos Santos Paula, A.; Tommasini, F.J. Processing and Characterization of PET Composites Reinforced With Geopolymer Concrete Waste. Mater. Res. 2017, 20 (Suppl. 2), 411–420. [Google Scholar] [CrossRef]
- Russian Standard GOST 24452-80; Concretes. Methods of Prismatic Compressive Strength, Modulus of Elasticity and Poisson’s Ratio Determination. Standartinform: Russia, Moscow, 1982.
















| Mineral (%) | ||||
|---|---|---|---|---|
| C3S | C2S | C3A | C4AF | CaO |
| 70.1 | 7.4 | 4.8 | 12.1 | 1.5 |
| Component (%) | ||||||||||
|---|---|---|---|---|---|---|---|---|---|---|
| SiO2 | Al2O3 | CaO | Fe2O3 | MgO | TiO2 | P2O5 | SO3 | Na2O | K2O | Cl |
| 21.0 | 5.2 | 58.0 | 2.8 | 5.0 | 0.3 | 0.1 | 2.7 | 0.1 | 0.5 | 0.01 |
| Component of Recycled Tyre Polymer Fiber | Parameters of the Fiber | ||
|---|---|---|---|
| Diameter (l), mm | Length (d), mm | l/d | |
![]() | 0.05 | 6.5 | 130 |
| Treated recycled tyre polymer fiber | |||
![]() | ≥0.05 | ≥6 | - |
| Recycled tyre polymer fiber and crumb rubber | |||
![]() | 0.2 | ≥10 | 50 |
| Metallic fiber | |||
| Bands for the Nylon-6,6 Component [34] | Bands for the PET Component [35] | ||
|---|---|---|---|
| Wave Number, cm−1 | Band | Wave Number, cm−1 | Band |
| 3294 | N–H stretching, H-bonded | 1711 | C=O stretching in carboxylic group |
| 3060 | N–H overtone | 1410 | O–H deformation |
| 2923 | CH2 stretching, asymmetric | 1340 | CH2 bending and wagging |
| 2857 | CH2 stretching, symmetric | 1242 | O–C=O bending |
| 1633 | C=O stretching | 1090 | CH2 wagging |
| 1532 | N–H bending, H-bonded | 1016 | C–O bending |
| 1370 | CH2 wagging | 719 | C–H benzene rings |
| Content of Components (kg/m3) | ||||
|---|---|---|---|---|
| Cement | Water | Quartz Sand | Superplasticizer | Fiber |
| 677 | 271 | 1354 | 1.6 | 0 |
| 677 | 271 | 1354 | 2.4 | 11 |
| 677 | 271 | 1354 | 4 | 19 |
| Content of Components (kg/m3) | ||||||
|---|---|---|---|---|---|---|
| Cement | Water | Quartz Sand Fraction (mm) | Silica Powder | Superplasticizer | Fiber | |
| 0.1–0.4 | 0.4–0.8 | |||||
| 639 | 235 | 402.4 | 939 | 128 | 3.4 | 0 |
| 639 | 235 | 402.4 | 939 | 128 | 3.5 | 5 |
| 639 | 235 | 402.4 | 939 | 128 | 4.0 | 10 |
Disclaimer/Publisher’s Note: The statements, opinions and data contained in all publications are solely those of the individual author(s) and contributor(s) and not of MDPI and/or the editor(s). MDPI and/or the editor(s) disclaim responsibility for any injury to people or property resulting from any ideas, methods, instructions or products referred to in the content. |
© 2023 by the authors. Licensee MDPI, Basel, Switzerland. This article is an open access article distributed under the terms and conditions of the Creative Commons Attribution (CC BY) license (https://creativecommons.org/licenses/by/4.0/).
Share and Cite
Samchenko, S.V.; Larsen, O.A. Modifying the Sand Concrete with Recycled Tyre Polymer Fiber to Increase the Crack Resistance of Building Structures. Buildings 2023, 13, 897. https://doi.org/10.3390/buildings13040897
Samchenko SV, Larsen OA. Modifying the Sand Concrete with Recycled Tyre Polymer Fiber to Increase the Crack Resistance of Building Structures. Buildings. 2023; 13(4):897. https://doi.org/10.3390/buildings13040897
Chicago/Turabian StyleSamchenko, Svetlana V., and Oksana A. Larsen. 2023. "Modifying the Sand Concrete with Recycled Tyre Polymer Fiber to Increase the Crack Resistance of Building Structures" Buildings 13, no. 4: 897. https://doi.org/10.3390/buildings13040897
APA StyleSamchenko, S. V., & Larsen, O. A. (2023). Modifying the Sand Concrete with Recycled Tyre Polymer Fiber to Increase the Crack Resistance of Building Structures. Buildings, 13(4), 897. https://doi.org/10.3390/buildings13040897




