Test on Shear Behavior of Double-Sided Thin Steel Plate Shear Wall Filled with Rigid Polyurethane Foam
Abstract
1. Introduction
2. Test Overview
2.1. Specimens
2.2. Loading Device
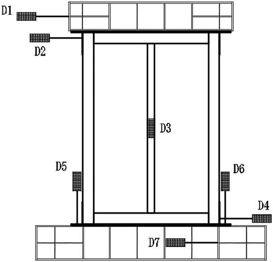
2.3. Measurement Scheme
2.4. Loading Plan
2.4.1. Quasi-Static Monotonic Loading
2.4.2. Quasi-Static Cycling Loading
3. Test Phenomena
3.1. Quasi-Static Monotonic Loading
3.2. Quasi-Static Cycling Loading
4. Test Results
4.1. Load-Lateral Hysteretic Curves
4.2. Skeleton Curves
4.3. Stiffness Degradation Curves
4.4. Bearing Capacity Degradation
4.5. Energy Dissipation Capacity
5. Conclusions
Author Contributions
Funding
Data Availability Statement
Conflicts of Interest
References
- Vincent, C.; Elgaaly, M.; Chen, R.M. Experimental study of thin steel-plate shear walls under cyclic load. J. Struct. Eng-Asce. 1993, 119, 573–587. [Google Scholar] [CrossRef]
 - Bhowmick, A.K.; Grondin, G.Y.; Driver, R.G. Nonlinear seismic analysis of perforated steel plate shear walls. J. Constr. Steel Res. 2014, 94, 103–113. [Google Scholar] [CrossRef]
 - Roberts, T.M.; Ghomi, S.S. Hysteretic characteristics of unstiffened perforated steel plate shear panels. Thin Wall Struct. 1992, 14, 139–151. [Google Scholar] [CrossRef]
 - Roberts, T.M.; Shahabian, F. Ultimate resistance of slender web panels to combined bending shear and patch loading. J. Constr. Steel Res. 2001, 57, 779–790. [Google Scholar] [CrossRef]
 - Ghomi, S.S.; Roberts, T.M. Nonlinear dynamic analysis of steel plate shear walls including shear and bending deformations. Eng. Struct. 1992, 14, 309–317. [Google Scholar] [CrossRef]
 - Rezai, M. Seismic Behaviour of Steel Plate Shear Walls by Shake Table Testing. Ph.D. Thesis, The University of British Columbia, Vancouver, BC, Canada, 1999. [Google Scholar] [CrossRef]
 - Berman, J.W.; Bruneau, M. Experimental Investigation of Light-Gauge Steel Plate Shear Walls. J. Struct. Eng-Asce. 2003, 131, 259–267. [Google Scholar] [CrossRef]
 - Wang, M.; Wang, W.G.; Wang, Y.Q.; Chang, T.; Shi, Y.J. Study on hysteretic constitutive model of austenitic stainless steel. Eng. Mech. 2015, 32, 107–114. [Google Scholar] [CrossRef]
 - Chang, X.; Yang, L.; Wang, M.; Yin, F. Study on constitutive model of austenitic stainless steel and duplex stainless steel under cyclic loading. Eng. Mech. 2019, 36, 137–147. [Google Scholar] [CrossRef]
 - Emami, F.; Mofid, M.; Vafai, A. Experimental study on cyclic behavior of trapezoidally corrugated steel shear walls. Eng. Struct. 2013, 48, 750–762. [Google Scholar] [CrossRef]
 - Emami, F.; Mofid, M. On the hysteresis behavior of trapezoidally corrugated steel shear walls. Struct. Design Tall Spec. Build. 2014, 23, 94–104. [Google Scholar] [CrossRef]
 - Roudsari, S.S.; Soleimani, S.M.; Hamoush, A.S. Analytical study of the effects of opening characteristics and plate thickness on the performance of sinusoidal and trapezoidal corrugated steel plate shear walls. J. Constr. Steel Res. 2021, 182, 106660. [Google Scholar] [CrossRef]
 - Farzampour, A.; Laman, J.A.; Mofid, M. Behavior prediction of corrugated steel plate shear walls with openings. J. Constr. Steel Res. 2015, 114, 258–268. [Google Scholar] [CrossRef]
 - Farzampour, A.; Mansouri, I.; Hu, J.W. Seismic Behavior Investigation of the Corrugated Steel Shear Walls Considering Variations of Corrugation Geometrical Characteristics. Int. J. Steel Struct. 2018, 18, 1297–1305. [Google Scholar] [CrossRef]
 - Wang, M.; Yang, W.G.; Shi, Y.J.; Xu, J. Seismic behaviors of steel plate shear wall structures with construction details and materials. J. Constr. Steel Res. 2015, 107, 194–210. [Google Scholar] [CrossRef]
 - Labibzadeh, M.; Khayat, M. Damage assessment of stiffened steel plate shear walls with different configurations under far-fault and near-fault ground motions. J. Constr. Steel Res. 2023, 200, 107685. [Google Scholar] [CrossRef]
 - Lv, Y.; Li, L.; Wu, D.; Zhong, B.; Chen, Y.; Chouw, N. Experimental Investigation of Steel Plate Shear Walls under Shear-Compression Interaction. Shock. Vib. 2019, 2019, 8202780. [Google Scholar] [CrossRef]
 - Stirna, U.; Beverte, I.; Yakushin, V.; Cabulis, U. Mechanical properties of rigid polyurethane foams at room and cryogenic temperatures. J. Cell. Plast. 2011, 47, 355–377. [Google Scholar] [CrossRef]
 - Wu, Y.W.; Fan, S.G.; Zhou, H.; Wu, Q.X. Cyclic behaviour of diagonally stiffened stainless steel plate shear walls with two-side connections: Experiment, simulation and design. Eng. Struct. 2022, 268, 114756. [Google Scholar] [CrossRef]
 - Xu, Q.; Liu, H.W.; Qiao, W.T.; Wang, C.H. Finite element analysis on seismic behavior of a new prefabricated corrugated steel plate and polyurethane composite shear wall. Steel Constr. 2021, 36, 1–8. [Google Scholar] [CrossRef]
 - JGJ227-2011; Technical Specification for Low-Rise Cold-Formed Thin-Walled Steel Buildings. China Architecture & Building Press: Beijing, China, 2011.
 - JGJ T101-2015; Specification for Seismic Test of Buildings. China Architecture & Building Press: Beijing, China, 2015.
 - GB50011-2010; Code for Earthquake Design of Buildings, 2016th ed. China Architecture & Building Press: Beijing, China, 2010.
 























| Components Numbers | Steel Frame | Steel Plates | RPUF | Open Hole | 
|---|---|---|---|---|
| QT–D1/QT–Z1 | √ | × | × | × | 
| QT–D2/QT–Z2 | √ | √ | × | × | 
| QT–D3/QT–Z3 | √ | √ | √ | × | 
| QT–D9/QT–Z9 | √ | √ | √ | √ | 
Disclaimer/Publisher’s Note: The statements, opinions and data contained in all publications are solely those of the individual author(s) and contributor(s) and not of MDPI and/or the editor(s). MDPI and/or the editor(s) disclaim responsibility for any injury to people or property resulting from any ideas, methods, instructions or products referred to in the content.  | 
© 2023 by the authors. Licensee MDPI, Basel, Switzerland. This article is an open access article distributed under the terms and conditions of the Creative Commons Attribution (CC BY) license (https://creativecommons.org/licenses/by/4.0/).
Share and Cite
Liu, R.; Guo, L.; Li, M.; Wang, G.; Zhao, H. Test on Shear Behavior of Double-Sided Thin Steel Plate Shear Wall Filled with Rigid Polyurethane Foam. Buildings 2023, 13, 757. https://doi.org/10.3390/buildings13030757
Liu R, Guo L, Li M, Wang G, Zhao H. Test on Shear Behavior of Double-Sided Thin Steel Plate Shear Wall Filled with Rigid Polyurethane Foam. Buildings. 2023; 13(3):757. https://doi.org/10.3390/buildings13030757
Chicago/Turabian StyleLiu, Renjie, Leilei Guo, Muqiao Li, Guangyong Wang, and Hang Zhao. 2023. "Test on Shear Behavior of Double-Sided Thin Steel Plate Shear Wall Filled with Rigid Polyurethane Foam" Buildings 13, no. 3: 757. https://doi.org/10.3390/buildings13030757
APA StyleLiu, R., Guo, L., Li, M., Wang, G., & Zhao, H. (2023). Test on Shear Behavior of Double-Sided Thin Steel Plate Shear Wall Filled with Rigid Polyurethane Foam. Buildings, 13(3), 757. https://doi.org/10.3390/buildings13030757
        
