Abstract
The implementation of condition monitoring for damage identification and the generation of a reliable digital twin are essential elements of preventive conservation. The application of this promising approach to Cultural Heritage (CH) sites is deemed truly beneficial, constituting a minimally invasive mitigation strategy and a cost-effective decision-making tool. In this light, the present work focuses on establishing an informative virtual model as a platform for the conservation of the monastery of Santa Maria de Salzedas, a CH building located in the north of Portugal. The platform is the first step towards the generation of the digital twin and is populated with existing documentation as well as new information collected within the scope of an inspection and diagnosis programme. At this stage, the virtual model encompasses the main cloister, whose structural condition and safety raised concerns in the past and required the implementation of urgent remedial measures. In the definition of a vibration-based condition monitoring strategy for the south wing of the cloister, five modes were identified by carrying out an extensive dynamic identification. Nonetheless, significant challenges emerged due to the low amplitude of the ambient-induced vibrations and the intrusiveness of the activities. To this end, a data-driven Optimal Sensor Placement (OSP) approach was followed, testing and comparing five heuristic methods to define a good trade-off between the number of sensors and the quality of the collected information. The results showed that these algorithms for OSP allow the selection of sensor locations with good signal strength.
1. Introduction
In the past decades, the increasing awareness of Cultural Heritage (CH) sites’ social and economic impacts has led to the implementation of national and international policies and frameworks for their effective safeguarding and preservation. Particular attention has been given to the definition of a set of principles for conservation, formalised in well-known documents such as the Charter of Athens [1], in 1931, and the Charter of Venice [2], in 1964. These principles have been constantly updated with the aim of enforcing state-of-the-art strategies to address the unavoidable processes of damage and decay caused by growing human and man-made threats.
In this context, new instances, such as the significant cuts to the heritage sector budget, the recent financial crises [3], and the general demand for sustainable use of the resources, pose greater challenges and call for the development and validation of cost-effective practices [4]. To this end, institutions such as the International Council on Monuments and Sites (ICOMOS) have acknowledged preventive conservation as the best course of action [5].
1.1. Preventive Conservation Paradigm: Advantages and Open Challenges
Accepting the underlying philosophy of preventive conservation requires a change of mindset that shifts the focus from remedying the damage once it has already spread to avoiding its causes and tracking its evolution in the earliest stage possible. Indeed, the deterioration process can be tolerated as long as it does not interfere with the ability of the structure and its components to perform as and when required in terms of safety, serviceability, durability, economic, and heritage values, among other criteria [6]. Therefore, preventive conservation encompasses a set of measures to identify possible hazards, mitigate their effects, and monitor the evolution of the system performance over time to prioritise and schedule its maintenance effectively. This can be achieved through the integration of two disciplines, namely risk assessment and condition survey [7].
On one hand, risk assessments allow for linking causes and consequences of damage and predicting the performance loss under given hazard scenarios. On the other hand, condition surveys assess the actual building performance and state through manual or automatic screening techniques. The effective integration of these two disciplines is fostered by the generation of a reliable model of the investigated system. This model, or digital twin, is expected to evolve together with its tangible counterpart, allowing [4,7,8]: (i) timely detection of anomalies in the system’s behaviour; (ii) identification of the most probable causes of these anomalies; (iii) prediction of the anomaly evolution under expected scenarios; (iv) prioritisation and design of tailored remedial measures. Following a paradigm developed for Building Information Modelling (BIM), the digital twin can be seen as a federated model that combines geometrical data, alphanumerical data, and documentation from different disciplines and purposes to ensure interoperability, streamline information exchange, and continuously updating upon new acquisitions [9].
The implementation of the digital twin paradigm can rely on different damage identification (DI) methods. Indeed, DI techniques have emerged as strongly automated and robust tools to evaluate the structural health condition. These techniques employ periodic or continuous acquisitions of damage-sensitive features through sensing systems to ultimately support decision-making [10,11,12]. The identification of the damage itself consists of the following: (i) the generation of a model that, after processing these damage-sensitive features, is capable of simulating the system behaviour and (ii) the comparison of the predicted behaviour with the actual one, evaluated through the real-time interpretation of the monitoring data, to detect anomalous responses. To this end, it is necessary to define a baseline or reference condition and employ a strategy for model development, considering that two suitable approaches exist [13] as follows: (i) data-driven and (ii) model-based. In data-driven approaches, the generated model only depends on the experimental output data over time and aims at explaining the time-dependent variation of one or more of these damage-sensitive features [14,15,16,17]. In model-based approaches, instead, the physical characteristics of the system (i.e., geometry and mechanical properties) are considered to develop a detailed numerical model of the structure (e.g., employing finite element modelling strategies), calibrated by matching the numerical with the experimental response [18,19,20,21].
Lately among the damage-sensitive features, properties obtained from vibration monitoring proved to be suitable for DI, allowing a global structural assessment in nearly real-time through a few wired or wireless contact sensors (e.g., accelerometers, velocimeters, or strain transducers) [22,23,24,25,26,27,28,29] or even contactless systems [30]. These methods demonstrated are able to detect damage onset in the very early stage, outperforming traditional condition survey approaches based on visual inspection [31,32,33]. The rationale behind vibration-based DI is that the dynamic response of the system depends on its modal properties (i.e., natural frequencies, mode shapes, and modal damping ratios) which, in turn, depend on the physical and mechanical properties that are directly affected by the damage outbreak and evolution.
The advantages of preventive conservation for CH have been clearly recognised, and specific methods and tools for its implementation exist. Combinations of experimental data and advanced numerical techniques for risk assessment at the building level have been developed and successfully employed for the diagnosis and prognosis of historical structures [20,21,34,35,36,37]. Similarly, in the last few years, the applications of automated vibration-based DI strategies to heritage buildings and monuments have increased [15,38,39,40,41,42,43]. However, the effective implementation of a preventive conservation strategy is still hindered by several open issues, especially those related to the dynamic nature of the digital twin and the quality of the collected data.
The documentation of CH is strongly multidisciplinary, addressing architectonic, artistic, material, structural, historic, and economic aspects among others, and encompasses several types of qualitative (e.g., pictures, drawings, oral stories, texts, etc.) and quantitative (e.g., values, ranges, dates, indexes, distances, etc.) information [9,44]. The nature of such information is cumulative, increasing with time and with source availability; it is often non-existent or outdated due to limited budget, time constraints, or a lack of an adequate platform/medium to contain and maintain it. Therefore, a proper digital twin must be flexible and adaptable to a level of information that is intended to grow and vary over time.
With respect to the evolution of damage, in presence of a federated digital twin composed of data-driven and/or physics-based models, updated according to vibration monitoring strategies with the peculiarities and specific issues of CH vibration testing properly addressed. To this end, two types of approaches can be followed: Forced Vibration Tests (FVTs) and Ambient Vibration Tests (AVTs). For FVT, an artificially controlled external force is used, whereas, for AVT, the structural response to naturally available sources (e.g., microtremors, wind, vehicles, and human activities) is acquired [45,46]. Although the use of predetermined artificial inputs in FVT provides a more accurate estimation of the modal properties, the application to large, massive, and complex structures is hardly possible with the existing excitation mechanisms [32], since the required instrumentation could be too heavy and expensive and/or the induced action could be detrimental due to the brittle behaviour and the poor conditions and structural capacity of many built heritages. Hence, in most cases, AVT is the only suitable approach. AVT is less expensive and prevents downtime, allowing testing during the normal operation of the buildings [45]. Nonetheless, large and massive structures may be hardly excitable by ambient vibrations, especially when they are located in areas restricted to traffic or with low traffic, such as historical city centres or the countryside [47]. This produces signals with low amplitude and high levels of noise, which affect the identification of higher modes, commonly local and more sensitive to damage, limiting the investigated bandwidth to a few hertz [45,47,48]. Moreover, the dynamic response of the built CH is commonly governed by its components and macro-elements, which are complex to identify through ambient vibration and could be evident only at specific measurement points [49,50]. Finally, it is worth noting that the intrusiveness of the sensing systems to the view and their obstructiveness for operation should be minimised, especially for long-term monitoring, as with any other measures affecting CH fruition, aesthetics, and heritage value [47,51,52].
All these factors should be considered in the sensor network design, namely in the definition of the most appropriate sensors, their number, and location [53]. An optimised sensor network design aims at reducing the number of sensors, consequently reducing the purchase, deployment, and maintenance costs, along with the extent of transmitted, processed, and stored data, and the intrusiveness, while ensuring an adequate quality of the information produced. The network design is often driven by engineering experience and intuition. Nonetheless, robust numerical methods have been developed and implemented to support decision-making within the Optimal Sensor Placement (OSP) field of research, further described in Section 2. Applications of OSP to CH are still very limited [54,55,56,57,58].
1.2. Objectives
The present work aims at generating a simple yet informative digital twin to support the preventive conservation of a relevant heritage building located in the north of Portugal, namely the monastery of Santa Maria de Salzedas, described in Section 3. The monastery underwent significant interventions and alterations, mainly due to partial demolition, abandonment, lack of maintenance, and geotechnical problems. To this end, the damage to the main cloister has been mapped through visual inspection, supported by photogrammetric and thermographic surveys. In Section 4, the implementation of the platform for the digital twin is presented. This is a navigable model obtained by interconnecting 360° panoramic views with hotspots linked to relevant information and documents collected during the documentary search and the on-site condition survey. This virtual environment will be enriched with models suited for DI, supporting maintenance, preservation, and structural assessment through vibration-based structural health monitoring techniques. A preliminary baseline for the development of such models is generated by carrying out an extensive dynamic identification of one of the most fragile components of the complex, namely the south wing, as described in Section 5. Due to the characteristics of the case study and its environment, several complications emerged during its dynamic identification; therefore, to improve the subsequent condition monitoring, suitable strategies for the optimisation of the placement of the sensors are investigated. Finally, in Section 6, the main conclusions of the work are drawn and future scopes are outlined.
2. Optimal Sensor Placement
The definition of the sensor locations for vibration monitoring and dynamic identification has traditionally been carried out according to individual expertise and engineering judgment. In the last few decades, automatic methods have been the object of increasing interest and development, first for aerospace applications [59,60]. Despite the different constraints and goals of vibration monitoring in the aerospace and civil engineering fields, these methods have been recently applied to structures and infrastructures [61,62,63].
The OSP is commonly formulated as a combinatorial, discrete constrained, black box optimisation problem, in which p out of n candidate degrees of freedom (DOFs), i.e., locations and directions for the sensors, are selected [62,64,65]. The quality of the placement is assessed according to one or more metrics that are common functions of the modal parameters, especially the mode shapes. Among the developed methods, a large class is composed of heuristic algorithms [59,61,63,66]. These are sub-optimal methods but, in most cases, provide a sufficiently good solution, with low time requirements and computational costs by assessing the contribution of each candidate DOF to the mode’s identifiability according to one specific metric. These methods may rely on a single or an iterative assessment. In the latter, at each iteration, they can either add to or reject one or more candidates from the set of candidates from the previous iteration. The modal parameters used for the optimisation are estimated through numerical simulations on a preliminary model of the investigated system [53,67,68,69]. Indeed, most of the currently adopted methods have been developed to support the updating of such a preliminary model. This has led to the definition of probabilistic optimisation procedures to deal with the significant sources of uncertainty that commonly affect any numerical model of an existing structure [67,70,71,72,73].
In the present work, a rather different approach is followed, since generating and updating a numerical model of the monastery is not the main goal. The aim is to ensure a good signal-to-noise ratio and the experimental identifiability of the modes by selecting good candidate sensor locations among the points investigated in the preliminary dynamic identification. In order to provide a better insight into OSP, Figure 1 shows a flowchart of the main tasks according to the model-based approach and the data-driven alternative that is adopted in the present paper.
Figure 1.
Data-driven and model-based optimal sensor placement framework.
To this end, the following simple OSP approaches are hereafter adopted and compared, in Section 5.3, to identify the reduced set of sensors by applying them directly to the experimentally estimated modal properties: (i) Eigenvector Component Product (ECP); (ii) Mode Shape Summation Plot (MSSP); (iii) Average Drive Point Residue (ADPR); (iv) Weighted Average Drive Point Residue (WADPR); and (v) QR Decomposition (QRD). These heuristic methods provide a sub-optimal combination of placements by ranking the candidates in a single iteration. The ECP method [74] maximises the following index:
where, is the absolute product of the i-th row of the mode shape matrix (i-th sensor position) and m is the number of target mode shapes. Similarly, the MSSP [75] maximises the absolute summation of the row:
The ADPR metric consists of the average of the DPR computed across the rows, where the DPR is estimated as follows [76]:
with inverse of the diagonal matrix of the angular frequencies and term-by-term multiplication of the mode shape matrix. The method aims at the larger ADPRs. For the WADPR method, instead, the ADPR is weighted by the minimum of the DPR in absolute value across the rows [76]. Finally, the QRD relies on the following decomposition [77]:
where is a permutation matrix with , and is an upper triangular matrix. The QRD allows the definition of a number of sensors equal to or lower than the number of target modes, and the first m columns of the permutation identify the best locations ranked by the method.
The distinct optimised placements that the methods provide are compared in terms of three relevant metrics [78]: (i) the Singular Value Decomposition Ratio (SVDr); (ii) the determinant of the Fisher Information Matrix (detFIM); and (iii) the maximum off-diagonal value of the Auto-Modal Assurance Criterion matrix (maxoffMAC). The SVDr, calculated as follows:
is the ratio of the largest to the smallest singular value of the mode shape matrix. The FIM is formulated as follows:
where is the sensor noise covariance intensity matrix. Finally, given the MAC, we calculated as follows:
where is the i-th mode, the maxoffMAC corresponds to the maximum value outside the diagonal. These metrics aim to ensure that the mode shapes are sufficiently distinguishable, estimating their linear dependency and orthogonality. In particular, for an orthogonal matrix, the MAC matrix is the identity matrix, and the SVDr is 1, therefore low values of these two metrics indicate a better placement [78]. Maximising the FIM determinant, instead, ensures the signal strength and the spatial independence of the mode shapes [79].
3. Description of the Case Study
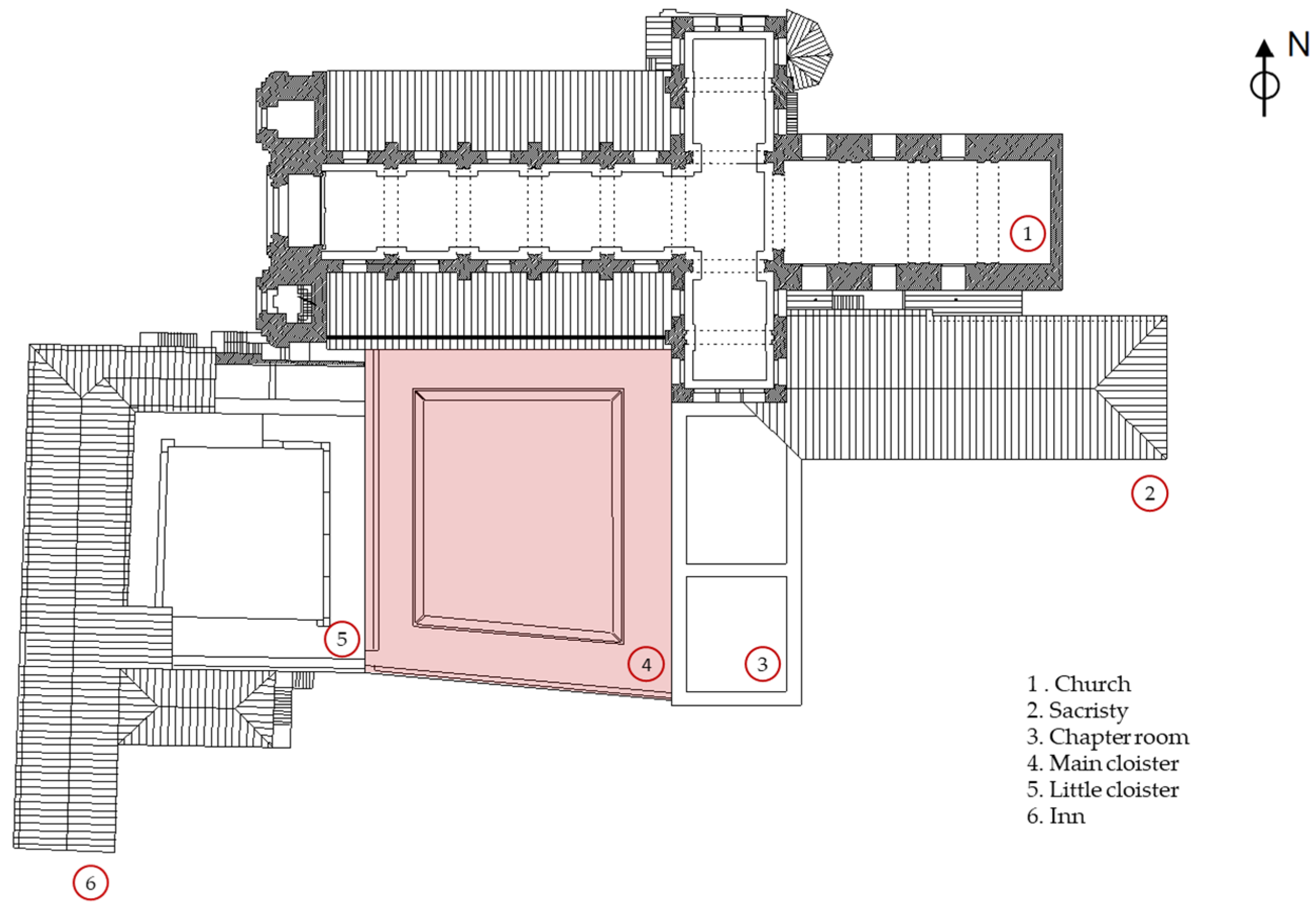
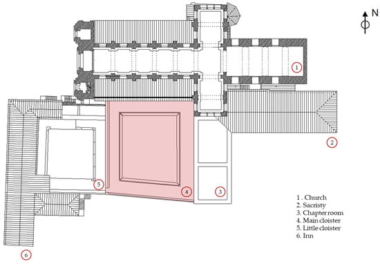
The Monastery of Santa Maria de Salzedas, located in the heart of northern Portugal, was an important male monastery, initially Benedictine and later affiliated with the Cistercian Order. The monastic complex currently comprises a church with a Latin cross shape, 35 m long and 12.5 m wide, a transept with one nave, two side aisles, a chancel (indicated as 1 in Figure 2), a sacristy (indicated as 2), a chapter room (indicated as 3), two cloisters (indicated as 4 and 5, respectively), and an inn (indicated as 6). The construction of the primary church began in the 12th century and was greatly expanded over the years. Indeed, the current church is likely the third built within the complex. The first was possibly demolished. The second, begun in 1168 and consecrated in 1225 with a Burgundian Romanesque style, was taken as the foundation and partially included in the third and last church, completed in the 17th century. This presents strong features of a mannerist and baroque architectural style. Additionally, in the same century, a monumental cloister was built to partially replace the old one that was in ruins. Finally, the part of the tower that was completed was erected in the 19th century. In 1992, renovation works were carried out and some remains of the second church were identified (Figure 3). All the complex stands in a rural environment, with the church surrounded by a few buildings of the Salzedas village (Figure 4) [80].
Figure 2.
Spatial units of the Monastery of Santa Maria de Salzedas. Main cloister is marked in light red.
Figure 3.
Elements of the second church emerged during renovation works: (a) left aisle and (b) right aisle.
Figure 4.
Aerial view of the Monastery of Santa Maria de Salzedas.
In 1997, the church was classified as a National Monument due to the architectural importance of the place, and in 2009, the complex became part of the Vale do Varosa Project, along with two other monuments, the Monastery of São João de Tarouca and the Convent of Santo António de Ferreirim.
The current work focuses on the main cloister, as this area has been characterised by severe damage mechanisms and deterioration processes so several interventions have been necessary over time. The cloister is about 30 m long and 25 m wide and comprises two levels. The first level has round arches covered by cross vaults made of brick masonry with earth filling, whereas the second level has barrel vaults and consists of an enclosed gallery (Figure 5). As shown in Figure 2, the cloister is surrounded by contiguous structures. The north wing communicates with the church, the east wing with the chapter room, and the west wing with the little cloister.
Figure 5.
Cloister: (a) first level; (b) second level; (c) accessible roof; and (d) little cloister.
The first evidence of the urgent need for remedial measures in the large cloister dates back to 1963 when the collapse of the structure was feared. Repeated warnings were given over time. The first documented conservation works took place between 1980 and 1983 and involved quite invasive solutions such as [80]: (i) demolition of the vault on the second level of the west wing and its replacement with a new vault made of reinforced concrete; (ii) reconstruction of the wall between the two cloisters; and (iii) disassemble and reassemble of the second-floor roof in the west wing.
Despite the interventions, in early 2000, the concern about the significant deterioration state of the cloister rose again, especially regarding the south wing, leading to consolidation works, better described in [80], which included: (i) repositioning the walls in plumb; (ii) elevation/re-centring vaults and arches; and (iii) additional strengthening by tying the walls. Within the scope of these conservation works, the soil was investigated, and the following stratification was identified [46]: (i) 0.00–1.10 m, fill material; (ii) 1.10–1.40 m, organic soil; (iii) 1.40–2.00 m and 2.00–2.50 m, alluvial soil with medium-sized stones and pebbles; (iv) 2.50–2.70 m, granular soil with some clay; and (v) below 2.70 m deep, large stones, measuring 0.30 m to 0.40 m in diameter. The cloister foundations were built on top of the remains of a previous pavement, settled between 1.00 m and 1.80 m, on an organic soil layer that offers moderate resistance with significant material heterogeneity [80]. Nevertheless, the foundation of the walls exhibits good quality, whereas the foundation of the columns seems unsuitable for the structural elements, strongly contributing to the damage mechanisms that emerged over time.
4. On-Site Inspection and Virtual Model Generation
In 2022, a comprehensive inspection and diagnosis campaign was carried out to map the state of damage, verify the recent interventions, and collect meaningful data to establish a simple yet informative digital twin of the main cloister, according to a methodology described in the flowchart reported in Figure 6. Prior to the on-site assessment, a documentary search was conducted to collect all available information. Most information was produced before and during the most recent conservation works and encompasses historical and geometrical surveys, structural and geotechnical reports, as well as the intervention design [80].
Figure 6.
Flowchart of the on-site inspection and digital twin generation process.
The work carried out on-site, instead, comprised as follows: photographic survey, damage survey, thermographic inspection, and dynamic identification. For this purpose, around 375 photographs, 19 panoramic views (360°), and 45 thermographic images were taken. After the inspection, the virtual model was created as a reliable data collection system. This is the first step towards the implementation of the digital twin and a straightforward preventive conservation strategy for the cloister. The development of the virtual model follows and improves a replicable strategy that has already been validated and tested over other similar case studies [4]. This strategy presents three key advantages: (i) the possibility of navigating the model, even remotely, on different devices; (ii) the possibility of visualising each significant item of the cloister; and (iii) the possibility of consulting meaningful information by different stakeholders, easily and clearly. For this, a list of hotspots was defined, each one distinguishable by its icon and name and link to photos, documents, or online folders with additional data. This model constitutes an informative visual interface for the digital twin that is currently under development, allowing one to connect in real time to multidisciplinary sources of information and models for the documentation, assessment, and conservation of the building, which will be continuously updated upon new acquisitions.
The nineteen 360° panoramic views were interlinked to create a virtual model through the Panoroo software. This model is composed of six pictures for each floor (i.e., one per corner plus two in the middle of the north and south wings) and one picture taken from the courtyard. The virtual model is navigable through the use of hotspots, characterised by arrows, that link distinct 360° pictures, as well as by clicking either on the picture locations, reported in the three plans of the three levels or on the icon of the picture itself (Figure 7). A first layer of linked information was added through dedicated hotspots to store the outcome of the documentary search, including architectural and historical evidence as well as previous technical reports and documents (Figure 8).
Figure 7.
Virtual tour, with navigation options (arrow hotspots, floor plan, or image icon): (a) first level; (b) second level; and (c) accessible roof.
Figure 8.
Information collection: the outcome of the documentary search linked in the model to an external online folder and previous reports.
During the fieldwork, the current state of the cloister was evaluated through a visual inspection to identify damage, alterations, and decay. These phenomena were classified according to the ICOMOS Guidelines [81] into five categories: (i) cracks and deformation; (ii) detachment; (iii) feature induced by material loss; (iv) discoloration and deposit; and (v) biological colonisation.
The cloister shows considerable evidence of water infiltration at the second level and moist areas associated with rainfall events (especially in the north Figure 9a and the south wing, Figure 9b). These phenomena are likely due to localised damages to the waterproof membrane and the degradation of the joints in the horizontal surfaces of the accessible roof, string course mouldings, and capping of the walls (Figure 9c). Indeed, the walls lack protection (Figure 9d) and are exposed to frequent rain and freeze-thaw cycles during the winter. A slow and inefficient water flow on the roof surface, further complicated by diffuse biological growth, contributes to the permanence of the water and its penetration through cracks, porosity, and capillarity of the material.
Figure 9.
Water infiltration: (a) second-level north wing; (b) second-level east wing; (c) accessible roof; and (d) south facade.
To record what was observed during the visual inspection, the survey results were entered into the digital twin, creating hotspots for the ICOMOS classes. These are linked to distinct online folders dedicated to each identified alteration, which collect the digital inspection form, relevant photographs, and any other associated documents (Figure 10).
Figure 10.
Damage survey: damage mapping through hotspots in the virtual model, digital inspection form, and online folder.
For damage diagnosis purposes, photogrammetry models were developed as baseline data and mapping support (Figure 11). Indeed, the photogrammetric model allows both a future comparison of the point cloud obtained upon following acquisitions and a visual identification of alteration processes. To this end, in the digital twin, a specific hotspot was introduced and linked to an online repository of the photogrammetric survey, including orthophotos and models in interoperable file formats.
Figure 11.
Photogrammetric model.
To support the visual inspection, non-destructive tests were carried out, and the outcomes were also stored within the digital model. Given the alterations observed on the two levels of the cloister and the fact that the second level is a close environment and shows spread water infiltration, an inspection with a thermographic camera was conducted in order to identify surface deterioration, hidden damage, humidity, and water penetration paths. Indeed, thermal images have become a reliable tool for damage inspection and diagnosis [82,83,84,85,86,87]. In Figure 12a,b, the measurement locations in the west and east wings, respectively, are identified together with representative examples of thermal imaging. The results of the inspection allowed us to identify colder spots, likely due to the presence of water within the walls and vaults, that, in some cases, were not evident by visual inspection. These areas largely correspond to the damaged portions of the cloister that were the subjects of recent interventions. Irrespective of that, the plaster is still in good condition, and no evidence of crack reopening was found.
Figure 12.
Inspection with a thermographic camera and link through hotspots: (a) West wing and (b) East wing.
Finally, the feasibility of the virtual model to support on-site inspection and easy collection and updating of the data was tested by operating it remotely on a tablet (Figure 13a). The operator was enabled to navigate the virtual tour, identifying and querying on-site the relevant information stored within the model or in the linked folders. Among them, rapid access to the results of the previous damage mapping was obtained, and the anomaly inspection form was edited (Figure 13b).
Figure 13.
On-site navigation, interrogation, and updating of the virtual model: (a) inspection of previously identified anomalies and (b) inspection form.
5. Dynamic Identification
5.1. Ambient Vibration Test and Limitations
In order to create a baseline of dynamic characteristics for the implementation of a condition monitoring strategy, a dynamic identification was carried out. The AVT focused on the south wing of the cloister and employed 12 high-sensitivity piezoelectric uniaxial accelerometers (model PCB 393B12, 0.15 to 1000 Hz frequency range, 10 V/g sensitivity, ±0.5 g dynamic range, and 8 μg broadband resolution) in five consecutive setups. Each setup corresponds to a different spatial configuration of the accelerometers, always maintaining two of them as a reference and summing up to a total of 40 acquired degrees of freedom, evenly distributed over the top-most (Figure 14a) and intermediate floor (Figure 14b). Data were recorded through an acquisition system composed of a 4-slot USB chassis model cDAQ-9174 and three 4-channel data acquisition modules model NI 9234 (24-bit resolution, 102-dB dynamic range, anti-aliasing filters, signal conditioning, and 50 kS/s maximum sampling rate per channel).
Figure 14.
Sensor deployment, locations, and directions: (a) accessible roof and (b) second level.
The tests were conducted under low ambient vibration input, mainly due to a light or moderate wind, the limited presence of visitors in the museum, and the negligible traffic in the area. Sources of non-stationary vibration, such as the bells of the church, were avoided. Each acquisition was carried out at 200 Hz with a duration of 20 min to ensure that the records were longer than 2000 times the fundamental period of the system. The signals were acquired during the operation of the museum to prevent downtime. Nonetheless, the test itself interfered with the complete fruition of the cloister as access was partially interrupted during each recording. Moreover, the use of cabled sensors and extension cords to supply the laptop and the acquisition system resulted in a rather intrusive deployment of the monitoring network. Indeed, for some of the setups, the acquisition system was located about 40 m from the closest wall socket, and the accelerometers were distributed in an area of about a 30–40 m radius around the acquisition system itself, connecting the two investigated floors through the windows opened on the inner court (Figure 15a).
Figure 15.
Sensor deployment: (a) cable distribution; (b) reference sensors; and (c) biological growth, wet and frozen surfaces close to a sensor location.
On the topmost floor, the harsh open-air environment also affected the operations. In particular, to limit the invasiveness of the test for the required connection of the accelerometer with the system, mechanical joints as well as strong adhesives, which could have damaged the surface of the stone, were avoided. However, the diffuse presence of biological growth and a layer of ice on the stone during most of the day, in some cases, prevented the correct functioning of the hot melt adhesive adopted, limiting the selection of the measurement points and forcing to repeat acquisitions (Figure 15b,c).
5.2. Data Processing
Acquisition records were down-sampled to investigate the 0–50 Hz range and processed through a well-known modal estimator, implemented in the software ARTeMIS Modal, namely the Enhanced Frequency Domain Decomposition (EFDD). It is worth noting that the optimal sensor methodology adopted hereafter is independent of the software and algorithm used for the modal estimation.
The low extent of the ambient vibration affected the quality of the acquired data, providing a likely low signal-to-noise ratio, which is reflected in the small distance between the first and second singular values in the Singular Values Decomposition (SVD) diagram (Figure 16) [88]. In the same diagram, several candidate peaks appear, arguably caused by nuisances in the acquisitions or local modes of the building complex, which are not clearly distinguishable due to the focus on the south wing of the cloister only. These factors contribute to the difficulties in the estimation of the modes and the failure of automated detection through robust algorithms such as the EFDD or Stochastic Subspace Identification. Therefore, the data processing required a careful inspection of the diagrams, considering different subsets of signals, and five modes were identified with a sufficient degree of certainty. Among them, two couples of closely spaced modes were found. The presence of a peak, although unpronounced, in the second SVD line, helped distinguish them [88]. The natural frequencies, damping ratios, and mode shapes are shown in Table 1 and Figure 17. Finally, the most relevant information regarding this preliminary dynamic identification, including the different setups and sensor positions, acquisition records, and processed data, was collected in a dedicated drive folder linked to the virtual model through an ad-hoc hotspot (Figure 18).
Figure 16.
Frequency Domain Decomposition: Singular Value Decomposition diagram; red arrows indicate peaks in the second SVD line popping up to separate closely spaced modes.
Table 1.
Identified modes: natural frequencies, damping ratios, and descriptions with respect to the axes of the south wing of the cloister.
Figure 17.
Mode shapes and natural frequencies of the five identified modes.
Figure 18.
Dynamic identification test hotspot in the model and linked drive folder.
5.3. Optimisation of the Sensors’ Location
The aforementioned criticalities that affect the dynamic identification of historical buildings can be appropriately addressed by defining a reduced number of optimal sensor locations, either for long-term monitoring or for future repetitions of the test. Reducing the number of sensors is essential to minimise the invasiveness and duration of the activities, with beneficial effects in terms of costs and interaction with normal operations. The application of OSP methodologies directly to recorded signals and experimental modal properties is a rather new approach that is hereafter explored. Considering the peculiarities of the identified modes, the OSP is formulated to target both the complete set of modes (i.e., five) and a reduced set, excluding the two local modes of the roof. It is assumed that, among the forty candidate measurement points of the preliminary dynamic identification, a minimum number of essential uniaxial sensors, equal to the number of target modes, is to be placed.
The results of the optimisation through four of the five investigated heuristic methods for five and three target modes are reported in Figure 19a and Figure 19b, respectively. These consist of the value of the metrics to maximize and normalise to a unitary interval for comparison purposes. The results of the QRD are not reported in the plot as this method provides a metric value for a number of sensors equal to the target modes only. Especially when five modes are targeted, quite large variability in the estimation of the relevance of each candidate according to distinct metrics emerges. This is reflected in the final optimum sets, reported in Table 2. Among the tested methods, no one suggests the location of a sensor on the intermediate floor. According to most of the heuristics, the vertical component of the mode shapes plays a negligible role in the identification. This is reflected in the lack of sensors along this direction except for P20 and P27, as suggested by MSSP and QRD. In the longitudinal direction, the presence of position P13 is almost constant, whereas, in the transversal direction, P33 is always recommended together with at least another sensor (e.g., P32, P34, or P35) in any solution except for the ECP targeting three modes.
Figure 19.
Results of the optimisation with different heuristics, according to the placement identification number presented in Figure 14: (a) normalised metrics for five target modes and (b) normalised metrics for three target modes.
Table 2.
Recommended sensor placements, according to the placement identification number presented in Figure 14, for five target modes (five sensors) and three target modes (three sensors).
Figure 20 shows the values, normalised to a unitary interval, of the three metrics considered to assess and compare the performance of the five methods. Due to their characteristics, the values assumed by the SVDr and the moaxoffMAC vary within a limited range, whereas the detFIM obtained over the total number of sensors is extremely larger than the results over the reduced sets. Indeed, for the normalised detFIM metric, the total set scores 1, whereas all the reduced sets are less than 0.02. Nonetheless, the three metrics present the QRD as the best method. Therefore, the dynamic identification is carried out again, but considering the five sensors recommended by this method and Figure 21, which reports the SVD diagram. Comparing it with the plot in Figure 16, the ability of the reduced set to ensure effective peak picking emerges, at least for the first three modes, which are even more clear, and for the fifth mode. The identification of the fourth mode is still possible, although affected by more nuisance, as reflected in several closely spaced peaks. A small relative error in the estimation, equal to 2.0%, affects the first natural frequency only (Table 3). It is, thus, confirmed that the heuristic algorithm for OSP ensures a good signal strength and can be successfully adopted to define sensor locations with larger modal displacement and, potentially, larger signal-to-noise ratios.
Figure 20.
Normalised values of the three metrics used for comparison: (a) SVDr; (b) maxoffMAC; and (c) detFIM.
Figure 21.
Frequency Domain Decomposition applied to five signals: Singular Value Decomposition diagram.
Table 3.
Comparison between the frequencies identified considering the total (TOT) and the reduced (QRD) number of sensors.
As far as the interpretation of the mode shape is concerned, the recommended placements are questionable. Although the reduced number of final locations (i.e., three or five) is indisputably a limitation to a correct spatial interpretation of the mode shapes, a clear tendency to cluster the sensors emerges, together with a bias towards the maximum modal displacements. These issues have been confirmed in other studies [57,61,63] and are a significant drawback whenever complex structures and local modes are addressed, as some of these modes could be overlooked in the optimisation. For instance, the ECP, in the case of targeting five modes, groups three sensors in the longitudinal direction close together, providing no information in the vertical direction, thus making modes 4 and 5 unidentifiable. Quite the opposite, the ADPR gathers four sensors in a transversal direction, close to the middle of the roof, but provides no information along the vertical as well. The weighted version (WADPR) finally, despite the lack of vertical sensors, more effectively spreads the sensors over the rooftop. Comparing the performance metrics (Figure 20) and the final recommended deployments (Table 2), a metric based on the auto-MAC matrix seems to be the only one capable of providing information about the mode shape interpretation, considering the pairwise similarity of the identified modes. Nonetheless, it is worth noting that the maxoffMAC that is estimated during the optimisation process by reducing the original mode shape matrix to the rows of the recommended sensors, underestimates the actual maxoffMAC that is obtained by repeating the identification on the reduced set of sensors only. Moreover, as reported in Figure 22, the estimated MAC matrix itself, for some of the pairwise comparisons, fails to predict the similarity. This problem is likely due to the poor quality of the initial identification, affected by low signal strength, and proved by the significant complexity of the estimated modes. To this end, new OSP procedures and metrics that can consider the sources of uncertainty and nuisance that affect data acquisition and processing may be needed to improve the prediction.
Figure 22.
QRD method, targeting five modes: (a) comparison between the estimated MAC matrix and the recommended set of sensors, reducing the mode shapes estimated with all the sensors (on the left) and (b) the actual MAC matrix conducting the identification with the reduced set of sensors only (on the right).
6. Conclusions
In the present work, a virtual model based on nineteen interlinked 360° panoramic views was created as a platform to store meaningful information for the preventive conservation of the Monastery of Santa Maria de Salzedas, located in the north of Portugal. This model mainly focuses on the large cloister, which has been characterised by severe damage mechanisms and has required urgent remedial measures since 2000, and it is a preliminary step towards the generation of a digital twin. The information collected on the virtual platform is organised through pre-defined and well-recognisable hotspots with links to embedded or external sources that encompass existing documents, in particular the ones produced during the last diagnosis and strengthening of the cloister, as well as new data produced during a recent condition survey of the monument. These on-site activities comprised a photographic survey, a damage survey, and a thermographic inspection. Aiming at the implementation, within the virtual platform, of a data-driven damage detection strategy, an extensive dynamic identification of the south wing, which had been particularly affected by the latest interventions, was carried out. Subsequently, an optimisation of the sensor placement was studied in order to ensure a good trade-off between the number of sensors and the identifiability of the modes, supporting future condition monitoring. To this end, five simple heuristic methods were tested and compared using three performance metrics. The following main conclusions can be drawn:
- Although the cloister shows considerable evidence of water infiltration associated with rainfall events, likely due to a deterioration of the waterproof membrane and the joints, the area that was the object of the last interventions does not present signs of alterations or reopening of the cracks;
- The structure presents five modes in the range between 4.94 and 15.04 Hz: three global and two local vertical modes of the accessible roof;
- Environmental and operational conditions strongly affect the ambient vibration test. In particular, the negligible traffic, wind, and presence of visitors within the building limit the extent of the ambient vibration;
- The sensor placement was optimised through the tested algorithms to effectively identify the natural frequencies, reducing significantly the number of measurement points.
Despite the capability of estimating the natural frequencies, the methods failed to provide solutions that, by spreading the sensors, allowed a good interpretation of the mode shapes.
Indeed, this rather innovative application of optimal sensor placement strategies to ambient vibration experimental data instead of numerical simulations confirmed some limitations of the existing algorithms, which tend to cluster the sensors and select only points with larger modal displacements. Moreover, it emerged that a proper optimisation would benefit from the repetition of the modal identification with the reduced number of sensors, since the simple reduction of the initial mode shape matrix is likely to produce a poor estimation of the adopted metrics, especially with noisy signals. Nonetheless, the promising results call for the development and testing of new data-driven OSP procedures and performance metrics able to overcome such issues as a relevant future scope of the present work.
Author Contributions
Conceptualization, A.B.; methodology, E.V.-C., A.B. and P.B.L.; formal analysis, E.V.-C. and A.B.; investigation, E.V.-C. and A.B.; writing—original draft preparation, E.V.-C.; writing—review and editing, A.B. and P.B.L.; visualization, E.V.-C.; supervision, P.B.L. All authors have read and agreed to the published version of the manuscript.
Funding
This work was partly financed by FCT/MCTES through national funds (PIDDAC) under the R&D Unit Institute for Sustainability and Innovation in Structural Engineering (ISISE), under reference UIDB/04029/2020, and under the Associate Laboratory Advanced Production and Intelligent Systems ARISE, under reference LA/P/0112/2020.
Institutional Review Board Statement
Not applicable.
Informed Consent Statement
Not applicable.
Data Availability Statement
The data available in the study are available on request.
Conflicts of Interest
The authors declare no conflict of interest.
References
- The Athens Charter—The Athenas Charter for the Restoration of Historic Monuments. In Proceedings of the 1st International Congress of Architects and Technicians of Historic Monuments, Athens, Greece, 21–30 October 1931.
- The Venice Charter—International Charter for the Conservation and Restoration of Monuments and Sites; ICOMOS: Venice, Italy, 1964.
- Marjanović, V. Europe’s Endangered Heritage; Parliamentary Assembly: Strasbourg, France, 2014. [Google Scholar]
- Lourenço, P.B.; Barontini, A.; Oliveira, D.; Ortega, J. Rethinking preventive conservation: Recent examples. In Geotechnical Engineering for the Preservation of Monuments and Historic Sites III; CRC Press: Boca Raton, FL, USA, 2022; pp. 70–86. [Google Scholar] [CrossRef]
- ICOMOS Charter—Principles for the analysis, conservation and Structural Restoration of Architectural Heritage. In Proceedings of the ICOMOS 14th General Assembly and Scientific Symposium, Victoria Falls, Zimbabwe, 27–31 October 2003; pp. 27–31.
- EN 13306; Maintenance–Maintenance Terminology. European Committee for Standardization (CEN): Brussels, Belgium, 2010.
- Taylor, J. An Integrated Approach to Risk Assessments and Condition Surveys. J. Am. Inst. Conserv. 2005, 44, 127–141. [Google Scholar] [CrossRef]
- Wagg, D.J.; Worden, K.; Barthorpe, R.J.; Gardner, P. Digital twins: State-of-the-art future directions for modelling and simulation in engineering dynamics applications. ASCE—ASME J. Risk Uncertain. Eng. Syst. B Mech. Eng. 2020, 6, 030901. [Google Scholar] [CrossRef]
- Barontini, A.; Alarcon, C.; Sousa, H.S.; Oliveira, D.V.; Masciotta, M.G.; Azenha, M. Development and Demonstration of an HBIM Framework for the Preventive Conservation of Cultural Heritage. Int. J. Arch. Herit. 2021, 16, 1451–1473. [Google Scholar] [CrossRef]
- Adams, D.E. Health Monitoring of Structural Materials and Components: Methods with Applications; John Wiley & Sons: Hoboken, NJ, USA, 2007. [Google Scholar]
- Sohn, H.; Farrar, C.R.; Hemez, F.; Czarnecki, J. A Review of Structural Health Monitoring Literature: 1996–2001; Los Alamos National Laboratory: Los Alamos, NM, USA, 2003; Volume 1, p. 16. [Google Scholar]
- Masciotta, M.-G.; Barontini, A.; Ramos, F.; Amado-Mendes, P.; Lourenço, P.B. An Overview on Structural Health Moni-toring: From the Current State-of-the-Art to New Bio-inspired Sensing Paradigms. Int. J. Bio-Inspired Comput. 2019, 14, 1–26. [Google Scholar] [CrossRef]
- Farrar, C.R.; Worden, K. An introduction to structural health monitoring. Philos. Trans. R. Soc. A Math. Phys. Eng. Sci. 2007, 365, 303–315. [Google Scholar] [CrossRef] [PubMed]
- Worden, K.; Dulieu-Barton, J.M. An Overview of Intelligent Fault Detection in Systems and Structures. Struct. Health Monit. 2004, 3, 85–98. [Google Scholar] [CrossRef]
- Gentile, C.; Guidobaldi, M.; Saisi, A. One-year dynamic monitoring of a historic tower: Damage detection under changing environment. Meccanica 2016, 51, 2873–2889. [Google Scholar] [CrossRef]
- Peeters, B.; de Roeck, G. One-year monitoring of the Z24-bridge: Environmental effectsversus damage events. Earthq. Eng. Struct. Dyn. 2001, 30, 149–171. [Google Scholar] [CrossRef]
- Barontini, A.; Masciotta, M.G.; Amado-Mendes, P.; Ramos, L.F.; Lourenço, P.B. Negative selection algorithm based methodology for online structural health monitoring. Eng. Struct. 2020, 229, 111662. [Google Scholar] [CrossRef]
- I Friswell, M. Damage identification using inverse methods. Philos. Trans. R. Soc. A Math. Phys. Eng. Sci. 2006, 365, 393–410. [Google Scholar] [CrossRef]
- Pellegrini, D.; Girardi, M.; Lourenço, P.B.; Masciotta, M.G.; Mendes, N.; Padovani, C.; Ramos, L.F. Modal analysis of historical masonry structures: Linear perturbation and software benchmarking. Constr. Build. Mater. 2018, 189, 1232–1250. [Google Scholar] [CrossRef]
- Giordano, E.; Marcheggiani, L.; Formisano, A.; Clementi, F. Application of a Non-Invasive Technique for the Preservation of a Fortified Masonry Tower. Infrastructures 2022, 7, 30. [Google Scholar] [CrossRef]
- Milani, G.; Clementi, F. Advanced Seismic Assessment of Four Masonry Bell Towers in Italy after Operational Modal Analysis (OMA) Identification. Int. J. Arch. Herit. 2019, 15, 157–186. [Google Scholar] [CrossRef]
- Hou, R.; Xia, Y. Review on the new development of vibration-based damage identification for civil engineering structures: 2010–2019. J. Sound Vib. 2020, 491, 115741. [Google Scholar] [CrossRef]
- Malekloo, A.; Ozer, E.; AlHamaydeh, M.; Girolami, M. Machine learning and structural health monitoring overview with emerging technology and high-dimensional data source highlights. Struct. Health Monit. 2021, 21, 1906–1955. [Google Scholar] [CrossRef]
- An, Y.; Chatzi, E.; Sim, S.; Laflamme, S.; Blachowski, B.; Ou, J. Recent progress and future trends on damage identification methods for bridge structures. Struct. Control. Health Monit. 2019, 26, e2416. [Google Scholar] [CrossRef]
- Avci, O.; Abdeljaber, O.; Kiranyaz, S.; Hussein, M.; Gabbouj, M.; Inman, D.J. A review of vibration-based damage detection in civil structures: From traditional methods to Machine Learning and Deep Learning applications. Mech. Syst. Signal Process. 2021, 147, 107077. [Google Scholar] [CrossRef]
- Guzman-Acevedo, G.M.; Vazquez, E.; Millan-Almaraz, J.R.; Rodriguez-Lozoya, H.E.; Reyes-Salazar, A.; Gaxiola-Camacho, J.R.; Félix, C.A.M. GPS, Accelerometer, and Smartphone Fused Smart Sensor for SHM on Real-Scale Bridges. Adv. Civ. Eng. 2019, 2019, 1–15. [Google Scholar] [CrossRef]
- dos Reis, J.; Costa, C.O.; da Costa, J.S. Strain gauges debonding fault detection for structural health monitoring. Struct. Control Health Monit. 2018, 25, e2264. [Google Scholar] [CrossRef]
- Zhu, L.; Fu, Y.; Chow, R.; Spencer, B.F.; Park, J.W.; Mechitov, K. Development of a high-sensitivity wireless accelerometer for structural health monitoring. Sensors 2018, 18, 262. [Google Scholar] [CrossRef]
- Preciado, A. Seismic vulnerability and failure modes simulation of ancient masonry towers by validated virtual finite element models. Eng. Fail. Anal. 2015, 57, 72–87. [Google Scholar] [CrossRef]
- Khuc, T.; Catbas, F.N. Completely contactless structural health monitoring of real-life structures using cameras and computer vision. Struct. Control Health Monit. 2017, 24, e1852. [Google Scholar] [CrossRef]
- Spina, D.; Lamonaca, B.G.; Nicoletti, M.; Dolce, M. Structural monitoring by the Italian Department of Civil Protection and the case of 2009 Abruzzo seismic sequence. Bull. Earthq. Eng. 2011, 9, 325–346. [Google Scholar] [CrossRef]
- Saidin, S.S.; Jamadin, A.; Kudus, S.A.; Amin, N.M.; Anuar, M.A. An Overview: The Application of Vibration-Based Techniques in Bridge Structural Health Monitoring. Int. J. Concr. Struct. Mater. 2022, 16, 1–17. [Google Scholar] [CrossRef]
- Cruz, P.J.S.; Salgado, R. Performance of Vibration-Based Damage Detection Methods in Bridges. Comput. Civ. Infrastruct. Eng. 2008, 24, 62–79. [Google Scholar] [CrossRef]
- Vuoto, A.; Ortega, J.; Lourenço, P.B.; Suárez, F.J.; Núñez, A.C. Safety assessment of the Torre de la Vela in la Alhambra, Granada, Spain: The role of on site works. Eng. Struct. 2022, 264, 114443. [Google Scholar] [CrossRef]
- Ramírez, R.; Mendes, N.; Lourenço, P.B. Diagnosis and seismic behavior evaluation of the church of são miguel de refojos (Portugal). Buildings 2019, 9, 138. [Google Scholar] [CrossRef]
- Alejo, L.E.; Mendes, N.; Lourenço, P.B.; Martínez, G. Protecting the Historic Buildings of Mexico: The Barrel Vault of San Agustin Church in Morelia. J. Perform. Constr. Facil. 2021, 35, 04020146. [Google Scholar] [CrossRef]
- Aşıkoğlu, A.; Avşar, Ö.; Lourenço, P.B.; Silva, L.C.; Kaplan, O.; Karanikoloudis, G. Finite element modeling and operational modal analysis of a historical masonry mosque. In COMPDYN Proceedings; National Technical University of Athens: Athens, Greece, 2019. [Google Scholar] [CrossRef]
- Pallarés, F.J.; Betti, M.; Bartoli, G.; Pallarés, L. Structural health monitoring (SHM) and Nondestructive testing (NDT) of slender masonry structures: A practical review. Constr. Build. Mater. 2021, 297, 123768. [Google Scholar] [CrossRef]
- Kaya, Y.; Safak, E. Real-time analysis and interpretation of continuous data from structural health monitoring (SHM) systems. Bull. Earthq. Eng. 2014, 13, 917–934. [Google Scholar] [CrossRef]
- Masciotta, M.-G.; Ramos, L.F.; Lourenço, P.B. The importance of structural monitoring as a diagnosis and control tool in the restoration process of heritage structures: A case study in Portugal. J. Cult. Herit. 2017, 27, 36–47. [Google Scholar] [CrossRef]
- Ceravolo, R.; Pistone, G.; Fragonara, L.Z.; Massetto, S.; Abbiati, G. Vibration-based monitoring and diagnosis of cultural heritage: A methodological discussion in three examples. Int. J. Arch. Herit. 2014, 10, 375–395. [Google Scholar] [CrossRef]
- Ubertini, F.; Cavalagli, N.; Kita, A.; Comanducci, G. Assessment of a monumental masonry bell-tower after 2016 Central Italy seismic sequence by long-term SHM. Bull. Earthq. Eng. 2017, 16, 775–801. [Google Scholar] [CrossRef]
- Zonno, G.; Aguilar, R.; Boroschek, R.; Lourenço, P.B. Analysis of the long and short-term effects of temperature and humidity on the structural properties of adobe buildings using continuous monitoring. Eng. Struct. 2019, 196, 109299. [Google Scholar] [CrossRef]
- Lemaire, R.; Stovel, H. Nara Document on Authenticity; World Heritage Convention: Nara, Japan, 1994. [Google Scholar]
- Koçak, A.; Toydemir, B.; Bulgur, M. Determination of characteristic Parameters of masonry Structures via Operational Modal Analysis. Int. J. Eng. Sci. 2019, 12, 120304. [Google Scholar] [CrossRef]
- Vestroni, F.; Beolchini, G.C.; Antonacci, E.; Modena, C. Identification of dynamic characteristics of masonry buildings from forced vibration tests. In Proceedings of the 11th World Conference on Earthquake Engineering, Acapulco, Mexico, 23–28 June 1996. [Google Scholar]
- Azzara, R.M.; Girardi, M.; Iafolla, V.; Lucchesi, D.M.; Padovani, C.; Pellegrini, D. Ambient Vibrations of Age-old Masonry Towers: Results of Long-term Dynamic Monitoring in the Historic Centre of Lucca. Int. J. Arch. Herit. 2019, 15, 5–21. [Google Scholar] [CrossRef]
- Pau, A.; Vestroni, F. Dynamic Characterization of Ancient Masonry Structures. In Advances in Vibration Analysis Research; InTech: Osaka, Japan, 2011. [Google Scholar] [CrossRef]
- Imposa, G.; Grassi, S.; Barontini, A.; Morreale, G.; Russo, S.; Lourenço, P.B.; Imposa, S. Extended Tromograph Surveys for a Full Experimental Characterisation of the San Giorgio Cathedral in Ragusa (Italy). Sensors 2023, 23, 889. [Google Scholar] [CrossRef]
- Boscato, G.; Cin, A.D.; Ientile, S.; Russo, S. Optimized procedures and strategies for the dynamic monitoring of historical structures. J. Civ. Struct. Health Monit. 2016, 6, 265–289. [Google Scholar] [CrossRef]
- Gentile, C.; Ruccolo, A.; Canali, F. Long-term monitoring for the condition-based structural maintenance of the Milan Cathedral. Constr. Build. Mater. 2019, 228, 117101. [Google Scholar] [CrossRef]
- Hester, J.; Prabhu, S.; Atamturktur, S.; Sorber, J. Remote and Wireless Long-term Vibration Monitoring of Historic Monuments. Procedia Eng. 2017, 199, 3302–3307. [Google Scholar] [CrossRef]
- Ostachowicz, W.; Soman, R.; Malinowski, P. Optimization of sensor placement for structural health monitoring: A review. Struct. Health Monit. 2019, 18, 963–988. [Google Scholar] [CrossRef]
- Pachón, P.; Castro, R.; García-Macías, E.; Compan, V.; Puertas, E.E. Torroja’s bridge: Tailored experimental setup for SHM of a historical bridge with a reduced number of sensors. Eng. Struct. 2018, 162, 11–21. [Google Scholar] [CrossRef]
- Pachón, P.; Infantes, M.M.; Cámara, M.; Compán, V.; García-Macías, E.; Friswell, M.I.; Castro-Triguero, R. Evaluation of optimal sensor placement algorithms for the Structural Health Monitoring of architectural heritage. Application to the Monastery of San Jerónimo de Buenavista (Seville, Spain). Eng. Struct. 2019, 202, 109843. [Google Scholar] [CrossRef]
- Prabhu, S.; Atamturktur, S. Selection of Optimal Sensor Locations Based on Modified Effective Independence Method: Case Study on a Gothic Revival Cathedral. J. Arch. Eng. 2013, 19, 288–301. [Google Scholar] [CrossRef]
- Civera, M.; Pecorelli, M.L.; Ceravolo, R.; Surace, C.; Fragonara, L.Z. A multi-objective genetic algorithm strategy for robust optimal sensor placement. Comput. Civ. Infrastruct. Eng. 2021, 36, 1185–1202. [Google Scholar] [CrossRef]
- Giordano, E.; Clementi, F.; Barontini, A.; Masciotta, M.G.; Chatzi, E. Damage Detection and Optimal Sensor Placement in Health Monitoring of ‘Collegiata di Santa Maria’ in Visso (Central Italy); Pisa University Press: Pisa, Italy, 2019. [Google Scholar] [CrossRef]
- Glassburn, R.S.; Student, G.; Weaver, S.; Assistant, S. Evaluation of Sensor Placement Algorithms for on-Orbit Identification of Space Platforms; NASA: Washington, DC, USA, 1994. [Google Scholar]
- Padula, S.L.; Kincaid, R.K. Optimization Strategies Actuator Placement for Sensor and Actuator Placement. 1999. Available online: www.sti.nasa.gov (accessed on 26 January 2023).
- Meo, M.; Zumpano, G. On the optimal sensor placement techniques for a bridge structure. Eng. Struct. 2005, 27, 1488–1497. [Google Scholar] [CrossRef]
- Tan, Y.; Zhang, L. Computational methodologies for optimal sensor placement in structural health monitoring: A review. Struct. Health Monit. 2019, 19, 1287–1308. [Google Scholar] [CrossRef]
- Leyder, C.; Dertimanis, V.; Frangi, A.; Chatzi, E.; Lombaert, G. Optimal sensor placement methods and metrics—Comparison and implementation on a timber frame structure. Struct. Infrastruct. Eng. 2018, 14, 997–1010. [Google Scholar] [CrossRef]
- Yi, T.-H.; Li, H.-N. Methodology Developments in Sensor Placement for Health Monitoring of Civil Infrastructures. Int. J. Distrib. Sens. Netw. 2012, 8, 612726. [Google Scholar] [CrossRef]
- Barontini, A.; Masciotta, M.-G.; Ramos, L.F.; Amado-Mendes, P.; Lourenço, P.B. An overview on nature-inspired optimization algorithms for Structural Health Monitoring of historical buildings. Procedia Eng. 2017, 199, 3320–3325. [Google Scholar] [CrossRef]
- Papadopoulos, M.; Garcia, E. Sensor Placement Methodologies for Dynamic Testing. AIAA J. 1998, 36, 256–263. [Google Scholar] [CrossRef]
- Capellari, G.; Chatzi, E.; Mariani, S. Structural Health Monitoring Sensor Network Optimization through Bayesian Experimental Design. ASCE-ASME J. Risk Uncertain. Eng. Syst. Part A Civ. Eng. 2018, 4, 04018016. [Google Scholar] [CrossRef]
- Kammer, D. Effect of model error on sensor placement for on-orbit modal identification of Large Space Structures. J. Guid. Control. Dyn. 1991, 15, 334–341. [Google Scholar] [CrossRef]
- Papadimitriou, C. Optimal sensor placement methodology for parametric identification of structural systems. J. Sound Vib. 2004, 278, 923–947. [Google Scholar] [CrossRef]
- Castro-Triguero, R.; Murugan, S.; Gallego, R.; Friswell, M.I. Robustness of optimal sensor placement under parametric uncertainty. Mech. Syst. Signal Process. 2013, 41, 268–287. [Google Scholar] [CrossRef]
- Guratzsch, R.F.; Mahadevan, S. Structural health monitoring sensor placement optimization under uncertainty. AIAA J. 2010, 48, 1281–1289. [Google Scholar] [CrossRef]
- Liu, J.; Ouyang, H.; Han, X.; Liu, G. Optimal sensor placement for uncertain inverse problem of structural parameter estimation. Mech. Syst. Signal Process. 2021, 160, 107914. [Google Scholar] [CrossRef]
- Kim, T.; Youn, B.D.; Oh, H. Development of a stochastic effective independence (SEFI) method for optimal sensor placement under uncertainty. Mech. Syst. Signal Process. 2018, 111, 615–627. [Google Scholar] [CrossRef]
- Larson, C.C.; Zimmerman, D.C.; Marek, E.L. A Comparison of Modal Test Planning Techniques: Excitation and Sensor Placement Using the NASA 8-Bay Truss. In Proceedings of the 12th International Modal Analysis Conference, Honolulu, Hawaii, 31 January–3 February 1994; pp. 2005–2011. [Google Scholar]
- de Clerck, J.P.; Avitable, P. Development of Several New Tools for Pre-Test Evaluation. In Proceedings of the 16th International Modal Analysis Conference, Santa Barabara, CA, USA, 2–5 February 1998; pp. 1272–1277. [Google Scholar]
- Chung, Y.-T.; Moore, D. On-Orbit Sensor Placement and System Identification of Space Station with Limited Instru-mentations. In Proceedings of the 11th International Modal Analysis Conference, Kissimmee, FL, USA, 1–4 February 1993; pp. 41–46. [Google Scholar]
- Schedlinski, C.; Link, M. An approach to optimal pick-up and exciter placement. In Proceedings of the 4th International Modal Analysis Conference, Los Angeles, CA, USA, 3–6 February 1996; pp. 376–382. [Google Scholar] [CrossRef]
- Penny, J.E.T.; Friswell, M.I.; Garvey, S.D. Automatic choice of measurement locations for dynamic testing. AIAA J. 1994, 32, 407–414. [Google Scholar] [CrossRef]
- Kammer, D.; Yao, L. Enhancement of On-Orbit Modal Identification of Large Space Structures Through Sensor Placement. J. Sound Vib. 1994, 171, 119–139. [Google Scholar] [CrossRef]
- Lourenço, P.B.; Ramos, L.F.; Vasconcelos, G. Monastery of Salzedas (Portugal): Intervention in the Cloister Andinformation Management. CRC Press: Boca Raton, FL, USA, 2008. [Google Scholar]
- Vergès-Belmin, V. Illustrated Glossary on Stone Deterioration Patterns; ICOMOS: Venice, Italy, 2008. [Google Scholar]
- Seo, H. Infrared thermography for detecting cracks in pillar models with different reinforcing systems. Tunn. Undergr. Space Technol. 2021, 116, 104118. [Google Scholar] [CrossRef]
- Glavaš, H.; Hadzima-Nyarko, M.; Haničar Buljan, I.; Barić, T. Locating hidden elements in walls of cultural heritage buildings by using infrared thermography. Buildings 2019, 9, 32. [Google Scholar] [CrossRef]
- Lerma, C.; Mas, Á.; Gil, E.; Vercher, J.; Torner, M.E. Quantitative Analysis Procedure for Building Materials in Historic Buildings by Applying Infrared Thermography. Russ. J. Nondestruct. Test. 2018, 54, 601–609. [Google Scholar] [CrossRef]
- Afshani, A.; Kawakami, K.; Konishi, S.; Akagi, H. Study of infrared thermal application for detecting defects within tunnel lining. Tunn. Undergr. Space Technol. 2019, 86, 186–197. [Google Scholar] [CrossRef]
- Paoletti, D.; Ambrosini, D.; Sfarra, S.; Bisegna, F. Preventive thermographic diagnosis of historical buildings for consolidation. J. Cult. Herit. 2013, 14, 116–121. [Google Scholar] [CrossRef]
- Avdan, U.; Kaplan, O.; Kaplan, G. Determination of building materials with ir-thermography in historical buildings. Int. J. Eng. Geosci. 2018, 3, 56–60. [Google Scholar] [CrossRef]
- Cantieni, R. Experimental Modal Analysis Under Ambient Excitation: What We Can Learn from Experience. In Proceedings of the 5th International Operational Modal Analysis Conference, Guimaraes, Portugal, 13–15 May 2013; IOMAC 2013: Guimaraes, Portugal, 2013; pp. 13–15. [Google Scholar]
Disclaimer/Publisher’s Note: The statements, opinions and data contained in all publications are solely those of the individual author(s) and contributor(s) and not of MDPI and/or the editor(s). MDPI and/or the editor(s) disclaim responsibility for any injury to people or property resulting from any ideas, methods, instructions or products referred to in the content. |
© 2023 by the authors. Licensee MDPI, Basel, Switzerland. This article is an open access article distributed under the terms and conditions of the Creative Commons Attribution (CC BY) license (https://creativecommons.org/licenses/by/4.0/).





















