Abstract
Environmental comfort is fundamental for teaching and learning processes. This work focuses on identifying shortcomings and proposing improvements for educational buildings in the Andean equatorial climate. A quantitative experimental methodology was employed, which included collecting thermal comfort data to calibrate the use of the DesignBuilder v7 environmental simulation software. Issues with thermal weakness in the carpentry were identified, both due to the choice of materials and construction sealing. These are common weaknesses that arise in the context of the Andean Ecuadorian climate, but which affect moments of thermal discomfort during study hours. With the calibrated simulator, thermal improvements achievable by working on the carpentry to reduce infiltrations by half and improving glazing with double-glazed and triple-glazed windows, achieving even uniformity in thermal transmittance compared to other envelope materials, were analyzed. By reducing infiltrations alone, the average temperature increased by between 1.07 °C and 1.61 °C, surpassing the minimum comfort threshold and remaining within locally accepted temperatures throughout the day. With very-high-standard glazing, additional improvements are made, increasing the average temperature by an additional 0.30 °C to 0.69 °C, resulting in a less efficient alternative.
1. Introduction
In places designed for teaching and learning, thermal comfort becomes a fundamental aspect of the performance of students and teachers. It has been established that thermal comfort conditions are essential during the learning processes [1]. Consequently, maintaining suitable thermal conditions is crucial for the proper functioning of classrooms in educational buildings [2].
According to the Ecuadorian standard NEC-2018 [3], thermal comfort within buildings is achieved when the air temperature and radiant temperature fall within the range of 18 °C to 26 °C, taking into account the geographical location and climatic conditions. Cuenca, the study location, is a city located in the Andean equatorial climate, approximately 320 km south of the equator, with the urban center situated at an altitude ranging from 2360 to 2760 m above sea level. Based on the climatic conditions, despite its latitude, which would typically place it within the tropical climate zone in most parts of the world, the altitude means that the climate conditions could be characterized as “mild”, with a general average temperature ranging between 13 °C and 16 °C [4]. Cuenca is a representative city with this particular climate condition in the globe, but there are similar cities in the Andes Mountain range, some of them capital cities like Quito or Bogota, and several more important cities in Colombia, Ecuador, and northern Peru have very similar climate conditions.
As a result, the average outdoor temperature is generally slightly lower than the comfort temperature, but very close. This means that indoor spaces within buildings can easily reach comfortable temperatures. However, in this climate, thermal fluctuations during the day are common and can be quite pronounced. This implies that extreme conditions may occasionally be recorded, with a maximum recorded temperature of up to 27.2 °C and a minimum of −1.7 °C. However, these extremes are sporadic and last for only a few hours. Consequently, in cities and populated areas with these climatic conditions, primarily located in South America [5], buildings do not require heating or cooling systems. This is because indoor spaces, with internal heat gains, thermal envelope inertia, and passive solar gain, generally reach comfortable temperatures easily. Similarly, enclosed spaces with excessive west-facing glazing can sometimes lead to internal overheating, but this can be resolved with ventilation or solar shading. Given the prevailing trend of overcooling buildings in the city, and considering the climatic stability throughout the year, the analysis of thermal weaknesses focuses on periods of the lowest temperatures, which, in the city of Cuenca, occur between June and September [6].
In a reference study conducted in Cuenca by Quesada and Bustillos [7], it was determined that the acceptable thermal comfort levels for 90% of the residents in Cuenca fall within a temperature range of 17.62 °C to 22.62 °C. Meanwhile, with an 80% acceptance rate, the acceptable range was between 16.62 °C and 23.62 °C. While this study and these values were analyzed for indoor environments in urban homes, they indicate that the conditions for residents to feel comfortable are at temperatures lower than the average established in the Ecuadorian standard, which considers warm tropical climates and inhabitants who do not reside in the Andean region. In the specific case of the Andean region, there is a tendency for better user acceptance when temperatures are around or slightly above 18 °C. Furthermore, it is established that relative humidity should be maintained between 40% and 65%, although this aspect goes beyond the scope of this study [3]. These data are of great importance for making comparisons with the temperatures recorded in classrooms, as they stem from real data reflecting the population’s opinions. Moreover, it has allowed for strategies to be proposed to improve the situation detected in this case study.
In seasonal climatic conditions, the consequence on infiltration effect on building envelopes has been extensively studied and dimensioned by detecting the energy demands that imply infiltrations. In Spain, for example, an increase in energy demand between 0.54 KWh/m2 per year and up to 16.44 KWh/m2 per year has been determined [8]. In institutional buildings such as airports in China [9], it has been found that the air-leakage effect is the main consequence of heating demands. In India, it was determined that a 1 AC/h increase implies an increase of 5.43 W/m2 to 3.53 W/m2 power requirement on hot days [10]. Also, in cold regions in South America, as a consequence of its cold mild climate conditions and its energy requirements on buildings in winter periods, a infiltration rate of 11 AC/h in Chile and very similar in Uruguay has been established for buildings with brick enclosure. This infiltration rate also has been determined as too high and must be reduced to reduce heating requirements [11,12]. Recent research about residential thermal comfort in residential housing in Cuenca has also been performed, but the infiltration rate calibrated in the simulation models uses infiltration levels taken from the literature, assuming from observations that they can reach up to 25 AC/h high, to obtain realistic results [13].
However, due to these excellent climatic conditions in cities located in the Andean Mountain valleys, as a collateral consequence, there is often a lack of care in the design and construction of buildings’ envelopes. As such, it is common that the effects of thermal leaks due to low insulation and the presence of infiltrations on envelope materials imply moments of absence of thermal comfort requirements. Also, no relevant studies could be found in this sense in this climatic context, so far. On the other hand, there are also no clear indicators or information on the existing infiltration levels in local buildings. Therefore, although it is evident that the conditions of airtightness, as well as the insulating capacity of the materials and especially of the exterior carpentry, are not appropriate, it is not known to what extent these two shortcomings affect comfort nor what the priority construction measures to obtain adequate levels of comfort, at the lowest possible cost, are.
The proposed study aims to analyze the internal conditions of higher education classrooms while maintaining the current architectural configuration of the buildings. It seeks to implement feasible solutions to avoid or reduce periods outside the comfort range, without the need for active environmental conditioning systems. Towards this, two aspects are defined: first, with a methodological proposal for determining the approximate infiltration rate considering the existing information about external temperature, internal temperature, the materiality of the building, and approximate internal gains. Second, we present a comparison of the incidence of improving reducing infiltration rate with improving the glazing quality, and to what extent the two strategies improve the internal comfort levels. This approach ensures an environment conducive to learning and productivity for both students and professors. The analysis of the results followed national and international standards and regulations, such as the international standard ISO 7730 [14]. This standard is based on the adaptive model, which takes into account human behaviour in a given environment, developed using thousands of samples with climatic data from various regions around the world. According to this international standard, to provide a comfortable environment for students, it is recommended to maintain an optimal operative temperature of around 24.5 °C in summer and around 22 °C in winter, with margins of ±1.5 °C and ±2.0 °C, respectively [15]. To conduct this evaluation, specialized software for energy and environmental quality analysis was utilized [16]. This program provides information on thermal comfort. The analysis focuses on three selected representative classrooms, one from each of the faculty’s blocks. Given the similarity of conditions in the other classrooms, the strategies determined can be applied to the surrounding classrooms as well. The following sections within this chapter present reference studies. The subsequent research report describes the adopted methodology, followed by the achieved results, and finally, the most significant conclusions of this work.
State of the Art
In a study conducted in San Juan, Argentina, in 2017, entitled “Levels of thermal comfort in classrooms of two school buildings in the metropolitan area of San Juan”, Ré, Filippín, and Blasco explored the thermal performance of six classrooms in two case studies, each with different construction characteristics. Empirical data analysis was carried out, including hygrothermal measurements during the winter and spring seasons, considering actual occupancy conditions. The results show that the perception of the thermal well-being of students is significantly influenced by factors such as age, clothing, activity carried out in the classroom, and the disparity of temperatures between the interior and exterior of the building. In the context of school buildings, various elements affect the levels of thermal comfort in classrooms. The occupancy density, the level of clothing of the users, the thermal variations between the interior and the exterior—produced by the transition between the classroom and the patio during recesses—as well as the activities developed in these spaces, play a crucial role in this aspect. The relevance of having specific data from the locality to establish thermal comfort criteria adapted to the area and the type of building was confirmed [17]. In this sense, international standards, designed considering different climatic and cultural realities, should be considered as guidelines rather than restrictive [18].
In 2015, a study was conducted in Chile entitled “Methodology for the design of comfortable and resilient educational buildings”, which addressed various comfort considerations in predominantly cold climate conditions. The connections between the social vulnerability index and the comfort temperature in school environments were examined. A relevant observation was that students from more vulnerable sectors are generally young people who are adapted to temperatures lower than those considered comfortable by custom in the educational space. Possible links between the environmental comfort of students and their academic performance were also explored. The intention was to demonstrate the benefits of improving the quality of construction in terms of health and well-being, in contrast to traditional approaches that focus on reducing energy costs [19].
Relationships were also established between CO2 concentration levels and productivity, using as a reference the Building Bulletin 101 of the United Kingdom, which suggests a limit of 1500 ppm of CO2 in classrooms. However, the results challenged this idea, revealing that schools with the best academic results presented CO2 concentrations sometimes higher than 1500 ppm, defining that this condition is not as determinate and that by local custom it can be higher, as the inhabitants are accustomed. In addition, deficiencies in the sealing of windows and doors increased the frequency of air renewals per hour, which contributed to reducing the environment’s lack of fresh air. Schools with lower levels of socioeconomic vulnerability showed higher temperatures during the winter, accompanied by higher CO2 concentrations in the environment as a counterproductive aspect; however, the purchasing power of families had more influence on academic results than internal environmental conditions. This is related to the idea that academic performance is influenced by a series of interconnected factors, with socioeconomic vulnerability being one of the most prominent indicators in the case studies, showing that students with less socioeconomic vulnerability tend to achieve better academic results [19].
Another study on adaptive comfort in a temperate climate, but with a tendency to overheat, showed that given the usual temperatures in Cuernavaca, Mexico, students reported comfort conditions at temperatures of 25.9 °C +/−2.5 °C. In addition, considering this adaptive comfort model, air conditioning systems can save up to 43.7% in cooling demands [20].
In a study developed in the Basque Country, in a climate that can be considered temperate, but with seasonality (average global temperature of 15 °C), the conditions of comfort detected in each of the classrooms were analyzed through internal temperature measurements and surveys. It was found that the preference of secondary school students is for lower temperatures than those considered ideal for comfort, with an ideal preference for them of between 20 °C and 22 °C. In addition, it was determined that at least a 4 AC/h air exchange is necessary to avoid overheating. Finally, it is towards the closure of the north facade and windows of classrooms without sunlight where the discomfort increases [21]. In tropical climate conditions, air leakage also results in thermal issues and, in India, the infiltration rate through the blower-door or blower window method was established [10]. Similar research also performed with blower and pressure chambers in South American countries also established thermal issues as a consequence of infiltration rate. Extensive research was performed in Chile, determining different infiltration rates for different typologies of building envelopes. This analysis was performed through equipment for detecting the air volume scape when a pressure of 50 Pa differential is simulated from both sides of a carpentry component [11]. Similar research was also performed in Uruguay, with similar devices detecting an average AC/h of 11 for buildings with brick envelopes, mainly as a consequence of carpentry failure [22]. In Cuenca, thermal comfort has also been studied in residential housing, focusing on the envelope components; however, as a consequence of the absence of research performed in this climate condition, infiltration considerations were taken from another close country. In 2020, it was determined that a main issue according to the simulations performed was considered to be reducing the infiltration rate and the low thermal capability of single glass and roofing without isolation, as these are the main aspects provoking overcooling or overheating in single-family housing. Then, with envelopes remaining in the wall of masonry brick or steel framing with 10 cm insulation, and with normal thermal internal gains, the required thermal comfort is expected to be achieved [13].
In the present study, an analysis of improvement in educational spaces in higher education is proposed. For this purpose, it is proposed to determine the levels of comfort through real measurements taken on-site, which together with the availability of climate information of the place, allow for the determination of an approximation of the infiltration levels to calibrate the DesignBuilder v7 simulator. The proposed methodology has the novelty of presenting and applying an alternative for estimating infiltration rates, mainly in doors and window carpentries, when pressure blowers or pressure chambers are not available; that is, the equipment is largely utilized in another context. So, using the thermal internal and external temperatures, the materiality of the envelope of the buildings, and the internal thermal gains, it is possible to determine an infiltration rate. With his information, it was possible to define an expected improvement in thermal conditions when reducing this infiltration rate and compare the improvement if the improvements are also performed on carpentries, which is where the main thermal weakness exists in this typology of buildings. Obtaining precise infiltration magnitudes is complex, given the variability in the conditions. Then, with information on hours of occupation, number of students, materiality of the envelope, and conditions and materiality of the carpentry, when the simulations are compared with the interior thermal reality, the infiltration conditions are defined. And it is possible to define the strategies that adapt and to what extent they increase the comfort conditions or not. It is a methodology that allows for defining the approximate levels of infiltration and the feasible improvements, a novel methodological application to the best of our knowledge.
2. Materials and Methods
The applied methodology is quantitative and experimental to obtain measurements of variables that realistically determine the level of thermal comfort and deviations from it in the classrooms of the Faculty of Architecture at Universidad de Cuenca. This faculty consists of three constructed blocks located at latitude 2°54′5.96″ S and longitude 79°0′36.84″ W. Two blocks, dating back approximately sixty years (E01 and E02), have a longitudinal configuration parallel to the path of the sun, with classrooms and classroom openings oriented to the north and south. This orientation is a deliberate strategy for capturing diffuse irradiance since direct radiation limits proper lighting conditions. Block E03 has a square floor plan, but the classroom windows are also oriented to the north and south in the same manner as the two previous blocks. Figure 1 shows an aerial view of the three constructed blocks.
Figure 1.
Aerial view of the Faculty of Architecture and Urbanism at Universidad de Cuenca.
This methodology involved the analysis of numerical data about on-site temperature measurements in degrees Celsius. Subsequently, a model was constructed in the DesignBuilder v7 simulation tool using climatic information obtained from the weather station installed on the roofs of the buildings. The objective was to maximize the alignment of the virtual model with reality by replicating factors such as materials, layout, latitude, and all local climatic parameters determined on-site. The weather station used, as shown in Figure 2, was a Delta T Devices GP2 model [23]. From the collected information, a climatic file was converted into EnergyPlus format (.epw), which is compatible with DesignBuilder v7.
Figure 2.
Delta T GP2 weather station on the roofs of the buildings at the Faculty of Architecture.
Data on the indoor environmental conditions of the faculty’s classrooms were collected. To do this, a system for recording environmental variables was employed (Figure 3). This system included a processor for data acquisition and recording, as well as a PT100 temperature sensor. Additionally, the equipment included sensors for relative humidity, CO2, and solar radiation. However, in this research, these were not the primary data of interest, although the CO2 levels did help to establish when the classrooms are occupied by students. The monitoring system incorporated a Wi-Fi antenna that enabled remote connection for external data retrieval and the download and storage of information without the need to access the classrooms, thus avoiding any interruptions during class hours.
Figure 3.
Environmental variables recording system.
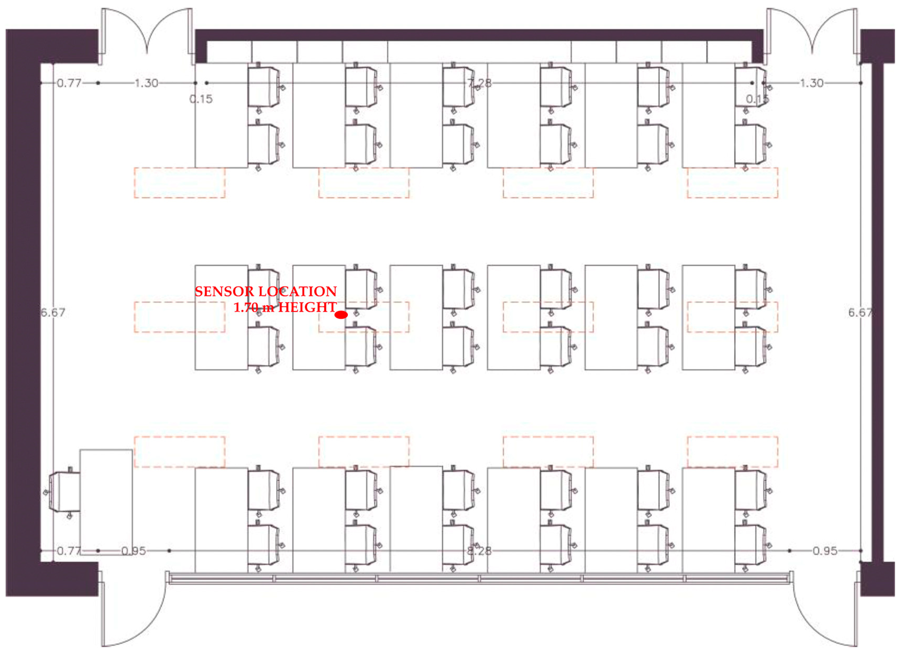
Since the data were collected during actual classroom occupancy, while teaching students, the temperature sensor was placed in the center of the classroom at a height of 1.70 m. This location and sensor height did not obstruct the students’ clear view. Data acquisition and recording occurred at a sampling frequency of every 10 min, 24 h a day. However, for research purposes, the data validity was limited to the period between 7:00 a.m. and 9:00 p.m. This interval represents the hours of classroom occupation.
2.1. Classroom Selection and Study Dates
The Faculty of Architecture and Urbanism at the University of Cuenca has 27 classrooms distributed across three different blocks. In this case, a strategic selection was made of three representative classrooms, one from each building, taking into account the lowest average temperatures recorded on-site. The first of these classrooms was E1-102, located in the basement of Block E1, with an average temperature of 17.98 °C. The second selected classroom was E2-203, situated on the top floor of Block E2, with an average temperature of 16.24 °C. Finally, from Block E3, classroom E3-201 was chosen, located on the fourth level and with an average temperature of 16.45 °C. These data were collected during the academic period between March and August 2022.
For the thermal simulation, the date selected was the coldest day of the year in the city of Cuenca in 2022, which was July 6th [24]. On this date, simulations were conducted for all the study classrooms.
2.2. Modeling of the Faculty in DesignBuilder v7
The 3D model of the faculty was created in the environmental simulation software DesignBuilder v7, and the parameters discussed below were configured to ensure the accuracy of the simulation results.
2.2.1. Classrooms Description
To conduct a comprehensive analysis of the selected classrooms for this study at the faculty, it is essential to have a detailed understanding of their key characteristics as spaces dedicated to learning. This will provide a clear and complete view of each of them.
Firstly, classroom E1-102, as shown in Figure 4 (Appendix A Figure A1), has a floor-to-ceiling height of 3.15 m, an area of 46.56 m2, and a volume of 146.66 m3. Its maximum allowed capacity is 24 people, and it is equipped with eight 40 W LED luminaires. The occupancy density in this classroom is 0.493 persons/m2.
Figure 4.
Classroom E1-102 for thermal analysis and Designbuilder v7 diagram.
The E2-203 (Appendix A Figure A2) has a floor-to-ceiling height of 3.85 m, an area of 77.94 m2, and a volume of 300.06 m3, as depicted in Figure 5. This classroom can accommodate up to 36 students and is illuminated with twelve 40 W LED luminaires. The occupancy density in this case is 0.461 persons/m2.
Figure 5.
Classroom E2-203 for thermal analysis and Designbuilder v7 diagram.
Finally, classroom E3-201 (Appendix A Figure A3), as seen in Figure 6, is characterized by a floor-to-ceiling height of 2.86 m, an area of 67.47 m2, and a volume of 192.96 m3. Its maximum allowed capacity is 27 people, and it is equipped with twelve 40 W LED luminaires. The occupancy density in this classroom is 0.444 persons/m2.
Figure 6.
Classroom E3-201 was selected for thermal analysis and Designbuilder v7 diagram. As shown the equipment and sensors are installed at a height of 1.70 m.
With these precise data on the characteristics of each classroom, a detailed and comparative analysis was conducted, which will contribute to a better understanding of the thermal comfort conditions in these educational spaces.
2.2.2. Activity Parameters
Thermal comfort is dependent on the use of space. Study classrooms are intended for learning activities, with a significant portion of students in a passive state, in a physically resting position, listening, writing, and engaging in dialogue. Therefore, in this regard, they differ from primary and secondary education classrooms. As described in the references, university education tends to resemble office buildings in terms of function and comfort requirements. The average metabolic rate is 0.90, considering the attendance of both men and women in the classrooms, and this affects internal heat gains.
The use of computers contributes to a temperature increase due to energy gain, emitting an average of 200 to 300 W per computer. To calculate the appropriate number of computers for each classroom, an average was determined based on the type of subjects taught and the number of students per class.
The quantity and type of luminaires also influence the increase in heat gain. In the faculty, LED luminaires with a power of 40 W each are used. Using this information, it was possible to estimate and calibrate the software by the described factors. Table 1 shows the obtained values of consequent heat gain and power density within each classroom.
Table 1.
Heat gain and power density in study classrooms.
The clothing values (clo) depended on the type of clothing worn by the students. A value of 0.85 was used for cold days, and 0.80 for warm days [9].
2.2.3. Occupancy Parameters
The occupancy data for each classroom were obtained from the class schedules for 6 July 2022, a day in the season when the lowest temperatures typically occur during the year. This precisely influenced the collection of internal measurements during this period. Therefore, on this regular working day with standard classes, measurements were taken, and on-site information was also gathered for subsequent simulation. In the case of classroom E1-102, the calculated day had an 80% occupancy from 7:00 A.M. to 1:00 P.M. and 90% occupancy from 3:00 P.M. to 5:00 P.M. As for classroom E2-203, it had approximately 75% occupancy from 7:00 A.M. to 11:00 A.M. On the other hand, classroom E3-201 had 90% occupancy from 7:00 A.M. to 9:00 A.M., 75% from 9:00 A.M. to 1:00 P.M. and 90% in the afternoon, from 3:00 P.M. to 5:00 P.M.
2.2.4. Materiality Parameters
The data for the physical and thermal properties of the materials comprising the walls and floors of each classroom were obtained from characteristic values of these materials in the Ecuadorian Construction Standard [7]. Ideally, using data from materials specific to the location would be preferred. However, as these are masonry and typical materials, this information is considered to be close to reality. Below, in Table 2, the thermal transmittance values for each construction package calibrated in the simulator are presented. These values allowed for us to understand the level of thermal insulation for each of them. The software provides the overall value as described.
Table 2.
Thermal transmittance values for the construction packages of the study classrooms.
2.2.5. Air Infiltration in Windows and Doors
The model in DesignBuilder v7 was adjusted to determine the amount of air infiltrations present in reality. To do this, an approximation was sought using temperature and reference materials like the Air Tightness Manual for Buildings created by the University of Bío-Bío in 2014 [11].
Upon detailed analysis of the window systems, in classroom E1-102, all existing windows are fixed in their lower section, with a height of 1.20 m, and they have louvers in the upper section with a height of 0.75 m. These windows exhibit an evident air tightness problem, particularly in the louvres, where the glass panes fit together without any sealing material between them. A similar situation was found in classroom E2-203, with the same window typology present on both sides of the room. Although these windows are more extensive, the louvres have a height of 1.20 m. The case of classroom E3-201 features a different window typology. This building is relatively newer, with approximately 13 years of existence, in contrast to the approximately 60 years of the previous blocks. The windows in this block have a design with five casement segments, each measuring 0.60 m × 1.20 m and without the presence of glass louvres. Hence, with less infiltration, the average temperature aligns.
Furthermore, in the wooden access doors to these classrooms, it is also evident that there are sealing deficiencies around the door leaf (Figure 7). The gaps between the doors and the floors range from 1 cm to 3 cm, facilitating air infiltration. In the window frames of blocks E1 and E2, there are no sealants between the window frames and the walls. This contributes to infiltrations through the irregular contours of the exposed brick. In block E3, there is better sealing between the window frames and walls because the wall material is more regular. In these windows, there is silicone sealing between the glass and aluminium frames; however, this silicone is already deteriorating.
Figure 7.
Envelope encounters with classroom windows and doors.
Based on this construction reality, the infiltration rate was estimated according to the predominant material in the building envelope and the particularities of the construction elements. It was observed that an air change rate (ac/h) of 15 is a realistic magnitude given the obvious flaws observed in the windows of classrooms E1-102 and E2-203, as they share similarities in terms of their materials and construction elements compared to studies conducted in Chile. In contrast, classroom E3-201 has an infiltration rate of 12 ac/h, which on average reflects the room’s temperature. In other words, during the simulations, these air changes helped to achieve an average temperature match.
The parameter settings in the software of the all parameter described are shown in the Appendix A Figure A4, Figure A5 and Figure A6.
3. Results
3.1. Thermal Simulation Results Compared to Real Measurements
After performing the thermal simulation, information regarding the operative temperature in degrees Celsius (°C) and the percentage of relative humidity (%) in the classrooms was obtained at daily, hourly, and sub-hourly intervals. Each classroom was calibrated with the occupancy of students by the academic schedule of the faculty. Below, the results of the hourly temperature variations throughout the day on 6 July 2022 are presented, along with the actual on-site measurements. Although classroom occupancy was calibrated according to academic schedules, in reality, occupancy is not rigid. This is the main reason for deviations compared to the rigid occupancy of simulation models, which results in less abrupt thermal fluctuations.
As a result of the thermal simulation conducted in DesignBuilder v7, focusing on the operative temperature of classroom E1-102, an average temperature of 17.73 °C was obtained. Throughout the day, two notable points of interest were identified: at 13:00 h, the maximum temperature reached 19.63 °C, while at 8:00 h, a minimum temperature of 16.24 °C was recorded, as shown in Figure 8. In the real measurements, it can be observed that internal gains increase the temperature before 9 am, indicating that students, contrary to what was calibrated in the simulation based on the academic schedule, start occupying the classroom earlier. Consequently, there is a temperature difference at 9 am of approximately 2 °C; from there onwards, both in the simulation and the actual temperature recorded, the temperature grows almost in parallel. In the afternoon, the temperature drop in the real measurements is more abrupt compared to the simulated one, reflecting lower occupancy except at the end of the day when the classroom is occupied, increasing the temperature beyond the simulation. The more abrupt thermal fluctuations in the real measurements indicate the unpredictability of human behavior, which cannot be precisely scheduled in the simulation, an expected situation as indicated by previous studies [25]. Nevertheless, the average temperature of the classroom throughout the day was close, with an average difference of 0.78 °C when comparing simulation to reality.
Figure 8.
Simulator vs on-site comparison. Classroom E1-102.
Regarding the analysis conducted in classroom E2-203, an average temperature of 16.52 °C was determined throughout the day according to the simulation. At 13:00 h, the simulated maximum temperature reached 20.60 °C, while the actual temperature was very close to 19.90 °C. At 7:00 h in the simulation, a minimum temperature of 14.45 °C was recorded, compared to the 13.96 °C recorded in the simulations and as observed in Figure 9. Furthermore, a relative humidity level of 64.03% was obtained, which falls within the range recommended by the Ecuadorian Construction Standard, set between 40% and 65%. The difference between the real and simulated temperature differed by only 0.28 °C.
Figure 9.
Simulator vs. on-site comparison. Classroom E2-203.
For the thermal simulation in classroom E3-201, the following results were obtained: an average temperature of 16.11 °C and a maximum temperature of 19.46 °C recorded at 13:00 h, which was higher than the 18.29 °C registered by the sensors, and a minimum temperature of 13.31 °C at 8:00 h, which was lower than the 15.32 °C recorded on-site (as shown in Figure 8). In this case, the average temperature difference between the real measurements and the simulation was 0.70 °C. When comparing the temperature data measured on-site and those obtained through the simulation in DesignBuilder v7, for these results to be representative of reality, the margin of error about the on-site measurements should fall within the range of 3% to 10%.
In the case of classroom E1-102, according to the on-site measurements, an average temperature of 17.00 °C was recorded, resulting in a margin of error of 4.27%. For classroom E2-203, an average temperature of 16.24 °C was obtained, generating a margin of error of 1.72%. On the other hand, in classroom E3-201 (as shown in Figure 10), the average temperature measured on-site was 16.81 °C, resulting in a margin of error between simulation and reality of 4.16%. The determined ranges show an acceptable accuracy, although it was observed that momentary variation did occasionally reach up to 2 °C. Nevertheless, considering that the goal was to surpass the lower limit of excessive cooling, these results will allow for the thermal improvement proposals to reflect an approximation of the impact of the proposed enhancements.
Figure 10.
Simulator vs. on-site comparison. Classroom E3-201.
The relative errors between the simulation and the measured values were 5.75%, 3.72%, and 6.08%, respectively. However, in the case of classroom E1-102, this error could be lower. Nevertheless, a sudden increase in temperature can be observed between 19:00 and 21:00. This could be attributed to an unforeseen influx of students in the classroom in this time interval, which was detected by the sensor.
3.2. Determination of Thermal Comfort Deficiency Moments by Regulations
Once the simulations were calibrated with real data and climate files, it was possible to identify comfort deficiencies in the classrooms, in line with typical occupancy. Based on these findings, potential improvements can be determined through simulations under the same conditions.
- Classroom E1-102 from 7:00 a.m. to 9:00 a.m. experiences temperatures lower than recommended. From 10:00 a.m. to 9:00 p.m., temperature falls within the range recommended by the Ecuadorian construction standard; however, it remains below the standards set by the international norm.
- In the case of classroom E2-203, there are also low temperatures from 7:00 a.m. to 10:00 a.m. After 10:00 a.m., until 2:00 p.m., thermal conditions become suitable again, according to NEC-2018. However, during midday, they reach the lower comfort limit recommended by ISO 7730 due to the temperature decrease caused by the absence of students, with a gradual reduction reaching 16 °C at night.
- Similar to the previous classrooms, in classroom E3-201, the indoor temperature remains below 18 °C from 7:00 a.m. to 10:00 a.m. After 10:00 a.m., until 1:30 p.m., it stays within the range recommended by the Ecuadorian standard. However, starting from 2:00 p.m., the temperatures are at the lower limit of comfort accepted by the population in Cuenca, with 20% of occupants dissatisfied. The temperature consistently decreases throughout the afternoon, oscillating around 17 °C until the evening.
The average temperatures throughout the day in all three analyzed classrooms are slightly below the recommendations provided by the mentioned standards. Therefore, three strategies are proposed to improve the comfort conditions, aiming to establish their impact: working on reducing infiltrations, including double-glazed windows, and incorporating double-glazed windows. Based on the findings regarding the materiality of the building envelope, it is clear that the thermal weaknesses are present in the windows. Therefore, these components offer the most potential for achieving improved thermal comfort levels.
3.3. Application and Measurement of Improvements
The strategies to be applied involve addressing the thermal weaknesses and infiltrations in each of the classrooms, which are the doors and windows. The remaining building envelope is composed of double and even triple brick walls, along with reinforced concrete floor slabs and columns. The thermal weakness is already evident in the conductivity levels expressed in Table 2, which are the window frames. First, simulations were conducted to achieve levels of airtightness in line with international standards, and then window frame materials were considered to ensure uniformity in insulation capacity and thermal inertia compared to the rest of the building envelope. Airtightness depends on the quality of the frame, glass, and hardware used. In the case of doors, correct sealing between the door frame and walls, as well as the door leaf with the frame, is crucial [20].
To control air infiltrations, elements that support airtight sealing were incorporated, such as PVC weatherstripping for external windows, silicones for sealing joints, and neoprene gaskets for smaller door and window joints, among those that are readily available locally. Furthermore, a double roll can be used as a barrier at the bottom of doors, and a general seal can be applied to all frames [26]. When these assumptions are calibrated, the infiltration through the window frames is reduced to a third of the original amount. Subsequently, improvements in the materiality of the glazing are analyzed, specifically as described below.
3.3.1. Improvement 1 (P1)
In the first proposal, it is suggested to maintain single-pane glass without a 6 mm air gap, solely focusing on improving airtightness through complete infiltration control. One of the recurring issues is related to the blinds, which, when closed, do not seal properly between them. Therefore, the modification to casement windows is considered an alternative to the blinds, offering the possibility of a better seal upon closure.
3.3.2. Improvement 2 (P2)
The second proposal involves assessing improvements in the classrooms through the installation of double-glazed windows, in addition to addressing infiltration control. This type of glazing is highly efficient in significantly reducing energy losses. The proposal includes controlling infiltrations and adding two 6 mm-thick glasses separated by a hermetically sealed 12 mm air gap. This window configuration has a thermal transmittance, also known as the U-value, of 2.9 W/m2·K, compared to 5.9 for single-pane glass [7].
3.3.3. Improvement 3 (P3)
Additionally, the concept of windows with triple hermetic glass or double glazing was considered, although it is generally employed in locations that require higher-than-usual insulation. The intention here was to compare temperature variations between the two previous proposals. This type of window offers exceptional thermal insulation, and as in the previous proposals, controlling infiltrations is recommended. The three 4 mm-thick glasses create two hermetically sealed 12 mm air gaps, with a U-value of 0.80 W/m2·K [26]. With this insulating capacity, double-glazed glass achieves better insulation than even the envelope material.
3.4. Results of Simulation of Improvement Proposal
Table 3 summarizes the current average temperature values and the values obtained with the application of the three previously described proposals compared to the base scenario. To do this, the average temperature was calculated during the hourly simulation on July 6, a representative cold day in Cuenca. Classrooms E2-203 and E3-201 show a larger deviation from the comfort temperature, while classroom E1-102 has an average temperature closer to the comfort level. The simulated infiltration levels assume a reduction of half the current infiltration rates, which means that classrooms E1-102 and E2-203 go from 15 AC/h to 7.5 AC/h, and classroom E3-201 goes from 12 AC/h to 6 AC/h. Under these assumptions, we expect to improve by reducing thermal losses, while also achieving ventilation rates that exceed 4 AC/h in line with the recommendations from the previously described reference studies.
Table 3.
Internal average temperatures.
For classroom E1-102, the hourly thermal analysis showed that, regarding the average temperature (as seen in Table 3), with the application of all three proposals, the temperature reaches and exceeds the comfort range recommended by the NEC-2018 and the comfort levels accepted by the local population. However, in the hourly analysis (as shown in Figure 11), between 7:00 a.m. and 9:00 a.m., the comfort conditions are almost reached, with proposal 1 achieving a temperature of 17.33 °C at 7:00 a.m., placing it within the range accepted by 90% of the local population. Reducing infiltrations only increases the temperature by 1 °C during the most unfavorable hour. After that, with double-glazed windows, the increase is less than 0.5 °C additionally, while single-glazed windows represent an intermediate condition. This demonstrates that the initial strategy of reducing infiltrations is far more significant than working on the glazing.
Figure 11.
Operative temperature. Classroom E1-102.
For classroom E2-203 (Figure 12), the results are similar to classroom E1-102. Regarding the average temperature, by reducing infiltrations by half, you would only achieve a 1.5 °C temperature increase. In the hourly analysis with the classroom occupied, the comfort range is nearly reached by 9 a.m. with all three improvements. However, this classroom always appeared colder, with the temperature increasing from 14.5 °C to 15.8 °C at 7 a.m. With double-glazed windows, it reaches 16.7 °C, representing an improvement but one that is not as significant as reducing infiltration.
Figure 12.
Operative Temperature—classroom E2-203.
Finally, in classroom E3-201 (Figure 13), the average temperature of all three proposals falls within the comfort standards accepted by 90% of the population in Cuenca. However, the variation in results between the three proposals is not significant. It was assumed that air infiltrations through the windows are not very high at present, and the low temperatures in this classroom are mainly due to the building’s construction and floors. Nonetheless, there is an improvement in temperature from 7:00 a.m. to 9:00 a.m., increasing by 1.5 °C. After 9:00 a.m., the temperature reaches the values recommended by the Ecuadorian construction standard.
Figure 13.
Operative Temperature—classroom E3-201.
4. Discussion and Conclusions
This work analyzes thermal comfort in an equatorial climate in the Andean valley at an intermediate altitude, a particular climatic situation in the world with limited study, despite the existence of several cities, including capital cities, under climatic conditions similar to Cuenca, Ecuador. The study was conducted using simulations in DesignBuilder v7, through calibrating simulation models that had been built from internal temperature jointly with climate conditions data that had been taken at the moment. With this information, it was possible to establish an approximation of the existing infiltration rate, which is a parameter difficult to measure on-site without complex equipment availability. So, a methodological process has been proposed. A climatic data file (.epw) was constructed using an existing weather station located on the building’s roof taking real climate information, which provides precise climate data for simulation processes.
Additionally, the classrooms were reconstructed with the actual materials present in reality. From this, test simulations were modelled and when there were coincidences of the simulation with real temperature measures it was possible to define the infiltration levels. So, it was possible to reveal that the approximate infiltration rate is 15 AC/h for classrooms E1-102 and E2-203, and 12 AC/h for the newer classroom E3-201, on average.
In Cuenca, as a representative location of the Andean equatorial valley, there are no usual overheating issues indoors, except internal spaces with extensive passive solar gain in the afternoon hours, with direct irradiation incidence from the west especially. In the case of the classrooms, large windows for diffuse irradiation capture are recommended, and the classrooms analyzed do have this adequate characteristic without direct solar incidence, which implies inappropriate glare for classrooms. So, overheating is not anticipated. This is confirmed both through on-site measurements and simulations. However, relying solely on diffused irradiance for solar gain leads to lowering the internal temperature, without solar thermal gains. Therefore, the magnitude of indoor discomfort is analyzed, considering a cold day recorded in July, when the lowest temperatures are typically observed. Simulations and data collected from the classrooms reveal that temperatures are below the appropriate levels during the early hours of the academic day, between 7:00 a.m. and 9:00 a.m. Subsequently, the maximum temperature is reached around 1:00 p.m., and from 10:00 a.m. onwards, appropriate comfort levels are achieved due to internal heat gains and the natural increase in external air temperature.
As mentioned in background research, in developed countries like Spain and China [8,9] it has been determined that air leakage on external envelope surfaces on buildings implies the main issue for increasing energy demands as a consequence of heating or cooling. In tropical equatorial cities also, it has been determined that infiltration rate should be taken into account to reduce air conditioning demands as low as 0,06 m3/s as detected in research developed in Malawi, Africa [27]. It compares the results obtained in other South American countries where there are higher thermal requirements as a consequence of their latitude like Uruguay and Chile [22], where it was defined for brick buildings that the infiltration rate is a little over 11 AC/h. But in cities located between 2000 masl and 2800 masl close to the equatorial line, there are no heating and cooling systems integrated into buildings since normally the thermal comfort levels are easily reached with solar passive strategies and internal gains. But in educational buildings where there are no internal gains at night, and solar passive capture is not recommended, there are often some thermal issues, especially early in the morning. So, it was observed that temperature falls more than 4 °C below the recommended comfort temperature in the research case study. Similar research in this climate condition has not been performed yet as far as we could find in the literature, and research performed in other climate conditions normally requires specialized equipment for measuring the infiltration rate, equipment that is not available locally. As a consequence of the complex of determining the real infiltration rate under the evident low quality of the envelope, especially on the carpentry elements, as shown in Figure 7, a methodological process was proposed for determining an approximation of the infiltration rate, knowing the real on-site climate conditions and measuring the internal temperature. With this information, we could figure it out through DesignBuilder v7 software. The infiltration rate determined is about 15 AC/h in the two oldest buildings and 12 AC/h rate in the newer one, with these parameters a coincidence of the simulation and the real internal temperatures observed.
After identifying evident issues in the building envelope, calibrated models were used to propose strategies to enhance comfort conditions, particularly in the window frames sealing and materiality. The window frames are key components for limiting interior cooling due to their materiality and construction-related sealing deficiencies. By reducing air exchanges by 50%, the temperatures in the classrooms increased on average by 1.07 °C to 1.61 °C. With single-pane windows featuring an air gap and reduced infiltration, temperatures increased on average by 1.18 °C to 1.67 °C. Using double-glazed windows, temperatures increased on average by 1.37 °C to 2.19 °C. These results indicate that the most suitable initial strategy is to reduce infiltrations. Subsequently, increasing the insulating capacity of the glazing, while contributing to an increase in average temperature, does so to a lesser extent compared to working on reducing infiltrations.
It is important to note that the proposed solutions do not fully comply with the international standard ISO 7730 in all periods. This standard specifies optimal temperatures of 24.5 °C for summer and 22 °C for winter, with ranges of ±1.5 °C and ±2.0 °C. In other words, temperatures should reach at least 20 °C. However, local thermal preferences, in concordance with adaptative thermal comfort defined in previous research, indicate that the achieved temperatures according to the simulations could fall pretty close to expected thermal comfort (17 °C) just by applying air-leakage control by reducing the infiltration rate, aligning with the majority’s comfort expectations.
As expressed, in the background research, the methodology proposed became a consequence of the significant limitation of equipment. Also, similar studies of the levels of air infiltration in buildings were not found under these particular climate conditions. However, calibrating the average temperature levels allowed for the determination of possible infiltration levels that are consistent with those expected from other contexts where there are well-defined infiltration rates. Even though there were limitations, it was possible to define that working on first reducing air leaking is essential to improving the overnight cooling consequence in this building typology with no internal temperature gains over the night periods. But, even if it was determined with simulation models, the optimum for further research would undoubtedly be to decipher the values of envelope infiltration through adequate measurement equipment available in other contexts, such as those presented in background studies.
Author Contributions
Conceptualisation, E.Z.-L., J.P.-C. and A.O.-C.; Data curation, J.P.-C.; Formal analysis, E.Z.-L.; Funding acquisition, E.Z.-L., A.O.-C. and E.A.B.-E.; Investigation, J.P.-C. and M.A.-F.; Methodology, E.Z.-L. and J.P.-C.; Project administration,. E.Z.-L. and M.A.-F.; Software, J.P.-C. and M.A.-F.; Validation, E.A.B.-E. and A.O.-C.; Visualization, J.P.-C.; Writing—original draft, J.P.-C. and E.Z.-L.; Writing—review & editing, M.A.-F. and E.A.B.-E. All authors have read and agreed to the published version of the manuscript.
Funding
This work received financial support from the Research Vicerectorate of Cuenca University.
Data Availability Statement
Data results is contained within the article. Software data could be provided if requested.
Acknowledgments
Thanks are extended to the Research Vice-Rectorate of the Universidad de Cuenca and this work is part of the Research and Innovation Project “Modelado y mediciones de condiciones ambientales interiores e integración de energía solar, para alcanzar el Estándar Net-Zero en Edificaciones FAUC”.
Conflicts of Interest
The authors declare no conflict of interest.
Appendix A
Figure A1.
Classroom E1 102 and thermal sensor location.
Figure A1.
Classroom E1 102 and thermal sensor location.

Figure A2.
Classroom E2 203 and thermal sensor location.
Figure A2.
Classroom E2 203 and thermal sensor location.

Figure A3.
Classroom E3-201 and thermal sensor location.
Figure A3.
Classroom E3-201 and thermal sensor location.

Figure A4.
Classroom E1-102: material and occupancy settings. In blue is presented the hourly period occupancy in % from the full occupancy and in red the expected occupancy or useful time.
Figure A4.
Classroom E1-102: material and occupancy settings. In blue is presented the hourly period occupancy in % from the full occupancy and in red the expected occupancy or useful time.

Figure A5.
Classroom E2-203: material and occupancy settings. In blue is presented the hourly period occupancy in % from the full occupancy and in red the expected occupancy or useful time.
Figure A5.
Classroom E2-203: material and occupancy settings. In blue is presented the hourly period occupancy in % from the full occupancy and in red the expected occupancy or useful time.

Figure A6.
Classroom E3-201: material and occupancy settings. In blue is presented the hourly period occupancy in % from the full occupancy and in red the expected occupancy or useful time.
Figure A6.
Classroom E3-201: material and occupancy settings. In blue is presented the hourly period occupancy in % from the full occupancy and in red the expected occupancy or useful time.

References
- Shamsuddin, S.; Bahauddin, H.; Aziz, N.A. Relationship between the Outdoor Physical Environment and Student’s Social Behaviour in Urban Secondary School. Procedia Soc. Behav. Sci. 2012, 50, 148–160. [Google Scholar] [CrossRef]
- Del Campo, V.; Mendivil, A. Calidad Del Aire Interior En Los Centros de Educación Infantil de País Vasco; El Instalador: Córdoba, Argentina, 2006. [Google Scholar]
- NEC-HS-EE; Eficiencia Energética En Edificaciones Residenciales. MIDUVI: Quito, Ecuador, 2018; p. 40.
- Beck, H.E.; Zimmermann, N.E.; McVicar, T.R.; Vergopolan, N.; Berg, A.; Wood, E.F. Present and Future Köppen-Geiger Climate Classification Maps at 1-Km Resolution. Sci. Data 2018, 5, 180214. [Google Scholar] [CrossRef] [PubMed]
- Zalamea-león, E.; Barragán-escandón, A. Arquitectura, Sol y Energía, 1st ed.; Ucuenca Press: Cuenca, Ecuador, 2021; ISBN 9789978144626. [Google Scholar]
- Cordero, X.; Guillén, V. Diseño y Validación de Vivienda Bioclimática Para La Ciudad de Cuenca; Universidad de Cuenca: Cuenca, Ecuador, 2013. [Google Scholar]
- Quesada, F.; Bustillos, D. Indoor Environmental Quality of Urban Residential Buildings in Cuenca-Ecuador: Comfort Standard. Buildings 2018, 8, 90. [Google Scholar] [CrossRef]
- Feijó-Muñoz, J.; Pardal, C.; Echarri, V.; Fernández-Agüera, J.; Assiego de Larriva, R.; Montesdeoca Calderín, M.; Poza-Casado, I.; Padilla-Marcos, M.Á.; Meiss, A. Energy Impact of the Air Infiltration in Residential Buildings in the Mediterranean Area of Spain and the Canary Islands. Energy Build. 2019, 188–189, 226–238. [Google Scholar] [CrossRef]
- Liu, X.; Zhang, T.; Liu, X.; Li, L.; Lin, L.; Jiang, Y. Energy Saving Potential for Space Heating in Chinese Airport Terminals: The Impact of Air Infiltration. Energy 2021, 215, 119175. [Google Scholar] [CrossRef]
- Mathur, U.; Damle, R. Impact of Air Infiltration Rate on the Thermal Transmittance Value of Building Envelope. J. Build. Eng. 2021, 40, 102302. [Google Scholar] [CrossRef]
- Trebilcock, M.; Bobadilla, A.; Diaz, M.; Figueroa, R.; Muñoz, C. Manual de Hermeticidad al Aire de Edificaciones; University of the Bío-Bío: Concepción, Chile, 2013. [Google Scholar]
- Muñoz, J.M.R.; Sevrini, A.; Gil, G.; Bove, I. Vista de Estudio Experimental de La Permeabilidad al Aire de Edificios En Uruguay. ENERLAC. Rev. Energía Latinoam. Caribe 2020, 4, 76–91. [Google Scholar]
- Brito-Peña, R.; Villa-Enderica, D.; Zalamea-León, E. Comparative Analysis of Thermal of a Single-Family House in LSF and Brick Masonry. Ingenius 2022, 28, 100–124. [Google Scholar] [CrossRef]
- ISO 7730:2007; Ergonomics of the Thermal Environment. ISO: Geneva, Switzerland, 2005; Volume 2005, p. 42.
- INEN ISO 7730; Ergonomía Del Ambiente Térmico-Analítica. ISO: Geneva, Switzerland, 2005.
- DesignBuilder Software Ltd. Designbuilder. Available online: https://www.designbuilder.co.uk (accessed on 8 March 2021).
- Filippín, C.; Sipowicz, E.; Flores Larsen, S. Monitoreo Energético Experimental de Vivienda Unifamiliar Compacta En Un Clima Templado Frio de Argentina Experimental Energy Monitoring of Compact Dwellings in a Cold Temperate Climate in Argentina. Ambiente Construído 2013, 13, 249–267. [Google Scholar] [CrossRef]
- Trebilcock, K.; Soto Muñoz, J.; Figueroa San Martín, R.; Piderit-Moreno, B. Metodología Para El Diseño de Edificios Educacionales Confortables y Resilientes. AUS 2016, 20, 70–76. [Google Scholar] [CrossRef]
- Ré, M.G.; Filippín, C.; Blasco, I. Niveles de Confort Térmico En Aulas de Dos Edificios Escolares Del Área Metropolitana de San Juan. Av. Energías Renov. Medio Ambiente 2017, 5, 97–108. [Google Scholar]
- López-Pérez, L.A.; Flores-Prieto, J.J. Adaptive Thermal Comfort Approach to Save Energy in Tropical Climate Educational Building by Artificial Intelligence. Energy 2023, 263, 125706. [Google Scholar] [CrossRef]
- Irulegi, O.; Ruiz-Pardo, A.; Serra, A.; Salmerón, J.M.; Vega, R. Retrofit Strategies towards Net Zero Energy Educational Buildings: A Case Study at the University of the Basque Country. Energy Build. 2017, 144, 387–400. [Google Scholar] [CrossRef]
- Rodríguez-Muñoz, J.M.; Sevrini, A.; Gil, G.; Bove-Vanzulli, I.C. Experimental Study of the Air Permeability of Buildings in Uruguay. Rev. Energía Latinoam. Caribe 2020, IV, 76–91. [Google Scholar]
- Delta-T devices WS-GP2 Advanced Automatic Weather Station System. Available online: https://www.delta-t.co.uk/product/ws-gp2/ (accessed on 3 March 2019).
- Op ‘t Veld, P.; Van der Aa, A. Driving Forces of Energy-Related Behaviour in Residential Buildings. In Proceedings of the World Sustainable Building, WSB2014, Barcelona, Spain, 28–30 October 2014; GCNe: Barcelona, Spain, 2014; pp. 24–33. [Google Scholar]
- Universidad del Bío-Bío. Manual de Hermeticidad al Aire de Edificaciones; Universidad del Bío-Bío: Concepción, Chile, 2014; ISBN 9789569275272. [Google Scholar]
- Rehau Unlimited Polymer Solutions Ventanas SYNEGO. Available online: https://www.rehau.com/downloads/285620/folleto-ventanas-rehau.pdf (accessed on 22 October 2023).
- Kalua, A. Envelope Thermal Design Optimization for Urban Residential Buildings in Malawi. Buildings 2016, 6, 13. [Google Scholar] [CrossRef]
Disclaimer/Publisher’s Note: The statements, opinions and data contained in all publications are solely those of the individual author(s) and contributor(s) and not of MDPI and/or the editor(s). MDPI and/or the editor(s) disclaim responsibility for any injury to people or property resulting from any ideas, methods, instructions or products referred to in the content. |
© 2023 by the authors. Licensee MDPI, Basel, Switzerland. This article is an open access article distributed under the terms and conditions of the Creative Commons Attribution (CC BY) license (https://creativecommons.org/licenses/by/4.0/).












