Dynamic Characterisation of a Heritage Structure with Limited Accessibility Using Ambient Vibrations
Abstract
1. Introduction
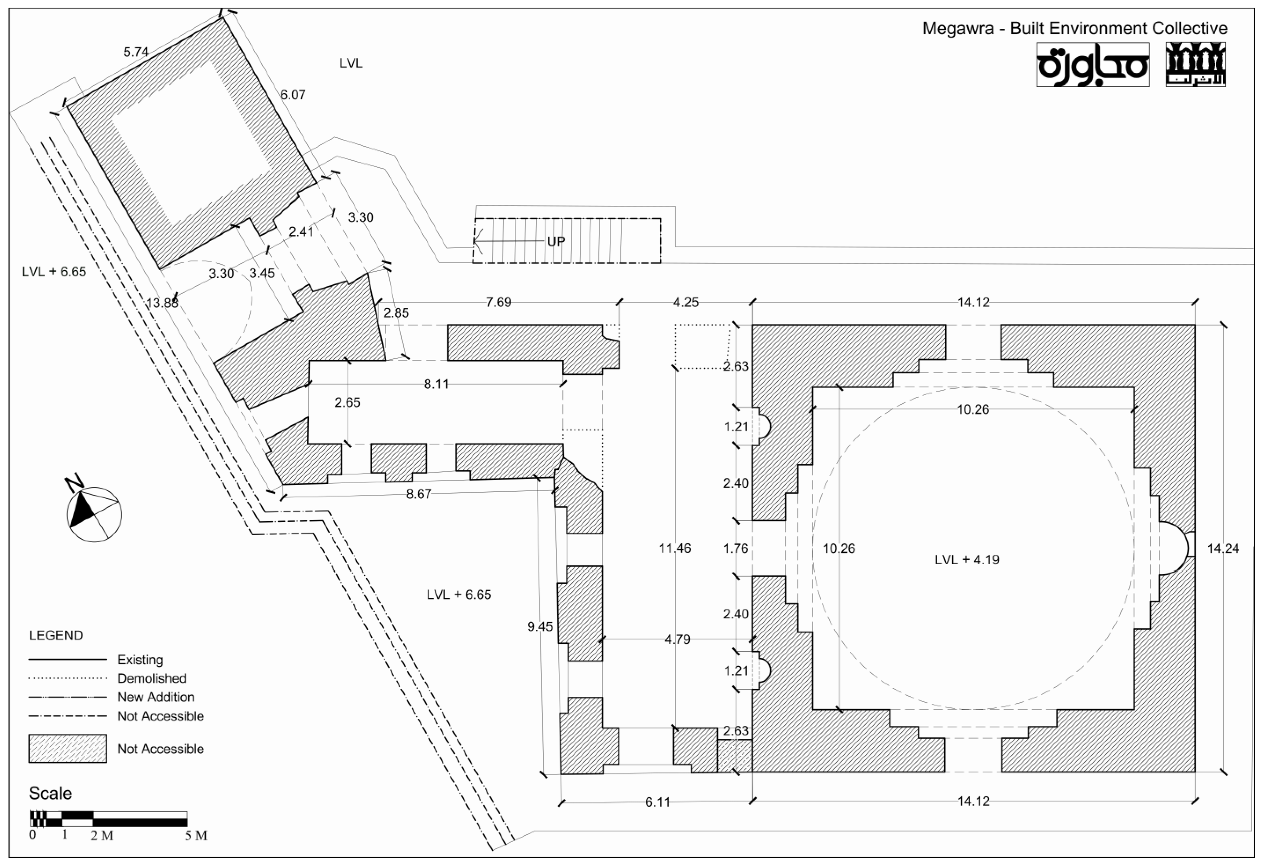
2. Structural Configuration





3. Dynamic Investigation Tests
3.1. Signal Processing Approaches
3.2. Testing Arrangements
3.3. Power Spectral Density Analysis
4. Dynamic Characterisation
4.1. Numerical Modelling
4.1.1. Modelling Procedures
4.1.2. Modal Analysis
4.1.3. Evaluation Procedure
4.2. Signal Processing
4.2.1. Natural Frequencies
4.2.2. Frequencies and Damping Ratios
5. Conclusions
Author Contributions
Funding
Data Availability Statement
Acknowledgments
Conflicts of Interest
References
- Stepinac, M.; Gašparović, M. A Review of Emerging Technologies for an Assessment of Safety and Seismic Vulnerability and Damage Detection of Existing Masonry Structures. Appl. Sci. 2020, 10, 5060. [Google Scholar] [CrossRef]
- Moretić, A.; Stepinac, M.; Lourenço, P.B. Seismic upgrading of cultural heritage—A case study using an educational building in Croatia from the historicism style. Case Stud. Constr. Mater. 2022, 17, e01183. [Google Scholar] [CrossRef]
- Boscato, G.; Fragonara, L.Z.; Cecchi, A.; Reccia, E.; Baraldi, D. Structural Health Monitoring through Vibration-Based Approaches. Shock. Vib. 2019, 2019, 2380616. [Google Scholar] [CrossRef]
- Ceravolo, R.; Pistone, G.; Fragonara, L.Z.; Massetto, S.; Abbiati, G. Vibration-Based Monitoring and Diagnosis of Cultural Heritage: A Methodological Discussion in Three Examples. Int. J. Arch. Herit. 2014, 10, 375–395. [Google Scholar] [CrossRef]
- Lorenzoni, F.; Casarin, F.; Modena, C.; Caldon, M.; Islami, K.; da Porto, F. Structural health monitoring of the Roman Arena of Verona, Italy. J. Civ. Struct. Heal. Monit. 2013, 3, 227–246. [Google Scholar] [CrossRef]
- Masciotta, M.-G.; Ramos, L.F.; Lourenço, P.B. The importance of structural monitoring as a diagnosis and control tool in the restoration process of heritage structures: A case study in Portugal. J. Cult. Herit. 2017, 27, 36–47. [Google Scholar] [CrossRef]
- Chiorino, M.A.; Ceravolo, R.; Spadafor, A.; Fragonara, L.Z.; Abbiati, G. Dynamic Characterization of Complex Masonry Structures: The Sanctuary of Vicoforte. Int. J. Arch. Herit. 2011, 5, 296–314. [Google Scholar] [CrossRef]
- Pieraccini, M.; Dei, D.; Betti, M.; Bartoli, G.; Tucci, G.; Guardini, N. Dynamic identification of historic masonry towers through an expeditious and no-contact approach: Application to the “Torre del Mangia” in Siena (Italy). J. Cult. Herit. 2014, 15, 275–282. [Google Scholar] [CrossRef]
- Russo, S. Integrated assessment of monumental structures through ambient vibrations and ND tests: The case of Rialto Bridge. J. Cult. Herit. 2016, 19, 402–414. [Google Scholar] [CrossRef]
- Ivorra, S.; Pallarés, F.J. Dynamic investigations on a masonry bell tower. Eng. Struct. 2006, 28, 660–667. [Google Scholar] [CrossRef]
- Saisi, A.; Gentile, C. Post-earthquake diagnostic investigation of a historic masonry tower. J. Cult. Herit. 2015, 16, 602–609. [Google Scholar] [CrossRef]
- Ramos, L.; De Roeck, G.; Lourenco, P.; Campos-Costa, A. Damage identification on arched masonry structures using ambient and random impact vibrations. Eng. Struct. 2010, 32, 146–162. [Google Scholar] [CrossRef]
- Azzara, R.M.; Girardi, M.; Iafolla, V.; Lucchesi, D.M.; Padovani, C.; Pellegrini, D. Ambient Vibrations of Age-old Masonry Towers: Results of Long-term Dynamic Monitoring in the Historic Centre of Lucca. Int. J. Arch. Herit. 2019, 15, 5–21. [Google Scholar] [CrossRef]
- Diz-Mellado, E.; Mascort-Albea, E.J.; Romero-Hernández, R.; Galán-Marín, C.; Rivera-Gómez, C.; Ruiz-Jaramillo, J.; Jaramillo-Morilla, A. Non-destructive testing and Finite Element Method integrated procedure for heritage diagnosis: The Seville Cathedral case study. J. Build. Eng. 2021, 37, 102134. [Google Scholar] [CrossRef]
- Funari, M.F.; Silva, L.C.; Mousavian, E.; Lourenço, P.B. Real-time Structural Stability of Domes through Limit Analysis: Application to St. Peter’s Dome. Int. J. Arch. Herit. 2021, 1–23. [Google Scholar] [CrossRef]
- Hemeda, S. 3D finite element coupled analysis model for geotechnical and complex structural problems of historic masonry structures: Conservation of Abu Serga church, Cairo, Egypt. Heritage Sci. 2019, 7, 6. [Google Scholar] [CrossRef]
- Ewins, D.J. Modal Testing: Theory and Practice; Wiley: Hoboken, NJ, USA, 1984. [Google Scholar]
- Bartoli, G.; Betti, M.; Giordano, S. In situ static and dynamic investigations on the “Torre Grossa” masonry tower. Eng. Struct. 2013, 52, 718–733. [Google Scholar] [CrossRef]
- Magalhães, F.; Cunha, Á. Explaining operational modal analysis with data from an arch bridge. Mech. Syst. Signal Process. 2011, 25, 1431–1450. [Google Scholar] [CrossRef]
- Zini, G.; Betti, M.; Bartoli, G.; Chiostrini, S. Frequency vs time domain identification of heritage structures. Procedia Struct. Integr. 2018, 11, 460–469. [Google Scholar] [CrossRef]
- Elyamani, A.; Roca Fabregat, P. A review on the study of historical structures using integrated investigation activities for seismic safety assessment. Part I: Dynamic investigation. Sci. Cult. 2018, 4, 1–27. [Google Scholar] [CrossRef]
- Boscato, G.; Reccia, E.; Cecchi, A. Non-destructive experimentation: Dynamic identification of multi-leaf masonry walls damaged and consolidated. Compos. Part B Eng. 2018, 133, 145–165. [Google Scholar] [CrossRef]
- Fragonara, L.Z.; Boscato, G.; Ceravolo, R.; Russo, S.; Ientile, S.; Pecorelli, M.L.; Quattrone, A. Dynamic investigation on the Mirandola bell tower in post-earthquake scenarios. Bull. Earthq. Eng. 2016, 15, 313–337. [Google Scholar] [CrossRef]
- De Angelis, A.; Lourenço, P.B.; Sica, S.; Pecce, M.R. Influence of the ground on the structural identification of a bell-tower by ambient vibration testing. Soil Dyn. Earthq. Eng. 2022, 155, 107102. [Google Scholar] [CrossRef]
- Russo, S.; Spoldi, E. Damage assessment of Nepal heritage through ambient vibration analysis and visual inspection. Struct. Control. Health Monit. 2020, 27, e2493. [Google Scholar] [CrossRef]
- Lithgow, R.; Whittaker, S.; Bower, T.; Corda, K.; Woolley, E.; Higgitt, C.; Vlachou-Mogire, C.; Babington, C. Vibration Monitoring of Daniel Maclise’s Wall Painting Trafalgar. Stud. Conserv. 2020, 65, P180–P186. [Google Scholar] [CrossRef]
- Gentile, C.; Ruccolo, A.; Saisi, A. Continuous Dynamic Monitoring to Enhance the Knowledge of a Historic Bell-Tower. Int. J. Arch. Herit. 2019, 13, 992–1004. [Google Scholar] [CrossRef]
- Sun, H.; Büyüköztürk, O. The MIT Green Building benchmark problem for structural health monitoring of tall buildings. Struct. Control. Heal. Monit. 2017, 25, e2115. [Google Scholar] [CrossRef]
- Aktaş, Y.D.; Turer, A. Seismic evaluation and strengthening of nemrut monuments. J. Cult. Herit. 2015, 16, 381–385. [Google Scholar] [CrossRef]
- Martínez-Soto, F.; Ávila, F.; Puertas, E.; Gallego, R. Spectral analysis of surface waves for non-destructive evaluation of historic masonry buildings. J. Cult. Herit. 2021, 52, 31–37. [Google Scholar] [CrossRef]
- UK Research and Innovation: Interdisciplinary Approach for the Management and Conservation of UNESCO World Heritage Site of Historic Cairo. Application to Al-Ashraf Street. 2019. Available online: https://gtr.ukri.org/projects?ref=AH%2FR00787X%2F1 (accessed on 7 July 2019).
- Elghazouli, A.Y.; Bompa, D.V.; Mourad, S.A.; Elyamani, A. In-plane lateral cyclic behaviour of lime-mortar and clay-brick masonry walls in dry and wet conditions. Bull. Earthq. Eng. 2021, 19, 5525–5563. [Google Scholar] [CrossRef]
- Bakkar, A.R. Numerical Modelling and System Identification of a Historic Masonry Structure in Historic Cairo Using Dynamic Investigation Tests. Master’s Thesis, Cairo University, Cairo, Egypt, 2021. [Google Scholar]
- Elghazouli, A.Y.; Bompa, D.V.; Mourad, S.A.; Elyamani, A. Structural behaviour of clay brick lime mortar masonry walls under lateral cyclic loading in dry and wet conditions. In Proceedings of the International Conference on Protection of Historical Constructions, Athens, Greece, 25–27 October 2021; Springer: Cham, Switzerland, 2021; pp. 164–174. [Google Scholar] [CrossRef]
- Williams, C. Islamic Monuments in Cairo: The Practical Guide; American University in Cairo Press: Cairo, Egypt, 2008. [Google Scholar]
- Elghazouli, A.Y.; Bompa, D.V.; Mourad, S.A.; Elyamani, A. Seismic Performance of Heritage Clay Brick and Lime Mortar Masonry Structures. In European Conference on Earthquake Engineering and Seismology; Springer: Cham, Switzerland, 2022; pp. 225–244. [Google Scholar] [CrossRef]
- Sonbol, A. Beyond the Exotic: Women’s Histories in Islamic Societies; Syracuse University Press: Syracuse, NY, USA, 2005. [Google Scholar]
- Megawra-BEC (Megawra Built Environment Collective). The Dome of Fatima Khatun; Megawara-BEC: Cairo, Egypt, 2017. [Google Scholar]
- Megawra-BEC (Megawra Built Environment Collective). Al-Khalifa Updated Maps; Megawara-BEC: Cairo, Egypt, 2017. [Google Scholar]
- Buttkus, B. Spectral Analysis and Filter Theory in Applied Geophysics; Springer Science & Business Media: Berlin/Heidelberg, Germany, 2012. [Google Scholar] [CrossRef]
- Welch, P.D. The use of fast Fourier transform for the estimation of power spectra: A method based on time averaging over short, modified periodograms. IEEE Trans. Audio Electroacoust. 1967, 15, 70–73. [Google Scholar] [CrossRef]
- Zaknich, A. Principles of Adaptive Filters and Self-Learning Systems; Springer International Publishing: Berlin/Heidelberg, Germany, 2005. [Google Scholar]
- MATLAB. R2015a; The MathWorks, Inc.: Natick, MA, USA, 2015. [Google Scholar]
- Understanding FFTs and Windowing. 2019. Available online: https://download.ni.com/evaluation/pxi/Understanding%20FFTs%20and%20Windowing.pdf (accessed on 8 January 2023).
- Farshchin, M. Frequency Domain Decomposition (FDD). MATLAB Central File Exchange. 2020. Available online: https://www.mathworks.com/matlabcentral/fileexchange/50988-frequency-domain-decomposition-fdd. (accessed on 29 November 2020).
- Cheynet, E. Automated Frequency Domain Decomposition (AFDD). Zenodo. 2020. Available online: https://zenodo.org/record/4277622 (accessed on 29 November 2020).
- Cheynet, E. Mode Shapes Extraction by Time Domain Decomposition (TDD). GitHub. 2020. Available online: https://github.com/ECheynet/TDD/releases/tag/v2.5 (accessed on 29 November 2020).
- ARTeMIS Modal. 6.1; Structural Vibration Solutions: Aalborg, Denmark, 2019.
- MACEC. 3.3; Structural Mechanics Section of KU Leuven: Leuven, Belgium, 2014.
- EpiSensor Model FBA ES-T; Kinemetrics: Pasadena, CA, USA, 2022.
- Ozcelik, O.; Misir, I.S.; Yucel, U.; Durmazgezer, E.; Yucel, G.; Amaddeo, C. Model updating of Masonry courtyard walls of the historical Isabey mosque using ambient vibration measurements. J. Civ. Struct. Health Monit. 2022, 12, 1157–1172. [Google Scholar] [CrossRef]
- Formisano, A.; DI Lorenzo, G.; Krstevska, L.; Landolfo, R. Fem Model Calibration of Experimental Environmental Vibration Tests on Two Churches Hit by L’Aquila Earthquake. Int. J. Arch. Herit. 2020, 15, 113–131. [Google Scholar] [CrossRef]
- Guo, Y.T.; Bompa, D.V.; Elghazouli, A.Y. Nonlinear numerical assessments for the in-plane response of historic masonry walls. Eng. Struct. 2022, 268, 114734. [Google Scholar] [CrossRef]
- Mordanova, A.; De Felice, G. Seismic Assessment of Archaeological Heritage Using Discrete Element Method. Int. J. Arch. Herit. 2018, 14, 345–357. [Google Scholar] [CrossRef]
- ANSYS Mechanical APDL. Release 15.0; Ansys, Inc.: Canonsburg, PA, USA, 2015. [Google Scholar]
- Ereiz, S.; Duvnjak, I.; Jiménez-Alonso, J.F. Review of finite element model updating methods for structural applications. Structures 2022, 41, 684–723. [Google Scholar] [CrossRef]















| Property | Limestone | Old Brick | New Brick | Timber |
|---|---|---|---|---|
| Specific gravity | 2.034 | 1.1 | 1.73 | 0.54 |
| Compressive strength | 5.5 | 3.5 | 8.5 | - |
| Elastic modulus E = 300 fm | 1650 | 1050 | 2550 | 2450 |
| Poisson’s ratio | 0.25 | 0.35 | ||
| Mode ID | Frequency |
|---|---|
| 1 | 2.3892 |
| 2 | 2.3934 |
| 3 | 3.0935 |
| 4 | 4.6194 |
| 5 | 5.7178 |
| 6 | 9.3846 |
| 7 | 9.7271 |
| 8 | 10.593 |
| Mode ID | Registered Channels | Model | FDD | TDD | FFT |
|---|---|---|---|---|---|
| X | Original | 1 | 0.966 | 0.976 | |
| 10% Noise (Model 1) | 0.998 | 0.961 | 0.621 | ||
| 10% Noise (Model 2) | 0.995 | 0.995 | 0.946 | ||
| X & Y | Original | 1 | 0.999 | 1 | |
| 10% Noise (Model 1) | 0.922 | 0.997 | 0.746 | ||
| 10% oise (Model 2) | 0.997 | 0.999 | 0.354 | ||
| All | Original | 1 | 1 | 0.999 | |
| 10% Noise (Model 1) | 0.999 | 1 | 0.925 | ||
| 10% Noise (Model 2) | 0.998 | 1 | 0.605 |
| Mode Name | Experimental Frequency | Damping Ratio | ||
|---|---|---|---|---|
| Selected | Min. | Max. | ||
| Translational X | 2.686 | 2.60 | 2.75 | 4.8% |
| Translational Y | 3.6 | 3.3 | 3.9 | 5.0% |
| Torsion | 9.65 | 8.5 | 10 | 4.6% |
Disclaimer/Publisher’s Note: The statements, opinions and data contained in all publications are solely those of the individual author(s) and contributor(s) and not of MDPI and/or the editor(s). MDPI and/or the editor(s) disclaim responsibility for any injury to people or property resulting from any ideas, methods, instructions or products referred to in the content. |
© 2023 by the authors. Licensee MDPI, Basel, Switzerland. This article is an open access article distributed under the terms and conditions of the Creative Commons Attribution (CC BY) license (https://creativecommons.org/licenses/by/4.0/).
Share and Cite
Bakkar, A.R.; Elyamani, A.; El-Attar, A.G.; Bompa, D.V.; Elghazouli, A.Y.; Mourad, S.A. Dynamic Characterisation of a Heritage Structure with Limited Accessibility Using Ambient Vibrations. Buildings 2023, 13, 192. https://doi.org/10.3390/buildings13010192
Bakkar AR, Elyamani A, El-Attar AG, Bompa DV, Elghazouli AY, Mourad SA. Dynamic Characterisation of a Heritage Structure with Limited Accessibility Using Ambient Vibrations. Buildings. 2023; 13(1):192. https://doi.org/10.3390/buildings13010192
Chicago/Turabian StyleBakkar, Ahmad R., Ahmed Elyamani, Adel G. El-Attar, Dan V. Bompa, Ahmed Y. Elghazouli, and Sherif A. Mourad. 2023. "Dynamic Characterisation of a Heritage Structure with Limited Accessibility Using Ambient Vibrations" Buildings 13, no. 1: 192. https://doi.org/10.3390/buildings13010192
APA StyleBakkar, A. R., Elyamani, A., El-Attar, A. G., Bompa, D. V., Elghazouli, A. Y., & Mourad, S. A. (2023). Dynamic Characterisation of a Heritage Structure with Limited Accessibility Using Ambient Vibrations. Buildings, 13(1), 192. https://doi.org/10.3390/buildings13010192

