Seismic Design of Bolted Connections in Steel Structures—A Critical Assessment of Practice and Research
Abstract
1. Introduction
- -
- Offer an overlook about seismic design philosophy, regulations, practice, and research problems;
- -
- Systematically assess recent relevant research on seismic design of bolted connections;
- -
- Critically analyse the state of current research, discuss how recent advances can be employed under current and forthcoming design standards and manufacturing capabilities, as well as assess prospective research needs.
2. Methods
3. Practical Seismic Design of Bolted Connections
3.1. Design Philosophy
3.2. Current Standards
3.3. Design Rules and Procedures



| Clauses (1) | Step | References |
|---|---|---|
| A. Dissipative connections | ||
| 6.5.2 (3), 6.5.5 (6), and 6.5.5 (7) | A.1 Connections’ design should be either supported by experimental testing under cyclic loading or based on existing data (which exactly matches the designed connections). | [2,40,49] |
| 6.6.4 (2) and 6.7.3 (9) | A.2 Global structural analysis shall be non-linear (pushover or time history). This leads to waiving the response spectra approach or using both (response spectra and non-linear) approaches. Since national annexes usually only provide site-specific spectra, this is usually an issue. | [2,40,49] |
| B. Non-dissipative connections | ||
| B.1 General rules | ||
| 6.2 (3), 6.5.2 (4) and 6.5.5 (3) | B.1.1 Connection resistance Rd, as computed to EN 1993-1-8, shall account for an overstrength requirement: Rd ≥ 1.1 γov Rfy Where γov is the overstrength factor, recommended as 1.25 but subjected to national specification Rfy is the plastic resistance of the connected member Hence, Rd ≥ 1.375 Rfy | [2,40,49] |
| 6.5.5 (5) | B.1.2 Bolts shear resistance shall be 20% higher than its plate bearing resistance. Using EN 1993-1-8 nomenclature: Fv,Rd ≥ 1.2 Fb,Rd Where Fv,Rd is the design shear resistance Fb,Rd is the design bearing resistance (This leads to Fv,Rd ≥ 1.65 Rfy, whereas the design of bolts in shear out of the EN 1998 framework is usually shaped by the inequality Fv,Rd ≥ Fv,Ed, with the design shear force Fv,Ed, ≤ Rfy) | [2,39,40,49] |
| Conditions B.1.1 and B.1.2 apply to the design of bolts to shear (Fv,Rd), tension (Ft,Rd) and its interaction as well as the design of plates and members’ parts (flanges, webs, etc.) to bearing (Fb,Rd), punching (Bp,Rd), block tearing (Veff,1,Rd), shear tearing (Veff,2,Rd), gross cross-sectional tension (Npl,Rd), net cross-sectional tension at the perforated sections (Nu,Rd) and local instability in parts subjected to compression or shear. | ||
| 6.2 (9) and 6.5.5 (4) | B.1.3 Only categories B, C and E preloaded connections are allowed. This limits bolts classes to 8.8 and 10.9 and excludes non-preloaded connections. For categories B and C, slip-resistance is defined in EN 1993-1-8 to serviceability and ultimate, respectively. However, these safety checking conditions are defined to service shear force (Fv,Ed.ser) and design shear force (Fv,Ed). Thus, slip-resistance must be checked to service load combinations or ultimate (including seismic) load combinations and not to connected parts resistance, with overstrength, as in EN 1998-1 clauses. Surfaces’ friction classes should be A or B, in compliance with EN1990-2. Thus, friction coefficient to EN1990-2’s annex G shall not be less than 0.40. | [2,39,40,49,50] |
| 6.5.5 (6) | B.1.4 Even non-dissipative connections shall be experimentally validated if located in dissipative zones or zones adjacent to dissipative ones. | [2,40,49] |
| B.2 Rules for axially loaded connections | ||
| B.2.1 Connections with cover-plates with in-plane loading (tension, compression or shear) | ||
| 6.5.4 (1) and EN 1993-1-1 6.2.3 (3) | B.2.1.1 The net cross-sectional tension resistance at the perforated sections (Nu,Rd) shall exceed the gross cross-sectional tension resistance (Npl,Rd), therefore: Nu,Rd > Npl,Rd Hence, 0.9 Anet fu/γM2 > A fy/γM0 With: Anet the net cross-sectional area fu ultimate stress fy yield stress γM0 is a safety partial factor, recommended as 1.00 but subjected to national specification γM2 is a safety partial factor, recommended as 1.25 but subjected to national specification Therefore, 0.72 Anet fu > A fy, or Anet/A > fy/(0.72 fu) | [2,38,40,49,51,52,53] |
| B.2.1.2 The relation between flanges and webs’ cover-plates sectional area should be kept proportional to the relation between flanges and webs sectional area. Moreover, cover-plates should not have very disproportionate sectional areas when connecting the same part (flange, web, etc.) | [2] | |
| EC3-1-8 Table 3.4 | B.2.1.3 Bearing resistance per bolt, Fb,Rd, shall be computed according to EC3-1-8. This capacity should comply with the condition defined in B.1.1, which is much more demanding than simply assuring that resistance exceeds the bearing capacity, as defined in EC3-1-8. As defined in the standard Fb,Rd = k1 ab fu d t/γM2 with the design factors k1 and ab, fu the plate ultimate stress, d the hole diameter and t the plate thickness. Oversized and slotted holes may be used, at the cost of a capacity reduction. | [39,54,55] |
| EC3-1-8 Table 3.4, EC3-1-8 3.6.1 (12), EC3-1-8 3.8 (1) | B.2.1.4 Shear resistance per bolt, Fv,Rd, shall be computed according to EC3-1-8. Conditions in B.1.1 and B.1.2 shall be accounted for and determine the required shear resistance. As defined in the standard Fv,Rd = αv fub A/γM2 with the design factor αv, fub the bolt ultimate stress and A the bolt net area. The following capacity reductions apply:
| [39,54,55] |
| EC3-1-8 Table 3.4, EC3-1-8 Table 3.7, EC3-1-8 3.9.1 (1), EC3-1-8 3.9.1 (2) | B.2.1.5 As expressed in B.1.3 service shear force, Fv,Ed.ser, and design shear force, Fv,Ed, shall comply with the inequality Fv,Ed,Ser < Fs,RD,ser for Class B connections and Fv,Ed < Fs,Rd for class C connections. For this particular case, internal forces can be attained from serviceability and design load combinations, according to the designers’ choice for class B or C connections. Resistance formulae can be found in EC3-1-8, as: Fs,Rd,ser = ks n μ 0.7 fub As/γM3,ser Fs,Rd = ks n μ 0.7 fub As/γM3 Where ks is a design factor of 1.00 for normal holes, μ is the slip factor, n is the number of friction surfaces, As is the bolt area, and γM3 and γM3,ser are safety factors. The latter must be nationally defined, but recommended as 1.25 and 1.10, respectively. | [39,54,55] |
| EC3-1-8 3.10.2 (2), EC3-1-8 3.10.2 (3), | B.2.1.6 Block tearing, Veff,1,Rd, and shear tearing, Veff,2,Rd, resistances should be assessed according to EC3-1-8 formulae and compared with the plates required resistance according to B.1.1. The following expression should be used: Veff,1,Rd = fu Ant/γM2 + (1/√3) fy Anv/γM0 Veff,2,Rd = 0.5 fu Ant/γM2 + (1/√3) fy Anv/γM0 With Ant the net area under tension and Anv the net area under shear forces. | [39,54,55] |
| EC3-1-8 Table 3.3, EC3-1-1 6.3.1 and EC3-1-5 5 | B.2.1.7 Plates under compression and shearing stresses should be analysed for its stability. EC3-1-8 specifies prescriptive measures to avoid local buckling. Those can be found in Table 3.3 maximum distances for bolted plates and slenderness relations for avoiding local buckling. For slender parts and plates, and especially for gousset plates in connections for axially loaded elements, buckling shall be computed to EC3-1-1 and EC3-1-5 formulae. However, the case of gousset plates frequently requires more than following the Eurocodes. For such an end, the modified Thornton method can be employed, and its application assisted by [56,57,58,59,60,61]. | [38,39,53,54,55,56,57,58,59,60,61,62] |
| 6.5.5 (2), EC3-1-8 4.5, EC3-1-8 4.7, EC3-1-8 4.10, EC3-1-8 4.11 and EC3-1-8 4.12 | B.2.1.8 Despite the strength requirements systematized in B.1.1, Eurocode 8 recognizes full penetration butt welds as sufficient for fulfilling the overstrength criteria. For the remaining cases, EC3-1-8 rules should be followed for welds design. Welds might not be needed for the most straightforward cover-plates solutions but will be needed if members or plates reinforcement is needed, even in bolted solutions. | [39,40,54,55] |
| B.2.2 Connections with end-plates with out-of-plane loading (shear and bending) | ||
| EC3-1-8 Table 6.1, EC3-1-8 6.2.4, EC3-1-8 6.2.5, EC3-1-8 6.2.6, EC3-1-8 6.2.7 | B.2.2.1 End plate design shall comply with resistance criteria depicted in B.1.1. Yet, its computation shall encompass the verification of each individual resistance component defined in the EC3-1-8 components method (Table 6.1). The following conditions—B.2.2.2 to B.2.2.6—add to those mentioned herein, for comprehensive formulae. | [39,54,55,63,64] |
| EC3-1-8 Table 3.4 | B.2.2.2 Bolts tension resistance, Ft,Rd, should be assessed according to the following EC3-1-8 expression: Ft,Rd = k2 fub As/γM2 with k2 = 0.9, except for countersunk bolts, for which k2 = 0.63 applies. | [39,54,55] |
| EC3-1-8 Table 3.4 | B.2.2.3 Punching shear resistance, Bp,Rd, is also to be determined according to EC3-1-8 and compared with the tension force at each bolt, accounting for the Eurocode 8 resistance requirements. The following expression must be used: Bp,Rd = 0.6 π dm tp fu/γM2, where dm is the smaller value among bolt head and nut average points and flats diameters. | [39,54,55] |
| B.2.2.4 Similar to B.2.1.4 | ||
| EC3-1-8 Table 3.4, EC3-1-8 3.9.2 (1) | B.2.2.5 Tension–shear interaction should be assessed both for ultimate and slippage conditions. The former can be evaluated with the assistance of the following equation: Fv,Ed/Fv,Rd + Ft,Ed/(1.4 Ft,Rd) ≤ 1 Concerning slippage subjected to tension forces, Fs,Rd,ser and Fs,Rd can be re-written in the following form: Fs,Rd,ser = ks n μ (0.7 fub As − 0.8 Ft,Ed,ser)/γM3,ser for class B connections Fs,Rd = ks n μ (0.7 fub As − 0.8 Ft,Ed)/γM3 for class C connections | [39,54,55] |
| B.2.2.6 Similar to B.2.1.8 | ||
| B.3 Rules for connections subjected to bending | ||
| B.3.1 General rules for connections in beams | ||
| 6.6.4 (3), 6.6.4 (4) and 6.6.4 (5) | B.3.1.1 The influence of connections behaviour upon the beam must be controled so that beams plastic rotation, θp, shall not be less than 0.035 radians for DCH structures or 0.025 radians for DCM structures. Rotation capacity is defined as θp = 2 δ/L, with δ the beams’ mid-span deflection and L its span. Moreover, the deflection term shall be computed in such a way that columns elastic deformation contribution is not taken into account, columns web panel shear deformation impact upon the deflection value does not exceed 30% of the total deflection and stiffness degradation due to cyclic loading-induced damage does not exceed 20% of the computed deflection. | [40,49] |
| B.3.2 Connections with cover-plates with in-plane loading (tension, compression or shear) | ||
| The same as B2.1 | ||
| B.3.3 Connections with end-plates with out-of-plane loading (shear and bending) | ||
| The same as B2.2 | ||
| B.3.4 Columns’ web panels | ||
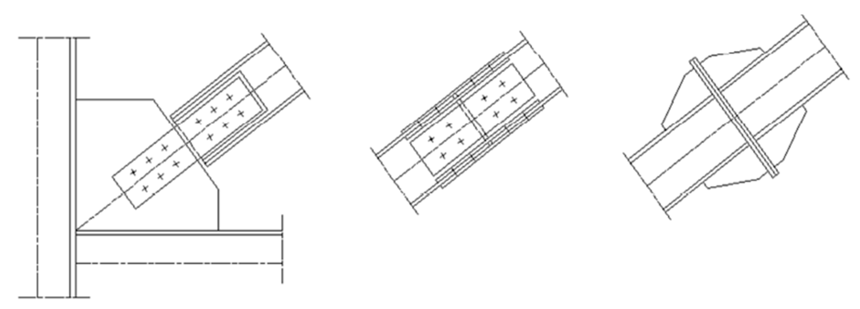
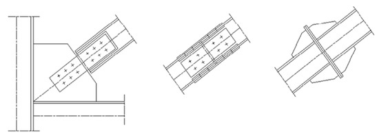
| 6.6.3 (6), 6.6.3 (7) EN1993-1-8 and EC3-1-5 5 | B.3.4.1 In each column-beam node, columns’ web panel shear resistance Vwp,Rd (as defined in EN1993-1-8), as well as its buckling resistance Vwb,Rd (as defined in EN1993-1-5) shall exceed the design shear force in the web panel, Vwp,Ed. The latter shall be defined in compliance with the adjoining beam or connection plastic bending capacity but need not to account axial and bending stresses in the web panel. This condition is frequently impossible to meet without reinforcing the web panel. Beyond a deeper discussion in [65], Figure 10 shows some practical options to solve the issue. In Figure 10 different arrangements are displayed. All but the second have reinforcement plates in between the columns’ flanges, the second and fourth have welded web panel reinforcement plates, the third option includes “Z” diagonal welded bars and the fifth arrangement has its two node reinforcement plates welded by the tip of column flanges. | [39,40,49,54,55,62,65] |
3.4. Idiosyncrasies and Research Gaps
4. Recent Research on Seismic Design of Bolted Connections
4.1. Bolted Connections in Concentrically X Braced Frames
4.2. Bolted Connections in V Braced Frames
4.3. Bolted Connections in Eccentrically Braced Frames
4.4. Bolted Connections in Moment-Resisting Frames
4.5. Partial Strength and Semi-Rigid Moment Connections
4.6. Slotted-Holes or Slipping Bolted Connections
4.7. Bolted Connections in Dual Systems
4.8. Bolted Connections for Hollow Sections
4.9. Connections in Systems with Supplementary Damping
4.10. Bolted Connections in Reduced Beam Sections
4.11. Replaceable Connections
4.12. Bolted Connections in Self-Centring Systems
4.13. Composite, Hybrid and Complex Connections
4.14. Welded Connections and Welds in Bolted Connections
4.15. Hysteretic Behaviour in Systems with Bolted Connections
4.16. Material Properties and Fatigue Issues in Seismically Loaded Bolted Connections
4.17. Bolted Connections in Cold-formed Steel Sections
5. Discussion on Recent Advances and Research Needed
6. Conclusions
Author Contributions
Funding
Data Availability Statement
Conflicts of Interest
Nomenclature
| AISC | American Institute of Steel Construction |
| ANSI | American National Standards Institute |
| BSL | Japanese Building Standard Law |
| CBF | Concentrically Braced Frames |
| CEN | European Committee for Standardisation |
| CFDST | Concrete Filled Double-skin Steel Tube |
| CFST | Concrete Filled Steel Tubular columns |
| DBD | Displacement-Based Design |
| DCH | High Ductility Class |
| DCM | Medium Ductility Class |
| DfD | Design for Disassembly |
| EBF | Eccentrically Braced Frames |
| EC | Elliptical Clearance Method |
| ECB | Exposed Column–Base |
| EFTA | European Free Trade Association |
| EP | End-Plate |
| EU | European Union |
| FCP | Flange Cover Plates |
| FEA | Finite Element Analyses |
| HPDF | High-Performance Dissipating Frame |
| HSS | High Strength Steel |
| HSS | High Strength Strands |
| HSS | Hollow Structural Sections |
| IBC | International Building Code |
| IDA | Incremental Dynamic Analyses |
| IFBD | Improved Force-Based Design |
| IMK | Ibarra–Medina–Krawinkler model |
| IV-CBF | Concentrically Braced Frames with Inverted-V Braces |
| KBF | K Braced Frames |
| LCF | Low-cycle Fatigue |
| LYP | Low Yield Point steel |
| MDOF | Multiple Degree of Freedom |
| MRF | Moment Resisting Frames |
| N-CBF | Concentrically Braced Frames with N Braces |
| NBC | National Building Code |
| PBCSC | Prefabricated Beam-Column Steel Connections |
| PBCSJ | Prefabricated Beam-Column Steel Joints |
| PBSD | Performance-Based Seismic Design |
| PEF | Post-Earthquake Fire |
| PR | Partially Restrained connections |
| PSJ | Prefabricated Steel Joint |
| PT | Post-Tensioned |
| PTFE | Polytetrafluoroethylene |
| PTHSS | Post-Tensioned High Strength Strands |
| RBS | Reduced Beam Section |
| RFCS | Research Fund for Coal and Steel |
| RSBC | Rotational Slotted Bolted Connections |
| RSM | Response Surface Methodology |
| SBC | Slotted Bolted Connections |
| SBC | Standard Building Code |
| SLC | Standard Linear Clearance Method |
| SMA | Shape Memory Alloy |
| SRSM | Simplified Response Surface Method |
| SSBC | Shear Slotted Bolted Connections |
| SSL-SSBC | Short Shear Link with Shear Slotted Bolted Connection |
| SZBF | Suspended Zipper Braced Frames |
| UBC | Uniform Building Code |
| ULCF | Ultra-Low Cycle Fatigue |
| V-CBF | Concentrically Braced Frames with V Braces |
| WUF-W | Welded Unreinforced Flange Web |
| X-CBF | Concentrically Braced Frames with X Diagonal Braces |
| Z-CBF | Concentrically Braced Frames with Z Braces |
| ZBF | Zipper Braced Frames |
References
- Yanev, P.I.; Gillengerten, J.D.; Hamburger, R.O. The Performance of Steel Buildings in Past Earthquakes. In State of the Art Report on Past Performance of Steel Moment-Frame Buildings in Earthquakes; 1991; Available online: https://www.researchgate.net/publication/242605400_State_of_the_Art_Report_on_Past_Performance_of_Steel_Moment-Frame_Buildings_in_Earthquakes (accessed on 22 November 2021).
- Ribeiro, T. Dimensionamento Sísmico de Edifícios com Estrutura Metálica (Seismic Design of Buildings with Steel Structure, in Portuguese); Novas Edições Académicas: Saarbrücken, Germany, 2017; ISBN 978-3-330-99811-7. [Google Scholar]
- Elnashai, A.S.; Di Sarno, L. Fundamentals of Earthquake Engineering; John Wiley & Sons, Ltd.: Hoboken, NJ, USA, 2008; ISBN 9780470024836. [Google Scholar]
- Macedo, L.; Castro, J.M. Earthquake loss assessment of steel moment-resisting frames designed according to Eurocode 8. Soil Dyn. Earthq. Eng. 2019, 124, 58–71. [Google Scholar] [CrossRef]
- Ribeiro, T.; Bernardo, L.; Andrade, J. Topology Optimisation in Structural Steel Design for Additive Manufacturing. Appl. Sci. 2021, 11, 2112. [Google Scholar] [CrossRef]
- Landolfo, R.; Mazzolani, F.; Dubina, D.; da Silva, L.S.; D’Aniello, M. Design of Steel Structures for Buildings in Seismic Areas; Wiley: Hoboken, NJ, USA, 2017; ISBN 9789291471386. [Google Scholar]
- Housner, G.W. Behavior of Structures During Earthquakes. J. Eng. Mech. Div. 1959, 85, 109–129. [Google Scholar] [CrossRef]
- Veletsos, A.; Newmark, N.M. Effect of inelastic behavior on the response of simple systems to earthquake motions. In Proceedings of the 2nd World Conference on Earthquake Engineering, Tokyo, Japan, 11–18 July 1960; 2, pp. 895–912. [Google Scholar]
- Bommer, J.J.; Pinho, R. Adapting earthquake actions in Eurocode 8 for performance-based seismic design. Earthq. Eng. Struct. Dyn. 2006, 35, 39–55. [Google Scholar] [CrossRef]
- SEAOC Vision 2000. A Framework for Performance Based Earthquake Engineering. Struct. Eng. Assoc. Calif. 1995, 2, 1057703470. [Google Scholar]
- Priestley, M.J.N.; Calvi, G.M.; Kowalsky, M.J. Displacement-Based Seismic Design of Structures; IUSS Press: Pavia, Italy, 2007; ISBN 978-8861980006. [Google Scholar]
- Applied Technology Council. FEMA 445: Next-Generation Performance-Based Seismic Design Guidelines: Program Plan for New and Existing Buildings; U.S. Department of Homeland Security: Washington, WA, USA, 2006.
- Paulay, T.; Priestley, M.J.N. Seismic Design of Reinforced Concrete and Masonry Buildings; John Wiley & Sons, Inc.: Hoboken, NJ, USA, 1992. [Google Scholar]
- Teal, E.J. Seismic Design Practice for Steel Buildings. SEAOC Seismol. Comm. 1975, 56–67, 9–50. [Google Scholar]
- Beamish, M.J. Cyclic Loading Tests on Steel Portal Frame Knee Joints. Bull. N. Z. Natl. Soc. Earthq. Eng. 1987, 20, 42–52. [Google Scholar] [CrossRef]
- Popov, E.P.; Tsai, K.C.; Engelhardt, M.D. On seismic steel joints and connections. Eng. Struct. 1989, 11, 148–162. [Google Scholar] [CrossRef]
- Popov, E.P.; Balan, T.A.; Yang, T.S. Post-Northridge Earthquake Seismic Steel Moment Connections. Earthq. Spectra 1998, 14, 659–677. [Google Scholar] [CrossRef]
- Paul Popov, E.; Yang, T.S.; Chang, S.P. Design of steel MRF connections before and after 1994 Northridge earthquake. Eng. Struct. 1998, 20, 1030–1038. [Google Scholar] [CrossRef]
- Chen, S.-J.; Yeh, C.H.; Chu, J.M. Ductile Steel Beam-to-Column Connections for Seismic Resistance. J. Struct. Eng. 1996, 122, 1292–1299. [Google Scholar] [CrossRef]
- Faridmehr, I.; Osman, M.H.; Tahir, M.M.; Nejad, A.F.; Hodiati, R. Evaluation of extreme load performance of pre-Northridge connections. Gradjevinar 2014, 66, 889–898. [Google Scholar] [CrossRef]
- Roeder, C.W. Connection Performance for Seismic Design of Steel Moment Frames. J. Struct. Eng. 2002, 128, 517–525. [Google Scholar] [CrossRef]
- Tremblay, R. Inelastic seismic response of steel bracing members. J. Constr. Steel Res. 2002, 58, 665–701. [Google Scholar] [CrossRef]
- Brandonisio, G.; Toreno, M.; Grande, E.; Mele, E.; De Luca, A. Seismic design of concentric braced frames. J. Constr. Steel Res. 2012, 78, 22–37. [Google Scholar] [CrossRef]
- Tayyab Naqash, M. An Overview on the Seismic Design of Braced Frames. Am. J. Civ. Eng. 2014, 2, 41. [Google Scholar] [CrossRef]
- Nip, A.K.H.; Gardner, L.; Elghazouli, A.Y. Ultimate behaviour of steel braces under cyclic loading. Proc. Inst. Civ. Eng. Struct. Build. 2013, 166, 219–234. [Google Scholar] [CrossRef]
- Bruneau, M.; Uang, C.-M.; Sabelli, R. Ductile Design of Steel Structures; McGraw-Hill: New York, NY, USA, 2011; ISBN 9780071625234. [Google Scholar]
- Gioncu, V.; Mazzolani, F. Seismic Design of Steel Structures; CRC Press: Boca Raton, FL, USA, 2014; ISBN 9781420042443. [Google Scholar]
- Xu, Y.L.; Zhang, W.S. Modal analysis and seismic response of steel frames with connection dampers. Eng. Struct. 2001, 23, 385–396. [Google Scholar] [CrossRef]
- Bayata, M.; Abdollahzadeh, G. On the effect of the near field records on the steel braced frames. Lat. Am. J. Solids Struct. 2011, 8, 429–443. [Google Scholar] [CrossRef][Green Version]
- Porter, K.; Kennedy, R.; Bachman, R. Creating fragility functions for performance-based earthquake engineering. Earthq. Spectra 2007, 23, 471–489. [Google Scholar] [CrossRef]
- Pitilakis, K.; Crowley, H.; Kaynia, A.M. SYNER-G: Typology Definition and Fragility Functions for Physical Elements at Seismic Risk: Buildings, Lifelines, Transportation Networks and Critical Facilities. Geotech. Geol. Earthq. Eng. 2014, 27, 1–28. [Google Scholar] [CrossRef]
- Ramirez, C.M.; Lignos, D.G.; Miranda, E.; Kolios, D. Fragility functions for pre-Northridge welded steel moment-resisting beam-to-column connections. Eng. Struct. 2012, 45, 574–584. [Google Scholar] [CrossRef]
- Haldar, A.; Huh, J.; Mehrabian, A. Time-domain seismic reliability of nonlinear structures. Sadhana-Acad. Proc. Eng. Sci. 2006, 31, 359–382. [Google Scholar] [CrossRef][Green Version]
- Giugliano, M.T.; Longo, A.; Montuori, R.; Piluso, V. Seismic reliability of traditional and innovative concentrically braced frames. Earthq. Eng. Struct. Dyn. 2011, 40, 1455–1474. [Google Scholar] [CrossRef]
- De Luca, A.; Grande, E.; Mele, E. Implications of code provisions in the seismic design of concentric braced frames. In STESSA 2006: 5th International Conference on Behaviour of Steel Structures in Seismic Areas; ICE Publishing: London, UK, 2006; pp. 855–861. Available online: https://www.researchgate.net/publication/291065332_Implications_of_code_provisions_in_the_seismic_design_of_concentric_braced_frames (accessed on 22 November 2021).
- Araújo, M.; Castro, J.M. A Critical Review of European and American Provisions for the Seismic Assessment of Existing Steel Moment-Resisting Frame Buildings. J. Earthq. Eng. 2018, 22, 1336–1364. [Google Scholar] [CrossRef]
- Athanasopoulou, A.; Formichi, P.; Spehl, P.; Dabizheva, I.; Gacesa-Moric, V.; Markova, J.; Calgaro, J.A.; Malakatas, N.; Lurvink, M.; Croce, P.; et al. The implementation of the Eurocodes in the National Regulatory Framework; JRC Technical Reports; EU Publications: Luxembourg, 2019. [Google Scholar]
- CEN. Eurocode 3: Design of Steel Structures—Part 1-1: General Rules and Rules for Buildings; CEN: Brussels, Belgium, 2005. [Google Scholar]
- CEN. Eurocode 3: Design of Steel Structures—Part 1-8: Design of Joints; CEN: Brussels, Belgium, 2005. [Google Scholar]
- CEN. Eurocode 8: Design of Structures for Earthquake Resistance—Part 1: General Rules, Seismic Actions and Rules for Buildings; CEN: Brussels, Belgium, 2004. [Google Scholar]
- Liao, K.-W.; Wen, Y.-K.; Foutch, D.A. Evaluation of 3D Steel Moment Frames under Earthquake Excitations. II: Reliability and Redundancy. J. Struct. Eng. 2007, 133, 471–480. [Google Scholar] [CrossRef]
- Liao, K.-W.; Wen, Y.-K.; Foutch, D.A. Evaluation of 3D Steel Moment Frames under Earthquake Excitations. I: Modeling. J. Struct. Eng. 2007, 133, 462–470. [Google Scholar] [CrossRef]
- American Institute of Steel Construction. Prequalified Connections for Special and Intermediate Steel Moment Frames for Seismic Applications with Supplement No. 1 (ANSI/AISC 358-16 with ANSI/AISC 358s1-18); AISC: Chicago, IL, USA, 2016; Volume 2016. [Google Scholar]
- Midorikawa, M.; Okawa, I.; Masanori, I.; Teshigawara, M. Performance-based seismic design code for buildings in Japan. Earthq. Eng. Eng. Seismol. 2003, 4, 15–25. [Google Scholar]
- Okawa, I.; Midorikawa, M.; Iiba, M.; Kashima, T.; Koyama, S.; Management, I.; Engineering, S. Studies on the Design Earthquake Motions in Accordance to the Revised Japanese Buildings Standards. In Proceedings of the CTBUH/CIB Conference, Kuala Lumpur, Malaysia, 20–23 October 2003; Available online: https://global.ctbuh.org/resources/papers/download/1610-studies-on-the-design-earthquake-motions-in-accordance-to-the-revised-japanese-buildings-standards.pdf (accessed on 22 November 2021).
- Marino, E.M.; Nakashima, M.; Mosalam, K.M. Comparison of European and Japanese seismic design of steel building structures. Eng. Struct. 2005, 27, 827–840. [Google Scholar] [CrossRef]
- Moullier, T.; Sakoda, K. Converting Disaster Experience into a Safer Built Environment. The Case of Japan; World Bank: Washington, DC, USA, 2018. [Google Scholar] [CrossRef]
- Faccioli, E.; Calvi, G.M.; Gutiérrez, J.; Santana, G.; Chin, M.W.; Suite, W.; Burón, C.L. Model Building Code for Earthquakes; Association of Caribbean States: Port-of-Spain, Trinidad and Tobago, 2003. [Google Scholar]
- Fardis, M.N.; Carvalho, E.; Elnashai, A.; Faccioli, E.; Pinto, P.; Plumier, A. Designers’ Guide To Eurocode 8: Design of Structures for Earthquake Resistance; Thomas Telford: London, UK, 2005; ISBN 978-0-7277-3348-1. [Google Scholar]
- CEN. EN 1090-2: Execution of Steel Structures and Aluminium Structures—Part 2: Technical Requirements for Steel Structures; CEN: Brussels, Belgium, 2008. [Google Scholar]
- Gardner, L.; Nethercot, D.A. Designers’ Guide to EN 1993-1-1 Eurocode 3: Design of Steel Structures—General Rules and Rules for Buildings; Thomas Telford: London, UK, 2005. [Google Scholar]
- Ribeiro, T.; Sousa, A. Methods for conceptual and preliminary seismic design of buildings with steel structure. ACI Avances en Ciencias e Ingenierías 2019, 11. [Google Scholar] [CrossRef]
- Vayas, I.; Ermopoulos, J.; Ioannidis, G. Design of Steel Structures to Eurocodes; Springer: New York, NY, USA, 2019; ISBN 978-3-319-95473-8. [Google Scholar]
- Boracchini, A. Design and Analysis of Connections in Steel Structures Fundamental and Examples; Wiley: Hoboken, NJ, USA, 2013; Volume 53, ISBN 9788578110796. [Google Scholar]
- Jaspart, J.-P.; Weynand, K. Design of Joints in Steel and Composite Structures; Wiley: New York, NY, USA, 2016; ISBN 9788578110796. [Google Scholar]
- Brown, V.L.S. Stability of gusseted connections in steel structures, University of Delaware. 1988. Available online: https://www.proquest.com/openview/09a4bc2a8a7df5262b6e5f1d00850744/1?pq-origsite=gscholar&cbl=18750&diss=y (accessed on 22 November 2021).
- Thornton, W.A. On the Analysis and Design of Bracing Connections. In Proceedings of National Steel Construction Conference; AISC: Chicago, IL, USA, 1991. [Google Scholar]
- Astaneh-Asl, A. Seismic behavior and design of gusset plates for braced frames. Steel Tips 1998. Available online: https://www.researchgate.net/publication/345149355_Seismic_Behavior_and_Design_of_Gusset_Plates (accessed on 22 November 2021).
- Yam, M.C.H.; Cheng, J.J.R. Behavior and design of gusset plate connections in compression. J. Constr. Steel Res. 2002, 58, 1143–1159. [Google Scholar] [CrossRef]
- Sheng, N.; Yam, C.H.; Iu, V.P. Analytical investigation and the design of the compressive strength of steel gusset plate connections. J. Constr. Steel Res. 2002, 58, 1473–1493. [Google Scholar] [CrossRef]
- Roeder, C.W.; Lehman, D.E.; Johnson, S.; Herman, D. Experimental study of seismic performance of braced frame gusset plate connections. In Proceedings of the 8th Pacific Structural Steel Conference—Steel Structures in Natural Hazards, PSSC Wairakei, New Zealand, 13–16 March 2007. [Google Scholar]
- CEN. EN 1993-1-5: Eurocode 3—Design of steel structures—Part 1-5: Plated Structural Elements; CEN: Brussels, Belgium, 2006. [Google Scholar]
- Swanson, J.A.; Leon, R.T. Bolted Steel Connections: Tests on T-Stub Components. J. Struct. Eng. 2000, 126, 50–56. [Google Scholar] [CrossRef]
- Abu-lebdeh, T.; Nasra, M. Al Finite Element Analysis of Large Capacity Endplate Steel Connections Mohamed Eldemerdash, Department of Civil, Architectural and Environmental Engineering, North Carolina A and T State University, NC 27411, Greensboro Department of Engineering Techno. J. Comput. Sci. 2012, 8, 482–493. [Google Scholar]
- Castro, J.M.; Dávila-Arbona, F.J.; Elghazouli, A.Y. Seismic design approaches for panel zones in steel moment frames. J. Earthq. Eng. 2008, 12, 34–51. [Google Scholar] [CrossRef]
- Engelhardt, M.D.; Sabol, T.A. Reinforcing of steel moment connections with cover plates: Benefits and limitations. Eng. Struct. 1998, 20, 510–520. [Google Scholar] [CrossRef]
- Johnson, M.; Sloat, D.; Roeder, C.W.; Lehman, D.E.; Berman, J.W. Seismic performance of concentrically braced frame connections. In Proceedings of the NCEE 2014—10th U.S. National Conference on Earthquake Engineering: Frontiers of Earthquake Engineering, Anchorage, Alaska, 21–25 July 2014. [Google Scholar]
- Latour, M.; Rizzano, G. Full strength design of column base connections accounting for random material variability. Eng. Struct. 2013, 48, 458–471. [Google Scholar] [CrossRef]
- Kanvinde, A.M.; Higgins, P.; Cooke, R.J.; Perez, J.; Higgins, J. Column Base Connections for Hollow Steel Sections: Seismic Performance and Strength Models. J. Struct. Eng. 2015, 141, 04014171. [Google Scholar] [CrossRef]
- Lee, C.H.; Kim, J.H. Seismic design of reduced beam section steel moment connections with bolted web attachment. J. Constr. Steel Res. 2007, 63, 522–531. [Google Scholar] [CrossRef]
- Wang, M.; Bi, P.; Li, F.X. Design of steel frame cover plate connected joints with low yield point steel “ductile fuses. ” Gongcheng Lixue/Eng. Mech. 2020, 37, 168–182. [Google Scholar] [CrossRef]
- Jin, J.; El-Tawil, S. Seismic performance of steel frames with reduced beam section connections. J. Constr. Steel Res. 2005, 61, 453–471. [Google Scholar] [CrossRef]
- Castro, J.M.; Villani, A.; Elghazouli, A.Y. Nova Metodologia de Dimensionamento Sísmico de Pórticos Metálicos. In Proceedings of the VII Congresso de Construção Metálica e Mista, LNEC, Lisboa, Portugal, 19–20 November 2009. [Google Scholar]
- Elghazouli, A.Y. Seismic design procedures for concentrically braced frames. Proc. Inst. Civ. Eng. Struct. Build. 2003, 156, 381–394. [Google Scholar] [CrossRef]
- Karamanci, E.; Lignos, D.G. Computational Approach for Collapse Assessment of Concentrically Braced Fram!es in Seismic Regions. J. Struct. Eng. 2014, 140. [Google Scholar] [CrossRef]
- Yoo, J.H.; Lehman, D.E.; Roeder, C.W. Influence of connection design parameters on the seismic performance of braced frames. J. Constr. Steel Res. 2008, 64, 607–623. [Google Scholar] [CrossRef]
- Stratan, A.; Dogariu, A.; Dubina, D. Bolted links for eccentrically braced frames: Influence of link stiffness. In Proceedings of the 3rd International Conference on Steel and Composite Structures ICSCS07—Steel Compos. Struct, Manchester, UK, 30 July–1 August 2007; pp. 847–853. Available online: https://www.researchgate.net/publication/290321476_Bolted_links_for_eccentrically_braced_frames_Influence_of_link_stiffness (accessed on 22 November 2021).
- Shen, J.; Astaneh-Asl, A. Hysteresis model of bolted-angle connections. J. Constr. Steel Res. 2000, 54, 317–343. [Google Scholar] [CrossRef]
- Song, Y.; Hartwigsen, C.J.; Bergman, L.A.; Vakakis, A.F. A three-dimensional nonlinear reduced-order predictive joint model. Earthq. Eng. Eng. Vib. 2003, 2, 59–73. [Google Scholar] [CrossRef]
- Kishimoto, Y.; Endo, M. Development of an estimation method of dynamic characteristics of structures with bolted joints. Nihon Kikai Gakkai Ronbunshu C Hen/Trans. Jpn. Soc. Mech. Eng. Part C 2007, 73, 1566–1573. [Google Scholar] [CrossRef]
- Gerami, M.; Saberi, H.; Saberi, V.; Saedi Daryan, A. Cyclic behavior of bolted connections with different arrangement of bolts. J. Constr. Steel Res. 2011, 67, 690–705. [Google Scholar] [CrossRef]
- Kim, J.H.; Ghaboussi, J.; Elnashai, A.S. Hysteretic mechanical-informational modeling of bolted steel frame connections. Eng. Struct. 2012, 45, 1–11. [Google Scholar] [CrossRef]
- Hsiao, P.-C.; Lehman, D.E.; Roeder, C.W. A model to simulate special concentrically braced frames beyond brace fracture. Earthq. Eng. Struct. Dyn. 2012, 42, 183–200. [Google Scholar] [CrossRef]
- Davaran, A.; Decaen, S.; Tremblay, R. Numerical simulation of the seismic response of steel x-braced frames with single shear bolted connections. In Proceedings of the NCEE 2014—10th U.S. National Conference on Earthquake Engineering: Frontiers of Earthquake Engineering, Anchorage, AK, USA, 21–25 July 2014. [Google Scholar] [CrossRef]
- Righiniotis, T.D.; Omer, E.; Elghazouli, A.Y. A simplified crack model for weld fracture in steel moment connections. Eng. Struct. 2002, 24, 1133–1140. [Google Scholar] [CrossRef]
- Zhou, Z.; Kuwamura, H. Geometrical and metallurgical notches of welded joints of steel beam-to-column connections. J. Struct. Constr. Eng. 2009, 74, 551–559. [Google Scholar] [CrossRef][Green Version]
- Wang, Y.; Zhou, H.; Shi, Y.; Xiong, J. Fracture prediction of welded steel connections using traditional fracture mechanics and calibrated micromechanics based models. Int. J. Steel Struct. 2011, 11, 351–366. [Google Scholar] [CrossRef]
- Shi, Y.; Wang, M.; Wang, Y. Analysis of seismic behaviour of welded steel connections and frames with differently constructed connections. Adv. Struct. Eng. 2012, 15, 1053–1068. [Google Scholar] [CrossRef]
- ČERMELJ, B. Seismic Resistance of Welded Beam-to-Column Connections in Hybrid Moment and Braced Frames; Univerza v Ljubljani: Ljubljana, Slovenia, 2015; Available online: https://www.semanticscholar.org/paper/Seismic-resistance-of-welded-beam-to-column-in-and-%C4%8Cermelj/90901f6ee6f23a6e6da61e94abfe9c18c1f8ca11 (accessed on 22 November 2021).
- Mander, J.B.; Chen, S.S.; Pekcan, G. Low-cycle fatigue behavior of semi-rigid top-and-seat angle connections. Eng. J. 1994, 31, 111–122. [Google Scholar]
- Sharma, A.A.; Mander, J.B.; Chen, S.S. Simplified seismic fatigue evaluation for rigid steel connections. Earthq. Eng. Eng. Vib. 2003, 2, 245–253. [Google Scholar] [CrossRef]
- Righiniotis, T.D.; Imam, B. Fracture reliability of a typical Northridge steel moment resisting connection. Eng. Struct. 2004, 26, 381–390. [Google Scholar] [CrossRef]
- Latour, M.; Rizzano, G. Design of X-shaped double split tee joints accounting for moment-shear interaction. J. Constr. Steel Res. 2015, 104, 115–126. [Google Scholar] [CrossRef]
- Iwashita, T.; Packer, J.A.; Oliveira, J.-C. de Defect Tolerance for Cast Steel Connections in Braced Frames. J. Struct. Eng. 2012, 138, 1455–1464. [Google Scholar] [CrossRef]
- Hu, J.W.; Leon, R.T. Analyses and evaluations for composite-moment frames with SMA PR-CFT connections. Nonlinear Dyn. 2011, 65, 433–455. [Google Scholar] [CrossRef]
- Dimopoulos, A.I.; Karavasilis, T.L.; Vasdravellis, G.; Uy, B. Seismic design, modelling and assessment of self-centering steel frames using post-tensioned connections with web hourglass shape pins. Bull. Earthq. Eng. 2013, 11, 1797–1816. [Google Scholar] [CrossRef]
- Hoang, V.L.; Jaspart, J.P.; Demonceau, J.F. Hammer head beam solution for beam-to-column joints in seismic resistant building frames. J. Constr. Steel Res. 2014, 103, 49–60. [Google Scholar] [CrossRef]
- Pinto, A.; Taucer, F.; Dimova, S. Pre-Normative Research Needs to Achieve Improved Design Guidelines for Seismic Protection in the EU; JRC: Ispra, Italy, 2007. [Google Scholar]
- Málaga-Chuquitaype, C.; Elghazouli, A.Y. Consideration of seismic demand in the design of braced frames. Steel Constr. 2011, 4, 65–72. [Google Scholar] [CrossRef]
- Crocker, J.P.; Chambers, J.J. Single Plate Shear Connection Response to Rotation Demands Imposed by Frames Undergoing Cyclic Lateral Displacements. J. Struct. Eng. 2004, 130, 934–941. [Google Scholar] [CrossRef]
- Roeder, C.W. Prequalification of steel moment-frame connection performance. Earthq. Spectra 2003, 19, 291–308. [Google Scholar] [CrossRef]
- Tartaglia, R.; D’Aniello, M.; Rassati, G.A.; Swanson, J.A.; Landolfo, R. Full strength extended stiffened end-plate joints: AISC vs recent European design criteria. Eng. Struct. 2018, 159, 155–171. [Google Scholar] [CrossRef]
- Landolfo, R.; Tartaglia, R.; Costanzo, S.; Jaspart, J.; Stratan, A.; Jaka, D.; Dubina, D.; Elghazouli, A.; Bompa, D.; Oliveira, S.; et al. Equaljoints PLUS Recomendações de Calculo pré-Normativas Relativas a Juntas Metálicas Pré-Qualificadas Para Zonas Sísmicas; ECCS: Bruxelles, Belgium, 2018. [Google Scholar]
- Landolfo, R.; Costanzo, S.; Tartaglia, R.; Jaspart, J.; Stratan, A.; Jakab, D.; Dubina, D.; Elghazouli, A.; Bompa, D.; Oliveira, S.; et al. Equaljoints PLUS Brochuras informativas relativas a 4 ligações pré-qualificadas para zonas sísmicas. 2018. Available online: https://www.steelconstruct.com/documentations/EQJplus_Informative_documents/D_WP1-2_PT.pdf (accessed on 22 November 2021).
- He, H.; Chen, K.; Li, R. Seismic analysis of replaceable steel connection with low yield point metal. Zhendong Ceshi Yu Zhenduan/J. Vib. Meas. Diagn. 2016, 36, 1050–1056. [Google Scholar] [CrossRef]
- Nikoukalam, M.T.; Mirghaderi, S.R.; Dolatshahi, K.M. Analytical study of shear slotted bolted connection in moment resisting frames. In Proceedings of the NCEE 2014—10th U.S. National Conference on Earthquake Engineering: Frontiers of Earthquake Engineering, Anchorage, AK, USA, 21–25 July 2014. [Google Scholar] [CrossRef]
- Nikoukalam, M.T.; Mirghaderi, S.R.; Dolatshahi, K.M. Analytical Study of Moment-Resisting Frames Retrofitted with Shear Slotted Bolted Connection. J. Struct. Eng. 2015, 141, 04015019. [Google Scholar] [CrossRef]
- Sen, A.D.; Sloat, D.; Ballard, R.; Johnson, M.M.; Roeder, C.W.; Lehman, D.E.; Berman, J.W. Experimental Evaluation of the Seismic Vulnerability of Braces and Connections in Older Concentrically Braced Frames. J. Struct. Eng. 2016, 142, 04016052. [Google Scholar] [CrossRef]
- Rongqian, Y.; Xuejun, Z. Experimental study on the seismic behavior of concentrically braced steel frames with extended end-plate bolted connections. Sci. Prog. 2020, 103, 1–21. [Google Scholar] [CrossRef]
- Goggins, J.; Broderick, B.M.; Elghazouli, A.Y.; Salawdeh, S.; Hunt, A.; Mongabure, P.; English, J. Shake Table Testing of Concentrically Braced Steel Structures With Realistic Connection Details Subjected to Earthquakes. Structures 2018, 13, 102–118. [Google Scholar] [CrossRef]
- Kanyilmaz, A. Moderate ductility of the bracing joints with preloaded bolts. Bull. Earthq. Eng. 2018, 16, 503–527. [Google Scholar] [CrossRef]
- Kishiki, S.; Kajima, N.; Satsukawa, K. Seismic retrofit for bolted angle connections using additional member on the leg plate. J. Struct. Constr. Eng. 2019, 84, 447–457. [Google Scholar] [CrossRef]
- Campiche, A.; Costanzo, S. Evolution of ec8 seismic design rules for x concentric bracings. Symmetry 2020, 12, 1807. [Google Scholar] [CrossRef]
- Kanyilmaz, A. Role of compression diagonals in concentrically braced frames in moderate seismicity: A full scale experimental study. J. Constr. Steel Res. 2017, 133, 1–18. [Google Scholar] [CrossRef]
- Silva, A.; Castro, J.M.; Monteiro, R. Towards More Realistic Idealizations of Brace-To-Frame Connections for the Design of Steel Cbfs To Ec8; SECED: Greenwich, London, 2019; pp. 1–8. [Google Scholar]
- Silva, A.; Castro, J.M.; Monteiro, R. Practical considerations on the design of concentrically-braced steel frames to Eurocode 8. J. Constr. Steel Res. 2019, 158, 71–85. [Google Scholar] [CrossRef]
- Silva, A.; Castro, J.M.; Monteiro, R. Brace-to-frame connection modelling effects on seismic loss assessment of steel concentrically-braced frames. J. Constr. Steel Res. 2020, 172, 106230. [Google Scholar] [CrossRef]
- Del Gobbo, G.M.; Williams, M.S.; Blakeborough, A. Seismic performance assessment of Eurocode 8-compliant concentric braced frame buildings using FEMA P-58. Eng. Struct. 2018, 155, 192–208. [Google Scholar] [CrossRef]
- Silva, A.; Santos, L.; Ribeiro, T.; Castro, J.M. Improved Seismic Design of Concentrically X-Braced Steel Frames to Eurocode 8. J. Earthq. Eng. 2018, 4, 1–26. [Google Scholar] [CrossRef]
- Costanzo, S.; D’Aniello, M.; Landolfo, R. Proposal of design rules for ductile X-CBFS in the framework of EUROCODE 8. Earthq. Eng. Struct. Dyn. 2019, 48, 124–151. [Google Scholar] [CrossRef]
- Bosco, M.; Brandonisio, G.; Marino, E.M.; Mele, E.; De Luca, A. Ω* method: An alternative to Eurocode 8 procedure for seismic design of X-CBFs. J. Constr. Steel Res. 2017, 134, 135–147. [Google Scholar] [CrossRef]
- Rahimi, R.; Banan, M.R.; Banan, M.R. Lateral cyclic behavior of zipper braced frames-considering connection details. Int. J. Steel Struct. 2016, 16, 11–21. [Google Scholar] [CrossRef]
- Costanzo, S.; D’Aniello, M.; Landolfo, R. Seismic design criteria for chevron CBFs: Proposals for the next EC8 (part-2). J. Constr. Steel Res. 2017, 138, 17–37. [Google Scholar] [CrossRef]
- Hu, S.; Xiong, Y.; Wang, Z. Research Status Review on Eccentrically Braced Frames. Prog. Steel Build. Struct. 2019, 21, 1–4. [Google Scholar] [CrossRef]
- Hu, S.; Xiong, J.; Song, G. A New Shear Link with Slotted Bolted Connection and Its Mechanical Performance. Prog. Steel Build. Struct. 2018, 6. [Google Scholar] [CrossRef]
- Hu, S.; Wang, X.; Xiong, J.; Zeng, S. Seismic performance analysis of Y-shaped eccentrically braced frames with SSL-SSBC. Zhendong Yu Chongji/J. Vib. Shock. 2020, 16. [Google Scholar] [CrossRef]
- Hu, S.; Zeng, S.; Xiong, J.; Wang, X.; Zhou, Q.; Xiong, X. Seismic Analysis and Evaluation of Y-shaped EBF with an Innovative SSL-SSBC. Int. J. Steel Struct. 2020, 20, 1026–1039. [Google Scholar] [CrossRef]
- Zimbru, M.; D’Aniello, M.; Stratan, A.; Landolfo, R.; Dubina, D. Finite element modelling of detachable short links. Proceedings od the COMPDYN 2017—6th International Conference on Computational Methods in Structural Dynamics and Earthquake Engineering, Rhodes Island, Greece, 15–17 June 2017; 1, pp. 790–801. [Google Scholar] [CrossRef]
- Costanzo, S.; Tartaglia, R.; Di Lorenzo, G.; De Martino, A. Seismic behaviour of EC8-compliant moment resisting and concentrically braced frames. Buildings 2019, 9, 196. [Google Scholar] [CrossRef]
- D’Aniello, M.; Tartaglia, R.; Costanzo, S.; Landolfo, R. Seismic design of extended stiffened end-plate joints in the framework of Eurocodes. J. Constr. Steel Res. 2017, 128, 512–527. [Google Scholar] [CrossRef]
- Tartaglia, R.; D’Aniello, M.; Landolfo, R.; Rassati, G.A.; Swanson, J. Finite element analyses on seismic response of partial strength extended stiffened joints. In Proceedings of the 6th International Conference on Computational Methods in Structural Dynamics and Earthquake Engineering COMPDYN, Rhodes Island, Greece, 15–17 June 2017; Volume 2, pp. 4952–4964. [Google Scholar] [CrossRef]
- Landolfo, R.; D’Aniello, M.; Costanzo, S.; Tartaglia, R.; Demonceau, J.-F.; Jaspart, J.-P.; Stratan, A.; Jaka, D.; Dubina, D.; Elghazouli, A.; et al. Equaljoints PLUS: Volume with Information Brochures for 4 Seismically Qualified Joints; ECCS: Bruxelles, Belgium, 2018. [Google Scholar]
- Francavilla, A.B.; Latour, M.; Rizzano, G. The Design of a Real-Scale Steel Moment-Resisting Frame for Pseudo-Dynamic Earthquake Testing. Open Constr. Build. Technol. J. 2020, 14, 174–184. [Google Scholar] [CrossRef]
- Saberi, H.; Kheyroddin, A.; Gerami, M. Seismic strengthening of weak bolted end plate connections using welded haunches. Int. J. Steel Struct. 2017, 17, 743–755. [Google Scholar] [CrossRef]
- Lin, X.; Okazaki, T.; Hayashi, K.; Nakashima, M. Bolted Built-Up Columns Constructed of High-Strength Steel under Combined Flexure and Compression. J. Struct. Eng. 2017, 143, 04016159. [Google Scholar] [CrossRef]
- Radmehr, M.; Homami, P. The seismic reliability analysis of moment resisting frames with bolted end-plate connection. J. Constr. Steel Res. 2020, 171, 106134. [Google Scholar] [CrossRef]
- Jiang, Z.Q.; Dou, C.; Zhang, H.; Wang, Q.; Yang, Y. huan Experimental study of earthquake-resilient prefabricated beam-column steel joint with L-shaped plate. J. Constr. Steel Res. 2020, 166, 105928. [Google Scholar] [CrossRef]
- Jiang, Z.Q.; Yang, X.F.; Dou, C.; Pi, Y.L.; Li, R. Design theory of earthquake-resilient prefabricated beam-column steel joint with double flange cover plates. Eng. Struct. 2020, 209, 110005. [Google Scholar] [CrossRef]
- Ai-lin, Z.; Ran, L.; Zi-qin, J.; Zhen-yu, Z. Experimental study of earthquake-resilient PBCSC with double flange cover plates. J. Constr. Steel Res. 2018, 143, 343–356. [Google Scholar] [CrossRef]
- Liu, X.C.; Pu, S.H.; Zhang, A.L.; Zhan, X.X. Performance analysis and design of bolted connections in modularized prefabricated steel structures. J. Constr. Steel Res. 2017, 133, 360–373. [Google Scholar] [CrossRef]
- D’Antimo, M.; Zimbru, M.; D’Aniello, M.; Demonceau, J.F.; Jaspart, J.P.; Landolfo, R. Preliminary finite element analyses on seismic resistant FREE from DAMage beam to column joints under impact loading. Key Eng. Mater. 2018, 763, 592–599. [Google Scholar] [CrossRef]
- Faridmehr, I.; Ahmad, Y.; Tahir, M.M.; Osman, M.H. Cyclic and Explosive Evaluation of New Proposed Steel Joint. Adv. Civ. Eng. 2016, 2016, 1–11. [Google Scholar] [CrossRef]
- Abedi Sarvestani, H. Cyclic behavior of hexagonal castellated beams in steel moment-resisting frames with post-tensioned connections. Structures 2017, 11, 121–134. [Google Scholar] [CrossRef]
- Qian, X.; Astaneh-Asl, A. Development of a new steel moment connection. World Congr. Civil, Struct. Environ. Eng. 2016, 1–9. [Google Scholar] [CrossRef]
- Brunesi, E.; Nascimbene, R.; Rassati, G.A. Seismic fragility analysis of MRFs with PR bolted connections using IDA approach. Key Eng. Mater. 2018, 763, 678–685. [Google Scholar] [CrossRef]
- Zhao, J.; Chu, H.; Wang, X.; Bu, X. Research on Mechanical Performance of the Connection of Fabricated Primary and Secondary Steel Beam. IOP Conf. Ser. Earth Environ. Sci. 2021, 669, 012005. [Google Scholar] [CrossRef]
- Tartaglia, R.; D’Aniello, M. Influence of Transvserse Beams On the Ultimate Behaviour of Seismic Resistant Parrtial Strength Beam-To-Colummn Joints. Ing. Sismica 2020, XXXVII, 50–66. [Google Scholar]
- Pal, J.; Banerjee, S.; Chikermane, S.; Banerji, P. Estimation of fixity factors of bolted joints in a steel frame structure using a vibration-based health monitoring technique. Int. J. Steel Struct. 2017, 17, 593–607. [Google Scholar] [CrossRef]
- Movaghati, S. Finite element model for hysteretic response simulation of bolted semi-rigid connections. NCEE 2018 Integr. Sci. Eng. Policy 2018, 8, 4929–4933. [Google Scholar]
- Saberi, V.; Saberi, H.; Gerami, M.; Kheyroddin, A. Seismic behavior of frames with weak bolted end plate connections rehabilitated by posttensioned tendons under near-/far-field earthquakes. Struct. Des. Tall Spec. Build. 2020, 29, 1–20. [Google Scholar] [CrossRef]
- Gaxiola-Camacho, J.R.; Haldar, A.; Azizsoltani, H.; Valenzuela-Beltran, F.; Reyes-Salazar, A. Performance-Based Seismic Design of Steel Buildings Using Rigidities of Connections. ASCE-ASME J. Risk Uncertain. Eng. Syst. Part A Civ. Eng. 2018, 4, 04017036. [Google Scholar] [CrossRef]
- Shu, Z.; Ma, R.; He, M. Comprehending the ductile behavior of slotted bolted connections. Struct. Des. Tall Spec. Build. 2017, 26, 1–13. [Google Scholar] [CrossRef]
- Shu, Z.; Ma, R.; He, M. Dimensional analysis of the slotted bolted connections against impulsive earthquake ground motions. J. Constr. Steel Res. 2016, 125, 128–141. [Google Scholar] [CrossRef]
- Liu, X.C.; Zhan, X.X.; Pu, S.H.; Zhang, A.L.; Xu, L. Seismic performance study on slipping bolted truss-to-column connections in modularized prefabricated steel structures. Eng. Struct. 2018, 163, 241–254. [Google Scholar] [CrossRef]
- Piluso, V.; Montuori, R.; Nastri, E.; Paciello, A. Seismic response of MRF-CBF dual systems equipped with low damage friction connections. J. Constr. Steel Res. 2019, 154, 263–277. [Google Scholar] [CrossRef]
- Shaback, B.; Brown, T. Behaviour of square hollow structural steel braces with end connections under reversed cyclic axial loading. Can. J. Civ. Eng. 2003, 30, 745–753. [Google Scholar] [CrossRef]
- Nuñez, E.; Torres, R.; Herrera, R. Seismic performance of moment connections in steel moment frames with HSS columns. Steel Compos. Struct. 2017, 25, 271–286. [Google Scholar] [CrossRef]
- Nuñez, E.; Boainy, N.; González, F.; Torres, R.; Picón, R.; Guerrero, N. Cyclic behavior of hollow section beam–column moment connection: Experimental and numerical study. Metals 2020, 10, 1068. [Google Scholar] [CrossRef]
- Song, Q.Y.; Heidarpour, A.; Zhao, X.L.; Han, L.H. Performance of Double-Angle Bolted Steel I-Beam to Hollow Square Column Connections under Static and Cyclic Loadings. Int. J. Struct. Stab. Dyn. 2016, 16, 1–20. [Google Scholar] [CrossRef]
- Song, Q.Y.; Heidarpour, A.; Zhao, X.L.; Han, L.H. Post-earthquake fire behavior of welded steel I-beam to hollow column connections: An experimental investigation. Thin-Walled Struct. 2016, 98, 143–153. [Google Scholar] [CrossRef]
- Song, Q.Y.; Heidarpour, A.; Zhao, X.L.; Han, L.H. Post-earthquake fire performance of flange-welded/web-bolted steel I-beam to hollow column tubular connections. Thin-Walled Struct. 2017, 116, 113–123. [Google Scholar] [CrossRef]
- Liu, X.C.; Cui, F.Y.; Zhan, X.X.; Yu, C.; Jiang, Z.Q. Seismic performance of bolted connection of H-beam to HSS-column with web end-plate. J. Constr. Steel Res. 2019, 156, 167–181. [Google Scholar] [CrossRef]
- Zhan, X.X.; Liu, X.C.; Feng, S.; Yu, C. Seismic performance of a square HSS column to H-section beam bolted connection with double cover plate. Eng. Struct. 2021, 231, 111729. [Google Scholar] [CrossRef]
- Liu, X.C.; Wang, Y.; Cui, X.X.; Yu, C.; Bai, Z.X. Seismic performance of bolted beam-to-column connection with rib-stiffened splicing plate. J. Constr. Steel Res. 2020, 174, 106300. [Google Scholar] [CrossRef]
- Sato, K.; Sawa, T.; Morimoto, R.; Kobayashi, T. FEM stress analysis and mechanical characteristics of bolted pipe flange connections with ptfe blended gaskets subjected to external bending moments and internal pressure. Am. Soc. Mech. Eng. Press. Vessel. Pip. Div. PVP 2017, 2. [Google Scholar] [CrossRef]
- Gallegos, M.; Nuñez, E.; Herrera, R. Numerical study on cyclic response of end-plate biaxial moment connection in box columns. Metals 2020, 10, 523. [Google Scholar] [CrossRef]
- Li, X.; Song, B.; Bian, X.; Wang, P.; Wu, C.; Chen, S. Analysis of a New Wedge-Shape Rectangular Tube Column and Girder Connection Joint. In Proceedings of the 8th International Conference on Intelligent Computation Technology and Automation (ICICTA), Nanchang, China, 14–15 June 2016; pp. 174–177. [Google Scholar] [CrossRef]
- Ferrante Cavallaro, G.; Latour, M.; Francavilla, A.B.; Piluso, V.; Rizzano, G. Standardised friction damper bolt assemblies time-related relaxation and installed tension variability. J. Constr. Steel Res. 2018, 141, 145–155. [Google Scholar] [CrossRef]
- Chan, R.W.K.; Hu, B. Numerical and experimental investigation into friction devices installed between concrete columns and steel beams. In Proceedings of the Mechanics of Structures and Materials: Advancements and Challenges—Proceedings of the 24th Australasian Conference on the Mechanics of Structures and Materials, Perth, Australia, 6–9 December 2016. [Google Scholar]
- Lor, H.A.; Izadinia, M.; Memarzadeh, P. Experimental and numerical study of I-shape slit dampers in connections. Lat. Am. J. Solids Struct. 2018, 15. [Google Scholar] [CrossRef]
- Shahri, S.F.; Mousavi, S.R. Seismic behavior of beam-to-column connections with elliptic slit dampers. Steel Compos. Struct. 2018, 26, 289–301. [Google Scholar] [CrossRef]
- Del Gobbo, G.M.; Blakeborough, A.; Williams, M.S. Improving total-building seismic performance using linear fluid viscous dampers. Bull. Earthq. Eng. 2018, 16, 4249–4272. [Google Scholar] [CrossRef]
- De Domenico, D.; Hajirasouliha, I. Multi-level performance-based design optimisation of steel frames with nonlinear viscous dampers. Bull. Earthq. Eng. 2021, 19, 5015–5049. [Google Scholar] [CrossRef]
- Moradi, S.; Alam, M.S. Finite-Element Simulation of Posttensioned Steel Connections with Bolted Angles under Cyclic Loading. J. Struct. Eng. 2016, 142, 04015075. [Google Scholar] [CrossRef]
- Al Kajbaf, A.; Fanaie, N.; Faraji Najarkolaie, K. Numerical simulation of failure in steel posttensioned connections under cyclic loading. Eng. Fail. Anal. 2018, 91, 35–57. [Google Scholar] [CrossRef]
- Moradi, S.; Alam, M.S. Multi-criteria optimization of lateral load-drift response of posttensioned steel beam-column connections. Eng. Struct. 2017, 130, 180–197. [Google Scholar] [CrossRef]
- Rahmzadeh, A.; Alam, M.S. Cyclic behavior of post-tensioned steel connections with shape memory alloy angles. In Proceedings of the The 6th International Conference on Mechanical Engineering and Mechanics, Metz, France, 29–31 October 2017; 1, pp. 239–245. [Google Scholar]
- Toghroli, A.; Nasirianfar, M.S.; Shariati, A.; Khorami, M.; Paknahad, M.; Ahmadi, M.; Gharehaghaj, B.; Zandi, Y. Analysis of extended end plate connection equipped with SMA bolts using component method. Steel Compos. Struct. 2020, 36, 213–228. [Google Scholar] [CrossRef]
- Torabipour, A.; Abdollahi, A.; Yaghoubi, S. Assess the Effectiveness of SMA on Response of Steel Connection with PT Strands. KSCE J. Civ. Eng. 2019, 23, 5133–5142. [Google Scholar] [CrossRef]
- Chowdhury, M.A.; Rahmzadeh, A.; Moradi, S.; Alam, M.S. Feasibility of using reduced length superelastic shape memory alloy strands in post-tensioned steel beam–column connections. J. Intell. Mater. Syst. Struct. 2019, 30, 283–307. [Google Scholar] [CrossRef]
- Saberi, V.; Gerami, M.; Kheyroddin, A. Post tensioned tendons for seismic retrofitting of weak bolted T-stub connections. Int. J. Steel Struct. 2017, 17, 877–891. [Google Scholar] [CrossRef]
- Pirmoz, A.; Liu, M.M. Finite element modeling and capacity analysis of post-tensioned steel frames against progressive collapse. Eng. Struct. 2016, 126, 446–456. [Google Scholar] [CrossRef]
- Qi, Y.; Teng, J.; Shan, Q.; Ding, J.; Li, Z.; Huang, C.; Xing, H.; Yi, W. Seismic performance of a novel prefabricated beam-to-column steel joint considering buckling behaviour of dampers. Eng. Struct. 2021, 229, 111591. [Google Scholar] [CrossRef]
- Manfredi, V.; Santarsiero, G.; Masi, A.; Ventura, G. The High-Performance Dissipating Frame (HPDF) System for the Seismic Strengthening of RC Existing Buildings. Sustainability 2021, 13, 1864. [Google Scholar] [CrossRef]
- Antoo, D.P.; Joseph, A. Analytical Study on Dynamic Behaviour of Bolted Beam Column Steel Connections with Reduced Beam Sections; Springer International Publishing: New York, NY, USA, 2021; Volume 97, ISBN 9783030551148. [Google Scholar]
- Antoo, D.P.; Joseph, A. Investigation of Bolted Beam–Column Steel Connections with RBS Subjected to Cyclic Loading; Springer: Singapore, 2021; Volume 104, ISBN 9789811581502. [Google Scholar]
- Zarei, A.; Vaghefi, M.; Fiouz, A.R. Numerical investigation seismic performance of rigid skewed beam-to-column connection with reduced beam section. Struct. Eng. Mech. 2016, 57, 507–528. [Google Scholar] [CrossRef]
- Gerami, M.; Oskoei, A.G. Evaluation of cyclic response of RBS connection including panel zone effects. In Proceedings of the EG-ICE 2010—17th International Workshop on Intelligent Computing in Engineering, Nottingham, UK, 30 June–2 July 2010. [Google Scholar]
- Sofias, C.E.; Pachoumis, D.T. Assessment of reduced beam section (RBS) moment connections subjected to cyclic loading. J. Constr. Steel Res. 2020, 171, 106151. [Google Scholar] [CrossRef]
- Plumier, A. The dogbone: Back to the future. Eng. J. 1997, 34, 61–67. [Google Scholar]
- Hu, Y.Y.; Lin, X.C.; Wu, K.L.; Wang, T. Cyclic loading test on high-strength steel beam-to-column connections with damage-control fuses. Gongcheng Lixue/Eng. Mech. 2017, 143–148. [Google Scholar] [CrossRef]
- Wang, M.; Bi, P. Study on seismic behavior and design method of dissipative bolted joint for steel frame with replaceable low yield point steel connected components. Constr. Build. Mater. 2019, 198, 677–695. [Google Scholar] [CrossRef]
- Pongiglione, M.; Calderini, C.; D’Aniello, M.; Landolfo, R. Novel reversible seismic-resistant joint for sustainable and deconstructable steel structures. J. Build. Eng. 2021, 35, 101989. [Google Scholar] [CrossRef]
- Wang, M.; Ke, X.G.; Wu, Z.Z. Seismic behavior of steel frame connections with replaceable high ductility and energy dissipation components. Gongcheng Lixue/Eng. Mech. 2018, 35, 151–163. [Google Scholar] [CrossRef]
- Lin, X.; Chen, Y.; Yan, J.-B.; Hu, Y. Seismic Behavior of Welded Beam-to-Column Joints of High-Strength Steel-Moment Frame with Replaceable Damage-Control Fuses. J. Struct. Eng. 2020, 146, 04020143. [Google Scholar] [CrossRef]
- Moradi Garoosi, A.R.; TahamouliRoudsari, M.; Hosseini Hashemi, B. Experimental evaluation of rigid connection with reduced section and replaceable fuse. Structures 2018, 16, 390–404. [Google Scholar] [CrossRef]
- Feng, Y.; Zhu, Y.; Jiang, Q.; Chong, X.; Liu, Y.; Huang, J. Quasi-static and fatigue testing of earthquake-resilient steel joints with replaceable buckling-restrained links. Structures 2021, 29, 1998–2016. [Google Scholar] [CrossRef]
- Pinkawa, M.; Vulcu, C.; Hoffmeister, B.; Feldmann, M. Optimization of dissipative replaceable link frames by elastic high strength steel coupling beams. In Proceedings of the Proceedings of the International Conference on Structural Dynamic, EURODYN, Athens, Greece, 23–25 November 2020. [Google Scholar]
- Pongiglione, M.; Calderini, C.; Guy, G.B. A new demountable seismic-resistant joint to improve industrial building reparability. Int. J. Disaster Resil. Built Environ. 2017, 8, 251–262. [Google Scholar] [CrossRef]
- Wang, J.; Uy, B.; Li, D. Analysis of demountable steel and composite frames with semi-rigid bolted joints. Steel Compos. Struct. 2018, 28, 363–380. [Google Scholar] [CrossRef]
- Vayas, I.; Vamvatsikos, D.; Thanopoulos, P.I. 11.00: Innovative systems for seismic resistance: The INNOSEIS Project. Ce/Papers 2017, 1, 3375–3384. [Google Scholar] [CrossRef]
- Stevens, D.; Wiebe, L. Development of a novel replaceable connection for seismically designed steel concentrically braced frames. In Proceedings of the Annual Conference of the Canadian Society for Civil Engineering, London, ON, Canada, 1–6 June 2016; 3, pp. 2196–2205. [Google Scholar]
- Mohsenazdeh, V.; Wiebe, L. Experimental Investigation of a Concentrically Braced Frame with Replaceable Brace Modules. J. Struct. Eng. 2020, 146, 04020248. [Google Scholar] [CrossRef]
- Abdollahzadeh, G.; BarehKheil, N.A.; Torabipour, A. Moment-rotation response of post-tensioned self-centring beam-column connection. In Proceedings of the Institution of Civil Engineers: Structures and Buildings; ICE Publishing: London, UK, 2020; Volume 173, pp. 440–457. [Google Scholar] [CrossRef]
- Qin, Y.; Shu, G.P.; Wang, W. Seismic behavior of self-centering steel connections with friction T-stubs. J. Constr. Steel Res. 2020, 173, 106263. [Google Scholar] [CrossRef]
- Wang, W.; Ricles, J.; Fang, C.; Chen, Y.; Sause, R.; Feng, W. SMA ring spring systems: Innovations in self-centering steel connection design. NCEE 2018 Integr. Sci. Eng. Policy 2018, 12, 7550–7558. [Google Scholar]
- Fang, C.; Wang, W.; He, C.; Chen, Y. Self-centring behaviour of steel and steel-concrete composite connections equipped with NiTi SMA bolts. Eng. Struct. 2017, 150, 390–408. [Google Scholar] [CrossRef]
- Gomaa, A.; Osman, A. Re-centering Capability of Inverted-Y Dual Eccentrically Braced Frame. Int. J. Steel Struct. 2019, 19, 1283–1294. [Google Scholar] [CrossRef]
- Saberi, H.; Kheyroddin, A.; Gerami, M. Welded haunches for seismic retrofitting of bolted T-stub connections and flexural strengthening of simple connections. Eng. Struct. 2016, 129, 31–43. [Google Scholar] [CrossRef]
- Chang, H.Y.; Yeh, C.Y. A study on behavior of steel joints that combine high-strength bolts and fillet welds. Steel Compos. Struct. 2019, 31, 361–372. [Google Scholar] [CrossRef]
- Deng, E.; Zong, L.; Ding, Y. Mechanical Properties of Innovative Connection for Integrated Modular Steel Construction. Tianjin Daxue Xuebao (Ziran Kexue Yu Gongcheng Jishu Ban)/J. Tianjin Univ. Sci. Technol. 2018, 51, 702–710. [Google Scholar] [CrossRef]
- Ali, S.J.; Ibrahim, A.M.; Shafeeq, S. Innovative Steel Connections with Composites Steel Bolts/Rubber Subjected to Horizontal/Inclined Cyclic Loads. IOP Conf. Ser. Mater. Sci. Eng. 2020, 745, 012113. [Google Scholar] [CrossRef]
- Muciaccia, G. Behavior of post-installed fastening under seismic action. ACI Struct. J. 2017, 114, 75–86. [Google Scholar] [CrossRef]
- Pan, Z.; Si, Q.; Zhou, Z.; Zhang, Y.; Zhu, Y.; Chen, X. Experimental and numerical investigations of seismic performance of hybrid joints with bolted connections. J. Constr. Steel Res. 2017, 138, 867–876. [Google Scholar] [CrossRef]
- Pul, S.; Senturk, M. A bolted moment connection model for precast column-beam joint. In Proceedings of the 2nd World Congress on Civil, Structural, and Environmental Engineering, Barcelona, Spain, 2–4 April 2017; pp. 1–8. [Google Scholar] [CrossRef]
- Li, Z.; Qi, Y.; Teng, J. Experimental investigation of prefabricated beam-to-column steel joints for precast concrete structures under cyclic loading. Eng. Struct. 2020, 209, 110217. [Google Scholar] [CrossRef]
- Agheshlui, H.; Goldsworthy, H.; Gad, E.; Mirza, O. Anchored blind bolted composite connection to a concrete filled steel tubular column. Steel Compos. Struct. 2017, 23, 115–130. [Google Scholar] [CrossRef]
- Deng, P.; Wang, L.; Li, S.; Liu, Y. Experimental study on seismic performance of concrete-filled square steel tubular column and steel beam with field-bolted connections. Jianzhu Jiegou Xuebao/J. Build. Struct. 2016, 37, 19–28. [Google Scholar] [CrossRef]
- Wang, J.; Jiang, S.; Guo, L.; Zhang, M. Experimental study on seismic performance of concrete-filled double steel tubular column composite connections with high strength blind bolts. Jianzhu Jiegou Xuebao/J. Build. Struct. 2021, 42, 682. [Google Scholar] [CrossRef]
- Wang, J.; Wang, H. Cyclic Experimental Behavior of CFST Column to Steel Beam Frames with Blind Bolted Connections. Int. J. Steel Struct. 2018, 18, 773–792. [Google Scholar] [CrossRef]
- Wang, J.; Zhong, L.; Guo, L.; Pan, X.; Lu, J. Pseudo-dynamic test analysis on blind bolted joints between square CFDST columns and steel beams. Tumu Gongcheng Xuebao/China Civ. Eng. J. 2019, 9, 5–15. [Google Scholar]
- Wang, J.; Guo, L. Experimental and Analytical Behavior of Square CFDST Column Blind Bolted to Steel Beam Connections. Int. J. Steel Struct. 2020, 20, 612–635. [Google Scholar] [CrossRef]
- Amadio, C.; Bedon, C.; Fasan, M. Numerical assessment of slab-interaction effects on the behaviour of steel-concrete composite joints. J. Constr. Steel Res. 2017, 139, 397–410. [Google Scholar] [CrossRef]
- Chang, H.Y.; Chiu, C.K. Uncertainty assessment of field weld connections and the related effects on service life of steel buildings. Struct. Infrastruct. Eng. 2019, 15, 1333–1345. [Google Scholar] [CrossRef]
- Liu, X.Y.; Wang, Y.Q.; Xiong, J.; Shi, Y.J. Investigation on the weld damage behavior of steel beam-to-column connection. Int. J. Steel Struct. 2017, 17, 273–289. [Google Scholar] [CrossRef]
- Safaei, S.; Erfani, S. Developing energy-based loading protocols for seismic evaluation of steel moment frames’ components. J. Constr. Steel Res. 2020, 174, 106306. [Google Scholar] [CrossRef]
- Zhang, H.; Zhu, X.; Li, Z.; Yao, S. Displacement-dependent nonlinear damping model in steel buildings with bolted joints. Adv. Struct. Eng. 2019, 22, 1049–1061. [Google Scholar] [CrossRef]
- Rodas, P.T.; Zareian, F.; Kanvinde, A. Hysteretic Model for Exposed Column–Base Connections. J. Struct. Eng. 2016, 142, 04016137. [Google Scholar] [CrossRef]
- Nath, M.; Bhowmick, A.K. Finite element modelling and analysis of yielding steel shear panel device for passive energy dissipation. In Proceedings of the Proceedings, Annual Conference—Canadian Society for Civil Engineering, London, ON, Canada, 1–4 June 2016. [Google Scholar]
- Xue, G.; Bao, W.; Jiang, J.; Shao, Y. Hysteretic Behavior of Beam-to-Column Joints with Cast Steel Connectors. Shock Vib. 2019, 2019, 1–20. [Google Scholar] [CrossRef]
- Huang, J.; Pan, W.; Jiang, W. Hysteretic behavior of new fully bolted H-shaped steel beam-to-column joints. World Earthq. Eng. 2019, 1, 10076069. [Google Scholar]
- Ushio, Y.; Saruwatari, T.; Nagano, Y. Elastoplastic FEM analysis of earthquake response for the field-bolt joints of a tower-crane mast. Adv. Comput. Des. 2019, 4, 53–72. [Google Scholar] [CrossRef]
- Wang, Z.Y.; Wang, Q.Y.; Xue, H.; Liu, X. Low cycle fatigue response of bolted T-stub connections to HSS columns—Experimental study. J. Constr. Steel Res. 2016, 119, 216–232. [Google Scholar] [CrossRef]
- De Abreu, E.; Nussbaumer, A. Ultra low cycle fatigue of welded steel joints under multiaxial loading. In Proceedings of the 6th International Conference on Structural Engineering, Mechanics and Computation, SEMC 2016—Insights and Innovations in Structural Engineering, Mechanics and Computation, Cape Town, South Africa, 5–7 September 2016. [Google Scholar] [CrossRef]
- Stillmaker, K.; Lao, X.; Galasso, C.; Kanvinde, A. Column splice fracture effects on the seismic performance of steel moment frames. J. Constr. Steel Res. 2017, 137, 93–101. [Google Scholar] [CrossRef]
- Liao, F.; Wang, M.; Tu, L.; Wang, J.; Lu, L. Micromechanical fracture model parameter influencing factor study of structural steels and welding materials. Constr. Build. Mater. 2019, 215, 898–917. [Google Scholar] [CrossRef]
- Petrina, T. Post-Earthquake Fire Tests—Part 1: Report. IOP Conf. Ser. Earth Environ. Sci. 2016, 44, 022011. [Google Scholar] [CrossRef]
- Petrina, T. Post-Earthquake Fire Tests—Part 2: Failure Modes. IOP Conf. Ser. Earth Environ. Sci. 2016, 44, 022012. [Google Scholar] [CrossRef]
- Petrina, T. Steel Connections Deterioration Coefficient Introduction for Post-Earthquake Fire Analysis. Procedia Eng. 2016, 161, 137–142. [Google Scholar] [CrossRef][Green Version]
- Petrina, T. Steel Connections Post-Earthquake Fire Tests Setup. Procedia Eng. 2016, 161, 133–136. [Google Scholar] [CrossRef][Green Version]
- Johnson, J.; Sarif, N. Seismic performance of fire exposed steel welded WUF-W and RBS connections. IOP Conf. Ser. Earth Environ. Sci. 2020, 491, 012030. [Google Scholar] [CrossRef]
- Ayhan, D.; Madsen, R.L.; Schafer, B.W. Progress in the development of ASCE 41 for cold-formed steel. Wei-Wen Yu Int. Spec. Conf. Cold-Form. Steel Struct. 2016—Recent Res. Dev. Cold-Form. Steel Des. Constr 2016, 417–432. [Google Scholar]
- Hancock, G.J. Recent Developments in the Australian/New Zealand Standard AS/NZS 4600 for Cold-Formed Steel Structures. In Proceedings of the International Specialty Conference on Cold-Formed Steel Structures, Rolla, MI, USA, 9 November 2016. [Google Scholar]
- Talebian, N.; Gilbert, B.P.; Baldassino, N.; Karampour, H. Factors contributing to the transverse shear stiffness of bolted cold-formed steel storage rack upright frames with channel bracing members. Thin-Walled Struct. 2019, 136, 50–63. [Google Scholar] [CrossRef]
- Fiorino, L.; Macillo, V.; Landolfo, R. Experimental characterization of quick mechanical connecting systems for cold-formed steel structures. Adv. Struct. Eng. 2017, 20, 1098–1110. [Google Scholar] [CrossRef]














| Stage | Included | Excluded |
|---|---|---|
| 5 Identification | 5.1 Mendeley (n = 26, of which 26 were eligible) | |
| 5.2 Scopus (n = 655, of which 214 were eligible) | ||
| 5.3 References found in articles (n = 75, of which 43 were eligible) | ||
| 6 Screening | n = 270 | n = 14 |
| 7 Sorting | n = 262 | n = 8 |
| 8 Eligibility | n = 135 | n = 127 |
| Steel | Thickness Range | Anet/A ≥ | Allowable Holes ≤ (%) | |
|---|---|---|---|---|
| EN 10025-2 | S 235 | t ≤ 40 mm | 0.907 | 9.3 |
| 40 mm < t ≤ 80 mm | 0.829 | 17.1 | ||
| S 275 | t ≤ 40 mm | 0.888 | 11.2 | |
| 40 mm < t ≤ 80 mm | 0.864 | 13.6 | ||
| S 355 | t ≤ 40 mm | 0.967 | 3.3 | |
| 40 mm < t ≤ 80 mm | 0.990 | 1.0 | ||
| S 450 | t ≤ 40 mm | 1.111 | - | |
| 40 mm < t ≤ 80 mm | 1.035 | - | ||
| EN 10025-3 | S 275 N/NL | t ≤ 40 mm | 0.979 | 2.1 |
| 40 mm < t ≤ 80 mm | 0.957 | 4.3 | ||
| S 355 N/NL | t ≤ 40 mm | 1.006 | - | |
| 40 mm < t ≤ 80 mm | 0.990 | 1.0 | ||
| S 420 N/NL | t ≤ 40 mm | 1.122 | - | |
| 40 mm < t ≤ 80 mm | 1.042 | - | ||
| S 460 N/NL | t ≤ 40 mm | 1.183 | - | |
| 40 mm < t ≤ 80 mm | 1.106 | - | ||
| EN 10025-4 | S 275 M/ML | t ≤ 40 mm | 1.032 | - |
| 40 mm < t ≤ 80 mm | 0.984 | 1.6 | ||
| S 355 M/ML | t ≤ 40 mm | 1.049 | - | |
| 40 mm < t ≤ 80 mm | 1.034 | - | ||
| S 420 M/ML | t ≤ 40 mm | 1.122 | - | |
| 40 mm < t ≤ 80 mm | 1.083 | - | ||
| S 460 M/ML | t ≤ 40 mm | 1.183 | - | |
| 40 mm < t ≤ 80 mm | 1.127 | - | ||
| EN 10025-5 | S 235 W | t ≤ 40 mm | 0.907 | 9.3 |
| 40 mm < t ≤ 80 mm | 0.878 | 12.2 | ||
| S 355 W | t ≤ 40 mm | 0.967 | 3.3 | |
| 40 mm < t ≤ 80 mm | 0.950 | 5.0 | ||
| EN 10025-6 | S 460 Q/QL/QL1 | t ≤ 40 mm | 1.121 | - |
| 40 mm < t ≤ 80 mm | 1.111 | - | ||
| EN 10210-1 | S 235 H | t ≤ 40 mm | 0.907 | 9.3 |
| 40 mm < t ≤ 80 mm | 0.878 | 12.2 | ||
| S 275 H | t ≤ 40 mm | 0.888 | 11.2 | |
| 40 mm < t ≤ 80 mm | 0.864 | 13.6 | ||
| S 355 H | t ≤ 40 mm | 0.967 | 3.3 | |
| 40 mm < t ≤ 80 mm | 0.950 | 5.0 | ||
| S 275 NH/NLH | t ≤ 40 mm | 0.979 | 2.1 | |
| 40 mm < t ≤ 80 mm | 0.957 | 4.3 | ||
| S 355 NH/NLH | t ≤ 40 mm | 1.006 | - | |
| 40 mm < t ≤ 80 mm | 0.990 | 1.0 | ||
| S 420 NH/NHL | t ≤ 40 mm | 1.080 | - | |
| 40 mm < t ≤ 80 mm | 1.042 | - | ||
| S 460 NH/NLH | t ≤ 40 mm | 1.141 | - | |
| 40 mm < t ≤ 80 mm | 1.086 | - | ||
| EN 10219-1 | S 235 H | t ≤ 40 mm | 0.907 | 9.3 |
| S 275 H | t ≤ 40 mm | 0.888 | 11.2 | |
| S 355 H | t ≤ 40 mm | 0.967 | 3.3 | |
| S 275 NH/NLH | t ≤ 40 mm | 1.032 | - | |
| S 355 NH/NLH | t ≤ 40 mm | 1.049 | - | |
| S 460 NH/NLH | t ≤ 40 mm | 1.162 | - | |
| S 275 MH/MLH | t ≤ 40 mm | 1.061 | - | |
| S 355 MH/MLH | t ≤ 40 mm | 1.049 | - | |
| S 420 MH/MLH | t ≤ 40 mm | 1.167 | - | |
| S 460 MH/MLH | t ≤ 40 mm | 1.205 | - | |
| Steel | Thickness Range | Anet/A | Allowable Holes (%) | |
|---|---|---|---|---|
| EN 10025-2 | S 235 | 3 mm < t ≤ 16 mm | 0.907 | 9.3 |
| 16 mm < t ≤ 40 mm | 0.868 | 13.2 | ||
| 40 mm < t ≤ 63 mm | 0.829 | 17.1 | ||
| 63 mm < t ≤ 80 mm | 0.829 | 17.1 | ||
| S 275 | 3 mm < t ≤ 16 mm | 0.932 | 6.8 | |
| 16 mm < t ≤ 40 mm | 0.898 | 10.2 | ||
| 40 mm < t ≤ 63 mm | 0.864 | 13.6 | ||
| 63 mm < t ≤ 80 mm | 0.830 | 17.0 | ||
| S 355 | 3 mm < t ≤ 16 mm | 1.049 | - | |
| 16 mm < t ≤ 40 mm | 1.020 | - | ||
| 40 mm < t ≤ 63 mm | 0.990 | 1.0 | ||
| 63 mm < t ≤ 80 mm | 0.960 | 4.0 | ||
| S 450 | 3 mm < t ≤ 16 mm | 1.136 | - | |
| 16 mm < t ≤ 40 mm | 1.086 | - | ||
| 40 mm < t ≤ 63 mm | 1.035 | - | ||
| 63 mm < t ≤ 80 mm | 0.985 | 1.5 | ||
Publisher’s Note: MDPI stays neutral with regard to jurisdictional claims in published maps and institutional affiliations. |
© 2021 by the authors. Licensee MDPI, Basel, Switzerland. This article is an open access article distributed under the terms and conditions of the Creative Commons Attribution (CC BY) license (https://creativecommons.org/licenses/by/4.0/).
Share and Cite
Ribeiro, T.; Bernardo, L.; Carrazedo, R.; De Domenico, D. Seismic Design of Bolted Connections in Steel Structures—A Critical Assessment of Practice and Research. Buildings 2022, 12, 32. https://doi.org/10.3390/buildings12010032
Ribeiro T, Bernardo L, Carrazedo R, De Domenico D. Seismic Design of Bolted Connections in Steel Structures—A Critical Assessment of Practice and Research. Buildings. 2022; 12(1):32. https://doi.org/10.3390/buildings12010032
Chicago/Turabian StyleRibeiro, Tiago, Luís Bernardo, Ricardo Carrazedo, and Dario De Domenico. 2022. "Seismic Design of Bolted Connections in Steel Structures—A Critical Assessment of Practice and Research" Buildings 12, no. 1: 32. https://doi.org/10.3390/buildings12010032
APA StyleRibeiro, T., Bernardo, L., Carrazedo, R., & De Domenico, D. (2022). Seismic Design of Bolted Connections in Steel Structures—A Critical Assessment of Practice and Research. Buildings, 12(1), 32. https://doi.org/10.3390/buildings12010032

