Next Article in Journal
A Spiral Single-Layer Reticulated Shell Structure: Imperfection and Damage Tolerance Analysis and Stability Capacity Formulation for Conceptual Design
Next Article in Special Issue
The Memetic Evolution of Latin American Architectural Design Culture
Previous Article in Journal
Mechanical-Analytical Soil-Dependent Fragility Curves of Existing RC Frames with Column-Driven Failures
Previous Article in Special Issue
Historical Study and Conservation Strategies of “Tianzihao” Colony (Nanjing, China)—Architectural Heritage of the French Catholic Missions in the Late 19th Century
 
 
Font Type:
Arial Georgia Verdana
Font Size:
Aa Aa Aa
Line Spacing:
Column Width:
Background:
Article

Revitalization of Residential Buildings Dating Back to the Late 19th and Early 20th Century on the Example of “Willa Halina” in Sopot (Poland)

by
Antoni Taraszkiewicz
Faculty of Architecture, Technical University of Gdańsk, 80-233 Gdańsk, Poland
Buildings 2021, 11(7), 279; https://doi.org/10.3390/buildings11070279
Submission received: 20 May 2021 / Revised: 24 June 2021 / Accepted: 26 June 2021 / Published: 30 June 2021

Abstract

Residential buildings dating back to the late 19th and early 20th century constitute an important element of the urban composition of many European cities, often determining their overall spatial expression. These buildings often require revitalization and sometimes also reconstruction or extension. Such activities make it possible to restore historical buildings to their former glory, but also to create new architecture, inscribed in the context of the place, yet bearing witness to modern times. Revitalization of historically and architecturally valuable but technically degraded residential buildings is one of the important elements of maintaining and sometimes rebuilding the image of modern cities and their sustainable development. However, revitalization activities require solving many problems of conservational nature, especially issues related to preserving the authenticity of the existing tissue, ways of reconstructing lost elements, and connecting historical architecture with contemporary architecture. Historic residential buildings of Sopot, a city located in Poland on the shores of the Baltic Sea, dating back to the late 19th and early 20th century, provide excellent research material for such considerations. In the article, the historical center of Sopot was examined, with particular emphasis on the historic Willa Halina from 1896 located there, which was revitalized (according to the design of the author of the article). Using such research methods as analysis of historical source material (iconography), observation (operationalization of preserved historical objects), comparative analysis of contemporary investments, and analysis of the revitalization design of “Willa Halina”, an attempt was made to present spatial and technical solutions leading to the desired effects in the revitalization process. This work aims to show (on the example of Willa Halina in Sopot) the author’s method of revitalizing valuable, historical residential buildings, complying with international conservation standards, including the Venice Charter, adopted in 1964 by the Second International Congress of Architects and Technicians of Historical Monuments. The paper also aims to present spatial and technical solutions leading to desired effects in the revitalization process, consistent with the idea of sustainable development.

1. Introduction

Many European cities have architecturally valuable examples of residential buildings from the late 19th and early 20th century. These buildings have never been spatial dominants in the past. They do not play such a role nowadays either; however, due to their considerable number and stylistic homogeneity (mostly eclectic), they determined and still determine the spatial expression of numerous cities. The importance of eclectic residential buildings dated back to the late 19th and early 20th century, for the image of contemporary European cities and the preservation of the identity of the place, the identity of the individual, and entire urban communities, is described in [1,2].
These objects, due to the passage of time or war damage, often require revitalization and sometimes reconstruction or expansion [3]. Such actions make it possible not only to restore the splendor of historic buildings, but also to achieve spatial recomposition of developments, and sometimes whole districts. Such activities also make it possible to create new development elements, inscribed in the context of the place, but testifying to their contemporary character. The desire to preserve identity need not be an obstacle in this context, as conscious urban development should be based on the recognition of local identity and using it to create new forms and ways of functioning, using new technologies, and taking into account new conditions [2,4].
Revitalization activities are also one of the important elements of the sustainable development of modern cities. Relationships between existing urban structure and new elements in the context of sustainable development are described in [5,6]. Perceiving revitalization activities in this context concerns both the protection of cultural heritage and the rational use of the existing housing stock without the need to build new facilities and thus transform and pollute the natural environment and consume energy and materials. These actions consequently allow for the protection of non-renewable energy sources, water, air, and soil, as well as greenery and the wider environment. The architect’s relationship to sustainability paradigms, the place and role of the architect in the implementation of multidimensional sustainable design processes, and related dilemmas and antinomies are presented in [7]. Important in this context, especially in relation to revitalized buildings, are the findings of the “Leipzig Charter” on sustainable development of European cities, signed by EU member states in 2007 [6,8]. They assume that full integration and coherence of new elements with the existing historical surroundings should be sought, with simultaneous protection of elements of the natural environment and historical cultural assets, taking into account economic and social conditions [9].
However, the revitalization of historic buildings requires solving many conservation problems. Cultural heritage sites, especially architectural monuments, are increasingly recognized as the common heritage of humanity, which motivates the search for international standards for their protection and restoration [4]. Founded in 1965, the International Council on Monuments and Sites (ICOMOS) was a significant step towards establishing a common model and universally accepted principles. The concept of authenticity favoured by ICOMOS is that alterations to the historic tissue should be avoided as much as possible, and any necessary changes should be clearly visible to avoid falsification of history [10,11,12]. Numerous issues concerning contemporary architectural design in cities with historic buildings according to international standards and issues related to the rescue of historic buildings have been discussed in [13,14,15,16,17,18,19]. Some researchers also argue that saving individual architectural monuments is a key factor in revitalizing entire cities [20,21]. Methods of modern revitalization aimed at saving technically degraded monuments, which in the process of revitalization are expanded and receive a new function adapting them to modern requirements, are discussed in [22,23]. The process of revitalization of historic buildings is naturally connected with the knowledge of technical problems. The initial step in the revitalization process (apart from historical research and functional aspects, of course) must therefore be a diagnosis of the technical condition of the building [24], followed by a judicious selection of construction techniques and technologies. These issues are discussed in [25,26].
Sopot, a summer resort located in Poland on the shores of the Baltic Sea, is a city with numerous valuable but often technically degraded residential buildings (dating back to the late 19th and early 20th century) that require revitalization [27]. The research carried out in this article is based on an architecturally valuable building located in the center of Sopot, erected in 1896, called “Willa Halina”, revitalized according to the project of the author of this article. As a consequence of the lack of proper care for the technical condition of the villa by its owners, at the end of the 20th century the building was abandoned by its inhabitants and its degradation was constantly increasing, which required the introduction of immediate and decisive revitalization measures.
The paper aims to show (on the example of Willa Halina in Sopot) the author’s method of the revitalization of valuable, historical residential buildings, which is consistent with international conservation standards, including the Venice Charter, adopted in 1964 by the Second International Congress of Architects and Technicians of Historical Monuments [10]. The study also aims to present spatial and technical solutions that lead to the desired effects in the revitalization process. It is about spatial and technical solutions that will allow for easy exposition of historical elements of the building and their clear distinction from the newly designed ones.
The revitalization of Willa Halina was carried out in accordance with the idea of sustainable development and made it possible to save and restore the historically and architecturally valuable building, which is an element of the cultural landscape of its location.

2. Materials and Methods

One of the important elements of sustainable development of modern cities is the ability to revitalize historically and architecturally valuable but technically degraded buildings, including residential buildings. It is, of course, about the protection of cultural heritage, which is so important nowadays [10,11,12], but also about the rational use and restoration to the function of valuable housing resources, without the need to carry out new investment activities that destroy the natural environment [6,7,8].
Among the many elements of the current discourse on the protection and revitalization of historic buildings, the issues concerning the preservation of the authenticity of the existing tissue [9,10,11,12], the ways of reconstructing the elements lost due to the passage of time, and the connections between historical and contemporary architecture undoubtedly come to the fore [4,10,11,12].
Excellent research material for such considerations is the historical residential development of Sopot, dating back to the late nineteenth and early twentieth century, in which many historically and architecturally valuable but technically degraded residential buildings are waiting for revitalization, restoring them to a state consistent with the rank they occupy in the structure of the city.
The article examines the historic center of Sopot, with particular emphasis on the historic “Willa Halina” from 1896, located there, which was revitalized (according to the design of the author of the article).
A wide variety of research methods and materials were used in the paper. The first method was an analysis of historical source material (mainly iconographic) in the form of preserved photographs and postcards from the late nineteenth and early twentieth century, showing Willa Halina, but also other residential buildings constructed at the time, located in Sopot. An important element of the historical material research was also reading the texts from the period, mainly press articles presenting the most important events of the city life at that time and describing its spatial development. Some curiosity, which was an element of the research, was found during the revitalization of Willa Halina, built into the wall of the building erection act in which the first owner and builder of the building—Hugon Kowalewski—describes how the building was created and how it got its name, “Villa Halina”. The erection act was handed over to the Museum of the City of Sopot, where it is kept to this day.
Another research method was observation (operationalization) of preserved, historic residential buildings in Sopot and ways of their conservation and revitalization. The multitude of these buildings made them an excellent research and comparative material, and the diversity of approaches to the issues of monument conservation allowed for the formulation of interesting conclusions.
An important element of the research was also a comparative analysis of contemporary residential investments carried out in Sopot. The varied approach of designers and investors to the way of placing new buildings in the historical context and the related decisions of the municipal conservation services are very interesting research material that provides valuable clues for further research and practical activities.
And finally, the revitalization design of “Willa Halina” in Sopot as an example of original spatial and technical solutions leading to desired effects in the revitalization process is a good research material, which served for a very broad and thorough analysis, allowing important conclusions to be drawn.
All buildings examined in this article, even the contemporary ones, are under legal conservation protection in Sopot because they either constitute an authentic, historical fabric or are contemporary activities within the historical fabric. This protection is complete, regulated by law through the inclusion of historic buildings in the register of monuments and new buildings in the conservation zone, and takes place at the level of municipal authorities.
The relations between the conservation services and the investors and designers are based on numerous discussions on multi-variant design studies. However, it is always the conservator who has the final and decisive say here.

3. History of the City of Sopot

Sopot is a summer resort located in Poland, on the shores of the Baltic Sea and at the same time an important part of the Tricity agglomeration, which consists of Gdańsk, Sopot, and Gdynia.
The first information about Sopot comes from 1283 when the small fishing village was given to the Cistercian Order by the Slavic Duke Mściwój. Cistercians ruled over Sopot for nearly 490 years. After the first partition of Poland (1772), Sopot came under the rule of the Kingdom of Prussia [27,28].
Between the mid-16th and early 18th century, wealthy patricians living in nearby Gdańsk built their summer residences in Sopot. Unfortunately, as a result of many military actions, especially the siege of Gdańsk by the Cossack and Saxon armies in 1734, the residences were completely destroyed. This war was fought for the succession to the Polish crown between the supporters of Stanisław Leszczyński and August III [27,28].
The oldest preserved monuments in Sopot, which can be classified as “summer” buildings, come from the late 18th and early 19th century and represent classicist forms. They were small, wooden and brick structures of simple shapes (Figure 1).
In 1823, a former major of Napoleon’s army, Jean Georg Haffner, a doctor by profession, bought land in Sopot and built the first bathing establishment and spa house. This event is considered to be the symbolic date of the founding of Sopot. At that time, the first patients started to come to Sopot.
After the opening of the railway connection between Gdańsk and Berlin in 1870, a rapid development of Sopot took place. The number of holiday homes, villas, and residential buildings was increasing. More and more patients were coming.
In 1901, Sopot received city rights which gave impetus to its dynamic development. In 1903, the Balneological Institute was built, where bathing in heated sea water was used. Sopot became a fashionable place in Europe, called the Riviera of the North [27,28].
The building boom associated with the city’s rise as a resort coincided with the greatest popularity of sophisticated and complex forms of eclecticism. Art Nouveau also found its place in this architecture, appearing not so much in the forms of buildings, but in architectural details and decorative elements. This architectural mixture of eclecticism and Art Nouveau gave the town a specific atmosphere that can be admired and felt to this day (Figure 2). It was at the end of the 19th and the beginning of the 20th century that the greatest number of valuable residential buildings were erected in Sopot, some of which require decisive revitalisation activities.
After the Treaty of Versailles in 1920, Sopot became part of the Free City of Danzig, and with the onset of World War II was incorporated into the Third Reich [27,29].
Liberated after World War II in 1945, Sopot was incorporated into Poland. The warfare did a lot of damage to the town, not all of which has been repaired. The destruction concerned not only the material substance, but also the cultural continuity, which was broken by the post-war exchange of society. At the end of the war, almost all pre-war inhabitants of Sopot, who were of German nationality, fled from the Red Army approaching from the east and never returned to Sopot, leaving there their houses, cemeteries, places of worship, and everything connected with culture in the broadest sense of the word.
Today, Sopot is once again a renowned spa in Europe (it received this title in 1999) and is the site of many new investments expanding its spa infrastructure. Among these investments, an important place is taken by residential buildings, including revitalized historic buildings.

4. Contemporary Investment and Revitalization Activities in Sopot

Like any living city, Sopot also carries out various investment activities aimed at development through construction of new buildings and development complexes, maintenance of the existing building stock, and revitalization of technically degraded objects.
The real estate sector in Sopot is somewhat cautious with regard to historic buildings, as the requirements of conservation protection imposed on these objects significantly limit the possibilities of free disposal of these objects, especially with regard to their modification and transformation. On the other hand, due to the great attractiveness of Sopot as a place to live, work, and relax, investors are willing to overcome their fears and invest in Sopot real estate, which usually gives them great business benefits.
In Sopot, as in all of Poland, the protection of monuments is regulated by the “Act on the Protection and Care of Monuments”. According to this act, the urban layout of Sopot is included in the register of monuments, which means that any investment in the city must be agreed with the municipal conservator of monuments. Moreover, in accordance with the aforementioned act, some of the most valuable monuments of Sopot are entered in the provincial register of monuments, which imposes on investors the need to agree on any work on such objects with the provincial conservator of monuments. However, most of the monuments of Sopot, including Willa Halina discussed in this article, are only entered in the municipal register of monuments (also provided for in the Act), which means that any investment work on such objects must be approved by the municipal conservator.
The above-mentioned protection applies to all historic buildings in Sopot and in Poland, regardless of their function or ownership type (public or private). The entry of an object to the voivodeship register of monuments is made by the voivodeship conservator and to the municipal register of monuments by the municipal conservator. The only difference between the approach to the protection of public and privately owned monuments is that a private owner has the right to appeal to the Minister of Culture and National Heritage against the decision to include a building in the provincial register of monuments, whereas a public owner does not have such privilege.
As a city with a large proportion of historic buildings, Sopot has to cope with many conservation problems, especially with respecting the principles of historic monument protection adopted by international bodies [10,11,12].
The Venice Charter, adopted in 1964, (mentioned in the introduction to the article) provides an excellent basis for any further international developments and regulations in the field of cultural heritage protection [10].
In the spirit of the Venice Charter, a number of important international legal regulations, such as the Charter of Krakow (2000) or the Faro Convention (2005), aimed at the protection of the world’s cultural heritage, were created in later years.
The Charter of Krakow, which in its preamble directly refers to the provisions of the Venice Charter, points out that cultural heritage (architectural, urban, and landscape heritage, as well as artefacts) are linked to different moments in history and embedded in different socio-cultural contexts. It is our responsibility to preserve this heritage and its conservation can be done through different types of interventions such as revitalization, conservation, or environmental protection [11].
In turn, the Faro Convention (Convention on the Value of Cultural Heritage for Society) emphasizes important aspects of heritage that relate to human rights and democracy. It promotes a broader understanding of heritage and its relationship to communities and society. The convention encourages the recognition that sites and places in themselves are not what is important in cultural heritage. They are important because of the meanings and uses people assign to them and the values they represent [12].
The Venice Charter calls for the protection and preservation of the original substance, structure, and materials of historic buildings and a clear distinction between all newly added elements and the original elements. Most relevant here are Articles 9, 10, and 12 of the Venice Charter, which state:
Article 9, “The process of restoration is a highly specialized operation. Its aim is to preserve and reveal the aesthetic and historic value of the monument and is based on respect for original material and authentic documents. It must stop at the point where conjecture begins, and in this case moreover any extra work which is indispensable must be distinct from the architectural composition and must bear a contemporary stamp. The restoration in any case must be preceded and followed by an archaeological and historical study of the monument”.
Article 10, “Where traditional techniques prove inadequate, the consolidation of a monument can be achieved by the use of any modern technique for conservation and construction, the efficacy of which has been shown by scientific data and proved by experience”.
Article 12, “Replacements of missing parts must integrate harmoniously with the whole, but at the same time must be distinguishable from the original so that restoration does not falsify the artistic or historic evidence”. [10].
However, not all investment activities carried out nowadays in Sopot comply with the principles mentioned above. This can be particularly felt in the case of some completely new designs which, drawing directly and unreflectively on the achievements of the past, create “new monuments”. Although these objects are a complement to the urban tissue and not to individual historic buildings, and are set in the eclectic atmosphere of Sopot, they definitely falsify history. An example of this is the newly designed residential building completed in 2001, which is deceptively reminiscent of eclectic solutions from the late 19th and early 20th century (Figure 3).
This is of course due to the fact that architects designing new buildings in an area with strong historical and spatial determinants have to face the tendency to create copies of historical buildings [30], but often also (mainly due to high social expectations towards such architecture) with an overwhelming desire to create something truly unique, equal in value to the existing historical buildings. Unfortunately, the conservation services are also to blame here, encouraging the creation of architecture as close as possible in form to the historical prototypes.
However, interference in the authentic, historic fabric of a building requires the utmost caution [11]. In Sopot, we are dealing with two kinds of this interference. The first of them involves supplementing or reconstructing fragments of buildings and architectural details destroyed by the passage of time, while the second involves the revitalization of entire technically degraded historical buildings combined with their extension with completely new, previously non-existing cubature elements.
In the first of these cases in Sopot, we usually deal with a complete and very blatant violation of the principles of the Venice Charter. Numerous architectural details as well as whole fragments of historical buildings are reconstructed in a way that makes it impossible to distinguish authentic elements from contemporary reconstructions and additions. The magnificent, eclectic Sopot buildings enchant the viewers with their fresh, renewed look, giving a false impression as if they had just been built (Figure 4). This is clearly an unnecessary falsification of history and a harmful blurring of the distinction between the authentic and the reconstructed [31,32].
The situation is slightly different in the case of revitalization and extension of historical buildings with completely new, non-existing cubature elements. First of all, it should be stated that in Sopot this type of interference is very rare, because generally the city conservation services do not agree to this type of activity. The exceptions here are technically degraded historical buildings, whose possibility of expansion and adaptation to contemporary needs is the only way to encourage investors to revitalization activities. An example here is the residential building completed in 2002 at Ogrodowa Street in Sopot, whose contemporary architecture with its mass relates to the historical buildings in the neighbourhood, but through the detail and colouring, it clearly shows the time in which it was created (Figure 5).
Although there are also investments that grossly violate the principles of the Venice Charter, in which the newly designed extension imitates the style and architectural detail of the historic building to which it is added, the vast majority of such investment activities are carried out in compliance with the principles adopted by international bodies [33,34]. The city’s preservation services and architects strive to ensure that additions to historic buildings are carried out in a way that clearly shows and distinguishes elements from the late 19th and 20th centuries from those constructed today. As already mentioned above, this is done on the basis of complete legal protection (entry of historic buildings in the register of historic buildings and new buildings in the conservation protection zone) and is carried out at the level of municipal authorities.

5. Revitalization and Extension of Willa Halina in Sopot

An example of revitalization of a historical building combined with its extension is the case of Willa Halina in Sopot, located in the city center at 73 Powstańców Warszawy street, less than 100 m from the sea shore.
Erected in 1896, the villa was designed in the eclectic style by Walter Schulz, a well-known Sopot architect and painter of that time, for the investor Hugo Kowalewski, and served as a boarding house. In 1913, the villa was purchased by Władysław Tomaszewski, who also ran a boarding house here named after his wife, Halina [27]. The villa, like all buildings constructed at the late 19th and early 20th century in Sopot, was a romantic combination of neo-Baroque, neo-Renaissance, and neoclassicism with an admixture of regional elements (Figure 6).
Despite such a powerful mixture of styles, the villa was a beautiful building with balanced proportions and successful composition of the mass. The main façade is completely symmetrical, capped with two low pitch roofs, typical for Sopot. The front of the building is decorated with a magnificent neo-Baroque staircase and a semicircular balcony above it, covered with a glass roof with a steel structure. What attracted attention was the richness of eclectic detail and the careful selection of individual elements of the composition. In front of the building, according to the design of Walter Schulz, two yew trees were planted, which have survived to this day.
The side and rear façades of the building were much more restrained in their expression, referring mainly to the Neo-Renaissance with features of the regional architecture (Figure 7).
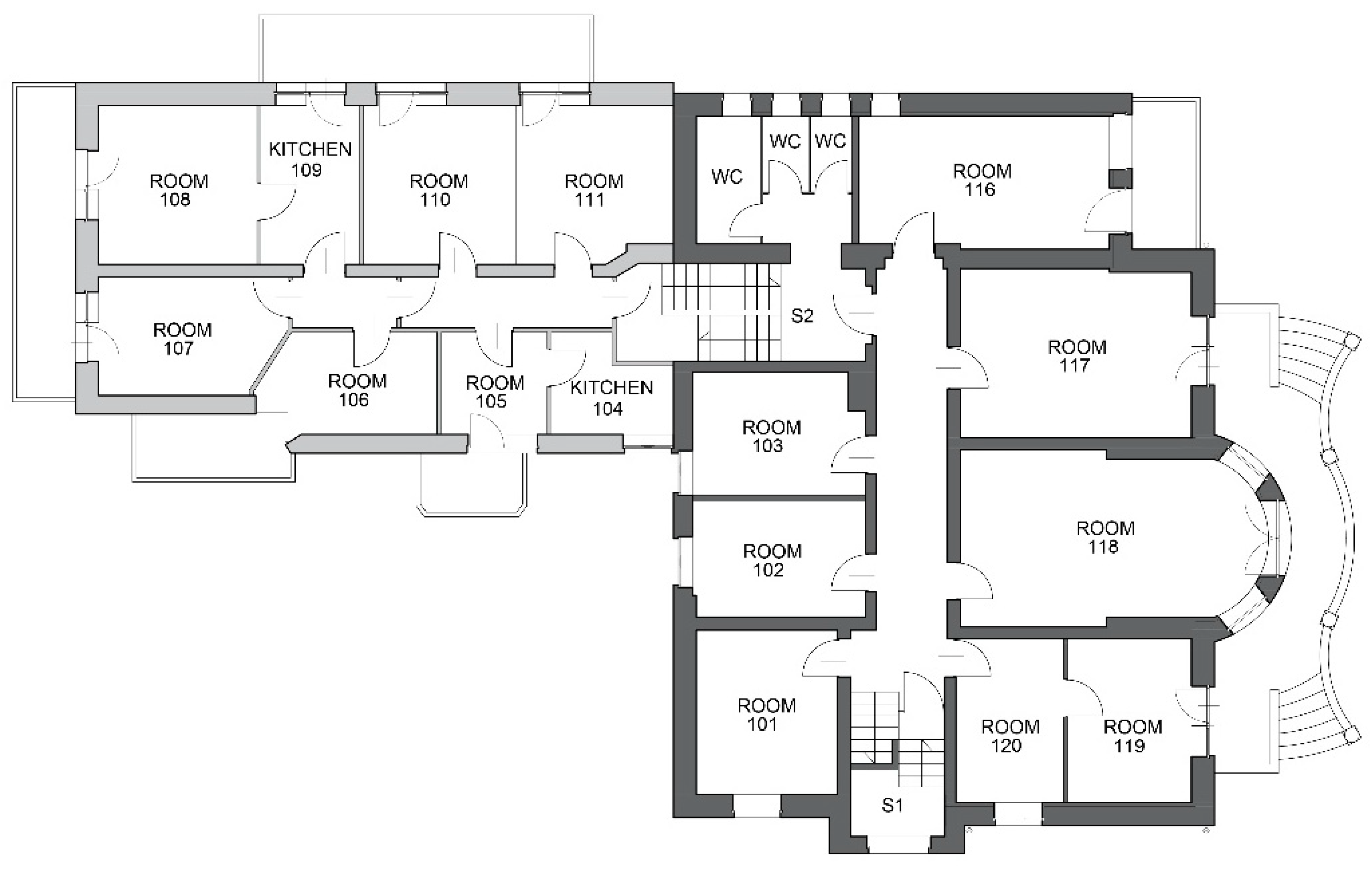
In this condition, the villa survived until World War II. After the war, the villa changed owners several times and served as a multi-family residential building; however, its external appearance has not suffered much damage, apart from minor losses of architectural detail. In the 1950s, the building’s interior was functionally divided into several small apartments and an annex of rather low architectural value was added to the villa’s western side, creating dissonance with the finished and refined architectural form of the main building (Figure 8).
The multitude of users and the lack of proper care for the building caused its technical condition to deteriorate from year to year. There was severe degradation of the wooden ceiling beams and brick walls. There was fungus and severe dampness (Figure 9). Particularly serious technical degradation concerned the annex, whose technical condition could be described as woeful. As a result, by the end of the 20th century, the building was abandoned by residents and awaited revitalization.
At the beginning of the 21st century, the villa was bought by a developer from Gdańsk, who decided to revitalize and expand it. The investor entrusted the revitalization design to the author of this article.
The basic guidelines that guided the author of the design were the tenets of the Venice Charter [10] and the pursuit of solutions consistent with the principles of sustainable development [5,6,7,8,9,35,36]. These, of course, included guidelines regarding the need to clearly distinguish between authentic and reconstructed or newly designed elements, and the need for maximum protection of cultural as well as natural resources and environmental protection. These guidelines accompanied all design decisions throughout the design and construction stage of the design.
As the villa was included in the register of historic monuments, the conservatory suggested that the annex dating from the 1950s be removed and the villa be restored in its pre-war shape. However, after a long discussion with the investor, the conservator of monuments agreed on the modern extension as an element enabling the economic result of the investment to be achieved. The lesser evil was chosen here—agreeing to a modern extension together with revitalisation of the historical part instead of further degradation of the building.
In consultation with the conservation services, a decision was made to renovate the main body of Willa Halina, completely preserving its historic external shape and carefully reconstructing damaged architectural details and colors based on stratigraphic research. Similarly conducted stratigraphic studies have been described in [37,38,39]. Architectural details were reconstructed in a way that enabled the ability to distinguish the authentic element from the additions by using subtle color differentiation. Similar restoration efforts have been described in [40,41]. A decision was also made to demolish the architecturally uninteresting and technically degraded annex from the 1950s and to replace it with an extension of the villa with a basement and underground garage.
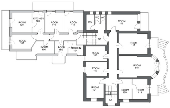
Between the extended part and the existing, historical building, a glazed entrance hall with a staircase was designed, allowing for exposing (despite the extension) the western elevation of the villa (Figure 10). These elements added to the building have been designed in a way that follows good practice of creating new sections that fit in well with the historic elements and yet are completely different from them, adding new value to existing ones. Such activities have been described in [42,43,44].
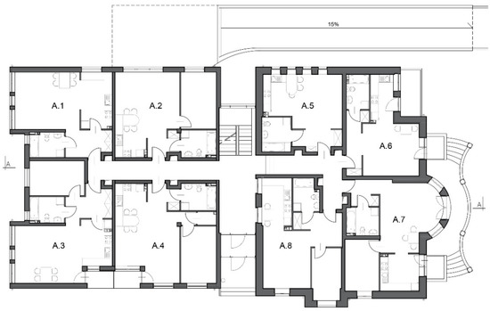
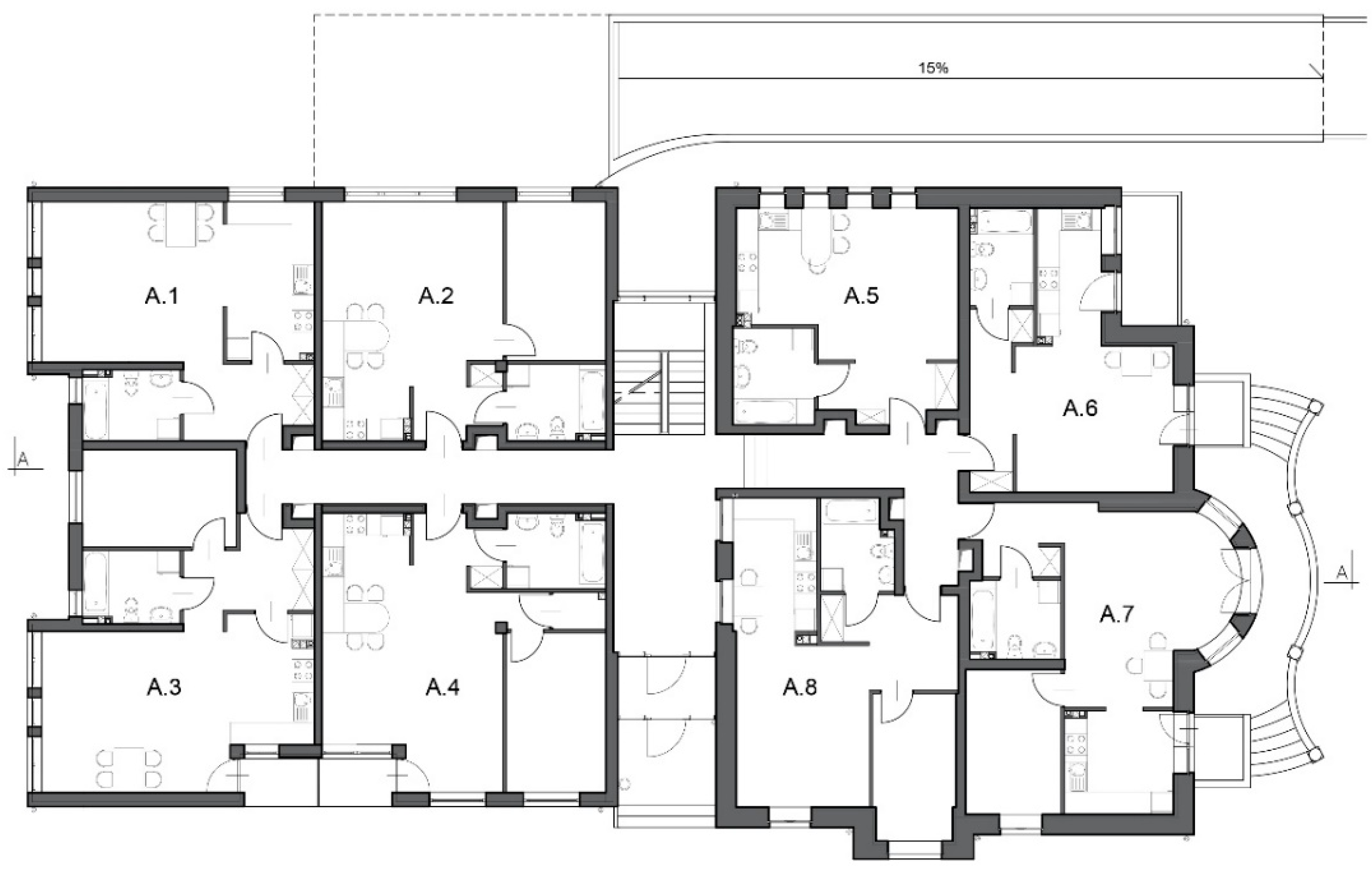
Completely technically degraded, devoid of any historical elements, the interiors of the villa were designed in such a way as to enable the arrangement of six modern apartments. In the extended part 11, additional apartments have been designed. The revitalization and extension of the villa were designed in such a way that made it possible to turn it (according to the investor’s intention) into a multi-family residential building (Figure 11).
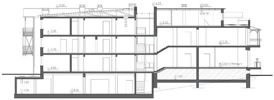
Many difficult structural decisions had to be made during the design of the villa’s revitalization and expansion. These included the replacement of wooden rafter framing damaged by fungus and the replacement of ceilings. The biggest structural challenge, however, was the construction of the underground section in both the historic and the new, expanded part of the building. The high groundwater level caused by the proximity of the sea meant that the low (1. 60 m), unusable cellar beneath the historic section was constantly flooded. This condition probably persisted from the beginning of the existence of the villa, due to the lack of waterproofing. On the other hand, excavation of an underground garage for the new part threatened to destabilize the foundations of the existing building, disturb the groundwater system, and create a cone of depression when water would be pumped from the excavations. This situation was remedied by using the diaphragm wall method [45] and the watertight concrete “bathtub” technology [46] in the underground part of the building. Moreover, in agreement with the conservation services, it was decided to that the unused basement under the historical part of the building would be “lost” by filling it completely with waterproof concrete. The resulting concrete “plug” stabilized the foundation of the building and eliminated ground water accumulating under it (Figure 12).
From the point of view of the energy balance of the building, it was important to insulate the external walls of the historical part. For reasons of protecting the authentic architectural detail, this could not be done from the outside. It was therefore decided to insulate the external walls of the historical part from the inside. Based on dew point calculations, an appropriate thickness of the insulation layer was assumed, with the use of an additional vapor barrier, which eliminated the danger of water vapor condensation inside the partition [47,48]. The villa’s badly deteriorated and inauthentic window woodwork has been replaced with modern, three-pane woodwork (heat transfer coefficient U = 0.9 [W/(m2 × K)]), designed based on iconographic research, but in a way that clearly shows the contemporary time of its construction. Good thermal insulation of external walls (U = 0.20 [W/(m2 × K)]), roof (U = 0.18 [W/(m2 × K)]), and window joinery have become important elements of building operational energy efficiency [49,50,51].
Utmost care was taken in the revitalization process of the external elevations of the historic part of the villa. As mentioned earlier, the decision was made to renovate the main body of the building, completely preserving its historical external shape and carefully restoring the colors and damaged architectural details. The stratigraphic research showed that the villa had light beige plaster with architectural elements such as cornices, half-columns, and window bands painted white. In the course of revitalization, the original colors were recreated, but where a reconstructed element appeared, the colors were a tone lighter so that the original element could be distinguished from the reconstructed one. Elements of the wooden roof such as rafters and wind braces, as completely new elements, were designed in their historical shape but in grey-blue coloring that differs significantly from the original and from the coloring of similar elements found in other historical buildings in Sopot. The preserved steel elements, such as the balustrades of the balcony or the structure of the glass canopy, were protected against corrosion and painted in graphite colour according to the stratigraphic research. The necessary additions to the steel elements were painted a tone lighter than the original elements to distinguish them (Figure 13).
The added part was designed in a completely different, modern style. Although the scale and symmetry of the gable façade match the historical part, and although elements from the region’s culture appear in it, its spatial solutions are thoroughly contemporary, clearly pointing to the time when the extended part was built. The modern character of this architecture is evidenced by the modern materials and technologies used as well as “fresh” architectural details in the form of elements made of galvanized rolled steel, simple in their form wooden balustrades, or stainless-steel cords linking balcony elements. The entire composition is complemented by strip windows and contemporary colors (Figure 14). Noteworthy here are also: the compact (similar in plan to a square) body of the added part ensuring an optimum energy balance, high-class insulation materials, modern construction technologies neutral for the environment and human health, and emission-free installation systems, including electric heating.
The aforementioned glass entrance hall plays a very important role in the spatial composition of the revitalized and extended building. It connects both parts of the building and at the same time constitutes a clear boundary between what is historical and what is contemporary. This hall also allows for the exposure and daylight illumination of the western façade of Willa Halina (despite the extension). Thanks to the open staircase located in the hall, the historic façade of the villa may be viewed from many new, previously unknown perspectives, showing its undoubted beauty (Figure 15).
An element complementing the revitalization design of Willa Halina was the arrangement of its surroundings. There is a pedestrian access to the main entrance of the building paved with stone slabs; a modern-form exit ramp from the underground garage has been designed and the rest of the area has been planned as a vast lawn, serving as a kind of rain garden for rainwater retention. An important part of the revitalization of the villa’s surroundings was saving the two magnificent, heavily damaged and neglected yew trees flanking the main façade of the building which had been planted here in 1896 by the first owner according to a design by Walter Schulz. Although these yews have now reached a size that makes it difficult to see the front elevation of the villa, they are an important element of its urban composition and at the same time a living testimony to the urban and architectural ideas of the late nineteenth century, as well as an embodiment of the contemporary ideas of sustainable development, in which nature conservation is one of the basic elements [52,53] (Figure 16).
However, there are many more pro-ecological and environmentally friendly solutions in this revitalisation design. The very idea of revitalizing technically degraded buildings instead of building new ones is a good way to protect the environment and natural resources. In addition, the use of very good thermal insulation of the external partitions (walls, windows, and roof) saves thermal energy in winter and energy needed for air conditioning in summer, the use of electric heating of the building eliminates the emission of atmospheric pollutants, and the discharge of rainwater onto the extensive lawns surrounding the building allows for its retention and helps to protect water resources.

6. Conclusions

Revitalization of historically and architecturally valuable but technically degraded residential buildings dating back to the late 19th and early 20th century is one of the important elements of maintaining and sometimes reconstructing the image of modern cities and their sustainable development. Properly conducted revitalization activities of such buildings, while respecting the historical context of the place, force designers to constantly reinterpret the legacy of past generations. Revitalized buildings are not only a testimony to the splendor of European culture, but also, in the case of expansion or reconstruction through contemporary architectural interpretations, they allow the inhabitants of European cities to preserve their identity, cultural continuity, and specific local character.
Especially in cities such as Sopot, where cultural continuity was broken [54] not only by the partial destruction of the material substance, but also by the post-war exchange of society, where customs could not be passed on from generation to generation and there was no natural inheritance of tradition, signs such as characteristic historic residential buildings, inscribed in the city landscape, become carriers of local tradition, filling the gap between the generations of old and new inhabitants.
Revitalization activities, especially those based on replenishing damaged elements and adding new ones (for example, in the case of extensions) should never be a mindless copying of past patterns. They should be based on a thorough recognition and understanding of these patterns, allowing for correct and above all contemporary design decisions. Not the duplication, but the creative processing of patterns and archetypes must constitute a bridge between history and the present. One cannot make use of the architecture of bygone eras because in modern times, with the changing way and pace of life, it becomes false and pretentious [18]. This is because the most valuable works are created by creating a subtle balance—appropriate to the place, time, and task—between local tradition and “imported”, often new ideas and technologies [19]. It is important here to take into account the principles of the Venice Charter, adopted in 1964 by the Second International Congress of Architects and Technicians of Historical Monuments [10].
In the case of additions and extensions to historic buildings, it is consistent with the Venice Charter to create new building elements whose atmosphere corresponds to the genius loci, but whose architecture is thoroughly contemporary and whose historical references are in no way direct transfers or borrowings from past eras. Such new architectural creations are being created in many European historic cities. The contemporary expression of this architecture is determined by such elements as the articulation of facades, which is characteristic of our times and often draws on the achievements of the international style, contemporary architectural detail, and the modern materials and construction technologies used, which are visible in the facades [30], (Figure 14).
A revitalized object, especially if it is subject to significant transformations, for example, as a result of the extension, being in line with the idea of sustainable development, should be characterized not only by the proper relation between historical elements and the newly designed ones, but also by cohesion with the existing urban structure and the widely understood cultural and natural environment [9]. Viewing revitalization activities (carried out in historic residential buildings) in the context of sustainable development also concerns the rational use of the existing housing stock without the need to build new facilities and thus transform and pollute the natural environment and consume energy and materials. Important elements of a revitalized architectural object, especially in the context of energy efficiency, protection of non-renewable energy sources, and air protection, are its shape, insulation of external partitions, and technical and installation infrastructure. It is also very important to eliminate from the object all substances and building materials that are harmful to the environment and people as well as to properly manage the land to enable rainwater retention and protect the soil and greenery. Especially important in this context are the findings of the “Leipzig Charter” on sustainable development of European cities signed by the EU member states in 2007 [6,8].

Funding

This research received no external funding.

Institutional Review Board Statement

Not applicable.

Informed Consent Statement

Not applicable.

Data Availability Statement

Does not contain any data.

Conflicts of Interest

The author declares no conflict of interest.

References

  1. Kimic, K.; Truszkiewicz, M. Development of housing estate idea on the turn of the 19th century. Hortic. Landsc. Archit. 2008, 29, 237–248. [Google Scholar]
  2. Grzyś, P. Image of the city and its identity—Contemporary relations. Architectus 2017, 2. [Google Scholar] [CrossRef]
  3. Dreyfuss, G.; Mifsud, M.; Van Malderen, T. The Architectural Practice of Regeneration. Sustainability 2013, 5, 3895–3905. [Google Scholar] [CrossRef]
  4. Taraszkiewicz, A.; Grębowski, K.; Taraszkiewicz, K.; Przewłócki, J. Medieval Bourgeois Tenement Houses as an Archetype for Contemporary Architectural and Construction Solutions: The Example of Historic Downtown Gdańsk. Buildings 2021, 11, 80. [Google Scholar] [CrossRef]
  5. Tymkiewicz, J. The role of an Architect in Creating the Image of an Elderly-Friendly Sustainable Smart City. Buildings 2019, 9, 233. [Google Scholar] [CrossRef]
  6. LEIPZIG CHARTER. Available online: https://ec.europa.eu/regional_policy/archive/themes/urban/leipzig_charter.pdf (accessed on 5 May 2021).
  7. Bonenberg, W.; Kapliński, O. The Architect and the Paradigms of Sustainable Development: A Review of Dilemmas. Sustainability 2018, 10, 100. [Google Scholar] [CrossRef]
  8. Prömmel, J.; Tille, D. Hist. Urban—Integrated Revitalisation of Historic Towns to Promote a Polycentric and Sustainable Development. In German Annual of Spatial Research and Policy 2009; Chapter First Online: 31 August 2009; Springer: Berlin/Heidelberg, Germany, 2009; pp. 183–185. [Google Scholar]
  9. Kamionka, L.W. Architektura Zrównoważona i Jej Standardy na Przykładzie Wybranych Metod Oceny; Wydawnictwo Politechniki Świętokrztskiej; Samodzielna Sekcja “Wydawnictwo Politechniki Świętokrzyskiej”: Kielce, Poland, 2012. [Google Scholar]
  10. ICOMOS. International Charter for the Conservation and Restoration of Monuments and Sites. Available online: https://www.icomos.org/en/participer/179-articles-en-francais/ressources/charters-and-standards/157-the-venice-charter (accessed on 26 April 2021).
  11. Available online: http://smartheritage.com/wp-content/uploads/2015/03/KRAKOV-CHARTER-2000.pdf (accessed on 22 June 2021).
  12. Convention on the Value of Cultural Heritage for Society. Available online: https://www.coe.int/en/web/culture-and-heritage/faro-convention (accessed on 22 June 2021).
  13. Lardinois, S. Contemporary Architecture in the Historic Environment: Recent International Perspectives. Chang. Time 2017, 7, 252–271. [Google Scholar] [CrossRef]
  14. Khalaf, R.W. A Proposal to Apply the Historic Urban Landscape Approach to Reconstruction in the World Heritage Context. Policy Pract. 2018, 9, 39–52. [Google Scholar] [CrossRef]
  15. Gatti, M. Maintenance, reconstruction and prevention for the regeneration of historic towns and centers. Int. J. Disaster Resil. Built Environ. 2018, 9, 96–111. [Google Scholar] [CrossRef]
  16. Palaiologou, G.; Fouseki, K. New Perspectives in Urban Heritage—Theory. Policy Pract. 2018, 9, 175–179. [Google Scholar]
  17. Gentry, K.; Smith, L. Critical heritage studies and the legacies of the late-twentieth century heritage canon. Int. J. Herit. Stud. 2019, 25, 1–21. [Google Scholar] [CrossRef]
  18. Rasmussen, S.E. Odczuwanie Architektury; Karakter: Kraków, Poland, 2015. [Google Scholar]
  19. Buchanan, P. Milenium po modernizmie. Architektura 1997, 12, 21. [Google Scholar]
  20. Ryberg-Webster, S.; Kinahan, K.L. Historic Preservation and Urban Revitalization in the Twenty-first Century. J. Plan. Lit. 2013, 8. [Google Scholar] [CrossRef]
  21. Benson, V.; Klein, R. The Impact of Historic Districting on Property Values. Apprais. J. 1988, 56, 223–232. [Google Scholar]
  22. Penića, M.; Svetlana, G.; Murgul, V. Revitalization of Historic Buildings as an Approach to Preserve Cultural and Historical Heritage. Procedia Eng. 2015, 117, 883–890. [Google Scholar] [CrossRef]
  23. Terlikowski, W. Interdisciplinary diagnostics in the process of revitalization of historic buildings, in terms of changing their function. MATEC Web Conf. 2017, 117. [Google Scholar] [CrossRef]
  24. Nowogońska, B.; Cibis, J. Technical Problems of Residential Construction. IOP Conf. Ser. Mater. Sci. Eng. 2017, 245. [Google Scholar] [CrossRef]
  25. Nowogońska, B. Performance characteristics of buildings in the assessment of revitalization needs. Civ. Environ. Eng. Rep. 2019, 29, 119–127. [Google Scholar] [CrossRef]
  26. Sobotka, A.; Radziejowska, A. Risk analysis in the realization of buildings in revitalized areas. Arch. Civ. Eng. 2019, 65, 113–126. [Google Scholar] [CrossRef]
  27. Mamyszka, F. Bedeker Sopocki; Wydawnictwo Morskie: Gdańsk, Poland, 1982. [Google Scholar]
  28. Pelczar, P. Historia Sopotu. Część I: Od średniowiecza do Wybuchu I Wojny Światowej. Available online: https://histmag.org/Historia-Sopotu.-Czesc-I-od-sredniowiecza-do-wybuchu-I-wojny-swiatowej-2528 (accessed on 8 April 2021).
  29. Pelczar, P. Historia Sopotu. Część II: Lata 1914–1945. Available online: https://histmag.org/Historia-Sopotu.-Czesc-II-lata-1914-1945-3491 (accessed on 8 April 2021).
  30. Taraszkiewicz, A. Przestrzeń Zurbanizowana Jako Miejsce Architektonicznego Dialogu, Urban Space as a Place of Architectural Dialogue, Urbanistyczne Aspekty Transformacji Miast; Polaka Akademia Nauk Komitet Przestrzennego Zagospodarowania Kraju, Studia, CXCII: Warszawa, Poland, 2018; pp. 396–406. [Google Scholar]
  31. Szmygin, B. (Ed.) Współczesne Problemy Teorii Konserwatorskiej; Międzynarodowa Rada Ochrony Zabytków ICOMOS, Politechnika Lubelska: Warszawa, Poland; Lublin, Poland, 2008. [Google Scholar]
  32. Czechowicz, J. Dilemmas of authenticity—Between permanent. Czas. Tech. 2015, 6, 41–54. [Google Scholar]
  33. Gyurkovich, M. Cultural projects as a part of the heritage protection strategies—Selected case studies. Czas. Tech. 2015, 6, 75–95. [Google Scholar]
  34. Khalaf, R.W. Distinguishing new architecture from old. Policy Pract. 2016, 7, 1–19. [Google Scholar] [CrossRef]
  35. Keitsch, M. Sustainable Architecture, Design and Housing. Sustain. Dev. 2012, 20, 141–145. [Google Scholar] [CrossRef]
  36. Saprykina, S.A.; Saprykin, A. Sustainable Development of Spatial Habitat Environment as a Challenge to Civilization. IOP Conf. Ser. Mater. Sci. Eng. 2018, 463. [Google Scholar] [CrossRef]
  37. Anzani, A.; Cardani, G.; Condoleo, P.; Garavaglia, E.; Saisi, A.; Tedeschi, C.; Tiraboschi, C.; Valluzzi, M.R. Understanding of historical masonry for conservation approaches: The contribution of Prof. Luigia Binda to research advancement. Mater. Struct. 2018, 51, 140. [Google Scholar] [CrossRef]
  38. Carbonara, G. An Italian contribution to architectural restoration. Front. Archit. Res. 2012, 1, 2–9. [Google Scholar] [CrossRef]
  39. Fiorino, D.R. Stratigraphy and analysis of interfaces for the preservation of architectural heritage. Int. J. Sustain. Dev. Plan. 2015, 10, 755–766. [Google Scholar] [CrossRef]
  40. Bold, J.; Larkham, P.; Pickard, R. Authentic Reconstruction: Authenticity, Architecture and the Built Heritage; Bloomsbury Publishing: London, UK, 2017. [Google Scholar]
  41. Della Torre, S. Italian perspective on the planned preventive. Front. Archit. Res. 2021, 10, 108–116. [Google Scholar] [CrossRef]
  42. Mısırlısoy, D. New Designs in Historic Context: Starchitecture vs. Architectural Conservation Principles. Civil Eng. Archit. 2017, 5, 207–214. [Google Scholar] [CrossRef][Green Version]
  43. Wilczek, I. The layers of history: New architecture interventions in castle ruins. Front. Archit. Res. 2020. [Google Scholar] [CrossRef]
  44. Lardinois, S.; Arato Gonçalves, A.P.; Matarese, L.; Macdonald, S. Contemporary Architecture in the Historic Environment; The Getty Conservation Institute: Los Angeles, CA, USA, 2015. [Google Scholar]
  45. Brzakala, W.; Gorska, K. On safety of slurry-wall trenches. In Proceedings of the 18ème Congrès Français de Mécanique, Grenoble, France, 27–31 August 2007; Available online: http://hdl.handle.net/2042/15453 (accessed on 6 May 2021).
  46. Bilcik, J.; Sonnenschein, R.; Gajdosova, K. Design and Execution of Watertight Concrete Constructions. Key Eng. Mater. 2016, 691, 209–219. [Google Scholar] [CrossRef]
  47. Wang, Y.; Fukuda, H. The Influence of Insulation Styles on the Building Energy Consumption and Indoor Thermal Comfort of Multi-Family Residences. Sustainability 2019, 11, 266. [Google Scholar] [CrossRef]
  48. Boostani, H.; Mirzapour, E. Impact of external walls insulation location and distribution on energy consumption in buildings: A case study of Northern Cyprus. Eur. Online J. Nat. Soc. Sci. 2015, 4, 737–741. [Google Scholar]
  49. Diakakia, C.; Grigoroudisb, E.; Kolokotsaa, D. Towards a multi-objective optimization approach for improving energy efficiency in buildings. Energy Build. 2008, 40, 1747–1754. [Google Scholar] [CrossRef]
  50. Salvalai, G.; Masera, G.; Sesana, M.M. Italian local codes for energy efficiency of buildings: Theoretical definition and experimental application to a residential case study. Renew. Sustain. Energy Rev. 2015, 42, 1245–1259. [Google Scholar] [CrossRef]
  51. Escrivá-Escrivá, G.; Álvarez-Bel, C.; Peñalvo-López, E. New indices to assess building energy efficiency at the use stage. Energy Build. 2011, 43, 476–484. [Google Scholar] [CrossRef]
  52. Watson, J.E.M.; Venter, O. A global plan for nature conservation. Nature 2017, 550, 48–49. [Google Scholar] [CrossRef]
  53. Schick, A.; Hobson, P.R.; Ibisch, P.L. Conservation and sustainable development in a VUCA world: The need for a systemic and ecosystem-based approach. Ecosyst. Health Sustain. 2017, 3. [Google Scholar] [CrossRef]
  54. Bossak-Herbst, B. The changing image of Gdansk: From regained homeland to multicultural city. In City Full of Symbols: Urban Space and Culture; Nas, P.J.M., Ed.; Leiden University Press: Leiden, The Netherlands, 2011. [Google Scholar]
Figure 1. Sierakowski Manor House in Sopot. Source: A. Taraszkiewicz.
Figure 1. Sierakowski Manor House in Sopot. Source: A. Taraszkiewicz.
Buildings 11 00279 g001
Figure 2. Tenement house from 1905 in Sopot. Source: A. Taraszkiewicz.
Figure 2. Tenement house from 1905 in Sopot. Source: A. Taraszkiewicz.
Buildings 11 00279 g002
Figure 3. Residential building completed in 2003, Jana Sobieskiego street in Sopot. Source: A. Taraszkiewicz.
Figure 3. Residential building completed in 2003, Jana Sobieskiego street in Sopot. Source: A. Taraszkiewicz.
Buildings 11 00279 g003
Figure 4. Tenement house, Władysława Jagiełły street in Sopot. Source: A. Taraszkiewicz.
Figure 4. Tenement house, Władysława Jagiełły street in Sopot. Source: A. Taraszkiewicz.
Buildings 11 00279 g004
Figure 5. Residential building completed in 2002, Ogrodowa street in Sopot. Source: A. Taraszkiewicz.
Figure 5. Residential building completed in 2002, Ogrodowa street in Sopot. Source: A. Taraszkiewicz.
Buildings 11 00279 g005
Figure 6. Willa Halina seen from the front. Photo from 1934. Source: http://www.dawnysopot.pl/index.php?content=przewodnikopis&obiekt=willahalina. (accessed on 29 April 2021).
Figure 6. Willa Halina seen from the front. Photo from 1934. Source: http://www.dawnysopot.pl/index.php?content=przewodnikopis&obiekt=willahalina. (accessed on 29 April 2021).
Buildings 11 00279 g006
Figure 7. Willa Halina side elevation (south). Source: A. Taraszkiewicz.
Figure 7. Willa Halina side elevation (south). Source: A. Taraszkiewicz.
Buildings 11 00279 g007
Figure 8. Willa Halina ground floor plan; building inventory 1999. Source: A. Taraszkiewicz.
Figure 8. Willa Halina ground floor plan; building inventory 1999. Source: A. Taraszkiewicz.
Buildings 11 00279 g008
Figure 9. Willa Halina, view of degraded structural elements. (a) Mold on the outside wall; (b) moisture and corrosion of internal wall elements. Source: FORT Taraszkiewicz Architekci.
Figure 9. Willa Halina, view of degraded structural elements. (a) Mold on the outside wall; (b) moisture and corrosion of internal wall elements. Source: FORT Taraszkiewicz Architekci.
Buildings 11 00279 g009
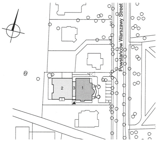
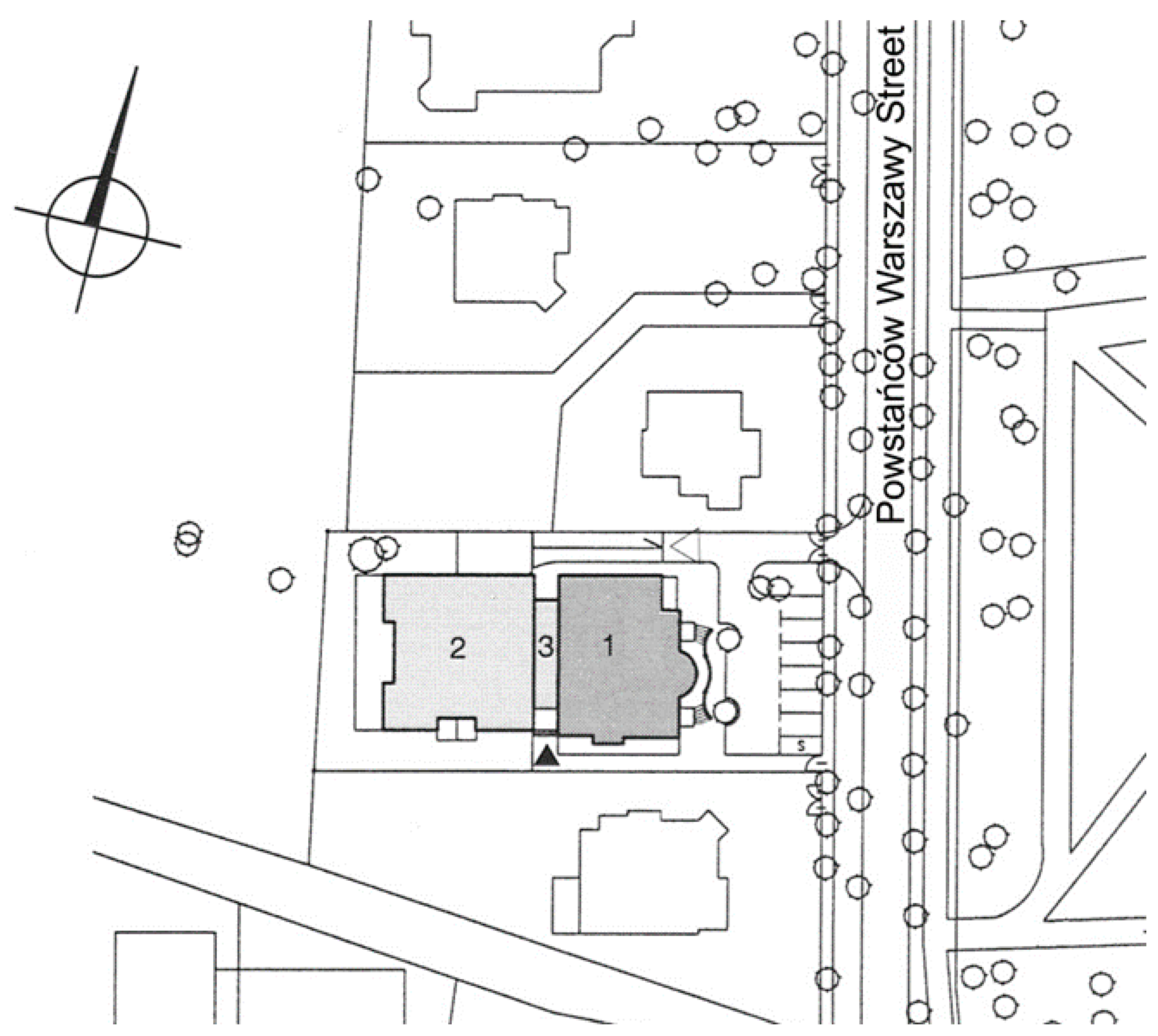
Figure 10. Willa Halina—(1) historic body of the building; (2) extended part; (3) Glazed hall. Source: A. Taraszkiewicz.
Figure 10. Willa Halina—(1) historic body of the building; (2) extended part; (3) Glazed hall. Source: A. Taraszkiewicz.
Buildings 11 00279 g010
Figure 11. Willa Halina extension design; ground floor plan. Source: A. Taraszkiewicz.
Figure 11. Willa Halina extension design; ground floor plan. Source: A. Taraszkiewicz.
Buildings 11 00279 g011
Figure 12. Willa Halina, longitudinal section through the building. Source: FORT Taraszkiewicz Architekci.
Figure 12. Willa Halina, longitudinal section through the building. Source: FORT Taraszkiewicz Architekci.
Buildings 11 00279 g012
Figure 13. Historical part of Willa Halina. Front elevation after revitalization. Source: FORT Taraszkiewicz Architekci.
Figure 13. Historical part of Willa Halina. Front elevation after revitalization. Source: FORT Taraszkiewicz Architekci.
Buildings 11 00279 g013
Figure 14. Extended part of Willa Halina. Source: FORT Taraszkiewicz Architekci.
Figure 14. Extended part of Willa Halina. Source: FORT Taraszkiewicz Architekci.
Buildings 11 00279 g014
Figure 15. The glazed entrance hall of Willa Halina; (a) ground floor view; (b) view from the first floor. Source: FORT Taraszkiewicz Architekci.
Figure 15. The glazed entrance hall of Willa Halina; (a) ground floor view; (b) view from the first floor. Source: FORT Taraszkiewicz Architekci.
Buildings 11 00279 g015
Figure 16. The historical part of Willa Halina. Front elevation after revitalization. Source: FORT Taraszkiewicz Architekci.
Figure 16. The historical part of Willa Halina. Front elevation after revitalization. Source: FORT Taraszkiewicz Architekci.
Buildings 11 00279 g016
Publisher’s Note: MDPI stays neutral with regard to jurisdictional claims in published maps and institutional affiliations.

Share and Cite

MDPI and ACS Style

Taraszkiewicz, A. Revitalization of Residential Buildings Dating Back to the Late 19th and Early 20th Century on the Example of “Willa Halina” in Sopot (Poland). Buildings 2021, 11, 279. https://doi.org/10.3390/buildings11070279

AMA Style

Taraszkiewicz A. Revitalization of Residential Buildings Dating Back to the Late 19th and Early 20th Century on the Example of “Willa Halina” in Sopot (Poland). Buildings. 2021; 11(7):279. https://doi.org/10.3390/buildings11070279

Chicago/Turabian Style

Taraszkiewicz, Antoni. 2021. "Revitalization of Residential Buildings Dating Back to the Late 19th and Early 20th Century on the Example of “Willa Halina” in Sopot (Poland)" Buildings 11, no. 7: 279. https://doi.org/10.3390/buildings11070279

APA Style

Taraszkiewicz, A. (2021). Revitalization of Residential Buildings Dating Back to the Late 19th and Early 20th Century on the Example of “Willa Halina” in Sopot (Poland). Buildings, 11(7), 279. https://doi.org/10.3390/buildings11070279

Note that from the first issue of 2016, this journal uses article numbers instead of page numbers. See further details here.

Article Metrics

Back to TopTop