Fast Checking of Drift Demand in Multi-Storey Buildings with Asymmetry
Abstract
1. Introduction
2. Procedure for Determining Torsional Amplification (Edge Displacement Ratio)
2.1. Parameters Used for Determining the Edge Displacement Ratio
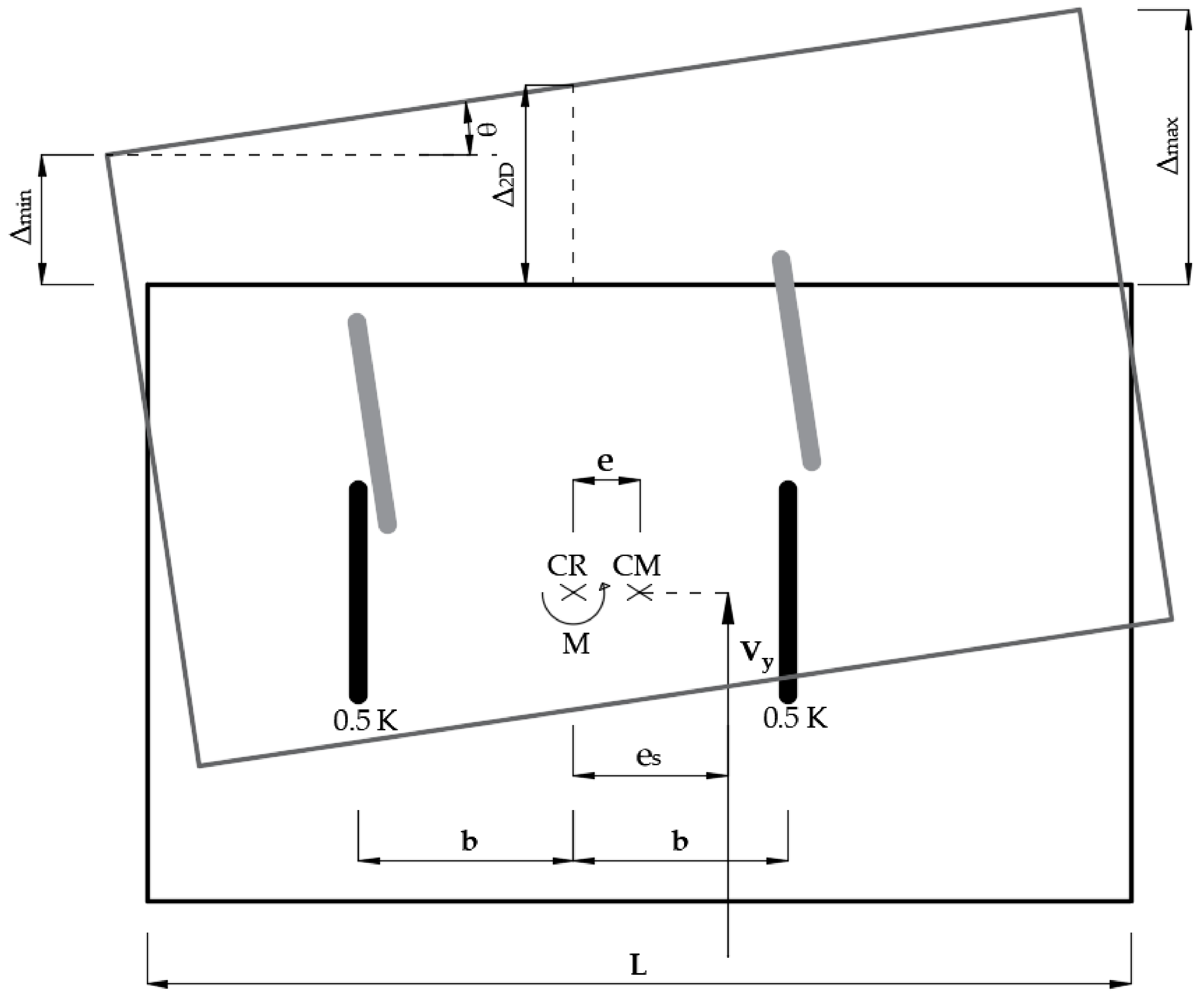
2.1.1. Normalised Distance between the Edge Element of the Building and Its Centre of Mass
2.1.2. Effective Fundamental Natural Period of Vibration (Tn1) of the Building
- n is the number of storeys in a building,
- mi is the mass of storey i,
- δi is the two-dimensional (2D) static deflection of the storey i of the building determined by applying horizontal equivalent static design forces at each storey i,
- Vb is the total base shear calculated as per the relevant seismic code.
2.1.3. Locating the CR and Determining the Eccentricity Parameter er
- n is the number of storeys of the building,
- mi is the mass of storey i,
- δmax,i, δmin,i, and δ2D,i are the minimum, maximum, and 2D static displacement of the storey i determined from computer software by applying horizontal equivalent static design forces at each storey i following the procedure given in the relevant seismic code.
2.1.4. Determining Elastic Radius Ratio br
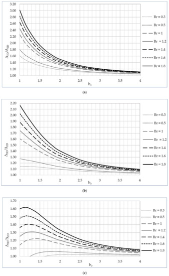
2.2. Simplified Method for Determining Edge Displacement Ratio
- Br is the distance from the CM to the edge with maximum displacement, normalised to r,
- θj is the rotational component of the eigenvector solutions to the dynamic equations of equilibrium determined by Equation (17),
- λj is the eigenvalue solutions determined by Equation (18), and
- PFj is the participation factor for mode j determined by Equation (19).
2.2.1. Quick Assessment Method
- A building with four or more core walls (or shear walls)
- A building with three core walls (or shear walls)
- A building with two core walls (or shear walls)
2.2.2. Refined Assessment Method
2.2.3. Detailed Estimation Method
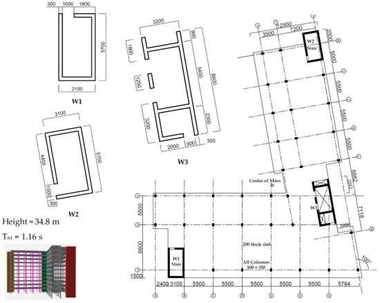
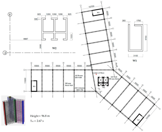
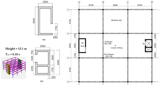
3. Verification by Dynamic Analysis of Case Study Buildings
4. Results
5. Discussion
6. Conclusions
- The quick method of assessment is shown to be able to provide estimates of the upper limit of the maximum edge displacement demand of the building without the need of taking into account detailed structural information of the building. This upper limit may be taken as a conservative estimate of the drift demand. The method was found to give more conservative estimates for low- and medium-rise buildings in the acceleration- and velocity-controlled region than for taller buildings.
- The refined method of assessment is shown to be able to provide estimates of the maximum edge displacement demand with a reasonable degree of accuracy. The method may be used regardless of whether the eccentricity of the building is known.
- The detailed method of assessment was found to give estimates of the maximum edge displacement demand of a wide range of multi-storey buildings, and is more accurate in comparison with the refined and quick method as demonstrated by the six case study buildings.
Author Contributions
Funding
Institutional Review Board Statement
Informed Consent Statement
Data Availability Statement
Acknowledgments
Conflicts of Interest
Appendix A
Appendix A.1. Coordinate Method
Appendix A.2. Calculation of Radius of Gyration of Case Study Building 5 Using Coordinate Method

| No. | xi | yi | xi yi+1 − xi+1 yi | (xi yi+1 − xi+1 yi) | (xi yi+1 − xi+1 yi) | (xi2 + xi xi+1 + xi+12) (xi yi+1 − xi+1 yi) | (yi2 + yi yi+1 + yi+12) (xi yi+1 − xi+1 yi) |
|---|---|---|---|---|---|---|---|
| 1 | 0 | 0 | 0 | 0 | 0 | 0 | 0 |
| 2 | 48 | 0 | 1186 | 113,818 | 29,284 | 8,194,867 | 723,323 |
| 3 | 48 | 24.7 | 1186 | 56,909 | 58,569 | 2,731,622 | 2,169,968 |
| 4 | 0 | 24.7 | 0 | 0 | 0 | 0 | 0 |
| 5 | 0 | 16.55 | −662 | −26,480 | −21,912 | −1,059,200 | −543,970 |
| 6 | 40 | 16.55 | −336 | −26,880 | −8299 | −1,612,800 | −159,670 |
| 7 | 40 | 8.15 | 326 | 13,040 | 5314 | 521,600 | 64,961 |
| 8 | 0 | 8.15 | 0 | 0 | 0 | 0 | 0 |
| 1 | 0 | 0 | - | - | - | - | - |
| Sum= | 1699 | 130,406 | 62,955 | 8,776,090 | 2,254,612 |
Appendix B. Example Calculation of Torsional Parameters and Displacement Ratio for CSB 1
| Level | hi (m) | mi (t) | Fi (kN) | δ2D,i (mm) | δmin,i (mm) | δmax,i (mm) | ||
|---|---|---|---|---|---|---|---|---|
| Roof | 34.8 | 848 | 5299 | 246 | 230 | 273 | 208,176 | 51,118,670 |
| 10 | 31.7 | 838 | 4685 | 215 | 202 | 239 | 180,385 | 38,818,861 |
| 9 | 28.6 | 838 | 4142 | 185 | 173 | 206 | 155,086 | 28,693,908 |
| 8 | 25.5 | 838 | 3610 | 155 | 145 | 172 | 130,168 | 20,214,048 |
| 7 | 22.4 | 838 | 3091 | 126 | 118 | 140 | 105,964 | 13,395,584 |
| 6 | 19.3 | 838 | 2586 | 99 | 93 | 110 | 82,906 | 8,199,957 |
| 5 | 16.2 | 838 | 2097 | 73 | 69 | 81 | 61,487 | 4,510,325 |
| 4 | 13.1 | 838 | 1626 | 50 | 47 | 56 | 42,265 | 2,131,092 |
| 3 | 10 | 838 | 1177 | 31 | 29 | 34 | 25,859 | 797,779 |
| 2 | 6.9 | 838 | 754 | 15 | 14 | 17 | 12,910 | 198,840 |
| 1 | 3.8 | 874 | 385 | 5 | 5 | 5 | 4285 | 20,994 |
| Sum | 9266 | 29,452 | - | - | - | 1,009,491 | 168,100,058 | |
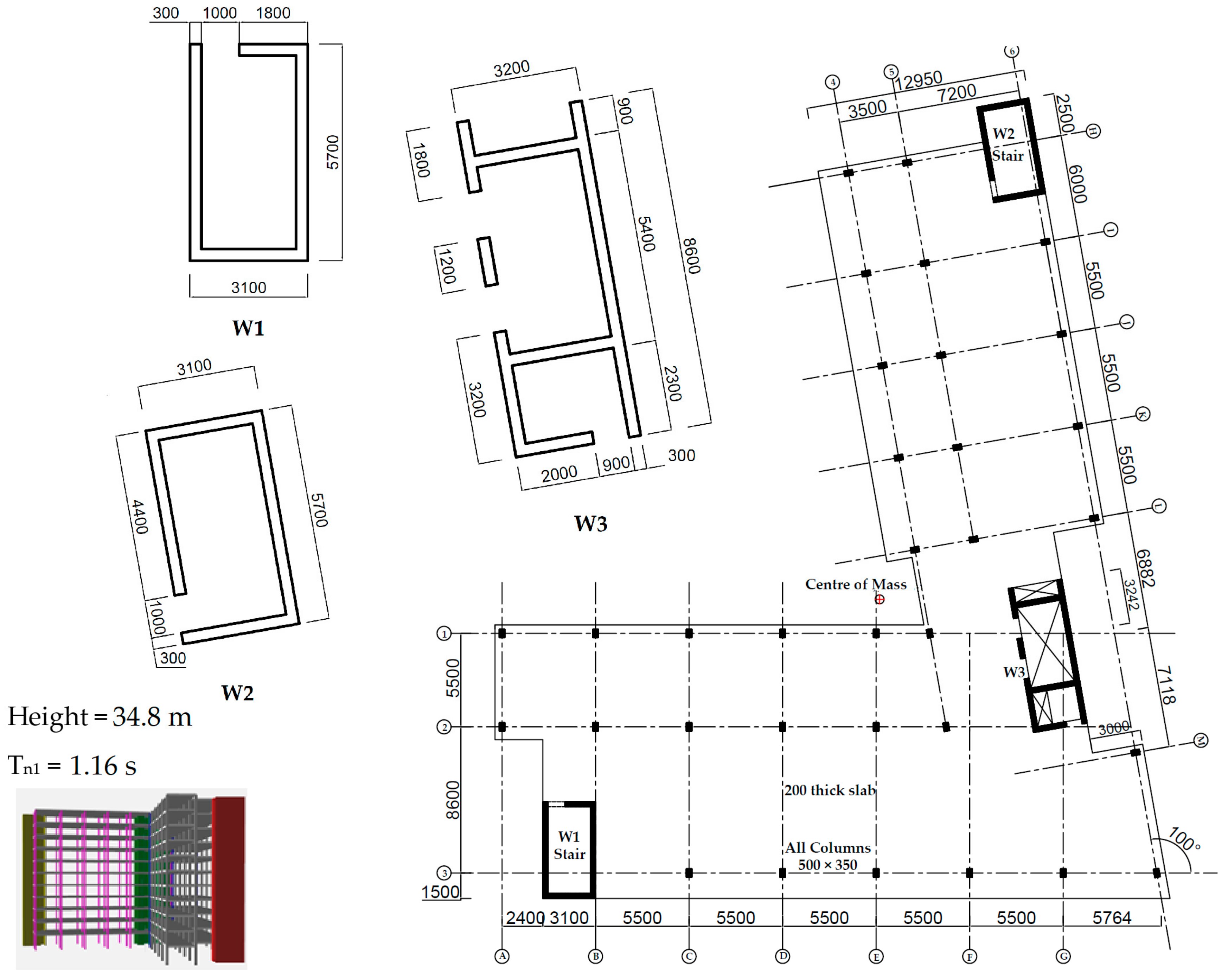
- Quick estimate: As the building is in velocity controlled condition (T1 = 0.3 s < Tn1 = 1.16 s ≤ T2 = 1.5 s), the displacement ratio can be calculated using Equation (21),
- Refined estimate: For velocity controlled conditions, Br = 1.7 and br = 3.34, the displacement ratio can be read from Figure 7 as 1.3.
- Detailed estimate: For velocity controlled conditions, Br = 1.7, br = 3.34, and er = 0.61, the displacement ratio can be read from Figure 9 as 1.1.
References
- Lumantarna, E.; Menegon, S.J.; Lam, N.; Wilson, J. Simplified approach for multi-storey asymmetrical buildings in regions of low to moderate seismicity. Australas. Struct. Eng. Conf. 2020. accepted. [Google Scholar]
- Westenenk, B.; de la Llera, J.C.; Jünemann, R.; Hube, M.A.; Besa, J.J.; Lüders, C.; Inaudi, J.A.; Riddell, R.; Jordán, R. Analysis and interpretation of the seismic response of RC buildings in Concepción during the February 27, 2010, Chile earthquake. Bull. Earthq. Eng. 2013, 11, 69–91. [Google Scholar] [CrossRef]
- Wilson, J.; Lam, N.T.K.L. Earthquake design of buildings in Australia using velocity and displacement principles. Aust. J. Struct. Eng. 2006, 6, 103–118. [Google Scholar] [CrossRef]
- Lumantarna, E.; Lam, N.; Wilson, J. Methods of analysis for buildings with uni-axial and bi-axial asymmetry in regions of lower seismicity. Earthq. Struct. 2018, 15, 81–95. [Google Scholar]
- Lam, N.T.; Wilson, J.L.; Lumantarna, E. Simplified elastic design checks for torsionally balanced and unbalanced low-medium rise buildings in lower seismicity regions. Earthq. Struct. 2016, 11, 741–777. [Google Scholar] [CrossRef]
- Anagnostopoulos, S.A.; Kyrkos, M.T.; Stathopoulos, K.G. Earthquake induced torsion in buildings: Critical review and state of the art. Earthq. Struct. 2015, 8, 305–377. [Google Scholar] [CrossRef]
- Mohamed, O.A.; Mehana, M.S. Assessment of Accidental Torsion in Building Structures Using Static and Dynamic Analysis Procedures. Appl. Sci. 2020, 10, 5509. [Google Scholar] [CrossRef]
- Tscinias, T.G.; Hutchinson, G.L. Evaluation of code requirements for the earthquake resistant design of torsionally coupled buildings. Proc. Inst. Civ. Eng. 1981, 71, 821–843. [Google Scholar]
- Dempsey, K.M.; Tso, W.K. An alternative path to seismic torsional provisions. Soil Dyn. Earthq. Eng. 1982, 1, 3–10. [Google Scholar] [CrossRef]
- Chandler, A.M.; Hutchinson, G.L. A modified approach to earthquake resistant design of torsionally coupled buildings. Bull. N. Z. Natl. Soc. Earthq. Eng. 1988, 21, 140–152. [Google Scholar] [CrossRef]
- Rutenberg, A.; Pekau, O.A. Seismic code provisions for asymmetric structures: Low period systems. Eng. Struct. 1989, 11, 92–96. [Google Scholar] [CrossRef]
- Balendra, T.; Lam, N.T.K.; Perry, M.J.; Lumantarna, E.; Wilson, J.L. Simplified displacement demand prediction of tall asymmetric buildings subjected to long-distance earthquakes. Eng. Struct. 2005, 27, 335–348. [Google Scholar] [CrossRef]
- Lumantarna, E.; Lam, N.; Wilson, J. Displacement-Controlled Behavior of Asymmetrical Single-Story Building Models. J. Earthq. Eng. 2013, 17, 902–917. [Google Scholar] [CrossRef]
- Tso, W.K.; Zhu, T.J. Design of torsionally unbalanced structural systems based on code provisions I: Ductility demand. Earthq. Eng. Struct. Dyn. 1992, 21, 609–627. [Google Scholar] [CrossRef]
- Chandler, A.M.; Duan, X.N. Performance of asymmetric code-designed buildings for serviceability and ultimate limit states. Earthq. Eng. Struct. Dyn. 1997, 26, 717–735. [Google Scholar] [CrossRef]
- Stathopoulos, K.G.; Anagnostopoulos, S.A. Accidental design eccentricity: Is it important for the inelastic response of buildings to strong earthquakes? Soil Dyn. Earthq. Eng. 2010, 30, 782–797. [Google Scholar] [CrossRef]
- Gasparini, G.; Silvestri, S.; Trombetti, T. A simple code-like formula for estimating the torsional effects on structures subjected to earthquake ground motion excitation. In Proceedings of the 14th World Conference on Earthquake Engineering, Beijing, China, 12–17 October 2008. [Google Scholar]
- Trombetti, T.; Palermo, M.; Silvestri, S.; Gasparini, G. Period shifting effect on the corner displacement magnification of one-storey asymmetric systems. In Proceedings of the 15th World Conference on Earthquake Engineering, Lisbon, Portugal, 24–28 September 2012. [Google Scholar]
- EN 1998-1. Eurocode 8: Design of Structures for Earthquake Resistance—Part 1: General Rules, Seismic Actions and Rules for Buildings; European Committee for Standardization: Brussels, Belgium, 2005.
- FEMA. Prestandard and Commentary for the Seismic Rehabilitation of Buildings (FEMA356); Federal Emergency Management Agency: Washington, DC, USA, 2000.
- Building Seismic Safety Council. NEHRP Recommended Provisions for Seismic Regulations for New Buildings and Other Structures Part 1: Provisions (FEMA450); National Institute of Building Sciences: Washington, DC, USA, 2003.
- Lumantarna, E.; Mehdipanah, A.; Lam, N.; Wilson, J. Methods of structural analysis of buildings in regions of low to moderate seismicity. In Proceedings of the 2017 World Congress on Advances in Structural Engineering and Mechanics (ASEM17), Ilsan, Seoul, Korea, 28 August–1 September 2017. [Google Scholar]
- Khatiwada, P. Determination of center of mass and radius of gyration of irregular buildings and its application in torsional analysis. Int. Res. J. Eng. Technol. 2020, 7, 1–7. [Google Scholar]
- MASSPROP (Command). Available online: https://knowledge.autodesk.com/support/autocad/learn-explore/caas/CloudHelp/cloudhelp/2020/ENU/AutoCAD-Core/files/GUID-CAA51229-293E-4A0C-BFF3-93226252CF13-htm.html (accessed on 21 November 2020).
- Xing, B.; Lumantarna, E.; Lam, N.T.K.; Menegon, S. Evaluation of torsional effects on reinforced concrete buildings due to the excitation of an earthquake. In Proceedings of the Australian Earthquake Engineering Society Virtual Conference, Melbourne, VIC, Australia, 25−27 November 2016. [Google Scholar]
- SPACE GASS. Documentation for the SPACE GASS Structural Engineering Design and Analysis Software; SPACE GASS: Geelong, VIC, Australia, 2005. [Google Scholar]
- Australian Standard. AS 1170.1-2002. Structural Design Actions, Part 1: Permanent, Imposed and Other Actions; Standards New Zealand: Wellington, New Zealand, 2002. [Google Scholar]
- Menegon, S.J.; Tsang, H.H.; Lumantarna, E.; Lam, N.T.K.; Wilson, J.L.; Gad, E.F. Framework for seismic vulnerability assessment of reinforced concrete buildings in Australia. Aust. J. Struct. Eng. 2019, 20, 143–158. [Google Scholar] [CrossRef]
- Shan, Z.W.; Looi, D.T.W.; Cheng, B.; Su, R.K.L. Simplified seismic axial collapse capacity prediction model for moderately compressed RC shear walls adjacent to transfer structure in tall buildings. Struct. Des. Tall Spec. Build. 2020, 29, e1752. [Google Scholar] [CrossRef]
- Australian Standard. AS 1170.4-2007. Structural Design Actions, Part 4: Earthquake Actions in Australia; Australian Standard: Sydney, NSW, Australia, 2007. [Google Scholar]
- Lumantarna, E.; Lam, N.; Wilson, J. Predicting Maximum Displacement Demand of Asymmetric Reinforced Concrete Buildings; Australian Earthquake Engineering Society: Newcastle, NSW, Australia, 2019. [Google Scholar]





















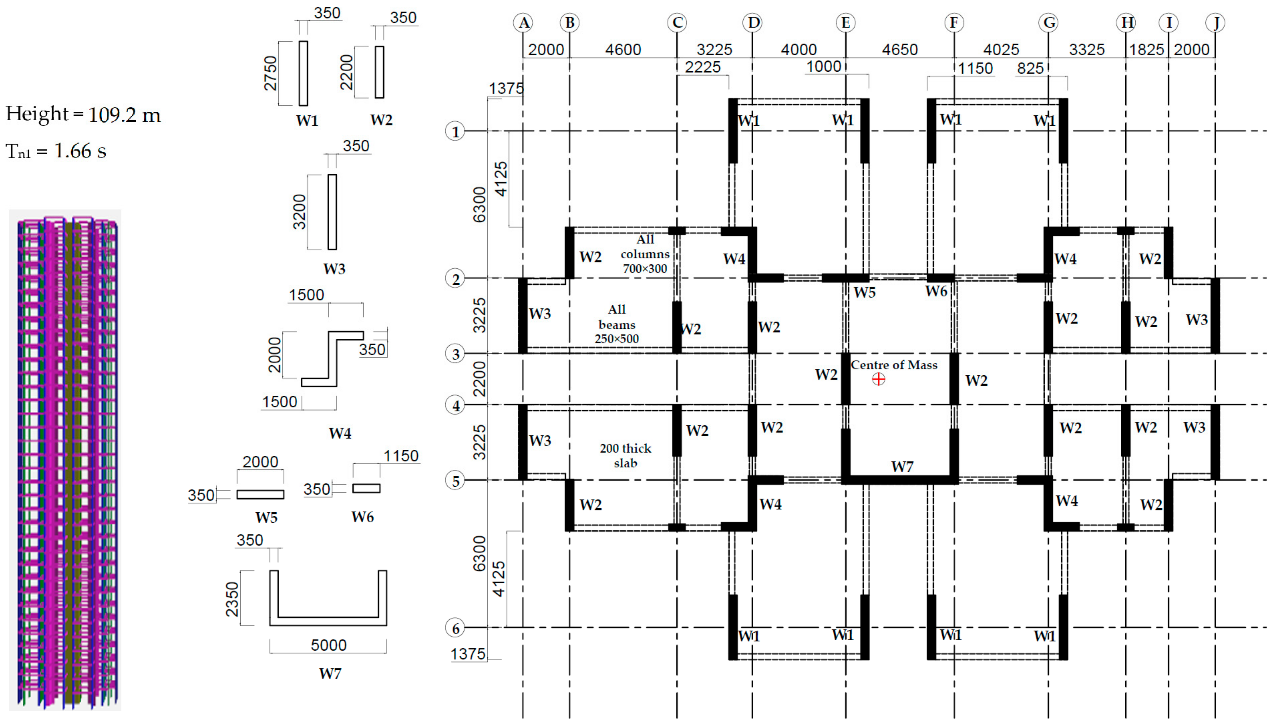
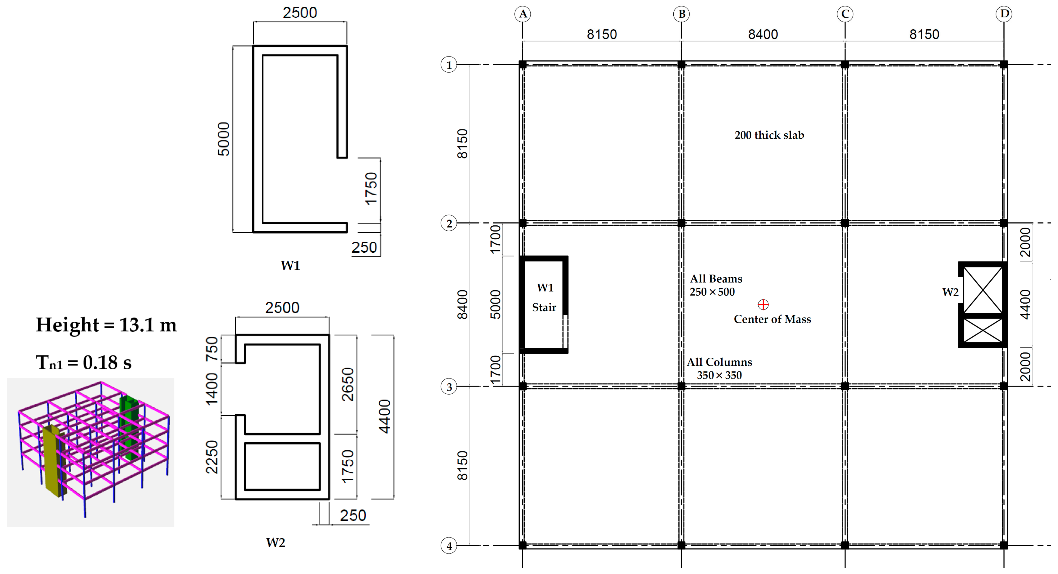
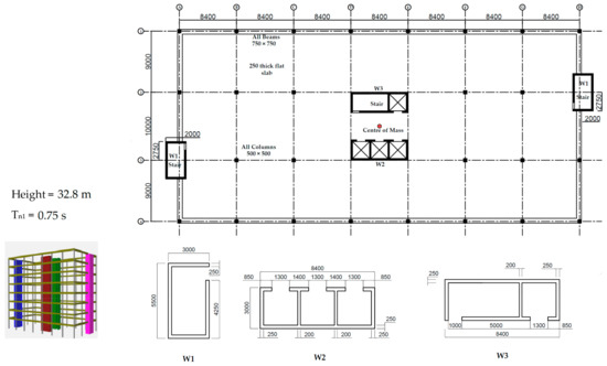
| CSB No. | No. of Storey, Height (m) | Shape | Regular/Irregular Plan | Length (m) × Width (m) | LLRS Type 1 |
|---|---|---|---|---|---|
| CSB 1 | 11, 34.8 | L | Irregular | 39 × 47 | Wall |
| CSB 2 | 8, 32.8 | Rectangular | Regular | 58.8 × 28 | Mixed 2 |
| CSB 3 | 31, 96.8 | Y | Irregular | 63.7 × 60.7 | Mixed |
| CSB 4 | 35, 109.2 | Cross | Irregular | 30 × 24 | Mixed |
| CSB 5 | 4, 13.1 | U | Irregular | 48 × 24.7 | Mixed |
| CSB 6 | 4, 13.1 | Square | Regular | 24.7 × 24.7 | Mixed |
| CSB | Δ2D (mm) | Δmin (mm) | Δmax (mm) | Tn1 (s) | r (m) | Br | br | er |
|---|---|---|---|---|---|---|---|---|
| CSB 1 | 166 | 161 | 197 | 1.16 | 15.86 | 1.7 | 3.34 | 0.61 |
| CSB 2 | 69 | 53 | 84 | 0.75 | 18.80 | 1.6 | 1.47 | 0.002 |
| CSB 3 | 299 | 165 | 473 | 2.67 | 20.00 | 1.3 | 1.42 | 0.38 |
| CSB 4 | 88 | 66 | 121 | 1.66 | 9.42 | 1.13 | 1.33 | 0.47 |
| CSB 5 | 8 | 6 | 12 | 0.21 | 16.60 | 1.3 | 1.77 | 0.61 |
| CSB 6 | 6 | 4 | 9 | 0.18 | 10.08 | 1.2 | 1.14 | 0.17 |
| CSB | Quick (Q) | Refined (R) | Detailed (D) | SPACE GASS (S) | |||
|---|---|---|---|---|---|---|---|
| CSB 1 | 1.99 | 1.12 | 1.10 | 1.04 | 91.2% | 7.7% | 5.8% |
| CSB 2 | 1.91 | 1.60 | 1.01 | 1.01 | 88.7% | 58.4% | 0.0% |
| CSB 3 | 1.39 | 1.35 | 1.30 | 1.21 | 14.8% | 11.6% | 7.4% |
| CSB 4 | 1.29 | 1.28 | 1.27 | 1.21 | 7.0% | 5.8% | 5.0% |
| CSB 5 | 2.35 | 1.50 | 1.45 | 1.44 | 63.0% | 4.2% | 0.7% |
| CSB 6 | 2.25 | 2.20 | 1.40 | 1.39 | 61.8% | 58.3% | 0.7% |
Publisher’s Note: MDPI stays neutral with regard to jurisdictional claims in published maps and institutional affiliations. |
© 2020 by the authors. Licensee MDPI, Basel, Switzerland. This article is an open access article distributed under the terms and conditions of the Creative Commons Attribution (CC BY) license (http://creativecommons.org/licenses/by/4.0/).
Share and Cite
Khatiwada, P.; Lumantarna, E.; Lam, N.; Looi, D. Fast Checking of Drift Demand in Multi-Storey Buildings with Asymmetry. Buildings 2021, 11, 13. https://doi.org/10.3390/buildings11010013
Khatiwada P, Lumantarna E, Lam N, Looi D. Fast Checking of Drift Demand in Multi-Storey Buildings with Asymmetry. Buildings. 2021; 11(1):13. https://doi.org/10.3390/buildings11010013
Chicago/Turabian StyleKhatiwada, Prashidha, Elisa Lumantarna, Nelson Lam, and Daniel Looi. 2021. "Fast Checking of Drift Demand in Multi-Storey Buildings with Asymmetry" Buildings 11, no. 1: 13. https://doi.org/10.3390/buildings11010013
APA StyleKhatiwada, P., Lumantarna, E., Lam, N., & Looi, D. (2021). Fast Checking of Drift Demand in Multi-Storey Buildings with Asymmetry. Buildings, 11(1), 13. https://doi.org/10.3390/buildings11010013

