Numerical Investigation of the Automatic Air Intake Drag Reduction Strut Based on the Venturi Effect
Abstract
:1. Introduction
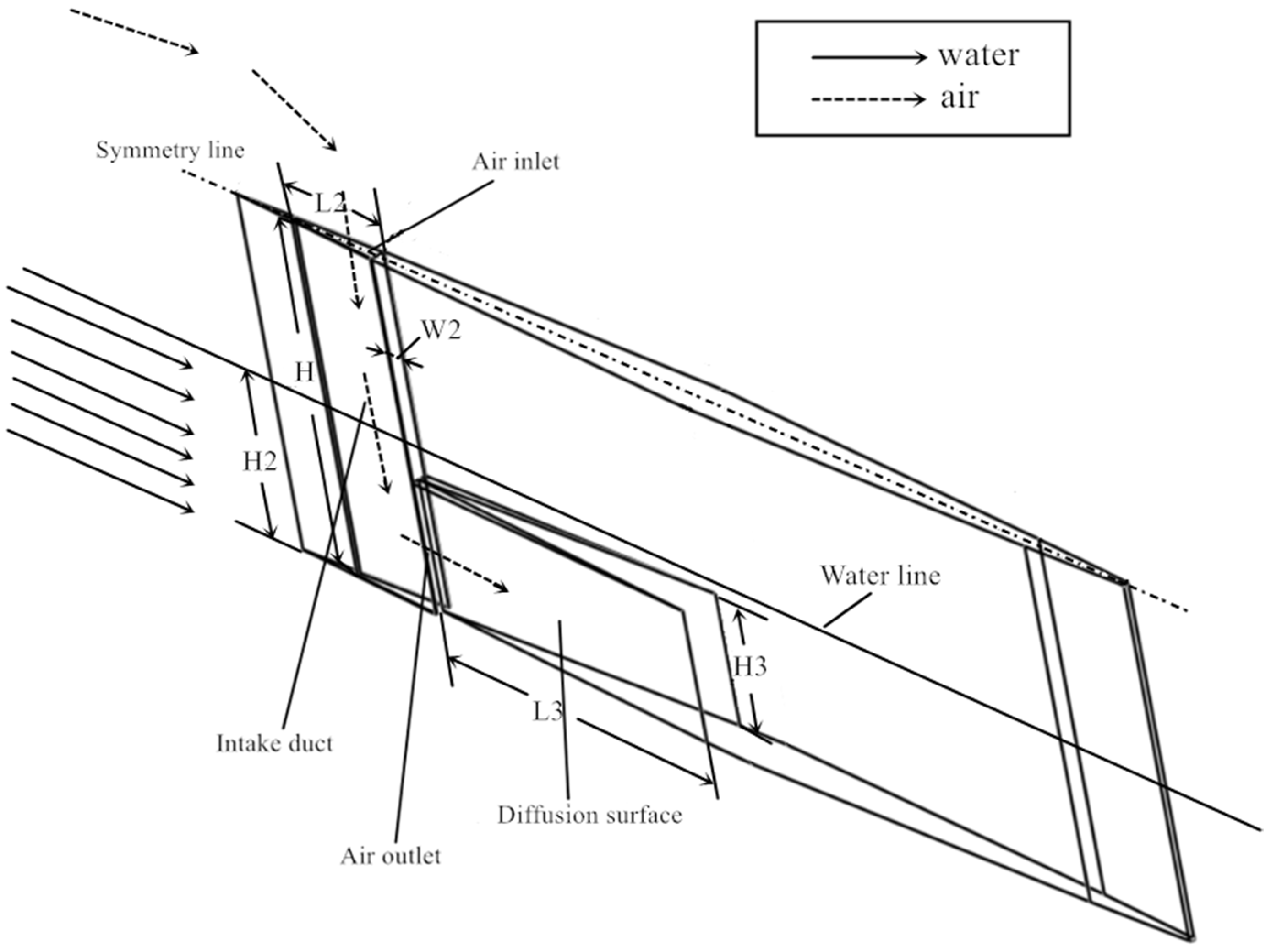
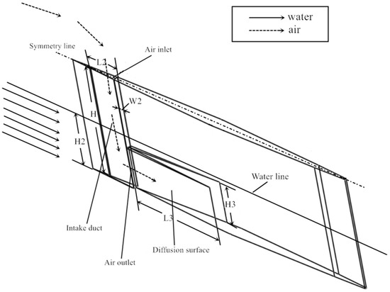
2. Description of the Physical Model
3. Numerical Model
3.1. Basic Governing Equation
3.2. Turbulence Model
3.3. Computational Domain and Boundary Conditions
3.4. Evaluation of Mesh Independence
4. Simulation Results and Analysis
4.1. Analysis of the Air Inflow Amount of the Strut Intake Duct
4.2. Analysis for the Volume Content of Air on the Surface of the Strut
4.3. Analysis for the Strut Drag
5. Conclusions
- (1)
- As the sailing speed increases, the external air flows through the air outlet of the intake duct and it is blended with the incoming flow, forming bubbly flows on the surface of the strut and reducing the frictional drag of the strut.
- (2)
- The air volume content of the bubbly flows on the surface of the strut increases as the sailing speed increases, which leads to the continuous increment of the drag reduction rate of the strut. The maximum drag reduction rate can reach about 30%, demonstrating a favorable drag reduction effect.
- (3)
- As the sailing speed increases, the drag of the wave-making of the strut gradually increases. When a certain speed range is reached, the drag reduces due to the formation of bubbly flows being gradually balanced with the drag caused by the wave-making, and the drag reduction rate does not increase anymore. Further increment of the speed results in a gradual decrease in the drag reduction rate.
Author Contributions
Funding
Acknowledgments
Conflicts of Interest
References
- Begovic, E.; Bertorello, C.; Mancini, S. Hydrodynamic performances of small size SWATH craft. Brodogradnja 2015, 66, 1–22. [Google Scholar]
- An, H.; Sun, P.; Ren, H.; Hu, Z. CFD-based numerical study on the ventilated supercavitating flow of the surface vehicle. Ocean Eng. 2020, 214, 107726. [Google Scholar] [CrossRef]
- Mccormick, M.E.; Bhattacharyya, R. Drag reduction of a submersible hull by electrolysis. Nav. Eng. J. 1973, 85, 11–16. [Google Scholar] [CrossRef]
- Murai, Y.; Fukuda, H.; Oishi, Y.; Kodama, Y.; Yamamoto, F. Skin friction reduction by large air bubbles in a horizontal channel flow. Int. J. Multiph. Flow 2007, 33, 147–163. [Google Scholar] [CrossRef]
- Madavan, N.K.; Deutsch, S.; Merkle, C.L. Measurements of local skin friction in a microbubble-modified turbulent boundary layer. J. Fluid Mech. 1985, 156, 237–256. [Google Scholar] [CrossRef]
- Kodama, Y.; Kakugawa, A.; Takahashi, T.; Kawashima, H. Experimental study on microbubbles and their applicability to ships for skin friction reduction. Int. J. Heat Fluid Flow 2000, 21, 582–588. [Google Scholar] [CrossRef]
- Sayyaadi, H.; Nematollahi, M. Determination of optimum injection flow rate to achieve maximum micro bubble drag reduction in ships; an experimental approach. Sci. Iran. 2013, 20, 535–541. [Google Scholar]
- Paik, B.G.; Yim, G.T.; Kim, K.Y.; Kim, K.S. The effects of microbubbles on skin friction in a turbulent boundary layer flow. Int. J. Multiph. Flow 2016, 80, 164–175. [Google Scholar] [CrossRef]
- Kanai, A.; Miyata, H. Direct numerical simulation of wall turbulent flows with microbubbles. Int. J. Numer. Methods Fluids 2001, 35, 593–615. [Google Scholar] [CrossRef]
- Kawamura, T.; Kodama, Y. Numerical simulation method to resolve interactions between bubbles and turbulence. Int. J. Heat Fluid Flow 2002, 23, 627–638. [Google Scholar] [CrossRef]
- Xu, J.; Maxey, M.R.; Karniadakis, G.E. Numerical simulation of turbulent drag reduction using micro-bubbles. J. Fluid Mech. 2002, 468, 271–281. [Google Scholar] [CrossRef] [Green Version]
- Ferrante, A.; Elghobashi, S. Reynolds number effect on drag reduction in a microbubble-laden spatially developing turbulent boundary layer. J. Fluid Mech. 2005, 543, 93–106. [Google Scholar] [CrossRef]
- Mohanarangam, K.; Cheung, S.C.P.; Tu, J.Y.; Chen, L. Numerical simulation of micro-bubble drag reduction using population balance model. Ocean Eng. 2009, 36, 863–872. [Google Scholar] [CrossRef]
- Feng, Y.-Y.; Hu, H.; Peng, G.-Y.; Zhou, Y. Microbubble effect on friction drag reduction in a turbulent boundary layer. Ocean Eng. 2020, 211, 107583. [Google Scholar] [CrossRef]
- Haryanto, Y.; Waskito, K.T.; Pratama, S.Y.; Candra, B.D.; Rahmat, B.A. Comparison of Microbubble and Air Layer Injection with Porous Media for Drag Reduction on a Self-propelled Barge Ship Model. J. Mar. Sci. Appl. 2018, 17, 165–172. [Google Scholar]
- Elbing, B.R.; Winkel, E.S.; Lay, K.A.; Dowling, D.R.; Perlin, M. Bubble-induced skin-friction drag reduction and the abrupt transition to air-layer drag reduction. J. Fluid Mech. 2008, 612, 201–236. [Google Scholar] [CrossRef]
- Shen, X.; Ceccio, S.L.; Perlin, M. Influence of bubble size on micro-bubble drag reduction. Exp. Fluids 2006, 41, 415–424. [Google Scholar] [CrossRef]
- Murai, Y. Frictional drag reduction by bubble injection. Exp. Fluids 2014, 55, 1773. [Google Scholar] [CrossRef]
- Choi, J.K.; Hsiao, C.T.; Chahine, G.L. Numerical Studies on the Hydrodynamic Performance and the Startup Stability of High Speed Ship Hulls with Air Plenums and Air Tunnels. In Proceedings of the 9th International Conference on Fast Sea Transportation, FAST 2007, Shanghai, China, 23–27 September 2007; pp. 286–294. [Google Scholar]
- Choi, J.K.; Georges, L.; Chahine, G.L. Numerical Study on the Behavior of Air Layers Used for Drag Reduction. In Proceedings of the 28th Symposium on Naval Hydrodynamics, Pasadena, CA, USA, 12–17 September 2010; pp. 1–15. [Google Scholar]
- Kim, D.; Moin, P. Direct Numerical Study of Air Layer Drag Reduction Phenomenon Over a Backward-Facing Step; 63rd Annual Meeting of the APS Division of Fluid Dynamics; Center for Turbulence Research: Stanford, CA, USA, 2010; pp. 351–362. [Google Scholar]
- Zhao, X.; Zong, Z.; Jiang, Y.; Sun, T. A numerical investigation of the mechanism of air-injection drag reduction. Appl. Ocean Res. 2020, 94, 101978. [Google Scholar] [CrossRef]
- Kim, S.; Oshima, N. Numerical prediction of a large bubble behavior in wall turbulent flow. In Proceedings of the 14th World Congress in Computational Mechanics and ECCOMAS Congress 600, Paris, France, 19–24 July 2020; pp. 1–7. [Google Scholar]
- Zhao, X.-J.; Zong, Z.; Jiang, Y.-C. Numerical study of air layer drag reduction of an axisymmetric body in oscillatory motions. J. Hydrodyn. 2021, 33, 1007–1018. [Google Scholar] [CrossRef]
- Zhang, Y.J. The Daqo of Fluid Mechanics; Beijing University of Aeronautics and Astronautics Press: Beijing, China, 1991. (In Chinese) [Google Scholar]
- Hirt, C.W.; Nichols, B.D. Volume of fluid (VOF) method for the dynamics of free boundaries. Comput. Phys. 1981, 39, 201–225. [Google Scholar] [CrossRef]
- Kim, D. Direct numerical simulation of two-phase flows with application to air layer drag reduction. Ph.D. Thesis, Standford University, Stanford, CA, USA, June 2011. [Google Scholar]
- Menter, F.R. Two-equation eddy-viscosity turbulence models for engineering applications. AIAA J. 1994, 32, 1598–1605. [Google Scholar] [CrossRef] [Green Version]
- Pendar, M.R.; Roohi, E. Investigation of cavity around 3D hemispherical head-form body and conical cavitators using different turbulence and cavity models. Ocean Eng. 2016, 112, 287–306. [Google Scholar] [CrossRef]








| Parameter | Inlet Velocity (m/s) | Outlet Pressure (Pa) | Turbulence Intensity | Time Step (s) | Basic Pressure (Pa) |
|---|---|---|---|---|---|
| Setting value | 5–14 | Hydrostatic Pressure | 0.01 | 0.0004 | 101,325 |
| Mesh Generation | Meshing Size (mm) | Grid Number (×104) | Time Step (s) | Courant Number |
|---|---|---|---|---|
| ) | 3.2 | 140 | 0.0004 | 1 |
| ) | 4.8 | 90 | 0.0006 | 1 |
| ) | 6.4 | 50 | 0.0008 | 1 |
| Mesh Conditions | |||
| Strut Drag (N) | 43.56 | 44.98 | 51.02 |
| Analysis Parameter | (%) | (%) | (%) | |||
| Convergence | 0.235 | 3.247 | 3.3% | 5.5% | 2.3% | 44.98 |
| Sailing Speed (m/s) | 1–4 | 5 | 6 | 7 | 8 | 9 | 10 | 12 | 14 |
| Air Inflow Amount (kg/h) | 0 | 5.58 | 9.25 | 12.47 | 14.51 | 16.60 | 19.91 | 29.52 | 38.66 |
| Sailing Speed (m/s) | Model Type | Strut Drag (N) | Drag Reduction Rate (%) |
|---|---|---|---|
| 1 | Control model | 0.60 | −20.00 |
| Proposed model | 0.72 | ||
| 2 | Control model | 3.35 | −9.25 |
| Proposed model | 3.66 | ||
| 3 | Control model | 6.79 | −7.51 |
| Proposed model | 7.30 | ||
| 4 | Control model | 11.67 | −2.66 |
| Proposed model | 11.98 | ||
| 5 | Control model | 17.36 | 17.22 |
| Proposed model | 14.37 | ||
| 6 | Control model | 24.16 | 22.10 |
| Proposed model | 18.82 | ||
| 7 | Control model | 33.03 | 25.95 |
| Proposed model | 24.46 | ||
| 8 | Control model | 43.56 | 28.21 |
| Proposed model | 31.27 | ||
| 9 | Control model | 56.30 | 28.29 |
| Proposed model | 40.37 | ||
| 10 | Control model | 70.47 | 28.03 |
| Proposed model | 50.72 | ||
| 12 | Control model | 104.79 | 26.95 |
| Proposed model | 76.55 | ||
| 14 | Control model | 144.55 | 25.94 |
| Proposed model | 107.05 |
Publisher’s Note: MDPI stays neutral with regard to jurisdictional claims in published maps and institutional affiliations. |
© 2022 by the authors. Licensee MDPI, Basel, Switzerland. This article is an open access article distributed under the terms and conditions of the Creative Commons Attribution (CC BY) license (https://creativecommons.org/licenses/by/4.0/).
Share and Cite
An, H.; Hu, Z.; Pan, H.; Yang, P. Numerical Investigation of the Automatic Air Intake Drag Reduction Strut Based on the Venturi Effect. Symmetry 2022, 14, 367. https://doi.org/10.3390/sym14020367
An H, Hu Z, Pan H, Yang P. Numerical Investigation of the Automatic Air Intake Drag Reduction Strut Based on the Venturi Effect. Symmetry. 2022; 14(2):367. https://doi.org/10.3390/sym14020367
Chicago/Turabian StyleAn, Hai, Zhenyu Hu, Haozhe Pan, and Po Yang. 2022. "Numerical Investigation of the Automatic Air Intake Drag Reduction Strut Based on the Venturi Effect" Symmetry 14, no. 2: 367. https://doi.org/10.3390/sym14020367
APA StyleAn, H., Hu, Z., Pan, H., & Yang, P. (2022). Numerical Investigation of the Automatic Air Intake Drag Reduction Strut Based on the Venturi Effect. Symmetry, 14(2), 367. https://doi.org/10.3390/sym14020367
