Characteristics of Changes in Residential Building Layouts in Public Rental Housing Complexes in New Towns of Korea
Abstract
1. Introduction
2. Literature Review
2.1. Public Rental Housing Policies and Legal Frameworks in South Korea
2.2. The Importance of Residential Building Layout in Apartment Complex Planning
2.3. Review of Residential Building Layouts in Housing Complexes
2.4. Research Differentiation
3. Materials and Methods
3.1. Research Process
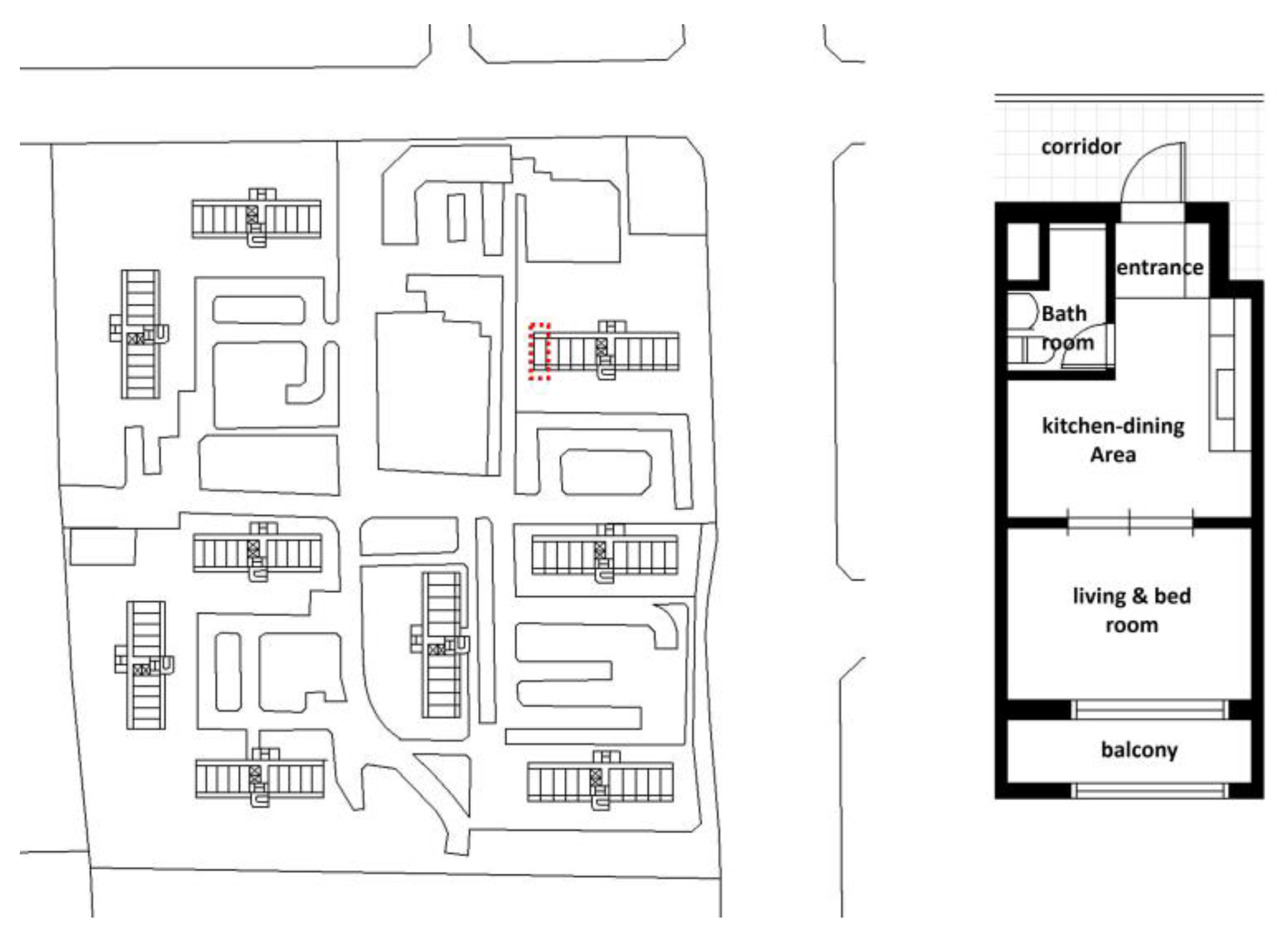
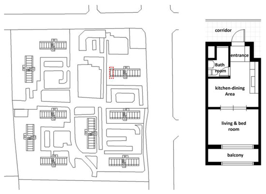
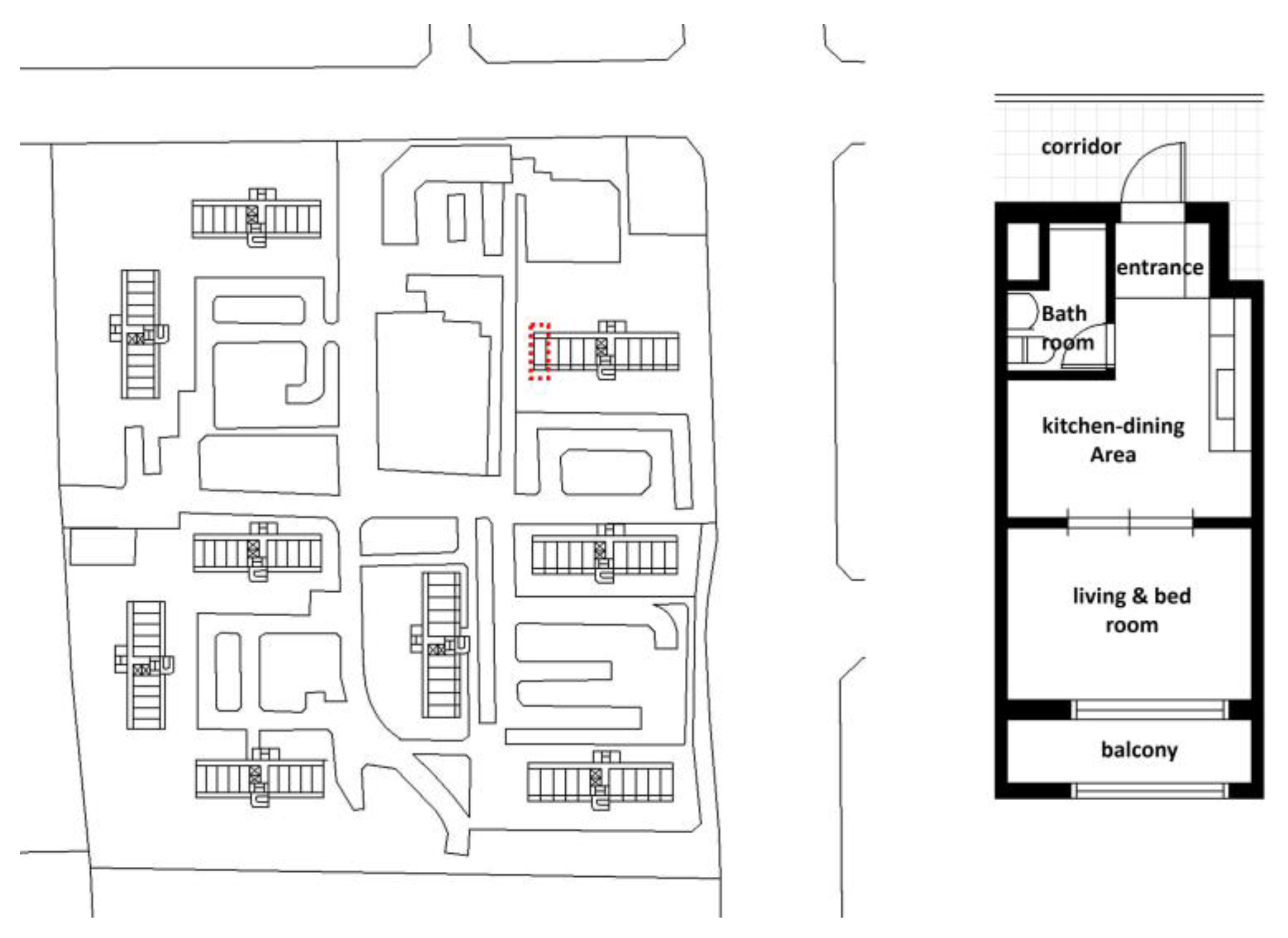
3.2. Selection and Overview of Case Study Sites
3.3. Site Status and Legal Conditions
3.4. Analytical Framework
4. Results
4.1. Characteristics of Residential Building Layout Forms by Construction Period
4.2. Characteristics of Planning Elements for Residential Building Layouts
4.2.1. Density
4.2.2. Building Height
4.2.3. Orientation
4.2.4. Building Forms
4.3. Examination of Changes in Layout Forms of Public Rental Housing Complexes
5. Discussion
6. Conclusions
Author Contributions
Funding
Data Availability Statement
Conflicts of Interest
References
- National Assembly Research Service. Analysis of Public Rental Housing Supply Trends and Policy Challenges; Legislative and Policy Report; National Assembly Research Service: Seoul, Republic of Korea, 2020; Volume 65, pp. 1–7. [Google Scholar]
- Kim, J.S. An Analysis of Factors Influencing Satisfaction among National Rental Housing Residents. J. Hous. Urban Stud. 2017, 7, 102. [Google Scholar]
- Kim, S.Y. A Critical Review of the Supply Performance of Public Rental Housing. J. Hous. Urban Stud. 2022, 12, 39–62. [Google Scholar]
- Cho, S.Y.; Lee, Y.E.; Choi, E.H.; Lee, S.H.; Shom, M.R.; Lee, E.H.; Back, S. A Study on the Long term Management strategy of Housing, LH Social Housing. Land Hous. Res. Inst. 2023, 1. [Google Scholar]
- Song, K.B.; Kim, Y.H. A Study on the Planning Methods for Residential Building Block Layout of New Town Complex in the Metropolitan Area. J. Archit. Inst. Korea 2007, 23, 245–252. [Google Scholar]
- Cho, D.H. A study on the changing process of rental housing supply policy in South Korea. Space Environ. 2013, 46, 58–101. [Google Scholar]
- Im, S.-H. Half a Century of Housing Policy; Korea National Housing Corporation: Seoul, Republic of Korea, 2002. [Google Scholar]
- Ministry Government of Legislation. Available online: http://moleg.go.kr/ (accessed on 1 December 2024).
- Sa, G.G. A Study on the Change of Accessbility of the Outdoor Space of Public Rectal Housing Complex in New Town—Focus on the Public Rectal Housing Complex in the 1st and 2nd New Towns. J. Korean Inst. Cult. Archit. 2022, 79, 78–88. [Google Scholar]
- Vera-Toscano, E.; Ateca-Amestoy, V. The relevance of social interaction on housing satisfaction. Soc. Indic. Res. 2008, 86, 257–274. [Google Scholar] [CrossRef]
- Jansen, S.J.T. The impact of the have-want discrepancy on residential satisfaction. J. Environ. Psychol. 2014, 40, 26–38. [Google Scholar] [CrossRef]
- Park, I.S.; Kim, J.K. A Study on Open Space Ratio as an Index of the Livability. J. Archit. Inst. Korea 1992, 6, 29–38. [Google Scholar]
- Choi, M.H. A Study on the Characteristics of Planning within Each Type of Multi-Family Housing. J. Korean Hous. Assoc. 2006, 17, 83–91. [Google Scholar]
- Yuen, B.; Yeh, A.; Appold, S.J.; Earl, G.; Ting, J.; Kurnianingrum Kwee, L. High-rise living in Singapore public housing. Urban Stud. 2006, 43, 583–600. [Google Scholar] [CrossRef]
- Wyly, E.; DeFilippis, J. Mapping Public Housing: The Case of New York City. City Community 2010, 9, 61–86. [Google Scholar] [CrossRef]
- Hong, N.; Kim, S. Persistence of the socialist collective housing areas (KTTs): The evolution and contemporary transformation of mass housing in Hanoi, Vietnam. J. Hous. Built Environ. 2021, 36, 601–625. [Google Scholar] [CrossRef]
- Yang, H.; Oldfield, P.; Easthope, H. Influences on Apartment Design: A History of the Spatial Layout of Apartment Buildings in Sydney and Implications for the Future. Buildings 2022, 12, 628. [Google Scholar] [CrossRef]
- Jang, S.S. A Study on the Transition of the ‘60~70’s Apartment Houses in Korea. Ph.D. Thesis, Seoul National University, Seoul, Republic of Korea, 1994. [Google Scholar]
- Shon, S.K.; Kang, G.H. A study on the changing Trends of Site and Outdoor Planing of Korean Public Apartment Project. Inst. Environ. Sci. Constr. Chung-Ang Univ. 2001, 12, 9–10. [Google Scholar]
- Kim, H.J.; Park, C.K. A Study on the Block Plan and Layout Pattern in High-Rise Multi-Family Housing—A case Study on Prizewinners in the Design Competition in 1990s. J. Archit. Inst. Korea 2000, 16, 167–176. [Google Scholar]
- Song, D.H. A Study on the Characteristic Analysis of the Landscape Preference to Arranged Type of Located High-rise Apartment at the street. J. Archit. Inst. Korea 2002, 18, 111–120. [Google Scholar]
- Park, S.Y.; Lee, D.J.; Choi, M.H. A Comparative Analysis of the Orientation and View Value through the Layout Analysis of the Apartment Buildings at River-front in City Area—Focused on the Apartment at Shin-Chon River-front, in Dae-gu. J. Archit. Inst. Korea 2006, 22, 41–48. [Google Scholar]
- Lee, B.H.; Lee, G.W.; Yeo, Y.H. Comparative Study of Environmental Sustainability in Basic Community Planning for Multiple Stock Housing based on Lay-out Types. J. Archit. Inst. Korea 2010, 26, 271–282. [Google Scholar]
- Kim, Y.E.; Ahn, K.H. A study on the Changing trend of the street-side planning of apartment buildings—Focused on the apartment complexes which were built after 1990 in Seoul. Proc. Autumn Conf. Korea Inst. Urban Des. 2011, 196–205. [Google Scholar]
- Kim, H.J.; Kim, Y.S.; Park, C.G.; Kim, Y.A. A Study on the Planning Characteristics of Block Forms in Apartment Housing—A Case Study on the Apartment Housing Design Competition of Sejong City. Korea Plan. Assoc. 2013, 48, 287–303. [Google Scholar]
- Seo, E.G.; Choi, Y.J.; Choi, J.P. Chronological Analysis on the Hierarchy of Service Facilities as seen in the Block Plans of Apartment Complexes. J. Archit. Inst. Korea 2014, 30, 105–115. [Google Scholar]
- Lee, S.J.; Park, S.H. Determinants and Processes of Morphological Transformation of Apartment Complexes in Busan. J. Archit. Inst. Korea 2019, 35, 91–102. [Google Scholar]
- Byun, K.Y.; Roh, J.H. A research on the Residential Environment Public Rental Housing by Post Occupancy Evaluation of Research—Focusing on Residents in the Gimhae J Area. J. Reg. Assoc. Archit. Inst. Korea 2013, 15, 65–73. [Google Scholar]
- Choi, J.W.; Choi, Y.O. An Analysis of Layout Type and Heating Cost of the Public Rental Housing for Korean Social Housing—Focusing on the Layout of Housing, Orientation, Heating System, Heating Cost. J. Archit. Korea Plan. Des. 2017, 33, 23–32. [Google Scholar]
- Oh, H.; Hwang, S.W. Identifying Physical Distinction in Social-mix Apartment Complexes—Focusing on Redeveloped Apartment Complexes. J. Urban Des. Inst. Korea 2022, 23, 143–157. [Google Scholar] [CrossRef]
- Namsu, J.; Sungil, H. A Study on courtyard apartment types in South Korea from the 1960s to 1970s. Front. Archit. Res. 2017, 6, 149–156. [Google Scholar]
- Kim, H.; Nienke, M.; Masi, M. A typology of clustered housing for older adults towards opportunities for social interaction: A case study of Dutch social housing. Front. Archit. Res. 2024, 13, 561–574. [Google Scholar]
- Choi, J.P.; Byun, N.H.; Kim, M.S. Time Series Analysis of the Trend Regarding Block Arrangement According to Specified Unit Area Types in Apartment Complexes in Seoul. J. Archit. Inst. Korea 2011, 27, 13–20. [Google Scholar]
- National Administration for Houses & Buildings. Available online: https://www.eais.go.kr/ (accessed on 1 March 2024).
- Korea Land & Housing Corperation. Available online: https://www.lh.or.kr/main/ (accessed on 1 March 2024).
- Naver Pay Real Estate. Available online: https://land.naver.com/ (accessed on 1 March 2024).
- Residential Housing Research Association. The History of Multi-Family Housing Planning in Korea; Sejinsa: Seoul, Republic of Korea, 1999. [Google Scholar]
- Urban Design Implementation Guidelines for Bundang New Town, Chapter 2, Article 17, Clauses 1 and 2; Korea Land & Housing Corperation: Seongnam, Republic of Korea, 1992.
- District Unit Plan Implementation Guidelines for Ilsan New Town, Part 2, Chapter 1, Section 1, Clauses 6 and 7; Korea Land & Housing Corperation: Seongnam, Republic of Korea, 2018.
- District Unit Plan Implementation Guidelines for Dongtan New Town, Chapter 2, Article 3; Korea Land & Housing Corperation: Seongnam, Republic of Korea, 2023.
- District Unit Plan Guidelines for Unjeong New Town, Article 3; Korea Land & Housing Corperation: Seongnam, Republic of Korea, 2024.
- District Unit Plan Implementation Guidelines for Byeollae New Town, Chapter 2, Articles 26–28; Korea Land & Housing Corperation: Seongnam, Republic of Korea, 2023.
- District Unit Plan Implementation Guidelines for Dongtan 2 New Town, Chapter 3, Articles 8–16; Korea Land & Housing Corperation: Seongnam, Republic of Korea, 2023.







| Government Leadership | Political, Social, and Economic Context | Public Rental Housing Supply Policy | Related Legislation |
|---|---|---|---|
| Park, Chung-hee (1962–1979) | Oil shock, rapid population growth, urbanization, export-driven economic growth policy | Five-year economic development plan | Public Housing Act (1963) |
| Chun, Doo-hwan (1980–1987) | Military coup, economic and market stabilization | Announcement of rental housing development measures | Housing Construction Promotion Act (1972), Residential Land Development Promotion Act (1980) |
| Roh, Tae-woo (1988–1992) | Democratization, decentralization, welfare expansion, construction of the first new towns | Announcement of the 2 Million Housing Construction Plan, supply of permanent rental housing | Rental Housing Construction Promotion Act (1984) |
| Kim, Young-sam (1993–1997) | Liberalization, deregulation | Five-year new economy plan, supply of 50-year public rental housing | Amendment of the Rental Housing Act (1993), Amendment of the Housing Act |
| Kim, Dae-jung (1998–2002) | Overcoming the IMF financial crisis, housing stability for low-income and working class | Activation of the housing market, deregulation, announcement of national rental housing supply | |
| Roh, Moo-hyun (2003–2007) | Growth and welfare expansion, construction of the second new towns | Supply of various types of rental housing, expansion of rental housing construction scale | National Rental Housing Special Act (2003) |
| Lee, Myung-bak (2008–2012) | Global financial crisis, growth-oriented policy, deregulation, low-carbon green growth | Bogeumjari Housing Policy (Integration of Public Sale and Rental Housing) | Bogeumjari Housing Special Act (2008) |
| Park, Geun-hye (2013–2017) | Creative economy, welfare expansion | Introduction of happy housing (for young workers, social beginners, college students, newlyweds) | Public Housing Construction Special Act (2014) |
| Period | No. | Apartment Complex Name (District) | Site Area (m2) | Building Coverage Ratio (%) | Floor Area Ratio (%) | Number of Households/Buildings | Completion Date |
|---|---|---|---|---|---|---|---|
| 1990s | A1 | Mokryeon Maeul Jugong 1st Complex (Seongnam Bundang) | 44,139.8 | 16.11 | 136.24 | 1460/12 | 1993.5. |
| A2 | Hansol Village Jugong 4th Complex (Seongnam Bundang) | 56,280.7 | 13.15 | 148.11 | 1651/17 | 1994.5. | |
| A3 | Cheongsol Village Jugong 6th Complex (Seongnam Bundang) | 46,318.8 | 11.09 | 121.96 | 1250/9 | 1994.8. | |
| A4 | Moonchon Village Jugong 7th Complex (Goyang Ilsan) | 43,351.5 | 12.95 | 132.45 | 1150/10 | 1994.9. | |
| A5 | Hwindol Village Jugong 4th Complex (Goyang Ilsan) | 37,729.0 | 13.69 | 124.68 | 1141/9 | 1995.4. | |
| A6 | Moonchon Village Jugong 9th Complex (Goyang Ilsan) | 35,811.3 | 12.52 | 132.23 | 912/8 | 1995.5. | |
| A3 | Hansol Village Jugong 7th Complex (Seongnam Bundang) | 51,272.9 | 13.8 | 128.31 | 1668/12 | 1995.7. | |
| A3 | Cheongsol Jugong 9th Complex (Seongnam Bundang) | 37,994.6 | 12.26 | 144.16 | 1020/6 | 1995.9. | |
| 2000s | B1 | Chodang Village Humensia 1st Complex (Gimpo Hangang) | 49,446.0 | 15.18 | 164.23 | 1114/15 | 2008.5. |
| B2 | Hyangnam Jugong 7th Complex (Hwaseong Hyangnam) | 77,061.9 | 12.86 | 135.07 | 941/11 | 2008.11. | |
| B3 | Botdeul Village 5th Complex (Seongnam, Pangyo) | 45,818 | 16.4 | 166.11 | 870/12 | 2009.7. | |
| B4 | Garam Village 2nd Complex Humensia (Paju Unjeong) | 52,987.2 | 16.06 | 154.06 | 1231/13 | 2009.9. | |
| B5 | Hanumul Village 6th Complex (Hwaseong Hyangnam) | 67,645.9 | 14.33 | 120.38 | 1330/18 | 2009.11. | |
| B6 | Paju Unjeong Humensia 11th Complex (Paju Unjeong) | 50,136.6 | 16.43 | 154.04 | 1165/12 | 2009.12. | |
| B7 | Hanumul Village 5th Complex (Hwaseong Hyangnam) | 58,482.6 | 13.44 | 119.39 | 1150/16 | 2009.12. | |
| B8 | Baekhyeon Village 2nd Complex (Seongnam, Pangyo) | 53,512.0 | 18.26 | 183.61 | 772/13 | 2009.12. | |
| 2010s | C1 | Mirinae Village 4-4 Complex (Namyangju Byeollae) | 45,694.1 | 19.11 | 189.16 | 1331/10 | 2014.1. |
| C2 | Byeolsarang Village 2-10 Complex(Namyangju Byeollae) | 35,543.1 | 14.31 | 164.73 | 886/7 | 2014.10. | |
| C3 | Yuljeong Village 7th Complex (Yangju Okjeong) | 66,170.0 | 13.86 | 121.86 | 1256/14 | 2014.11. | |
| C4 | Mirinae Village 4-2 Complex (Namyangju Byeollae) | 39,149.0 | 13.29 | 144.19 | 1058/7 | 2016.11. | |
| C5 | Okjeong Village LH 8th Complex (YangJu Okjeing) | 61,244.0 | 11.56 | 135.46 | 1550/10 | 2017.5. | |
| C6 | Okjeong Village LH 16th Complex (YangJu Okjeing) | 60,571.4 | 10.61 | 136.61 | 1618/8 | 2017.5. | |
| C8 | Dongtan 2 LH 35th Complex (Hwaseong Dongtan 2) | 66,720.0 | 11.00 | 140.28 | 1768/7 | 2020.10. | |
| C9 | Dongtan 2 LH 2nd Complex (Hwaseong Dongtan 2) | 46,079.4 | 37.03 | 173.15 | 1390/13 | 2021.11. |
| Layout Type | Definition | Image |
|---|---|---|
| Parallel | A layout where all main buildings are arranged parallel in the same direction | ![]() |
| Orthogonal | A layout where the main buildings are arranged at right angles to each other, forming a grid pattern | ![]() |
| Staggered | A layout where the main buildings are staggered and arranged parallel to each other | ![]() |
| Mixed | A layout where two or more types, such as parallel, orthogonal, and staggered arrangements, are combined | |
| Layout Elements | Detailed Elements | Content |
|---|---|---|
| Density | Floor area ratio (FAR) | The ratio of the total floor area of buildings to the site area |
| Building Height | Average number of floors | The value obtained by averaging the number of floors of all main buildings within the complex |
| Maximum number of floors | The highest number of floors among all main buildings within the complex | |
| Orientation | The orientation of the residential building | The proportion of south-facing layouts, including southeast and southwest orientations |
| Building Forms | Types of residential building forms | The number of main building types within the complex and the proportion of each type |
| Modified residential building forms | The proportion of modified linear flat-type residential buildings | |
| The number of floors within the residential building | Variations in the number of floors within the same residential building |
| Period | Type | Layout and Characteristics |
|---|---|---|
| 1990s | Orthogonal | ![]() |
| Orthogonal layout by three or more main residential buildings | ||
| Mixed | ![]() | |
| The primary layout is composed in an orthogonal arrangement, with some residential buildings designed in parallel or staggered hybrid forms | ||
| 2000s | Parallel | ![]() |
| Parallel layout with flat-type and tower-type residential buildings | ||
| Mixed | ![]() | |
| The primary layout is parallel, with a hybrid arrangement where some sections are staggered | ||
| 2010s | Parallel | ![]() ![]() |
| Flat-type, modified flat-type, and tower-type buildings are arranged in a parallel layout | ||
| Mixed | ![]() | |
| The primary layout is parallel, with a mixed arrangement incorporating staggered sections in some areas |
| Classification | Density | Building Height | Orientation | Building Forms | |||||
|---|---|---|---|---|---|---|---|---|---|
| V1 1 | V2 2 | V3 3 | V4 4 | V5 5 | V6 6 | V7 7 | V8 8 | ||
| 1990s | A1 | 136.24 | 12.9 | 15 | 91.7 | 1 | 100.0 | 0.0 | 0.0 |
| A2 | 148.11 | 15.6 | 25 | 82.4 | 1 | 100.0 | 0.0 | 0.0 | |
| A3 | 121.96 | 16.3 | 20 | 88.9 | 1 | 100.0 | 0.0 | 0.0 | |
| A4 | 132.45 | 15.0 | 20 | 100.0 | 1 | 100.0 | 0.0 | 0.0 | |
| A5 | 124.68 | 15.0 | 20 | 100.0 | 1 | 100.0 | 0.0 | 0.0 | |
| A6 | 132.23 | 15.0 | 20 | 100.0 | 1 | 100.0 | 0.0 | 0.0 | |
| A7 | 128.31 | 14.5 | 20 | 100.0 | 3 | 100.0 | 0.0 | 0.0 | |
| A8 | 144.16 | 17.5 | 20 | 77.9 | 2 | 50.0 | 50.0 | 0.0 | |
| Average | 133.50 | 15.2 | 20 | 92.6 | 1.4 | 93.8 | 6.25 | 0.0 | |
| 2000s | B1 | 113.87 | 14.3 | 15 | 100.0 | 4 | 53.3 | 26.7 | 46.7 |
| B2 | 164.23 | 14.7 | 20 | 100.0 | 3 | 63.6 | 27.3 | 36.4 | |
| B3 | 146.27 | 15.6 | 18 | 100.0 | 4 | 0.0 | 41.7 | 100.0 | |
| B4 | 135.07 | 14.4 | 23 | 100.0 | 3 | 53.8 | 23.1 | 46.2 | |
| B5 | 154.06 | 15.1 | 23 | 100.0 | 3 | 41.7 | 25.0 | 58.3 | |
| B6 | 154.04 | 12.8 | 15 | 100.0 | 6 | 16.7 | 33.0 | 77.8 | |
| B7 | 120.38 | 13.3 | 15 | 100.0 | 4 | 50.0 | 25.0 | 50.0 | |
| B8 | 119.39 | 17.3 | 25 | 100.0 | 5 | 15.4 | 38.5 | 84.6 | |
| Average | 138.41 | 14.7 | 19.8 | 100.0 | 4 | 36.8 | 30.04 | 62.5 | |
| 2010s | C1 | 189.16 | 17.2 | 25 | 100.0 | 4 | 28.6 | 20.0 | 50.0 |
| C2 | 164.73 | 19.3 | 25 | 100.0 | 2 | 30.0 | 71.4 | 71.4 | |
| C3 | 121.86 | 14.8 | 30 | 100.0 | 3 | 42.9 | 42.9 | 57.1 | |
| C4 | 144.19 | 16.6 | 19 | 100.0 | 2 | 71.4 | 0.0 | 28.6 | |
| C5 | 135.46 | 18.7 | 21 | 100.0 | 2 | 70.0 | 0.0 | 30.0 | |
| C6 | 136.61 | 19.7 | 21 | 100.0 | 1 | 0.0 | 0.0 | 100.0 | |
| C7 | 140.28 | 21.9 | 23 | 100.0 | 1 | 0.0 | 0.0 | 100.0 | |
| C8 | 173.15 | 7.0 | 18 | 100.0 | 7 | 15.4 | 0.0 | 84.6 | |
| Average | 150.68 | 16.9 | 21.5 | 99.5 | 2.75 | 26.9 | 16.8 | 65.2 | |
Disclaimer/Publisher’s Note: The statements, opinions and data contained in all publications are solely those of the individual author(s) and contributor(s) and not of MDPI and/or the editor(s). MDPI and/or the editor(s) disclaim responsibility for any injury to people or property resulting from any ideas, methods, instructions or products referred to in the content. |
© 2025 by the authors. Licensee MDPI, Basel, Switzerland. This article is an open access article distributed under the terms and conditions of the Creative Commons Attribution (CC BY) license (https://creativecommons.org/licenses/by/4.0/).
Share and Cite
Kim, H.; Roh, B. Characteristics of Changes in Residential Building Layouts in Public Rental Housing Complexes in New Towns of Korea. Land 2025, 14, 484. https://doi.org/10.3390/land14030484
Kim H, Roh B. Characteristics of Changes in Residential Building Layouts in Public Rental Housing Complexes in New Towns of Korea. Land. 2025; 14(3):484. https://doi.org/10.3390/land14030484
Chicago/Turabian StyleKim, Hyojeong, and Byungdeok Roh. 2025. "Characteristics of Changes in Residential Building Layouts in Public Rental Housing Complexes in New Towns of Korea" Land 14, no. 3: 484. https://doi.org/10.3390/land14030484
APA StyleKim, H., & Roh, B. (2025). Characteristics of Changes in Residential Building Layouts in Public Rental Housing Complexes in New Towns of Korea. Land, 14(3), 484. https://doi.org/10.3390/land14030484











