Assessment of Post-Earthquake Damaged Building with Interferometric Real Aperture Radar
Abstract
:1. Introduction
2. Materials and Methods
2.1. The RAR Basics and Survey
2.2. Data Acquisition
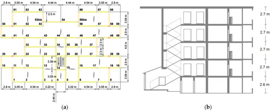
2.3. The Building. Structural Description and Numerical Model
3. Results
3.1. Data Analysis (RAR)
3.2. Building Modal Analysis and Capacity Curve
3.3. Expected Performance, Fragility, and Damage
4. Discussion
5. Conclusions
Author Contributions
Funding
Acknowledgments
Conflicts of Interest
References
- Alarcón, E.; Benito, M.B. Foreword special issue Lorca’s earthquake. Bull. Earthq. Eng. 2014, 12, 1827–1829. [Google Scholar] [CrossRef]
- Vargas-Alzate, Y.F.; Pujades, L.G.; Barbat, A.H.; Hurtado, E.; Diaz, S.A.; Hidalgo-Leiva, D.A. Probabilistic seismic damage assessment of reinforced concrete buildings considering directionality effects. Struct. Infrastruct. Eng. 2018, 14, 817–829. [Google Scholar] [CrossRef]
- Pinzón, L.A.; Díaz-Alvarado, S.A.; Pujades, L.G.; Alva, R.E. Do Directionality Effects Influence the Expected Damage? A Case Study of the 2017 Central Mexico Earthquake. Bull. Seismol. Soc. Am. 2018, 108, 2543–2555. [Google Scholar] [CrossRef]
- Doebling, S.W.; Farrar, C.R.; Prime, M.B.; Shevitz, D.W. Damage Identification and Health Monitoring of Structural and Mechanical Systems from Changes in their Vibration Characteristics: A Literature Review; Los Alamos National Laboratory Report LA-13070-MS; USDOE: Washington, DC, USA, 1996. [Google Scholar]
- Sohn, H.; Farrar, C.R.; Hemez, F.M.; Czarnecki, J.J. A Review of Structural Health Monitoring Literature: 1996–2001; Los Alamos National Laboratory Report LA-UR-02-2095; USDOE: Washington, DC, USA, 2002. [Google Scholar]
- Farrar, C.R.; Worden, K. An introduction to structural health monitoring. Phil. Trans. R. Soc. 2007, 365, 303–315. [Google Scholar] [CrossRef] [PubMed]
- Farrar, C.R.; Lieven, N.A.J. Damage prognosis: The future of structural health monitoring. Phil. Trans. R. Soc. 2007, 365, 623–632. [Google Scholar] [CrossRef] [PubMed]
- Masciotta, M.G.; Roque, J.; Ramos, L.; Lourenço, P. A multidisciplinary approach to assess the health state of heritage structures: The case study of the Church of Monastery of Jeronimos in Lisbon. Constr. Build. Mater. 2016, 116, 169–187. [Google Scholar] [CrossRef]
- Capozzoli, L.; Rizzo, E. Combined NDT techniques in civil engineering applications: Laboratory and real test. Constr. Build. Mater. 2017, 154, 1139–1150. [Google Scholar] [CrossRef]
- Farrar, C.R.; Doebling, S.W.; Nix, D.A. Vibration-based structural damage identification. Phil. Trans. R. Soc. 2001, 359, 131–149. [Google Scholar] [CrossRef]
- Vidal, F.; Navarro, M.; Aranda, C.; Enomoto, T. Changes in dynamic characteristics of Lorca RC buildings from pre- and post-earthquake ambient vibration data. Bull. Earthq. Eng. 2014, 12, 2095–2110. [Google Scholar] [CrossRef]
- Farrar, C.; Darling, T.W.; Migliorini, A.; Baker, W.E. Microwave interferometer for non-contact vibration measurements on large structures. Mech. Syst. Signal Process. 1999, 13, 241–253. [Google Scholar] [CrossRef]
- Bartoli, G.; Facchini, L.; Pieraccini, M.; Fratini, M.; Atzeni, C. Experimental utilization of interferometric radar techniques for structural monitoring. Struct. Control Health Monit. 2008, 15, 283–298. [Google Scholar] [CrossRef]
- Pieraccini, M.; Luzi, G.; Mecatti, D.; Noferini, L.; Atzeni, C. A microwave radar technique for dynamic testing of large structure. IEEE Trans. Microw. Theory Tech. 2003, 51, 1603–1609. [Google Scholar] [CrossRef]
- Pieraccini, M.; Fratini, M.; Parrini, F.; Pinelli, G.; Atzeni, C. Dynamic Survey of Architectural Heritage by High-Speed Microwave Interferometry. IEEE Geosci. Remote Sens. Lett. 2005, 2, 28–30. [Google Scholar] [CrossRef]
- Gentile, C.; Bernardini, G. An interferometric radar for non-contact measurement of deflections on civil engineering structures: Laboratory and full-scale tests. Struct. Infrastruct. Eng. 2010, 6, 521–534. [Google Scholar] [CrossRef]
- Coppi, F.; Gentile, C.; Ricci, P.A. Software tool for processing the displacement time series extracted from raw radar data. In Proceedings of the 9th International Conference on Vibration Measurements by Laser and Non-Contact Techniques, Ancona, Italy, 22–25 June 2010. [Google Scholar]
- Pieraccini, M.; Fratini, M.; Parrini, F.; Atzeni, C. Dynamic monitoring of bridges using a high-speed coherent radar. IEEE Trans. Geosci. Remote Sens. 2006, 44, 3284–3288. [Google Scholar] [CrossRef]
- Gentile, C.; Bernardini, G. Output-only modal identification of a reinforced concrete bridge from radar-based measurements. NDT&E Int. 2008, 41, 544–553. [Google Scholar]
- Stabile, T.A.; Perrone, A.; Gallipoli, M.R.; Ditommaso, R.; Ponzo, F.C. Dynamic Survey of the Musmeci Bridge by Joint Application of Ground-Based Microwave Radar Interferometry and Ambient Noise Standard Spectral Ratio Techniques. IEEE Geosci. Remote Sens. Lett. 2013, 10, 870–874. [Google Scholar] [CrossRef]
- Pieraccini, M.; Fratini, M.; Parrini, F.; Atzeni, C.; Spinelli, P. In-service testing of wind turbine towers using a microwave sensor. Renew. Energy 2008, 33, 13–21. [Google Scholar] [CrossRef]
- Luzi, G.; Monserrat, O.; Crosetto, M. The Potential of Coherent Radar to Support the Monitoring of the Health State of Buildings. Res. Non-Destr. Eval. 2012, 23, 125–145. [Google Scholar] [CrossRef]
- Negulescu, C.; Luzi, G.; Crosetto, M.; Raucoules, D.; Roullé, A.; Monfort, D.; Pujades, L.G.; Colas, B.; Dewez, T. Comparison of seismometer and radar measurements for the modal identification of civil engineering structures. Eng. Struct. 2013, 51, 10–22. [Google Scholar] [CrossRef]
- Luzi, G.; Crosetto, M.; Cuevas-González, M. A radar-based monitoring of the Collserola Tower (Barcelona). Mech. Syst. Signal Process. 2014, 49, 234–248. [Google Scholar] [CrossRef]
- Gentile, C.; Saisi, A. Dynamic measurement on historic masonry towers by microwave remote sensing. In Proceedings of the International Conference on Experimental Vibration Analysis for Civil Engineering Structures, Varenna, Italy, 3–5 October 2011; Gentile, C., Benedettini, F., Eds.; Starrylink Editrice: Brescia, Italy, 2011; Volume II, pp. 524–530, ISBN 978-88-96225-39-4. [Google Scholar]
- Atzeni, C.; Atzeni, C.; Bicci, A.; Dei, D.; Fratini, M.; Pieraccini, M. Remote survey of the leaning tower of Pisa by interferometric sensing. IEEE Geosci. Remote Sens. Lett. 2010, 7, 185–189. [Google Scholar] [CrossRef]
- Grazzini, G.; Pieraccini, M.; Dei, D.; Atzeni, C. Simple Microwave sensor for remote detection of structural vibration. Electron. Lett. 2009, 45, 567–569. [Google Scholar] [CrossRef]
- Li, C.; Chen, W.; Liu, G.; Yan, R.; Xu, H.; Qi, Y. A Noncontact FMCW Radar Sensor for Displacement Measurement in Structural Health Monitoring. Sensors 2015, 15, 7412–7433. [Google Scholar] [CrossRef] [PubMed]
- Nair, A.; Cai, C. Acoustic emission monitoring of bridges: Review and case studies. Eng. Struct. 2010, 32, 1704–1714. [Google Scholar] [CrossRef]
- Kirac, N.; Dogan, M.; Ozbasaran, H. Failure of weak-storey during earthquakes. Eng. Fail. Anal. 2011, 18, 572–581. [Google Scholar] [CrossRef]
- Khan, D.; Rawat, A. Nonlinear Seismic Analysis of Masonry Infill RC Buildings with Eccentric Bracings at Soft Storey Level. Procedia Eng. 2016, 161, 9–17. [Google Scholar] [CrossRef]
- Benavent-Climent, A.; Mota-Páez, S. Earthquake retrofitting of R/C frames with soft first story using hysteretic dampers: Energy-based design method and evaluation. Eng. Struct. 2017, 137, 19–32. [Google Scholar] [CrossRef]
- Artés-Carril, J.M. Informe sobre actuaciones realizadas y daños en el grupo de 232 viviendas sociales del barrio de San Fernando de Lorca (Murcia) como consecuencia del terremoto del día 11-05-2011; Instituto de vivienda y suelo. Consejería de obras públicas y ordenación del territorio: Cantabria, Spain, 2011. (In Spanish) [Google Scholar]
- EC8, EN 1998-1. Eurocode 8: Design of Structures for Earthquake Resistance-Part 1. General Rules, Seismic Actions and Rules for Buildings, English Version; EN 1998-1:2004: E; European Committee for Standardization CEN: Brussels, Belgium, 2004. [Google Scholar]
- CSI. In CSI Analysis Reference Manual for SAP2000, ETABS and SAFE; Computer and Structures Inc.: Berkeley, CA, USA, 2016.
- ASCE, American Society of Civil Engineers. Seismic Evaluation and Retrofit of Existing Buildings; ASCE Standard ASCE/SEI 41-13; ASCE: Reston, VA, USA, 2014; ISBN 978-0-7844-1285-5. [Google Scholar]
- Welch, P.D. The use of Fast Fourier Transform for the estimation of power spectra: A method based on time averaging over short, modified periodograms. IEEE Trans. Audio Electroacoust. 1967, 15, 70–73. [Google Scholar] [CrossRef]
- Proakis, J.G.; Manolakis, D.G. Digital Signal Processing; Prentice-Hall: Upper Saddle River, NJ, USA, 1996; pp. 910–913. [Google Scholar]
- Matlab. Matlab the Language of Scientific Computing. The Mathworks Inc. 1994–2017. Available online: https://www.mathworks.com/ (accessed on 6 December 2018).
- NCSE-02, Norma de Construcción Sismorresistente. Parte general y Edificación; Spanish seismic Code; The Spanish Ministry of Development of the Spanish Government: Madrid, Spain, 2009. (In Spanish)
- FEMA-440. Improvement of Nonlinear Static Seismic Analysis Procedures; Applied Technology Council ATC-55 Project; FEMA-ATC: Redwood City, CA, USA, 2005.
- Vargas-Alzate, Y.F.; Pujades, L.G.; Barbat, A.H.; Hurtado, J.E. Capacity, fragility and damage in reinforced concrete buildings: A probabilistic approach. Bull. Earthq. Eng. 2013, 11, 2007–2032. [Google Scholar] [CrossRef]
- Milutinovic, Z.V.; Trendafiloski, G.S. RISK-UE Project of the EC: An Advanced Approach to Earthquake Risk Scenarios with Applications to Different European Towns; European Project EVK4-CT-2000-00014, European Commission. WP4 Vulnerability Curr. Build. 2003. [Google Scholar]
- Lagomarsino, S.; Giovinazzi, S. Macroseismic and mechanical models for the vulnerability and damage assessment of current buildings. Bull. Earthq. Eng. 2006, 4, 415–443. [Google Scholar] [CrossRef]
- Lantada, N.; Pujades, L.G.; Barbat, A.H. Vulnerability index and capacity spectrum based methods for urban seismic risk evaluation: A comparison. Nat. Hazards 2009, 51, 501–524. [Google Scholar] [CrossRef]
- Barbat, A.H.; Pujades, L.G.; Lantada, N. Seismic damage evaluation in urban areas using the capacity spectrum method: Application to Barcelona. Soil Dyn. Earthq. Eng. 2008, 28, 851–865. [Google Scholar] [CrossRef]
- Pujades, L.G.; Barbat, A.H.; Gonzalez-Drigo, R.; Avila-Haro, J.; Lagomarsino, S. Seismic performance of a block of buildings representative of the typical construction in the example district in Barcelona (Spain). Bull. Earthq. Eng. 2012, 10, 331–349. [Google Scholar] [CrossRef]
- Grünthal, G. European Macroseismic Scale; Centre Européen de Géodynamique et de Séismologie: Luxembourg, 1998; Volume 15. [Google Scholar]
- Contreras, D.; Blaschke, T.; Tiede, D.; Jilge, M. Monitoring recovery after earthquakes through the integration of remote sensing, GIS, and ground observations: The case of L’Aquila (Italy). Cartogr. Geogr. Inf. Sci. 2015. [Google Scholar] [CrossRef]
- Liu, W.; Yamazaki, F. Extraction of Collapsed Buildings in the 2016 Kumamoto Earthquake Using Multi-Temporal PALSAR-2 Data. J. Disaster Res. 2017, 12, 241–250. [Google Scholar] [CrossRef]
- Santamaría, G.P.; González López, S.; Alguacil, L. Analysis of consequences and Civil Protection activities in the Lorca earthquake Murcia): Pre-emergency, Emergency and Post emergency. Física de la Tierra 2012, 24, 343–362. (In Spanish). Available online: http://revistas.ucm.es/index.php/FITE/article/download/40144/38572 (accessed on 4 February 2019).
- Peris-Ortiz, M.; Bennett, D.G.; Pérez-Bustamante, Y.D. Sustainable Smart Cities: Creating Spaces for Technological, Social and Business Development; Springer: Berlin/Heidelberg, Germany, 2016; ISBN 9783319408958. [Google Scholar]












| Parameter | Operating Frequency | Max. Operational Distance | Max. Range Resolution | Nominal Displacement Accuracy | Max. Acquisition Rate | Weight/Battery Autonomy |
| Value | 17.2 GHz (Ku band) | 1000 m | 0.5 m | 10−5 m | 200 Hz | 12 kg/5 h |
| Section | Dimensions (cm) | Reinforcing Steel | |
|---|---|---|---|
| Longitudinal | Stirrups | ||
Principal beams![]() | A = 25 | 4 ϕ 14 | 1 ϕ 6 / 18 cm |
Secondary beams![]() | B = 25 c = 20 | 4 ϕ 14 | 1 ϕ 6 / 18 cm |
Pillars![]() | d1 = 30 (*) | 4 ϕ 14 | 1 ϕ 6 / 15 cm |
| 4 ϕ 14 | 1 ϕ 6 / 20 cm | ||
| 4 ϕ 16 | 1 ϕ 6 / 22 cm | ||
| D = 25 | 4 ϕ 12 | 1 ϕ 6 / 15 cm | |
| 4 ϕ 14 | 1 ϕ 6 / 18 cm | ||
| 4 ϕ 16 | 1 ϕ 6 / 18 cm | ||
| Mode | Period (s) | Mass Participation (%) | Axis |
|---|---|---|---|
| 1 | 0.570 | 84.1 | Horizontal Y |
| 2 | 0.567 | 84 | Rotational Z |
| 3 | 0.454 | 73 | Horizontal X |
| Capacity Curve | Capacity Spectrum | |||
|---|---|---|---|---|
| δroof (cm) | Base Shear (kN) | Sd (cm) | Sa (g) | |
| Yielding point | 2.00 | 2256.2 | 1.82 | 0.20 |
| Maximum shear force | 3.05 | 2319.0 | 2.81 | 0.24 |
| Ultimate displacement | 6.76 | 1763.5 | 6.43 | 0.17 |
| Performance Point | Ultimate Capacity Point | |||||
|---|---|---|---|---|---|---|
| Story | Displ. (cm) | Drift Ratio (%) | Contribution % | Displ. (cm) | Drift Ratio (%) | Contribution % |
| 1 | 1.21 | 0.46 | 38 | 4.85 | 1.87 | 71 |
| 2 | 0.77 | 0.29 | 24 | 0.86 | 0.32 | 13 |
| 3 | 0.56 | 0.21 | 18 | 0.52 | 0.19 | 8 |
| 4 | 0.41 | 0.15 | 13 | 0.35 | 0.13 | 5 |
| 5 | 0.23 | 0.08 | 7 | 0.19 | 0.07 | 3 |
© 2019 by the authors. Licensee MDPI, Basel, Switzerland. This article is an open access article distributed under the terms and conditions of the Creative Commons Attribution (CC BY) license (http://creativecommons.org/licenses/by/4.0/).
Share and Cite
Gonzalez-Drigo, R.; Cabrera, E.; Luzi, G.; Pujades, L.G.; Vargas-Alzate, Y.F.; Avila-Haro, J. Assessment of Post-Earthquake Damaged Building with Interferometric Real Aperture Radar. Remote Sens. 2019, 11, 2830. https://doi.org/10.3390/rs11232830
Gonzalez-Drigo R, Cabrera E, Luzi G, Pujades LG, Vargas-Alzate YF, Avila-Haro J. Assessment of Post-Earthquake Damaged Building with Interferometric Real Aperture Radar. Remote Sensing. 2019; 11(23):2830. https://doi.org/10.3390/rs11232830
Chicago/Turabian StyleGonzalez-Drigo, Ramon, Esteban Cabrera, Guido Luzi, Luis G. Pujades, Yeudy F. Vargas-Alzate, and Jorge Avila-Haro. 2019. "Assessment of Post-Earthquake Damaged Building with Interferometric Real Aperture Radar" Remote Sensing 11, no. 23: 2830. https://doi.org/10.3390/rs11232830
APA StyleGonzalez-Drigo, R., Cabrera, E., Luzi, G., Pujades, L. G., Vargas-Alzate, Y. F., & Avila-Haro, J. (2019). Assessment of Post-Earthquake Damaged Building with Interferometric Real Aperture Radar. Remote Sensing, 11(23), 2830. https://doi.org/10.3390/rs11232830




