Structuring the Environmental Experience Design Research Framework through Selected Aged Care Facility Data Analyses in Victoria
Abstract
:1. Introduction
2. Review on Residential Aged Care Facilities in Australia
3. The Case Study
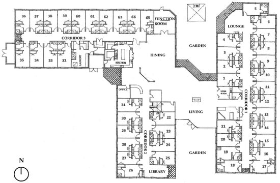
3.1. Spatial Design Setting
3.2. Indoor Environmental Quality Data Collection and Analysis
4. Environmental Experience Design Research Framework
4.1. Environmental Experience Design of Freedom
4.2. Environmental Experience Design of Connection to Natural Environment
4.3. Environmental Experience Design of Belongingness
4.4. Environmental Experience Design of Individual Dignity
4.5. The Environmental Experience Design Research Framework
5. Conclusions
Acknowledgments
Author Contributions
Conflicts of Interest
References and Notes
- Crozier, R. Manufactured Pleasures: Psychological Responses to Design; Manchester University Press: New York, NY, USA, 1994. [Google Scholar]
- Dewey, J. Experience and Education; Collier: New York, NY, USA, 1963. [Google Scholar]
- McCarthy, J.; Wright, P. Technology as Experience; MIT Press: Cambridge, MA, USA, 2004. [Google Scholar]
- Hassenzahl, M. Experience Design: Technology for All the Right Reasons; Morgan & Claypool Publishers: San Rafael, CA, USA, 2010. [Google Scholar]
- Norman, D.A. The Psychology of Everyday Things; Basic Books: New York, NY, USA, 1988. [Google Scholar]
- O'Sullivan, E.L.; Spangler, K.J. Experience Marketing: Strategies for the New Millennium; Venture Pub: Jersey Shore, PA, USA, 1998. [Google Scholar]
- Pine, B.J.; Gilmore, J.H. The Experience Economy: Work Is Theatre & Every Business a Stage; Harvard Business School Press: Boston, MA, USA, 1999. [Google Scholar]
- Berridge, G. Events Design and Experience; Butterworth-Heinemann: Burlington, NJ, USA, 2007. [Google Scholar]
- Kellert, S.R.; Heerwagen, J.; Mador, M. Preface. In Biophilic Design: The Theory, Science and Practice of Bringing Buildings to Life; Kellert, S.R., Heerwagen, J., Mador, M., Eds.; John Wiley & Sons: New York, NY, USA, 2007; pp. vii–ix. [Google Scholar]
- McLellan, H. Experience design. Cyber Psychol. Behav. 2000, 3, 59–69. [Google Scholar] [CrossRef]
- Salingaros, N.A. A Theory of Architecture; Umbau-Verlag: Solingen, Germany, 2006. [Google Scholar]
- Frumkin, H. Beyond toxicity: Human health and the natural environment. Am. J. Prev. Med. 2001, 20, 234–240. [Google Scholar] [CrossRef]
- Gifford, R. Environmental Psychology: Principles and Practice; Allyn and Bacon: Boston, MA, USA, 1997. [Google Scholar]
- Nagar, D. Environmental Psychology; Concept Publishing Company: New Delhi, India, 2006. [Google Scholar]
- Verderber, S.; Fine, D.J. Healthcare Architecture: In an Era of Radical Transformation; Yale University Press: New Haven, CT, USA, 2000. [Google Scholar]
- Department of Housing and Construction. Guidelines for the Provision of Nursing Home Facilities; Australian Government Publishing Service: Canberra, Australia, 1983.
- Chau, H.W. De-Institutionalisation of Aged Care Residential Facilities in Australia: Aldersgate Village in Adelaide and Wintringham Facilities in Melbourne as Case Studies. In Proceedings of the Society of Architectural Historians Australia and New Zealand, Sydney, Australia, 7–10 July 2015; Hogben, P., O’Callaghan, J., Eds.; SAHANZ: Sydney, Australia, 2015; Volume 32, pp. 82–91. [Google Scholar]
- Carboni, J. Homelessness among the elderly. J. Gerontol. Nurs. 1990, 16, 32–37. [Google Scholar] [CrossRef] [PubMed]
- Maslow, A. A Theory of human motivation. Psychol. Rev. 1943, 50, 370–396. [Google Scholar] [CrossRef]
- Springer, D.; Brubaker, T.H. Family Caregivers and Dependent Elderly: Minimizing Stress and Maximizing Independence; Sage Publications: Beverly Hills, CA, USA, 1984. [Google Scholar]
- Kidd, B.J.; Kidd, L.A. The Image of Home: An Alternative to Institutional Design for Elderly People in Nursing Homes; The Centre for Applied Research on the Future, The University of Melbourne: Melbourne, Australia, 1987. [Google Scholar]
- Kidd, B.J. Hostel Design Guidelines; Australian Government Publishing Service: Canberra, Australia, 1988.
- Victorian Government Department of Human Services. Aged Care Residential Services Generic Brief; Victorian Government Department of Human Services: Melbourne, Australia, 2000.
- Murphy, S. Knight Frank Health and Aged Care, lecture notes; The University of Melbourne; delivered 12 May 2017.
- State of Victoria. Supported Residential Services. Available online: https://www2.health.vic.gov.au/ageing-and-aged-care/supported-residential-services (accessed on 12 July 2017).
- Allen, J.G.; Naughton, P.M.; Satish, U.; Santanam, S.; Vallarino, J.; Spengler, J.D. Associations of cognitive function scores with carbon dioxide, ventilation, and volatile organic compound exposures in office workers: A controlled exposure study of green and conventional office environments. Environ. Health Perspect. 2016, 124, 805–812. [Google Scholar] [CrossRef] [PubMed]
- Satish, U.; Mendell, M.J.; Shekhar, K.; Hotchi, T.; Sullivan, D.; Streufert, S.; Fisk, W.J. Is CO2 an indoor pollutant? Direct effects of low-to-moderate CO2 concentrations on human decision-making performance. Environ. Health Perspect. 2012, 120, 1671–1677. [Google Scholar] [CrossRef] [PubMed]
- American Society of Heating, Refrigerating and Air-Conditioning Engineers. Standard 62.1 User's Manual: Based on ANSI/ASHRAE Standard 62.1-2016, Ventilation for Acceptable Indoor Air Quality; ASHRAE: Atlanta, GA, USA, 2016. [Google Scholar]
- Hoyt, T.; Stefano, S.; Alberto, P.; Dustin, M.; Kyle, S. CBE Thermal Comfort Tool. 2013. Available online: http://cbe.berkeley.edu/comforttool/ (accessed on 28 August 2017).
- American Society of Heating, Refrigerating and Air-Conditioning Engineers. ANSI/ASHRAE Standard 55-2013: Thermal Environmental Conditions for Human Occupancy; ASHRAE: Atlanta, GA, USA, 2013. [Google Scholar]
- Kimura, M.; Ikaga, T.; Hirayama, Y. Effects of radiant cooling and heating system on thermal comfort and productivity in elderly care facilities. In Proceedings of the 12th International Conference on Indoor Air Quality and Climate, Austin, TX, USA, 5–10 June 2011; Curran Associates, Inc.: New York, NY, USA, 2011. [Google Scholar]
- Schellen, L.; van Marken Lichtenbelt, W.D.; Loomans, M.G.; Toftum, J.; de Wit, M.H. Differences between young adults and elderly in thermal comfort, productivity, and thermal physiology in response to a moderate temperature drift and a steady-state condition. Indoor Air 2010, 20, 273–283. [Google Scholar] [CrossRef] [PubMed]
- Mehta, A.J.; Zanobetti, A.; Bind, M.A.; Kloog, I.; Koutrakis, P.; Sparrow, D.; Vokonas, P.S.; Schwartz, J.D. Long-term exposure to ambient fine particulate matter and renal function in older men: the veterans administration normative aging study. Environ. Health Perspect. 2016, 124, 1353–1360. [Google Scholar] [CrossRef] [PubMed]
- Weuve, J.; Puett, R.C.; Schwartz, J.; Yanosky, J.D.; Laden, F.; Grodstein, F. Exposure to particulate air pollution and cognitive decline in older women. Arch. Intern. Med. 2012, 172, 219–227. [Google Scholar] [CrossRef] [PubMed]
- Han, Y.; Zhu, T.; Guan, T.; Zhu, Y.; Liu, J.; Ji, Y.; Gao, S.; Wang, F.; Lu, H.; Huang, W. Association between size-segregated particles in ambient air and acute respiratory inflammation. Sci. Total Environ. 2016, 565, 412–419. [Google Scholar] [CrossRef] [PubMed]
- Power, M.C.; Elbaz, A.; Beevers, S.; Singh-Manoux, A. Traffic-related air pollution and cognitive function in a cohort of older men. Environ. Health Perspect. 2011, 119, 682–687. [Google Scholar] [CrossRef] [PubMed]
- Aguiar, L.; Mendes, A.; Pereira, C.; Neves, P.; Mendes, D.; Teixeira, J.P. Biological air contamination in elderly care centers: Geria project. J. Toxicol. Environ. Health Part A Curr. Issues 2014, 77, 944–958. [Google Scholar] [CrossRef] [PubMed]
- Almeida-Silva, M.; Wolterbeek, H.T.; Almeida, S.M. Elderly exposure to indoor air pollutants. Atmos. Environ. 2014, 85, 54–63. [Google Scholar] [CrossRef]
- Bentayeb, M.; Norback, D.; Bednarek, M.; Bernard, A.; Cai, G.; Cerrai, S.; Eleftheriou, K.K.; Gratziou, C.; Holst, G.J.; Lavaud, F.; et al. Indoor air quality, ventilation and respiratory health in elderly residents living in nursing homes in Europe. Eur. Respir. J. 2015, 45, 1228–1238. [Google Scholar] [CrossRef] [PubMed]
- Mendes, A.; Pereira, C.; Mendes, D.; Aguiar, L.; Neves, P.; Silva, S.; Batterman, S.; Teixeira, J.P. Indoor air quality and thermal comfort—Results of a pilot study in elderly care centers in Portugal. J. Toxicol. Environ. Health Part A Curr. Issues 2013, 76, 333–344. [Google Scholar] [CrossRef] [PubMed]
- Department of Economic and Social Affairs. Available online: http://www.un.org/en/development/desa/population/publications/pdf/ageing/WPA2015_Report.pdf (accessed on 18 August 2017).
- Lawton, M.; Nahemow, L. Ecology and the aging process. In The Psychology of Adult Development and Aging; Eisdorfer, C., Lawton, M., Eds.; American Psychological Association: Washington, DC, USA, 1973; pp. 619–674. [Google Scholar]
- Lawton, M.P. Environment and Aging, 2nd ed.; Albany: New York, NY, USA, 1986. [Google Scholar]
- Deci, E.L.; Ryan, R.M. The “what” and “why” of goal pursuits: human needs and the self-determination of behavior. Psychol. Inq. 2000, 11, 227–268. [Google Scholar] [CrossRef]
- Elf, M.; Fröst, P.; Lindahl, G.; Wijk, H. Shared decision making in designing new healthcare environments—Time to begin improving quality. BMC Health Serv. Res. 2015, 15, 114–120. [Google Scholar] [CrossRef] [PubMed]
- Holahan, C. Environmental psychology. Annu. Rev. Psychol. 1986, 37, 381–407. [Google Scholar] [CrossRef]
- Moore, K.; VanHaitsma, K.; Curyto, K.; Saperstein, A. A pragmatic environmental psychology: A metatheoretical inquiry into the work of M. Powell Lawton. J. Environ. Psychol. 2003, 23, 471–482. [Google Scholar] [CrossRef]
- Parmelee, P.; Lawton, M.P. The design of special environments for the aged. In Handbook of the Psychology of Aging, 3rd ed.; Birren, J.E., Ed.; Academic Press: London, UK, 1990; pp. 464–488. [Google Scholar]
- Dubos, R. The Wooing of Earth; Scribner: New York, NY, USA, 1980. [Google Scholar]
- Van Steenwinkel, I.; Dierckx de Casterlé, B.; Heylighen, A. How architectural design affords experiences of freedom in residential care for older people. J. Aging Stud. 2017, 41, 84–92. [Google Scholar] [CrossRef] [PubMed]
- Kaplan, R.; Kaplan, S. The Experience of Nature: A Psychological Perspective; Cambridge University Press: Cambridge, UK, 1989. [Google Scholar]
- Salingaros, N.; Masden, K. Neuroscience the natural environment and building design. In Biophilic Design: The Theory, Science and Practice of Bringing Buildings to Life; Kellert, S., Heerwagen, J., Mador, M., Eds.; John Wiley: New York, NY, USA, 2008; pp. 59–83. [Google Scholar]
- Kellert, S. Building for Life: Designing and Understanding the Human-Nature Connection; Island Press: Washington, DC, USA, 2005. [Google Scholar]
- Ryan, C.O.; Browning, W.D.; Clancy, J.O. Biophilic design patterns. Archinet IJAR 2014, 8, 62–75. [Google Scholar] [CrossRef]
- Kellert, S. Dimensions, element, and attributes of biophilic design. In Biophilic Design: The Theory, Science and Practice of Bringing Buildings to Life; Kellert, S., Heerwagen, J., Mador, M., Eds.; John Wiley: New York, NY, USA, 2008; pp. 3–19. [Google Scholar]
- Yu, J.; Rosenberg, M. “No place like home”: Aging in post-reform Beijing. Health Place 2017, 46, 192–200. [Google Scholar] [CrossRef] [PubMed]
- Relph, E. Place and Placelessness; Pion: London, UK, 1976. [Google Scholar]
- Andrews, G.J.; Phillips, D.R. Ageing and Place: Perspectives, Policy, Practice; Routledge: New York, NY, USA, 2005. [Google Scholar]
- Kitwood, T. Dementia Reconsidered: The Person Comes First; Open University Press: London, UK, 1997. [Google Scholar]
- Dell’Isola, A.J. Value Engineering: Practical Applications for Design, Construction, Maintenance & Operations; Wiley: Kingston, UK, 1997. [Google Scholar]











| Selected EXD Objectives | Analysed User Experiences | Potential Spatial Design Strategies and/or Solutions |
|---|---|---|
| Freedom | Feeling in control of their own actions rather than being controlled by others | Open floor planning Movable partitions Level difference avoidance |
| Connection to natural environment | Feeling connected with nature in the built environment | Direct and indirect experiences of natural environment in relation to health and well-being |
| Belongingness | Feeling an intimate contact with the place they live in | Vibrant and flexible spaces to correspond with the elderly’s changing needs, interests and abilities |
| Individual dignity | Feeling being respected by others | Non-hierarchical, manageable and controllable spaces |
| Design Criteria | Design Settings | Objectives | Design Elements | Opportunities | Design Solutions |
|---|---|---|---|---|---|
| Physical Activation Criteria | Natural setting | Natural variability | Sounds | Providing pleasing effects | Euphonic sounds increase |
| Providing soothing effects | Chaotic sounds reduction | ||||
| Touch responses | Interaction with vegetation | Garden walking pathways | |||
| Interaction with animals | Freedom of feeding pets | ||||
| Smell responses | Olfactory stimuli | Different scented plants | |||
| Ageing and changing | The rhythm of life | Seasonal plants assembly | |||
| Natural harmony | Complex order | Rich sensory information | Different types of flowers and trees gardening | ||
| Patterned wholes | Intriguing balance between boring and overwhelming | Symmetric and fractal geometries of integrated pavements | |||
| Naturalness | Outdoor gardens | Ecological connectivity | Communal spaces in the garden | ||
| Garden crafts | Culture and ecology integration | The elderly engaged gardening | |||
| Built environment setting | Spatial adaptability | Present spatial needs | Achieving the elderly’s satisfactions | Calming colours of wall and ceiling paintings | |
| Natural textured material of floorings | |||||
| Two layered curtains: gauze and fabric curtains | |||||
| Freedom of bringing personal belongings | |||||
| Lockable interior doors | |||||
| Keep gardens open | |||||
| Spatial flexibility | Future spatial needs | Pliable temporal limitation | Moveable partitions | ||
| Spatial durability | Ease of maintenance spaces | Cleanness guarantee | Flooring with vinyl | ||
| Spatial arrangement | Spatial requirement | Friendly, comfortable and welcoming living conditions | Kitchen adheres to dining areas | ||
| Communicative living rooms | |||||
| Bedrooms with private bathroom | |||||
| Multi-activity rooms | |||||
| Corridors with hand rails | |||||
| Clinic and therapy areas | |||||
| A nurse’s station | |||||
| Spatial relationship | Kitchen next to dining room | ||||
| Nurses station away from dining room | |||||
| Nurses station away from reception and entrance | |||||
| Nurses station away from high-care residents' bedrooms | |||||
| Nurses station away from clinic and therapy areas | |||||
| Nurses station away from staff office | |||||
| Low-care elderly's bedrooms next to activity rooms | |||||
| Spatial layout | Using bubble diagrams | ||||
| Indoor environmental quality | Dry bulb temperature | Elderly wellbeing, comfort and health | Direct heat exposure avoidance: 19.4 to 27.8 °C | ||
| Radiant temperature | Shading provision: within the comfort zone | ||||
| Relative humidity | Fresh air ventilation: less than 61% | ||||
| Indoor air quality | Fresh air ventilation: CO2 concentration below 1,000 ppm | ||||
| Particulate matter (PM10) less than 150 µm/m3 (in 24 hrs) | |||||
| Particulate matter (PM10) less than 35 µm/m3 (in 24 hrs) | |||||
| Psychological Activation Criteria | Psychological demands | Emotional wellness | Anxiety reduction | Harmful effects on health andthe overall quality of life | Respect the elderly’s personal choices and decisions |
| Angry reduction | |||||
| Depression reduction | |||||
| Passive participation | Activating physical walking | Increase engagement and participation | Low-care elderly’s bedrooms in a distance to living rooms | ||
| Visual connection to activity rooms | Lay-outing the low-care elderly's bedrooms be adjacent to activity rooms | ||||
| Psychological needs | Security | Empowering a sense of individual dignity | Being free from injury | Non-hierarchical spaces | |
| Manageable spaces | |||||
| Controllable spaces | |||||
| Safety | Generating a sense of belongingness | Being protected from risk | Locating residential care facilities in the neighbourhood | ||
| Rooms have visual connections with outdoor | |||||
| Stimulating the elderly to bring vernacular objects | |||||
| Stimulating the elderly engaged gardening | |||||
| A space with the passage of time | |||||
| Active participation | Barrier-free spatial conditions | Physical activity stimulation | Level difference avoidance | ||
| Slip-resistant and firm flooring surfaces | |||||
| Physical and visual barriers elimination | |||||
| Wide interior doors, corridors and turning spaces associated with the elderly movements | |||||
| Open floor planning | Social interaction | Maximising the use of limited spaces | |||
| Minimising partitions | |||||
| Multi-activity rooms’ design | Restorative activity | Evoking and developing the elderly’s interests |
© 2017 by the authors. Licensee MDPI, Basel, Switzerland. This article is an open access article distributed under the terms and conditions of the Creative Commons Attribution (CC BY) license (http://creativecommons.org/licenses/by/4.0/).
Share and Cite
Ma, N.; Chau, H.-w.; Zhou, J.; Noguchi, M. Structuring the Environmental Experience Design Research Framework through Selected Aged Care Facility Data Analyses in Victoria. Sustainability 2017, 9, 2172. https://doi.org/10.3390/su9122172
Ma N, Chau H-w, Zhou J, Noguchi M. Structuring the Environmental Experience Design Research Framework through Selected Aged Care Facility Data Analyses in Victoria. Sustainability. 2017; 9(12):2172. https://doi.org/10.3390/su9122172
Chicago/Turabian StyleMa, Nan, Hing-wah Chau, Jin Zhou, and Masa Noguchi. 2017. "Structuring the Environmental Experience Design Research Framework through Selected Aged Care Facility Data Analyses in Victoria" Sustainability 9, no. 12: 2172. https://doi.org/10.3390/su9122172
APA StyleMa, N., Chau, H.-w., Zhou, J., & Noguchi, M. (2017). Structuring the Environmental Experience Design Research Framework through Selected Aged Care Facility Data Analyses in Victoria. Sustainability, 9(12), 2172. https://doi.org/10.3390/su9122172

