You are currently viewing a new version of our website. To view the old version click .
Materials
  • Article
  • Open Access

21 December 2024

Compressive Load Capacity of Concrete Structures Made of Hollow Blocks with Voids Filled with Concrete of Various Features

,
and
1
Faculty of Civil and Environmental Engineering, Warsaw University of Life Sciences, Nowoursynowska St. 166, 02-787 Warsaw, Poland
2
Faculty of Civil Engineering, Czestochowa University of Technology, Dabrowskiego 69, 42-201 Czestochowa, Poland
3
Faculty of Production Engineering and Materials Technology, Czestochowa University of Technology, Dabrowskiego 69, 42-201 Czestochowa, Poland
*
Author to whom correspondence should be addressed.

Abstract

A masonry made of hollow concrete blocks in modern constructions differs from the traditional one in that the empty space (up to 70%) makes it possible to create complex high-strength load-bearing structures by filling the voids with monolithic or reinforced concrete. The aim of this study was to examine specimens of concrete structures made of hollow blocks with voids filled with concretes with various features. The research methodology is based on the results of numerical and experimental tests. Laboratory studies were conducted to determine the influence of the concrete filling on strength, deformability and the nature of destruction of the experimental specimens. The numerical analysis was performed on the basis of FEM with the use of the ANSYS 2021 R1 software. The method for determining the load capacity of multi-component structures using strain diagrams of constituent materials has been improved. There is strong agreement between the numerical and experimental results for all masonry prisms. Additionally, a good correlation was observed between the experimental results and the analytical calculations performed using the proposed methodology.

1. Introduction

With a very high level of construction intensity taking place in EU countries over the past 5–10 years, the requirements for residential and industrial buildings are increasing. The cost of erecting walls of a building amounts to 30–50% of the cost of the entire building, with the main building material for the construction of walls being bricks and blocks. The blocks can be made of various materials (concrete, ceramics) and can be hollow or solid. Large geometric dimensions and various types of voids allow for an increase in the pace of construction and the application of hollow concrete blocks (HCBs) as a universal building element in the construction of load-bearing walls, columns and lintels.
The presence of vertical voids in the walls of structures made of hollow blocks allows them to be filled with monolithic or reinforced concrete. This technology makes it possible to create structural systems of buildings with increased strength and rigidity (Figure 1).
Figure 1. Vertical and horizontal reinforcement of HCB walls.
The complexity of calculating these structures lies in the interaction between three materials, or four if a reinforcement is present: the HCB, a mortar between blocks, the concrete infilling voids and a steel reinforcement. It is also difficult to determine which regulatory document refers to the specified structure concerning masonry or concrete structures.
Experimental and theoretical studies of fragments of walls and prisms made of HCBs have been carried out by scientists in different countries.
Empirical formulas for calculating the strength of masonry made of HCBs were proposed in [1]. The authors conducted an experiment with different block strengths. In [2], tests were conducted on masonry prisms consisting of two rows of blocks, and the effect of time on strength and Young’s modulus was studied. The analysis in [3] describes experiments on testing masonry walls, considering the influence of various parameters. In [4], an experiment testing HCBs with different strengths is described, along with the mechanism through which the properties of blocks and mortars influence the compressive strength of masonry.
Practical recommendations for the calculation of masonry are presented in the works in [5,6,7,8].
The results of the effective use of the method of filling voids of concrete blocks with concrete and metal reinforcement are presented in [9,10,11]. In the papers [12,13], the effect of mortar quality on the load capacity of HCB prisms was studied and the nature of the failure was given. In [14], the modulus of elasticity was determined during the test on HCB prisms, and computer simulations were carried out. In work [15], a numerical study of a 3D model of reinforced concrete prisms under tensile testing was conducted. The works [16,17] confirm the cooperation between the concrete infill and hollow blocks, providing a description of the failure of specimens as well. In [18,19], a model for analyzing structures made of blocks with different mortars and shapes of voids was proposed, and a 3D model of HCB masonry prisms was developed.
Regulatory requirements for the calculations of the structures being studied are presented in the Eurocodes [20,21,22,23]. In Eurocode Section 3.6.1.2 (4) [20], for calculations of masonry with vertical cavities filled with concrete, it is recommended to apply the lower strength from among the following: the strength of HCB masonry or the strength of a concrete infill. In Eurocode Section 6.6.1 (4) [20], for reinforced masonry elements with a concrete infill, it is recommended that when the compression zone consists of masonry and concrete, the compressive strength should be calculated based on the stresses of the weakest material. The specified recommendations of paragraphs 3.6.1.2 (4) and 6.6.1 (4) [20] limit the use of concrete for filling voids if its strength exceeds the strength of the HCB masonry.
For modeling and computer calculations of masonry structures, a stress–strain relationship is required. The authors believe that the absence of this relationship for HCB masonry prisms in the existing regulatory documents represents a significant gap.
The objectives of the research in this work are as follows:
  • To study the stress distribution and type of failure of masonry prisms with and without concrete infill, under axial compression;
  • To determine the effects of the mechanical properties of the components making up the prism (HCB, mortar and concrete infill) on its load capacity and deformability;
  • To select the optimal stress–strain relationship for the masonry prisms;
  • To apply the finite element method for a detailed description of the stress distribution in the axially compressed prisms.

2. Experimental Program, Materials and Specimens

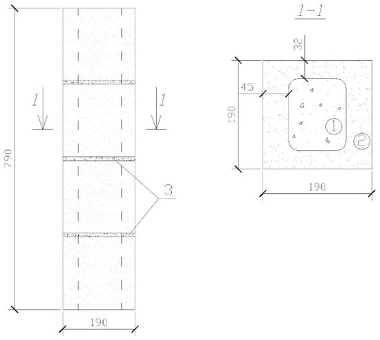
To achieve the above objectives, tests of HCB masonry prisms with and without a concrete infill were carried out. The experimental masonry prisms were made of four rows of HCBs (Figure 2 and Figure 3).
Figure 2. Masonry prisms.
Figure 3. Structure of the prisms: 1—concrete infill; 2—HCB; 3—mortar.
After obtaining the strength of the mortar, the voids of the prisms were filled with a concrete mixture. Various concrete compositions were used to fill the HCB masonry prisms. Three specimens were produced in each of the seven series of specimens (P1–P7); the specimens of the P7 series were not filled with concrete (Table 1).
Table 1. Characteristics of the materials used to make specimens.
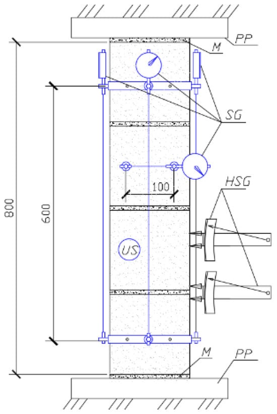
Testing of the specimens after gaining strength in natural laboratory conditions was carried out after at least 28 days in a hydraulic press R-125, according to a stepwise short-term loading mode recommended by DIN 18554 p. 1 (3.2) [24]. At each load level, the following quantities were measured: longitudinal strains using a dial gauge (measuring base: 600 mm, accuracy 0.01 mm); transverse strains using a dial gauge (measuring base: 100 mm, accuracy 0.001 mm); longitudinal strains of the mortar zone using an axial extensometer (measuring base: 20 mm, accuracy 0.001 mm). By changing the speed of ultrasound passage through the thickness of the prism, the continuity and quality of contact between the inner surface of the block and the concrete infill were determined (Figure 4 and Figure 5).
Figure 4. Testing of specimen P2.
Figure 5. Layout of measuring instruments on specimens P1–P7: SG—dial gauge; HSG—axial extensometer; US—sounding converter; M—leveling mortar layer; PP—press base plates.

3. Results of the Conducted Research

3.1. Nature of the Failure and Load Capacity of the Specimens

Figure 6 and Figure 7 show the nature of the failure of the HCB masonry prisms without a concrete infill (a) and prisms filled with concrete (b) under the action of axial force.
Figure 6. Failure of prisms: (a) specimen P1; (b) specimen P2; (c) specimen P3; (d) specimen P4; (e) specimen P5; (f) specimen P6; (g) specimen P7.
Figure 7. Crack patterns: (a) masonry prisms without filling; (b) masonry prisms with filling.
HCB masonry prisms without a concrete filling collapsed in a brittle way. The hollow concrete blocks have greater rigidity than the connecting mortar, and the transverse expansion of the mortar increases the tensile stresses in the walls of the hollow block (double Poisson effect). Tensile stresses lead to the appearance of vertical cracks starting from the place of contact between the block and the mortar. As the vertical load increases, cracks grow along the height, and the block divides into separate fragments, which is followed by a loss of stability and brittle destruction.
HCB masonry prisms filled with concrete did not fail in a brittle manner, the cracks—as in the prisms without filling—began to grow in the vicinity of the contact between the block and the mortar. The smooth failure of the HCB masonry prism with a concrete infill is caused by its restraining effect. The concrete filling voids have greater rigidity compared to that of the masonry prism, and the lower rigidity of the masonry prism is caused by significant strains on the mortar in their contact zone.
The axial compressive load capacity of the masonry prisms is shown in Table 2.
Table 2. Maximum loads and stresses of the prisms.

3.2. Strains of Experimental Concrete Specimens

The values of strains and the nature of their development are the key data for the analysis of structures at all stages of testing. The adopted measurement technique made it possible to obtain values of longitudinal and transverse strains at all these stages. Longitudinal strains of specimens refer to average strains measured along the height of the specimen in the areas of the predicted damage, taking horizontal joints into account.
Table 3 shows the maximum longitudinal strains measured on the surfaces of the concrete block ( ε 1 ) and the contact zone of the block with the mortar ( ε 3 ) along the height of the prism ( ε 2 ) and the transverse strains of the concrete block ( ε c t ), which correspond to the maximum load.
The nature of the development of longitudinal strains ( ε 2 ) (Figure 8) showed that they have a slight dispersion, 170 · 10 5 190 · 10 5 . The study of the deformations of specimens P1–P6 did not reveal significant differences for prisms with different compositions of concrete infill. Stress–strain curves for the specimens filled with concrete have a higher curvature compared to the specimens without an infill.
Figure 8. Compression stress–strain curves of specimens P1–P7.
Table 3. Strains on local sections of the prism.
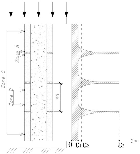
Figure 9. A diagram of longitudinal strains in different zones: ε 1 —HGB (zone B); ε 2 —masonry prism (zone C); ε 3 —mortar (zone A).
Table 3. Strains on local sections of the prism.
Specimen ε 1 · 10 5 , (Zone B, Figure 9) ε 3 · 10 5 , (Zone A, Figure 9) ε 2 · 10 5 , (Zone C, Figure 9) ε c t u · 10 5 , Maximum Transverse Strain
P112070017020
P211074018022
P311087019020
P412055018520
P512080017019
P610065017023
P7110105021018
Measurements of strains along the height of the specimens showed that the mortar zone has the greatest deformability. The maximum strains are ε 3 = 1050 · 10 5 in specimen P7 and the minimum strains are ε 3 = 650 · 10 5 in the prisms filled with concrete. The heterogeneous distribution of the longitudinal strains in sections along the height of the prism is shown in Figure 9. The nature of the development of longitudinal strains of different sections during the loading of the masonry prism is shown in Figure 10.
Figure 10. Compression stress–strain curves in local sections of the masonry prism.
To determine the strains of different sections of the masonry prisms, Formula (1) is proposed
  ε 2 = ε 1 l n t + ε 3 n t l ,
where ε 1 , ε 2 , ε 3 are strains of concrete blocks, masonry prisms and mortar sections, respectively; l is the specimen length; n is the number of mortar joints; and t is the mortar thickness.
Based on the experimental results and the literature data [25,26], three Formulas (2)–(4) have been proposed to describe the stress–strain relationship for the materials used:
  • a logarithmic Equation (2) [25]:
    σ ε m , c = μ f m , c 1 e 0.9 ε m , c α ;
  • parabolic equations by Hognestad (3) [26] and Tomaczewicz (4):
σ ε m , c = f m , c 2 ε m , c ε m , c . m a x ε m , c ε m , c . m a x 2 ,
σ ε m , c = f m , c β ε m , c ε m , c . m a x β 1 + ε m , c ε m , c . m a x β
where α = 1500 , μ = 1 — coefficients; β = f m , c / 20 —material parameter; f m , c —maximum strength of masonry prism or the concrete infill (MPa); ε m , c . m a x and ε m , c   — strains corresponding to the maximum and intermediate strength of materials.
Figure 11 shows the force–strain curves based on Equations (2)–(4) for the HCB masonry prism without a concrete infill—P7.
Figure 11. Compression force–strain curves of the masonry for prism P7.
A comparison of experimental data with Equations (2)–(4) showed that the nature of strains during the axial compression of the masonry prism corresponds to the Hognestad Equation (3), and the nature of concrete strains corresponds to the Tomaczewicz Equation (4). Equation (2) has a logarithmic character but its use in calculations leads to large errors, so it will not be used in load capacity calculations.

4. Load Capacity of HCB Masonry Prisms

This research paper considers two methods for calculating the load capacity of the HCB masonry prisms filled with concrete. Both methods use individual stress–strain curves for the HCB masonry prism and the concrete infill:
  • The first method, according to the current EU standards 3.6.1.2(4) [20], where the calculation uses the minimum strength of one of the two components (HCB masonry prism or concrete infill), is used to calculate the entire section.
  • The second method involves summing the load capacity of concrete with that of a masonry prism and using individual strength characteristics for each component.
During axial compression, the masonry prism deforms together with the concrete infill:
ε m = ε c
where ε m and ε c are strains of the HCB masonry prisms and concrete infill, respectively.
Condition (5) allows calculations when the stress–strain curve for the HCB masonry prism filled with concrete is given.
The equilibrium condition for calculating the load capacity of a masonry prism is taken as Formula (6):
    N = σ c ε A c + σ m ε A m
where N —the load capacity of the HCB masonry prism with the concrete filling; A c —the cross-section area of the concrete infill; A m —the area of the HCB masonry prisms; σ c ε —a stress–strain function for the concrete infill, determined by the Tomaczewicz Equation (4); and σ m ε —a stress–strain function for the HCB masonry prisms, determined by the Hognestad Equation (3).
The calculation is based on Equations (3) and (4), establishing a relationship between stresses and strains for the concrete infill and masonry prisms. The calculation of the masonry prisms P1 is performed using two methods.
According to the first method, the load capacity of the prism N1 is equal to 496 kN, wherein stresses in the infill concrete f c = 14 MPa were applied (Table 1). Also, according to the EU recommendations 6 p. 3.6.1.2 (4) [20], the stresses in the masonry prisms were compared to the concrete stresses f m = f c = 14 MPa, since f m > f c .
According to the second method, the load capacity of the prism N2 is equal to 794 kN, wherein stresses in the infill concrete f c = 14 MPa were applied (Table 1), and the stresses of the masonry prism f m = 27 MPa were compared (Table 2).
To graphically compare the calculation results obtained with the use of these two methods, curves of force distribution between the compressed components of the cross-section (HCB masonry prism and concrete infill) of specimen P1 were created (Figure 12).
Figure 12. The load capacity of the masonry prism P1 according to two calculation methods.
Here, N1 is the prism load capacity calculated according to the method 1; N2 is the prism load capacity calculated according to the method 2; Nm1 is the load capacity of the masonry prism without a concrete infill according to the method 1; Nm2 is the load capacity of the masonry prisms without a concrete infill according to the method 2; and Nc is the load capacity of the concrete infill. The curves show that the strength of the concrete-filled masonry prisms calculated by method 1 is underestimated compared to method 2.
As shown by the comparison of the experimental and theoretical values of the load capacity of the samples (Table 4), the second calculation method shows the best convergence with the experimental data; the error is between 2% and 6%. In the first method, the error rate was up to 69% compared to the experimental data.
Table 4. Comparison of experimental and theoretical values of the load capacity of masonry prisms.

5. Numerical Experiments

The modeling of test specimens is an important part of experiments. The ANSYS 2021 R1 software, which implements the finite element method, was used for digital simulations of the tests. In the calculations, the material was modeled using eight-node SOLID185 elements and the elastic-plastic Menetrey–Willam (MW) material model with hardening/softening in compression and softening in tension (HSD2 model), implemented in the ANSYS program [27,28]. The parameters for modeling the material of hollow concrete blocks, the mortar and the concrete infill were determined based on the known properties of these materials used to make specimens (Table 1). The boundary conditions were defined such that the lower base of the prism was fixed along the direction of its longitudinal axis, while in the orthogonal directions the constraints were applied according to the symmetry conditions.
Simulations and computer testing of the HCB masonry prisms with an infill are presented in Figure 13 and Figure 14, and the results of the tests on HCB masonry prisms without a concrete infill are presented in Figure 15 and Figure 16. If an axial load of 800 kN is exerted on specimen P1, the displacement along the Z-axis is 1.62 mm, and the displacements along the X- and Y-axes are 0.035 mm. Calculation schemes with displacement maps are shown in Figure 14. If an axial load of 600 kN is exerted on specimen P7, the displacement along the Z-axis is 1.48 mm, and the displacement along the X- and Y-axes is 0.028 mm. Calculation schemes with displacement maps are shown in Figure 16.
Figure 13. Specimen P1: (a) calculation scheme; (b) map of equivalent stress resulting from axial force (Pa).
Figure 14. Displacement maps with axial force, specimen P1: (a) longitudinal (m); (b) transverse (m).
Figure 15. Specimen P7: (a) calculation scheme; (b) map of equivalent stress resulting from axial force (Pa).
Figure 16. Displacement maps with axial force, specimen P7: (a) longitudinal (m); (b) transverse (m).
The analysis of merely longitudinal strains does not fully characterize the behavior of the structure; therefore, it was supplemented by the analysis of transversal and local strains in the mortar zone. As it appeared, the local strains in the contact zone of two HCBs have limit values 7–8 times higher than the longitudinal strains measured at the surface of the concrete blocks. The reason for this phenomenon is the mortar having different deformation properties and a lower Young’s modulus than that of the concrete.
With such strain features, the mortar is compressed at the joint, and the tensile stresses reach their maximum values at the points of contact of the concrete blocks with the mortar. The model created in ANSYS (Figure 15b) clearly shows the tensile stresses in the edge of the block (zone 1) in the X and Y direction and compressive stresses in mortar (zone 2) along the Z-axis.
The transverse expansion of the mortar causes tensile stresses in the walls of the hollow block (double Poisson effect), which leads to the appearance of the first cracks.
The numerical and experimental results of stresses and displacements for specimen P1 loaded by 600 kN and specimen P7 loaded by 800 kN are presented in Table 5.
Table 5. Comparison of results.
Figure 17 shows a comparison of the stress–strain curves of P1 and P7 obtained during the tests and the curves of P1_N and P7_N related to the numerical results derived from the numerical analyses performed using the specialized finite element software.
Figure 17. Compression stress–strain curves of specimens P1 and P7 and simulated specimens P1_N and P7_N.
The verification of the test results for the specimens in the calculation program showed that the assumed calculation model in ANSYS is adequate and corresponds to the real construction (Figure 17).

6. Conclusions

The presented analysis allows for the following conclusions:
  • The cooperation of the masonry prisms with the concrete infill has been experimentally confirmed. The relation between transverse and longitudinal strains in the sections of horizontal joints has been established. Due to the development of these strains, longitudinal cracks are being formed and brittle failure occurs in specimens not filled with concrete.
  • Filling the voids of masonry prisms allows the maximization of the load capacity characteristics of hollow blocks and limits the tensile forces in the joints of the masonry. The existing regulatory documents (method 1) prevent the use of a concrete filling with strength exceeding that of masonry prisms. The underestimation of the actual strength in calculations using method 1 reaches up to 69%.
  • The stress–strain relationship for HCB masonry prisms without a concrete infill was selected. A new simple method for calculating the uniaxial load capacity of the HCB masonry prisms with concrete infill, suitable for practical use, was proposed. The methodology is confirmed by the comparison of the results of our research and the results of tests conducted by other researchers. The calculation error of the proposed method (method 2) is 6%.
  • Based on the conducted experimental and numerical analysis with FEM, the authors of the article propose that the load capacity of the related materials should be taken into account when calculating structures made of HCBs with a concrete infill.

Author Contributions

Conceptualization, V.G.; methodology, V.G., K.Y. and R.P.; software, V.G. and K.Y.; validation, V.G., K.Y. and R.P.; formal analysis, V.G., K.Y. and R.P.; investigation, V.G.; writing—original draft preparation, V.G. and K.Y.; writing—review and editing, V.G. and K.Y.; visualization, V.G. and K.Y. All authors have read and agreed to the published version of the manuscript.

Funding

This research received no external funding.

Institutional Review Board Statement

Not applicable.

Data Availability Statement

The original contributions presented in the study are included in the article, further inquiries can be directed to the corresponding authors.

Conflicts of Interest

The authors declare no conflicts of interest.

References

  1. Nazimi, K.; Castro, J.J.; Omi, S.; Ali, B.S. Proposal of Empirical Equations for Masonry Compressive Strength: Considering the Compressive Strength Difference between Bricks and Mortar. Buildings 2024, 14, 1138. [Google Scholar] [CrossRef]
  2. Abasi, A.; Banting, B.; Sadhu, A. Experimental Evaluation of Compressive Properties of Early-Age. Mortar and Concrete Hollow-Block Masonry Prisms within Construction Stages. Materials 2024, 17, 3970. [Google Scholar] [CrossRef] [PubMed]
  3. Blash, A.A.A.; Bakar, B.H.A.; Udi, U.J.; Dabbour, B.S.A.; Jaafar, A.A.; Yanhao, L.; Abu Bakar, I.A.; Rashed, M. Performance of Unreinforced Masonry Walls in Compression: A Review of Design Provisions, Experimental Research, and Future Needs. Appl. Sci. 2023, 13, 12306. [Google Scholar] [CrossRef]
  4. Liu, C.; Zhu, C.; Bai, G.; Quan, Z.; Wu, J. Experimental Investigation on Compressive Properties and Carbon Emission Assessment of Concrete Hollow Block Masonry Incorporating Recycled Concrete Aggregates. Appl. Sci. 2019, 9, 4870. [Google Scholar] [CrossRef]
  5. Matysek, P. Masonry Structures. In Design Principles with Examples of Calculations According to PN-B-03002:1999; Politechnika Krakowska: Krakow, Poland, 2001; ISBN 83-7242-139-0. [Google Scholar]
  6. Drobiec, Ł. FEM model of the masonry made of hollow calcium silicate units, International Conference on Analytical Models and New Concepts in Concrete and Masonry Structures AMCM. Procedia Eng. 2017, 193, 462–469. [Google Scholar] [CrossRef]
  7. Drobiec, Ł.; Jasiński, R.; Piekarczyk, A.; Mazur, W.; Rybarczyk, T.; Chojnowski, J.; Janiak, R.; Kwaśniak, J. Structural Design of Walls Made of Cellular Concrete. Workbook 2 Part 1; Association of Concrete Producers: Warsaw, Poland, 2016; ISBN 978-83-941005-4-4. [Google Scholar]
  8. Paulino, R.S.; Toralles, B.M. Influence of the relationships between compressive strengths of mixed and industrialized mortars and concrete blocks on the behavior of masonry prisms. Rev. IBRACON Estrut. Mater. 2024, 17, 17503. [Google Scholar] [CrossRef]
  9. Zhou, X.; Du, J.; Peng, Q.; Chen, P. Hollow block masonry wall reinforced by built-in structural configuration: Seismic behavior analysis. Soil Dyn. Earthq. Eng. 2019, 126, 105815. [Google Scholar] [CrossRef]
  10. Griniov, V. The strength of complex compressed reinforced concrete structures utilising hollow concrete blocks. Acta Sci. Pol. Archit. 2024, 23, 134–144. [Google Scholar] [CrossRef]
  11. Triwiyonoa, A.; Nugrohoa, A.S.B.; Firstyadia, A.D.; Ottamaa, F. Flexural strength and ductility of concrete brick masonry wall strengthened using steel reinforcement, The 5th International Conference of Euro Asia Civil Engineering Forum (EACEF-5). Procedia Eng. 2015, 125, 940–947. [Google Scholar] [CrossRef]
  12. Syiemiong, H.; Marthong, C. Effect of mortar grade on the uniaxial compression strength of low-strength hollow concrete block masonry prisms. Mater. Today Proc. 2020, 28, 842–845. [Google Scholar] [CrossRef]
  13. Gihad, M.; Lourenc, P.B.; Humberto, R.R. Mechanics of hollow concrete block masonry prisms under compression: Review and prospects. Cem. Concr. Compos. 2007, 29, 181–192. [Google Scholar] [CrossRef]
  14. Álvarez-Pérez, J.; Chávez-Gómez, J.H.; Terán-Torres, B.T.; Mesa-Lavista, M.; Balandrano-Vázquez, R. Multifactorial behavior of the elastic modulus and compressive strength in masonry prisms of hollow concrete blocks. Constr. Build. Mater. 2020, 241, 118002. [Google Scholar] [CrossRef]
  15. Chrysanidis, T. Experimental and numerical research on cracking characteristics of medium-reinforced prisms under variable uniaxial degrees of elongation. Eng. Fail. Anal. 2023, 145, 107014. [Google Scholar] [CrossRef]
  16. Jonaitis, B.; Zavalis, R. Experimental Research of Hollow Concrete Block Masonry Stress Deformations, 11th International Conference on Modern Building Materials, Structures and Techniques, MBMST 2013. Procedia Eng. 2013, 57, 473–478. [Google Scholar] [CrossRef][Green Version]
  17. Irnutan, R.A.; Babota, F. Autoclaved Cellular Concrete (ACC) Masonry with Vertical Hollows Confined with Disperse Reinforced Concrete, 10 International Conference Interdisciplinarity in Engineering INTER-ENG 2016. Procedia Eng. 2017, 181, 300–307. [Google Scholar] [CrossRef]
  18. Machado, J.F.; Lübeck, A.; Gihad, M.; Fonseca, F.S.; Almir Barros da Silva, S.N. Compressive strength of masonry prisms under compression according to Eurocode 6-EN 1996-1-1 (2005). In Proceedings of the 13th North American Masonry, Salt Lake City, UT, USA, 16–19 June 2019; Available online: https://www.researchgate.net/publication/333731008 (accessed on 10 January 2021).
  19. Fahmy, E.H.; Ghoneim, T.G.M. Behaviour of concrete block masonry prisms under axial compression. Can. J. Civ. Eng. 1995, 22, 898–915. [Google Scholar] [CrossRef]
  20. EN 1996-1-1; Eurocode 6: Design of masonry structures - Part 1-1: General rules for reinforced and unreinforced masonry structures. British Standards Institution: London, UK, 2012. (In English)
  21. EN 1992-1-1; Eurocode 2: Design of concrete structures - Part 1-1: General rules and rules for buildings. British Standards Institution: London, UK, 1996. (In English)
  22. EN 1996-2; Eurocode 6: Design of masonry structures - Part 2: Design considerations, selection of materials and execution of masonry. British Standards Institution: London, UK, 2006. (In English)
  23. EN 1996-3; Eurocode 6: Design of masonry structures - Part 3: Simplified calculation methods for unreinforced masonry structures. British Standards Institution: London, UK, 2006. (In English)
  24. DIN 18554-1; Testing of Masonry; Determination of Compressive Strength and of Elastic Modulus. Deutsches Institut für Normung: Berlin, Germany, 1985.
  25. Onishchik, L.I. Stone Structures of Industrial and Civil Buildings; Special Publications: London, UK; Gosstroyizdat: Leningrad, Moscow, Russia, 1939; 208p. [Google Scholar]
  26. Hognestad, E. A Study of Combined Bending and Axial Load in Reinforced Concrete Member; University of Illinois: Champaign, IL, USA, 1951; p. 128. Available online: https://api.semanticscholar.org/CorpusID:114416512 (accessed on 10 January 2021).
  27. Ansys Inc. Chapter 4: Nonlinear Material Properties. In Ansys Mechanical 2023 Help System; Material Reference; Ansys Inc.: Canonsburg, PA, USA, 2023. [Google Scholar]
  28. Menetrey, P.; Willam, K.J. Triaxial failure criterion for concrete and its generalization. ACI Struct. J. 1995, 92, 311–318. [Google Scholar] [CrossRef]
Disclaimer/Publisher’s Note: The statements, opinions and data contained in all publications are solely those of the individual author(s) and contributor(s) and not of MDPI and/or the editor(s). MDPI and/or the editor(s) disclaim responsibility for any injury to people or property resulting from any ideas, methods, instructions or products referred to in the content.

Article Metrics

Citations

Article Access Statistics

Multiple requests from the same IP address are counted as one view.