Abstract
This paper presents an environmental, economic and energy (3E) assessment of an energy retrofitting of the external walls of a flat of an average building with the most current characteristics used in Portugal. For this intervention, a cork-based (as recycled lightweight aggregate) TIRM (Thermal Insulating Rendering Mortar) was considered. The declared unit was 1 m2 of an external wall for a 50-year study period and the energy and economic costs and savings, as well as the environmental impacts, were analytically modelled and compared for two main alternatives: the reference wall without any intervention and the energetically rehabilitated solution with the application of TIRM. Walls with improved energy performance (with TIRM) show lower economic and environmental impacts: reductions from 6% to 32% in carbon emissions, non-renewable energy consumption and costs during the use stage, which depends on the thickness and relative place where TIRM layers are applied. A worse energy performance is shown by reference walls (without TIRM) during the use stage (corresponding to energy used for heating and cooling), while the improved walls present economic and environmental impacts due to the application of TIRM (including the production, transport and application into the building) that do not exist in the reference walls. The comparison between reference walls and energy-retrofitted ones revealed that reference wall become be more expensive when more demanding operational energy requirements are analysed over a 50-year period, even if renewable materials are more expensive.
1. Introduction
Thermal Insulating Rendering Mortars (TIRM) are an important solution that has been used to improve the energy efficiency of the envelope of refurbished and new buildings. It can be applied as an external or internal rendering and insulation of external walls (Figure 1). The main quality of TIRM is their low thermal conductivity, which is provided by the incorporation of lightweight aggregates instead of sand in the mix.
Figure 1.
(a) Spraying application of thermal insulating rendering mortar (TIRM) with cork as lightweight aggregate; (b,c): Smoothing of each coat of mortar; (d) TIRM with cork as lightweight aggregate applied as external rendering of the external wall of a building [1,2].
This research study includes the assessment of the 3E (environmental, economic and energy) performance during the life cycle of a TIRM applied in the thermal renovation of the external walls of a flat of an average building with the most current characteristics used in Portugal. The characterisation of the 3E performance of this construction material when used in the energy renovation of buildings’ envelope was based on data from companies, previous research works, reference literature, and software databases. This approach is of the outmost importance to provide reliable results to support energy retrofitting interventions. The energy benefits of these measures are well known, but it is important to discuss the environmental and economic balance between the expense of resources in the materials used and the savings during the building’s use after the intervention.
The environmental life cycle assessment (LCA) is made from cradle-to-cradle (C2C), being focused on the consumption of non-renewable primary energy and carbon footprint of the TIRM and of its components. The economic assessment C2C is based on market prices (e.g., the cost of manufacture, transportation to site and installation, corresponding to the market acquisition cost) and on the savings that result from using this material in the retrofit of envelopes [3].
In the TIRM considered for this work, cork is used as a recycled lightweight aggregate. This TIRM is available in the Portuguese market only in recent years and is produced by two Portuguese and one Italian company. The use of TIRM with cork as a lightweight aggregate has, on average, a thermal conductivity of approximately 0.093 W/m °C, which corresponds to 20% of the thermal conductivity of common rendering mortars. For this study, an average value of thermal conductivity of 0.095 W/m °C was considered in order to take into account the various cork-based (as lightweight aggregate) TIRM found in the market of the Mediterranean region [1,2].
2. State-of-the-Art on the LCA of Building Envelope
The application of LCA to study alternatives for the buildings’ envelope is gaining an increasing importance all around the world, since it could help to determine the solution that most improves the overall performance of the buildings’ envelope [4,5]. The building’ envelope is one of the parts that significantly influences the 3E performance of a building, and the external walls influence directly the 3E performance of the buildings’ envelope due to their large weight within the envelope’s initial whole-life cost, life cycle energy consumption, embodied energy and users’ comfort.
The 3E impacts of each alternative of the external wall solution results directly from the characteristics of the materials selected (e.g., initial embodied energy, thermal properties, design choices and construction procedures). Thus, it is very important to make available a method that provides the comparison of alternatives and helps to determine the best one to implement in every design of new or refurbishment of a building envelope [6].
There are ongoing developments and studies with this aim all over the world. From the studies identified, the methods being applied to find the alternatives for the buildings’ envelope with the best performance are:
- In Portugal, seven exterior wall alternatives with almost the same thermal performance, and seven different heating systems, were considered in the calculation of the LCA of a house. The study period was defined as 50 years, including the production stage and the heating energy and maintenance actions [7]. Two external claddings’ alternatives (stone claddings and renders) were compared in terms of environmental LCA and service life prediction [8], in another study completed in the same country;
- In China, five façade solutions were considered for an office building, considering their environmental load (and corresponding environmental cost), including operational energy, and economic cost, in order to provide their general payback time and green payback [9,10];
- In Indonesia, a life cycle energy assessment study regarding middle- to high-class residential high-rise apartments in Jakarta identified the best alternatives among common wall types regarding the energy consumption from cradle to the use phase over a 40-year study period [5];
- In Lebanon, a multiscale life cycle energy analysis framework was used to determine the profile of energy use of new residential buildings by considering embodied, operational and user transportation energy requirements, over 50 years. It also identified the most effective ways to reduce energy use along the various life cycle stages, and at different scales, of the built environment [11];
- In Spain, an LCA study compared five constructive systems for the building envelope of a modular house: hollow brick; hollow brick with Phase Changing Materials (PCM); conventional brick; conventional brick with polyurethane insulation and PCM; conventional brick with polyurethane insulation [12]. The environmental impacts over an 80-year study period were considered for each alternative;
- In Italy, alternative envelope solutions, including type and width of masonry and insulating materials, were considered in the LCA study of a conventional house and an office building [13].
Other methodologies and case studies have already been developed worldwide to optimize the buildings performance. In this study, the Environmental, Economic and Energy from Cradle to Cradle (3E-C2C) methodology was used, developed in the University of Lisbon’s Instituto Superior Técnico [14]. This method estimates the 3E performance of the alternatives for the buildings envelope during all life cycle stages in order to select the best one.
In the research for this study, it was found that most studies of the building’s envelope only comprise part of the LCA, mainly Life Cycle Energy Assessment (LCEA) studies and there are very few studies that comprise the 3E LCA, including the economic assessment, and all its different stages [15,16,17]. Therefore, using this method along with this case study is an innovative approach, and an improvement compared to previous studies with analogous building assemblies and objectives.
3. Materials and Methods
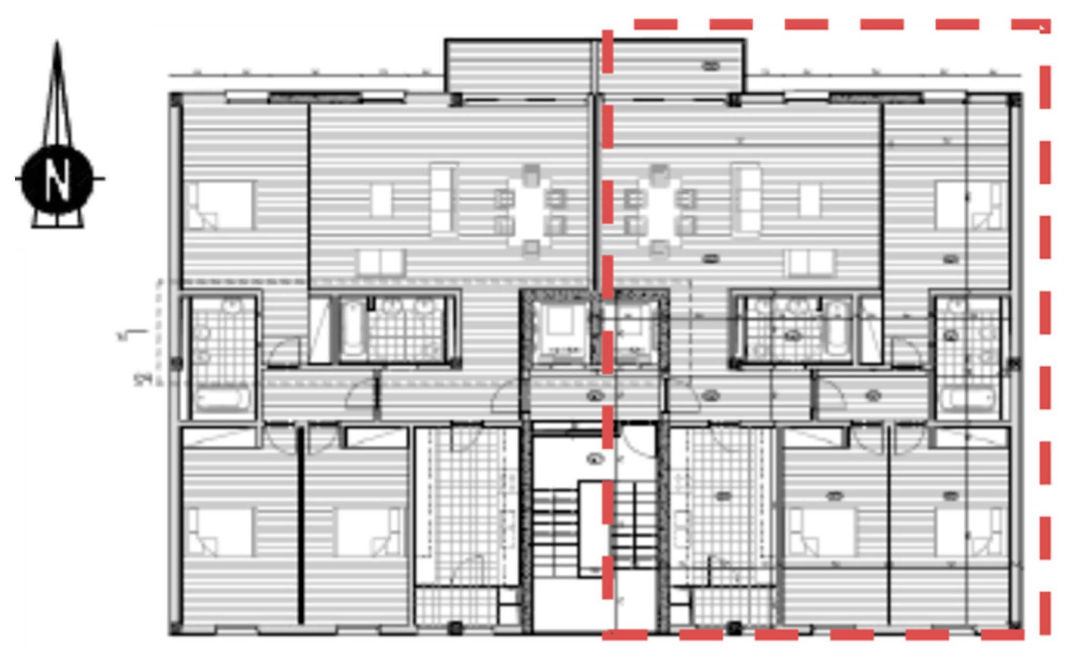
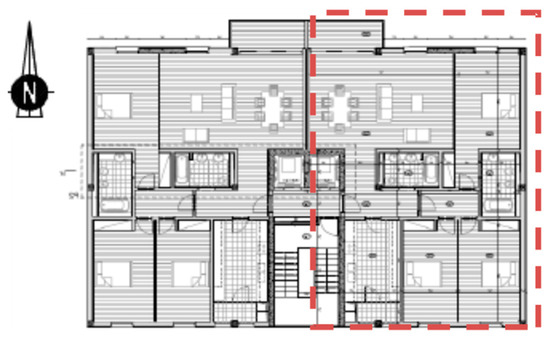
The object of the study was an intermediate flat of a model building denominated “Hexa”. The building has six residential floors and a ground floor for commerce [18] and it has the most current building and architectural characteristics used in Portugal [19]. The apartment located at the right of Figure 2 was selected as case study, without any adjacent building to the façade on the east. Évora was the location chosen for the Hexa building in this study, which is located in the south of Portugal, with extreme temperature in summer (up to 40 °C) and cold in winter (0 °C).
Figure 2.
Residential model flat considered in this study (on the right).
The external walls used in this study were the south and north façades of the flat, using as declared unit/reference flow one square metre of external wall. Fifty years was set as the reference study period [18], since it is the service life of a building usually considered in structural design and was also the one considered in most of the studies identified in the state-of-the-art (see Section 2).
To use TIRM for the thermal retrofit of the façades of the “Hexa” building [19], two reference solutions were considered, without insulation: a single-leaf wall of hollow fired-clay bricks with 0.22 m of thickness (W1); a cavity wall with two leaves with 0.15 m and 0.11 m of thickness (W11), of the same material. Then, twelve enhanced solutions with TIRM were considered using the same thickness, but applied on the interior, exterior or on both sides of the wall, as shown in Table 1.
Table 1.
Label, thickness and U-Value of the wall solutions analysed.
The energy renovation of reference walls (W1 and W11) is important. Nevertheless, the cooling and heating needs of the flat in each year of the study period depend either on the reduced thermal performance (U-value) achieved after this intervention and on the surface (inner or outer) of the external wall in which the TIRM is applied. Actually, a lower U-value maximizes its effect on decreasing the needs of energy for heating and cooling when the insulation material is applied on the outer surface of the external wall. This occurs because, when compared with internal insulation, higher efficiency to avoid the heating losses during winter along linear thermal bridges on the external wall is achieved by external insulation.
Table 2 describes the replacement, repair and maintenance operations of each internal coating and external cladding along the life cycle (after the retrofit operation).
Table 2.
Maintenance, repair and replacement operations of each external cladding and internal coating of external wall evaluated.
3.1. 3E-C2C Method
Regarding the goal and scope, this research study applied an approach for the integrated 3E’s (Environmental, Energy and Economy) assessment from cradle to cradle (3E-C2C) of the life cycle performance of construction materials or assemblies related with the thermal performance of buildings, which was already used in the use of External Thermal Insulation Composite Systems (ETICS) in the energy retrofit of buildings [20].
The 3E-C2C method assesses the 3E’s impacts of each construction material or assembly for the whole life cycle (C2C) by analytically modelling and considering all the factors that can affect them (e.g., the operational performance of the assembly, and its service life and recycling potential, as shown in Table 3).
Table 3.
Detailed life cycle stages of building materials classification [21].
This study considered “one square metre of external wall for 50 years from thermal retrofit (TIRM application)” as the declared unit, not considering a functional unit, and considering the use stage, reference service life and end-of-life stages of each alternative. This approach can compare external wall alternatives with different U-values because the corresponding LCA study considers the environmental and costs of their relative thermal performance over 50 years and of the production of the corresponding thermal insulation thickness.
3.1.1. Environmental Performance
The LCA standardised method [22,23], its four main steps (goal and scope definition, inventory analysis, impact assessment, and interpretation) and most of the principles from European standards [24,25], are complied with by the 3E-C2C method for the quantification of the environmental performance from cradle to cradle. Regarding the system boundaries of this study, at each life cycle stage the environmental performance is defined by:
- Product Stage (A1–A3): For each product or construction material, the inventory of the LCA data of the production resulted either from the studies completed in Portuguese plants [14] or from the application of Native LCA in the selection of coherent LCA data sets on TIRM to be used [26]. The composition considered for this product was based on a Portuguese producer [2]. The LCA of the production of each construction material (cradle-to-gate approach) was calculated with SimaPro and environmental impact results were achieved by using an environmental impact assessment method with a mid-point approach—CML 2001 baseline method;
- Construction process stage (A4–A5): The thermal retrofit includes the installation of the product in the building: removal, and transportation to waste processing and disposal, of the old render and paint; external and/or internal rendering of the external wall with TIRM, and application of the corresponding coating;
- Use stage—maintenance, repair and replacement (B2–B4): During the study period, the environmental impacts of the materials applied in replacement, repair and maintenance operations, and of the corresponding waste flows, were considered;
- Use stage—energy cost (B6): The energy performance is based on the estimation of the energy needs for heating and cooling during the buildings’ operation. These needs are then divided by the total area of external wall to result in a value related to the declared unit considered. This value, and the corresponding environmental impacts, are based on the residential consumption for heating and cooling considering an updated Portuguese electricity mix [27];
- End-of-life stage (C): The transportation of the discarded product as part of the waste processing and transportation of waste (C2), the waste processing (C3) and the waste disposal, including physical pre-treatment and management of the disposal site (C4) are considered; since the environmental impacts of demolition (C1) are similar for all alternatives, they are not considered.
3.1.2. Economic Performance
The Whole-Life Cost (WLC) method [28] and most of the principles included in the European Standards [21] support the economic module of the 3E-C2C approach.
The NPV (Net Present Value), considering the study period, the heating and cooling needs and the operation costs of each substage, is the comparison unit between the alternatives. The formulas presented in Table 4 support the estimation of the NPV.
Table 4.
Equations used to determine the NPV of each solution.
The economic performance is defined, for each life cycle stage, by:
- Product and construction process stages (A1–A5): For the installation of the TIRM in the building, the cost of the renovation described in the construction process as to be considered, except for the costs of workmanship to remove the old render and the paint and for the costs of installation of any scaffolding, on the external surface of the external wall, to complete this operation. These costs were collected from: a Portuguese producer of TIRM with cork as a lightweight aggregate [1]; previous research studies [29]; construction firms, market surveys and building materials suppliers [18]; reference national documents [30];
- Use stage—maintenance, repair and replacement (B2–B4): The cost of replacement, repair and maintenance operations completed in each year defines the economic cost of this stage in year “n” per square metre of external wall;
- Use stage—energy cost (B6): The energy used for heating and cooling [31], calculated by the method used in Portuguese codes [32], permits the calculation of the energy cost in year “n” per square metre of external wall;
- End-of-life stage (C): Only the costs for transportation and disposal of the materials or building assemblies and the expenses and/or revenues from recycle, reuse, and energy recovery are considered for the economic cost in year 50 per square metre of external wall [33,34].
4. 3E Assessment of Energy Retrofitting Alternatives
To evaluate and compare the 3E performance of the energy renovation alternatives considered in this case study for two reference external walls without insulation (W1 and W11), the 3E-C2C method was used. The envelope renovation results from the application of a TIRM with cork as a lightweight aggregate and considering various relative locations and thicknesses.
The 3E-C2C method is in accordance with European and international standards and performance labels. C2C LCA studies were considered to assess the environmental performance, which is focused on the consumption of nonrenewable primary energy (PE-NRe) and on the carbon footprint (reflected on the environmental impact category “Global Warming Potential”—GWP). The economic performance from C2C considered market prices and also the “economic savings” (lower cooling and heating energy demand) resulting from the application of TIRM in the envelope renovation of buildings.
The main thermal insulating characteristics of the TIRM using cork as a lightweight aggregate, including the improvements in the thermal performance of the building envelope after its installation and the corresponding reduction of energy demand, were considered in the assessment of the energy performance. Ongoing changes in comfort demands and in building occupancy have led to a higher consumption of operational energy. Therefore, higher values (from 30 and 50%, while 10% of the energy needs is the default value) were considered to simulate future representative scenarios for apartments [35] or multifamiliar residential buildings [36].
4.1. Carbon and Energy Consumption Balances
Figure 3 shows the results from the C2C environmental and energy carbon footprint of the external wall alternatives, expressed by the GWP. This figure expresses an environmental impact between 74% and 93% at stages A1–A5 and between 1% and 2% at stages C2–C4 and D (of the total C2C GWP, without considering the energy for heating or cooling), both stages having an impact directly proportional to the thickness of TIRM applied in the renovation. The GWP in the B2–B4 stages does not differ much between the alternatives due to their common maintenance strategy, and represent 4% to 24% of their C2C GWP.
Figure 3.
C2C Global Warming Potential (GWP, in kg CO2 eq, with the energy needed for heating and cooling not being considered) of each alternative of external wall.
The C2C consumption of PE-NRe (Figure 4) has a trend similar to GWP. Between 52% and 86% of the impact comes from stages A1–A5 and between −5% and 3% corresponds to the end-of-life, being directly proportional to the thickness of TIRM applied. The entire “positive” C2C PE-NRe for the reference solution is within the B2–B4 stages, varying between 11% and 53% for the remaining solutions, with the energy needed for heating and cooling not being considered.
Figure 4.
C2C consumption of nonrenewable primary energy (PE-NRe, in MJ, with the energy needed for heating and cooling not being considered) of each alternative of external wall.
4.2. Economic Costs and Benefits
Figure 5 shows the results of the economic balance regarding the use of TIRM as external and/or internal rendering of the walls defined for this study. It was found that the NPV of the C2C cost of each external wall alternative: is directly proportional to the thickness of TIRM applied, and varies from 19% to 60%, at stages A1–A3, A4 and A5; is between 1% and 3% at the end-of-life; represents around 54% for the reference wall, and varies from 23% to 46% for the remaining solutions, for the replacement, repair and maintenance operations (stages B2–B4), even if being similar in absolute terms for all alternatives. The remaining contribution of the NPV results from the cost of energy used for heating and cooling (B6 substage), about 44% for the reference solutions and between 14% and 35% of the NPV of the remaining ones.
Figure 5.
NPV of the economic (including A1–A5, B2–B4 and C2–C4 and D stages) and energy (for B6 substage) costs of each external wall alternative.
Figure 5 allows concluding that there is no wall alternative where TIRM was applied that provides “economic savings” in comparison to the reference solutions. Nevertheless, these results were obtained for a consumption of energy during the B6 substage necessary to fulfil only 10% of the heating and cooling needs. However, these “economic savings” can become more significant, as shown in Figure 6, if higher values are used to simulate future realistic scenarios for dwellings or multifamiliar residential buildings.
Figure 6.
Difference between the NPV of the economic (including A1–A5, B2–B4 and C2–C4 and D stages) and energy (B6 substage) costs of each external wall alternative and the NPV of reference solution (W1, for single-leaf walls, at left; W11, for cavity walls, on the right), considering different consumption patterns for the use stage (providing 10%, 30% or 50% of the energy needs).
4.3. Energy Savings in Heating and Cooling
The “environmental impact savings” results show that the application of TIRM on the external surface of these walls could result on carbon savings from 6% to 32%. For the “environmental impact savings” of consumption of PE-NRe for the operational energy consumption during the study period, similar results were achieved.
In this study, these “environmental impact and economic savings” during the B6 substage are expressed per m2 of the external wall of the flat chosen. However, the corresponding savings at a national scale provided by the implementation of these energy retrofit operations in Portugal or in other countries can be extrapolated but the thermal performance characteristics of most of existing buildings have to be considered and adapted to each specific case.
5. Discussion
For the single-leaf wall group, the C2C environmental LCA showed that W9 has the lowest C2C PE-NRe, considering the consumption of energy necessary to satisfy 10% of the heating and cooling needs, as shown in Table 5. If this value is increased to 30% or 50%, then W10 becomes the best alternative. The best economic alternative considering the consumption of energy needed to fulfil 10% of the heating and cooling needs is W1 (no renovation) but, when the energy consumption increases to 30% or 50%, the best alternative becomes W8 (Table 5 and Figure 6).
Table 5.
Single-leaf external wall solutions that offer the best performance, depending on the dimension analysed.
Within the cavity wall group, the C2C environmental LCA showed that W18 has the lowest C2C PE-NRe, considering the consumption of energy necessary to fulfil 10% of the heating and cooling needs, as shown in Table 6. If this value is increased to 30% or 50%, then W20 becomes the best alternative. The best economic alternative considering the consumption of energy needed to fulfil 10% or 30% of the heating and cooling needs is W11 (no renovation) but, when the energy consumption increases to more than 50% (53%), the best alternative becomes W18 (Table 6 and Figure 6).
Table 6.
External cavity wall solution that offers the best performance, depending on the dimension analysed.
6. Conclusions
This paper presents the life cycle performance (3E) assessment of the application of a TIRM (Thermal Insulating Rendering Mortar) with cork in the energy rehabilitation of a model building. The three vectors of sustainability were considered in order to provide a true Life Cycle Sustainability Assessment: environmental, economic and social (represented here by the thermal comfort expressed by the energy needs, even if the energy costs and environmental loads are being considered in the other two pillars).
A worse energy performance on the operational stage (energy used for heating and cooling) of reference walls (without TIRM) was found, while walls with improved energy performance (with TIRM) show lower environmental and economic impacts: 6% to 32% reduction in carbon emissions, costs and in nonrenewable energy consumption during the use stage, depending on the relative position of the layers and on the thickness of TIRM applied. However, environmental and economic impacts due to the removal of the ancient coating and application of TIRM during production, transport and execution on site, that do not exist in the reference walls, have to be considered for improved walls.
At the end, it was found that although renewable materials are more costly, the reference wall tends to be more expensive when a 50-year period is considered with an higher energy demand for heating and cooling, namely for single walls without insulation. If the reference wall is a cavity wall without insulation, only an external economic incentive can encourage an energy retrofitting intervention.
Author Contributions
Data curation, J.D.S.; Methodology, J.D.S.; Validation, A.M.P.C. and J.J.B.C.S.; Writing-original draft, J.D.S.; Writing-review & editing, A.M.P.C., J.J.B.C.S., J.M.C.L.d.B. and M.D.P. All authors have read and agreed to the published version of the manuscript.
Funding
This research work was completed in the scope of the project MARIE—Mediterranean Building Rethinking for Energy Efficiency Improvement (2011–2014), cofinanced by the European Regional Development Fund (ERDF) and the MED Programme.
Acknowledgments
The authors are also grateful for the support from FCT (Foundation for Science and Technology) and from CERIS Research Institute from Instituto Superior Técnico, Universidade de Lisboa. Special thanks are due to the Portuguese manufacturers of construction materials, for providing the necessary data to complete this research work.
Conflicts of Interest
The authors declare no conflict of interest.
References
- Secil. Secil Mortars. Available online: http://www.secilargamassas.pt/pt (accessed on 22 October 2013). (In Portuguese).
- THW. Thermowall. Available online: http://thermowall.pt/ (accessed on 22 October 2013). (In Portuguese).
- Garrido, R.; Silvestre, J.; Flores-Colen, I. Economic and energy life cycle assessment of aerogel-based thermal renders. J. Clean. Prod. 2017, 151, 537–545. [Google Scholar] [CrossRef]
- Utama, A.; Gheewala, S. Life cycle energy of single landed houses in Indonesia. Energy Build. 2008, 40, 1911–1916. [Google Scholar] [CrossRef]
- Utama, A.; Gheewala, S. Indonesian residential high rise buildings: A life cycle energy assessment. Energy Build. 2009, 41, 1263–1268. [Google Scholar] [CrossRef]
- Ferreira, J.; Pinheiro, M.D.; Brito, J. Refurbishment decision support tools review—Energy and life cycle as key aspects to sustainable refurbishment projects. Energy Policy 2013, 62, 1453–1460. [Google Scholar] [CrossRef]
- Monteiro, H. Life cycle assessment of a Portuguese house with different exterior wall solutions and alternative heating systems. In Master Thesis in Energy for Sustainability; University of Coimbra: Coimbra, Portugal, 2010. [Google Scholar]
- Silvestre, J.D.; Silva, A.; Brito, J. Uncertainty modelling of service life and environmental performance to reduce risk in building design decisions. J. Civ. Eng. Manag. 2015, 21, 308–322. [Google Scholar] [CrossRef]
- Gu, L.J.; Gu, D.J.; Lin, B.R.; Huang, M.X.; Gai, J.Z.; Zhu, Y.X. Life cycle green cost assessment method for green building design. In Building Simulation 2007; Tsinghua Press: Beijing, China, 2007; pp. 1962–1967. [Google Scholar]
- Gu, L.J.; Lin, B.R.; Zhu, Y.X.; Gu, D.J.; Huang, M.X.; Gai, J.Z.L. Integrated assessment method for building life cycle environmental and economic performance. In Building Simulation 1; Tsinghua Press: Beijing, China, 2008; Volume 2, pp. 169–177. [Google Scholar]
- Stephan, A.; Stephan, L. Reducing the total life cycle energy demand of recent residential buildings in Lebanon. Energy 2014, 74, 618–637. [Google Scholar] [CrossRef]
- Rincón, L.; Castell, A.; Pérez, G.; Solé, C.; Boer, D.; Cabeza, L.F. Evaluation of the environmental impact of experimental buildings with different constructive systems using material flow analysis and life cycle assessment. Appl. Energy 2013, 109, 544–552. [Google Scholar] [CrossRef]
- Asdrubali, F.; Baldassarri, C.; Fthenakis, V. Life cycle analysis in the construction sector: Guiding the optimization of conventional Italian buildings. Energy Build. 2013, 64, 73–89. [Google Scholar] [CrossRef]
- Silvestre, J.D.; Brito, J.; Pinheiro, M.D. From the new European Standards to an environmental, energy and economic assessment of building assemblies from cradle-to-cradle (3E-C2C). Energy Build. 2013, 64, 199–208. [Google Scholar] [CrossRef]
- Chau, C.; Leung, T.; Ng, W. A review on life cycle assessment, life cycle energy assessment and life cycle carbon emissions assessment on buildings. Appl. Energy 2015, 143, 395–413. [Google Scholar] [CrossRef]
- Zimek, M.; Schober, A.; Mair, C.; Baumgartner, R.; Stern, T.; Füllsack, M. The third wave of LCA as the “decade of consolidation”. Sustainability 2019, 11, 3283. [Google Scholar] [CrossRef]
- Fauzi, R.; Lavoie, P.; Sorelli, L.; Heidari, M.; Amor, B. Exploring the current challenges and opportunities of life cycle sustainability assessment. Sustainability 2019, 11, 636. [Google Scholar] [CrossRef]
- Real, S.F. Contribution of the life cycle cost analysis to design sustainability in construction (in Portuguese). In Masters Dissertation in Civil Engineering, Instituto Superior Técnico; Technical University of Lisbon: Lisbon, Portugal, 2010; p. 153. [Google Scholar]
- Ferreira, J.; Pinheiro, M.D. In search of a better energy performance in the Portuguese buildings—The case of the Portuguese regulation. Energy Policy 2011, 39, 7666–7683. [Google Scholar] [CrossRef]
- Silvestre, J.D.; Castelo, A.; Correia da Silva, J.; de Brito, J.; Pinheiro, M.D. Retrofitting a building’s envelope: Sustainability performance of ETICS with ICB or EPS. J. Appl. Sci. 2019, 9, 1285. [Google Scholar] [CrossRef]
- CEN. Sustainability of Construction Works—Environmental Product Declarations—Core Rules for the Product Category of Construction Products; Comité Européen de Normalisation: Brussels, Belgium, 2012. [Google Scholar]
- ISO. Environmental Management—Life Cycle Assessment—Principles and Framework; International Organization for Standardization: Genève, Switzerland, 2006. [Google Scholar]
- ISO. Environmental Management—Life Cycle Assessment—Requirements and Guidelines; International Organization for Standardization: Genève, Switzerland, 2006. [Google Scholar]
- CEN. Sustainability of Construction Works—Assessment of Buildings—Part 2: Framework for the Assessment of Environmental Performance; Comité Européen de Normalisation: Brussels, Belgium, 2011. [Google Scholar]
- CEN. Sustainability of Construction Works—Assessment of Environmental Performance of Buildings—Calculation Method; Comité Européen de Normalisation: Brussels, Belgium, 2011. [Google Scholar]
- Silvestre, J.D.; Lasvaux, S.; Hodkova, J.; de Brito, J.; Pinheiro, M.D. NativeLCA—A systematic approach for the selection of environmental datasets as generic data: Application to construction products in a national context. Int. J. Life Cycle Assess. 2015, 20, 731–750. [Google Scholar] [CrossRef]
- ERSE. Electric Energy Labelling. ERSE—The Energy Services Regulatory Authority. Available online: http://www.erse.pt/pt/desempenhoambiental/rotulagemenergetica/comparacaoentrecomercializadores/Paginas/default.aspx (accessed on 23 July 2012). (In Portuguese).
- ISO. Buildings and Construction Assets—Service Life Planning—Part 5: Life-Cycle Costing; International Organization for Standardization: Geneva, Switzerland, 2008. [Google Scholar]
- Silvestre, J.D.; Brito, J.; Pinheiro, M.D. Life cycle impact “cradle to cradle” of building assemblies. In Engineering Sustainability; Institution of Civil Engineers: London, UK, 2013; Volume 167, pp. 53–63. [Google Scholar]
- Manso, A.; Fonseca, M.; Espada, L. Information about Costs—Productivity Sheets; Laboratório Nacional de Engenharia Civil: Lisbon, Portugal, 2010. (In Portuguese) [Google Scholar]
- Mateus, R.; Bragança, L. Sustainability assessment and rating of buildings: Developing the methodology SBToolPT—H. Build. Environ. 2011, 46, 2166–2175. [Google Scholar] [CrossRef]
- RCCTE. Regulation of the Characteristics of Thermal Behaviour of Buildings. In Law Decree No. 80/2006; D.R.I-A Series 67-2468-2513; RCCTE: Lisboa, Portugal, 2006. (In Portuguese) [Google Scholar]
- Coelho, A.; Brito, J. Economic analysis of conventional versus selective demolition—A case study. Resour. Conserv. Recycl. 2011, 55, 382–392. [Google Scholar] [CrossRef]
- Silvestre, J.D.; Brito, J.; Pinheiro, M.D. Environmental impacts and benefits of the end-of-life of building materials—Calculation rules, results and contribution to a “cradle to cradle” life cycle. J. Clean. Prod. 2014, 66, 37–45. [Google Scholar] [CrossRef]
- Monteiro, H.; Freire, F. Life-Cycle assessment of a house with alternative exterior walls: Comparison of three assessment methods. Energy Build. 2012, 47, 572–583. [Google Scholar] [CrossRef]
- Pinto, A. Application of Life-Cycle Assessment in the Energetic and Environmental Analysis of Buildings. Ph.D. Thesis, Mechanical Engineering, Universidade Técnica de Lisboa, Lisbon, Portugal, 2008; p. 329. (In Portuguese). [Google Scholar]
© 2019 by the authors. Licensee MDPI, Basel, Switzerland. This article is an open access article distributed under the terms and conditions of the Creative Commons Attribution (CC BY) license (http://creativecommons.org/licenses/by/4.0/).





