Sign in to use this feature.

Years

Between: -

Subjects

remove_circle_outline
remove_circle_outline
remove_circle_outline
remove_circle_outline
remove_circle_outline
remove_circle_outline
remove_circle_outline
remove_circle_outline
remove_circle_outline

Journals

Article Types

Countries / Regions

Search Results (405)

Search Parameters:
Keywords = foundation pit

Order results
Result details
Results per page
Select all
Export citation of selected articles as:
22 pages, 4057 KB  
Article
A Fractional Calculus-Based Constitutive Model for the Coupled Stress Relaxation of Soil Anchors in Saturated Clay and Parameter Sensitivity Analysis
by Taiyu Liu, Dongyu Luo, Guanxixi Jiang and Cheng Sun
Appl. Sci. 2026, 16(6), 2845; https://doi.org/10.3390/app16062845 - 16 Mar 2026
Viewed by 134
Abstract
The long-term prestress relaxation of soil anchors embedded in saturated clay is a critical issue affecting the safety of geotechnical structures such as slopes and foundation pits. Traditional integer-order constitutive models are often unable to accurately describe the nonlinear and time-dependent relaxation behavior [...] Read more.
The long-term prestress relaxation of soil anchors embedded in saturated clay is a critical issue affecting the safety of geotechnical structures such as slopes and foundation pits. Traditional integer-order constitutive models are often unable to accurately describe the nonlinear and time-dependent relaxation behavior observed in such anchorage systems. Based on fractional calculus theory, this study establishes a constitutive model for the coupled stress relaxation behavior of soil anchors and saturated clay. The Riemann–Liouville fractional derivative and the two-parameter Mittag-Leffler function are introduced to represent the material memory effect and continuous relaxation characteristics. To achieve reliable parameter identification, a hybrid optimization strategy combining the Adaptive Hybrid Differential Evolution (AHDE) algorithm and the Levenberg–Marquardt (L-M) method is proposed. The proposed model and identification approach are validated using field monitoring data from soil anchors in a slope engineering project at the Guangxi Friendship Pass Port. The results show that the proposed model can accurately reproduce the entire stress relaxation process, with a coefficient of determination of R2 = 0.9517. Parameter sensitivity analysis further clarifies the influence of key parameters, including the fractional order and viscosity coefficient. The proposed approach provides a systematic theoretical framework and practical reference for the analysis and prediction of long-term prestress relaxation in soil anchorage systems. Full article
(This article belongs to the Section Civil Engineering)
Show Figures

Figure 1

19 pages, 10235 KB  
Article
High-Fidelity 3D Reconstruction for Open-Pit Mine Digital Twins Using UAV Data and an Integrated 3D Gaussian Splatting Pipeline
by Laixin Zhang, Yuhong Tang and Zhuo Wang
Eng 2026, 7(3), 136; https://doi.org/10.3390/eng7030136 - 16 Mar 2026
Viewed by 142
Abstract
Addressing the challenges in 3D reconstruction of large-scale open-pit mines, such as dramatic terrain undulations, complex texture features, and the difficulty of balancing geometric accuracy with real-time rendering efficiency using traditional methods, this paper proposes a high-fidelity reconstruction framework integrating UAV multi-modal data [...] Read more.
Addressing the challenges in 3D reconstruction of large-scale open-pit mines, such as dramatic terrain undulations, complex texture features, and the difficulty of balancing geometric accuracy with real-time rendering efficiency using traditional methods, this paper proposes a high-fidelity reconstruction framework integrating UAV multi-modal data with the state-of-the-art 3D Gaussian Splatting (3DGS) architecture. First, an integrated air-ground multi-modal data acquisition system is established. Using a UAV equipped with LiDAR and a high-resolution camera, high-quality geometric and textural data of the mining area are acquired through terrain-adaptive flight planning. Second, to tackle the VRAM bottlenecks and loose geometric structures inherent in original 3DGS for large scenes, we adopt the advanced CityGaussianV2 architecture as our core reconstruction engine. By leveraging its divide-and-conquer parallel training strategy, 2DGS planar geometric constraints, and Decomposed Gradient Densification (DGD) mechanism, this framework effectively overcomes memory limitations and significantly enhances the geometric sharpness of slope crests and toes. Finally, engineering validation was conducted at Kambove Mining. Experimental results demonstrate that the proposed method achieves centimeter-level geometric accuracy, a real-time web rendering frame rate exceeding 60 FPS, and a model storage compression rate of over 90%. The digital twin control platform built upon this model successfully achieves deep fusion and visual scheduling of multi-source heterogeneous data, providing a novel technical path for constructing high-precision reality-based foundations for smart mines. Full article
(This article belongs to the Special Issue Artificial Intelligence for Engineering Applications, 2nd Edition)
Show Figures

Figure 1

20 pages, 4404 KB  
Technical Note
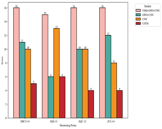
Prediction and Applicability Analysis of Multi-Type Monitoring Data for Metro Foundation Pits Based on VMD-GWO-CNN Model
by Qitao Pei, Xiaomin Liu, Shaobo Chai, Chao Meng, Zhihua Gao and Juehao Huang
Buildings 2026, 16(6), 1141; https://doi.org/10.3390/buildings16061141 - 13 Mar 2026
Viewed by 154
Abstract
Current methods for predicting deep excavation deformation suffer from insufficient accuracy and limited generalization capability. Moreover, the applicability of these methods to different types of monitoring data also requires in-depth analysis. To address this, a machine learning-based prediction model, i.e., the VMD-GWO-CNN model, [...] Read more.
Current methods for predicting deep excavation deformation suffer from insufficient accuracy and limited generalization capability. Moreover, the applicability of these methods to different types of monitoring data also requires in-depth analysis. To address this, a machine learning-based prediction model, i.e., the VMD-GWO-CNN model, integrating Variational Mode Decomposition (VMD), the Grey Wolf Optimizer (GWO), and the Convolutional Neural Network (CNN), is proposed to predict various types of monitoring data. The GWO algorithm optimizes both the key parameters of VMD and the hyperparameters of the CNN. The optimized CNN model predicts each subsequence decomposed by VMD, and the final prediction is obtained by superimposing these results. Furthermore, the prediction performance of the proposed model is evaluated against the LSTM, CNN, and GWO-CNN models using four metrics (RMSE, MAE, MAPE, R2). The results indicate that all four algorithms possess effective predictive capability for the monitoring data, in which the VMD-GWO-CNN model demonstrates the best performance across all metrics. Specifically, its RMSE for surface settlement prediction is reduced by 59.2%, 34.1%, and 33.0% compared to the LSTM, CNN, and GWO-CNN models, respectively. Moreover, the VMD-GWO-CNN model exhibits strong predictive performance for deformation in slope engineering and subgrade engineering, demonstrating its good applicability across different geotechnical engineering. The findings provide a scientific basis for safe excavation construction and contribute to efficient and rapid execution of foundation pit projects. Full article
Show Figures

Figure 1

32 pages, 12219 KB  
Article
Stochastic Mechanical Response and Failure Mode Transition of Corroded Buried Pipelines Subjected to Reverse Faulting
by Tianchong Li, Kaihua Yu, Yachao Hu, Ruobing Wu, Yuchao Yang and Feng Liu
Materials 2026, 19(5), 1033; https://doi.org/10.3390/ma19051033 - 8 Mar 2026
Viewed by 202
Abstract
Buried oil and gas pipelines, the critical arteries of global energy infrastructure, are increasingly vulnerable to severe geological hazards such as reverse faulting, yet their structural integrity is often pre-compromised by stochastic corrosion damage accumulated during service. However, quantifying the coupled impact of [...] Read more.
Buried oil and gas pipelines, the critical arteries of global energy infrastructure, are increasingly vulnerable to severe geological hazards such as reverse faulting, yet their structural integrity is often pre-compromised by stochastic corrosion damage accumulated during service. However, quantifying the coupled impact of spatial corrosion heterogeneity and large ground deformation remains a formidable challenge due to the complex nonlinearities involved in soil–structure interactions and wall thinning. This study establishes a probabilistic assessment framework integrating random field theory, nonlinear finite element analysis, and a generative conditional diffusion model to characterize realistic 2D non-Gaussian corrosion morphologies. The numerical results reveal a significant geometric stiffening effect induced by internal pressure, where moderate operating levels effectively suppress cross-sectional distortion by counteracting the Brazier effect. Consequently, this mechanism facilitates a fundamental transition in failure modes from localized tensile rupture to ductile buckling, significantly extending the critical fault displacement threshold. Furthermore, probabilistic fragility analysis demonstrates that the spatial dispersion of pitting, rather than just average wall thinning, governs the initiation of premature failure. Mechanistic analysis indicates that high internal pressure, while providing pneumatic support, exacerbates tensile strain localization at corrosion pits, leading to a heightened probability of premature rupture under minor fault deformations, a critical hazard that traditional deterministic models significantly underestimate. These findings provide a quantitative theoretical foundation for the reliability-based design and maintenance of energy lifelines traversing active tectonic zones. Full article
(This article belongs to the Section Materials Simulation and Design)
Show Figures

Figure 1

15 pages, 2258 KB  
Article
Experimental Study on Deformation and Strength of Silt Under Plane Strain Unloading Conditions
by Jingchao Jia, Mengshi Qiu, Yaowu Luo, Wei Chen and Xiaoyan Song
Appl. Sci. 2026, 16(5), 2527; https://doi.org/10.3390/app16052527 - 6 Mar 2026
Viewed by 191
Abstract
In geotechnical engineering, operations such as foundation pit excavation, slope cutting, and tunnel boring often involve lateral unloading under plane strain conditions. This unloading pattern exhibits significant differences from the traditional axisymmetric triaxial loading path. To investigate the mechanical behavior of silt under [...] Read more.
In geotechnical engineering, operations such as foundation pit excavation, slope cutting, and tunnel boring often involve lateral unloading under plane strain conditions. This unloading pattern exhibits significant differences from the traditional axisymmetric triaxial loading path. To investigate the mechanical behavior of silt under such conditions, a series of plane strain tests were conducted using a self-designed plane strain apparatus, focusing on both vertical loading (constant lateral stress) and lateral unloading (constant vertical stress) paths. The results indicate that the failure of soil during unloading can be identified as the stage where the vertical deformation rate first increases and then decreases, corresponding to a distinct inflection in the stress–strain curve. The internal friction angle remained essentially constant regardless of the stress path, dry density, or consolidation stress ratio, while cohesion was higher under loading than under unloading. Failure deviatoric stress increased linearly with vertical consolidation stress and was unaffected by the consolidation stress ratio. The classical limit equilibrium condition remains valid for unloading under both isotropic and anisotropic consolidation. These findings provide a practical criterion for failure detection and highlight the necessity of adopting plane strain parameters in the design of lateral unloading engineering works. Full article
Show Figures

Figure 1

28 pages, 10764 KB  
Article
Study on Mechanical Behavior of Excavation Supported by Rock-Socketless End-Suspended Piles in Soil–Rock Composite Strata Pit in Jinan
by Weijun Ju, Huaiwen Wang, Yijun Xu and Xiaohan Zhou
Buildings 2026, 16(5), 992; https://doi.org/10.3390/buildings16050992 - 3 Mar 2026
Viewed by 235
Abstract
Excavation in soil–rock composite strata poses significant challenges in regard to deformation control due to stiffness contrast and interface discontinuity. Based on the optimization requirements of a foundation pit project in Jinan Metro Line 7, we evaluated an end-suspended pile support system without [...] Read more.
Excavation in soil–rock composite strata poses significant challenges in regard to deformation control due to stiffness contrast and interface discontinuity. Based on the optimization requirements of a foundation pit project in Jinan Metro Line 7, we evaluated an end-suspended pile support system without rock-socket support through physical model tests and numerical simulations. The results indicate that ground settlement exhibits a typical “trough-shaped” distribution with an influence range of approximately 20 m. The pattern of retaining wall displacement evolves from being “inverted-triangular” into a “vase-shaped” during staged excavation, with maximum displacement remaining within code limits. Bending-moment peaks can be observed near strut levels and approximately 1 m above the soil–rock interface, reflecting stress redistribution and differential constraint effects. Parametric analysis demonstrated that increased rock weathering reduces formation stiffness and amplifies deformation and strut forces, whereas moderately weathered rock provides more effective restraint. A steeper interface dip angle induces asymmetric deformation due to stiffness contrast, increasing overall structural demand. An increase in rock-socketed depth, particularly within 4.0–4.5 m, significantly enhances anchorage performance and deformation control. These findings provide quantitative support for optimizing suspended pile systems in soil–rock composite strata. Full article
Show Figures

Figure 1

20 pages, 3995 KB  
Article
Hydro-Mechanical Coupling Analysis of Field Pumping Test in Granite Residual Soil Site
by Zefu Li, Yadong Li, Shuyu Nie, Zikang Pang, Jie Cui and Yi Shan
Buildings 2026, 16(5), 993; https://doi.org/10.3390/buildings16050993 - 3 Mar 2026
Viewed by 150
Abstract
In addressing the challenge that the settlement behavior of granite residual soil in South China during foundation pit dewatering cannot be fully understood due to its unsaturated characteristics, this study proposes and validates an unsaturated fluid–solid coupling calculation method for dewatering-induced settlement analysis. [...] Read more.
In addressing the challenge that the settlement behavior of granite residual soil in South China during foundation pit dewatering cannot be fully understood due to its unsaturated characteristics, this study proposes and validates an unsaturated fluid–solid coupling calculation method for dewatering-induced settlement analysis. This method is implemented by compiling FISH language code within a finite difference software framework. Validation was carried out by comparing thes simulated groundwater drawdown–time response with the measured drawdown from a field pumping test, demonstrating the improved agreement of the proposed unsaturated coupling approach relative to the conventional coupling scheme. Furthermore, to elucidate the soil settlement mechanisms, a sensitivity analysis of the deformation behavior of granite residual soil during dewatering was performed. The results demonstrate that, compared to the traditional fluid–solid coupling method, the unsaturated fluid–solid coupling method exhibits superior agreement with field dewatering experiments. The sensitivity analysis reveals that the differential settlement observed in the soil surrounding a dewatering well under the same target drawdown is primarily attributed to variations in drainage consolidation time and pore water pressure dissipation. Finally, a normalized analysis correlating the dewatering depth at the well with the resulting soil settlement deformation was conducted, establishing a practical relationship applicable under similar ground conditions and dewatering durations. This analysis provides theoretical guidance for selecting appropriate dewatering schemes during engineering practice. Full article
Show Figures

Figure 1

18 pages, 3343 KB  
Article
Foundation Pit Soil Parameter Inversion and Deformation Prediction Based on ESFOA and Hybrid Kernel LSSVM
by Hongxi Li, Yonghui Su, Zhiping Li and Youliang Zhang
Appl. Sci. 2026, 16(5), 2247; https://doi.org/10.3390/app16052247 - 26 Feb 2026
Viewed by 200
Abstract
During the excavation process of the foundation pit, soil parameters evolve dynamically. In order to improve the accuracy of soil parameter selection in foundation pit engineering and achieve accurate deformation prediction, this paper proposes a displacement inverse analysis method that combines the enhanced [...] Read more.
During the excavation process of the foundation pit, soil parameters evolve dynamically. In order to improve the accuracy of soil parameter selection in foundation pit engineering and achieve accurate deformation prediction, this paper proposes a displacement inverse analysis method that combines the enhanced starfish optimization algorithm (ESFOA) and the hybrid kernel least squares support vector machine (LSSVM). The ESFOA improves the global search capability and convergence accuracy of the starfish optimization algorithm (SFOA) by optimizing the initial population and introducing a hunting mechanism. On this basis, the ESFOA was used to optimize the RBF kernel function width (σ), polynomial kernel coefficient (q), regularization penalty coefficient (c), and kernel function mixing weight (λ) of the hybrid kernel LSSVM model. Samples were obtained through finite element simulation and orthogonal experiments, and the optimized ESFOA-LSSVM model was used to establish the nonlinear mapping relationship between the horizontal displacement of the foundation pit excavation enclosure and the soil parameters. The horizontal displacement monitoring data of the foundation pit retaining structure is used to invert the soil parameters and predict the deformation of the retaining structure under subsequent conditions. The results show that (1) compared with other algorithms, the ESFOA has good global search capabilities and convergence accuracy; (2) the ESFOA-LSSVM model is tested through test samples, and the model has good accuracy and feasibility; (3) the parameters obtained by the inversion can effectively improve the prediction accuracy of foundation pit deformation, and the prediction results are closer to the actual monitoring values. Full article
(This article belongs to the Section Civil Engineering)
Show Figures

Figure 1

23 pages, 4956 KB  
Article
Study on the Effect and Mechanism of a New Capsule Technology on Tunnels Under Multi-Step Excavation
by Bingfeng Xiao, Sujia Liu, Ga Zhang, Yi Xie, Xiaobing Mao and Yijun Zhu
Buildings 2026, 16(4), 827; https://doi.org/10.3390/buildings16040827 - 18 Feb 2026
Viewed by 285
Abstract
With the intensive development of urban underground space, excavations adjacent to existing tunnels have become increasingly common. This study investigates the response of adjacent tunnels and surrounding soil to multi-step foundation pit excavation and the effect and mechanism of a new capsule technology. [...] Read more.
With the intensive development of urban underground space, excavations adjacent to existing tunnels have become increasingly common. This study investigates the response of adjacent tunnels and surrounding soil to multi-step foundation pit excavation and the effect and mechanism of a new capsule technology. Centrifuge model tests and finite element analysis were conducted for models both with and without a capsule. The results show that the soil deformation caused by each excavation step is confined to an influence zone. As the excavation deepens, this influence zone progressively expands. Excavation causes the tunnel to move outward and the retaining wall to rotate clockwise. The results demonstrate that capsule pressurization can effectively reduce the maximum horizontal displacement of the adjacent tunnel by approximately 30–40% compared to the case without reinforcement. Capsule pressurization alters the earth pressure distribution on the retaining wall and reduces tunnel displacement. The effect of the capsule decays with increasing distance from the capsule to the tunnel. The excavation impact propagates to the tunnel via wall–soil and soil–tunnel interactions. Capsule pressurization mitigates the tunnel response by ensuring that the surrounding soil experiences a smaller reduction in horizontal stress and exhibits a higher modulus during subsequent excavation. This enhanced state of the soil produces smaller deformation, which ultimately transfers less of the excavation effect to the tunnel and controls its displacement. The study concludes that the active pressure control offered by the capsule technology is a promising method for protecting existing tunnels during adjacent deep excavations. Full article
(This article belongs to the Section Building Structures)
Show Figures

Figure 1

18 pages, 7010 KB  
Article
Development and Experimental Study of a Novel Diaphragm Wall Joint with Retractable Shear Studs
by Yue Zhang, Changjiang Wang and Xiewen Hu
Buildings 2026, 16(3), 681; https://doi.org/10.3390/buildings16030681 - 6 Feb 2026
Viewed by 294
Abstract
Diaphragm walls are widely used for deep foundation pit support and permanent underground structures. The joints between adjacent panels are critical weak points, significantly influencing the overall deformation and stress distribution of the structure. To address the insufficient shear and tensile capacity of [...] Read more.
Diaphragm walls are widely used for deep foundation pit support and permanent underground structures. The joints between adjacent panels are critical weak points, significantly influencing the overall deformation and stress distribution of the structure. To address the insufficient shear and tensile capacity of existing diaphragm wall joints, this study proposes a novel rigid joint incorporating retractable shear studs. The joint features a straightforward and constructible design, primarily comprising retractable shear studs, H-section steel, and shear stud pop-out limit plates. By withdrawing the limit plates inserted into the H-section steel, the retractable shear studs mounted on the web automatically extend along their axis, penetrating into the adjacent reinforcement cage to form an intrusive lap joint. This mechanism effectively enhances the integrity and load-bearing capacity at the joint. To validate its mechanical performance, large-scale specimens featuring this new joint were fabricated and subjected to shear and tensile tests. The experimental results demonstrate that, compared to traditional H-section steel joints, the peak shear and tensile strengths of the proposed joint are increased by approximately 10 times and 16 times, respectively. These findings fully verify the excellent mechanical performance of the novel diaphragm wall joint structure. Full article
Show Figures

Figure 1

27 pages, 3098 KB  
Article
Research on the Systematic Analysis of Safety Risk in Metro Deep Foundation Pit Construction
by Guoqing Guo, Shuai Han, Chao Tang and Chuxiong Shen
Buildings 2026, 16(3), 634; https://doi.org/10.3390/buildings16030634 - 3 Feb 2026
Viewed by 409
Abstract
With its advantages such as large capacity, punctuality and low environmental impact, the metro has become one of the primary means of alleviating urban traffic congestion. However, safety accidents still occur frequently during the construction of metro deep foundation pits. A review of [...] Read more.
With its advantages such as large capacity, punctuality and low environmental impact, the metro has become one of the primary means of alleviating urban traffic congestion. However, safety accidents still occur frequently during the construction of metro deep foundation pits. A review of domestic and international studies reveals that safety risk management for metro deep foundation pit construction remains insufficient, particularly in terms of comprehensive risk identification, analysis of risk interrelationships and systematic risk assessment. To improve the level of safety risk management in metro deep foundation pit construction, this study analyzes safety risk factors using Chinese word segmentation, AHP, ISM, and MICMAC methods. Based on text mining and literature review, a case database comprising 156 metro deep foundation pit construction safety accidents reports was established and integrated into a unified text corpus. Chinese word segmentation was then performed on the corpus, and through risk interpretation combined with relevant standards and codes, 29 safety risk factors were identified and classified into five categories: technology, management, material, personal and environment. On this basis, 22 main safety risk factors were extracted using the AHP method. The results indicate that management-related factors constitute the most critical type of safety risk. Subsequently, the ISM method was employed to identify the interactions among the main safety risk factors and to construct a five-level hierarchical model, in which the top level contains nine safety risk factors, while the bottom level consists of two factors. Through MICMAC analysis, the safety risk factors were classified into three categories, based on which a safety risk management framework for metro deep foundation pit construction was established, and specific control measures were proposed for six representative safety risk factors. Full article
Show Figures

Figure 1

24 pages, 7500 KB  
Article
Deformation Characteristics and Support Optimization for Deep Excavations in Sandy Cobble Strata Considering Adjacent Sensitive Structures: A Case Study of a Deep Excavation Project in Sichuan Province
by Yang Zhou, Chenglong Zhang, Qilin Zou, Rui Liu, Xiaoping Chen, Huaping Yang, Junhu Shao and Shili Yang
Buildings 2026, 16(3), 541; https://doi.org/10.3390/buildings16030541 - 28 Jan 2026
Viewed by 264
Abstract
As China’s urban underground area grows, deep foundation pit projects in complex geological circumstances, particularly near critical infrastructure, must adhere to tight deformation control guidelines. However, limited research has been conducted on the deformation behavior of internal bracing systems in Sichuan’s sandy cobble [...] Read more.
As China’s urban underground area grows, deep foundation pit projects in complex geological circumstances, particularly near critical infrastructure, must adhere to tight deformation control guidelines. However, limited research has been conducted on the deformation behavior of internal bracing systems in Sichuan’s sandy cobble strata. This research centers on a deep excavation near civil defense facilities in Pujiang County, Chengdu. We investigated the deformation characteristics of retaining piles and internal bracing systems using field monitoring, finite element simulations, and parameter sensitivity analysis, and proposed optimization solutions for the support scheme. Road settlement, pile-head vertical displacement, building settlement, and deep lateral displacement of retaining piles were all monitored in the field at different phases of excavation. MIDAS/GTS was used to generate a 3D finite element model that included bored piles as a contiguous pile wall. The model was verified against monitored data and showed a maximum variation of 3.7%. Parametric studies were conducted to optimize the equivalent stiffness of the contiguous pile wall and the standardized internal bracing system. The findings indicate that the maximum lateral displacement of retaining piles is the primary optimization restriction. Reducing the equivalent stiffness to 0.6t (relative to the baseline thickness t) causes displacement to surpass the warning threshold (35 mm), whereas increasing it to 1.2t or 1.4t limits deformation without incurring significant costs. Case G of the standardized internal bracing system ensures that the maximum pile displacement (21.95 mm) remains below the warning criterion (24.5 mm) while improving constructability. This work elucidates the deformation characteristics of internal bracing systems in sandy cobble strata near sensitive buildings, offering theoretical and practical assistance for comparable projects. Full article
Show Figures

Figure 1

21 pages, 785 KB  
Article
A Study on the Fixed-Point Adjustment Factor of Opposing Horizontal Strutsin Strutted Retaining Structures
by Bo Feng, Jianghong Zhu, Jianping Cai, Yue Cai and Liang Qiu
Buildings 2026, 16(2), 450; https://doi.org/10.3390/buildings16020450 - 21 Jan 2026
Viewed by 219
Abstract
The elastic support stiffness coefficient kR of opposing horizontal struts constitutes a critical parameter in the design of strutted retaining structures for deep excavations. The determination of the fixed-point adjustment coefficient λ serves as a fundamental prerequisite for the quantitative assessment of [...] Read more.
The elastic support stiffness coefficient kR of opposing horizontal struts constitutes a critical parameter in the design of strutted retaining structures for deep excavations. The determination of the fixed-point adjustment coefficient λ serves as a fundamental prerequisite for the quantitative assessment of this stiffness coefficient. To identify the fixed-point location and establish a computational approach for λ, the endpoint displacements of opposing horizontal struts are classified into four distinct scenarios. For each scenario, the relationship between the lateral earth pressures on both sides of the excavation is derived, the support mechanism of the internal strut is elucidated, and the corresponding fixed-point locations of the struts are determined. Utilizing the response curve between the support-point displacement of the retaining structure and the lateral earth pressure, and adhering to the principle of linearization, analytical formulas for λ under the four scenarios are formulated. The proposed method is employed to compute and evaluate the fixed-point adjustment coefficient of the opposing horizontal struts in a case study drawn from the literature, with the results rigorously compared against the existing published data. Furthermore, the λ values for opposing horizontal struts in a metro station excavation project are computed and contrasted with values back-calculated from monitored horizontal displacements of the retaining structure. The findings demonstrate that the proposed method for determining λ is both computationally efficient and practically applicable. The derived λ values can be effectively used to predict internal forces and deformations in retaining structures for asymmetrically loaded deep excavations. This research offers substantial theoretical insights and practical implications for the scientifically informed design and construction of deep excavation support systems. Full article
(This article belongs to the Section Building Structures)
Show Figures

Figure 1

19 pages, 14468 KB  
Article
Kinetics and Potential Mechanisms of LDPE and PBAT Microplastics Biodeterioration by Soil Bacteria Bacillus cereus L6
by Jiayang Hu, Tianyu Liu, Jinpeng Zhang, Yong Yu, Jincai Ma and Yanjun Li
Microorganisms 2026, 14(1), 179; https://doi.org/10.3390/microorganisms14010179 - 14 Jan 2026
Viewed by 490
Abstract
Low-density polyethylene (LDPE) and poly (butylene adipate-co-terephthalate) (PBAT) agricultural films are major components of microplastics (MPs) and their contamination in agriculture due to their difficulty to recycle. However, potential degradation mechanisms of MPs from LDPE and PBAT in agricultural soils are still unclear. [...] Read more.
Low-density polyethylene (LDPE) and poly (butylene adipate-co-terephthalate) (PBAT) agricultural films are major components of microplastics (MPs) and their contamination in agriculture due to their difficulty to recycle. However, potential degradation mechanisms of MPs from LDPE and PBAT in agricultural soils are still unclear. Here, we isolated a strain of Bacillus cereus L6 from long-term agricultural MP-contaminated soil and analyzed its potential biochemical pathways involved in LDPE and PBAT turnover through functional prediction from shotgun genome sequencing. After 28 days of incubation with MPs, Bacillus cereus L6 caused a net mass loss of 0.99% LDPE-MPs/28 days and 3.58% PBAT-MPs/28 days. The surfaces of LDPE and PBAT degraded in bioassays added with Bacillus cereus L6 showed wrinkles, cracks, and pits, accompanied by an increase in roughness. The crystallinity and thermal stability of both LDPE- and PBAT-MPs were decreased and the hydrophobicity of PBAT-MPs was reduced. Whole-genome sequencing analysis showed that Bacillus cereus L6 potentially encoded genes for enzymes related to the biodeterioration of additives in LDPE and PBAT. Moreover, genomic CAZymes predictive analysis showed that genes related to oxygenases and lyases were annotated in the strain L6 Auxiliary Activities family. These findings offer a theoretical foundation for deeper exploration into the degradation and metabolic processes of MPs from discarded agricultural plastics in the environment. Full article
(This article belongs to the Section Environmental Microbiology)
Show Figures

Figure 1

16 pages, 3689 KB  
Article
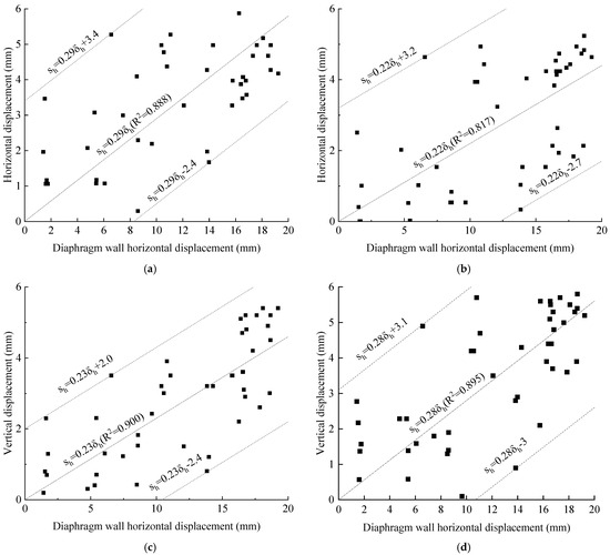
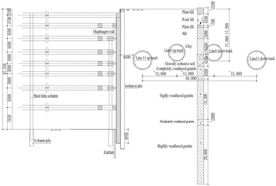
Spatiotemporal Evolution and Deformation Mechanism of Deep Foundation Excavation in Water-Rich Sand Strata: A Comparative Study of Monitoring and Simulation
by Yongming Si, Ying Xiao, Kaiqiang Zhu, Jirong Ran, Dengrui Gao and Tao Yang
Buildings 2026, 16(2), 317; https://doi.org/10.3390/buildings16020317 - 12 Jan 2026
Viewed by 265
Abstract
Deep foundation excavation in water-rich sand strata presents complex deformation characteristics driven by fluid–solid interaction, which distinguishes it from excavations in cohesive soft clay. This study investigates the spatiotemporal evolution and deformation mechanisms of retaining structures through a comparative analysis of field monitoring [...] Read more.
Deep foundation excavation in water-rich sand strata presents complex deformation characteristics driven by fluid–solid interaction, which distinguishes it from excavations in cohesive soft clay. This study investigates the spatiotemporal evolution and deformation mechanisms of retaining structures through a comparative analysis of field monitoring data and 3D numerical simulation, based on a subway station project in Xi’an. While the numerical simulation predicted a continuous “bulging” deformation mode, field monitoring revealed a distinct transition from a “bulging” profile to a “step-like” deformation pattern as the excavation deepened. Quantitatively, while the simulation captured the spatial trend, the measured maximum surface settlement (7.8 mm) exceeded the simulated value (1.2 mm), highlighting the dominant role of seepage consolidation. Detailed analysis indicates that this discrepancy—and the unique step-like evolution—is primarily driven by two mechanisms: the rapid stress relaxation of cohesionless sand during the time lag of support installation, and the superimposed seepage forces induced by continuous dewatering, which are often simplified in standard elastoplastic models. The study further identifies that the vertical displacement of the pile top is governed by the combined effects of basal heave and the “kick-out” deformation at the pile toe. These findings demonstrate that in high-permeability water-rich sand, deformation control depends critically on minimizing the unsupported exposure time of the excavation face. This research provides a theoretical basis for optimizing the spatiotemporal sequencing of excavation in similar geological conditions. Full article
Show Figures

Figure 1

Back to TopTop