Standard Block and Modular Dwelling Designs in Hong Kong’s Public Housing
Abstract
1. Introduction: Public Housing in Hong Kong
2. Standard Block and Dwelling Designs
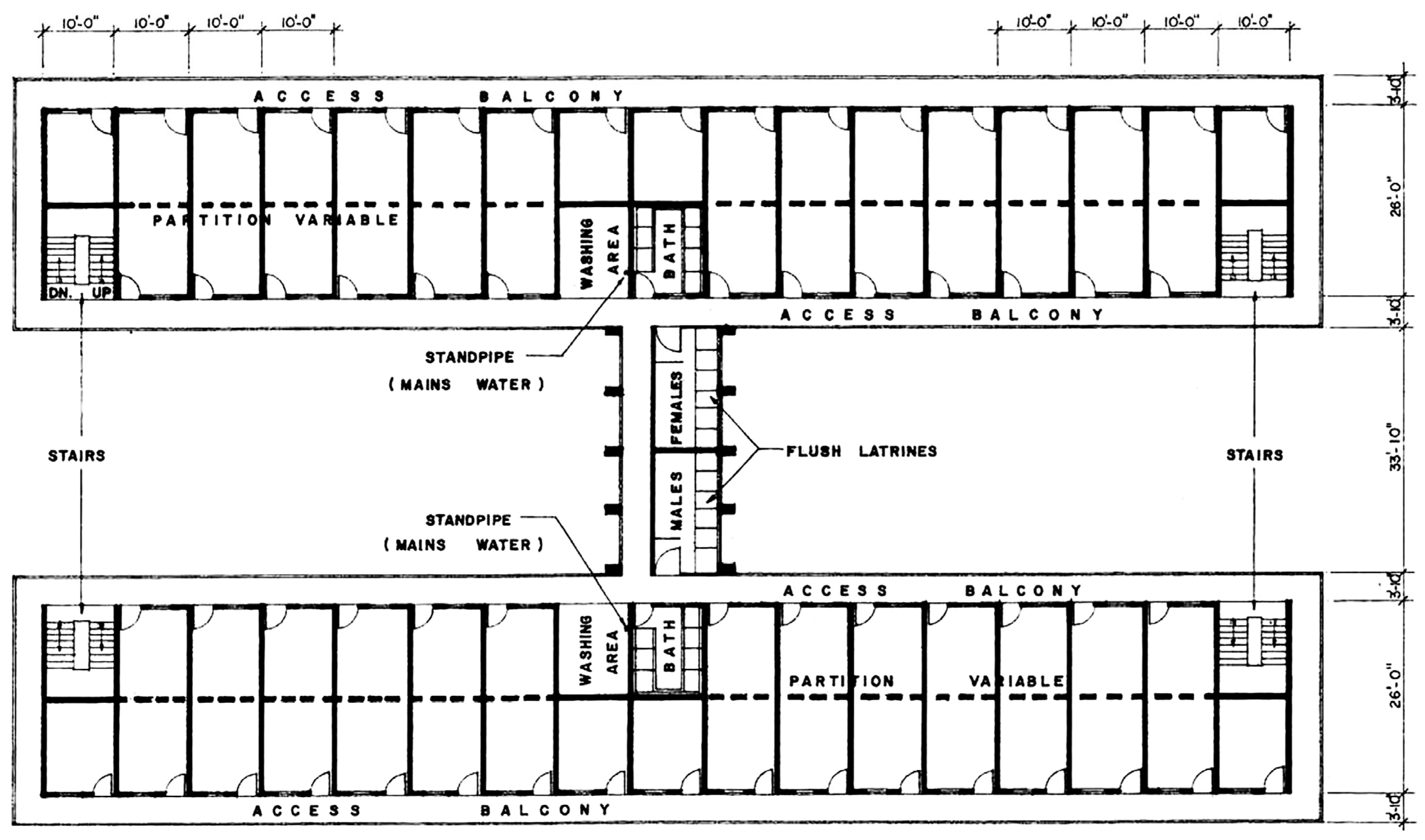
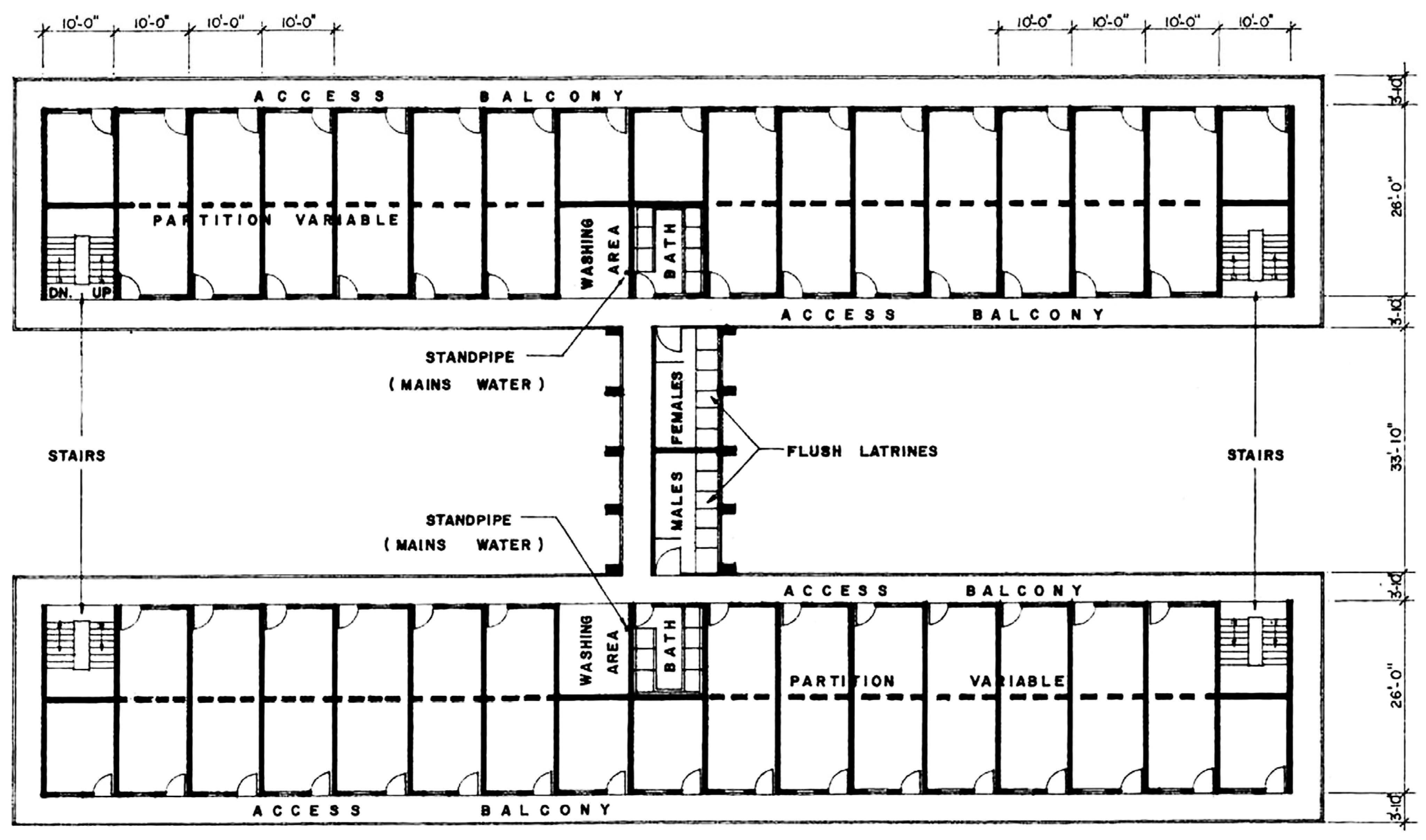
2.1. Basic Public Housing Provision (1954–1973)
2.2. Comprehensive Provision (1973–1987)
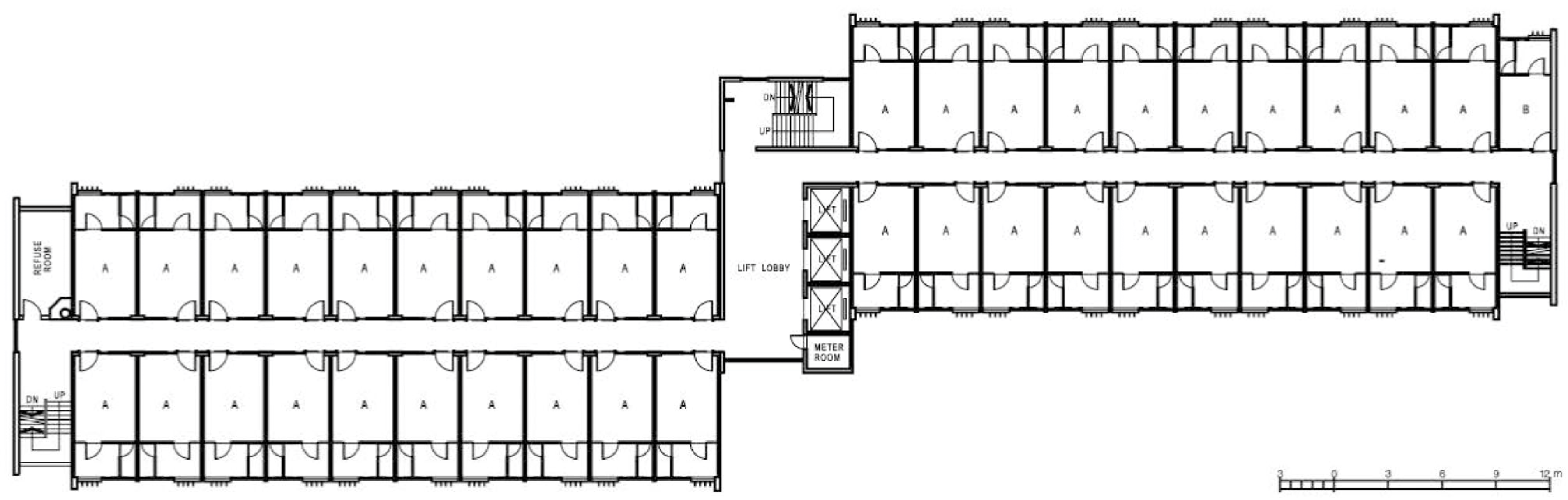
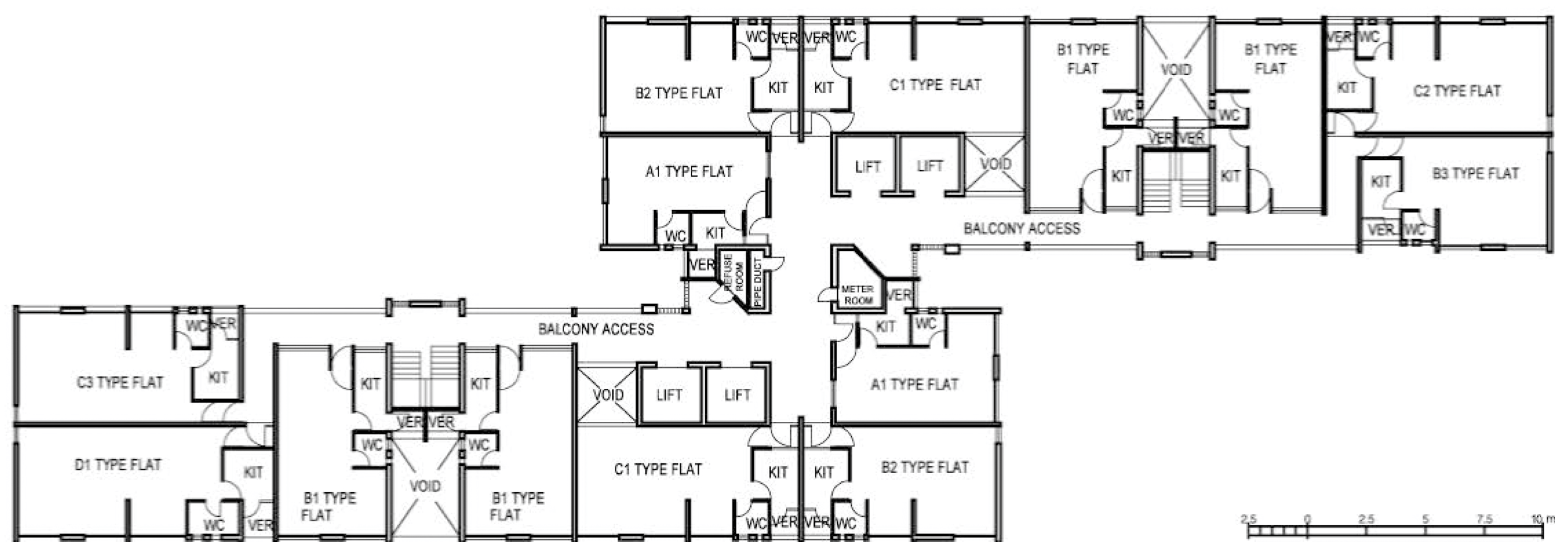
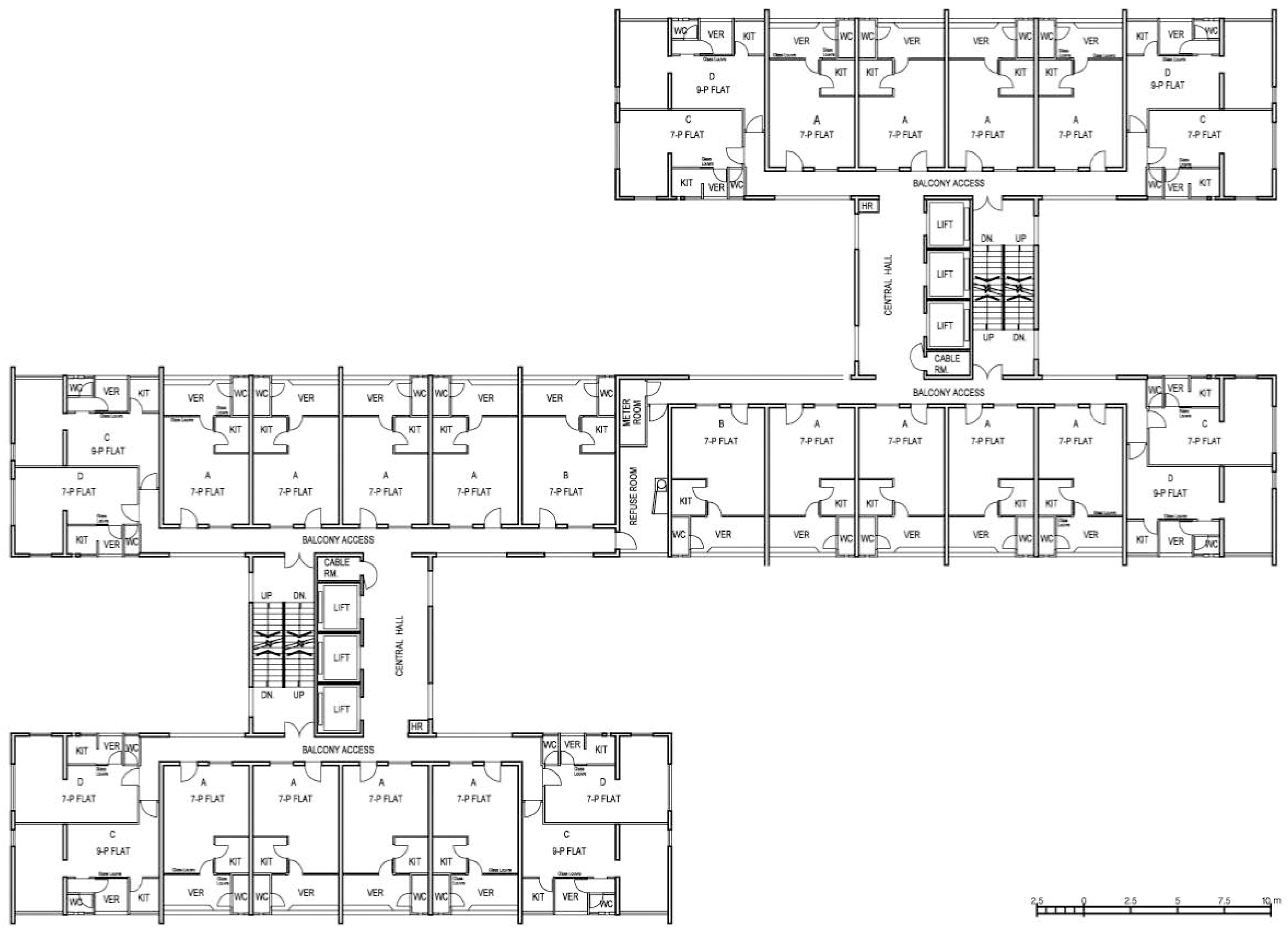
2.3. Home Ownership (1987–2002)
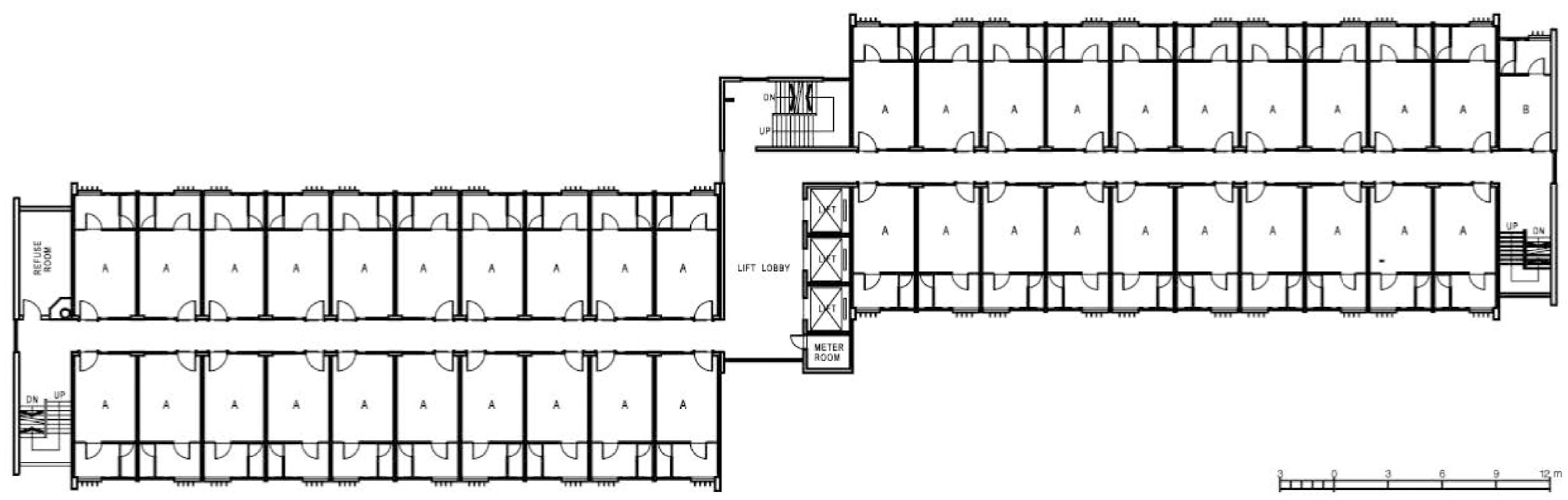
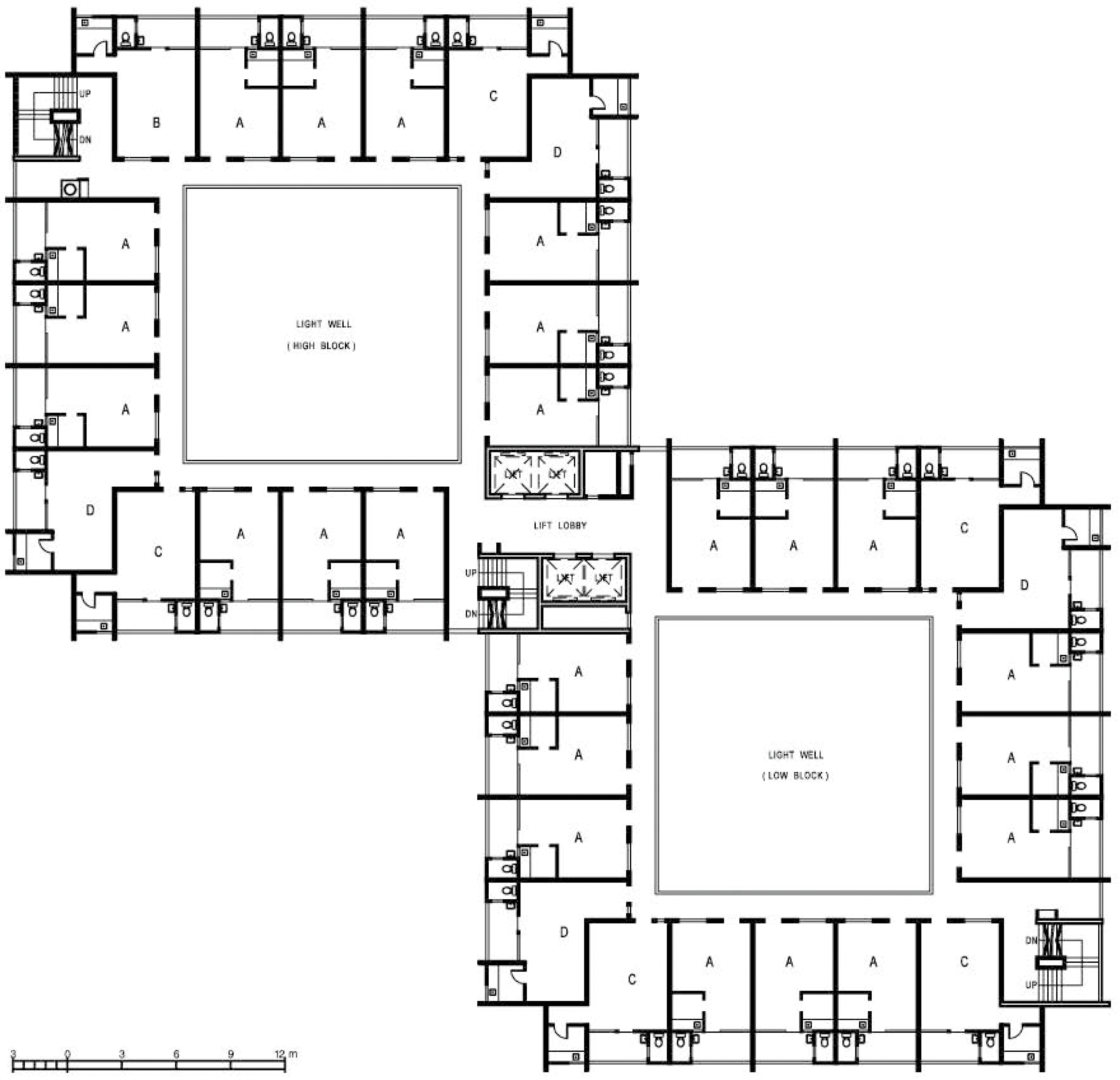
2.4. Modular Design (2002–)
- Type A (1P/2P): IFA 14.1–14.5 m2, SA around 17–17.5 m2—Class A;
- Type B (2P/3P): IFA 21.4–22.0 m2, SA around 26–26.5 m2—Class A;
- Type C (3P/4P): IFA 30.2–31.0 m2, SA around 35–36 m2—Class A;
- Type D (4P/5P): IFA 35–36.1 m2, SA around 41–45 m2—Class B;
- Type E (5P or more): IFA 45 m2, SA around 52–53 m2—Class B.
3. Dwelling Size and Use
3.1. Dwelling Size
3.2. Dwelling Interior and Use
4. Conclusions
Author Contributions
Funding
Institutional Review Board Statement
Informed Consent Statement
Data Availability Statement
Conflicts of Interest
References
- Özer, S.; Jacoby, S. The design of subsidized housing: Towards an interdisciplinary and cross-national research agenda. Hous. Stud. 2024, 39, 297–322. [Google Scholar] [CrossRef]
- Susanto, D.; Nuraeny, E.; Widyarta, M.N. Rethinking the minimum space standard in Indonesia: Tracing the social, culture and political view through public housing policies. J. Hous. Built Environ. 2020, 35, 983–1000. [Google Scholar] [CrossRef]
- Özer, S.; Jacoby, S. Dwelling size and usability in London: A study of floor plan data using machine learning. Build. Res. Inf. 2022, 50, 694–708. [Google Scholar] [CrossRef]
- Clifford, B.; Ferm, J. Planning, regulation and space standards in England: From ‘homes for heroes’ to ‘slums of the future’. Town Plan. Rev. 2021, 92, 537–560. [Google Scholar] [CrossRef]
- Kearns, A. Housing space and occupancy standards: Developing evidence for policy from a health and wellbeing perspective in the UK context. Build. Res. Inf. 2022, 50, 722–737. [Google Scholar] [CrossRef]
- Jacoby, S.; Alonso, L. Home Use and Experience during COVID-19 in London: Problems of Housing Quality and Design. Sustainability 2022, 14, 5355. [Google Scholar] [CrossRef]
- Brown, P.; Newton, D.; Armitage, R.; Monchuk, L. Lockdown. Rundown. Breakdown. The COVID-19 Lockdown and the Impact of Poor Quality Housing on Occupants in the North of England. 2020. Available online: https://www.northern-consortium.org.uk/wp-content/uploads/2020/10/Lockdown.-Rundown.-Breakdown..pdf (accessed on 3 December 2023).
- Tinson, A.; Clair, A. Better Housing is Crucial for Our Health and the COVID-19 Recovery. 2020. Available online: https://www.health.org.uk/publications/long-reads/better-housing-is-crucial-for-our-health-and-the-covid-19-recovery (accessed on 3 December 2023).
- Jayantha, W.M.; Lau, S.S.Y. Floor space per person and housing development: An urban growth approach to estimate housing supply in Hong Kong. Urban Policy Res. 2008, 26, 177–195. [Google Scholar] [CrossRef]
- Housing Bureau; The Government of the Hong Kong Special Administration Region. Housing in Figures 2022. 2022. Available online: https://www.hb.gov.hk/eng/publications/housing/HIF2022.pdf (accessed on 22 November 2023).
- UBS. UBS Global Real Estate Bubble Index 2019; UBS Switzerland AG: Zurich, Switzerland, 2019. [Google Scholar]
- CBRE Research. Global Living 2020; CBRE: Dallas, TX, USA, 2020; Available online: https://cdn2.hubspot.net/hubfs/7049971/Content%20Offers/CBRE-Global-Living-2020.pdf (accessed on 23 November 2023).
- Urban Reform Institute. Demographia International Housing Affordability, 2023 Edition; The Urban Reform Institute and the Frontier Centre for Public Policy: Houston, TX, USA, 2022. [Google Scholar]
- Cheung, W.K.S.; Wong, S.K. Understanding governance of public land sales: An experiment from Hong Kong. Reg. Stud. Reg. Sci. 2019, 6, 607–622. [Google Scholar] [CrossRef]
- Census and Statistics Department. Hong Kong Statistics 1947-67; Govt. Printer: Hong Kong, China, 1969.
- Dwyer, D.J. (Ed.) Asian Urbanization: A Hong Kong Casebook; Hong Kong University Press: Hong Kong, China, 1971. [Google Scholar]
- Abercrombie, P. Hong Kong Preliminary Planning Report; Govt. Printer: Hong Kong, China, 1948.
- Census and Statistics Department. Hong Kong Annual Digest, 1978 Edition; Govt. Printer: Hong Kong, China, 1978.
- Chiu, R.L.H. Analysis of Policy Trends. In Fifty Years of Public Housing in Hong Kong: A Golden Jubilee Review and Appraisal; Yeung, Y.-M., Wang, J., Eds.; The Chinese University Press for the Hong Kong Housing Authority, Hong Kong Institute of Asia-Pacific Studies: Hong Kong, China, 2003. [Google Scholar]
- Yeung, Y.-M.; Wu, M. Introduction. In Fifty Years of Public Housing in Hong Kong: A Golden Jubilee Review and Appraisal; Yeung, Y.-M., Wang, J., Eds.; The Chinese University Press for the Hong Kong Housing Authority, Hong Kong Institute of Asia-Pacific Studies: Hong Kong, China, 2003. [Google Scholar]
- Wai, R.C.C. Design DNA of Mark I: Hong Kong’s Public Housing Prototype; MCCM Creations: Hong Kong, China, 2019. [Google Scholar]
- Commissioner for Resettlement. Annual Departmental Report, Financial Year 1954–55; Government Printer: Hong Kong, China, 1955.
- Hong Kong Housing Authority (HKHA). Memories of Home—50 Years of Public Housing in Hong Kong; HKHA: Hong Kong, China, 2004.
- Hong Kong Housing Authority (HKHA). North Point Estate, Java Road, Hong Kong. Ekistics 1958, 5, 229–232. [Google Scholar]
- Lui, A. Social and Recreational Facilities. In Fifty Years of Public Housing in Hong Kong: A Golden Jubilee Review and Appraisal; Yeung, Y.-M., Wang, J., Eds.; The Chinese University Press for the Hong Kong Housing Authority, Hong Kong Institute of Asia-Pacific Studies: Hong Kong, China, 2003. [Google Scholar]
- Hong Kong Housing Authority. Available online: https://www.housingauthority.gov.hk (accessed on 5 December 2023).
- Leung, M.Y. From Shelter to Home: 45 Years of Public Housing Development in Hong Kong; Hong Kong Housing Authority: Hong Kong, China, 1999.
- Fujimori, R. Evolution of Urban Form in Hong Kong: A Study of Development Controls and High-Density Housing Models. Ph.D. Dissertation, The University of Hong Kong, Hong Kong, China, 2015. [Google Scholar]
- Hong Kong Memory. Estates Constructed by Housing Authority. N.d. Available online: https://www.hkmemory.hk/MHK/collections/public_housing/housing_authority_estates/estates_constructed_by_housing_authority/index.html (accessed on 13 July 2023).
- Dwyer, D.J. Housing Provision in Hong Kong. In Asian Urbanization: A Hong Kong Casebook; Dwyer, D.J., Ed.; Hong Kong University Press: Hong Kong, China, 1971. [Google Scholar]
- Yung, B. An Interplay Between Western and Confucian Concepts of Justice: Development of Hong Kong Housing Policy. Hous. Theory Soc. 2007, 24, 111–132. [Google Scholar] [CrossRef]
- Census and Statistics Department. Preliminary Results of the 1981 Population Census; Govt. Printer: Hong Kong, China, 1981.
- Yeh, A.G.O. Unfair Housing Subsidy and Public Housing in Hong Kong. Environ. Plan. C Gov. Policy 1990, 8, 439–454. [Google Scholar] [CrossRef]
- Hong Kong Housing Authority (HKHA). The First Two Million; HKHA: Hong Kong, China, 1981.
- Turner, B.; Whitehead, C.M.E. Reducing Housing Subsidy: Swedish Housing Policy in an International Context. Urban Stud. 2002, 39, 201–217. [Google Scholar] [CrossRef]
- Lau, K.-Y. Targeting the Needy in Public Rental Housing. In Fifty Years of Public Housing in Hong Kong: A Golden Jubilee Review and Appraisal; Yeung, Y.-M., Wang, J., Eds.; The Chinese University Press for the Hong Kong Housing Authority, Hong Kong Institute of Asia-Pacific Studies: Hong Kong, China, 2003. [Google Scholar]
- Lim, B.; Nutt, T. Planning and Locational Aspects. In Fifty Years of Public Housing in Hong Kong: A Golden Jubilee Review and Appraisal; Yeung, Y.-M., Wang, J., Eds.; The Chinese University Press for the Hong Kong Housing Authority, Hong Kong Institute of Asia-Pacific Studies: Hong Kong, China, 2003. [Google Scholar]
- Census and Statistics Department. 1996 Population By-Census—Main Report; Govt. Printer: Hong Kong, China, 1997.
- Wai, R.; Wang, W.; Chung, T.; Tsang, T.; Lo, R. Home for All: Interview with Rosman Wai on Public Housing. HKIA J. Occupy Hous. 2016, 72, 62–64. [Google Scholar]
- Census and Statistics Department (C&SD). Hong Kong Annual Digest of Statistics, 2001 Edition; C&SD: Hong Kong, China, 2001.
- Census and Statistics Department. Hong Kong Annual Digest of Statistics, 1981 Edition; Govt. Printer: Hong Kong, China, 1981.
- Census and Statistics Department. Hong Kong Annual Digest of Statistics, 1993 Edition; Govt. Printer: Hong Kong, China, 1993.
- Census and Statistics Department (C&SD). Hong Kong Annual Digest of Statistics, 1997 Edition; C&SD: Hong Kong, China, 1997.
- Census and Statistics Department (C&SD). Hong Kong Annual Digest of Statistics, 1999 Edition; C&SD: Hong Kong, China, 1999.
- Census and Statistics Department (C&SD). Hong Kong Annual Digest of Statistics, 2002 Edition; C&SD: Hong Kong, China, 2002.
- Miao, J.; Wu, X.; Zeng, D. Promoting ageing in place in Hong Kong: Neighbourhood social environment and depression among older adults. J. Asian Public Policy 2024, 17, 142–159. [Google Scholar] [CrossRef]
- Transport and Housing Bureau (THB). Legislative Council Panel on Housing: Design of the New Public Housing Flats by the Hong Kong Housing Authority; THB: Hong Kong, China, 2015.
- Buildings Department. Practice Note for Authorized Persons, Registered Structural Engineers and Registered Geotechnical Engineers—Modular Integrated Construction (ADV-36); Buildings Department: Hong Kong, China, 2017.
- Legislative Council Panel on Housing, Modular Flat Design for Public Housing Development of the Hong Kong Housing Authority. 2013. Available online: https://www.legco.gov.hk/yr12-13/english/panels/hg/papers/hg0702cb1-1391-1-e.pdf (accessed on 7 December 2023).
- Census and Statistics Department (C&SD). Hong Kong Annual Digest of Statistics, 2020 Edition; C&SD: Hong Kong, China, 2020.
- Ho, S.-W. A Ricardian interpretation of the provision of public housing services in Hong Kong. Camb. J. Econ. 1992, 16, 207–225. [Google Scholar] [CrossRef]
- Housing Bureau. Housing in Figures 2020. 2020. Available online: https://www.hb.gov.hk/eng/publications/housing/HIF2020.pdf (accessed on 2 December 2023).
- Liu, E.; Wu, J.; Lee, J. Housing Standards of Private Dwellings. 1999. Available online: https://www.legco.gov.hk/yr98-99/english/sec/library/989rp10.pdf (accessed on 4 December 2023).
- Greater London Authority (GLA). Housing in London 2021: The Evidence Base for the London Housing Strategy, 2nd ed.; GLA: London, UK, 2021. [Google Scholar]
- Ng, N. Hong Kong Flats to Get “Even Smaller”, Hitting Quality of Life. South China Morning Post, 17 April 2018. Available online: https://www.scmp.com/news/hong-kong/economy/article/2142165/hong-kongs-small-flats-get-even-smaller-hitting-quality-life/ (accessed on 17 April 2018).
- Census and Statistics Department (C&SD). Hong Kong Population Projections 2020–2069; C&SD: Hong Kong, China, 2020.
- Our Hong Kong Foundation (OHKF). Decisive Moment—Can Hong Kong Save Itself from the Land and Housing Supply Crisis? OHKF: Hong Kong, China, 2021; Available online: https://ourhkfoundation.org.hk/ebook/LH_NEW/Decisive_moment_can_hk_save/LH_Research_Report_2021_ENG-numb/index.html (accessed on 6 December 2023).
- Sullivan, B.; Chen, K. Design for tenant fitout: A critical review of public housing flat design in Hong Kong. Habitat Int. 1997, 21, 291–303. [Google Scholar] [CrossRef]
- EP9-2 Interior Design of Small Units. Available online: https://www.youtube.com/watch?v=FaAXgq5iVqM (accessed on 7 December 2023).
- House Decoration Package. Available online: https://www.spacious.hk/zh-tw/ (accessed on 28 December 2023).
- The Rent for a 164 ft2 Nano Flat in North Point Reached Up to HK$10,800 Per Month. Available online: https://hk.finance.yahoo.com/news/ (accessed on 28 December 2023).
- A Family of Four People in a 200-Foot Nano Building. Available online: https://www.youtube.com/watch?v=hnF7yGBB1WE (accessed on 7 December 2023).
- Nicol, C.; Hooper, A. Contemporary Change and the Housebuilding Industry: Concentration and Standardisation in Production. Hous. Stud. 1999, 14, 57–76. [Google Scholar] [CrossRef]
- Census and Statistics Department (C&SD). Demographic Trends in Hong Kong 1986–2016; C&SD: Hong Kong, China, 2017.














| Mark I | Mark II | Mark III | Mark IV | Mark V | Mark VI | Old Slab | Twin Tower | ||
|---|---|---|---|---|---|---|---|---|---|
| General | Period | 1954–1964 | 1961–1964 | since 1964 | since 1965 | since 1970 | 1960s–1980s | 1970s–1980s | |
| Programme | Resettlement estate (1954–1973) | PRH/TPS | PRH | ||||||
| Av. household size | 1961: 4.4 | 1966: 4.7 | 1971: 4.5 | ||||||
| Dwelling | Person | 5 | 4–6 | 4–8 | |||||
| Size (m2) | 11.15 | 11.15 or 28.8 | 14–21 | 14–21 | 14–27 | 36–46 | |||
| No. of types | 1 | 2 | 2 | 3 | 4 | 3 | 2 | 4 | |
| Av. living space | Minimum 2.23 m2/person | Minimum 3.25 m2/person | |||||||
| Partitioning | Single room, no partitions | ||||||||
| Features | Balcony, electricity | Self-contained unit, balcony, electricity, water | (plus cross-ventilation) | ||||||
| Block | Access | Deck access | Double-loaded corridor | Single-loaded | |||||
| Units per floor | 2 slabs: 60 | 2 slabs: 68 | ca. 40 | ca. 43 | ca. 48 | ca. 58 | 2 slabs: 41–44 | 34 | |
| No. of floors | 6–7 | 7–8 | 8 | 16 | 8 or 15 | 20 or 23 | |||
| H Block | Household | I Block | New Slab | Linear | Trident I | Trident II | Trident III | Trident IV | ||
|---|---|---|---|---|---|---|---|---|---|---|
| General | Period | 1976–1980s | 1980s–2000s | mid-1980s | 1980s–1990s | 1980s | 1980s–mid-1990s | |||
| Programme | PRH/TPS | PRH | PRH/TPS | |||||||
| Av. household size | 1981: 3.9 | 1986: 3.7 | 1991: 3.4 | |||||||
| Dwelling | Person (P) or bedroom (B) | 1–6 | 1/2P; 2/3P; 1B; 2B | 4–6P | 3–4P | 4–6P | ||||
| Size (m2) | 40 | IFA 17.6; 22.9; 31.7; 41.8 | 36–55 | 28 | 35–49 | |||||
| No. of types | 4 | 2 | 1 | 4 | 1 | 2 | 4 | 5 | ||
| Av. living space | Minimum 3.25 | Minimum 4.25 m2/person | Minimum 7 m2/person | |||||||
| Partitioning | Single room, no partitions | Multi-room, self-partitioning | ||||||||
| Features | Self-contained unit, balcony | Self-contained unit, some for elderly with larger kitchen | Self-contained unit | Self-contained unit, no balcony | Self-contained unit, cross-ventilation, no balcony | Self-contained unit, no balcony | Self-contained unit, separate window to all rooms | |||
| Block | Access | Single-loaded | Site-specific block design | Double-loaded corridor | Single-loaded | Central lift core, double-loaded corridor | ||||
| Units per floor | 15 | 27 | 26 | 2 slabs: 14 | 36 | 24 | 18 | |||
| No. of floors | 27 | 21 | 27 | 35 | ||||||
| Cruciform A | Cruciform B | Flexi 1–3 | Windwill | New Cruciform | Harmony | Concord | |||
|---|---|---|---|---|---|---|---|---|---|
| General | Period | 1976–1980s | 1980s–mid-2000s | 1988–mid-2000s | 1990s–mid-2000s | ||||
| Programme | HOS | PSPS | HOS | PRH/HOS | HOS | ||||
| Av. household size | 1991: 3.4 | 1996: 3.3 | 2001: 3.1 | ||||||
| Dwelling | Person (P) or bedroom (B) | 3B | 2B | 2–3B | 1–2B | 1–3B | 1P unit/1–2P; 1B unit/2–3P; 2B unit/3–4P; 3B/5–7P | 2B; 3B | |
| Size (m2) | SA 43–52 | SA 38–52 | SA 37–60 | SA 34–80 | SA 37–63 | 17; 35; 43; 52 | SA 47–61 | ||
| No. of types | 1 | 2 | 6 | 3 | 3 | 2 each | 2 | ||
| Av. living space | Minimum 7 m2, actual up to ca. 10 m2/person | ||||||||
| Partitioning | Separate rooms | Multi-room, self-partitioning | Separate rooms | ||||||
| Features | Self-contained unit with separate windows to all rooms | ||||||||
| Block | Access | Central core (no corridor) | Central lift core, double-loaded corridor | Central core | |||||
| Units per floor | 8 | 16 | 6–10 | 10 | 16 or 18 | 8 | |||
| No. of floors | 27; 37; 39 | ||||||||
| MFD 2008 | MFD 2011 | MFD 2015 | |||
|---|---|---|---|---|---|
| General | Programme | PRH | PRH/HOS | ||
| Av. household size | 2006: 3 | 2011: 2.9 | 2016: 2.8 | ||
| Dwelling | Person (P) or bedroom (B) types | 1–2P; 2–3P; 1B; 2B | A: 1–2; B: 2–3P; C: 3–4P; D: 4–5P | E: 5 + P | |
| Size (m2) | 14–14.5; 21.4–22; 30.2–31; 37–38 | 14–14.5; 21.4–22; 30.2–31; 35.36.1 | 45 | ||
| No. of types | 2 each | 2; 2; 3; 3 | 2 each | 1 | |
| Av. living space | Minimum 7 m2, actual up to ca. 13 m2/person (<5.5 m2 = overcrowded) | ||||
| Partitioning | Multi-room, self-partitioning | ||||
| Amenities, services | Self-contained unit with separate windows to all rooms (since 2013: universal design) | ||||
| Block | Access and floors | Site-specific block design | |||
Disclaimer/Publisher’s Note: The statements, opinions and data contained in all publications are solely those of the individual author(s) and contributor(s) and not of MDPI and/or the editor(s). MDPI and/or the editor(s) disclaim responsibility for any injury to people or property resulting from any ideas, methods, instructions or products referred to in the content. |
© 2024 by the authors. Licensee MDPI, Basel, Switzerland. This article is an open access article distributed under the terms and conditions of the Creative Commons Attribution (CC BY) license (https://creativecommons.org/licenses/by/4.0/).
Share and Cite
Wang, L.; Cheng, J.C.; Mazan, W.; Jacoby, S. Standard Block and Modular Dwelling Designs in Hong Kong’s Public Housing. Architecture 2024, 4, 89-111. https://doi.org/10.3390/architecture4010007
Wang L, Cheng JC, Mazan W, Jacoby S. Standard Block and Modular Dwelling Designs in Hong Kong’s Public Housing. Architecture. 2024; 4(1):89-111. https://doi.org/10.3390/architecture4010007
Chicago/Turabian StyleWang, Lu, Jingru Cyan Cheng, Wojciech Mazan, and Sam Jacoby. 2024. "Standard Block and Modular Dwelling Designs in Hong Kong’s Public Housing" Architecture 4, no. 1: 89-111. https://doi.org/10.3390/architecture4010007
APA StyleWang, L., Cheng, J. C., Mazan, W., & Jacoby, S. (2024). Standard Block and Modular Dwelling Designs in Hong Kong’s Public Housing. Architecture, 4(1), 89-111. https://doi.org/10.3390/architecture4010007

