You are currently viewing a new version of our website. To view the old version click .
Engineering Proceedings
  • Proceeding Paper
  • Open Access

27 September 2023

Test of Slip-Critical Connection System with Embedded Nuts for Aluminum Bridge Application †

,
,
and
1
Centre D’expertise et D’innovation sur L’aluminium-AluQuébec, Montreal, QC H3A 1K2, Canada
2
WSP Canada, Montreal J4Y 0E3, QC, Canada
3
S.B.B. Inc., Blainville, QC J27 0B5, Canada
*
Author to whom correspondence should be addressed.
This article belongs to the Proceedings The 15th International Aluminium Conference

Abstract

Aluminum is a common material in construction and relatively new in infrastructure, such as bridges. One advantage of aluminum is the production of complex geometry extrusions, which optimizes the mass of components. In order to assemble aluminum deck panels, a mechanical assembly method must be used. One solution is to access the fasteners (nuts) in closed areas of the extrusions. As was found, to embed the nuts in an aluminum flat bar, the goal was to assure non-slip grip at maximum torque and minimum fabrication cost. Full-scale physical tests were performed to verify the compliance with standardized turn-of-nut tightening requirements. The good test results will help introduce this solution in future aluminum bridge construction projects and improve bridge standards.

1. Introduction

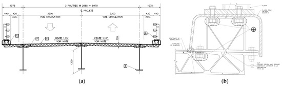
Aluminum is a common material in construction and relatively new in infrastructures, such as bridges. One of the advantages of aluminum is the production of complex geometry extrusions, which optimizes the mass of components. In order to assemble aluminum deck panels together with steel barriers, a mechanical assembly method must be used. For panels fabricated using welded hollow-profile extrusions, a solution must be found to access the fasteners (nuts) in closed areas of the extrusions, as shown in Figure 1 [1]. A solution was found to embed the nuts in an aluminum flat bar with three different hole profiles.
Figure 1. Detail drawings: (a) section view of bridge structure; (b) detail view of barrier anchoring system [1].
The goal was to assure non-slip grip at maximum torque and minimum fabrication cost. Full-scale physical tests were performed to verify the compliance with the standardized turn-of-nut tightening requirements. The good test results will help introduce this solution in future aluminum bridge construction projects and improve bridge standards.
In recent years, there has been significant studies and optimizations of short- and medium-span bridges constructed with steel and concrete, resulting in a thorough understanding of their design principles and alignments with current bridge standards.
Currently, there is a significant focus on research aimed at developing lightweight and corrosion-resistant aluminum bridges in Quebec. This is particularity important, as aluminum production plays a higher share in the province’s economy.
A group of researchers at Laval University conducted both numerical optimization and physical testing of an aluminum extrusion deck [2]. WSP was subsequently selected, through a tender process, to develop detail plans and specifications for a full-scale prototype bridge in the Montmorency Forest at Laval University [1].
The bridge will be constructed on Laval University property and was designed according to MTQ’s (Quebec Ministry of Transportation) and Highway Bridges Design Code CSA/S6:19’s standards and practices to facilitate its eventual integration into MTQ’s roadway network. This bridge will be the first GMAW-welded aluminum deck on a steel girder bridge in Canada [3].

2. Assembly Solution Description

The Montmorency bridge utilizes standard MTQ 210A-type steel barriers that have already undergone crash testing and approval. The MTQ 210A guardrail type shown in Figure 2 consists of HSS 127x127x6.4, which are assembled on W150x37 posts and welded to a 32 mm thick anchor plate.
Figure 2. MTQ 210A steel barrier: (a) profile view; (b) front view; (c) anchorage detail [2].
These plates are anchored using 22 mm (7/8 in) bolts, according to the ASTM F3125 standard (Figure 2). The anchoring system must meet CSA S6:19 requirements when integrating these pre-approved barriers. WSP has verified that the anchoring system geometry and resistance are adequate [1,2].
The anchoring system shown in Figure 1 features the barriers with base plates that sit on a steel wheel stopper and are bolted to an aluminum anchoring device, which is, in turn, bolted to the deck. The system allows for impact loads to be transferred from the barriers to the deck [1,2]. The bolts should be tightened according to CSA S6:19 in order to obtain the needed torque using the turn-of-nut method [4] (Figure 3).
Figure 3. Barrier installation using the turn-of-nut method for tightening the bolts (Photo Adobe stock).
Tightening the A325 bolts with respective nuts represents a significant challenge, since the extrusions are hollow sections welded longitudinally, making it impossible to access the nut while tightening the bolt, and, for this specific project, the extrusions can reach up to 10 m in length, as shown in Figure 1.
To address this issue, the designer proposed an innovative method called the “bolting plate”. This method involves using aluminum plates of the same thickness as the nut height and of the same length as the extrusion. In this plate, special-shaped holes are machined, in which the nuts are inserted by pressing them. The nuts need to be contained before tightening with the bolts in order to assure there is no slip under torque, as shown in Figure 1b.
The bolting plate is inserted in the extrusion and is guided by the small flange features of the extrusion, as shown in Figure 1b. This approach enables the application of a torque on the bolt, using the turn-of-nut method, since the nut cannot rotate, resulting in a slip-critical bolted connection compliant to the CSA S6 code [4].

3. Turn-of-Nut Tightening Method and CSA S6 Code Requirements

The installation procedure for the ASTM F3125 Grade A325 and Grade A490 bolts involves the use of the turn-of-nut method using the following main steps:
  • Align the holes in the joint;
  • Place enough bolts to ensure full contact between the joint parts, and snug-tighten them (the tightness obtained after a few impacts of an impact wrench or the full effort of a person using an ordinary spud wrench) to bring the connected plies into firm contact;
  • Place the bolts in any remaining open holes and snug-tighten them as well;
  • Once all bolts are snug-tight, each bolt joint should be further tightened by a specified amount of relative rotation dependent upon bolt length-related diameter. For example, for a length of up to four diameters, the bolt supplementary rotation is 1/3.
  • The order of bolt tightening should progress from the most rigid part of the joint to its free edges;
  • During the operation, the part not turned by the wrench should not rotate [4].
This method is based on the value of the preload bolt. The value of the torque is obtained by turning the nut a certain additional angle relative to the bolt position. This will produce the stretching of the bolt, and the result will be the clamping force desired.
The formula to determine this angle is, as shown in ref. [5]:
θ = 360 × F t × L B / ( E × l )
where:
θ is the turn angle of the nut in degrees;
F t is the preload (required axial stress) in psi (MPa);
L B is the effective bolt length and includes the contribution of the bolt’s section area and the ends (bolt head and nut height) in inches (mm);
E is the modulus of elasticity in psi (MPa);
l is the lead of the thread helix in inches (mm).
The values of the angle of the nut rotation indicated in CSA S6 are shown in Table 1.
Table 1. Nut rotation from the snug-tight condition [4] *.

4. Selection of Hole Topology (Hexagonal/Oblong) for Fabrication and Assembly Methods for Testing

The effectiveness of the chosen method, which involves using a bolt plate to embed the nut and tighten the bolts without direct access to the nuts, needs to be tested to ensure its compliance with the code requirements, specifically when following the turn-of-nut method. The machining topology and dimensions of the hole are necessary to accommodate the nuts and the washers. The goal is to retain the nuts by embedding them into the bolting plate in the most economical machining topology and with the least nut surface coating damage to prevent galvanic corrosion.
With the objective of achieving this goal, a test set-up was designed, and three different topologies for the machined nut seating area were proposed:
  • Solution (S1): hexagonal machining with minimal radii of 1/16″ (1.6 mm) and a seating wall inclination of 0.5°;
  • Solution (S2): hexagonal machining with minimal radii of 1/16″ (1.6 mm) and no seating wall inclination;
  • Solution (S3): oblong machining with minimal radii of 1/16″ (1.6 mm) and no seating wall inclination, as shown in Figure 4.
    Figure 4. Three different types of machining, with interference between the nut and the flat bar, marked in red.
The machining dimensions of the hole should accommodate the nuts and allow them to be embedded in the flat bar material so as not to lose them during the handling of the assembly process, and, not to slip during the tightening operation.
Specific to the project, for a 7/8″ (22 mm) bolt diameter, the wrench opening measured on the nuts (grade A563, galvanized) had an average of 1.414″ (35.92 mm), and 0.010″ (0.254 mm) clearance is added to the hole size, making it easier to center the nut before being pressed.
In the case of S1, in order to increase interference, the walls were tapered 0.5°, and the interference was found on six corners. The machining radius was bigger than the nut radius, resulting in the biggest interference of all three cases. The machining took a lot of time and required a special tool.
In the case of S2, the interference was based only on the six corner radii and required less machining time and a standard tool.
Lastly, in the case of S3, the oblong machining assured interference only for corners, obtaining a more economical solution.
In all cases, a recess was machined to receive the washer, 0.140″ (3.5 mm), with less depth than the washer thickness of 0.180″ (4.5 mm), resulting in contact between the washer and the lower component. This was to avoid contact with the flat bar surface, as shown in Figure 5a. A future solution would be to keep the washer in the manipulation process.
Figure 5. (a) Position of the washer and the nut embedded in the flat bar; (b) assembly set with a 2.5″ (63.5 mm) length; (c) assembly set with a 3.75″ (95.3 mm) length.
In this specific project, the bolting plate was used in two places. First location: an aluminum anchoring extrusion was connected with the bridge deck. Second location: a steel wheel guard, a steel support post of the barrier, and an aluminum anchoring extrusion were bolted together.
In both cases, two washers were used, the first on the bolt head side and the second on the nut side. In order to have the same project conditions on the test, the materials (6061-T6 for aluminum and 300 W for steel parts) and the thickness of the parts were respected, as shown in Figure 5b,c.
The 7/8″ (22 mm) bolt diameter had two bolt lengths: 3.75″ (95 mm) and 2.5″ (64 mm), as shown in Figure 5b,c.
Each bolt length needed a turning angle of, respectively, 1/3 and 1/2, as shown in Table 1.

5. Test Preparation

To perform the test, six flat bars were machined for S1, S2, and S3 solutions and for the two-type assemblies. Each flat bar had four identical holes, as shown in Figure 6.
Figure 6. Sets of machined flat bars (photos courtesy S.B.B. Inc.).
In order to embed the nuts in the aluminum flat bar holes, an estimation of the necessary press force to insert the nut in the flat bar hole was performed according to the formula [6]:
F = L × g × R m
where:
F is the punching force (kN);
L is cutting contour length (mm) (equal, in this case, with red contour, as shown in Figure 4);
g is the thickness (mm);
R m is the shear strength (kN/mm2).
The values of pressing force calculated were:
-
4.7 t (0.41 mm gap, interference nut/flat bar on 2.13 mm height) for S1;
-
3.4 t for S2 (interference only on six hexagon corners);
-
2.3 t (interference only on four points with the oblong hole) for S3.
A 10 t press was chosen. The nuts were pressed using a jig to guide them in the first stage, as shown in Figure 7a. In order to have the upper surface of the nut at the same level as the washer seat, as shown in Figure 5a, in the second stage, the nut was pressed directly, as shown in Figure 7b.
Figure 7. (a) Nut-pressing operation using a jig; (b) second nut-pressing operation; the nut upper surface should be at the same level as the washer seat.
The result of the nut pressing was aluminum accumulation in the corners of the holes because of the interference of the nut/flat bar, where the nut acts similar to a punch, as shown in Figure 8a. This affects the quality of the assembly because:
Figure 8. (a) Aluminum accumulation in the hole corners; (b) burr-removal operation using a chisel (photos courtesy S.B.B. Inc.).
  • Firstly, the position and full contact between the washer and the nut will not be adequate;
  • Secondly, the corners of the nut lose the zinc anti-corrosion layer, and it can initiate galvanic corrosion between aluminum and steel.
The material accumulation could be easily removed mechanically with a chisel, as shown in Figure 8b. The first observation regarding the three machining solutions was that the amount of burrs was minimal in the case of the third solution with the slotted hole, resulting in minimal zinc removed area, therefore making this solution the favorite one. Additionally, the third solution had the most economical machining cost of the three solutions (less operation time and tooling costs).

6. Performing the Test

The installation of the bolts, nuts, and washers is performed in conformity with the turn-of-nut steps in A10.1.6.7 [4].
The first operation is to bolt all parts involved and grip the pack with a vise tool, as shown in Figure 9a.
Figure 9. (a)Assembly of the pack to test; (b) snug-tightening operation; (c) the gap obtained after the snug-tightening operation (photos courtesy S.B.B. Inc.).
The second operation should be the snug-tightening of the bolts, meaning that all the parts in the connection are pulled into firm contact by the bolts in the joint, and the bolts area tightened sufficiently to prevent the removal of the nuts without a wrench, as shown in Figure 9b. The red circle in Figure 9b shows that there is a gap demonstrating that the nut is tightening the washer against the aluminum part.
The tightening should be performed progressing from the most rigid part of the joint to its free edges. In the connection, two washers are requested. The one on the side of the nut should create a gap between the washer seat and the part on the nut side equal to the washer’s thickness, as shown in Figure 9c. This gap is easier to observe and measure and is equal to the difference between the washer seat depth and the washer thickness, as shown in Figure 9b using the red mark.
The third operation is to mark the bolt head for both positions relative to the upper part before and after the final tightening, as shown in Figure 10a. To observe the result of the test, the nut position should be marked to the relatively lower part. That determines if the nut slipped, as shown in Figure 10b.
Figure 10. Marking operation for: (a) bolt head beginning and end positions, (b) nut positions (photos courtesy S.B.B. Inc.).
The fourth operation is to finally tighten the bolts. The high torque value is necessary for a 7/8″ (22 mm) bolt diameter, which was used in this specific project. To estimate the value of the torque, the following formula is used [5]:
T = K × F i × D F i = 0.9 × A t × S p S p = 0.85 × S y
where:
T is the wrench torque;
K is a coefficient depending on bolt material, coating, and size; K = 0.2 in this case;
D is the nominal bolt diameter;
F i is the preload;
Fi = 0.9 × A t × S p ;
A t is the tensile stress area of the bolt, and A t = 0.462   i n 2 (section on diameter resulting from the average value between the pitch diameter and the minor diameter);
S p is the proof strength of the bolt,
S p = 0.85 × S y
S y = 85   k s i is the yield strength,
The result of the torque value:
T = 515   f t l b s   ( 698   N m )
This torque can be achieved with a special socket wrench power tool called the impact wrench, as shown in Figure 11a. The tool used in the test had adjustable torque, and for each set, all four bolts were tightened up to the final angle position indicated by the marks, as shown in Figure 11b.
Figure 11. (a) Tightening at torque with the impact wrench tool; (b) final bolt head angle positions.
The last operation performed is the visual inspection on the nuts side to observe eventual nut rotation, which can affect the final value of the torque, as shown in Figure 12. Additionally, the flat bar is inspected to observe any side deformations or cracks in order to prove that the dimensions, height, and width are correctly chosen for the bolt plate.
Figure 12. Visual inspection of the nuts changing positions and eventual deformation cracks of the flat bar (photos courtesy S.B.B. Inc.).

7. Test Results, Conclusions, and Future Steps

For this new method of assembly, the test results showed that the torque was achieved in conformity with the turn-of-nut tightening method for all three types of machining, including S1, S2, and S3, a shown in Figure 13a–c.
Figure 13. Results of the test for the three types of hole topologies: (a) S1; (b) S2; (c) S3 (photos courtesy S.B.B. Inc.).
The slot machining (solution S3) was obviously the best candidate from an economical point of view (machining time, tooling costs, and necessity of burr removal) and, at the same time, had a minimal area of surface where the zinc coating of the nut had to be removed in the pressing operation, resulting in less risk of galvanic corrosion between the nut and the flat bar, as shown in Figure 14 (red-marking area).
Figure 14. The burrs for the three types of hole topologies: (a) S1; (b) S2; (c) S3 (photos courtesy S.B.B. Inc.).
The future steps are:
  • Finding a method to retain the washer in the flat bar seat;
  • Finding a method to drill the holes in long aluminum extrusions (10–15 m); the holes should be related to the flat bar nut positions;
  • Testing the galvanic corrosion between the aluminum parts and the fasteners.
The different versions of the concept could be used in a future aluminum bridge project to connect the deck panel extrusions together or to connect these to aluminum girders for a composite action, as shown in Figure 15a,b.
Figure 15. Different types of bolt-plate concepts: (a) Connection of two deck panel extrusions; (b) connection of deck panel extrusions and aluminum girders [7].

Author Contributions

Conceptualization, P.B., J.E. and M.F. methodology, P.B., J.E., M.F. and B.C.; validation, P.B., J.E. and B.C.; formal analysis, P.B., J.E., M.F. and B.C.; investigation, P.B., J.E., M.F. and B.C.; writing—original draft preparation, P.B.; writing—review and editing, J.E., M.F. and B.C. All authors have read and agreed to the published version of the manuscript.

Funding

This research was funded by AluQuébec.

Institutional Review Board Statement

Not applicable.

Data Availability Statement

Not applicable.

Acknowledgments

We acknowledge the financial support of AluQuébec and S.B.B. Inc. for the fabrication of the test samples, as well as for performing the tests.

Conflicts of Interest

The authors declare no conflict of interest.

References

  1. Université Laval/WSP. Devis et Plans Projet Construction d’un Pont avec Platelage d’aluminium à la Forêt Montmorency; Université Laval/WSP: Laval, QC, Canada, 2020. [Google Scholar]
  2. Annan, C.-D.; Cormier, M.; Fafard, M. Anchorage design solution for attaching an approved traffic barrier to multi-void aluminum bridge decks. ASCE J. Struct. Eng. 2021, 147, 0402109. [Google Scholar] [CrossRef]
  3. Cusson, B. Modern Applications and Construction Details for Aluminum Bridges. In Proceedings of the 15th International Aluminum Conference, Québec City, QC, Canada, 11–13 October 2023. [Google Scholar]
  4. Canadian Standards Association. CAN/CSA-S6:19 Canadian Highway Bridge Design Code; Canadian Standards Association: Toronto, ON, Canada, 2019; M9W 1R3. [Google Scholar]
  5. Industrial Press, Inc. Machinery’s Handbook, 26th ed.; Industrial Press, Inc.: New York, NY, USA, 2000. [Google Scholar]
  6. Stefan, R. Cold Pressing Processes and Tools; Data collection for design; Facla Publishing House: Timişoara, Romania, 1987. [Google Scholar]
  7. Cusson, B.; Lacasse, C. Retour d’expérience sur la Conception d’un pont avec Platelage d’aluminium à la Forêt Montmorency; WSP: Montreal, QC, Canada, 2021. [Google Scholar]
Disclaimer/Publisher’s Note: The statements, opinions and data contained in all publications are solely those of the individual author(s) and contributor(s) and not of MDPI and/or the editor(s). MDPI and/or the editor(s) disclaim responsibility for any injury to people or property resulting from any ideas, methods, instructions or products referred to in the content.

Article Metrics

Citations

Article Access Statistics

Multiple requests from the same IP address are counted as one view.