Modernism in the Mediterranean: Omiš, Croatia, Urban and Architectural Development of the Dalmatian City in the Second Half of the 20th Century
Abstract
:1. Introduction
2. Historical Development of Omiš
3. Project South Adriatic
4. Motive for the Research, Methodology and Objectives
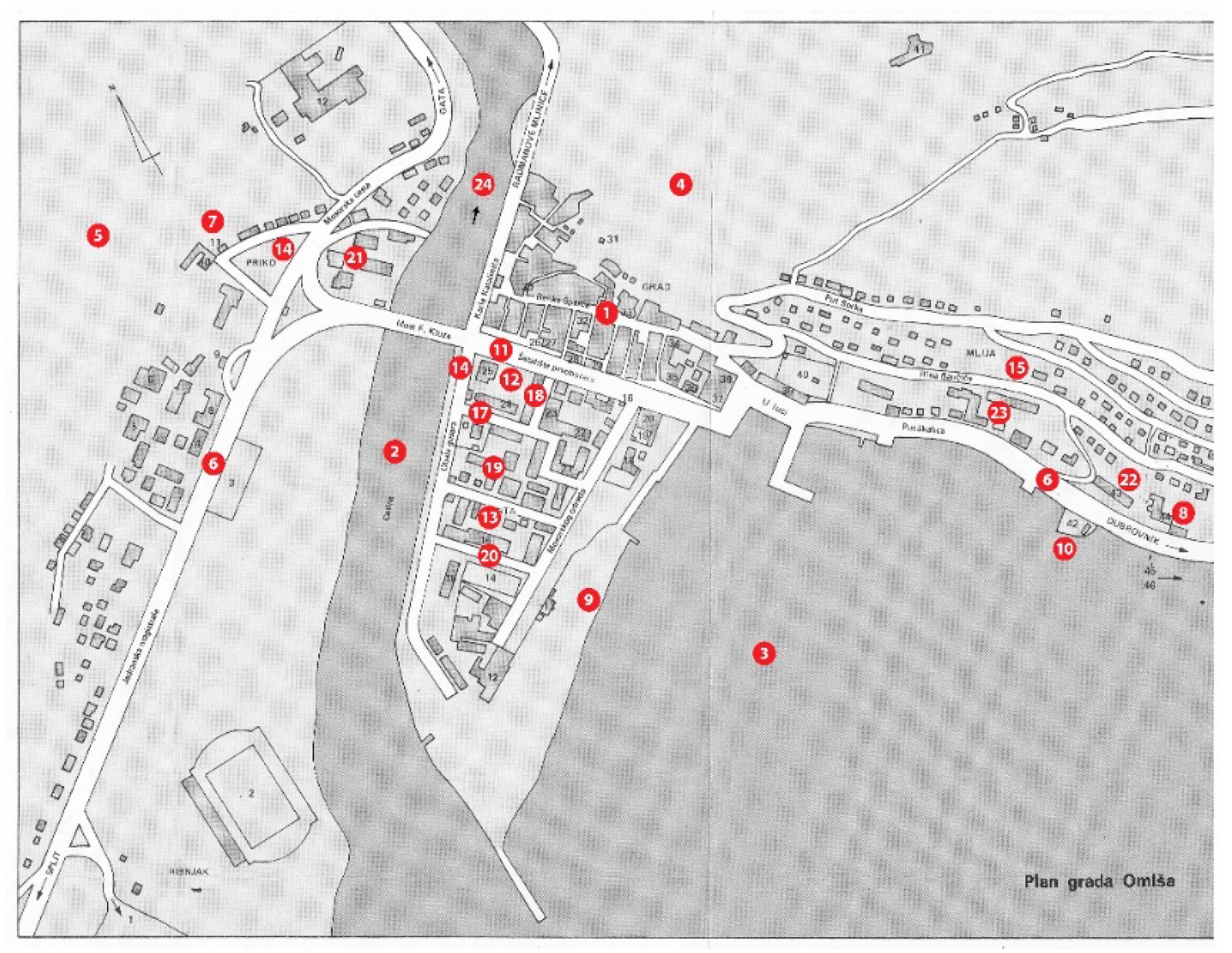
5. Punta Area
5.1. Prince Miroslav Square, Block of Flats by Architect Josip Vojnović (1962), Block of Flats and “Dalma” Department Store by Architect Frano Gotovac (1968)
5.2. Residential Blocks at Punta (Architect Ivo Radić, 1978–1982)
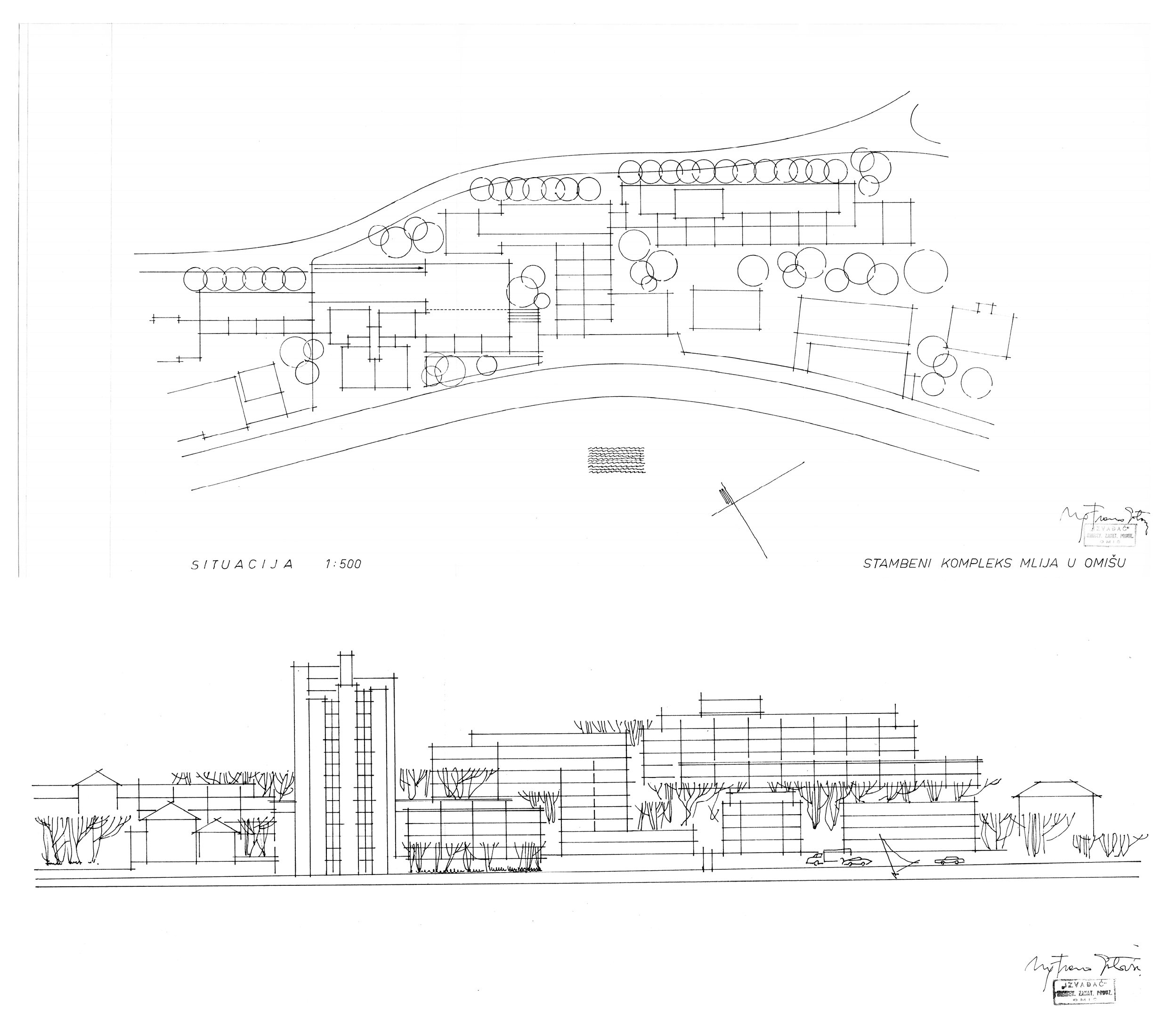
6. Mlija Area
6.1. Primary Healthcare Centre (Architect Zoja Dumengjić, 1957–1959, Realization of Stage One)
6.2. Residential Area at Mlija (Architect Frano Gotovac, 1968, 1969–1972)
7. Priko Area
Residential Area in Priko (Architect Frano Gotovac, 1969, 1972–1974)
8. Conclusions
Author Contributions
Funding
Data Availability Statement
Conflicts of Interest
References and Notes
- Republic of Croatia, Ministry of Culture and Media, Immovable Cultural Assets Inscribed od the UNESCO World Heritage List. Available online: https://min-kulture.gov.hr/izdvojeno/kulturna-bastina/nepokretna-kulturna-bastina/nepokretna-kulturna-dobra-upisana-na-unesco-ovu-listu-svjetske-bastine/7244 (accessed on 20 March 2023).
- Čovjek i Prostor, Serial Publication, from 1954, Croatian Chamber of Architects: Zagreb, Croatia. Available online: https://uha.hr/dzi.php?zi=CIP (accessed on 27 March 2023).
- Arhitektura: Monthly Magazine for Architecture, Urbanism and Applied Art. Serial Publication, from 1947, Chamber of Architects: Zagreb, Croatia. Available online: https://uha.hr/dzi.php?zi=Arhitektura (accessed on 27 March 2023).
- Oris: Magazine for Architecture and Culture of Living. Arhitekst: Zagreb, Croatia, from 1999. Available online: http://oris.hr/ (accessed on 27 March 2023).
- Fundamentals Catalogue; Absorbing Modernity: 1914–2014. Koolhaas, R., Ed.; 2014 Architecture Biennale, Marsilio, Venice, 2014. Available online: https://www.oma.com/publications/fundamentals-catalogue (accessed on 27 March 2023).
- MoMA: Toward a Concrete Utopia: Architecture in Yugoslavia, 1948–1980. 15 July 2018–13 January 2019. Museum of Modern Art in New York (MoMA): New York, NY, USA. Available online: https://www.moma.org/calendar/exhibitions/3931 (accessed on 27 March 2023).
- Kovačić, V. Urbanistic Development and Architecture. In Omiš and Poljica; Domljan, Ž., Ed.; The City Museum and the Omiš Tourist Board: Omiš, Croatia, 2006; pp. 213–241. [Google Scholar]
- Kovačić, V. Omiš—Development of the Old Settlement. Master’s Thesis, University of Zagreb—Faculty of Architecture, Zagreb, Croatia, 1987. [Google Scholar]
- Vojnović, I. Conservation Elaborate for Refurbishment of Fošal in Omiš; Office of the Authorized Architect Ivo Vojnović: Split, Croatia, 2008. [Google Scholar]
- The Archives of the City of Omiš, Omiš, 6 Fošal, Minutes of the Seventh Session of the Omiš Municipality Assembly, held on 7 November 1958, item: Social plan of economic development of the Omiš Municipality from 1957 to 1961.
- The Archives of the City of Omiš, Omiš, 6 Fošal, Minutes of the Eighteenth Session of the Omiš Municipality Assembly, held on 16 October 1957.
- The Archives of the City of Omiš, Omiš, 6 Fošal, Minutes of the Fifth Session of the Omiš Municipality Assembly, held on 28 April 1958, item: Decision on social plan of the Omiš Municipality for 1958.
- The Archives of the City of Omiš, Omiš, 6 Fošal, Minutes of the Twenty-seventh Session of the Omiš Municipality Assembly, held on 5 July 1966, item: Draft program of the regional plan of the Omiš Municipality, June 1965.
- Bartulović, V. Cetina Region from the End of the World War Two to the Beginning of the Homeland War. Ph.D. Thesis, University of Split, Faculty of Humanities and Social Sciences, Split, Croatia, 2018. [Google Scholar]
- The Archives of the City of Omiš, Omiš, 6 Fošal, Minutes of the Twenty-seventh Session of the Omiš Municipality Assembly, held on 22 December 1961, item: Social plan of economic development of the Omiš Municipality from 1961 to 1965.
- The Archives of the City of Omiš, Omiš, 6 Fošal, Minutes of the Ninth Session of the Omiš Municipality Assembly, held on 28 January 1959, item: Decision on general guidelines and program for residential construction in the area of the Omiš Municipality and Decision on directing and rational designing of residential construction in the area of the Omiš Municipality.
- Vojnović, J. Technical and Financial Guidelines of a Standard Apartment; Municipal Housing Fund: Split, Croatia, 1962. [Google Scholar]
- Directions for Construction of “Split 3”; Company for the Construction of Split—PIS: Split, Croatia, 1968.
- Action Program for the Realization of Construction of “Split 3”/Second Fase of Preparation for Construction; Company for the Construction of Split—PIS: Split, Croatia, 1968/1969.
- Zorić, M. Residantial Objects—Split 3/Project Program; Company for the Construction of Split—PIS, Association of construction companies: Split, Croatia, 1971. [Google Scholar]
- Zorić, M. Project Program of Residantial Objects “Split 3”; Company for the Construction of Split—PIS, Association of construction companies: Split, Croatia, 1972. [Google Scholar]
- Directions for the Construction of Residential Buildings for the Needs of the JNA (Yugoslav People’s Army); State Secretariat for National Defence—Construction administration: Belgrade, Serbia, 1964.
- Regional Plan; URBS; Marasović, T. (Eds.) Urban Planning Institute of Dalmatia—Split: Split, Croatia, 1973; p. 49. [Google Scholar]
- Mattioni, V. Adriatic Projects: Projects of the South and Upper Adriatic: 1967–1972; Urban planning Institute of Croatia: Zagreb, Croatia, 2003. [Google Scholar]
- Bosel, C.; Kalogjera, B. Regional Plan of Split, Shankland Cox and Associates, London and Urbanistički Zavod Dalmacije, Split. 1970.
- Ciborovski, A.; Marasović, M. Project “South Adriatic”—Example of Complex Planning, Čovjek i prostor, XIV/173, Zagreb, Croatia, p. 6, 14. 1967. Available online: https://arhitekti.eindigo.net/?pr=iiif.v.a&id=10888&tify={%22pages%22:[6],%22view%22:%22info%22} (accessed on 20 March 2023).
- The Archives of the City of Omiš, Omiš, 6 Fošal, Minutes of the Twelfth Session of the Omiš Municipality Assembly, held on 24 September 1968, item: Preliminary Urban Plan “Omiš 1990”.
- Perković Jović, V. Architect Frano Gotovac; University of Split—Faculty of Civil Engineering, Architecture and Geodesy: Split, Croatia, 2015; Available online: https://www.bib.irb.hr/643491 (accessed on 25 January 2023).
- Barišić Marenić, Z. Architect Zoja Dumengjić; UPI-2M Plus and University of Zagreb—Faculty of Architecture: Zagreb, Croatia, 2020; Available online: https://www.bib.irb.hr/1112146 (accessed on 25 January 2023).
- Urban Plan for Punta. 2010. Available online: https://omis.hr/wp-content/uploads/2022/12/Odredbe-2010-13.pdf (accessed on 5. July 2021).
- Spatial Plan of the City of Omiš. 2007. Available online: https://omis.hr/wp-content/uploads/2023/01/PPUG-2a.pdf (accessed on 15. March 2023).
- The Archives of Vojnović family, Split, 1 Mihaljević Street, List of projects of architect Josip Vojnović which he personally created.
- National Archives in Split, HR-DAST-119 Urban Planning Institute of Dalmatia—Split, sign. 2.7., 275/po Residential-commercial building type URBS-1, Omiš, 1959.
- Interview with the tenants of buildings in 10 Fošal Street, Vladimir Nazor Street (address numbers 2, 4, 6, 8, 10, 12, 14) and Obala gusara Street (address numbers 2, 3) in Omiš, 8 March 2023.
- Interview with engineer Josip Vlahović in Omiš on 17 May 2008, 14 July 2010, 15 March 2023 and 22 March 2023. Josip Vlahović is a construction engineer, former employee of the construction companies “Izvađač” from Omiš and “Konstruktor” from Split. At the beginning of the 1970s, at the invitation and persuasion of architect Frano Gotovac, Vlahović started working for the Project Bureau of the construction company “Konstruktor” from Split. The office was founded by architect Frano Gotovac (after leaving “Izvađač” from Omiš, where he had worked for two years) who successfully managed it for many years. From the late 1960s until today, engineer Vlahović has been involved in the development of Omiš. He has built a vast number of construction projects designed by architects and employees of “Konstruktor” from Split, Frano Gotovac, Ranko Ružić and Stanislav Mladinić. Engineer Vlahović is from Omiš and has had strong ties with the town during all his private and professional life. Interviews with him have been very useful since he is a good connoisseur of the social and economic conditions of the City of Omiš during the time when he participated in its construction.
- Jure Kaštelan High School Archive, Omiš, 2 King Tomislav Square: Project of reconstruction and adding of the second floor.
- Interview with school employees of Jure Kaštelan High School at 2 King Tomislav Square and employees of Lovro pl. Matačić Primary Music School at 1 Punta Street in Omiš, 9 March 2023.
- Hydroelectric Power Plant “Zakučac”, Omiš archive: Partially preserved project of the Primary Music School.
- The Archives of Gotovac family, Split, Hrvatske mornarice 1i, detailed design of the Department store “Dalma” T.D. 33/66, 1966.
- Darovan Tušek’s archive, List of technical journals of company “Projektant”, 1967, no. 16.
- Interview with the tenants of buildings in Vladimir Nazor Street (address numbers 3, 5, 7, 9, 7, 9, 11) and Renko Šperac Street (address numbers 7, 9, 11) in Omiš, 9 March 2023.
- The Archives of the City of Omiš, Omiš, 6 Fošal, detaild design of the building T.D. 19/72, 1972.
- City of Omiš, Protocol, Omiš, 5 King Tomislav Square, building permit numbers of buildings in the area of Punta: Building in 12 Joko Knežević Street (UP/I-04-1710/72).
- Interview with the tenants of buildings in Joko Knežević Street (address numbers 1, 12), Punta Street (address numbers 4, 5) and Ivan Raos Square (address numbers 1–3) in Omiš, 10 March 2023.
- National Archives in Split, HR-DAST-119 Urban Planning Institute of Dalmatia—Split, sign. 2.7., 831-po-IV Residential-commercial building Punta Omiš, 1978.
- Interview with the tenants of buildings in Fra Stjepan Vrlić Street (address numbers 2, 11, 17, 19, 21, 29, 39, 31, 33, 35, 37, 41, 43) in Omiš, 11 March 2023.
- The Archives of the City of Omiš, Omiš, 6 Fošal, Minutes of the III. Session of the Omiš Municipality Assembly, hold on 4 December 1957, nationalization of the land for construction of workers’ housing above the Omiš cemetery.
- City of Omiš, Protocol, Omiš, 5 King Tomislav Square, building permit numbers of buildings in the area of Mlija: Buildings in 2, 11, 17 Fra Stjepan Vrlić Street (UP/I-04-6585/58), and building in 9 Skalice Way (UP/I-04-548/70).
- Museum of the City of Zagreb, 20 Opatička Street, Zagreb; Collection of Architectural Documents; Legacy of the architects Zoja and Selimir Dumengjić; Zoja Dumengjić legacy; folder no. 147.
- The Archives of the City of Omiš, Omiš, 6 Fošal, detaild design of the building T.D. 1/67 PO, 1967.
- Interview with the tenants of buildings in Skalice Way (address numbers 9, 10, 11) and Fra Stjepan Vrlić Street (address numbers 4, 6, 8, 10, 12, 14, 16, 18) in Omiš, 11 March 2023.
- The Archives of the City of Omiš, Omiš, 6 Fošal, detaild design of the building T.D. 7/69, 1969.
- Interview with the tenants of buildings in Glagoljaška Street (address numbers 8, 9), Cetinska Road (address numbers 2, 4, 6, 8, 10, 12, 14, 16, 18) in Omiš, 13 March 2023.
- City of Omiš, Protocol, Omiš, 5 King Tomislav Square, building permit numbers of buildings in the area of Priko: Buildings in 2, 4 Cetinska Road (UP/I-04-679/71 and UP/I-04-979/74), building in 2, 3 Četvrt Vrilo (UP/I-04-235/75), building in 5 Četvrt Vrilo (UP/I-04-94/77), building in 8, 9, 10 Četvrt Vrilo (UP/I-04-2007/81), building in 10, 11, 12, 13 Četvrt Žarko Dražojević (UP/I-04-736/82), building in 14, 15 Četvrt Žarko Dražojević (UP/I-04-1814/85), building in 6, 7, 8, 9 Četvrt Žarko Dražojević (UP/I-04-361-03/89-02/03), building in 1, 2, 3 Četvrt Žarko Dražojević (UP/I-04-361-03/91-02/15).
- I. MI. Veterans’ flats. Slobodna Dalmacija: Split, Croatia, XXX, 8614, 1972., p. 2.
- Interview with architect Stanislav Mladinić in Split, 25 June 2009 and 17 March 2023. Stanislav Mladinić was an employee of the Project Office of “Konstruktor”, a construction company from Split, from its foundation until the company’s closure in the mid-1990s after the Homeland War. He succeeded Gotovac in the management of the office and successfully led the bureau until its termination. Mladinić designed several buildings in the Priko—Vrilo area in Omiš and together with architect Frano Gotovac created an urban plan for the area.
- Interview with Miranda Tipić, office clerk from the Administrative Department for Construction and Spatial Planning—Omiš Branch in Omiš on 15 March and 21 March 2023. Office clerk Tipić has been working on issuing building permits within the Omiš area for many years. She resides in Omiš, so she is familiar with all construction works performed in the town in the last 20 years.
- Interview with the tenants of buildings in Četvrt King Zvonimir (address numbers 1, 2, 3, 4, 5, 6, 7, 8) in Omiš, March 13, 2023.
- Interview with the tenants of buildings in Četvrt Vrilo (address numbers 1, 2, 3, 4, 5, 8, 9, 10) in Omiš, March 14, 2023.
- Interview with the tenants of buildings in Četvrt Žarko Dražojević (address numbers 1, 2, 3, 6, 7, 8, 9, 10, 11, 12, 13,14, 15) in Omiš, 14 March 2023.
- Interview with architect Ante Kuzmanić in Split, 5 March 2023. Ante Kuzmanić is an architect who was an employee of the Project Bureau “Konstruktor”, a construction company from Split, from the mid-1980s until the bureau ceased operations in the mid-1990s. He built a residential building in the Priko-Vrilo area in the early 1990s. As an employee of “Konstruktor”, he personally knew the main actors of the construction of Omiš, hence the conversation with him was of great importance.
- Urban Plan for Punta. 2010. Available online: https://omis.hr/wp-content/uploads/2022/12/10-13.pdf (accessed on 5 July 2021).
- The Archives of the City of Omiš, Omiš, 6 Fošal, Minutes of the Third Session of the Omiš Municipality Assembly, held on 4 December 1957, item: Decision on establishing sites for residential and communal construction and development of public areas and for other construction work for public needs.
- Giedion, S. Space, Time, Architecture: The Growth of a New Tradition; Građevinska Knjiga: Belgrade, Serbia, 1969. [Google Scholar]
- Vojnović, J. Rationalization and evolution of residential and communal construction in the processes of planning, organization and programming. Ph.D. Thesis, University of Zagreb—Faculty of Architecture, Zagreb, Croatia, 1978. [Google Scholar]
- National Archives in Split, HR-DAST-119 Urban Planning Institute of Dalmatia—Split, sign. 2.7., 289-id Dormitory of vocational school students, 1960.
- Gotovac, F. Commercial Facility in Omiš; Arhitektura—Urbanizam: Belgrade, Serbia, 1968; pp. 49–51, 53–54. [Google Scholar]
- Frampton, K. Modern Architecture: A Critical History; Kralj-Štih, A., Ed.; Globus nakladni zavod, Biblioteka Posebna izdanja: Zagreb, Croatia, 1992. [Google Scholar]
- Gotovac, F. Urban-Architectural Chaos; Slobodna Dalmacija: Split, Croatia, 1988; XLIV, 13486; p. 12. [Google Scholar]
- Gotovac, F. Dictatorship Program: (Subjective) Author’s Reflections on Tender “Krvavice”—Šibenik; Čovjek i prostor: Zagreb, Croatia, 1982; XXIX, 10(355); pp. 28–29. [Google Scholar]
- Gotovac, F. The Power of the Kiosk; Slobodna Dalmacija: Split, Croatia, 1987; XLIV, 13040; p. 14. [Google Scholar]
- Tender for Preliminary Urban and Architectural Solutions for Fošal in Omiš. Available online: https://d-a-s.hr/objave/omis/ (accessed on 29 January 2023).
- The Archives of the City of Omiš, Atomic Shelter and Business Object “Block Punta”; Omiš, Inžinjering project: Zagreb, Croatia, 1988.
- Uchytil, A.; Barišić Marenić, Z.; Kahrović, E. Lexicon of Architects—Atlas of 20th Century Croatian Architecture; University of Zagreb—Faculty of Architecture: Zagreb, Croatia, 2011; pp. 182–185. [Google Scholar]
- Tušek, D. A Lexicon of Split Modern Architecture; University of Split, Faculty of Civil Engineering, Architecture and Geodesy: Split, Croatia, 2018. [Google Scholar]
- Split 20th Century Architecture. A Guidebook; Tušek, D. (Ed.) University of Split, Faculty of Civil Engineering, Architecture and Geodesy: Split, Croatia, 2011. [Google Scholar]
- Popić, N. Ivo Radić. In Thoughts on Protecting Modern Architecture; Juras, B., Ed.; Društvo arhitekata Splita: Split, Croatia, 2012; pp. 109–135. [Google Scholar]
- Šerman, K. Context, Play and Sign. Residential Building, Laginja Street 7–9, Zagreb, 1958–1962; Arhitektura, Udruženje Hrvatskih Arhitekata: Zagreb, Croatia, 2005; LIV, 1(217); pp. 27–48. [Google Scholar]
- Hans, I. European Architecture Since 1890; SUN: Amsterdam, The Netherlands, 2011. [Google Scholar]
- José Antonio Coderch—La Barceloneta. Available online: https://darquitectura.tumblr.com/post/188536277502/jos%C3%A9-antonio-coderch-la-barceloneta (accessed on 30 March 2023).
- Zevi, B. History of Modern Architecture I.: From William Morris to Alvar Aalto: Space-Time Research; Roth-Čerina, M., Ed.; Golden marketing–Tehnička knjiga, University of Zagreb–Faculty of Architecture: Zagreb, Croatia, 2006. [Google Scholar]
- Alvar Aalto: Between Humanism and Materialism; Reed, P. (Ed.) The Museum of Modern Art: New York, NY, USA, 1998. [Google Scholar]
- The Archives of the City of Omiš, Minutes of the Fifteenth Session of the Omiš Municipality Assembly, held on 20 February 1969, item: Regulation of the Residential Block Mlija in Omiš.
- Babić, I. Settlements around Fortresses in Dalmatia; Radovi OOUR Prirodoslovno matematičkih znanosti i studija odgojnih područja University of Split—Faculty of Philosophy in Zadar: Split, Croatia, 1989; Volume 4, pp. 51–64. Available online: https://www.bib.irb.hr/1090595 (accessed on 25 January 2023).
- The Archives of the City of Omiš, Minutes of the Ninth Session of the Omiš Municipality Assembly, held on 22 December 1969, item: Preliminary Design the of Residential Area “Between the Two Bridges” in Priko, Omiš.
- The Pritzker Architectural prize. 2021 Pritzker Prize Winners: Anne Lacaton and Jean-Philippe Vassal. 2021. Available online: https://www.pritzkerprize.com/laureates/anne-lacaton-and-jean-philippe-vassal (accessed on 5 July 2021).
- Plejić, R. Influence of Prague School on the Architecture of Modernism in Split. Ph.D. Thesis, University of Zagreb, Faculty of Architecture, Zagreb, Croatia, 2003. Available online: https://lbrary.foi.hr/m3/kdetaljia.asp?B=403&sqlx=14011&ser=&sqlid=403&css=&F=1&U=pleji%E6 (accessed on 10 March 2023).
- Ivanišin, K. On Some Theoretical Hypothesis Published in the Magazine Arhitektura from 1947 on; Arhitektura: Zagreb, Croatia, 1988; p. 031. Available online: https://arhitekti.eindigo.net/?pr=iiif.v.a&id=11202&tify={%22pages%22:[32,33],%22panX%22:1.669,%22panY%22:1.213,%22view%22:%22info%22,%22zoom%22:1.413 (accessed on 22 March 2023).
- “Vladimir Nazor” Award. Available online: https://min-kulture.gov.hr/o-ministarstvu/djelatnosti/nagrade-u-kulturi/nagrada-vladimir-nazor/16565 (accessed on 26 March 2023).
- Premerl, T. Selimir Dumengjić 1903–1983 (In Memoriam); Čovjek i prostor: Zagreb, Croatia, 1983; XXX, 12(369); p. 4. [Google Scholar]
- Bjažić Klarin, T. Ernest Weissmann: Društveno Angažirana Arhitektura 1926–1939; Croatian Academy of Sciences and Art, Croatian Museum of Architecture: Zagreb, Croatia, 2015. [Google Scholar]
- De Jonge, W. Sustainable Renewal of the Everyday Modern. J. Archit. Conserv. 2017. 23/1-2: Renewing Modernism 62–105. Available online: https://www.tandfonline.com/doi/full/10.1080/13556207.2017.1326555 (accessed on 20 April 2023). [CrossRef]
- Radiant City Le Corbusier, UNESCO World Heritage. Available online: https://tourisme-marseille.com/en/fiche/radiant-quote-le-corbusier-marseille/ (accessed on 26 March 2023).
- Gallery of Immovable Cultural Goods of City of Zagreb. Available online: http://www1.zagreb.hr/galerijakd.nsf/c31dd4a135787898c1256f9600325af4/a2b45020b1edb917c1257f3e00492fa6?OpenDocument, (accessed on 26 March 2023).
- DOCOMOMO International Mass Housing Archive: Croatia; Edinburgh DataShare College of Arts, Humanities & Social Sciences Edinburgh College of Art Edinburgh School of Architecture and Landscape Architecture (ESALA) DOCOMOMO International Mass Housing Archive: Croatia View Item Vitić. Available online: https://datashare.ed.ac.uk/bitstream/handle/10283/4110/National%20Bank%20Apts%20Laginjina%209%20%281%29.JPG?sequence=74&isAllowed=y (accessed on 24 March 2023).
- Šegvić, N. The State of the Situation, One Point of View, 1945–1985; Hržić, M., Ed.; Arhitektura: Zagreb, Croatia, 1986; XXXIX, 196-199; pp. 118–280. [Google Scholar]
- Council of Europe: Fourth European Conference of Ministers Responsible for the Cultural Heritage (Helsinki, 30–31 May 1996). Available online: https://rm.coe.int/fourth-european-conference-of-ministers-responsible-for-the-cultural-h/16808fde14 (accessed on 5 July 2021).






























| PUNTA AREA | |
|---|---|
![]() | |
| 1. | Residential building with a passage in Fošal Street |
![]() | |
| Author | Josip Vojnović, Urban Planning Bureau, Split |
| Years (date of commission—date of completion) | 1959/1960 |
| Address in Omiš | 10 Fošal |
| Construction and materials | Reinforced concrete |
| Technique | System of transverse walls |
| Size and height | Ground plan surface of the building approximately 17.70 m × 10.70 m, five storey building |
| Other/former name (if different) | / |
| Original use/Current use (if different) | Residential building |
| Current condition/interventions | Building in a good condition. The originally covered entrance to the building is a now an enclosed space. |
| State of preservation | The building is not protected by the Law on Protection of Cultural Monuments. The building is protected merely by the planning protection measures for cultural monuments. The building is located within the protected area of Omiš, zone B*. For any construction work on the building, it is necessary to obtain prior consent of the relevant Conservation Department [30] (article 6). * The Spatial Plan of the City of Omiš from 2007 defined two protection zines of the urban area of the city of Omiš: zone A (zone of well preserved and particularly valuable historical structures) and zone B (zone of varying degrees of preservation and value of historical structures). Buildings along Fošal Street numbered 1, 2, 8, 9 are in the zone B protection area [31]. |
| Contractor company | Unknown |
| Investor | Hydroelectric Power Plant “Split”, Split |
| Bibliography/sources | The building project has not been preserved. The year of the project is listed in the List of projects of architect Josip Vojnović [32]. Information about the author and the year of construction was obtained through the oral testimony of the residents of the building [33]. |
| 2. | Residential-commercial building in Fošal Street |
| Studied work 1 | ![]() |
| Author | Josip Vojnović, Urban Planning Bureau, Split |
| Years (date of commission—date of completion) | 1959–1962 |
| Address in Omiš | 2, 4, 6, 8, 10 Joko Knežević Street |
| Construction and materials | Reinforced concrete |
| Technique | System of transverse walls |
| Size and height | Ground plan surface of the building approximately 62.20 m × 14.40 m, four-storey building with superstructure |
| Other/former name (if different) | / |
| Original use/Current use (if different) | Residential building, ground floor for commercial purposes |
| Current condition/interventions | Building in a good condition. |
| State of preservation | The building is not protected by the Law on Protection of Cultural Monuments. The building is protected merely by the planning protection measures for cultural monuments. The building is located within the protected area of Omiš, zone B*. For any construction work on the building, it is necessary to obtain prior consent of the relevant Conservation Department [30] (article 26). * The Spatial Plan of the City of Omiš from 2007 defined two protection zones of the urban area of the city of Omiš: zone A (zone of well-preserved and particularly valuable historical structures) and zone B (zone of varying degrees of preservation and value of historical structures). Buildings along Fošal Street numbered 1, 2, 8, 9 are in the zone B protection area [31]. |
| Contractor company | Unknown |
| Investor | Municipality of Omiš (N.O.O. Omiš) |
| Bibliography/sources | The building project has been partially preserved [33]. The year of construction of the building is indicated on the plaque next to the entrance to the building. |
| 3. | Residential building |
![]() | |
| Author | Josip Vojnović, Urban Planning Bureau, Split |
| Years (date of commission—date of completion) | 1962–1963 |
| Address in Omiš | 8, 10, 12, 14 Vladimir Nazor Street |
| Construction and materials | Reinforced concrete |
| Technique | System of transverse walls |
| Size and height | Ground plan surface of the building approximately 50.70 m × 12.20 m, four-storey building |
| Other/former name (if different) | / |
| Original use/Current use (if different) | Residential building |
| Current condition/interventions | Building in a good condition. |
| State of preservation | The building is not protected by the Law on Protection of Cultural Monuments. |
| Contractor company | Unknown |
| Investor | Craft-service company “Peovica”, Omiš |
| Bibliography/sources | The building project has not been preserved. The year of the project is listed in the List of projects of architect Josip Vojnović [32]. Information about the author and the year of construction was obtained through the oral testimony of the residents of the building [34]. |
| 4. | Residential building |
![]() | |
| Author | Branko Kalajžić |
| Years (date of commission—date of completion) | 1964 |
| Address in Omiš | 2, 4, 6 Vladimir Nazor Street |
| Construction and materials | Reinforced concrete |
| Technique | System of transverse walls |
| Size and height | Ground plan surface of the building approximately 44.00 m × 10.40 m, four-storey building |
| Other/former name (if different) | / |
| Original use/Current use (if different) | Residential building |
| Current condition/interventions | Building in a good condition. Some loggias are now enclosed. |
| State of preservation | The building is not protected by the Law on Protection of Cultural Monuments. |
| Contractor company | Unknown |
| Investor | Unknown |
| Bibliography/sources | The building project has not been preserved. Information about the author and the year of construction was obtained through the oral testimony of engineer Josip Vlahović [35] and the residents of the building [34]. |
| 5. | Residential building by the River Cetina |
![]() | |
| Author | Branko Kalajžić |
| Years (date of commission—date of completion) | 1965 |
| Address in Omiš | 2, 3 Obala gusara |
| Construction and materials | Reinforced concrete |
| Technique | System of transverse walls |
| Size and height | Ground plan surface of the building approximately 11.10 m × 37.60 m, three-storey building and superstructure |
| Other/former name (if different) | / |
| Original use/Current use (if different) | Residential building |
| Current condition/interventions | Building in a good condition. Some loggias are now enclosed. |
| State of preservation | The building is not protected by the Law on Protection of Cultural Monuments. |
| Contractor company | Unknown |
| Investor | Unknown |
| Bibliography/sources | The building project has not been preserved. Information about the author and the year of construction was obtained through the oral testimony of engineer Josip Vlahović [35] and the residents of the building [33]. |
| 6. | Jure Kaštelan High School |
![]() | |
| Author | Unknown |
| Years (date of commission—date of completion) | 1962–1989 reconstruction and adding of the second floor |
| Address in Omiš | 2 King Tomislav Square |
| Construction and materials | Reinforced concrete |
| Technique | Skeleton frame construction |
| Size and height | Ground plan surface of the building approximately 48.50 m × 15.50 m, three-storey building |
| Other/former name (if different) | Jure Kaštelan High School |
| Original use/Current use (if different) | School building |
| Current condition/interventions | Bulding in a good condition; the second floor was added in 1989 following the project of architect Ante Arnerić, an employee of the company “Tehnika” from Split. |
| State of preservation | The building is not protected by the Law on Protection of Cultural Monuments. |
| Contractor company | Unknown |
| Investor | Reconstruction and upgrade investor: Center for Vocational Education—Omiš |
| Bibliography/sources | The school building project has not been preserved. Project of reconstruction and adding of the second floor has been preserved [36]. The information about the year the school was built was obtained through the oral testimony of engineer Josip Vlahović [35] and the school employees [37]. |
| 7. | Lovro pl. Matačić Primary Music School |
![]() | |
| Author | Unknown, Project bureau “Suradnik”, Makarska |
| Years (date of commission—date of completion) | 1962 |
| Address in Omiš | 1 Punta |
| Construction and materials | Reinforced concrete |
| Technique | Skeleton frame construction |
| Size and height | Ground plan surface of the building approximately 32.00 m × 10.30 m, Two-storey building |
| Other/former name (if different) | Administrative building of Hydroelectric Power Plant Kraljevac/Municipal Committee of the Croatian Communist Party/Lovro pl. Matačić Primary Music School (today) |
| Original use/Current use (if different) | Administration building/school building |
| Current condition/interventions | Building in a poor condition. No changes to the original look of the façade. |
| State of preservation | The building is not protected by the Law on Protection of Cultural Monuments. |
| Contractor company | Unknown |
| Investor | Hydroelectric Power Plant “Kraljevac”, Omiš |
| Bibliography/sources | The school building project has been partially preserved. The information about the author, the year of the project, etc. have been partially preserved [38]. The information about the year the school was built was obtained through the oral testimony of engineer Josip Vlahović [35] and the school employees [37]. |
| 8. | “Dalma” department store in Fošal |
| Studied work 2 | ![]() |
| Author | Frano Gotovac, Project bureau “Projektant”, Split |
| Years (date of commission—date of completion) | 1966–1968 |
| Address in Omiš | 2 Fošal |
| Construction and materials | Reinforced concrete |
| Technique | Skeleton frame construction |
| Size and height | Ground plan surface of the building approximately 25.30 m × 20.00 m, Two-storey building with a roof terrace |
| Other/former name (if different) | Department store “Dalma”/Supermarket “Konzum” |
| Original use/Current use (if different) | Department store “Dalma”—supermarket (ground floor) and furniture shop (first floor), coffee bar and dance floor (roof terrace)/supermarket (ground floor), textile store (first floor) and coffee bar (roof terrace) |
| Current condition/interventions | Building in a good condition; the original color of the exterior of the building was changed, the once unique space of the supermarket was divided into smaller commercial spaces. |
| State of preservation | The building is not protected by the Law on Protection of Cultural Monuments. The building is protected merely by the planning protection measures for cultural monuments. The department store at the beginning of Fošal Street has become a recognizable spatial symbol of Omiš. Together with the surrounding residential buildings, it forms Knez (prince) Miroslav Square. The building is located within the protected area of Omiš, zone B*. (...) Although it is not protected by the Law on Protection of Cultural Monuments, the building has a high architectural value, so it is preserved in its original form [30] (article 8). * The Spatial Plan of the City of Omiš from 2007 defined two protection zones of the urban area of the city of Omiš: zone A (zone of well-preserved and particularly valuable historical structures) and zone B (zone of varying degrees of preservation and value of historical structures). Buildings along Fošal Street numbered 1, 2, 8, 9 are in the zone B protection area [31]. |
| Contractor company | Construction company “Izvađač”, Omiš |
| Investor | Municipality of Omiš |
| Bibliography/sources | The conceptual design of the department store building has been preserved. [39]. |
| 9. | Residential building on Prince Miroslav Square |
| Studied work 3 | ![]() |
| Author | Frano Gotovac, Project bureau “Projektant”, Split |
| Years (date of commission—date of completion) | 1967–1968 |
| Address in Omiš | 3, 5, 7, 9 Vladimir Nazor Street |
| Construction and materials | Reinforced concrete |
| Technique | Hybrid system of walls (longitudinal and transverse) |
| Size and height | Ground plan surface of the building approximately 51.00 m × 10.70 m, Four-storey building and superstructure |
| Other/former name (if different) | / |
| Original use/Current use (if different) | Residential building |
| Current condition/interventions | Building in a good condition; balconies facing the river are now enclosed. |
| State of preservation | The building is not protected by the Law on Protection of Cultural Monuments. The building is protected merely by the planning protection measures for cultural monuments. The building is located within the protected area of Omiš, zone B*. For any construction work on the building, it is necessary to obtain a prior consent of the relevant Conservation Department. [30] (article 26). * The Spatial Plan of the City of Omiš from 2007 defined two protection zones of the urban area of the city of Omiš: zone A (zone of well-preserved and particularly valuable historical structures) and zone B (zone of varying degrees of preservation and value of historical structures). Buildings along Fošal Street numbered 1, 2, 8, 9 are in the zone B protection area [31]. |
| Contractor company | Construction company “Izvađač”, Omiš |
| Investor | Municipality of Omiš |
| Bibliography/sources | The building project has not been preserved. The year of the project is stated in the List of technical journals of the company “Projektant” [40]. Information about the year of construction was obtained through the oral testimony of engineer Josip Vlahović [35] and the residents of the building [41]. |
| 10. | Residential building |
![]() | |
| Author | Frano Gotovac, Project bureau “Izvađač”, Omiš |
| Years (date of commission—date of completion) | 1972–1974 |
| Address in Omiš | 1 Joko Knežević Street |
| Construction and materials | Reinforced concrete |
| Technique | Hybrid system of walls (longitudinal and transverse) |
| Size and height | Ground plan surface of the building approximately 23.00 m × 21.70 m, seven-storey building |
| Other/former name (if different) | / |
| Original use/Current use (if different) | Residential building |
| Current condition/interventions | Building in a good condition, loggias and balconies mostly glazed. |
| State of preservation | The building is not protected by the Law on Protection of Cultural Monuments. |
| Contractor company | Construction company “Izvađač”, Omiš |
| Investor | Construction company “Izvađač”, Omiš |
| Bibliography/sources | The building project has been preserved [42]. The year of construction of the building is indicated on the plaque next to the entrance to the building. |
| 11. | Residential building in the centre of Punta |
![]() | |
| Author | JosipVojnović, Urban Planning Bureau, Split |
| Years (date of commission—date of completion) | 1963/1965 |
| Address in Omiš | 7, 9, 11 Renko Šperac Street |
| Construction and materials | Reinforced concrete |
| Technique | System of transverse walls |
| Size and height | Ground plan surface of the building approximately 38.80 m × 13.20 m, four-storey building |
| Other/former name (if different) | / |
| Original use/Current use (if different) | Residential building |
| Current condition/interventions | Building in a good condition. |
| State of preservation | The building is not protected by the Law on Protection of Cultural Monuments. |
| Contractor company | Construction company “Izvađač”, Omiš |
| Investor | Unknown |
| Bibliography/sources | The building project has not been preserved. The year of the project is listed in the List of projects of architect Josip Vojnović [32]. Information about the year of construction was obtained through the oral testimony of the residents of the building [41]. |
| 12. | Residential building with a kindergarten on the ground floor |
![]() | |
| Author | Ivo Kurtović, Construction company “I. L. Lavčević”, Split |
| Years (date of commission—date of completion) | 1972–1974 |
| Address in Omiš | 12 Joko Knežević Street |
| Construction and materials | Reinforced concrete |
| Technique | Hybrid system of walls (longitudinal and transverse) |
| Size and height | Ground plan surface of the building 19.20 m × 15.00 m, six-storey building |
| Other/former name (if different) | / |
| Original use/Current use (if different) | Residential building, ground floor with kindergarten |
| Current condition/interventions | Building in a good condition; some loggias are now glazed. |
| State of preservation | The building is not protected by the Law on Protection of Cultural Monuments. |
| Contractor company | Construction company “Izvađač”, Omiš |
| Investor | Unknown |
| Bibliography/sources | The building project has not been preserved. The year of the project obtained from the building permit number [43]. Information about the year of construction was obtained through the oral testimony of engineer Josip Vlahović [35] and the residents of the building [44]. |
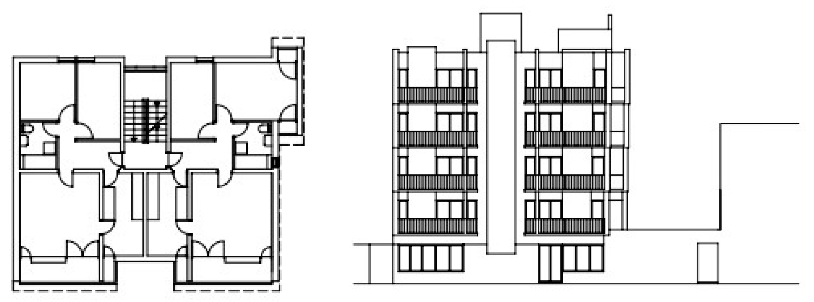
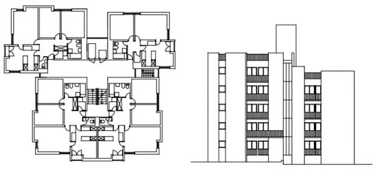
| 13. | Residential building in the centre of Punta |
| Studied work 4 | ![]() |
| Author | Ivo Radić, Urban Planning Institute of Dalmatia, Split |
| Years (date of commission—date of completion) | 1978/1982 |
| Address in Omiš | 4, 5 Punta, 1-3 Ivan Raos Square |
| Construction and materials | Reinforced concrete |
| Technique | System of transverse walls |
| Size and height | Ground plan surface of the building approximately 82.20 m × 12.80 m and 40.20 × 12.00, four-storey to eight-story building (ground floor and from three to seven additional floors) |
| Other/former name (if different) | / |
| Original use/Current use (if different) | Residential building/Commercial and public use in ground floor |
| Current condition/interventions | Building in a good condition. Almost no changes to the facade. Original colour changed from beige to gray. |
| State of preservation | The building is not protected by the Law on Protection of Cultural Monuments. |
| Contractor company | Construction company “Izvađač”, Omiš |
| Investor | Construction company “Izvađač”, Omiš |
| Bibliography/sources | The building project has been partially preserved [45] Information about the year of construction was obtained through the oral testimony of engineer Josip Vlahović [35] and the residents of the building [44]. |
| MLIJA AREA | |
|---|---|
![]() | |
| 1. | Housing development for workers of Split Hydroelectric Power Plant—type 1 |
![]() | |
| Author | Unknown author |
| Years (date of commission—date of completion) | 1962 |
| Address in Omiš | 19, 21, 29, 39, 41, 43 Fra Stjepan Vrlić Street |
| Construction and materials | Reinforced concrete |
| Technique | Hybrid system of walls (longitudinal and transverse) |
| Size and height | Ground plan surface of the building approximately 15.00 m × 9.00 m, two-storey building |
| Other/former name (if different) | / |
| Original use/Current use (if different) | Residential building |
| Current condition/interventions | Building in a good condition; minor changes to the northern side of the building by enclosing the open gallery used for accessing the apartments. |
| State of preservation | The building is not protected by the Law on Protection of Cultural Monuments. |
| Contractor company | Unknown |
| Investor | Dalmatian Hydroelectric Power Plant, Split |
| Bibliography/sources | The building project has not been preserved. Information about the year of construction was obtained through the oral testimony of the residents of the buildings [46]. |
| 2. | Housing development for workers of Split Hydroelectric Power Plant—type 2 |
![]() | |
| Author | Unknown |
| Years (date of commission—date of completion) | 1958/1962 |
| Address in Omiš | 2, 11, 17, 31, 33, 35, 37 Fra Stjepan Vrlić Street |
| Construction and materials | Reinforced concrete, stone |
| Technique | Hybrid system of walls (longitudinal and transverse) |
| Size and height | Ground plan surface of the building approximately 15.00 m × 9.00 m, two-storey building |
| Other/former name (if different) | / |
| Original use/Current use (if different) | Residential building |
| Current condition/interventions | Building in a good condition; loggia fences have been changed; some loggias are now glazed; the colour of the facade has been changed quite a bit. |
| State of preservation | The building is not protected by the Law on Protection of Cultural Monuments. |
| Contractor company | Unknown |
| Investor | Dalmatian Hydroelectric Power Plant, Split |
| Bibliography/sources | The building project has not been preserved. At the session of the Omiš Municipal Assembly in 1957, the nationalization of the land above the Omiš cemetery was discussed for the construction of the first three buildings for the workers of the Split Hydroelectric Power Plant [47]. The year of the project obtained from the building permit number [48]. Information about the year of construction was obtained through the oral testimony of the residents of the buildings [46]. |
| 3. | Primary Healthcare Centre |
| Studied work 5 | ![]() |
| Author | Zoja Dumengjić, Architectural office “Dumengjić”, Zagreb |
| Years (date of commission—date of completion) | 1957/1959 |
| Address in Omiš | 2 Mlije Way |
| Construction and materials | Reinforced concrete, glass, steel |
| Technique | Skeleton frame construction |
| Size and height | Ground plan surface of the building approximately 56.60 m × 13.70 m, two-storey building |
| Other/former name (if different) | Dom zdravlja Splitsko-dalmatinske županije/Dom narodnog zdravlja |
| Original use/Current use (if different) | Healthcare services |
| Current condition/interventions | Building in a good condition. Modifications to the facade: fences with metal bars instead of the original glazed fences, concrete columns instead of the original steel ones. Changes to the interior of the building. Changes to the colours of the building. |
| State of preservation | The building is not protected by the Law on Protection of Cultural Monuments. |
| Contractor company | Unknown |
| Investor | Unknown |
| Bibliography/sources | The building project has been preserved [29,49]. |
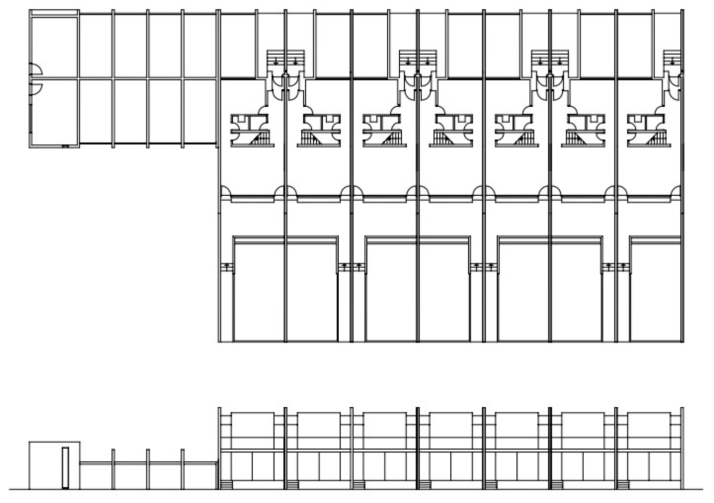
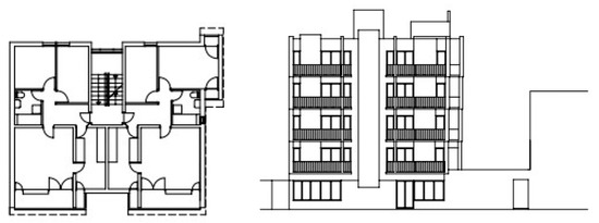
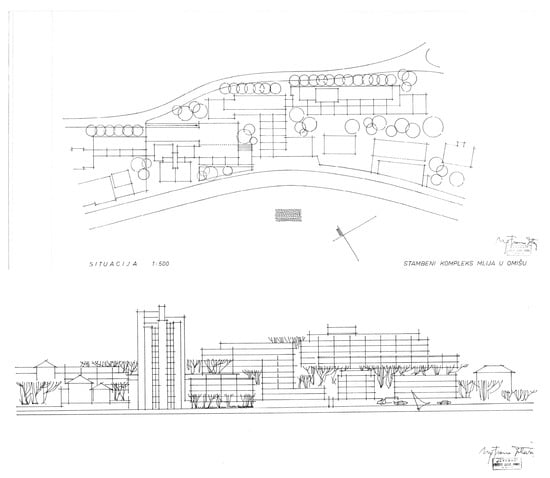
| 4. | Terraced type residential building |
| Studied work 6 | ![]() |
| Author | Frano Gotovac, Project bureau “Izvađač”, Omiš |
| Years (date of commission—date of completion) | 1967/1970 |
| Address in Omiš | 10, 11 Skalice Way and 4, 6, 8 Fra Stjepan Vrlić Street |
| Construction and materials | Reinforced concrete |
| Technique | Hybrid system of walls (longitudinal and transverse) |
| Size and height | Ground plan surface of the building approximately 42.20 m × 11.50 m (northern part of the building), 30.80 m × 11.00 m (southern part od the building), 15.00 m × 15.00 m (central part od the building), ten-storey building with superstructure |
| Other/former name (if different) | / |
| Original use/Current use (if different) | Residential building/Ground floor for commercial purposes |
| Current condition/interventions | Building in a poor condition; annexes and loggias and balconies enclosed with solid material and glazing. |
| State of preservation | The building is not protected by the Law on Protection of Cultural Monuments. |
| Contractor company | Construction company “Izvađač”, Omiš |
| Investor | Construction company “Izvađač”, Omiš |
| Bibliography/sources | The building project has been preserved [50]. Information about the year of construction was obtained through the oral testimony of engineer Josip Vlahović [35] and the residents of the building [51]. |
| 5. | Residential building in Fra Stjepan Vrlić Street |
| Studied work 7 | ![]() |
| Author | Frano Gotovac, Project bureau “Izvađač”, Omiš |
| Years (date of commission—date of completion) | 1969–1970/1971 |
| Address in Omiš | 10, 12, 14, 16, 18 Fra Stjepan Vrlić Street |
| Construction and materials | Reinforced concrete |
| Technique | Hybrid system of walls (longitudinal and transverse) |
| Size and height | Ground plan surface of the building approximately 76.50 m × 12.00 m, five-storey building with two levels of superstructure |
| Other/former name (if different) | / |
| Original use/Current use (if different) | Residential building |
| Current condition/interventions | Building in a poor condition; a series of additions to the façade, enclosing of loggias and balconies in the south with solid material and glazing. The northern façade has mostly kept its original look. |
| State of preservation | The building is not protected by the Law on Protection of Cultural Monuments. |
| Contractor company | Construction company “Izvađač”, Omiš |
| Investor | Construction company “Izvađač”, Omiš |
| Bibliography/sources | The project of the building has been preserved [52]. Information about the year of construction was obtained through the oral testimony of engineer Josip Vlahović [35] and the residents of the building [51]. |
| 6. | Residential building by Adriatic Highway |
| Studied work 8 | ![]() |
| Author | Frano Gotovac, Project bureau “Izvađač”, Omiš |
| Years (date of commission—date of completion) | 1970–1972 |
| Address in Omiš | 9 Skalice Way |
| Construction and materials | Reinforced concrete |
| Technique | Hybrid system of walls (longitudinal and transverse) |
| Size and height | Ground plan surface of the building approximately 15.00 m × 10.50 m, five-storey building |
| Other/former name (if different) | / |
| Original use/Current use (if different) | Residential building, ground floor for commercial purposes |
| Current condition/interventions | Building in a good condition. Only one loggia in the south is partially glazed, the loggias on the eastern side of the building are mostly glazed. Observing the condition of the building over the past few years there is a positive trend of reintroducing loggias with a view of the sea in the south to their original condition. A change in the colour of the facade from a neutral beige shade to a dull gray can be noticed. |
| State of preservation | The building is not protected by the Law on Protection of Cultural Monuments. |
| Contractor company | Construction company “Izvađač”, Omiš |
| Investor | Construction company “Izvađač”, Omiš |
| Bibliography/sources | The building project has not been preserved. The year of the project obtained from the building permit number [48]. Information about the year of construction was obtained through the oral testimony of engineer Josip Vlahović [35] and the residents of the building [51]. |
| PRIKO AREA | |
![]() | |
| 1. | Residential building in Glagoljaška Street |
![]() | |
| Author | Josip Vojnović, Urban Planning Bureau, Split |
| Years (date of commission—date of completion) | 1956–1958 |
| Address in Omiš | 8, 9 Glagoljaška Street |
| Construction and materials | Reinforced concrete, stone |
| Technique | System of transverse walls |
| Size and height | Ground plan surface of the building approximately 30.00 m × 11.90 m, three-storey building |
| Other/former name (if different) | / |
| Original use/Current use (if different) | Residential building |
| Current condition/interventions | Building in a good condition; loggias are partially glazed. |
| State of preservation | The building is not protected by the Law on Protection of Cultural Monuments. |
| Contractor company | Unknown |
| Investor | Municipality of Omiš |
| Bibliography/sources | The building project has not been preserved. The year of the project is listed in the List of projects of architect Josip Vojnović [32]. Information about the year of construction was obtained through the oral testimony of the residents of the building [53]. |
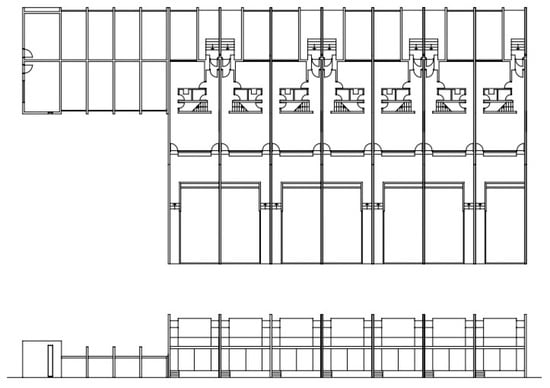
| 2. | Housing rows |
| Studied work 9 | ![]() |
| Author | Frano Gotovac, Project bureau “Izvađač”, Omiš |
| Years (date of commission—date of completion) | 1973 |
| Address in Omiš | 6, 8, 10, 12, 14, 16, 18 Cetinska Road |
| Construction and materials | Reinforced concrete |
| Technique | System of longitudinal wall |
| Size and height | Ground plan surface of the building approximately 40.00 m × 10.30 m (only residential units), two-storey building |
| Other/former name (if different) | / |
| Original use/Current use (if different) | Residential building |
| Current condition/interventions | Building in a poor condition; glazing of loggias or construction of slanted canopies with roof tiles in the south, addition of different loggia fences that replaced the original fences made of black metal bars; various additions on the northern side of the building, construction of external staircases on the northern side that access the first floor of the building after the original single two-story residential unit was divided into two separate units. There is a positive trend of returning the loggias on the two units closest to the river in the southern part to their original condition. With these “renovation” works, the original beige color of the facade was changed to dull gray. |
| State of preservation | The building is not protected by the Law on Protection of Cultural Monuments. |
| Contractor company | Construction company “Izvađač”, Omiš |
| Investor | Construction company “Izvađač”, Omiš |
| Bibliography/sources | The building project has not been preserved. Information about the year of construction was obtained through oral testimony the residents of the building [53]. |
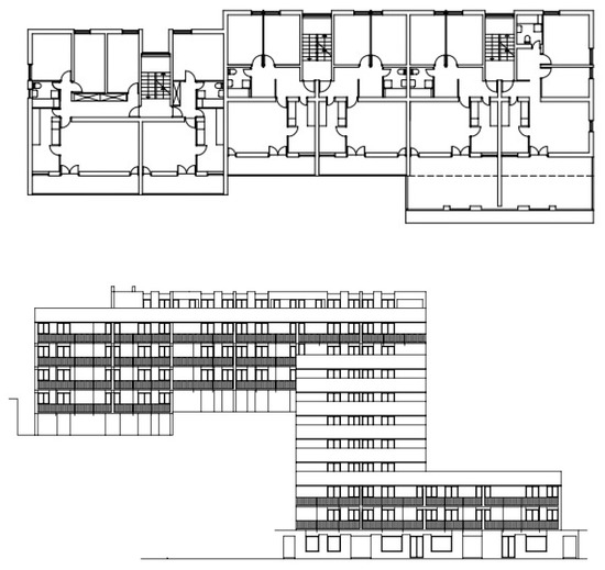
| 3. | Twin residential buildings |
| Studied work 10 | ![]() |
| Author | Frano Gotovac, Project bureau “Izvađač”, Omiš |
| Years (date of commission—date of completion) | 1972–1973 (building at 2 Cetinska Road) 1974–1975 (building at 4 Cetinska Road) |
| Address in Omiš | 2, 4 Cetinska Road |
| Construction and materials | Reinforced concrete |
| Technique | Hybrid system of walls (longitudinal and transverse) |
| Size and height | Ground plan surface of the building approximately 21.70 m × 22.40 m, five-storey building |
| Other/former name (if different) | / |
| Original use/Current use (if different) | Residential building |
| Current condition/interventions | Building in a poor condition; loggias and balconies enclosed using solid materials and glazing. |
| State of preservation | The building is not protected by the Law on Protection of Cultural Monuments. |
| Contractor company | Construction company “Izvađač”, Omiš |
| Investor | Commercial company “Vojan”, Omiš Alliance of Fighters Assiociations of People’s Liberation War—SUBNOR, Omiš |
| Bibliography/sources | The building project has not been preserved. The year of the project obtained from the building permit number [54]. Information about the year of construction was obtained through the oral testimony of engineer Josip Vlahović [35] and the residents of the building [53]. The information about the investor of the building was obtained through oral testimony of engineer Josip Vlahović [35] and from a newspaper article published in the local newspaper. [55]. |
| 4. | Four three-storey buildings by the Adriatiac Highway |
![]() | |
| Author | Ranko Ružić, Project bureau “Konstruktor”, Split |
| Years (date of commission—date of completion) | 1975–1978 |
| Address in Omiš | 3, 4, 5, 6, 7, 8 Četvrt King Zvonimir |
| Construction and materials | Reinforced concrete |
| Technique | Hybrid system of walls (longitudinal and transverse) |
| Size and height | Ground plan surface of the building approximately 17.90 m × 13.00 m (no. 3), 36.00 m × 12.00 m (no. 4, 5), 35.50 m × 13.00 m (no. 6, 7), 17.70 m × 17.70 m (no. 8), three-storey building |
| Other/former name (if different) | / |
| Original use/Current use (if different) | Residential building |
| Current condition/interventions | Building in a good condition; substantial changes to the facade, annexes in solid material. |
| State of preservation | The building is not protected by the Law on Protection of Cultural Monuments. |
| Contractor company | Construction company “Izvađač”, Omiš |
| Investor | Unknown |
| Bibliography/sources | The year of the project obtained from the building permit number [54]. Information about the author and the year of construction of the building was obtained through the oral testimony of engineer Josip Vlahović [35], architect Stanislav Mladinić [56], clerk Miranda Tipić [57], and the building’s tenants [58]. |
| 5. | Residential ten-storey building |
![]() | |
| Author | Ranko Ružić, Project bureau “Konstruktor”, Split |
| Years (date of commission—date of completion) | 1972–1979 |
| Address in Omiš | 1, 2 Četvrt King Zvonimir |
| Construction and materials | Reinforced concrete |
| Technique | System of transverse walls |
| Size and height | Ground plan surface of the building approximately 38.20 m × 13.80 m (no. 1), 17.50 m × 15.80 m (no. 2), nine-storey building (no. 1) and ten-storey building (no. 2) |
| Other/former name (if different) | / |
| Original use/Current use (if different) | Residential building |
| Current condition/interventions | Building in a good condition; changes to the facade with glazed loggias on the southern side, no changes to the northern side of the building. |
| State of preservation | The building is not protected by the Law on Protection of Cultural Monuments. |
| Contractor company | Construction company “Izvađač”, Omiš |
| Investor | Unknown |
| Bibliography/sources | The year of the project obtained from the building permit number [54]. Information about the author and the year of construction of the building was obtained through the oral testimony of engineer Josip Vlahović [35], architect Stanislav Mladinić [56], clerk Miranda Tipić [57], and the building’s tenants [58]. |
| 6. | Residential building by the Adriatiac Highway |
![]() | |
| Author | Stanislav Mladinić, Project bureau “Konstruktor”, Split |
| Years (date of commission—date of completion) | 1975–1976 |
| Address in Omiš | 2, 3 Četvrt Vrilo |
| Construction and materials | Reinforced concrete |
| Technique | System of transverse walls |
| Size and height | Ground plan surface of the building approximately 32.40 m × 12.60 m, four-storey building |
| Other/former name (if different) | / |
| Original use/Current use (if different) | Residential building |
| Current condition/interventions | Building in a good condition; changes to the facade with glazed loggias on the southern side. |
| State of preservation | The building is not protected by the Law on Protection of Cultural Monuments. |
| Contractor company | Construction company “Izvađač”, Omiš |
| Investor | Unknown |
| Bibliography/sources | The year of the project obtained from the building permit number [54]. Information about the author and the year of construction of the building was obtained through the oral testimony of architect Stanislav Mladinić [56] and the building’s tenants [59]. |
| 7. | Residential building in central part of district Vrilo |
![]() | |
| Author | Ranko Ružić, Project bureau “Konstruktor”, Split |
| Years (date of commission—date of completion) | 1975–1976 |
| Address in Omiš | 4 Četvrt Vrilo |
| Construction and materials | Reinforced concrete |
| Technique | System of transverse walls |
| Size and height | Ground plan surface of the building approximately 15.00 m × 16.00 m, four-storey building |
| Other/former name (if different) | / |
| Original use/Current use (if different) | Residential building |
| Current condition/interventions | Building in a good condition; changes to the facade with glazed loggias on the western side. |
| State of preservation | The building is not protected by the Law on Protection of Cultural Monuments. |
| Contractor company | Construction company “Izvađač”, Omiš |
| Investor | Unknown |
| Bibliography/sources | The year of the project obtained from the building permit number [54]. Information about the author and the year of construction of the building was obtained through the oral testimony of engineer Josip Vlahović [35], architect Stanislav Mladinić [56], clerk Miranda Tipić [57], and the building’s tenants [59]. |
| 8. | Residential tower “Tower od Solidarity” |
![]() | |
| Author | Ranko Ružić, Project bureau “Konstruktor”, Split |
| Years (date of commission—date of completion) | 1979–1980 |
| Address in Omiš | 5 Četvrt Vrilo |
| Construction and materials | Reinforced concrete |
| Technique | Hybrid system of walls (longitudinal and transverse) |
| Size and height | Ground plan surface of the building approximately 20.00 m × 16.50 m, eleven-storey building |
| Other/former name (if different) | / |
| Original use/Current use (if different) | Residential building |
| Current condition/interventions | Building in a good condition; changes to the facade with glazed loggias. |
| State of preservation | The building is not protected by the Law on Protection of Cultural Monuments. |
| Contractor company | Construction company “Izvađač”, Omiš |
| Investor | Unknown |
| Bibliography/sources | The year of the project obtained from the building permit number [54]. Information about the author and the year of construction of the building was obtained through the oral testimony of engineer Josip Vlahović [35], architect Stanislav Mladinić [56], clerk Miranda Tipić [57], and the building’s tenants [59]. |
| 9. | Police station building Omiš |
![]() | |
| Author | Ranko Ružić, Project bureau “Konstruktor”, Split |
| Years (date of commission—date of completion) | 1978 |
| Address in Omiš | 1 Četvrt Vrilo |
| Construction and materials | Reinforced concrete |
| Technique | Hybrid system of walls (longitudinal and transverse) |
| Size and height | Ground plan surface of the building approximately 47.00 m × 21.00 m, two-storey building |
| Other/former name (if different) | / |
| Original use/Current use (if different) | Commercial purposes |
| Current condition/interventions | Building in an excellent condition. |
| State of preservation | The building is not protected by the Law on Protection of Cultural Monuments. |
| Contractor company | Construction company “Izvađač”, Omiš |
| Investor | Unknown |
| Bibliography/sources | Information about the author and the year of construction of the building was obtained through the oral testimony of engineer Josip Vlahović [35], architect Stanislav Mladinić [56], clerk Miranda Tipić [57], and the building’s tenants [59]. |
| 10. | Residential building with atomic shelter |
![]() | |
| Author | Ivan Valek, Inžinjering projekt, Zagreb |
| Years (date of commission—date of completion) | 1981–1983 |
| Address in Omiš | 8, 9, 10 Četvrt Vrilo |
| Construction and materials | Reinforced concrete |
| Technique | Hybrid system of walls (longitudinal and transverse) |
| Size and height | Ground plan surface of the building approximately 42.00 m × 17.50 m, five to seven-story building (basement, ground floor and three to five additional floors) |
| Other/former name (if different) | / |
| Original use/Current use (if different) | Residential building, atomic shelter underground |
| Current condition/interventions | Building in a good condition; changes to the facade with glazed loggias. |
| State of preservation | The building is not protected by the Law on Protection of Cultural Monuments. |
| Contractor company | Unknown |
| Investor | Unknown |
| Bibliography/sources | The year of the project obtained from the building permit number [54]. Information about the author and the year of construction of the building was obtained through the oral testimony of engineer Josip Vlahović [35], architect Stanislav Mladinić [56], clerk Miranda Tipić [57], and the building’s tenants [59]. |
| 11. | Residential building in the interior of the district |
![]() | |
| Author | Stanislav Mladinić, Project bureau “Konstruktor”, Split |
| Years (date of commission—date of completion) | 1982–1984 |
| Address in Omiš | 10, 11, 12, 13 Četvrt Žarko Dražojević |
| Construction and materials | Reinforced concrete |
| Technique | System of transverse walls |
| Size and height | Ground plan surface of the building approximately 57.00 m × 13.50 m and 16.20 m × 10.40 m, five-storey to seven-story building (ground floor and four to six additional floors) |
| Other/former name (if different) | / |
| Original use/Current use (if different) | Residential building |
| Current condition/interventions | Building in a good condition; changes to the facade with glazed loggias. |
| State of preservation | The building is not protected by the Law on Protection of Cultural Monuments. |
| Contractor company | Construction company “Izvađač”, Omiš |
| Investor | Self-management Community of Interest for residential and communal construction, Omiš (SIZ za stambeno-komunalnu izgradnju, Omiš) |
| Bibliography/sources | The year of the project obtained from the building permit number [54]. Information about the author and the year of construction of the building was obtained through the oral testimony of architect Stanislav Mladinić [56] and the building’s tenants [60]. |
| 12. | Residential building by the Adriatiac Highway |
![]() | |
| Author | Stanislav Mladinić, Project bureau “Konstruktor”, Split |
| Years (date of commission—date of completion) | 1985–1986 |
| Address in Omiš | 14, 15 Četvrt Žarko Dražojević |
| Construction and materials | Reinforced concrete |
| Technique | System of transverse walls |
| Size and height | Ground plan surface of the building approximately 59.90 m × 15.00 m, five-storey building |
| Other/former name (if different) | / |
| Original use/Current use (if different) | Residential building |
| Current condition/interventions | Building in a good condition; changes to the facade with glazed loggias. |
| State of preservation | The building is not protected by the Law on Protection of Cultural Monuments. |
| Contractor company | Construction company “Izvađač”, Omiš |
| Investor | Self-management Community of Interest for residential and communal construction, Omiš (SIZ za stambeno-komunalnu izgradnju, Omiš) |
| Bibliography/sources | The year of the project obtained from the building permit number [54]. Information about the author and the year of construction of the building was obtained through the oral testimony of architect Stanislav Mladinić [56] and the building’s tenants [60]. |
| 13. | Residential building in the background of the district |
![]() | |
| Author | Stanislav Mladinić, Project bureau “Konstruktor”, Split |
| Years (date of commission—date of completion) | 1989–1990 |
| Address in Omiš | 6, 7, 8, 9 Četvrt Žarko Dražojević |
| Construction and materials | Reinforced concrete |
| Technique | System of transverse walls |
| Size and height | Ground plan surface of the building approximately 80.60 m × 14.00 m, seven-storey to eleven-story building (ground floor and from six to ten additional floors) |
| Other/former name (if different) | / |
| Original use/Current use (if different) | Residential building |
| Current condition/interventions | Building in a good condition; changes to the facade with glazed loggias. |
| State of preservation | The building is not protected by the Law on Protection of Cultural Monuments. |
| Contractor company | Construction company “Izvađač”, Omiš |
| Investor | Self-management Community of Interest for residential and communal construction, Omiš (SIZ za stambeno-komunalnu izgradnju, Omiš) |
| Bibliography/sources | The year of the project obtained from the building permit number [54]. Information about the author and the year of construction of the building was obtained through the oral testimony of architect Stanislav Mladinić [56] and the building’s tenants [60]. |
| 14. | Residential building by the Adriatiac Highway |
![]() | |
| Author | Ante Kuzmanić, Project bureau “Konstruktor”, Split |
| Years (date of commission—date of completion) | 1991–1994 |
| Address in Omiš | 1, 2, 3 Četvrt Žarko Dražojević |
| Construction and materials | Reinforced concrete |
| Technique | System of transverse walls |
| Size and height | Ground plan surface of the building approximately 47.50 m × 15.00 m and 38.00 m × 13.70 m, five-story building |
| Other/former name (if different) | / |
| Original use/Current use (if different) | Residential building |
| Current condition/interventions | Building in a good condition; changes to the facade with glazed loggias. |
| State of preservation | The building is not protected by the Law on Protection of Cultural Monuments. |
| Contractor company | Construction company “Izvađač”, Omiš |
| Investor | AGZ, Omiš |
| Bibliography/sources | The year of the project obtained from the building permit number [54]. Information about the author and the year of construction of the building was obtained through the oral testimony of architect Ante Kuzmanić [61] and the building’s tenants [60]. |
Disclaimer/Publisher’s Note: The statements, opinions and data contained in all publications are solely those of the individual author(s) and contributor(s) and not of MDPI and/or the editor(s). MDPI and/or the editor(s) disclaim responsibility for any injury to people or property resulting from any ideas, methods, instructions or products referred to in the content. |
© 2023 by the authors. Licensee MDPI, Basel, Switzerland. This article is an open access article distributed under the terms and conditions of the Creative Commons Attribution (CC BY) license (https://creativecommons.org/licenses/by/4.0/).
Share and Cite
Barišić Marenić, Z.; Perković Jović, V. Modernism in the Mediterranean: Omiš, Croatia, Urban and Architectural Development of the Dalmatian City in the Second Half of the 20th Century. Heritage 2023, 6, 3921-3984. https://doi.org/10.3390/heritage6050208
Barišić Marenić Z, Perković Jović V. Modernism in the Mediterranean: Omiš, Croatia, Urban and Architectural Development of the Dalmatian City in the Second Half of the 20th Century. Heritage. 2023; 6(5):3921-3984. https://doi.org/10.3390/heritage6050208
Chicago/Turabian StyleBarišić Marenić, Zrinka, and Vesna Perković Jović. 2023. "Modernism in the Mediterranean: Omiš, Croatia, Urban and Architectural Development of the Dalmatian City in the Second Half of the 20th Century" Heritage 6, no. 5: 3921-3984. https://doi.org/10.3390/heritage6050208
APA StyleBarišić Marenić, Z., & Perković Jović, V. (2023). Modernism in the Mediterranean: Omiš, Croatia, Urban and Architectural Development of the Dalmatian City in the Second Half of the 20th Century. Heritage, 6(5), 3921-3984. https://doi.org/10.3390/heritage6050208




































