Abstract
Railway sleepers are an important component of track systems, which can be manufactured by timber, concrete, steel and any other engineered materials. They serve as rail supports and transfer loads from trains to substructures of track systems. In railway networks worldwide, prestressed concrete sleepers are more common than other material types because of their cost-efficacy, environmental friendliness, higher stability and performance, and durability. However, certain types of damage can still appear due to diverse load spectra and aggressive environmental conditions. The causes of cracking observed in prestressed concrete sleepers are usually induced by impact loads. The most affected sections are at the midspan and the rail-seat area of sleepers. Over a long term, time-dependent actions also affect the structural performance of prestressed concrete sleepers. This paper intends to determine the time-dependent crack phenomena in prestressed concrete sleepers under static conditions. Nonlinear finite element method (FEM) has been developed and validated by full-scale experimental tests of prestressed concrete sleepers in accordance with EN13230. In this study, equivalent losses of prestress as a result from time-dependent actions and resultant behaviours are considered. Their influences on crack initiation and propagation in prestressed concrete sleepers have been demonstrated. The results exhibit that the crack simulation can accurately predict the cracking behaviours and the time-dependent behaviour of prestressed concrete sleepers. This insight is critically essential to experimental load rating prediction, that can appropriately estimate the remaining life of aged railway concrete sleepers exposed to time-dependent actions.
1. Introduction
Prestressed concrete sleepers are the most commonly used type of sleepers around the world, with good structural performance, low maintenance cost and long service life [1,2,3]. In railway track systems, railway sleepers play an important role by supporting rails, transferring vertical loads to ballast and maintaining rail gauge [4]. In general, the life span of prestressed concrete sleepers is designed to be 50 years. With the development of new technologies, the durability of prestressed concrete sleepers has been constantly improved. However, many prestressed concrete sleepers do not reach their expected life span due to damage or deterioration [5,6]. The replacement of damaged concrete sleepers is an expensive and time-consuming process. The most critical problems related to concrete sleepers worldwide are ranked in Table 1 according to a survey conducted by Dyk [7,8]. These problems were ranked from 1 to 8 with 8 being the most critical. This survey provided failure modes of concrete sleepers to identify the effects of time-dependent behaviour in this study. The tamping damage, fatigue and wear of fastening systems are the most common causes of failure in prestressed concrete sleepers worldwide. It is also obvious that cracking from dynamic loads is a significant problem in concrete sleepers. With the crack propagating, performance and durability could be significantly reduced [9].
Table 1.
Most critical causes of concrete sleeper failures (ranked from 1 to 8, with 8 being the most critical).
Cracking in prestressed concrete sleepers is usually caused by impact loads [10]. Kaewunruen and Remennikov conducted experimental and numerical investigations on dynamic behaviour of prestressed concrete sleepers subject to impact loading [11,12,13,14]. When trains run at high speed and with heavy haul, the rail-wheel interactions can induce much higher magnitude of loads than simple quasi-static loads [15]. The track irregularities and imperfections in wheel-rail contact also induce high magnitude of dynamic loads. These loads are referred to as ‘impact loads’ [16]. The field data collected by Remennikov and Kaewunruen presented that the typical magnitude of impact loads can vary between 100 kN and 750 kN [15]. In their research, maximum axle load was 25 tonnes. The failure of railway sleepers is more likely than relatively lower dynamic loads due to the cumulative damage from impact loads.
The midspan and rail-seat section of railway sleepers are the most likely sections for cracking to occur [17]. Bakharev and Struble stated that rail-seat cracking is usually caused by abrasion, hydro erosion, hydraulic pressure and freeze-thaw and chemical deterioration [18]. The midspan cracks were often detected in the field due to high impact loading, in which the central section presented the maximum bending moment [19]. Zakeri and Sadeghi studied the vertical loading conditions of prestressed concrete sleepers using specific load-cells between sleepers and the rail and beneath the sleepers [20]. Sadeghi and Barati investigated the rail seat loads, sleeper-ballast contact pressures and sleeper bending capacities of concrete sleepers [21]. These research indicated the analysis of the structural performance of prestressed concrete sleepers at critical sections.
The durability of railway sleepers also affects time-dependent behaviour and environmental conditions during service. Time-dependent behaviour such as creep and shrinkage induce loss of prestress to reduce performance of railway sleepers [2,22,23,24,25]. The concrete structure and reinforcement of railway sleepers can be damaged by temperature change, relative humidity, freeze-thaw of water and chemical deterioration [26]. Therefore, time-dependent behaviour is also affected by environmental conditions which can accelerate damage to railway sleepers [27].
Many studies have been carried out on fracture mechanics of concrete structures; however, very few of them have targeted railway sleepers [28]. Jokūbaitis et al. discussed possible causes of cracking of prestressed concrete sleepers [26]. Meanwhile, Tehrani et al. presented experimental studies on crack propagation of prestressed concrete sleepers with single steel tendons subject to impact loads [29]. Further, Montalbán Domingo et al. studied how the cracks in prestressed concrete sleepers influence track behaviour under static loading [17]. Finally, Farnam and Rezaie investigated the fracture mechanics parameters of prestressed concrete sleepers [30]. These previous studies provided a general understanding of cracking behaviour in prestressed concrete sleepers and analysed the causes of cracking. The simulation methods performed are reviewed in order to find the best solution for cracking simulation. However, in their research, the effect of time-dependent behaviour has not been considered in the cracking behaviour of prestressed concrete sleepers.
This paper aims to investigate the crack propagation of prestressed concrete sleepers at midspan. The effect of time-dependent behaviour on cracking is also presented. The finite element method constitutes a very useful tool to study the crack propagation in prestressed concrete sleepers. In this paper, a numerical study is rigorously executed to comprehensively assess the structural performance of prestressed concrete sleepers exposed to time-dependent behaviour. Emphasis is placed on the numerical analysis of fracture mechanics of prestressed concrete sleepers. The finite element sleeper model was developed and validated to simulate the cracking phenomenon at the midspan. The static capacity experiment of prestressed concrete sleepers conducted by Jing [31] is used to validate the crack model.
2. Materials and Methods
2.1. Fracture Analysis and Methods
A fracture analysis can be performed in two stages: 1. Defining the crack and fracture parameters; 2. analysis of the crack propagation. Fracture parameters can be used for designing the limits of engineering structural failures. In static crack analysis, crack growth modelling is based on selected fracture parameters and criteria.
In this study, flexural cracking of prestressed concrete sleepers is considered as Mode I cracking pattern, in which the linear elastic fracture mechanics (LEFM) can be used to investigate cracking behaviour. LEFM is used for the basic description of crack propagation through a solid brittle material such as concrete. Fracture toughness replaces the material strength in fracture calculations. The stress intensity factor (SIF) is used in fracture mechanics to predict the stress state (stress intensity) around the front of a crack, which determines the fracture toughness subject to LEFM. The stress intensity factor can be calculated by:
where is the applied stress; is the dimensionless correction factor dependent on specimen geometry; and is the crack length.
2.2. Crack Simulation Methods
The Separating Morphing and Adaptive Remeshing Technology (SMART) crack growth method developed by Ansys company is used to simulate static crack growth in prestressed concrete sleepers. SMART is a remeshing-based method for crack growth simulation. This method automatically updates the mesh according to crack-geometry changes to simulate crack growth during the solution process [32,33]. The mesh changes occur around the crack-front region only, leading to a computationally efficient solution of the crack-growth problem. Three objects of crack simulation including Semi-Elliptical Crack, Arbitrary Crack and Pre-Meshed Crack can be utilised in the software. In this research, the Pre-Mesh Crack object is used to simulate the crack propagation of the prestressed concrete sleeper.
The Pre-Meshed Crack assumes that the crack meshes which represent the crack in the sleeper have already been generated beforehand, instead of internally generating the crack meshes. A Pre-Meshed Crack object uses a node-based named selection to analyse crack front; this nodal named selection is required for the computation of fracture parameters. The initial crack property of the sleeper model is specified. The failure criteria of the sleeper model can be determined as the stress intensity factor (SIF). The application automatically selects the material of scoped crack sleeper body. It should be noted that the tetrahedron mesh is the only element type supported in the Pre-Mesh Crack object.
2.3. Geometric Details and Material Properties of the Prestressed Concrete Sleeper
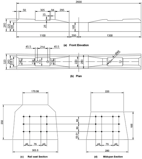
In this paper, a 2600-mm long Chinese Type III prestressed concrete sleeper with 7 mm diameter tendons (Figure 1) is utilised in the crack simulation. This type of railway sleeper, which is an integrated concrete block using pre-tensioning technology, is widely used in China. The material properties are shown in Table 2. The finite element software Ansys Workbench is used for numerical and analytical modelling. Modelling is performed on a model which is as close to the actual sleeper as possible. The concrete of sleeper is modelled as solid elements with most of these elements being 10-node tetrahedron elements, while the prestressed tendons are modelled as beam elements. The Bonded contact type is applied to prestressing tendons and concrete of the sleeper model, in which no slip or separation between concrete and tendons is allowed. The prestressing force is modelled using Thermal Condition in the tendon elements. Calibration and validation of structural and material performance of the FE sleeper model without cracks has been conducted in previous research [2]. Cracking simulation usually takes a long time, thus a proper mesh size of elements for analysing the FE sleeper model is used due to computational time considerations.

Figure 1.
Prestressed concrete sleeper model.
Table 2.
Material properties of the prestressed concrete sleeper.
2.4. Crack Model
2.4.1. Experimental Test Results
Previous research stated the centre cracking is observed occurring more commonly in prestressed concrete sleepers [34,35]. Therefore, crack propagation at centre section of the prestressed concrete sleeper is investigated. An experimental study conducted by Jing et al. investigated crack propagation in the Chinese Type III prestressed concrete sleeper [31]. The static capacity test of the railway sleeper was executed in accordance with EN 13230-2 [36].
Figure 2 shows the test setup, where two supports are placed at rail-seats and the loading surface is fitted at midspan. The load was transferred from the loading jack to the sleeper. This experiment recorded the loading level from 0 to 140 kN (the ultimate load of normal conventional concrete sleepers at midspan is 140 kN [21]) including the initial crack and crack propagation. The initial crack started to propagate at 45 kN. Figure 3 illustrates crack patterns and propagation, in which the crack was measured using the digital image correlation (DIC) method. An ARAMIS 6 M camera with a resolution of 2752 × 2200 pixels is mounted in front of the prestressed concrete sleeper. The results obtained with the DIC application are more efficient and precise than the microscope to investigate the capacity of prestressed concrete sleepers. Table 3 presents the experimental results of the load-crack length.
Figure 2.
Setup of the static capacity test of the railway sleeper.
Figure 3.
Crack propagation of the prestressed sleeper at midspan.
Table 3.
Experimental results of load-crack length response.
2.4.2. Crack Model Validation
Using the above experimental procedure, the crack propagation of prestressed concrete sleepers under static capacity test is simulated using the Pre-Mesh Crack of SMART method. Material properties of sleeper model are presented in Table 2. The stress intensity factor used in the sleeper model is assumed as 9.42 MPa·mm0.5 [37]. Section 2.2 indicates that the initial crack needs to be specified before simulation. Previous research has determined the initial cracking load of the FE sleeper model was 42.16 kN [2]. The applied loading is controlled by displacement in order to match the static capacity test results.
In the experiment, two major cracks were observed at the top fibre of the prestressed concrete sleeper at midspan. Therefore, cracks are created in the small notches on the FE sleeper model according to actual experimental crack positions as shown in Figure 4. The notches are only used for determining crack positions, and the size of notches can be neglected. The notches have no influence on the structural performance of the prestressed concrete sleeper. Crack fronts are specified at the small notches using the node-based named selection. The limit of this simulation is that the crack propagation is symmetrical. Table 3 presents two experimental crack length results, in which the crack length-1 results are selected to compare with the numerical results. Figure 5 presents the simulation of crack propagation in the sleeper model at midspan. A comparison of the crack propagation in the numerical and experimental results is illustrated in Figure 6.
Figure 4.
Crack propagation in the notches at midspan.
Figure 5.
Simulation of crack propagation in the sleeper model at midspan.
Figure 6.
Comparison of the crack propagation in the numerical and experimental results.
Figure 6 presents the comparison of the numerical and experimental results on crack propagation. In the simulation, the trend of crack propagation for numerical results is the closest to experimental results. The numerical model has a good correlation with the initial crack point and ultimate crack point, with the difference being only 6.31 and 4.34% respectively. The crack length of the sleeper model propagates steadily. In the experimental results, crack growth is not uniform between 65 kN and 100 kN. When loading increases from 90 kN to 100 kN, the crack length suddenly increases by 45 mm. This phenomenon was probably caused by the brittleness of concrete. In the simulation, results of crack propagation increase uniformly. In general, the performance of the numerical crack model is validated.
3. Crack Propagation Related to Time-Dependent Behaviour in Railway Sleepers
Experimental and numerical investigations regarding the time-dependent behaviour of prestressed concrete sleepers were conducted by Li and Kaewunruen [24,27,38,39,40,41]. In previous research, time-dependent behaviour was found to cause deformation, loss of prestress and degradation, which results in a reduction of performance that influences crack resistance. A loss of prestress of the prestressed concrete sleeper due to creep, shrinkage and relaxation has been evaluated [2,25] in accordance with Eurocode 2 used in the crack propagation study, shown as Table 4. The theoretical predicting equations were used to calculate the loss of prestress for the prestressed concrete sleeper. The results of loss of prestress at 90, 180, 365, 3650 days are studied. These results are inputted into the numerical model to observe effect of crack growth subject to time-dependent behaviour. It should be noted that the remained prestress of the prestressed concrete sleeper has been considered in our previous study including immediate loss.
Table 4.
Loss of prestress in railway sleepers due to time-dependent behaviour.
3.1. Crack Propagation Due to Creep
Considering the crack propagation subject to creep, the load-crack length response for the sleeper due to creep in different time is evaluated as shown in Figure 7.
Figure 7.
Effect of creep in terms of load-crack length response.
Figure 7 indicates the effect of creep on flexural behaviour in terms of load-crack length response. Crack propagation with a loss of prestress due to creep is compared at 90, 180, 365, 3650 days. It is found that the loss of prestress due to creep over time can lead to greater crack length. In initial crack propagation, the crack length does not have notable difference between those cases. When the external loading increases more than 70 kN, the growth of crack length significantly increased for longer service life cases. The ultimate crack length due to creep at 3650 days is 9.73% longer than in a condition of no time-dependent loss.
3.2. Crack Propagation Due to Shrinkage
To study crack propagation subject to shrinkage, the load-crack length response for the sleeper due to shrinkage in different time is evaluated as shown in Figure 8.
Figure 8.
Effect of shrinkage in terms of load-crack length response.
Figure 8 indicates the effect of shrinkage on flexural behaviour in terms of load-crack length response. Crack propagation with a loss of prestress due to shrinkage is compared at 90, 180, 365 and 3650 days. Figure 8 shows a similar development of cracks as in Figure 7. When increasing the service time from 90 to 3650 days, crack length due to shrinkage grows. In general, the loss of prestress due to shrinkage is a little higher than the loss of prestress due to creep. Therefore, crack length due to shrinkage is longer than creep. In a 10-year service life (3650 days), the ultimate crack length is 10.49% longer when there is no time-dependent loss.
3.3. Crack Propagation Due to Relaxation
Crack propagation subject to relaxation is also considered in this research. The load-crack length response for the sleeper due to relaxation in different time is evaluated as shown in Figure 9.
Figure 9.
Effect of relaxation in terms of load-crack length response.
Figure 9 indicates the effect of relaxation on flexural behaviour in terms of load-crack length response. Crack propagation with a loss of prestress due to relaxation are analysed and compared at 90, 180, 365, 3650 days. It is found that the longer the sleepers have been in service, the more crack length increases due to relaxation same as creep and shrinkage. However, in long-term service, the increase in ultimate crack length due to relaxation is not as notable as creep and shrinkage, while the ultimate crack length at 3650 days is only 5.78% longer when there is no time-dependent loss. This is because relaxation has less influence on the time-dependent loss of prestress in railway sleepers.
3.4. Discussion of Results
Cracking behaviour of the prestressed concrete sleeper subject to time-dependent behaviour are investigated. Crack propagation subject to creep, shrinkage and relaxation is analysed respectively. In general, growth of crack length subject to each time-dependent behaviour develops with time. It can be found that time-dependent behaviour causes loss of prestress and influences the crack resistance of prestressed concrete sleepers. In a comparison of different points in time cases subject to time-dependent behaviour, the crack length due to relaxation is always lower than due to creep and shrinkage. The growth of cracks due to creep and shrinkage is quite similar to each other. The increases in ultimate crack length due to creep, shrinkage and relaxation in 10-year service time (3650 days) are 9.73, 10.49 and 5.78% respectively.
The combination effect of creep, shrinkage and relaxation affecting cracking behaviour also needs to be taken into account in the analysis. When the crack propagation subject to all time-dependent behaviours is considered, the results of crack length rise significantly. Figure 10 shows the effect of all studied time-dependent behaviours on flexural behaviour in terms of load-crack length response. Table 5 presents the ultimate crack length due to time-dependent behaviour at different points in time. Growth of cracks subject to all time-dependent behaviours increases, while the crack length increases by 6.13% in comparison with time-dependent behaviour even after being in service for only 90 days. At the same point in time, increases in the crack length due to single time-dependent behaviour are no more than 2.5%, in which the crack resistance obviously reduces with regard to combination of creep, shrinkage and relaxation. The worst case in 3650 days (10-year service life) is observed, and the ultimate crack length reaches 142.29 mm which is an increase of 28.23%.
Figure 10.
Effect of total time-dependent behaviour in terms of load-crack length response.
Table 5.
Ultimate crack length due to time-dependent behaviour in days.
4. Conclusions
Cracking from dynamic loads at midspan is one of the most common forms of railway sleeper damage in conventional tracks. To prevent prestressed concrete sleepers from cracking caused by dynamic loads, the structural performance needs to be investigated and improved. The challenge for railway engineers is to improve the performance of railway sleepers to fulfil crack resistance requirements. In this study, numerical simulation of crack propagation was carried out using Ansys Workbench. The experimental program was used to validate and calibrate the numerical results. A full-scale model of the prestressed concrete sleeper was modelled and validated. Growth of crack length is a very important parameter to simulate crack propagation. Crack length was measured from a previous static capacity test in order to validate the crack model. The growth of crack simulation shows a fairly good agreement with the static capacity test results. Load-crack length response of sleepers is studied in this research. This paper also presents the time-dependent parameters including creep, shrinkage and relaxation which affect the crack behaviour of prestressed concrete sleepers with time. Based on the results obtained in this study, the key findings are as follows:
- A reasonable numerical crack model in accordance with fracture toughness theory was developed. The Separating Morphing and Adaptive Remeshing Technology (SMART) crack growth simulation method is used. This method indicates the mesh changes occur around the crack-front region only, leading to a computationally efficient solution of the crack-growth problem.
- Experimental and numerical results of crack propagation indicate the growth of cracks is sharp before 90 kN. After 90 kN, the growth of cracks slows. The structural performance of prestressed concrete sleepers is observed.
- Effects of time-dependent behaviour including creep, shrinkage and relaxation are considered in the crack propagation analysis. Loss of prestress due to time-dependent behaviour reduces crack resistance of prestressed concrete sleepers.
- It is found that the crack lengths in sleepers are greater over time subject to time-dependent behaviour under the same loads. In the long-term, this effect becomes more significant.
- Crack propagation subject to relaxation has less influence than creep and shrinkage. The effects of creep and shrinkage in crack propagation are similar to each other. This point demonstrates that the time-dependent behaviour of prestressed concrete sleepers in the concrete part has more influence than the tendon part.
- A combination of the effect of time-dependent behaviour severely reduces the crack resistance of railway sleepers. In the static capacity test, a 116 mm long crack length under 140 kN was regarded as a failure. However, in this research, crack resistance of the prestressed concrete sleeper subject to all those time-dependent behaviours decreases over time. According to the numerical results, failure can happen under 100 kN external loads over a 10-year service life.
The results show that crack propagation is heavily dependent on time-dependent behaviour. Therefore, a reliable approach for evaluating crack propagation subject to time-dependent behaviour needs to be developed to improve railway infrastructures in the future. A limit of this study is the lack of dynamic experimental data. However, the static investigation of cracking behaviour can also provide a reasonable analysis of the structural performance of prestressed concrete sleepers.
The results of this study provide an opinion that railway engineers should consider the parameters affecting time-dependent behaviour such as relative humidity, temperature, concrete strength, etc., to improve long-term serviceability. For future research, it is suggested that the new materials such as crumb rubber can be used in prestressed concrete sleepers to investigate whether the crack resistance can be improved. It is also suggested that experimental and numerical investigation should be conducted for the rail-seat section. The outcome of this paper will enhance the reliability and safety of track components, and railway sleeper manufacturers could use the numerical model to assess their product designs.
Author Contributions
Conceptualization, D.L. and S.K.; methodology, D.L.; software, D.L.; validation, D.L., R.Y. and S.K.; formal analysis, D.L.; investigation, D.L. and R.Y.; resources, R.Y.; data curation, D.L.; writing—original draft preparation, D.L.; writing—review and editing, S.K.; visualization, D.L.; supervision, S.K.; project administration, S.K.; funding acquisition, S.K. All authors have read and agreed to the published version of the manuscript.
Funding
This research was funded by the European Commission, grant number: H2020-MSCA-RISE No. 691135.
Institutional Review Board Statement
Not applicable.
Informed Consent Statement
Not applicable.
Data Availability Statement
The data that support the findings of this study are available from the corresponding author upon reasonable request.
Acknowledgments
The authors are grateful to the Track Engineering and Operations for Future Uncertainties (TOFU) Lab, University of Birmingham for support throughout this study. The authors would like to thank the Commission for H2020-MSCA-RISE, Project No. 691135 “RISEN: Rail Infrastructure Systems Engineering Network” (www.risen2rail.eu (accessed on 9 September 2021)) [42]. In addition, the authors wish to thank the financial support of the China Railway (No K2021G015) and China Academy of Railway Sciences Corporation Limited (No 2020YJ031) for experimental programs.
Conflicts of Interest
The authors declare no conflict of interest.
References
- Taherinezhad, J.; Sofi, M.; Mendis, P.A.; Ngo, T.D. A review of behaviour of prestressed concrete sleepers. Electron. J. Struct. Eng. 2013, 13, 1–16. [Google Scholar]
- Li, D.; Kaewunruen, S.; You, R. Time-dependent behaviours of railway prestressed concrete sleepers in a track system. Eng. Fail. Anal. 2021, 127, 105500. [Google Scholar] [CrossRef]
- Kaewunruen, S.; Remennikov, A.M. Impact capacity of railway prestressed concrete sleepers. Eng. Fail. Anal. 2009, 16, 1520–1532. [Google Scholar] [CrossRef]
- Esveld, C.; Esveld, C. Modern Railway Track; MRT-Productions: Zaltbommel, The Netherlands, 2001; Volume 385. [Google Scholar]
- Thun, H. Assessment of Fatigue Resistance and Strength in Existing Concrete Structures. Ph.D. Thesis, Luleå Tekniska Universitet, Luleå, Sweden, 2006. [Google Scholar]
- Remennikov, A.M.; Kaewunruen, S. Experimental load rating of aged railway concrete sleepers. Eng. Struct. 2014, 76, 147–162. [Google Scholar] [CrossRef] [Green Version]
- Van Dyk, B.J.; Dersch, M.S.; Edwards, J. International Concrete Crosstie and Fastening System Survey—Final Results; University of Illinois at Urbana-Champaign: Champaign, IL, USA, 2012. [Google Scholar]
- Ferdous, W.; Manalo, A. Failures of mainline railway sleepers and suggested remedies—Review of current practice. Eng. Fail. Anal. 2014, 44, 17–35. [Google Scholar] [CrossRef]
- Van Hung, N.; Hung, V.V.; Viet, T.B. The effect of crack width on the service life of reinforced concrete structures. IOP Conf. Ser. Earth Environ. Sci. 2018, 143, 012044. [Google Scholar] [CrossRef]
- Murray, M.; Cai, Z. Literature Review on the Design of Railway Prestressed Concrete Sleeper. RSTA Research Report. 1998. Available online: https://ro.uow.edu.au/cgi/viewcontent.cgi?article=1382&context=engpapers&httpsredir=1&referer= (accessed on 12 February 2022).
- Kaewunruen, S. Experimental and Numerical Studies for Evaluating Dynamic Behaviour of Prestressed Concrete Sleepers Subject to Severe Impact Loading. Ph.D. Thesis, School of Civil, Mining & Environmental Engineering, University of Wollongong, Wollongong, Australia, 2007. [Google Scholar]
- Kaewunruen, S. Remennikov, A. Experimental and numerical studies of railway prestressed concrete sleepers under static and impact loads. Civ. Comput. 2007, 3, 25–28. [Google Scholar]
- Kaewunruen, S.; Remennikov, A. On the residual energy toughness of prestressed concrete sleepers in railway track structures subjected to repeated impact loads. Electron. J. Struct. Eng. 2013, 13, 41–61. [Google Scholar]
- Kaewunruen, S.; Remennikov, A.M.; Murray, M.H. Introducing a new limit states design concept to railway concrete sleepers: An Australian experience. Front. Mater. 2014, 1, 8. [Google Scholar] [CrossRef] [Green Version]
- Remennikov, A.M.; Kaewunruen, S. A review of loading conditions for railway track structures due to train and track vertical interaction. Struct. Control Health Monit. 2008, 15, 207–234. [Google Scholar] [CrossRef]
- Remennikov, A.; Murray, M.H.; Kaewunruen, S. Reliability-based conversion of a structural design code for railway prestressed concrete sleepers. Proc. Inst. Mech. Eng. Part F J. Rail Rapid Transit 2012, 226, 155–173. [Google Scholar] [CrossRef] [Green Version]
- Domingo, L.M.; Martin, C.Z.; Avilés, C.P.; Herraiz, J.I.R. Analysis of the influence of cracked sleepers under static loading on ballasted railway tracks. Sci. World J. 2014, 2014, 363547. [Google Scholar]
- Bakharev, T.; Struble, L. Microstructural features of railseat deterioration in concrete ties. J. Mater. Civ. Eng. 1997, 9, 146–153. [Google Scholar] [CrossRef]
- Remennikov, A.; Kaewunruen, S. Resistance of railway concrete sleepers to impact loading. In Proceedings of the 7th International Conference on Shock and Impact Loads on Structures, Beijing, China, 17–19 October 2007; pp. 489–496. [Google Scholar]
- Zakeri, J.A.; Sadeghi, J. Field investigation on load distribution and deflections of railway track sleepers. J. Mech. Sci. Technol. 2007, 21, 1948–1956. [Google Scholar] [CrossRef]
- Sadeghi, J.; Barati, P. Comparisons of the mechanical properties of timber, steel and concrete sleepers. Struct. Infrastruct. Eng. 2012, 8, 1151–1159. [Google Scholar] [CrossRef]
- Li, D.; Kaewunruen, S.; Robery, P.; Remennikov, A. Creep and Shrinkage Models for Railway Prestressed Concrete Sleepers: A review. In Proceedings of the 15th East-Asia Pacific Conference on Structural Engineering and Construction: Railway Infrastructure, Xi’an, China, 11–13 October 2017. [Google Scholar]
- Li, D.; Kaewunruen, S.; Robery, P.; Remennikov, A. Long-Term Behaviours of Railway Prestressed Concrete Sleepers Due to Shortening Parameters. In Proceedings of the 15th East-Asia Pacific Conference on Structural Engineering and Construction: Railway Infrastructure, Xi’an, China, 11–13 October 2017. [Google Scholar]
- Li, D.; Kaewunruen, S.; Robery, P.; Remennikov, A.M. Parametric Studies Into Creep and Shrinkage Characteristics in Railway Prestressed Concrete Sleepers. Front. Built Environ. 2020, 6, 130. [Google Scholar] [CrossRef]
- Li, D.; Kaewunruen, S.; Robery, P.; Remennikov, A.M. Creep and Shrinkage Effects on Railway Prestressed Concrete Sleepers. In ICRT 2017: Railway Development, Operations, and Maintenance; American Society of Civil Engineers: Reston, VA, USA, 2018; pp. 394–405. [Google Scholar]
- Jokūbaitis, A.; Valivonis, J.; Marčiukaitis, G. Analysis of strain state and cracking of cocnrete sleepers. J. Civ. Eng. Manag. 2016, 22, 564–572. [Google Scholar] [CrossRef] [Green Version]
- Li, D.; Kaewunruen, S. Effect of extreme climate on topology of railway prestressed concrete sleepers. Climate 2019, 7, 17. [Google Scholar] [CrossRef] [Green Version]
- Rezaie, F.; Shiri, M.; Farnam, S. Experimental and numerical studies of longitudinal crack control for pre-stressed concrete sleepers. Eng. Fail. Anal. 2012, 26, 21–30. [Google Scholar] [CrossRef]
- Tehrani, F.M.; Serrano, R.M. Crack propagation of concrete beams prestressed with single strand tendons. J. Civ. Eng. Res. 2014, 4, 71–81. [Google Scholar]
- Farnam, S.; Rezaie, F. Simulation of crack propagation in prestressed concrete sleepers by fracture mechanics. Eng. Fail. Anal. 2019, 96, 109–117. [Google Scholar] [CrossRef]
- Jing, G.; Yunchang, D.; You, R.; Siahkouhi, M. Comparison study of crack propagation in rubberized and conventional prestressed concrete sleepers using digital image correlation. Proc. Inst. Mech. Eng. Part F J. Rail Rapid Transit 2021, 09544097211020595. [Google Scholar] [CrossRef]
- Ansys; Release 18.1; ANSYS® Academic Research Mechanical: Canonsburg, PA, USA, 2018.
- Kulakov, P.; Kutlubulatov, B.; Rubtsov1, A.; Mukhametzyanov, Z.; Afanasenko, V. The Assessment of Impact of the Crack Size on the Fracture Load of a Cylindrical Element. In Proceedings of the CEUR Workshop, Krasnoyarsk, Russia, 28 May 2021. [Google Scholar]
- Edwards, J.R.; Gao, Z.; Wolf, H.E.; Dersch, M.S.; Qian, Y. Quantification of concrete railway sleeper bending moments using surface strain gauges. Measurement 2017, 111, 197–207. [Google Scholar] [CrossRef]
- Van Dyk, B. Characterization of the Loading Environment for Shared-Use Railway Superstructure in North America. Master’s Thesis, University of Illinois at Urbana, Champaign, IL, USA, 2015. [Google Scholar]
- EN 13230-2; Railway Applications-Track-Concrete Sleepers and Bearers Part 2: Prestressed Monoblock Sleepers. European Standards: Brussels, Belgium, 2009.
- Huang, C.H.; Wu, C.H.; Lin, S.K.; Yen, T. Effect of slag particle size on fracture toughness of concrete. Appl. Sci. 2019, 9, 805. [Google Scholar] [CrossRef] [Green Version]
- Li, D.; Kaewunruen, S.; Robery, P. Early-Age Responses of Railway Prestressed Concrete Sleepers to Creep and Shrinkage. In Proceedings of the 2nd International RILEM/COST Conference on Early Age Cracking and Serviceability, Brussels, Belgium, 12–14 September 2017. [Google Scholar]
- Li, D.; Ngamkhanong, C.; Kaewunruen, S. Time-dependent topology of railway prestressed concrete sleepers. IOP Conf. Ser. Mater. Sci. Eng. 2017, 245, 032046. [Google Scholar] [CrossRef]
- Li, D.; Ngamkhanong, C.; Kaewunruen, S. Influence of surface abrasion on creep and shrinkage of railway prestressed concrete sleepers. IOP Conf. Ser. Mater. Sci. Eng. 2017, 245, 032040. [Google Scholar] [CrossRef] [Green Version]
- Li, D.; Ngamkhanong, C.; Kaewunruen, S. Influence of vertical holes on creep and shrinkage of railway prestressed concrete sleepers. IOP Conf. Ser. Mater. Sci. Eng. 2017, 236, 012042. [Google Scholar] [CrossRef]
- Kaewunruen, S.; Sussman, J.M.; Matsumoto, A. Grand challenges in transportation and transit systems. Front. Built Environ. 2016, 2, 4. [Google Scholar] [CrossRef] [Green Version]
Publisher’s Note: MDPI stays neutral with regard to jurisdictional claims in published maps and institutional affiliations. |
© 2022 by the authors. Licensee MDPI, Basel, Switzerland. This article is an open access article distributed under the terms and conditions of the Creative Commons Attribution (CC BY) license (https://creativecommons.org/licenses/by/4.0/).