Probabilistic and Semi-Probabilistic Analysis of Slender Columns Frequently Used in Structural Engineering
Abstract
1. Introduction
- (a)
- The clear definition of the steps required for the probabilistic verification of the N-M stability of slender columns with regard to scattering interaction diagrams (I-D) [see EN 1992-1] [8].
- (b)
- (c)
- The study of the sensitivities, which vary with the load level (N-M interaction load level), of the descriptive model input variables for both the column cross-sectional level and the column component level in relation to the column load-bearing capacity and the column deformation.
- (d)
- The determination of the global safety resistance factors according to the “Estimation of the Co-efficient of Variation” (ECOV) method using the non-linear finite element responses generated by means of Latin Hyper Cube Sampling and from responses to experiments as well as the suitability of the global safety resistance factors for reliability assessment.
2. Probabilistic Non-Linear Computation
2.1. Reliability Levels
- Level III: limit state functions and distribution functions for the random variables are introduced without any approximation; calculations are usually based on Monte Carlo simulation or straightforward numerical integration;
- Level II: the amount of calculation efforts is reduced by adopting well-chosen linearization techniques, usually the so called First Order Reliability Method; the degree of accuracy may strongly depend on the details of the problem at hand;
- Level I: the variables Xi are introduced by one single value only; this value is referred to as the design value. This method does not actually calculate a failure probability but only checks whether some defined target level is attained or not. It is the basis for partial safety factor format (PSFM) which is defined in Eurocodes as the basic design format for new structures and it is the design and assessment procedure in everyday practice and is referred to as the semi-probabilistic level.
- It is assumed that the variables in a limit state function are in a first approach independent from each other. Although correlations between variables can be taken into account in computational programs, they are difficult to determine and convolute the algorithms.
- The analysis does not take into account human error. The failure probabilities pf discussed herein are conditional on the assumption that there are no errors affecting the resistance and loading condition of the case study. To reduce errors, special strategies and quality control measures are required.
2.2. Limit State Design
2.3. Sampling Methods
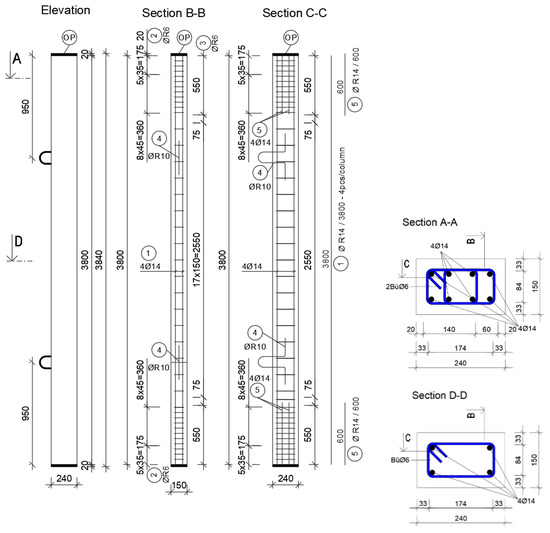
3. Investigated Columns
3.1. Layout and Test Results
3.2. Reliability Assessment
4. Probabilistic Analyses
4.1. Slenderness
- is the minimum radius of gyration:
- is the moment of inertia
- is the concrete cross-sectional area
- is the effective length of the member which can be assumed to be:where:
- is the clear height of the member
- β is a coefficient which depends on the support conditions.
4.2. Simplified Design Formats
- is the axial resistance
- is the overall width of the cross-section
- is the overall depth of the cross-section
- fcd,pl is the design compressive strength for plain concrete
- is the first order eccentricity including, where relevant, the effects of floors (e.g., possible clamping moments transmitted to the wall from a slab) and horizontal actions.
- is the additional eccentricity covering the effects of geometrical imperfections.
4.3. Non-Linear Analysis Formats
4.4. Simplified Basic Variables Xi
4.5. Elements of the Limit State Formulations
4.6. Sensitivity Analyses
4.6.1. Cross-Sectional Level
4.6.2. Component Level
4.7. Standard Based Analyses
4.8. Non-Linear Finite Element Analyses
4.8.1. General
4.8.2. Pre NLFEM-Modeling
4.8.3. Probabilistic NLFEM-Modeling
4.9. ECOV Analyses
5. Conclusions
Author Contributions
Funding
Institutional Review Board Statement
Informed Consent Statement
Data Availability Statement
Acknowledgments
Conflicts of Interest
References
- JCSS. JCSS Probabilistic Model Code. Available online: https://www.jcss-lc.org/jcss-probabilistic-model-code/ (accessed on 18 August 2021).
- Faber, M. Statistics and Probability Theory; Springer: Berlin, Germany, 2012. [Google Scholar]
- Benko, V. Nichtlineare Berechnung von Stahlbetondruckglieder. (Nonlinear analysis of reinforced concrete compression members). Innov. Betonbau 2001, 27, 9–12. [Google Scholar]
- Strauss, A.; Ivanković, A.M.; Benko, V.; Matos, J.; Marchand, P.; Wan-Wendner, R.; Galvão, N.; Orcesi, A.; Dobrý, J.; Diab, M.E.H.; et al. Round-Robin Modelling of the Load-bearing Capacity of Slender Columns by Using Classical and Advanced Non-linear Numerical and Analytical Prediction Tools. Struct. Eng. Int. 2021, 31, 118–135. [Google Scholar] [CrossRef]
- Benko, V.; Gúcky, T.; Valašík, A. The reliability of slender concrete columns subjected to a loss of stability. In Advances and Trends in Engineering Sciences and Technologies II, Proceedings of the 2nd International Conference on Engineering Sciences and Technologies, ESaT 2016, Vysoké Tatry, Slovak Republic, 29 June–1 July 2016; Taylor & Francis: London, UK, 2017. [Google Scholar] [CrossRef]
- Benko, V.; Dobrý, J.; Čuhák, M. Failure of Slender Concrete Columns Due to a Loss of Stability. Slovak J. Civ. Eng. 2019, 27, 45–51. [Google Scholar] [CrossRef]
- CEB-FIP. Practitioners’ Guide to Finite Element Modelling of Reinforced Concrete Structures; Fib Fédération Internationale du Béton: Lausanne, Switzerland, 2008. [Google Scholar]
- EN 1992-1-1. Eurocode 2: Design of Concrete Structures—Part 1-1: General Rules and Rules for Buildings; European Standard: Brussels, Belgium, 2004; Volume 1. [Google Scholar]
- Shlune, H.; Gylltoft, K.; Plos, M. Safety format for non-linear analysis of concrete structures. Mag. Concr. Res. 2012, 64, 563–574. [Google Scholar] [CrossRef]
- Holicky, M. Global resistance factors for reinforced concrete members. In Proceedings of the 1st International Symposium on Uncertainty Modelling in Engineering, Prague, Czech Republic, 2–3 May 2011. [Google Scholar]
- Cervenka, V. Global Safety formats in Fib Model Code 2010 for Design of Concrete Structures. In Proceedings of the 11th Probabilistic Workshop, Brno, Czech Republic, 6–8 November 2013. [Google Scholar]
- Cervenka, V. Reliability-based non-linear analysis according to Model Code 2010. Struct. Concr. 2013, 14, 19–28. [Google Scholar] [CrossRef]
- Caspeele, R.; Steenbergen, R.; Sykora, M. Partial Factor Methods for Existing Concrete Structures; FIB Bulletin No. 80; FIB: Lausanne, Switzerland, 2016; ISBN 978-2-88394-120-5. [Google Scholar] [CrossRef]
- Engen, M.; Hendriks, M.; Köhler, J.; Øverli, J.; Åldtstedt, E. A quantification of modelling uncertainty for non-linear finite element analysis of large concrete structures. Struct. Saf. 2017, 64, 1–8. [Google Scholar] [CrossRef]
- Castaldo, P.; Gino, D.; Bertagnoli, G.; Mancini, G. Partial safety factor for resistance model uncertainties in 2D non-linear analysis of reinforced concrete structures. Eng. Struct. 2018, 176, 746–762. [Google Scholar] [CrossRef]
- Moccia, F.; Yu, Q.; Ruiz, M.F.; Muttoni, A. Concrete compressive strength: From material characterization to a structural value. Struct. Concr. 2021, 22, E655–E682. [Google Scholar] [CrossRef]
- Momeni, M.; Bedon, C. Uncertainty Assessment for the Buckling Analysis of Glass Columns with Random Parameters. Int. J. Struct. Glass Adv. Mater. Res. 2020, 4, 254–275. [Google Scholar]
- Mehmel, A.; Schwarz, H.; Karperek, K.; Makovi, J. Tragverhalten Ausmittig Beanspruchter Stahlbetondruckglieder; Institut Für Baustatik, EHT, Deutscher Ausschuss für Stahlbeton, Heft. 204; DafStb: Berlin, Germany, 1969. [Google Scholar]
- Foster, S.; Attard, M. Experimental tests on eccentrically loaded high strength concrete columns. Struct. J. 1997, 94, 295–303. [Google Scholar]
- Allaix, D.; Carbone, V.; Mancini, G. Global safety format for non-linear analysis of reinforced concrete structures. Struct. Concr. 2013, 14, 29–42. [Google Scholar] [CrossRef]
- Cervenka, V.; Cervenka, J.; Kadlek, L. Model uncertainties in numerical simulations of reinforced concrete structures. Struct. Concr. 2018, 19, 2004–2016. [Google Scholar] [CrossRef]
- Gino, D.; Castaldo, P.; Giordano, L.; Mancini, G. Model uncertainty in non-linear numerical analyses of slender reinforced concrete members. Struct. Concr. 2021, 22, 845–870. [Google Scholar] [CrossRef]
- Ditlevsen, O.; Madsen, H. Structural Reliability Methods; John Wiley & Sons Ltd.: Chicheste, Denmark, 1996. [Google Scholar]
- Ang, A.H.; Tang, W.H. Probability Concepts in Engineering Planning, 2nd ed.; John Wiley & Sons, Inc.: Hoboken, NJ, USA, 2007. [Google Scholar]
- Hendriks, M.A.N.; de Boer, A.; Belletti, B. Guidelines for Nonlinear Finite Element Analysis of Concrete Structures: Girder Members; Report RTD:1016:2012; Rijkswaterstaat Ministry of Infrastructure and Water Management: The Hague, The Netherlands, 2012. [Google Scholar]
- European Committee for Standardization (CEN). EN 1990, Eurocode 0: Basis of Structural Design; CEN: European Standard: Brussels, Belgium, 2005. [Google Scholar]
- International Federation for Structural Concrete (FIB). Model Code for Concrete Structures; Ernst & Sohn: Lausanne, Switzerland, 2010. [Google Scholar]
- Novák, D.; Vořechovský, M.; Teplý, B. FReET: Software for the statistical and reliability analysis of engineering problems and FReET-D: Degradation module. Adv. Eng. Softw. Adv. Eng. Softw. 2014, 72, 179–192. [Google Scholar] [CrossRef]
- Beletti, B.; Vecchi, F.; Cosma, M.P.; Strauss, A. Non linear structural analyses of prestressed concrete girder: Tools and safety formats. In Life-Cycle Analysis and Assessment in Civil Engineering. Towards an Integrated Vision, Proceedings of the Sixth International Symposium on Life-Cycle Civil Engineering, Ghent, Belgium, 28–31 October 2008; Caspeele, R., Taerwe, L., Frangopol, D.M., Eds.; Taylor & Francis Group: London, UK, 2018. [Google Scholar]
- Achenbach, M.; Gernay, T.; Morgenthal, G. Quantification of model uncertainties for reinforced concrete columns subjected to fire. Fire Saf. J. 2019, 108, 102832. [Google Scholar] [CrossRef]
- Zimmermann, T.; Lehký, D.; Strauss, A. Correlation among selected fracture-mechanical parameters of concrete obtained from experiments and inverse analyses. Struct. Concr. 2016, 17, 1094–1103. [Google Scholar] [CrossRef]
- Strauss, A.; Krug, B.; Slowik, O.; Novak, D. Combined shear and flexure performance of prestressing concrete T-shaped beams: Experiment and deterministic modeling. Struct. Concr. 2018, 19, 16–35. [Google Scholar] [CrossRef]
- Strauss, A.; Benko, V.; Taubling, B.; Valasik, A.; Cuhak, M. Reliability of slender columns. Beton-Stahlbetonbau 2017, 112, 392–401. [Google Scholar] [CrossRef]
- Červenka, V.; Jendele, L.; Červenka, J. Atena Program Documentation—Part 1: Theory; Cervenka Consulting: Prague, Czech Republic, 2007. [Google Scholar]
- Tau, K.; Agresti, A. Analysis of Ordinal Categorical Data, 2nd ed.; John Wiley & Sons: New York, NY, USA, 2010. [Google Scholar]
- Strauss, A.; Novák, D.; Lehký, D.; Vořechovský, M.; Teplý, B.; Pukl, R.; Červenka, V.; Eichinger-Vill, E.M.; Santa, U. Safety analysis and reliability assessment of engineering structures—The success sotry of SARA. Ce/Papers 2019, 3, 38–47. [Google Scholar] [CrossRef]
- Strauss, A.; Wan-Wendner, R.; Vidovic, A.; Zambon, I.; Yu, Q.; Frangopol, D.M.; Bergmeister, K. Gamma prediction models for long-term creep deformations of prestressed concrete bridges. J. Civ. Eng. Manag. 2017, 23, 681–698. [Google Scholar] [CrossRef][Green Version]














| Description | Symbol | Unit | Value |
|---|---|---|---|
| Width of column cross-section | b | mm | 240 |
| Height of column cross-section | h | mm | 150 |
| Distance from topmost compression face to the centroid of compression reinforcement | d’ | mm | 33 |
| Distance from topmost compression face to the centroid of tensile reinforcement | d | mm | 117 |
| Cross-sectional area of RC column | Ac | mm2 | 36,000 |
| Cross-sectional area of tensile reinforcement | As | mm2 | 307.88 |
| Cross-sectional area of compression reinforcement | A’s | mm2 | 307.88 |
| Characteristic compressive strength of concrete (for assoc. parameters see table in Section 4.5 | f’ck | N/mm2 | 55 |
| Yield strength of reinforcing reinforcement | fsy | N/mm2 | 500 |
| Young modulus of reinforcing reinforcement | Es | N/mm2 | 200,000 |
| Ultimate strain of concrete in compression | εcu | - | Varied |
| Ratio of the depth of equivalent compression block to that of actual compression | β | - | Varied |
| Eccentricity | e | mm | 40 |
| Test | Nmax (kN) | e2 (mm) | Mmax (kNm) |
|---|---|---|---|
| S1-1 | 324.4 | 57.6 | 31.7 |
| S1-2 | 323.4 | 42.7 | 26.8 |
| S1-3 | 332.6 | 38.3 | 26.0 |
| S1-4 | 271.2 | 58.4 | 26.7 |
| S1-5 | 296.0 | 59.4 | 29.4 |
| S1-6 | 311.4 | 55.0 | 29.6 |
| X | Variable | Dis. ** | Unit | Xk | µ | σ | |
|---|---|---|---|---|---|---|---|
| C45/55 | |||||||
| X1 | Eci a,b,c | Initial tangent concrete modulus of elasticity | LN | GPa | 37.5 | 37.5 | 4.91 |
| X2 | Es a,b,c | Reinforcing steel modulus of elasticity | D | GPa | 200 | 200 | - |
| X3 * | As1b | Reinforcement area | N | cm2 | 3.08 | 3.08 | 0.062 |
| X4 * | As2b | Reinforcement area | N | cm2 | 3.08 | 3.08 | 0.062 |
| X5 * | H b | Height | N | cm | 15.0 | 15.0 | 0.30 |
| X6 * | B b | Width | N | cm | 24.0 | 24.0 | 0.45 |
| X7 * | d b | Axis distance of reinforcement | LN | cm | 3.30 | 3.30 | 0.50 |
| X8 * | d2b | Axis distance of reinforcement | LN | cm | 3.30 | 3.30 | 0.50 |
| X9 * | e1b | Eccentricity | N | cm | 4.00 | 4.00 | 0.10 *** |
| X10 * | εc,1 b | Strain at max. compressive stress | LN | ‰ | −2.40 | −2.40 | 0.11 |
| X11 | fc a,b,c | Concrete compressive strength | LN | MPa | 45.0 | 53.0 | 5.13 |
| X12 | fct a,b,c | Concrete tensile strength | LN | MPa | 2.7 | 3.8 | 0.78 |
| X13 | GF a,b,c | Concrete fracture energy | LN | MPa | 104 | 149 | 30.8 |
| X14 | εc,lim a,b,c | Ultimate strain | LN | ‰ | −3.50 | −3.50 | 0.10 *** |
| X15 | εct,max a,b,c | Maximum tensile strain | LN | ‰ | 0.15 | 0.15 | 0.10 *** |
| X16 | k1b | Tension stiffening factor (fct) | LN | 0.6 | 0.6 | 0.10 *** | |
| X17 | k2b | Tension stiffening factor (εct,max) | LN | 5.0 | 5.0 | 0.10 *** | |
| X18 | fy a,b,c | Reinforcing steel yield strength | LN | MPa | 500 | 548 | 40.0 |
| X19 | k b | Ratio (ft/fy)k for ductility class B | D | ‰ | 1.08 | 1.08 | - |
| X20 | εu b | Strain at max. tensile stress | D | ‰ | 50 | 50 | - |
| X21 | L a,b,c | Length | D | M | 1.92 | - | - |
| X22 | θR b | Resistance model uncertainty | LN | - | 1.00 | 1.00 | 0.10 *** |
| Variables for each step of the analysis at the system level—obtained from non-linear analysis in Sofistik software | |||||||
| X23 | εc,c b | Concrete compressive strain | D | ‰ | Software-based | ||
| X24 | εc,t b | Concrete tension strain | D | ‰ | Software-based | ||
| X25 | N b | Axial acting force | D | kN | Software-based | ||
| X26 | αv b | Concrete force associated coefficient | D | / | Calculated | ||
| X27 | ka b | Concrete compressive border zone associated coefficient | D | / | Calculated | ||
| X28 | e2b | Second-order eccentricity | D | Mm | Software-based | ||
| X | Variable | Dist. | Unit | Xk | µ | σ | |
|---|---|---|---|---|---|---|---|
| C100/115 | |||||||
| X1 | Eci | Initial tangent concrete modulus of elasticity | LN | GPa | 48.9 | 48.9 | 6.23 |
| X2 | Es | Reinforcing steel modulus of elasticity | D. | GPa | 200 | 200 | - |
| X11 | fc | Concrete compressive strength | LN | MPa | 100.0 | 108.0 | 4.99 |
| X12 | fct | Concrete tensile strength | LN | MPa | 3.7 | 5.2 | 1.08 |
| X13 | GF | Concrete fracture energy | LN | MPa | 119 | 170 | 35.0 |
| X18 | fy | Reinforcing steel yield strength | LN | MPa | 500 | 548 | 40.0 |
| C45/55 and C100/115 | |||||||
|---|---|---|---|---|---|---|---|
| Eci | Es | fc | fct | GF | fy | ||
| X1 | Eci | 1 | 0 | 0.7 | 0.6 | 0.8 | 0 |
| X2 | Es | 1 | 0 | 0 | 0 | 0 | |
| X11 | fc | 1 | 0.9 | 0.7 | 0 | ||
| X12 | fct | 1 | 0.5 | 0 | |||
| X13 | GF | 1 | 0 | ||||
| X18 | fy | 1 | |||||
| Safety Level | = 3.8 | = 4.2 | |||||||
|---|---|---|---|---|---|---|---|---|---|
| γRN | Nd (kN) | γRM | Md (kNm) | γRN | Nd (kN) | γRM | Md (kNm) | ||
| Stiffness Method | 1.28 | 170.27 | 1.28 | 21.64 | 1.32 | 165.88 | 1.32 | 21.08 | |
| NLFEM γRd = 1.1 | BOKU | 1.37 | 246.33 | 1.32 | 17.87 | 1.41 | 238.36 | 1.36 | 17.35 |
| STUBA | 1.41 | 228.90 | 1.24 | 16.11 | 1.46 | 220.81 | 1.27 | 15.75 | |
| U-MINHO | 1.41 | 232.15 | 1.32 | 20.96 | 1.46 | 223.93 | 1.36 | 20.35 | |
| UNIZG-FCE | 1.32 | 226.80 | 1.24 | 22.70 | 1.36 | 220.23 | 1.27 | 22.18 | |
| NLFEM γRd = 1.06 | BOKU | 1.37 | 255.67 | 1.32 | 18.54 | 1.32 | 247.30 | 1.32 | 18.00 |
| STUBA | 1.41 | 237.49 | 1.24 | 16.71 | 1.41 | 229.10 | 1.36 | 16.33 | |
| U-MINHO | 1.41 | 240.91 | 1.32 | 21.75 | 1.46 | 232.34 | 1.27 | 21.12 | |
| UNIZG-FCE | 1.32 | 235.38 | 1.24 | 23.55 | 1.46 | 228.51 | 1.36 | 23.02 | |
| Experiments | 1.24 | 235.41 | 1.28 | 20.91 | 1.23 | 230.07 | 1.32 | 20.37 | |
Publisher’s Note: MDPI stays neutral with regard to jurisdictional claims in published maps and institutional affiliations. |
© 2021 by the authors. Licensee MDPI, Basel, Switzerland. This article is an open access article distributed under the terms and conditions of the Creative Commons Attribution (CC BY) license (https://creativecommons.org/licenses/by/4.0/).
Share and Cite
Strauss, A.; Hauser, M.; Täubling, B.; Ivanković, A.M.; Skokandić, D.; Matos, J.; Galvão, N.; Benko, V.; Dobrý, J.; Wan-Wendner, R.; et al. Probabilistic and Semi-Probabilistic Analysis of Slender Columns Frequently Used in Structural Engineering. Appl. Sci. 2021, 11, 8009. https://doi.org/10.3390/app11178009
Strauss A, Hauser M, Täubling B, Ivanković AM, Skokandić D, Matos J, Galvão N, Benko V, Dobrý J, Wan-Wendner R, et al. Probabilistic and Semi-Probabilistic Analysis of Slender Columns Frequently Used in Structural Engineering. Applied Sciences. 2021; 11(17):8009. https://doi.org/10.3390/app11178009
Chicago/Turabian StyleStrauss, Alfred, Michael Hauser, Benjamin Täubling, Ana Mandić Ivanković, Dominik Skokandić, José Matos, Neryvaldo Galvão, Vladimir Benko, Jakub Dobrý, Roman Wan-Wendner, and et al. 2021. "Probabilistic and Semi-Probabilistic Analysis of Slender Columns Frequently Used in Structural Engineering" Applied Sciences 11, no. 17: 8009. https://doi.org/10.3390/app11178009
APA StyleStrauss, A., Hauser, M., Täubling, B., Ivanković, A. M., Skokandić, D., Matos, J., Galvão, N., Benko, V., Dobrý, J., Wan-Wendner, R., Ninčević, K., & Orcesi, A. (2021). Probabilistic and Semi-Probabilistic Analysis of Slender Columns Frequently Used in Structural Engineering. Applied Sciences, 11(17), 8009. https://doi.org/10.3390/app11178009

