Engineering Geological and Geophysical Studies Supporting Finite Element Analysis of Historical Buildings after Dynamic Identification
Abstract
1. Introduction
The Case Study: Description of the Bell Tower
2. The Study Area
2.1. Geological Setting
2.2. Seismic History and Seismic Hazard of Aci Castello
3. Subsoil Characterization
3.1. Engineering Geological Properties of the Volcanic Bedrock
3.2. Geophysical Characterization of the Subsoil
3.2.1. HVSR Surveys
3.2.2. Seismic Tomography
3.2.3. MASW Surveys
3.3. Results Arising from Field Surveys
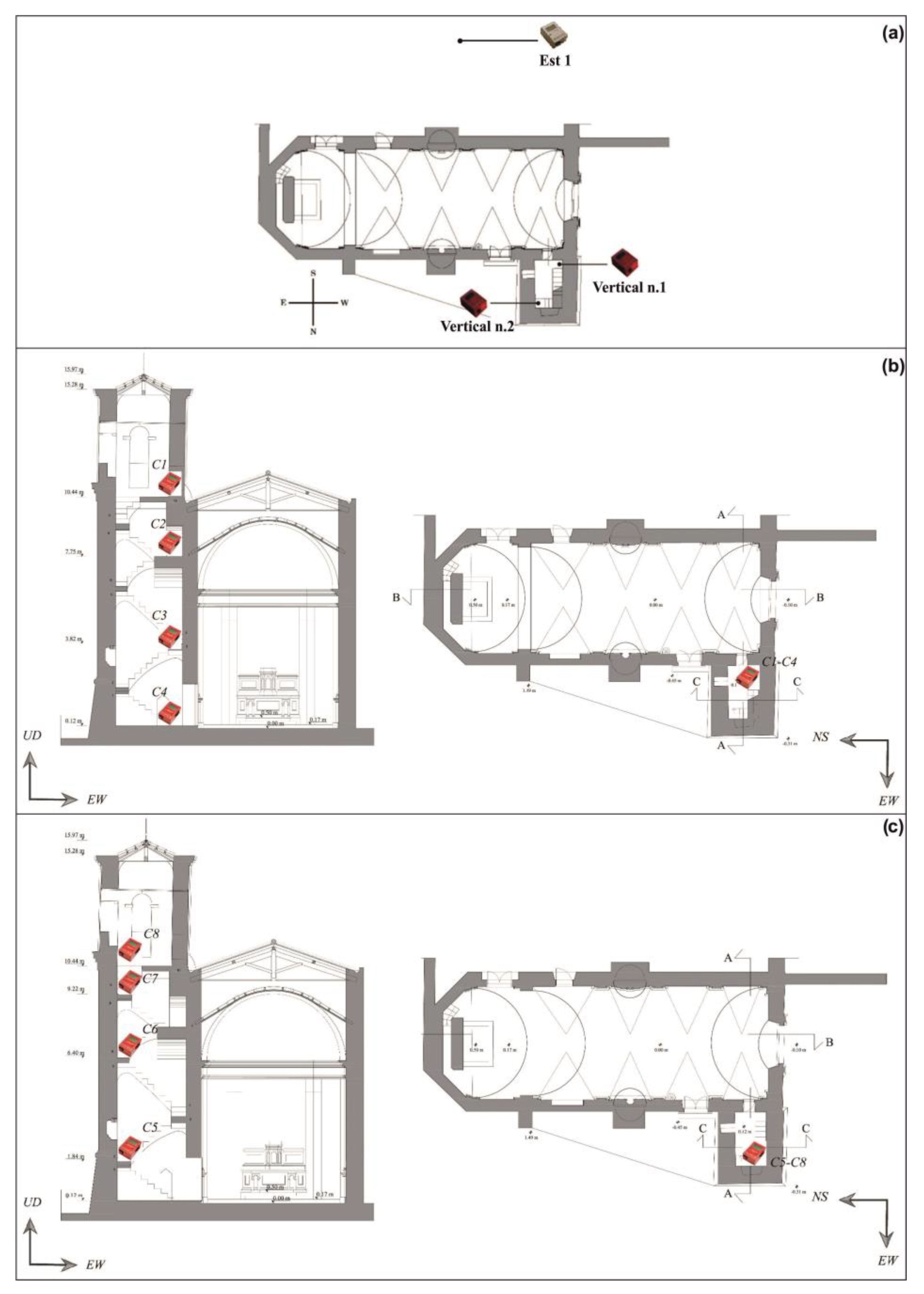
4. Dynamic Identification of the Bell Tower
5. Numerical Model
5.1. Modal Analysis of Fixed Base Tower
5.2. Numerical Model Accounting for the Subsoil
6. Concluding Remarks
Author Contributions
Funding
Institutional Review Board Statement
Informed Consent Statement
Data Availability Statement
Conflicts of Interest
References
- Sánchez-Aparicio, L.J.; Riveiro, B.; González-Aguilera, D.; Ramos, L.F. The combination of geomatic approaches and operational modal analysis to improve calibration of finite element models: A case of study in Saint Torcato Church (Guimarães, Portugal). Constr. Build. Mater. 2014, 70, 118–129. [Google Scholar] [CrossRef]
- Funari, M.F.; Hajjat, A.E.; Masciotta, M.G.; Oliveira, D.V.; Lourenço, P.B. A Parametric Scan-to-FEM Framework for the Digital Twin Generation of Historic Masonry Structures. Sustainability 2021, 13, 11088. [Google Scholar] [CrossRef]
- Gentile, C.; Saisi, A. Ambient vibration testing of historic masonry towers for structural identification and damage assessment. Constr. Build. Mater. 2007, 21, 1311–1321. [Google Scholar] [CrossRef]
- Pavlovic, M.; Trevisani, D.; Cecchi, A. Experimental and Numerical Analysis of a Historical Bell Tower. Int. J. Archit. Environ. Eng. 2016, 10, 1500–1507. [Google Scholar]
- Saisi, A.; Gentile, C.; Guidobaldi, M. Post-earthquake continuous dynamic monitoring of the Gabbia Tower in Mantua, Italy. Constr. Build. Mater. 2015, 81, 101–112. [Google Scholar] [CrossRef]
- Cabboi, A.; Gentile, C.; Saisi, A. From continuous vibration monitoring to FEM-based damage assessment: Application on a stone-masonry tower. Constr. Build. Mater. 2017, 156, 252–265. [Google Scholar] [CrossRef]
- Ivorra, S.; Pallarés, F.J. Dynamic investigations on a masonry bell tower. Eng. Struct. 2006, 28, 660–667. [Google Scholar] [CrossRef]
- Ivorra, S.; Pallarés, F.J.; Adam, J.M. Masonry bell towers: Dynamic considerations. Proc. Inst. Civ. Eng.-Struct. Build. 2011, 164, 3–12. [Google Scholar] [CrossRef]
- Shabani, A.; Feyzabadi, M.; Kioumarsi, M. Model updating of a masonry tower based on operational modal analysis: The role of soil-structure interaction. Case Stud. Constr. Mater. 2022, 16, e00957. [Google Scholar] [CrossRef]
- Torelli, G.; D’Ayala, D.; Betti, M.; Bartoli, G. Analytical and numerical seismic assessment of heritage masonry towers. Bull. Earthq. Eng. 2020, 18, 969–1008. [Google Scholar] [CrossRef]
- Biondi, S.; Camata, G.; Candigliota, E.; Spacone, E.; Valente, C. Identificazione strutturale di una torre in muratura per la messa a punto del modello numerico. In Proceedings of the XIII Convegno ANIDIS L’Ingegneria Sismica in Italia ANIDIS, Bologna, Italy, 28 June–2 July 2009. [Google Scholar]
- Gigli, G.; Morelli, S.; Fornera, S.; Casagli, N. Terrestrial laser scanner and geomechanical surveys for the rapid evaluation of rock fall susceptibility scenarios. Landslides 2014, 11, 1–14. [Google Scholar] [CrossRef]
- Mineo, S.; Caliò, D.; Pappalardo, G. UAV-based photogrammetry and Infrared Thermography ap-plied to rock mass survey for geomechanical purposes. Remote Sens. 2022, 14, 473. [Google Scholar] [CrossRef]
- Pappalardo, G.; Mineo, S.; Imposa, S.; Grassi, S.; Leotta, A.; La Rosa, F.; Salerno, D. A quick combined approach for the characterization of a cliff during a post-rockfall emergency. Landslides 2020, 17, 1063–1081. [Google Scholar] [CrossRef]
- Nakamura, Y. A method for dynamic characteristics estimation of subsurface using microtremor on the ground surface. Railway Technical Research Institute. Q. Rep. 1989, 30, 25–33. [Google Scholar]
- Moisidi, M.; Vallianatos, F.; Makris, J.; Soupios, P.; Nikolintaga, M.I. HVSR and electrical tomography for seismic response estimation: An example from a cultural heritage site in Greece. In ESC General Assembly Papers, SCF-0; European Seismological Commission: Potsdam, Germany, 2004. [Google Scholar]
- Castellaro, S.; Imposa, S.; Barone, F.; Chiavetta, F.; Gresta, S.; Mulargia, F. Georadar and passive seismic survey in the Roman Amphitheatre of Catania (Sicily). J. Cult. Herit. 2008, 9, 357–366. [Google Scholar] [CrossRef]
- Imposa, S.; Barone, F.; Bella, D.; Cristaldi, M.; Gresta, S. A procedure to estimate the seismic hazard in an urban area: An application to Acireale (Eastern Sicily). Environ. Earth Sci. 2011, 64, 1777–1786. [Google Scholar] [CrossRef]
- Imposa, S.; Lombardo, G.; Panzera, F.; Grassi, S. Ambient vibrations measurements and 1D site response modelling as a tool for soil and building properties investigation. Geosciences 2018, 8, 87. [Google Scholar] [CrossRef]
- Babacan, A.E.; Akın, Ö. The investigation of soil–structure resonance of historical buildings using seismic refraction and ambient vibrations HVSR measurements: A case study from Trabzon in Turkey. Acta Geophys. 2018, 66, 1413–1433. [Google Scholar] [CrossRef]
- Grassi, S.; Imposa, S.; Patti, G.; Boso, D.; Lombardo, G.; Panzera, F. Geophysical surveys for the dynamic characterization of a cultural heritage building and its subsoil: The S. Michele Arcangelo Church (Acireale, eastern Sicily). J. Cult. Herit. 2019, 36, 72–84. [Google Scholar] [CrossRef]
- Grassi, S.; Patti, G.; Tiralongo, P.; Imposa, S.; Aprile, D. Applied geophysics to support the cultural heritage safeguard: A quick and non-invasive method to evaluate the dynamic response of a great historical interest building. J. Appl. Geophys. 2021, 189, 104321. [Google Scholar] [CrossRef]
- Grassi, S.; Barbano, M.S.; Pirrotta, C.; Morreale, G.; Imposa, S. Seismic Soil–Structure Interaction of Three Historical Buildings at the University of Catania (Sicily, Italy). Heritage 2022, 5, 3562–3587. [Google Scholar] [CrossRef]
- Imposa, G.; Grassi, S.; Barontini, A.; Morreale, G.; Russo, S.; Lourenço, P.B.; Imposa, S. Extended Tromograph Surveys for a Full Experimental Characterisation of the San Giorgio Cathedral in Ragusa (Italy). Sensors 2023, 23, 889. [Google Scholar] [CrossRef] [PubMed]
- Pappalardo, G.; Mineo, S.; Carbone, S.; Monaco, C.; Catalano, D.; Signorello, G. Preliminary recognition of geohazards at the natural reserve “Lachea Islet and Cyclop Rocks” (Southern Italy). Sustainability 2021, 13, 1082. [Google Scholar] [CrossRef]
- Blanco, E. Aci Castello. Antiqua Civitas Castri Aci; ITA: Editoriale Agorà: Montevideo, Uruguay, 2020; p. 431. ISBN 978–88–89930-47-2. [Google Scholar]
- Mondello, A. Torri Campanarie Degli Edifici Ecclesiastici Tradizionali Allo Specchio Tra Conoscenza e Sicurezza. Tecnologia e Forma Negli Areali a Rischio Nella Sicilia Orientale e Della Castilla y Leòn. Ph.D. Thesis, Evaluation and Mitigation of Urban and Territorial Risks Course, University of Catania, Catania, Italy, 2016. [Google Scholar]
- Guidoboni, E.; Ferrari, G.; Mariotti, D.; Comastri, A.; Tarabusi, G.; Sgattoni, G.; Valensise, G. CFTI5Med, Catalogo dei Forti Terremoti in Italia (461 a.C.-1997) e Nell’area Mediterranea (760 a.C.-1500); Istituto Nazionale di Geofisica e Vulcanologia (INGV): Rome, Italy, 2018. [Google Scholar] [CrossRef]
- Corsaro, R.A.; Cristofolini, R. Subaqueous volcanism in the Etnean area: Evidence for hydromagmatic activity and regional uplift inferred from the Castle Rock of Acicastello. J. Volcanol. Geotherm. Res. 2000, 95, 209–225. [Google Scholar] [CrossRef]
- Branca, S.; Coltelli, M.; Groppelli, G.; Lentini, F. Geological map of Etna volcano, 1: 50,000 scale. Ital. J. Geosci. 2011, 130, 265–291. [Google Scholar] [CrossRef]
- Monaco, C.; De Guidi, G.; Ferlito, C. The morphotectonic map of Mt. Etna. Ital. J. Geosci. 2010, 129, 408–428. [Google Scholar] [CrossRef]
- AGS (Archivio General de Simancas). Correspondencia de Virreyes y Ministros con S.M. Relazione delle Città e luoghi Devastati in Sicilia, a Causa dei Terremoti del 9 e 11 Gennaio; Numero Antico Dei Vivi, Numero dei Morti Nelle Rovine e Rendite che Pagavano ogni anno. Secretarías Provinciales, Sicilia, legajo 1222 (1693), Palermo maggio 1693. Available online: http://www.cftilab.it/file_repository/pdf_T/003011-665148_T.pdf (accessed on 16 July 2022).
- ASC (Archivio di Stato di Catania). 1818. Quadro de’ danni sofferti nel distretto di Catania pe’ tremuoti de 20 e 28 febbraro 1818, Tavola necrologica causata da’ tremuoti, s.d. Intendenza borbonica, b.4209 categoria XXI (Miscellanea).
- ASC (Archivio di Stato di Catania). 1818-19. Tavola riassuntiva dei danni cagionati dal terremoto del 20 febbraio 1818 nel Comune di Aci Castello, s.d. Intendenza borbonica, b.4210 categoria XXI (Miscellanea).
- De Rubeis, V.; Gasparini, C.; Maramai, A.; Anzidei, A. Il terremoto siciliano del 13 dicembre 1990. In Proceedings of the Contributi allo Studio del Terremoto della Sicilia Orientale del 13 Dicembre 1990; Boschi, E., Basili, A., Eds.; ING Pubblicazione: Rome, Italy, 1993; Volume 537, pp. 9–44. [Google Scholar]
- Rovida, A.N.; Locati, M.; Camassi, R.D.; Lolli, B.; Gasperini, P. Catalogo Parametrico dei Terremoti Italiani (CPTI15), Versione 4.0; Istituto Nazionale di Geofisica e Vulcanologia (INGV): Rome, Italy, 2022. [Google Scholar] [CrossRef]
- Magri, L.; Mucciarelli, M.; Albarello, D. Estimates of site seismicity rates using ill-definition macrosismic data. Pure Appl. Geophys. 1994, 143, 617–632. [Google Scholar] [CrossRef]
- Pappalardo, G.; Mineo, S.; Marchese, G. Effects of cubical specimen sizing on uniaxial compressive strength of Etna volcanic rocks (Italy). Ital. J. Eng. Geol. Environ. 2013, 2, 5–14. [Google Scholar] [CrossRef]
- Sparks, R.S.J.; Pinkerton, H. Effect of degassing on rheology of basaltic lavas. Nature 1978, 276, 385–386. [Google Scholar] [CrossRef]
- Al-Harthi, A.; Al-Amri, R.; Shehata, W. The porosity and engineering properties of vesicular basalt in Saudi Arabia. Eng. Geol. 1999, 54, 313–320. [Google Scholar] [CrossRef]
- Pappalardo, G.; Mineo, S. Investigation on the mechanical attitude of basaltic rocks from Mount Etna through InfraRed Thermography and laboratory tests. Constr. Build. Mater. 2017, 134, 228–235. [Google Scholar] [CrossRef]
- Pappalardo, G.; Punturo, R.; Mineo, S.; Contrafatto, L. The role of porosity on the engineering geological properties of 1669 lavas from Mount Etna. Eng. Geol. 2017, 221, 16–28. [Google Scholar] [CrossRef]
- Anon, O.H. Classification of rocks and soils for engineering geological mapping. Part 1: Rock and soil materials. Bull. Int. Assoc. Eng. Geol. 1979, 19, 364–437. [Google Scholar]
- Singh, R.N.; Ghose, A.K. Engineered Rock Structures in Mining and Civil Construction; CRC Press: Boca Raton, FL, USA, 2006. [Google Scholar]
- ISRM. The complete ISRM suggested methods for rock characterization, testing and monitoring: 1974–2006. In Suggested Methods Prepared by the Commission on Testing Methods; Ulusay, R., Hudson, J.A., Eds.; Suggested Methods Prepared by the Commission on Testing Methods; International Society for Rock Mechanics: Ankara, Turkey, 2007. [Google Scholar]
- Marinos, P.; Hoek, E. GSI: A Geological Friendly Tool for Rock Mass Strength Estimation. In Proceedings of the GeoEng 2000 at the International Conference on Geotechnical and Geological Engineering, Melbourne, Australia, 19–24 November 2000; pp. 1422–1446. [Google Scholar]
- Park, C.B.; Miller, R.D.; Xia, J. Multichannel analysis of surface waves. Geophysics 2000, 64, 800–808. [Google Scholar] [CrossRef]
- Imposa, S.; De Guidi, G.; Grassi, S.; Scudero, S.; Barreca, G.; Patti, G.; Boso, D. Applying geophysical techniques to investigate a segment of a creeping fault in the urban area of San Gregorio di Catania, southern flank of Mt. Etna (Sicily—Italy). J. Appl. Geophys. 2015, 123, 153–163. [Google Scholar] [CrossRef]
- Nogoshi, M.; Igarashi, T. On the propagation characteristics of the microtremors. J. Seismol. Soc. Jpn. 1970, 23, 264–280. [Google Scholar]
- Okada, H.; Suto, K. The Microtremor Survey Method; Society of Exploration Geophysicists: Houston, TX, USA, 2003. [Google Scholar]
- Imposa, S.; Motta, E.; Capilleri, P.; Imposa, G. HVSR and MASW seismic survey for characterizing the local seismic response: A case study in Catania area (Italy). In Proceedings of the 1st IMEKO TC4 International Workshop on Metrology for Geotechnics, MetroGeotechnics 97–102, Benevento, Italy, 17–18 March 2016. [Google Scholar]
- Russo, S.; Spoldi, E.; Ippolito, I.; Imposa, G.; Bretini, A. Detection of 2009 L’Aquila’s Earthquake Effects on Collemaggio Church through Experimental Surveys. J. Archit. Eng. 2022, 28, 05021017. [Google Scholar] [CrossRef]
- Castellaro, S.; Mulargia, F. The effect of velocity inversions on H/V. Pure Appl. Geophys. 2009, 166, 567–592. [Google Scholar] [CrossRef]
- SESAME European Project. Guidelines for the Implementation of the H/V Spectral Ratio Technique on Ambient Vibrations. Measurements, Processing and Interpretation. WP12. Deliverable D23.12. 2005. Available online: https://www.earth-prints.org/bitstream/2122/8423/1/Del-D23-HV_User_Guidelines.pdf (accessed on 8 December 2022).
- Pullammanappallil, S.K.; Louie, J.N. A generalized simulated-annealing optimization for inversion of first-arrival times. Bull. Seismol. Soc. Am. 1994, 84, 1397–1409. [Google Scholar] [CrossRef]
- Wathelet, M.; Chatelain, J.-L.; Cornou, C.; Di Giulio, G.; Guillier, B.; Ohrnberger, M.; Savvaidis, A. Geopsy: A User-Friendly Open-Source Tool Set for Ambient Vibration Processing. Seismol. Res. Lett. 2020, 91, 1878–1889. Available online: http://www.geopsy.org/ (accessed on 10 December 2022). [CrossRef]
- Monaco, C.; Catalano, S.; De Guidi, G.; Gresta, S.; Langer, H.; Tortorici, L. The geological map of the urban area of Catania (Eastern Sicily): Morphotectonic and seismotectonic implications. Mem. Soc. Geol. Ital. 2000, 55, 425–438. [Google Scholar]
- Liberatore, D.; Gambarotta, L.; Beolchini, G.C.; Binda, L.; Magenes, G.; Cocina, S.; Giudice, L.; Scuderi, S. Tipologie edilizie in muratura del Comune di Catania. In Progetto Catania: Indagine Sulla Risposta Sismica di due Edifici in Muratura; Monografie: Liberatore, Catania, Italy, 2000; pp. 3–22. ISBN 8890044934. [Google Scholar]
- Winkler, E. Die Lehre von der Elasticitaet Und Festigkeit; Kessinger Publishing: Whitefish, MT, USA, 1867; ISBN 978-1166781811. [Google Scholar]
- De Angelis, A.; Lourenço, P.B.; Sica, S.; Pecce, M.R. Influence of the ground on the structural identification of a bell-tower by ambient vibration testing. Soil Dyn. Earthq. Eng. 2022, 155, 107102. [Google Scholar] [CrossRef]














| Height (m) | Bottom Plan Dimension (m) | Wall Thickness (m) |
|---|---|---|
| 0.00 | 4. 90 × 4.00 | 1.15 |
| 2.30 | 4.50 × 3.30 | 0.65–0.70 |
| 2.30–10.40 | 4.50 × 3.30 | 0.65–0.70 |
| 10.40–15.30 | 3.80 × 3.30 | 0.65–0.70 |
| Year | Mo | Day | Ho Mi | Epicentral Area | I0 | Mw | Iobs |
|---|---|---|---|---|---|---|---|
| 1693 | 01 | 11 | 13 30 | Southeastern Sicily | 11 | 7.32 | 10–11 |
| 1818 | 02 | 20 | 18 15 | Catania area | 9–10 | 6.28 | 7 |
| 1848 | 01 | 11 | 12 | Gulf of Catania | 7–8 | 5.51 | 6 |
| 1905 | 09 | 08 | 01 43 | Central Calabria | 10–11 | 6.95 | 5 |
| 1911 | 10 | 15 | 08 52 | Etna—Fondo Macchia (Giarre) | 8–9 | 4.59 | 3 |
| 1931 | 08 | 03 | 21 12 | Etna—Fiandaca (Acireale) | 6–7 | 3.47 | 3 |
| 1983 | 07 | 20 | 22 03 | Etna—Viagrande | 7–8 | 4.30 | 4 |
| 1986 | 02 | 01 | 22 52 | Etna—S. Giovanni Bosco (Acireale) | 6–7 | 3.85 | 2–3 |
| 1986 | 02 | 02 | 16 10 | Etna—S. Giovanni Bosco (Acireale) | 7 | 4.08 | 2–3 |
| 1990 | 12 | 13 | 00 24 | Southeastern Sicily | 5.61 | 6 | |
| 1990 | 12 | 16 | 13 50 | Southern Ionian Sea | 4.38 | 3 | |
| 1991 | 12 | 15 | 20 00 | Etna—Southern flank | 5–6 | 4.30 | 4 |
| 2001 | 01 | 09 | 02 51 | Etna—Zafferana Etnea | 6 | 3.73 | 4 |
| Layer | Depth (m) | S-Waves Speed Vs (m/s) | P-Waves Speed Vp (m/s) | Density (g/cm3) | Edyn (Mpa) | ν (–) |
|---|---|---|---|---|---|---|
| 1 | 0.00–3.90 | 355 | 1684 | 1.85 | 689 | 0.48 |
| 2 | 3.90–7.06 | 351 | 1680 | 1.84 | 671 | 0.48 |
| 3 | 7.06–13.27 | 446 | 1785 | 1.88 | 1100 | 0.47 |
| 4 | 13.27–21.85 | 525 | 1872 | 1.90 | 1527 | 0.46 |
| 5 | 21.85–27.31 | 621 | 1979 | 1.94 | 2163 | 0.45 |
| 6 | 27.31–30.00 | 705 | 2072 | 1.96 | 2795 | 0.43 |
| Vertical N. 1 | Vertical N. 2 | ||||
|---|---|---|---|---|---|
| Instrument n. | Instrument Type | Height (m) | Instrument n. | Instrument Type | Height (m) |
| C1 | Velocimeter-Accelerometer TEP-ENGY | 10.44 | C8 | Velocimeter-Accelerometer TEP-ENGY | 10.44 |
| 2 | Velocimeter TRZ-ZERO | 7.75 | C7 | Velocimeter TRZ-ZERO | 9.22 |
| C3 | Velocimeter TRZ-ZERO | 3.82 | C6 | Velocimeter TRZ-ZERO | 6.40 |
| C4 | Velocimeter TRZ-ZERO | 0.12 | C5 | Velocimeter TRZ-ZERO | 1.84 |
| EST1 | Velocimeter TEN-ENGINEERING | 0.00 | EST1 | Velocimeter TEN-ENGINEERING | 0.00 |
| Mode N° | Experimental (Hz) | Fixed Base Model (Hz) | Winkler Model (Hz) | FEM Model (Hz) |
|---|---|---|---|---|
| 1-X/North–South | 3.97 | 3.91 | 3.31 | 3.40 |
| 2-Y/East–West | 4.47 | 4.75 | 4.02 | 4.05 |
| 3-Z/Vertical | 9.72 | 12.63 | 11.36 | 11.43 |
| Young Modulus (N/mm2) | Poisson’s Coefficient (-) | Density (kg/m3) |
|---|---|---|
| 2800 | 0.3 | 1700 |
Disclaimer/Publisher’s Note: The statements, opinions and data contained in all publications are solely those of the individual author(s) and contributor(s) and not of MDPI and/or the editor(s). MDPI and/or the editor(s) disclaim responsibility for any injury to people or property resulting from any ideas, methods, instructions or products referred to in the content. |
© 2023 by the authors. Licensee MDPI, Basel, Switzerland. This article is an open access article distributed under the terms and conditions of the Creative Commons Attribution (CC BY) license (https://creativecommons.org/licenses/by/4.0/).
Share and Cite
Imposa, S.; Cuomo, M.; Contrafatto, L.; Mineo, S.; Grassi, S.; Li Rosi, D.; Barbano, M.S.; Morreale, G.; Galasso, M.; Pappalardo, G. Engineering Geological and Geophysical Studies Supporting Finite Element Analysis of Historical Buildings after Dynamic Identification. Geosciences 2023, 13, 84. https://doi.org/10.3390/geosciences13030084
Imposa S, Cuomo M, Contrafatto L, Mineo S, Grassi S, Li Rosi D, Barbano MS, Morreale G, Galasso M, Pappalardo G. Engineering Geological and Geophysical Studies Supporting Finite Element Analysis of Historical Buildings after Dynamic Identification. Geosciences. 2023; 13(3):84. https://doi.org/10.3390/geosciences13030084
Chicago/Turabian StyleImposa, Sebastiano, Massimo Cuomo, Loredana Contrafatto, Simone Mineo, Sabrina Grassi, Davide Li Rosi, Maria Serafina Barbano, Gabriele Morreale, Mirko Galasso, and Giovanna Pappalardo. 2023. "Engineering Geological and Geophysical Studies Supporting Finite Element Analysis of Historical Buildings after Dynamic Identification" Geosciences 13, no. 3: 84. https://doi.org/10.3390/geosciences13030084
APA StyleImposa, S., Cuomo, M., Contrafatto, L., Mineo, S., Grassi, S., Li Rosi, D., Barbano, M. S., Morreale, G., Galasso, M., & Pappalardo, G. (2023). Engineering Geological and Geophysical Studies Supporting Finite Element Analysis of Historical Buildings after Dynamic Identification. Geosciences, 13(3), 84. https://doi.org/10.3390/geosciences13030084

