Seismic Reinforcement of a R.C. School Structure with Strength Irregularities throughout External Bracing Walls
Abstract
:1. Introduction
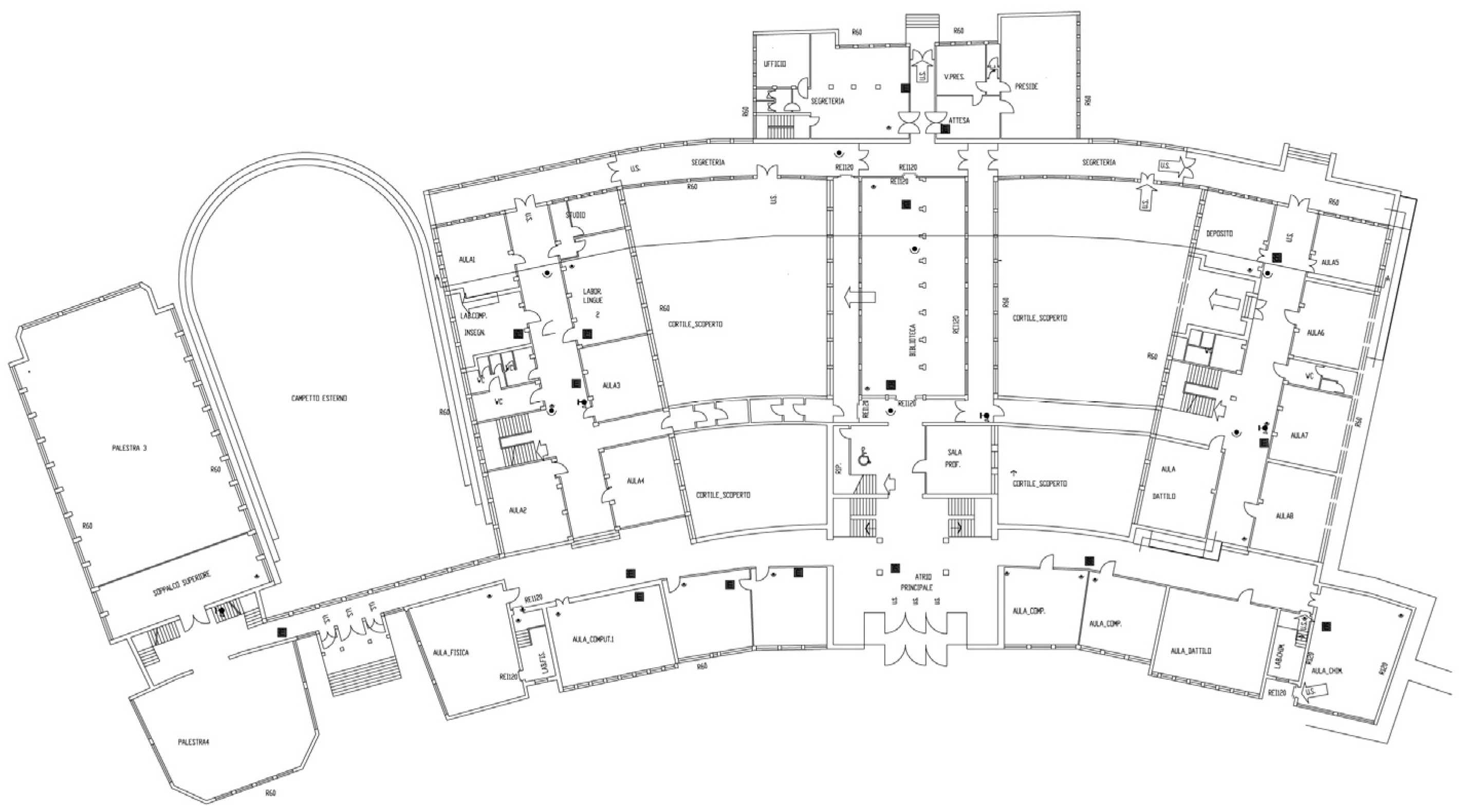
2. Analysis before Intervention
- (i)
- Evaluation of shear behavior (brittle mechanism).
- (ii)
- Evaluation of compression-bending behavior (ductile mechanism).
3. Results of analysis
4. Seismic Retrofitting
5. Discussion and conclusions
Acknowledgments
Author Contributions
Conflicts of Interest
References
- De Stefano, M.; Pintucchi, B. A review of research on seismic behaviour of irregular building structures since 2002. Bull. Earthq. Eng. 2008, 285–308. [Google Scholar] [CrossRef]
- Andreini, M.; De Falco, A.; Giresini, L.; Sassu, M. Structural damage in the cities of Reggiolo and Carpi after the earthquake on May 2012 in Emilia Romagna. Bull. Earthq. Eng. 2014. [Google Scholar] [CrossRef]
- Rovero, L.; Alecci, V.; Mechelli, J.; Tonietti, U.; De Stefano, M. Masonry walls with irregular texture of L’Aquila (Italy) seismic area: Validation of a method for the evaluation of masonry quality. Mater. Struct. 2016, 49, 2297–2314. [Google Scholar] [CrossRef]
- Augenti, N.; Parisi, F. Learning from Construction Failures due to the 2009 L’Aquila, Italy, Earthquake. J. Perform. Constr. Facil. 2010, 24, 536–555. [Google Scholar] [CrossRef]
- De-la-Colina, J.; Gonzalez-Perez, C.A.; Valdes-Gonzalez, J. Accidental eccentricities, frame shear forces and ductility demands of buildings with uncertainties of stiffness and live load. Eng. Struct. 2016, 124, 113–127. [Google Scholar] [CrossRef]
- Basu, D.; Giri, S. Accidental eccentricity in multistory buildings due to torsional ground motion. Bull. Earthq. Eng. 2015, 13, 3779–3808. [Google Scholar] [CrossRef]
- Parisi, F.; Augenti, N. Seismic capacity of irregular unreinforced masonry walls with openings. Earthq. Eng. Struct. Dyn. 2013, 42, 101–121. [Google Scholar] [CrossRef]
- De Stefano, M.; Tanganelli, M.; Viti, S. Variability in concrete mechanical properties as a source of in-plan irregularity for existing RC framed structures. Eng. Struct. 2014, 59, 161–172. [Google Scholar] [CrossRef]
- Giresini, L.; Sassu, M. Horizontally restrained rocking blocks: Evaluation of the role of boundary conditions with static and dynamic approaches. Bull. Earthq. Eng. 2017, 15, 385–410. [Google Scholar] [CrossRef]
- Giresini, L.; Fragiacomo, M.; Sassu, M. Rocking analysis of masonry walls interacting with roofs. Eng. Struct. 2016, 116, 107–120. [Google Scholar] [CrossRef]
- Giresini, L.; Fragiacomo, M.; Lourenço, P.B. Comparison between rocking analysis and kinematic analysis for the dynamic out-of-plane behavior of masonry walls. Earthq. Eng. Struct. Dyn. 2015, 44, 2359–2376. [Google Scholar] [CrossRef]
- Sassu, M. The Reinforced Cut Wall (RCW): A Low-Cost Base Dissipator for Masonry Buildings. Earthq. Spectra 2006, 22, 533–554. [Google Scholar] [CrossRef]
- Sassu, M. Biaxiality effect on the energy dissipated by elastoplastic base-isolators. J. Eng. Mech. 2003, 129, 607–612. [Google Scholar] [CrossRef]
- Giresini, L. Energy-based method for identifying vulnerable macro-elements in historic masonry churches. Bull. Earthq. Eng. 2016, 14, 919–942. [Google Scholar] [CrossRef]
- Andreini, M.; De Falco, A.; Giresini, L.; Sassu, M. Mechanical characterization of masonry walls with chaotic texture: Procedures and results of in-situ tests. Int. J. Archit. Herit. Conserv. Anal. Restor. 2014, 8, 376–407. [Google Scholar] [CrossRef]
- EC8–3 Eurocode 8: Design of Structures for Earthquake Resistance—Part 3: Assessment and Retrofitting of Buildings 2005. Available online: http://eurocodes.jrc.ec.europa.eu/home.php (accessed on 13 April 2017).
- Andreini, M.; De Falco, A.; Giresini, L.; Sassu, M. Collapse of the historic city walls of Pistoia (Italy): Causes and possible interventions. Appl. Mech. Mater. 2013, 352, 1389–1392. [Google Scholar] [CrossRef]
- De Falco, A.; Giresini, L.; Sassu, M. Temporary preventive seismic reinforcements on historic churches: Numerical modeling of San Frediano in Pisa. Appl. Mech. Mater. 2013, 352, 1393–1396. [Google Scholar] [CrossRef]
- Hurst, L. Historic Concrete: Background to Appraisal; Thomas Telford: London, UK, 2001; pp. 45–67. [Google Scholar]
- CMIT Circolare del Ministro delle Infrastrutture e dei Trasporti 2 febbraio 2009, n. 617, contenente le Istruzioni per l’applicazione delle “Nuove norme tecniche per le costruzioni” di cui al DM 14 gennaio 2008. Suppl. Ord. 2009. (Italian). Available online: www.cslp.it/cslp/index.php (accessed on 13 April 2017).
- Myslimaj, B.; Tso, W.K. Desirable strength distribution for asymmetric structures with strength-stiffness dependent elements. J. Earthq. Eng. 2004, 8, 231–248. [Google Scholar] [CrossRef]
- Casapulla, C.; Jossa, P.; Maione, A. Rocking motion of a masonry rigid block under seismic actions: A new strategy based on the progressive correction of the resonance response|Il moto sotto sisma del blocco murario: Analisi per progressiva correzione della risposta in risonanza. Ing. Sismica 2010, 27, 35–48. [Google Scholar]
- Carta, G.; Stochino, F. Theoretical models to predict the flexural failure of reinforced concrete beams under blast loads. Eng. Struct. 2013, 306–315. [Google Scholar] [CrossRef]
- De Luca, F.; Verderame, G.M. A practice-oriented approach for the assessment of brittle failures in existing RC elements. Eng. Struct. 2013, 48, 373–388. [Google Scholar] [CrossRef]
- Fajfar, P. A Nonlinear Analysis Method for Performance-Based Seismic Design. Earthq. Spectra 2000, 16, 573–592. [Google Scholar] [CrossRef]
- De Luca, F.; Verderame, G.M.; Manfredi, G. Eurocode-based seismic assessment of modern heritage RC structures: The case of the Tower of the Nations in Naples (Italy). Eng. Struct. 2014, 74, 96–110. [Google Scholar] [CrossRef]
- Stochino, F. RC beams under blast load: Reliability and sensitivity analysis. Eng. Fail. Anal. 2016, 66, 544–565. [Google Scholar] [CrossRef]
- Mistretta, F.; Piras, M.V.; Fadda, M.L. A reliable visual inspection method for the assessment of r.c. structures through fuzzy logic analysis, Life-Cycle of Structural Systems: Design, Assessment, Maintenance and Management. In Proceedings of the 4th International Symposium on Life-Cycle Civil Engineering IALCCE 2014, Tokoy, Japan, 16–19 November 2014; pp. 1154–1160. [Google Scholar]



















| Material | fc (MPa) | Ec (MPa) | fy (MPa) |
|---|---|---|---|
| Concrete | 248 | 28,904 | - |
| Steel | - | - | 3699 |
| Model | Mode | T (s) | Mx | My |
|---|---|---|---|---|
| Rigid floor | 1 | 0.450 | 0.78 | - |
| 2 | 0.445 | - | 0.63 | |
| Flexible floor | 1 | 0.494 | - | 0.70 |
| 2 | 0.445 | 0.37 | 0.77 |
© 2017 by the authors. Licensee MDPI, Basel, Switzerland. This article is an open access article distributed under the terms and conditions of the Creative Commons Attribution (CC BY) license (http://creativecommons.org/licenses/by/4.0/).
Share and Cite
Sassu, M.; Puppio, M.L.; Mannari, E. Seismic Reinforcement of a R.C. School Structure with Strength Irregularities throughout External Bracing Walls. Buildings 2017, 7, 58. https://doi.org/10.3390/buildings7030058
Sassu M, Puppio ML, Mannari E. Seismic Reinforcement of a R.C. School Structure with Strength Irregularities throughout External Bracing Walls. Buildings. 2017; 7(3):58. https://doi.org/10.3390/buildings7030058
Chicago/Turabian StyleSassu, Mauro, Mario Lucio Puppio, and Eleonora Mannari. 2017. "Seismic Reinforcement of a R.C. School Structure with Strength Irregularities throughout External Bracing Walls" Buildings 7, no. 3: 58. https://doi.org/10.3390/buildings7030058
APA StyleSassu, M., Puppio, M. L., & Mannari, E. (2017). Seismic Reinforcement of a R.C. School Structure with Strength Irregularities throughout External Bracing Walls. Buildings, 7(3), 58. https://doi.org/10.3390/buildings7030058

