Abstract
The study aimed to investigate the thermal storage potential of oak tree bark as a natural and easily accessible material and to examine the possibility of incorporating this raw material into external prefabricated walls. The U-values of oak tree bark were compared with mineral wool (MW), which is a standardized and well-known insulating material. Oak tree bark, a residual material, is mainly used as an energy source. However, in light of actual green policies at the European Union (EU) level, raw wood and its components, e.g., bark, should be used for long-lasting products and not as an energy source. According to the Croatian Technical Regulation on the Rational Use of Energy and Thermal Insulation in Buildings, the maximum U-value for external walls in Croatia is 0.30 W/m2K. Here presented test results show that the U-values of the experimental wall compositions were 0.22 W/m2K for the wall with mineral wool (MW) and 0.29 W/m2K for the wall with oak tree bark. Despite mineral wool having a thermal conductivity (λ, W/mK) 53% lower than the experimental tree bark, walls with bark fulfill the national insulation requirements; therefore, they present an alternative and sustainable insulation option. Furthermore, the Blower door test (n50 value) of the bungalow was measured to be 3.75 h−1, proving the potential of tree bark as an alternative eco-friendly insulation material in exterior walls. However, further investigations are necessary in order to create and optimize the panel, its thickness, density, adhesive technology, the size of bark particles, production parameters, etc., as these influence properties of the final product to be placed on the market.
1. Introduction
Energy consumption worldwide contributes to pollution, environmental degradation, and global greenhouse emissions [1]. The industrial, building, transportation, and agriculture sectors are the top contributors to energy consumption, with a significant portion attributed to the construction and operational phases of buildings [2].
The growing investment in nearly zero energy buildings (nZEB) encourages the use of passive envelope solutions, leading to thicker insulation in buildings globally [2]. As a result, the impact of these materials on the life cycle environmental footprint of buildings is becoming increasingly significant [2]. Therefore, seeking new natural insulation materials with low carbon footprints is becoming attractive for the building industry. Parallel to this, other industries are interested in reducing their waste materials during production and exploiting all input materials as much as possible to leave zero waste and preserve the environment.
The bark itself protects the tree from insects, animals, and weather conditions, transports water and dissolved minerals from the roots to the rest of the plant, and provides physical support to the trunk [3]. In the wood industry, tree bark is often considered a residual material. In wood processing, removing bark is often the first phase in sawmill production, and generally, oak bark is excluded from log diameter. Reducing the total diameter of logs up to 4 cm for oak wood logs makes bark another raw material source at no extra cost. Bark as a material also has favorable properties such as relatively high resistance against microorganisms, low density, low thermal conductivity, and high heat storage capacity [4].
Currently, in Europe, most of the available tree bark is utilized for bioenergy production or for lower value-added purposes such as composting and incineration [5]. Tree bark contains more protective materials (tannin, suberin) than wood; thus, the bark has natural protective elements against decay. Consequently, it is likely that bark used as insulation material will require less chemical protection compared to other insulation materials, potentially reducing costs [6].
As presented in detail by various authors [7,8] bark was historically used for many purposes: the fibrous structure of bark is good for spinning ropes and clothes, food sources in winter, paper production, and even as a medicine. Nowadays, its high calorific properties make it attractive for pellet production, but the regulations that limit the ash content of biofuels prevent its commercial utilization. Bark can also be used to produce tanning agents due to its high amounts of tannin. Bark is also used for mulching because it keeps the soil moist in dry periods. There were even attempts to produce bark-based particle boards. This was not successful due to many contaminants on the bark, which negatively affect the service life of tools for wood processing.
By 2050, all buildings in the EU must achieve net-zero emissions throughout their lifecycle, encompassing both operational and embodied emissions [9]. The significant carbon footprint of commonly used insulation materials, primarily arising from their production phase, has driven the adoption of alternatives made predominantly from recycled materials to minimize embodied carbon [10]. The insulation materials market remains largely concentrated around a few material types, including mineral wool (MW), expanded polystyrene (EPS), extruded polystyrene (XPS), and glass fiber [11,12], some of which cause significant impacts on the environment at one or more stages of the lifecycle [10]. Insulation materials available today can be categorized based on various criteria [13]: material structure, chemical composition, origin, specific weight, thermal conductivity, density, resistance to physical agents and resistance to chemical factors.
Regarding the total environmental impact of various thermal insulation types across different life cycle stages (production, construction, use, and end-of-life), the production stage typically has the highest impact [12]. In the UK, the most commonly used method only considers the impact of greenhouse gases and energy from the cradle-to-gate stage [14]. A quantitative comparison of 15 insulation materials [13] evaluated both thermal performance and carbon footprint, but the assessment was limited to the cradle-to-gate phase due to insufficient reliable data for the use and disposal phases.
Compared with other natural insulation materials thermal conductivity [15], it is concluded that the insulating properties of the tree bark are similar to the values of the other natural insulation materials (Hemp: 0.052 W/mK; Wood fiber: 0.048 W/mK; Wood chips: 0.076 W/mK).
Currently, in Croatia, the most common thermal insulation materials used in the building industry are expanded polystyrene (EPS) and mineral wool (MW). Research presented in [10,13] revealed that the carbon footprint per mass (kg CO2-eq./kg) for EPS is 4.205 and for MW between 0.920 and 1.082, with thermal conductivity values (W/mK) of 0.037 for EPS and MW values ranged from 0.040 to 0.045.
When it comes to prices of commonly used insulation materials (10 cm thick panels, 1 m2 area), they are [16,17]:
- 5.72 €/m2 for EPS (12–30 kg/m3), λ = 0.032–0.042 W/mK
- 16.52 €/m2 for MW (10–200 kg/m3), λ = 0.035–0.050 W/mK
- Approx. 1.98 €/m2 for raw material–tree bark (approx. 300 kg/m3),
- λ = 0.0651–0.0657 W/mK according to [15]
As the production and installation of insulation materials increase, the low recycling rates (and consequently high rates of waste incineration and landfilling) highlight an urgent need for interventions to close material loops [18]. This is where tree bark has advantages over EPS and MW. Both expanded polystyrene (EPS) and mineral wool (MW) significantly affect the environmental indicators outlined in [19], including global warming potential (GWP), formation potential of tropospheric ozone (POCP), abiotic depletion potential for fossil fuels (ADP-fossil fuels), and the total use of non-renewable primary energy resources (PENRT).
Research on bark insulation is not new; however, limited data are available on this topic.
Kain et al. [20] presented research on thermal insulations produced out of 5 bark species (larch, pine, spruce, fir, and oak), including a combination of larch bark and industrial popcorn and in combination with different adhesives. They demonstrated that bark species have a minor influence on the thermal conductivity compared to panel density in the range from 300 to 450 kg/m3. High heat storage capacity compensates for their reduced insulation properties compared to mineral wool or EPS [21]. Results of another experiment [22] demonstrated that neither fraction size nor density of black locust bark panels affected thermal conductivity (λ = 0.06 W/mK). Further experiments [6] proved that thermal conductivity values of robinia, poplar, larch, scots pine, and spruce bark are in a very narrow range when tested dry (0.06 to 0.08 W/mK), but moisture has a different influence for different species—the change of heat conductivity per 1% moisture content change was 1.43 to 2.77% for spruce and robinia bark, respectively.
This paper’s research proves that tree bark, a sustainable thermal insulation material, can be used for insulation of wooden prefabricated external walls, which are often used in the building industry.
In the first experiment presented in this paper, tree bark was used to prepare samples for thermal conductivity testing, which is a crucial characteristic of a thermal insulation material. In an ideal scenario, a thermal insulation material with low thermal conductivity (measured in W/m2K) allows for the design of relatively thin envelopes. Still, it offers high thermal resistance R-value (measured in m2K/W) and low thermal transmittance U-value (measured in W/m2K). The next step was to install tree bark as an insulation material in the experimental bungalow’s external prefabricated walls during the building process. Some parts of the walls were insulated with mineral wool as a reference. Both parts of the walls were subjected to in situ measurements of thermal transmittance values (U-value, W/m2K).
Compared to similar research, this paper’s novelty is in the parallel testing of the tree bark’s thermal properties in the laboratory at the material level and in testing the actual size structure and external walls in real thermal conditions—the winter season.
Before the in situ U-value measurements of the walls, the bungalow has undergone the Blower door test to determine the airtightness (n50, h−1) value of the bungalow and Infrared Thermography (IRT) inspection.
U-values of the experimental wall compositions were 0.22 W/m2K for the wall with mineral wool (MW) and 0.29 W/m2K for the wall with oak tree bark. Despite mineral wool having a thermal conductivity (λ, W/mK) 53% lower than the experimental tree bark, walls with bark fulfill the national insulation requirements; therefore, they present an alternative and sustainable insulation option. Furthermore, the obtained n50 value of the bungalow was measured to be 3.75 h−1.
Here presented results prove the potential of tree bark as an alternative eco-friendly insulation material.
2. Materials and Methods
2.1. Experimental Bungalow
The studied bungalow is shortly presented in this section. The bungalow (Figure 1) was produced and erected within the frames of an externally funded research project.
Figure 1.
Experimental bungalow after completion of all construction works (South—West facade).
During this research, one of the objectives was to investigate the possibilities of using oak bark as insulation material, which could be used as an eco-friendly alternative to standard insulating panels. In the primary processing of wood, the bark is created as a product of the log debarking process and is the indispensable first phase of log processing. The obtained raw materials—the bark chips—have mainly been used to receive thermal energy. Due to the possibly large quantities of bark being available, its good thermal properties, ecological benefits, and low price of such a raw material, which is in fact a residue in the log processing, we considered it worth researching. This research focused on investigating the applicability of wooden bark as thermal insulation in lightweight structures.
The experimental bungalow, oriented north-south, was built in the autumn of 2023 and is situated at the Faculty of Forestry and Wood Technology at the University of Zagreb. Its load-bearing part of the structure is made from bi-directionally laminated ash wood beams covered with standard OSB boards or plywood, thus forming modular panels. The final product is presented in Figure 1. The flat roof panel as well as the floor structure follow the same logic as load-bearing walls. The floor assembly was elevated 30 cm above the ground. Inside the external walls, there are two types of thermal insulation—mineral wool and oak tree bark, both in 20 cm thickness.
Mineral wool was installed in the end parts of exterior walls and in floor and roof panels, whereas inner sections of external walls were filled with tree bark (Figure 2). A tree bark layer, i.e., insulation, was installed during the wall manufacturing process by filling all gaps between load-bearing beams and pressing it with approximately 400 kg/m2, thus obtaining an insulation layer of approximately 350 kg/m3. Positions with tree bark insulation were presented in Figure 2 and marked yellow; the rest of the walls were insulated with MW. Such a composition of walls enabled the installation of bark in bulk state and its compression up to approximately 50%.
Figure 2.
Tree bark insulation during the wall assembling process.
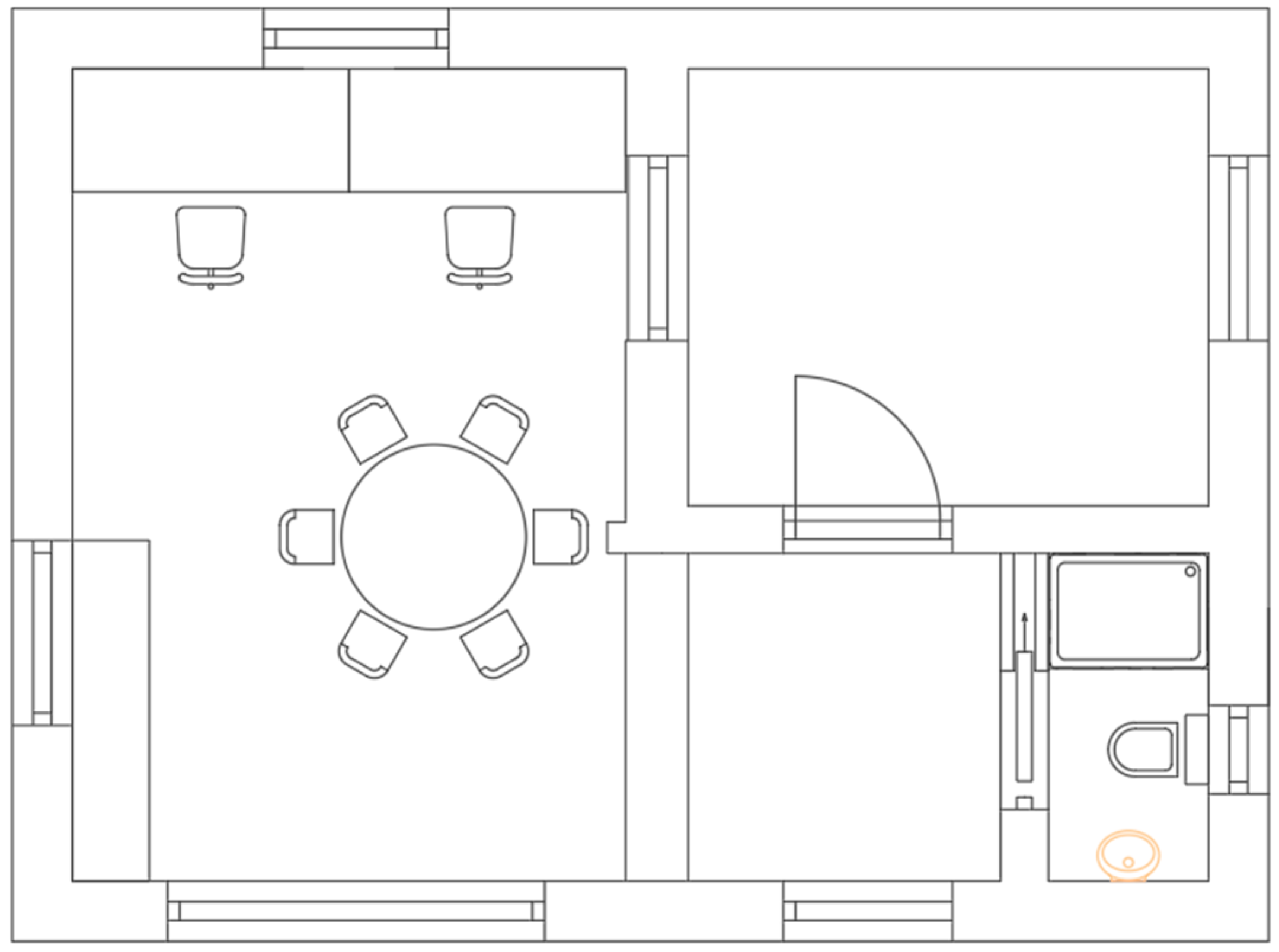
Figure 3 presents the bungalow floor plan, and the investigated wall, positioned on the north of the bungalow, is marked with red circles. A cross-section of the load-bearing external wall showing wall layers and their thicknesses is presented in Figure 4. During the measurements conducted on this bungalow and its walls, the bungalow was nearly finished, right before applying the finishing coverings (floors and walls cover). Measuring building thermal properties at this stage is crucial because it’s easy to spot and fix issues such as unintentional cracks and thermal bridges before applying the final coverings.
Figure 3.
Bungalow illustration floor plan (6 × 8 m).
Figure 4.
Cross-section of the load-bearing external wall.
The bungalow’s outside and inside facade/finishes and the level of completion during the measurements are presented in Figure 5.
Figure 5.
Bungalow level of completion during the thermal properties measurements (outer parts of walls—left, inner parts of walls—right).
2.2. Thermal Properties Testing on the Material Level
The first experiment used tree bark to prepare samples for thermal conductivity testing. Three samples were made and tested in the laboratory. The thermal conductivity (λ, W/mK) of the material utilized for the external wall of the bungalow was assessed in a laboratory using a heat flow meter instrument, specifically the Fox200 instrument (TA Instruments, New Castle, DE, USA) employed in this study for determining the thermal conductivity of materials. The instrument’s essential characteristics and testing requirements were drawn from [23].
The raw material used to produce the experimental bark insulation was taken from a parquet manufacturer, a large processor of oak wood. Samples of shredded material from the factory’s MBP Meccanica machine were used. Granulometric analysis determined the composition of the raw material for producing an experimental bark insulation. In the range of square openings of the sieve above 63 mm, there was no material left; in the range of 63–45 mm, there was 8% of raw material, 45–31.5 mm, there was 9% of raw material, 31.5–16 mm, there was 29% of raw material, 16–8 mm, there was 14% of the raw material, 8–3.15 mm, there was 28% of the raw material, and for less than 3.15 mm, there was 12% of the raw material. For the further production of the insulation material, granulation of 63–45 mm and granulation smaller than 3.15 mm were excluded.
The Insulation material is designed so that its density is 250 kg/m3, dimensions are 25 × 25 × 5 cm, the required amount of glue is 252.34 g, and the pressing pressure is 150 bar. To produce the experimental insulation material, we used Vinavil XA V500mPas water dispersion adhesive (VINAVIL Corp., Milan, Italy), which is often used for particleboard production. After mixing tree bark and adhesives, the material was left under pressure for 24 h. The moisture content in the bark was determined by measuring it on a Kern moisture analyzer (Kohn & Sohn, Balingen, Germany), and it was 6.66%. The process of sample preparation is presented in Figure 6.
Figure 6.
Moisture determination of raw material (left), pressing process on laboratory scale (in the middle), and experimental insulation material (right).
Following the preparation of the insulation material, thermal conductivity testing was conducted. Samples were placed between two plates in the test stack, and a temperature gradient was established across the thickness. The plates were positioned to automatically determine the sample thickness. The plates were positioned to use auto thickness to determine sample thickness. Each material employed in constructing the external wall—veneer plywood, mineral wool, OSB panel, and tree bark—underwent testing using the instrument, with three samples analyzed for each. Figure 7 shows the tree bark sample in the Fox200 instrument before conducting the measurement.
Figure 7.
Tested sample and preparation for measurement in the Fox200 instrument.
The surfaces of the test specimens were made flat through cutting and grinding to ensure close contact with the working surfaces.
2.3. In Situ Testing of Thermal Properties of External Walls
Good indoor air quality benefits health, comfort, and productivity [24]. Building airtightness prevents uncontrolled airflows through the envelope, mitigating issues such as hygrothermal inefficiencies, health risks, increased energy consumption, compromised ventilation performance, reduced thermal comfort, noise intrusion, and diminished fire resistance [25]. Air leakage and indoor air exfiltration can result in moisture buildup or condensation, which may promote microbial growth, negatively alter material properties, and potentially cause structural damage [25]. The airtightness of the building envelope is of central importance when dealing with the problem addressed here [26]. Tight buildings enhance occupant comfort, which can subsequently influence energy consumption and acceptability of the indoor environment [27]. Quantifying envelope airtightness is essential for assessing energy loss from infiltration and its contribution to ventilation demands [28]. Airtightness requirements are often specified in national building regulations. To measure airtightness, a Blower door test (Figure 8) is conducted to determine the relationship between the pressure difference across the building envelope, ∆P [Pa], and the airflow rate through the building envelope, Q [m3/h] [29].
Figure 8.
Bungalow airtightness testing by using a Minneapolis Blower door.
Measured U-values of tested walls presented in this paper were collected from 1 December to 8 December 2023. A sampling interval of 10 min was used for all data collection. According to ISO 9869-1:2014 (Thermal insulation, building elements, in situ measurement of thermal resistance and thermal transmittance), U-value measurements were conducted under a temperature difference more significant than 10 °C between the indoor and outdoor environment. The bungalow had two heating devices installed and running seven days before and during the measurements of U-values, temperatures (inside the bungalow, outside temperature, and wall temperature), and relative humidity. The heating was activated earlier to reduce the impact of the walls’ thermal storage on measured U-values. Using those heating devices, the average inside temperature during the test period was 24.98 °C, and the average outside temperature was 1.81 °C (results from the Hukseflux device). Therefore, a minimum average of 23.17 °C difference in temperature between indoor and outdoor air was achieved during the measurement, double than required.
The average relative humidity value inside the bungalow during the observed period was 85.07%. The cross-sections of tested walls are presented in Figure 9.
Figure 9.
Cross section of wall insulated with MW (upper image, Wall 1) and wall insulated with TB (lower image, Wall 2).
The heat flow method (HFM) and temperature-based method (TBM), Figure 10, were used to determine the U-values of the walls. Both methods are explained in detail in [30]. HFM is a common, non-destructive, and standardized method for estimating plane building components’ thermal transmission properties. Its application relies on creating a minimum temperature gradient between indoor and outdoor environments, ensuring sufficient heat flow is present [30]. TBM is a recent and straightforward, yet non-standardized, method for performing in situ U-value measurements. It is based on Newton’s law of cooling, which asserts that the rate of heat transfer is proportional to the temperature difference between an object and its environment, as well as the surface area involved [31].
Figure 10.
Heat Flow Method (HFM) and Temperature Based Method (TBM) instruments setup.
In this research, both methods were used to compare results as a control measurement and to test TBM since it’s a non-standardized method used to conduct in situ measurements (Figure 10). Figure 10 shows a measurement setup with Wall 1 on the right and Wall 2 on the left. Sensors for HFM and TBM were placed next to each other.
Figure 11 shows how infrared thermography (IRT) was used to avoid positioning the sensors near the thermal bridges and cracks.
Figure 11.
Infrared Thermography (IRT) images on tested walls—wall insulated with tree bark (left) and a wall with mineral wool (right). The same temperature scale refers to both images.
The left image on Figure 11 is taken on a wall insulated with tree bark (Wall 2), and the right image on a wall with mineral wool (Wall 1) as an insulation material. IRT detected places that should be avoided when placing instrument sensors—for example, the diagonal wooden crossbar on the right image.
3. Results and Discussion
3.1. Thermal Properties Testing on the Material Level
Measurements were conducted according to ISO 8301:1991. Thermal insulation—Determination of steady-state thermal resistance and related properties—Heat flow meter apparatus.
Measuring results are presented in Table 1. Deviation from average was also observed (last column) to ensure that all three results from each sample are within the ±10% deviation according to ISO 8301:1991.
Table 1.
An overview of the thermal conductivity (λ, W/mK) measuring results.
Research [15] presented thermal conductivity values of bark insulation material ranging from 0.0651 to 0.0657 W/mK. Using pine tree bark, Kain et al. [21,32] measured similar thermal conductivity factors (from 0.06 to 0.09 W/mK). Compared to the often-used MW and EPS, those two have more favorable thermal conductivity values (0.032–0.050 W/mK).
Based on the results shown in Table 2, the obtained results for OSB panel, mineral wool and veneer plywood are in accordance with [33], except for tree bark since this material isn’t listed in the regulation as an insulation material. Some differences can be explained by technical regulations, which give general values for various materials without specifying material manufacturers.
Table 2.
Thermal conductivity (λ, W/mK)—measured vs. prescribed values.
3.2. In Situ Testing of Thermal Properties of External Walls
Bungalow airtightness was measured using Minneapolis Blower door equipment by EN ISO 9972:2015 [34,35], Figure 8. Measurements followed EN ISO 9972:2015—Method 1 while applying a pressure difference of 50 Pa. The obtained n50 value of the bungalow was measured to be 3.75 h−1 (with r2 of 0.92541), which is higher than the one prescribed in [33] (3.0 h−1 for this type of building). Here, it is essential to note that these were the first measurements before applying finishing covers on the walls, floors, and window sills. Also, places of potential leakage problems (door sill, cracks due to electrical and sensor installations) were discovered and sealed before finishing works.
Table 3 presents the results of tested walls, showing both the in situ U-values obtained by measurements and calculated U-values according to the international standard ISO 6946:2017. Calculated U-values are based on the [W/mK] results gained during laboratory testing of each layer and presented in Table 1, Section 3.1.
Table 3.
An overview of in situ U-values obtained through measurements, compared with theoretical U-values, alongside a comparison of theoretical U-values for uninsulated and insulated walls using various building materials.
Theoretical U values (using thermal conductivities of different layers, thicknesses, and convective heat transfer coefficients inside and outside) were calculated according to the following equation:
where λi is the thermal conductivity of each material that composes the enclosure in W/(m K), ei is the thickness of each layer of material in meters, and Ri and Re are the surface thermal resistances corresponding to the interior and exterior air, respectively, in m2 K/W [36].
U = 1/Ri + ∑λi/ei + 1/Re
TBM is based on Newton’s law of cooling; in a steady state, Newton’s law of cooling is expressed as:
where Q is the heat flow rate, h is the surface heat transfer coefficient, A is the surface area, Ts is the body surface temperature, and T is the surrounding temperature [31].
Q = hA(Ts − T)
When using the HFM, an estimate of the U-value can be obtained using the following equation:
where qj is the heat flux passing through the unit area of the sample, Tij and Tej are the interior ambient temperature and exterior ambient temperature, respectively, and index j enumerates the individual measurement [37].
From Table 3 we concluded the following:
- U-values obtained by measurements for Wall 1 are higher than calculated ones, 26%;
- U-values obtained by measurements for Wall 2 are slightly lower than calculated ones, less than 10%;
Both of the above can be a consequence of exposure of the wall and its layers to real weather conditions, inside relatively high relative humidity (since 40% to 60% is recommended), and the influence of material humidity on thermal properties.
Nevertheless, differences of 26% and 10% between measured and calculated values are in accordance with previous research—according to the Italian standard UNI 10351, differences between laboratory measurements and real thermal conductivity values of new materials range from 5% to 50%, influenced by the material’s aging, material type, average humidity levels, installation procedure errors, and thickness tolerance [38,39,40]. Previous studies also found differences between the U-values of walls measured in situ with different methods, and theoretical values range by up to 153% [41].
Most interestingly, the values obtained by two methods, standardized and non-standardized HFM and TBM, are consistent. Therefore, this research proves that the new approach (TBM method) for in situ assessment of thermal transmittance can be very effective and promising, based on preliminary results.
According to [33], the maximum U-value allowed for external walls is 0.30 W/m2K. U-values of Wall 1 and Wall 2 comply with this since the measured values are below. The calculated value for Wall 2 is slightly above the maximum value, which indicates that the thermal insulation layer of the tree bark should be 2 cm thicker to comply with the regulation [33].
4. Conclusions
Large quantities of bark available make it a very attractive source for building materials. Its utilization in the form of insulation material is one of the possibilities in obtaining a long-lasting wood-based product and a good alternative to using it as an energy source. This study demonstrates the potential of oak bark as a sustainable and effective insulation material in lightweight building structures. By leveraging tree bark, a by-product of the wood processing industry, as an alternative to conventional insulating materials such as mineral wool, we explored its thermal properties and in situ performance. The experimental bungalow served as an ideal testing platform to assess both laboratory and real-world applications of bark insulation.
The presented results show that the U-values of the experimental wall with oak tree bark (0.29 W/m2K) fulfill the national insulation requirements and provide competitive thermal performance, with measured U-values aligning well with regulatory requirements. Moreover, the consistency between the standardized Heat Flow Method (HFM) and the novel Temperature-Based Method (TBM) highlights the viability of alternative approaches for in situ thermal property evaluation. The values obtained by two methods, HFM and TBM, are consistent. The U-value results obtained by HFM method measurements for Wall 1 with MW are higher than the calculated ones by 26%, and for experimental Wall 2 with tree bark, they are slightly lower than the calculated ones, less than 10%. Despite slight deviations from theoretical values, factors such as real-world humidity levels, outdoor natural weather conditions, and material aging underscore the importance of further research into optimizing bark insulation thickness and installation practices.
All the tests performed on the experimental bungalow clearly demonstrate its potential for further research in order to obtain an insulation panel from oak tree bark.
Overall, this research underscores the promise of tree bark as a viable, eco-friendly insulating material that supports sustainable construction practices. Continued investigation into its application, alongside the development of standardized testing methods, will pave the way for broader adoption and innovation in green building materials.
Further research should focus on optimizing the process parameters, insulation thickness, panel density, adhesive technology, bark particle dimensions, level of fire resistance and mechanical properties, and the technology of insulation panel production and implementation in walls.
Author Contributions
Conceptualization, V.Ž. and H.K.; methodology, A.N. and H.K.; software, H.K.; validation, H.K.; formal analysis, A.N. and H.K.; investigation, A.N. and V.Ž.; resources, V.Ž.; data curation, A.N. and H.K.; writing—original draft preparation, V.Ž., A.N. and H.K.; writing—review and editing, V.Ž., A.N. and H.K.; visualization, V.Ž., A.N. and H.K.; supervision, V.Ž.; project administration, V.Ž.; funding acquisition, V.Ž. All authors have read and agreed to the published version of the manuscript.
Funding
Part of this experiment was executed within the frames of the research project “Research and development of innovative wooden wall coverings, partitions, and load-bearing walls for sustainable construction in the company Spačva d.d.—financed from the Operational Program “Competitiveness and Cohesion 2014-2020.” KK.01.2.1.02.0244.
Data Availability Statement
The raw/processed data required to reproduce these findings cannot be shared at this time as the data also forms part of an ongoing study.
Acknowledgments
We would like to thank colleagues from the LDG lab for the sample preparation, handling, and building of the Bungalow 3.1.
Conflicts of Interest
The authors declare no conflicts of interest and the funders had no role in the design of the study; in the collection, analyses, or interpretation of data; in the writing of the manuscript; or in the decision to publish the results.
Abbreviations
The following abbreviations are used in this manuscript:
| MW | Mineral wool |
| EU | European Union |
| OSB | Oriented strand board |
| IRT | Infra-Red Thermography |
| EPS | Expanded polystyrene |
| GWP | Global warming potential |
| POCP | Formation potential of tropospheric ozone |
| ADP-fossil fuels | Abiotic depletion potential |
| PENRT | Primary energy and primary energy resources used as raw materials |
| HFM | Heat flow method |
| TBM | Temperature-based Method |
| TB | Tree bark |
| nZEB | Nearly zero-energy buildings |
References
- Ozel, M. Cost analysis for optimum thicknesses and environmental impacts of different insulation materials. Energy Build. 2012, 49, 552–559. [Google Scholar] [CrossRef]
- Pargana, N.; Pinheiro, M.D.; Silvestre, J.D.; de Brito, J. Comparative environmental life cycle assessment of thermal insulation materials of buildings. Energy Build. 2014, 82, 466–481. [Google Scholar] [CrossRef]
- Levia, D.; Herwitz, S. Interspecific variation of bark water storage capacity of three deciduous tree species in relation to stemflow yield and solute flux to forest soils. Catena 2005, 64, 117–137. [Google Scholar] [CrossRef]
- Gaff, M.; Sandberg, D.; Kuzman, M. Engineered Wood Products: Wood as an Engineering and Architectural Material; Czech University of Life Sciences: Prague, Czech Republic, 2018. [Google Scholar]
- Borysiuk, P.; Boruszewski, P.; Auriga, R.; Danecki, L.; Auriga, A.; Rybak, K.; Nowacka, M. Influence of a bark-filler on the properties of PLA biocomposites. J. Mater. Sci. 2021, 56, 9196–9208. [Google Scholar] [CrossRef]
- Pásztory, Z.; Ronyecz, I. The Thermal Insulation Capacity of Tree Bark. Acta Silv. Lignaria Hung. 2013, 9, 111–117. [Google Scholar] [CrossRef]
- Kain, G. Design of Tree Bark Insulation Boards: Analysis of Material, Structure and Property Relationships. Ph.D. Thesis, Technischen Universität München, Munich, Germany, 2016. [Google Scholar]
- Pasztory, Z.; Mohácsiné, I.R.; Gorbacheva, G.; Börcsök, Z. The utilization of tree bark. BioResources 2016, 11, 7859–7888. [Google Scholar] [CrossRef]
- Marrakech Partnership for Global Climate Action [MPGCA]. 2021. Available online: https://unfccc.int/climate-action/marrakech-partnership-for-global-climate-action (accessed on 30 January 2024).
- Violano, A.; Cannaviello, M. The Carbon Footprint of Thermal Insulation: The Added Value of Circular Models Using Recycled Textile Waste. Energies 2023, 16, 6768. [Google Scholar] [CrossRef]
- Asdrubali, F.; D’Alessandro, F.; Schiavoni, S. A review of unconventional sustainable building insulation materials. Sustain. Mater. Technol. 2015, 4, 1–17. [Google Scholar] [CrossRef]
- Ata-Ali, N.; Penadés-Plà, V.; Martínez-Muñoz, D.; Yepes, V. Recycled versus non-recycled insulation alternatives: LCA analysis for different climatic conditions in Spain. Resour. Conserv. Recycl. 2021, 175, 105838. [Google Scholar] [CrossRef]
- Kunič, R. Carbon footprint of thermal insulation materials in building envelopes. Energy Effic. 2017, 10, 1511–1528. [Google Scholar] [CrossRef]
- Moncaster, A.; Symons, K. A method and tool for ‘cradle to grave’ embodied carbon and energy impacts of UK buildings in compliance with the new TC350 standards. Energy Build. 2013, 66, 514–523. [Google Scholar] [CrossRef]
- Volf, M.; Diviš, J.; Havlík, F. Thermal, Moisture and Biological Behaviour of Natural Insulating Materials. Energy Procedia 2015, 78, 1599–1604. [Google Scholar] [CrossRef]
- Styrofoam for Facades 10 cm—EPS 70, with Fold. Available online: https://www.ikoma.hr/hr/fasade-143/stiropor-eps-145/stiropor-za-fasade-10-cm-eps-70-s-preklopom-2944/#tab-description (accessed on 31 January 2024).
- Stone Wool for Facades 10 cm—KNAUF Insulation FKD-N Thermal. Available online: https://www.ikoma.hr/hr/fasade-143/kamena-vuna-za-fasade-535/kamena-vuna-za-fasade-10-cm-knauf-insulation-fkd-n-thermal-6215/#tab-description (accessed on 31 January 2024).
- Superti, V.; Forman, T.V.; Houmani, C. Recycling Thermal Insulation Materials: A Case Study on More Circular Management of Expanded Polystyrene and Stonewool in Switzerland and Research Agenda. Resources 2021, 10, 104. [Google Scholar] [CrossRef]
- Michalak, J.; Czernik, S.; Marcinek, M.; Michałowski, B. Environmental burdens of External Thermal Insulation Systems. Expanded Polystyrene vs. Mineral Wool: Case Study from Poland. Sustainability 2020, 12, 4532. [Google Scholar] [CrossRef]
- Kain, G.; Tudor, E.M.; Barbu, M.-C. Bark Thermal Insulation Panels: An Explorative Study on the Effects of Bark Species. Polymers 2020, 12, 2140. [Google Scholar] [CrossRef]
- Kain, G.; Barbu, M.C.; Hinterreiter, S.; Richter, K.; Petutschnigg, A. Bark as Heat Insulation Material. BioResources 2013, 8, 3718–3731. [Google Scholar] [CrossRef]
- Pásztory, Z.; Mohácsiné, I.R.; Börcsök, Z. Investigation of thermal insulation panels made of black locust tree bark. Constr. Build. Mater. 2017, 147, 733–735. [Google Scholar] [CrossRef]
- TA Instruments. Available online: https://www.tainstruments.com/fox-200ht/ (accessed on 25 February 2025).
- Wargocki, P.; Wyon, D.P.; Sundell, J.; Clausen, G.; Fanger, P.O. The effects of outdoor air supply rate in an office on perceived air quality, sick building syndrome (SBS) symptoms and productivity. Indoor Air 2000, 10, 222–236. [Google Scholar] [CrossRef]
- Kalamees, T. Air tightness and air leakages of new lightweight single-family detached houses in Estonia. Build. Environ. 2007, 42, 2369–2377. [Google Scholar] [CrossRef]
- Poupard, O.; Blondeau, P.; Iordache, V.; Allard, F. Statistical analysis of parameters influencing the relationship between outdoor and indoor air quality in schools. Atmospheric Environ. 2005, 39, 2071–2080. [Google Scholar] [CrossRef]
- Sherman, M.H.; Chan, R. Building Airtightness: Research and Practice. In Building Ventilation; Santamouris, M., Wouters, P., Eds.; Routledge: London, UK, 2006. [Google Scholar]
- Max, H.S.; Nance, M. Air Tightness of New U.S. Houses: A Preliminary Report; LBL Publications: Berkeley, CA, USA, 2002. [Google Scholar]
- Relander, T.-O.; Holøs, S.; Thue, J.V. Airtightness estimation—A state of the art review and an en route upper limit evaluation principle to increase the chances that wood-frame houses with a vapour- and wind-barrier comply with the airtightness requirements. Energy Build. 2012, 54, 444–452. [Google Scholar] [CrossRef]
- Teni, M.; Krstić, H.; Kosiński, P. Review and comparison of current experimental approaches for in-situ measurements of building walls thermal transmittance. Energy Build. 2019, 203, 109417. [Google Scholar] [CrossRef]
- Çengel, Y.A. Heat Transfer: A Practical Approach; McGraw-Hill: New York, NY, USA, 2004. [Google Scholar]
- Kain, G.; Güttler, V.; Barbu, M.-C.; Petutschnigg, A.; Richter, K.; Tondi, G. Density related properties of bark insulation boards bonded with tannin hexamine resin. Eur. J. Wood Wood Prod. 2014, 72, 417–424. [Google Scholar] [CrossRef]
- Uređenja, M.G.I.P. Technical Regulation on the Rational Use of Energy and Thermal Insulation in Buildings. Nar. Novine 2015, 128. (In Polish). Available online: https://narodne-novine.nn.hr/clanci/sluzbeni/2015_11_128_2428.html (accessed on 25 February 2025).
- ISO 9972:2015; Thermal Performance of Buildings—Determination of Air Permeability of Buildings—Fan Pressurization Method. BSI Standard Publication: London, UK, 2015.
- ISO 9972:1996; Thermal Performance of Buildings—Determination of Air Permeability of Buildings—Fan Pressurization Method. Slovenian Institute for Standardization: Ljubljana, Slovenia, 2002.
- Rodríguez-Soria, B.; Domínguez-Hernández, J.; Pérez-Bella, J.M.; del Coz-Díaz, J.J. Review of international regulations governing the thermal insulation requirements of residential buildings and the harmonization of envelope energy loss. Renew. Sustain. Energy Rev. 2014, 34, 78–90. [Google Scholar] [CrossRef]
- ISO 9869-1:2014; Thermal Insulation—Building Elements—In-Situ Measurement of Thermal Resistance and Thermal Transmittance—Part 1: Heat Flow Meter Method. International Organization for Standardization: Geneva, Switzerland, 2014.
- Standard UNI 10351; Thermal Conductivity and Vapour Permeability. UNI: Milan, Italy, 1994.
- Albatici, R.; Tonelli, A.M.; Chiogna, M. A comprehensive experimental approach for the validation of quantitative infrared thermography in the evaluation of building thermal transmittance. Appl. Energy 2015, 141, 218–228. [Google Scholar] [CrossRef]
- Lucchi, E. Thermal transmittance of historical brick masonries: A comparison among standard data, analytical calculation procedures, and in situ heat flow meter measurements. Energy Build. 2017, 134, 171–184. [Google Scholar] [CrossRef]
- Evangelisti, L.; Guattari, C.; Gori, P.; Vollaro, R.D.L. In Situ Thermal Transmittance Measurements for Investigating Differences between Wall Models and Actual Building Performance. Sustainability 2015, 7, 10388. [Google Scholar] [CrossRef]
Disclaimer/Publisher’s Note: The statements, opinions and data contained in all publications are solely those of the individual author(s) and contributor(s) and not of MDPI and/or the editor(s). MDPI and/or the editor(s) disclaim responsibility for any injury to people or property resulting from any ideas, methods, instructions or products referred to in the content. |
© 2025 by the authors. Licensee MDPI, Basel, Switzerland. This article is an open access article distributed under the terms and conditions of the Creative Commons Attribution (CC BY) license (https://creativecommons.org/licenses/by/4.0/).










