Next Article in Journal
Enhancing Load-Carrying Capacity of Reinforced Concrete Columns with High Aspect Ratio Using Textile-Reinforced Mortar Systems
Next Article in Special Issue
The Challenges of Earthen Architecture from a Conservation Perspective: St Bartholomew Anglican Church, Wusasa, Nigeria
Previous Article in Journal
Predicting Residual Flexural Strength of Corroded Prestressed Concrete Beams: Comparison of Chinese Code, Eurocode and ACI Standard
Previous Article in Special Issue
Improvement of Mechanical Properties of Compressed Earth Blocks with Stabilising Additives for Self-Build of Sustainable Housing
 
 
Font Type:
Arial Georgia Verdana
Font Size:
Aa Aa Aa
Line Spacing:
Column Width:
Background:
Article

Architectural Features and Soil Properties of Traditional Rammed Earth Houses: Eastern Croatia Case Study

Faculty of Civil Engineering and Architecture Osijek, Josip Juraj Strossmayer University of Osijek, 31000 Osijek, Croatia
*
Author to whom correspondence should be addressed.
Buildings 2024, 14(7), 2049; https://doi.org/10.3390/buildings14072049
Submission received: 4 June 2024 / Revised: 26 June 2024 / Accepted: 3 July 2024 / Published: 4 July 2024

Abstract

Rammed earth buildings constitute a large part of the housing stock in rural areas. Although these houses are recognized as a cultural heritage, detailed analyses of their architectural features, geometric parameters crucial for structural stability, and soil properties used for their construction have not yet been carried out in Croatia. The aim of this study is to collect basic data on the architectural features and material properties of rammed earth walls through field research in Croatia. These data are crucial for both numerical and experimental studies to improve the understanding of the structural behavior of rammed earth houses. Data were obtained through field research and a detailed survey of 22 houses. The houses were analyzed, samples of the rammed earth walls were collected, and their properties were tested in the laboratory. This study contributes to a better understanding of regional building practices and provides data that will enable us to identify the causes of damage in future studies and to select rehabilitation measures to preserve the authentic symbols of cultural heritage.

1. Introduction

It is estimated that at least one-third of the world’s population lives in earthen houses [1,2,3]. As acknowledged in recent literature, traditional rammed earth houses exist worldwide [1,4]. Moreover, a significant proportion of earthen buildings are located in earthquake-prone areas [1,5,6,7,8], including Croatia [3,9].
Rammed earth is a traditional building technique that has been used for thousands of years [2,6], especially in regions with limited wood resources, as was the case in eastern Croatia [10,11]. In this technique, earth, usually a mixture of local soils, is compacted at the optimum water content in layers within a formwork to form monolithic structural walls. In French, this technique is known as pise; in Spanish, as tapial; in Portuguese, as taipa; in Colombian, as tapia pisada; and in Croatian (cro.), as nabijača or naboj. Rammed earth is valued for its availability, low environmental impact, low cost, and significant thermal mass, which makes buildings cooler in summer and warmer in winter. From a materials science perspective, rammed earth is a composite material comprising compact layers of natural or man-made soil, usually containing a mixture of clay, silt, sand, and gravel. In rammed earth, clay acts as a binder and is usually present at a content of less than 30% [12,13]. However, the mixture can be stabilized with a small amount of cement [14,15,16,17] or lime [18,19] to improve its strength and durability. The density and strength of finished rammed earth elements depend on the composition of the soil used and the degree of compaction.
In the Slavonia and Baranja (hereinafter referred to as SaB) region in the eastern part of Croatia, rammed earth houses make up a large part of rural and ethnic villages and embody century-old architectural traditions. However, many of these rammed earth houses are in a dilapidated state, for which there are no adequate conservation measures. This is mainly due to the fact that there are no adequate, comprehensive national guidelines and standards to support the preservation of vernacular earthen buildings in Croatia.
The preservation of cultural identity and architectural heritage is important. These buildings not only reflect the country’s rich history but also serve as tangible links to the country’s past [7,20]. Without adequate conservation measures, Croatia risks losing a significant portion of its architectural heritage and authenticity. Therefore, there is a need for comprehensive strategies and initiatives aimed at restoring and preserving earthen buildings and ensuring that they remain enduring symbols of Croatia’s cultural heritage for future generations.
The revival of traditional earth-building techniques is crucial for advancing the Sustainable Development Goals (SDGs) [21]. These techniques are deeply rooted in history and offer sustainable building solutions. Using locally sourced materials and minimal processing, earthen construction reduces the carbon footprint and promotes environmentally friendly practices [5,22,23,24]. Earthen buildings contribute to climate change mitigation (SDG 13) by sequestering carbon dioxide and promoting energy efficiency. These techniques preserve cultural heritage (SDG 11), strengthen community resilience (SDG 11), and promote responsible consumption and production (SDG 12).
The aim of this study is to collect basic data on the architectural features and primary materials of rammed earth walls through field research. Following the statistical analysis of the architectural features and material properties of traditional rammed earth houses in Croatia, this research will set benchmarks for conducting numerical and experimental research to improve our understanding of the seismic behavior of these structures and develop effective rehabilitation methods. This information will inform the development of draft national guidelines and potentially set standards for the design and rehabilitation of rammed earth houses in Croatia and neighboring regions where similar construction technologies and materials are prevalent. This study provides an in-depth examination of the origins and development of rural earthen architecture in eastern Croatia. It examines the historical development of earth-building techniques and their crucial role in shaping the architectural landscape of this region. Finally, this study will provide important information to highlight traditional Croatian rammed earth architecture on a global map, thus emphasizing Croatia’s distinctive role in shaping this global architectural heritage.
As also noted in previous studies [25], international guidelines, such as those of ICOMOS [26], compare the structural rehabilitation of architectural heritage with the treatment of human diseases and emphasize the need for anamnesis (data collection), diagnosis (identification of the causes of damage), therapy (selection of remedial measures), and controls (monitoring of the effectiveness of the measures). This process requires a multidisciplinary approach. Following this, in our paper, we analyze traditional rammed earth houses in eastern Croatia, combining architectural and geotechnical perspectives that mention the historical context. This approach enabled us to produce for the first time an anamnesis of Croatian rammed earth houses and apply the ICOMOS (International Council on Monuments and Sites) framework to a particular type of architectural heritage in a unique geographical and cultural setting.
This study presents two traditional rammed earth houses and highlights their architectural nuances and cultural significance. Furthermore, the geometric features of these houses were explained through a statistical analysis of 12 such buildings, providing insights into their diversity and common characteristics. Additionally, a comprehensive investigation of the earthen materials used in the construction of these traditional houses was undertaken by applying advanced techniques from the recent literature [27,28]. This investigation sheds light on the material composition, properties, and sustainability of building materials, thus contributing to a better understanding of building practices in the SaB region.
Historically, geographically, and culturally, SaB has a century-old connection with Hungary and Austria. They were part of the Personal Union with Hungary from 1102 and became part of the Habsburg Monarchy in 1527, to which they belonged until Turkish occupation in the mid-16th century. Even after liberation from the Turks in 1699, they remained part of the Habsburg Monarchy and belonged to the territory of Austria-Hungary from 1867 to 1916 [29]. Rammed earth houses represent a cultural import for SaB, related to German, Hungarian, and even Czech settlers [30]. The same author notes that the local population only adopted the rammed earth technique to a greater extent in Baranja, while in Slavonia, it is mostly limited to foreign (mostly German) settlers.
To understand the spatial characteristics of SaB houses, it is necessary to discuss the appearance of a traditional SaB village. The villages were founded after liberation from the Turks in the second half of the 18th century during the reign of Maria Theresa and later Joseph II, according to the Theresianisches Urbarium of 1756 [11]. A regular linear village, also called a cro. ušoreno selo, is the most common form of a village in the SaB area and is characterized by elongated plots, usually perpendicular to the road corridors, with elongated houses usually bordering the property line and the gables facing the street. The width of the plots was approximately 25 m, and the length was approximately 100 m, which was sometimes considerably larger. Later, in the second half of the 19th century, plots were divided between brothers [11], usually into two or three parts [31]. The arrangement of buildings on the plot was prescribed in a document entitled Instructions for Settlement, which was published in Vienna in 1772 [10].
A review of the local literature revealed that the topic addressed in this paper has not yet been researched or presented in a similar manner. There are few local studies that deal with the subject of traditional SaB houses, and research on the construction of rammed earth houses is even less represented. In existing studies, traditional Croatian earthen houses are mostly represented by photographs of the existing conditions (without in-depth analysis) and documented only by simple house plans and simple descriptions [11,32,33]. The book by Španiček [30] deals with different types of SaB houses and discusses their construction but only mentions the building tools, provides some information about the type of formwork, and mentions the use of local materials. There is no detailed information about the construction, selection of soil, method of preparing the mixture, preparation of the formwork, or method of installing the soil. Lončar-Vicković and Stober [10] provide guidelines for the renovation of rammed earth houses and present examples of high-quality restorations. Knowledge about the materials and construction of houses made of rammed earth was passed on from generation to generation, and the authors gathered information from the local residents and craftsmen. Kojičić and Kojičić [34] compiled a handbook describing the traditional construction of rammed earth houses in the Republic of Serbia and offered solutions for their renovation. Although the aforementioned handbook refers to the earthen houses of the neighboring country (Vojvodina, Republic of Serbia), it was also used in research, as the construction method and similar types of earthen houses can also be found in parts of the Pannonian Plain of neighboring countries [31].
The existing literature dealing with traditional eastern Croatian earthen houses lacks statistical data on the geometry of the houses, a crucial piece of information for numerical or physical models used in parametric or experimental studies [35,36,37]. There is also a lack of information on the physical properties of the soil used in the construction of traditional rammed earth houses. This information is essential for the effective rehabilitation and renovation of these structures [20,38,39]. By understanding the geometric characteristics of houses and the properties of the soil, researchers and practitioners can make informed decisions regarding conservation and restoration measures to ensure the longevity and sustainability of traditional rammed earth houses.
Today, traditional Croatian earthen houses, considered by some authors [30], are the best achievements of Croatian vernacular architecture and are being abandoned and bypassed for modern housing construction because they are associated with poverty. One of the objectives of this paper is to collect information about these houses in order to preserve knowledge about them and to present them to professionals and the wider scientific public for the first time while positioning SaB houses on the world map of rammed earth houses. Both architectural and structural perspectives were applied with regard to the characteristics of the soil from which these houses were built. To the best of our knowledge, no study has provided a detailed overview of the types and characteristics of the materials used in SaB houses, particularly the properties, quality, and type of soil used in houses with rammed earth walls. For this reason, this research represents an original scientific contribution to the topic of rammed earth houses in the Republic of Croatia, as well as to this topic in general, as it fills the research gap in recent research and places Croatian rammed earth houses on the world map of architectural heritage.
The remainder of this paper is organized as follows. The introduction contains a brief description of the historical and geographical context of rammed earth houses in SaB is followed by a description of the methods used to identify the locations of rammed earth houses and their analysis, which led to the presentation of the most important architectural, structural, and material features of these houses. The next section presents the results of the research and is divided into three subsections. The first subsection shows SaB houses made of rammed earth from an architectural perspective, the second subsection deals with the construction details and materials, and the third subsection contains the main characteristics of the soil used for the walls of these houses. After presenting the results, the paper ends with a brief discussion and the main conclusions.

2. Materials and Methods

The first phase of the research consisted of a review of domestic and foreign literature (books, manuals, and scientific papers) on the subject of earth building with a focus on rammed earth houses, followed by field and laboratory research. The research process is illustrated in Figure 1. The study area was selected based on information about the locations of earthen houses from the domestic literature. Since earth houses can be found in several counties in Croatia, the study area was initially limited to municipalities around the city of Osijek. The areas of Slavonia and Baranja are included in the study in an approximately equal area (the municipalities in Slavonia cover 724 km2, whereas those in Baranja cover 777 km2). Initially, 32 settlements were included in the study: 16 in Slavonia and 16 in Baranja, with the river Drava serving as the boundary line (Figure 2). Preliminary fieldwork in the cities of Osijek and Beli Manastir revealed that the number of earth houses was very small compared to the total number of houses; therefore, these two cities were excluded from the sample. The study shows the results of field research in 30 villages in which all streets were inspected (Figure 1, Step 2). The locations of all types of earthen houses (adobe, rammed earth, or their combinations) were mapped.
Fieldwork was carried out in March, April, November, and December 2021 and November and December 2023. The locations of the earth houses were determined by visual inspection of the houses (with the permission of the owner, the yard, and/or the building itself was entered, and for houses where tenants were not encountered, visual inspection was carried out from the public area). For buildings that were inhabited and for which information about the material of the walls could not be obtained by visual inspection, information was obtained from the owner (Figure 1, Step 3).
Permission was obtained for the analysis of the 22 houses (Figure 1, Step 4). To facilitate the presentation of the results, the houses were assigned codes under which they were listed in this paper. Table 1 contains a list of the examined houses, as well as basic information about their location and the code of the samples taken. All houses were photographed, their characteristic building elements were sketched, and information was entered into prepared forms (address, number, and area of the cadastral parcel, owner, and, if known, information on the year of construction). Permission to obtain wall samples was obtained for 21 houses (Figure 1, Step 5), and 12 houses were analyzed in detail, photographed, and provided with architectural plans (Figure 1, Step 6). The architectural plans were included in a catalog that contained the site plan, façades, floor plan, and cross-section when the house was allowed to be entered. In addition to the architectural and urban planning data collected, the catalog also included a brief description of the architectural features of the houses as well as structural and technical data: the structural system, the largest span (in cases where the interior of the building was not accessible and could not be measured, the span was estimated based on the measured thickness of the wall at the window), the dimensions of the walls and columns, the type of roofing, the type of ceiling structure, and the types of materials used for the aforementioned building elements. Based on the field measurements and data collected, architectural plans were drawn up, and the geometric characteristics of these houses were explained by a statistical analysis that sheds light on their diversity and common characteristics.
This paper describes the geometric characteristics of traditional eastern Croatian rammed earth houses, as well as the most important geometric parameters that are decisive for the seismic design and behavior of structural walls and buildings: aspect ratio, slenderness, and opening to façade area ratio. To the best of our knowledge, this study is the first to provide statistically based values for the aspect ratio, slenderness, and opening to façade area ratio of traditional rammed earth houses. As there has been limited research into the behavior of rammed earth walls with openings [43,44,45,46,47,48], these data will facilitate further research and potentially guide parametric analyses.
The houses that were analyzed in detail are located in four municipalities: Kneževi Vinogradi, Čeminac, Bilje, and Erdut (Figure 1). Based on the surveyed houses and houses in the sample, two examples of the most common spatial organization of houses were selected and analyzed: a gabled house and a house with an “L” floor plan. (Figure 1, Step 7).
The soil samples were taken from houses for which permission had been obtained at the location and in quantities authorized by the owners. Prior to sampling, the plaster, if present, was removed, and the subsurface layer of the wall was stripped to a thickness of approximately 2–3 cm. This method was chosen according to that described by Gomes, Gonçalves, and Faria [27].
Disturbed samples were collected from the majority of the houses, as only simple sampling devices were allowed. However, smaller block samples were obtained from some houses; therefore, it was possible to perform a bulk density test. The collected samples were used to investigate the basic physical properties of the soil depending on their quantity. The following tests were performed: particle size distribution [49], liquid and plastic limit [50], moisture content [51], bulk density [52], and organic content [53].

3. Results

A visual inspection of the buildings in 30 settlements revealed 408 earthen buildings: 131 in the Slavonia region and 277 in Baranja. In the observed sample, the largest portion of earthen houses was made of adobe, and some of the buildings were built from a combination of adobe and bricks, adobe, and rammed earth, whereas 106 buildings were mainly rammed earth. Materials with a higher load-bearing capacity (adobe and fired bricks) were used in houses made of rammed earth as reinforcing elements or in structural elements in contact with the ground (higher humidity), as well as in gables, columns, or chimneys. A total of 62 rammed earth houses were found in the Baranja region, most of them in the municipality of Kneževi Vinogradi (46 in total), whereas 44 were found in the Slavonia region, most of them in the municipality of Erdut (26).
In the next three subsections, SaB rammed earth houses are presented on the basis of (i) spatial organization, (ii) structural elements and materials, and (iii) properties of the soil in the rammed earth walls.

3.1. Spatial and Organizational Characteristics of Rammed Earth Houses

SaB houses are single-story houses built on the edge of a plot, covered with a traditional wooden roof, and with an interior raised from the surrounding terrain in several steps. The width of these houses is significantly less than their length, and they are characterized by a veranda that usually extends the entire length of the house. The veranda is the most important communication element, and most rooms are directly accessible from it. It takes the form of a shallow overhang, often flanked by columns on the courtyard side. The houses usually do not have a basement, but in the few cases where a basement was present (larger houses of wealthier farmers), it served as a storage space. Based on the houses studied, two spatial organizations of SaB rammed earth houses are presented below: a house with a gable facing the street and a house with an L-plan.
The survey identified 106 rammed earth houses in the study area. The majority (91) are houses with an elongated floor plan and a gable wall facing the street. Only 15 houses had a ridge parallel to the street; that is, they were built in the form of an “L” floor plan. The first type of house, which extends into the depth of the courtyard and whose street façade is dominated by two windows, is also referred to by some authors as the Pannonian type [54,55]. The German term giebelhaus is also used because of its characteristic appearance [30]. The gable as a design feature of SaB houses has its roots in old wooden houses, where the central pillar supports the beam in the roof ridge of the house and conditions a symmetrical arrangement of windows and small openings for the ventilation of the attic at the top of the gable [11]. This construction method was maintained even after the ban on wooden buildings, initially in houses whose walls were built from rammed earth, then from adobe, and finally from bricks. Houses of this type can differ in their veranda designs (cro. trijem, trim, ganjak). The veranda almost always faces south and east, and in rare cases southwest, which shows good adaptation to the given climatic conditions and sun protection.
Another type of house, in terms of floor plan, is called a turnkey house (cro. u ključ), elbow house (cro. na lakat), or crooked house (cro. na krivac) [11]. In this type of house, the roof ridge runs parallel to the street, and the rooms facing the street are lined with other rooms inside the property, creating a characteristic L-shaped floor plan. Živković [11] states that such houses were usually built by immigrant German craftsmen, for whom the layout of the house was more favorable due to trade and commerce, and since the craftsmen’s families were wealthier, this house layout also had a status symbol.

3.1.1. An Elongated House with the Street-Facing Gable

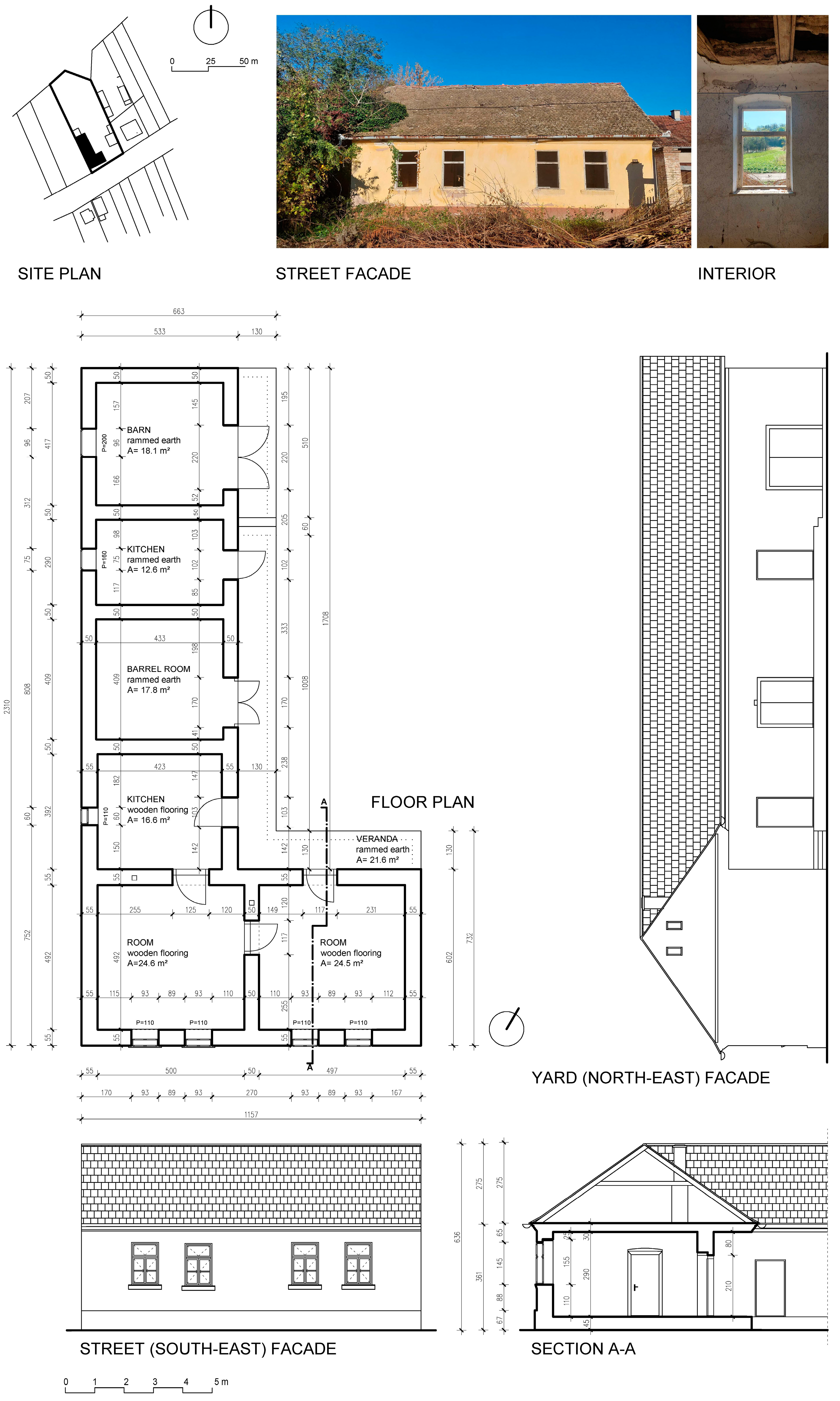
An example of a house with an elongated floor plan is a house in the village of Bijelo Brdo, built in the last decade of the 19th century. In this research, the house was kept under code BB-2. The house plot is located at a crossroads and has an area of 1251 m2, a width of 18.5 m, and a length of 65 m. The longer side of the plot was oriented north-south (with a 10° deviation clockwise to the east), with an entrance from the south. The house is located in the southwest corner of the property, and the windows face south and east (Figure 3).
The external dimensions of the house are approx. 6.5 × 29 m. The street façade is characterized by a gable with two windows and a door for access to the veranda. The courtyard façade has a veranda that runs the entire length of the house and is flanked by 11 columns. The house is divided lengthwise into two parts: the front, the main living area, and the rear, with utility rooms. The front, which is the main living area of the house, consists of three rooms. The veranda leads to a centrally located kitchen, which has a room on either side: a common room at the front and a slightly smaller room at the back. The first room of the house, with two windows (76 × 98 cm) facing the street, was also the largest and most important room in the house. This room served as the living room, bedroom, and dining room for the entire family. Its dimensions are 4.10 × 5.40 m, while its height is 2.60 m. The room has a window facing the courtyard and a rammed earth stove on the wall facing the kitchen. The central room of the house was divided into two functional parts. The first part is a kind of entryway, accessed from the veranda and courtyard, which also provides access to the front and back rooms, while the second part is the kitchen. These two parts are separated by a large ceiling beam, behind which is a large fireplace with an open chimney in the kitchen area, where meat is dried in winter and where there is now a barrel vault. The dimensions of the kitchen were 4.1 × 3.1 m. The kitchen has no windows, but the door to the veranda has a glazed section. In the corner of the entrance area, toward the back room, there is an opening in the ceiling through which a ladder leads to the attic. The third room, at the back, is 4.1 × 4.0 m and is lit from the veranda via two smaller windows (71 × 91 cm). This room was used as the guest room. The veranda is the most important communication space for the houses. It is 1.55 m wide and over 29 m long. The veranda begins with a door on the street façade and ends with an opening to the back-courtyard. It protects users from the external influences of rain and snow in winter and from the sun in summer. It is raised in two steps from the street side, while the difference in height in the courtyard is only one step owing to the slope of the terrain. Behind the main living area, the following rooms are lined up along the veranda: a barrel room (cro. kacara) where wine and sauerkraut barrels were kept (4.1 × 4.4 m), a room for young married couples, cro. kijeri (4.1 × 3.7 m) with a small window to the veranda and barn (4.1 × 5.6 m). All rooms enter directly from the veranda, and the doors to the barrel room and barn are double-leafed and open to the veranda. The house ended with an outhouse. The front part of the house was separated from the rear part by a 12 cm thick brick firewall, as the hay for the cattle was stored in the rear part of the attic.
The house has rammed earth walls (with 45 cm thick rammed earth walls reinforced with vine branches in the corners), a wooden ceiling (approx. 6.5 m long beams), and a traditional wooden roof (rafters with wind trusses) covered with flat clay tiles (cro. biber crijep).

3.1.2. A House with a Gabled Roof Running Parallel to the Street and an “L”-Shaped Floor Plan

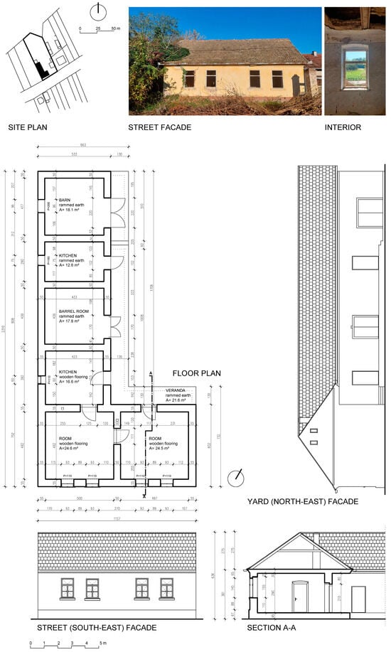
This is a one-story house in the village of Aljmaš, built in the 1920s (in this research, the house is kept under code ALJ-3). It was built by a wealthy German family that owned a village wheat mill. The house was located on an elevated plot in the immediate vicinity of the Danube. The irregular building plot has an area of 1540 m2 and is 24 m wide and 68 m long. The property is oriented north-south on its longer side (with a deviation of 25° counterclockwise to the west) and is accessed from the southeast. The house is located in the southwest corner of the plot, with rooms facing southeast and northeast. It has an L-shaped floor plan with dimensions of 11.5 m toward the street and 23.10 m at the southwestern edge of the plot. The street side of the house is characterized by a gabled roof with a ridge parallel to the street and four tripartite windows (93 × 145 cm).
The house was set back 2.0 m from the street. This part was intended to plant flowers, and the courtyard itself was divided into three parts. The first part of the courtyard was intended for residential purposes, the second part was intended for livestock and animals, and the third part was intended for vegetable gardens. The floor plan of the house is divided into two parts: the front part, the main living area, which contains two large rooms with windows facing the street, and the inner part, where the kitchen and utility rooms are located. These two parts are connected by a covered veranda (1.3 m deep). The house also had a basement room located under the kitchen.
The street part of the house consisted of two rooms of equal size. The rooms have an approximate size of 5.0 × 5.0 m and a height of 2.9 m. The eastern room entered directly from the veranda and was connected by a door to the western room, which had a door to the kitchen. These rooms were lit from the street side, and each room had two windows. They serve as living rooms, bedrooms, meeting rooms, and dining rooms for the entire family. The rooms are connected by a kitchen with a floor plan size of 3.9 × 4.2 m. The kitchen was accessed from the veranda through two doors. One door leaf, which is made entirely of wood, opens onto the veranda, while the inner leaf, which consists of a wooden and glass section, opens into the kitchen. The kitchen also has a small window on the southwest wall facing the neighbor.
Behind the kitchen is a barrel room, whose only opening is a large, double-leaf wooden door that leads to the veranda. Barrels for wine and sauerkraut are stored here. Upon entering the room, there is an opening on the floor to the left of the door through which the basement can be accessed. The basement is located under the kitchen and can be reached using a ladder. It has a small ventilation shaft next to the floor of the veranda. The attic was also accessed through the barrel room. The front and street-side parts of the attic were used to store the harvest, while the hay was stored in the rear part. The living area of the house ends with the summer kitchen. It is a room that only has a ceiling on half of the floor plan because the meat is dried over the fireplace. Traces of the chimney could still be observed on the west wall. The aforementioned rooms are connected by a veranda, which offers the owner protection from rain. The veranda is two steps higher than the surrounding terrain. Under the same roof of the house, next to the summer kitchen, is a barn. At the end of the house, there was an outhouse made of bricks. The layout of the houses changed slightly over time. Part of the veranda was closed off, and a bathroom was built on top so that access to the eastern room was only possible via the second room (only the original floor plan of the house is shown in Figure 4).
The walls of the house were made of rammed earth with a thickness of 50 cm on the inside and 55 cm on the outside. The base of the house was made of bricks at a height of approximately 70 cm, and the cladding of the basement walls was also made of bricks. The veranda was covered with bricks in a so-called old format (30 × 15 × 7.5). The house is currently in poor structural condition (it has had no windows or doors for 30 years), and parts of the ceiling are exposed. The ceiling consists of wooden beams with a cross-section of 16 × 20 cm attached to the long sides, between which vitlovi (cro.) or lehmwickel (ger.) [56] are attached. Vitlovi comprises wooden slats wrapped in a mixture of long straw, clay, and mud. The roof consists of two “connected” gable roofs, whose wooden structure is designed as a pair of rafters on a ceiling beam with wind braces. The roof cover was made of flat clay tiles.

3.2. Construction Details and Materials

The traditional SaB house of rammed earth is made from local materials. In most cases, earth for the walls came from the courtyard on which the house was built. Roofs and wooden structures were made from locally available wood, and houses were built on the basis of knowledge passed down from generation to generation. The structural elements, materials, and dimensions are presented in four subsections. The house was divided into zones according to height, each of which is described in its own subsection: (i) plinth, (ii) walls, (iii) ceiling, and (iv) roof structure.

3.2.1. Plinth

The research was carried out in houses where the foundations were not available for inspection; therefore, only data on the visible parts of the house foundation and its floor are shown. As the same material was used for the foundation and the walls, there was often no clear boundary between the foundation and the plinth; therefore, rain falling on the wall and bouncing off the ground posed a major threat to the durability of the rammed earth walls. The problem of moisture penetrating the lower part of the rammed earth walls was solved by:
  • covering the wall with a layer of brick cladding (Figure 5-(1)),
  • building the plinth (Figure 5-(2), house ALJ-3),
  • building the lower part of the wall from the bricks (described in more detail in the Section 3.2.2).
The brick cladding was made by removing a layer of earth from the rammed earth wall façade, and a brick cladding was inserted into the resulting groove, forming a plane of the wall together with the upper rammed earth part of the wall. The example in Figure 5-(1) shows a wall with cladding of new-size bricks stacked 10 rows high without a binder. This type of cladding was observed at the back of the houses. Some houses have brick plinths (cro. sokl) on street façades. The plinth was painted in a darker color, usually brown (Figure 5-(3), house BB-2), and protruded beyond the wall surface by half the width of the brick. In the examined houses, the plinth consists of five to seven rows of bricks and is usually approximately 60 cm high. The plinth was plastered with a mixture of earth, cement, and lime and coated with lime or cement mortar.
To protect the house from harmful external influences, the interior was raised two to three steps above the surrounding terrain. The base of the house was made of rammed earth by tamping with a mixture of loam or clay with sand and lime at a ratio of 10:10:1 in layers 15–20 cm thick. The floor of the veranda is usually made of rammed earth and is covered with bricks around the edge to protect it from moisture. In some cases, the floor of the veranda is made of bricks (Figure 5-(5), house ALJ-3) or ceramic tiles. The steps leading up to the veranda (Figure 5-(3), house BB-2) are usually made of bricks. Often, the final layer of the floor was rammed earth, but only one rammed earth floor was found undamaged (Figure 5-(4), house BB-2). Wooden planks and floors covered with bricks are used more frequently. The wooden floor was made by laying wooden beams with approximate dimensions of 12 × 12 cm in a layer of sand. In the Aljmaš house (Figure 5-(6), house ALJ-3), wooden beams were placed 70 cm apart, and 10 cm wide wooden boards were nailed to them and joined together with a tongue and groove joint. Even after this house was unprotected for more than 30 years (without windows and doors and with a damaged ceiling), the boards and beam substructure were still dry and undamaged.

3.2.2. Walls and Columns

As there are many rivers and streams in the SaB, houses with rammed earth walls were built in elevated places to prevent the walls from being soaked and damaged from possible flooding. Rammed earth walls were made by tamping down a mixture of earth, chopped straw, chaff, wood shavings, or sawdust, which served to better bind earth and water in the double-sided wooden formwork. The wooden formwork was usually about half a meter high and rose as the construction work progressed toward the higher parts of the wall. Chopped straw or sawdust forms a binding agent that increases the elasticity of the material and prevents shrinkage cracks. The soil for the construction was obtained by digging the basement, wells, and pits for watering the livestock or simply by digging a hole near the construction site. Water was then poured into the holes to moisten the soil. This mixture was left for 12–24 h and could be used the next day. If necessary, clay or sand was added to the soil to achieve the desired consistency and workability. The moist soil was compacted in layers approximately 10 cm thick between the wooden formwork. The next layer was compacted after the previous layer was dried. The formwork was then lifted, a new layer of earth was applied, and the process was repeated. The completion of the entire rammed earth house took two to three weeks, and the so-called maturation or complete drying of the walls took up to two years, depending on the composition and thickness of the wall and the construction time [10].
The measurements conducted on 95 walls resulted in a minimum thickness of 0.38 m, maximum thickness of 0.55 m, and average thickness of 0.47 m (Table 2). The exterior walls of the houses in the sample had a thickness of 40–55 cm, with walls with a thickness of 50 cm predominating. In most houses, the interior walls had the same thickness as the exterior walls, while in a few houses, a lower thickness of the interior walls was observed, but rarely less than 40 cm. The heights of the compacted soil layers in the walls ranged from 4 (6) to 15 cm, with the most common layer height being approximately 10 cm (Figure 6-(1), house ALJ-4).
In several houses, the lower zone of the wall consists of seven to eight rows of bricks. This formed a barrier that prevented moisture from rising. In the example of the Zmajevec house, it was found that the rammed earth wall was built on a layer of planks on a brick base (Figure 6-(2), house ZM-3).
Various options were found for reinforcing the rammed earth walls:
  • The rammed earth layers were reinforced with layers of reeds or wickerwork composed of vines, hazels, and willows (Figure 6-(3)). house BB-1).
  • Vertical bundles of reeds or layers of bricks were placed at the corners (Figure 6-(4), house ČM-1).
  • The brick corners and columns were set in the walls (Figure 6-(5), house ALJ-4).
The height of the walls from the floor to the ceiling was between 2.0 m and 2.9 m, with higher wall heights typically found in houses built by wealthier families, although the height of the rooms was usually 2.65 m (Table 2). The walls were finished with two rows of bricks so that beams (usually oak) were laid on top of this layer. These served as cornices on which the roof construction rested. The window and door lintels in rammed earth walls are made of hardwood. The openings were provided with wooden templates during the construction phase or were subsequently cut into walls. The openings could be cut in the first six months after the wall was built [10].
House windows are usually double casements, 70–90 cm wide and 100–140 cm high. Houses with windows on two levels were also observed, with outer casements opening on the street and inner casements opening into the room. The doors are hinged and have thick jambs that are often more than 10 cm wide. The entrance door to the house is often glazed and opens into the house. However, the door can also consist of two planes, with an exterior leaf made entirely of wood that opens onto the veranda.
In eastern Croatia, the construction of traditional rammed earth houses has always been guided by experience and is usually passed on orally by experienced masons living in the community. To date, there are no established standards in Croatia specifically tailored to the design and construction of rammed earth buildings. However, given Croatia’s vulnerability to seismic activity, compliance with Eurocode standards for earthquake-resistant buildings is mandatory. As there is no Eurocode standard for the design of earthen structures, researchers sometimes base their analyses of rammed earth buildings on standards for the design of masonry structures [2,6,44]. It is known that the seismic behavior of masonry walls depends significantly on the values of the quotients listed in Table 2. [45,57,58]. Table 2 summarizes, for the first time, the geometrical characteristics of rammed earth walls investigated from vernacular houses in eastern Croatia. In Table 2, the pier is defined as proposed by [45]. Piers, that is, the parts of the wall between openings, are very susceptible to damage. Experimental tests have shown that damage to walls with openings is generally concentrated in the piers [45,58]. In the case of the wall openings, the observations focused exclusively on the windows, as the door openings in the earth houses studied often split the wall panels completely into two. Typically, there is a lintel above the door with a small layer of earth, often of dubious compaction, or alternatively, adobe or fired bricks filling the space from the lintel to the ceiling. The windows are rectangular, with dimensions that usually vary from 50 to 160 cm.
It is well known that the aspect ratio of walls plays a crucial role in determining the shear strength of masonry and concrete walls, with the strength increasing as the aspect ratio decreases. It is assumed that earthen walls exhibit a similar behavior [45]. According to Anić, Penava, Abrahamczyk, and Sarhosis [57], a slenderness ratio (h/t) of more than 15 requires special consideration in the design of masonry structures. No slenderness ratio of more than eight was observed in the investigated rammed earth houses (Table 2). Nevertheless, further field research and data collection are required. Tests should also be carried out to assess the sensitivity of the walls to external actions, considering the slenderness ratios determined. However, as the slenderness constraint mentioned applies to masonry walls, further investigation is required to determine whether this constraint is also appropriate for rammed earth walls. Furthermore, if the ratio between the area of the openings and the wall area (Ao/Awo) is less than 10, the effects of the openings on the seismic behavior of the masonry wall are considered negligible [57]. However, in 75% of all rammed earth walls in the traditional houses observed (Table 2), the effect of the openings can play an important role in the seismic behavior, which needs to be investigated further. The slenderness and aspect ratio could reduce or increase the bearing and deformation capacity of the wall [57], opening a niche for further research.
The ratio of the floor area occupied by rammed earth walls to the total area of the house is between 24% and 32%, with an average value of around 30% (Table 3). This ratio was determined on the basis of data from only nine houses, which indicates that further research is required to confirm these findings. Nevertheless, it can be concluded that between a quarter and a third of the total area of a traditional family home contributes to the load-bearing capacity of the ceiling, storage space, and roof structure.
The columns in SaB houses are only used to support ceiling beams and roofs in houses with deeper verandas. In most houses, the columns are made of bricks and have a square cross-section, but there are also examples of columns with a round cross-section (Figure 6-(6), house BB-1) and columns made of wood.
The outer surfaces of the walls are usually coated with a mixture of fine soil and chaff, which are applied to the walls in several layers, with a total thickness of up to 5 cm. The addition of sawdust or chopped straw to the clay prevented the appearance of cracks owing to drying. The final treatment of the wall consisted of lime coating with added ash. Milk was added to the final lime layer to improve adhesion. The wall is usually whitewashed in the spring of each year. It was not until the 20th century that the technique of painting, in which floral motifs (cro. mustre) were applied to a monochrome-painted wall with a rubber roller.

3.2.3. Ceilings

The ceiling structure of traditional rammed earth SaB houses is made of timber, and research has shown that, in most cases, it is constructed in one of the following ways:
  • as an exposed timber beam with joists (Figure 7-(1), house BB-2) and more commonly
  • as a ceiling with vitlovi and a flat base (Figure 7-(2), house BB-1).
Beams from a single boot with a width of 16–20 cm and height of 18–28 cm are most commonly used for ceiling construction. Softwood (fir or pine) was used for these beams, which were placed at approximately equal distances, from 60 cm to a maximum of 100 cm.
The ceiling with exposed beams has a base, whereas on the upper side, it has a wooden covering, that is, the floor of the attic. A ceiling with vitlovi is more complicated to build. Vitlovi were placed between the beams on the battens nailed to the sides (Figure 7-(3), house ALJ-3) or in the grooves cut into the beams (Figure 7-(4), house KV-2). Vitlovi are 60–100 cm long wooden poles (depending on the distance between the ceiling beams) that are wrapped in straw rolled in a fine mixture of fine soil and water. The cross sections of the sticks were approximately 4 × 4 and 3 × 5 cm in size (Figure 7-(5), house ALJ-3). After drying, these elements function as sound and heat insulators. In the case of ceilings with vitlovi, the underlay was made in two different ways. In the first case, the underside of the vitlovi was coated with clay and then whitewashed with lime. In the second case, a lower wooden formwork was placed on the underside of the beams onto which the reed was nailed, which served as a support for the soil plaster (Figure 7-(6), house ALJ-2). Both types of ceilings were covered with a layer of compacted earth.

3.2.4. Roof Structure

The SaB houses have gable roofs. Their ridges are usually perpendicular to the street, whereas, in a smaller number of observed houses, they run parallel to the street. These are simple structures in which a pair of rafters form a triangle with a ceiling joist (Figure 8-(1), house ALJ-3). For larger spans, the triangle was stiffened with a collar tie (Figure 8-(2), house ALJ-1). The rafters were usually 10–12 cm wide and 14–16 cm high. The distance between the rafters corresponds to the distance between the ceiling joists, which is between 60 cm and 100 cm. The instability in the longitudinal direction was solved with timber wind braces (Figure 8-(3), house ALJ-1) nailed at an angle of 45° from the bottom of the first rafter to the top of the fourth rafter; the second board was nailed from the bottom of the fourth rafter to the top of the eighth rafter, and so on. The eaves consisted of rafters whose ends protruded 20–40 cm beyond the face of the outer walls to protect the wall from rain. The northern eaves of the roof often had larger overhangs. The ends of the eaves were cut at an angle and frayed to create a smoother transition into the eaves.
The gables of the rammed earth houses were built last when the rammed earth walls were well dried. They were made of adobe (Figure 8-(4), house ALJ-3) or fired bricks (Figure 8-(5), house ALJ-4), but gable walls made of wood (e.g., planks) were also found (Figure 8-(6), house ALJ-2). There are typically two small openings in the gable to ventilate the attic space. The gable walls are usually 12 cm thick, and to reinforce these walls, columns are made of adobe or fired bricks that protrude from the wall for half the length of the fired brick (Figure 8-(2), house ALJ-1).
The roof pitch of the analyzed houses (12) ranged from 34° to 46°, with a mean value of 41°. They were typically covered with single-layer clay tiles. A typical fired clay tile measures 180 × 380 mm and is approximately 15 mm thick. The tiles were laid on battens measuring 48 × 24 (28) mm and were nailed to the roof structure. Parts of the chimneys that penetrated the wooden structure of the ceiling and roof have been made of fired bricks since the end of the 18th century when Joseph II banned chimneys made of boards plastered with clay and covered with wattle and daub [30].

3.3. Physical Properties of the Soil

The physical properties of the soils are listed in Table 4. To supplement Table 4, Figure 9 shows the grain size distribution curves. Table 4 shows the results for the soil fraction content (gravel, sand, silt, and clay), maximum particle size (Dmax), liquid (wL), plastic limit (wP), plasticity index (PI), average moisture content of the exterior (w0,out,avg), interior walls (w0,in,avg), bulk (ρ), dry density (ρd), and organic matter content (OM). As it was not possible to collect a large number of samples and to obtain block samples from some houses, not all tests could be carried out.
The average moisture content was measured for 21 houses. To the best of the authors’ knowledge, this study is the first to shed light on the average moisture content in traditional rammed earth walls based on field research. When taking samples, an attempt was made to take the samples approximately in the middle third of the wall height (i.e., in the range of 1–1.5 m above the floor). In some houses, this was not possible, so samples ALJ-1, BB-1, BB-3, BB-4, LG-1, TNJ-1, and ZM-1 were taken at a height of 0.5–0.7 m above the floor, while samples ALJ-2, LG-1, and ZM-2 were taken at a height of 1.8–2.0 m. Samples from the interior of the houses were only taken in four houses, as permission had not been obtained for the other houses. The height from which the interior samples were taken was 0.5–0.6 m, with the exception of house KR-3, where the sample was taken from a height of 1.5 m. Sampling took place in early spring or late fall, and there was a certain amount of precipitation and moisture in the air on the days prior to sampling. The lowest recorded moisture content was 2.0% (ZM-1), while the highest value was 6.5% (BB-1) for the exterior walls of the observed houses. The average moisture content of the exterior wall was 3.3%. The moisture content of the interior samples was slightly higher in houses ALJ-2, BB-1, and KV-2 than that in the exterior walls. In houses, ALJ-2 and KV-2, the height of the sampling was lower (0.6 m and 0.5 m, respectively) than the height of the samples taken from the exterior walls. In houses BB-1 and KR-3, the samples were taken from the same height, with a lower deviation in the moisture content observed in house BB-1, whereas in house KR-3, a lower moisture content value was observed compared to the exterior wall.
Particle size distribution was examined in 13 houses (Table 4). In the houses examined, the range of the maximum particle size was between 4 and 16 mm; that is, the median size of the largest particle was 8 mm. The median gravel, sand, silt, and clay contents were 2.2%, 37.9%, 49.6%, and 10.0%, respectively. The average gravel contents were 3.4%, 36.6%, 46.8%, and 13.2%, respectively. Perić et al. [59] collected data for soils used for rammed earth houses from around the world and calculated average values for gravel content of 18.89%, sand 42.92%, silt 23.73%, and clay 12.83%. Comparing the values published by Perić, Kraus, Kaluđer and Kraus [59] with the average values in Table 4, it can be seen that in the SaB area, the gravel content is significantly lower, and the silt content is almost twice as high. The median values showed an even greater deviation for gravel and silt content. When comparing the particle size distribution of the houses in Table 4 with the recommendations or requirements for rammed earth houses given in the literature [60,61,62], it was found that only ČM-1, KR-3, and KV-2 houses have a satisfactory particle size distribution according to the criteria of Walker, Keable, Martin and Maniatidis [60] and KR-3 and KV-2 houses according to the criteria of Keable and Keable [61] and [62]. Compared to the older recommendations of Norton [63], only the KR-3 house had a satisfactory particle size distribution, whereas none of the houses had a satisfactory grading curve according to the criteria of Doat, et al. [64]. However, it should be noted that houses observed in the SaB area still existed, even after many years of use. From this, it can be concluded that with additional investigations, it is possible to develop new criteria for the particle size distribution of soil in rammed earth houses in the SaB area. The liquid and plastic limits were tested in nine houses (Table 4). For the observed houses, the liquid limits ranged from 31.97% to 41.92%, with a median of 36.52%. According to the Unified Soil Classification System [65], the soils tested had low plasticity. The threshold values for plasticity were between 18.77% and 22.32%, with a median value of 20.0%. The plasticity index was calculated to be in the range of 12.0–21.2% with a median of 16.1%. It should be noted that a deviation in the values obtained for the tested properties in relation to the soil from which the building material was taken is possible, as the tested samples were exposed to different influences than in the soil itself (e.g., they had a low moisture content over a long period of time). When compared with the liquid limit and plasticity index criteria given in Doat, Hays, Houben, Matuk and Vitoux [64], Walker, Keable, Martin and Maniatidis [60], and Houben and Guillaud [66], the soils of all the houses observed (Table 4) have a satisfactory liquid limit and plasticity index. From the comparison and the results obtained, it can be concluded that the observed criteria for the liquid limit and plasticity index are also relevant for houses in the SaB area.
The bulk density was tested in eight houses (Table 4), and values between 1.67 g/cm3 and 2.02 g/cm3 with a median of 1.76 g/cm3 were determined. The dry density values were determined between 1.62 g/cm3 and 1.97 g/cm3, with a median of 1.69 g/cm3. Lower values were found in some houses due to holes left by insects and organic matter content. In addition, some disturbance of the sample may have occurred during sampling; therefore, the results should be interpreted with caution. In the literature review by Perić, Kraus, Kaluđer and Kraus [59], dry density values between 1.53 g/cm3 and 2.16 g/cm3 with an average value of 1.97 g/cm3 are recorded. The dry density values determined in this study were within the range documented in the literature review, indicating agreement with previously published data.
The organic matter content was analyzed for 12 houses (Table 4), and values between 2 and 6% were found, with a median of 3.5%. In Portugal, the organic matter content of rammed earth houses was reported to be between 0.9% and 5.4% [27], and most houses in the SaB area are in this range. The recommendations for organic matter content are mostly descriptive, and only a few authors have provided threshold values. Walker, Keable, Martin and Maniatidis [60] stated that the organic matter content should be less than 2% by weight of the soil mixture, whereas Houben and Guillaud [66] stated that the threshold of significant impact of organic matter content should be 2–4%. Since all samples have an organic matter content greater than or equal to 2%, these soils are not recommended for construction according to the recommendations of Walker, Keable, Martin and Maniatidis [60]. According to Houben and Guillaud [66], the soil samples from houses BB-1, BB-3, KV-2, and TNJ-1 are not satisfactory. Although the above recommendations have not been followed, these houses have been standing for many years. However, it is recommended to use soil with little or no organic matter for the construction of rammed earth houses.

4. Discussion and Conclusions

This study analyzed the origins and development of rural rammed earth architecture in eastern Croatia. In particular, three key components (historical context, architectural features, and physical soil properties) were investigated through field research and laboratory tests to support the preservation of traditional rammed earth buildings and part of national authenticity. This research represents the first phase of a framework designed to facilitate the identification of the causes of damage and guide the selection of mitigation measures through subsequent experimental and numerical studies in Croatia. Moreover, this study should lay the foundation for the development of comprehensive national guidelines and standards.
This study was limited to ethnic villages in two major cities. A detailed study of the larger cities in eastern Croatia, with special attention paid to analyzing existing earthen houses, is necessary. In addition, a detailed study of the properties of earth plasters and their interactions with rammed earth walls is required. During field surveys in this area, numerous adobes (cro. ćerpič, prijesna cigla) houses were discovered, opening up a new research niche.
This paper presents, for the first time, essential data on traditional rammed earth houses in Croatia obtained through field research in 30 villages and an in-depth analysis of 22 houses. To the best of our knowledge, there has been no thorough study of the variety and properties of the materials used in the traditional rammed earth houses of eastern Croatia, particularly with regard to the physical properties of the soil used to construct rammed earth walls.
Data on materials can be used in the development of national standards and/or manuals for the design and rehabilitation of existing earthen buildings. As for the data on the geometry of the objects, these data can be used to define numerical and physical models to carry out parametric studies and determine the behavior of earthen buildings subjected to various external actions (e.g., temperature, water, and earthquakes).
This article presents a comprehensive analysis of traditional rammed earth houses based on a study that identified two predominant spatial organizations: one with a gable facing the street and the other with an L-plan configuration. In this study, houses were analyzed and presented on the basis of their structural elements: plinth, walls, ceilings, and roof structure, presenting the specifics of the construction of each element, as well as the materials used and their dimensions, that is, geometries. To the best of our knowledge, this work represents the first attempt to provide statistically derived values for the aspect ratio, slenderness, and ratio of openings to façade areas in traditional rammed earth buildings. Given the lack of research on the performance of rammed earth walls with openings, this dataset will enable future investigations and could serve as a basis for future parametric studies.
Considering the importance of walls as vital structural elements of a house, the main findings from the field research are as follows:
  • Based on the houses studied, two main spatial organizations of SaB rammed earth houses were identified: a house with a gable facing the street and a house with an L-plan.
  • The rammed earth walls of traditional houses in eastern Croatia have a minimum thickness of 0.38 m, a maximum thickness of 0.55 m, and an average thickness of 0.5 m.
  • The height of the rammed earth walls, measured from floor to ceiling, is between 2.0 m and 2.9 m, with the room heights generally being 2.65 m.
  • No slenderness ratio greater than eight was observed in the rammed earth houses analyzed. However, further field research and data collection are required.
  • In 75% of the rammed earth walls investigated, the presence of openings may significantly influence the seismic behavior, warranting further investigation.
  • The ratio of the floor area occupied by rammed earth walls to the total area of the house ranges from 24% to 32%, with an average value of about 30%. This ratio was determined based on data from only nine houses, indicating that further investigation is required to confirm these findings.
The average moisture content of the exterior wall is 3.3%. To the best of the authors’ knowledge, this study is the first to shed light on the average moisture content in traditional rammed earth walls based on field research. Particle size analysis revealed that the median size of the largest particles was 8 mm. The composition of the soil used for construction revealed a median gravel content of 2.2%, 37.9% sand, 49.6% silt, and 10.0% clay. The plasticity index ranged from 12% to 21.2%, with an average value of 15.8%. The bulk density measurements carried out in eight houses showed values between 1.67 g/cm3 and 2.02 g/cm3, with an average of 1.79 g/cm3. In addition, the organic matter content analyzed in 12 houses was between 2% and 6%, with an average value of 3.8%.
Further experimental and numerical investigations are underway to comprehensively analyze the behavior of traditional rammed earth houses in eastern Croatia. In addition, we will perform experimental in-plane cyclic tests and out-of-plane pushover tests on rammed earth walls that represent local structural elements. To collect further data, destructive tests using a shaking table will be performed on two rammed earth rooms representing traditional buildings on a small scale. This information will support the rehabilitation of Croatia’s architectural heritage and authenticity by facilitating the development of national guidelines and standards.

Author Contributions

Conceptualization, I.B.M., I.K. and J.K.; methodology, I.B.M., I.K. and J.K.; formal analysis, I.B.M., I.K. and J.K.; investigation, I.B.M., I.K. and J.K.; resources, I.B.M., I.K., A.P.F. and J.K.; data curation, I.B.M., I.K., J.K. and A.P.F.; writing—original draft preparation, I.B.M. and I.K.; writing—review and editing, I.B.M., I.K., J.K. and A.P.F.; visualization, I.B.M., I.K. and J.K.; supervision, I.K.; project administration, I.K.; funding acquisition, I.K. All authors have read and agreed to the published version of the manuscript.

Funding

This study was supported by the Croatian Science Foundation under project UIP-2020-02-7363 Rammed earth for modeling and standardization in seismically active areas—RE-forMS.

Data Availability Statement

The datasets generated and/or analyzed during the current study are available from the corresponding author upon reasonable request.

Acknowledgments

We sincerely thank Mirela Ravas from the Conservation Department in Osijek for discussions and useful information that facilitated the inspection of the site, Bojka Nešić for detailed information about the BB-2 house, and Zorica Blagaić for detailed information about the ALJ-3 house. The authors would also like to express gratitude for the help and support of technicians (Dalibor Erceg and Kristijan Zuzjak) and Lucija Kraus at the Faculty of Civil Engineering and Architecture Osijek.

Conflicts of Interest

The authors declare no conflicts of interest.

References

  1. Thompson, D.; Augarde, C.; Osorio, J.P. A review of current construction guidelines to inform the design of rammed earth houses in seismically active zones. J. Build. Eng. 2022, 54, 104666. [Google Scholar] [CrossRef]
  2. Ávila, F.; Fagone, M.; Gallego, R.; Puertas, E.; Ranocchiai, G. Experimental and numerical evaluation of the compressive and shear behavior of unstabilized rammed earth. Mater. Struct. 2023, 56, 118. [Google Scholar] [CrossRef]
  3. Perić Fekete, A.; Kraus, I.; Grubišić, M.; Dokšanović, T. In-plane seismic performance of rammed earth walls: An eastern Croatia reconnaissance based study. Bull. Earthq. Eng. 2024, 22, 1359–1385. [Google Scholar] [CrossRef]
  4. Jaquin, P.A.; Augarde, C.E.; Gerrard, C.M. Chronological Description of the Spatial Development of Rammed Earth Techniques. Int. J. Archit. Herit. 2008, 2, 377–400. [Google Scholar] [CrossRef]
  5. Bui, Q.-B.; Bui, T.-T.; Limam, A. Assessing the seismic performance of rammed earth walls by using discrete elements. Cogent Eng. 2016, 3, 1200835. [Google Scholar] [CrossRef]
  6. Romanazzi, A.; Oliveira, D.V.; Silva, R.A. Experimental Investigation on the Bond Behavior of a Compatible TRM-based Solution for Rammed Earth Heritage. Int. J. Archit. Herit. 2019, 13, 1042–1060. [Google Scholar] [CrossRef]
  7. Pennacchio, R.; De Filippi, F.; Bosetti, M.; Aoki, T.; Wangmo, P. Influence of Traditional Building Practices in Seismic Vulnerability of Bhutanese Vernacular Rammed Earth Architecture. Int. J. Archit. Herit. 2022, 16, 374–393. [Google Scholar] [CrossRef]
  8. Basset-Salom, L.; Guardiola-Víllora, A. Seismic vulnerability and losses of rammed earth residential heritage in Mula (Murcia). Bull. Earthq. Eng. 2023, 21, 6215–6245. [Google Scholar] [CrossRef]
  9. Atalić, J.; Uroš, M.; Šavor Novak, M.; Demšić, M.; Nastev, M. The Mw5.4 Zagreb (Croatia) earthquake of March 22, 2020: Impacts and response. Bull. Earthq. Eng. 2021, 19, 3461–3489. [Google Scholar] [CrossRef] [PubMed]
  10. Lončar-Vicković, S.; Stober, D. Tradicijska kuća Slavonije i Baranje—Priručnik za Obnovu; Ministarstvo Turizma Republike Hrvatske, Sveučilište Josipa Juraja Strossmayera u Osijeku: Zagreb, Croatia, 2011. [Google Scholar]
  11. Živković, Z. Hrvatsko Tradicijsko Graditeljstvo; Ministarstvo Kulture Republike Hrvatske, Uprava za Zaštitu Kulturne Baštine: Zagreb, Croatia, 2013. [Google Scholar]
  12. Maniatidis, V.; Walker, P. A Review of Rammed Earth Construction. In Proceedings of the DTI Project Report. 2003. Available online: https://people.bath.ac.uk/abspw/rammedearth/review.pdf (accessed on 4 June 2024).
  13. Ciancio, D.; Jaquin, P.; Walker, P. Advances on the assessment of soil suitability for rammed earth. Constr. Build. Mater. 2013, 42, 40–47. [Google Scholar] [CrossRef]
  14. Tripura, D.D.; Sharma, R.P. Bond behaviour of bamboo splints in cement-stabilised rammed earth blocks. Int. J. Sustain. Eng. 2014, 7, 24–33. [Google Scholar] [CrossRef]
  15. Beckett, C.T.S.; Ciancio, D. Durability of cement-stabilised rammed earth: A case study in Western Australia. Aust. J. Civ. Eng. 2016, 14, 54–62. [Google Scholar] [CrossRef]
  16. Vaghela, K.; Kotak, T. Innovations in Construction of Cement-Stabilized Rammed Earth Dwellings Post Bhuj-2001 Earthquake. In Earthen Dwellings and Structures: Current Status in Their Adoption; Reddy, B.V.V., Mani, M., Walker, P., Eds.; Springer: Singapore, 2019; pp. 225–234. [Google Scholar]
  17. Reddy, B.V.V. Stress–Strain Characteristics of Cement Stabilised Rammed Earth. In Compressed Earth Block & Rammed Earth Structures; Reddy, B.V.V., Ed.; Springer Nature Singapore: Singapore, 2022; pp. 369–376. [Google Scholar]
  18. Ciancio, D.; Beckett, C.T.S.; Carraro, J.A.H. Optimum lime content identification for lime-stabilised rammed earth. Constr. Build. Mater. 2014, 53, 59–65. [Google Scholar] [CrossRef]
  19. Ávila, F.; Puertas, E.; Gallego, R. Mechanical characterization of lime-stabilized rammed earth: Lime content and strength development. Constr. Build. Mater. 2022, 350, 128871. [Google Scholar] [CrossRef]
  20. Wangmo, P.; Shrestha, K.C.; Miyamoto, M.; Aoki, T. Assessment of out-of-plane behavior of rammed earth walls by pull-down tests. Int. J. Archit. Herit. 2019, 13, 273–287. [Google Scholar] [CrossRef]
  21. UN. United Nations, The17 Goals. Available online: https://sdgs.un.org/goals (accessed on 28 February 2024).
  22. Hamard, E.; Cammas, C.; Fabbri, A.; Razakamanantsoa, A.; Cazacliu, B.; Morel, J.-C. Historical Rammed Earth Process Description Thanks to Micromorphological Analysis. Int. J. Archit. Herit. 2017, 11, 314–323. [Google Scholar] [CrossRef]
  23. Baleca, V.; Barsotti, R.; Bennati, S.; Oliveira, D.V. Experimental investigation of in-plane loaded timber-framed rammed earth panels. Part II: Cyclic shear-compression tests. Structures 2023, 58, 104671. [Google Scholar] [CrossRef]
  24. Barsotti, R.; Bennati, S.; Oliveira, D.V. Experimental investigation of in-plane loaded timber-framed rammed earth panels. Part I: Monotonic shear-compression tests. Structures 2023, 58, 105311. [Google Scholar] [CrossRef]
  25. Ceravolo, R.; Pistone, G.; Fragonara, L.Z.; Massetto, S.; Abbiati, G. Vibration-Based Monitoring and Diagnosis of Cultural Heritage: A Methodological Discussion in Three Examples. Int. J. Archit. Herit. 2016, 10, 375–395. [Google Scholar] [CrossRef]
  26. ICOMOS. Principles for the Analysis, Conservation and Structural Restoration of Architectural Heritage; ICOMOS: Charenton-le-Pont, France, 2003. [Google Scholar]
  27. Gomes, M.I.; Gonçalves, T.D.; Faria, P. Unstabilized Rammed Earth: Characterization of Material Collected from Old Constructions in South Portugal and Comparison to Normative Requirements. Int. J. Archit. Herit. 2014, 8, 185–212. [Google Scholar] [CrossRef]
  28. Mateus, L.; Veiga, M.d.R.; de Brito, J. In Situ Characterization of Rammed Earth Wall Renders. Int. J. Archit. Herit. 2015, 9, 430–442. [Google Scholar] [CrossRef]
  29. Klaić, V. Povijest Hrvata; Matica hrvatska: Zagreb, Croatia, 1972. [Google Scholar]
  30. Španiček, Ž. Narodno Graditeljstvo Slavonije i Baranje; Privlačica: Vinkovci, Croatia, 1995. [Google Scholar]
  31. Koški, Ž.; Lončar-Vicković, S.; Stober, D. Perspektive i zaštita prostornog modela tradicijske slavonske kuće. Građevinar 2010, 62, 299–306. [Google Scholar]
  32. Freudenreich, A. Kako Narod Gradi na Području Hrvatske; Republički Zavod za Zaštitu Spomenika Kulture Zagreb: Zagreb, Croatia, 1972. [Google Scholar]
  33. Salopek, D. Arhitektura bez Arhitekta; Savez Arhitekata Hrvatske: Zagreb, Croatia, 1974. [Google Scholar]
  34. Kojičić, D.; Kojičić, B. Priručnik za Obnovu i Unapređenje Energetske Efikasnosti kuća od Zemlje u Vojvodini; Klub finih Zanata: Zrenjanin, Serbia, 2016. [Google Scholar]
  35. Allahvirdizadeh, R.; Oliveira, D.V.; Silva, R.A. Numerical modeling of the seismic out-of-plane response of a plain and TRM-strengthened rammed earth subassembly. Eng. Struct. 2019, 193, 43–56. [Google Scholar] [CrossRef]
  36. Allahvirdizadeh, R.; Oliveira, D.V.; Silva, R.A. Numerical Investigation of the In-Plane seismic Performance of Unstrengthened and TRM-Strengthened Rammed Earth Walls. Int. J. Archit. Herit. 2021, 15, 548–566. [Google Scholar] [CrossRef]
  37. Ávila, F.; Puertas, E.; Torrús, C.; Gallego, R. Influence of crack propagation on the seismic behavior of historic rammed earth buildings: The Tower of Muhammad in the Alhambra (Spain). Eng. Struct. 2024, 301, 117365. [Google Scholar] [CrossRef]
  38. Wang, Y.; Wang, M.; Liu, K. Experimental study of the Seismic Performance of Different Earth Walls and Their Seismic Retrofitting with Externally Bonded Fibers. J. Earthq. Eng. 2021, 25, 2432–2454. [Google Scholar] [CrossRef]
  39. Ruiz, D.M.; Barrera, N.; Reyes, J.C.; Alvarado, Y.A.; Villalba-Morales, J.D.; Gómez, I.D.; Vacca, H.A.; Carrasco-Beltrán, D. Bi-axial shaking table tests to evaluate the seismic performance of two-story rammed-earth walls retrofitted with steel plates. Bull. Earthq. Eng. 2023, 21, 6393–6422. [Google Scholar] [CrossRef]
  40. WorldAtlas. Outline Map of Europe. Available online: https://www.worldatlas.com/webimage/countrys/europe/euoutl.htm (accessed on 1 March 2024).
  41. VectorStock. Map of Croatia. Available online: https://www.vectorstock.com/royalty-free-vector/map-of-croatia-split-into-regions-vector-20423767 (accessed on 1 March 2024).
  42. OBZ. SiB Map. Available online: https://www.obz.hr/hr/pdf/2011/PrijedlogZupanijskerazvojnestrategijeOsjecko-baranjskezupanije2011-2013.pdf (accessed on 1 March 2024).
  43. Lilley, D.M.; Robinson, J. Ultimate strength of rammed earth walls with openings. Proc. Inst. Civ. Eng.-Struct. Build. 1995, 110, 278–287. [Google Scholar] [CrossRef]
  44. Wang, Y.; Wang, M.; Liu, K.; Pan, W.; Yang, X. Shaking table tests on seismic retrofitting of rammed-earth structures. Bull. Earthq. Eng. 2017, 15, 1037–1055. [Google Scholar] [CrossRef]
  45. Reyes, J.C.; Yamin, L.E.; Hassan, W.M.; Sandoval, J.D.; Gonzalez, C.D.; Galvis, F.A. Shear behavior of adobe and rammed earth walls of heritage structures. Eng. Struct. 2018, 174, 526–537. [Google Scholar] [CrossRef]
  46. Nguyen, T.-D.; Bui, T.-T.; Limam, A.; Topa, A. Effect of openings on the behaviour of rammed earth structures under quasi-static loading. Eng. Struct. 2023, 281, 115759. [Google Scholar] [CrossRef]
  47. Reyes, J.C.; Smith-Pardo, J.P.; Yamin, L.E.; Galvis, F.A.; Sandoval, J.D.; Gonzalez, C.D.; Correal, J.F. In-plane seismic behavior of full-scale earthen walls with openings retrofitted with timber elements and vertical tensors. Bull. Earthq. Eng. 2019, 17, 4193–4215. [Google Scholar] [CrossRef]
  48. Tarque, N.; Blondet, M.; Vargas-Neumann, J.; Yallico-Luque, R. Rope mesh as a seismic reinforcement for two-storey adobe buildings. Bull. Earthq. Eng. 2022, 20, 3863–3888. [Google Scholar] [CrossRef]
  49. HRN EN ISO 17892-4; Geotechnical Investigation and Testing—Laboratory Testing of Soil—Part 4: Determination of Particle Size Distribution (ISO 17892-4:2016; EN ISO 17892-4:2016). Croatian Standards Institute: Zagreb, Croatia, 2016.
  50. HRN EN ISO 17892-12; Geotechnical Investigation and Testing—Laboratory Testing of Soil—Part 12: Determination of Atterberg Limits (ISO 17892-12:2018; EN ISO 17892-12:2018). Croatian Standards Institute: Zagreb, Croatia, 2018.
  51. HRN EN ISO 17892-1; Geotechnical Investigation and Testing—Laboratory Testing of Soil—Part 1: Determination of Water Content (ISO 17892-1:2014; EN ISO 17892-1:2014). Croatian Standards Institute: Zagreb, Croatia, 2015.
  52. HRN EN ISO 17892-2; Geotechnical Investigation and Testing—Laboratory Testing of Soil—Part 2: Determination of Bulk Density (ISO 17892-2:2014; EN ISO 17892-2:2014). Croatian Standards Institute: Zagreb, Croatia, 2015.
  53. ASTM D2974; Standard Test Methods for Moisture, Ash, and Organic Matter of Peat and Other Organic Soils. ASTM International: West Conshohocken, PA, USA, 2013.
  54. Ćupurdija, B. Stambena Arhitektura Subotičkih Salaša, Majura i Poljoprivrednih Kombinata; Prometej Novi Sad: Novi Sad, Serbia, 1993. [Google Scholar]
  55. Rudinski, A. Panonska kuća, pojavni oblici u Severnoj Bačkoj. Zb. Matice Srp. Za Društvene Nauk. Novi Sad 1985, 79, 165–198. [Google Scholar]
  56. Lewis, M. Composite Vernacular Constructions. Built Herit. 2019, 3, 26–40. [Google Scholar] [CrossRef]
  57. Anić, F.; Penava, D.; Abrahamczyk, L.; Sarhosis, V. A review of experimental and analytical studies on the out-of-plane behaviour of masonry infilled frames. Bull. Earthq. Eng. 2020, 18, 2191–2246. [Google Scholar] [CrossRef]
  58. Hwang, S.-H.; Kim, S.; Yang, K.-H. In-plane lateral load transfer capacity of unreinforced masonry walls considering presence of openings. J. Build. Eng. 2022, 47, 103868. [Google Scholar] [CrossRef]
  59. Perić, A.; Kraus, I.; Kaluđer, J.; Kraus, L. Experimental Campaigns on Mechanical Properties and Seismic Performance of Unstabilized Rammed Earth—A Literature Review. Buildings 2021, 11, 367. [Google Scholar] [CrossRef]
  60. Walker, P.; Keable, R.; Martin, J.; Maniatidis, V. Rammed Earth: Design and Construction Guidelines. 2005. Available online: https://researchportal.bath.ac.uk/en/publications/rammed-earth-design-and-construction-guidelines (accessed on 4 June 2024).
  61. Keable, J.; Keable, R. Rammed Earth Structures: A Code of Practice, 2nd ed.; Practical Action Publishing: Warwickshire, UK, 2011. [Google Scholar]
  62. SADC ZW HS 983; Rammed Earth Structures—Code of practice. Southern African Development Community Cooperation in Standardization: Gaborone, Botswana, 2014.
  63. Norton, J. Building with Earth: A Handbook; ITDG Publications: Rugby, UK, 1986. [Google Scholar]
  64. Doat, P.; Hays, A.; Houben, H.; Matuk, S.; Vitoux, F. Construire en terre. In Par CRAterre, Collection AnArchitecture; Editions Alternatives et Parallèles: Paris, France, 1979. [Google Scholar]
  65. ASTM D 2487; Standard Practice for Classification of Soils for Engineering Purposes (Unified Soil Classification System). ASTM International: West Conshohocken, PA, USA, 2018.
  66. Houben, H.; Guillaud, H. Earth Construction: A Comprehensive Guide; Intermediate Technology Publications: London, UK, 2006. [Google Scholar]
Figure 1. Phases of conducting research work.
Figure 1. Phases of conducting research work.
Buildings 14 02049 g001
Figure 2. Field research area with marked locations of the houses in the sample, downloaded and edited Europe map [40], Croatia map [41], SaB map [42].
Figure 2. Field research area with marked locations of the houses in the sample, downloaded and edited Europe map [40], Croatia map [41], SaB map [42].
Buildings 14 02049 g002
Figure 3. Floor plan, section, façade, and interior and exterior photographs of the house in Bijelo Brdo with the gable facing the street. Author’s photos and drawings.
Figure 3. Floor plan, section, façade, and interior and exterior photographs of the house in Bijelo Brdo with the gable facing the street. Author’s photos and drawings.
Buildings 14 02049 g003
Figure 4. Floor plan, section, façade, and interior and exterior photographs of the “L” shaped house in Aljmaš. Author’s photos and drawings.
Figure 4. Floor plan, section, façade, and interior and exterior photographs of the “L” shaped house in Aljmaš. Author’s photos and drawings.
Buildings 14 02049 g004
Figure 5. Various options for solving the houses plinths: (1)—RE with bricks cladding; (2)—brick plinth; (3)—dark brown colored brick plinth; (4)—RE floor; (5): brick stairs; (6)—wooden floors. Author’s photos.
Figure 5. Various options for solving the houses plinths: (1)—RE with bricks cladding; (2)—brick plinth; (3)—dark brown colored brick plinth; (4)—RE floor; (5): brick stairs; (6)—wooden floors. Author’s photos.
Buildings 14 02049 g005
Figure 6. Construction details of rammed earth walls: (1)—RE layers (app. 10 cm); (2)—RE wall built on a layer of planks on a brick base; (3)—RE layers reinforcements; (4)—corner reinforced with layers of reeds or wickerwork; (5): brick corners and columns set into the wall; (6)—columns with a round cross-section. Author’s photos.
Figure 6. Construction details of rammed earth walls: (1)—RE layers (app. 10 cm); (2)—RE wall built on a layer of planks on a brick base; (3)—RE layers reinforcements; (4)—corner reinforced with layers of reeds or wickerwork; (5): brick corners and columns set into the wall; (6)—columns with a round cross-section. Author’s photos.
Buildings 14 02049 g006
Figure 7. Structural solutions for wooden ceilings in rammed earth houses: (1)—exposed timber beam with joists; (2)—ceiling with vitlovi; (3)—vitlovi placed between the beams on the battens nailed to the sides; (4)—vitlovi placed in grooves cut into the beams; (5)—detail of vitlovi; (6)—wooden formwork placed on the underside of the beams. Author’s photos.
Figure 7. Structural solutions for wooden ceilings in rammed earth houses: (1)—exposed timber beam with joists; (2)—ceiling with vitlovi; (3)—vitlovi placed between the beams on the battens nailed to the sides; (4)—vitlovi placed in grooves cut into the beams; (5)—detail of vitlovi; (6)—wooden formwork placed on the underside of the beams. Author’s photos.
Buildings 14 02049 g007
Figure 8. Traditional gabled wooden roofs: (1)—pair of rafters form a triangle with a ceiling joist; (2)—pair of rafters stiffened with a collar tie; (3)—reinforcement with timber wind braces; (4)—adobe gable; (5)—brick gable; (6)—wooden gable. Author’s photos.
Figure 8. Traditional gabled wooden roofs: (1)—pair of rafters form a triangle with a ceiling joist; (2)—pair of rafters stiffened with a collar tie; (3)—reinforcement with timber wind braces; (4)—adobe gable; (5)—brick gable; (6)—wooden gable. Author’s photos.
Buildings 14 02049 g008
Figure 9. Grain size distribution of earth tested.
Figure 9. Grain size distribution of earth tested.
Buildings 14 02049 g009
Table 1. List of geo-locations and codes of the sample houses analyzed in detail.
Table 1. List of geo-locations and codes of the sample houses analyzed in detail.
LocationGeographical CoordinatesNo.CodeS or BPermission to
Detailed AnalysisSampling
Aljmaš45°31′ N,
18°57′ E
1ALJ-1S++
2ALJ-2S++
3ALJ-3S++
4ALJ-4S++
Bijelo Brdo45°31′ N,
18°52′ E
5BB-1S++
6BB-2S+
7BB-3S+
8BB-4S+
Čeminac45°41′ N,
18°40′ E
9ČM-1B++
Karanac45°45′ N,
18°41′ E
10KR-1B+
11KR-2B++
12KR-3B+
13KR-4B+
Kneževi Vinogradi45°45′ N,
18°44′ E
14KV-1B++
15KV-2B++
Lug45°39′ N,
18°46′ E
16LG-1B++
Suza45°46′ N,
18°46′ E
17SZ-1B+
18SZ-2B+
Tenja45°29′ N,
18°44′ E
19TNJ-1S+
Zmajevac45°47′ N,
18°48′ E
20ZM-1B+
21ZM-2B++
22ZM-3B+
Note: S—Slavonia, B—Baranja.
Table 2. Geometrical characteristics of the investigated rammed earth walls (number of data points is reported inside parentheses).
Table 2. Geometrical characteristics of the investigated rammed earth walls (number of data points is reported inside parentheses).
Walls (95)Wall w/o Openings (44)Wall w/Window (21)Pier (103)
h (m)t (m)h/ll/th/th/ll/th/tAo/Af (%)hp/lplp/th/t
Min2.000.380.415.604.600.385.334.6040.120.681.00
First quartile2.500.440.598.105.230.587.095.23130.542.132.44
Median2.600.500.638.905.780.638.895.70160.853.602.89
Third quartile2.900.500.729.435.800.769.786.40191.485.353.90
Max2.900.550.9612.737.561.4220.117.56244.3316.205.23
Average2.650.470.659.035.670.708.995.74151.104.273.12
Note: h is the clear height of the rammed earth wall (i.e., the clear height of the room); hp is the clear height of the rammed earth pier (i.e., the height of the wall corresponding to the height of the window or door next to it, whichever is shorter); l is the length of the wall between other walls; lp is the length of the pier (i.e., the length of the wall between openings); t is the thickness of the wall; Ao is the opening area of the wall; Af is the façade area of the wall.
Table 3. The ratio of the floor area occupied by rammed earth walls to the total area of the house.
Table 3. The ratio of the floor area occupied by rammed earth walls to the total area of the house.
No.CodeAw (m2)Agross (m2)Aw/Agross
1ALJ-125.682.00.31
2ALJ-221.270.90.30
3ALJ-346.7160.70.29
4BB-120.964.60.32
5BB-239.4147.40.27
6KV-130.4124.70.24
7KV-216.663.90.26
8LG-17.223.90.30
9ZM-213.241.00.32
Min7.223.90.24
First quartile16.663.90.27
Median21.270.90.30
Third quartile30.4124.70.31
Max46.7160.70.32
Average24.686.60.29
Note: Aw: area of walls; Agross: gross area of the house.
Table 4. Physical properties of earth tested.
Table 4. Physical properties of earth tested.
No.CodeG (%)S (%)M (%)C (%)Dmax (mm)wL (%)wP (%)PI (%)w0.out.avg (%)w0.in.avg (%)ρ (g/cm3)ρd (g/cm3)OM (%)
1ALJ-10.537.949.612.0832.418.813.62.4---2.7
2ALJ-22.254.238.45.2832.020.012.02.83.6--4.0
3ALJ-3--------5.1----
4ALJ-4--------2.5----
5BB-14.735.450.19.81636.419.716.76.56.71.811.706.0
6BB-31.24.475.119.3839.422.317.13.9---5.1
7BB-40.32.969.127.7836.818.818.12.2-1.701.662.5
8ČM-14.268.819.57.58---2.6----
9KR-1--------2.4----
10KR-2--------3.1----
11KR-310.248.929.011.916---3.52.81.791.703.8
12KR-45.254.931.88.11636.521.115.54.1-1.721.672.3
13KV-1--------2.5----
14KV-211.951.129.08.016---5.17.91.721.665.8
15LG-10.824.360.814.1837.721.616.13.0-2.021.972.0
16SZ-1--------3.9----
17SZ-2--------2.3----
18TNJ-10.11.868.729.4441.920.721.23.4-1.671.625.1
19ZM-1--------2.0----
20ZM-20.354.136.59.14---2.6---3.1
21ZM-32.736.850.510.01632.320.012.33.4-1.891.842.6
Minimum0.11.819.55.2432.018.812.02.02.81.671.622.0
Maximum11.968.875.129.41641.922.321.26.57.92.021.976.0
Average3.436.646.813.210.536.220.315.83.35.31.791.733.8
Median2.237.949.610.0836.520.0016.13.05.21.761.693.5
Note: G: gravel; S: sand; M: silt; C: clay; Dmax: maximum particle size; w0,out,avg: average moisture content of exterior walls; w0,in,avg: average moisture content of indoor walls; wL: liquid limit; wP: plastic limit; PI: plasticity index; ρ: density; ρd: dry density; OM: organic matter content.
Disclaimer/Publisher’s Note: The statements, opinions and data contained in all publications are solely those of the individual author(s) and contributor(s) and not of MDPI and/or the editor(s). MDPI and/or the editor(s) disclaim responsibility for any injury to people or property resulting from any ideas, methods, instructions or products referred to in the content.

Share and Cite

MDPI and ACS Style

Brkanić Mihić, I.; Kraus, I.; Kaluđer, J.; Perić Fekete, A. Architectural Features and Soil Properties of Traditional Rammed Earth Houses: Eastern Croatia Case Study. Buildings 2024, 14, 2049. https://doi.org/10.3390/buildings14072049

AMA Style

Brkanić Mihić I, Kraus I, Kaluđer J, Perić Fekete A. Architectural Features and Soil Properties of Traditional Rammed Earth Houses: Eastern Croatia Case Study. Buildings. 2024; 14(7):2049. https://doi.org/10.3390/buildings14072049

Chicago/Turabian Style

Brkanić Mihić, Ivana, Ivan Kraus, Jelena Kaluđer, and Ana Perić Fekete. 2024. "Architectural Features and Soil Properties of Traditional Rammed Earth Houses: Eastern Croatia Case Study" Buildings 14, no. 7: 2049. https://doi.org/10.3390/buildings14072049

APA Style

Brkanić Mihić, I., Kraus, I., Kaluđer, J., & Perić Fekete, A. (2024). Architectural Features and Soil Properties of Traditional Rammed Earth Houses: Eastern Croatia Case Study. Buildings, 14(7), 2049. https://doi.org/10.3390/buildings14072049

Note that from the first issue of 2016, this journal uses article numbers instead of page numbers. See further details here.

Article Metrics

Back to TopTop