The Axial Compressive Properties of Long Columns of In-Service Brick Masonry Reinforced by Channel Steel
Abstract
1. Introduction
2. Axial Compression Test
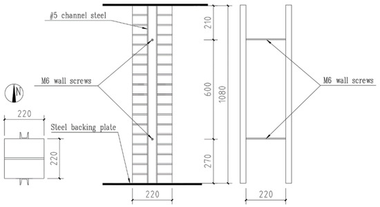
2.1. Specimen Design
2.2. Mechanical Properties of Materials
2.2.1. Masonry Materials
2.2.2. Steel
2.3. Axial Compressive Loading and Test Content
3. Analysis of the Axial Compression Test Results
3.1. Failure Modes
3.1.1. Unreinforced Brick Columns
3.1.2. The 20% Initial Stress Reinforcement
3.1.3. The 40% Initial Stress Reinforcement
3.1.4. The 60% Initial Stress Reinforcement
3.2. Load–Displacement Curve
3.3. Ultimate Loads
3.4. Axial Strain
3.5. Lateral Displacement
3.6. Steel Strain
4. Finite-Element Calculating
4.1. Finite-Element Model
4.2. Finite-Element Model Verification
4.2.1. Comparison of Ultimate Bearing Capacity
4.2.2. Comparison of Load–Displacement Curves
- The viscous parameters in the concrete and plastic damage constitutive model were simulated to be small to meet accuracy requirements, causing the bearing capacity of the brick column to decrease faster than in the test;
- In the finite-element simulation, the “life and death element method” was not used, so the masonry elements were not deleted after reaching ultimate strength and continued to participate in the overall structure’s calculation;
- Accidental eccentricity of the load in the test, initial bending of the specimen, uneven material properties, and other factors caused the channel steel to buckle faster. As a result, some specimens did not show an increase in load-carrying capacity after the peak load.
4.2.3. Comparison of Cloud Images
4.3. Finite-Element Extended Parameter Analysis Results
5. Theoretical Analysis of the Calculation Method of Axial Compressive Bearing Capacity of Channel Steel-Reinforced Column
5.1. Influencing Factors of Bearing Capacity of Reinforced Structures
- The reinforcement structure comprises a composite configuration where the external load is shared between the original masonry and the newly introduced channel steel. However, there arises an issue of cohesive interaction between the two components;
- The stiffness of the composite structure, formed post channel reinforcement, is significantly enhanced in comparison to the original structure;
- The reinforcement structure is a secondary stress-bearing system wherein the original column initially carries a load prior to reinforcement, leading to a certain level of strain accumulation. The strain in the newly added channel steel lags behind the cumulative strain of the masonry. Consequently, even as the masonry undergoes damage, the channel steel has yet to surpass its yield limit, buckling only after sustained loading;
- Given the considerable height and thickness of the reinforced structure, the stability aspect warrants careful consideration;
- Although external channel steel imposes lateral constraints on the masonry column, it does not subject the column to triaxial compression. Thus, while the channel steel’s constraint mildly affects the masonry strength, the impact is deemed negligible and hence omitted from consideration.
5.2. Formula for Calculating Bearing Capacity
5.2.1. Basic Assumptions
5.2.2. Derivation of the Formula for Calculating Bearing Capacity
6. Theoretical Calculation of Axial Compressive Capacity Compared with Test and Finite-Element Calculation
7. Discussion and Outlook
8. Conclusions
- The use of channel steel to reinforce brick columns significantly enhances their axial load capacity. In the tests, the load-bearing capacity of the specimens increased by 107% and 51.3% at maximum and minimum, respectively. The initial stress level and the height-to-thickness ratio significantly affect the bearing capacity of the reinforced specimens. The ultimate load of the specimens decreases as these two factors increase. The initial stress level has a greater impact on the reinforcement effect than the height-to-thickness ratio;
- The failure mode of the external channel steel is bending buckling instability. However, due to the good ductility of the channel steel, it fails later than the brick column. This indicates that channel steel reinforcement does not pose a danger to the masonry column due to its own instability, further proving the effectiveness of the external channel reinforcement method;
- A calculation method for the axial compressive bearing capacity of reinforced brick columns with external channel steel, considering the initial stress state, is proposed based on the axial compressive bearing capacity calculation theory of the outer section steel reinforcement method. When compared with test and finite-element simulation results, the average ratio between the experimental value and the theoretical value is 1.06 with a coefficient of variation of 0.051. The average ratio of the simulated value to the theoretical value is 0.99, with a coefficient of variation of 0.029.
Author Contributions
Funding
Data Availability Statement
Conflicts of Interest
References
- Zhang, Z.; Ren, X.; Niu, Q.; Zhang, Y.; Zhao, B. Durability degradation simulation of RC structure based on gamma process considering two-dimensional chloride diffusion and life probabilistic prediction. Structures 2022, 48, 159–171. [Google Scholar] [CrossRef]
- Zhang, Z.; Cao, F.; Yang, J.; He, Z. Experiment on Natural Frequency Change of Reinforced Concrete Members under Low Cycle Loading. Shock Vib. 2018, 6504519. [Google Scholar] [CrossRef]
- Sathiparan, N. Mesh type seismic retrofitting for masonry structures: Critical issues and possible strategies. Eur. J. Environ. Civ. Eng. 2015, 19, 1136–1154. [Google Scholar] [CrossRef]
- Niasar, A.N.; Alaee, F.J.; Zamani, S.M. Experimental investigation on the performance of unreinforced masonry wall, retrofitted using engineered cementitious composites. Constr. Build. Mater. 2020, 239, 117788. [Google Scholar] [CrossRef]
- Park, S.-H.; Dinh, N.H.; Kim, S.-H.; Hwang, J.-W.; Pham, H.H.; Lee, S.-J.; Choi, K.-K. Seismic retrofit of unreinforced masonry walls using precast panels of fiber-reinforced cementitious composite. J. Build. Eng. 2022, 53, 104548. [Google Scholar] [CrossRef]
- Dong, F.; Wang, H.; Jiang, F.; Xing, Q.; Yu, J. In-plane shear behavior of masonry panels strengthened with ultra-high ductile concrete (UHDC). Eng. Struct. 2022, 252, 113609. [Google Scholar] [CrossRef]
- Deng, M.; Li, T.; Fan, X. Experimental investigation on axial compression of brick columns strengthened with HDC. Eng. Mech. 2019, 36, 92–99. [Google Scholar]
- Zhang, S. Research on Mechanical Performance of Ultra-High Ductility Concrete Reinforced Masonry Structure; University of Jinan: Jinan, China, 2022. [Google Scholar]
- Zhang, Z.; Paul, C.P.; Panda, B.; Huang, Y.; Garg, A.; Zhang, Y.; Garg, A.; Zhang, W. Assessment of flexural and splitting strength of steel fiber reinforced concrete using automated neural network search. Adv. Concr. Constr. 2020, 10, 81–92. [Google Scholar]
- Nezhad, R.S.; Kabir, M.Z. Experimental investigation on out-of-plane behavior of GFRP retrofitted masonry panels. Constr. Build. Mater. 2017, 131, 630–640. [Google Scholar] [CrossRef]
- Gilstrap, J.M.; Dolan, C.W. Out-of plane bending of FRP-reinforced masonry walls. Compos. Sci. Technol. 1998, 58, 1277–1284. [Google Scholar] [CrossRef]
- Carloni, C.; Focacci, F. FRP-masonry interfacial debonding: An energy balance approach to determine the influence of the mortar joints. Eur. J. Mech. A/Solids 2016, 55, 122–133. [Google Scholar] [CrossRef]
- Sneed, L.H.; Baietti, G.; Fraioli, G.; Carloni, C. Compressive behavior of brick masonry columns confined with steel-reinforced grout jackets. J. Compos. Constr. 2019, 23, 04019037. [Google Scholar] [CrossRef]
- Di Ludovico, M.; D’ambra, C.; Prota, A.; Manfredi, G. FRP confinement of tuff and clay brick columns: Experimental study and assessment of analytical models. J. Compos. Constr. 2010, 14, 583–596. [Google Scholar] [CrossRef]
- Soudki, K.; Alkhrdaji, T. Guide for the design and construction of externally bonded FRP systems for strengthening concrete structures (ACI 440.2 R-02). In Proceedings of the Structures Congress 2005: Metropolis and Beyond, New York, NY, USA, 20 April 2005; pp. 1–8. [Google Scholar]
- Fossetti, M.; Minafò, G. Comparative experimental analysis on the compressive behavior of masonry columns strengthened by FRP, BFRCM or steel wires. Compos. Part B Eng. 2017, 112, 112–124. [Google Scholar] [CrossRef]
- Estevan, L.; Torres, B.; Baeza, F.; Varona, F.; Ivorra, S. Masonry walls strengthened with Textile Reinforced Mortars (TRM) and subjected to in-plane cyclic loads after real fire exposure. Eng. Struct. 2023, 296, 116922. [Google Scholar] [CrossRef]
- Murtyl, C.V.R.; Dutta, J.; Agrawal, S.K. Twin Lintel belt in steel for seismic strengthening of brick masonry building. Earthq. Eng. Eng. Vib. 2004, 32, 327–334. [Google Scholar] [CrossRef]
- Azandariani, M.G.; Mohebkhah, A. A multi-strut model for the hysteresis behavior and strength assessment of masonry-infilled steel frames with openings under in-plane lateral loading. Eng. Struct. 2024, 302, 117433. [Google Scholar] [CrossRef]
- Zhang, X.; Zhang, Y.; Shan, R.; Bai, Y.; Zhang, Z. Application on bending performance of annular concrete-filled steel tube stent. J. Constr. Steel Res. 2020, 168, 105984. [Google Scholar] [CrossRef]
- Gregori, A.; Mercuri, M.; Angiolilli, M.; Pathirage, M. Simulating defects in brick masonry panels subjected to compressive loads. Eng. Struct. 2022, 263, 114333. [Google Scholar] [CrossRef]
- GB/T 2542-2012; Test Method for Wall Bricks. China Federation of Building Materials, Standards Press of China: Beijing, China, 2012. (In Chinese)
- JGJ/T 70-2009; Standard for Basic Performance Test Methods of Building Mortar. Ministry of Housing and Urban-Rural Development of the People’s Republic of China, China Architecture & Building Press: Beijing, China, 2009. (In Chinese)
- GB/T 228.1-2021; Metal Materials Tensile Test Part 1: Room Temperature Test Method. National Steel Standardization. Technical Committee, Standards Press of China: Beijing, China, 2021. (In Chinese)
- Lee, J.; Pande, G.; Middleton, J.; Kralj, B. Numerical modeling of brick masonry Panels subject to lateral loading. Comput. Struct. 1996, 61, 735–745. [Google Scholar] [CrossRef]
- Smith, M. ABAQUS/Standard User’s Manual; Providence: Dassault Systèmes Simulia Corp: Paris, France, 2002. [Google Scholar]
- GB 50003-2011; Code for the Design of Masonry Structures. Ministry of Housing and Urban-Rural Development of the People’s Republic of China, China Architecture & Building Press: Beijing, China, 2011. (In Chinese)
- Liu, G.Q. The Research on the Basic Mechanical Behavior of Masonry Structure; Hunan University: Changsha, China, 2005. [Google Scholar]
- Wang, B.; Dong, J. Nonlinear finite element analysis of masonry wall using damaged plasticity mode. J. Disaster Prev. Mitig. Eng. 2014, 34, 216–222. [Google Scholar]
- Yang, W. Constitutive relationship model for masonry materials in compression. Build. Struct. 2008, 10, 80–82. [Google Scholar]
- Zheng, N. Research on Seismic Behavior of Masonry Structures with Fabricated Tie-Columns; Chongqing University: Chongqing, China, 2010. [Google Scholar]
- GB 50702-2011; Code for Design of Masonry Structure Reinforcement. Ministry of Housing and Urban-Rural Development of the People’s Republic of China, China Architecture & Building Press: Beijing, China, 2011. (In Chinese)
- GB 50017-2017; Steel Structure Design Standard. Ministry of Housing and Urban-Rural Development of the People’s Republic of China, China Architecture & Building Press: Beijing, China, 2011. (In Chinese)
- Muvdi, B.B.; Elhouar, S. Mechanics of Materials; Taylor and Francis: Oxford, UK, 2015. [Google Scholar]


















| Specimen Number | Height/(mm) | Initial Stress Level |
|---|---|---|
| Z1 | 1080 | Unreinforced, comparison specimens |
| Z2 | 1080 | 20% |
| Z3 | 1080 | 40% |
| Z4 | 1080 | 60% |
| Z5 | 1440 | Unreinforced, comparison specimens |
| Z6 | 1440 | 20% |
| Z7 | 1440 | 40% |
| Z8 | 1440 | 60% |
| Z9 | 1800 | Unreinforced, comparison specimens |
| Z10 | 1800 | 20% |
| Z11 | 1800 | 40% |
| Z12 | 1800 | 60% |
| Specimen Number | Ultimate Load/(kN) | Increase in Magnitude /(%) | Peak Pressure Strain/(με) | Increase in Magnitude/(%) | Ultimate Pressure Strain/(με) | Increase in Magnitude/(%) |
|---|---|---|---|---|---|---|
| Z1 | 260 | / | 1865 | / | 2435 | / |
| Z2 | 503 | 93.5 | 1739 | −6.8 | 2335 | −4.1 |
| Z3 | 454 | 74.6 | 2035 | 9.1 | 2598 | 6.7 |
| Z4 | 419 | 61.2 | 1824 | −2.2 | 2381 | −2.2 |
| Z5 | 251 | / | 1637 | / | 2112 | / |
| Z6 | 502 | 100.0 | 1752 | 7.0 | 2183 | 3.4 |
| Z7 | 447 | 78.1 | 1875 | 14.5 | 2249 | 6.5 |
| Z8 | 386 | 53.8 | 1806 | 10.3 | 2309i | 9.3 |
| Z9 | 230 | / | 1969 | / | 2418 | / |
| Z10 | 476 | 107.0 | 1771 | −10.1 | 2237 | −7.5 |
| Z11 | 378 | 64.3 | 1761 | −10.6 | 2296 | −5.0 |
| Z12 | 348 | 51.3 | 1812 | −8.0 | 2440 | 0.9 |
| Specimen Number | Types of Steel Members | Peak Loads Corresponding to Strains/(με) | Extreme Strain/(με) | Corresponding Loads/(kN) |
|---|---|---|---|---|
| Z2 | Channel | 1543 | 1666 | 484 |
| Wall screws | 761 | 828 | ||
| Z3 | Channel | 1106 | 1756 | 451 |
| Wall screws | 215 | 861 | ||
| Z4 | Channel | 723 | 1671 | 336 |
| Wall screws | 315 | 706 | ||
| Z6 | Channel | 1584 | 1686 | 476 |
| Wall screws | 758 | 914 | ||
| Z7 | Channel | 1068 | 1780 | 775 |
| Wall screws | 241 | 852 | ||
| Z8 | Channel | 698 | 1846 | 336 |
| Wall screws | 186 | 928 | ||
| Z10 | Channel | 1618 | 1700 | 408 |
| Wall screws | 686 | 840 | ||
| Z11 | Channel | 1158 | 1834 | 342 |
| Wall screws | 148 | 762 | ||
| Z12 | Channel | 738 | 1646 | 290 |
| Wall screws | 282 | 784 |
| Specimen Number | Measured Values /kN | Simulated Values/kN | Measured Value/Simulated Value |
|---|---|---|---|
| Z1 | 260 | 232.1 | 1.12 |
| Z2 | 503 | 524.8 | 0.96 |
| Z3 | 454 | 454.1 | 1.00 |
| Z4 | 419 | 402.8 | 1.04 |
| Z5 | 251 | 224.9 | 1.11 |
| Z6 | 502 | 506.7 | 0.99 |
| Z7 | 447 | 434.9 | 1.03 |
| Z8 | 386 | 385.2 | 1.00 |
| Z9 | 230 | 216.7 | 1.06 |
| Z10 | 476 | 480.1 | 0.99 |
| Z11 | 378 | 413.2 | 0.91 |
| Z12 | 348 | 352.3 | 0.99 |
| Specimen Number | H/mm | h × b/mm | Channel Steel Number | Initial Stress | Simulated Values/kN | Theoretical Values/kN | Simulated Values/Theoretical Values |
|---|---|---|---|---|---|---|---|
| ZM1 | 1080 | 220 × 220 | / | / | 232.1 | 239.1 | 0.97 |
| ZM2 | 1080 | 220 × 220 | #5 | 0 | 527.3 | 545.0 | 0.97 |
| ZM3 | 1080 | 220 × 220 | #5 | 10 | 525.6 | 526.3 | 1.00 |
| ZM4 | 1080 | 220 × 220 | #5 | 80 | 290.0 | 296.0 | 0.98 |
| ZM5 | 1440 | 220 × 220 | / | / | 224.9 | 224.7 | 0.94 |
| ZM6 | 1440 | 220 × 220 | #5 | 0 | 510.6 | 530.6 | 0.96 |
| ZM7 | 1440 | 220 × 220 | #5 | 10 | 509.3 | 512.3 | 0.99 |
| ZM8 | 1440 | 220 × 220 | #5 | 80 | 274.6 | 288.6 | 0.95 |
| ZM9 | 1800 | 220 × 220 | / | / | 216.7 | 217.3 | 0.96 |
| ZM10 | 1800 | 220 × 220 | #5 | 0 | 485.1 | 513.2 | 0.95 |
| ZM11 | 1800 | 220 × 220 | #5 | 10 | 483.6 | 495.6 | 0.98 |
| ZM12 | 1800 | 220 × 220 | #5 | 80 | 236.4 | 279.1 | 0.92 |
| ZM13 | 2200 | 220 × 220 | #5 | 40 | 386.9 | 385.4 | 1.00 |
| ZM14 | 2640 | 220 × 220 | #5 | 40 | 353.7 | 364.5 | 0.94 |
| ZM15 | 3300 | 240 × 370 | / | / | 330.8 | 341.8 | 0.91 |
| ZM16 | 3300 | 240 × 370 | #5 | 20 | 576.5 | 551.8 | 1.04 |
| ZM17 | 3300 | 240 × 370 | #5 | 40 | 525.1 | 499.3 | 1.05 |
| ZM18 | 3300 | 240 × 370 | #5 | 60 | 461.1 | 446.8 | 1.03 |
| ZM19 | 3300 | 240 × 370 | #8 | 20 | 672.1 | 652.2 | 1.03 |
| ZM20 | 3300 | 240 × 370 | #8 | 40 | 605.8 | 574.6 | 1.05 |
| ZM21 | 3300 | 240 × 370 | #8 | 60 | 504.5 | 497.0 | 1.02 |
| ZM22 | 4200 | 480 × 480 | / | / | 1002.6 | 1020.9 | 0.97 |
| ZM23 | 4200 | 480 × 480 | #8 | 20 | 1403.8 | 1378.3 | 1.02 |
| ZM24 | 4200 | 480 × 480 | #8 | 40 | 1355.6 | 1288.9 | 1.05 |
| ZM25 | 4200 | 480 × 480 | #8 | 60 | 1238.2 | 1199.6 | 1.03 |
| ZM26 | 4200 | 480 × 480 | #12 | 20 | 1597.8 | 1556.9 | 1.03 |
| ZM27 | 4200 | 480 × 480 | #12 | 40 | 1481.9 | 1422.9 | 1.04 |
| ZM28 | 4200 | 480 × 480 | #12 | 60 | 1309.6 | 1288.9 | 1.02 |
| Specimen Number | Experimental Values | Theoretical Values | Experimental Values/Theoretical Values |
|---|---|---|---|
| Z1 | 260 | 239.1 | 1.09 |
| Z2 | 503 | 493.4 | 1.02 |
| Z3 | 454 | 428.0 | 1.06 |
| Z4 | 419 | 362.7 | 1.16 |
| Z5 | 251 | 224.7 | 1.12 |
| Z6 | 502 | 478.1 | 1.05 |
| Z7 | 447 | 414.8 | 1.08 |
| Z8 | 386 | 351.4 | 1.10 |
| Z9 | 230 | 217.3 | 1.06 |
| Z10 | 476 | 462.4 | 1.03 |
| Z11 | 378 | 401.1 | 0.94 |
| Z12 | 348 | 339.8 | 1.02 |
Disclaimer/Publisher’s Note: The statements, opinions and data contained in all publications are solely those of the individual author(s) and contributor(s) and not of MDPI and/or the editor(s). MDPI and/or the editor(s) disclaim responsibility for any injury to people or property resulting from any ideas, methods, instructions or products referred to in the content. |
© 2024 by the authors. Licensee MDPI, Basel, Switzerland. This article is an open access article distributed under the terms and conditions of the Creative Commons Attribution (CC BY) license (https://creativecommons.org/licenses/by/4.0/).
Share and Cite
Chen, K.; Ao, Y.; Liang, J. The Axial Compressive Properties of Long Columns of In-Service Brick Masonry Reinforced by Channel Steel. Buildings 2024, 14, 1794. https://doi.org/10.3390/buildings14061794
Chen K, Ao Y, Liang J. The Axial Compressive Properties of Long Columns of In-Service Brick Masonry Reinforced by Channel Steel. Buildings. 2024; 14(6):1794. https://doi.org/10.3390/buildings14061794
Chicago/Turabian StyleChen, Kui, Yi Ao, and Jianguo Liang. 2024. "The Axial Compressive Properties of Long Columns of In-Service Brick Masonry Reinforced by Channel Steel" Buildings 14, no. 6: 1794. https://doi.org/10.3390/buildings14061794
APA StyleChen, K., Ao, Y., & Liang, J. (2024). The Axial Compressive Properties of Long Columns of In-Service Brick Masonry Reinforced by Channel Steel. Buildings, 14(6), 1794. https://doi.org/10.3390/buildings14061794

