Seismic Response of Vertical Hybrid Concrete/Steel Frames Considering Soil–Structure Interaction
Abstract
1. Introduction
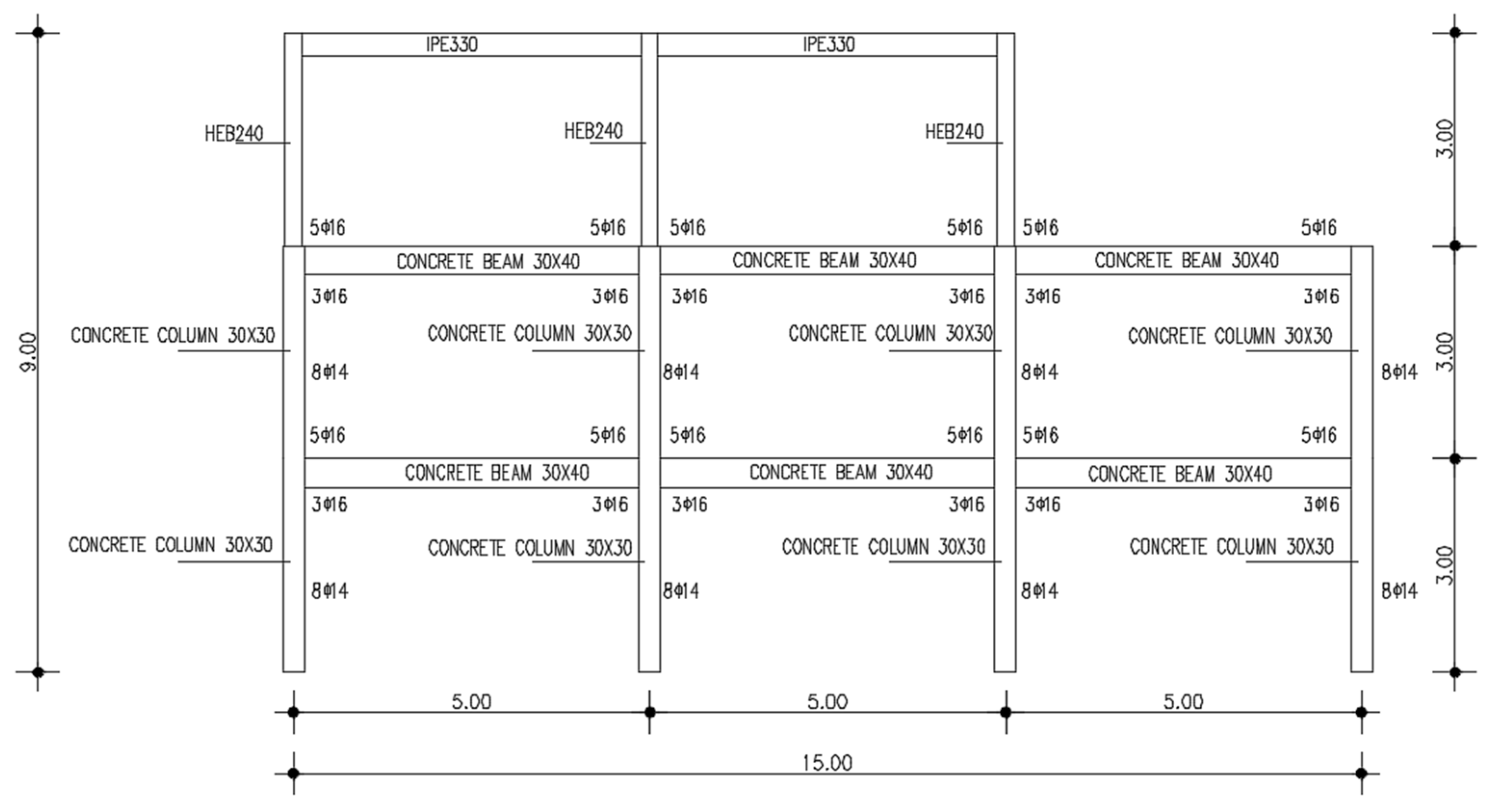
2. Description of Structures
2.1. Seismic Motions
2.2. Soil–Structure Interaction
3. Behavior of Mixed Frames under Multiple Earthquakes: Selected Results
3.1. Regular Fixed-Based Mixed Frames under Multiple Earthquakes
3.2. Regular Mixed Frames Based on Flexible Soil under Multiple Earthquakes
3.3. Regular and Irregular Mixed Frames under Multiple Earthquakes
4. Behavior of Mixed Frames under Far-Fault Earthquakes: Selected Results
4.1. Comparison of Mixed Frames Based on Stiff and Flexible Soil under Far Fault Earthquakes
4.2. Comparison of Regular and Irregular Mixed Frames under Far-Fault Earthquakes
5. Discussion and Conclusions
- The fundamental periods of mixed structures founded on rigid soil is less that the corresponding founded on compliant soil. Thus, soil–structure interaction leads to increased periods in the case of mixed structures;
- Soil–structure interaction leads to lower values of IDR, maximum horizontal displacement and acceleration in the case of three-story frames and to similar values in the case of four-story mixed structures;
- Regular and irregular mixed planar frames exhibit different seismic response. More specifically, the total floor acceleration of the irregular four story frames are two times greater than them of regular;
- Sequential ground motions lead to increased displacement demands in comparison with single events and this parameter must be taken into account by recent provisions;
- Seismic sequences, affect the permanent displacements of structures with different materials. This phenomenon appears in both case of rigid and deformable soil, for both regular and irregular mixed frames.
Funding
Institutional Review Board Statement
Informed Consent Statement
Data Availability Statement
Conflicts of Interest
References
- Chen, Y.; Soong, T.T. State of the art review: Seismic response of secondary systems. Eng. Struct. 1988, 10, 218–228. [Google Scholar] [CrossRef]
- Papageorgiou, A.V.; Gantes, C.J. Equivalent modal damping ratios for concrete/steel mixed structures. Comput. Struct. 2010, 88, 1124–1136. [Google Scholar] [CrossRef]
- Medina, R.A.; Sankaranarayanan, R.; Kingston, K.M. Floor response spectra for light components mounted on regular moment-resisting frame structures. Eng. Struct. 2006, 28, 1927–1940. [Google Scholar] [CrossRef]
- Rao, V.S.C.; Chaudhuri, S.R.; Gupta, V.K. Mode-acceleration approach to seismic response of multiply-supported secondary systems. Earthq. Eng. Struct. Dyn. 2002, 31, 1603–1621. [Google Scholar]
- Chaudhuri, S.R.; Gupta, V.K. Mode acceleration approach for generation of floor spectra including soil–structure interaction. J. Earthq. Technol. 2003, 40, 99–115. [Google Scholar]
- Askouni, P.; Papagiannopoulos, G. The Non Linear Behavior of Mixed Reinforced Concrete Steel Frames under Strong Earthquakes. Eng. Proc. 2023, 53, 15. [Google Scholar] [CrossRef]
- Hatzigeorgiou, G.D.; Liolios, A. Nonlinear behaviour of RC frames under repeated strong ground motions. Soil Dyn. Earthq. Eng. 2010, 30, 1010–1025. [Google Scholar] [CrossRef]
- Hatzivassiliou, M.; Hatzigeorgiou, G.D. Seismic sequence effects on three-dimensional reinforced concrete buildings. Soil Dyn. Earthq. Eng. 2015, 72, 77–88. [Google Scholar] [CrossRef]
- Jeon, J.S.; DesRoches, R.; Lowes, L.N.; Brilakis, I. Framework of aftershock fragility assessment–case studies: Older California reinforced concrete building frames. Earthquake Eng. Struct. Dyn. 2015, 44, 2617–2636. [Google Scholar] [CrossRef]
- Han, R.; Li, Y.; van de Lindt, J. Assessment of seismic performance of buildings with incorporation of aftershocks. J. Perform. Constr. Facil. 2015, 29, 04014088. [Google Scholar] [CrossRef]
- Raghunandan, M.; Liel, A.B.; Luco, N. Aftershock collapse vulnerability assessment of reinforced concrete frame structures. Earthquake Eng. Struct. Dyn. 2015, 44, 419–439. [Google Scholar] [CrossRef]
- Fragiacomo, M.; Amadio, C.; Macorini, L. Seismic response of steel frames under repeated earthquake ground motions. Eng. Struct. 2004, 26, 2021–2035. [Google Scholar] [CrossRef]
- Loulelis, D.; Hatzigeorgiou, G.D.; Beskos, D.E. Moment resisting steel frames under repeated earthquakes. Earthq. Struct. 2012, 3, 231–248. [Google Scholar] [CrossRef]
- Goda, K. Record selection for aftershock incremental dynamic analysis. Earthquake Eng. Struct. Dyn. 2015, 44, 1157–1162. [Google Scholar] [CrossRef]
- Hatzigeorgiou, G.D. Behaviour factors for nonlinear structures subjected to multiple near-fault earthquakes. Comp. Struct. 2010, 88, 309–321. [Google Scholar] [CrossRef]
- Askouni, E. Research on Asymmetrical Reinforced Concrete Low-Rise Frames under Multiple Seismic Events. Eng. Proc. 2023, 53, 29. [Google Scholar] [CrossRef]
- Mahin, S.A. Effects of duration and aftershocks on inelastic design earthquakes. In Proceedings of the 7th World Conference on Earthquake Engineering, Istanbul, Turkey, 8–13 September 1980; Volume 5, pp. 677–680. [Google Scholar]
- Aschheim, M.; Black, E. Effects of prior earthquake damage on response of simple stiffness-degrading structures. Earthq. Spectra 1999, 15, 1–24. [Google Scholar] [CrossRef]
- Elnashai, A.S.; Bommer, J.J.; Martinez-Pereira, A. Engineering implications of strong-motion records from recent. In Proceedings of the 11th European Conference on Earthquake Engineering, CD-ROM, Paris, France, 6–11 September 1999. [Google Scholar]
- Anuse, B.; Shinde, K. Analysis of RC Irregular Building According to Different Seismic Design Codes. Trends Civil. Eng. Challenges Sustain. 2021, 2021, 239–248. [Google Scholar]
- Saez, E.; Lopez-Caballero, F.; Modaressi-Farahmand-Razavi, A. Inelastic dynamic soil–structure interaction effects on moment-resisting frame buildings. Eng. Struct. 2013, 51, 166–177. [Google Scholar] [CrossRef]
- Minasidis, G.; Hatzigeorgiou, G.D.; Beskos, D.E. SSI in steel frames subjected to near-fault earthquakes. Soil Dyn. Earthq. Eng. 2014, 66, 56–68. [Google Scholar] [CrossRef]
- Katsimpini, P.; Askouni, P.; Papagiannopoulos, G.; Karabalis, D. Seismic response of low-rise 3-D steel structures equipped with the seesaw system. Soil Dyn. Earthq. Eng. 2020, 128, 105877. [Google Scholar] [CrossRef]
- Arefi, M.J.; Pampanin, S.; Cubrinovski, M. Effects of SSI on the seismic response of older structures before and after retrofit. In Proceedings of the 2009 NZSEE Conference, Christchurch, New Zealand, 1–3 April 2009. [Google Scholar]
- Yashinsky, M. The Loma Prieta, California Earthquake of October 17, 1989. Highway Systems, professional Paper 1552-B; USGS: Washington, DC, USA, 1998. [Google Scholar]
- Mylonakis, G.; Gazetas, G.; Nikolaou, S.; Michaelides, O. The role of soil on the collapse of 18 piers of the Hanshin Expressway in the Kobe earthquake. In Proceedings of the 12th World Conference on Earthquake Engineering, Auckland, New Zealand, 30 January–4 February 2000; p. 1074. [Google Scholar]
- SAP 2000. Static and Dynamic Finite Element Analysis of Structures, Version 25.0; Computers and Structures: Berkeley, CA, USA, 2023. [Google Scholar]
- EC 8; Eurocode 8–Design of Structures for Earthquake Resistance, Part 1-1: General Rules, Seismic Actions and Rules for Buildings. European Committee for Standardization (CEN): Brussels, Belgium, 2005.
- Androic, B.; Dzeba, I.; Dujmovic, D. International Structural Steel Sections. Design Tables according to Eurocode 3; Ernst & Sohn: Berlin, Germany, 2000. [Google Scholar]
- Park, R.; Paulay, T. Reinforced Concrete Structures; John Wiley& Sons: New York, NY, USA, 1975. [Google Scholar]
- ASCE 41-17; Seismic Evaluation and Retrofit of Existing Buildings. American Society of Civil Engineers: Reston, VI, USA, 2017.
- Ancheta, T.D.; Darragh, R.B.; Stewart, J.P.; Seyhan, E.; Silva, W.J.; Chiou, B.S.J.; Donahue, J.L. NGA-West2 database. Earthq. Spectra 2014, 30, 989–1005. [Google Scholar] [CrossRef]
- Demir, A.; Kayhan, A.H.; Palanci, M. Response-and probability-based evaluation of spectrally matched ground motion selection strategies for bi-directional dynamic analysis of low-to mid-rise RC buildings. Structures 2023, 58, 105533. [Google Scholar] [CrossRef]
- Kayhan, A.H.; Demir, A.; Palanci, M. Multi-functional solution model for spectrum compatible ground motion record selection using stochastic harmony search algorithm. Bull. Earthq. Eng. 2022, 20, 6407–6440. [Google Scholar] [CrossRef]
- Hatzigeorgiou, G.D.; Kanapitsas, G. Evaluation of fundamental period of low-rise and mid-rise reinforced concrete buildings. Earthq. Eng. Struct. Dyn. 2013, 42, 1599–1616. [Google Scholar] [CrossRef]
- Xiong, W.; Jiang, L.Z.; Li, Y.Z. Influence of soil–structure interaction (structure-to-soil relative stiffness and mass ratio) on the fundamental period of buildings: Experimental observation and analytical verification. Bull. Earthq. Eng. 2016, 14, 139–160. [Google Scholar] [CrossRef]
- Fu, J.; Liang, J.; Todorovska, M.I.; Trifunac, M.D. Soil-structure system frequency and damping: Estimation from eigenvalues and results for a 2D model in layered half-space. Earthq. Eng. Struct. Dyn. 2018, 47, 2055–2075. [Google Scholar] [CrossRef]
- Mulliken, J.S.; Karabalis, D.L. Discrete model for dynamic through-the-soil coupling of 3-d foundations and structures. Earthq. Eng. Struct. Dyn. 1998, 27, 687–710. [Google Scholar] [CrossRef]
- EC 8; Eurocode 8—Design of Structures for Earthquake Resistance, Part 5: Foundations, Retaining Structures and Geotechnical Aspects. European Committee for Standardization (CEN): Brussels, Belgium, 2005.
- SEAOC. Seismic Design Recommendations; Structural Engineers Association of California: Sacramento, CA, USA, 2009. [Google Scholar]
- Sozen, M.A. Review of Earthquake response of reinforced concrete buildings with a view to drift control. In State-of-the-Art in Earthquake Engineering; Turkish National Committee on Earthquake Engineering: Istanbul, Turkey, 1981; pp. 383–418. [Google Scholar]
- Mohsenian, V.; Gharaei-Moghaddam, N.; Mariani, S.; Hajirasouliha, I. Assessment of the effects of non-structural components on the seismic reliability of structures via a block diagram method. Structures 2023, 47, 2050–2060. [Google Scholar] [CrossRef]
- Chen, P.; Wu, X. Investigations on the dynamic response of adjacent buildings connected by viscous dampers. Buildings 2022, 12, 1480. [Google Scholar] [CrossRef]
- Demir, A. Investigation of the effect of real ground motion record number on seismic response of regular and vertically irregular RC frames. Structures 2022, 39, 1074–1091. [Google Scholar] [CrossRef]
- Palanci, M.; Demir, A.; Kayhan, A.H. Quantifying the effect of amplitude scaling of real ground motions based on structural responses of vertically irregular and regular RC frames. Structures 2023, 51, 105–123. [Google Scholar] [CrossRef]
























| No | Seismic Sequence | Station | Comp. | Date (Time) | Magnitude (ML) | Recorded PGA (g) |
|---|---|---|---|---|---|---|
| 1 | Mammoth Lakes | 54099 Convict Creek | N-S | 25 May 1980 (16:34) | 6.1 | 0.442 |
| 25 May 1980 (16:49) | 6.0 | 0.178 | ||||
| 25 May 1980 (19:44) | 6.1 | 0.208 | ||||
| 25 May 1980 (20:35) | 5.7 | 0.432 | ||||
| 27 May 1980 (14:51) | 6.2 | 0.316 | ||||
| 2 | Chalfant Valley | 54428 Zack Brothers Ranch | E-W | 20 July 1986 (14:29) | 5.9 | 0.285 |
| 21 July 1986 (14:42) | 6.3 | 0.447 | ||||
| 3 | Coalinga | 46T04 CHP | N-S | 22 July 1983 (02:39) | 6.0 | 0.605 |
| 25 July 1983 (22:31) | 5.3 | 0.733 | ||||
| 4 | Imperial Valley | 5055 Holtville P.O. | HPV315 | 15 October 1979 (23:16) | 6.6 | 0.221 |
| 15 October 1979 (23:19) | 5.2 | 0.211 | ||||
| 5 | Whittier Narrows | 24401 San Marino | N-S | 1 October 1987 (14:42) | 5.9 | 0.204 |
| 4 October 1987 (10:59) | 5.3 | 0.212 |
| No. | Date | Record Name | Comp. | Station Name | PGA (g) |
|---|---|---|---|---|---|
| 1. | 4 October 1987 | Whittier Narrows | NS | 24399 Mt Wilson-CIT Station | 0.158 |
| 2. | 4 October 1987 | Whittier Narrows | EW | 24399 Mt Wilson-CIT Station | 0.142 |
| 3. | 20 September 1999 | Chi-Chi, Taiwan | 056-N | HWA056 | 0.107 |
| 4. | 20 September 1999 | Chi-Chi, Taiwan | 056-N | HWA056 | 0.107 |
| 5. | 1 October 1987 | Whittier Narrows | NS | 24399 Mt Wilson-CIT Station | 0.186 |
| 6. | 1 October 1987 | Whittier Narrows | EW | 24399 Mt Wilson-CIT Station | 0.123 |
| 7. | 9 February 1971 | San Fernando | N069 | 127 Lake Hughes #9 | 0.157 |
| 8. | 9 February 1971 | San Fernando | N159 | 127 Lake Hughes #9 | 0.134 |
| 9. | 17 January 1994 | Northridge | NS | 90019 San Gabriel-E. Gr. Ave. | 0.256 |
| 10. | 17 January 1994 | Northridge | EW | 90019 San Gabriel-E. Gr. Ave. | 0.141 |
| 11. | 20 September 1999 | Chi-Chi, Taiwan | NS | TAP103 | 0.177 |
| 12. | 20 September 1999 | Chi-Chi, Taiwan | EW | TAP103 | 0.122 |
| 13. | 17 January 1994 | Northridge | N005 | 90017 LA-Wonderland Ave | 0.172 |
| 14. | 17 January 1994 | Northridge | N175 | 90017 LA-Wonderland Ave | 0.112 |
| 15. | 7 June 1975 | Northern Calif | N060 | 1249 Cape Mendocino, Petrolia | 0.115 |
| 16. | 7 June 1975 | Northern Calif | N150 | 1249 Cape Mendocino, Petrolia | 0.179 |
| 17. | 8 July 1986 | N. Palm Springs | NS | 12206 Silent Valley | 0.139 |
| 18. | 18 October 1989 | Loma Prieta | N205 | 58539 San Francisco | 0.105 |
| 19. | 18 October 1989 | Loma Prieta | NS | 47379 Gilroy Array #1 | 0.473 |
| 20. | 18 October 1989 | Loma Prieta | EW | 47379 Gilroy Array #1 | 0.411 |
| Direction/Motion | Spring Coefficient (kN/m) | Dashpot Coefficient (kNs/m) |
|---|---|---|
| Vertical | 174,000 | 1223 |
| Horizontal | 140,000 | 200.84 |
| Rocking | 148,000 | 780.63 |
| Number of Stories | Number of Failures | Type | IDR (%) | PFA (m/s2) | Maximum Displacement (m) |
|---|---|---|---|---|---|
| 3 | 2/20 | Fixed | 0.6000 | 3.888 | 0.0474 |
| 3 | 1/20 | SSI | 0.5600 | 3.422 | 0.0407 |
| 4 | 1/20 | Fixed | 0.1888 | 0.972 | 0.0139 |
| 4 | 2/20 | SSI | 0.1601 | 0.970 | 0.0127 |
| Number of Stories | Number of Failures | Type | IDR (%) | PFA (m/s2) | Maximum Displacement (m) |
|---|---|---|---|---|---|
| 3 | 2/20 | Regular | 0.56 | 3.61 | 0.0401 |
| 3 | 2/20 | Irregular | 0.51 | 3.42 | 0.0159 |
| 4 | 2/20 | Regular | 0.16 | 0.97 | 0.0127 |
| 4 | 2/20 | Irregular | 0.22 | 2.01 | 0.0121 |
Disclaimer/Publisher’s Note: The statements, opinions and data contained in all publications are solely those of the individual author(s) and contributor(s) and not of MDPI and/or the editor(s). MDPI and/or the editor(s) disclaim responsibility for any injury to people or property resulting from any ideas, methods, instructions or products referred to in the content. |
© 2024 by the author. Licensee MDPI, Basel, Switzerland. This article is an open access article distributed under the terms and conditions of the Creative Commons Attribution (CC BY) license (https://creativecommons.org/licenses/by/4.0/).
Share and Cite
Katsimpini, P.S. Seismic Response of Vertical Hybrid Concrete/Steel Frames Considering Soil–Structure Interaction. Buildings 2024, 14, 972. https://doi.org/10.3390/buildings14040972
Katsimpini PS. Seismic Response of Vertical Hybrid Concrete/Steel Frames Considering Soil–Structure Interaction. Buildings. 2024; 14(4):972. https://doi.org/10.3390/buildings14040972
Chicago/Turabian StyleKatsimpini, Panagiota S. 2024. "Seismic Response of Vertical Hybrid Concrete/Steel Frames Considering Soil–Structure Interaction" Buildings 14, no. 4: 972. https://doi.org/10.3390/buildings14040972
APA StyleKatsimpini, P. S. (2024). Seismic Response of Vertical Hybrid Concrete/Steel Frames Considering Soil–Structure Interaction. Buildings, 14(4), 972. https://doi.org/10.3390/buildings14040972
