Abstract
The residential block is the cognitive unit for residents to constitute urban imagery. As one of the most frequently used urban outdoor public spaces by residents, the thermal comfort of street canyons is an essential indicator for assessing sustainable and livable cities. The problem of the uncomfortable summer climate in the warm temperate zone of China has not been adequately studied. The study aims to analyze the influence of the building layout form of residential block units and block configuration on the outdoor summer thermal comfort of street canyons. Outdoor air temperature (Ta), mean radiant temperature (Tmrt), wind speed (Va), and physiological equivalent temperature (PET) were simulated using ENVI-met. A new index, PETws, was introduced based on a statistical analysis of the PET index to assess the overall street canyon thermal comfort of the block. The results indicate that the number of rows of buildings in the building row layout has a more significant effect on the summer thermal comfort PET of street canyons than the number of columns in the warm temperate zone, especially on N–S-oriented streets. Reducing the number of rows can increase the overall thermal comfort PETws of street canyons by a maximum of 2.2%. The best choice for the number of building columns is two columns. Adopting different block configurations can increase the thermal comfort PETws of street canyons by up to 2.5%. An optimal block form has been created to improve the overall street canyon summer thermal comfort of the block.
1. Introduction
With rapid urbanization and continuous human intervention in the natural environment, the climatic environment of urban areas has changed significantly. The urban heat island (UHI) effect, deterioration of habitat, and public health crisis have led to the realization that sustainable practices are needed to avoid human thermal comfort problems caused by extreme microclimatic environments [1,2,3]. A good microclimate environment can effectively extend the time of outdoor activities of residents and improve the sustainability and livability of urban space and environment [4]. Early involvement in urban microclimate issues before the design decision stage and the adoption of appropriate urban design strategies is a necessary and effective way to address climate change and improve outdoor thermal comfort [5,6].
Blocks are the basic building units of cities. Blocks with different morphologies and interfaces are bound to have different heat transfer characteristics in their internal spaces and thus exhibit different microclimatic characteristics. As one of the representative urban activity places and behavioral spaces in the built environment, street canyons are units with specific microclimate and play an important role in improving urban microclimate. In previous studies, how street canyon geometry such as building height to street width (H/W) [7,8,9], orientation [7,9,10], sky view factor (SVF) [8], width and length [11] affects the microclimate and thermal comfort of street canyons in urban blocks has been investigated. It was found that H/W and orientation have a greater effect on the thermal comfort of street canyons [12]. Under hot and dry climatic conditions, the intensity of UHI increases as the H/W ratio decreases [13]. The high aspect ratio can increase wind speed and shade in street canyons, thus improving thermal comfort at the pedestrian level, especially in summer. However, as the ratio between canyon length and the height of buildings (L/H) increases, there is no obvious change in thermal comfort [11]. Chatzidimitriou et al. [14] discussed that the most comfortable in summer are deep canyons, while the most comfortable in winter are canyons of medium width. By evaluating wind flow and temperature variation, it has been demonstrated that the ratio of H/W = 1 and the ratio of the street length to width (L/W) = 2 are optimal values for controlling UHI [15]. Almost all studies have shown that east–west (E–W)-oriented street canyons have the worst thermal comfort relative to other orientations [16,17]. For hot and humid environments, north–south (N–S)-oriented street canyons can obtain the most comfortable time, followed by northwest-southeast (NW–SE)-oriented and northeast–southwest (NE–SW)-oriented [18]. In a study conducted in Tabriz, analysis of Ta, Tmrt, and PET showed that 135°, 145°, and 155° are the best street orientations for thermal comfort in the relatively hot summer, and 135° is the most comfortable choice in the cold winter [19]. The research on street canyons conducted in a cold city has indicated significant quadratic correlations between SVF and thermal environmental elements of the street canyon [20].
The inappropriate arrangement of buildings in urban blocks causes less efficient air exchange in the canyon. It is difficult for outside winds to enter and heat to escape from the canyon, resulting in heat buildup in the canyon in summer. A study in Nanjing, China, showed a correlation between building layout patterns and microclimate elements. The building layout had a more significant impact on Tmrt and wind speed than on Ta [17]. Taleghani et al. [21] conducted a comparative study of the thermal comfort of five different building forms and layouts at pedestrian height at the hottest time of summer. The results indicated that the courtyard type can provide the best thermal comfort for the human body in summer compared to other spatial forms of building complexes. Shareef et al. [22] demonstrated that in hot climate regions, a meandering building layout reduced the block air temperature by 1.9 °C compared to the baseline case of a grid arrangement. However, a grid arrangement of pavilions with straight canyons was more beneficial to increase the wind speed within the canyons than a block with staggered canyons. Ma et al. [23] found that when the ratio of surrounding building height to street building height (SH/h) ≥ 1.8 and building coverage ratio (BCR) ≥ 47%, street pedestrian thermal comfort can be achieved for at least three comfort hours regardless of street orientation or layout form. Among the studies that have been conducted so far, some through numerical models [24,25] and some based on field measurements [26,27].
As a result of climate change, the combined effect of the buildings and environment around the street on the microclimate and thermal comfort of the street canyon is becoming more and more significant. Therefore, the thermal comfort performance of street canyons should be considered for analysis at the block scale rather than in an isolated street space [28]. Referring to the above literature review, most of the urban morphological parameters involved in the current studies are related to street geometry, including street aspect ratio, orientation, SVF, etc. Among them, studies on orientation generally focus on the variation of the thermal environment in a single orientation or the comparison between different orientations. However, fewer studies have focused on the impact of street block unit building layout and block configuration around streets on the thermal comfort performance of street canyons. There is a lack of an index that considers the combined effect of the thermal environment of canyons with different street orientations at the block scale to assess the thermal comfort performance of canyons. At present, research related to thermal comfort in street canyons tends to target specific climatic regions or areas, with more research on humid and hot climates [29,30]. The conclusions are not applicable to other climatic conditions. Studies in China in recent years have also been conducted mainly in Guangzhou [31,32], Nanjing [17], and Harbin [33]. Existing studies have not paid attention to the frequent hot summer weather, the significant reduction of outdoor thermal environment quality in urban residential blocks, and the decline of thermal comfort of residents in the warm temperate zone of China in recent years. In the design of residential blocks, there is a need to provide a spatial form that creates a comfortable outdoor thermal environment.
This study takes residential blocks in Jinan, China, as the object of study to investigate the effects of block unit building layout and block configuration on the summer thermal comfort of street canyons under specific climatic conditions in the warm temperate zone. Based on a quantitative simulation study, this paper provides an optimal block configuration that can improve the summer thermal comfort of street canyons. It helps to reasonably control the spatial form of the block at the beginning of block planning and design to create an excellent outdoor thermal environment at the lowest cost and provides a reference for the design of climate adaptability residential blocks.
2. Methods
2.1. Study Area
The warm temperate zone is one of the climate zones in China classified by the standard “ Names and codes for climate regionalization in China-Climatic zones and climatic regions” [34]. The warm temperate zone is hot and rainy in summer and cold and dry in winter. Little attention has been paid to the thermal comfort of warm temperate summer in China. In recent years, the high summer temperatures in China’s warm temperate zone have been frequent, and the quality of the thermal environment in residential blocks has declined significantly. Jinan (36.40° N, 117.00° E) is one of the representative cities in the warm temperate zone of China. The summer in Jinan is hot and rainy. The topography of Jinan is high in the south and low in the north, surrounded by mountains on three sides, thus forming a unique semi-basin terrain in Jinan, which makes it difficult to obtain convection in the stratosphere. It is one of the reasons for the high temperature in the summer. The frequency of extreme temperatures shows an overall upward trend in Jinan. In 2022, the extremely highest temperature exceeded 40 °C. According to the data of the National Meteorological Information Center, the monthly temperature and relative humidity of Jinan from 2010 to 2020 are shown in Figure 1. Average monthly temperature variation throughout the year ranges from −0.2 °C to 27.8 °C. The annual average number of high-temperature (daily maximum temperature ≥ 35 °C) days is 12 d. In addition, July has the highest temperature, with a monthly average temperature of 27.8 °C. In summer (June–August), the relative humidity is between 44% and 79%. The summer thermal environment in Jinan shows an overheating trend.
Figure 1.
Monthly temperature and relative humidity in Jinan (2010–2020) (National Meteorological Information Center (http://data.cma.cn/), accessed on 27 October 2022).
Jinan has a diverse urban morphology due to its long history, and the block form is diverse as it has gone through different stages of urban development. Influenced by the ancient traditional city layout and foreign planning ideas brought by the self-opening of commercial ports in the Republic of China, the road layout of residential blocks in the old city of Jinan mostly adopted the planning model of small blocks. In the process of expanding and spreading the urban space form of the main city of Jinan in all directions, due to the restriction of the Yellow River in the north and the mountainous area in the south, the urban space shows the form of developing to the east and west flank axes, forming the new urban area in the east and west. The “ Standard for urban residential area planning and design” [35] proposes that “residential areas should adopt the traffic organization mode of ‘small block, dense road network’, and the road network density should not be less than 8 km/km2; the spacing between urban roads should not exceed 300 m, and it is appropriate to be 150–250 m and should be combined with the layout of residential blocks”. The scale of residential blocks in new urban areas is also gradually decreasing under the influence of the theory of New Urbanism and the practice of New Urbanism in Jinan. In this study, the main urban area within the Jinan City bypass expressway was selected as the study area (Figure 2), and small-scale residential blocks were used as the study object.
Figure 2.
Location of the study area (Geographic Data Sharing Infrastructure, College of Urban and Environmental Science, Peking University (http://geodata.pku.edu.cn),accessed on 18 June 2023).
2.2. Research Framework
The study analyzes the effect of small-scale residential block forms on the thermal comfort of street canyons in Jinan. The methodological framework of this study is shown in Figure 3.
Figure 3.
Research framework.
2.3. Building Ideal Models of Residential Blocks
2.3.1. Block Scale Setting
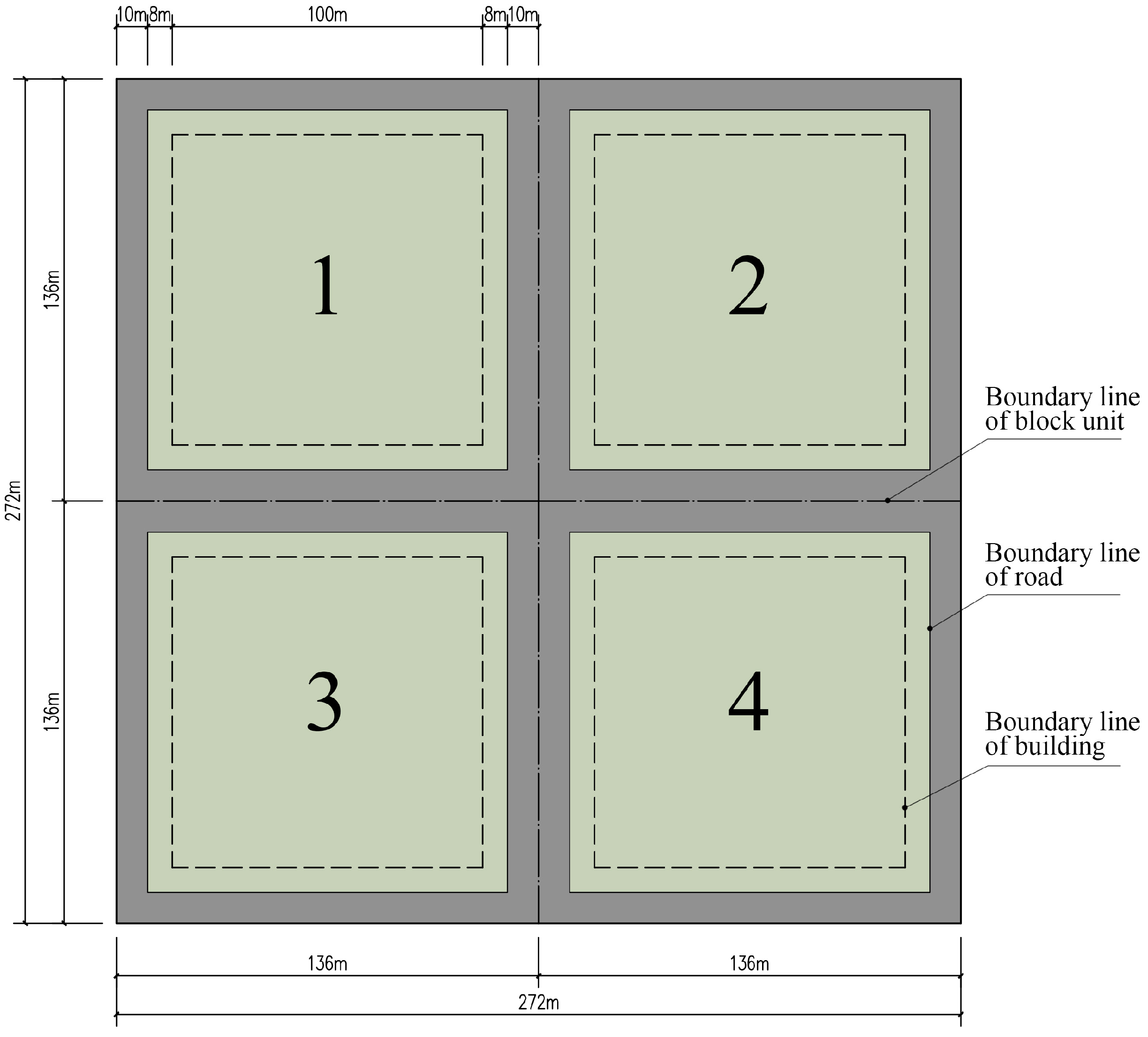
This paper is based on the analysis and study of the actual road network scale of residential blocks in the study area, and according to “the Technical Regulations for the Management of Urban and Rural Planning in Jinan” and other relevant specifications on road width, building setback distance and building spacing, 100 m × 100 m is selected as the building line range of the block unit. It is offset 8 m outward as the boundary line of the road, and then offset 10 m outward as the boundary line of the block unit, forming a block unit with a scale of 136 m × 136 m. The block unit is gridded in 2 × 2 to generate an ideal residential block of 272 m × 272 m (Figure 4).
Figure 4.
Ideal residential block scale model.
2.3.2. Basic Block Morphology Abstraction
In this paper, through the research of small-scale residential blocks in the study area, the row layout is selected as the building plan combination form. Row layout is conducive to light and ventilation and is a more commonly used building group layout mode. Nine building layout types were extracted using the number of rows and columns of buildings as the parameter variables (as shown in Figure 5, the number of rows refers to the number of buildings in north–south orientation, and the number of columns refers to the number of buildings on east–west orientation) in the row layout (Figure 6). Considering the scale of the street block and building size, the number of rows and columns is set to 1–3, respectively. To keep the building floor area ratio in the block constant, the building height decreases with the increase in the number of rows. According to the regulation that the height of residential buildings in Jinan shall not be greater than 80 m, the building height is set at 72 m (24 floors), 36 m (12 floors), and 24 m (8 floors). Combining the requirements for daylight spacing in the above relevant specifications and taking into account the differences in the design of daylight spacing between multi-story and high-rise buildings, the N–S and E–W spacing of buildings is set. In order to facilitate the calculation of floor area and data processing analysis, it is assumed that the building density is the same in the model with the same number of rows. Only N–S and E–W orientations are selected for street orientation in this study, which is the main orientation of streets in residential blocks in Jinan. Nine different base block unit models were formed by combining the number of rows and columns (Table 1) and labeling them based on rows and columns.
Figure 5.
Definition of row and column numbers.
Figure 6.
Building layout forms extracted in the study area.
Table 1.
Basic block unit abstraction and classification.
2.3.3. Urban Residential Blocks Design Scenario
In this study, two urban residential block design scenarios are set up. First, the building layout of the four block units is the same form, which can form nine block forms, as shown in Figure 7.
Figure 7.
Basic block form abstraction.
By simulating and analyzing the thermal comfort of N–S- and E–W-oriented street canyons, the number of building columns has no significant effect on the thermal comfort of N–S-oriented street canyons. Therefore, in the second scenario, the number of building columns is considered to be constant. The number of building columns with optimal thermal comfort in E–W-oriented street canyon was selected, and the block configuration was carried out with three basic block unit models, R1C2, R2C2, and R3C2, depending on the number of rows. Considering the issues of daylighting, shading, and ventilation, the building heights on both sides of the E–W-oriented street are set to the same height or north high and south low in block configuration scenarios, without considering the south high and north low. Building height restrictions are not set on both sides of the N–S-oriented street. This generates 36 different block configuration scenarios (Figure 8), including the three block configuration scenarios BR1C2, BR2C2, and BR3C2 in the first scenario.
Figure 8.
Block configuration scenarios.
2.4. Simulation Study
In recent years, the ENVI-met V5.0 3D urban microclimate simulation software [36] developed and continuously improved by Bruse et al. has become increasingly mature for outdoor microclimate simulation studies due to its strong relevance and applicability [37,38], especially in residential environments [39]. Researchers have applied it to a variety of scenarios including streets, blocks, botanical gardens, industrial areas, and campuses. Its reliability has been verified in studies in several climatic zones [40,41]. In this study, outdoor thermal comfort was calculated using the BIO-met V5.0 in ENVI-met. BIO-met can simulate the universal thermal index, including the standard effective temperature, physiologically equivalent temperature, predicted mean vote, and universal thermal climate index.
2.4.1. Initialization Model and Boundary Conditions
The initial model of typical residential blocks in Jinan was established by using ENVI-met software. The computational domain was finally set to 320 m × 320 m × 152 m (x × y × z) based on a series of pre-simulations. The grid resolution of all models was 4 m × 4 m × 4 m (x × y × z).
As mentioned earlier, July is the hottest month of the year in Jinan. In this paper, 8 July 2022 is selected as the simulation date, which is the hottest day in July, and there is no rain in the two days before and after that day. In addition, the meteorological data of that day were obtained from the Jinan meteorological station (area station number: 54823, 36.36° N, 117.00° E, altitude of the observation site: 170.3 m), which was used as the initial meteorological conditions for the simulation. The specific meteorological data are shown in Table 2. In addition, considering the daily temperature variation, the total simulation duration was set to 18 h in order to avoid the effect of initial conditions. The main input parameters of the simulation are set as shown in Table 3, and the rest of the parameters are default values.
Table 2.
Meteorological data from Jinan Meteorological Station on 8 July 2022.
Table 3.
Input parameters for simulations with ENVI-met.
A total of 18 points on each block model N–S- and W–E-oriented street canyon were selected as the output data, and the average of the 18 receptors for each street was the data for that street (Figure 9). The same street cross-section has three output points: the center point of the carriageway and a point on the sidewalk on both sides (one point on each side), with each output point located at a height of 1.2 m from the ground (Figure 10).
Figure 9.
Output measuring points of the simulation data.
Figure 10.
Description of the research model.
2.4.2. Simulation Validation
A typical residential block (positioned at 36.43° N, 117.06° E) was selected as the measured site. The field measurement was conducted on 8 July 2022 from 6:00 to 20:00. As shown in Figure 11a, the red outline indicates the location of the measured street. The TRM-GPS1 handheld network weather station instrument used for the field measurements is shown in Figure 11b to record the hourly Ta and RH at 1.2 m height. To calibrate the simulation model, Figure 11c provides a photograph of the street canyon taken with a fisheye lens, which was used to calculate the SVF.
Figure 11.
On-site measurement scenario; (a) the street canyon (red outline) and the on-site measurement point; (b) a setup of the measuring instrument; (c) fisheye lens image and SVF of the measurement location.
As shown in Figure 12, the simulated results of the environmental elements of the street canyon have a strong correlation with the measured results. It can also be found that the simulated results are lower than the measured values. In a natural environment, Ta and RH are affected by various complex factors, such as changes in cloudiness, wind fields, reflections from the surrounding environment, etc., and the measured values fluctuate. However, during the simulation, ENVI-met cannot take into account environmental changes and human interference. Considering the error range of the instruments used (temperature ± 0.4 °C, relative humidity ± 3%) and the measurement range (temperature: −30~70 °C, relative humidity: 5~100%), the relevant simulations using ENVI-met are reliable.
Figure 12.
Simulated and measured values of (a) Ta, (b) RH.
2.4.3. Thermal Comfort Evaluation
The Physiological Equivalent Temperature (PET) Index is currently one of the most used indexes for outdoor thermal comfort evaluation. Höppe et al. [42] proposed PET based on the Munich energy balance model for individuals (MEMI). The PET index takes into account various factors such as the main meteorological parameters, activity intensity, clothing, and individual parameters, and is therefore relatively more objective. This index is now used in different climatic regions [43]. PET has been shown to be applicable in cold regions of China [44,45,46]. Residents in different climate zones have different temperature tolerance, and the range of heat index may also vary. This paper selects the PET range defined in Table 4 to evaluate pedestrian thermal comfort [47].
Table 4.
PET value and thermal perception.
2.5. Introducing PETws and SOw
In this study, considering that the thermal comfort of street canyons with different orientations in the block has different trends with the change in block morphological parameters, PETws and SOw were introduced in order to accumulate different orientation PET values and thus evaluate the overall street canyon thermal comfort of the block. PETws is a weighted sum taking into account the weight of PET values for different street canyons orientations (SOw).
The objective weighting method is based directly on the raw information of the indicator and obtains the weights after processing by statistical methods. Entropy method is a common method in objective assignment methods. The greater the variance of an evaluation indicator, the lower the entropy value, the more information the indicator contains and transmits, and the greater the corresponding weight.
In an assessment problem with m indicators and n evaluated objects, the entropy of the ith indicator is defined by Equation (1):
where , when = 0, = 0. is the jth evaluated object of the ith indicator.
The entropy weight of the ith indicator is defined as in Equation (2):
where
Calculate the for each configuration block according to Equation (3):
where is the PET value in i orientation and is the weight in i orientation.
3. Results
This paper focuses on Ta, Tmrt, Va, and PET, which are environmental factors affecting outdoor thermal comfort, as the basic factors for studying the thermal comfort of street canyons. The average of Ta, Tmrt, Va, and PET in street canyons of each block from 6:00 to 20:00 were counted for statistical analysis. This time period is the main time for residents’ outdoor activities.
3.1. Impact of Building Row Number on Ta, Tmrt, Va, PET
Figure 13 illustrates that in summer, the average of Ta, Tmrt, Va, and PET change significantly with the increase in the number of rows and columns of the building layout, and the change trend is different. There are significant differences in the influence of the same factors by the number of building rows and columns on streets with different orientations.
Figure 13.
Average of indicators for nine block scenarios.
As the number of building rows increases, in E–W-oriented street canyons, the average of Ta first increases and then decreases, but the decreasing trend is not significant. The average value is minimized when the number of rows is 1. The Ta of BR2C1 is 0.29 °C higher than that of BR1C1. The average of Tmrt decreases and then increases. The average value is maximum when the number of rows is 1. The Tmrt of BR2C3 decreased by 2.22 °C compared to BR1C3, and BR3C3 increased by 0.98 °C compared to BR2C3. The wind speed gradually decreases with the rows. The average of PET increases gradually with the increase in the number of rows, and the maximum variation trend between BR1C3, BR2C3, and BR3C3 increased by 4.12 °C and 1.49 °C, respectively. In N–S-oriented street canyons, the average of Ta increases with the increase in the number of rows. The Ta of BR3C1 is 0.31 °C higher than that of BR1C1. The average of Tmrt, Va, and PET all decrease with the increase in the number of rows. The Tmrt, Va, and PET of BR3C3 are reduced by 0.14 m/s, 4.71 °C, and 2.06 °C, respectively, compared with BR1C3. The change trends of Ta, Tmrt, Va, and PET average values are similar in significance with increasing number of rows between different columns, but the trends of all four factors are different between streets with different orientations. The change trends of PET average values in E–W- and N–S-oriented street canyons are opposite, resulting in a gradual increase in the mean difference between differently oriented street canyons as the number of building rows increases. The mean difference in PET between different orientations in BR1C3 is 2.39 °C, while in BR3C3 the difference reaches 10.06 °C.
Among the block models with different numbers of building columns, the average Ta of the E–W-oriented street canyon is the lowest when the number of columns is 1, and BR1C1 is the model with the lowest Ta at 32.87 °C in 1 column. The average of Tmrt is the smallest when the number of columns is 3. The average Tmrt of BR1C1, BR1C2, and BR1C3 models are almost unaffected by the number of columns. The reason for this result may be related to its building height and the location of the building in the block units. The average of PET decreases and then increases with the increasing number of columns, and it is the smallest when the number of columns is 2. Figure 14a presents the curves of PET in the E–W street canyon at different time points for each block model. BR2C1, BR2C2, and BR2C3 mutate at 11:00am and show a decreasing trend, different from the trend of the other block models, and then gradually increase. The average Ta of the N–S-oriented street canyon is the lowest when the number of columns is 1. The average of Tmrt decreases with the increasing number of columns, but the decreasing trend is not obvious. The maximum value of the change is 0.16 °C. The effect of building column number on the average Va and PET of N–S-oriented street canyon is not significant (Figure 14b), with variations ranging from 0.01 to 0.11 m/s, and 0.01 to 0.08 °C, respectively.
Figure 14.
PET changes in BR1C1–BR3C3 block models on (a) E–W- and (b) N–S-oriented streets.
The results indicate that the influence of the number of building rows on the four indicators is more significant than the number of building columns. For example, in E–W-oriented street, the maximum variation values of average Ta, Tmrt, Va, and PET with the number of building rows are 0.29 °C, 2.22 °C, 0.71 m/s, and 4.12 °C, respectively, while the maximum values with the number of building columns are 0.12 °C, 0.15 °C, 0.11 m/s, and 2.9 °C, respectively. The influence of the number of building columns on the N–S orientation of the street canyon PET is not significant compared to the E–W orientation. In the same block model, the thermal comfort of the N–S-oriented street canyon is significantly better than the E–W orientation. Therefore, considering four factors comprehensively, the number of building columns with the lowest PET value of E–W-oriented street canyon 2 columns, is selected for block configuration with different numbers of building rows. The second scenario is configured based on the results of this section and the optimal choice of the number of columns.
3.2. Impact of Block Configuration on Ta, Tmrt, Va, PET
According to the results in Figure 15, when the other blocks have the same building layout, the average of Ta in E–W-oriented street canyons gradually increases as the number of rows in block unit 1 in Figure 4 increases. The average of Ta increases from B1233 to B3233 by 0.06 °C and 0.07 °C, respectively. Both Tmrt and PET mean values decrease and then increase. The mean value of Tmrt decreases by 0.6~0.8 °C when the number of rows changes from one to two and increases by 0.07~0.17 °C when it changes from two to three. The change trend of PET between B1131, B2131, and B3131 is the largest, decreasing by 0.71 °C and increasing by 0.51 °C. The change in wind speed is not obvious. When the number of building rows in unit 1 changes from one to two, the average Ta of N–S-oriented street canyon increases. When the number of rows changes from two to three, there is no significant change in Ta. The average of N–S orientation Tmrt and PET decreases with the increase in the number of building rows in block unit 1. When other block building layouts are identical, as the number of building rows in block unit 2 increases in Figure 4, the trends of the E–W-oriented and N–S-oriented street canyons Ta, Tmrt, Va, and PET averages are the same as in block unit 1. The maximum values of E–W orientation Ta, Tmrt, Va, and PET variations are 0.09 °C, 0.75 °C, 0.03 m/s, 0.61 °C, and N–S orientation are 0.07 °C, 0.87 °C, 0.05 m/s, 0.47 °C, respectively. When the building layout of other blocks is the same, in the E–W-oriented street canyons, the mean value of Ta first increases and then decreases as the number of rows in block unit 3 in Figure 4 increases. The average of Tmrt decreases and then increases, and the value is maximum when the number of rows is three. The wind speed decreases gradually. The mean value of PET gradually increases. The average of Ta and PET gradually increases in the N–S-oriented street canyon. The average of Va and Tmrt decreases. When other block building layouts are identical, as the number of building rows in block unit 4 increases in Figure 4, the trends of the E–W-oriented and N–S-oriented street canyons Ta, Tmrt, Va, and PET averages are the same as in block unit 3.
Figure 15.
Average of indicators for each block scenario.
The mean difference in Ta, Tmrt, Va, and PET in E–W-oriented street canyons between B1313 and B3131 is 0.01 °C, 0.04 °C, 0.02 m/s, 0.03 °C, respectively, and the difference in N–S orientation is 0.05 °C, 0.62 °C, 0.04 m/s, 0.3 °C, respectively. The difference in E–W orientation between B1133 and B1313 is 0.11 °C, 0.52 °C, 0.20 m/s, 1.00 °C, respectively, and the difference in N–S orientation is 0.00 °C, 0.48 °C, 0.04 m/s, 0.23 °C, respectively. The average of Ta, Tmrt, Va, and PET for two street block units of the same building layout configured on the north and south sides of the street differ significantly from those on the east and west sides, especially in E–W-oriented streets.
3.3. Impact of Block Configuration on PETws
Using the entropy method to calculate the mean PET values of the 36 block configuration scenarios, the PET weight of the E–W-oriented street canyon is 0.61 and the N–S orientation weight is 0.39. The street canyon PETws values for each block model are shown in Figure 16.
Figure 16.
PETws values of block street canyons.
B1212 and B1133 are the block configuration models with the lowest and highest PETws of block street canyons, respectively. The PETws of B1212 decreases by 2.5% compared to B1133. The value of PETws increases as the number of building rows increases when the block is evenly configured. The PETws of BR3C2 increases by 2.2% compared to BR1C2, reaching 42.72.
When configuring mixed blocks, by comparing the PETws values of B1131, B2131, B3131, and B1113, B1213, and B1313, respectively, it can be observed that as the number of building rows in the block unit on the north side of the street increases, the PETws value first decreases and then increases. The value is maximum when the number of rows is one. B2131 compared to B1131 and B1213 compared to B1113 thermal comfort improves by about 1.3% and 1%, respectively. By comparing the PETws values of B1112, B1122, B1132, and B2131, B2132, and B2133, respectively, as the number of building rows in the block unit on the south side of the street increases, the PETws value gradually increases. B1112 compared to B1132 and B2131 compared to B2133 thermal comfort improves by about 1.5% and 1.6%, respectively. Comparing the PETws values of B1212, B2121, B1122 and B1313, B3131, B1133, respectively, it can be found that the change in PETws is not significant when the two street block units of the same building layout are configured on the east or west side of the street. However, there is a significant difference in the PETws when they are configured on the north and south sides of the street compared to the east and west sides. The PETws of B1212 decreases by about 2% compared to B1122. In the B2131, B1213, B1123, and B1132 block models, the block units adopt the same building layout but are configured in different locations on the block. The PETws of B1213 decreases by about 2.2% compared to B1132.
4. Discussion
The extensive urbanization development in China has led to urban characteristics such as excessive block scale and wide roads. This urban morphology of wide roads, sparse road network, and large block outline changes the characteristics of the urban underlying surface, forming the UHI. The urban microclimate environment is deteriorating year by year, leading to a decrease in the quality of the living environment. Jinan adopts the planning layout of small blocks and dense road networks in community life circle planning, which has inherent advantages in regulating microclimate and energy saving and carbon reduction. Analyzing the specific impact mechanism between the morphology of small-scale residential blocks and microclimate provides a reliable basis for residential block planning. Jinan, as a typical city with a warm temperate climate in China, has hot summer and poor ventilation potential. Adjusting the building layout form of street block units and block configuration is an effective way to improve the thermal comfort of residential blocks in summer.
In this paper, the effect of residential block morphology on the microclimate and thermal comfort of street canyons in summer is simulated and analyzed using ENVI-met. The study first explored the effects of different building rows and columns on the microclimate and thermal comfort of street canyons in residential blocks based on the same floor area ratio. The results show that the number of rows of buildings in the row layout has a higher significance than the number of columns on the summer thermal comfort PET in the block street canyon. On this basis, the optimal number of columns is determined as two columns. Then, with the same number of columns, the four block units were combined according to the different number of building rows in the block units to generate 36 different block configuration models. Based on the analysis of the above simulation results:
The thermal comfort of street canyons is mainly influenced by Tmrt, Ta, Va, and other factors. The prevailing summer winds in Jinan are in a southerly direction. N–S-oriented streets are significantly better ventilated than E–W-oriented streets. In addition, the solar altitude angle in the study area is larger in summer, and the shadow area shaded by buildings is smaller for N–S-oriented streets and E–W-oriented streets, and the variability of the influence of solar radiation is not significant. Therefore, in the above simulation results, it can be seen that the thermal comfort of N–S-oriented street canyons in the same block is significantly better than E–W oriented. In summer, the PET of the E–W-oriented street canyon gradually increases with the number of building rows and first decreases and then increases with the number of building columns. The PET of N–S orientation decreases with the number of building rows, while the number of building columns has no significant effect on the PET of N–S orientation. With the increase in the number of rows and columns of buildings in the building layout, the trend of the average value of PET varies among different trends. Therefore, a new index, PETws, is introduced to evaluate the thermal comfort of residential blocks, and the thermal comfort of streets with different orientations is evaluated comprehensively, so as to evaluate the outdoor thermal comfort of blocks as a whole.
When the four block units have the same building layout form, the number of building rows increases from one to three rows and the PETws value increases by 2.2%. When the four block units were combined according to the different forms of building layout in the block units, the PETws of B1212, which has the best thermal comfort, were reduced by 2.5% compared to the PETws of B1133, which has the worst thermal comfort. As the number of building rows in the block units on the north side of the street increases, the PETws values first decrease and then increase. As the number of building rows in the block units on the south side of the street increases, the PETws values gradually increase. PETws can be reduced by about 2% for 2 block units of the same building layout configured on the east and west sides of the street compared to the north and south sides. Block units with the same building layout but configured in different locations on the block can reduce PETws by about 2.2%.
In a block design, the form of the building layout within block units can simultaneously influence the spatial form of the canyon with different street orientations. Therefore, when assessing the thermal comfort of block street canyons, attention should be paid to the block morphology around the streets, instead of considering isolated, single-oriented street spaces. The thermal comfort variation of street canyons with different orientations should be evaluated comprehensively to form an appropriate block morphology. PETws can be used as an indicator to assess the overall outdoor thermal comfort of a block. In the block planning with row layout for warm temperate cities, when the blocks are uniformly configured, the building layout can be in one row and two columns in order to make the street canyon have better thermal comfort in summer, as in BR1C2. When the blocks are mixed configuration, the block units on the north side of the street can be laid out with two building rows, and the south side can be laid out with one building row. Block units of the same building layout are configured on the east or west side of the street.
This study only analyzes the influence of the building row layout pattern on the summer thermal comfort of street canyons in the warm temperate city of Jinan, China, which can provide a research framework for the study of urban microclimate and thermal comfort belonging to other climate zones. In addition, the study was conducted based on the field measurement and the software simulation. The response of people may be included in future studies in order to better understand the human body’s perception of thermal comfort in outdoor environments. The field measurement was conducted on a typical day and at specific hours of the summer. In a realistic environment, vehicles, pedestrians, and surrounding buildings all have an impact on the thermal comfort of street canyons in summer, and a better model is needed to evaluate the impact of block building layout forms on the thermal comfort of street canyons.
5. Conclusions
The objective of this research paper is to explore the effects of building layout form and block configuration on the summer thermal comfort of street canyons in residential blocks. The present study takes Jinan, a typical city in the warm temperate zone of China, as the study area, extracts the typical forms of residential blocks, and establishes ideal block models. Environmental factors such as Ta, Tmrt, and Va in residential blocks are simulated using ENVI-met, and PET is calculated by Bio-met. The data of street canyon space of each block model are extracted. The impact of the number of building rows and columns on outdoor thermal comfort is analyzed by comparing the thermal comfort of nine uniformly configured block models for block configuration. Using the entropy method, the PET of street canyons in 36 block configuration models was calculated statistically. PETws considering PET weights of different oriented streets are used to evaluate the thermal comfort of the whole street canyon in the block. The block morphology model with the best summer thermal comfort is selected, in other words, the block with the lowest PETws value.
The study is based on the same building floor area ratio and the number of building rows and columns as variables for block configuration to explore its effect on the microclimate and thermal comfort of residential summer block street canyons. In addition, the results can provide references and guidance for urban residential block planning and street design. The results of the study are summarized as follows:
The number of rows of buildings in the building row layout has a higher significance than the number of columns on the summer thermal comfort PET in the block street canyon, especially on the N–S-oriented street canyons. The best choice for the number of building columns is two columns. The number of building rows had opposite trends in the effect of PET on the summer thermal comfort of E–W-oriented and N–S-oriented street canyons in the block. The N–S-oriented street canyon thermal comfort PET is significantly better than the E–W-oriented in the same block.
When four block units have the same form of building layout, by adjusting the number of building rows and columns, the overall summer thermal comfort of the block street canyon PETws can be improved by a maximum of 2.2%. When the four block units are combined according to the different forms of building layout in the block units, the maximum increase in thermal comfort PETws of the block street canyon can be 2.5%. The thermal comfort of each block model street canyon was evaluated by statistical calculation of PETws, and B1212 was the best block form to improve the overall summer thermal comfort of the street canyon in the warm temperate zone.
Author Contributions
Conceptualization, X.S. and Q.D.; methodology, X.S.; software, X.S.; validation, X.S., Q.D., G.W. and S.W.; formal analysis, X.S., Q.D., G.W. and C.J.; investigation, X.S., Q.D., G.W. and S.W.; resources, X.S. and Q.D.; data curation, X.S. and C.J.; writing—original draft preparation, X.S.; writing—review and editing, Q.D. and G.W.; visualization, X.S.; supervision, Q.D.; project administration, X.S. and Q.D.; funding acquisition, Q.D. All authors have read and agreed to the published version of the manuscript.
Funding
This research received no external funding.
Data Availability Statement
Data are available on request due to restrictions. The data presented in this study are available on request from the corresponding author.
Conflicts of Interest
The authors declare no conflict of interest.
References
- Kotharkar, R.; Ramesh, A.; Bagade, A. Urban heat island studies in South Asia: A critical review. Urban CLim. 2018, 24, 1011–1026. [Google Scholar] [CrossRef]
- Ramakreshnan, L.; Aghamohammadi, N.; Fong, C.S.; Ghaffarianhoseini, A.; Ghaffarianhoseini, A.; Wong, L.P.; Hassan, N.; Sulaiman, N.M. A critical review of Urban Heat Island phenomenon in the context of Greater Kuala Lumpur, Malaysia. Sust. Cities Soc. 2018, 39, 99–113. [Google Scholar] [CrossRef]
- Leng, H.; Liang, S.; Yuan, Q. Outdoor thermal comfort and adaptive behaviors in the residential public open spaces of winter cities during the marginal season. Int. J. Biometeorol. 2020, 64, 217–229. [Google Scholar] [CrossRef]
- Sun, C.; Lian, W.; Liu, L.; Dong, Q.; Han, Y. The impact of street geometry on outdoor thermal comfort within three different urban forms in severe cold region of China. Build. Environ. 2022, 222, 109342. [Google Scholar] [CrossRef]
- Wang, W.; Liu, K.; Zhang, M.; Shen, Y.; Jing, R.; Xu, X. From simulation to data-driven approach: A framework of integrating urban morphology to low-energy urban design. Renew. Energy 2021, 179, 2016–2035. [Google Scholar] [CrossRef]
- Qiu, G.Y.; Zou, Z.; Li, X.; Li, H.; Guo, Q.; Yan, C.; Tan, S. Experimental studies on the effects of green space and evapotranspiration on urban heat island in a subtropical megacity in China. Habitat Int. 2017, 68, 30–42. [Google Scholar] [CrossRef]
- Memon, R.A.; Leung, D.Y.; Liu, C.-H. Effects of building aspect ratio and wind speed on air temperatures in urban-like street canyons. Build. Environ. 2010, 45, 176–188. [Google Scholar] [CrossRef]
- Qaid, A.; Ossen, D.R. Effect of asymmetrical street aspect ratios on microclimates in hot, humid regions. Int. J. Biometeorol. 2015, 59, 657–677. [Google Scholar] [CrossRef]
- Ali-Toudert, F.; Mayer, H. Numerical study on the effects of aspect ratio and orientation of an urban street canyon on outdoor thermal comfort in hot and dry climate. Build. Environ. 2006, 41, 94–108. [Google Scholar] [CrossRef]
- Shishegar, N. Street design and urban microclimate: Analyzing the effects of street geometryand orientation on airflow and solar access in urban canyons. J. Clean Energy Technol. 2013, 1, 52. [Google Scholar] [CrossRef]
- Muniz-Gäal, L.P.; Pezzuto, C.C.; de Carvalho, M.F.H.; Mota, L.T.M. Urban geometry and the microclimate of street canyons in tropical climate. Build. Environ. 2020, 169, 106547. [Google Scholar] [CrossRef]
- Mohajeri, N.; Gudmundsson, A.; Kunckler, T.; Upadhyay, G.; Assouline, D.; Kämpf, J.; Scartezzini, J. A solar-based sustainable urban design: The effects of city-scale street-canyon geometry on solar access in Geneva, Switzerland. Appl. Energy 2019, 240, 173–190. [Google Scholar] [CrossRef]
- Bakarman, M.A.; Chang, J.D. The influence of height/width ratio on urban heat island in hot-arid climates. Procedia Eng. 2015, 118, 101–108. [Google Scholar] [CrossRef]
- Chatzidimitriou, A.; Yannas, S. Street canyon design and improvement potential for urban open spaces; the influence of canyon aspect ratio and orientation on microclimate and outdoor comfort. Sust. Cities Soc. 2017, 33, 85–101. [Google Scholar] [CrossRef]
- Karimimoshaver, M.; Khalvandi, R.; Khalvandi, M. The effect of urban morphology on heat accumulation in urban street canyons and mitigation approach. Sust. Cities Soc. 2021, 73, 103127. [Google Scholar] [CrossRef]
- Andreou, E. Thermal comfort in outdoor spaces and urban canyon microclimate. Renew. Energy 2013, 55, 182–188. [Google Scholar] [CrossRef]
- Deng, J.-Y.; Wong, N.H. Impact of urban canyon geometries on outdoor thermal comfort in central business districts. Sust. Cities Soc. 2020, 53, 101966. [Google Scholar] [CrossRef]
- Srivanit, M.; Jareemit, D. Modeling the influences of layouts of residential townhouses and tree-planting patterns on outdoor thermal comfort in Bangkok suburb. J. Build. Eng. 2020, 30, 101262. [Google Scholar] [CrossRef]
- Karimimoshaver, M.; Shahrak, M.S. The effect of height and orientation of buildings on thermal comfort. Sust. Cities Soc. 2022, 79, 103720. [Google Scholar] [CrossRef]
- Li, G.; Ren, Z.; Zhan, C. Sky View Factor-based correlation of landscape morphology and the thermal environment of street canyons: A case study of Harbin, China. Build. Environ. 2020, 169, 106587. [Google Scholar] [CrossRef]
- Taleghani, M.; Kleerekoper, L.; Tenpierik, M.; Van Den Dobbelsteen, A. Outdoor thermal comfort within five different urban forms in the Netherlands. Build. Environ. 2015, 83, 65–78. [Google Scholar] [CrossRef]
- Shareef, S.; Altan, H. Urban block configuration and the impact on energy consumption: A case study of sinuous morphology. Renew. Sust. Energ. Rev. 2022, 163, 112507. [Google Scholar] [CrossRef]
- Ma, X.; Leung, T.; Chau, C.; Yung, E.H. Analyzing the influence of urban morphological features on pedestrian thermal comfort. Urban Clim. 2022, 44, 101192. [Google Scholar] [CrossRef]
- Pearlmutter, D.; Berliner, P.; Shaviv, E. Integrated modeling of pedestrian energy exchange and thermal comfort in urban street canyons. Build. Environ. 2007, 42, 2396–2409. [Google Scholar] [CrossRef]
- Arnfield, A.J. Street design and urban canyon solar access. Energy Build. 1990, 14, 117–131. [Google Scholar] [CrossRef]
- Bourbia, F.; Boucheriba, F. Impact of street design on urban microclimate for semi arid climate (Constantine). Renew. Energy 2010, 35, 343–347. [Google Scholar] [CrossRef]
- Krüger, E.; Diniz, W. Relationship between indoor thermal comfort conditions and the Time Weighted Preservation Index (TWPI) in three Brazilian archives. Appl. Energy 2011, 88, 712–723. [Google Scholar] [CrossRef]
- Futcher, J.A.; Kershaw, T.; Mills, G. Urban form and function as building performance parameters. Build. Environ. 2013, 62, 112–123. [Google Scholar] [CrossRef]
- Emmanuel, R.; Johansson, E. Influence of urban morphology and sea breeze on hot humid microclimate: The case of Colombo, Sri Lanka. Clim. Res. 2006, 30, 189–200. [Google Scholar] [CrossRef]
- Zhang, Y.; Du, X.; Shi, Y. Effects of street canyon design on pedestrian thermal comfort in the hot-humid area of China. Int. J. Biometeorol. 2017, 61, 1421–1432. [Google Scholar] [CrossRef]
- Yin, S.; Lang, W.; Xiao, Y. The synergistic effect of street canyons and neighbourhood layout design on pedestrian-level thermal comfort in hot-humid area of China. Sust. Cities Soc. 2019, 49, 101571. [Google Scholar] [CrossRef]
- Cao, A.; Li, Q.; Meng, Q. Effects of orientation of urban roads on the local thermal environment in Guangzhou city. Procedia Eng. 2015, 121, 2075–2082. [Google Scholar] [CrossRef]
- Yin, Q.; Cao, Y.; Sun, C. Research on outdoor thermal comfort of high-density urban center in severe cold area. Build. Environ. 2021, 200, 107938. [Google Scholar] [CrossRef]
- GB/T 17297-1998; Names and Codes for Climate Regionalization in China-Climatic Zones and Climatic Regions. The State Bureau of Quality and Technical Supervision: Beijing, China, 1998.
- GB 50180-2018; Standard for Urban Residential Area Planning and Design. China Construction Industry Press: Beijing, China, 2018.
- Bruse, M.; Fleer, H. Simulating surface–plant–air interactions inside urban environments with a three dimensional numerical model. Environ. Modell. Softw. 1998, 13, 373–384. [Google Scholar] [CrossRef]
- Emmanuel, R.; Fernando, H.J. Urban heat islands in humid and arid climates: Role of urban form and thermal properties in Colombo, Sri Lanka and Phoenix, USA. Clim. Res. 2007, 34, 241–251. [Google Scholar] [CrossRef]
- Fahmy, M.; Sharples, S. On the development of an urban passive thermal comfort system in Cairo, Egypt. Build. Environ. 2009, 44, 1907–1916. [Google Scholar] [CrossRef]
- McRae, I.; Freedman, F.; Rivera, A.; Li, X.; Dou, J.; Cruz, I.; Ren, C.; Dronova, I.; Fraker, H.; Bornstein, R. Integration of the WUDAPT, WRF, and ENVI-met models to simulate extreme daytime temperature mitigation strategies in San Jose, California. Build. Environ. 2020, 184, 107180. [Google Scholar] [CrossRef]
- Bande, L.; Afshari, A.; Al Masri, D.; Jha, M.; Norford, L.; Tsoupos, A.; Marpu, P.; Pasha, Y.; Armstrong, P. Validation of UWG and ENVI-met models in an Abu Dhabi District, based on site measurements. Sustainability 2019, 11, 4378. [Google Scholar] [CrossRef]
- Tsoka, S.; Tsikaloudaki, A.; Theodosiou, T. Analyzing the ENVI-met microclimate model’s performance and assessing cool materials and urban vegetation applications–A review. Sust. Cities Soc. 2018, 43, 55–76. [Google Scholar] [CrossRef]
- Höppe, P. The physiological equivalent temperature–a universal index for the biometeorological assessment of the thermal environment. Int. J. Biometeorol. 1999, 43, 71–75. [Google Scholar] [CrossRef]
- Lin, T.-P.; Matzarakis, A. Tourism climate and thermal comfort in Sun Moon Lake, Taiwan. Int. J. Biometeorol. 2008, 52, 281–290. [Google Scholar] [CrossRef] [PubMed]
- Lai, D.; Guo, D.; Hou, Y.; Lin, C.; Chen, Q. Studies of outdoor thermal comfort in northern China. Build. Environ. 2014, 77, 110–118. [Google Scholar] [CrossRef]
- Su, Y.; Zhao, Q.; Zhou, N. Improvement strategies for thermal comfort of a city block based on PET Simulation—A case study of Dalian, a cold-region city in China. Energy Build. 2022, 261, 111557. [Google Scholar] [CrossRef]
- Yang, Y.; Zhou, D.; Gao, W.; Zhang, Z.; Chen, W.; Peng, W. Simulation on the impacts of the street tree pattern on built summer thermal comfort in cold region of China. Sust. Cities Soc. 2018, 37, 563–580. [Google Scholar] [CrossRef]
- Zhang, W.; Gao, Z. Research progress of outdoor thermal comfort index. J. Environ. Health 2015, 32, 836–840. [Google Scholar]
Disclaimer/Publisher’s Note: The statements, opinions and data contained in all publications are solely those of the individual author(s) and contributor(s) and not of MDPI and/or the editor(s). MDPI and/or the editor(s) disclaim responsibility for any injury to people or property resulting from any ideas, methods, instructions or products referred to in the content. |
© 2023 by the authors. Licensee MDPI, Basel, Switzerland. This article is an open access article distributed under the terms and conditions of the Creative Commons Attribution (CC BY) license (https://creativecommons.org/licenses/by/4.0/).

































