Abstract
It is important to determine typical layouts of residential buildings, even in developing countries for standardization towards a zero-carbon society. In Indonesia, housing development in cities continues rising in parallel with high urbanization rates. This study aims to determine the typical layouts of apartments in Indonesia through qualitative and quantitative building typological analyses. A hierarchical cluster analysis was conducted using the building drawing information constructed across Indonesia from 1986 to 2021. A total of 268 public apartments and 268 private apartments from several major cities were included in the datasets, respectively. As a result, six typical layouts for public apartments and thirteen typical layouts for private apartments were determined for both 1BR and 2BR units. Furthermore, four typical unit layouts from public and private apartments associated with building-scale classifications were proposed, respectively, as the base models for the current typical apartments in Indonesia. The results showed that Indonesian public apartments tended to sacrifice semi-open spaces, such as a wide corridor and an internal void space, to increase the size of units and the number of rooms. Meanwhile, most private apartments were constructed with double-loaded corridor systems without internal voids, which potentially cause poor natural ventilation. The proposed typical layouts will be useful for further building simulations as standard testing models, such as to determine the appropriate cooling techniques for low-carbon apartments.
1. Introduction
In architectural design, standard design and design prototypes have often been used by architects as design guidelines. The use of standard design had already started when architecture was valued as an industrial product. In 1936, Neufert published a standard design for the German building industry to facilitate a rapid design process in practice [1]. Neufert explained the standard design as the minimum requirement for a building to function well. As often found in regulatory-based building codes, the minimum requirements ensure the levels of safety, health, amenity and sustainability, while the standard design has the role of basic design guidelines as well as a planning tool to improve building performance [2]. Many professional associations or academic institutes, such as the Architectural Institute of Japan (AIJ), set standard designs for residential buildings [3]. In some other countries, a standard design may also be developed by the government. For example, an apartment design guideline was published by the Victorian State Government in 2016 to provide services for healthier citizens [2]. Design prototypes can be supplemented with an ideal design concept in accordance with the specific goals. If the objective is to develop a better energy-performance building, a prototype design can be proposed to enhance several aspects, such as passive design, natural lighting design, building energy retrofitting, etc. [4]. The study conducted by Tereci et al. (2013) confirmed that there is an impact of building typology on building energy performances [5].
On the other hand, there are several typological studies that classified buildings in different approaches. Schaefer et al. [6] explored a building typology as a reference building, while Famuyibo–Duffy et al. [7] referred to archetypes. The reference building may be understood as a typical type of building that represents similarities in terms of a function and climatic adaptations, as cited by the Energy Performance of Buildings Directive (EPBD) [8]. In general, while the reference building uses actual building data as the main information, the archetypes utilize a statistical analysis in which numerous building databases are required. Currently, the reference building is the most common approach, as in a study conducted by Attia et al. (2012) where more than 490 residential buildings in Egypt were surveyed and classified to evaluate the building’s financial and energy performance by their average energy consumption [9]. A similar approach was made by Horvarth (2014) who examined the potential of adopting renewable energy to building envelopes with a solar panel on the roof [10]. Meanwhile, using big data on building databases, the EU specified building typologies using the archetype approach, referring to the Typology Approach for Building Stock Energy Assessment (TABULA), which has been widely used in European countries [11]. A building typological study using the archetype approach was also performed by Loga et al. (2016) who compared building energy consumption among several EU countries [12]. With regard to residential buildings, P. Berrill et al. (2021) classified housing types into four levels for a residential energy demand assessment in the US [13] using the same approach. The objectives of the previous studies include not only the analysis of the physical building [4,5,9,12,13] but also the aspect of user’s preference as discussed by Ishikawa et al. [14]. As such, the reference buildings or archetypes determined through a typological analysis are considered to be crucial as a base model for further assessments of building performance, often based on the building simulations.
Rapid urbanization demands a high growth of the basic infrastructure, especially affordable housing [15]. In Indonesia, for example, housing development in cities keeps on rising in parallel with the high urbanization rates. According to the recent data in 2020, there are still 7.64 million units of housing needs of which 84.8% are for low-income groups [16]. Globally, towards the target of carbon neutrality by 2050, all new buildings together with approximately 20% of existing building stock would need to be zero-carbon-ready by 2030 [17]. The residential sector is particularly important because the percentage of residential buildings is usually larger than the other types of buildings in terms of energy consumption and carbon emissions [18]. According to the IEA [19], Indonesia is one of the Southeast Asian countries that has ambitious targets for future climate goals. The report stated that the year 2060 is the target for Indonesia to reach net zero emissions after the Glascow Pact was signed in 2021. Hence, it is important to determine typical layouts of residential buildings even in developing countries, such as Indonesia, for standardization towards low-carbon or zero-carbon buildings.
In Indonesia, so far, there are only a few studies related to the apartment building typology. Sueca (2017) classified the Indonesian apartments based on several aspects, including the type of ownership, developers, construction and dwelling size [20]. In another study, Faradisa et al. (2020) classified the public apartments in Indonesia based on the type of management with different levels of authority [21]. A specific typological study related to the physical attributes of Indonesian apartment buildings using actual building data or building databases has never been conducted. However, cooling techniques towards low-carbon or zero-carbon houses have been studied in this region, such as natural ventilation [22,23], night ventilation [24,25] and radiant cooling [26,27]. Moreover, many studies attempted to utilize the thermal storage effects using PCMs [28,29,30,31,32,33]. To obtain general findings applicable for any other buildings, the standardization of base models is highly required.
This study aims to analyze the typical layout of current apartment buildings in Indonesia and propose the base models for the future use of building simulations related to building energy performances and thermal comfort. In Indonesia, it has been more than 30 years since the first public apartment was built. Low-cost public apartment development has become an important government policy to foster housing provision with a higher density of population in urban centers, especially for low-income groups. For example, since 2007, the Indonesian government has initiated a national project called “One Thousand Towers” to boost the development of apartments, followed by the “One Million Housing Program” to accelerate the housing provision in 2015 [16,34]. From the early era of apartment building construction to the present, many building prototypes of apartment design have been implemented in Indonesia. However, there are few comprehensive studies on the typical layout of apartment buildings, not only in Indonesia, but also in most Asian developing countries despite its importance.
This study presents the results of a comprehensive classification of the typical layout of apartment buildings in Indonesia. In Section 2, methods for data collection and statistical analyses are described. The results of classifications for public apartments and private apartments are presented, respectively, in Section 3. A transition of apartment layouts is discussed in Section 4. This study will be useful as the baseline for future prototypes of public and private apartments in Indonesia, and they can be adopted in other countries with similarities in climatic, geographical and socio-economic conditions. The proposed typical layout will also be useful as a standard testing model for various building simulations for zero-carbon goals.
2. Methodology
2.1. Data Collection for Public Apartments
In most developing countries such as Indonesia, the provision of public housing is highly demanded to reduce housing backlogs, especially in urban areas. In Indonesia, public housing, especially in relatively densely populated urban areas, tends to adopt the flat or apartment type. As described before, the provision of public apartments, called Rusunawa (RS), started in the 1980s and approximately 49,615 units of public apartments have been provided across the country until 2020 [35]. The current design guidelines for public apartments in Indonesia refer to the design standards as regulated by the Ministry of Public Works and Housing [36], as well as the design prototypes that have been developed from time to time.
We acquired a total of 268 technical drawings of RS from each of the selected cities as primary data for the classification (Table 1). There are 896 RS apartment buildings across Indonesia as of the latest data obtained from the Ministry of Public Works in 2022. According to the Slovins Formula (Equation (1)) [37], the required sample size is 265 and more, with a confidence level of 5%, and thus, the present sample size (268) is considered valid. The construction year of the obtained data ranges from 1986 to 2021, which covers almost the whole period of RS constructions. In Indonesia, cities are classified into the following four categories in terms of their population: megapolitan city (>10 million citizens), metropolitan city (>1 million citizens), large city (>500,000 citizens), medium city (100,000–500,000 citizens) and small city (50,000–100,000 citizens). We selected several cities representing each category, although the small city category was not selected since there were only a few public apartments within the cities/towns. As shown in Figure 1, 20 cities were selected, where approximately 75% of the overall data were collected from the megapolitan city, i.e., Jakarta, and metropolitan cities, including Surabaya and Bandung, while the data from large and medium cities accounted for approximately 25%. The sampled RS apartment buildings are listed in the separated dataset.
where is the number of required samples, is the population size and is the margin of error (0.05).
Table 1.
Acquired samples of public apartments in the selected cities with respect to the city categories.
Figure 1.
Distribution of public apartments in the selected cities across Indonesia.
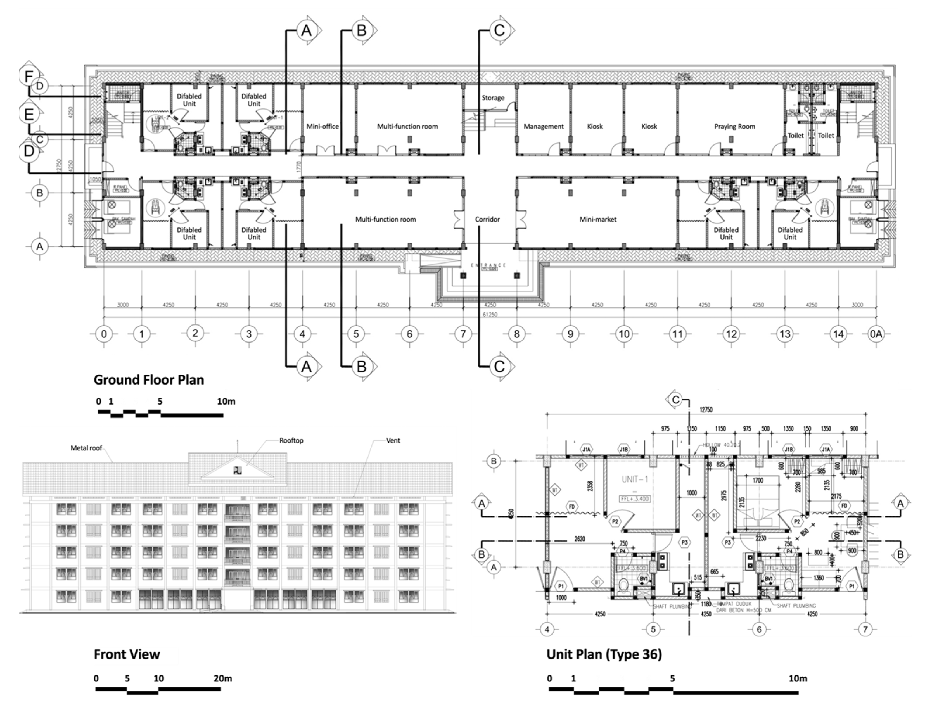
Figure 2 shows one of the samples of building drawings for a public apartment located in Bandung, which is one of the typical mid-rise public apartments. For a public apartment, there is only one typical unit-layout plan for each building, whereas private apartments normally consist of various unit types. Nevertheless, the spaces located on ground level in public apartments are usually allocated for various types of public functions, as well as special units for persons with disabilities. The type of architectural drawings collected varies, including detailed engineering design plans, as-built drawings and prototype drawings. It should be noted that not all the building information collected had the same level of information. Some of them were attached with detailed materials and technical specifications, while others were not. This condition appeared due to difficulties in gathering the information from different stakeholders, especially for the old buildings built before 2007. This is because there is no sufficient archive management for public apartment project documentation in Indonesia.
Figure 2.
A sample drawing of public apartment buildings.
2.2. Data Collection for Private Apartments
Since private apartments have their own specific target groups based on market demands, the distribution of private apartments is not evenly spread across Indonesia. Thus, most private apartments are situated in major cities that are densely populated. We, therefore, conducted the data collection for the following nine major cities, including Jakarta, Bogor, Depok, Tangerang, Bekasi, Bandung, Surabaya, Makassar and Medan (see Figure 3). All the selected cities are categorized into megapolitan and metropolitan cities (see Table 2).
Figure 3.
Distribution of private apartments in the selected cities across Indonesia.
Table 2.
Acquired samples of private apartments in the selected cities with respect to the city categories.
Meanwhile, private apartments are classified into the following two types with respect to the selling prices: condominium (CD) and Rusunami (RM). Both CD and RM can be categorized as commercial private apartments [38], but in the housing market, CD mainly targets the upper-middle-class, while RM is for the low-cost owned apartments. The type of information collected for the private apartments includes building key plans, typical unit drawings and 3D visual images, among others (Figure 4). These data were obtained mainly from real estate agencies and related websites. There are a total of 268 drawings investigated, as shown in Table 3, comprising 470 samples of one-bedroom units (1BR) and 417 samples of two-bedroom units (2BR). According to Indonesian Central Statistics Bureau [39], there are 8887 units of CD and RM across Indonesia as of 2018. Based on Equation (1), the required sample size can be calculated to be 383 units or more with a confidence level of 5%, and therefore, the present sample size (887) is considered valid. The list of the collected private apartments is included in the separated dataset.
Figure 4.
A sample drawing of private apartments.
Table 3.
Sample size of private apartment buildings and units.
2.3. Classification
The classification was conducted through a combination of qualitative and quantitative analysis for public and private apartments, respectively. Firstly, the apartment samples were classified qualitatively through visual observation of the architectural drawings at the building level and the unit level, respectively. For the public apartments, the building-scale qualitative classification was performed with respect to the building height, corridor type and type of main construction materials for the upper structure (Table 4). According to the Indonesian government regulation, the building height can be categorized into five types, low-rise buildings (≤4 floors), medium-rise buildings (5–8 floors), high-rise buildings (>8 floors), skyscrapers (40–100 floors) and super-tall towers (>100 floors). However, for public apartments, there are only three categories available: low-rise buildings (L), medium-rise buildings (M) and high-rise buildings (H). The type of corridors includes the single-loaded corridor (SLC) and double-loaded corridor (DLC), whereas the type of main upper construction comprises the precast system (PC) and conventional reinforced concrete (CRC). On the unit-scale qualitative classification, we first classified them in terms of unit size, consisting of Types 21, 24, 27, 30, 36 and 45 (all represent their unit sizes in square meter). In addition, the classification was also performed for the type of floor plans that includes the type of open plan (O) and fixed plan (F), as well as for the balcony availability.
Table 4.
Main categories for public apartment classification.
Meanwhile, for the private apartments, the qualitative classification on the building scale was performed based on the building type (i.e., Rusunami (RM) or Condominium (CD)), and the building height (Table 5). The classification of building height includes the following three types: less than 21 floors (H1), 21–40 floors (H2) and more than 40 floors (H3). The unit-scale qualitative classification adopts the same classification as the public apartments (see Table 4).
Table 5.
Main categories for private apartment classification.
Figure 5 illustrates several classifications made for both public and private apartments during this phase (i.e., qualitative analysis). The first classification is due to the availability of an individual living room and the connection with the bedrooms, which is divided into three types. Type A of the 1BR represents the unit type without a dedicated living room, whereas Type B has a dedicated living room adjacent to the bedrooms elongated on one side of the unit. Meanwhile, Type C has a dedicated living room adjacent to the bedrooms located near the corridor or the outdoors. For the 2BR units, Type D has two bedrooms positioned along the side of the unit, while in Type E, the bedrooms are located towards the outdoors. The second classification is based on the type of toilet in the unit. In the 1st Type, the toilet is positioned near the corridor, whereas it is located towards the outdoors in the 2nd Type. Meanwhile, the 3rd Type positioned the toilet adjacent to the bedroom on the same side of the unit. The 4th type is categorized as the unit that has no indoor toilet. The third classification is due to the type of balconies in the unit. Type A has a balcony inside the unit, while Type B has a half-size balcony outside of the unit. Type C has a full-scale balcony on the outside of the unit, whereas Type D has no balcony. The results of the above qualitative classifications were provided with certain codes used as dummy variables in the following quantitative analysis.
Figure 5.
Unit-level quantitative classification for both public and private apartments.
During the second phase, quantitative classifications were performed through a principal component analysis (PCA) and a cluster analysis for public and private apartments at the unit levels, respectively. The number of variables comprising the above-mentioned dummy variables and all the other quantitative unit-level dimensional information was reduced by PCA. The selected quantitative variables used for public apartments include the total floor area, window-wall ratio (WWR), window-floor area ratio (WFR), ceiling height and balcony size, whereas those for the private apartments include the total floor area, bedroom size, toilet size, balcony size, number of balconies and number of windows. This unit-level classification was performed for the 1BR unit type and the 2BR type, respectively. Secondly, the hierarchical cluster analysis was conducted using the extracted principal components [40]. The number of principal components was determined by the eigenvalue > 1. The sample adequacy was evaluated using the Kaiser–Meyer–Olkin (KMO) and Bartlett’s Test of Sphericity measures, where if the value was more than 0.5, the result was considered acceptable [41]. The Ward Linkage method and the Squared Euclidean distancing method were used to form the dendrogram for the cluster analysis. As stated by Joseph F. Hair et al. (2009), a cluster analysis uses multivariate data to identify the most similarities in characteristics among data samples that represent each cluster [42]. Then, the classification on the building scale was linked to that of the typical layout on the unit scale. Finally, based on the matrix charts showing the combinations of typical units and buildings, the most typical unit types were extracted and proposed as the typical layout of the current Indonesian apartments. All of the above-mentioned statistical analyses were performed using SPSS version 28.
3. Results
3.1. Classification of Public Apartments
3.1.1. Qualitative Analysis
As shown in Figure 6, the proportion of high-rise public apartments has increased especially in recent years. Before 2007, there were less than 5–6% of high-rise public apartments in Indonesia, but this number increased to more than 16% after 2015. It was found that most public apartments (75%) were constructed of conventional reinforced concrete, compared with those of precast systems (25%). According to the information from several public apartment developers, the precast systems were considered to be insecure due to some water leaking that occurs frequently, particularly in utility areas. It was also found that the double-loaded corridor types accounted for 59.7% of the buildings, while single-loaded corridor types accounted for 40.3%. As a result of the primary visual observation, it can be concluded that low-rise apartments (L) constructed of conventional reinforced concrete (CRC) with a double-loaded corridor system (D), which is coded as CRC-L-D, has the highest frequency among public apartments in this survey, accounting for 35.4% of all samples. This is followed by the mid-rise apartments (M) constructed of conventional reinforced concrete with a single-loaded corridor system (S), which is coded as CRC-M-S with 20.5%, followed by the high-rise apartments (H) of a precast system (PC) with a double-loaded corridor system (PC-H-D) with 13.1%.
Figure 6.
Construction periods of public apartment buildings.
Overall, public apartments had an average of 5.8 stories. Most public apartments were low-rise buildings (3 to 4 stories) (50.4%), while the others were mid-to-high-rise buildings (5 and more stories) (49.6%). The average number of units in each public apartment was approximately 100 units. The low-rise buildings had an average of 50 units, while that of the mid-to-high-rise buildings ranged from 94–427 units per building. The average floor area ranged from 24–30 m2 for 1BR, whereas that for 2BR ranged from 32–38 m2. Meanwhile, WWR and WFR ranged from 17–28% and 23–33% for 1BR, while those for 2BR were 21–25% and 22–25%, respectively.
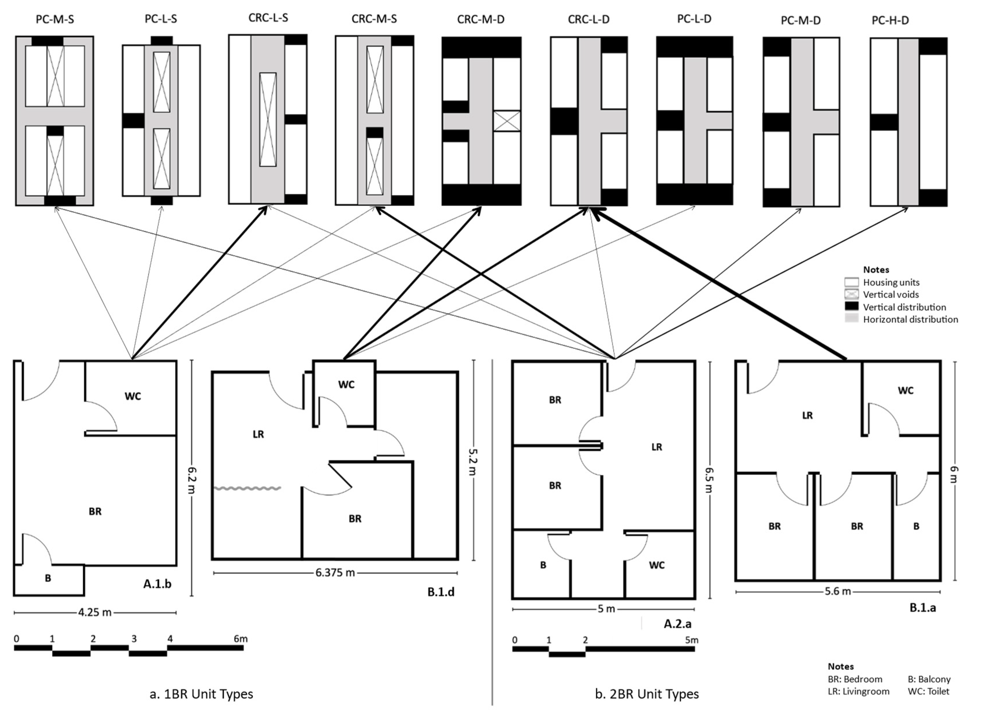
As a result of the above primary qualitative analysis, a total sample of 268 public apartments was classified into 11 major building types with specific codes as illustrated in Figure 7. The building codes indicate “upper building structure”, ”building height”, and ”corridor type” (see Table 4). This classification is based on similarities in spatial configuration and arrangements, and there are various differences in the detailed designs for each type. The simple slab-based building shape is the most commonly used with several variations on the position and type of housing units, horizontal circulation (corridor), vertical circulation (stairs or elevators) and the use of vertical voids. According to the data samples, only 34% of buildings were equipped with vertical voids, while the others were not. The results showed that only 25% of public apartments adopted this feature after 2015. As shown in Figure 7, CRC-L-D was found to be the most typical building type of the public apartments (35.5%), followed by CRC-M-S (19.8%), PC-H-D (13.1%) and CRC-L-S (11.6%).
Figure 7.
Building-scale qualitative classification for public apartments.
At the unit level, generally, Types 24 and 36 were found to be the typical types of public apartments with 35.4% and 35.1%, respectively. It was found that 60.8% of public apartments had balconies, while the rest did not. On the 2BR unit type, the majority of the balconies were positioned inside the units (68%) and not extended toward the outdoors. In contrast, for the 1BR unit type, most balconies were positioned on the outside of the unit (93.8%). The average size of the balcony for the 2BR type was found to be larger than that for the 1BR type with 2.67 m2 and 2.17 m2, respectively. Most public apartment units were designed as fixed-plan types with 71.3%, as opposed to the open-plan or studio type with 28.7%. As a result of the above primary-qualitative analysis, it can be said that the fixed-plan unit type (F) with a unit size of 36 m2 without a balcony (N), which is coded as 36-N-F, is the most prevalent unit type in the public apartments (22.8%). Furthermore, balconies were found to be the most frequently used in Types 24 and 45, while only 34% of all Type 36 had balconies. It was observed that all of Types 30, 36 and 45 commonly used a fixed partition (F) for the bedroom, while Types 21 and 24 generally had an open layout, also known as a studio-type unit.
Specifically, for the low-rise building category, there were only three types of unit sizes, including Types 24, 36 and 45. As discussed before, most low-rise public apartments were built using conventional reinforced concrete (CRC) for the main upper structure (93%). Under this category, the double-loaded corridor system was commonly used (72.5%). Other than that, there were no clear trends in the availability of balconies or the type of layout. It can be concluded that the low-rise apartment buildings constructed of conventional reinforced concrete (CRC) with a double-loaded corridor system (D), consisting of Type 36 without a balcony (N) with a fixed-type (F), which is coded as CRC-36-L-N-F-D, was the most common in this survey with 28.2%.
Meanwhile, it was found that there were three commonly used unit sizes for the mid-rise apartment buildings, which were Types 24, 36, and 30 with 43.8%, 22.9% and 19.8%, respectively. In the mid-rise category, almost all the 1BR and 2BR units were designed as fixed-plans (80.2%), while the rest was a studio-type. It was also found that for this category, more than 73% of buildings were equipped with balconies. Overall, the most typical combination for mid-rise public apartment buildings (M) was those constructed of conventional reinforced concrete with a single-loaded corridor system, comprising Type 24 units equipped with a balcony, using a fixed-type layout, which is coded as CRC-24-M-W-F-S with 22.9%.
For the high-rise building category, it was found that Type 36 equipped with a balcony was the most frequently used type. All high-rise public apartments adopted the double-loaded corridor system (D) with fixed-plan (F), comprising either one or two bedrooms. With 75.7% of the samples in the high-rise building category, the combination of PC-36-H-W-F-D was found to be the most commonly used.
3.1.2. Quantitative Analysis
A total of 14 and 11 variables, including the dummy variables obtained from the above-mentioned qualitative analysis, were involved in the PCA for the 1BR and 2BR unit types, respectively (Table 6). As a result, four components were identified, respectively based on the eigenvalue of >1. In PCA, KMO test values were all over 0.5 for both 1BR and 2BR datasets, which means that the index of factorial simplicity (IFS) fulfilled the sampling adequacy requirement [27]. The Bartlett’s test of sphericity values for both 1BR and 2BR datasets was also significant (<0.001), showing that the variables used were suitable for the analysis. Then, we conducted the hierarchical cluster analysis using the factors from the PCA analysis.
Table 6.
List of variables on public apartments used for quantitative analysis.
After observing the data samples of each cluster, we selected the four clustering options as the most appropriate for the 1BR public apartment unit type. The four clusters include Clusters 1.1–1.4, sharing a balanced sample population of 19.1% to 32.7%. Each cluster has different characteristics. Cluster 1.1 is dominated by Type A1b (41.5%), while the other Clusters 1.2, 1.3 and 1.4 are characterized by Types A1d, B1b and B1d with 96.8%, 96.7% and 98.0%, respectively. On the other hand, the 2BR public apartment units were classified into two clusters, namely Clusters 2.1 and 2.2. Cluster 2.2 is dominated by Type D2a (66.7%), while Cluster 2.1 is fully characterized by Type E1a (100%). The specifications and illustrations of the selected typical layouts of 1BR and 2BR for public apartments are presented in Table 7 and Figure 8.
Table 7.
Specifications of the typical layouts for public apartment units; (a) 1BR and (b) 2BR.
Figure 8.
Typical layouts for public apartment units; (a) 1BR and (b) 2BR.
In order to link the unit-scale typical layouts with the building-scale classification, we performed a frequency analysis among all data samples of each 1BR and 2BR public apartment unit type (Figure 9 and Figure 10). As indicated in Figure 9, the four typical 1BR unit types (i.e., A1b, A1d, B1b and B1d) are often used in low-rise (L) and medium-rise (M) public apartments with the use of conventional reinforced concrete (CRC) for the upper structures. Type B1d, the most commonly used 1BR unit type, is highly correlated with double-loaded corridor systems (D). On the other hand, Type A1b, the second most common 1BR unit type, is evenly used either on the single or double-loaded corridor system. As discussed before, mid-to-high-rise apartments mainly adopt 2BR units rather than 1BR units. As shown in Figure 10, particularly, Type D2a, the most prevalent type of 2BR units, is applied in high-rise apartments, specifically, PC-H-D, even though it is also found in mid- and low-rise apartments. On the other hand, Type E1a, the second most frequent type in 2BR, is only used in the low-rise public apartments, CRC-L-D.
Figure 9.
Correlation between unit-scale typical types and building-scale classifications for 1BR of public apartments.
Figure 10.
Correlation between unit-scale typical types and building-scale classifications for 2BR of public apartments.
As described above, for both 1BR and 2BR types of public apartments, typical unit layouts can be broadly classified into four and two types, respectively (see Figure 8). We selected the most frequently adopted unit types from each and proposed them as the most typical layouts. Figure 11 shows the selected layouts based on the frequencies linked to the building-scale classification. As shown, Types A1b and B1d were selected for the 1BR type, whereas Types D2a and E1a were extracted for the 2BR type. Type B1d is found to be the most dominant layout in 1BR type (38.7%) and most of them are adopted in mid-rise buildings constructed of conventional reinforced concrete with the double-loaded corridor system (CRC-M-D), while Type A1b (13.2%) is a studio-type that is commonly used in low-rise apartments with a single-loaded corridor system with a vertical void space (CRC-L-S). Meanwhile, the results show that Type D2a is the most commonly used layout in 2BR type (71.7%) that is adopted especially in mid-rise public apartments constructed via conventional reinforced concrete with the use of a single-loaded corridor system (CRC-M-S). The second typical type for 2BR is Type E1a, which accounts for 28.3% of data samples and all of them are used in the low-rise public apartments constructed of conventional reinforced concrete with the double-loaded corridor system (CRC-L-D).
Figure 11.
Proposed typical unit layouts for public apartments associated with building-scale classification; (a) 1BR and (b) 2BR.
3.2. Classification of Private Apartments
3.2.1. Qualitative Analysis
Overall, there were more CDs than RMs in this survey with 82% and 18% (n = 268). As shown in Figure 12, during the period of 2007–2015, RM development has been accelerated by the “One thousand towers” policy issued by the central government to develop either RM and RS. After showing a decrease during that period, after 2015, the percentage of CD increased greatly from 73% to 87%. This is probably because Indonesian people tend to demand more convenient apartments with higher living standards than they did in the past, along with the increase in household income and economic growth. It was found that within all CDs data collected from 1983 to 2022, the average price of CD was approximately 1412 USD/m2, which is about 473 USD more expensive than that of RM. Meanwhile, it was found that the majority of CDs and RMs (76% and 52%) were constructed as slab high-rise building blocks with double-loaded corridors (more than 90% for both). Although some CDs had more than 40 stories, most CDs had between 21 to 40 stories, comprising 63% of all CDs. In contrast, RMs had less than 40 stories, comprising 55% of 21–40 stories and 45% comprising fewer than 21 stories.
Figure 12.
Construction periods of private apartment buildings.
As described before, firstly, we qualitatively classified 1BR units into three primary categories: A, B and C at the unit scale (see Figure 5). For both CD and RM, Type A (studio type) comprised the majority with 76% and 88%, respectively. Despite the fact that Type C accounted for 16% of 1BR in CDs, it only comprised 5% in RMs. Type B had almost the same proportions in RMs and CDs, which is around 8%. It was observed that between 1983 and 2022, the percentage of Type A decreased from 91% to 75% in CDs. Similarly, the corresponding percentage of RMs decreased from 100% to 80% between 2005 and 2022. This implies that rather than a studio-type unit, residents in Indonesia tend to demand separated bedrooms and living areas, such as Types B and C.
Meanwhile, there are two primary categories, D and E, for 2BR (see Figure 5). It was found that Type E was the most prevalent type among CDs, accounting for 53%, followed by Type D (47%). In CDs, the percentage of Type E increased significantly between 1988 and 2016 from 39% to 63%, before dropping to 38% in the following years. This implies that Type D in CDs is a reversal layout. In contrast, Type D was twice as common as Type E in RMs with 70% and 30%, respectively. Between 2005 and 2022, the proportion of Type D increased gradually from 67% to 76%, whereas the corresponding percentage for Type E reduced from 33% to 24%.
At the building scale, it was found that there are, at least, five commonly used building types, including the simple I-shape, H-shape, L-shape, T-shape and U-shape slab building blocks (see Figure 13). More than 75% of the private apartments use the simple rectangular slab building block (I-shape) with the use of a double-loaded corridor system for the main horizontal distribution, and a centralized single core for the vertical distribution. Unlike public apartments, almost none of the private apartments had a vertical void space inside the buildings.
Figure 13.
Building-scale qualitative classification for private apartments.
Furthermore, we classified the private apartments into five groups in terms of apartment types (CD and RM) and the building height, as illustrated in Figure 14, for further quantitative analysis. As shown, the classified groups are coded as CD-H1, CD-H2 and CD-H3 for condominiums, and RM-H1 and RM-H2 for Rusunami.
Figure 14.
Classification of private apartment buildings in terms of apartment types and height.
3.2.2. Quantitative Analysis
Using the same quantitative method used for the public apartments, the PCA and cluster analysis were conducted for the data samples of private apartments with the variables listed in Table 8. As shown in Figure 15 and Table 9, six clusters were extracted for 1BR as a result. Types A1a, A1b, A1c, A1d and A2a are all studio types with different specifications, such as unit size and balcony type, in which, A1a comprised the largest cluster with 42%. Type A1a has an average unit size of 22.1 m2, whereas a restroom is located on the side facing the hallway, and a partial balcony is allocated inside the unit. Type C1b has a separated living room, making it the largest unit type with 38.7 m2.
Table 8.
List of variables on private apartments used for quantitative analysis.
Figure 15.
Typical layouts for private apartment units of 1BR.
Table 9.
Specifications of the typical layouts for 1BR private apartment units (n = 395).
As discussed before, 2BR units were primarily classified into two types, D and E (see Figure 5). Two bedrooms of Type D are organized along the depth of the unit side by side, whereas those of Type E are arranged along the width of the apartment. Unlike public apartments, private apartments have various unit types for Types D and E, respectively. The results of cluster analysis for 2BR are shown in Figure 16 and Table 10. As shown, five clusters were extracted for Type D, whereas two clusters were found in Type E. In Type D, Type D3a was the largest group, accounting for approximately 14.2%, followed by D2a (11.9%) and D1a (10.5%). Type D3a contains a bathroom beside the bedrooms, as well as a half balcony attached to a separate living area. Types D1a and D2a differ by the position of the toilet, whereas Type D1b provides an extended half balcony towards the outside.
Figure 16.
Typical layouts for private apartment unit types of 2BR.
Table 10.
Specifications of the typical layouts for 2BR private apartment units (n = 296).
Meanwhile, Type E3a was the most prevalent type in Type E for 2BR, accounting for about 34.5%. In this design, two bedrooms are positioned horizontally with an effort to have additional windows for ventilation and daylighting. The half balcony is added to the living room which did not extend outside, while the toilet is situated at the corner between the master bedroom and corridor. Figure 16 shows that Type E3a only differs slightly from Type E3b in terms of balcony arrangement, whereas the latter has a half-sized extended balcony towards the outdoors.
The correlations between unit-scale typical types and building-scale classifications for private apartments are illustrated in Figure 17 and Figure 18, where we classified the private apartments into five groups on the building scale. As shown in Figure 17, Type A1a is the most prevalent 1BR unit type in both CDs and RMs, where it is particularly dominant in CDs (76%). It can be seen that each of the private apartments, especially CDs, adopts various types of 1BR units, unlike the public apartments. Similarly, various types of 2BR units are seen in each of the private apartments, particularly in CDs (Figure 18). In general, most of the 2BR unit types are adopted more in CDs than those in RMs. The most commonly used unit type is Type E3a, which is mostly adopted in high-rise CD apartments (CD-H2).
Figure 17.
Correlation between unit-scale typical types and building-scale classifications for 1BR private apartments.
Figure 18.
Correlation between typical unit-scale types and building-scale classifications for 2BR private apartments.
As analyzed for the public apartments, we selected the most frequently adopted unit types from each of Types D and E and proposed them as the most typical layouts, which are associated with the building-scale classification (Figure 19). As shown, Types A1a and C1b were selected for 1BR unit type, whereas Types D3a and E3a were chosen for the 2BR unit type, respectively. The most correlated types on the building scale are then connected to each typical unit. All typical unit types are associated the most with CDs with 21 to 40 stories (CD-H2).
Figure 19.
Proposed typical unit layouts for private apartments associated with building-scale classification; (a) 1BR and (b) 2BR.
4. Discussion
As discussed before, there were at least two significant governmental policies that influenced the transition of apartment design of both public and private apartments in Indonesia. They are the policies of the “thousand towers development” in 2007 and the “one million housing development” in 2015. Figure 20 shows the overall numbers of apartment samples before 2007 (i.e., thousand towers development), during 2007–2015 and after 2015 (i.e., one million housing development), and Figure 21 depicts the proportions of classified typical layout types for public apartments, as well as private apartments, during these periods.
Figure 20.
Number of apartment samples before 2007, during 2007–2015 and after 2015; (a) public apartments and (b) private apartments.
Figure 21.
Transition of typical layouts for apartment units; (a) 1BR of public apartments, (b) 2BR of public apartments, (c) 1BR of private apartments and (d) 2BR of private apartments.
Overall, the numbers of both public and private apartments have been rapidly increasing across Indonesia, largely due to the above-mentioned governmental policies (Figure 20). In the case of public apartments, the average unit size increased from 27.1 m2 before 2007 to 31.8 m2 in 2007–2015 and 32.3 m2 after 2015. Such increase trends can be seen in public housing in various countries [43,44,45,46,47], although the above-mentioned current Indonesian average unit sizes are still far from the average sizes of other countries, such as in Osijek, Croatia (69.2 m2) [44], Beijing, China (87.0 m2) [45], Sao Paulo, Brazil (85.0 m2) [46] and Malaysia (100.2 m2) [47]. In Indonesia, the number of rooms increased for 1BR units at the same time, and therefore the individual room size was reduced instead. As shown in Figure 21a, Types B1b-d, which have a dedicated living room, emerged after 2007, accounting for 72.0% in 2007–2015 and 57.9% after 2015 (see Figure 8). The above tendency can also be seen in elsewhere. For example, in Cheongju, South Korea, apartments built after the second half of the 1980s, in particular, extended the functionality and independence of the master bedroom by attaching a water closet and/or dressing room [43]. Similarly, in Ankara, Turkey, Guney and Wineman observed that there were apparent transformations in the spatial layout of apartments from more integrated to more segregated plans, owing to changing family and social structures, privatization of the individual in the household, as well as privatization of the family in society [48].
To increase the size of units and the number of rooms, Indonesian public apartments tend to sacrifice semi-open spaces instead. For example, an internal void space used to be a common feature before 2015, but it became unpopular afterwards (Figure 22). Such internal voids were found to enhance natural ventilation and daylight in previous studies [49,50]. Before 2007, and between 2007–2015, more than 40% of public apartments still adopted vertical voids, while after 2015, they diminished to only 25%. This transition was in line with the change of the unit layout system. Before 2007, most of the Indonesian public apartments (86%) were constructed with a single-loaded corridor system, but the share of double-loaded apartments rapidly increased from 51% in 2007–2015, and 70% after 2015. These changes may reflect the unit layout design. As shown in Figure 21b, for 2BR units, Type E1a became the majority after 2007. On the single-loaded corridor system, bedrooms are designed on the external wall side to ensure natural ventilation and daylight, since the corridor side lacks the voids. Accordingly, the width of corridors tends to reduce from 2.3 m before 2007 to 1.8 m after 2007, on average. This may also affect the thermal performance for corridor and indoor spaces [49,50].
Figure 22.
A typical single-loaded public apartment in Bandung (left) and a typical double-loaded public apartment in Jakarta with a corridor width of 1.8 m (right).
In some tropical countries, apartment design evolved particularly to facilitate natural ventilation. In Singapore, for example, unique elements such as irregular unit forms, an atrium and the location of the utility space are often incorporated in the apartment design to stimulate natural ventilation [47,51]. The atrium-type block plan, which appeared in the 2000s, can be considered a well-regionalized plan to adapt to a tropical climate and a traditional culture, uniquely found in Singapore and Malaysia [51]. These tendencies are contrary to the above-mentioned tendencies seen in Indonesia, in which these semi-open spaces tend to be sacrificed for increasing occupied spaces. In contrast, in the case of private apartments, the average unit size slightly decreased from 38.7 m2 before 2007 to 32.4 m2 in 2007–2015 and less than 31 m2 after 2015, which is a similarly small size compared to public apartments. Unlike public apartments, the design trends of private apartments are mainly driven by market demands. In general, smaller apartments could offer more affordability and ease of maintenance. As shown in Figure 21c, more than 90% of the 1BR units are studio types, i.e., Types A1–A2 (see Figure 15). In private apartments, almost all the apartments are constructed with double-loaded corridor systems without internal voids. Therefore, the majority of 2BR units have their bedrooms on the external corridor side (Figure 21d). Double-loaded high-rise apartments may counter poor natural ventilation, especially on the leeward side of the building [50,52].
On the other hand, a balcony seems to remain as one of the common features in Indonesian apartments. A study conducted by Kisnarini et al. (2018) suggested that a balcony is a useful feature to improve indoor thermal conditions, as it can be used as sun shading [53]. It was reported that the balcony, especially for public apartments, tends to be utilized as an extension of an interior space, such as a living room [54]. In this survey, the average size of a balcony in public apartments was 2.5 m2 throughout the years (see Figure 8). In contrast, the size of a balcony in private apartments tended to decrease. It was 2.9 m2 before 2007, but decreased to 2.0 m2 in 2007 to 2015, and to 2.1 m2 after 2015, on average. In Ankara, for example, starting with the first apartments, balconies almost always exist in the plans with their size increasing over time [48]. After the 1950s, a significant increase was observed in the number of balconies, as well as the area that they cover in relation to the total area of the houses [48].
Figure 23 and Figure 24 show the proportions of typical layouts for apartment units by cities. As indicated, the allocations of the typical layouts are different depending on the city categories for public apartments (Figure 23), and even each city level for private apartments (Figure 24).
Figure 23.
Proportions of typical layouts for public apartments by city categories; (a) 1BR and (b) 2BR.
Figure 24.
Proportions of typical layouts for private apartments by cities; (a) 1BR and (b) 2BR.
Furthermore, Figure 25 depicts the building orientations for public apartments and private apartments, respectively. Ju and Oh (2020) compared the apartment design between Korea and Singapore. The results indicated that in Singapore’s apartments, the orientation of buildings and rooms is not important, whereas in Korea, the south-facing orientation is crucial to capture solar heat in winter [51]. Similarly, the building orientation is not usually prioritized in Indonesia. This tendency can be seen especially for private apartments, as shown in Figure 25b. Meanwhile, based on the visual observation, most public apartments were found to be located along with rivers or major roads. As these rivers and roads are often situated on the north–south or east–west axis, 30–40% of the public apartments are located along these axes (Figure 25a).
Figure 25.
Building orientations for (a) public apartments and (b) private apartments.
5. Conclusions
The number of mid-to-high-rise apartments is rising in Indonesian cities due to the population increase and rapid urbanization. This study determined typical layouts of Indonesian apartment buildings, including public apartments, so-called Rusunawa (RS), and private apartments, comprising Rusunami (RM) and condominium (CD), through qualitative and quantitative analyses. The major findings are summarized as follows:
- In total, six typical layouts for public apartments and thirteen typical layouts for private apartments were determined for both 1BR and 2BR units through a cluster analysis. Furthermore, four typical unit layouts from public and private apartments associated with building-scale classifications, respectively, were proposed as the base models for the current typical apartments in Indonesia. The proposed typical unit layouts can be used for various kinds of building simulations and building standardizations in the future.
- In public apartments, the average unit size increased from 27.1 m2 to 32.3 m2 over the last few decades. However, the number of rooms increased at the same time, and therefore, the individual room size was reduced instead. Indonesian public apartments tended to sacrifice semi-open spaces such as a wide corridor and an internal void space, to increase the size of units and the number of rooms. These tendencies may lead to the deterioration of indoor environmental conditions, such as natural ventilation and daylight.
The data collection is a key for a building typological study. As discussed before, we obtained 268 technical drawings of RS from the selected cities (i.e., local authorities) and the same numbers of building information of CD and RM were collected mainly from real estate agencies and the related websites. The data samples may slightly lean to newer examples due to the above-mentioned data collection methods. In the case of public apartments, it was difficult to collect the data constructed before 2007 simply because of the poor archive management, as explained before. Similarly, for private apartments, most real estate agencies and local developers did not maintain the building drawing information, especially for the examples constructed before 2007.
This study dealt with layout design, but it is also important to examine typical building materials used for apartment constructions, as this information is also necessary for building simulations. Therefore, further investigation is needed in this area. The present authors developed cooling techniques for achieving low-carbon houses in the hot-humid climates. For example, we proposed a novel, radiant-floor cooling system and were able to improve indoor thermal comfort by 0.79 °C SET* [30], whereas a new ventilation strategy using a closed-vertical void was proposed and improved the ACH by 1.5 times compared with a conventional ventilation strategy [52]. The proposed typical layouts can also be used as the base models for the above-mentioned studies to generalize future findings.
Author Contributions
Conceptualization, A.P., A.D.H. and T.K.; methodology, A.P., A.D.H. and T.K.; soft-ware, A.P. and A.D.H.; validation, A.P. and A.D.H.; formal analysis, A.P. and A.D.H.; investigation, A.P. and A.D.H.; resources, A.P. and A.D.H.; data curation, A.P. and A.D.H.; writing—original draft preparation, A.P. and A.D.H.; writing—review and editing, A.P. and T.K.; visualization, A.P.; supervision, T.K.; project administration, T.K.; funding acquisition, T.K. All authors have read and agreed to the published version of the manuscript.
Funding
This research was funded by [JST and JICA] grant number [JPMJSA1904].
Data Availability Statement
https://rb.gy/i8q4b (accessed on 15 May 2023).
Acknowledgments
This research was partially supported by the Science and Technology Research Partnership for Sustainable Development (SATREPS) in collaboration with JST and JICA (JST, JPMJSA1904), YKK AP Inc. and the Asahi Glass Foundation. We would like to thank the Ministry of Public Works and Housing, Indonesia for their supports. Our special thanks are due to the continuous supports from Andri Suryabrata and Isniaty Hidayah.
Conflicts of Interest
The authors declare no conflict of interest.
References
- Vossoughian, N. Standardization Reconsidered: Normierung in and after Ernst Neufert’s Bauentwurfslehre (1936). Grey Room 2014, 54, 34–55. [Google Scholar] [CrossRef]
- Foster, S.; Hooper, P.; Kleeman, A.; Martino, E.; Giles-Corti, B. The high life: A policy audit of apartment design guidelines and their potential to promote residents’ health and wellbeing. Cities 2020, 96, 102420. [Google Scholar] [CrossRef]
- Tamura, Y.; Ohkuma, T.; Okada, H.; Kanda, J. Wind loading standards and design criteria in Japan. J. Wind. Eng. Ind. Aerodyn. 1999, 83, 555–566. [Google Scholar] [CrossRef]
- Hyde, R. Improving the building typology. Archit. Sci. Rev. 2018, 61, 97–98. [Google Scholar] [CrossRef]
- Tereci, A.; Ozkan, S.T.E.; Eicker, U. Energy benchmarking for residential buildings. Energy Build. 2013, 60, 92–99. [Google Scholar] [CrossRef]
- Schaefer, A.; Ghisi, E. Method for obtaining reference buildings. Energy Build 2016, 128, 660–672. [Google Scholar] [CrossRef]
- Famuyibo, A.A.; Duffy, A.; Strachan, P. Developing archetypes for domestic dwellings-An Irish case study. Energy Build. 2012, 50, 150–157. [Google Scholar] [CrossRef]
- EU. Directive 2010/31/EU of the European Parliament and of the Council on the Energy Performance of Buildings; European Union: Maastricht, The Netherlands, 2010. [Google Scholar]
- Attia, S.; Evrard, A.; Gratia, E. Development of benchmark models for the Egyptian residential buildings sector. Appl. Energy 2012, 94, 270–284. [Google Scholar] [CrossRef]
- Horváth, M.; Kassai-Szoó, D.; Csoknyai, T. Solar energy potential of roofs on urban level based on building typology. Energy Build. 2016, 111, 278–289. [Google Scholar] [CrossRef]
- Kragh, J.; Wittchen, K.B. Development of two Danish building typologies for residential buildings. Energy Build. 2014, 68, 79–86. [Google Scholar] [CrossRef]
- Loga, T.; Stein, B.; Diefenbach, N. TABULA building typologies in 20 European countries—Making energy-related features of residential building stocks comparable. Energy Build. 2016, 132, 4–12. [Google Scholar] [CrossRef]
- Berrill, P.; Gillingham, K.T.; Hertwich, E.G. Linking housing policy, housing typology, and residential energy demand in the United States. Environ. Sci. Technol. 2021, 55, 2224–2233. [Google Scholar] [CrossRef] [PubMed]
- Ishikawa, T.; Nakata, S.; Asami, Y. Perception and conceptualization of house floor plans: An experimental analysis. Environ. Behav. 2010, 43, 233–251. [Google Scholar] [CrossRef]
- Nijskens, R.; Lohuis, M.; Hilbers, P.; Heeringa, W. Hot Property: The Housing Market in Major Cities; Springer International Publishing: Cham, Switzerland, 2019. [Google Scholar] [CrossRef]
- Soeranto, D.A. Dinamika Pengembangan Perumahan Skala Besar; PUPR: Jakarta, Indonesia, 2020. [Google Scholar]
- International Energy Agency. 2021 Global Status Report for Buildings and Construction: Towards a Zero-EMISSIONS, EFFICIent and Resilient Buildings and Construction Sector; International Energy Agency: Paris, France, 2021. [Google Scholar]
- Government of Indonesia. Indonesia Long-Term Strategy for Low Carbon and Climate Resilience 2050 (Indonesia LTS-LCCR 2050); Government of Indonesia: Jakarta, Indonesia, 2021. [Google Scholar]
- International Energy Agency. Southeast Asia Energy Outlook 2022. 2022. Available online: www.iea.org/t&c/ (accessed on 6 June 2022).
- Sueca, N.P. Typology of flat towers in Indonesia. J. Civ. Eng. Archit. Built Environ. 2017, 1, 1. [Google Scholar]
- Faradisa, S.; Ariastita, P.G.; Septanaya, I.D.M.F. Tipologi Rusunawa di Kota Surabaya. J. Tek. ITS 2020, 9. [Google Scholar]
- Tong, Z.; Chen, Y.; Malkawi, A.; Liu, Z.; Freeman, R.B. Energy saving potential of natural ventilation in China: The impact of ambient air pollution. Appl. Energy 2016, 179, 660–668. [Google Scholar] [CrossRef]
- Prajongsan, P.; Sharples, S. Enhancing natural ventilation, thermal comfort and energy savings in high-rise residential buildings in Bangkok through the use of ventilation shafts. Build. Environ. 2012, 50, 104–113. [Google Scholar] [CrossRef]
- Kubota, T.; Chyee, D.T.H.; Ahmad, S. The effects of night ventilation technique on indoor thermal environment for residential buildings in hot-humid climate of Malaysia. Energy Build. 2009, 41, 829–839. [Google Scholar] [CrossRef]
- Melo, A.; Sorgato, M.; Lamberts, R. The effect of window opening ventilation control on residential building energy consumption. Energy Build. 2016, 133, 1–13. [Google Scholar] [CrossRef]
- He, Y.; Li, N.; He, M.; He, D. Using radiant cooling desk for maintaining comfort in hot environment. Energy Build. 2017, 145, 144–154. [Google Scholar] [CrossRef]
- Memon, R.; Chirarattananon, S.; Vangtook, P. Thermal comfort assessment and application of radiant cooling: A case study. Build. Environ. 2008, 43, 1185–1196. [Google Scholar] [CrossRef]
- Al-Absi, Z.A.; Hafizal, M.I.M.; Ismail, M. ‘Innovative PCM-incorporated foamed concrete panels for walls’ exterior cladding: An experimental assessment in real-weather conditions. Energy Build. 2023, 288, 113003. [Google Scholar] [CrossRef]
- Musiał, M.; Lichołai, L. The impact of a mobile shading system and a phase-change heat store on the thermal functioning of a transparent building partition. Materials 2021, 14, 2512. [Google Scholar] [CrossRef]
- Kitagawa, H.; Asawa, T.; Kubota, T.; Trihamdani, A.R.; Sakurada, K.; Mori, H. Optimization of window design for ventilative cooling with radiant floor cooling systems in the hot and humid climate of Indonesia. Build. Environ. 2021, 188, 107483. [Google Scholar] [CrossRef]
- Kitagawa, H.; Asawa, T.; Kubota, T.; Trihamdani, A.R. Numerical simulation of radiant floor cooling systems using PCM for naturally ventilated buildings in a hot and humid climate. Build. Environ. 2022, 226, 109762. [Google Scholar] [CrossRef]
- Kitagawa, H.; Asawa, T.; Kubota, T.; Trihamdani, A.R.; Mori, H. Thermal storage effect of radiant floor cooling system using phase change materials in the hot and humid climate of Indonesia. Build. Environ. 2022, 207, 108442. [Google Scholar] [CrossRef]
- Kitagawa, H.; Asawa, T.; Del Rio, M.A.; Kubota, T.; Trihamdani, A.R. Thermal energy simulation of PCM-based radiant floor cooling systems for naturally ventilated buildings in a hot and humid climate. Build. Environ. 2023, 238, 110351. [Google Scholar] [CrossRef]
- Soeranto, D.A. Perjalanan Lima Tahun Program Sejuta Rumah; Yayasan Badan Penerbit Pekerjaan Umum: Jakarta, Indonesia, 2019. [Google Scholar]
- Indonesian Ministry of Public Works and Housing. Informasi Statistik Infrastruktur PUPR 2021; Indonesian Ministry of Public Works and Housing: Jakarta, Indonesia, 2021. [Google Scholar]
- Indonesian Ministry of Public Works and Housing. Ministry of Public Works Regulation No.05/2007 on the Technical Guidelines for Public Apartment Construction; Indonesian Ministry of Public Works and Housing: Jakarta, Indonesia, 2007. [Google Scholar]
- Slovin, E. Slovin’s Formula for Sampling Technique. Available online: https://www.statisticshowto.com/probability-and-statistics/how-to-use-slovins-formula/ (accessed on 21 April 2023).
- Government of Indonesia. Government Regulation 13/2021; Government of Indonesia: Jakarta, Indonesia, 2021. [Google Scholar]
- BPS RI. Konstruksi Dalam Angka 2020; BPS RI: Jakarta, Indonesia, 2020. [Google Scholar]
- Watkins, C.A. The definition and identification of housing submarkets. Environ. Plan A 2001, 33, 2235–2253. [Google Scholar] [CrossRef]
- Kaiser, H.F. An Index of Factorial Simplicity. Psychometrika 1974, 39, 31–36. [Google Scholar] [CrossRef]
- Hair, J.F.; Black, W.C.; Babin, B.J.; Anderson, R.E. Multivariate Data Analysis, 7th ed.; Pearson: London, UK, 2009. [Google Scholar]
- Jeong, S.K.; Ban, Y.U. The spatial configurations in South Korean apartments built between 1972 and 2000. Habitat Int. 2014, 42, 90–102. [Google Scholar] [CrossRef]
- Brkanić, I.; Stober, D.; Mihić, M. A comparative analysis of the spatial configuration of apartments built in Osijek, Croatia, between 1930 and 2015. J. Asian Archit. Build. Eng. 2018, 17, 23–30. [Google Scholar] [CrossRef]
- Gao, X.; Asami, Y.; Zhou, Y.; Ishikawa, T. Preferences for Floor Plans of Medium-Sized Apartments: A Survey Analysis in Beijing, China. Hous. Stud. 2013, 28, 429–452. [Google Scholar] [CrossRef]
- Ornstein, S.W.; Villa, S.B.; Ono, R. Residential high-rise buildings in São Paulo: Aspects related to the adequacy to the occupant’s needs. J. Hous. Built Environ. 2010, 26, 73–84. [Google Scholar] [CrossRef]
- Ju, S.R.; Lee, L.; Jeon, S.Y. The typologies of block and unit plan in Malaysian apartments-Focused on middle cost houses supplied by the private sector. J. Asian Archit. Build. Eng. 2014, 13, 397–404. [Google Scholar] [CrossRef]
- Guney, Y.I.; Wineman, J. The Evolving Design of 20th-Century Apartments in Ankara. Environ. Plann. B Plann. Des. 2008, 35, 627–646. [Google Scholar] [CrossRef]
- Kotani, H.; Satoh, R.; Yamanaka, T. Natural ventilation of light well in high-rise apartment building. Energy Build. 2003, 35, 427–434. [Google Scholar] [CrossRef]
- Kumar, N.; Bardhan, R.; Kubota, T.; Tominaga, Y.; Shirzadi, M. Parametric study on vertical void configurations for improving ventilation performance in the mid-rise apartment building. Build. Environ. 2022, 215, 108969. [Google Scholar] [CrossRef]
- Ju, S.R.; Oh, J.E. Design elements in apartments for adapting to climate: A comparison between Korea and Singapore. Sustainability 2020, 12, 3244. [Google Scholar] [CrossRef]
- Kumar, N.; Kubota, T.; Tominaga, Y.; Shirzadi, M.; Bardhan, R. CFD simulations of wind-induced ventilation in apartment buildings with vertical voids: Effects of pilotis and wind fin on ventilation performance. Build. Environ. 2021, 194, 107666. [Google Scholar] [CrossRef]
- Kisnarini, R.; Krisdianto, J.; Indrawan, I.A. Contribution of Balcony on Thermal Comfort Rusunawa, Kisnarini, 2018. Open House Int. 2018, 43, 14–21. [Google Scholar] [CrossRef]
- Kisnarini, R.; Post, J.; Van E, E.; Mohammadi, M. Providing Adaptability of Space to Ensure Sustainable Living in Low-Cost Housing in Indonesia. Procedia Soc. Behav. Sci. 2015, 179, 222–229. [Google Scholar] [CrossRef]
Disclaimer/Publisher’s Note: The statements, opinions and data contained in all publications are solely those of the individual author(s) and contributor(s) and not of MDPI and/or the editor(s). MDPI and/or the editor(s) disclaim responsibility for any injury to people or property resulting from any ideas, methods, instructions or products referred to in the content. |
© 2023 by the authors. Licensee MDPI, Basel, Switzerland. This article is an open access article distributed under the terms and conditions of the Creative Commons Attribution (CC BY) license (https://creativecommons.org/licenses/by/4.0/).
























