Abstract
This research undertakes a Life Cycle Analysis (LCA) to determine the climate change potential of a typical newly built steel detached dwelling in Palmerston North, New Zealand (NZ) and assesses its results concerning the 2 °C and 1.5 °C 2050 Paris Agreement targets. The proposed, upcoming policy and actions of the NZ government relating to its residential building and construction sector, which are set with an overarching aim to allow NZ to progress towards meeting the 2050 Paris Agreement targets, are also discussed in this paper. The results of the LCA demonstrate that the projected stock of steel-framed detached houses significantly exceeds the calculated climate budget and eventual 2050 Paris Agreement targets. For both the 2 °C and 1.5 °C scenarios, the magnitude of exceedance of the climate budget is 5.2 and 7.3 times more than the acceptable limit, correspondingly. These findings suggest that the sector will need to undergo a significant transition in order to fulfil the 2050 Paris Agreement targets. In the meanwhile, the sector’s upcoming policies and regulations must be achievable while progressing toward achieving net-zero carbon emissions.
1. Introduction
In 2020, the building and construction sector in New Zealand (NZ) accounted for approximately 20% of its total carbon emissions, which mainly resulted from the embodied and operational carbon emissions associated with material and energy use in buildings [1]. NZ committed to the Paris Agreement in 2016 to keep the global temperature increase below 2 °C while seeking a limit of 1.5 °C by 2050 [2]. To enable NZ to achieve the National Development Contribution, the NZ Government has set policies and frameworks to help mitigate carbon emissions, such as the Ministry of Business, Innovation, and Employment (MBIE)’s Building for Climate Change programme, which contains the Whole-of-life Embodied Carbon Reduction framework and the Transforming Operational Efficiency framework [1,3,4]. Both frameworks have suggested that the building and construction sector should implement a series of actions, beginning in the national emission reduction budget period of 2022–2025 [1,4].
These actions include requiring new buildings to report their whole-of-life embodied carbon and imposing a mandatory cap on operating carbon emissions and whole-of-life embodied carbon to obtain permission prior to building construction [1,4]. The framework for the Building for Climate Change programme is presently being evaluated, with a public consultation session scheduled for early 2022 to gather input and participation from the industry [3]. In the framework, it is also recommended that data on embodied carbon emissions from buildings be archived in a public repository, with the goal of sharing and benefiting from the data collectively [1,4].
The aim of this research is to determine whether a newly built steel-framed detached dwelling, built and used in NZ, will meet the 2 °C and 1.5 °C Paris Agreement targets by 2050, and if it cannot meet the targets, how much the exceedance will be. As shown in Figure 1, the selected detached house with G550 cold-formed steel framing and a concrete foundation has a design occupancy of four people and a gross floor area of 180 m2. A cradle-to-cradle Life Cycle Analysis (LCA) using LCAQuick was performed to assess the climate change potential of this house. Afterward, those results were used to quantify the climate change impacts for this typology of buildings in relation to the 2050 Paris Agreement targets.
Figure 1.
The selected steel-framed detached house in Palmerston North, NZ.
The typology of the “newly built detached house” was chosen in this study because the majority of the houses built in NZ are single-detached dwellings and new builds are the initial focus of the MBIE frameworks proposed in NZ [4,5]. Furthermore, since most previous research conducted in NZ has focused on timber-framed houses, the LCA research on steel-framed houses in NZ has not been widespread [6]. Steel is a highly efficient and cost-effective material [7,8,9,10,11,12,13,14,15,16,17,18,19,20] and offers a variety of other benefits as a framing material [21,22,23,24,25,26,27,28,29,30,31,32,33,34,35,36,37,38,39]. Steel has a near 100% recycle rate, and it has never been downcycled in the same manner that other building materials have been [40,41,42,43,44,45,46,47,48]. For example, when the wood is chopped, the fibres shorten, whereas recycling steel keeps all of its qualities on a molecular level, offering greater robustness [49]. Steel constructions also require less maintenance because they are not affected by moisture or biological activity [50,51,52,53,54,55,56,57,58]. Hence, steel was chosen as the material of study in this paper to help fill this research gap and contribute to the proposed repository. Conducting this research and understanding the climate change potential of this building typology can increase people’s awareness and data availability, enabling the sector to better understand their current position and collaborate with MBIE on finalizing the frameworks throughout the open consultation period. This research is also helpful for setting the embodied and operational emission caps for the sector at achievable levels while progressing towards the overarching 2050 Paris Agreement targets.
2. Background Information on NZ’s Climate Change Policies
2.1. NZ’s Climate Change Regulatory Context
In 2016, the NZ Government ratified the Paris Agreement, committing to maintaining a global temperature increase below 2 °C while limiting the temperature increase by 1.5 °C by 2050 [2]. According to the recent updated Nationally Determined Contribution (NDC), NZ committed to reducing its net Greenhouse Gas (GHG) emissions by 50% below gross 2005 levels by 2030 [2]. It corresponds to 41% when managed using a multi-year emissions budget starting from NZ’s 2020 emissions target [2].
Several policies, programmes, and frameworks have been proposed to action NZ towards the necessary changes to meet its 2050 Paris Agreement commitments.
Following a top-down order, these policies, programmes, and frameworks include:
- The Climate Change Response (Zero-Carbon) Amendment Act (2019) [59];
- The first Emissions Reduction Plan [60];
- Building for Climate Change programme [3];
- Whole-of-life Embodied Carbon Emission Reduction framework [1];
- Transforming Operational Efficiency framework [4].
The Climate Change Response (Zero-Carbon) Amendment Act (2019) is an amendment to its predecessor, the Climate Change Response Act (2002) [59]. The NZ Government modified this in 2019 to establish a framework for developing and implementing climate change policies to ensure that NZ meets the 2050 Paris Agreement targets while also achieving net-zero carbon emissions [59]. The Climate Change Commission is required by this legislation to provide independent advice to the government on emissions budgets, which are the total amount of emissions allowed over a specified time period [60]. The emission budget attempts to set incremental goals every five years towards the long-term net-zero carbon target of 2050 [60]. The first budget will start in 2022 and will be exempt from the scheduled five-year increment, which is planned to end in 2025 [60].
The first Emissions Reductions Plan (ERP) was published in May 2021 [61] to advise the NZ Government on its first emission budget throughout 2022–2025. It is important to note that before releasing emission budgets, the Climate Change Commission will have open consultations to measure public opinion on the budgets and progress [60].
2.2. Building and Construction Sector Regulatory Context
The Building for Climate Change (BfCC) programme is a building and construction sector-specific response to the climate goals and ERP, released by MBIE [3]. There are two critical frameworks within the BfCC programme, the Whole-of-life Embodied Carbon Emission Reduction (WoLECER) and the Transforming Operational Efficiency (TOE) frameworks. Both frameworks were open to public consultations, and 374 submissions were received from a variety of individuals and organizations in the building and construction industry [62]. Those responses received from the submissions clearly support changes within the sector, with 92% of the respondents agreeing that reducing emissions is necessary [62].
2.2.1. Transforming Operational Efficiency (TOE) Framework
In 2018, the operational phase of buildings utilized around 20% of all energy consumed in NZ, with electricity accounting for 65–70% of all energy consumed in buildings [63,64]. The TOE framework was developed in 2020, with three main objectives, including [4]:
- Reducing operational emissions;
- Reducing water use to meet demand;
- Improving the health and well-being of occupants.
This framework also proposes that the following actions be mandatory for the sector to comply with [4]:
- Setting an Operational Energy Cap, which is the total allowable annual emissions per square meter per annum for all new buildings;
- The Operational Energy Cap will have fossil fuel combustion, electricity use, and water use requirements;
- Setting a Water Use Cap, which is the absolute allowed drinking water use per square meter per year for all new buildings.
The Operational Emissions Cap and Water Use Cap will be tightened in steps, with a final cap expected in 2035 [4]. Before these actions become finalized and mandatory, the Cabinet will open public consultation on the entire package of measures [62].
According to MBIE [1], the occupants’ behaviours can significantly affect all these objectives of the TOE framework. Therefore, this framework is focused on regulating buildings’ design and construction, with the occupants’ behaviours assumed to be beyond the scope [1].
2.2.2. Whole-of-Life Embodied Carbon Emission Reduction (WoLECER) Framework
Embodied carbon emission is defined as all carbon emissions attributable to the building itself, including emissions across the entire supply chain of materials and products, construction processes, repair and maintenance, and processes at the end of life of a building [1]. Considering a whole-of-life perspective is critical in reducing the emission of building and construction sector, as the relative significance of embodied emissions from buildings increases with time as the operation of buildings becomes more efficient [4,63]. Operational efficiency can also be gained through appliance and technology innovation, which happens more quickly than manufacturing and construction innovation [64]. Furthermore, in the context of NZ, operational efficiency can be further improved by a large portion of the country’s electricity grid being sourced from renewable energy sources, such as hydro, geothermal, wind, and biomass energy; in 2017, approximately 82% of NZ’s electricity was sourced from renewable energy sources, with a goal of 95% by 2050 [65,66].
The WoLECER framework has three key objectives [1]:
- Maximising new build efficiency;
- Increasing building material efficiency;
- Reducing the carbon intensity of the materials used in new buildings.
This framework also proposes mandatory actions for the sector to comply with, including [1]:
- The whole-of-life embodied carbon of buildings will only be required to be reported as part of the building consent process;
- Buildings will also be required to meet a mandatory cap on their whole-of-life embodied carbon to obtain building consent;
- The cap will be tightened in a series of steps over time according to a transparent schedule to deliver the increasing reductions in emissions required by the National ERP;
- The cap levels will be set considering best practices and consultation with the sector to ensure they are ambitious but achievable and will be reviewed at each step;
- Data on the embodied carbon from buildings, collected from the reporting stages, are stored in a repository and made publicly available.
These actions and objectives set out in the framework will initially apply to all new buildings because the respondents prefer a stepped approach to include existing buildings, given the complexity involved in developing regulations for existing buildings [1].
While these objectives and actions have been met in favour and agreement by the sector, the building and construction sector in NZ currently has a relatively immature understanding of the embodied carbon and the impacts of its activities [1]. However, respondents favoured establishing a publicly accessible repository of data relating to embodied carbon emissions to transparently share information for the sector’s collective benefits [62].
3. Literature Review on Life Cycle Analysis
3.1. Life Cycle Analysis Definition
Life Cycle Analysis (LCA), alternatively known as Life Cycle Assessment, has been widely utilized and studied to assess sustainability and climate change in the building and construction sector by calculating its carbon emissions [67]. International ISO and European EN standards have been developed to regulate LCA practice and to certify several LCA softwares, tools, and databases [68,69,70].
The service life of a building typically includes the stages of construction, occupancy, demolition, and benefits beyond the end of life [71]. The scope of an LCA is highly variable, and the practitioners must identify the system boundaries, which include the building’s service life, building elements, environmental impacts, and measured life cycle stages [72,73]. As illustrated in Figure 2, the life cycle stages include the product (modules A1–A3), construction (modules A4, A5), use (modules B1–B5), operational (modules B6, B7), end of life (modules C1–C3), and benefits and load stages beyond the system boundary (module D) [1]. The terms “life cycle stages” and “modules” are interchangeable throughout international and domestic LCA studies, Environmental Product Declarations (EPDs), definitions, software, and tools [68]. A commonly known cradle-to-cradle LCA considers all the stages, from A1 to D [1].
Figure 2.
Module framework for life cycle stages of buildings.
3.2. System Boundary Definition and Subjectiveness
Some researchers reported that the system boundaries are often selected subjectively in the existing studies [73,74]. The choice of inputs into the LCA is a part of the system boundary definition [73]. Due to a lack of data or a great variety of available data, life cycle stages or different building systems and material elements are frequently missed [72]. Neglecting certain life cycle stages might result in truncation errors in calculations of up to 50% [72].
Hossain and Ng [74] reported that more than half of the LCA studies they reviewed did not consider operational energy consumption due to its complexity. Many studies have demonstrated that when assessing buildings’ operational energy, the location, occupancy, and climate must be carefully examined or assumed, whether in NZ [75,76] or other countries [64,77,78]. Some domestic LCA studies in NZ, including the Waitakere Now Home LCA [75], Exemplar House [76], and the LCA studies by McLaren et al. [5], have included operational energy life cycle stages in their system. However, significant assumptions were made in their studies, and they relied on secondary data sources to assess operational energy.
3.3. Data Quality
It was found by Hossain and Ng [74] that 31% of the LCA studies they reviewed only used data from secondary sources, and 15% used a combination of data from primary and secondary sources. Many LCA studies conducted in NZ used a combination of primary and secondary data to complete their study due to a lack of product-specific information for certain materials [5,64,76,79,80,81,82]. Nebel and Szalay [76] suggested a more comprehensive dataset constructed from the ground up, using the specific detail of NZ data, complemented by international data, to produce more robust results in studying buildings’ environmental impacts. These studies have also emphasized the necessity for a data repository to improve data quality through regulations and benchmarks [5,64,74,76,79,80,81,82].
Dixit [72] proposed global guidelines that included transparency and standardization, as well as the widely agreed-upon definitions and terminologies. The computational data should be reported, and calculations should be standardized, requiring studies demonstrating how to define the system boundaries and use data sources and units for different LCA indicators [72].
3.4. Review of Existing LCA Software, Databases, and Tools
GaBi [83] and SimaPro [84], two of the most widely used LCA software packages, provide the most comprehensive databases and tools for performing LCA and are compliant with international standards ISO 14040, ISO 14044, and EN 15804. However, Nebel et al. [76] found that using Gabi and SimaPro to conduct LCA in NZ was erroneous. GaBi and SimarPro primarily use European and international databases, which fail to capture geographical applicability to NZ, particularly in terms of products produced or used in NZ but not elsewhere, as well as differences in transportation, logistics, and energy production and usage [76].
3.5. LCAQuick v3.4.3
LCAQuick v3.4.3 is a tool developed by the Building Research Association New Zealand (BRANZ) in 2020 [79]. It is compliant with relevant ISO and EN standards [79]. The indicator used in LCAQuick to assess climate change potential is based on the Bern Model, a widely recognized model produced by the Intergovernmental Panel on Climate Change (IPCC) [71]. This indicator is also consistent with the NZ Government’s proposed GHG inventory, which will aid the development of future emission budgets (ERP) [60].
Since most international databases do not consider the geographical setting of NZ, LCAQuick has adapted data with the geographically relevant EPDs documented in the SR418 report [79] and averaged datasheets documented in the SR351 report [85]. When NZ data are unavailable, BRANZ uses data from the database EcoInvent and GaBi, adapted with an NZ electricity grid mix and included in their SR418 report [79].
3.6. Quantifying Climate Change in Relation to the 2050 Paris Agreement
3.6.1. Potential Limitations of LCA
Performing an LCA can provide information on the environmental impacts of a defined system. However, it is an insufficient indicator for quantifying performance concerning global climate targets or caps [70,81,86,87,88,89]. LCA has been classed as a Relative Environmental Sustainability Indicator (RESI) by Bjorn et al. [70]. LCA results for a studied system do not inherently show comparable results unless compared to results from one or more reference systems with similar studied system boundaries [74].
3.6.2. Comprehensive and Robust Climate Change Indicators
There are different suggestions and methods in the existing literature which describe quantifying LCAs and other RESIs in relation to broader systems [70,90]. Absolute Environmental Sustainability Indicators (AESI) and Environmental Sustainability Assessment Methods (ESAM) are terms used in the literature to describe such comprehensive sustainability indicators [70,87].
Chandrakumar and McLaren [87] recommended that these AESIs and ESAMs should successfully address the following questions in order to be more comprehensive and robust:
- What are the environmental consequences of a chosen system?
- What are the Earth system’s allocated biophysical limits for the chosen system?
- How can proposed system interventions be measured for their ability to bring the system within these biophysical limits?
3.6.3. Distance-to-Target Method
Despite the widespread adoption of AESIs and ESAMs, most still have various drawbacks. The Distance-to-Target (DTT) approach employed by LCA researchers is an example of such disadvantages [91,92,93,94]. The DTT method derives weighting factors for LCA impact categories such as climate change potential by comparing a system’s observed environmental performance against the existing environmental targets [91]. It could answer the first two questions mentioned previously and potentially the third question. However, many of the studies defining the DTT method published in 2018 have used the method by developing policy-based targets for different sustainability indicators [70,87]. As a result, they are limited to a regional or national scale and do not allow geographical flexibility in the context of NZ.
3.6.4. Carbon Budget Method
Another method that has been proposed in the existing body of literature is to use the concept of Planetary Boundaries (PBs) [89]. The PB framework may be used to calculate the maximum amount of global warming potential or GHG emissions that can be released into the atmosphere while staying within the 2050 Paris Agreement targets [89]. A carbon budget can be estimated up to 2050 using the maximum GHG concentration [81,89,95]. However, this method has drawbacks because PB frameworks remove some environmental indicators and do not incorporate social, financial, or human sustainability indicators [96,97,98,99]. It also has the issue of geographical applicability to NZ, and there is currently a small pool of researchers in NZ who have published building carbon budget studies [5,80,81]. Furthermore, the present estimates are constrained by the fact that they do not account for the increase in the quantity of stock and the gross floor area (GFA) of buildings through 2050 [81].
4. Methodology
4.1. House Model Information
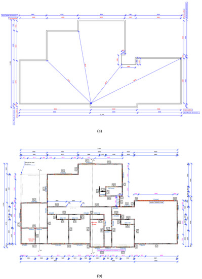
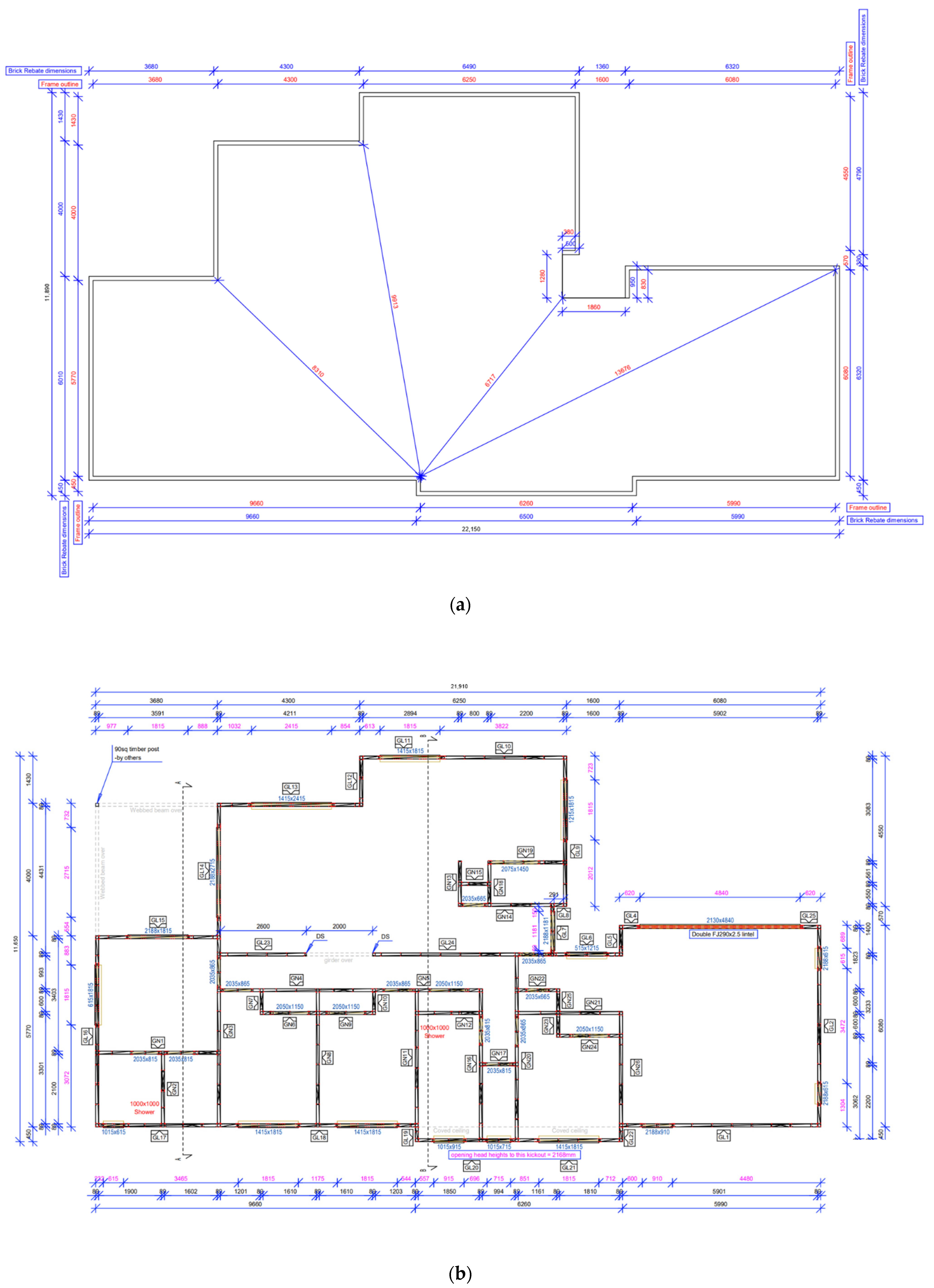
The newly built detached dwelling being analyzed in this research is a steel-framed house with a concrete foundation in the high-wind zone of NZ. This house has a design occupancy of four people and a GFA of 180 m2, with a design service life of 90 years. The primary structural component of the investigated steel-framing house is the 89.0 × 41.3 × 0.75 mm lipped channel section. Figure 3 shows the framing outline, wall layout, roof layout, and sectional plan of the house.

Figure 3.
(a) Framing outline; (b) wall layout; (c) roof layout; and (d) sectional plans of the analyzed house (all measurements are in millimeters).
4.2. LCA Scope
The foundation, wall framing, roof framing, and roof cladding were included in the scope of the building elements assessed in the LCA. The LCA scope was confined to structural elements to broaden the applicability of the research findings. In NZ, there is currently little variety in the structural materials used in residential detached dwellings [100]. In 2018, 93.1% of houses in NZ were timber-framed, and the remaining were primarily steel-framed [100]. This LCA scope is well-aligned with the WoLECER framework, including the structural elements and the building envelope, while excluding internal fittings [1].
In addition, all life cycle stages were included in the conducted LCA (cradle-to-cradle, as shown in Figure 2), with the following module additions and omissions:
- Module D was included in this research as steel is a highly reusable material, and there is potential for the steel elements of this house to have a negative climate change potential.
- Installed products covered in module B1 were beyond the LCA scope.
- Module B3 was omitted as it was assumed that the building elements would be regularly and adequately maintained during its maintenance. No repairs would be required over the building’s service life. Repair needed due to unpredictable events such as tornados and cyclones was omitted from the LCA scope.
- Module B5 was omitted as it was assumed that the building would not have changes (outside of maintenance) made to the structural elements over the service life.
- Module B6 was omitted as this was highly dependent on user behaviour and it was challenging to find a reliable rate. However, it was still within the research scope. The climate change potential for this module is included in the carbon budget analysis as explained in Section 4.5.2, using averaged impacts from dwellings with similar typology, size, and occupancy.
4.3. Material Inputs
The materials were derived from the Bill of Quantities (BoQ) for the building. Therefore, the LCA results do not account for additional materials being reordered and only apply to the quantity of materials present in the specified building plans and drawings. Since the foundation was not included in the BoQ provided for this research, the foundation and concrete mixture quantities were estimated.
The product-specific materials from the BoQ were matched with the most equivalent material present in the LCAQuick material inventory. The necessary quantities of these materials were calculated from the BoQ, and the data associated with the LCAQuick material inputs were used to calculate the climate change potential.
4.4. LCA Indicator
The Climate Change (Global Warming) Potential in LCAQuick was used as the indicator, measuring the Global Warming Potential (GWP) over 100 years in kgCO2eq.
4.5. Carbon Budget
A Carbon Budget for this building typology was assigned following a Grandfathering Sharing Principle [61]. The carbon budget for a selected sector was calculated by taking into account its relative contribution to NZ’s national consumption-based climate impact. The budget was calculated based on the available carbon share allocated to NZ under the 2050 Paris Agreement. A top-down approach was adopted in this method.
For this research, the chosen sector was the steel residential detached dwelling sector. The carbon budget was computed according to the publicly available information from Chandrakumar et al.’s study [81]. The year 2018 was chosen as the starting point to align with the currently available information in NZ’s framework [81].
The grandfathering methodology was adopted instead of other allocation methods, such as purchasing carbon credits, as it is often seen as a more equitable approach [81]. Additionally, this method does not allow wealthier participants to buy their way out of their climate impacts and responsibilities [81].
4.5.1. Sector Allocation
The first step was to obtain the allocated global carbon share for NZ. The budgets for NZ to meet the 2050 Paris Agreement climate change targets were 786 GtCO2eq and 1110 GtCO2eq for 1.5 °C and 2 °C scenarios [5]. The budgets from each scenario were then used to determine the sector budget. The consumption-based account (CBA), also known as the carbon footprint, was sourced from the Eora MRIO tables [101], with the reference year of NZ carbon footprint being 2015. It was assumed that the contribution from NZ’s steel detached housing sector to the consumption-based account of NZ’s carbon footprint would be unchanged during the period from 2015 to 2050.
The carbon budget for NZ over the period of 2018–2050 () was calculated using the population values and projections sourced from Chandrakumar et al. [81] as follows:
where is the cumulative population estimate of NZ for 2018–2050, is the cumulative population estimate worldwide for 2018–2050, and is the worldwide carbon budget for 2018–2050.
The carbon budgets assigned for NZ over 2018–2050 for both climate scenarios were then broken down by the proportion assigned to detached dwellings in the residential sector. The budgets were multiplied by 4.9%, the sector proportion of GHG emissions by the detached residential dwellings [81].
The carbon budget for the detached dwelling sector over 2018–2050 () was calculated as follows [61]:
Despite the budget only being assigned for the newly built steel detached dwelling sector, the pre-existing and demolished stock in 2018–2050 still had to be considered. The values for the climate change potential for pre-existing houses were obtained from Chandrakumar et al.’s study [81]. It was assumed that the climate change potential values across all life cycles for an average pre-existing timber-framed house would be the same for a pre-existing steel-framed house with a GFA of 166 . The stock for newly built houses was sourced from datasets on building consent for detached dwellings in 2015 from Stats NZ [102]. A factor of 0.77 was multiplied to account for the proportion of detached housing, 77% [59]. Data for the stock of pre-existing detached dwellings in 2015 were also sourced from Stats NZ [102]. As these numbers do not break down the stock by material, both values were multiplied by the proportion of nontimber framed houses in 2015 (6.9%), sourced from a BRANZ survey of over 1200 responses [71]. It was also assumed that the proportion of nontimber framed houses could represent the stock of steel-framed houses. For the proportion of stock to be demolished, the value was sourced from Chandrakumar et al.’s research [81], assuming a demolition proportion of 0.125% using stock data from 2012.
The data sourced from Stats NZ were used to calculate the following:
where is the stock of pre-existing steel detached dwellings in NZ in 2015, is the stock of all pre-existing detached dwellings in NZ in 2015, is the stock of newly built steel detached dwellings in NZ in 2015, is the stock of all newly built detached dwellings in NZ in 2015, and is the stock of all demolished detached dwellings in NZ in 2015 [61].
4.5.2. Carbon Footprint Calculated for the Newly Built Steel Detached Dwelling for the Period of 2018 to 2050
The total GWP impacts of a newly built steel detached house typology were calculated using LCA for the selected house model. Because the operational energy use stage was omitted from the LCA due to a lack of available user information, the results from Chandrakumar et al. [81] were adopted. Chandrakumar et al. [81] studied a similar detached timber residential dwelling with a similar occupancy and service life of 90 years but with a slightly larger GFA (198 ). The life cycle impacts were scaled up to reflect the average newly built residential detached dwelling having a GFA of 198 [81]. It was acceptable as the life cycle impacts were calculated on a basis.
4.5.3. Carbon Budget Calculated for the Newly Built Steel Detached Dwelling for the Period of 2018 to 2050
Finally, to obtain the assigned budget for this building typology, the footprint of each life cycle stage was divided by the projected carbon footprint of detached houses existing in the period of 2018 to 2050. It was then multiplied by the projected 2018–2050 floor area of steel detached dwellings to give the carbon budget for each life cycle stage as follows [61]:
The sum across all life cycle stages for the carbon budget for this sector over 2018–2050 is given by
where is the carbon budget for the life cycle stage module Li (e.g., L = A, i = 1, 2, 3) for the period of 2018–2050, is the carbon footprint for the life cycle stage module Li for the period of 2018–2050 for a newly built steel detached dwelling, is the carbon footprint for all life cycle stages for newly built steel detached dwellings, is the projected floor area for all detached dwellings in NZ in 2018–2050, and is the carbon budget for NZ detached dwelling sector [61].
5. Results
5.1. Climate Change Potential
5.1.1. Climate Change Potential by Life Cycle Stages
Figure 4 and Table 1 show the impacts of the climate change indicator for the newly built steel detached dwelling. Most of the climate change potential is from the product stages (modules A1–A3), with an impact of 43,975 kgCO2eq. The second highest absolute climate change potential is from the operational water use stage (module B7), with an impact of 19,469 kgCO2eq.
Figure 4.
Schematic diagram of absolute climate change potential for each life cycle stage.
Table 1.
Absolute climate change potential (kgCO2eq) for each life cycle stage included.
It suggests that the most significant climate change impacts occur during the production of the steel and the operation of the house over a 90-year service life. Due to module B6 being emitted from the LCA scope, the total operational impacts (B6 and B7 stages combined) are underrepresented in Figure 4 and Table 1. The operational stage (modules B2, B4, B6, B7) could have more impact than the embodied stages (modules A1–A5 and C1–C4). The benefits beyond the system boundary stage (module D) can be seen to significantly reduce the total climate change potential by 9177 kgCO2eq.
5.1.2. Breaking Down the Climate Change Potential by Materials
Table 2 shows the climate change potential for each material. The material with the highest impact is the 30 MPa concrete (with 100 kg/m3 steel reinforcement) with an impact across the life cycle stages (including the negative impacts in module D) of 21,600 kCO2eq. Table 2 is further divided by the volume of each material, and the results are shown in Table 3.
Table 2.
Climate change potential by the absolute quantity of each material present.
Table 3.
Climate change potential of each material present per m3 of material.
Once broken down per cubic meter, the results for each material become different. The most significant climate change potential per m3 of the material is from the flashing roof sheet, with 55.2% of the total impact per m3. It is likely that the climate change impacts of steel may be higher due to the influence of their service life. The roof steel sheet has a 45-year service life, and it is assumed it will need to be replaced twice in the 90-year service life of the building.
5.1.3. Climate Change Potential by Building Elements
The climate change potential has also been broken down into impacts by building elements, as shown in Table 4. The building element with the most considerable impact of 21,600 kgCO2eq is the substructure, comprising the 30 MPa concrete with 100 kg/m3 steel reinforcement, accounting for almost half of the total climate change potential. The structure, composed of steel framing, has the second-highest impact at 12,500 kgCO2eq. Followed by the roof cladding, which comprises the steel sheet roof cladding, it has an impact of 10,700 kgCO2eq. The most negligible climate change potential is from the roof structure, with an impact of 957 kgCO2eq.
Table 4.
Climate change potential in terms of different building elements.
5.2. Carbon Budget Results
5.2.1. Carbon Budget (2 °C) for 2018–2050
Regarding the 2 °C temperature scenario, the calculated carbon budget for all steel detached dwellings in the 2018–2050 period in NZ was found to be 1768 ktCO2eq.
5.2.2. Carbon Budget (1.5 °C) for 2018–2050
Regarding the 1.5 °C temperature scenario, the calculated carbon budget for all steel detached dwellings in the 2018–2050 period in NZ was found to be 1252 ktCO2eq. Table 5 shows the carbon budget exceedance for both 2 °C and 1.5 °C temperature scenarios. The total carbon footprint for pre-existing and newly built steel detached dwellings from 2018 to 2050 was 9149 ktCO2eq. It results in a budget exceedance of 5.2 and 7.3 times for the 2 °C and 1.5 °C temperature scenarios, respectively.
Table 5.
Carbon budget exceedance calculated for 2 °C and 1.5 °C climate change scenarios.
6. Discussion
6.1. Ability to Meet the 2050 Paris Agreement Targets
The total climate change potential for this case study house was found to be 65,209 kgCO2eq over a service life of 90 years. The carbon footprint for all steel detached dwellings in that period was found to be 9149 ktCO2eq. However, the associated budget for all steel detached dwellings in NZ in 2018–2050 was 1768 ktCO2eq and 1252 ktCO2eq, which means a 5.2 and 7.3 exceedance of allowable footprints, respectively. Hence, this building typology fails to meet the carbon budget and the 2050 Paris Agreement targets.
It is worth noting that this gross exceedance is not limited to the steel material. According to Chandrakumar et al. [81], the timber-framed detached dwellings significantly exceeded that typology’s carbon budget by 5.1 and 7.2 times for the 2 °C and 1.5 °C scenarios. Furthermore, the results show little variation when compared with diverse residential building typologies, such as medium-density complexes and apartments. McLaren et al. [5] found that the assigned 2018–2050 carbon budget for medium-density houses was exceeded by 4.8 and 6.8 times for the 2 °C and 1.5 °C temperature scenarios. The result was even worse for the apartment typology, with the 2018–2050 carbon budget being exceeded by 7.7 and 10.9 times for the 2 °C and 1.5 °C temperature scenarios, respectively [5].
MBIE’s WoLECER framework currently proposes making reporting whole-of-life embodied carbon mandatory a part of the building consent process [1]. Furthermore, MBIE’s WoLEE framework also proposes setting mandatory whole-of-life embodied carbon caps and refining these as each National ERP budget passes [1]. These caps should be set at achievable levels that consider the best practices in the sector but need to be ambitious enough to meet the 2050 Paris Agreement targets. The carbon budget results of this research, along with the results of other researchers’ studies [5,80,81], can help determine an initial cap.
Moreover, this research and similar studies [5,81], which demonstrate a huge scale of exceedance for current building practices, set an urgent agenda for the government and recommend potential ways to improve infrastructure to the suppliers, designers, builders, and homeowners. The policymakers need to consider the necessary changes for the residential building and construction sector to meet their proposed mandatory actions and 2050 Paris Agreement targets.
6.2. Potential Solutions
The solutions required for change, while avoiding last-resort attempts, such as borrowing from future emissions budgets or resorting to offshore mitigation by buying overseas emissions, are areas requiring future research.
Reducing the floor area of new constructions is a potential solution. The average size of newly built detached dwellings in NZ is 198 m2, up almost 20% from the 166 m2 average size of pre-existing housing stock in 2021 [80,81]. By reducing the size of detached dwellings being built, the amount of materials and the procedures utilized over their lifetime are reduced, resulting in lowering carbon emissions.
In addition, more efficient materials, such as steel, might reduce waste and minimize replacement. According to the LCA results, steel shows its potential for reusing and recycling through the result of 14% (−9177 kgCO2eq) of the building’s total whole-of-life climate change potential.
Another solution could be to use lower-carbon-intensity materials. The housing typology assessed in this study was a steel house with a concrete substructure foundation. As shown in Table 2 and Table 3, it is important not to compare building materials based on their upfront carbon impacts. Although the foundation of 30 MPa reinforced concrete contributes the highest absolute climate change potential, accounting for 47.3% of the total, when the impact based on the volume of material is calculated, the roof steel sheets seem to contribute nearly 65% of the impact per cubic meter while the concrete only contributes 0.6%.
Moreover, carbon footprint and LCA results are not the only considerations when selecting housing materials. Affordability, health, and safety must be considered when designing and building residential sectors.
6.3. Shortcomings of LCA
The LCA methodology and preparation of EPDs is a very narrow and relatively recent technical field. Some shortcomings of LCA are described as follows.
The scope of an LCA is highly variable, with the practitioners needing to define the system boundaries, including the service life of the building, what types of building elements are used, environmental impacts, and which life cycle stages are measured. The practitioners’ subjectiveness may be included, which can significantly affect the final results. For example, most of the LCA work in the public domain has been completed by the product manufacturers. They only provide cradle-to-gate LCA (A1–A3) because that is the only assessment in which the product manufacturers have oversight. The cradle-to-gate LCA analysis always puts steel in a weaker position than other structural building materials as the real benefits of steel, such as the negligible construction waste, low maintenance, resilient overbuilding life, ease of deconstruction, reuse at the end of life, and infinite ability to be recycled, do not lie in the stages A1–A3.
In addition, the accuracy of the LCA results is entirely dependent on the data input. Most of the assumptions and limitations of this research come from this. It is also worth noting that LCA was initially developed for businesses to understand their product stewardship; it was not designed as a comparative tool to assess sustainability where issues may occur when selecting the function unit. Commonly, the functional unit of steel in LCA is a kilogram or tonne of whatever steel product the producer manufactures, while the functional unit of wood is one cubic meter of solid timber under the bark. All the raw materials involved, such as iron ore, sand, coal, and limestone, and the associated environmental impacts of the extraction, transport, and manufacturing of that unit of steel, are included. In contrast, in the plantation context of wood, most of the environmental impacts that occur in plantation forestry are ignored and are not taken into account when selecting the function unit.
Focusing on carbon alone may have perverse outcomes. Climate change, particularly in NZ, has mainly been considered in terms of on GHG emissions and principally carbon emissions. Focus should also be given to the significant methane footprint. Methane is a short-lived gas but has a much more significant impact than carbon dioxide.
7. Conclusions and Recommendations
An LCA for a newly built steel-framed detached dwelling, which was a rarely assessed building typology in the LCA and carbon budget space in NZ, was performed in this paper. The results show that the carbon footprint for all steel detached dwellings in NZ would be 136,554 ktCO2eq over the period of 2018 to 2050. However, the calculated budget needed to stay in line with the 2 °C and 1.5 °C 2050 Paris Agreement targets was 26,385 ktCO2eq and 18,684 ktCO2eq, respectively. This results in a carbon budget exceedance by 5.2 and 7.3 times for the 2 and 1.5 °C scenarios, which implies that the residential housing being constructed, as in this case study, in NZ is unlikely to meet the 2050 Paris Agreement targets. In addition, the disparity between NZ’s detached housing emissions and allowable levels is unlikely to be remedied by small-scale material amendments. Therefore, the policymakers need to consider the necessary changes for the residential building and construction sector to meet their proposed mandatory actions and 2050 Paris Agreement targets. More government regulations are required to reduce emissions and facilitate an accelerated regulatory schedule of carbon reporting and capping. This research also identifies potential areas that need to be focused on to guide builders and designers in achieving the improvements needed to reduce the environmental impact from the construction sector, not only in NZ but also worldwide.
Although the findings of this study suggest that steel-framed detached houses exceed the carbon budget and 2050 Paris Agreement targets in the 2018–2050 period, critical assumptions were made throughout the study, potentially restricting the findings. Further studies are necessary, given that MBIE’s building and residential sector regulations may soon include obligatory whole-of-life embodied carbon emission and operational emission limits and consider the NZ government’s overall emission budgets to be set in 2022. More research will assist policymakers in understanding the realistic caps and measures implemented and the support needed for the residential building and construction sector to fulfil the overall 2050 Paris Agreement targets. It is recommended that more LCA studies on steel-framed houses using LCAQuick be conducted and account for pre-existing dwellings. The averaged climate change potential results within each life cycle stage can be obtained through more studies, and a more accurate carbon budget can be created to represent the newly built steel detached dwelling typology. Existing houses, while initially exempt from the MBIE’s mandatory caps, will eventually need to comply with the regulations and caps. It is also recommended that future studies focus on other indicators, including health, affordability, and other environmental impacts, except for carbon, to create a more holistic understanding of the sustainability of NZ’s steel detached dwelling sector.
Author Contributions
Conceptualization, H.W., K.R. and J.B.P.L.; methodology, H.W., E.H. and K.R.; investigation, H.W., H.L., K.R., E.H. and Z.F.; writing—original draft preparation, H.W. and H.L.; writing—review and editing, H.W., H.L., K.R., E.H., Z.F., K.D.S., N.C. and J.B.P.L. All authors have read and agreed to the published version of the manuscript.
Funding
This research received no external funding.
Institutional Review Board Statement
Not applicable.
Informed Consent Statement
Not applicable.
Data Availability Statement
Not applicable.
Conflicts of Interest
The authors declare no conflict of interest.
References
- Ministry of Business, Innovation, and Employment. Whole-of-Life Embodied Carbon Emissions Reduction Framework. Available online: https://www.mbie.govt.nz/dmsdocument/11794-whole-of-life-embodied-carbon-emissions-reduction-framework (accessed on 16 October 2021).
- Ministry for the Environment. Paris Agreement. Available online: https://environment.govt.nz/what-government-is-doing/international-action/about-theparis-agreement/ (accessed on 16 October 2021).
- Ministry of Business, Innovation, and Employment. Building for Climate Change. Available online: https://www.building.govt.nz/getting-started/building-for-climate-change/ (accessed on 16 October 2021).
- Ministry of Business, Innovation, and Employment. Transforming Operational Efficiency: Building for Climate Change Programme. Available online: https://www.mbie.govt.nz/dmsdocument/11793-transforming-operational-efficiency (accessed on 16 October 2021).
- McLaren, S.J.; Chandrakumar, C.; Dowdell, D.; Bullen, L.; Jaques, R. Application of Absolute Sustainability Assessment to New Zealand Residential Dwellings. IOP Conf. Ser. Earth Environ. Sci. 2020, 588, 022064. [Google Scholar] [CrossRef]
- Dani, A.A.; Roy, K.; Masood, R.; Fang, Z.; Lim, J.B.P. A Comparative Study on the Life Cycle Assessment of New Zealand Residential Buildings. Buildings 2022, 12, 50. [Google Scholar] [CrossRef]
- Fang, Z.; Roy, K.; Liang, H.; Poologanathan, K.; Ghosh, K.; Mohamed, A.M.; Lim, J.B.P. Numerical Simulation and Design Recommendations for Web Crippling Strength of Cold-Formed Steel Channels with Web Holes under Interior-One-Flange Loading at Elevated Temperatures. Buildings 2021, 11, 666. [Google Scholar] [CrossRef]
- Fang, Z.; Roy, K.; Ma, Q.; Uzzaman, A.; Lim, J.B.P. Application of deep learning method in web crippling strength prediction of cold-formed stainless steel channel sections under end-two-flange loading. Structures 2021, 33, 2903–2942. [Google Scholar] [CrossRef]
- Fang, Z.; Roy, K.; Chi, Y.; Chen, B.; Lim, J.B.P. Finite element analysis and proposed design rules for cold-formed stainless-steel channels with web holes under end-one-flange loading. Structures 2021, 34, 2876–2899. [Google Scholar] [CrossRef]
- Fang, Z.; Roy, K.; Uzzaman, A.; Lim, J.B.P. Numerical simulation and proposed design rules of cold-formed stainless-steel channels with web holes under interior-one-flange loading. Eng. Struct. 2021, 252, 113566. [Google Scholar] [CrossRef]
- Fang, Z.; Roy, K.; Chen, B.; Xie, Z.; Lim, J.B.P. Local and distortional buckling behavior of aluminum alloy back-to-back channels with web holes under axial compression. J. Build. Eng. 2022, 47, 103837. [Google Scholar] [CrossRef]
- Chi, Y.H.; Roy, K.; Chen, B.S.; Fang, Z.; Uzzaman, A.; Beulah Gnana Ananthi, G.; Lim, J.B.P. Effect of web hole spacing on axial capacity of back-to-back cold-formed steel channels with edge-stiffened holes. Steel Compos. Struct. 2021, 40, 287–305. [Google Scholar]
- Liu, H.; Yang, C.; Chen, Z.; Ying, J. Mechanical test of standard cold-formed square steel pipes at elevated temperatures. Prog. Steel Build. Struct. 2021, 23, 61–72. (In Chinese) [Google Scholar] [CrossRef]
- Guo, X.; Zong, S.; Cheng, Z.; Zhu, L.; Zhou, X. State-of-the-art of the research on corrosion resistance of aluminum alloy structures. Prog. Steel Build. Struct. 2021, 23, 1–12. (In Chinese) [Google Scholar] [CrossRef]
- Liu, P.; Qian, Z.; Du, P.; Ning, B. Experimental study on the connection performance for cold-formed steel stud and wooden boards under moisture environment. Prog. Steel Build. Struct. 2021, 23, 78–83. (In Chinese) [Google Scholar] [CrossRef]
- Yang, J.; Wang, W. The influence of high temperature creep on the fire resistance of cold-formed steel columns. Prog. Steel Build. Struct. 2021, 23, 67–75. (In Chinese) [Google Scholar] [CrossRef]
- Liu, K.; Chen, W.; Ye, J.; Jiang, J.; Xu, C. Fire experiments of cold-formed steel walls under high load ratios. Prog. Steel Build. Struct. 2021, 23, 84–88. (In Chinese) [Google Scholar] [CrossRef]
- Qian, Z.; Wang, J.; Wang, W.; Huang, S.; Pan, G. Numerical analysis on the seismic performance of cold-formed steel filled wall-assembled concrete frame structures. Prog. Steel Build. Struct. 2021, 23, 105–114. (In Chinese) [Google Scholar] [CrossRef]
- Zhang, J.; Sun, M. Numerical simulation and load-bearing capacity study for high strength cold-formed steel open section columns after fire exposure. Prog. Steel Build. Struct. 2021, 23, 61–71. (In Chinese) [Google Scholar] [CrossRef]
- Shen, H. The stability of high-strength steel welded thin-walled box beam-columns under biaxial bending. Prog. Steel Build. Struct. 2020, 22, 57–67. (In Chinese) [Google Scholar] [CrossRef]
- Yan, F.; Hua, B.; Wu, Y. Structural design of a super high-rise bank building in Uzbekistan under 9-degree seismic fortification intensity. Prog. Steel Build. Struct. 2020, 22, 94–102. (In Chinese) [Google Scholar] [CrossRef]
- Li, Z.; Jiang, S. Preliminary Study on the Feasibility of the integrated envelope-fire protection of steel structure column and wall. Prog. Steel Build. Struct. 2021, 23, 68–76. (In Chinese) [Google Scholar] [CrossRef]
- Fang, Z.; Roy, K.; Chen, B.; Sham, C.-W.; Hajirasouliha, I.; Lim, J.B.P. Deep learning-based procedure for structural de-sign of cold-formed steel channel sections with edge-stiffened and un-stiffened holes under axial compression. Thin-Walled Struct. 2021, 166, 108076. [Google Scholar] [CrossRef]
- Fang, Z.; Roy, K.; Mares, J.; Sham, C.-W.; Chen, B.; Lim, J.B.P. Deep learning-based axial capacity prediction for cold-formed steel channel sections using Deep Belief Network. Structures 2021, 33, 2792–2802. [Google Scholar] [CrossRef]
- Chen, B.; Roy, K.; Fang, Z.; Uzzaman, A.; Pham, C.H.; Raftery, G.; Lim, J.B.P. Shear behavior and design cold-formed steel channels with edge-stiffened hole, un-stiffened hole, and plain web. ASCE J. Struct. Eng. 2021, 148, 04021268. [Google Scholar] [CrossRef]
- Nie, S.; Zhou, T.; Liao, F.; Yang, D. Study on axial compressive behavior of quadruple C-channel built-up cold-formed steel columns. Struct. Eng. Mech. 2019, 70, 499–511. [Google Scholar]
- Chen, B.; Roy, K.; Fang, Z.; Uzzaman, A.; Raftery, G.; Lim, J.B.P. Moment capacity of back-to-back cold-formed steel channels with edge-stiffened holes, un-stiffened holes, and plain webs. Eng. Struct. 2021, 235, 112042. [Google Scholar] [CrossRef]
- Chen, B.; Roy, K.; Fang, Z.; Uzzaman, A.; Chi, Y.H.; Lim, J.B.P. Web crippling capacity of fastened cold-formed steel channels with edge-stiffened web holes, un-stiffened web holes and plain webs under two-flange loading. Thin-Walled Struct. 2021, 163, 107666. [Google Scholar] [CrossRef]
- Mojtabaei, S.M.; Hajirasouliha, I.; Ye, J. Optimisation of cold-formed steel beams for best seismic performance in bolted moment connections. J. Constr. Steel Res. 2021, 181, 106621. [Google Scholar] [CrossRef]
- Zhang, A.; Fang, H.; Liu, X.; Mou, J.; Shu, W.; Zhu, Z. Seismic responses analysis of long-span steel structure in C5 district of Beijing Daxing International Airport. Prog. Steel Build. Struct. 2021, 23, 25–30. (In Chinese) [Google Scholar] [CrossRef]
- Xie, B.; Guo, C.; Zhang, S.; Wang, Q.; Zheng, S.; Luo, J. High temperature material properties of S30408 austenitic stainless steel. Prog. Steel Build. Struct. 2021, 23, 53–61. (In Chinese) [Google Scholar] [CrossRef]
- Ma, J.; Wang, W.; Xing, Y.; Ding, Y. Research on the mechanical property of prefabricated cold-formed thin-walled steel composite wall with rigid frame. Prog. Steel Build. Struct. 2021, 23, 23–33. (In Chinese) [Google Scholar] [CrossRef]
- Li, X.; Wang, W.; Yu, K. Local buckling of Q690 high-strength steel columns subjected to axial compression at elevated temperature. Prog. Steel Build. Struct. 2021, 23, 54–63. (In Chinese) [Google Scholar] [CrossRef]
- Gao, W.; Wan, J.; Liu, S. A stability design theory for the steel members using asymmetric thin-walled open-sections. Prog. Steel Build. Struct. 2021, 23, 53–62. (In Chinese) [Google Scholar] [CrossRef]
- Wang, L.; Li, M.; Wang, Y. Physical damage of intumescent coatings and their effects on the temperature development of steel elements. Prog. Steel Build. Struct. 2021, 23, 76–83. (In Chinese) [Google Scholar] [CrossRef]
- Bi, C.; Jiao, Z.; Liu, X.; Wang, Y.; Liu, B. Buckling analysis and waveform optimization of corrugated steel plates subjected to compression. Prog. Steel Build. Struct. 2021, 23, 32–41. (In Chinese) [Google Scholar] [CrossRef]
- Wang, Y.; Zhang, Z.; Guo, J.; Shang, J.; Sun, X.; Yang, Z.; Gong, C.; Cai, Y. Research on the key technology and product application of light environment-friendly enclosure system of steel structure buildings. Prog. Steel Build. Struct. 2021, 23, 75–92. (In Chinese) [Google Scholar] [CrossRef]
- Yao, X.; Li, X. Tests and direct strength method on the distortional buckling and interactive buckling of cold-formed thin-walled steel built-up I-section columns under axial compression. Prog. Steel Build. Struct. 2021, 23, 33–46. (In Chinese) [Google Scholar] [CrossRef]
- Huang, L.; Shi, T.; Xu, J. Numerical study on the elastic overall buckling of thin-walled channel compressive members. Prog. Steel Build. Struct. 2021, 22, 11–17. (In Chinese) [Google Scholar] [CrossRef]
- Janarthanan, B.; Gunalan, S.; Mahendran, M. Numerical modelling of web crippling failures in cold-formed steel unlipped channel sections. J. Constr. Steel Res. 2019, 158, 486–501. [Google Scholar] [CrossRef]
- Janarthanan, B.; Gunalan, S.; Mahendran, M. Bearing capacity of cold-formed unlipped channels with restrained flanges under EOF and IOF load cases. Steel Constr. 2015, 8, 146–154. [Google Scholar] [CrossRef] [Green Version]
- Gunalan, S.; Mahendran, M. Experimental study of unlipped channel beams subject to web crippling under one flange load cases. Adv. Steel Constr. 2019, 15, 165–172. [Google Scholar]
- Gunalan, S.; Mahendran, M. Web crippling tests of cold-formed steel channels under two flange load cases. J. Constr. Steel Res. 2015, 110, 1–15. [Google Scholar] [CrossRef] [Green Version]
- Roy, K.; Lau, H.H.; Huon Ting, T.C.; Masood, R.; Kumar, A.; Lim, J.B.P. Experiments and finite element modelling of screw pattern of self-drilling screw connections for high strength cold-formed steel. Thin-Walled Struct. 2019, 145, 106393. [Google Scholar] [CrossRef]
- Roy, K.; Lau, H.H.; Ting, T.C.H.; Chen, B.; Lim, J.B.P. Flexural capacity of gapped built-up cold-formed steel channel sections including web stiffeners. J. Constr. Steel Res. 2020, 172, 106154. [Google Scholar] [CrossRef]
- Uzzaman, A.; Lim, J.B.P.; Nash, D.; Roy, K. Cold-formed steel channel sections under end-two-flange loading condition: Design for edge-stiffened holes, unstiffened holes and plain webs. Thin-Walled Struct. 2020, 147, 106532. [Google Scholar] [CrossRef]
- Roy, K.; Ting, T.C.H.; Lau, H.H.; Lim, J.B.P. Experimental and numerical investigations on the axial capacity of cold-formed steel built-up box sections. J. Constr. Steel Res. 2019, 160, 411–427. [Google Scholar] [CrossRef]
- Roy, K.; Ting, T.C.H.; Lau, H.H.; Lim, J.B.P. Nonlinear behaviour of back-to-back gapped built-up cold-formed steel channel sections under compression. J. Constr. Steel Res. 2018, 147, 257–276. [Google Scholar] [CrossRef]
- Liang, H.; Roy, K.; Fang, Z.; Lim, J.B.P. A Critical Review on Optimization of Cold-Formed Steel Members for Better Structural and Thermal Performances. Buildings 2022, 12, 34. [Google Scholar] [CrossRef]
- Roy, K.; Chen, B.; Fang, Z.; Uzzaman, A.; Chen, X.; Lim, J.B.P. Local and distortional buckling behavior of back-to-back built-up aluminium alloy channel section columns. Thin-Walled Struct. 2021, 163, 107713. [Google Scholar] [CrossRef]
- Roy, K.; Chen, B.S.; Fang, Z.; Uzzaman, A.; Lim, J.B.P. Axial capacity of back-to-back built-up aluminum alloy channel section columns. ASCE J. Struct. Eng. 2021, 148, 04021265. [Google Scholar] [CrossRef]
- Mojtabaei, S.M.; Becque, J.; Hajirasouliha, I. Local buckling in cold-formed steel moment resisting bolted connections: Behaviour, capacity and design. J. Struct. Eng. 2020, 146, 04020167. [Google Scholar] [CrossRef]
- Alsanat, H.; Gunalan, S.; Keerthan, P.; Guan, H.; Tsavdaridis, K.D. Numerical investigation of web crippling in fastened aluminium lipped channel sections under two-flange loading conditions. Structures 2020, 23, 351–365. [Google Scholar] [CrossRef]
- Alsanat, H.; Gunalan, S.; Keerthan, P.; Guan, H.; Baniotopoulos, C. Fastened Aluminum-Lipped Channel Sections Subjected to Web Crippling under Two-Flange Loading Conditions: Experimental Study. J. Struct. Eng. 2020, 146, 04020023. [Google Scholar] [CrossRef]
- Alsanat, H.; Gunalan, S.; Keerthan, P.; Guan, H. Web crippling capacities of fastened aluminum lipped channel sections subjected to one-flange loading conditions. Structures 2021, 33, 1754–1763. [Google Scholar] [CrossRef]
- Alsanat, H.; Gunalan, S.; Keerthan, P.; Guan, H. Web crippling investigations of aluminum lipped channel sections under one-flange loading conditions. Thin-Walled Struct. 2021, 166, 108025. [Google Scholar] [CrossRef]
- Mojtabaei, S.M.; Becque, J.; Hajirasouliha, I. Behavior and Design of Cold-Formed Steel Bolted Connections Subjected to Combined Actions. J. Struct. Eng. 2021, 147, 04021013. [Google Scholar] [CrossRef]
- Mojtabaei, S.M.; Becque, J.; Hajirasouliha, I. Structural Size Optimization of Single and Built-Up Cold-Formed Steel Beam-Column Members. J. Struct. Eng. 2021, 147, 04021030. [Google Scholar] [CrossRef]
- Ministry for the Environment. Climate Change Response (Zero-Carbon) Amendment Act 2019. Available online: https://environment.govt.nz/acts-and-regulations/acts/climate-change-responseamendment-act-2019/ (accessed on 16 October 2021).
- New Zealand Government. Ināia Tonu Nei: A Low Emissions Future for Aotearoa. Available online: https://www.climatecommission.govt.nz/our-work/advice-to-government-topic/inaia-tonu-nei-a-low-emissions-future-for-aotearoa/ (accessed on 16 October 2021).
- Wu, H. Analysing the Climate Change Potential of Residential Steel Buildings in New Zealand and Their Alignment in Meeting the 2050 Paris Agreement Targets. Bachelor’s Thesis, The University of Auckland, Auckland, New Zealand, October 2021. [Google Scholar]
- Ministry of Business, Innovation and Employment. Building for Climate Change: Research Analysis of Submissions Received from the 2020 Building for Climate Change Frameworks Consultation. Available online: https://natlibprimo.hosted.exlibrisgroup.com/primoexplore/fulldisplay?docid=NLNZ_ALMA11365807470002836&context=L&vid=NLNZ&search_scope=NLNZ&tab=catalogue&lang=en_US (accessed on 16 October 2021).
- Dixit, M.K.; Culp, C.H.; Fernández-Solís, J.L. System boundary for embodied energy in buildings: A conceptual model for definition. Renew. Sustain. Energy Rev. 2013, 21, 153–164. [Google Scholar] [CrossRef]
- Dixit, M.K.; Fernández-Solís, J.L.; Lavy, S.; Culp, C.H. Need for an embodied energy measurement protocol for buildings: A review paper. Renew. Sustain. Energy Rev. 2012, 16, 3730–3743. [Google Scholar] [CrossRef]
- Ministry of Business, Innovation and Employment. Electricity Demand and Generation Scenarios: Scenario and Results Summary. Available online: https://www.mbie.govt.nz/building-and-energy/energy-and-natural-resources/energy-statistics-and-modelling/energy-modelling/electricity-demand-and-generation-scenarios/ (accessed on 16 October 2021).
- Sacayon Madrigal, E.E. Assessment of the Life Cycle-Based Environmental Impacts of New Zealand Electricity: A Thesis Presented in Partial Fulfilment of the Requirements for the Degree of Master in Environmental Management at Massey University, Palmerston North, New Zealand. Massey University, Auckland, New Zealand, 2015. [Google Scholar]
- Ministry of Business, Innovation and Employment. Energy in New Zealand 2019. Available online: https://www.mbie.govt.nz/dmsdocument/7040-energy-in-new-zealand-2019 (accessed on 16 October 2021).
- Khasreen, M.; Banfill, P.F.; Menzies, G. Life-Cycle Assessment and the Environmental Impact of Buildings: A Review. Sustainability 2009, 1, 674–701. [Google Scholar] [CrossRef]
- ISO 14040:2006; Environmental Management—Life Cycle Assessment—Principles and Framework. ISO: Geneva, Switzerland, 2006.
- Bjørn, A.; Margni, M.; Roy, P.-O.; Bulle, C.; Hauschild, M.Z. A proposal to measure absolute environmental sustainability in life cycle assessment. Ecol. Indic. 2016, 63, 1–13. [Google Scholar] [CrossRef] [Green Version]
- BRANZ. Study Report SR349 New Zealand Whole Building Whole-of-Life Framework: An Overview. Available online: https://www.branz.co.nz/pubs/research-reports/sr349/ (accessed on 16 October 2021).
- Dixit, M.K. Life cycle embodied energy analysis of residential buildings: A review of literature to investigate embodied energy parameters. Renew. Sustain. Energy Rev. 2017, 79, 390–413. [Google Scholar] [CrossRef]
- Suh, S.; Lenzen, M.; Treloar, G.J.; Hondo, H.; Horvath, A.; Huppes, G.; Jolliet, O.; Klann, U.; Krewitt, W.; Moriguchi, Y.; et al. System Boundary Selection in Life-Cycle Inventories Using Hybrid Approaches. Environ. Sci. Technol. 2004, 38, 657–664. [Google Scholar] [CrossRef]
- Hossain, M.U.; Ng, S.T. Critical consideration of buildings’ environmental impact assessment towards adoption of circular economy: An analytical review. J. Clean. Prod. 2018, 205, 763–780. [Google Scholar] [CrossRef]
- Drysdale, D.; Nebel, B. Life Cycle Assessment of the Waitakere NOW Home® (SM3570/8). Available online: https://www.aucklandcouncil.govt.nz/plans-projects-policies-reports-bylaws/our-plans-strategies/unitary-plan/history-unitary-plan/documentssection32reportproposedaup/appendix-3-8-13.pdf (accessed on 16 October 2021).
- Nebel, B.; Szalay, Z. The Exemplar House—A Generic LCA Model for Houses in New Zealand. Available online: https://www.thesustainabilitysociety.org.nz/conference/2007/papers/NEBELThe%20Exemplar%20House.pdf (accessed on 16 October 2021).
- Zainon Noor, Z. Assessment of Embodied Energy and Global Warming Potential of Building Construction using Life Cycle Analysis Approach: Case Studies of Residential Buildings in Iskandar Malaysia. Energy Build. 2014, 93, 295–302. [Google Scholar] [CrossRef]
- Karimpour, M.; Belusko, M.; Xing, K.; Bruno, F. Minimising the life cycle energy of buildings: Review and analysis. Build. Environ. 2014, 73, 106–114. [Google Scholar] [CrossRef]
- BRANZ. A Study Report SR418 New Zealand Whole-Building Whole-of-Life Framework: LCAQuick v3.4—A Tool to Help Designers Understand How to Evaluate Building Environmental Performance. Available online: https://www.branz.co.nz/pubs/research-reports/sr418/ (accessed on 16 October 2021).
- BRANZ. Carbon Budget of New Zealand Buildings: A Sensitivity Assessment. Available online: https://www.branz.co.nz/pubs/research-reports/er63-carbon-budget-new-zealand-buildings-sensitivity-assessment// (accessed on 16 October 2021).
- Chandrakumar, C.; McLaren, S.J.; Dowdell, D.; Jaques, R. A science-based approach to setting climate targets for buildings: The case of a New Zealand detached house. Build. Environ. 2020, 169, 106560. [Google Scholar] [CrossRef]
- Ministry of Agriculture and Forestry. Life Cycle Assessment: Adopting and Adapting Overseas LCA Data and Methodologies for Building Materials in New Zealand. Available online: http://www.maf.govt.nz/news-resources/publications (accessed on 16 October 2021).
- GaBi Databases. Available online: https://gabi.sphera.com/databases/gabidatabases/ (accessed on 16 October 2021).
- SimaPro. Available online: https://simapro.com/about/ (accessed on 16 October 2021).
- BRANZ. Study Report SR351 New Zealand Whole-Building Whole-of-Life Framework: Development of Datasheets to Support Building Life Cycle Assessment. Available online: https://www.branz.co.nz/pubs/research-reports/sr351/ (accessed on 16 October 2021).
- Chandrakumar, C.; McLaren, S.J. Exploring the Linkages between the Environmental Sustainable Development Goals and Planetary Boundaries Using the DPSIR Impact Pathway Framework. In Designing Sustainable Technologies, Products and Policies: From Science to Innovation; Benetto, E., Gericke, K., Guiton, M., Eds.; Springer International Publishing: Cham, Switzerland, 2018; pp. 413–423. [Google Scholar]
- Chandrakumar, C.; McLaren, S.J. Towards a comprehensive absolute sustainability assessment method for effective Earth system governance: Defining key environmental indicators using an enhanced-DPSIR framework. Ecol. Indic. 2018, 90, 577–583. [Google Scholar] [CrossRef]
- Hauschild, M.Z. Better—But Is It Good Enough? On the Need to Consider Both Eco-Efficiency and Eco-Effectiveness to Gauge Industrial Sustainability. Procedia CIRP 2015, 29, 1–7. [Google Scholar] [CrossRef] [Green Version]
- Hollberg, A.; Lützkendorf, T.; Habert, G. Top-down or bottom-up?—How environmental benchmarks can support the design process. Build. Environ. 2019, 153, 148–157. [Google Scholar] [CrossRef]
- Singh, R.K.; Murty, H.R.; Gupta, S.K.; Dikshit, A.K. An overview of sustainability assessment methodologies. Ecol. Indic. 2012, 15, 281–299. [Google Scholar] [CrossRef]
- Bjørn, A.; Hauschild, M.Z. Introducing carrying capacity-based normalisation in LCA: Framework and development of references at midpoint level. Int. J. Life Cycle Assess. 2015, 20, 1005–1018. [Google Scholar] [CrossRef] [Green Version]
- Castellani, V.; Benini, L.; Sala, S.; Pant, R. A distance-to-target weighting method for Europe 2020. Int. J. Life Cycle Assess. 2016, 21, 1159–1169. [Google Scholar] [CrossRef] [Green Version]
- Seppälä, J.; Hämäläinen, R.P. On the meaning of the distance-to-target weighting method and normalisation in Life Cycle Impact assessment. Int. J. Life Cycle Assess. 2001, 6, 211. [Google Scholar] [CrossRef]
- Wang, H.; Hou, P.; Zhang, H.; Weng, D. A Novel Weighting Method in LCIA and Its Application in Chinese Policy Context. In Towards Life Cycle Sustainability Management; Finkbeiner, M., Ed.; Springer: Dordrecht, The Netherlands, 2011; pp. 65–72. [Google Scholar]
- Heeren, N.; Wallbaum, H.; Jakob, M. Towards a 2000 Watt society—Assessing building-specific saving potentials of the Swiss residential building stock. Int. J. Sustain. Build. Technol. Urban Dev. 2012, 3, 43–49. [Google Scholar] [CrossRef]
- Dong, Y.; Hauschild, M.Z. Indicators for Environmental Sustainability. Procedia CIRP 2017, 61, 697–702. [Google Scholar] [CrossRef]
- Wissenschaftlicher Beirat der Bundesregierung Globale Umweltveränderungen (Germany) (Ed.) World in Transition: A Social Contract for Sustainability; German Advisory Council on Global Change: Berlin, Germany, 2011. [Google Scholar]
- Steffen, W.; Richardson, K.; Rockström, J.; Cornell, S.E.; Fetzer, I.; Bennett, E.M.; Biggs, R.; Carpenter, S.R.; Vries, W.; Wit, C.A.; et al. Planetary boundaries: Guiding human development on a changing planet. Science 2015, 347, 1259855. [Google Scholar] [CrossRef] [Green Version]
- Ryberg, M.W.; Owsianiak, M.; Richardson, K.; Hauschild, M.Z. Challenges in implementing a Planetary Boundaries based Life-Cycle Impact Assessment methodology. J. Clean. Prod. 2016, 139, 450–459. [Google Scholar] [CrossRef] [Green Version]
- BRANZ. SR422 Physical Characteristics of New Houses 2018. Available online: https://www.branz.co.nz/pubs/research-reports/sr422/ (accessed on 16 October 2021).
- Kanemoto, K.; Moran, D.; Hertwich, E.G. Mapping the Carbon Footprint of Nations. Environ. Sci. Technol. 2016, 50, 10512–10517. [Google Scholar] [CrossRef]
- Statistics New Zealand. Available online: http://infoshare.stats.govt.nz/SelectVariables.aspx?pxID=21807d6f-58c4-4667-bf31-b3244b22fe66 (accessed on 16 October 2021).
- BRANZ. Water End Use and Efficiency Project (WEEP) (SR 159). Available online: https://d39d3mj7qio96p.cloudfront.net/media/documents/SR159_Water_End_Use_and_Efficiency_Project_WEEP.pdf (accessed on 16 October 2021).
Publisher’s Note: MDPI stays neutral with regard to jurisdictional claims in published maps and institutional affiliations. |
© 2022 by the authors. Licensee MDPI, Basel, Switzerland. This article is an open access article distributed under the terms and conditions of the Creative Commons Attribution (CC BY) license (https://creativecommons.org/licenses/by/4.0/).




