Next Article in Journal
Influence of Process Parameters on the Mechanical Properties and Corrosion Resistance of Dissimilar Friction Stir Welded Joints of AA2024-O and AA6061-O Aluminum Alloys
Next Article in Special Issue
Fatigue Life Assessment of Corroded AlSi10MgMn Specimens
Previous Article in Journal
Effects of PVD CrAlN/(CrAlB)N/CrAlN Coating on Pin–Disc Friction Properties of Ti2AlNb Alloys Compared to WC/Co Carbide at Evaluated Temperatures
Previous Article in Special Issue
Influence of Loading Waveform on the Fatigue Life of 34CrNi3MoVA Steel
 
 
Font Type:
Arial Georgia Verdana
Font Size:
Aa Aa Aa
Line Spacing:
Column Width:
Background:
Article

Physical Simulation of Mold Steels Repaired by Laser Beam Fusion Deposition

1
Department of Mechanical Engineering, CEMMPRE, ARISE, University of Coimbra, Rua Luís Reis Santos, 3030-788 Coimbra, Portugal
2
Department of Mechanical Engineering, School Tech and Management, Polytechnic Institute of Leiria, 2411-901 Leiria, Portugal
3
Department of Mechanical Engineering, Coimbra Institute of Engineering, Polytechnic University of Coimbra, Rua Pedro Nunes, 3030-199 Coimbra, Portugal
*
Author to whom correspondence should be addressed.
Metals 2024, 14(6), 663; https://doi.org/10.3390/met14060663
Submission received: 27 April 2024 / Revised: 27 May 2024 / Accepted: 30 May 2024 / Published: 3 June 2024
(This article belongs to the Special Issue Fatigue Assessment of Metals)

Abstract

In the present work, a study of the fatigue strength of two materials widely used in the production of molds, namely, the AISI P20 and AISI H13 steels, is presented. The tests were performed at a constant amplitude with a stress ratio of R = 0 using samples where U-shaped notches were filled with laser beam fusion deposition. Three different sets of deposition parameters for each material were analyzed. Fatigue strength results are presented as S-N curves obtained for filled and non-filled materials. In addition to the assessment of the fatigue strength, metallography, hardness, and the fracture surface of the specimens tested were also evaluated. In general, a high number of metallurgic defects was detected, and consequently, a decrease in the mechanical properties of the materials was observed, especially the fatigue strength. However, the parameter optimization of the repairing laser process produced repaired zones with good metallurgical quality, leading to higher fatigue strength in both of the high-strength steels analyzed.

1. Introduction

The mold industry has been growing and consolidating itself in international markets, driven by the fact that it uses innovative precision machine tools and CAD/CAM/CAE systems in the design and manufacturing of molds. The shapes and manufacturing of molds or dies are usually very precise and exact, which consequently entails a high cost. In fact, the manufacturing steps are the most expensive, mainly the machining and polishing parts, which comprise approximately 60% of the total mold cost. The cyclic loads and the thermal variations that the mold suffers, mainly in injection molds for polymers and aluminum alloys, result in damages that appear in the form of wear and fatigue cracks. Attending to this and to the high costs of producing a new mold or die, the possibility of repairing molds via laser beam fusion with minimal loss of quality becomes relevant [1,2]. Using the Nd-YAG laser fusion system for this purpose, which is a highly flexible process, presents a very precise deposition of a small volume of filler material as the main advantage compared to other methods.
Currently, most of the mold industry uses AISI H13 and AISI P20 steels for aluminum and magnesium alloy casting processes, as well as for plastic injection casting [3,4].
Hence, the repair of damaged components using suitable procedures has emerged as a novel study area [4]. Nevertheless, conventional repair techniques, including metal inert gas welding, tungsten inert gas welding, electroplating brushing, and laser cladding, exhibit certain limitations, such as vulnerability to fracture, insufficient interface bonding, nonuniform structures, and suboptimal characteristics [5,6]. Laser beam fusion deposition (LBFD) is an emerging repair technique that integrates the benefits of laser cladding with forming methodologies. The LBFD method has effectively addressed issues encountered in conventional repair procedures in terms of shape repair, tissue performance, and mechanical property recovery. Furthermore, the repaired zone (RZ) exhibits mechanical characteristics that are equivalent or even superior to those of the original material [6].
Material deposition using lasers as heat sources is actually a preferred choice over conventional processes due to the low heat input. Material deposition using lasers produces a small heat-affected zone, a slight undercut, and a very small weld volume, which represent advantages when compared with conventional process [3]. Through filler in the form of wire or powder material, the deposition methods based on lasers are successful and used for die and mold repair applications [6,7]. The recent advances in compact solid-state lasers have brought this technology to par with conventional processes in terms of space, maneuverability, and adaptability [8].
Laser-based material deposition principally uses material in powder or in wire form, as described previously. Wire feeding is preferred for the manufacturing of components when involving constant deposition, because alternating start/stop results in discontinuity in the deposited material. Using wire feeding, the wire is always in direct contact with the melt pool on the substrate in order to create the material deposition. Any inaccuracy in wire positioning or wire-feed rate changes the shape and size of the melt pool. This event leads to a non-uniform shape of the deposited material track. A good quality deposition means that the deposited material bonds well to the substrate and that the fed material spreads out during deposition, resulting in a uniform, smooth surface (without underfill) and a low number of internal defects such as a lack of fusion or porosities [9,10]. The most frequent causes of failures of molds or dies during their useful lives are high thermal shocks, mechanical strain, cyclic loading (fatigue), and corrosion, resulting in heat checking, wear, and plastic deformation. In this study, the priority will be given to fatigue phenomena that are strongly affected by superficial and internal defects of parts repaired by means of laser beam fusion deposition. This influence can be more or less significant depending on the severity and type of the defect present in the repaired zone. Planar defects, such as a lack of fusion and penetration, are considered the most serious since they reduce the resistant cross-sectional area of the material, acting as critical points of stress concentrations [11]. The substantial reduction in fatigue strength in repaired or welded parts due to laser beam fusion deposition occurs because of the presence of defects acting as fatigue pre-cracks [12,13,14,15,16].
In this study, a fatigue assessment was performed on steels with surface defects repaired by a laser process. An Nd-YAG laser was used to simulate the repairing of a mold part. Fatigue tests were conducted on both plain and repaired specimens. Microhardness analyses of the laser beam fusion regions and fracture toughness tests were also performed. Finally, an analysis of the fracture surface and crack path regions was carried out.
The main objective of this work is to improve the quality of mold restoration using laser deposition by initially studying the laser deposition parameters collected from common practices in the mold repair industry, and then improving these parameters to achieve better repairing quality.

2. Materials and Methods

In this work, two different steels commonly used in the mold industry were studied, namely, the AISI H13 and the AISI P20 steels. The average chemical composition of each material is presented in Table 1.
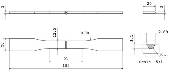
The geometry used for the specimens repaired by the laser beam fusion deposition is presented in Figure 1. The same geometry was used for the series without reparation, where the small cavity was not machined.
The small cavity was produced via machining, and, afterwards, the repair process consisted of refilling this cavity using the filler material through manual laser beam fusion deposition. The exceeded material was removed by machining, and then all specimens were rectified until the dimensions shown in Figure 1 were achieved. The filler material was used in wire form in all series. The designations QuFe10 and QuFe13 were applied for the steels AISI P20 and AISI H13, respectively. The main chemical and mechanical properties of the steels are presented in Table 2.
A welding machine, CRONITEX Vario Laser 9000 Compact Laser® (Bergisch Gladbach, Germany), was employed to perform the repair process. Initially, in a preliminary study, two different parameters of laser beam fusion deposition were used for each material. Thus, from each material, a series reference according to the parameters used in the repair process was created. Table 3 shows the different values of these process parameters used for each steel in two non-optimized series (PM1 and PM2). These parameters were collected with a practice commonly used in the mold repair industry. After the analysis of each non-optimized case, a new, optimized series for each steel (PM3) was introduced. This last series will be discussed in another section, because only the fatigue performance and the fatigue fracture surfaces were analyzed with respect to PM3.
Tensile tests were carried out in an Instron electro-mechanical tensile/compression testing machine, model 4206, at room temperature by applying a testing speed of 2 mm/min. Fatigue tests were conducted using an Instron servo-hydraulic machine (Norwood, MA, USA) by applying a sinusoidal load. The load direction was applied normally to the specimens cross section with a stress ratio of R = 0, using a frequency of 20–30 Hz depending upon the stress level. Fatigue results were plotted as S–N curves, presenting the stress range against the number of cycles to failure. For complementary analysis, hardness profiles, metallographic analysis, and fracture surface analysis were performed. The two halves of the broken samples were prepared and subsequently etched with 5% Picral solution plus 0.01% of hydrochloric acid. This procedure was applied following the recommendations of the ASTM E3-11 [17] standard. The samples were observed and photographed using a Leica® DM4000 M LED (Wetzlar, Germany) optical microscope. The microhardness analysis was achieved through indentations made with a 1000 g load for a duration of 15 s, with 0.25 mm spacing between them and 0.5 mm away from the surface, according to the ASTM E384-22 standard [18]. Fracture toughness tests were performed using three-point bending (3PB) specimens with 30 mm length, 8 mm weight, and 4 mm thickness according to the ASTM E399 standard [19]. The crack opening displacement was recorded through a blade extensometer (MTS®, MTS Systems, Eden Prairie, MN, USA: ±2.5 mm), and the 3PB tests were carried out using an Instron ElectroPuls E10000 (Norwood, MA, USA).

3. Results

Figure 2 shows all hardness profiles obtained for the PM1 and PM2 series for each steel, where BM is the base material, HAZ is the heat-affected zone, and FZ is the fused zone.
Regarding to H13 series, a hardness decrease in the FZ for the two repaired series was obtained, reaching minimum values of 307 HV1 and 318 HV1 for PM1 and PM2, respectively (approximately a 29% reduction in the filler material’s hardness after the deposition process). This behavior was caused by the melting and re-melting of the filler material. Figure 2b shows the hardness profiles of the P20 series. It is possible to observe from these profiles that there was no significant variation in the three series of the P20 material.
The uniaxial tensile tests curves are displayed in Figure 3. These figures show that the hardness reduction in the repaired zones only had an influence on the H13 series, which revealed a higher decrease in the tensile strength. On the other hand, in the P20 series, the influence of the hardness profile was insignificant. As discussed later on, the main factor that determines the mechanical behavior is the presence of deposition defects. Nevertheless, the combined effect of decreases in hardness and the presence of defects led to a strong decline in the mechanical behavior in the H13_PM2 series.
In all cases, losses of ductility and ultimate strength were observed when comparing all repaired conditions with the BM series, as can be interpreted by observing Figure 3.
Table 4 presents the mechanical parameters obtained from the uniaxial tensile tests for each series. It is clearly observed that the ductility loss was higher in the PM2 series for each test condition. This behavior can be justified by fusion deposition defects such as porosities and lack of fusion, among others.
The fracture toughness is an important parameter that allows unstable fracture to be avoided. Table 5 presents the critical intensity factor for each condition analyzed.
The effect of specimen reparation resulted in a loss of fracture toughness in comparison to the BM condition. Similar values of KIC for PM1 and PM2 series were obtained. The H13 high-strength steel presented a strong reduction in fracture toughness due to the repair process because the KIC value of the BM series was almost 100% higher in comparison to the values obtained for the PM1 and PM2 test conditions. However, in the P20 tool steel, the fracture toughness remained approximately constant, indicating that the repair process parameters did not affect this parameter. This fracture toughness reduction can be explained by the deposition defects found in each series. Figure 4 depicts the fracture profile for each series.
Figure 4 shows that the repair process applied in both series introduced a high amount of deposition defects, such as porosity, non-wetting, and unfused zones. The presence of these defects led to a lower mechanical performance. However, when comparing both steel series, a lower number of deposition defects was observed in the P20 steel, demonstrating the better weldability of this steel.
Figure 5 shows the S-N curves for each case studied regarding the effect of the repairing process on the fatigue behavior. All series suffered reductions in fatigue strength in comparison to the BM, mainly due to the metallurgical defects found in the repaired zones. Table 6 presents the percentage reduction in the fatigue strength for each series.
Figure 6 and Figure 7 present the fatigue fracture surfaces for all series. It can be clearly observed that there were very important metallurgical defects introduced by the repairing process (PM1 and PM2), such as incomplete fusion. Incomplete fusion, where the repaired zone does not fully integrate with the base material, creates weak spots that are highly susceptible to fatigue crack initiation. These weak spots reduce the overall load-bearing capacity of the material, leading to premature failure. Similarly, porosity, which refers to trapped gas pockets within the weld, compromises the uniformity and mechanical properties of the material. The presence of these voids can significantly reduce the fatigue strength, as they act as stress risers.
In order to minimize the loss of fatigue strength in each steel, a new set of repairing parameters was used (obtained through a trial and error process), implying a greater amount of energy induced during the repair process, which contributed to better penetration and fusion in both steels. Table 7 presents the parameters used for the laser beam fusion deposition process in the optimized series (PM3). The QuFe13 filler material was used in this series.
In the first approach, a metallographic observation was used to analyze the PM3 series. Figure 8 clearly shows a drastic metallurgical defect reduction in comparison with previously analyzed series PM1 and PM2. The arrows mark small metallurgical defects, such as a lack of fusion. As expected, this metallurgical defect reduction is reflected in the fatigue resistance of the PM3 series. This test series presents the higher fatigue strength of all the analyzed series, which, therefore, underwent a lower loss of fatigue strength compared to the base material, as can be observed in Figure 9. This figure shows the comparison of the S-N curves (R = 0) for all tested series (PM1, PM2, and PM3). The PM3 series presents a reduction in fatigue strength in comparison with the BM of about 34.22% for the H13 steel and 30.68% for the P20 steel, which represents a much lower reduction than those observed for the PM1 and PM2 series.
Figure 10 presents an example of the fatigue fracture surfaces for the PM3 series, where Figure 10a corresponds to the H13 steel and Figure 10b to the P20 steel. The black arrows point out small incomplete fusions while the yellow arrows highlight some porosity. By analyzing the facture surfaces resulting from the fatigue tests, it is possible to confirm the drastic reduction in metallurgical defects in comparison with the PM1 and PM2 series. Only small porosities and a lack of fusion were observed, thus resulting in significantly fewer critical defects than in the PM2 and PM3 series.

4. Discussion

The main objective of this work was to study the fatigue behavior of AISI H13 and AISI P20 steels previously prepared with U-shaped notches and filled via laser beam fusion deposition, then subjected to dynamic loads with a stress ratio of R = 0. As already mentioned, these materials are widely used in the mold industry. For example, they are used for aluminum casting molds, plastic injection molds, and hot work tools.
Regarding hardness tests, in both repaired series studied herein, there was a momentary increase in the hardness value in the HAZ caused by decarburization and the formation of hard carbides in the area. These hardness values quickly returned to typical BM values when approaching this zone. In FZ, there was a significant decrease in hardness due to carbon migration, but also due to the melting of the filling material, which resulted in a detrimental effect on the mechanical properties in this area (mainly in the H13 steel series). It was observed through tensile tests that the repair process caused a decrease in the ultimate stress of the materials, and that there was also a marked decrease in ductility at failure, just above yield stress, especially in the H13 repaired series, which only achieved a strain rate close to 1%. The non-optimized series that were repaired in order to simulate a mold repair process had much lower fatigue strength when compared to their respective base materials. This is a consequence of the notch introduction and subsequent filling with the additional material. Likewise, the severity of the defects observed in the molten zone negatively influenced the fatigue life of the materials since they promoted nucleation, followed by propagation of cracks, representing potential sites of failure. In general, the PM1 repair parameters led to higher fatigue strength than the PM2 parameters in both steels. From the macrographs of the fracture surface, it is possible to identify that the reason for this behavior was the higher rate of planar defects present in the PM2 series. Regarding the fatigue life of the steels, it was found that the P20 repaired series showed better fatigue strength than the H13 series for the two repair parameters used, which indicates a lower weldability of H13 steel in comparison to P20 steel, as well as higher defect sensibility.
A lower amount of energy was introduced (see Table 3) in the repairing process when comparing the repairing parameters of the PM2 series with the PM1 series. Therefore, a lower quality of reparation was achieved when using the PM2 parameters. Nevertheless, the amount of energy did not seem to be appropriate in either case, given that both showed critical defects, namely, unfused zones. The worst case was the PM2 repair parameters.
The metallographic analysis revealed metallurgical defects like porosity, non-wetting, and unfused zones. These defects had a negative influence on the mechanical strength. In both materials, the PM2 series showed the worst mechanical behavior. The fatigue life is strongly influenced by the quantity, size, and location of metallurgic defects [20]. However, the reparation process was applied with success, and can be applied as palliative reparation using the laser beam fusion deposition parameters used in the PM3 test series. Introducing a slightly higher amount of energy in the repair process would avoid the most critical defects, such as unfused zones, leading to good mechanical behavior.
The power of a laser significantly influences the metallurgical defects observed in metallic materials during laser processing. High laser power can lead to increased temperatures, which in turn affect the microstructure and mechanical properties of the material. For instance, excessive laser power can cause overheating, resulting in defects such as porosity, cracking, and excessive grain growth. These defects are critical in applications requiring high precision and mechanical strength. Porosity, a common defect, occurs when gas bubbles are trapped during rapid solidification. This can weaken the material and lead to failure under stress. Cracking, another defect, often results from thermal stresses due to rapid cooling and solidification rates. High power density can also induce unwanted phase transformations, leading to the formation of brittle phases that degrade the material’s performance. A lack of fusion, resulting from lower energy density from laser deposition in the same way as the internal porosity, can weaken the material and lead to failure under stress.
Studies have shown that optimizing laser parameters, including power, is crucial to minimizing these defects. For example, laser welding requires careful control of power to ensure a balance between penetration depth and heat input while avoiding defects. By understanding the interplay between laser power and metallurgical responses, engineers can better tailor laser processing techniques to enhance the quality and reliability of metallic components [21,22].

5. Conclusions

In this work, experimental simulations of molds successfully repaired by applying the laser beam fusion deposition process were performed. The metallurgical defects had a strong influence on the fatigue strength. The metallurgical defects were reduced when the heat input in the repaired zone was increased. Suitable parameters were found which reduced the metallurgical defects, leading to higher fatigue strength in comparison to the parameters commonly used in the mold industry when applying this repairing process.

Author Contributions

J.d.J.: data curation, formal analysis, methodology, validation, writing—original draft. J.A.M.F.: funding acquisition, project administration, supervision, writing—original draft. J.D.M.d.C.: supervision, methodology, validation. C.C.: resources, writing—review and editing, validation. L.B.: validation, writing—review and editing. All authors have read and agreed to the published version of the manuscript.

Funding

This research was funded by the Portuguese Foundation of Science and Technology (FCT) under the projects UIDB/00285/2020 and LA/P/0112/2020.

Data Availability Statement

The raw data supporting the conclusions of this article will be made available by the authors on request.

Acknowledgments

The authors gratefully acknowledge the financial support through the Portuguese Foundation of Science and Technology (FCT) under the projects UIDB/00285/2020 and LA/P/0112/2020.

Conflicts of Interest

The authors declare no conflicts of interest.

References

  1. Suarez, A.; Suarez, A.M.; Preciado, W.T. Arc Welding Procedures on Steels for Molds and Dies. Energy Procedia 2015, 100, 584–591. [Google Scholar] [CrossRef]
  2. Borrego, L.P.; Pires, J.T.B.; Costa, J.M.; Ferreira, J.M. Fatigue Behaviour of Laser Repairing Welded Joints. Eng. Fail. Anal. 2007, 14, 1586–1593. [Google Scholar] [CrossRef]
  3. Borrego, L.P.; Pires, J.T.B.; Costa, J.M.; Ferreira, J.M. Mould Steels Repaired by Laser Welding. Eng. Fail. Anal. 2009, 16, 596–607. [Google Scholar] [CrossRef]
  4. Costa, J.M.; Pires, J.T.B.; Antunes, F.; Nobre, J.P.; Borrego, L.P. Residual stresses analysis of ND-YAG laser welded joints. Eng. Fail. Anal. 2010, 17, 28–37. [Google Scholar] [CrossRef]
  5. Liu, Q.; Wang, Y.; Zheng, H.; Tang, K.; Li, H.; Gong, S. TC17 titanium alloy laser melting deposition restoration process and properties. Opt. Laser Technol. 2016, 82, 1–9. [Google Scholar] [CrossRef]
  6. Aprilia, A.; Wu, N.; Zhou, W. Repair and restoration of engineering components by 642 laser directed energy deposition. J. Mater. Today Proc. 2022, 70, 206–211. [Google Scholar] [CrossRef]
  7. Zhao, Z.; Chen, J.; Tan, H.; Lin, X.; Huang, W. Evolution of plastic deformation and its effect on mechanical properties of laser additive repaired Ti64ELI titanium alloy. Opt. Laser Technol. 2017, 92, 36–43. [Google Scholar] [CrossRef]
  8. He, B. Research on the failure and material selection of Plastic mold. Procedia Eng. 2011, 23, 46–52. [Google Scholar] [CrossRef]
  9. Jhavar, S.; Paul, C.P.; Jain, N.K. Causes of failure and repairing options for dies and molds: A review. Eng. Fail. Anal. 2013, 34, 519–535. [Google Scholar] [CrossRef]
  10. Grum, J.; Slabe, J.M. A comparison of tool-repair methods using CO2 laser surfacing and arc surfacing. Appl. Surf. Sci. 2003, 208, 424–431. [Google Scholar] [CrossRef]
  11. Selcuk, C. Laser metal deposition for powder metallurgy parts. Powder Met. 2011, 54, 94–99. [Google Scholar] [CrossRef]
  12. Zadpoor, A.A. Frontiers of additively manufactured metallic materials. Materials 2018, 11, 1566. [Google Scholar] [CrossRef] [PubMed]
  13. Akinlabi, E.T.; Mahamood, R.M.; Akinlabi, S.A. Advanced Manufacturing Techniques Using Laser Material Processing; Akinlabi, E.T., Mahamood, R.M., Akinlabi, S.A., Eds.; IGI Global: Hershey, PA, USA, 2016. [Google Scholar]
  14. Brøtan, V.; Berg, O.Å.; Sørby, K. Additive manufacturing for enhanced performance of molds. Procedia Cirp 2016, 54, 186–190. [Google Scholar] [CrossRef]
  15. Firrao, D.; Gerosa, R.; Ghidini, A.; Matteis, P.; Mortarino, G.I.O.V.A.N.N.I.; Pinasco, M.R.; Rivolta, B.; Silva, G.; Stagno, E. Relation between Fatigue Crack Initiation and Propagation, Toughness and Microstructure in Large Steel Blooms for Automotive Plastic Molds. Int. J. Fatigue 2007, 29, 1880–1884. [Google Scholar] [CrossRef]
  16. Preciado, W.T.; Bohorquez, C.E.N. Repair Welding of Polymer Injection Molds Manufactured in AISI P20 and VP50IM Steels. J. Mater. Process. Technol. 2006, 179, 244–250. [Google Scholar] [CrossRef]
  17. ASTM E3-11; Standard Guide for Preparation of Metallographic Specimens. ASTM: West Conshohocken, PA, USA, 2017.
  18. ASTM E384-22; Standard Test Method for Microindentation Hardness of Materials. ASTM: West Conshohocken, PA, USA, 2022.
  19. ASTM E399-22; Standard Test Method for Linear-Elastic Plane-Strain Fracture Toughness of Metallic Materials. ASTM: West Conshohocken, PA, USA, 2023.
  20. Riofrío, P.G.; de Jesus, J.; Ferreira, J.A.M.; Capela, C. Influence of Local Properties on Fatigue Crack Growth of Laser Butt Welds in Thin Plates of High-Strength Low-Alloy Steel. Appl. Sci. 2021, 11, 7346. [Google Scholar] [CrossRef]
  21. Suryakumar, K.; Somashekara, M.A.; Ramesh, S. Effect of Laser Power on Metallurgical and Mechanical Properties in Laser Welding of Stainless Steel. J. Mater. Process. Technol. 2017, 246, 1–8. [Google Scholar]
  22. Zhou, Y.; Tsai, H.L.; Wang, P.C. Effects of Welding Current and Power Density on Weld Quality in Laser Welding. Mater. Sci. Eng. A 2003, 358, 155–162. [Google Scholar]
Figure 1. Geometry of used specimens (mm).
Figure 1. Geometry of used specimens (mm).
Metals 14 00663 g001
Figure 2. Hardness profiles. (a) H13 PM1 and PM2 series and (b) P20, PM1, and PM2 series.
Figure 2. Hardness profiles. (a) H13 PM1 and PM2 series and (b) P20, PM1, and PM2 series.
Metals 14 00663 g002
Figure 3. Uniaxial tensile tests. (a) H13 PM1 and PM2 series. (b) P20, PM1, and PM2 series.
Figure 3. Uniaxial tensile tests. (a) H13 PM1 and PM2 series. (b) P20, PM1, and PM2 series.
Metals 14 00663 g003
Figure 4. Fracture profile for each series.
Figure 4. Fracture profile for each series.
Metals 14 00663 g004
Figure 5. S-N curves (R = 0). (a) H13 PM1 and PM2 series. (b) P20, PM1, and PM2 series.
Figure 5. S-N curves (R = 0). (a) H13 PM1 and PM2 series. (b) P20, PM1, and PM2 series.
Metals 14 00663 g005
Figure 6. Fatigue fracture surface for H13, PM1, and PM2 series.
Figure 6. Fatigue fracture surface for H13, PM1, and PM2 series.
Metals 14 00663 g006
Figure 7. Fatigue fracture surface for P20, PM1, and PM2 series.
Figure 7. Fatigue fracture surface for P20, PM1, and PM2 series.
Metals 14 00663 g007
Figure 8. Metallographic surfaces of PM3 series. (a) H13; (b) P20.
Figure 8. Metallographic surfaces of PM3 series. (a) H13; (b) P20.
Metals 14 00663 g008
Figure 9. S-N curves (R = 0) for all analyzed series. (a) H13; (b) P20.
Figure 9. S-N curves (R = 0) for all analyzed series. (a) H13; (b) P20.
Metals 14 00663 g009
Figure 10. Fatigue fracture surface for PM3 series. (a) H13; (b) P20.
Figure 10. Fatigue fracture surface for PM3 series. (a) H13; (b) P20.
Metals 14 00663 g010
Table 1. Average chemical composition of AISIH13 and AISI P20 steels (wt %).
Table 1. Average chemical composition of AISIH13 and AISI P20 steels (wt %).
SteelCSiMnCrMoNiV
AISI H130.32–0.450.80–1.200.20–0.504.75–5.501.10–1.750.300.8–1.20
AISI P200.28–0.400.20–0.800.60–1.001.40–2.000.30–0.551.00-
Table 2. Filler material used in the laser beam fusion deposition process.
Table 2. Filler material used in the laser beam fusion deposition process.
DesignationW-NrHardness (HV)Diameter (mm)εf (%)σuts (MPa)
QuFe101.5424286–3630.523–271130 MPa
Chemical composition (wt %)
SiCuMoMnNiCrFe
0.530.040.450.860.041.2Remainder
DesignationW-NrHardness (HV)Diameter (mm)εf (%)σuts (MPa)
QuFe131.5424413–4600.5301115 MPa
Chemical composition (wt %)
SiTiMoMnCCrFe
0.50.640.70.255Remainder
Table 3. Parameters used for laser beam fusion deposition process with each material (unoptimized series).
Table 3. Parameters used for laser beam fusion deposition process with each material (unoptimized series).
MaterialSeriesVoltage (V)Frequency (Hz)Energy (J)Power (kW)
AISI H13PM12755.617.72.5
PM2250116.22
AISI P20PM12755.617.72.5
PM2250116.22
Table 4. Mechanical parameters obtained from uniaxial tensile tests.
Table 4. Mechanical parameters obtained from uniaxial tensile tests.
Seriesσys (MPa)σuts (MPa)εf (%)σys Reduction (%)σuts Reduction (%)εf Reduction (%)
H13 BM131015379.35---
H13_PM1129013320.991.5213.3389.41
H13_PM2115011580.4612.2126.6195.08
P20 BM86899412.5---
P20_PM18479212.32.427.3481.61
P20_PM28808631.85013.1885.21
Table 5. Values obtained for fracture toughness (KIC).
Table 5. Values obtained for fracture toughness (KIC).
SeriesKIC (MPa·m0.5)Reduction (%)
H13 BM89.63-
H13_PM147.8646.61
H13_PM242.5352.55
P20 BM66.17-
P20_PM154.2118.07
P20_PM253.7218.81
Table 6. Fatigue strength for the analyzed test conditions.
Table 6. Fatigue strength for the analyzed test conditions.
Seriesσf, 106 Cycles [MPa]Reduction (%)
H13 BM865-
H13_PM125870.17
H13_PM220176.76
P20 BM642-
P20_PM128156.23
P20_PM225660.12
Table 7. Parameters used for the laser beam fusion deposition process in the optimized series.
Table 7. Parameters used for the laser beam fusion deposition process in the optimized series.
MaterialSeriesVoltage (V)Frequency (Hz)Energy (J)Power (kW)
AISI H13PM33257153.5
AISI P20PM33257153.5
Disclaimer/Publisher’s Note: The statements, opinions and data contained in all publications are solely those of the individual author(s) and contributor(s) and not of MDPI and/or the editor(s). MDPI and/or the editor(s) disclaim responsibility for any injury to people or property resulting from any ideas, methods, instructions or products referred to in the content.

Share and Cite

MDPI and ACS Style

de Jesus, J.; Ferreira, J.A.M.; Capela, C.; da Costa, J.D.M.; Borrego, L. Physical Simulation of Mold Steels Repaired by Laser Beam Fusion Deposition. Metals 2024, 14, 663. https://doi.org/10.3390/met14060663

AMA Style

de Jesus J, Ferreira JAM, Capela C, da Costa JDM, Borrego L. Physical Simulation of Mold Steels Repaired by Laser Beam Fusion Deposition. Metals. 2024; 14(6):663. https://doi.org/10.3390/met14060663

Chicago/Turabian Style

de Jesus, Joel, José A. M. Ferreira, Carlos Capela, José D. M. da Costa, and Luís Borrego. 2024. "Physical Simulation of Mold Steels Repaired by Laser Beam Fusion Deposition" Metals 14, no. 6: 663. https://doi.org/10.3390/met14060663

APA Style

de Jesus, J., Ferreira, J. A. M., Capela, C., da Costa, J. D. M., & Borrego, L. (2024). Physical Simulation of Mold Steels Repaired by Laser Beam Fusion Deposition. Metals, 14(6), 663. https://doi.org/10.3390/met14060663

Note that from the first issue of 2016, this journal uses article numbers instead of page numbers. See further details here.

Article Metrics

Back to TopTop