Abstract
The material characterization regarding sheet metal formability is usually assessed by the forming limit curve (FLC). The FLC requires specialized and expensive equipment, several samples with different geometries, and can be a very time-consuming procedure for data treatment. Alternatively, the hole expansion test (HET) and the Erichsen Cupping Test (ECT) can be used for routine evaluations of sheet metal mechanical behavior. These formability tests require fewer quantities of material and easy specimen preparation with a fast analysis of results. The HET and ECT procedures provide a proper evaluation of sheet material stretch-flangeability, formability, strength, and ductility. In this work, we developed a low-cost mechanical device capable of performing the HET and ECT tests using a universal testing machine. The equipment is designed to meet the test parameters set by ISO 16630 (HET) and ISO 20482 (ECT) standards. In order to verify its functionality, tests were carried out with the dual-phase steels DP600 and DP780. The corresponding values determined for the hole expansion ratio and the Erichsen index provided reliable results in terms of the accuracy and repeatability of the proposed testing device.
1. Introduction
Advanced high-strength steels (AHSS) are widely used in order to satisfy the requests of the automotive industry concerning weight reduction to meet the stringent global demands for fuel economy and reduced emissions. This fact is related to its multiphase microstructure, which confers a high compromise between strength and formability. However, Uthaisangsuk et al. [1] explain that these steels are sensitive to post-processing operations such as spot welding, stretch bending, and deep drawing that raise difficulties in describing their fracture behavior and predicting their ductility with conventional testing procedures, such as the forming limit diagram. Several vehicle parts made from metallic sheets present hole flanging assubsequently assembled with other components. During the manufacturing process, the hole is subjected to a combination of bending and stretching. Stretch-flangeability of sheet metal can be defined as a capacity to resist an edge crack during edge stretching deformation [2]. In order to investigate sheet flangeability, the hole expansion test, hereafter referred to as hole expansion test (HET), is generally adopted. The HET consists of expanding a hole employing a punch with a conical-tip through a die, aiming to form a flange around the periphery of the hole [3]. The stretch-flangeability of sheet metal can be evaluated by the hole expansion ratio (HER), which is defined according to the ISO 16630:2009 standard [4] and calculated as follows:
where is the average hole diameter after rupture and is the original hole diameter.
Another test also extensively adopted to assess the formability of metallic sheets is the Erichsen cupping test [5,6,7,8]. The Erichsen Cupping Test (ECT) is aimed to produce stretching conditions on thin sheets by imposing a spherical or hemispherical punch against a clamped specimen placed between a die and a blank-holder. The hemispherical tip of the punch stretches the sample until the through-thickness failure occurs. The formability is measured by the punch displacement until the crack appears, also called the Erichsen cupping index (IE) by the ISO 20482 [9].
Basically, the hole expansion and Erichsen cupping procedures are qualitative and comparative sheet metal formability tests. However, the corresponding measures of HER and IE are usually associated with the mechanical properties obtained from the uniaxial tensile test, such as yield stress, ultimate yield strength, total elongation, strain-hardening exponent, strain-rate sensitivity, and Lankford coefficient, as reported elsewhere [10,11,12]. Both test procedures are useful and straightforward for either rapid formability assessment or experimental data collection for material modeling validation, especially damage models [13,14]. Chen et al. [15] used the HET to evaluate experimentally the stretch-flangeability of DP590 and DP780 steels with 1.2 mm and 1.4 mm thickness, respectively. It was found that the HER values were 47.0 ± 4.4% for DP590 and 32.7 ± 2.1% for DP780. The HET and the ECT can also be used to analyze manufacturing processes applied to the blank sheet material, for example, the welding. Li et al. [16] used these tests to evaluate deformation behavior, and the quality of fiber laser welded AHSS QP980 steel joint. These authors showed that the formability in terms of cupping depth value for joints depended on the weld bead location during the Erichsen cupping test. The Erichsen index for the case wherein the weld bead is in the center of the punch resulted in the lowest value, which was only 68% of the blank sheet without welding. Concerning the hole expansion ratio, Li et al. [16] explained that the stretch-flangeability of the welded specimen decreases in comparison to the base metal due to the high amount of martensite phase in the fusion zone, once the void nucleation at the ferrite-martensite interface and localized martensite cracking were the most important causes of failure.
Despite the advantages associated with these types of mechanical tests, they require dedicated machines to evaluate sheet metal formability. Some alternatives have been proposed in the literature, such as the original Erichsen cupping ring device designed by Foster [17] to be mounted in a universal testing machine. Using this testing device, Sorce et al. [18] evaluated the sheet metal coating strain using a numerical-experimental approach based on Erichsen cupping tests. In this context, this work presents the development of a device that allows performing both hole expansion and Erichsen cupping tests using only the traditional universal testing machine.
2. Materials and Methods
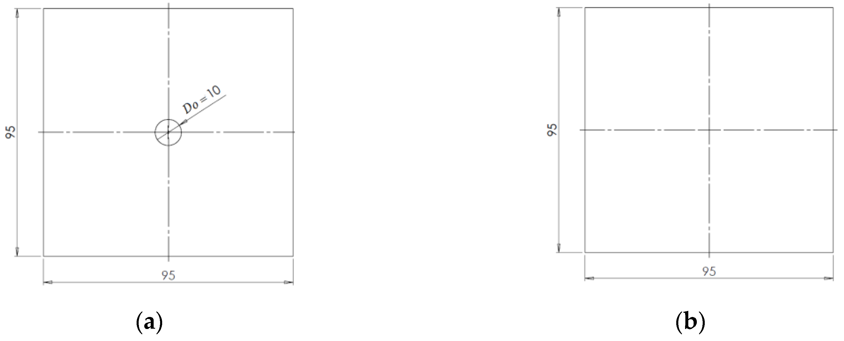
In order to provide operational details of the proposed device, both HET and ECT were carried out for two selected grades of dual-phase steels, namely, DP600 and DP780. The nominal sheet thickness of DP600 and DP780 steels is 0.8 mm and 1.0 mm, respectively. For both DP600 and DP780, three specimens were performed in each test. Figure 1a displays the specimen dimensions required in the HET, while Figure 1b presents the sample dimensions adopted for the ECT.
Figure 1.
Specimen dimensions in [mm] adopted for (a) hole expansion test (HET) [4] and (b) Erichsen Cupping Test (ECT) [9].
Design of HET and ECT Device
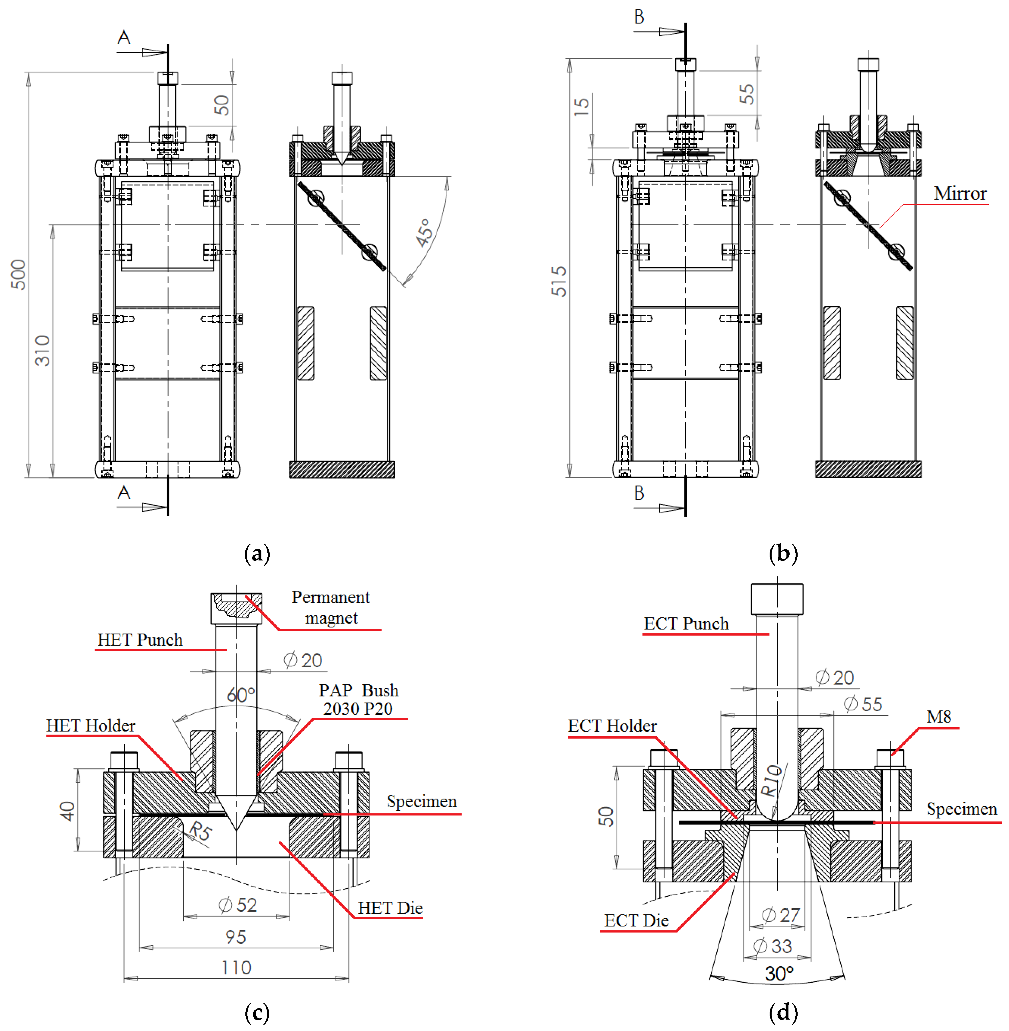
The main dimensions of the device are displayed in Figure 2. With an approximated volume of 186 mm × 130 mm × 500 mm and a maximum punch stroke of 50 mm, this device can be easily adapted on the table of a universal testing machine. The material used to manufacture the whole structure was the AISI 1045 steel, except for the punch, which was made from AISI D2 steel (quenched and tempered) in order to satisfy the minimum hardness of 55 HRC established by the ISO 16630 standard.
Figure 2.
Schematic setup of the device for (a) HET and (b) ECT, and detailed view of (c) HET parts and (d) ECT parts.
During the tests, the operator needs to observe the deformed surface of the sheet material, aiming to stop the test when the crack occurs. For this purpose, a mirror was installed with an angular orientation of 45° concerning the punch axis to reflect the region of interest [6,17]. Thus, it is possible to observe and record the test in real-time using a video camera.
For both tests, a holder is used to prevent any material draw-in from the clamping area during the test. The clamping force was imposed employing eight M8 bolts class 8.8. The criss-cross pattern was used as a bolt tightening sequence, and the torque applied in each bolt was equal to 10 N·m. The sum of the clamping force produced by the bolts should be around 50 kN [4]. The only difference between the HET and the ECT equipment assembly is the replacement of the punch for the hemispherical tip and an appropriate holder and die for the ECT, as shown in the drawings of Figure 2c,d. The punches have a permanent magnet enclosed at the top of the tool. This magnet allows the punch to be linked to the test machine. In this way, it is possible to reset the load cell value taking into account the tool weight in the load cell presets. To reduce the friction effects during the punch displacement, a cylindrical bush PAP 2030 P20 was mounted at the holder. Additionally, a thin layer of lubricant, commonly grease, is applied between the tool contact surface and the specimen.
Figure 3 presents the setup adopted for the proposed testing device and typical results obtained from the ECT. The universal testing machine in the compression mode is required, and a system composed of a camera and floodlights are also desirable. The operator can look directly in the mirror; however, it is possible to zoom the interest region of the test with the help of a camera. It is important to mention that the image tends to lose focus due to punch displacement toward the sheet, as shown in Figure 3c. In order to avoid this issue, it is recommended to perform preliminary trials and adjust the focus at the end of the test. Thus, the next tests will start without focus but at the moment of material fracture the image will be focused.
Figure 3.
(a) Tensile testing machine setup and real-time acquisition of (b) punch force versus punch stroke and (c) deformed region image obtained from mirror projection.
In this work, the universal testing machine model Shimadzu AG-X was employed, with 100 kN load capacity. The camera was used only to visualize the stretching process. The tests were performed with a constant crosshead speed of 1 mm/min, and the stopping criterion was indexed to the abrupt reduction in the force value recorded by the load cell. In both tests, a commercially available grease (Liqui Moly LM 47 long-life grease with MoS2 content) was used as the lubricant between the sheet and the punch.
3. Results
The two main results that can be obtained from this device are the HER and Erichsen index. In the hole expansion test case, the HER is calculated by Equation (1) as the hole expansion percentage, based on the initial diameter. On the other hand, for the Erichsen cupping test, the punch displacement values are recorded during the testing, and the resulting index is defined from the punch displacement versus punch load curve using the maximum force criterion.
3.1. Hole Expansion Test Results
Figure 4a shows the evolution of the punch force as a function of the punch displacement in the HET for both selected materials. According to ISO 16630 standard [4], the movement of the punch should be interrupted immediately after a crack traversed the whole edge of the hole in the direction of the specimen thickness. Even with cameras widening the edge of the hole, that is, being able to see this event at the right time, it is complicated for the operator to accomplish such a test stopping requirement. Chen et al. [15] analyzed the hole edge morphology by stereo-microscope for several AHSS steels, and classified the crack in three different types, namely, partially penetrated crack, crack penetrating through specimen thickness, and excessively expanded crack. Due to the inherent difficulty associated with the HET stopping in case the crack penetrates through the specimen thickness, Li et al. [16] adopted the excessively expanded crack morphology (macro fracture) as the criterion to stop the hole expansion. Such criterion simplifies the HET procedure for the operator because, under this condition, there is a more visible crack, and the value of the reaction force in the punch is slightly reduced.
Figure 4.
Punch displacement versus punch force reaction during (a) HET and (b) ECT.
In this work, the HET was interrupted as soon as a macro fracture in the hole edge was visible. Figure 5 presents the results of the final diameter obtained for DP600 and DP780. In these pictures, the visible macro fractures are indicated by arrows. The hole diameter measurements were performed after the tests, that is, after unloading the specimens.
Figure 5.
Final hole diameter and macro fracture location determined from the HET of (a) DP600 and (b) DP780. The sheet rolling direction (RD) is also shown in the pictures.
As expected, a more significant diameter expansion for DP600 than for DP780 steel was observed. Table 1 lists the values of maximum punch force, maximum punch displacement, and the hole expansion ratio for both dual-phase steels. The HER value obtained for the DP600 steel (40.5%) was approximately twice the corresponding value obtained for the DP780 (19.2%). However, differences in the thickness of each material must also be taken into account.
Table 1.
Hole expansion test results determined for DP600 and DP780 steels.
3.2. Erichsen Cupping Test Results
Bearing in mind the stopping criterion, the Erichsen cupping test is much more straightforward than the hole expansion test. The operator has only to set a fracture criterion in the compression script of the testing machine, which interrupts the test when the punch force reaches a reduction of 5% with respect to the maximum recorded force. Conversely, attention must be paid to the load cell operational range. For both dual-phase steels, the required load for ECT is about five times higher than HET, as can be seen in Figure 4.
Figure 6 shows the deformed shape of both dual-phase specimens, displaying the fracture near the top of the dome and parallel to the sheet rolling direction (RD). A permanent marker was used to help align the specimen. It was also observed that the clamping force of the holder was enough, and no slipping was detected during the tests.

Figure 6.
Deformed specimens and fracture locations obtained from Erichsen cupping tests: DP600 (a,b), and DP780 (c,d).
Table 2 exhibits the results for DP600 and DP780 in terms of the Erichsen index and the maximum punch force. For DP600 with 0.8 mm thickness, the Erichsen index was equal to 10.58 mm, while an Erichsen index of 8.24 mm was obtained for DP780 steel with 1.0 mm thickness.
Table 2.
Erichsen cupping test results determined for DP600 and DP780 steels.
4. Conclusions
The present work aimed to design a device to perform the HET and ECT formability procedures for thin sheet metals. The proposed tooling device can be considered as a low-cost alternative thanks to its simplicity and suitability to be used in universal testing machines. The most important practical values determined from the testing device are the HER and the IE. The dual-phase 600 and 800 grades adopted to validate the device presented acceptable results in terms of both accuracy and testing repeatability of HER and IE values. The punch displacement and punch force reaction data can also be recorded during the tests and, thus, the potential use of digital image correlation techniques may considerably improve the testing device functionality. Therefore, the proposed testing device might be useful to the validation and identification of material parameters of damage models (HET) and isotropic work-hardening equations (ECT) aimed at the numerical simulations of sheet metal forming processes.
Author Contributions
Conceptualization, R.O.S., A.B.P. and G.V.; Funding acquisition, A.B.P. and M.C.B.; Methodology, R.O.S.; Resources, A.J.F.; Supervision, A.B.P., M.C.B., G.V., and L.P.M.; Writing—original draft, R.O.S.; Writing—review and editing, A.B.P., M.C.B., G.V., and L.P.M. All authors have read and agreed to the published version of the manuscript.
Funding
The authors acknowledge support from the Operational Program for Competitiveness and Internationalization, in its FEDER/FNR component, and the Portuguese Foundation of Science and Technology (FCT), in its State Budget component (OE), through projects POCI-01-0145-FEDER-032466, UID/EMS/00481/2019, and CENTRO-01-0145-FEDER-022083. Rafael O. Santos thanks the support given by CEFET/RJ. Luciano P. Moreira acknowledges FAPERJ (research grant E26-211.760/2015) and the research funding of CAPES (PROAP).
Conflicts of Interest
The authors declare no conflict of interest.
References
- Uthaisangsuk, V.; Prahl, U.; Bleck, W. Stretch-flangeability characterization of multiphase steel using a microstructure based failure modeling. Comput. Mater. Sci. 2009, 45, 617–623. [Google Scholar] [CrossRef]
- Paul, S.K. The effect of deformation gradient on necking and failure in hole expansion test. Manuf. Lett. 2019, 21, 50–55. [Google Scholar] [CrossRef]
- Soussi, H.; Krichen, A. Calibration method of ductile damage model based on hybrid experimental-numerical analysis of uniaxial tensile and hole-expansion tests. Eng. Fract. Mech. 2018, 200, 218–233. [Google Scholar] [CrossRef]
- ISO 16630:2009—Metallic Materials—Sheet and Strip—Hole Expanding Test; International Organization for Standardization: Geneva, Switzerland, 2009.
- Aydin, M.; Wu, X.; Cetinkaya, K.; Yasar, M.; Kadi, I. Application of Digital Image Correlation technique to Erichsen Cupping Test. Eng. Sci. Technol. Int. J. 2018, 21, 760–768. [Google Scholar] [CrossRef]
- Bandyopadhyay, K.; Panda, S.K.; Saha, P.; Hernandez, V.H.B.; Zhou, Y.N. Microstructure and failure analyses of DP980 laser welded blanks in formability context. Mater. Sci. Eng. A 2016, 652, 250–263. [Google Scholar] [CrossRef]
- Bandyopadhyay, K.; Lee, M.G.; Panda, S.K.; Saha, P.; Lee, J. Formability assessment and failure prediction of laser welded dual phase steel blanks using anisotropic plastic properties. Int. J. Mech. Sci. 2017, 126, 203–221. [Google Scholar] [CrossRef]
- Kocanda, A.; Jasinski, C. Extended evaluation of Erichsen cupping test results by means of laser speckle. Archives Civ. Mech. Eng. 2016, 16, 211–216. [Google Scholar] [CrossRef]
- ISO 20482:2013—Metallic Materials—Sheet and Strip—Erichsen Cupping Test; International Organization for Standardization: Geneva, Switzerland, 2013.
- Paul, S.K. A critical review on hole expansion ratio. Materialia 2019. [Google Scholar] [CrossRef]
- Dengiz, V.G.; Yildizli, K. Experimental and numerical study of process limits for deep drawing of dome-structured sheet metals. Int. J. Adv. Manuf. Technol. 2017, 92, 4457–4472. [Google Scholar] [CrossRef]
- Sangkharat, T.; Dechjarem, S. Using image processing on Erichsen cup test machine to calculate anisotropic property of sheet metal. Procedia Manuf. 2019, 29, 390–397. [Google Scholar] [CrossRef]
- Kim, J.H.; Lee, M.G.; Kim, D.; Matlock, D.K.; Wagoner, R.H. Hole-expansion formability of dual-phase steel using representative volume element approach with boundary-smoothing technique. Mater. Sci. Eng. A 2010, 527, 7353–7363. [Google Scholar] [CrossRef]
- Hu, X.H.; Sun, X.; Golovashchenko, S.F. An integrated finite element-based simulation framework: From hole piercing to hole expansion. Finite Elem. Anal. Des. 2016, 109, 1–13. [Google Scholar] [CrossRef]
- Chen, X.; Jiang, H.; Cui, Z.; Lian, C.; Lu, C. Hole expansion characteristics of ultra high strength steels. Procedia Eng. 2014, 81, 718–723. [Google Scholar] [CrossRef]
- Li, W.; Ma, L.; Peng, P.; Jia, Q.; Wan, Z.; Zhu, Y.; Guo, W. Microstructural evolution and deformation behavior of fiber laser welded QP980 steel joint. Mater. Sci. Eng. A 2018, 717, 124–133. [Google Scholar] [CrossRef]
- Foster, G.M. Mechanical Properties of Coil Coatings under Controlled Humidity. Ph.D. Thesis, University of Exeter, Exeter, UK, May 2005. [Google Scholar]
- Sorce, F.S.; Ngo, S.; Lowe, C.; Taylor, A.C. Quantification of coating surface strains in Erichsen cupping tests. J. Mater. Sci. 2019, 54, 7997–8009. [Google Scholar] [CrossRef]
© 2019 by the authors. Licensee MDPI, Basel, Switzerland. This article is an open access article distributed under the terms and conditions of the Creative Commons Attribution (CC BY) license (http://creativecommons.org/licenses/by/4.0/).






