Abstract
The paper deals with the evaluation of the quality of Cu-Al-AlMg3 structural transition joints (STJ) made by explosion welding proposed for the renovation of galvanizer hangers. The three-layer joint consisted of electrolytic copper with a thickness of 25 mm, 2 mm of aluminium represented by the AW1050 alloy, and 25 mm of the EN AW 575 aluminium alloy. Light microscopy analysis confirmed the wavy pattern of both interfaces of the welded joint and significant plastic deformation in close proximity to the waves. Microhardness measurement revealed a partial strain hardening of the AW5754 copper-aluminium alloy near the interface and a significant increase in microhardness in the vortex zone of waves, reaching a value of up to 863 HV 0.025. Microcracks were also observed in these places. The intermetallic phase Al2Cu was identified in the vortex zones by XRD analysis. As a continuous layer of intermetallic phase was not observed in the interface of the welded joint, it is possible to consider the used welding parameters as appropriate. A semi-quantitative EDX analysis revealed a diversity of chemical composition in the vortex zones, which does not correspond to the phase composition based on the equilibrium binary Al-Cu diagram due to non-equilibrium conditions in the formation of the welded joint interface. The bond strength of three-layer welded joint evaluated by the strength test ranged from 151 to 171 MPa, which represented approximately a two-fold increase in comparison to the ultimate tensile strength of alloy AW1050, while the failure occurred in all samples at the AW1050-AW5754 alloy interface.
1. Introduction
Structural transition joints (STJs) represent important structural nodes that allow for the connection of metals with different mechanical, physical, and chemical properties [1,2]. Direct joining of these materials by fusion welding methods is often not possible due to different melting temperatures or the formation of intermetallic phases causing embrittlement of the joint. Typical STJs are steel-aluminium bimetals [3,4], which find their application, e.g., in shipbuilding and allow joining the steel hull of the ship with an aluminium deck that better resists the corrosive environment of seawater [5]. In addition to improving corrosion resistance, transition joints allow financial savings to be made as it is possible to create combinations of cheaper and more expensive materials. Examples include Au-Cu, Ag-Cu, Pt-Cu, Al-Cu, and others.
Aluminium, copper, and their alloys are the most commonly used metals after steel. The joining of aluminium with copper has important role, because the combination of their properties provides benefits in numerous industrial applications. This material combination is utilized across a variety of applications, particularly those that benefit from the excellent thermal and electrical conductivity of these metals [6]. Aluminium’s low density contributes to reduce the overall weight of components. The application of Al-Cu components can be found in various areas of industry, e.g., automobiles, aeronautics, electronics, refrigeration, electric power, household appliances, etc. [7,8,9,10,11].
The welding methods suitable for the production of STJs can be solid state welding methods [12]. These methods are characterized by a lower welding temperature than the melting temperature of the welded materials and the simultaneous application of pressure. The use of these methods significantly reduces the formation of intermetallic phases when joining a combination of materials prone to their formation, and the mutual mixing of the joined materials at the joint interface is reduced.
Among the solid state welding methods suitable for the production of STJ, beside roll bonded cladding [13], explosion welding has a dominant position [14,15]. This technology makes it possible to make large-scale semi-finished products, from which it is subsequently possible to produce a large number of STJs. The combinations of joined materials differ and usually depend on specific requirements of corrosion resistance, electrical and thermal conductivity, or saving precious metals [16,17,18,19,20,21]. In order to increase heat resistance, if necessary, it is also possible to create multi-layer joints (e.g., steel-Ti-Al) [22]. When creating large-area bimetals, the stability of the welding parameters along the entire length and width of the welded materials is important. There may be the formation of defects, or the formation of a very narrow molten areas at the interface of the welded joint and the formation of intermetallic phases. In addition, it is possible to observe microscopic or macroscopic cracks in the interface, which can decrease the mechanical and fatigue properties of the joint. The interface of the welded joint made by explosion welding has a typical wavy character, which is significantly strain-hardened to a distance of hundreds of micrometres. Another characteristic feature of welded joints made by explosion welding is their subsequent deformation after the welding, depending on the thickness of the materials used [23].
Equipment for galvanic coating uses STJ produced by explosion welding. Due to the high intensity of electric current, excellent electrical conductivity and minimal transition resistance of the welded joint are required. To save copper, the galvanizer hanger is made of aluminium alloy AW5754. This alloy has good mechanical properties and good weldability. The connection part of the hanger is equipped with a copper contact. The connection part (STJ) consists of three layers (Cu (25 mm)—AW1050 (2 mm)—AW5754 (25 mm)) produced by explosion welding. The STJ is welded on the AW5754 alloy side to the electrolyzer hanger by the MIG method, while the temperature is monitored to avoid overheating of the STJ and the formation of intermetallic phases (Figure 1). After the copper contact wears out, the transition piece can be cut off from the hinge and a new, unworn STJ can be welded. This results in a significant saving of material because the galvanizer hanger can be used repeatedly.
Figure 1.
Detail of the electrolyser hanger with a welded structural transition joint.
This paper deals with the quality evaluation of three-layer welded joints made by explosion welding and the assessment of the suitability of their use for the production of STJ for galvanizing equipment.
2. Materials and Methods
The three-layer joint was made in two steps. First, a Cu joint with a copper of 25 mm thickness (stable material) and an EN AW1050 aluminium alloy with 2 mm thickness (accelerated material) was made. In the next step, a layer of aluminium alloy EN AW5754 with a thickness of 25 mm was plated on previously produced bimetal from the AW1050 side. All welded materials were in the form of rolled sheets. The stable material was placed on a woodblock board on a sand base, and the distance between the flyer plate with an explosive charge and the base material was realized with wooden spacers (Figure 2). The dimensions and designation of the materials used are listed in Table 1. The chemical composition and mechanical properties provided by manufacturers of the welded materials are listed in Table 2 and Table 3, respectively. The welding parameters are listed in Table 4.
Figure 2.
The assembly of materials to be welded and an explosive charge.
Table 1.
Dimensions of welded materials.
Table 2.
Chemical composition of welded materials provided by manufacturers.
Table 3.
Mechanical properties of welded materials provided by manufacturers.
Table 4.
Welding parameters.
After welding and cleaning the joint, an ultrasonic test was performed. No defects were identified at the welded joint interface.
A cutting plan, including samples for microstructural analysis and mechanical properties (tear test and microhardness test), is shown in Figure 3. To evaluate the consistency of the explosion welding process, samples representing the beginning, middle, and end part of the three-layer joint were selected for analysis in terms of its length and width.
Figure 3.
Cutting plan and distribution of samples for quality assessment of Cu-ETP-AW 1050-AW5754 three-layer joint. Designation legend: T—samples intended for microstructural analysis and microhardness test, RA, RB—samples intended for strength test).
The samples intended for optical microscopy were cleaned after cutting the three-layer joint with a band saw and subsequently a water-cooled grinding saw, and then embedded in epoxy resin. After hardening, the samples were prepared for metallographic examination on a PHOENIX 4000 device (Buehler, Lake Bluff, IL, USA). This consisted of wet grinding on metallographic papers with grain sizes of 240 μm, 600 μm, and 1200 μm, followed by polishing with diamond suspensions with grain sizes of 9 μm, 6 μm, 3 μm, and 1 μm. Due to the different properties of copper and aluminium alloys, two types of etchants were necessary. The copper microstructure was highlighted by electrolytic etching in a 10% ammonium persulfate solution ((NH4)2(SO4)2) at 6 V for 10 s. The structure of aluminium alloys AW1050 and AW5754 was highlighted by electrolytic etching in a Keller etchant (2.5 mL HNO3, 1.5 mL HCl, 1 mL HF, 95 mL H2O). Etching time was 30 s. The microstructures were observed on a Neophot 32 light microscope (Carl Zeiss, Jena, Germany) under both unpolarized and polarized light.
The measurement of microhardness at the interface of the welded joint was carried out on a Buehler IndentaMet 1100 microhardness tester (Buehler, Lake Bluff, IL, USA) at a load of 0.025 N and a holding time of 10 s. Microhardness was measured in the direction perpendicular to the interface. The distance between individual indents was 100 µm. The second indentation line, 100 µm away from the first line, was realised in close proximity to the interface, where the plastic deformation is the most intense. The distance between indents was again 100 µm, but the indents were offset vertically by 50 µm, increasing the indentation density in the interface region.
A JEOL JSM 7600 F scanning electron microscope (JEOL, Nieuw-Vennep, The Netherlands) equipped with an Oxford Instruments EDX analyser with an X-max 50 mm2 detector was used for a more detailed analysis of the chemical composition at the interface of the welded joint and fracture surfaces after the strength test.
The identification of the phases present in the region of the welded joint interface was carried out by X-ray diffraction analysis. Diffraction patterns were collected with a PANalytical X’Pert PRO diffractometer equipped with a conventional X-ray tube (Co Kα radiation, 40 kV, 30 mA, point focus), an X-ray mono-capillary with the exit diameter of 0.1 mm, and a multichannel detector X’Celerator with an anti-scatter shield. A sample holder for single crystal XRD measurement was adapted by adding z-(vertical) axis adjustment (Huber 1005 goniometer head).
X-ray patterns were taken between 20 and 65° degrees 2theta with the step of 0.0334°. XRD patterns were not pre-treated before interpretation as no background correction was needed.
Qualitative phase analysis was performed with the HighScorePlus software package (Malvern PANalytical, The Netherlands, version 5.1.0) [24], with the Diffrac-Plus software package (Bruker AXS, Germany, version 8.0) and the PDF-4+ database, release 2022 [25].
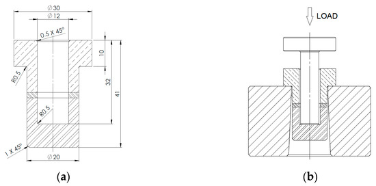
The strength test was carried on cup-shaped samples (Figure 4) on the LabTest 5.250 SP1—VM device (Labortech Ltd., Prague, Czech Republic). The dimensions of the samples and the strength test scheme can be found in Figure 5. Two samples were tested from the beginning (RA1, RB1), the middle (RA4, RB4), and the end (RA6, RB6) of the three-layer welded joint with regard to the beginning of the explosive initiation. During the test, the samples were placed in the fixture and their destruction was realized by compressive force. The loading speed was 1 mm/min. The maximum force to failure and the elongation were recorded.
Figure 4.
Strength test samples. (a) Overall shape of the samples; (b) Detail of the sample surface with a visible wavy interface.
Figure 5.
Sample dimensions and strength test principle. (a) Dimensions of strength test samples; (b) Principle of strength test.
3. Results and Discussion
The results of light microscopy, microhardness measurement, semi-quantitative EDX analysis, micro-X-ray diffraction analysis, mechanical properties, and analysis of fracture surfaces by scanning electron microscope are presented in further subsections.
3.1. Light Microscopy
The copper microstructure consisted of polygonal grains of various sizes with no signs of grain deformation. Both aluminium alloys, AW1050 and AW 5754, were characterized by a fine grain structure.
The character of the interface of the samples from the beginning, middle, and end of the three-layer joint with respect to the place of initiation of the explosive was similar. Therefore, it can be concluded that there were no significant deviations in the welding parameters at the beginning and at the end of the joint during welding. In the direction parallel to the direction of propagation of the detonation wave, the interface had a periodic wavy pattern (Figure 6a); in the direction perpendicular to the direction of propagation of the detonation wave, the periodic wavy character of the interface disappeared (Figure 6b). This is typical for joints made by explosion welding due to high-velocity collision, plastic deformation, and jetting in the direction of propagation of the detonation wave.
Figure 6.
Character of the welded joint interface, sample T3.2. (a) Periodic wavy pattern, direction parallel to propagation of the detonation wave; (b) Non-periodic pattern, perpendicular direction to propagation of the detonation wave.
The amplitude of the wavy interface in the direction parallel to the direction of propagation of the detonation wave was approximately three times greater in the case of the interface between aluminium alloys compared to the interface copper—AW1050 (Figure 6). Similarly, the wavelength was about fourfold in the case of the interface between aluminium alloys compared to the interface of copper—AW1050 (Figure 6).
The character of the wave region neighbourhood corresponds to the typical welded joint made by explosion welding. The intense plastic deformation of all three layers near the waves was observed. Moreover, the deformation twins were found in the copper region (Figure 7). In addition to the intense plastic deformation, localized melt zones, mechanical mixing regions, and the presence of intermetallic compound regions were also discovered. The formation of vortexes, which is typical for explosion welding of dissimilar materials, was primarily observed at the copper-AW1050 interface (Figure 7). Micro cracks and cavities were detected in the vortexes, and their location was approximately perpendicular to the welded joint interface (Figure 7). These cracks could have been formed during the welding process, a phenomenon also reported by other authors [26], but they could also have developed during the metallographic preparation of the samples.
Figure 7.
Vortex at Cu-AW1050 interface, parallel to the direction of propagation of the detonation wave, sample T3.2.
The lack of joining was revealed by light microscopy in the AW 1050-AW5754 interface of sample T1.2 at the beginning of the joint (Figure 8a), whereas its detail is showed in Figure 8b.
Figure 8.
(a) AW 1050-AW5754 welded joint interface, perpendicular to the direction of propagation of the detonation wave, sample T1.2. (a) The lack of joining; (b) Lack of joining close-up.
No discontinuities or lack of joining were observed in the other examined areas of the AW 1050-AW5754 interface, nor in the Cu-AW 1050 interface.
3.2. Microhardness Measurement
Explosion welding is characterized by intense plastic deformation of the welded materials at the welded joint interface and their strain hardening. Microhardness measurement indirectly allows the identification of the degree and localization of the strain hardening at the welded joint interface, as well as the detection of the presence of formed intermetallic phases. In Figure 9, the measurement of microhardness on sample T3.2 was realised in two different locations. The microhardness profiles are documented in Figure 10.
Figure 9.
Microhardness measurement line across the welded joint interface of sample T3.2. (a) Wave No. 2; (b) wave No. 7.
Figure 10.
Course of microhardness across the interface of the welded joint, sample T3.2. (a) Wave No. 2; (b) Wave No. 7.
The course of microhardness was similar for both investigated waves (Figure 10a,b). In close proximity to the AW1050-AW5754 interface, a slight increase of the AW5754 aluminium alloy hardness can be seen due to its strain hardening during welding. In the area of the AW1050 alloy, an increase in microhardness was not observed. As a result of intense deformation of copper grains (Figure 9), a slight increase in hardness can be observed at the Cu-AW1050 interface up to a distance of about 400 µm. These results correspond to the results published by Huang et al. [27].
The measured microhardness HV 0.025 in the area of the vortex, marked in Figure 9a,b by a rectangle, is shown in Figure 11. Figure 11a,b shows that the interval of measured hardnesses is very wide. The reason may be a different degree of strain hardening, a different chemical composition in the measured areas, and the presence of formed intermetallic phases due to extreme pressures and temperatures and rapid solidification during the explosion welding process.
Figure 11.
Microhardness of the vortex area in the interface of the welded joint, sample T3.2, (a) wave No. 2; (b) wave No. 7.
The light grey areas (Figure 11a,b) correspond to the hardness of the AW1050 alloy, which has the lowest hardness among all three materials of the three-layer joint. Conversely, the dark grey areas show an enormous increase in hardness. In the case of wave No. 2 (Figure 11a), this value reaches 863 HV 0.025; for wave No. 7 (Figure 11b), the value is approximately half (447 HV 0.025). Both values significantly exceed the hardness of copper.
As the authors of [28] state, the hardness in the areas of intermetallic phase presence also depends on the thickness of the explosive charge. In the case of a larger explosive charge thickness, higher hardnesses were observed in the welded joint area due to the introduction of more kinetic energy into the welded joint interface. They also identified four types of Al-Cu intermetallic phases and different hardnesses in the area of the welded joint interface in the Al-Cu connection. Based on the results of these authors and our microhardness measurements, we can assume that the dark grey areas in Figure 11 are intermetallic phases rich in copper and aluminium.
3.3. Semi-Quantitative EDX Analysis
As some authors [29] state, the heating rate at the interfaces reaches approximately 109 K/s, while the cooling rate is around 107 K/s. That is why the solidification conditions at the interfaces of explosively bonded materials closely resemble those observed during rapid solidification, where metastable crystalline, quasicrystalline, or glassy phases could be observed.
The heterogeneity of the chemical composition in the region of the wave islands in the interface of the welded joint was analysed by semi-quantitative EDX analysis. The chemical composition at selected points of the Cu-AW1050 welded joint interface (Figure 12) is shown in Table 5.
Figure 12.
EDX analysis of the chemical composition in the interface of the Cu-AW1050 welded joint. (a) Entire vortex; (b) Marked area.
Table 5.
Chemical composition in selected points (Figure 12a) of welded joint interface Cu-AW1050 in atomic %.
The chemical composition (Table 5) in points 1, 5, and 7 corresponds to copper. The chemical composition of the area shown by the light microscope as light grey (Figure 11) is represented by Spectrum point 6 (Figure 12a, Table 5) and corresponds to alloy AW1050. The chemical composition in other points of analysis (Spectrum 2, 3 and 4) shows different proportions of aluminium and copper. The middle part of vortex, marked in Figure 12a as “DETAIL”, is magnified in Figure 12b and the chemical composition in selected points of this area is provided in Table 6. Even in this case, the chemical composition shows different proportions of aluminium and copper.
Table 6.
Chemical composition in selected points of the welded joint interface Cu-AW1050 (in atomic %).
The microstructure of the Cu-AW1050 interface and the marking of individual points of the performed semi-quantitative EDX analysis is shown in Figure 13a. The chemical composition in these areas is shown in Table 7. The detailed chemical composition in the marked points of this area (Figure 13b) is shown in Table 8. The peripheral boundary of the island with the chemical composition Spectrum 2 was subjected to EDX line analysis in the area marked in Figure 13a as LINE PROFILE. The line profiles for Cu and Al are shown in Figure 13c.

Figure 13.
Detail of Cu-AW1050 welded joint interface microstructure, sample T1.2. (a) Marked points of EDX analysis; (b) Marked points for detailed analysis near boundary; (c) Line EDX analysis in marked area.
Table 7.
Chemical composition at selected points of the Cu-AW1050 interface (Figure 13a) in atomic %.
Table 8.
Chemical composition at selected points of the Cu-AW1050 interface (Figure 13b) in atomic %.
As stated by Mokhtari et al. [30], based on the Cu-Al binary diagram, intermetallic phases Al2Cu, AlCu, Al3Cu4, Al2Cu3, and Al4Cu9 exist at temperatures below 300 °C. These phases were confirmed after annealing of Al-Cu joints by other authors [27,31]. Paul et al. [32] identified equilibrium phases CuAl, CuAl2, and Cu9Al4 in the interface of Cu-Al welds. Moreover, they additionally identified the metastable intermetallic phases and CumAln-type phases that are not present in the Al-Cu phase diagram under equilibrium conditions. Therefore, employing annealing heat treatment to forecast the exact phases created during welding is not feasible since certain compounds are formed under non-equilibrium conditions. The results of the performed EDX analysis in the interface of the Al-Cu welded joint correspond to the findings of the authors mentioned above. In our case, locations with chemical compositions corresponding to the AlCu phase (Table 5, Spectrum 3) and the Al2Cu phase (Table 8, Spectrum 1) were observed. The chemical composition in most of the examined areas did not correspond to the stoichiometric ratio of phases present in the equilibrium binary Al-Cu diagram. That is in line with findings of other researchers [8]. As mentioned above, some areas of the Cu-Al1050 interface showed a higher copper content contrary to the minimum solubility of copper in aluminium, which is 5.65 wt.% [33]. Because the diffusion is thermally activated, diffusion coefficients DAl-Cu and DCu-Al increase with increasing temperature. Despite the fact that diffusion coefficient of Cu in Al (DCu-Al) is about four orders of magnitude larger than that of Al in Cu (DAl-Cu) [33], higher content of copper in Al1050 alloy can not be simply explained by solubility and diffusion capabilities of Cu and Al. There are undoubtedly several factors inherent to the explosion welding process. These factors include high temperatures and pressures, the formation of intermetallic phases, mechanical mixing, grain boundary diffusion, and non-equilibrium solidification. As a result, the microstructure becomes complex, exhibiting areas with elevated copper concentrations due to these non-equilibrium effects. Thermal exposure triggers the formation of new phases at the joint interface and promotes the growth of existing phases. Therefore, heat treatment of final trimetals is not recommended.
Details of the interface between AW1050 and AW5754 aluminium alloys are shown in Figure 14a, and the results of the EDX analysis are shown in Table 9. The areas marked as Spectrum 1 and Spectrum 2 correspond approximately to the chemical composition of AW5754 alloy and spectrum 3 to AW1050 alloy. The EDX line profiles for Mg and Al of AW5754 and AW1050 interface are shown in Figure 14b.
Figure 14.
Microstructure detail and EDX analysis of the AW1050-AW5754 interface, sample T1.2. (a) Marked points of EDX analysis; (b) Line EDX analysis Mg and Al elements in marked area.
Table 9.
Chemical composition at selected points of the AW1050-AW5754 interface (Figure 14a) in atomic %.
3.4. Micro X-Ray Diffraction Analysis
As already mentioned, the results of the EDX analysis revealed significant differences in the chemical composition in the welded joint interface. The chemical composition in some zones corresponded to chemical composition of AlCu and Al2Cu intermetallic phases; however, it was possible to observe zones whose chemical composition did not correspond to the intermetallic phases identified by other authors. For this reason, an XRD analysis was performed. The analysis was performed in the regions of two waves (Figure 9) in the interface Cu-AW1050 and in one wave in the interface AW1050-AW5754. The results of XRD analyses for the Cu-AW1050 interface are shown in Figure 15a,b.
Figure 15.
X-ray pattern of the vortex zone at the interface of the Cu-AW1050 welded joint. (a) Wave No. 2; (b) Wave No. 7.
The diffraction lines of the Cu-AW1050 interface appear at 24.07°, 34.31°, 44.342°, 49.30°, 55.59°, and 56.18°, which correspond to the (110), (200), (211), (220), (112), (310), and (202) planes of the tetragonal structure of Al2Cu, respectively. Nevertheless, the AlCu phase was not confirmed by XRD analysis. Similarly, in the AW1050-AW5754 interface, the presence of intermetallic phases was not confirmed.
Some studies [34,35] showed that IMF Al2Cu first forms at the interface of the Al-Cu joint, which changes to IMF Cu9Al4 during heat treatment of the Al-Cu bimetal. It is therefore likely that the identified Al2Cu phase would transform into the Cu9Al4 phase at the interface of the welded joint when the bimetal would be exposed to heat.
3.5. Mechanical Properties
Improperly chosen explosion welding parameters can lead to an insufficient connection of the welded materials, as well as to the introduction of a large amount of kinetic energy, which turns into the heat during their collision. This subsequently enables the formation of intermetallic phases at the interface of the welded joint and its embrittlement. The thickness of the intermetallic phases thus affects the mechanical properties of the joints. A strength test was performed to assess the mechanical properties of the three-layer joints. The design of the samples (Figure 5) and the test procedure allowed for failure either in the welded materials or at the welded joint interfaces. The maximum force at failure, displacement, and the location of the failure were monitored. The samples used for the test represented the beginning, middle, and end of the three-layer joint with regard to the place of the explosive charge initiation. In all samples, failure occurred at the interface of AW1050-AW5754. An example of failure of a sample with an exposed wavy interface of the welded joint after the strength test is shown in Figure 16. The results of the strength test are presented in Table 10.
Figure 16.
Detail of failure after strength test, sample RA1.
Table 10.
Strength test results.
Table 10 shows that the average strength related to the position of explosive charge initiation increased along the joint length. The increase in strength at the end of the three-layer joint compared to its beginning was 13.4%. The ultimate tensile strength of the AW5754 alloy (Table 3) was 197 MPa. Strength at the AW1050-AW5754 interface was thus approximately 77 to 87% of the ultimate tensile strength of the AW5754 alloy, depending on the locations within the three-layer joint. On the other hand, the obtained values from the strength test exceed the original ultimate tensile strength of the AW1050 alloy by 2.1 to 2.4 times. It is worth mentioning that the shape of the samples and the method of loading during the strength test and the static tensile test are different.
3.6. SEM Analysis of Fracture Surfaces
Analysis of the fracture surfaces after the strength test was performed with a scanning electron microscope. As was already mentioned, failure occurred at the interface of AW1050-AW5754 alloys. A detail of the fracture surface after failure by the strength test of sample RA6 is shown in Figure 17a. Morphology of the fracture of all samples had ductile morphology with typical dimples. However, the deposits at the bottom of the dimples with different morphology were observed as well. The EDX analysis of the areas marked as Spectrum 1 and Spectrum 2 (Figure 17b) revealed slightly increased content of magnesium in Spectrum 1 (Table 11). It can be concluded that the deposits represent the residues of AW5754 alloy, while the surrounding area belongs to the AW1050 alloy. This fact explains why the strength test exceeds the ultimate tensile strength of AW1050 alloy.
Figure 17.
Fracture morphology, sample RA6. (a) After strength test; (b) EDX analysis of fracture area after strength test.
Table 11.
Chemical composition at selected points of the AW1050-AW5754 interface fracture in wt. %.
4. Conclusions
This work describes the manufacturing procedure of Cu-Al-AlMg3 three-layer joints by explosion welding and evaluates their quality. The joints are used in the production of transition joints for electrolyser hangers. The obtained results can be summarized as follows:
- Electrolytic copper with a thickness of 25 mm served as the base material. An AW1050 alloy, 2 mm thick, was initially cladded as a transition layer, followed by cladding of AW 5750 aluminium alloy with a thickness of 25 mm.
- Visual and ultrasonic inspection of the produced three-layer joint revealed no defects.
- The interface of the welded joint displayed a wavy structure aligned with the direction of the detonation wave propagation, a characteristic typical of explosion welding.
- Intense plastic deformation resulted in observable grain deformation at both interfaces, indicated by increased microhardness extending approximately 400 µm into the copper side and 200–250 µm into the AW5754 alloy side.
- Microhardness measurements in the vortex zones reached up to 863 HV 0.025.
- Light and scanning electron microscopy revealed microcracks in the vortex areas exhibiting increased hardness; however, these microcracks remained isolated and did not propagate into the base or flyer plate.
- Examination of the chemical composition through EDX analysis in wave zones and vortices indicated significant variability, which did not align with the phases shown in the Al-Cu equilibrium binary diagram, confirming the disequilibrium conditions during explosion welding.
- XRD analysis identified the presence of the Al2Cu intermetallic phase at the interfaces of the welded joint.
- Mechanical property tests conducted on cup-shaped samples yielded strength values between 151 and 171 MPa, representing more than a twofold increase compared to the ultimate tensile strength of the AW1050 alloy. When compared to the ultimate tensile strength of the AW5754 alloy, the joint strength was found to be 77% to 87% of the original strength, depending on the sample location within the three-layer joint.
- The welding parameters were low enough to prevent the formation of a continuous and brittle intermetallic layer while remaining high enough to achieve a continuous welded joint without defects.
- The analyses confirmed the suitability of the proposed welding parameters and procedures in producing three-layer welded joints, providing substantial copper savings and excellent properties for their intended application. Further research in this area will focus on the thermal stability of welded joints.
Author Contributions
Conceptualization, M.M. and P.N.; methodology, M.M.; software, J.B. and P.B.; validation, J.B. and M.S. (Miroslav Sahul); formal analysis, J.B.; investigation, M.M., K.B., M.S. (Miroslav Sahul), M.S. (Martin Sahul), P.B. and M.P.; writing—original draft preparation, M.M. and J.B.; writing—review and editing, M.M., J.B. and K.B.; project administration, M.M.; funding acquisition, M.M. and J.B. All authors have read and agreed to the published version of the manuscript.
Funding
This work was financially supported by Cultural and Educational Grant Agency of Minsistry of Education, Science, Research and Sport of the Slovak Republic under Grant KEGA 019STU-4/2023. The authors acknowledge the assistance provided by the Research Infrastructure NanoEnviCz, supported by the Ministry of Education, Youth, and Sports of the Czech Republic under Project No. LM2023066.
Data Availability Statement
The research data collection is not shared on cloud, but is available upon request. In case of interest, please contact the corresponding author.
Acknowledgments
The authors would like to express their gratitude Martin Kusý, from Faculty of Materials Science and Technology for his assistance in XRD analysis and GAT-TI S.p.A., Italy for evaluating the technology in serial production.
Conflicts of Interest
Author Petr Nesvadba was employed by the company BBP Technologie. The remaining authors declare that the research was conducted in the absence of any commercial or financial relationships that could be construed as a potential conflict of interest.
References
- Structural Transition Joint|Triclad—Triclad. Available online: https://triclad.com/structural-transition-joint/ (accessed on 5 November 2024).
- Transition Joints, TriClad Supplier—Titanium International. Available online: https://www.cem-int.com.au/products/transition-joints/ (accessed on 5 November 2023).
- Tricarico, L.; Spina, R. Mechanical strength of Fe/Al structural transition joints subject to thermal loading. Arch. Mater. Sci. Eng. 2009, 37, 85–93. [Google Scholar]
- Tricarico, L.; Spina, R.; Sorgente, D.; Brandizzi, M. Effects of heat treatments on mechanical properties of Fe/Al explosion-welded structural transition joints. Mater. Des. 2009, 30, 2693–2700. [Google Scholar] [CrossRef]
- Chao, R.M.; Yang, J.M.; Lay, S.R. Interfacial Toughness for the Shipboard Aluminum/Steel Structural Transition Joint. Mar. Str. 1997, 10, 353–362. [Google Scholar] [CrossRef]
- Acarer, M. Electrical, Corrosion, and Mechanical Properties of Aluminum-Copper Joints Produced by Explosive Welding. J. Mater. Eng. Perform. 2012, 21, 2375–2379. [Google Scholar] [CrossRef]
- Wei, Y.; Li, H.; Sun, F.; Zou, J. The Interfacial Characterization and Performance of Cu/Al-Conductive Heads Processed by Explosion Welding, Cold Pressure Welding, and Solid-Liquid Casting. Metals 2019, 9, 237. [Google Scholar] [CrossRef]
- Kaya, Y. Investigation of Copper-Aluminium Composite Materials Produced by Explosive Welding. Metals 2018, 8, 780. [Google Scholar] [CrossRef]
- Wei, Y.; Luo, Y.; Qu, H.; Zou, J.; Liang, S. Microstructure Evolution and Failure Analysis of an Aluminum–Copper Cathode Conductive Head Produced by Explosive Welding. J. Mater. Eng. Perform. 2017, 26, 6158–6166. [Google Scholar] [CrossRef]
- Gülenç, B.; Kaya, Y.; Durgutlu, A.; Gülenç, I.T.; Yildirim, M.S.; Kahraman, N. Production of wire reinforced composite materials through explosive welding. Arch. Civ. Mech. Eng. 2016, 16, 1–8. [Google Scholar] [CrossRef]
- Yang, M.; Cao, C.; Wang, J. Fabrication of high-quality platinum coating using explosive welding technology and its microstructure evolution mechanisms. Mater. Des. 2023, 235, 112372. [Google Scholar] [CrossRef]
- Li, W.; Patel, V. Solid State Welding for Fabricating Metallic Parts and Structures. In Encyclopedia of Materials: Metals and Allloys; Elsevier: Amsterdam, The Netherlands, 2022; pp. 246–259. [Google Scholar]
- Structural Transition Joints|Aluminum & Stainless Steel Clad Plates. Available online: https://www.powderclad.com/applications/structural-transition-joints (accessed on 14 November 2023).
- Mori, A.; Bataev, I.; Wada, N.; Hokamoto, K. Explosive welding. Explos. Shock. High-Strain-Rate Phenom. Adv. Mater. 2021, 35–70. [Google Scholar] [CrossRef]
- Loureiro, A.; Carvalho, G.H.S.F.L.; Galvão, I.; Leal, R.M.; Mendes, R. Explosive welding. In Advanced Joining Processes; Elsevier: Amsterdam, The Netherlands, 2021; pp. 207–237. [Google Scholar]
- Findik, F. Recent developments in explosive welding. Mater. Des. 2011, 32, 1081–1093. [Google Scholar] [CrossRef]
- Bataev, I.A.; Ogneva, T.S.; Bataev, A.A.; Mali, V.I.; Esikov, M.A.; Lazurenko, D.V.; Guo, Y.; Jorge Junior, A.M. Explosively welded multilayer Ni-Al composites. Mater. Des. 2015, 88, 1082–1087. [Google Scholar] [CrossRef]
- Liu, K.; Chen, P.; Ran, C.; Zhou, Q.; Feng, J.; Fan, X.; Zhu, L. Investigation on the interfacial microstructure and mechanical properties of the W-Cu joints fabricated by hot explosive welding. J. Mater. Process. Technol. 2022, 300, 117400. [Google Scholar] [CrossRef]
- Parchuri, P.K.; Kotegawa, S.; Ito, K.; Yamamoto, H.; Mori, A.; Tanaka, S.; Hokamoto, K. Cladding of a crack-free W plate on Cu plates using explosive welding at higher collision velocity with lower collision angle. Results Mater. 2020, 5, 100023. [Google Scholar] [CrossRef]
- Sun, C.; Wang, S.; Guo, W.; Shen, W.; Ge, C. Bonding Interface of W-CuCrZr Explosively Welded Composite Plates for Plasma Facing Components. J. Mater. Sci. Technol. 2014, 30, 1230–1234. [Google Scholar] [CrossRef]
- Acarer, M.; Demir, B.; Dikici, B.; Salur, E. Microstructure, mechanical properties, and corrosion resistance of an explosively welded Mg–Al composite. J. Magnes. Alloys 2021, 10, 1086–1095. [Google Scholar] [CrossRef]
- Aceves, S.M.; Espinosa-Loza, F.; Elmer, J.W.; Huber, R. Comparison of Cu, Ti and Ta interlayer explosively fabricated aluminum to stainless steel transition joints for cryogenic pressurized hydrogen storage. Int. J. Hydrogen Energy 2015, 40, 1490–1503. [Google Scholar] [CrossRef]
- Urminský, J.; Jáňa, M.; Marônek, M.; Morovič, L. Analysis of weld joint deformations by optical 3D scanning. Acta Polytech. 2016, 56, 76. [Google Scholar] [CrossRef]
- Degen, T.; Sadki, M.; Bron, E.; König, U.; Nénert, G. The HighScore suite. Powder Diffr. 2014, 29, S13–S18. [Google Scholar] [CrossRef]
- Gates-Rector, S.; Blanton, T. The Powder Diffraction File: A quality materials characterization database. Powder Diffr. 2019, 34, 352–360. [Google Scholar] [CrossRef]
- Huang, X.; Zang, Y.; Guan, B.; Wang, B.; Cai, H.; Cao, G. Tensile instability and limit strain behavior of explosion-welded steel/Al plate considering interface defect characteristics. J. Mater. Res. Technol. 2023, 25, 4842–4859. [Google Scholar] [CrossRef]
- Honarpisheh, M.; Asemabadi, M.; Sedighi, M. Investigation of annealing treatment on the interfacial properties of explosive-welded Al/Cu/Al multilayer. Mater. Des. 2012, 37, 122–127. [Google Scholar] [CrossRef]
- Shiran, M.K.G.; Khalaj, G.; Pouraliakbar, H.; Jandaghi, M.R.; Dehnavi, A.S.; Bakhtiari, H. Multilayer Cu/Al/Cu explosive welded joints: Characterizing heat treatment effect on the interface microstructure and mechanical properties. J. Manuf. Process. 2018, 35, 657–663. [Google Scholar] [CrossRef]
- Bataev, I.A.; Lazurenko, D.V.; Tanaka, S.; Hokamoto, K.; Bataev, A.A.; Guo, Y.; Jorge, A.M. High cooling rates and metastable phases at the interfaces of explosively welded materials. Acta Mater. 2017, 135, 277–289. [Google Scholar] [CrossRef]
- Mokhtari, O.; Kim, M.-S.; Nishikawa, H.; Kawashiro, F.; Itoh, S.; Maeda, T.; Hirose, T.; Eto, T. Investigation of Formation and Growth Behavior of Cu/Al Intermetallic Compounds during Isothermal Aging. Trans. Jpn. Inst. Electron. Packag. 2014, 7, 1–7. [Google Scholar] [CrossRef]
- Wang, Y.; Song, R.; Yanagimoto, J.; Li, H. Effect of heat treatment on bonding mechanism and mechanical properties of high strength Cu/Al/Cu clad composite. J. Alloys Compd. 2019, 801, 573–580. [Google Scholar] [CrossRef]
- Paul, H.; Morgiel, J.; Baudin, T.; Brisset, F.; Prazmowski, M.; Miszczyk, M. Characterization of explosive weld joints by TEM and SEM/EBSD. Arch. Metall. Mater. 2014, 59, 1129–1136. [Google Scholar] [CrossRef]
- Bedjaoui, W.; Boumerzoug, Z.; Delaunois, F. Solid-State Diffusion Welding of Commercial Aluminum Alloy with Pure Copper. Int. J. Automot. Mech. Eng. 2022, 19, 9734–9746. [Google Scholar] [CrossRef]
- Pelzer, R.; Nelhiebel, M.; Zink, R.; Wöhlert, S.; Lassnig, A.; Khatibi, G. High temperature storage reliability investigation of the Al–Cu wire bond interface. Microelectron. Reliab. 2012, 52, 1966–1970. [Google Scholar] [CrossRef]
- Chen, J.; Lai, Y.S.; Wang, Y.W.; Kao, C.R. Investigation of growth behavior of Al–Cu intermetallic compounds in Cu wire bonding. Microelectron. Reliab. 2011, 51, 125–129. [Google Scholar] [CrossRef]
Disclaimer/Publisher’s Note: The statements, opinions and data contained in all publications are solely those of the individual author(s) and contributor(s) and not of MDPI and/or the editor(s). MDPI and/or the editor(s) disclaim responsibility for any injury to people or property resulting from any ideas, methods, instructions or products referred to in the content. |
© 2024 by the authors. Licensee MDPI, Basel, Switzerland. This article is an open access article distributed under the terms and conditions of the Creative Commons Attribution (CC BY) license (https://creativecommons.org/licenses/by/4.0/).