Effect of Silica Fume as a Waste Material for Sustainable Environment on the Stabilization and Dynamic Behavior of Dispersive Soil
Abstract
1. Introduction
2. Materials and Methods
2.1. Specimen Preparation for the Tests
2.2. Experimental Study
2.2.1. Atterberg Limits
2.2.2. Compaction Test
2.2.3. Pinhole Test
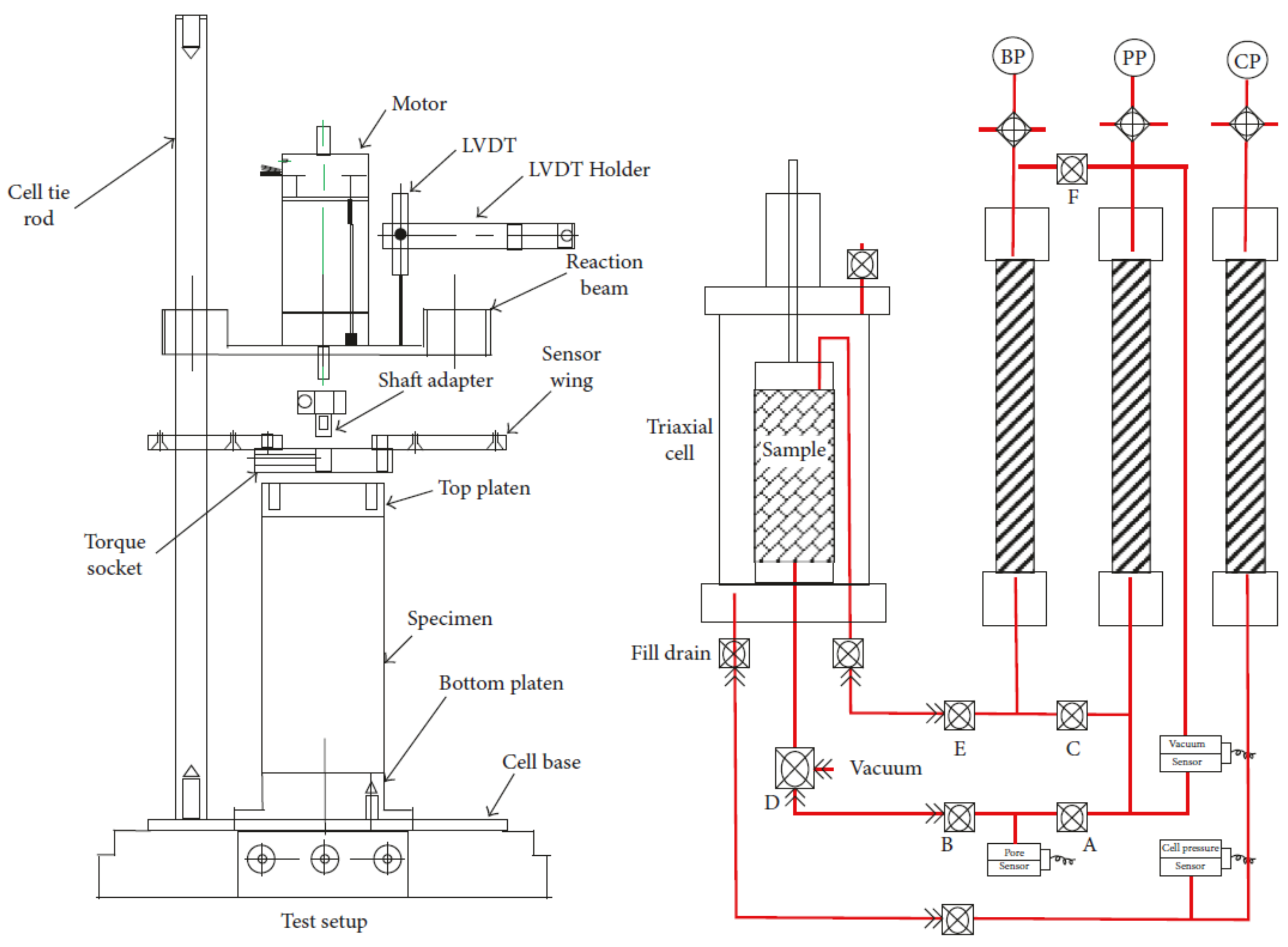
2.2.4. Resonant Column Test
3. Results and Discussion
3.1. Effect of Silica Fume on Atterberg Limits
3.2. Effect of Silica Fume on Compaction Test Results
3.3. Effect of Silica Fume on Pinhole Test Results
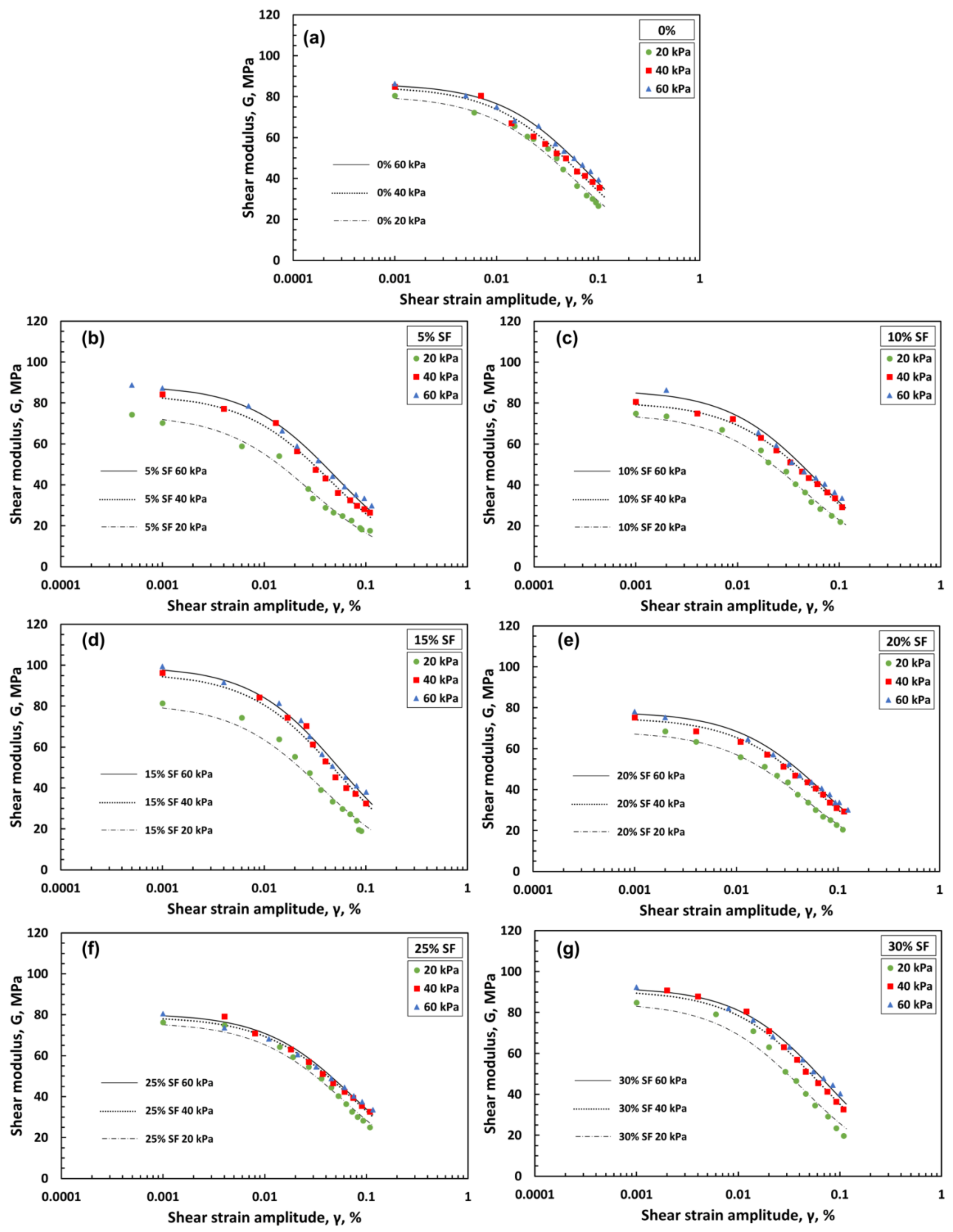
3.4. Resonant Column Test Results
4. Conclusions
- Silica fume reduced both the plastic index (PI) and liquid limit (LL) of dispersive soil. Due to this alteration in the property of dispersive soil, the soil changed its USCS classification, from high plasticity clay (CH) to low plasticity silt (ML). Due to the transformation of the CH to ML, the plasticity of the reinforced sample was reduced, and hence the reinforced dispersive soil showed a stable nature.
- The maximum dry density value, which was 1.584 Mg/m3 without additives, was reduced to 1.559 Mg/m3 at 15% additive content. There were no significant changes in maximum dry density values with increasing SF contents. The increase in optimum water content was relatively limited.
- Based on the pinhole test result, the addition of 25% silica fume with one day curing time changed the soil from D1 to ND2 classification. The improvement at 25% SF content was due to the high amount of silica fume required to balance the high amount of sodium cations in the soil sample.
- From the resonant column tests, the initial shear modulus values of the mixed sample containing 15% silica fume at effective cell pressure 20, 40 and 60 kPa were found to be higher, 1, 14 and 15%, with respect to the initial shear modulus values of nonmixed sample.
- For all the samples, relatively similar trends were obtained in terms of the damping ratio and modulus reduction values under wide shear strain amplitude. In addition, the relatively highest damping ratio values at γ = 0.1% was obtained from 5% SF samples for all effective cell pressures.
- The initial shear modulus values of the 30% SF mixed sample gave the second best values at low shear strain amplitude. The increase in initial shear modulus values were considered as increased effectiveness of silica fume on mixed sample.
- When the modulus reduction curves are examined, it is seen that all the samples lost more than half of their initial shear modulus values at high shear strain amplitude (γ = 0.1%). The highest modulus reduction values, which were 0.330, 0.420 and 0.460, were obtained from the nonmixed sample at high shear strain amplitude for all effective cell pressures.
- At 20 kPa, the samples containing 15 and 30% SF with the highest initial shear modulus at low shear strain had the lowest modulus reduction values, 0.230 and 0.233, respectively, at high shear strain amplitude γ = 0.1%. The reason for this was that the initial shear modulus of the relevant samples at γ = 0.001% was higher than the other samples.
Author Contributions
Funding
Institutional Review Board Statement
Informed Consent Statement
Data Availability Statement
Conflicts of Interest
References
- Sherard, J.L.; Dunnigan, L.P.; Decker, R.S. Identification and nature of dispersive soils. J. Geotech. Eng. Div. 1976, 102, 287–301. [Google Scholar] [CrossRef]
- Indraratna, B.; Nutalaya, P.; Kuganenthira, N. Stabilization of a dispersive soil by blending with fly ash. Q. J. Eng. Geol. Hydrogeol. 1991, 24, 275–290. [Google Scholar] [CrossRef]
- Richards, K.S.; Reddy, K.R. Critical appraisal of piping phenomena in earth dams. Bull. Eng. Geol. Environ. 2007, 66, 381–402. [Google Scholar] [CrossRef]
- Umesha, T.S.; Dinesh, S.V.; Sivapullaiah, P.V. Control of dispersivity of soil using lime and cement. Int. J. Geol. 2009, 3, 8–16. [Google Scholar]
- Abbasi, N.; Nazifi, M.H. Assessment and modification of sherard chemical method for evaluation of dispersion potential of soils. Geotech. Geol. Eng. 2013, 31, 337–346. [Google Scholar] [CrossRef]
- Premkumar, S.; Piratheepan, J.; Arulrajah, A.; Disfani, M.M.; Rajeev, P. Experimental study on contact erosion failure in pavement embankment with dispersive clay. J. Mater. Civ. Eng. 2016, 28, 04015179. [Google Scholar] [CrossRef]
- Hassanlourad, M.; Rokni, M.N.; Hassanlo, M.; Badrlou, A. Dispersive clay stabilised by alum and lime. Int. J. GEOMATE 2017, 12, 156–162. [Google Scholar] [CrossRef]
- Goodarzi, A.; Salimi, M. Stabilization treatment of a dispersive clayey soil using granulated blast furnace slag and basic oxy-gen furnace slag. Appl. Clay Sci. 2015, 108, 61–69. [Google Scholar] [CrossRef]
- Abdelkader, B.; Abdeldjalil, Z.; Abdelmalek, B. Use of milk of lime for dispersive soil treatment in the region of Tlemcen in Algeria. Int. J. Emerg. Technol. Adv. Eng. 2012, 2, 281–286. [Google Scholar]
- Bhuvaneshwari, S.; Soundra, B.; Robinson, R.G.; Gandhi, S.R. Stabilization and microstructural modification of dispersive clayey soils. In Proceedings of the First Sri Lankan Geotechnical Society (SLGS) International Conference on Soil and Rock Engineering, Colombo, Sri Lanka, 6–11 August 2007. [Google Scholar]
- Savaş, H.; Türköz, M.; Seyrek, E.; Ünver, E. Comparison of the effect of using class C and F fly ash on the stabilization of dispersive soils. Arab. J. Geosci. 2018, 11, 612. [Google Scholar] [CrossRef]
- Turkoz, M.; Vural, P. The effects of cement and natural zeolite additives on problematic clay soils. Sci. Eng. Compos. Mater. 2013, 20, 395–405. [Google Scholar] [CrossRef]
- Turkoz, M.; Savas, H.; Acaz, A.; Tosun, H. The effect of magnesium chloride solution on the engineering properties of clay soil with expansive and dispersive characteristics. Appl. Clay Sci. 2014, 101, 1–9. [Google Scholar] [CrossRef]
- Joga, J.R.; Varaprasad, B.J.S. Effect of xanthan gum biopolymer on dispersive properties of soils. World J. Eng. 2020, 17, 563–571. [Google Scholar] [CrossRef]
- Yoder, E.J.; Witczak, M.W. Principles of Pavement Design, 2nd ed.; John Wiley & Sons, Inc.: Hoboken, NJ, USA, 1975; p. 699. [Google Scholar]
- Papworth, H.F. Production of Silica Fume; Civil Engineering: Melbourne, Australia, 1997. [Google Scholar]
- Köksal, F.; Altun, F.; Yiğit, I.; Şahin, Y. Combined effect of silica fume and steel fiber on the mechanical properties of high strength concretes. Constr. Build. Mater. 2008, 22, 1874–1880. [Google Scholar] [CrossRef]
- Ortega, J.M.; Esteban, M.D.; Williams, M.; Sánchez, I.; Climent, M.Á. Short-term performance of sustainable silica fume mortars exposed to sulfate attack. Sustainability 2018, 10, 2517. [Google Scholar] [CrossRef]
- Sadrmomtazi, A.; Tahmouresi, B.; Saradar, A. Effects of silica fume on mechanical strength and microstructure of basalt fiber reinforced cementitious composites (BFRCC). Constr. Build. Mater. 2018, 162, 321–333. [Google Scholar] [CrossRef]
- Wang, X.-Y. Effect of carbon pricing on optimal mix design of sustainable high-strength concrete. Sustainability 2019, 11, 5827. [Google Scholar] [CrossRef]
- Silva, L.R.R.D.; Silva, J.A.D.; Francisco, M.B.; Ribeiro, V.A.; de Souza, M.H.B.; Capellato, P.; Souza, M.A.; Claret dos Santos, V.; Cesar Gonçalves, P.; de Lourdes Noronha Motta Melo, M. Polymeric waste from recycling refrigerators as an aggregate for self-compacting concrete. Sustainability 2020, 12, 8731. [Google Scholar] [CrossRef]
- Kalkan, E.; Akbulut, S. The positive effects of silica fume on the permeability, swelling pressure and compressive strength of natural clay liners. Eng. Geol. 2004, 73, 145–156. [Google Scholar] [CrossRef]
- Goodarzi, R.; Akbari, H.R.; Salimi, M. Enhanced stabilization of highly expansive clays by mixing cement and silica fume. Appl. Clay Sci. 2016, 132-133, 675–684. [Google Scholar] [CrossRef]
- Türköz, M.; Savaş, H.; Tasci, G. The effect of silica fume and lime on geotechnical properties of a clay soil showing both swelling and dispersive features. Arab. J. Geosci. 2018, 11, 735. [Google Scholar] [CrossRef]
- Holland, T.C.; Detwiler, R. Guide for the Use of Silica Fume in Concrete; ACI Committee Report: Farmington Hills, MI, USA, 2006; p. 63. [Google Scholar]
- Al-Mansour, A.; Chow, C.L.; Feo, L.; Penna, R.; Lau, D. Green concrete: By-products utilization and advanced approaches. Sustainability 2019, 11, 5145. [Google Scholar] [CrossRef]
- Tafheem, Z.; Khusru, S.; Nasrin, S. Environmental Impact of Green Concrete in Practice ICMERE2011-PI-069. In Proceedings of the 1st International Conference on Mechanical Engineering and Renewable Energy (ICMERE), Chittagong, Bangladesh, 22–24 December 2011. [Google Scholar]
- Ay, N.; Topçu, İ.B. The influence of silico ferrochromium fumes on concrete properties. Cem. Concr. Res. 1995, 25, 387–394. [Google Scholar] [CrossRef]
- Tonak, T.; Sipahi, F.; Atay, Y. The use of silica fume, a waste product of the electrometallurgy industry, in Cement Production. In Symposium on the Use of Industrial Wastes in the Construction Sector; Proceedings Book; TMMOB Chamber of Civil Engineers: Ankara, Turkey, 1997; pp. 169–183. [Google Scholar]
- Topçu, İ.B.; Kaval, M. Economical analysis of use of silica fume in concrete. J. Eng. Archit. Fac. Osman. Univ. 2001, 14, 18–31. [Google Scholar]
- Asavapisit, S.; Nanthamontry, W.; Polprasert, C. Influence of condensed silica fume on the properties of cement-based solidified wastes. Cem. Concr. Res. 2001, 31, 1147–1152. [Google Scholar] [CrossRef]
- Mastali, M.; Abdollahnejad, Z. Carbon dioxide sequestration on fly ash/waste glassalkali-based mortars with recycled aggregates: Compressive strength, hydration products, carbon footprint, and cost analysis. Carbon Dioxide Sequestration Cem. Constr. Mater. 2018, 299–348. [Google Scholar] [CrossRef]
- Schneider, M.; Romer, M.; Tschudin, M.; Bolio, H. Sustainable cement production—Present and future. Cem. Concr. Res. 2011, 41, 642–650. [Google Scholar] [CrossRef]
- Liu, H.; Luo, G.; Wang, L.; Wang, W.; Li, W.; Gong, Y. Laboratory evaluation of eco-friendly pervious concrete pavement material containing silica fume. Appl. Sci. 2019, 9, 73. [Google Scholar] [CrossRef]
- Živica, V. Sulfate resistance of the cement materials based on the modified silica fume. Constr. Build. Mater. 2000, 14, 17–23. [Google Scholar] [CrossRef]
- Wu, W.J.; Wang, R.; Zhu, C.Q.; Meng, Q.S. The effect of fly ash and silica fume on mechanical properties and durability of coral aggregate concrete. Constr. Build. Mater. 2018, 185, 69–78. [Google Scholar] [CrossRef]
- Sezer, G.İ. Compressive strength and sulfate resistance of limestone and/or silica fume mortars. Constr. Build. Mater. 2012, 26, 613–618. [Google Scholar] [CrossRef]
- Abd El-Aziz, M.A.; Abo-Hashema, M.A.; El-Shourbagy, M. The effect of lime–silica fume stabilizer on engineering properties of clayey subgrade. In Proceedings of the Fourth Mansoura International Engineering Conference (4th IEC), Faculty of Engineering, Mansoura, Egypt, 20–22 April 2004. Paper No. 96. [Google Scholar]
- Al-Zairjawi, M.K. Effect of adding cement and silica fume with cement on compaction properties and shear strength of clayey soil. Al-Qadisiyah J. Eng. Sci. 2009, 2, 253–261. [Google Scholar]
- Bharadwaj, S.; Trivedi, M.K. Impact of micro silica fume on engineering properties of expansive soil. Int. J. Sci. Technol. Eng. 2016, 2, 435–440. [Google Scholar]
- Amina, S.M.; Rani, V. Control of dispersivity of soil using lime and silica fume. Int. J. Res. Appl. Sci. Eng. Technol. 2017, 5, 386–391. [Google Scholar]
- Al-Soudany, K.Y. Improvement of expansive soil by using silica fume. Kufa J. Eng. 2017, 9, 222–239. [Google Scholar] [CrossRef]
- Fattah, M.Y.; Al-Saidi, A.A.; Jaber, M.M. Improvement of bearing capacity of footing on soft clay grouted with lime-silica fume mix. Géoméch. Eng. 2015, 8, 113–132. [Google Scholar] [CrossRef]
- Kalkan, E. Influence of silica fume on the desiccation cracks of compacted clayey soils. Appl. Clay Sci. 2009, 43, 296–302. [Google Scholar] [CrossRef]
- Kalkan, E. Impact of wetting–drying cycles on swelling behavior of clayey soils modified by silica fume. Appl. Clay Sci. 2011, 52, 345–352. [Google Scholar] [CrossRef]
- Tiwari, N.; Satyam, N. Experimental study on the influence of polypropylene fiber on the swelling pressure expansion attributes of silica fume stabilized clayey soil. Geosciences 2019, 9, 377. [Google Scholar] [CrossRef]
- American Society for Testing and Materials (ASTM). Standard Test Method for Particle Size Analysis of Soils; ASTM International: West Conshohocken, PA, USA, 2007. [Google Scholar]
- American Society for Testing and Materials (ASTM). Standard Test Methods for Liquid Limit, Plastic Limit, and Plasticity Index of Soils; ASTM International: West Conshohocken, PA, USA, 2005. [Google Scholar]
- American Society for Testing and Materials (ASTM). Standard Practice for Classification of Soils for Engineering Purposes (Unified Soil Classification System); ASTM International: West Conshohocken, PA, USA, 2011. [Google Scholar]
- American Society for Testing and Materials (ASTM). Standard Test Method for Specific Gravity of Soil Solids by Water Pycnometer; ASTM International: West Conshohocken, PA, USA, 2002. [Google Scholar]
- American Society for Testing and Materials (ASTM). Standard Test Methods for Laboratory Compaction Characteristics of Soil Using Standard Effort; ASTM International: West Conshohocken, PA, USA, 2000. [Google Scholar]
- Bell, F.G.; Walker, D.J.H. A further examination of the nature of dispersive soils in Natal, South Africa. Q. J. Eng. Geol. Hydrogeol. 2000, 33, 187–199. [Google Scholar] [CrossRef]
- Zhang, Z.; Zhang, B.; Yan, P. Comparative study of effect of raw and densified silica fume in the paste, mortar and concrete. Constr. Build. Mater. 2016, 105, 82–93. [Google Scholar] [CrossRef]
- U.S. Department of the Interior Bureau of Reclamation (USBR-5410). Determining Dispersibility of Clayey Soils by the Pinhole Test Method; Earth Manual II: Denver, CO, USA, 1989. [Google Scholar]
- Youn, J.; Choo, Y.; Kim, D. Measurement of small-strain shear modulus Gmax of dry and saturated sands by bender element, resonant column, and torsional shear tests. Can. Geotech. J. 2008, 45, 1426–1438. [Google Scholar] [CrossRef]
- Likitlersuang, S.; Teachavorasinskun, S.; Surarak, C.; Oh, E.; Balasubramaniam, A. Small strain stiffness and stiffness degradation curve of Bangkok Clays. Soils Found. 2013, 53, 498–509. [Google Scholar] [CrossRef]
- American Society for Testing and Materials (ASTM). Standard Test Methods for Modulus and Damping of Soils by the Resonant-Column Method; ASTM International: West Conshohocken, PA, USA, 2000. [Google Scholar]
- Okur, D.V.; Umu, S.U. Dynamic properties of clean sand modified with granulated rubber. Adv. Civ. Eng. 2018, 2018, 1–11. [Google Scholar] [CrossRef]
- Phanikumar, B.R.; Jagapathi, R.M.; Ramanjaneya, R.E. Silica fume stabilization of an expansive clay subgrade and the effect of silica fume-stabilised soil cushion on its CBR. Géoméch. Geoengin. 2020, 15, 64–77. [Google Scholar] [CrossRef]
- Al-Azzawi, A.A.; Daud, K.A.; Sattar, M.A.A. Effect of silica fume addition on the behavior of silty-clayey soils. J. Eng. Dev. 2012, 16, 92–105. [Google Scholar]
- Elges, H.F.W.K. Dispersive Soils: Problem Soils in South Africa-State of the Art; Civil Engineer: Pretoria, South Africa, 1985; Volume 27, pp. 347–349. [Google Scholar]
- Knodel, P.C. Characteristics and Problems of Dispersive Clay Soils; R91-09; United States Department of the Interior Bureau of Reclamation, Materials Engineering Branch: Denver, CO, USA, 1991. [Google Scholar]
- Penner, D.; Lagaly, G. Influence of anions on the rheological properties of clay mineral dispersions. Appl. Clay Sci. 2001, 19, 131–142. [Google Scholar] [CrossRef]
- Ouhadi, V.R.; Yong, R.N.; Amiri, M.; Ouhadi, M.H. Pozzolanic consolidation of stabilized soft clays. Appl. Clay Sci. 2014, 95, 111–118. [Google Scholar] [CrossRef]
- Vakili, A.H.; Selamat, M.R.; Moayedi, H. Effects of using pozzolan and Portland cement in the treatment of dispersive clay. Sci. World J. 2013, 2013, 1–10. [Google Scholar] [CrossRef]
- Ishihara, K. Soil Behavior in Earthquake Geotechnics; Clarendon-Oxford University Press: Oxford, UK, 1996; p. 385. [Google Scholar]
- Lang, L.; Li, F.; Chen, B. Small-strain dynamic properties of silty clay stabilized by cement and fly ash. Constr. Build. Mater. 2020, 237, 117646. [Google Scholar] [CrossRef]









| Parameter | Value |
|---|---|
| Grain Size | |
| Gravel (%) | - |
| Sand (%) | 23 |
| Silt (%) | 46 |
| Clay (%) | 31 |
| Atterberg Limits | |
| Liquid Limit, LL (%) | 51 |
| Plastic Limit, PL (%) | 27 |
| Plasticity Index, PI (%) | 24 |
| Specific Gravity, Gs | 2.65 |
| Classification (USCS) | CH |
| Activity, A | 0.77 |
| Maximum Dry Density (Mg/m3) | 1.584 |
| Optimum Water Content (%) | 20.5 |
| Property | Silica Fume (%) | Soil (%) |
|---|---|---|
| SiO2 | 66.92 | 52.27 |
| MgO | 9.52 | 1.68 |
| K2O | 4.66 | 3.42 |
| Na2O | 4.52 | 1.61 |
| Cr2O3 | 3.48 | - |
| Fe2O3 | 1.27 | 6.47 |
| Al2O3 | 1.22 | 16.58 |
| ZnO | 1.08 | - |
| CaO | 0.98 | 5.13 |
| Cl | 0.70 | 0.10 |
| SO3 | 0.43 | 0.13 |
| MnO | 0.14 | 0.15 |
| PbO | 0.11 | - |
| Ga2O3 | 0.09 | - |
| P2O5 | 0.07 | 0.11 |
| TiO2 | 0.04 | 0.69 |
| Loss on ignition | 4.77 | 11.76 |
| Head (mm) | Total Time Interval (min) | Flow Rate (mL/s) | Effluence Appearance | Action Required | Classification |
|---|---|---|---|---|---|
| 50 | 5 | <1.0 | Dark to clear | Continue at 50 mm head | - |
| 50 | 5 | 1.0–1.4 | Dark to cloudy | Terminate | D1 (Dispersive) |
| 50 | 10 | 0.2–0.8 | Clear to slightly cloudy | Raise head to 180 mm | - |
| 50 | 10 | 0.8–1.4 | Dark to slightly cloudy | Terminate | D2(1.0–1.4) (Dispersive) ND4 (0.8–1.0) (Intermediate) |
| 180 | 5 | 0.6–1.2 | Clear to slightly cloudy | Raise head to 180 mm | - |
| 180 | 5 | 1.2–2.8 | Clear to slightly cloudy | Terminate | ND3 (1.2–2.0) (Intermediate) ND4 (2.0–2.8) (Intermediate) |
| 380 | 5 | 0.8–2.4 | Clear to slightly cloudy | Terminate | ND1 (0.8–1.6) (Non-dispersive) ND2 (1.6–2.4) (Non-dispersive) |
| 380 | 5 | 2.4–3.2 | Dark to cloudy | Terminate | ND3(Intermediate) |
| Silica Fume, SF (%) | Atterberg Limits | ||
|---|---|---|---|
| LL (%) | PL (%) | PI (%) | |
| 0 | 51 | 27 | 24 |
| 5 | 46 | 26 | 20 |
| 10 | 45 | 26 | 19 |
| 15 | 43 | 26 | 17 |
| 20 | 39 | 27 | 12 |
| 25 | 38 | 27 | 11 |
| 30 | 36 | 27 | 9 |
| Silica Fume (%) | Optimum Water Content wopt, (%) | Maximum Dry Density qdmaks (Mg/m3) | Specific Gravity Gs |
|---|---|---|---|
| 0 | 20.5 | 1.584 | 2.65 |
| 5 | 20.9 | 1.579 | 2.64 |
| 10 | 21.9 | 1.571 | 2.64 |
| 15 | 21.9 | 1.559 | 2.63 |
| 20 | 22.8 | 1.553 | 2.63 |
| 25 | 22.8 | 1.551 | 2.62 |
| 30 | 22.9 | 1.550 | 2.62 |
| Test | Silica Fume Content (%) | ||||||
|---|---|---|---|---|---|---|---|
| 0 | 5 | 10 | 15 | 20 | 25 | 30 | |
| Pinhole test class | D1 | D1 | ND4 | ND4 | ND4 | ND2 | ND1 |
| SF (%) | G0 (MPa) | G0/2 (MPa) | γr (%) | Gγ=0.1% (MPa) | Gγ=%0.1/G0 | Dγ=%0.001 (%) | Dγ=%0.1 (%) | |
|---|---|---|---|---|---|---|---|---|
| 0 | 20 | 80.60 | 40.300 | 0.0563 | 26.67 | 0.330 | 6.0 | 16.0 |
| 40 | 84.93 | 42.470 | 0.0667 | 35.50 | 0.420 | 5.0 | 16.0 | |
| 60 | 86.40 | 43.200 | 0.0785 | 39.39 | 0.460 | 4.0 | 17.0 | |
| 5 | 20 | 74.42 | 37.210 | 0.0286 | 17.59 | 0.240 | 4.5 | 22.5 |
| 40 | 84.28 | 42.140 | 0.0450 | 26.46 | 0.310 | 4.0 | 20.5 | |
| 60 | 88.70 | 44.350 | 0.0500 | 29.82 | 0.340 | 4.0 | 18.5 | |
| 10 | 20 | 75.00 | 37.500 | 0.0439 | 21.97 | 0.290 | 4.0 | 17.5 |
| 40 | 80.00 | 40.000 | 0.0608 | 29.19 | 0.360 | 4.0 | 17.5 | |
| 60 | 86.41 | 43.210 | 0.0582 | 33.64 | 0.390 | 3.0 | 15.3 | |
| 15 | 20 | 81.39 | 40.700 | 0.0356 | 18.95 | 0.230 | 5.0 | 17.5 |
| 40 | 96.30 | 48.150 | 0.0516 | 32.47 | 0.340 | 4.5 | 15.0 | |
| 60 | 99.43 | 49.720 | 0.0549 | 38.10 | 0.380 | 3.5 | 15.0 | |
| 20 | 20 | 68.53 | 34.270 | 0.0501 | 20.59 | 0.300 | 5.0 | 18.2 |
| 40 | 75.28 | 37.640 | 0.0672 | 29.30 | 0.390 | 4.5 | 15.7 | |
| 60 | 78.07 | 39.040 | 0.0715 | 30.17 | 0.390 | 4.0 | 12.5 | |
| 25 | 20 | 76.37 | 38.185 | 0.0594 | 25.05 | 0.328 | 3.5 | 22.2 |
| 40 | 79.17 | 39.585 | 0.0715 | 32.72 | 0.413 | 4.0 | 15.7 | |
| 60 | 80.59 | 40.295 | 0.0732 | 33.63 | 0.417 | 4.0 | 14.4 | |
| 30 | 20 | 84.93 | 42.470 | 0.0440 | 19.79 | 0.233 | 4.8 | 20.0 |
| 40 | 90.89 | 45.450 | 0.0640 | 32.72 | 0.360 | 4.8 | 20.0 | |
| 60 | 92.41 | 46.205 | 0.0715 | 40.40 | 0.437 | 4.8 | 14.5 |
Publisher’s Note: MDPI stays neutral with regard to jurisdictional claims in published maps and institutional affiliations. |
© 2021 by the authors. Licensee MDPI, Basel, Switzerland. This article is an open access article distributed under the terms and conditions of the Creative Commons Attribution (CC BY) license (https://creativecommons.org/licenses/by/4.0/).
Share and Cite
Türköz, M.; Umu, S.U.; Öztürk, O. Effect of Silica Fume as a Waste Material for Sustainable Environment on the Stabilization and Dynamic Behavior of Dispersive Soil. Sustainability 2021, 13, 4321. https://doi.org/10.3390/su13084321
Türköz M, Umu SU, Öztürk O. Effect of Silica Fume as a Waste Material for Sustainable Environment on the Stabilization and Dynamic Behavior of Dispersive Soil. Sustainability. 2021; 13(8):4321. https://doi.org/10.3390/su13084321
Chicago/Turabian StyleTürköz, Murat, Seyfettin Umut Umu, and Ogan Öztürk. 2021. "Effect of Silica Fume as a Waste Material for Sustainable Environment on the Stabilization and Dynamic Behavior of Dispersive Soil" Sustainability 13, no. 8: 4321. https://doi.org/10.3390/su13084321
APA StyleTürköz, M., Umu, S. U., & Öztürk, O. (2021). Effect of Silica Fume as a Waste Material for Sustainable Environment on the Stabilization and Dynamic Behavior of Dispersive Soil. Sustainability, 13(8), 4321. https://doi.org/10.3390/su13084321

