Next Article in Journal
Study on Business Ecosystem Research Trend Using Network Text Analysis
Previous Article in Journal
Psychological Well-Being Sustainable during Entrepreneurial Process—The Moderating Role of Entrepreneurial Creativity
Previous Article in Special Issue
The Impact of COVID-19 on Highway Traffic and Management: The Case Study of an Operator Perspective
 
 
Font Type:
Arial Georgia Verdana
Font Size:
Aa Aa Aa
Line Spacing:
Column Width:
Background:
Article

Safety of People with Special Needs in Public Transport

by
Sylwia Agata Bęczkowska
and
Zuzanna Zysk
*
Faculty of Transport, Warsaw University of Technology, 00-661 Warsaw, Poland
*
Author to whom correspondence should be addressed.
Sustainability 2021, 13(19), 10733; https://doi.org/10.3390/su131910733
Submission received: 30 August 2021 / Revised: 22 September 2021 / Accepted: 22 September 2021 / Published: 27 September 2021
(This article belongs to the Special Issue Sustainable Urban Mobility Planning and Disruption Outbreaks)

Abstract

:
Safety is one of the most important needs of all people, but especially those with limited mobility, who face barriers of all kinds on a daily basis. The article includes a review of organizational and legal solutions for the safety of people with special needs in public transportation, as well as preliminary research aimed at identifying and classifying barriers in public transportation that limit the independent movement of people with special needs. The obtained results will be used in the development of the methodology for assessing the degree of accessibility of the studied objects and will form the basis of guidelines formulated in order to modify the existing and design the future elements of the transport system according to the principles of universal design. The problem of the lack of accessibility of public transport is the center of interest of many entities. Its solution requires a complex approach in the design process, taking into account both engineering knowledge and knowledge of the needs and constraints of different user groups. The results obtained from the study will allow the categorization of public transport modes in terms of their accessibility.

1. Introduction

People with disabilities have the right to live independent, self-determined and active lives. In particular, they also have the right to access goods and services that enable them to participate fully in society, whether this be through education, employment or private life. Equal and safe access should be provided first of all to the public transport system: infrastructure or suprastructure [1,2,3], which is the subject of, among others, the considerations of this article. Obviously, the presented issues are only one aspect of the larger problem of access to the public transportation system, the lack of which causes the greatest social exclusion, making it impossible to get to work, to school and to function normally in private life [4]. This exclusion also has a financial dimension—being forced to use a car, people with disabilities are at the same time forced to bear significantly higher costs of living.
Transport safety in all types of transport is one of the basic demands of all its users. However, in this area, users with special needs are not always taken into account, although according to the Constitution of the Republic of Poland all citizens have equal rights. Facilitated access to transport services and greater mobility are important factors in reducing discrimination against people with disabilities [5,6,7]. Major documents include:
  • Standard Rules for Equalization of Opportunities for Persons with Disabilities—the UN Standard Principles [8], although not legally binding, have become a basic document, customary law, used in the development of policies of many organizations, states and local authorities on disability issues. The Principles refer to basic actions that should be taken by authorities at different levels of governance to improve the lives and activities of people with disabilities. The central tenet of the Standard Principles is equality of opportunity as a fundamental human right. However, it should be noted that people with disabilities sometimes need more support from society to be able to achieve the same goals in their lives as people without disabilities. Thus, support for people with disabilities should not be perceived as a privilege, but as a human right. The Standard Principles consist of 22 principles, 15 of which formulate guidelines for disability policy and proposals for concrete actions. They identify important principles for accountability, taking action and cooperation and highlight areas that are critical to quality of life and achieving full participation and equality.
  • The Barcelona Declaration—A valuable initiative based on the Standard Principles was the adoption of the Barcelona Declaration by 56 representatives of European cities at the 1995 Conference on “The City and the Disabled”. The Barcelona Declaration, like the Standard Principles, is a universal policy document for local authorities and is based on fundamental human rights, the equal enjoyment of all aspects of public life, including the right to participate independently in all local community events. The purpose of the Barcelona Declaration is to encourage local authorities to implement in their local legislation provisions on the inclusion of people with disabilities in their society. This project provides an opportunity for local government representatives to create a policy for the development of localities, in consultation with organizations of people with disabilities. In a nutshell, the commitment of local authorities can be defined as the active promotion of the principle of universal access in public policy-making, based on equal opportunities for people with disabilities to participate in the economic, social and cultural life of their locality [9].
  • United Nations Convention on the Rights of Persons with Disabilities—The Convention on the Rights of Persons with Disabilities is one of the most recent and probably most important international documents, which strongly emphasizes the necessity of guaranteeing equal rights and opportunities for people with disabilities. The adoption of the Convention is mainly due to the representatives of the disabled community, who have fought on the international arena for a document comprehensively addressing their rights [10]. The Convention stresses the importance of universal design and the need for individual countries to standardize spatial solutions that would ensure accessibility for all users. A definition of communication appears in the provisions of the Convention, and it means: “languages, projected text, Braille, tactile communication, large print, accessible multimedia, as well as the means of communication: written, auditory, expressed in simple and intelligible language, read by a reader, and assistive and alternative modes of communication, means and formats, including accessible information and communication technology.” The convention emphasizes the importance of information in expanding the accessibility of public spaces for better information, including information about space for people with limited perception [10].
However, the accessibility of public transport is often not fully taken into account in the planning, design and implementation of transport policies [11,12,13]. Accessible transport is particularly important for people with disabilities, as it ensures their independence. It also benefits other groups of passengers such as the elderly, mothers with pushchairs, etc. [14]. Despite the increased sensitivity to these problems, there is still a lot of work to be done by decision makers and designers in this area.
With regard to infrastructure and vehicles, the concept of universal design is cited as an example of a good approach to adapting infrastructure and vehicles. This design aims to promote equality and ensure the full participation in society of people with reduced functionalities by removing existing barriers and preventing the emergence of new ones [15]. According to this concept, design is done according to the following criteria:
  • Usefulness for people with different abilities;
  • Flexibility in use;
  • Simple and intuitive to use;
  • Readable information—tolerance for errors;
  • Comfort of use without effort;
  • Size and space suitable for progress and use.
In the case of public transport, universal design has an impact on the accessibility of the public space and the possibility of reaching the stop [16]. The accessibility of train stations, bus stations, change points and public transport stops is also important. Differences in accessibility are visible in the area of individual territorial units, but also in individual modes of transport [17,18]. The article presents the research problem, research methodology and preliminary survey results. The assumed final effect of the research will be the developed method for the assessment of the degree of accessibility of the studied objects and the formulation of guidelines aimed at modifying the existing and designing the future elements of the transport system in accordance with the principles of universal design [19,20].

2. Research Problem

People with special needs face a number of difficulties which vary according to the type of constraints they face, although the public transport system should provide barrier-free access. The proper functioning of the system depends on its subsystems, which should meet accessibility requirements [21]. Safety can be defined as the lack of states of threat to human health or life, as well as the lack of material, environmental and economic losses as a consequence of hazardous events [14,22]. The threats to safety in public transport can be divided into two groups: threats resulting from the behavior of users and threats resulting from the state of the transport system. The first group includes the behavior of travelers, drivers or bystanders. The second group includes insufficient (or inadequate) vehicle equipment, poor condition of vehicles or low technical level of infrastructure (e.g., bus stops) [22,23]. These threats do not necessarily have to be felt by efficient users, but for people with reduced mobility, they can be barriers to the use of transport modes or significantly reduce their sense of safety. The safety of people with disabilities using urban transport covers many issues such as getting to a stop, boarding, traveling or getting off. The analysis of this issue is usually limited to motor disability. However, this is not a complete picture—the concept of transport safety for people with disabilities should be understood much more broadly [24,25].
According to Regulation (EU) No 181/2011 of the European Parliament and of the Council of 16 February 2011 on the rights of passengers in bus and coach transport, a disabled person is ”any person whose mobility when using transport is reduced as a result of any physical disability (sensory or locomotor, permanent or temporary), intellectual disability, impairment or any other cause of disability, or as a result of age, and whose situation needs appropriate attention and adaptation to his particular needs of the services made available to all passengers” [26]. In contrast, a passenger with reduced mobility is defined as any passenger having difficulties when using public transport, such as a disabled person (including a person with sensory and mental disabilities, a wheelchair user, a person with reduced mobility, a person with low height, a person with heavy luggage, an elderly person, a pregnant woman, a person with shopping trolleys and a person with a child, including a child seated in a pushchair) [11,27,28,29].

Formulation of the Research Problem

The aim of the research is to improve the accessibility of public transport modes and infrastructure. The authors adopted the existing definition of accessibility, formulated in the law, as “a property of the environment (physical space, digital reality, information and communication systems, products, services, including transportation) that allows people with functional (physical, cognitive) difficulties to use it on an equal footing with others”. The following hypothesis was formulated: “defining guidelines to ensure accessibility of transport systems will allow to identify existing barriers and to define corrective actions in accordance with the principles of universal design”. An important result of this work will be a set of requirements for newly designed and modernized elements of transport systems and transport infrastructure objects. The developed guidelines will form the basis of a method for evaluating the accessibility of public transportation systems for people with special needs. Building the method requires the following actions:
  • Knowledge acquisition through:
    • Reviewing existing standards and guidelines for the design of accessible public transportation systems.
    • Surveys—An appropriate representative group of people with reduced mobility (wheelchair users, blind people, elderly people) will be selected at this stage. Questionnaires/control lists will be developed to identify problems faced by people with special needs when using public transport infrastructure and vehicles. The questionnaires will consist of closed questions with the possibility to add comments.
    • Participant Observation—Observers will accompany people with special needs on typical city trips. The collected data will allow for a preliminary assessment of the level of adaptation of infrastructure and vehicles to the needs of people with reduced mobility. Both the good solutions and the bad ones that generate various types of barriers limiting the possibility of independent use of public transport will be identified.
  • Categorization of data according to the needs of people with different needs.
  • Definition of criteria for accessibility levels.
  • Formulation of a final evaluation assessment.
The developed method will be verified in real conditions in selected areas of the public transport system. The proposed form of verification is experimental research. Routes will be selected that include all types of public transportation in Warsaw, such as: suburban railroads, subways, buses and streetcars. Each route will be evaluated according to the proposed method and then the evaluation will be verified with people with different limitations using the same routes. The participants of the study will be able to inform the researcher, who will accompany them, about the problem or give their observations at any time. The involvement of the direct stakeholders in the research and their evaluation have a great impact on the reliability of the developed assessment.
The following subsections outline the basic requirements for ensuring accessibility in public transportation systems for both means and infrastructure.

3. Preliminary Research

The stage of acquiring knowledge includes a review of the existing standards and guidelines for the design of public transport systems adapted to the needs of disabled people. The presented literature review was aimed at systematizing the requirements adequately to the analyzed element of the transport system and thus the identification of typical barriers. The selected requirements are presented in this section [30,31].

3.1. Means of Transport Solutions

In accordance with the principles of sustainable transport, people with disabilities are an important group of passengers and should always be taken into account on an equal level with other user groups [11]. The action taken in this area is reflected in the Act on Public Transport of 16 December 2010, which contains guidelines concerning the needs of people with disabilities in terms of accessibility of services and adaptation and introduction of modern technical solutions. An example of such actions may be, among others, ensuring convenient location of special seats and additional equipment in public transport vehicles [32,33].
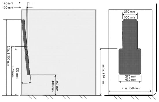
In accordance with Regulation No 107 of the Economic Commission for Europe of the United Nations (UN/ECE), a wheelchair space may be combined with a fold-out pushchair or child stroller. This space must be marked with a graphic symbol or an inscription reading as follows: “Please give up the space for a wheelchair user”. Folding seats may be fitted in a wheelchair space but shall not restrict this space when folded. A vehicle may also be fitted with removable seats fitted in the wheelchair space. However, this requires additional activity on the part of the vehicle attendant if they need to be removed. A special area shall be provided for each wheelchair user in the passenger compartment at least 750 mm wide and 1300 mm long (Figure 1). The floor surface of the special area shall be slip resistant and the maximum slope in any direction shall not exceed 5%. In the case of rearward-facing wheelchairs, the slope in the longitudinal direction shall not exceed 8% provided that the floor plane inclines upwards towards the rear part of the special area. In the case of a wheelchair space designed for a forward-facing wheelchair, the top of preceding seat-backs may intrude into the wheelchair space if a clear space is provided [34].
In addition, the wheelchair space shall be fitted with a backrest perpendicular to the longitudinal axis of the vehicle. The lower edge of the backrest shall be not less than 350 mm and not more than 480 mm measured vertically from the floor of the wheelchair space. An example of a backrest meeting the normative requirements is shown in Figure 2 [34].
The vehicle shall also be equipped with devices to facilitate boarding and alighting (e.g., ramps) (Figure 3). The usable area of the ramp shall be at least 800 mm wide. The slope of the ramp, when extended or folded out on a curb of 150 mm in height, shall not exceed 12% and the slope of the ramp, when extended or folded out on the ground, shall not exceed 36%. Where the ramp is more than 1200 mm long when ready for use, it shall be fitted with a device to prevent the wheelchair from sliding sideways. The standard ramp shall be designed for a load of 300 kg. The outer edge of the ramp surface shall be clearly marked with a colored tape 45 mm to 55 mm wide in contrast to the rest of the surface. The colored tape shall extend over the outermost edge and along both edges parallel to the direction of travel of the wheelchair. Markings are permitted to indicate where there is a risk of rollover and where part of the surface of the ramp forms a step. A portable ramp shall be secured when in the ready for use position. An appropriate place must be provided where the portable ramp can be stowed and ready for use [23]. The ramp may be manually or mechanically retractable. In the case of a power-operated ramp, its extension and retraction shall be indicated by flashing yellow lights and an audible signal. When pulling out and retracting the ramp which is liable to cause injury, protective devices shall be operative [34,35].
It is also important to have appropriate marking on the outside and inside of vehicles accessible to people with disabilities, with external signs visible both to the front on the right/left side of the vehicle and near the service door (Figure 4). Pictograms used shall be placed directly adjacent to each wheelchair space, indicating whether the wheelchair is to face forwards or backwards or in priority areas for passengers with reduced mobility (person with reduced mobility, elderly person, blind person, pregnant woman and person with child). The vehicle should also be equipped with appropriate buttons (stop, door release, assistance) [34,37,38].
In addition, there should be one in every public transport mode [37]:
  • Appropriate locations for communication equipment inside and outside the vehicle;
  • Additional lighting outside the vehicle (allowing faster line identification);
  • Doors of a width sufficient for the wheelchair to enter and to be fitted with additional handles and handrails of appropriate coloring, marking of the edges of stairs and landings;
  • Audio-visual passenger information systems.
Although there are legal acts governing the compulsory equipment of public transport adapted to persons with special needs, vehicles which are either totally unsuitable or only partially adapted are still in operation. According to NIK, poor accessibility of public transport for people with disabilities results mainly from unreliable analyses conducted by cities as to the actual transport needs of residents, including people with disabilities. In none of the 10 cities visited was any provision made for disabled persons to use public transport at the same level of accessibility as for non-disabled persons. Only 4 of the 10 cities visited consulted disabled people in their transport plans [27]. Vehicles equipped with these systems are quite often used, but their installation or location is incorrect and, as a result, instead of making it easier for people with disabilities to transport, they even make it difficult and a barrier for them to do so. Another situation is the problem with the use of ramps. Most of them are operated manually by the driver of the vehicle and there are situations where the driver, due to delays or other factors, refuses to assist in ejecting the ramp, forcing a person with reduced mobility to ask for help from other users or to stop traveling. Another problem is the number of wheelchair accessible places. There is no legislation regulating the recommended number of wheelchair users, they only specify a minimum number, i.e., one. When a vehicle is used by more than one preferred passenger, usually one of the users travels without any security measures [33,39]. Ensuring efficient evacuation from the vehicle of passengers in an emergency, especially those who are able-bodied and not self-reliant, is also an important consideration.
Evacuation planning is finalized to reduce exposure risk; it comprises a set of different activities [40]. It allows one to analyze the exposure component of risk and works to prepare and to implement activities to reduce risk. The main measure to reduce exposure is evacuation, which consists of reducing the number of users and goods that can experience negative effects when emergency events occur [41]. People with disabilities cannot take all the routes accessible to people without disabilities because of their disabilities, attached equipment, lower speed, and larger space requirement. This results in more challenges and slower movements for them during emergency evacuations in comparison with people without disabilities. Here are some basic techniques of emergency evacuation planning for the disabled (categorized by type of disability) [42]:
  • Hearing Impaired—the most significant problem during emergencies for the hearing impaired is immediate notification of the emergency. Emergency alarms should incorporate a distinct visual signal as well as audible signal to alert persons with hearing difficulties. People with no hearing disability can temporarily lose their hearing if a loud sharp noise occurs such as an explosion. Designing alarm systems and search and notification procedures with the idea that normal communication modes might not be effective will provide a facility the means of communicating danger and necessary actions to the hearing impaired. Another problem encountered by the hearing impaired is their inability to ensure their communication of an emergency has been received. When using telephones or other communication devices, they cannot see the intended recipient. Special procedures should be implemented to allow the hearing impaired to communicate that an emergency situation exists and/or obtain assistance.
  • Speech Impaired—in emergency situations persons with speech impairments are not only limited by their own disability but also limited by the inability of others to recognize they are trying to communicate non-verbally. Under normal circumstances the techniques employed by speech impaired persons to communicate their needs, wants and desires are effective when the recipient provides adequate focus on the communication. In emergencies, employees must be trained to take the necessary time to understand the ideas being communicated. The employee must be trained to take the few seconds required to calmly attempt to receive the communication. The disabled person may have knowledge of a hazardous condition or location of persons needing assistance.
  • Visually Impaired—as with hearing- and speech-impaired persons, visual impairment runs a wide spectrum. To assist persons with limited sight ability the following techniques will be helpful:
    • Install phones with large button faces and numbers. Numbers should be of a significant contrast to the button face to facilitate recognition.
    • Signs and emergency directions should be large print and in colors that do not preclude recognition by persons with color blindness.
    • Install Braille imprints on all doors.
    • Provide Braille or verbal emergency instructions for visually impaired employees and guests.
    • Provide familiarization tours for the visually impaired.
    Providing proper sensitivity training for employees can prevent inappropriate behavior. It has been noted that some people have a tendency to speak louder and more slowly to visually impaired persons. This is an inappropriate reaction on their part in their attempt to deal with their misconception of visual impairment.
  • Mobility Impaired—while persons restricted to wheelchairs may be the most limited, accommodations must be made for all types of mobility restrictions. These restrictions may include conditions that require the use of crutches, canes, walkers, and people with motor dysfunction and health problems that limit mobility. Evacuation of people with mobility impairment is compounded by the nature of emergency route design. Stairwells used in lieu of elevators present the largest obstruction for evacuation. Employees need to be trained in techniques for assisting the mobility impaired. This includes knowing their own physical limitations and ascertaining the mobility impaired person’s condition and preferences by asking them. Adequate and proper emergency equipment should be staged at strategic locations throughout the facility to enable not only employees to assist the disabled but also for use by emergency professionals that may respond to the scene.
  • Mentally Impaired—effective communication of the need to evacuate may be hampered if employees are not calm and persistent in their efforts to assist the mentally impaired. Though it is not always the case, some mentally impaired people may react to an emergency in an unexpected manner. Employees should be trained to handle unexpected behavior and provide the proper assistance attention to these people during evacuation. Additionally, they should be trained to be sensitive to mentally impaired persons attempts to communicate information or questions.
  • Elderly Persons—determining the limitations of an elderly person is sometimes difficult. The normal aging process causes diminished physical and mental abilities. Elderly persons may have all or some of the impairments discussed earlier. Accommodations that are designed for the disabled may be used successfully for the elderly. It should be noted that the percentage of elderly persons in Poland is growing dramatically larger.
  • Children—they are normally provided close supervision by parents, or other responsible adults, who provide explicit direction for their daily activities. During a situation that requires emergency evacuation, children cannot be expected to understand or comply with directions designed for adults. If they have become separated from their caregivers, their link to appropriate action has been severed and they will require special assistance.
In addition, the following is a set of measures that should be implemented in transport infrastructure buildings where people with disabilities are present [43]:
  • Fire-resistant compartmented spaces, with more exits, easy opening doors, even for wheelchair users;
  • Escape routes, as wheelchair users cannot escape up steep stairs on their own in case of emergency, but can wait for security personnel to arrive;
  • Installation of safer lifts that can be used even in emergency situations (with generator power, more fire-resistant wiring, fresh air supply and fume extraction);
  • Controlling emergency alarms by regulating the flow of occupants along escape routes, minimizing the possibility of bottlenecks;
  • Creating easy means of communication between places where disabled people are present and other actors in the surrounding community who can come to their aid;
  • Enabling people with disabilities to be involved in emergency preparedness and response.

3.2. Transport Infrastructure Solutions

It is not only adapted public transport modes that make public transport accessible to people with special needs. Equally important is the impact of stop infrastructure [44]. A public transport stop is defined as a place for passengers to board or alight on a given transport line, where information concerning in particular departure times of means of transport is placed, and, in road transport, marked in accordance with the provisions of the Road Traffic Law (a public transport stop may be a part of a station, interchange or terminal) [45]. The organizer of public transport is obliged to ensure appropriate conditions for the functioning of public transport, in particular with regard to the standards for public transport stops. Within the framework of these standards, it is possible to determine the conditions of accessibility of public transport stops for the blind and partially sighted, deaf and partially deaf as well as deaf-mute [27]. The location of the stop and its surroundings depend on many functional and urban factors. Accessibility of the stop for people with disabilities means first of all the elimination of architectural barriers in the immediate vicinity of the stop, especially in its connection with the most frequented pedestrian routes. It is also important to adapt the pedestrian crossings, usually located near the stops. Their proper adaptation means lowering curbs, installing convex surfaces (e.g., slabs with piping) before entering the roadway and when crossing tram tracks, equipping the crossing with light and sound signals [46,47].
Adequate adaptation of the stop infrastructure should include many elements. The comfort of waiting for a vehicle depends on the construction and equipment of the stop itself [44]. Some of the conditions that it should meet are [48]:
  • Protection (separation) from automobile traffic.
  • A level stopping surface on which passengers waiting for a vehicle can move.
  • Infrastructure equipped with ramps and lifts.
  • Adequate stopping space not interfering with pedestrian traffic.
  • Station equipment should not interfere with movement on the station platform, nor with access to the timetable or passenger information board.
  • Stairs, gauges and edges of platforms shall be adequately marked by the use of appropriate colors and materials within the available infrastructure and by lighting in enclosed facilities.
  • Lighting and hands-free facilities to inform passengers of departures or delays of vehicles.
  • Sufficiently large shelter to protect the waiting public from the weather.
The appropriate design of stops and the positioning of infrastructure elements within them is very important. Regardless of the regulatory requirements, the minimum needs of wheelchair users must be taken into account (Figure 5). In the case of existing reconstructed pavements, the regulations allow the width to be limited to 125 cm and 100 cm, respectively, but only at a width of 150 cm will such persons be able to turn around and pass by an able-bodied person, and at a width of 180 cm it is possible for two people in wheelchairs to pass by. When designing the width of communication routes, one should not forget about the needs of people with visual impairments, for whom excessive width means difficult orientation. Small architecture and other outdoor equipment should be positioned so as not to hinder the movement of people with reduced mobility and blind and partially sighted people.
Ground stations to which the road leads through an underground passageway or footbridge must be equipped with an appropriate system of ramps, lifts or platforms. The choice of the right solution depends on the difference in height between the ground level and the stop and the available space. In the case of a small difference in level, the most common solution is to use ramps that are simpler to build and almost cost-free to operate, but that take up more space. In the case of a large difference in levels, lifts or platforms are used. Ramps should be of sufficient width (at least 1.2 m) and slope (maximum 6% for ramps longer than 1.5 m) to enable people with disabilities to move in both conventional and electric wheelchairs. Their surface shall not be slippery even when wet, so that persons moving on them are not at risk of slipping or falling. For ramp lengths of more than 9 m, a slope of at least 1.4 m must be used. It is also very important to install a handrail at a suitable height. When using lifts and platforms, remember to place the buttons for their operation at a height accessible to a person in a wheelchair. It is also important to remember to equip the push-button panel with Braille alphabet marking, so that blind people can use them by themselves. It is worth noting that the production of a “signboard” with and without Braille markings costs exactly the same, so the assembly of this element does not require any additional costs [50]. When designing the lift at the stop, the width of the communication space should be adjusted to the expected traffic intensity. The cabin of a lift intended for a disabled person must not be smaller than 110 × 140 cm. In practice, its size should also depend on other factors, such as the location of the door on the shorter or longer wall of the cabin, the number of doors and their location, the distance between the door and the corner of the cabin. The dimensions of the lift cabin must not be less than [50]:
  • 110 × 140 cm—with doors located on the shorter side of the cabin (also for pass-through doors).
  • 150 × 150 cm or 140 × 160 cm—cabs in which it is necessary to turn the trolley, e.g., two pairs of doors located on the perpendicular walls of the cab are designed.
  • 130 × 170 cm—at doors located on the longer side of the cabin, close to the corner.
  • 130 × 200 cm—door placed on the longer side of the cabin, in the middle of the wall.
The name plates of the stops should be written as large as possible, preferably in simple sans serif font, and should always be placed in the same place at the stop. The same requirement applies to line number plates stopping at a given stop. The timetables should include: full information on departure times, a description of the route with a list of all stops and the time of travel, as well as information allowing to know at which stop we are currently at and in which direction a given line leads. It is very important that the font should be as legible and large as possible as far as the available space at the stop allows. It is also very important for people with disabilities, both wheelchair users and visually impaired people, to place timetables in such places and at such a height that they can read them. Boards should not be placed under a shelter above benches or in other difficult to reach places, as this location prevents people with visual impairments or wheelchair users from reading. For the same reasons, plates should not be too high either. An important element facilitating the use of public transport for the blind is the introduction of voice information at stops. More and more often, electronic boards are used for this purpose, informing about the order and time of arrival of particular lines and waiting time. Modern systems of this type are also equipped with a hands-free car kit that can be activated by a blind person using a button. It is also worth noting that such modern boards can be very useful for deaf-mute people, because they can also provide current information on sudden changes in routes, or changes in the platform to which the expected train will arrive [51,52].
More and more often we encounter stop infrastructure adapted to people with special needs. This applies to both newly built and modernized stops. Unfortunately, many of them located outside cities do not meet these requirements [53]. This also applies to stations located in cities, where many barriers can be encountered. Most often these are not working elevators or platforms. These elements can sometimes be excluded from use for many months. For many people, this means that they cannot use public transport. An additional problem is the lack of the possibility of “spontaneous” use of transport, because the need for a travel assistant must be reported to the station by a person with a disability at least 48 h before the journey. Another common problem is that the infrastructure is not adapted at all to the needs of blind people, so they have to ask for help from other passengers in many situations. There are many examples of inadequate or poorly adapted infrastructure. When combined with unavailable rolling stock, there is a situation in which a disabled person has very little sense of safety when traveling or cannot travel. The solution to these problems can be universal design.

3.3. Barrier Classification

The aim of this part of research is to identify and classify barriers in public transport that limit the independent mobility of people with special needs. A person with a disability due to health or physical limitations has natural barriers to perform basic activities. There are also barriers that are imposed by the environment in which these people function (architectural barriers, communication barriers, etc.). These barriers aggravate the disability of people who cannot overcome the difficulties they encounter on their own and who face social isolation. The literature lists many classifications of barriers for people with disabilities. One of the most popular is the classification of R. W. Smith (1987), which is followed by three groups of barriers: real, environmental and interactive, as presented in Table 1.
A different approach to the classification of barriers takes into account their division from the point of view of disability and occurrence in transport, as shown in Table 2.
One of the stages of building the author’s method of assessing the level of accessibility is to develop a classification based on existing scientific publications and adapted to Polish realities. For this purpose, an anonymous survey was used as one form of information gathering. The first studies focused on blind and visually impaired people. Blind and partially sighted people have specific needs and requirements for elements of urban infrastructure and means of transport. Opinions were obtained from online surveys and phone calls.
The first section was to find out the characteristics of the research group. The questions asked about the gender and age of the people surveyed. Thirty people participated in the survey. A total of 70% of the respondents were men and 30% of the respondents were women. Most respondents, 70%, were in the 18–35 age group, followed by the 36–60 age group with 15% of the respondents, and the 60+ age group with 15% of the respondents. The questions in the first section:
  • Gender
    • Female
    • Male
  • Age
    • Under 18
    • 18–35
    • 36–60
    • Over 60
The next section allowed the respondent to identify the type or types of medical conditions. Among the conditions listed were reduced visual acuity, gloom, narrowed visual field, color vision disorder, nystagmus, distorted or doubled vision, partial loss of vision and total loss of vision. Question in the second section:
3.
Type of condition
  • Reduced visual acuity
  • Blinkers
  • Narrowed field of vision, so called lunette vision
  • Color vision disturbance
  • Distorted or doubled vision
  • Partial loss of vision
  • Total loss of vision
  • Other response
The last section of questions concerned respondents’ feelings and opinions about Warsaw’s transport infrastructure, with particular emphasis on public transport stops and subway stations.
4.
How many times a week do you use the city’s transportation infrastructure?
  • Not at all
  • Once a week
  • Several times a week
  • Daily
  • Other answer.
5.
Do you feel safe using Warsaw’s public transport stops?
  • Yes
  • No
  • Partially yes
  • I don’t know
If no, please explain briefly:
6.
Do you find your travel by public transport limited by the lack of adequate adaptation of the city’s transport infrastructure to blind or visually impaired people?
  • Yes
  • No
  • Other answer
7.
Are Warsaw tram and bus stops marked appropriately?
  • Yes, always
  • Usually yes
  • Usually no
  • No
8.
What problem do you most often encounter when using public transport at a bus stop? public transport stops?
  • Sound signal failure or incorrect functioning
  • Lack of tactile paths
  • Lack of contrasting colors
  • Lack of visible timetable
  • Difficult access to the stop
  • Lack of marking on glass surfaces
  • Unsecured furnishings of the space
  • There are no problems
  • Other answer
9.
How often do you encounter audible signals at tram/bus stops?
  • Always
  • Often
  • Rarely
  • Never
10.
Are the elements of the stop space equipment (benches, waste garbage cans, glass panes) properly secured/marked?
  • Yes
  • No
  • Don’t know
11.
Which solutions applied to Warsaw public transport stops do you consider helpful?
Short answer text.
12.
What proposals do you have for changes facilitating the use of public transport stops for the blind and visually impaired?
Long answer text.
An analysis of the responses obtained is presented in Table 3.
Based on the results in the Table 3, it can be seen that all respondents use public transport almost every day. Unfortunately, only a small part of them feel completely safe in it (25%). Despite the lack of certain elements at some of the bus stops (question 8), most of the respondents did not find their travel by public transport limited. However, this does not change the fact that corrections at Warsaw bus stops must be introduced in order to increase the comfort and safety of blind and visually impaired people.

4. Conclusions

People with disabilities are particularly vulnerable to isolation and social exclusion. This is influenced, among other things, by the public transport system, on which the ability to live, learn and work in an active way depends. Despite the increased social sensitivity to the needs of people with disabilities and many changes in the functioning of public transport in recent years, they still point to a number of shortcomings. Increasing the accessibility of bus fleets plays a particularly important role in this respect, primarily because bus transport in many areas of the country is the only mode of public transport used. It is not possible to base the accessibility of public transport services solely on rail transport—at present the most regulated of all modes of transport and the most dynamically increasing accessibility for people with disabilities and people with special needs. Despite the increase in the number of vehicles adapted to the transport of various groups of passengers, the remaining elements of the transport infrastructure (stops, crossings, access roads), especially in small towns, have not been sufficiently adapted. It is worth emphasizing that the accessibility of public transport, apart from the fleet and infrastructure, is also influenced by proper organization as well as qualified management and passenger service personnel.
As shown by the survey, blind and visually impaired persons, despite their disability, are active users of public transport. Most of them use Warsaw public transport stops on a daily basis; however, most of them do not feel fully safe. Despite the general positive assessment of the adaptation of bus stops, the respondents mentioned a number of serious shortcomings which significantly limit the comfort of using the bus stop infrastructure. They included: sound signal failure or incorrect functioning, lack of contrasting colors, lack of visible timetable and lack of marking on glass surfaces.
People participating in the survey see many possibilities for changes that would enable them to use public transport stops more safely and freely. Above all, they point out the need to standardize signage and the need to create an app to facilitate the use of public transportation [54].
Development of a method for evaluating the level of accessibility of public transportation for people with special needs meets the expectations of this group of society and responds to the requirements of the government document—Accessibility Plus Strategy—and the Act on Ensuring Accessibility to People with Special Needs. Currently, there is no standardized method for evaluating the accessibility of fleet and transport infrastructure. The auditing process is carried out in different ways depending on the institution that undertakes it. This is also due to the lack of consistent criteria. In the process of building a database and assessment criteria as well as verifying the correctness of each method the participation of end users should be taken into account, which undoubtedly increases the credibility of the results obtained. Such approach was used by the authors in their methodology, thanks to which they have a chance to diagnose problems not always included in existing documents. The knowledge gained from visually impaired and blind people will be supplemented by other barriers that limit free use for people with other dysfunctions or needs. The development and implementation of a comprehensive method that takes equal account of the needs of all users of transportation systems will facilitate and standardize the assessment of the level of transportation accessibility and allow for the successive and standardized elimination of existing barriers.
Future work should also evaluate the possibility of integrating such special needs into upcoming advanced transit advisory tools such as those proposed in Refs. [55,56,57,58,59,60,61]. Providing specific guidance on transit services that meet such special needs can certainly improve the travel experience for users with special needs.

Author Contributions

S.A.B.—Writing Original Draft; Z.Z.—Writing Original Draft. Both authors have read and agreed to the published version of the manuscript.

Funding

This research received no external funding.

Institutional Review Board Statement

Not applicable.

Informed Consent Statement

Not applicable.

Data Availability Statement

Data is contained within the article.

Conflicts of Interest

The authors declare no conflict of interest.

References

  1. Levinson, D. Equity Effects of Road Pricing: A review. Transp. Rev. 2010, 30, 33–57. [Google Scholar] [CrossRef] [Green Version]
  2. Cavallaro, F.; Bruzzone, F.; Nocera, S. Spatial and social equity implications for High-Speed Railway lines in Northern Italy. Transp. Res. Part A 2020, 140, 251–265. [Google Scholar] [CrossRef]
  3. Meng, Q.; Yang, H. Benefit distribution and equity in road network design. Transp. Res. Part B Methodol. 2002, 36, 19–35. [Google Scholar] [CrossRef]
  4. Garrett, M.; Taylor, B. Reconsidering social equity in public transit. Berkeley Plan. J. 1999, 13, 6–27. [Google Scholar] [CrossRef] [Green Version]
  5. Implementation of the World Programme of Action Concerning Disabled Persons [1982] UNGA 68; A/RES/37/53 (3 December 1982). Available online: http://www.worldlii.org/int/other/UNGA/1982/57.pdf (accessed on 26 September 2021).
  6. World Bank; World Health Organization. The World Report on Disability. 2011. Available online: http://www.who.int/disabilities/world_report/2011/en (accessed on 5 April 2021).
  7. World Health Organization. Global Status Report on Road Safety 2013: Supporting a Decade of Action; WHO: Geneva, Switzerland, 2013. [Google Scholar]
  8. United Nations. The Standard Rules on the Equalization of Opportunities for Persons with Disabilities; United Nations: New York, NY, USA, 1993. [Google Scholar]
  9. Barcelona Declaration by 56 Representatives of European Cities. In Proceedings of the 1995 Conference the City and the Disabled, Barcelona, Spain, 23–24 March 1995; Available online: http://www.idd.ie/barcelona/Barcelona_Declaration_online.htm (accessed on 26 September 2021).
  10. Convention on the Rights of Persons with Disabilities, Drawn up in New York on December 13, 2006 (Journal of Laws of October 25, 2012, Item 1169). Available online: https://www.un.org/disabilities/documents/convention/convention_accessible_pdf.pdf (accessed on 26 September 2021).
  11. Fatima, K.; Moridpour, S.; Saghapour, T. Spatial and Temporal Distribution of Elderly Public Transport Mode Preference. Available online: https://www.mdpi.com/2071-1050/13/9/4752 (accessed on 1 June 2021).
  12. Cormode, L. Emerging Geographies of Impairment and Disability: An Introduction. Environ. Plan. D Soc. Space 1997, 15, 387–390. [Google Scholar]
  13. Barbareschi, G.; Carew, M.T.; Johnson, E.A.; Kopi, N.; Holloway, C. “When They See a Wheelchair, They’ve Not Even Seen Me”—Factors Shaping the Experience of Disability Stigma and Discrimination in Kenya. Available online: https://www.mdpi.com/1660-4601/18/8/4272 (accessed on 1 June 2021).
  14. Chaisomboon, M.; Jomnonkwao, S.; Ratanavaraha, V. Elderly Users’ Satisfaction with Public Transport in Thailand Using Different Importance Performance Analysis Approaches. Available online: https://www.mdpi.com/2071-1050/12/21/9066 (accessed on 1 June 2021).
  15. Rosenbloom, S. Transportation Patterns and Problems of People with Disabilities; National Academies Press: Washington, DC, USA, 2007. [Google Scholar]
  16. Kowalski, K. Planowanie dostępności—polskie uwarunkowania prawne i praktyka. Niepełnosprawność—Zagadnienia Probl. Rozwiązania 2013, 1, 71–99. [Google Scholar]
  17. National Technical Information Service (NTIS). Current State of Transportation for People with Disabilities in the United States; Technical Report; National Council on Disability: Washington, DC, USA, 2005. [Google Scholar]
  18. Stjernborg, V. Accessibility for All in Public Transport and the Overlooked (Social) Dimension—A Case Study of Stockholm. Available online: https://www.mdpi.com/2071-1050/11/18/4902 (accessed on 1 June 2021).
  19. Travers, M. Strategies to Overcome Transport Disadvantage; Department of the Prime Minister and Cabinet: Canberra, Australia, 1992. [Google Scholar]
  20. Bruinsma, F.; Rietveld, P. The Accessibility of European Cities: Theoretical Framework and Comparison of Approaches. Environ. Plan A 1998, 30, 499–521. [Google Scholar] [CrossRef]
  21. Koslowsky, M.; Kluger, A.; Reich, M. Commuting Stress: Causes, Effects, and Methods of Coping; Springer: Berlin, Germany, 2013; ISBN 978-1-4757-9767-1. [Google Scholar]
  22. Park, J.; Chowdhury, S. Investigating the barriers in a typical journey by public transport users with disabilities. J. Transp. Health 2018, 10, 361–368. [Google Scholar] [CrossRef]
  23. Antipova, A.; Sultana, S.; Hu, Y.; Rhudy, J.P. Accessibility and Transportation Equity. Available online: https://www.mdpi.com/2071-1050/12/9/3611 (accessed on 1 June 2021).
  24. Carmien, S.; Dawe, M.; Fischer, G.; Gorman, A.; Kintsch, A.; Sullivan, J.F. Socio-technical environments supporting people with cognitive disabilities using public transportation. ACM Trans. Comput.-Hum. Interact. 2005, 12, 233–262. [Google Scholar] [CrossRef]
  25. Grabarek, I. Projektowanie Ergonomiczne środków Transportu Miejskiego; Oficyna Wydawnicza Politechniki Warszawskiej: Warszawa, Poland, 2017. [Google Scholar]
  26. Regulation No 107 of the Economic Commission for Europe of the United Nations (UN/ECE). In Uniform Provisions Concerning the Approval of Category M2 or M3 Vehicles with Regard to Their General Construction; Official Journal of the European Union: Brussels, Belgium, 1998.
  27. Najwyższa Izba Kontroli Dostępność Publicznego Transportu Zbiorowego Dla Osób NiepełNosprawnych w Miastach Na Prawach Powiatu. Warszawa, LBY.430.001.00.2015, Nr Ewid. 6/2016/P/15/069/LBY. 2016. Available online: https://www.nik.gov.pl/kontrole/P/15/069/ (accessed on 26 September 2021).
  28. Council of Europe: Committee of Ministers. Recommendation Rec(2006)5 of the Committee of Ministers to Member States on the Council of Europe. Action Plan to Promote the Rights and Full Participation of People with Disabilities in Society: Improving the Quality of Life of People with Disabilities in Europe. 2006–2015, 5 April 2006, Rec(2006)5. Available online: https://www.refworld.org/docid/4a54bc3f1a.html (accessed on 5 April 2021).
  29. European Commission. Communication from the Commission to the European Parliament, the Council, the European Economic and Social Committee and the Committee of the Regions Establishing a European Pillar of Social Rights (COM/2017/0250 Final); Publication Office of European Union, Directorate-General for Employment, Social Affairs and Inclusion: Brussels, Belgium, 2017. [Google Scholar] [CrossRef]
  30. Dodson, J.; Gleeson, B.; Sipe, N. Transport Disadvantage and Social Status: A Review of Literature and Methods; Urban Policy Program, Griffith University: Nathan, Australia, 2004. [Google Scholar]
  31. Geurs, K.T.; Boon, W.; Wee, B.V. Social impacts of transport: Literature review and the state of the practice of transport appraisal in the Netherlands and the United Kingdom. Transp. Rev. 2009, 29, 69–90. [Google Scholar] [CrossRef] [Green Version]
  32. Aleksandrova, O.; Nenakhova, Y. Accessibility of Assistive Technologies as a Factor in the Successful Realization of the Labor Potential of Persons with Disabilities: Russia’s Experience. Available online: https://www.mdpi.com/2075-4698/9/4/70 (accessed on 1 June 2021).
  33. Evans, J.; White, M. A Review of Transport Resources for People with Disabilities: A State-of-the-Art Review; Review Report 3; ARRB Transport Research: Victoria, Australia, 1998. [Google Scholar]
  34. Regulation (EU) No 181/2011 of the European Parliament and of the Council of 16 February 2011. In Concerning the Rights of Passengers in Bus and Coach Transport and Amending Regulation; Official Journal of the European Union: Brussels, Belgium, 2011.
  35. Golledge, R.G.; Costanzo, C.M.; Marston, J. Public Transit Use by Non-Driving Disabled Persons: The Case of the Blind and Vision Impaired; Technical Report UCB-ITS-PWP-96-1; PATH: Berkeley, CA, USA, 1996. [Google Scholar]
  36. Zając, A.P.; Kostrzewa, P.; Kowalski, R. Dostępność Warszawskich Stacji i Przystanków Kolejowych. Rap. Stowarzyszenia Integr. Stołecznej Komun. Available online: http://www.siskom.waw.pl/komunikacja/kolej/dworce/SISKOM_Dostepnosc_warszawskich_stacji_i_przystankow_kolejowych.pdf (accessed on 20 July 2021).
  37. Baudoin, G.; Venard, O. Information, Communication and Localization Environment for Travelers with Sensory Disabilities in Public Transports. In Proceedings of the 5th International ICST Conference on Communications and Networking, Beijing, China, 25–27 August 2010. [Google Scholar]
  38. Mashiri, M.; Maunder, D.; Venter, C.; Lakra, A.; Bogopane-Zulu, H.; Zukulu, R.; Buiten, D.; Boonzaier, D. Improving the Provision of Public Transport Information for Persons with Disabilities in the Developing World. In Proceedings of the 24th Annual Southern African Transport Conference, Pretoria, South Africa, 11–17 June 2005; pp. 308–322. [Google Scholar]
  39. Mościcka, A.; Pokonieczny, K.; Wilbik, A.; Wabiński, J. Transport Accessibility of Warsaw: A Case Study. Available online: https://www.mdpi.com/2071-1050/11/19/5536 (accessed on 1 June 2021).
  40. Russo, F.; Rindone, C.; Trecozzi, M.R. The Role of Training in Evacuation. Available online: https://www.researchgate.net/publication/258605864_The_role_of_training_in_evacuation (accessed on 20 July 2021).
  41. Russo, F.; Rindone, C. Data Envelopment Analysis (DEA) for Evacuation Planning. Available online: https://www.researchgate.net/publication/258598173_Data_Envelopment_Analysis_DEA_for_evacuation_planning (accessed on 20 July 2021).
  42. Evacuation Planning & the ADA. Available online: https://www.safetyinfo.com/emergency-ada-evacuation-disabled-free-index/ (accessed on 20 July 2021).
  43. Veiga, R.; Pires, C. Emergency Evacuation of People with Disabilities. Internantional Symposium on Occupacional Safety and Higiene: Proceedings Book of the SHO2018 (pp. 40–42). Guimarães, PORTUGAL: Portuguese Society of Occupacional Safety and Higiene (SPOSHO), July 2018. Available online: https://comum.rcaap.pt/handle/10400.26/29225?locale=en (accessed on 26 September 2021).
  44. Geurs, K.T.; Ritsema van Eck, J.R. Accessibility Measures: Review and Applications; RIVM Report 408505 006; National Institute of Public Health and the Environment: Bilthoven, The Netherlands, 2001. [Google Scholar]
  45. Ustawa z Dnia 20 Czerwca 1997 r. Prawo o Ruchu Drogowym. Dz. U. 1997 Nr 98 Poz. 602, Kancelaria Sejmu. 20 June 1997. Available online: http://isap.sejm.gov.pl/isap.nsf/DocDetails.xsp?id=wdu19970980602. (accessed on 1 June 2021).
  46. Dalvi, M.Q.; Martin, K.M. The measurement of accessibility: Some preliminary results. Transportation 1976, 5, 17–42. [Google Scholar] [CrossRef]
  47. Danilina, N.; Privezentseva, S.V. Disabled people in public transport transfer hubs. J. Constr. Archit. 2018. [Google Scholar] [CrossRef] [Green Version]
  48. Zhou, H.; Hou, K.M.; Zuo, D.; Li, J. Intelligent Urban Public Transportation for Accessibility Dedicated to People with Disabilities. Available online: https://www.mdpi.com/1424-8220/12/8/10678 (accessed on 1 June 2021).
  49. Kowalski, K. WŁĄCZNIK Projektowanie Bez Barier, Fundacja Integracja. Available online: http://www.integracja.org/wlacznik/ (accessed on 1 June 2021).
  50. Fundacja Instytut Rozwoju Regionalnego. Dostępna Komunikacja Miejska; Samorząd Równych Szans: Kraków, Poland, 2009. [Google Scholar]
  51. Liu, X.; Ye, O.; Li, Y.; Fan, J.; Tao, Y. Examining Public Concerns and Attitudes toward Unfair Events Involving Elderly Travelers during the COVID-19 Pandemic Using Weibo Data. Available online: https://www.mdpi.com/1660-4601/18/4/1756 (accessed on 1 June 2021).
  52. Parr, H. Mental health, public space, and the city: Questions of individual and collective access. Environ. Plan. D Soc. Space 1997, 15, 435–454. [Google Scholar] [CrossRef]
  53. Venter, C.; Savill, T.; Rickert, T.; Bogopane, H.; Venkatesh, A.; Camba, J.; Mulikita, N.; Khaula, C.; Stone, J.; Maunder, D. Enhanced Accessibility for People with Disabilities Living in Urban Areas; Project Report; Cornell University IRL School, DigitalCommons@ILR: Ithaca, NY, USA, 2002. [Google Scholar]
  54. Stoker, P.; Garfinkel-Castro, A.; Khayesi, M.; Odero, W.; Mwangi, M.N.; Peden, M.; Ewing, R. Pedestrian Safety and the Built Environment: A Review of the Risk Factors. J. Plan. Lit. 2015, 30, 377–392. [Google Scholar] [CrossRef]
  55. Nuzzolo, A.; Comi, A. Dynamic Optimal Travel Strategies in Intelligent Stochastic Transit Networks. Information 2021, 12, 281. [Google Scholar] [CrossRef]
  56. Paulsen, M.; Rasmussen, T.K.; Nielsen, O.A. Impacts of real-time information levels in public transport: A large-scale case study using an adaptive passenger path choice model. Transp. Res. Part A Policy Pract. 2021, 148, 155–182. [Google Scholar] [CrossRef]
  57. Ceder, A.A.; Jiang, Y. Route guidance ranking procedures with human perception consideration for personalized public transport service. Transp. Res. Part C Emerg. Technol. 2020, 118, 102667. [Google Scholar] [CrossRef] [PubMed]
  58. Leng, N.; Corman, F. The role of information availability to passengers in public transport disruptions: An agent-based simulation approach. Transp. Res. Part A Policy Pract. 2020, 133, 214–236. [Google Scholar] [CrossRef]
  59. Xiong, C.; Shahabi, M.; Zhao, J.; Yin, Y.; Zhou, X.; Zhang, L. An integrated and personalized traveler information and incentive scheme for energy efficient mobility systems. Transp. Res. Part C Emerg. Technol. 2020, 113, 57–73. [Google Scholar] [CrossRef]
  60. Nuzzolo, A.; Comi, A. A normative optimal strategy in intelligent transit networks. Transp. Res. Procedia 2017, 27, 380–387. [Google Scholar] [CrossRef]
  61. Nuzzolo, A.; Comi, A.; Crisalli and Rosati, L. An advanced pre-trip planner with personalized information on transit networks with ATIS. In Proceedings of the 16th International IEEE Conference on Intelligent Transportation Systems: Intelligent Transportation Systems for All Modes, ITSC, The Hague, The Netherlands, 6–9 October 2013; p. 6728546. [Google Scholar] [CrossRef] [Green Version]
Figure 1. Minimum clear space for a wheelchair user in a vehicle (dimensions in mm) [34].
Figure 1. Minimum clear space for a wheelchair user in a vehicle (dimensions in mm) [34].
Sustainability 13 10733 g001
Figure 2. Example of a backrest for a rearward-facing wheelchair [34].
Figure 2. Example of a backrest for a rearward-facing wheelchair [34].
Sustainability 13 10733 g002
Figure 3. Example of a folding ramp on WKD trains [36].
Figure 3. Example of a folding ramp on WKD trains [36].
Sustainability 13 10733 g003
Figure 4. Symbols regarding vehicle accessibility for persons with reduced mobility: (a) graphic symbol for wheelchair users; (b) a graphic symbol for passengers with reduced mobility other than wheelchair users; (c) graphic symbol for the space for a pram and pushchair [34].
Figure 4. Symbols regarding vehicle accessibility for persons with reduced mobility: (a) graphic symbol for wheelchair users; (b) a graphic symbol for passengers with reduced mobility other than wheelchair users; (c) graphic symbol for the space for a pram and pushchair [34].
Sustainability 13 10733 g004
Figure 5. (left) Pavement width 150 cm enabling maneuvering the wheelchair and passing by a person in a wheelchair and a fit person; (right) pavement width 180 cm enabling two people passing by in a wheelchair [49].
Figure 5. (left) Pavement width 150 cm enabling maneuvering the wheelchair and passing by a person in a wheelchair and a fit person; (right) pavement width 180 cm enabling two people passing by in a wheelchair [49].
Sustainability 13 10733 g005
Table 1. Barriers classification by R. W. Smith [22].
Table 1. Barriers classification by R. W. Smith [22].
Classification by R. W. Smith
Actual BarriersEnvironmental BarriersInteractive Barriers
  • lack of knowledge, ignorance of opportunities,
  • health problems limiting daily activities,
  • lack of adaptation of the disabled in the area of social communication,
  • psycho-physical dependence of disabled people on other people.
  • attitudes on the part of the non-disabled,
  • architecture,
  • environmental barriers related to environmental conditions,
  • transportation,
  • legislative laws and regulations.
  • mismatch between the abilities of the disabled and the type and form of activity,
  • limited communication of the disabled.
Table 2. Barriers for people with disabilities in transport [22].
Table 2. Barriers for people with disabilities in transport [22].
Persons with mobility problems
  • problems with climbing stairs and steps,
  • slow movement,
  • ease of fatigue,
  • balancing problems, especially in a moving vehicle,
  • the risk of injury in a moving crowd,
  • difficulty moving on an unstable surface,
  • no ramps, no railings.
Wheelchair users
  • uneven, bumpy or broken surfaces,
  • soft surface, like gravel, sand,
  • crossing curbs and steps when there are no ramps or railings,
  • high-floor buses and trams,
  • no platforms,
  • high-pitched buttons.
Persons with problems in performing manipulative activities
  • operation of buttons, doors, switches or ticket vending machines
  • arrangement and shape of the handrail
Persons with visual disability
  • identification of changes in driving directions,
  • identification of the level and type of hazard, such as the edge of the platform,
  • distinguishing between traffic areas and pedestrian areas,
  • identification of the bus or tram number,
  • detection of approaching vehicles,
  • purchase of tickets,
  • getting information about the timetable,
  • vertical signs on the pedestrian crossing route,
  • size, color, contrast and backlighting of the characters,
  • information about stop names and current position,
  • safe obstacle clearance,
  • too little light in the bus stops
Persons with hearing disability
  • voice announcements for the next stop, alarm messages informing about the threat,
  • information on the approaching vehicle.
Persons with mental disabilities
  • finding your way in an unfamiliar environment; interpretation of signs and information; dealing with unpredictable changes, such as a canceled tram, bus; dealing with complex instructions or timetables.
Persons with mental illness
  • stress and anxiety in crowded situations, unexpected changes, unpleasant people-to-people meetings
Table 3. Summary of responses to the survey.
Table 3. Summary of responses to the survey.
QuestionAnswersScore in %
How many times a week do you use the city’s transportation infrastructureDaily65
Several times a week30
Once a week5
Not at all0
Do you feel safe using Warsaw’s public transport stopsYes25
Partially yes75
No0
Do you find your travel by public transport limited by the lack of adequate adaptation of the city’s transport infrastructure to blind or visually impaired people?Yes15
No85
Are Warsaw tram and bus stops marked appropriatelyYes, always80
Usually yes20
Usually no0
No0
What problem do you most often encounter when using public transport at a bus stop?Sound signal failure or incorrect functioning70
Lack of tactile paths20
Lack of contrasting colors70
Lack of visible timetable50
Difficult access to the stop15
Lack of marking on glass surfaces80
Unsecured furnishings of the space20
There are no problems10
How often do you encounter audible signals at tram/bus stops?Always0
Often0
Sometimes50
Rarely50
Never0
Are the elements of the stop space equipment (benches, waste garbage cans, glass panes) properly secured/marked?Yes40
No0
Don’t know60
Publisher’s Note: MDPI stays neutral with regard to jurisdictional claims in published maps and institutional affiliations.

Share and Cite

MDPI and ACS Style

Bęczkowska, S.A.; Zysk, Z. Safety of People with Special Needs in Public Transport. Sustainability 2021, 13, 10733. https://doi.org/10.3390/su131910733

AMA Style

Bęczkowska SA, Zysk Z. Safety of People with Special Needs in Public Transport. Sustainability. 2021; 13(19):10733. https://doi.org/10.3390/su131910733

Chicago/Turabian Style

Bęczkowska, Sylwia Agata, and Zuzanna Zysk. 2021. "Safety of People with Special Needs in Public Transport" Sustainability 13, no. 19: 10733. https://doi.org/10.3390/su131910733

APA Style

Bęczkowska, S. A., & Zysk, Z. (2021). Safety of People with Special Needs in Public Transport. Sustainability, 13(19), 10733. https://doi.org/10.3390/su131910733

Note that from the first issue of 2016, this journal uses article numbers instead of page numbers. See further details here.

Article Metrics

Back to TopTop