Quality Evaluation of Small Features Fabricated by Fused Filament Fabrication Method
Abstract
1. Introduction
2. Materials and Methods
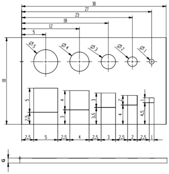
2.1. Fabrication Process of the Test Samples
2.2. Research Methodology
3. Experimental Results
3.1. Quality Evaluation of Test Samples
3.2. Measurements and Quality Evaluation of Holes

3.3. Regression Equations for Determining a Clearance of Circular and Square Cross-Section Features
4. Discussion
5. Conclusions and Future Work
- A general model for determining hole clearance was developed, allowing for the calculation of an equivalent hole diameter de and Feret’s diameters dh and dv as a function of a sample thickness G = 2 ÷ 5 mm for the range of a theoretical diameter dt = 2 ÷ 5 mm.
- The adopted method of quality evaluation based on microscopic observations and image processing software is cheap, is easy to use, and can be applied to other 3D-printing technologies.
- Low-cost FFF 3D printer and the adopted set of RP process parameters made it possible to fabricate most of the designed round and square holes in the test samples, while failing to achieve the assumed dimensions and shapes.
- The differences between the diameters de, dv, and dh indicate that the resulting internal profiles do not have fully circular and square shapes.
- Material defects have reduced the real dimensions of the holes compared to their CAD models, particularly for the smallest features.
- Printing holes at an angle of 90° require the use of support structures, while their manual removal may cause the deformation or damage of test samples with low heights. Therefore, it would be more beneficial to use soluble structures.
Author Contributions
Funding
Institutional Review Board Statement
Informed Consent Statement
Data Availability Statement
Conflicts of Interest
References
- Deja, M.; Zielinski, D. A pilot study to assess an in-process inspection method for small diameter holes produced by direct metal laser sintering. Rapid Prototyp. J. 2020, 26, 418–436. [Google Scholar] [CrossRef]
- Deja, M.; Dobrzyński, M.; Flaszyński, P.; Haras, J.; Zieliński, D. Application of Rapid Prototyping technology in the manufacturing of turbine blade with small diameter holes. Pol. Marit. Res. 2018, 25 (Suppl. S1), 119–123. [Google Scholar] [CrossRef]
- Rogkas, N.; Vakouftsis, C.; Spitas, V.; Lagaros, N.D.; Georgantzinos, S.K. Design aspects of additive manufacturing at microscale: A review. Micromachines 2022, 13, 775. [Google Scholar] [CrossRef]
- Huang, Z.; Shao, G.; Li, L. Micro/nano functional devices fabricated by additive manufacturing. Prog. Mater. Sci. 2023, 131, 101020. [Google Scholar] [CrossRef]
- ISO/ASTM52900-15; Standard Terminology for Additive Manufacturing–General Principles–Terminology. ASTM International: West Conshohocken, PA, USA, 2015.
- Zieliński, D. Printing of Durable Thermoplastic Elements Using FDM/FFF Technology; Tworzywa Sztuczne W Przemyśle: Racibórz, Poland, 2021; pp. 103–106. (In Polish) [Google Scholar]
- Dey, A.; Roan Eagle, I.N.; Yodo, N. A Review on Filament Materials for Fused Filament Fabrication. J. Manuf. Mater. Process. 2021, 5, 69. [Google Scholar] [CrossRef]
- Donnici, G.; Ferretti, P.; Montalti, A.; Francia, D.; Liverani, A. FDM Technology: Overhangs versus Layer Height Printability Performance Correlation. In International Conference of the Italian Association of Design Methods and Tools for Industrial Engineering; Springer Nature: Cham, Switzerland, 2023; pp. 58–65. [Google Scholar]
- Kantaros, A.; Piromalis, D. Employing a low-cost desktop 3D printer: Challenges, and how to overcome them by tuning key process parameters. Int. J. Mech. Appl. 2021, 10, 11–19. [Google Scholar]
- Lee, C.H.; Padzil, F.N.B.M.; Lee, S.H.; Ainun, Z.M.A.A.; Abdullah, L.C. Potential for natural fiber reinforcement in PLA polymer filaments for fused deposition modeling (FDM) additive manufacturing: A review. Polymers 2021, 13, 1407. [Google Scholar] [CrossRef]
- Kantaros, A.; Soulis, E.; Petrescu, F.I.T.; Ganetsos, T. Advanced composite materials utilized in FDM/FFF 3D printing manufacturing processes: The case of filled filaments. Materials 2023, 16, 6210. [Google Scholar] [CrossRef]
- Adapa, S.K.; Jagadish. Design and fabrication of internal mixer and filament extruder for extraction of hybrid filament composite for FDM applications. Int. J. Interact. Des. Manuf. (IJIDeM) 2024, 18, 419–432. [Google Scholar] [CrossRef]
- Kechagias, J.; Chaidas, D.; Vidakis, N.; Salonitis, K.; Vaxevanidis, N.M. Key parameters controlling surface quality and dimensional accuracy: A critical review of FFF process. Mater. Manuf. Process. 2022, 37, 963–984. [Google Scholar] [CrossRef]
- Vidakis, N.; David, C.; Petousis, M.; Sagris, D.; Mountakis, N.; Moutsopoulou, A. The effect of six key process control parameters on the surface roughness, dimensional accuracy, and porosity in material extrusion 3D printing of polylactic acid: Prediction models and optimization supported by robust design analysis. Adv. Ind. Manuf. Eng. 2022, 5, 100104. [Google Scholar] [CrossRef]
- Kantaros, A.; Piromalis, D.; Tsaramirsis, G.; Papageorgas, P.; Tamimi, H. 3D printing and implementation of digital twins: Current trends and limitations. Appl. Syst. Innov. 2021, 5, 7. [Google Scholar] [CrossRef]
- Tang, P.; Zhao, X.; Shi, H.; Hu, B.; Ding, J.; Yang, B.; Xu, W. A review of multi-axis additive manufacturing: Potential, opportunity and challenge. Addit. Manuf. 2024, 83, 104075. [Google Scholar] [CrossRef]
- Yao, Y.; Cheng, L.; Li, Z. A comparative review of multi-axis 3D printing. J. Manuf. Process. 2024, 120, 1002–1022. [Google Scholar] [CrossRef]
- Kantaros, A.; Ganetsos, T.; Piromalis, D. 4D Printing: Technology Overview and Smart Materials Utilized. J. Mechatron. Robot. 2023, 7, 1–14. [Google Scholar] [CrossRef]
- Du, Z.J.; Zhang, F.L.; Xu, Q.S.; Huang, Y.J.; Li, M.C.; Huang, H.P.; Wang, C.Y.; Zhou, Y.M.; Tang, H.Q. Selective laser sintering and grinding performance of resin bond diamond grinding wheels with arrayed internal cooling holes. Ceram. Int. 2019, 45, 20873–20881. [Google Scholar] [CrossRef]
- Rehmani, M.A.A.; Jaywant, S.A.; Arif, K.M. Study of microchannels fabricated using desktop fused deposition modeling systems. Micromachines 2020, 12, 14. [Google Scholar] [CrossRef] [PubMed]
- Quero, R.F.; da Silveira, G.D.; da Silva, J.A.F.; de Jesus, D.P. Understanding and improving FDM 3D printing to fabricate high-resolution and optically transparent microfluidic devices. Lab A Chip 2021, 21, 3715–3729. [Google Scholar] [CrossRef]
- Boschetto, A.; Bottini, L. Accuracy prediction in fused deposition modeling. Int. J. Adv. Manuf. Technol. 2014, 73, 913–928. [Google Scholar] [CrossRef]
- Boschetto, A.; Bottini, L. Design for manufacturing of surfaces to improve accuracy in Fused Deposition Modeling. Robot. Comput.-Integr. Manuf. 2016, 37, 103–114. [Google Scholar] [CrossRef]
- Urbanic, R.J.; Hedrick, R. Fused deposition modeling design rules for building large, complex components. Comput.-Aided Des. Appl. 2016, 13, 348–368. [Google Scholar] [CrossRef]
- Kalpakjian, S.; Schmid, S.R. Manufacturing Engineering and Technology, 5th ed.; Pearson Education: London, UK, 2006. [Google Scholar]
- Thomas, D. The Development of Design Rules for Selective Laser Melting. Ph.D. Thesis, Cardiff Metropolitan University, Cardiff, UK, 2009. [Google Scholar]
- 3DGENCE. Available online: https://sklep.3dgence.com/pl/3dgence-abs-natural-white-1kg.html (accessed on 23 December 2024).
- 3DGENCE (TDS 3DGence ABS). Available online: https://store.3dgence.com/eng-3dgence-abs-natural-white-1kg.html (accessed on 23 December 2024).
- Jin, Y.; Xiong, P.; Xu, T.; Wang, J. Time-efficient fabrication method for 3D-printed microfluidic devices. Sci. Rep. 2022, 12, 1233. [Google Scholar] [CrossRef] [PubMed]










| Comparative Criteria | Coordinate Measuring Machine | CT Scanning | Optical Inspection Method |
|---|---|---|---|
| Measurement type | Contact | Non-contact | Non-contact |
| Accuracy | Very high with repeatable measurements; possibility to compare the results with the CAD model | Very high and dependent on device type; possibility to compare the results with the CAD model | High and dependent on device type; no 3D model, only a 2D view |
| Cost | Very high, cost-effective solution for series production and measurement processes of complex shapes | Very high with the possibility of measuring complex shapes, including internal structures | High and dependent on device type, mainly measurements of outer surfaces |
| Efficiency | Very high with repeatable measurements; mainly dedicated for industry conditions | Lower and requiring the use of laboratory conditions | Lower and requiring the use of laboratory conditions |
| Type of material measured and measurement size | Limited due to the use of touch probes | Wide variety of material measured with the possibility of identifying internal material defects for the entire sample | Wide variety of material measured with the possibility of identifying material defects but only for dedicated surfaces |
| Measurement process | Complex, with various equipment required for measurement | Complex, with various equipment required for the measurement | Simple, with less equipment required for the measurement |
| Parameter | Value |
|---|---|
| Material in filament form | ABS (3DGence) |
| Filament diameter [mm] | 1.75 |
| Nozzle diameter [mm] | 0.4 |
| Layer thickness [mm] | 0.15 |
| Print speed [mm/s] | 50 |
| Material temperature [°C] | 250 |
| Print bed temperature [°C] | 105 |
| Material of the print bed [-] | ceramic |
| Infill percent [%] | 40 |
| Infill pattern [-] | zig-zag |
| Bed adhesion [-] | skirt |
| Support material | same as model |
| General Information | |
|---|---|
| Company | 3DGence |
| Batch number | M01119050701.00 |
| Diameter [mm] | 1.75 |
| Color | white |
| Weight [kg] | 1 |
| Printed part density [kg/m3] | 1040 |
| Mechanical properties | |
| Tensile strength [MPa] | 36.3 (XY) and 21.3 (ZX) |
| Flexural strength [MPa] | 56.6 (XY), 58.3 (XZ), and 38.59 (ZX) |
| Flexural modulus [MPa] | 1833 (XY), 1767 (XZ), and 1586 (ZX) |
| Young’s modulus [MPa] | 1958 (XY) and 1608 (ZX) |
| Elongation at break [%] | 7.4 (XY) and 1.8 (ZX) |
| Flexural strain at break [%] | 5.3 (XY), 5 (XZ), and 3.1 (ZX) |
| Height of a Sample (Hole Length) [mm] | Printing Orientation | dt [mm] | de [mm] | Δd [mm] | δd [%] | Feret’s Diameter | |
|---|---|---|---|---|---|---|---|
| Horizontal dh [mm] | Vertical dv [mm] | ||||||
| 1 | 0° | 1 | Not received | ||||
| 2 | 1.06 | 0.94 | 47.17 | 1.22 | 1.19 | ||
| 3 | 2.12 | 0.88 | 29.36 | 2.20 | 2.24 | ||
| 4 | 3.09 | 0.91 | 22.69 | 3.21 | 3.20 | ||
| 5 | 4.16 | 0.84 | 16.74 | 4.25 | 4.19 | ||
| 2 | 0° | 1 | Not received | ||||
| 2 | 1.30 | 0.70 | 35.12 | 1.40 | 1.29 | ||
| 3 | 2.42 | 0.58 | 19.42 | 2.54 | 2.45 | ||
| 4 | 3.49 | 0.51 | 12.76 | 3.57 | 3.49 | ||
| 5 | 4.14 | 0.86 | 17.11 | 4.26 | 4.20 | ||
| 45° | 1 | Not received | |||||
| 2 | 0.93 | 1.07 | 53.57 | 1.51 | 1.00 | ||
| 3 | 2.28 | 0.72 | 24.07 | 2.44 | 2.32 | ||
| 4 | 3.22 | 0.78 | 19.48 | 3.46 | 3.24 | ||
| 5 | 4.21 | 0.79 | 15.87 | 4.32 | 4.28 | ||
| 3 | 0° | 1 | Not received | ||||
| 2 | 0.98 | 1.02 | 51.02 | 0.99 | 1.09 | ||
| 3 | 2.10 | 0.90 | 29.92 | 2.22 | 2.15 | ||
| 4 | 3.16 | 0.84 | 20.96 | 3.25 | 3.23 | ||
| 5 | 4.08 | 0.92 | 18.37 | 4.20 | 4.12 | ||
| 45° | 1 | Not received | |||||
| 2 | 1.30 | 0.70 | 34.93 | 1.42 | 1.36 | ||
| 3 | 2.35 | 0.65 | 21.55 | 2.48 | 2.32 | ||
| 4 | 3.29 | 0.71 | 17.83 | 3.50 | 3.29 | ||
| 5 | 4.31 | 0.69 | 13.82 | 4.42 | 4.31 | ||
| Height of a Sample (Hole Length) [mm] | Printing Orientation | dt [mm] | de [mm] | Δd [mm] | δd [%] | Feret’s Diameter | |
|---|---|---|---|---|---|---|---|
| Horizontal dh [mm] | Vertical dv [mm] | ||||||
| 1 | 0° | 1 | Not received | ||||
| 2 | 1.54 | 0.46 | 22.76 | 1.66 | 1.72 | ||
| 3 | 2.63 | 0.37 | 12.34 | 2.81 | 2.87 | ||
| 4 | 3.57 | 0.43 | 10.77 | 3.68 | 3.78 | ||
| 5 | 4.60 | 0.40 | 8.03 | 4.72 | 4.75 | ||
| 2 | 0° | 1 | Not received | ||||
| 2 | 1.49 | 0.51 | 25.34 | 1.66 | 1.67 | ||
| 3 | 2.57 | 0.43 | 14.31 | 2.67 | 2.77 | ||
| 4 | 3.53 | 0.47 | 11.86 | 3.54 | 3.68 | ||
| 5 | 4.57 | 0.43 | 8.70 | 4.58 | 4.65 | ||
| 45° | 1 | Not received | |||||
| 2 | 1.36 | 0.64 | 32.06 | 1.60 | 1.40 | ||
| 3 | 1.94 | 1.06 | 35.44 | 2.57 | 2.45 | ||
| 4 | 3.29 | 0.71 | 17.85 | 3.53 | 3.49 | ||
| 5 | 4.33 | 0.67 | 13.42 | 4.51 | 4.48 | ||
| 3 | 0° | 1 | Not received | ||||
| 2 | 1.18 | 0.82 | 40.85 | 1.41 | 1.41 | ||
| 3 | 2.30 | 0.70 | 23.45 | 2.40 | 2.52 | ||
| 4 | 3.25 | 0.75 | 18.82 | 3.34 | 3.41 | ||
| 5 | 4.26 | 0.74 | 14.75 | 4.49 | 4.54 | ||
| 45° | 1 | Not received | |||||
| 2 | 0.64 | 1.36 | 67.92 | 1.47 | 1.51 | ||
| 3 | 1.77 | 1.23 | 41.12 | 2.53 | 2.48 | ||
| 4 | 3.37 | 0.63 | 15.79 | 3.52 | 3.56 | ||
| 5 | 4.38 | 0.62 | 12.31 | 4.51 | 4.51 | ||
| Sample Height (Hole Length) [mm] | Printing Orientation | Diameters [mm] | Directional Coefficient a | R2 | [mm] | δmax [%] | RMSE |
|---|---|---|---|---|---|---|---|
| 1 | 0° | de | 0.771 | 0.931 | 0.49 | 46.02 | 0.30 |
| dh | 0.799 | 0.951 | 0.38 | 31.10 | 0.25 | ||
| dv | 0.794 | 0.954 | 0.40 | 33.50 | 0.24 | ||
| 2 | 0° | de | 0.825 | 0.965 | 0.35 | 27.09 | 0.20 |
| dh | 0.851 | 0.975 | 0.30 | 21.42 | 0.17 | ||
| dv | 0.831 | 0.964 | 0.38 | 29.33 | 0.21 | ||
| 2 | 45° | de | 0.789 | 0.914 | 0.65 | 69.95 | 0.35 |
| dh | 0.848 | 0.988 | 0.18 | 12.06 | 0.12 | ||
| dv | 0.802 | 0.924 | 0.60 | 60.10 | 0.33 | ||
| 3 | 0° | de | 0.765 | 0.923 | 0.55 | 56.52 | 0.32 |
| dh | 0.789 | 0.922 | 0.59 | 56.68 | 0.33 | ||
| dv | 0.781 | 0.939 | 0.47 | 43.04 | 0.28 | ||
| 3 | 45° | de | 0.821 | 0.966 | 0.34 | 26.23 | 0.21 |
| dh | 0.859 | 0.976 | 0.30 | 21.36 | 0.17 | ||
| dv | 0.822 | 0.971 | 0.28 | 20.07 | 0.19 |
| Sample Height (Hole Length) [mm] | Printing Orientation | Diameters [mm] | Directional Coefficient a | R2 | [mm] | δmax [%] | RMSE |
|---|---|---|---|---|---|---|---|
| 1 | 0° | de | 0.894 | 0.985 | 0.24 | 15.68 | 0.14 |
| dh | 0.928 | 0.991 | 0.19 | 11.57 | 0.11 | ||
| dv | 0.944 | 0.994 | 0.17 | 9.98 | 0.09 | ||
| 2 | 0° | de | 0.882 | 0.980 | 0.27 | 18.13 | 0.16 |
| dh | 0.897 | 0.994 | 0.13 | 7.82 | 0.08 | ||
| dv | 0.919 | 0.994 | 0.16 | 9.86 | 0.09 | ||
| 2 | 45° | de | 0.802 | 0.928 | 0.47 | 24.26 | 0.31 |
| dh | 0.882 | 0.991 | 0.16 | 10.00 | 0.10 | ||
| dv | 0.861 | 0.971 | 0.32 | 22.83 | 0.20 | ||
| 3 | 0° | de | 0.807 | 0.951 | 0.43 | 36.37 | 0.25 |
| dh | 0.849 | 0.967 | 0.29 | 20.37 | 0.21 | ||
| dv | 0.866 | 0.970 | 0.32 | 22.87 | 0.20 | ||
| 3 | 45° | de | 0.777 | 0.823 | 0.91 | 142.33 | 0.61 |
| dh | 0.873 | 0.979 | 0.28 | 18.80 | 0.16 | ||
| dv | 0.875 | 0.980 | 0.24 | 15.94 | 0.16 |
Disclaimer/Publisher’s Note: The statements, opinions and data contained in all publications are solely those of the individual author(s) and contributor(s) and not of MDPI and/or the editor(s). MDPI and/or the editor(s) disclaim responsibility for any injury to people or property resulting from any ideas, methods, instructions or products referred to in the content. |
© 2025 by the authors. Licensee MDPI, Basel, Switzerland. This article is an open access article distributed under the terms and conditions of the Creative Commons Attribution (CC BY) license (https://creativecommons.org/licenses/by/4.0/).
Share and Cite
Zieliński, D.; Deja, M.; Zhu, R. Quality Evaluation of Small Features Fabricated by Fused Filament Fabrication Method. Materials 2025, 18, 507. https://doi.org/10.3390/ma18030507
Zieliński D, Deja M, Zhu R. Quality Evaluation of Small Features Fabricated by Fused Filament Fabrication Method. Materials. 2025; 18(3):507. https://doi.org/10.3390/ma18030507
Chicago/Turabian StyleZieliński, Dawid, Mariusz Deja, and Rui Zhu. 2025. "Quality Evaluation of Small Features Fabricated by Fused Filament Fabrication Method" Materials 18, no. 3: 507. https://doi.org/10.3390/ma18030507
APA StyleZieliński, D., Deja, M., & Zhu, R. (2025). Quality Evaluation of Small Features Fabricated by Fused Filament Fabrication Method. Materials, 18(3), 507. https://doi.org/10.3390/ma18030507

