Sign in to use this feature.

Years

Between: -

Subjects

remove_circle_outline
remove_circle_outline
remove_circle_outline
remove_circle_outline
remove_circle_outline
remove_circle_outline
remove_circle_outline
remove_circle_outline
remove_circle_outline

Journals

Article Types

Countries / Regions

remove_circle_outline
remove_circle_outline
remove_circle_outline
remove_circle_outline

Search Results (520)

Search Parameters:
Keywords = distributed optical fiber sensors

Order results
Result details
Results per page
Select all
Export citation of selected articles as:
16 pages, 2843 KB  
Article
Analysis of a Fiber-Coupled RGB Color Sensor for Luminous Flux Measurement of LEDs
by László-Zsolt Turos and Géza Csernáth
Sensors 2026, 26(2), 486; https://doi.org/10.3390/s26020486 - 12 Jan 2026
Abstract
Accurate measurement of luminous flux from solid-state light sources typically requires spectroradiometric equipment or integrating spheres. This work investigates a compact alternative based on a fiber-coupled RGB photodiode system and develops the optical, spectral, and geometric foundations required to obtain traceable flux estimates [...] Read more.
Accurate measurement of luminous flux from solid-state light sources typically requires spectroradiometric equipment or integrating spheres. This work investigates a compact alternative based on a fiber-coupled RGB photodiode system and develops the optical, spectral, and geometric foundations required to obtain traceable flux estimates from reduced-channel measurements. The system under study comprises an LED with known spectral power distribution (SPD), optical head, optical fiber, a protective sensor window, and a photodiode matrix type sensor. A complete end-to-end analysis of the optical path is presented, including geometric coupling efficiency, fiber transmission and angular redistribution, Fresnel losses in the sensor window, and the mosaic structure of the sensor. Additional effects such as fiber–sensor alignment, fiber-facet tilt, air gaps, and LED placement tolerances are quantified and incorporated into a formal uncertainty budget. Using the manufacturer-supplied SPD of the reference LED together with the measured R, G, and B channel responsivity functions of the sensor, a calibration-based mapping is established to reconstruct photopic luminous flux from the three-channel outputs. These results demonstrate that, with appropriate modeling and calibration of all optical stages, a fiber-coupled RGB photodiode mosaic can provide practical and scientifically meaningful luminous-flux estimation for white LEDs, offering a portable and cost-effective alternative to conventional photometric instrumentation in mid-accuracy applications. Further optimization of computation speed can enable fully integrated measurement systems in resource-constrained environments. Full article
(This article belongs to the Section Optical Sensors)
Show Figures

Figure 1

21 pages, 4489 KB  
Article
Development of a Leak Detection System Based on Fiber Optic DTS Monitoring and Validation on a Full-Scale Model
by Diego Antolín-Cañada, Pedro Luis Lopez-Julian, Javier Pérez, Óscar Muñoz, Alejandro Acero-Oliete and Beniamino Russo
Appl. Sci. 2026, 16(1), 465; https://doi.org/10.3390/app16010465 - 1 Jan 2026
Viewed by 286
Abstract
Leaks in ponds are a problem due to the loss of water resources, although the problem is greater when the ponds store livestock or agricultural waste (slurry or wastewater), in which case there is a risk of hydrogeological contamination of the environment. The [...] Read more.
Leaks in ponds are a problem due to the loss of water resources, although the problem is greater when the ponds store livestock or agricultural waste (slurry or wastewater), in which case there is a risk of hydrogeological contamination of the environment. The proposed leak detection system is based on distributed temperature sensing (DTS) with hybrid fiber optics using the Raman effect. Using active detection techniques, i.e., applying a specific amount of electrical power to the copper wires that form part of the hybrid cable, it is possible to increase the temperature along the fiber and measure the thermal increments along it, detecting and locating the point of leakage. To validate the system, a full-scale prototype reservoir (25 m × 10 m × 3.5 m) was built, equipped with mechanisms to simulate leaks under the impermeable sheet that retains the reservoir’s contents. For environmental reasons, the tests were carried out with clean water. The results of the leak simulation showed significant differences in temperature increases due to the electrical pulse in the areas affected by the simulated leak (1 °C increase) and the areas not affected (5 °C increase). This technology, which uses hybrid fiber optics and a low-cost sensor, can be applied not only to ponds, but also to other types of infrastructure that store or retain liquids, such as dams, where it has already been tested, to measure groundwater flow, etc. Full article
(This article belongs to the Special Issue Advanced Structural Health Monitoring in Civil Engineering)
Show Figures

Figure 1

51 pages, 4796 KB  
Review
Review of Optical Fiber Sensors: Principles, Classifications and Applications in Emerging Technologies
by Denzel A. Rodriguez-Ramirez, Jose R. Martinez-Angulo, Jose D. Filoteo-Razo, Juan C. Elizondo-Leal, Alan Diaz-Manriquez, Daniel Jauregui-Vazquez, Jesus P. Lauterio-Cruz and Vicente P. Saldivar-Alonso
Photonics 2026, 13(1), 40; https://doi.org/10.3390/photonics13010040 - 31 Dec 2025
Viewed by 708
Abstract
Optical fiber sensors (OFSs) have emerged as essential tools in the monitoring of physical, chemical, and bio-medical parameters in harsh situations due to their high sensitivity, electromagnetic interference (EMI) immunity, and long-term stability. However, the current literature contains scattered information in most reviews [...] Read more.
Optical fiber sensors (OFSs) have emerged as essential tools in the monitoring of physical, chemical, and bio-medical parameters in harsh situations due to their high sensitivity, electromagnetic interference (EMI) immunity, and long-term stability. However, the current literature contains scattered information in most reviews regarding individual sensing technologies or domains. This study provides a structured exploratory review in a novel inter-family analysis of both intrinsic and extrinsic configurations by analyzing more than 23,000 publications between 2019 and 2025 in five key domains: industry, medicine and biomedicine, environmental chemistry, civil/structural engineering, and aerospace. The analysis aims to critically discuss how functional principles/parameters and methods of interrogation affect the applicability of different OFS categories. The results reveal leading trends in the use of techniques like the use of fiber Bragg gratings (FBG) and distributed sensing in high-accuracy conditions or the rising role of extrinsic sensors in selective chemical situations and point out new approaches in areas like Artificial Intelligence (AI)- or Internet of Things (IoT)-integrated sensors. Further, this synthesis not only connects pieces of knowledge but also defines the technological barriers in terms of calibration cost and standardization: this provides strategic insight regarding future research and the scalability of industry deployment. Full article
(This article belongs to the Special Issue Advancements in Mode-Locked Lasers)
Show Figures

Graphical abstract

19 pages, 5071 KB  
Review
Research Progress on Optical Fiber Sensing Based Health Monitoring Technology for Aerospace Composite Structures
by Xiang Zhou, Xiaolei Zhang, Jianxin He, Chao Yin and Xing Shen
Machines 2026, 14(1), 31; https://doi.org/10.3390/machines14010031 - 25 Dec 2025
Viewed by 389
Abstract
The large-scale deployment of aerospace composite structures has become a defining trend in modern aeronautics; however, hidden damage is difficult to detect over the full life cycle with conventional non-destructive inspection. This creates an urgent demand for on-line, high-fidelity structural health monitoring (SHM) [...] Read more.
The large-scale deployment of aerospace composite structures has become a defining trend in modern aeronautics; however, hidden damage is difficult to detect over the full life cycle with conventional non-destructive inspection. This creates an urgent demand for on-line, high-fidelity structural health monitoring (SHM) technology. Optical-fiber sensors—featuring minimal mass, micron-scale diameter, immunity to electromagnetic interference and the ability to be co-cured into composite laminates for distributed measurement—are widely regarded as the key enabling technology. This paper presents a comprehensive review of recent advances and engineering applications of optical fiber sensing. Emphasis is placed on its engineering applications covering wing strain mapping, landing-gear load tracking, fuselage deformation localization, and cure-process monitoring and low-velocity impact damage identification of composite materials. Emerging intelligent assessment methodologies are examined. Finally, the development trends of optical fiber sensing technology are prospected, offering a reference framework for future theoretical innovation and engineering deployment of aerospace composite SHM technology. Full article
(This article belongs to the Special Issue Smart Structures and Applications in Aerospace Engineering)
Show Figures

Figure 1

25 pages, 5082 KB  
Article
Performance Evaluation of Fixed-Point DFOS Cables for Structural Monitoring of Reinforced Concrete Elements
by Aigerim Buranbayeva, Assel Sarsembayeva, Bun Pin Tee, Iliyas Zhumadilov and Gulizat Orazbekova
Infrastructures 2025, 10(12), 349; https://doi.org/10.3390/infrastructures10120349 - 15 Dec 2025
Viewed by 267
Abstract
Distributed fiber-optic sensing (DFOS) with intentionally spaced mechanical fixity points was experimentally evaluated for the structural health monitoring (SHM) of reinforced concrete (RC) members. A full-scale four-point bending test was conducted on a 12 m RC beam (400 × 400 mm) instrumented with [...] Read more.
Distributed fiber-optic sensing (DFOS) with intentionally spaced mechanical fixity points was experimentally evaluated for the structural health monitoring (SHM) of reinforced concrete (RC) members. A full-scale four-point bending test was conducted on a 12 m RC beam (400 × 400 mm) instrumented with a single-mode DFOS cable incorporating internal anchors at 2 m intervals and bonded externally with structural epoxy. Brillouin time-domain analysis (BOTDA) provided distributed strain measurements at approximately 0.5 m spatial resolution, with all cables calibrated to ±15,000 µε. Under stepwise monotonic loading, the system captured smooth, repeatable strain baselines and clearly resolved localized tensile peaks associated with crack initiation and propagation. Long-gauge averages exhibited a near-linear load–strain response (R2 ≈ 0.99) consistent with discrete foil and vibrating-wire strain gauges. Even after cracking, the DFOS signal remained continuous, while some discrete sensors showed saturation or scatter. Temperature compensation via a parallel fiber ensured thermally stable interpretation during load holds. The fixed-point configuration mitigated local debonding effects and yielded unbiased long-gauge strain data suitable for assessing serviceability and differential settlement. Overall, the results confirm the suitability of fixed-point DFOS as a durable, SHM-ready sensing approach for RC foundation elements and as a dense data source for emerging digital-twin frameworks. Full article
Show Figures

Figure 1

22 pages, 301 KB  
Review
Artificial Intelligence and Machine Learning in Optical Fiber Sensors: A Review
by Lidan Cao, Sabrina Abedin, Guoqiang Cui and Xingwei Wang
Sensors 2025, 25(24), 7442; https://doi.org/10.3390/s25247442 - 7 Dec 2025
Viewed by 944
Abstract
The integration of artificial intelligence (AI) with optical fiber sensing (OFS) is transforming the capabilities of modern sensing systems, enabling smarter, more adaptive, and higher-performance solutions across diverse applications. This paper presents a comprehensive review of AI-enhanced OFS technologies, encompassing both localized sensors [...] Read more.
The integration of artificial intelligence (AI) with optical fiber sensing (OFS) is transforming the capabilities of modern sensing systems, enabling smarter, more adaptive, and higher-performance solutions across diverse applications. This paper presents a comprehensive review of AI-enhanced OFS technologies, encompassing both localized sensors such as fiber Bragg gratings (FBG), Fabry–Perot (FP) interferometers, and Mach–Zehnder interferometers (MZI), and distributed sensing systems based on Rayleigh, Brillouin, and Raman scattering. A wide range of AI algorithms are discussed, including supervised learning, unsupervised learning, reinforcement learning, and deep neural architectures. The applications of AI in OFS were discussed. AI has been employed to enhance sensor design, optimize interrogation systems, and adaptively tune configurations, as well as to interpret complex sensor outputs for tasks like denoising, classification, event detection, and failure forecasting. Full article
24 pages, 1431 KB  
Article
Statistical Analysis of the Reliability of Current Measurement Results with the “Current—Polarization-Dependent Loss” Optical Fiber Sensor
by Sławomir Andrzej Torbus, Paulina Szyszkowska and Patryk Dutkiewicz
Photonics 2025, 12(12), 1198; https://doi.org/10.3390/photonics12121198 - 5 Dec 2025
Viewed by 304
Abstract
In this paper, selected methods for the statistical assessment of distribution parameters using estimators were briefly described. Selected aspects of the theory of measurement uncertainty, the determination of standard uncertainty of type A, type B, total and expanded were discussed. The structure of [...] Read more.
In this paper, selected methods for the statistical assessment of distribution parameters using estimators were briefly described. Selected aspects of the theory of measurement uncertainty, the determination of standard uncertainty of type A, type B, total and expanded were discussed. The structure of the “current—polarization-dependent loss” optical fiber sensor is presented, which can be used to measure current in power lines. The method of measuring polarizing attenuation using an optical reflectometer OTDR is discussed. The results of research deal with the influence of the light wave, optical fiber length and the angle of rotation of the plane of polarization (polarization angle) on the value of polarizing attenuation are presented. Conclusions from the experiment were formulated regarding the selection of optical fiber and optical window so that the polarization angle was within a specific interval. Full article
(This article belongs to the Special Issue Optical Access and Transport Networks)
Show Figures

Figure 1

28 pages, 3763 KB  
Article
Diagnosing Multistage Fracture Treatments of Horizontal Tight Oil Wells with Distributed Acoustic Sensing
by Hanbin Zhu, Wenqiang Liu, Zhengguang Zhao, Bobo Li, Jizhou Tang and Lei Li
Processes 2025, 13(12), 3925; https://doi.org/10.3390/pr13123925 - 4 Dec 2025
Viewed by 455
Abstract
Distributed acoustic sensing (DAS) technology is gaining popularity for real-time monitoring during the hydraulic fracturing of unconventional reservoirs. By transforming a standard optical fiber into a dense array of acoustic sensors, DAS provides continuous spatiotemporal measurements along the entire wellbore. Although accurate DAS-based [...] Read more.
Distributed acoustic sensing (DAS) technology is gaining popularity for real-time monitoring during the hydraulic fracturing of unconventional reservoirs. By transforming a standard optical fiber into a dense array of acoustic sensors, DAS provides continuous spatiotemporal measurements along the entire wellbore. Although accurate DAS-based real-time diagnosis of multistage hydraulic fracturing is critical for optimizing the efficiency of stimulation operations and mitigating operational risks in horizontal tight oil wells, existing methods often fail to provide integrated qualitative and quantitative insights. To address this gap, we present an original diagnostic workflow that synergistically combines frequency band energy (FBE), low-frequency DAS (LF-DAS), and surface injection data for simultaneous fluid/proppant allocation and key downhole anomaly identification. Field application of the proposed framework in a 47-stage well demonstrates that FBE (50–200 Hz) enables robust cluster-level volume estimation, while LF-DAS (<0.5 Hz) reveals fiber strain signatures indicative of mechanical integrity threats. The workflow can successfully diagnose sand screenout, diversion, out-of-zone flow, and early fiber failure—events often missed by conventional monitoring. By linking distinct acoustic fingerprints to specific physical processes, our approach transforms raw DAS data into actionable operational intelligence. This study provides a reproducible, field-validated framework that enhances understanding in the context of fracture treatment, supports real-time decision making, and paves the way for automated DAS interpretation in complex completions. Full article
Show Figures

Figure 1

15 pages, 3733 KB  
Article
Layered Monitoring of Ground Subsidence Based on Ultra-Weak FBG Sensing Technology: A Case Study in Gaoyang County, China
by Haigang Wang, Huili Gong, Jincai Zhang, Lin Zhu, Di Ning, Chaofan Zhou and Xingguang Yan
Micromachines 2025, 16(12), 1380; https://doi.org/10.3390/mi16121380 - 4 Dec 2025
Viewed by 331
Abstract
The primary objective of layered settlement monitoring of deep soil is to obtain settlement data for both the soil and superstructure, enabling appropriate measures to be taken to ensure the structure’s safety and stability. Traditional deep soil monitoring technologies are either limited in [...] Read more.
The primary objective of layered settlement monitoring of deep soil is to obtain settlement data for both the soil and superstructure, enabling appropriate measures to be taken to ensure the structure’s safety and stability. Traditional deep soil monitoring technologies are either limited in the number of measurement points (e.g., fiber Bragg grating sensing technology) or exhibit low measurement accuracy (e.g., distributed fiber optic sensing technology). This study proposes a layered settlement monitoring technique for deep soil based on the ultra-weak fiber Bragg grating sensors. First, ultra-weak fiber Bragg grating strain sensors packaged by fiber-reinforced polymer (FRP) were developed, and experimental research on the sensors’ sensing and directional recognition characteristics was conducted. Subsequently, the sensors were deployed for ground subsidence monitoring in Gaoyang County, China, with investigations conducted on sensor installation techniques and long-term measurement data. Experimental and engineering test results demonstrate that the strain and temperature sensing coefficients of the sensors are 1.22 pm/με and 17.06 pm/°C, respectively. Sensors incorporating dual ultra-weak fiber Bragg grating arrays can simultaneously detect both vertical and lateral soil displacement. Long-term monitoring data effectively reflects subsidence changes in the Gaoyang region. Full article
(This article belongs to the Special Issue Fiber-Optic Technologies for Communication and Sensing)
Show Figures

Figure 1

15 pages, 4671 KB  
Article
Draw Tower Optical Fibers with Functional Coatings and Their Possible Use in Distributed Sensor Technology
by Sandy Alomari, Kenny Hey Tow, Joao Pereira, Miguel Soriano-Amat, Tedros Weldehawariat, Korina Hartmann, Remco Nieuwland and Åsa Claesson
Sensors 2025, 25(23), 7367; https://doi.org/10.3390/s25237367 - 3 Dec 2025
Viewed by 505
Abstract
Functional coatings on optical fibers enable selective detection of environmental and chemical parameters, but their use is typically limited to point or quasi-distributed sensing due to localized deposition techniques. In this work, we demonstrate a possible transition towards full-length functional coatings on optical [...] Read more.
Functional coatings on optical fibers enable selective detection of environmental and chemical parameters, but their use is typically limited to point or quasi-distributed sensing due to localized deposition techniques. In this work, we demonstrate a possible transition towards full-length functional coatings on optical fibers using a draw tower process, enabling their potential use in distributed sensor technology. An optical fiber with Pt:WO3 nanocomposite polymer functional coating is employed as a proof of concept. The results demonstrate the successful application of this functional coating along hundreds of meters of fibers using a draw tower. When integrated into a distributed sensing configuration, the Pt:WO3 fiber exhibited a clear change in response with varying hydrogen concentrations from 1% to 4% H2, with a temperature increase of 2.5 °C at 4 vol.% indicating a promising performance for distributed hydrogen leak detection. This approach opens new opportunities for applying other functional coatings over extended fiber lengths using draw towers, which could be exploited for novel distributed sensing applications. Full article
(This article belongs to the Special Issue Feature Papers in Optical Sensors 2025)
Show Figures

Figure 1

41 pages, 5293 KB  
Review
A Review of Multiparameter Fiber-Optic Distributed Sensing Techniques for Simultaneous Measurement of Temperature, Strain, and Environmental Effects
by Artem Turov, Andrei Fotiadi, Dmitry Korobko, Ivan Panyaev, Maxim Belokrylov, Fedor Barkov, Yuri Konstantinov, Dmitriy Kambur, Airat Sakhabutdinov and Mohammed Qaid
Sensors 2025, 25(23), 7225; https://doi.org/10.3390/s25237225 - 26 Nov 2025
Viewed by 1138
Abstract
This review summarizes recent progress and emerging trends in multiparameter optical fiber sensing, emphasizing techniques that enable the simultaneous measurement of temperature, strain, acoustic waves, pressure, and other environmental quantities within a single sensing network. Such capabilities are increasingly important for structural health [...] Read more.
This review summarizes recent progress and emerging trends in multiparameter optical fiber sensing, emphasizing techniques that enable the simultaneous measurement of temperature, strain, acoustic waves, pressure, and other environmental quantities within a single sensing network. Such capabilities are increasingly important for structural health monitoring, environmental surveillance, industrial diagnostics, and geophysical observation, where multiple stimuli act on the fiber simultaneously. The paper outlines the physical principles and architectures underlying these systems and focuses on strategies for compensating and decoupling cross-sensitivity among measured parameters. Special attention is devoted to advanced distributed sensing schemes based on coherent optical frequency-domain reflectometry (C-OFDR), coherent phase-sensitive time-domain reflectometry (Φ-OTDR), and Brillouin optical time-domain reflectometry (BOTDR). Their theoretical foundations, their signal-processing algorithms, and the design modifications that improve parameter discrimination and accuracy are analyzed and compared. The review also highlights the roles of polarization and mode diversity and the growing application of machine-learning techniques in the interpretation and calibration of data. Finally, current challenges and promising directions for the next generation of fiber-optic multiparameter sensors are outlined, with a view toward high-resolution, low-cost, and field-deployable solutions for real-world monitoring applications. Full article
(This article belongs to the Section Optical Sensors)
Show Figures

Figure 1

15 pages, 3491 KB  
Article
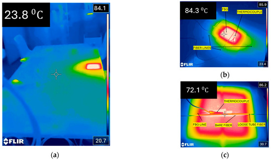
Hotspot Detection in Photovoltaic Modules with Fiber Bragg Grating and Brillouin Distributed Temperature Sensors
by Bartlomiej Guzowski, Mateusz Lakomski and Dominik Bobinski
Energies 2025, 18(23), 6117; https://doi.org/10.3390/en18236117 - 22 Nov 2025
Viewed by 342
Abstract
The increasing deployment of photovoltaic (PV) installations presents critical challenges related to module safety and efficiency. Early detection of hotspots on PV modules is crucial to prevent degradation and mitigate fire risk. This study investigates the effectiveness of fiber optic sensors, specifically fiber [...] Read more.
The increasing deployment of photovoltaic (PV) installations presents critical challenges related to module safety and efficiency. Early detection of hotspots on PV modules is crucial to prevent degradation and mitigate fire risk. This study investigates the effectiveness of fiber optic sensors, specifically fiber Bragg gratings (FBGs) and distributed temperature sensing (DTS) based on Brillouin backscattering, to detect and localize hotspots on PV modules. Both sensor types successfully identified hotspot occurrences, with validation conducted through simultaneous thermocouple measurements and infrared thermographic imaging. The tests provide a comprehensive analysis of measurement methodologies, highlighting the advantages and limitations of fiber optic sensing techniques. While FBG sensors offer the most precise temperature measurements at the PV module surface, DTS systems demonstrate superior capability in hotspot detection. Full article
Show Figures

Figure 1

20 pages, 5699 KB  
Article
Application of Fiber-Optic Sensors to Monitor Concrete Dams: A Case Study
by Douglas Moser, Araceli Martin-Candilejo, Luis Cueto-Felgueroso and David Santillan
Appl. Sci. 2025, 15(23), 12397; https://doi.org/10.3390/app152312397 - 21 Nov 2025
Viewed by 532
Abstract
Fiber-Optic Sensors (FOSs) offer unprecedented performance for Structural Health Monitoring (SHM) of concrete dams, addressing the critical need for robust instrumentation. This study evaluates the capabilities of Raman-type Distributed Fiber-Optic Sensors (DFOSs) and Bragg grating-type Localized Fiber-Optic Sensors (LFOSs) for concrete temperature monitoring [...] Read more.
Fiber-Optic Sensors (FOSs) offer unprecedented performance for Structural Health Monitoring (SHM) of concrete dams, addressing the critical need for robust instrumentation. This study evaluates the capabilities of Raman-type Distributed Fiber-Optic Sensors (DFOSs) and Bragg grating-type Localized Fiber-Optic Sensors (LFOSs) for concrete temperature monitoring in a case study. Raman-type DFOSs offer superior spatial resolution and comprehensive thermal mapping, enabling the detection of detailed thermal phenomena, such as the cooling effects of dam galleries and significant thermal gradients, that conventional technologies cannot capture. They are also easier and faster to install, as they do not require trench construction. However, monitoring data acquisition can be more expensive with Raman-type DFOSs. Bragg-type LFOSs offer reliable localized measurements analogous to conventional thermometers. A key benefit is their multiplexing capability, which significantly reduces the total number of cables needed, making a complete LFOS-based monitoring system easier and potentially cheaper to install than an equivalent conventional system, even though individual LFOS installation still requires trenches. Overall, both FOS technologies are effective and reliable for concrete dam temperature monitoring, providing data quality comparable to conventional sensors and representing a significant advancement for SHM systems. Full article
Show Figures

Figure 1

21 pages, 2679 KB  
Article
Intelligent Feature Extraction and Event Classification in Distributed Acoustic Sensing Using Wavelet Packet Decomposition
by Artem Kozmin, Pavel Borozdin, Alexey Chernenko, Sergei Gostilovich, Oleg Kalashev and Alexey Redyuk
Technologies 2025, 13(11), 514; https://doi.org/10.3390/technologies13110514 - 11 Nov 2025
Viewed by 487
Abstract
Distributed acoustic sensing (DAS) systems enable real-time monitoring of physical events across extended areas using optical fiber that detects vibrations through changes in backscattered light patterns. In perimeter security applications, these systems must accurately distinguish between legitimate activities and potential security threats by [...] Read more.
Distributed acoustic sensing (DAS) systems enable real-time monitoring of physical events across extended areas using optical fiber that detects vibrations through changes in backscattered light patterns. In perimeter security applications, these systems must accurately distinguish between legitimate activities and potential security threats by analyzing complex spatio-temporal data patterns. However, the high dimensionality and noise content of raw DAS data presents significant challenges for effective feature extraction and event classification, particularly when computational efficiency is required for real-time deployment. Traditional approaches or current machine learning methods often struggle with the balance between information preservation and computational complexity. This study addresses the critical need for efficient and accurate feature extraction methods that can identify informative signal components while maintaining real-time processing capabilities in DAS-based security systems. Here we show that wavelet packet decomposition (WPD) combined with a cascaded machine learning approach achieves 98% classification accuracy while reducing computational load through intelligent channel selection and preliminary filtering. Our modified peak signal-to-noise ratio metric successfully identifies the most informative frequency bands, which we validate through comprehensive neural network experiments across all possible WPD channels. The integration of principal component analysis with logistic regression as a preprocessing filter eliminates a substantial portion of non-target events while maintaining high recall level, significantly improving upon methods that processed all available data. These findings establish WPD as a powerful preprocessing technique for distributed sensing applications, with immediate applications in critical infrastructure protection. The demonstrated gains in computational efficiency and accuracy improvements suggest broad applicability to other pattern recognition challenges in large-scale sensor networks, seismic monitoring, and structural health monitoring systems, where real-time processing of high-dimensional acoustic data is essential. Full article
Show Figures

Figure 1

21 pages, 2758 KB  
Article
A Multisectional Deformation Reconstruction Method for Heavy Haul Railway Tunnels Using Point-Line Feature Fusion Sensing Information
by Xiaokun Yan, Zheng Zhou and Yang Liu
Buildings 2025, 15(22), 4052; https://doi.org/10.3390/buildings15224052 - 10 Nov 2025
Viewed by 363
Abstract
Deformation monitoring of heavy-haul railway tunnels is essential for ensuring operational safety. However, the spatial resolution of traditional point-based sensors is often insufficient for capturing the continuous deformation fields of tunnel structures. To overcome this limitation, in this study, densely distributed strain data [...] Read more.
Deformation monitoring of heavy-haul railway tunnels is essential for ensuring operational safety. However, the spatial resolution of traditional point-based sensors is often insufficient for capturing the continuous deformation fields of tunnel structures. To overcome this limitation, in this study, densely distributed strain data that are acquired through distributed fiber-optic sensing technology are used, and a deep learning-based inversion framework that integrates high-resolution strain measurements with sparsely sampled convergence data is introduced. By employing a hybrid particle swarm optimization–random forest (PSO-RF) algorithm, a deep correlation model is constructed to establish the relationship between distributed strain profiles and discrete convergence measurements. This approach enables the prediction of cross-sectional convergence across multiple tunnel sections by using only a limited set of calibrated convergence sensors in combination with continuous strain field data, thereby effectively achieving global deformation inversion with minimal hardware deployment. The proposed method was validated through numerical simulations and field tests by using monitoring data from a heavy-haul railway tunnel. The algorithm exhibited a mean absolute error of less than 2 mm, thus demonstrating its ability to supply high-resolution deformation field data that are essential for structural health monitoring and diagnostics of tunnel infrastructures. Full article
Show Figures

Figure 1

Back to TopTop