Sign in to use this feature.

Years

Between: -

Subjects

remove_circle_outline
remove_circle_outline
remove_circle_outline
remove_circle_outline
remove_circle_outline
remove_circle_outline
remove_circle_outline
remove_circle_outline
remove_circle_outline

Journals

remove_circle_outline
remove_circle_outline
remove_circle_outline
remove_circle_outline
remove_circle_outline
remove_circle_outline
remove_circle_outline
remove_circle_outline
remove_circle_outline
remove_circle_outline
remove_circle_outline
remove_circle_outline
remove_circle_outline
remove_circle_outline
remove_circle_outline
remove_circle_outline
remove_circle_outline
remove_circle_outline

Article Types

Countries / Regions

remove_circle_outline
remove_circle_outline
remove_circle_outline
remove_circle_outline
remove_circle_outline
remove_circle_outline

Search Results (1,878)

Search Parameters:
Keywords = disaster planning

Order results
Result details
Results per page
Select all
Export citation of selected articles as:
19 pages, 3718 KB  
Article
Sustainable Landslide Risk Assessment in Zonguldak Province Using AHP and Artificial Intelligence: Integration with InSAR and Inventory Data
by Senol Hakan Kutoglu and Deniz Arca
Sustainability 2026, 18(9), 4263; https://doi.org/10.3390/su18094263 (registering DOI) - 24 Apr 2026
Abstract
This study evaluates the landslide susceptibility of Zonguldak Province, Türkiye, by integrating the Analytical Hierarchy Process (AHP), artificial intelligence (AI) algorithms, and SBAS-InSAR deformation data. Eight environmental and geological parameters—elevation, slope, aspect, lithology, hydrogeology, land use, and distances to rivers and roads—were weighted [...] Read more.
This study evaluates the landslide susceptibility of Zonguldak Province, Türkiye, by integrating the Analytical Hierarchy Process (AHP), artificial intelligence (AI) algorithms, and SBAS-InSAR deformation data. Eight environmental and geological parameters—elevation, slope, aspect, lithology, hydrogeology, land use, and distances to rivers and roads—were weighted using AHP and analyzed through 25 AI models. Among them, the Ensemble Bagged Trees (EBT) algorithm achieved the highest predictive accuracy (84%), demonstrating strong adaptability to complex geological datasets. The resulting susceptibility maps were validated using both traditional landslide inventories and InSAR-derived deformation maps, achieving an overall agreement of 83.05%. This dual-validation approach allows for the identification of unrecorded or active slope movements not captured in existing inventories. The combined use of AHP and AI significantly improves model reliability by incorporating both expert judgment and data-driven learning. The study introduces a novel hybrid framework for landslide susceptibility mapping and provides a valuable reference for disaster risk management and spatial planning in regions with complex topography. This study also contributes to sustainability by supporting risk-informed land-use planning, reducing potential economic losses, and enhancing environmental resilience in landslide-prone regions. The proposed framework aligns with sustainable development goals by integrating geospatial technologies and data-driven approaches for long-term hazard mitigation. Full article
(This article belongs to the Section Hazards and Sustainability)
31 pages, 12309 KB  
Article
Spatial Analysis of Earthquake Risk in Şanlıurfa City Center
by Osman Nasanlı and Devrim Türkan Kejanlı
GeoHazards 2026, 7(2), 45; https://doi.org/10.3390/geohazards7020045 (registering DOI) - 24 Apr 2026
Abstract
Population growth and unplanned land use significantly contribute to transforming natural hazards into disasters. Earthquake-induced losses of life and property are often linked to inadequate planning decisions. The city center of Şanlıurfa provides a recent example, where the 6 February 2023 earthquake resulted [...] Read more.
Population growth and unplanned land use significantly contribute to transforming natural hazards into disasters. Earthquake-induced losses of life and property are often linked to inadequate planning decisions. The city center of Şanlıurfa provides a recent example, where the 6 February 2023 earthquake resulted in 340 fatalities and substantial material damage. Variations in urban planning over different periods have caused disaster risk to fluctuate even across short distances. This study examines Şanlıurfa’s urban development in terms of earthquake vulnerability. Using Geographic Information Systems (GIS) and the Analytic Hierarchy Process (AHP), the earthquake risk map reveals elevated risk in areas near fault lines and regions with high groundwater levels. Approximately 7% of the area is classified as very low risk, 54% as low risk, 37% as moderate risk, and 2% as high risk. Limited consideration of disaster-focused planning has led to both planned and unplanned developments in hazardous zones. Consequently, construction should prioritize low-risk areas, with necessary precautions applied in high-risk zones when unavoidable. Full article
26 pages, 1490 KB  
Systematic Review
Object Detection in Optical Remote Sensing Images: A Systematic Review of Methods, Benchmarks, and Operational Applications
by Neus Fontanet Garcia and Piero Boccardo
Remote Sens. 2026, 18(9), 1289; https://doi.org/10.3390/rs18091289 - 23 Apr 2026
Abstract
Object detection in optical remote sensing imagery has emerged as a crucial task in computer vision, with applications ranging between environmental monitoring to disaster management, precision agriculture, and urban planning. This review systematically examines current methodologies, categorising them into four principal approaches: (1) [...] Read more.
Object detection in optical remote sensing imagery has emerged as a crucial task in computer vision, with applications ranging between environmental monitoring to disaster management, precision agriculture, and urban planning. This review systematically examines current methodologies, categorising them into four principal approaches: (1) template matching-based methods, which leverage predefined patterns for object identification; (2) knowledge-based methods, which incorporate geometric and contextual information to enhance detection accuracy; (3) object-based image analysis (OBIA), which segments images into meaningful objects using spectral and spatial properties; (4) machine learning-based methods, particularly deep convolutional neural networks (CNNs), which have revolutionised the field through automatic feature learning. Each methodology’s performance characteristics, computational requirements, and suitability for different remote sensing applications are analysed. Our systematic review, following PRISMA guidelines, analysed 189 studies published from 2010 to 2025, of which 73 provided quantitative results on standard benchmarks. The three most critical challenges identified are as follows: (1) annotation bottleneck, as dense bounding box labelling of remote sensing imagery remains highly labour-intensive for deep learning approaches, (2) extreme scale variation spanning 2–3 orders of magnitude within single scenes, and (3) domain adaptation failures when models encounter new geographic regions or sensor characteristics. This review identifies critical research gaps and proposes prioritised future directions, emphasising foundation models for zero-shot detection, efficient architectures for resource-constrained deployment, and standardised benchmarks with size-specific metrics. The analysis provides practitioners with evidence-based decision frameworks for method selection and researchers with a roadmap for advancing object detection in remote sensing applications. Full article
17 pages, 8350 KB  
Article
Scenario-Adaptive Multi-Objective Optimization for Post-Earthquake Shelter Planning in Lima, Peru
by Soledad Espezúa, Amy Checcllo and Alexandra Sanjinez
Appl. Sci. 2026, 16(8), 4043; https://doi.org/10.3390/app16084043 - 21 Apr 2026
Viewed by 156
Abstract
Urban seismic vulnerability poses severe challenges for disaster preparedness in Lima, Peru, where a long-standing seismic gap increases risk to a metropolitan population of approximately ten million residents. This study presents an adaptive multi-objective optimization framework that dynamically adjusts shelter allocation priorities across [...] Read more.
Urban seismic vulnerability poses severe challenges for disaster preparedness in Lima, Peru, where a long-standing seismic gap increases risk to a metropolitan population of approximately ten million residents. This study presents an adaptive multi-objective optimization framework that dynamically adjusts shelter allocation priorities across earthquake intensity scenarios. The methodology integrates spatial data on population distribution, infrastructure vulnerability, and seismic hazard zones to optimize three competing objectives through the NSGA-III algorithm: inter-shelter spacing, population coverage, and safety. Model parameters were calibrated using controlled synthetic scenarios and subsequently validated with real-world data from Lima. Under the high-impact scenario used by the Municipality of Lima, the official set of 356 designated shelters was compared with an optimized configuration selected from 5855 potential sites under identical hazard and demand conditions. The optimized solution increased population coverage by 66.82% and reduced the average distance to critical resources by 24.55%, while reducing service gaps in peripheral districts. Scenario-adaptive optimization improved the robustness of shelter planning by producing configurations that were better aligned with operational priorities as hazard severity escalated, supporting more equitable access in a resource-constrained urban context. This research contributes an evidence-based decision-support tool for emergency management, translating multi-objective trade-offs into actionable shelter layouts for Lima. Full article
Show Figures

Graphical abstract

22 pages, 504 KB  
Article
The Role of Education in the Face of Climate Change and Disasters: Public Policies from Spain
by Josep Pastrana-Huguet and Carmen Grau-Vila
Sustainability 2026, 18(8), 4061; https://doi.org/10.3390/su18084061 - 19 Apr 2026
Viewed by 289
Abstract
Education plays a crucial role in climate adaptation and mitigation, specifically in the current context of environmental challenges and disasters. This article analyzes initiatives to integrate content on sustainability, climate change, and disaster risk reduction into Spanish educational legislation and other specific regulations, [...] Read more.
Education plays a crucial role in climate adaptation and mitigation, specifically in the current context of environmental challenges and disasters. This article analyzes initiatives to integrate content on sustainability, climate change, and disaster risk reduction into Spanish educational legislation and other specific regulations, such as civil protection. It reviews the alignment of Spanish legislation with international frameworks such as the 2030 Agenda for Sustainable Development and the Sendai Framework, as well as the incorporation of environmental and climate education into regulations related to climate change and civil protection. The article highlights the importance of teacher training and the recent implementation of a mandatory disaster education plan following a devastating rainfall and flood disaster in 2024 (known in Spanish as the DANA disaster), which aims to strengthen the resilience and preparedness of the entire educational community. It concludes that significant progress has been made in integrating this content into the curriculum. However, the challenge of consolidating a culture of climate change awareness in Spanish society remains. Full article
Show Figures

Figure 1

31 pages, 6887 KB  
Article
Primary Disruptions of Extreme Storms and Floods on Critical Entities Under the Framework of the CER EU Directive: The Case of Storm Daniel in Greece
by Michalis Diakakis, Vasiliki Besiou, Dimitris Falagas, Aikaterini Gkika, Petros Andriopoulos, Andromachi Sarantopoulou, Georgios Deligiannakis and Triantafyllos Falaras
Water 2026, 18(8), 967; https://doi.org/10.3390/w18080967 - 18 Apr 2026
Viewed by 328
Abstract
The growing complexity of human systems and the increasing frequency of climate-driven hazards have transformed some disasters from isolated events into cascading phenomena which propagate through critical infrastructure networks, disrupting essential services and amplifying systemic risk. This work examines the impacts of extreme [...] Read more.
The growing complexity of human systems and the increasing frequency of climate-driven hazards have transformed some disasters from isolated events into cascading phenomena which propagate through critical infrastructure networks, disrupting essential services and amplifying systemic risk. This work examines the impacts of extreme storms and subsequent flooding on critical entities as defined under the new EU Directive (Critical Entities Resilience, CER). This study introduces a structured Critical Entities Disruption Database—Greece (CEDD-GR), as a methodological framework for systematically recording and analysing disruptions to critical entities, and applies it to the case of Storm Daniel (2023), one of the most severe flood events recorded in Greece. The analysis identified direct impacts across eight of the eleven sectors defined in the CER Directive, namely, energy, transport, health, drinking water, wastewater, public administration, digital infrastructure and food production, processing and distribution. A total of 21 different types of critical entities were documented, revealing the mechanisms through which failures affected different subsectors. The results underscore the systemic fragility of critical entities when exposed to extreme storms, compound flooding, and mass wasting processes (landslides, ground subsidence) and highlight the need for integrated resilience planning in line with the CER framework. Full article
(This article belongs to the Section Hydrology)
23 pages, 11106 KB  
Article
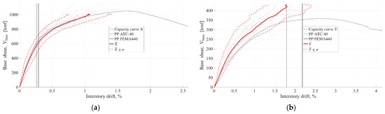
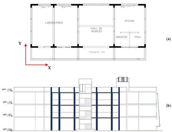
Probabilistic Seismic Assessment of a Representative Existing Educational Building in the City of Moquegua (Peru)
by Miguel A. Salas Chavez, Esteban M. Cabrera Vélez and Ramon Gonzalez-Drigo
Buildings 2026, 16(8), 1600; https://doi.org/10.3390/buildings16081600 - 18 Apr 2026
Viewed by 263
Abstract
The earthquake of 23 June 2001, Mw 8.4, caused catastrophic damage in the city of Moquegua (Peru), especially in reinforced-concrete educational buildings. In this research, advanced procedures have been used and compared to assess the seismic performance of a new educational building designed [...] Read more.
The earthquake of 23 June 2001, Mw 8.4, caused catastrophic damage in the city of Moquegua (Peru), especially in reinforced-concrete educational buildings. In this research, advanced procedures have been used and compared to assess the seismic performance of a new educational building designed under the current Peruvian construction regulations. Two nonlinear static procedures, the capacity spectrum method and an improved procedure based on the equivalent linearization method, have been applied and compared. Damage probabilities for a 475-year-return-period earthquake for the city of Moquegua evidence that the improved procedure based on the equivalent linearization method turns out to be slightly more conservative than the capacity spectrum method. Incremental dynamic analyses, based on 15 seismic events selected according to specific criteria, are taken as reference and complete the building damage assessment. Probabilistic damage matrices are proposed to assess damage using a probabilistic approach, which makes it possible to determine the levels of risk to be assumed in likely post-seismic scenarios and to carry out probabilistic estimates of the impacted population, the expected damage to structures, and the ranges of economic (social and material) costs. These tools assist stakeholders, civil protection and fire departments and the administrations involved in risk management and contingency planning in developing prevention strategies and improving preparedness for natural disasters such as earthquakes. Full article
(This article belongs to the Section Building Structures)
Show Figures

Figure 1

28 pages, 12288 KB  
Article
CALCNet: A Novel Cross-Module Attention Network for Efficient Land Cover Classification
by Muhammad Fayaz, Hikmat Yar, Weiwei Jiang, Anwar Hassan Ibrahim, Muhammad Islam and L. Minh Dang
Remote Sens. 2026, 18(8), 1218; https://doi.org/10.3390/rs18081218 - 17 Apr 2026
Viewed by 193
Abstract
Land cover classification (LCC) is a fundamental task in remote sensing, which enables effective environmental monitoring, agricultural planning, and disaster management. The existing approaches often rely on fine-tuning pre-trained models, which are not specifically designed for LCC, which lead to suboptimal performance in [...] Read more.
Land cover classification (LCC) is a fundamental task in remote sensing, which enables effective environmental monitoring, agricultural planning, and disaster management. The existing approaches often rely on fine-tuning pre-trained models, which are not specifically designed for LCC, which lead to suboptimal performance in complex scenarios. To address these limitations, we propose the Cross-Module Attention Land Cover Network (CALCNet), a novel architecture developed from scratch. CALCNet follows a contracting and restoration backbone, where the contracting path extracts progressively abstract semantic features while reducing spatial resolution, and the restoration path recovers fine-grained spatial details through upsampling and skip connections. In addition, CALCNet integrates a cross-module attention mechanism that combines spatial attention and multi-scale feature selection to enhance feature representation. Furthermore, we applied a differential evolution-based neuron pruning strategy to create a compressed CALCNet variant, which retains high classification performance while reducing computational cost. The CALCNet is evaluated on four benchmark LCC datasets, AID, UCMerced_LandUse, NWPU_RESISC45, and EuroSAT, demonstrating strong performance across all benchmarks. Specifically, the model achieves classification accuracies of 98.09%, 99.47%, 99.19%, and 99.19%, respectively. The compressed CALCNet variant reduces computational cost to 78.55 million floating point operations (FLOPs) with a model size of 43 MB, while achieving improved inference speeds (38.32 frames/sec on CPU and 118.3 frames/sec on GPU), representing approximately 45–50% reduction in FLOPs and model storage. These results highlight that CALCNet is both highly accurate and computationally efficient, making it well suited for real-world LCC applications. Full article
Show Figures

Figure 1

36 pages, 23824 KB  
Article
Differential Morphological Profile Neural Networks for Semantic Segmentation
by David Huangal and J. Alex Hurt
Remote Sens. 2026, 18(8), 1188; https://doi.org/10.3390/rs18081188 - 15 Apr 2026
Viewed by 316
Abstract
Semantic segmentation of overhead remote sensing imagery supports critical applications in mapping, urban planning, and disaster response, yet state-of-the-art segmentation networks are predominantly designed for ground-perspective imagery and do not directly address remote sensing challenges such as extreme scale variation, foreground–background imbalance, and [...] Read more.
Semantic segmentation of overhead remote sensing imagery supports critical applications in mapping, urban planning, and disaster response, yet state-of-the-art segmentation networks are predominantly designed for ground-perspective imagery and do not directly address remote sensing challenges such as extreme scale variation, foreground–background imbalance, and large image sizes. Rather than proposing new architectures, we take an architecture-agnostic approach by incorporating the differential morphological profile (DMP), a multi-scale shape extraction method based on grayscale morphology, as supplementary input to modern segmentation networks. We evaluate two integration strategies: a Direct-In approach, which adapts the input stem to accept DMP channels in place of or alongside RGB data, and a Hybrid DMP dual-stream architecture in which separate RGB and DMP encoders process each modality independently. Experiments on the iSAID, ISPRS Potsdam, and LoveDA benchmark datasets assess multiple DMP differentials and structuring element shapes. Results show that use of the DMP as direct input into models generally under-perform RGB-only baselines, while the Hybrid DMP approach substantially closes this gap and in some cases surpasses baseline performance, with gains varying across object categories. In the strongest case, a Hybrid DMP SegNeXt-S model achieves a gain of +3.19 mIoU over the RGB-only baseline on the ISPRS Potsdam dataset, and Hybrid DMP models outperform the RGB-only baseline on two of the three benchmark datasets evaluated. These findings suggest that DMP features provide complementary shape information that, when properly integrated, can enhance semantic segmentation performance for overhead remote sensing imagery. Full article
(This article belongs to the Section AI Remote Sensing)
Show Figures

Figure 1

48 pages, 9242 KB  
Article
Spherical Coordinate System-Based Fusion Path Planning Algorithm for UAVs in Complex Emergency Rescue and Civil Environments
by Xingyi Pan, Xingyu He, Xiaoyue Ren and Duo Qi
Drones 2026, 10(4), 285; https://doi.org/10.3390/drones10040285 - 14 Apr 2026
Viewed by 196
Abstract
This study proposes a heterogeneous fusion path planning framework for unmanned aerial vehicles (UAVs) operating in complex emergency rescue and civil environments. Existing single-mechanism metaheuristics—including Particle Swarm Optimization (PSO), Ant Colony Optimization (ACO), and Genetic Algorithms (GAs)—suffer from fundamental limitations in three-dimensional kinematic [...] Read more.
This study proposes a heterogeneous fusion path planning framework for unmanned aerial vehicles (UAVs) operating in complex emergency rescue and civil environments. Existing single-mechanism metaheuristics—including Particle Swarm Optimization (PSO), Ant Colony Optimization (ACO), and Genetic Algorithms (GAs)—suffer from fundamental limitations in three-dimensional kinematic path planning: PSO converges rapidly but stagnates at local optima due to population variance collapse; ACO offers robust local exploitation but incurs prohibitive cold-start overhead; GAs maintain diversity at the cost of expensive crossover operations. To address these complementary deficiencies simultaneously, the proposed framework introduces a spherical coordinate representation that reduces computational complexity and naturally enforces UAV kinematic constraints, combined with adaptive weight factors and a serial PSO-ACO fusion strategy, and subsequently incorporates adaptive weight factors. A serial fusion strategy is then introduced, wherein the sub-optimal trajectory generated by the Spherical PSO phase is mapped into the ACO pheromone field via a Gaussian Kernel Density Mapping (GKDM) mechanism, enabling the ACO phase to perform fine-grained local exploitation within a kinematically feasible corridor. Various constraints along the flight path are formulated into distinct cost functions, which cover aircraft track length, pitch angle variation, altitude difference variation, obstacle avoidance, and smoothness; the core task of the algorithm is to find the flight path with the minimum total cost. The proposed algorithm is dedicated to UAV path planning in complex emergency rescue environments (disaster-stricken areas, hazardous zones) and is further applicable to civil low-altitude logistics delivery, industrial facility inspection, ecological environment monitoring and urban air mobility (UAM) scenarios with complex obstacle constraints. It can effectively improve the safety and efficiency of UAVs in reaching rescue points, delivering emergency supplies, conducting disaster surveys, and completing various civil low-altitude operation tasks. Full article
(This article belongs to the Section Innovative Urban Mobility)
Show Figures

Figure 1

16 pages, 6393 KB  
Article
Spatiotemporal Variations in Population Exposure to Earthquake Disaster in Hubei Province Under Future SSP Scenarios
by Xiaoyi Hu, Jian Ye, Yani Huang, Haolin Liu, Menghao Zhai and Xue Li
GeoHazards 2026, 7(2), 43; https://doi.org/10.3390/geohazards7020043 - 14 Apr 2026
Viewed by 215
Abstract
This study develops a framework to capture spatiotemporal population dynamics and assess future earthquake exposure risk, using Hubei Province as a case study. Future population changes at the county level were projected under different shared socioeconomic pathways (SSPs). These projections were then integrated [...] Read more.
This study develops a framework to capture spatiotemporal population dynamics and assess future earthquake exposure risk, using Hubei Province as a case study. Future population changes at the county level were projected under different shared socioeconomic pathways (SSPs). These projections were then integrated with NPP-VIIRS nighttime light data and the normalized difference vegetation index (NDVI) to simulate the spatiotemporal dynamics of the population from 2020 to 2070 at a 500 m grid resolution. Combined with seismic hazard zoning, the evolution of population exposure risk under different pathways was assessed. The results indicate the following: 1. Different SSPs profoundly influence future population exposure patterns. Under the SSP3 (regional rivalry) pathway, population growth is the fastest with the strongest agglomeration effect and significantly elevated exposure levels. 2. The refined spatiotemporal population model can more realistically reveal the heterogeneity and evolutionary trajectory of population distribution, providing a high-precision data foundation for exposure analysis and effectively enhancing the scientific rigor of risk assessment. 3. Population exposure risk under various pathways exhibits distinct spatiotemporal dynamics, and monitoring its evolution under different scenarios helps identify high-risk counties that require priority attention. This study is expected to provide precise scientific evidence for implementing differentiated disaster prevention and mitigation strategies and territorial spatial resilience planning in Hubei Province, while it demonstrates the forward-looking value of combining long-term scenario simulations with refined exposure assessments. Full article
Show Figures

Figure 1

16 pages, 3544 KB  
Perspective
Bridging Science and Governance for Earthquake Resilience in Malawi: A Perspective from the Southern East African Rift System
by Patsani Gregory Kumambala, Grivin Chipula, Ponyadira Corner and Chikondi Makwiza
GeoHazards 2026, 7(2), 42; https://doi.org/10.3390/geohazards7020042 - 13 Apr 2026
Viewed by 266
Abstract
Malawi lies within the southern segment of the East African Rift System and is exposed to infrequent but potentially damaging earthquakes. While recent advances in fault mapping, seismic monitoring, and hazard modelling have substantially improved scientific understanding of earthquake hazard in the Malawi [...] Read more.
Malawi lies within the southern segment of the East African Rift System and is exposed to infrequent but potentially damaging earthquakes. While recent advances in fault mapping, seismic monitoring, and hazard modelling have substantially improved scientific understanding of earthquake hazard in the Malawi Rift Zone, the practical reduction in seismic risk remains limited. This Perspective paper argues that earthquake resilience in Malawi is constrained less by scientific uncertainty than by challenges in integrating existing hazard knowledge into governance, planning, and preparedness. Drawing exclusively on published geological, geophysical, engineering, and policy literature, the paper synthesises evidence on seismic hazard, historical earthquake impacts, institutional preparedness, and barriers to the operational use of scientific risk assessments. An integrated, multi-pillar framework is proposed to support improved coordination between science, governance, infrastructure practice, and community preparedness. The framework is conceptual in nature and is intended to inform policy dialogue, prioritisation, and future empirical research rather than to provide a validated operational model. While grounded in the Malawian context, the insights presented are relevant to other low-income, rift-hosted regions facing similar challenges in translating earthquake science into effective disaster risk reduction. Full article
Show Figures

Figure 1

10 pages, 6900 KB  
Proceeding Paper
A Data-Centric Approach to Urban Building Footprint Extraction Using Graph Neural Networks and Assessed OpenStreetMap Data
by Anouar Adel, Meziane Iftene and Mohammed El Amin Larabi
Eng. Proc. 2026, 124(1), 105; https://doi.org/10.3390/engproc2026124105 - 10 Apr 2026
Viewed by 323
Abstract
The accurate and timely identification of urban building footprints is critical for sustainable urban planning and disaster management. Traditional remote sensing methods for this task often face limitations in scalability, accuracy, and adaptability to complex urban morphologies. This paper addresses these challenges by [...] Read more.
The accurate and timely identification of urban building footprints is critical for sustainable urban planning and disaster management. Traditional remote sensing methods for this task often face limitations in scalability, accuracy, and adaptability to complex urban morphologies. This paper addresses these challenges by developing and evaluating a novel data-centric framework that synergistically integrates Graph Neural Networks (GNNs) with zero-shot superpixel segmentation derived from the Segment Anything Model (SAM) applied to Sentinel-2 imagery. A cornerstone of our methodology is a rigorous assessment of OpenStreetMap (OSM) data, refined through temporal NDVI stability analysis to generate high-quality ground truth. We propose an optimized UrbanGraphSAGE model, enhanced with spectral data augmentation and trained using a robust loss function with label smoothing to mitigate label noise. In the complex urban landscape of Algiers, Algeria, our approach achieves a Test F1-Score of 0.7131, demonstrating highly competitive performance with standard pixel-based baselines like U-Net while offering significant topological and computational advantages. Specifically, our model operates with merely 19,585 parameters—orders of magnitude fewer than pixel-based CNNs. A rigorous Gold Standard evaluation against manually labeled imagery confirms the model’s high recall (0.8484) and reliability for automated urban monitoring. Full article
(This article belongs to the Proceedings of The 6th International Electronic Conference on Applied Sciences)
Show Figures

Figure 1

27 pages, 13111 KB  
Article
A Pre-Disaster Deployment and Post-Disaster Restoration Method Considering Coupled Failures of Power Distribution and Communication Networks
by Wenlong Qin, Xuming Chen, He Jiang, Sifan Qian, Kewei Xu, Peng He, Xian Meng, Le Liu and Xiaoning Kang
Electronics 2026, 15(8), 1585; https://doi.org/10.3390/electronics15081585 - 10 Apr 2026
Viewed by 229
Abstract
Extreme natural disasters may simultaneously disrupt power distribution infrastructures and their supporting communication systems, significantly degrading post-disaster recovery performance. To enhance coordinated restoration under such coupled failure conditions, this study proposes a unified optimization framework for pre-disaster deployment and post-disaster repair and service [...] Read more.
Extreme natural disasters may simultaneously disrupt power distribution infrastructures and their supporting communication systems, significantly degrading post-disaster recovery performance. To enhance coordinated restoration under such coupled failure conditions, this study proposes a unified optimization framework for pre-disaster deployment and post-disaster repair and service restoration in interdependent distribution–communication networks. First, an interdependency model is developed to characterize the physical and operational couplings between the distribution and communication networks. The impacts of communication outages on remotely controlled switches and repair crew dispatching are quantitatively analyzed, revealing how communication failures influence the restoration process. Based on this interdependency representation, a coordinated optimization model is established to jointly determine repair crew routing, mobile power allocation, and critical load restoration sequencing. The objective is to minimize cumulative outage losses over the recovery horizon, thereby achieving coordinated allocation and routing of multiple types of emergency repair resources. Furthermore, by jointly considering pre-disaster deployment planning and post-disaster restoration strategies, a two-stage emergency recovery framework is designed to integrate pre-event preparedness with post-event response for distribution networks. Case studies on a modified IEEE 33-bus cyber–physical distribution system demonstrate that the proposed coordinated restoration strategy restores approximately 50% of critical loads within the first 3 h, which is of direct significance for maintaining essential services such as hospitals and emergency shelters during the acute phase of a disaster. The proposed approach reduces the total load loss by 49.5% and shortens the restoration time by 120 min. In terms of pre-disaster deployment, the proposed strategy reduces average load shedding by 33.4% and 46.5% relative to the heuristic and random deployment strategies, respectively, demonstrating the effectiveness of proposed method for grid resilience enhancement. Full article
Show Figures

Figure 1

31 pages, 1438 KB  
Review
A Conceptual Decision-Support Agent-Based Framework for Evacuation Planning Under Compound Hazards
by Omar Bustami, Francesco Rouhana and Amvrossios Bagtzoglou
Sustainability 2026, 18(8), 3658; https://doi.org/10.3390/su18083658 - 8 Apr 2026
Viewed by 287
Abstract
Evacuation planning is increasingly challenged by compound hazards in which interacting threats degrade infrastructure, influence human behavior, and destabilize transportation systems. Although agent-based models and dynamic traffic simulations have advanced substantially, much of the evacuation literature remains hazard-specific, case-bound, or difficult to transfer [...] Read more.
Evacuation planning is increasingly challenged by compound hazards in which interacting threats degrade infrastructure, influence human behavior, and destabilize transportation systems. Although agent-based models and dynamic traffic simulations have advanced substantially, much of the evacuation literature remains hazard-specific, case-bound, or difficult to transfer across regions. In parallel, transportation resilience research shows that multi-hazard effects are often non-additive and that cascading infrastructure failures can amplify disruption beyond directly affected areas, raising important sustainability concerns related to community safety, infrastructure continuity, social equity, and long-term planning capacity. These realities motivate the development of evacuation modeling frameworks that are modular, adaptable, and capable of representing co-evolving behavioral and network processes under compound hazard conditions. This review synthesizes advances in evacuation agent-based modeling, dynamic traffic assignment, hazard-induced network degradation, and compound disaster research to propose an adaptable compound-hazard evacuation framework integrating three interdependent layers: hazard processes, transportation network dynamics, and agent decision-making. The proposed framework is organized around four principles: (1) modular hazard representation, (2) decoupling behavioral decision logic from hazard physics, (3) dynamic network state evolution, and (4) neighborhood-scale performance metrics. To support sustainable and equitable local planning, the framework prioritizes spatially resolved outputs, including neighborhood clearance time, isolation probability, accessibility loss, and shelter demand imbalance. By emphasizing modularity, configurability, and policy-relevant metrics, this review connects methodological advances in evacuation modeling to the broader sustainability goals of resilient infrastructure systems, inclusive disaster risk reduction, and locally informed emergency planning. Full article
(This article belongs to the Special Issue Sustainable Disaster Management and Community Resilience)
Show Figures

Figure 1

Back to TopTop